TRANSFORMATION PLAN
Lead Grantee: Fineview Citizens Council

Co-Lead Grantee: Housing Authority of the City of Pittsburgh


DECEMBER 2022
OUR CHOICE, OUR FUTURE
ALLEGHENY DWELLINGS CHOICE NEIGHBORHOOD

DECEMBER 16, 2022



Lead Grantee: Fineview Citizens Council
Co-Lead Grantee: Housing Authority of the City of Pittsburgh
DECEMBER 2022
DECEMBER 16, 2022
The Fineview Citizens Council (FCC) and the Housing Authority of the City of Pittsburgh (HACP) are proud to submit the final Allegheny Dwellings Choice Neighborhood "Our Choice, Our Future" Plan. Thanks to the creativity and dedication of the Allegheny Dwellings Choice Neighborhood planning team, we have built a strong coalition of partners and reached hundreds of neighbors through outreach efforts consisting of virtual meetings, door knocking, pop-up events, and outdoor, in-person community meetings.
The Plan represents the culmination of two years of intensive engagement and collaborative work, conducted both in-person and virtually, and a synthesis of the ideas and aspirations of residents, neighborhood groups, local non-profit organizations, development partners, and City partners.
The Plan organizes the collective vision of the planning team into an attainable roadmap, with a series of goals and strategies built upon the core themes of People, Housing, and Neighborhood. These core themes consist of:
» People — Re-establish community connections and trust to foster a safe, familyfriendly neighborhood, where residents are active parts of their community and thrive as individuals.
» Housing — Integrate Allegheny Dwellings into the surrounding community and invest in safe, quality, affordable housing.
» Neighborhood — Create a green, connected, well-served, livable neighborhood where residents have convenient access to rich opportunities and resources to meet their daily needs.
FCC and HACP are excited about the vision for transformation that has been outlined in this plan. The planning team has produced a final plan that is both practical and aspirational –offering a shared vision for a community where all residents have access to safe, decent affordable housing, can live and raise their children safely, and improve their lives via connections to food, childcare, after school programs, and jobs.
FCC and HACP are excited about the vision for transformation that has been outlined in this plan. The planning team has produced a final plan that is both practical and aspirational –offering a shared vision for a community where all residents have access to safe, decent, affordable housing, can live and raise their children safely, and improve their lives via connections to food, childcare, after-school programs, and jobs.
FCC and HACP are excited about the vision for transformation that has been outlined in this plan. The planning team has produced a final plan that is both practical and aspirational –offering a shared vision for a community where all residents have access to safe, decent affordable housing, can live and raise their children safely, and improve their lives via connections to food, childcare, after school programs, and jobs.
We believe the Allegheny Dwellings Our Choice, Our Future plan illustrates and brings to life the true potential of mixed-income, affordable housing and livable, connected neighborhoods, while showcasing the power of community to shape and direct the future for long-time and new residents.
We believe the Allegheny Dwellings "Our Choice, Our Future" Plan illustrates and brings to life the true potential of mixed-income affordable housing, and livable, connected neighborhoods, while showcasing the power of community to shape and direct the future for long-time and new residents.
We believe the Allegheny Dwellings Our Choice, Our Future plan illustrates and brings to life the true potential of mixed-income, affordable housing and livable, connecte d neighborhoods, while showcasing the power of community to shape and direct the future for long-time and new residents.
As a result of this two-year effort, residents of Allegheny Dwellings and the surrounding communities can begin to look ahead to a bright future. In the very near future, residents can expect to see physical changes and community improvements provided through the early action activities associated with the project. We look forward to moving the strategies identified in this plan forward in the coming years as funding allows.
As a result of this two-year effort, residents of Allegheny Dwellings and the surrounding communities can begin to look ahead to bright future. However; in the very near future, residents can expect to soon see physical changes and community improvements provided through the early action activities associated with the project. We look forward to moving the strategies identified in this plan forward in the coming years as funding allows.
As a result of this two-year effort, residents of Allegheny Dwellings and the surrounding communities can begin to look ahead to bright future. H owever; in the very near future, residents can expect to soon see physical changes and community improvements provided through the early action activities associated with the project. We look forward to moving the strategies identified in this plan forward in the coming years as funding allows.
FCC and HACP are grateful to the Allegheny Dwellings, Fineview, Perry Hilltop, Charles Street Valley, and California Kirkbride residents, as well as numerous organizations and individuals involved in the planning process, for their tireless efforts creating this visionary roadmap.
We also extend our gratitude to our partners in the U.S. Department of Housing and Urban Development who provided funding to support these planning efforts through the Choice Neighborhoods Grant Program.
Finally, we would like to extend a special thank-you to the community ambassadors of Allegheny Dwellings, who have provided valuable support for the project by sharing their ideas through a spirit of collaboration and inclusion, maximizing resident involvement, and fostering engagement and collaboration with partner organizations and the community at large.
FCC and HACP are truly grateful to the Allegheny Dwellings, Fineview, Perry Hilltop, Charles Street Valley, and California Kirkbride residents, as well as numerous organizations and individuals involved in the planning process, for their tireless efforts creating this visionary roadmap. We also extend our gratitude to our partners in the U.S. Department of Housing and Urban Development who provided funding to support these planning efforts through the Choice Neighborhoods grant program. Finally, we would like to extend a special thank you to the community ambassadors of Allegheny Dwellings, who have provided valuable support for the project by sharing their ideas through a spirit of collaboration and inclusion, maximizing resident inv olvement, and fostering engagement and collaboration with partner organizations and the community at large.
FCC and HACP are truly grateful to the Allegheny Dwellings, Fineview, Perry Hilltop, Charles Street Valley, and California Kirkbride residents, as well as numerous organizations and individuals involved in the planning process, for their tireless efforts creating this visionary roadmap. We also extend our gratitude to our partners in the U.S. Department of Housing and Urban Development who provided funding to support these planning efforts through the Choice Neighborhoods grant program. Finally, we would like to extend a special thank you to the community ambassadors of Allegheny Dwellings, who have provided valuable support for the project by sharing their ideas through a spirit of collaboration and inclusion, maximizing resident involvement, and fostering engagement and collaboration with partner organizations and the community at large.
Sincerely,
Sincerely,
Sincerely,
JOANNA DEMING Executive Director JOANNA DEMING Executive DirectorPROJECT MANAGEMENT
Lead Applicant
Fineview Citizens Council (FCC)
Co-Applicant
Housing Authority of the City of Pittsburgh (HACP )
STEERING COMMITTEE
Fineview Citizens Council (FCC)
Housing Authority of the City of Pittsburgh (HACP)
Allegheny Dwellings Tenants Council
Allegheny County, Department of Human Services
Buhl Foundation
California-Kirkbride Neighbors
Charles Street Area Council
City of Pittsburgh, Mayor’s Office
City of Pittsburgh, Department of City Planning
City of Pittsburgh, Councilman Dan Lavelle
City of Pittsburgh, Councilman Bobby Wilson
Perry Hilltop Citizens Council
TREK Development
Urban Redevelopment Authority
PLANNING COORDINATOR
WRT
Jackson-Clark Partners: People Task Force Lead (2021)
NEEDS ASSESSMENT
Buhl Foundation: One Northside
Project Destiny: Thrive 18
PEOPLE TASK FORCE
Co-chair : Buhl Foundation
Co-chair : Allegheny County DHS
Co-chair : HACP Resident Services
Co-chair: Allegheny Dwellings Tenant Council
Project Destiny’s Thrive18
Legacy International Church
Trek Development Group
Allegheny Health Network
Highmark Foundation
Northside Christian Health Center
Center for Victims of Violence& Crime
A+ Schools
King & Perry Schools & Admin
Angel’s Place
Northside Partnership Project
The Pittsburgh Project
Urban Impact
Northside Chamber of Commerce
California Kirkbride Neighbors
Charles Street Area Council
Fineview Citizens Council
Perry Hilltop Citizens Council
NEIGHBORHOOD TASK FORCE
Co-chair : Urban Redevelopment Authority (URA)
Co-chair : City of Pittsburgh, Department of City
Planning
Co-chair : Housing Authority of the City of Pittsburgh
(HACP)
Co-chair : Allegheny Dwellings Tenant Council
Allegheny Cleanways
California Kirkbride Neighbors
Charles Street Area Council
Fineview Citizens Council
Perry Hilltop Citizens Council
Foundation of Hope
Moms Demand Action
Pittsburgh, Dept. of Mobility & infrastructure
Pittsburgh Police – Zone 1
Pittsburgh Public Safety Community Affairs
Pittsburgh Water and Sewer Authority
Pittsburgh Regional Transit
HOUSING TASK
Co-chair : Housing Authority of the City of Pittsburgh (HACP) / Allies & Ross Management & Development Corporation (ARMDC)
Co-chair : TREK Development
Co-chair : Allegheny Dwellings Tenant Council
California-Kirkbride Neighbors
Charles Street Area Council
Fineview Citizens Council
City of Bridges Community Land Trust (CBCLT)
City of Pittsburgh, Department of City Planning
City of Pittsburgh, Mayor's Office
Northside Coalition for Fair Housing/ Northside Properties
Perry Hilltop Citizens Council
Rising Tide Partners
Urban Redevelopment Authority (URA)
EARLY ACTION ACTIVITIES WORK GROUP
Representative Members of Steering Committee and Task Forces; Neighborhood Residents; Allegheny Dwellings Residents.
A SPECIAL THANK-YOU TO THE COMMUNITY AMBASSADORS WHO PARTICIPATED IN THE PLANNING PROCESS & CAPACITY BUILDING ACTIVITIES:
Ms. Cheryl Gainey, Allegheny Dwellings Tenant Council President
Natasha Howard
Tiffani Johnson
Darrell Wharton
Agnes Stevens
Diane Jackson
Sam Reid, part-time member
Darryl Hays, previous member
Tori Kelly, previous member
India Kelly, previous member
Facilitated and led by Montia Robinson from The M. Robinson Group (2022) with support from HACP and organized by Bethany Friel from TREK Development (2021)
Accessible – The extent to which public spaces and land, including buildings, are physically accessible to everyone, regardless of their physical, cognitive, or mental ability. Specific areas of public spaces and buildings shouldn’t be designed for people with specific disabilities; all public spaces should work for everyone. (ASLA, APA)
Affordable Housing – Housing is considered affordable if a family pays no more than 30% of its household income on housing-related costs.
Amenity – Characteristics of a development that increase its desirability to a community or its marketability to the public. Amenities may differ from development to development but may include such things as a unified building design, recreational facilities, views, landscaping and tree preservation, or attractive site design. (APA)
Area Median Income (AMI) – Area Median Income is the midpoint of a region’s income distribution — half of families earn more than the median and half earn less than the median. The median household income for the City of Pittsburgh was $57,821 in 2021 (Census.gov).
Choice Neighborhoods – Sponsored by HUD, Choice Neighborhoods Planning Grants support the development of comprehensive neighborhood revitalization plans that focus on three core goals: Housing, People, and Neighborhoods. To achieve these goals, communities must develop a comprehensive neighborhood revitalization strategy or “Transformation Plan.”
CNI – Choice Neighborhoods Initiative.
Community Trust Fund – Nonprofit corporation that holds land on behalf of a place-based community, while serving as the longterm steward for affordable housing, community gardens, civic buildings, commercial spaces, and other community assets on behalf of a community.
Early Action Activities – Up to $50,000 of CN Planning Grant funds can be used for limited physical neighborhood improvements during the two-year planning process.
Extremely Low Income – Households with an income under 30% of AMI.
Green Space – Wooded and grassy areas that provide sites for recreation and enjoyment of nature, often located in the midst of urban areas that are otherwise occupied by buildings and paved areas. (CLE CPC Glossary)
Health – Health is a state of complete physical, mental, and social well-being and not merely the absence of disease or infirmity. (WHO)
Housing Diversity – Understanding the local supply, demand, occupancy, and pricing factors for a broad range of housing options. (RFP)
HUD – US Department of Housing and Urban Development.
Infill Development – Development on relatively small vacant or underutilized sites in urbanized areas, making use of existing infrastructure and community facilities. Infill development in t he urban core of a metropolitan area is one means of reducing urban sprawl. (CLE CPC Glossary)
Low Income – Households with income between 30% and 60% of AMI.
LIHTC – The Low Income Housing Tax Credit provides a tax incentive to construct or rehabilitate affordable rental housing for low-income families. LIHTC subsidizes the acquisition, construction, and rehabilitation of affordable rental housing for low and moderate-income tenants.
9% Credits – The 9% credit is a competitive tax credit allocation for the construction of affordable rental housing. It typically covers most of the cost of new construction. Tax credit units have set rents and prospective tenants must meet income limit requirements.
4% Credits – The 4% tax credit is not competitive, and does not cover the total cost of new construction. As a result it is typically claimed for rehabilitated affordable housing and new construction affordable units that are financed with taxexempt bonds or other subsidies.
Market Rate Housing – Housing units unrestricted by income.
Mixed-Income Housing – Residential development that includes housing for a variety of income levels. Mixed-income housing is proposed to promote economic integration and prevent economic isolation, with the principal goal of expanding economic opportunities for lower-income individuals.
Neighborhood Greenways – Natural areas that take the form of corridors and provide opportunities for trails and bike paths connecting scenic areas and other destinations.
Non-Replacement Housing – New housing proposed by the Choice Neighborhoods Plan that is not intended to replace Allegheny Dwellings units.
Open Space – Any land or area, the preservation of which in its present use would: (1) conserve and enhance natural or scenic resources; or (2) protect streams or water supply; or (3 ) promote conservation of soils, wetlands, beaches, or tidal marshes; or (4) enhance the value to the public of abutting or neighboring parks, forests, wildlife preserves, nature reservations, or sanctuaries; or (5) enhance recreation opportunities. (APA)
PHFA – PA Housing Finance Agency works to provide affordable homeownership and rental apartment options for older adults, low- and moderate-income families, and people with special housing needs. Through its carefully managed mortgage programs and investments in multifamily housing developments, as well as funding provided for community development projects, PHFA also promotes economic development across the state. (PHFA website)
Public Housing – Public housing was established to provide decent and safe rental housing for eligible lowincome families, the elderly and persons with disabilities. Rent is 30% of income.
Public Space – Publicly accessible streets, plazas, parks and comparable outdoor areas; public facilities such as schools, libraries, and indoor recreation complexes.
(Eco Districts Protocol)
PBV – Project-Based Voucher units are part of the Housing Choice Voucher program, also known as Section 8. PBVs are tied to a unit.
Replacement Housing – This refers to rental housing (section 8 housing and PBV housing) that will replace any Allegheny Dwellings units that are demolished, disposed of, or reduced.
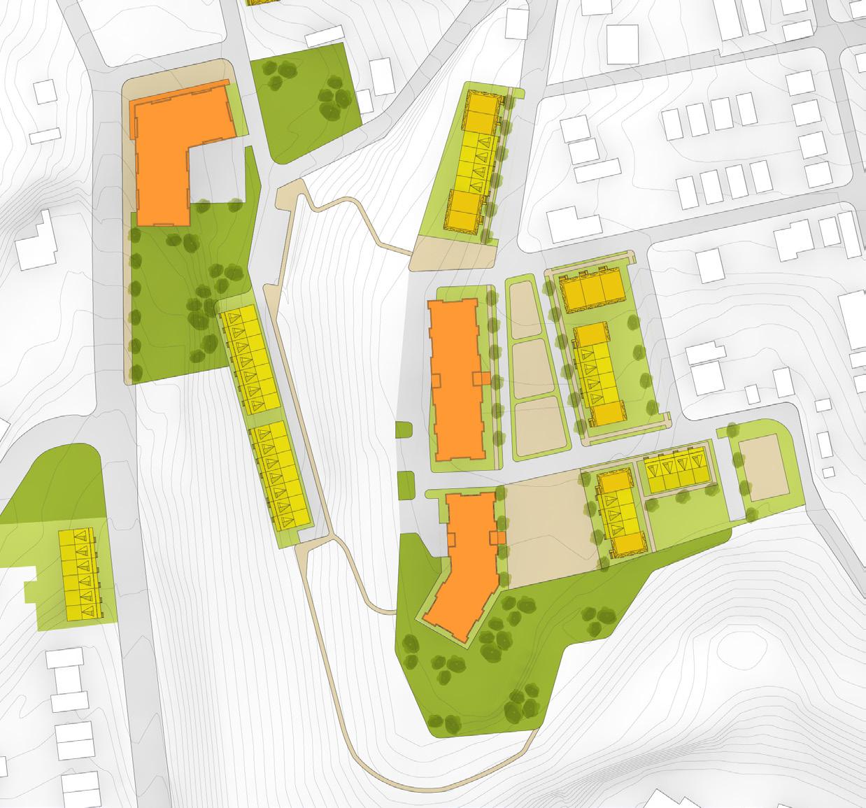
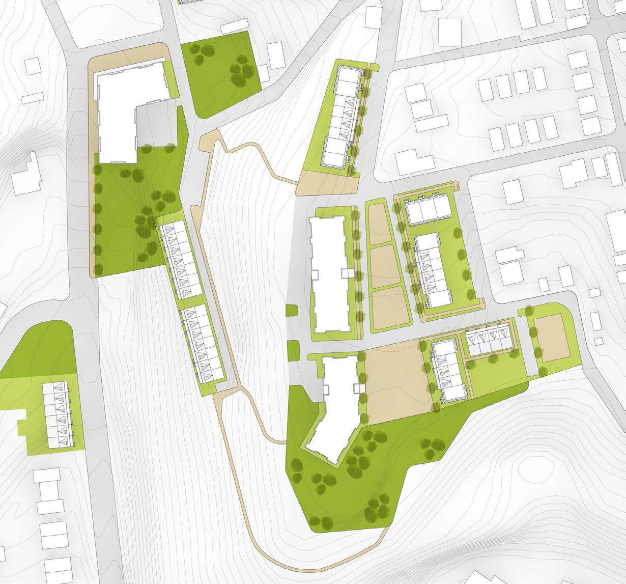
Site Plan – A plan, to scale, showing uses and structures proposed for a parcel of land as required by the regulations. Includes lot lines, streets, building sites, reserved open space, buildings, major landscape features—both natural and manmade. (APA)
Streetscape – The view along a street from the perspective of a driver or pedestrian, particularly views of natural and built elements in the street right-of-way, including street trees, signs, street lights, above-ground utilities, sidewalks, bus shelters, bike racks, street furniture and public art. The quality of a streetscape has a major impact on the perception of an adjacent retail or mixed-use district. (CLE CPC Glossary)
Transformation Plan – Communities that receive a CN Planning Grant from HUD must develop and implement a comprehensive neighborhood revitalization strategy that addresses the three core goals of Choice Neighborhoods (Housing, People, Neighborhood). The Transformation Plan becomes the guiding document for the revitalization of the public and/or assisted housing units while at the same time, directing transformation of the neighborhood and creating positive outcomes for families.
Transit – Passenger services provided by public, prior nonprofit entities such as the following surface transit modes: commuter rail, rail rapid transit, light rail transit, light guideway transit, express bus, and local fixed route bus. (APA)
Walkable (community) – A community where housing, workplaces, shopping areas, schools and recreation facilities are laid out in a manner that makes them relatively accessible by walking as well as by cycling. (CLE CPC Glossary)
Our Choice, Our Future
Our Community Ambassadors
The Vision
Guiding Themes
health, place, and safety for the 18 neighborhoods within Pittsburgh's Northside. Within that framework, neighborhood groups like Fineview Citizens Council, Perry Hilltop Citizens Council, Charles Street Area Council, and California-Kirkbride Neighbors are leading on-the-ground initiatives to improve parks and open spaces, protect residents from gentrification and strengthen homeownership, and create a safer environment and quality of life for all residents. Today, Allegheny Dwellings is home to about 280 residents who reside on Belleau Drive and Letsche Street in the Fineview neighborhood. Designed in the 1940s as World War II housing, the buildings at Allegheny Dwellings have been deemed obsolete, given the high cost of substantial renovation needed.
After years of careful planning and assessment, the first phase of redevelopment, now known as Sandstone Quarry, was completed in 2019 and includes 65 mixed-income housing units consisting of townhomes and apartments at the lowest terrace of the 19.2-acre sloped site.
better access to education and childcare, as well as community connection and networking.
After submitting the Draft Plan, the Housing, Neighborhood, and People Task Force working groups continued to fine tune and develop more detailed housing concept plans with updated unit mixes that are included in this Transformation Plan.
The Community Ambassador program has continued to grow stronger and residents are excited to play a pivotal role in continuing to work together to ensure the Plan - Our Choice, Our Future - is true to its name.
Through this planning process, residents have expressed their desire to be better connected to each other and the surrounding neighborhoods, enjoy access to transit and everyday needs, and be part of a supported neighborhood network.
Founded in 2021, the Community Ambassador Program is a leadership development initiative started by HACP and TREK Development and continued under the leadership of Montia Robinson.
The goals of the program were to educate a core group of residents about the Choice Neighborhood planning process, promote resident advocacy, build community capacity, and encourage integration within the Fineview neighborhood at large. The Community Ambassadors have truly become strong leaders. We wouldn't have been able to reach as many residents without this group. We hope to keep the program active in the years to come.
The Community Ambassadors took part in two of the Choice Neighborhood Community Meetings held in Allegheny Dwellings in May and October 2022.
Due to their increased knowledge of the Choice Neighborhoods process and shared belief in the positive effect it will have in their community, they were able to assist in explaining each meeting station to their neighbors and designing their own activities.
Through their bi-weekly meetings and pop-up questions, Ambassadors decided that a Public Safety Committee was needed in their community. Their first step was to introduce the idea to their community and seek feedback at the October Community Meeting. Through the feedback received, the group was able to identify interested residents and begin to shape their Public Safety Committee. With the assistance of HACP Resident Relations and Property Management, Ambassadors held their first meeting in December 2022.
Educate about the Choice Neighborhood planning process
Promote resident advocacy
Build community capacity
E ncourage integration within the Fineview neighborhood at large
Coffee and Conversations
Ambassadors set in a common area in Allegheny Dwellings and held a "Choice Question of the Day" forum.
For this activity, Community Ambassadors engaged their peers and asked questions related to the Housing Plan - specifically, questions like "what site would you most like to see as the place you would move to?"
Community Ambassadors, with the help of donations received by FCC, set up stations on Belleau Dr. and Letsche St. Families were able to come and select from a variety of brand-new donated costumes and school supplies for their households.
Children's Halloween Event
Community Ambassadors spoke with many residents that expressed concern with children going trick-or-treating due to safety concerns.
Residents expressed their desire to have an on-site opportunity for children. The Ambassadors reached out to HACP, Tenant Council, FCC and the staffed PA Constables for support in this effort. As a result, Community Ambassadors were able to host a successful Halloween event in the Allegheny Dwellings Community Room. Children dressed up in costumes, had a meal, and won prizes.
The Choice Neighborhood Plan builds on existing connections throughout the Northside neighborhoods with transit enhancements, improved intersections and streetscapes along key corridors, and added trails and greenways.
The future of Allegheny Dwellings will be built and informed by residents, neighborhood organizations, community leaders, and institutional partners.
In this reimagined future, the community’s vision is to re-establish community connections and trust to foster a safe, family-friendly neighborhood, where residents are active parts of their community and thrive as individuals.
In the future, Allegheny Dwellings will be integrated into the surrounding community , with safe, quality, affordable housing . The overall community will be stitched together through green, connected, well-served, livable neighborhoods where residents have convenient access to rich opportunities and resources to meet their daily needs.
Re-establish community connections and trust to foster a safe, family-friendly neighborhood, where residents are active parts of their community and thrive as individuals.
This Choice Neighborhood is rich in resident-led community groups and a network of mission-driven organizations and foundations working together to improve opportunity and outcomes for residents.
The One Northside partnership led by Buhl Foundation is one example of how partnerships are in place and actively engaged in improving the everyday lives of residents – from increasing quality housing options, to improving education opportunity, offering career paths for young people, supporting integrative healthcare that is based on relationships, and partnerships. Residents have emphasized the need for community places where neighbors can build connections and strengthen their community to the benefit of individuals and families. While many resources exist, it is often difficult for families to make the connections and to determine where to start without building trust and offering comprehensive, wrap-around services, and mental health and wellness support.
Connect families with safe, affordable, accessible, and educational childcare so that all children enter kindergarten ready to learn, and all youth is proficient in core academic subjects and graduate from high school college- and career-ready.
Promote graduation readiness through increasing access to affordable and quality out-of-school time programs.
Increase opportunities for community members to earn a living wage and have meaningful work.
Promote improved quality of life with a holistic health approach; all Allegheny Dwellings residents will have a choice in where they live and have their basic needs met.
Integrate Allegheny Dwellings into the surrounding community and invest in safe, quality, affordable housing.
Through the needs assessment, many residents of Allegheny Dwellings and the surrounding neighborhoods told us that would like to buy their own homes in the future, and over 80% of households at Allegheny Dwellings like the idea of mixed-income housing and community. We know from the Finevew and Perry Hilltop Five-Year Affordable Housing Plan and our study of current housing affordability and community need that the housing market within this Choice Neighborhood is changing quickly. For-sale homes are becoming too expensive for current residents to afford and there is a significant percentage of residents in the neighborhood that are currently cost-burdened, particularly renters who are spending more than 30% of income on housing costs. Investment is needed in all types of affordable housing, from the redevelopment of Allegheny Dwelling to programs that help homeowners cover maintenance costs, opportunities for residents to live in energy-efficient, high-quality housing, as well as to invest in and modernize older housing stock.
Integrate Allegheny Dwellings into the larger neighborhood and provide community spaces and opportunities for engagement.
Support renters in working towards homeownership and existing homeowners in accessing new skills and programs to make improvements in their homes.
Work towards green, energy efficient models of housing, connecting residents with natural light and a healthy living environment.
Create a green, connected, well-served, livable neighborhood where residents have convenient access to rich opportunities and resources to meet their daily needs.
We heard from residents the challenges of using public transportation for daily needs, like getting to work, dropping off kids at childcare and pre-school locations, and shopping for groceries. Within the Choice Neighborhood about 54% of residents are driving to work, compared to 24% who are taking public transportation. We also know that one of the unique aspects of the area and other neighborhoods on the Northside – the hilltop communities with sweeping views of downtown – also present challenges in the form of steep elevation changes that effectively separate communities and places that would otherwise be connected. Trails and stairs, where in good condition, are valuable community assets that provide potential to improve and increase access to nearby parks, retail, and services.
GOAL 1
Improve access and ease of mobility to everyday needs, like employment and healthcare, by minimizing transportation barriers.
GOAL 2
Invest in streetscape improvements, public spaces, and infrastructure to work towards a more livable, safe neighborhood for residents.
GOAL 3
Reactivate open spaces, greenways, and parks in the neighborhood with health/ wellness initiatives and recreational amenities that will help build shared connections and a sense of community and belonging for residents.
GOAL 4
Implement a community-based, preventative safety model that develops strong partnerships between residents, community partners, and police.
GOAL 5
Increase the number of households that have reliable, affordable internet access at home and ensure residents are digitally literate.
First funded in 2010 by the U.S. Department of Housing and Urban Development (HUD), the Choice Neighborhoods program focuses on neighborhood transformation of a defined area with distressed public and/or assisted housing by catalyzing critical improvements.
Local leaders, residents, and stakeholders (e.g., public housing authorities, cities, schools, police, business owners, nonprofits, private developers) come together
to create and implement a Plan that revitalizes distressed housing and addresses the challenges in the surrounding neighborhood - for example, creating opportunities for housing, access to employment, and connections to schools, childcare, work, and play.
On December 16, 2020, HUD awarded a $450,000 planning grant for Fineview Citizens Council (FCC) and the Housing Authority of the City of Pittsburgh (HACP). Together with Allegheny Dwellings Tenant Council
and a broad set of partners representing the City of Pittsburgh, community organizations, and residents, the planning team led a two-year process to develop the Transformation Plan.
One of the early steps in the planning process was to review past neighborhood plans, City of Pittsburgh plans, Buhl Foundation’s One Northside initiative, and other relevant demographic data. The Existing Conditions Summary document represents a snapshot in time summarizing existing conditions and trends to inform the development of the emerging Transformation Plan principles and strategies.
The Allegheny Dwellings Choice Neighborhood Plan is the third Choice Neighborhoods project in Pittsburgh, following Transformation Plans in Larimer in the East End and Bedford Dwellings in the Hill District (Figure 2).
Both of these past Choice Neighborhoods Plans are improving distressed public housing by integrating it with the surrounding neighborhoods and adapting to the necessities of the area and the community. The Larimer community recently celebrated the completion of Liberty Green Park, the city’s newest super-playground and largest play area for multiple age groups.
The $6.5 million park development project is located on 3.2 acres of park space in the Larimer neighborhood and surrounded by redeveloped mixed-use housing.
Through community efforts and partnerships, the implementation of the Allegheny Dwellings Choice Neighborhood Plan will address issues and challenges in the community to create a roadmap to revitalizing Allegheny Dwellings and investing in its surroundings.
PEOPLE:
Improve outcomes of households living in the target housing related to employment and income, health, and children’s education.
HOUSING:
Replace distressed public and assisted housing with high-quality mixed-income housing that is wellmanaged and responsive to the needs of the surrounding neighborhood.
NEIGHBORHOOD:
Create the conditions necessary for public and private reinvestment in distressed neighborhoods to offer the kinds of amenities and assets, including safety, good schools, and commercial activity, that are important to families’ choices about their community.
S O urCE H u DAllegheny Dwellings residents are at the heart of this planning process. The neighborhoods of Fineview, Perry Hilltop, Charles Street, and California-Kirkbride have strong neighborhood leadership and access to resources. Residents are coming together to talk about their needs, experiences, and ideas for the future, sometimes for the first time. Engagement with the community has directly shaped the Transformation Plan. We are excited about what’s next as we continue to build community trust and build capacity for implementation. Many community assets exist within the Choice Neighborhood planning area, including the beautifully-wooded site of Allegheny Dwellings with views overlooking the river and downtown and the successful reinvestment of mixed-income housing at Sandstone Quarry.
The neighborhoods boast relatively easy access to Allegheny Center, Allegheny Commons Park, and downtown; attractive and historic housing stock; recent investment in green spaces and parks; and residents committed to their children and communities.
The area’s natural challenges - topography, manmade infrastructure - and the lack of commercial development and economic resources in addition to disinvestment in the physical environment, have sometimes made it difficult for the community to connect, choose their future, and thrive together.
The housing stock defines the neighborhood character: historic, charming houses that make the neighborhood fabric and build a unique environment with opportunities for a range of household types and overall affordabilty.
Parks and open spaces are a main assets of the neighborhood. The community is served by a wide range of clean green spaces, parks, and trails, where they can gather, engage in social and physical activities, and enjoy themselves.
Known for its sweeping views of Downtown, the neighborhood streets are often narrow and steep.
City steps can connect communities and provide access to amenities, but they need ongoing maintenance of steps, trees, and lighting.
People and neighborhoods have access to the services they need and feel a part of their communities.
IN THIS SECTION:
Our Community
Our Neighborhoods
Our Housing Building on Current Plans
The Allegheny Dwellings Choice Neighborhood is comprised of four different neighborhoods with strong leadership and organizational providers that are active in the community. Nevertheless, residents have noted a lack of community cohesion in the area: 52% of Allegheny Dwellings residents say they do not feel they are part of a community with a supportive social network. Apart from an overall Northside identity, there does not seem to be a defined social identity in this area.
This may be the result of the lack of meaningful community gathering places, both at Allegheny Dwellings and in the larger neighborhood. Cause of this might be t he individual function of the four neighborhoods that comprise the planning area; perceptions of safety, particularly after dark, may also contribute to this: residents generally do not feel safe outside their homes after dark, which can limit larger community connections.
Additionally, despite a number of organizations working in the neighborhood, residents generally do not seem to be aware of the full range of resources available to them. Promoting these resources and educating residents about all the ways that existing service providers can improve their lives is paramount to work towards a thriving Choice Neighborhood, as well as filling gaps in essential services area, such as childcare.
Almost all housing units at Allegheny Dwellings are twobedroom apartments lending themselves to smaller families and households. The average household size is just under two, and over half of households are singleparent (predominantly single-mother) homes. Allegheny Dwellings residents are generally quite young, about 42% are under the age of 18.
Through the Needs Assessment survey described in Section 03, Planning Process, we heard from Allegheny Dwellings residents that about 57% of households have lived in their homes for 1-5 years. About 30% of households have a need for accessible housing or accommodations for children with special needs. According to survey results, about 18% of adults are employed full-time and a total of 40% of households are either employed full- or part-time, working multiple jobs, or retired.
The remaining households surveyed reported that they are either unemployed/looking for a job or unable to work. In order to advance their careers or find employment, some of the greatest needs expressed by residents are: affordable and quality childcare, job fairs, ongoing education and on-the-job training/internships.
Workforce opportunities are of primary concern for local residents. The COVID-19 pandemic widened the employment gap and many residents that hold a job have only been in those one year or less. Many of the employed residents commute outside the Choice Neighborhood planning area, and most of them have to include childcare costs, time, and travel in their workforce considerations, which can be extremely challenging without access to affordable reliable transportation. Allegheny Dwellings itself has a much higher rate of unemployment than the rest of the Choice Neighborhood, with that number rising to 39% at the time of the Needs Assessment survey.
Residents cite criminal records, lack of car access, low financial literacy, and basic job preparedness skills as barriers for employment; job seekers may not have the skills needed for the jobs opening up, or may have difficulty accessing positions that depend on private transportation.
As the neighborhood youth begins to grow into the workforce, they will also need mentorship, skillsbuilding, transportation access and opportunities to grow into the emerging markets in the Pittsburgh region.
These pipelines to job opportunities are all crucial foundations to the economic and social needs facing the community.
Many residents travel outside of the Choice Neighborhood planning area for work, adding childcare costs, time, and transportation into decisions about future workplace.
Survey launch @ Allegheny Dwellings, June 2021 Community Meeting Photographer Community Meeting @ Allegheny Dwellings, October 2022 WRTVacant lots and buildings, darkened streetlights, overgrowth, and configuration of buildings that lack public oversight can all contribute to the perception of the area as unsafe and vulnerable, even if crime rates have decreased in recent years.
Crime rates have decreased in the last few years according to City of Pittsburgh data. However, the safety of youth and residents is a persistent topic throughout the planning area. Allegheny Dwellings residents cite crime and safety as one of the main challenges of the area, in addition to concerns for the safety of youth walking to and from school and playing outside. Gun violence and drug activity are two of the primary categories of the most concern for residents.
As in many urban neighborhoods, public safety has been a central and urgent topic in the Northside. Current efforts have been developed to address safety concerns, like the Calvin M. Hall Public Safety Center in Northview Heights which aims to facilitate better police/ community interaction. Allegheny Dwellings residents feel the addition of a full-time constable presence has been helpful in decreasing the crime rate in the area.
Vacant lots and buildings, darkened streetlights, overgrowth, and configuration of buildings that lack public oversight all contribute to the perception of the area as unsafe and vulnerable. These areas need to be addressed holistically using design to create a safer community.
Youth make up a much larger portion of the population in the Choice Neighborhood planning area compared to the city as a whole. Residents under 18 comprise roughly 25% of the planning area and 42% of Allegheny Dwellings specifically. With so many young people in the area, quality education, ample recreation, and safe spaces are central to community's well-being.
The Pittsburgh Project Community Garden WRTThe neighborhood has several schools and childcare facilities in the area. Residents report pride in the quality of schools in the area, but also reference a great feeling of disconnection from the schools – physically, due to the complex topography and infrastructure barriers of the area, and personally, in their communications with teachers and administrators.
In addition to the school system, there are a number of organizations that provide services in the area like The Pittsburgh Project, Urban Impact, and Sarah Heinz House to name a few. Despite these existing assets, residents have expressed a continued desire for more robust educational assistance, especially after-school programs, tutoring, and homework help. Parents also express concern about their children's mental health, and whether their schools are adequately addressing these needs. Generally, residents feel there is a strong need for more youth opportunities to stay engaged and feel part of a neighborhood-wide community, particularly in Allegheny Dwellings.
With so many residents, many of the services, opportunities and concerns in the neighborhood center around family support. One in five neighborhood households and more than half of Allegheny Dwellings households identify as single-mother households, meaning that support for single parents and their children is of crucial importance in the neighborhood.
Accessible and affordable childcare is one of residents' the most important needs. Residents cite difficulty with transportation and long wait lists for existing childcare facilities in the area.
Allegheny Dwellings residents specifically cite the desire for an on-site facility with extended hours, as a support for parents that work alternate hours and those unemployed to be able to start their job search and enter the workforce.
Finally, though many Allegheny Dwellings residents are younger families, there is also a senior population on site. Opportunities for intergenerational relationships are strong, and gathering places, community programming, and other ways to build social cohesion for all ages should be explored further.
The Northside has several full grocery stores, but the closest to the Choice Neighborhood is 2 miles away. Without a car, residents must rely on buses to reach these stores and carry groceries back home, which makes access to fresh food difficult.
Partner community organizations have identified that residents desire easier access to fresh food and have been addressing the need through variety of programs. Several community gardens, including the Fineview Community Garden just east of Allegheny Dwellings, provide opportunities for local residents to grow food communally.
As socially important as community gardens are for residents, growing cycles and agricultural challenges in vegetable production means these are most useful as supplements to other grocery supplies, particularly throughout the winter. Access to full-service fresh food markets and creative ways to transport residents to stores are equally important components of the Choice Neighborhood Plan.
Pittsburgh’s distinctive hills mean that the Choice Neighborhood sits high enough to enjoy spectacular views south to Pittsburgh’s downtown. In particular, the Fineview Overlook is a widely-used public amenity looking south across the city. South-facing slopes get good sun, and each smaller pocket of the residential neighborhood feels insular and intimate, with small patches of blocks that feel like individual villages within a major city.
But this natural asset is also a real challenge for residents who live in these neighborhoods. Allegheny Center, which is the major commercial center just south of the planning area, is sharply cut off by a very steep slope. The streets and steps that connect through are difficult to navigate, and often feel unsafe to residents. The Choice Neighborhood planning area is bound by slopes on most sides, cemeteries to the west and northwest, and an interstate to the east. These boundaries are difficult to penetrate and residents express a desire of safer, quicker, and improved connections to major centers in and around the Choice Neighborhood planning area.
As a city notably proud of its many bridges, Pittsburgh is also defined by its infrastructure. The historic infrastructure that connects the Northside neighborhoods to each other and to the larger city takes the form of switchback streets and public staircases.
In many places, the existing sidewalks and staircases are in disrepair, adding to the neighborhood’s mobility challenges. Many of the Allegheny Dwellings residents in particular rely on public transit (primarily buses), making the condition of all public spaces and thoroughfares crucial.
Highway/Rail/Primary Connection
Steep Slope
Hillside Zoning
Steps through the neighborhood have given rise to the Fineview Fitness Trail and its "Step Challenge," which celebrates the staircases and hillsides as fitness opportunities. As with the topography, the neighborhood’s infrastructure contributes to its unique character but also raises practical challenges for residents. The City has made some repairs to area steps in recent years thanks to resident
FIGURE 5. INFRASTRUCTURE BARRIERS ^advocacy (e.g. James Street to Fountain), but more improvements need to be made. Additionally, residents have expressed interest in re-opening the stairs between Belleau Drive and Sandstone Quarry.
The Northside is close to many assets like downtown Pittsburgh and Allegheny Center. Easy freeway access means it is easy for people with cars to get around, but for those without cars, travel can take a lot more time. Six Pittsburgh Regional Transit buses serve the planning area, but only the southern part and the northeastern parts of the Choice Neighborhood are considered to have frequent transit service.
Residents have concerns about the frequency of the transit service, the condition of bus stops and streets, and the availability of buses into the evening/nights/ weekends to accommodate alternate work schedules. Within the neighborhood, the area's hills and steps mean that residents who are not physically very mobile or have health concerns can have difficulties getting around, whether on foot or via alternate modes of transportation. Some streets have received bike infrastructure improvements, but steep hills and road conditions can be a challenge even for the most confident cyclists.
Many of the residents of the Choice Neighborhood planning area have specifically pointed to poor conditions of their public realm: potholes in streets, broken-up sidewalks, sidewalks that don’t connect to destinations, and concrete steps in disrepair after years of Pittsburgh’s freeze-thaw cycles caused stress to the street infrastructure and years of significant neglect.
Basic maintenance of the existing street and sidewalk network is a crucial foundation to expanding any additional improvements.
Lighting throughout the Choice Neighborhood is of particular concern to residents as well – darkened streetlights, overgrowth, and general dim conditions mean residents feel especially unsafe after dark in the evenings.
FIGURE 6. TRANSIT ROUTESThe Northside’s existing housing stock is comprised mainly of single-family houses built in the early 20th century to shelter incoming workers. The houses within the planning area are both standalone and rowhome types, often set into the hillsides. Both brick and wood structures are prevalent.
Largely due to redlining and other historic disinvestment, some of these houses have not been well maintained and unfortunately many are now in disrepair or have been demolished.
Many also lack adequate insulation, meaning that residents’ energy costs can be disproportionately high, adding to the burden of other rising housing costs.
Home repair programs and weatherization are topics that neighborhood organizations have championed in recent years to shore up the area’s existing buildings and prevent further deterioration, but the need for assistance is far greater than the amount of help available. Supporting existing homeowners and caring for existing housing stock is cost-effective and helps to preserve the historic character of the neighborhood.
Vacant houses and vacant lots are scattered throughout Northside communities, and many residents see those visible signs of disinvestment as a reminder of challenges to their overall neighborhood prosperity.
Area Median Income (AMI) is a measure widely used to classify how affordable a neighborhood’s housing stock is. The AMI represents the point at which half of all the households earn more and half earn less. It is calculated every year based on household gross income. The City of Pittsburgh AMI was $53,799 in 2021, within the 7-county region it is much higher at $84,800.
» Households earning: <80% of AMI, lowincome; <50% of AMI, very low-income; <30% of AMI, extremely low-income households (HUD).
Housing affordability means that housing cost is within the means of the household (30% or less of income, including rent/mortgage, utilities, and taxes, are considered to be housing cost burdened. Within the planning area, renters are more cost-burdened than owners, even within the same income brackets.
Using Pittsburgh's AMI, the housing ladder shows that about 39% of households within census tracts 2509, 2614, and 2615 are housing cost burdened.
The scattered nature of the vacant lots/properties in the Choice Neighborhood attract the use of these lots as dumping areas and makes larger redevelopment more difficult. Some neighbors care for lots next to their homes and use them. Others enjoy watching deer, turkeys, and other wildlife that take advantage of the wild green spaces. These spaces need better maintenance and stewardship. Residents can take advantage of the City's Side Lot program to purchase the lots next to their homes.
M edian household income in the Choice Neighborhood planning area is $27,448, compared to $47,417 in the City of Pittsburgh at large. 72% of households in the planning area earn less than the AMI for Pittsburgh, while one out of five households in the Choice Neighborhood make less than $10,000 per year. Demographically, the age groups that tend to be lower income are on either side of the spectrum: populations below 25 years, and 55-74 years.
The age group between 45-54 earns the highest income in the neighborhood, with 20% of them earning between $50,000 and $75,000.
Residents throughout the neighborhood, including those at Allegheny Dwellings, have voiced interest in homeownership. Current homeownership rates in the Choice Neighborhood are slightly lower than in the rest of the city: 42.5% of households are owner-occupied and 57.5% of households are renter-occupied. Additionally, vacancy is higher (18% of the housing units in the planning area are vacant, compared to 11% in Pittsburgh in 2021).
The median home value in the neighborhood for homeowners is $82,082, compared to $125,000 citywide – a significant difference, but a lower bar to entry for new owners or for potential residents from outside the neighborhood who may wish to relocate from pricier neighborhoods. This area is one of the few places that still has affordable housing in the city, something this plan can help preserve.
However, owning a home is not necessarily a guarantee of lessened housing costs or wealth building. With almost half of Pittsburgh’s housing constructed before 1939, repairs and maintenance can be costly for residents in addition to general mortgage and utility costs. Almost half of neighborhood homeowners report difficulties making the necessary repairs and maintenance required to keep the structures in habitable shape. That said homeownership can provide stability and efforts should be made to expand and support affordable homeownership in the community. Additionally, efforts should be made to support existing homeowners. There is widespread interest throughout the neighborhood in potential home repair programs and assistance in housing-related topics.
With almost half of Pittsburgh’s housing constructed before 1939, repairs and maintenance can be costly for residents in addition to general mortgage and utility costs.
Allegheny Dwellings, the public housing community central to the Choice Neighborhood, is located near the intersection of Federal St. and Henderson St. in the Fineview neighborhood.
The original Allegheny Dwellings complex was constructed in 1943 as housing for workers in Pittsburgh for wartime manufacturing, and transitioned to housing civilians after the war. The remaining 11 buildings from the original construction are 3-story brick structures with flat roofs, primarily one- and two-bedroom units. Only five of the total 174 units comply with Uniform Federal Accessibility Standards. A central community room acts as a hub for residents to meet and eat. A playground and basketball courts provide some outdoor recreation for residents and youth. The community room was closed from 2020 due to COVID-19 safety measures but has re-opened in recent months for activities such as vaccination clinics and activities like the Ambassadors Halloween Party.
The entire Allegheny Dwellings site currently comprises 271 units across 19.2 sloped acres. The
units are spread across 3 terraces on the hillside, creating 3 distinct communities connected by steps. Access from Allegheny Dwellings south to the lower Northside and its amenities is limited, with no direct points of access.
The buildings themselves have been deemed obsolete after careful assessment. This is primarily because renovation costs would be prohibitive - over $38 million - since the buildings’ brick construction is not easily reconfigured.
Most units do not meet ADA standards, and there is no air conditioning or capability to add central air. General maintenance like roof replacement and electrical/fire upgrades are needed as well. The overall “barracks-style” configuration of the buildings limits outdoor gathering; evaluators cite the lack of “eyes on the street” which may add to perceptions of crime.
The wooded slopes give Allegheny Dwellings residents spectacular views south to Pittsburgh’s downtown, but they also cause serious connectivity and mobility challenges. Many of the existing sidewalks and steps are in poor condition, in need of maintenance, or missing entirely, requiring pedestrians to walk into the roadway. Unmarked crossings, sharp turns, and obstructed/absent walkways lead to hazardous walking conditions.
The slopes also limit further development opportunities – most developable land is already occupied by buildings and parking, with the rest of the property made up of steep forested slopes and limestone. Unstable soil conditions could make additional site work difficult and hillside zoning limits opportunities for potential engineering solutions.
Allegheny Dwellings today WRTPhase 1 of the Allegheny Dwellings redevelopment was completed in 2019, with the lowest terrace redeveloped into Sandstone Quarry. The mixed-income community contains 65 units, including apartments and townhouses, and is considered a success story for the neighborhood. The units are a mix of one-, two-, and three-bedroom, with high-quality materials and energy efficiency assemblies a priority for both lowincome and market-rate units. Overall the unit mix is 27% unrestricted (market rate) and 73% income-based.
Amenities within the community include a fitness center, business center, community lounge, community outdoor patios, tot playspace, and free outdoor parking. The close location to Allegheny Center is a strong marketing component for the project. The views and the network of public steps are also highlighted as unique assets for residents. Sandstone Quarry has been successful in attracting AGH employees to both its income-restricted and the unrestricted market-rate units and has low vacancy rates.
The construction process was not without setbacks, though – lessons learned from Sandstone Quarry will be instructive for the remaining site redevelopment work. The soil conditions required multiple redesigns to accommodate unstable slopes, and the high-quality materials and energy efficiency in turn raised the overall project costs.
Supported by the Buhl Foundation, the One Northside Community Plan was developed through an extensive community process for the 18 neighborhoods comprising the Northside.
The Plan is focused on social and quality of life issues, dividing the actions into five pillars that guide the efforts: Place, Employment, Education, Health, and Safety.
The Plan is consensus-based, guided by a significant outreach effort. Neighborhood grants were awarded in 2015, and residents have begun to see the visions come to life. In addition to the neighborhood grants, mini-grants were awarded to residents for small projects they conceived that were related to improving their neighborhoods.
One Northside Community Pillars:
» Place: housing options, park renovations, state of the art resources, affordable housing.
» Employment: youth development, employer partnerships, entrepreneurship.
» Education: access to Pre-K programs, enhanced learning, parent programs
» Health: integrated health network, prenatal care, food access.
» Safety: relationship-based policing, public safety partnerships, neighborhood safety centers.
In 2016, Fineview Citizens Council and Perry Hilltop Citizens Council joined forces to initiate a shared neighborhood-wide planning process. The Plan prioritizes strategies to revitalize Fineview and Perry Hilltop in healthy and equitable ways for all residents.
» Priorities: public safety; housing; jobs & economic development; education; public health; arts & cultural preservation; open space; mobility and transportation.
Ì The Housing section found a high proportion of cost burdened households: 33% in Fineview, and 61% in Perry Hilltop.
Ì The biggest problem households face in the Fineview and Perry Hilltop neighborhoods is home repairs, due to deferred maintenance over time.
Housing-related strategies:
» Expand supply of permanently affordable rental housing – through acquisition of vacant/tax-delinquent properties and rehab.
» Expand opportunities for affordable homeownership through rehab and education.
» Create a Community Land Trust to preserve affordability of properties to be developed.
» Create Community Benefit Agreements with developers.
As a result of the 2018 Community Plan, a Housing Working Group formed that ultimately decided to create a strategic, data-driven plan to expand the inventory of affordable homes. The plan targeted creation of permanently affordable, workforce housing to serve households with income levels between 30-50% of the area median income (AMI) for the Pittsburgh region, and applying for the Choice Neighborhoods Grant to ensure one-for-one replacement in the redevelopment of Allegheny Dwellings.
Charles Street Area Council created a Community Plan in 2012 for Charles Street Valley and the Fowler Park area. The plan was updated in 2018 and 2021 to include new construction of affordable housing for homeownership, mixed-use structures, and commercial spaces with residential units where small businesses can serve more residents. Priorities and goals include:
» Create more walkable and lively streets.
» Improve open spaces.
» Build affordable homes.
» Highlight Charles Street Valley history.
California-Kirkbride
Neighbors have been focused on the need to remove blight, litter, and plant overgrowth in public-facing areas of their neighborhood. Community events like "Garbage Olympics" have been successful in bringing together residents and volunteers to help beautify public and historic spaces and address illegal dumping. Through this planning process, residents provide their ideas for housing investment and community services. Results of the Needs Assessment survey of California-Kirkbride residents show that community/rec center, grocery store/fresh food market, and neighborhood park/ playground are the most important improvements to enhance the character of the neighborhood. New homeownership units, supported by programs like down payment assistance and help with credit history are desired.
IN THIS SECTION:
Our Planning Process
Community Engagement and Capacity Building
What We've Heard
Resident-Driven Creative Engagement
In December 2020, the US Department of Housing and Urban Development (HUD) awarded a Choice Neighborhoods Transformation Planning Grant to assist Fineview Citizens Council, the Housing Authority of the City of Pittsburgh, and its partners to develop a community-driven Plan that will guide a new vision and transformation of the Allegheny Dwellings public housing site and its surrounding neighborhoods. WRT is the planning coordinator for the process, and the Steering Committee includes diverse representation from neighborhood groups, HACP, Allegheny Dwellings Tenant Council, elected officials, and city and local partners and organizations. The planning process includes three Task Forces that are in alignment with People, Housing, and Neighborhood components of the Choice Neighborhoods process.
Allegheny Dwellings residents are central to the success of this Choice Neighborhood planning process. In fact, the Our Choice, Our Future name and graphic identity for the planning effort grew from Allegheny Dwellings Tenant Council President Ms. Cheryl Gainey’s call to action to residents of Allegheny Dwellings. The process is about “OUR Choice and OUR Future” – emphasizing that residents are at the heart of the planning process and their voices must be at the table for it to be a success.
The planning area includes Allegheny Dwellings, which is within the Fineview neighborhood, as well as Perry Hilltop, Charles Street Valley, and CaliforniaKirkbride – all represented on the Steering Committee and Task Forces.
The planning team developed four goals for engagement to guide the activities and communication for the planning process. They include:
Provide diverse ways for Allegheny Dwellings & neighborhood residents to participate.
Engage youth in a meaningful way.
Partner with neighborhood and city organizations, building on recent efforts.
Celebrate progress and Early Action wins.
Over 35 organizations and partners have participated in the process through Task Force membership by lending their expertise and resources. These partnerships are essential to be able to support and better connect the community to neighborhood assets and services and truly engage residents in the planning process.
Engagement during the planning process was of course challenged by the COVID-19 pandemic with health and safety precautions limiting the ability for large gatherings and use of interior building spaces. The March 2021 Site Visit with HUD was hosted as a two-day online session. However, the community needs assessment kick-off, survey events, and fall and spring community-wide sessions occurred in person at Allegheny Dwellings and Fowler Park. The planning team hosted two open house events at Allegheny Dwellings in May and October 2022 to review the draft Housing Plan concepts and provide feedback on Neighborhood and People Plan priorities.
Steering Committee and Task Force meetings have continued in the virtual setting with the use of interactive tools like Jamboard and Zoom break-out sessions to encourage discussion and engagement within the working groups. In addition, the planning team added “Walk-Shops” (outdoor site visits and discussions) with residents during February through April to discuss issues, opportunities, and potential locations for mixed-income housing within the Choice Neighborhood.
PROJECT KICK-OFF EXISTING CONDITIONS
Collect and Review Data and Previous Plans
Analyze and Summarize Relevant Data
NEEDS ASSESSMENT
Develop and Administer Needs Assessment (Survey)
Analyze and Present Needs Assessment Findings
TASK 1
PRE-PLANNING + COORDINATION
TASK 2
EXISTING CONDITIONS
TASK 4
COMMUNITY ENGAGEMENT PLAN
Build Community Capacity
Topic/Event Specific Meetings
COMMUNITY MEETINGS + WORKSHOPS
TASK 3 IDENTIFY ISSUES + NEEDSHOUSING, PEOPLE, NEIGHBORHOOD
STAKEHOLDER ENGAGEMENT/CAPACITY BUILDING
TASK 5 DEVELOP STRATEGIES AND PLANS
HUD VIRTUAL SITE VISIT CONCLUDE NEEDS ASSESSMENT OUTLINE WITH CONTENT
ENGAGEMENT SCHEDULE
COMMUNITY MEETINGS
STEERING COMMITTEE
AMBASSADORS
TASK FORCES
CHOICE NEIGHBORHOOD TRANSFORMATION PLAN PLAN DEVELOPMENT
Develop Choice Housing Transformation Plan
Develop Choice Neighborhood Transformation Plan
Develop Choice People Transformation Plan
First Phase Due Diligence
IDENTIFY AND DEVELOP EARLY ACTION ACTIVITIES
Plan, Design, and Implement Early Action Activities
Outline with Content
Draft Transformation Plan
Final Transformation Plan
TASK 7 TRANSFORMATION PLAN
DRAFT TRANSFORMATION PLAN
FINAL TRANSFORMATION PLAN
Over the summer of 2021, Fineview Citizens Council, HACP, and TREK Development partnered to organize the Community Ambassador Program in order to develop quality-of-life projects and build capacity for residents at Allegheny Dwellings.
Through our surveying efforts in year one, the planning team was able to recruit four Community Ambassadors in Allegheny Dwellings. Initially, we intended to have Community Ambassadors from each of the neighborhoods, however, it proved difficult to engage residents outside of Allegheny Dwellings as ambassadors. Instead, we focused on providing leadership training at Allegheny Dwellings. The leadership program, which was six weeks long, was facilitated in partnership with HACP and Trek Development, and modeled after the Bedford Choice Neighborhood program. The curriculum of the Community Ambassador program focused on being a leader in your community, engaging with your neighbors, and how to focus on the strength of the people and the neighborhood to create change.
With an understanding that in year two the Ambassador Program needed to be more focused on the Choice Neighborhood planning process, the planning team partnered with an engagement specialist to lead a focused two-month program, which extended through the end of December and will hopefully continue indefinitely.
Over the course of a few weeks through peer-topeer engagement and social capital investment, the program grew from three to nine ambassadors, working together on common goals and facilitating resident-led community initiatives
Both older and newer residents were represented in the group of Community Ambassadors; for some, this was their first point of formal participatory community involvement, and others were seasoned community advocates who serve on the HACP Board and lead the Allegheny Dwellings Tenant Council. The foundation and commitment of the group was proven through the concept of an equal operating system. No member - staff, resident or otherwise - held more weight in the group than others. Ambassadors said “All are Welcome” and they meant it. Together they created equity of input and participation.
aims to:
Educate about the Choice Neighborhoods Planning Process
Promote resident advocacy
Build community capacity
E ncourage integration within the Fineview neighborhood at large
The resident bi-weekly meeting is held to:
» Utilize current knowledge of the residentstated community engagement goals to support their community engagement plan with a specific focus on Choice Neighborhoods information.
» Collaborate with residents, FCC, and HACP collectively to advise and coordinate residentled activities.
» Engage, inform, and educate residents on Choice Neighborhoods program to promote self-advocacy, informed decision-making and peer-to-peer inclusive network building.
» Outline time-based leadership curriculum with goals and measurable outcomes, with the end goal of residents self-facilitating the Community Ambassador Program.
» Support the group in identifying weekly team leaders and support leaders one-on-one.
» Highlight and enhance resident leadership skills through role modeling, education, and resident-led initiatives.
Action steps of the Community Ambassadors program:
» Two engagement events per month: popup sessions, posting flyers, community meeting, etc
» Four planning meetings per month.
» Plan and host a watch party for a Housing Task Force meeting.
» Receive feedback from Community Ambassadors and other community members on the Housing Plan during the planning process.
» Educate Ambassadors on the Choice Neighborhoods process, so that Ambassadors can educate their peers.
Community Ambassadors have learned through the process to:
» Create an agenda.
» Become well-versed in the Choice Neighborhoods process.
» Plan community events.
» Engage with neighbors.
» Resolve conflicts.
Each meeting is facilitated by a Community Ambassador and supported by Sarah Wynn Jones and Montia Robinson in alternating weeks.
Community Ambassadors @ Allegheny Dwellings HACPSince being an Ambassador for the community, I feel like I am a part of the excitement in our community and I love the changes that are going on for parents and the children.
DIANNE JACKSONI feel the Ambassador group is doing great. We all work together. Things are getting done as a team. All the people in the community have been coming together to have a great time and our events have been successful.
Community engagement has been conducted through posting flyers and networking with the community, inviting residents to events and holding conversations.
Community Ambassadors co-hosted two of the Choice Neighborhood Community Meetings held in Allegheny Dwellings in May and October 2022. The group has utilized this time to educate peers on the one-to-one replacement process and how Choice Neighborhoods differ from other development plans to include "People, Neighborhood, and Housing" themes.
Due to their increased knowledge of the Choice Neighborhoods process and belief in the positive effect it will have in their community, they were able to assist in explaining each station to their neighbors. In addition, Community Ambassadors also set their own station at the October 2022 Community Meeting held at Allegheny Dwellings.
Through their bi-weekly meetings and pop-up sessions, Ambassadors came to the decision that a Public Safety Committee is needed in their community. Their first step was to introduce the idea to their community and seek feedback at the October Community Meeting. Through the feedback received, the group was able to identify interested residents and begin to shape their Public Safety Committee that would hold meetings every month.
Coffee and Conversations started in October 2021 and is held at Allegheny Dwellings on alternate Mondays and Thursdays each week. Community Ambassadors, with the support of facilitators, engage residents on what they feel is needed in the community. They also gather residents' insights on effective and needed resources for Early Action Activities and ask questions related to the Housing Plan, specifically questions related to relocation and areas they would like to live on within the planning area. The Coffee and Conversations session will culminate in a Live Event project.
On October 2021, the Tenant Council and the Community Ambassadors held a Halloween Street Treat. Pictures of children in their costumes were taken and later printed for parents.
A vaccine clinic was also held in partnership with Allegheny Health Network. 18 residents were vaccinated and 27 participated in the Q&A portion of the clinic.
The Community Ambassadors group passed out Valentine's Day decorations to families as a community activity. They included a note to engage residents: "We are asking our neighbors to spread Pops of Joy by decorating their doors for Valentine’s Day. Here is a little bag of supplies to get you started. Take a picture of your door and post on Instagram with the hashtag #adpopsofjoy!"
The group set up decorating activities for kids to help children decorate by drawing a picture of things they love or helping cut out hearts or coloring.
Allegheny Dwellings Community Ambassadors engaged their neighbors in the conversations about the Housing Plan in March 2021 and gathered feedback from the Task Force meetings held that month.
Additionally, they met with the team from Center for Victims to discuss and plan for future events to assist with trauma resources for the community to address factors like domestic violence, childhood trauma, and conflict resolution.
Community Ambassadors held two game nights in April 2022 to keep engaging with residents. One of them was held in Allegheny Dwellings and one in Fineview Park, to keep building relationships with the broader community.
The Community Ambassadors held a Watch Party in August 2022 for residents to view and provide input in the Allegheny Dwellings Choice Neighborhood Housing Task Force. Residents were able to provide feedback on proposed off-site locations, housing styles, and outdoor spaces.
The Community Ambassadors, with the help of donations received by FCC, set up stations on Belleau Drive and Letsche St. Families were able to come select from a variety of donated and brand-new costumes and school supplies for their households.
Community Ambassadors spoke with many residents that expressed concern with children going trick-ortreating due to safety concerns. Residents expressed their desire to have an on-site opportunity for children. The Ambassadors reached out to HACP, Tenant Council, FCC, and the staffed PA Constables for support in this effort. As a result, Community Ambassadors were able to host a successful Halloween event in the Allegheny Dwellings Community Room. Children dressed up in costumes, had a meal, and won prizes.
115 139 Allegheny Dwellings residents neighborhood residents TOOK THE SURVEY!
The Needs Assessment survey was administered by Project Destiny/Thrive 18, who regularly surveys Northside residents to identify needs and then works to connect community members with services they need.
83% of Allegheny Dwellings residents took the survey between June and September 2021, exceeding our goal by 30 households!
+75% of residents have lived in Allegheny Dwellings for at least 1 year
Almost half of the neighborhood residents have lived in the area for over 10 years
59% of neighborhood respondents own the house they live in
What type of housing is needed in the Choice Neighborhood?
82% of Allegheny Dwellings residents like the idea of a mixed-income community
65% say yes to return to new housing on the redeveloped Allegheny Dwellings
HOMEOWNESHIP
Most of Allegheny Dwellings and neighborhood residents would like to work towards buying a home in near the future
52% of Allegheny Dwellings residents
41% of neighborhood renters
What programs would be most helpful to work towards homeownership?
#1
Home repairs Down payment
#2
Help with credit history
#3 Homebuyer education
For full Needs Assessment survey responses, see Appendix I
What are the challenges you face in your daily life?
#1 Road conditions & availability of parking
#2 Pedestrian safety
#3 Frequency of buses
#4 Location of bus stops
#5 Bus routes
#6 Reliability of buses
Missing social activities or amenities in the neighborhood
#1 Safe, youth-based place for children
#2 Gathering place for the community
#3 Workforce training
#4 Local childcare/Early education
#5 Regularly scheduled activities
OUTDOOR SAFETY
64% of Allegheny Dwellings residents do not think it is safe for children to walk to and from school
+50% of Allegheny Dwellings residents do not feel safe
only 24% of Allegheny Dwellings residents think there is enough police presence
Transportation barriers
Neighborhood residents think that one of the top 5 reasons why neighbors struggle with finding a job is because there is not enough/convenient transportation
32% say yes
Neighborhood residents think that bus stop environments need to be enhanced
Desired amenities in the neighborhood
#1 Steps conditions and safer access
#2 Neighborhood park/playground
#3 Athletic playing field
#1 Community/recreational center
#2 Vacant lots well-taken care of
#3 Steps conditions and safer access
What could enhance the neighborhood?
45% brighter lighting
36% more public safety presence
35% street furniture
33% bus stop environment
The Allegheny Dwellings Choice Neighborhood Steering Committee serves as the decision-making body for the planning effort and was established to help guide the development of the Plan and ensure that all policy and project decisions are integrated with ongoing City of Pittsburgh investments and neighborhood efforts like the One Northside initiatives.
The Steering Committee has reviewed and provided feedback and direction related to the Choice Neighborhood Plan priorities, Early Action Activities, project design, community engagement, and capacity building efforts. Steering Committee meetings were held virtually every two to three months on the second Wednesday of the month. The Steering Committee is made up of representatives from HACP, Allegheny Dwellings Tenant Council, TREK Development, Department of Human Services (DHS), City of Pittsburgh, State Representative Jake Wheatley, Councilperson Daniel Lavelle, Councilperson Bobby Wilson, Buhl Foundation, the Mayor's Office, URA, and representatives from the four neighborhood groups within the planning area: Fineview Citizens Council, Perry Hilltop Citizens Council, Charles Street Area Council, and California-Kirkbride Neighbors.
Three Task Forces focused on the main objectives of the Choice Neighborhoods Initiative—Housing, People, and Neighborhood. The Task Forces were responsible for identifying the goals for the Plan and strategies to achieve these goals. These Task Forces, particularly within the Neighborhood group, have also helped to brainstorm the ideas for the Early Action Activities that can be completed while planning.
Task Force membership includes representatives from the Steering Committee and community interests and resources in Housing (Rising Tide Partners, Northside Coalition for Fair Housing), People and Social Infrastructure (The Pittsburgh Project, Perry High School, Urban Impact, Center for Victims of Violence and Crime) and Neighborhood (URA, Department of City Planning, Zone 1 Police, Allegheny Cleanways, Pittsburgh Water and Sewer Authority, Pittsburgh Regional Transit, Department of Mobility and Infrastructure). Residents of Allegheny Dwellings and the community at large were invited to the Task Force meetings.
Location > Virtual
Date > March 24/25th, 2021
The Site Visit with HUD representatives held in March 2021 marked a key milestone at the start of the planning process. The site visit was held virtually over two days with residents and partners invited to share ideas and learn about the Choice Neighborhood planning process. The event focused on introducing HUD representatives to Pittsburgh, the Northside, and the Choice Neighborhood.
The site visits also featured an introduction to the creation of the Neighborhood, Housing and People Task Forces. The team put together a virtual site tour using ArcGIS StoryMap that was narrated by representatives from HACP, Fineview Citizens Council, Perry Hilltop Citizens Council, Charles Street Area Council, and California-Kirkbride Neighbors with the goal of providing local knowledge of the neighborhoods and key assets and opportunities.
Location | Allegheny Dwellings.
Date | June 30, 2021.
Activities | Food, Music, Community-based Art, Needs Assessment Survey.
The planning team held a series of feedback sessions with Allegheny Dwellings residents and discussion with the three Task Forces to prepare the needs assessment survey questions. Working closely with Project Destiny/Thrive18, WRT developed the needs assessment survey which was launched on June 30, 2021 at an outdoor community event hosted at Allegheny Dwellings. HACP and Fineview Citizens Council organized the event and provided food, art activities, gift cards, and a raffle to encourage and reward participation. A local community artist partnered with the YMCA to provide a fun art and t-shirt making station for young residents.
The Project Destiny/Thrive18 outreach survey team administered surveys at the event. Despite some stormy weather, the team was able to collect 20 household surveys at the June 30th event. Additional door to door surveying was completed during July and August. Special outreach included pop-up tabling events and participation in the 412 Food Rescue drops. Neighborhood-wide surveying started in August and the planning team provided gift card incentives at local neighborhood events and festivals over the month of August and into September.
After hard work and outreach in partnership with the Community Ambassadors and Allegheny Dwellings Tenant Council president, Ms. Cheryl Gainey, the planning team was able to complete needs assessments with 254 households (115 at Allegheny Dwellings, or 83% of residents, and 139 in the surrounding neighborhoods).
254 households completed the needs assessment - 115 at Allegheny Dwellings (83% of households) and 139 in the surrounding neighborhoods!
Full survey results are available online and were presented at the October community meetings. Mailers and flyers with survey results were sent and shared widely with the community. Findings from the needs assessment directly shaped the development of the Plan.
Location | Fowler Park.
Date | October 13, 2021. Activities | Food, Focus Groups, Needs Assessment Survey.
The October 13 community-wide workshop provided an opportunity for the planning team to share needs assessment results in an interactive format, bringing residents from Allegheny Dwellings and the surrounding neighborhoods together to celebrate reuniting after months of virtual meetings, as well as the completion of the needs assessment.
» Share findings and “ground-truth” the Needs Assessment Survey results.
» Begin to prioritize feedback to inform the Plan development.
» Encourage on-going participation in the Choice Neighborhoods process.
With COVID-19 precautions in mind, the planning team decided to host an outdoor event at Fowler Park on N. Charles Street. Over 40 residents from Allegheny Dwellings and the larger Fineview, Perry Hilltop, Charles Street Valley, and California-Kirkbride neighborhoods, plus 40 supporting partners came together to hear survey results and talk about what they want to see happen in the future. Residents shared their ideas for key themes the Plan will address, related to housing, transportation, workforce, education, health & wellness, and early actions. Participants divided into four groups and facilitators rotated around to work with each group of tables in a smaller, break-out group style. Partners from Project Destiny/Thrive18 participated as well as members developing the Master Plan for Fowler Park improvements. HACP provided transportation for residents of Allegheny Dwellings to and from Fowler Park.
Community Meeting @ Fowler Park, October 2021The different Focus Groups provided a way for residents to give feedback and guide the goals and strategies process, giving the planning team a look at the bigger picture.
For the community event to be successful outdoors with limited facilities, the planning team brought in lighting, a stage, AV, catered boxed dinners, and a screen with tables and chairs. Community residents expressed their joy to be together in person and to discuss ideas for the future of their neighborhoods. The themes and discussion from the October community meeting are directly reflected in the work with the Task Forces and in this initial outline of goals and strategies.
Location | Allegheny Dwellings.
Date | May 19, 2022.
Activities | Food, Music, Community-based Art, Feedback Boards
The planning team organized a community open house-style event on May 19, 2022 from 4-7 PM at the Allegheny Dwellings open space/basketball court. The event was advertised with flyers and postcards, and through social media. Residents from across the planning area were invited to attend. The open house format allowed residents to come through at any time and visit with the facilitators at the Housing, Neighborhood, and People stations. Resource providers set up tables and HACP staff were on-hand to speak directly with residents of Allegheny Dwellings and answer questions about the planning timeline, future implementation phases, and general questions about the Choice Neighborhood planning process.
About 70 residents signed in and visited the stations. Everyone who completed a passport and visited each station was provided with a gift card. Through the activities, residents shared their ideas and preferences for the housing redevelopment concepts, as well as critical projects for the neighborhood and needs for the community. The activities included food, music, art-based activities and a chance to walk through a true-scale chalk drawing of a typical twobedroom townhome, allowing residents to engage in conversation about their likes and dislikes and would like to be able to do in a re-imagined home.
Community Meeting @ Allegheny Dwellings, May 2022» Need for Connections: Allegheny Dwellings has to be better connected, through streets, transit improvements, gathering places and places to go/things to do.
» Greenways & Steps: Neighborhood residents liked the idea of a connected greenway network that will take them to other parks/ green spaces so they can walk, bike, or take their children to the park through means other than the current sloped streets. Greenways have to be maintained so they do not end up as an illegal dumping area.
» Transit Improvements: Even for residents who do not solely use public transportation, there was a consensus that bus stops are highly-used but poorly maintained. Bus stops are convenient to get downtown, but not to get around the Northside or to the near suburbs where there are shopping and employment opportunities. Traffic-calming measures on major connectors (e.g., Federal St., Perrysville Ave.) are also needed, through additional sidewalks and safe crossings.
» Mixed-Use: Residents would like to see a community space, after-school spaces, and community rooms as part of new housing development at Allegheny Dwellings.
» Open Spaces & Diversity: Open spaces are also desired by residents, especially family/ youth-oriented ideas. Comfortable gathering places/seating areas next to play spaces for kids were also considered. Residents would like a diversity of amenities.
» Parking and Roadway Access: Residents in the Choice Neighborhood are concerned about parking. Buffering and setbacks for parking seemed to be popular ideas.
» Resident Needs for Childcare, Early Childhood Education, and Out of School
Time: Current barriers include lack of transportation access and hours of availability and convenience. Residents would like to see more on-site opportunities available. Parents of older children are interested in skill-building, organized sports and recreation, homework help, and innovative programming.
» Employment Barriers: Residents focused heavily on transportation issues, with a number of community members requesting free bus passes. The difficulty to move around also affects the connection to educational programs, training, liveable wages, and financial support, programs that are vital for Allegheny Dwellings residents.
» Access to Health & Wellness: Consistent with themes from earlier sessions, residents expressed the complexity and uncertainty of not knowing where to go for services and issues, as well as a need to connect with providers around mental health and trauma.
Location | Allegheny Dwellings.
Date | October 12, 2022 - in person. October 19, 2022 - virtual.
Activities | Food, Music, Art Activities, Feedback Boards, Passport & Gift Cards
The last community meeting of the planning process was also formatted as an open house in-person event on October 12, 2022 at the Allegheny Dwellings open space/basketball court. All residents and partners were invited to attend.
The goals of this community meeting were to review and obtain feedback on the strategies and priorities that have been put together through the planning process, as well as provide an opportunity for interaction and discussion with the Community Ambassadors, HACP, and Task Force members.
Approximately 50 adults and 25 children, in addition to 25 partners, attended the in-person meeting. Residents were invited to pass by the stations and speak with facilitators about Housing, Neighborhood and People Plans. Through the boards and the table-model, residents provided ideas and preferences for the open spaces that will support the housing developments, as well as preferences for neighborhood strategies to mitigate their concerns. Additionally, residents reviewed the latest Housing Plan. The majority of residents approved the site locations for the redevelopment of Allegheny Dwellings. The meeting included food, music, and art activities for kids.
Community Meeting @ Allegheny Dwellings, October 2022One of the goals of the planning process was to provide diverse ways for Allegheny Dwellings and neighborhood residents to participate. The discussions around Early Action Activities provided a concrete way for the community to think about the short-term needs and envision the impact of relatively small, incremental improvements. The planning team wanted to ensure input from a diverse group of residents – and through a combination of our traditional community outreach and pops-up in Allegheny Dwellings, we reached our goal of gaining feedback from 50 community members regarding early action activities in the first year of planning.
During December 2021 and February / April 2022 the planning team organized a series of community walkshops at Allegheny Dwellings and the Fineview, Perry Hilltop, Charles Street, and California-Kirkbride neighborhoods. The walkshops provided an organized way for community members, elected officials,
and stakeholders to visit spaces that were being considered for housing development and discuss early action projects. Residents were able to join in person (or virtually), and many noted they appreciated the opportunity to discuss potential sites and early actions in the neighborhoods.
An important feature of the Fineview neighborhood are the "fine views" and residents expressed concerns about potential development in the upper part of Fineview due to the possibility that a tall building could inhibit existing views. Our planning team held a meeting (Spring 2022) at the Lanark Street site with interested residents to understand the concerns with future development.
Later renditions of the housing developments at the Fineview site show a scaled back, multi-family building that preserves views and provides a location for replacement housing for Allegheny Dwellings residents.
In April 2022, an additional walkshop with the newly elected Mayor Ed Gainey served to bring the new leadership team up to speed on the planning process, with a focus on the early action sites and needed
improvements. All community members were invited to join the Housing, People, and Neighborhood Task Force meetings, meeting monthly or bi-monthly to further refine the early action activities and neighborhood wide improvements. As the leadership of the Community Ambassadors grew, members were successful at increasing the participation of Allegheny Dwellings residents in meetings and in providing feedback.
As the Outline with Content was submitted in June, the draft was shared through the Allegheny Dwellings Choice Neighborhood website, various social media accounts led by members of the planning team and community leaders. A survey was provided for
feedback on specific aspects of the Plan. Leading up to the final submission of the Transformation Plan, the most recent draft was shared through the Allegheny Dwellings Choice Neighborhood website and social media for the final feedback of the community.
During the planning process, community leaders and their teams continued to gather input and feedback from community members and utilize that information to improve the Plan. This included door knocking and one-on-one conversations with neighbors to further educate, inform and involve community members in the planning process.
Some of the earliest conversations with residents led to the need to create a community space and “free-store” at Allegheny Dwellings. There are not a lot of convenient stores with affordable household items and clothes nearby, so residents suggested they create their own place on site. While technically not an Early Action Activity, HACP and the Allegheny Dwellings Tenant Council supported this idea and continued to work through the process to make it a reality. On November 21, 2022, HACP conducted a soft opening of the Allegheny Dwellings, No Strings Shop and Resource Center. Thirty-six households participated, and HACP sponsored a Thanksgiving Turkey Giveaway and raffle prizes at the opening.
As a continued effort for the Choice Neighborhood, the Ambassadors have volunteered to organize/coordinate the shop with HACP oversight. Donations for the No Strings Shop are continuous; the hours are scheduled for Mondays and Fridays.
As a Resource Center, Resident Service program staff was on hand for this event to provide programming information and assist with pre-enrollment in Family Self Sufficiency, Resident Opportunities Self Sufficiency, Workforce Development, Computer Training and Creative Arts Activities. Resource programs have hours three days a week and HACP staff will facilitate individual assessments, referrals, workshops and trainings.
People Plan
Housing Plan
Neighborhood Plan
Through this planning process, the Choice Neighborhood needs assessment surveys, Task Force meetings, and community meetings have been crucial in identifying issues and opportunities within the community and detailing out priorities for the future. These activities put residents in the driver's seat, ensuring that every resident can thrive; residents are connected to the surrounding community and its resources; and replacement housing is better integrated into the neighborhood.
Re-establish community connections and trust to foster a safe, family-friendly neighborhood, where residents are active parts of their community and thrive as individuals.
This Choice Neighborhood is rich in resident-led community groups and a network of missiondriven organizations and foundations working together to improve opportunity and outcomes for residents.
The One Northside partnership led by Buhl Foundation is one example of how partnerships are in place and actively engaged in improving the everyday lives of residents – from increasing quality housing options, to improving education opportunity, offering career paths for young people, supporting integrative healthcare that is based on relationships, and partnerships. Residents have emphasized the need for community places where neighbors can build connections and strengthen their community to the benefit of individuals and families.
While many resources exist, it is often difficult for families to make the connections and to determine where to start without building trust and offering comprehensive, wrap-around services, and mental health and wellness support.
Integrate Allegheny Dwellings in the surrounding community and invest in safe, quality, affordable housing.
Through the needs assessment, many residents of Allegheny Dwellings and the surrounding neighborhoods told us that would like to buy their own homes in the future, and over 80% of households at Allegheny Dwellings like the idea of mixed-income housing and community. We know from the Finevew and Perry Hilltop FiveYear Affordable Housing Plan and our study of current housing affordability and community need that the housing market within this Choice Neighborhood is changing quickly. For-sale homes are becoming too expensive for current residents to afford and there is a significant percentage of residents in the neighborhood that are currently cost-burdened, particularly renters who are spending more than 30% of income on housing costs. Investment is needed in all types of affordable housing, from the redevelopment of Allegheny Dwelling to programs that help homeowners cover maintenance costs, opportunities for residents to live in energyefficient, high-quality housing, as well as to invest in and modernize older housing stock.
Create a green, connected, well-served, livable neighborhood where residents have convenient access to rich opportunities and resources to meet their daily needs.
We heard from residents the challenges of using public transportation for daily needs, like getting to work, dropping off kids at childcare and preschool locations, and shopping for groceries. Within the Choice Neighborhood about 54% of residents are driving to work, compared to 24% who are taking public transportation. We also know that one of the unique aspects of the area and other neighborhoods on the Northside –the hilltop communities with sweeping views of downtown – also present challenges in the form of steep elevation changes that effectively separate communities and places that would otherwise be connected. Trails and stairs, where in good condition, are valuable community assets that provide potential to improve and increase access to nearby parks, retail, and services.
During our planning process, residents repeatedly spoke about the need to re-establish or create places in the community where connections with neighbors, services providers, and programming can occur to the benefit of individuals and families. While many resources already exist, it is often difficult for families to make the connections and to determine where to start without a trusted, centralized location offering comprehensive, wrap-around services and supports.
The Choice Neighborhood planning area is rich in resident-led community groups and a network of mission-driven organizations and foundations working together to improve opportunity and outcomes for residents. The One Northside effort is one example of how partnerships are in place and actively engaged in improving the everyday lives of residents – from increasing quality housing options, to improving education opportunity, offering career paths for young people, supporting integrative health care, and relationship-based policy and partnerships. Such philanthropic partnership can be built upon to ensure that services are properly funded and sustainable.
While resident surveys, People Task Force focused meetings, and large-scale public engagement provided many specific ideas for programming and niche interventions from residents, the underlying need, now built into the People Plan, became clear: Reducing the complexity of navigating those preexisting services, especially for those with limited free time and financial resources, can help to begin to tackle the issues that residents expressed:
» Access to affordable round-the-clock childcare
» Quality in-school and after-school programming
» Quality employment
» Quality mental and physical health services and trauma support
Connect families with safe, affordable, accessible, and educational childcare so that all children enter kindergarten ready to learn, and all youth is proficient in core academic subjects and graduate from high school college- and career-ready.
Promote graduation readiness through increasing access to affordable and quality out-of-schooltime programs.
Increase opportunities for community members to earn a living wage and have meaningful work.
Promote improved quality of life with a holistic health approach; all Allegheny Dwellings residents will have a choice in where they live and have their basic needs met.
Re-establish community connections and trust to foster a safe, family-friendly neighborhood, where residents are active parts of their community and thrive as individuals.
We hear repeatedly from residents that they don’t know about existing services, and from service providers that existing supports are underutilized. A key focus in the short term will be making existing resources more physically accessible and proximate, so that residents can access resources within the community while also improving communications and cultural relevancy of existing materials and programs. Next steps in implementation will include working with providers to simplify communications and navigation for existing resources.
Through the needs assessment and ongoing community engagement, the planning team has received a great deal of feedback form residents on their needs. HACP and its partners will continue to work together to co-design improved programs, services and service delivery with residents that address root-cause issues and leverage the inherent assets and skills of all residents.
Implementation of this Choice Transformation Plan, with support from HACP’s Resident SelfSufficiency (RSS) and Family Self-Sufficiency (FSS) will go beyond the initial needs assessment data to create ongoing connections with families to foster trusted supportive relationships with the goal of identifying the issues residents are facing as well as their skills, goals and hopes for their families.
Families face a host of complex and correlated issues related to maintaining their overall quality of life and navigating systems of support. Residents lack a sustained, culturally-relevant, communitybased network of support and care. A long-term aspiration is to build on the resident-driven outreach programs that exist and create ongoing and continued wrap-around supportive care for residents that is rooted in the community and helps families move beyond crises, improve their quality of life, and achieve their goals.
To look to a better future, we invest in our children today. With stronger professional training and increased Pre-K access, all of our children will be school-ready by age 5. Joining together as a community, we will invest in state-of-the-art resources to encourage and enhance learning both in and out of the classroom. So that our Northside children will be ready to embrace the path before them. Working together, we will support the changes needed to increase key measures of success, such as 3rd grade reading and 7th grade math proficiency. As parents, educators, and a community we will eliminate achievement gaps and increase enrollment and graduation rates.
Access to opportunities with the ability to grow are key for our community to flourish. All Northside residents have should have opportunities to develop new skills and pursue wellpaying career paths. Working together, we will support the changes needed to reduce the unemployment rate, raise our community’s median income level, and address economic disparities. We are excited to support an increasing number of minority-owned businesses and welcome new companies to the Northside.
Residents thrive through healthy lifestyles and seamless access to beneficial services. Better coordination of health and human services will simplify the care for physical health as well as social and emotional health needs. By improving food access and providing education on nutrition, our residents will have a greater ability to maintain healthy lifestyles. Ultimately, we will build a resilient community. Working together, we will support the changes needed to increase access to and reduce the cost of healthcare services. This will enable our community to better treat and prevent diseases like diabetes, hypertension, asthma, and obesity and provide support for mental health and trauma recovery.
GOAL 1
Connect families with safe, affordable, accessible, and educational childcare so that all children enter kindergarten ready to learn, and all youth is proficient in core academic subjects and graduate from high school college- and career-ready.
Strategy 1.1
Locate an early education center within a new mixed-use development in partnership with an experienced local provider (e.g,. ABK, Project Destiny, Angels Place, Kindercare).
A reported 42% of the population at Allegheny Dwellings is under the age of 18, with 37% of households with children under the age of 5 at home. Residents have pointed to difficulties accessing affordable, quality childcare as a barrier to education and employment - two things that are crucial to improving the quality of life within the community.
Many families would like to access the community’s existing childcare facilities; however, it is difficult to reach them due to public transportation gaps, and without childcare subsidies, the ongoing cost can be out of reach. There are a limited number of childcare facilities in the area, which leads to few available spots. This poses a challenge for families who are on tight time constraints moving into new employment or education opportunities.
Community members experience challenges with accessing childcare due to the network of public transportation, which makes traveling within the neighborhood to nearby facilities an extended journey. Walking with children, even for short distances, with limited sidewalks, blind corners, and strollers on hilly terrain is also prohibitive. This can add hours onto the daily activities of parents who are already facing stress and hardship. In the short-term, this strategy seeks to assist families in traveling to and enrolling children in existing, quality programs. The longer-term goal is to have a new family support and early education center located within a Choice Neighborhood mixed-use development, alleviating transportation issues for the most vulnerable families.
What is already happening that we can build on?
The One Northside Initiative and Trying Together are two existing programs with the shared vision of providing Northside families access to quality, affordable childcare and Pre-K programs and all children are nurtured and ready for school by age 5. The programmatic strategies that have been developed are as follows:
»
»
»
(1) Early childhood ambassadors deliver training and support resources for providers;
(2) Launch or expand early learning centers in high-need neighborhoods;
(3) Explore shared services opportunities for providers to improve quality and lower costs.
However, the larger Northside is made up of 18 neighborhoods and roughly 40,000 residents. The size of the Northside boundaries limits these initiatives' abilities to directly impact Allegheny Dwellings - a more focused approach to the Choice Neighborhood would be more achievable, and progress could be felt in a pronounced manner by Allegheny Dwellings residents and those of the surrounding area.
From 2019 through 2022, Buhl Foundation grantmaking towards early childhood efforts in the area has totaled $175,000. In combination with additional initiatives in Education, Employment, and Health emerging simultaneously in the Choice Neighborhood, increased and focused early childhood grantmaking and on-site services for a resident pipeline to connect with providers would ensure maximum impact. Not only this will allow access to early childhood programs but would allow caregiver's ability to pursue additional education, training, employment and beyond – leading the whole household to truly thrive.
What have we heard?
Need of information ?
Allegheny Dwellings residents need more information on the programs and activities located in the neighborhood for families and children.
+70%
of neighborhood and AD residents believe the most pressing issue youth face today is safety and violence.
What would help children do well in school? #1
After-school programming.
In-school support.
Summer programs and camps.
#2
Homework Club at Allegheny Dwellings.
#3
Individual tutoring.
recent park improvements provide a place for kids and families to come together PHCCFamilies consistently described a lack of robust youth development programming during the planning process. Residents pointed to previously-available programs that provided them with lifelong skills to navigate challenges and improve their quality of life. Residents clearly articulated a desire for additional after-school tutoring offered at or near their schools, and more varied out-of-school time programs for youth in the community. Although there is a host of programs within the Choice Neighborhood planning area, residents felt they had barriers to entry or had not heard of them. A strong pipeline between home, school, and out-of-school time programs is necessary to connect youth with safe, educational spaces during out-of-school time.
What have we heard?
+60% of AD residents DO NOT think it is safe for children to walk to and from school
+50% of AD residents DO NOT feel safe
+60% of AD residents DO NOT think it is safe for children to play outside
Community Meeting @ Allegheny Dwellings, May 2022Promote graduation readiness through increasing access to affordable and quality out-of-school time programs.
The One Northside Initiative and A+ Schools have begun an intervention for Pittsburgh Public Schools’ Perry High School, the nearest neighborhood high school. In response to the declines seen at Perry, the One Northside Initiative and nonprofit partners A+ Schools have engaged deeply with Perry faculty, staff, and families, as well as Pittsburgh Public Schools leadership to begin turning Perry around, in an effort now known as Reimagine Perry. By building relationships between home, family support and local Pittsburgh public feeder schools King and Perry, the goal is to surround our youth with local resources and support to be successful throughout their lives.
Perry staff, families, and community partners have identified specific improvements to accomplish in the coming years (e.g.,):
» Block-scheduling format.
» Mentors for every student.
» A school-wide daily meeting.
» Greater exposure and connections to career and college readiness resources.
» The opportunity to earn an Associate Degree during high school at Perry.
» Director connections to communitybased resources via a partnership with Thrive18, a Northside-based community health intervention.
Increase participation in and take advantage of the existing community spaces in after-school and summer programs (e.g., Northside Partnership, Urban Impact, Pittsburgh Project, Basketball Dreams).
There is currently a gap in recreational programming, mentoring programs, and employment opportunities for youth. Residents consistently requested additional out-of-school time programs for youth in the community including arts and sports programs. By connecting youth with skill building and training programs, their opportunities to earn a higher wage through advancements in education and employment can be expanded. There are existing programs and spaces that are well-quipped to meet the community need – like the Northside Partnership Project operating from McNaugher School, a short walk from the first phase of housing and mixed-use development. Ongoing community support and funding are needed to increase offerings to include the types of programs residents are interested in such as arts, dance, homework help, drug prevention, and mentoring programs for elementary through high school children. We also heard consistent interest back to past programs that are no longer available that left them with lifelong skills to navigate challenges and improve their quality of life, including basic skills such as cooking, writing checks, and filing taxes.
Strengthen existing relationships with principals and social workers at Pittsburgh public feeder schools King and Perry to assist individual families in addressing academic concerns including attendance, behavior, and academic performance of their children.
During the Choice Neighborhood outreach and needs assessment, parents shared there was a lack of connection to local schools. In fact, students living at Allegheny Dwellings in 2022 attended 23 different schools - with the highest percentage of students (29%) attending Pittsburgh King PreK-8, located about one mile from Allegheny Dwellings.
Perry High School is the only comprehensive schoolserving students in grades 9-12 on the Northside of Pittsburgh, which includes the full Choice Neighborhood planning area. In 2022, only a few Allegheny Dwellings students attended Perry. Historically, Perry was known as an academically rigorous and highly disciplined high school. However, as part of a realignment effort for Pittsburgh Public Schools in 2011, which included the closing of several nearby schools, Perry’s curriculum was restructured, and the student body shifted in response. Over the course of 11 years since that change, Perry has gone through 6 different principals, and student test scores and attendance, along with its reputation, have been on a sharp downward trajectory.
Increase opportunities for community members to earn a living wage and have meaningful work.
Work with existing partners (e.g., CareerLink - the Workforce Investment Board) and within HACP programs to connect adults without a high school diploma to GED and other training opportunities (e.g., identify available secondary education and vocational trade programs and connect interested individuals to them).
As of October 2022, the average gross household income at Allegheny Dwellings was $10,366 a year. Allegheny Dwellings residents identified existing employment opportunities as being low-wage and inconvenient, which directly contributes to unemployment and underemployment. Residents also identified a need for higher-paying employment opportunities, which can be achieved through increasing education, certifications, and employment skills. There are low-cost and free training programs, but residents may not know about them or may experience barriers accessing them. In addition, new opportunities need to be created through increased access to education and skill building programs.
What have we heard?
Need of information
Allegheny Dwellings residents need more information on programs offered by local organizations to help them find a job or get necessary skills.
Partner with workforce development organizations to connect underemployed and unemployed adults to job readiness and job training services, identify and connect job seekers to new opportunities including paid on-the-job training and entrepreneurship programs, connect job-seekers to existing barrier mitigation programs including short-term childcare and transportation assistance (e.g., Triangle Tech, CareerLink, CCAC, Manchester Bidwell).
Childcare was identified by residents as the top solution to increasing and maintaining employment rates within Allegheny Dwellings. Through our outreach, residents discussed the procedural challenges of needing childcare to secure employment while needing employment to secure childcare subsidies. Residents also described being unaware of or having poor experiences with existing job training and employment programs. Residents need new creative opportunities (e.g., HACP’s Family Self Sufficiency model) that may include paid training, as well as convenient childcare options within the redeveloped Allegheny Dwellings and new housing locations.
The One Northside Initiative has begun to tackle the challenge of “Sustainable Employment” by establishing a vision for all Northside: all Northside residents have opportunities to develop new skills and pursue well-paying career paths. To achieve long-term employment sustainability, the focus is on (1) Coordinating services for job readiness skills, training, certifications and job placement, (2) Working with regional partners to identify skill-set gaps and target programs to prepare residents for high demand positions, (3) Creating an employment referral system with a network of employers committed to increasing Northside employee success.
Thus far, the most significant progress toward this goal has been made by creating a network of employers via the Northside North Shore Chamber of Commerce’s NorthsideWorks! program, which was developed in collaboration with One Northside based on Northside-wide resident feedback. Since 2018, Buhl Foundation grantmaking towards the development of that effort totaled $155,000. In addition, $540,000 in grantmaking has occurred over the same time period in a variety of other job placement efforts to varying results. As such, the Buhl Foundation is well-positioned to support new, structurallysignificant proposals for strategies that address elements of their Employment Pillar vision.
HACP’s Resident Employment Program is a program developed by The Housing Authority of the City of Pittsburgh (Department of Resident Self-Sufficiency) to empower residents to enter the workforce. This program is designed to assist residents with resources to become economically self-sufficient. It serves all HACP public housing communities. Key features include:
» Assistance with job placement opportunities and job referrals.
» Assistance with a resume, cover letter, and thank-you letters.
» Guidance to enter training and educational programs.
» Assistance with interviewing techniques and filling out applications properly.
» Assistance with access to on-site employer interviews and job fairs.
» Assist residents with interviews and work ethics.
Create entrepreneurship opportunities through increased training, networking, and business start-up support from organizations that provide this education and training (e.g., Riverside Center for Innovation, NorthsideWorks).
Residents have ideas for businesses they would like to start and are looking for additional information and access to small businesses funding. Riverside Center for Innovation is located close to the community and provides entrepreneurial resources to small business owners across the city.
Much like the non-existent “match making” function within the out-of-school-time strategies, there is a significant gap between the un- and underemployed residents in the Northside and particularly in the Choice Neighborhood, as well as a gap between small and large employers in the Northside area. While the employment vacancies exist, there is a mismatch between jobs available and potential employees’ skill sets and awareness of employment opportunities. Regular coordination, bi-monthly job fairs and resource fairs, as well as ongoing partnership with Community College of Allegheny County (CCAC), whose campus is conveniently located in Pittsburgh’s Northside, as well as trade unions and nonprofit training organizations and our region’s Workface Investment Board, Partner4Work, is needed.
What have we heard?
What would help Allegheny Dwellings residents advance their careers?
What would help neighborhood residents advance their careers?
Allegheny Dwellings residents would benefit most with a “one-stop shop” for varied health needs. Therefore, HACP and partners will strive to create an on-site access point in which residents can seamlessly bring questions and needs related: physical and mental health issues, insurance problems, and the complex network of public, private, and non-profit services offered in Allegheny County.
As necessary, additional formalized agreements will be established with transportation providers (Pittsburgh Regional Transit, etc.), on-site childcare and nearby childcare providers, etc. with the goal of allowing residents with pressing health issues to rely upon the same network of pre-existing services and benefits that are available to folks navigating new employment, training, or educational issues.
What have we heard?
Need of awareness
Allegheny Dwellings residents need more information on the facilities located in the neighborhood and the resources they offer.
How could access to quality healthcare be improved?
#1 #2
#3
Shuttle to major healthcare facilities.
More healthcare facilities in the neighborhood.
Extending the hours of health-related facilities.
Work with existing local health providers and help residents establish a regular "healthcare home" where they can access consistent care as they age.
HACP and existing partners should work directly with residents to understand their households' specific healthcare status and potential needs in navigating healthcare. A health status determination should include current insurance (or lack thereof), any ongoing health issues/diagnosis, and the associated Primary Care
Physicians or related healthcare providers preferred by the patient. Fortunately, many Allegheny Dwellings residents do have health insurance, and therefore the focus should be to solidify their “healthcare home” for the necessary services. For those already insured, partners should encourage full use of wellness and wrap-around services offered through their health plans.
Promote improved quality of life with a holistic health approach; all Allegheny Dwellings residents will have a choice in where they live and have their basic needs met.
Our planning process has indicated that resident preferences for nearby services vary based on prior experience and feelings of cultural competence. Thus, developing formal partnerships with each nearby provider, some of which already exist (e.g., Allegheny Health Network’s Suburban General, Bellevue Pediatrics, Northside Christian Health Center), and others, will be integral to a successful intervention. Efforts should move beyond simple connections, and include events for residents and community-centered celebrations that focus on wellness and wrap-around services. By both connecting residents to their providers, and hosting regular on-site visits and events, HACP and existing Choice Neighborhood partners such as Fineview Citizens’ Council should
both reinforce the benefit of regular engagement with healthcare providers, and encourage those without regular engagement to make new connections. Through deeper engagement with their healthcare providers of choice, a major focus will be placed on helping uninsured individuals access health insurance. Relationships and enrollment events with multiple providers (i.e., Highmark, UPMC, Gateway Health, etc.) should be developed, as well as resident/family specific counseling that considers income, prior conditions, and other barriers that may exist. Once a resident or family becomes insured, they should be supported in finding the necessary providers covered by their insurance plan.
Center for Victims (CV) is a comprehensive, inclusive provider of services, advocacy, and education for victims of crime and those suffering from trauma. CV’s knowledge is grounded in cutting-edge research about the impacts of trauma and corresponding strategies for improved wellness and healing. They provide education that connects trauma history with health outcomes, strengthens understanding of the importance of healing and wellness strategies, and addresses the sources of trauma. Trauma has been identified as a priority concern for many residents throughout all of the Northside (One Northside and the Choice Neighborhood planning process). Since that time, many partners have acknowledged trauma as a barrier to progress while delivering programs and services, particularly in low-income communities and our schools. As such, Buhl has partnered with Center for Victims to bring their Healing Rivers Project to 10 Northside schools, training 390 school administrators, teachers, and in-school support staff, as the first step in a comprehensive approach to creating a truly trauma-informed community.
Their Healing Rivers Project is an innovative educational initiative that provides a creative, safe and trauma-informed learning environment. This space provides for many different types of learning experiences including professional trainings and education programs, therapeutic support services, experiential workshops and a one-of-a-kind interactive trauma-informed exhibit. Together these components work to improve the understanding of the impacts of direct and vicarious trauma from violence, abuse, chronic adversity, toxic stress and social inequities on children, adults, families, and communities.
Connect families to existing food access supports such as SNAP and food banks, partner with local businesses and organizations to bring new opportunities for accessing healthy foods such as grocery delivery, farmers markets, and ride shares.
Access to healthy food is a major issue in Allegheny Dwellings, as well as the surrounding communities. Residents live up to 2 miles from the nearest grocery store. HACP already serves a coordinating role between residents and certain food access providers, such as 412 Food Rescue. Moving forward, that effort should be scaled up to include a broader footprint within the Northside community. Light of Life distributes food weekly on Wednesdays at 11 am out of The Pittsburgh Project in Perry Hilltop. Propel Northside Wellness Center distributes food bi-weekly (1st and 3rd Saturdays) at 10 am in Charles Street Valley. Project Destiny distributes food on the first and third Tuesday at 11 am in California-Kirkbride.
Northside Common Ministries has Northside Food Pantry which is open three days a week (Tues, Wed, Fri) from 9-12 pm in California-Kirkbride. Additional food distribution sites need to be identified that are walkable and on transit lines, with evening or weekend schedules that allow people to better access them.
Propel Northside Wellness Center distributes food bimonthly in Charles Street Valley. Project Destiny has a food distribution bi-monthly in California-Kirkbride.
Northside Common Ministries operates Northside Food Pantry which is open three days per week in CaliforniaKirkbride. While we have many available food distribution sites in the Choice Neighborhood, the terrain continues to pose challenges for those who walk or utilize public transportation to reach these sites. Additional food distribution sites need to be identified that are accessible with evening or weekend schedules that allow people to better access them. Simultaneously, we must improve upon the network of providers that delivers healthy food directly to residents. Food distributions must continue to be regular, weekly, and predictable. Health resources and other resource information should also be made available at food distribution sites.
Ballfield Farm is a Volunteer Collective Est. 2008 on an abandoned baseball field in Perry South FCCMany residents currently get their produce at neighborhood convenience stores located on Mercy Street or Perrysville Avenue. Efforts must be made to work with store owners to access capital that would allow them to expand their fresh produce offerings. There is currently a program available through the Greater Pittsburgh Food Bank, where these neighborhood convenience stores receive free produce that they can distribute free of charge. Additionally, the Food Bank could also serve as a distribution site for low-cost Community-Supported Agriculture (CSA produce boxes).
Perry Hilltop has three senior centers on a major bus line, yet seniors continue to struggle with healthy food access. Many are unable to take two buses to get to the nearby food distribution sites. This presents an opportunity to connect with partners to ensure that food is being delivered regularly to the senior centers. Additionally, partners should explore the possibility of co-locating a small fresh food market with a new pharmacy–another major necessity for older adults as mixed-use development occurs.
As described in the Neighborhood Plan, there are several community gardens connecting residents with healthy food in a variety of ways. Residents can purchase a plot in the Fineview Garden, grow food together in shared plots at Ballfield Farm, and/or purchase produce from the Somali Bantu Farm. There is potential to grow participation in these area assets as well as harvest additional produce for sale for the broader community.
In addition, many residents expressed the desire for a new affordable grocery store. The next step is to review requirements needed for grocery store locations and evaluate real estate options. Then if there is a suitable site, partners should meet with possible companies and explore opportunities to open a store in those locations.
Allegheny Health Network (AHN)
Healthy Food Center provides free healthy food options and nutrition counseling in the greater Pittsburgh community. It aims to make nutritious meals a reality for more families — regardless of their financial situation.
AHN created this program to make sure patients have access to healthy food and nutrition counseling to help manage their overall health. AHN partners with
Greater Pittsburgh Community Food Bank to provide healthy food choices to people in need.
S O urCE ALLEGHENY HEALTH NETWO r KIdentify culturally competent mental health providers in the neighborhood and assist families in navigating barriers to access and connecting to mental health services; offer new and creative opportunities for participation in holistic health practices such as yoga, art, and mindfulness.
Throughout multiple community meetings and surveying, Allegheny Dwellings residents expressed feeling unaware of existing mental health resources, especially services available for youth. While local resources from the public sector, small nonprofits, and healthcare providers do exist and are able to provide assistance, residents need to be connected to them with a warm hand-off. Much like in other areas, navigating these systems can be quite a challenge, and project partners can contribute significantly to resident access by creating a centralized physical location as well as a listing/guide for residents to learn about and evaluate their options based on their healthcare providers. HACP and current providers will build on exisitng should create a print and online guide for common services in both physical and mental health needs, and still be available to support residents with those needs. Direct Relationships with the fully-vetted provider organizations (e.g., Center for Victims, Pressley Ridge, Thrive18, etc.) should be fostered so as to allow for on-site community days including presentations and discussions with providers. A collection and aggregation of residents’ feedback will allow the team to refine recommendations over time.
Prior to the COVID-19 pandemic, some mental health organizations were available on-site at Allegheny Dwellings to host innovative mental health workshops. Many residents felt that these were engaging and informative, and indicated a clear need for these efforts to resume, especially given the mental health impacts of the pandemic itself. Local mental health experts have expressed a desire to bring these workshops as well.
Community Meeting @ Fowler Park, October 2021 Community Meeting Photographer Community Meeting @ Allegheny Dwellings, May 2022 Community Meeting PhotographerEnsure that residents are aware of how to participate in HACP programs and services including Resident Self-Sufficiency (RSS), Family Self-Sufficiency (FSS), and Resident Opportunities and SelfSufficiency (ROSS) programs.
HACP provides case management services for residents and works to link residents with other supportive service organizations to meet specific needs. Tenants are involved in the administration of facilities and programs by coordinating tenant councils, like the Allegheny Dwellings Tenant Council.
Eight residents from Allegheny Dwellings are currently participating in the FSS program and 18 residents are on the wait-list. The ROSS program serves 38 Allegheny Dwellings residents. The FSS and ROSS Programs are voluntary and there is continuous outreach for resident enrollment. These programs connect enrolled participants with service coordinators and help residents to overcome barriers to employment, strengthen their financial skills, and address other challenges that may be holding them back from achieving their goals.
Pittsburgh's Northside neighborhoods are tucked into the city's characteristic hills, fostering small clusters of community but also creating some topographical and connectivity challenges for redevelopment.
The redeveloped Allegheny Dwellings site will take advantage of natural terracing and views to downtown Pittsburgh, while seeking to connect more seamlessly with the Fineview neighborhood. Additional off-site developments will range from a mixed-use multi-family development at a small commercial node with good transit, to smaller-scale neighborhood infill townhomes. All developments will include strengthened open space and transit connectivity.
The housing redevelopment sites will be complemented with additional strategies throughout the Choice Neighborhood, including facade repair, homeownership assistance, rehab and weatherization, and other programs to enhance the Northside's housing stock for existing and new residents.
HOUSING GOALS
GOAL 1
Integrate Allegheny Dwellings into the larger neighborhood and provide community spaces and opportunities for engagement.
GOAL 2
Support renters in working towards homeownership and existing homeowners in accessing new skills and programs to make improvements in their homes.
GOAL 3
Work towards green, energy efficient models of housing, connecting residents with natural light and a healthy living environment.
Integrate Allegheny Dwellings into the surrounding community and invest in safe, quality, affordable housing.
Located immediately north of the Central Northside neighborhood and its revitalizing Mexican War Streets historic district, the topography of the Choice Neighborhood changes dramatically between the Central Northside and Allegheny Dwellings as steep slopes define its southern edge. Central Northside and the neighborhoods to the south— East and West Allegheny, Manchester, Chateau, and the North Shore—are located on relatively flat land that facilitated development in a dense urban street grid pattern.
Within the mostly residential planning area, the Fineview and Perry Hilltop neighborhoods were developed on hilltops and buildable slopes. Many streets in these neighborhoods offer dramatic city views, with steep wooded slopes located throughout Fineview and Perry Hilltop. Charles Street Valley and California-Kirkbride are at lower elevations, and offer some areas of leveled topography. Federal Street and N. Charles Street are the main thoroughfares connecting the planning area to the southern neighborhoods and downtown.
Constructed in 1943, Allegheny Dwellings is made of 11 remaining buildings comprised of 174 one- and two-bedroom units . An additional 65 one-, two-, and three-bedroom units have been redeveloped as Phase 1: Sandstone Quarry at the southern portion of the site.
The new housing program replaces the existing 174 units located at Allegheny Dwellings with a mixed-income program (on- and off-site), totaling 344 units of housing.
The Housing Plan presented in this section includes a mix of multi-family, stacked townhomes, and townhomes located on the site of Allegheny Dwellings and laid out along a reconfigured Belleau Dr. and Letsche St. with a “town green” (central green space), community open spaces, and pedestrian connections. A total of 156 units are proposed to be redeveloped on-site at Allegheny Dwellings, with 188 additional units developed in several off-site locations. The market analysis (Appendix II) found support for mixedincome residential development within the Choice Neighborhood. One of the strengths of the larger primary market area (zip codes 15214, 15212, 15233) is its mix of income levels, suggesting an opportunity to build on current income diversity and create a stable, mixed-income neighborhood through redevelopment at Allegheny Dwellings.
The Allegheny Dwellings site poses redevelopment challenges due to the steep topography, switchback roadways, and dead-end streets, all of which serve to limit connectivity between residents of Allegheny Dwellings and the larger Fineview neighborhood. Similar to other public housing communities, residents have been segregated from the rest of the neighborhood due to the current site design. However, the natural terracing and spectacular views of the neighborhood, plus proximity to Allegheny Center, lend themselves to clusters of community-oriented housing and open spaces within the larger city.
Allegheny Dwellings is comprised of two terraces of development: one off Letsche St., halfway up the slope from Federal St., and one along Belleau Dr., at the top of the hill. The current Belleau Dr. is a dead-end street, further separating the Allegheny Dwellings residents from their surroundings.
The updated Housing Plan redevelops the existing natural terracing into a community of varied density, creating shared open spaces, a welcoming mixed-use gateway, and a walkable streetscape.
The housing design principles described in the next page were set to bring together what the community desired through the redesign of the site.
The redeveloped Allegheny Dwellings will be a community surrounded by open spaces for recreation, views, and community gathering, connected by the existing and new paths to its surroundings and neighbors, and with a character that will blend into its surroundings.
Comprised by a mix of multi-family, stacked townhomes, and townhome buildings, the redeveloped Allegheny Dwellings will be a family-friendly, interconnected community that will lend itself to the city views and its community.
What have we heard?
Creating Community
74% of AD residents do not feel part of a community.
60% of neighborhood residents do not feel part of a community.
» Allegheny Dwellings today: Allegheny Dwellings is set on top of a hill, giving residents some of the best views of downtown Pittsburgh. However, the steep hills and road conditions also make it difficult to connect and get around as the current site is designed.
The guiding principles for redevelopment emerged from conversations with residents and principles for good urban design: maintain the views, create gathering community spaces, re-open the stairs and connections that existed in the past to surrounding streets.
» Redeveloped Allegheny Dwellings: The redevelopment plan honors what the community has said through the planning process and the site redesign principles. The two terraces where the buildings are set connect through various existing and new paths, making it easier to walk around.
The buildings open to frame the views, and they create several opportunities for programmed open spaces where residents can meet and enjoy the community.
» Maintain views from the new development – from buildings and open spaces:
Residents are rightfully proud of their spectacular views of downtown Pittsburgh from the southernmost bluff on the site. New development should be arranged carefully to frame these views and not block them, so residents can enjoy them from their shared open spaces and from as many residential units as possible.
» Avoid dead-end streets:
T he existing Belleau Dr. is a dead-end street, further hindering connections between Allegheny Dwellings and the rest of the Fineview neighborhood. By reconfiguring this street as a oneway loop encircling a shared "Town Green" plaza, plus creating additional alley connections, and improving the surrounding streetscapes, the new development is more integrated with the existing neighborhood.
» Repair and reopen existing stair/ path connections to Sandstone Quarry and Allegheny Center: Despite a number of existing stair connections leading down from the hillside at Allegheny Dwellings, many of these are fenced off and/or in disrepair. Residents of both Allegheny Dwellings and the larger Fineview neighborhood overwhelmingly requested these important connections to be reopened, particularly for residents without cars.
» Redevelop Federal/Mercy as a mixed-use hub/gateway site: With the current Allegheny Dwellings buildings on Letsche St. effectively turning their backs on Federal St., passers-by could have no idea there is a community on the hilltop above. The intersection at Federal St. and Mercy St. is an opportunity to build a more dense gateway building with mixed-use space on the ground floor and a front plaza/open space, inviting passing Pittsburghers to venture up into the Fineview neighborhood.
» Include a variety of open spaces for recreation, views, connections, and community gathering: The open space that exists on site now is diffuse, with seating areas and recreation spaces in a larger sea of grass and unused space between buildings. By using the new housing development to frame central and side spaces, residents can find a variety of outdoor “rooms” for gathering, playing, resting, and enjoying views.
» Reconnect to Federal St., the larger Fineview neighborhood, and nearby developments:
Roadways, trails, steps, and connections should create as many physical and programmatic connections as possible in order to help Allegheny Dwellings feel less isolated within its larger neighborhood.
The reconfigured Belleau Dr. loop creates a shared Town Green lined with stacked townhomes and a multi-family building with an opportunity for mixed-use on the ground floor (for a community gathering room, fitness center, or other use). The southernmost section of the Town Green is a flexible hardscaped plaza, framed by a multifamily building and townhomes, that can be designed and configured for community gathering and events/ festivals, allowing all residents to enjoy the views and greet their neighbors.
The remainder of the development is concentrated at the Federal St./Mercy St. gateway site, with a mixed-use multifamily building anchoring the corner and some additional townhomes set halfway up the slope looking down onto Federal St. It will be completed by a new open space that will be part of the gateway, as a way of connecting through slopes and ensuring residents have health and wellness spaces to interact with in order to be part of a community.
RES prepared a draft housing market study in May 2022 that shows market support for mixed-income residential development in the planning area (see Appendix B) with a mix of: 1-bedroom rental (30-40%), 2-bedroom rental (3545%), 3-bed townhome rental or sale (1015%), 3-bed small lot or duplex (5-10%), and 4-bedroom townhome, rental (2-3%).
Cluster new housing around potential community hub spaces where resources exist (e.g., around Fineview Park, Fowler Park and the Charles St. Valley/ Perrysville commercial districts, N. Charles St. at the Cross and Strauss Parklet, the Pittsburgh Project, Wilson Avenue, Perrysville Ave., Lanark St.).
All housing redevelopment should carry forward the same principles of community and gathering, whether in the Fineview neighborhood or elsewhere. Building on the community assets and gathering places already in place, new housing can strengthen these hubs and reinforce interaction between new and existing neighbors.
In addition to the off-site housing investment within this Choice Neighborhood Plan, complementary community investment is already underway in the Choice Neighborhood, including the Charles Street Valley Plan, Legacy Village in Wilson Ave. with Drum St., and Perrysville Ave. and Wilson Ave.
Through Housing Task Force meetings and walk-shops, the community explored locations for off-site replacement housing and investment (e.g., important community hubs, intersections, and existing commercial centers). Not all locations are appropriate for replacement housing, but all present opportunities for infill and investment as important community places.
The map at right shows the focus areas explored for off-site housing, with each cluster developed further in the following spreads. These housing investment areas will introduce needed affordable housing investment in the Choice Neighborhood while providing revitalization opportunities for the surrounding areas.
HOUSING REDEVELOPMENT PLAN
Allegheny Dwellings
Choice Housing Investment Areas
Other Housing Investment Areas
What have we heard?
What else would you like us to address in the planning process?
More space for growing families
Build a community to rely on
East of Allegheny Dwellings, also in the Fineview neighborhood, sites of opportunity have been identified along Lanark St. and adjacent to Fineview Park. The primary site of interest for redevelopment is along Lanark St. between Rising Main Ave. and Television Hill, west of the current Television Tower site. The redeveloped housing is comprised of single-family townhomes to blend with neighborhood context and a multi-family apartment building with 3 stories of residential units above basement parking.
The proposed development pulls back from the northern corner, allowing a small patch of existing green space to become a more intentional parklet for surrounding neighbors to gather. A geotechnical study showed that the history of mining can be addressed by installing cassons or filling the empty space.
» Parks access . Proximity to Fineview Park and Fineview Overlook and Fields.
» Planned transit improvements . Proximity to Meadville St. transit stops and bus route 11 (Fineview), as well as the Fineview Trail.
» Existing green space. Existing “green space” on Lanark St./Rising Main Ave. is already used as an informal community gathering place and can be incorporated into a new development.
» Vehicular access . Existing ROW behind Lanark St. site allows vehicular access from the north.
» T opography for buried parking . The site drops off sharply from Lanark St., allowing parking below the 1st floor.
» Economy of scale . Multi-family construction is more cost-effective than townhomes, allowing for development on a sloping site.
The Lanark Street area in Fineview is in close proximity to Allegheny Dwellings and proposed transit improvements, as well as the recently renovated Fineview Park. Feedback from the surrounding neighbors led to a smaller footprint with increased open space at the corner of Rising Main Ave. Improved bus service will be needed to support transit use.
Possible redevelopment area
Multi-family building
Townhomes
Parcels designated for greenway
Bus stop enhancement
New greenway connector street improvements
Neighborhood trail
Bus route
The Lanark Street housing development is envisioned as a 3-story mixed-use building with townhome-style character, reflecting the local Fineview context in material and color choices. A community room will occupy the corner of the building, with an outdoor seating area that will invite the community in. Parking is tucked underneath and accessed by the back alley, encouraging pedestrian access from the street.
The building will be accompanied by a revitalized open space, enhancing a lawn already in use by the community, that will include seating areas and flexible, playful spaces for children while maintaining the greenery that characterizes Fineview. Streetscape improvements like sidewalk repairs, crossings, and traffic signage will help ensure the safety of all residents. Additionally, it will be important to work with Pittsburgh Regional Transit to improve bus service to the area and possibly offer or connect with van services to area amenities, such as the grocery store.
The Fowler Park area provides easy access to transit, improvements to open spaces, and close proximity to community resources and URA investment at the commercial hub of Perrysville Ave./N. Charles St. (Avenues of Hope) with potential financial support for business growth and investment. Planned Fowler Park improvements are expected to greatly increase use and amenities at the park.
OFF-SITE LOCATION STUDY
Multi-family building
Townhomes
Bus stop enhancement
New greenway connector street improvements
Gateway/intersection improvement Intersection improvement Neighborhood trail
North of Allegheny Dwellings, in the Perry Hilltop neighborhood, clusters of new housing will take advantage of proximity to Fowler Park where a Master Plan was recently completed, which details major improvements to be implemented in the years to come. Another strength of this area is the main intersection of N. Charles St. & Perrysville Ave., a small commercial hub with strong transit access The proposed housing includes stacked townhomes infilled along Perrysville Ave. to match the existing 3-story housing context, and a larger multi-family building that sits north of Fowler Park just off Perrysville Ave. on Ellzey St. This multi-family building complements a neighboring senior tower, and takes advantage of an existing transit shelter at Ellzey/Perrysville.
» Local businesses. Existing commercial businesses at N. Charles St. & Perrysville Ave. intersection.
» Fowler Park. Proximity to Fowler Park and its amenities (pool and playground).
» Transit access . Excellent transit access with multiple bus lines.
» Existing multi-family. The Steelworkers' Tower sets a precedent for a tall multi-family building along Perrysville Ave.
PERRYSVILLE AVENUE OFF-SITE HOUSING PROGRAM:
The Perrysville Ave./N Charles St. housing development plan is comprised of a multifamily building facing Perrysville Ave, and infill townhomes on N. Charles St. facing Fowler Park.
The multi-family building will mediate the height of the neighboring Steelworkers' Tower, while including elements that speak to the neighborhood's character like colorful murals. Community spaces at the corner of Perrysville Ave. and Ellzey St. will contribute to the active local business corridor.
Improvements to transit services and bus waiting environments, sidewalk repairs, crossings, street markings, and new landscaping will be included to ensure the safety and well-being of residents and the broader community.
In the California-Kirkbride neighborhood, on the western half of the Choice Neighborhood planning area, an additional offsite housing location takes advantage of strong assets like transit access and handsome existing building stock, proposing new single-family and stacked townhomes to infill blocks.
» Transit access . Good connections via bus, bike, and car.
» Good "bones" for infill . Sturdy townhomes provide context for new infill to fill in "missing teeth."
» Proximity to businesses. Several small businesses are within close walking distance.
» Parks/parklets. Good proximity to California Ave. Parklet and Sprout Park, two important community assets.
» Relatively flat site . Unusually for the Northside, many blocks are relatively flat, reducing site costs.
OFF-SITE HOUSING PROGRAM:
The California-Kirkbride area provides easy access to transit, improvements to California Ave. Parklet and Sprout Park in addition to new open spaces, and close proximity to community resources like local businesses and educational facilities.
OFF-SITE LOCATION STUDY
Stacked townhomes
Townhomes - homeownership conversion
Bus stop enhancement
Existing bike lane
Gateway/intersection improvement
Neighborhood trail
Bus routes
A total of 30 housing units are planned for the Kirkbride Street blocks. A homeownership component will include 10 townhomes designated for homeownership conversion after a 15-year period.
» Before a funding application is submitted with the Pennsylvania Housing Finance Agency, a detailed conversion (exit) strategy from rental to homeownership will be developed. California-Kirkbride Neighbors would be part of this planning process.
» During the Rental Property for 15-Year Compliance Period, residents are considered renters with no financial obligation to maintenance.
» Households earning 60% of Area Median Income or less will pay affordable rent.
» After 15-year rental period, residents have the option to purchase their home and will receive access to Homeownership Readiness Services and a minimum of $2,500 per unit to assist households with closing costs.
» Purchase point of the home will be sized to be affordable to the renter/new homeowner. For example, if the renter is paying a fixed monthly rent of $1,350 a month, the mortgage and interest payment will be sized to an equal monthly cost while also considering taxes, insurance, maintenance, and other costs of homeownership.
» The incentive for the renter is that they maintain affordabilty over time and build equity in their homes and put down roots in the neighborhood. Additional financing tools will be explored to help offset homeownership conversion costs for residents.
The California-Kirkbride neighborhood is in close proximity to Propel School and employment hubs, as well as Sprout Park and California-Kirkbride Parklet, which are part of the Early Action Activities conducted as part of this planning process.
FIGURE 17. KIRKBRIDE STREET DEVELOPMENT AND OPEN SPACE VIEW. LOOKING NORTH ON KIRKBRIDE STREETThe Housing Plan for Allegheny Dwellings Choice Neighborhood is anticipated to occur in four phases over nine years.
The first phase will focus on Perrysville Ave. and N. Charles St. area with a mixed-use building in the corner of Perrysville Ave. and Ellzey St. in addition to townhomes along N. Charles St
The second and fourth phases will focus on the redevelopment of Allegheny Dwellings. It will start by phase 2 development along Mercy and Federal St., with addition of a new open space along Federal St. that will ease connections to transit and across the hill.
Phase 4 will redevelop the housing on top of the hill that will include large open space areas and will complete the redevelopment of Allegheny Dwellings on-site.
Between Phases 2 and 4, Phase 3 will focus on the development of Lanark St., with a mixed-use building and an improved open space for the community.
Also part of Phase 3, occurring before Phase 4, CaliforniaKirkbride will include development along Kirkbride St.
between Avenues A and B. Belleau Plaza and Town Green will be constructed in the final stage. Additional detail is provided in Chapter 6.
HOUSING REDEVELOPMENT
Phase 1 - Perrysville Ave & N Charles St
Phase 2A - Federal & Mercy Gateway
Phase 2B - Federal & Mercy Gateway
Phase 3A - Lanark
Phase 3B - Kirkbride
Phase 4A - Belleau Plaza
Phase 4B - Town Green
What have we heard?
What type of housing do residents think is needed in the neighborhood?
New homes for ownership #2
New affordable rental housing #1
Supportive housing #3
Sponsor community events that engage residents across the neighborhoods and provide ways to connect.
Through the planning process, residents participated in walk-shops in each neighborhood to discuss potential early actions, share observations around opportunity sites, and consider locations for housing. These engagements have proven to be a good way to connect outdoors, socially distanced, and share ideas in discussion.
Promote physical activities happening in community spaces.
The open spaces planned for Allegheny Dwellings and the other housing sites include a range of opportunities for recreation and other physical activities which directly link to and build on the existing steps and trails of the neighborhood. In addition to rebuilding the existing basketball court and playground at Allegheny Dwellings, the Plan provides open grassy areas for flexible recreation, seating at overlooks, and the reopening of existing midslope steps and pathways that are currently fenced off, creating important physical connections to Allegheny Center. A proposed ramp set into the western slope (off Federal St. connecting to Letsche St.) addresses mobility concerns for residents in the upper community at Allegheny Dwellings. In addition, the full trail/steps network can tie into the existing Fineview Fitness Trail to create a larger active recreation amenity for the whole Northside community.
Near the off-site housing locations, the recently renovated Fineview Park, the existing Fineview Overlook and Fields, and Fowler Park are all important recreational hubs for Allegheny Dwellings residents and the larger Fineview neighborhood residents. These parks have either been recently renovated (Fineview Park) or there are plans and Early Action dollars for intermediate and extensive renovation (Fowler Park /California Ave.), meaning new housing adjacent or nearby these important recreational hubs will take advantage of improvements for further recreation and activity for all ages.
Support residents interested in working towards homeownership and existing homeowners in accessing skills/programs to make improvements in their homes.
HACP Homeownership Program was designed to provide the low-to-moderate income households financial literacy and financial assistance needed to purchase a home within the city limits of Pittsburgh. Low- to moderate-income families seeking financial literacy regarding homeownership and who may not have adequate funds for down payment and other up-front loan closing costs are encouraged to participate.
Eligible properties should be a permanent structure used primarily for year-round residential use. Each property may contain up to two connected dwelling-units, one of which must be owner-occupied.
Assist new homeowners through educational programs and share information related to financial and homeowner support programs, including home repairs and upkeep.
Much of the housing stock in the Choice Neighborhood was built in the early 1900s, often set into the hillsides and including both brick and wood one to three-story structures. With time, deferred maintenance and disinvestment in the community, upkeep of these homes becomes, not surprisingly, a major issue and burden. Local support from URA, HACP, and programs like NeighborWorks Western PAwhich offers homebuyer education and credit counseling - is needed.
What have we heard?
Which programs will be most helpful to achieve your goal of homeownership?
Down payment assistance #2
Help with credit history #1
Homebuyer education #3
Ensure all interested residents have access to current programs (e.g., HACP Homeownership, URA’s Down Payment Assistance and Closing Cost) providing entry to capital, banking/lending partnerships, and credit assistance for closing costs.
Residents expressed that they are not always aware of the various programs available and where to find the resources they need. The community ambassador program, in addition to HACP's Resident Self-Sufficiency (RSS) present good opportunities to connect with residents, ensuring households have access to available services.
The Center for Housing Opportunities’ Homeowner Assistance Program provides financial assistance up to $30,000 to homeowners with different financial options for households at or below 50% AMI and between 51% and 80% AMI. Deferred 0% interest loans are used for energy-efficient improvements, property improvements, and to bring structures into code compliance.
The Housing Opportunity Fund's Down payment and Closing Costs Assistance Program provides financing to first-time buyers who are interested in purchasing an existing or newly constructed residential unit in the City of Pittsburgh. Eligible properties must be a permanent structure used primarily for year-round residence. At least one of a two-unit building must be owner-occupied.
Increase access to the Legal Assistance Program (LAP) for tenants and homeowners.
The LAP provides a variety of free housing legal services for eligible tenants and homeowners in Pittsburgh. Available legal services for tenants include mediation and legal representation. Homeowner services include help with tangled titles and foreclosure prevention. Led by URA with partners such as Community Justice Projects, Just Mediation Pittsburgh, Ebony Law, and Neighborhood Legal Services, language interpretation services are available for 40+ languages. Income levels vary by household size for tenants and homeowners.
Provide local training for residents to gain renovation/repair skills, develop properties, and build wealth locally.
Build on existing models, like Omicelo in Pittsburgh offers real estate development training to residents and Community Pittsburgh also helps residents learn how to purchase public property. Explore both local and regional models (e.g., Jumpstart Germantown in Philadelphia, a unique community development program that uses a collaborative approach to real estate development through training, mentoring, networking, and providing resources to local aspiring developers). These programs create opportunities for local residents, support local wealth-buildings, support infill and rehab development, and help first-time investors navigate relationships with traditional lenders.
Ensure new housing and renovated housing incorporates model energy efficiency, indoor air quality, and biophilic and trauma-informed design considerations.
Given their age and configuration, exposure to lead-based paint, inability to add central air, and outdated heating and cooling systems, the buildings at Allegheny Dwellings are obsolete and would require cost-prohibitive upgrades to modernize.
Residents voiced the importance of healthy living environments inside and outside as well as quality building finishings and materials. Needs assessment results found that 22% of households have family members with asthma and related breathing issues and 23% of household residents suffer from depression, anxiety or post-traumatic stress disorder. It has become even more apparent during the COVID-19 pandemic how much housing quality can impact overall health, safety, and wellness. Redevelopment will strive for high-efficiency building construction, lowVOC materials, abundant natural lighting, and healthy air filtration systems.
Paseo Verde, LEED Platinum and Leed for Neighborhoods. Philadelphia, PA WRTWork towards green, energy efficient models of housing, connecting residents with natural light and a healthy living environment.
Beyond basic indoor air quality, emerging best practices in affordable housing redevelopment are also increasingly incorporating both biophilic design strategies and trauma-informed design considerations. Biophilic design (1), promoted by the International Living Future Institute among other proponents, includes a holistic view of the human connection to and affinity for nature. Biophilic buildings incorporate environmental features, light and space, and natural shapes and forms into the design process. Climate and culture are intertwined and landscaping, plantings, and natural materials like wood are heavily emphasized both outside and inside the
insecurity, and housing insecurity. When housing these populations, designers can take extra care to ensure new housing feels safe, secure, and defensible. Often utilized in developments focused on housing the formerly unhoused, formerly incarcerated, or otherwise vulnerable populations, designers employing this framework use techniques like highly visible stairwells, clear lighting and good sightlines for full visibility, and exterior considerations like lighting and fences. Designers pay particular attention to interiors, particularly color, surface textures, and spaces of refuge. Emerging frameworks cite "the three C's" of designing for Health and Healing: Choice, Community, and Comfort.
Link neighborhood groups and residents with existing programs to encourage high quality, energy-efficient housing rehab and new construction.
Energy-efficient improvements provide clear benefits for residents: lower heating and cooling costs and more comfortable environments. The National Center for Healthy Housing completed a review of research in 2016 which found that quality energy efficiency improvements provided consistent improvements in overall health, reduced allergy symptoms, reduced emergency room visits, and improved building conditions.
Community members who rent their homes may not have the ability or finances to overhaul their homes, but there are still lower-cost improvements renters can make that have immediate impact on their utility bills. Carnegie Mellon's Freedom by Design program is piloting weatherization kits for Pittsburgh residents to improve energy bills with window plastic, weatherstripping, caulk, and pipe insulation, as well as basic educational materials. In addition, Rebuilding Together Pittsburgh and Action-Housing provide free weatherization services in Pittsburgh.
For landlords or homeowners, energy improvements can range in scale from air sealing and more efficient cooking appliances, to upgrades to heating systems, all of which yield immediate improvements: warmer and drier air, less mold and moisture, fewer allergens, and lower bills. Larger-scale investments like adding blown insulation (particularly in attic roofs) and replacing old windows further improve the sturdiness of Pittsburgh's building stock for extreme weather. URA has a Landlord Fund, which helps landlords make renovations to their buildings.
Rehabbing existing housing stock for energy efficiency can also increase community resilience in the case of extreme heat events or other climate-related events; research has shown that in cities like Pittsburgh with historically mild summers, sudden spikes in heat can prove deadly for residents without good access to air conditioning or well-insulated housing. Weatherizing older houses can not only improve energy bills in the winter; it can also curb effects of heat waves in the summer. Replacing black asphalt roofs with lighter colors, installing awnings or planting trees on the south/west sides of houses, and installing ceiling fans are all strategies that can complement air conditioning to improve overall energy efficiency year-round, for comfort in all extremes.
https://basc.pnnl.gov/information/design-extreme-heat https://archplan.buffalo.edu/adapting-buildings
ACTION-Housing, a local non-profit based in Pittsburgh and established 60 years ago, has a mission to find cost-effective ways to build high performing, energyefficient multi-family affordable housing. In 2012, the organization acquired a site on one of the city’s main transportation corridors and developed two buildings with 47 units (one- and two-bedrooms) for youth aging out of foster care and general occupancy workforce housing. The buildings used energy-efficient “passive house construction,” ultimately saving residents money on utility bills and demonstrating its potential in multi-family housing in Pittsburgh’s climate.
S O urCE ACTION HO u SINGThe Neighborhood Plan focused on residents' needs for improved transit access, easier mobility, and improved streetscape conditions with safe sidewalks, crossings, and lighting. Pittsburgh's Northside neighborhoods are fortunate to have generous tree cover creating opportunities to fully take advantage of the City of Pittsburgh's Greenways program - with community buy-in for improved trails and recreation, as well as places to walk and enjoy the outdoors. The off-site housing locations take advantage of access to transit and potential for increased amenities and commercial businesses.
Critical community improvements include improved transit shelters, signage, and benches - in coordination with more frequent transit service. Pittsburgh Regional Transit will be updating its plans for transit routes and service in the next two years, and attention needs to be paid to ensure community needs identified through the Choice Neighborhood Plan are included in its future plans. Both community safety and consistent internet and cell service access rose to the top of community needs through this process.
Improve access and ease of mobility to everyday needs, like employment and healthcare, by minimizing transportation barriers.
Invest in streetscape improvements, public spaces, and infrastructure to work towards a more livable, safe neighborhood for residents.
Reactivate open spaces, greenways, and parks in the neighborhood with health/wellness initiatives and recreational amenities that will help build shared connections and a sense of community and belonging for residents.
Implement a community-based, preventative safety model that develops strong partnerships between residents, community partners, and police.
Increase the number of households that have reliable, affordable internet access at home and ensure residents are digitally literate.
Create a green, connected, well-served, livable neighborhood where residents have convenient access to rich opportunities and resources to meet their daily needs.
We heard from residents the challenges of using public transportation for daily needs, like getting to work, dropping off kids at childcare and pre-school locations, and shopping for groceries or doing laundry. Within the Choice Neighborhood planning area, about 54% of residents are driving to work, compared to 24% who are taking public transportation. We also know that one of the unique aspects of the area and other neighborhoods on the Northside – the hilltop communities with sweeping views of downtown and the surrounding region – are those elevation changes which make it difficult to walk or bike and effectively separate communities and places that would be otherwise easily accessed.
Pittsburgh’s city steps, installed all over the city in the industrial boom to allow workers to more easily get to and from their steel mill jobs, are frequently in disrepair.
Maintaining more than 800 sets of steps is a major citywide challenge. Trails and steps, where in good condition, are a valuable community assets, and provide potential to improve and increase access to nearby parks and services. The biggest ongoing challenges related to the step network noted by city residents are structural deficiency and overgrown vegetation (Pittsburgh Citywide Steps Assessment). Within the Choice Neighborhood, residents love the views, proximity to downtown, and character of the hilly neighborhoods, but they need better access to commercial districts and services, and investment in the smaller-scale neighborhood commercial districts. The Plan must address the scattered vacancies that depress property values and end up littered with trash and overgrown trees.
Developing the Neighborhood Plan is an opportunity to focus the efforts of the many Choice Neighborhood partners (URA, City of Pittsburgh - Department of Mobility and Infrastructure (DOMI), City of Pittsburgh - Department of City Planning, Pittsburgh Regional Transit) and the community-led neighborhood groups on a few critical, strategic locations for investment. The improvements most desired by the community include greenways, transit stops, health and wellness resources, and neighborhood commercial districts, combined with access to programs that support homeowners and renters in making their communities safer and more attractive places to live.
*Further planning and engineering studies will be needed to conduct feasibility study on the proposed transportation improvement recommendations.
The framework illustrates a concept for a greenway connector that will provide access and connection to existing parcels designated or held for greenways on steep slopes, that will require partnership with the City of Pittsburgh and neighborhood groups. Intersections and streetscapes along key corridors (N. Charles St., Federal St.) will be targeted for improvements. Areas for housing reinvestment will be better linked by vehicular, transit, pedestrian, and bicycle connections.
Housing investment area
Parcels designated for greenway
Primary connectors
New greenway connector street improvements
Neighborhood trail
Proposed neighborhood trail
Bus stop enhancement
Gateway/intersection improvement
Intersection improvement
FIGURE 20. NEIGHBORHOOD FRAMEWORK ^ NEIGHBORHOOD FRAMEWORKPartners will work with Pittsburgh Regional Transit and DOMI to add at least three bus shelters with amenities along the #8 Perrysville bus route (e.g., near Fowler Park), #11 Fineview bus route (e.g., across from Unity Garden/ Allegheny Dwellings), and the #13 Bellevue bus route (e.g., Columbus Ave. bridge). Bus shelters to support ridership along bus routes in California-Kirkbride and Charles Street Valley are integral for the Plan for these bus routes: #13 (along California Ave. between Marshall Ave. and Brighton Rd.); #15 (inbound along N. Charles between Perrysville Ave. and Brighton Rd.); #16 (along Brighton Rd. between Island Ave. and California Ave.).
Pittsburgh Regional Transit is preparing to begin a bus network study to analyze the current network and ridership at a micro level and develop a model for a new network plan that maximizes efficiency and coverage. Residents feel the bus network is convenient for getting downtown, but any other destinations require more time and transfers. Service needs to be expanded during early mornings, late evenings, and on Saturday and Sunday. Initial mapping and analysis shows that ridership is high enough to warrant investment in new covered shelters. In addition, there are very few bus amenities within the neighborhoods. Bus stops often are marked by limited signage, seating, safe pedestrian access, and lighting.
Improve access and ease of mobility to everyday needs, like employment and healthcare, by minimizing transportation barriers.Bus stop on Brightbridge St and N Charles St Google Earth
Residents need more diverse options for mobility close to home. Without access to a car, the streets and sidewalk network can be difficult - especially for those with small children or any sort of mobility challenge. Pittsburgh's Mobility Hubs are intended to be an extension of the existing transportation system, with locations designed to provide additional access to transit as well as independent access to a range of nearby destinations. Residents would like to see a piloted DOMI Mobility Hub alongside an existing bus stop with a “HealthyRide” station (including E-Bikes, e-scooters, and carpool). Potential locations include: Routes 13/16/15 at California/Charles/Brighton or at Routes 8/11 Perrysville/Fineview.
Move PGH was created by the Pittsburgh Mobility Collective to connect Pittsburgh residents to jobs, goods, and services in a way that maximizes access, minimizes carbon emissions, and is affordable.
Move PGH goals:
» Simple and affordable
» Growth-oriented
» Equitable
» Sustainable
» Inclusive
What have we heard?
What are the top challenges of the Choice Neighborhood planning area for Allegheny Dwellings residents?
» Innovative
*Further planning and engineering studies will be needed to conduct feasibility study on the proposed transportation improvement recommendations.
Strategy 1.3
Improve immediate connections to/from Allegheny Dwellings into the surrounding neighborhoods, with special attention to safe sidewalks, lighting, visibility, street crossings, paths, and stairs.
Residents expressed frustration over the difficulty in getting around by foot through Allegheny Dwellingsconnecting south to shopping and healthcare at Allegheny Center (former paths are temporarily closed) and into the larger Fineview neighborhood. Accessing the bus at Unity Corner on Federal Street would be safer and quicker with new crosswalks across Federal Street and accessible paths down the hill.
Generally the southern portion of the planning area is considered within a walkable distance to transit, while most of the neighborhoods are not. There are 5 bus routes, however residents noted long wait times and limited hours of service. Intersection safety improvements and added bus capacity are being studied with Pittsburgh Regional Transit & DOMI.
Neighborhood residents think that one of the top 5 reasons why neighbors struggle with finding a job is because there is not enough convenient transportation
Housing investment area
Parcels designated for greenway
New greenway connector street improvements
Neighborhood trail
Proposed neighborhood trail
Bus stop enhancement
Gateway/intersection improvement
Intersection improvement
Bus routes
Promote neighborhood-wide monthly programs where residents are hands-on engaged in the beautification of their streetscapes, helping them make the neighborhood more welcoming and safe.
Fineview Citizens Council, Perry Hilltop Citizens Council, Charles Street Area Council, and California-Kirkbride Neighbors are already involved in leading volunteer clean-ups. An enhanced partnership with the City’s Clean Neighborhood Stewards program could help to provide city resources and opportunities for grant programs. These community building activities create opportunity for connection, which is something that residents noted as a need through the survey and during workshops.
Increase the use of painted crosswalks and traffic calming measures to improve safety for pedestrians and cyclists, particularly at key bus stop locations (e.g., at Wilson St. & N. Charles St.).
The City's Neighborhood Traffic Calming Program is well positioned to increase the safety and comfort of people traveling through a neighborhood by slowing driver speeds, especially on residential neighborhood streets. Limited funds are available each year to install traffic calming measures like speed bumps, curb bump outs, and painted pedestrian crosswalks. Painted crosswalks may be standard markings, or potentially more decorative and artistic. There are several examples of Pittsburgh crosswalks with art and beautification added to improve safety and highlight the unique character of the area.
Participate in and encourage resident involvement in the Pittsburgh Regional Transit’s bus network redesign planning to advocate for and better understand the needs for 24/7 transit services.
The Choice Neighborhood planning area is served by six Pittsburgh Regional Transit bus routes. Recent census data shows that about 24% of all residents in the planning area take public transportation to work, higher than the overall average for the City of Pittsburgh. Residents at Allegheny Dwellings rely on public transit and routinely spoke of the need to extend transit service to early morning, evening, and weekend - given work schedules and childcare needs. This process is expected to kick off in 2023, and will include significant opportunities for public engagement.
Strengthen access to fresh food and produce through ongoing partnerships (e.g., DoorDash partnership with Northside residents, 412 Food Rescue) and increase the presence of locally grown food and markets.
A number of fresh food resources have expanded during the COVID-19 pandemic, while others like farmers’ markets are in need of support. With neighborhood support and marketing, local fresh food resources (e.g., United Somali Bantu Farm, the Northside Market at Allegheny Commons, and the return of a regular farmers market to Fowler Park) are possible and will provide direct access to fresh food and produce. The majority of the Choice Neighborhood is in need of fresh food access, and according to the USDA Fresh Food access Resource mapping, the planning area has a significant the number of residents that are up to 2 miles from the nearest supermarket. Residents would also like to see a new affordable grocery store come into the Choice Neighborhood planning area.
What have we heard?
+50% of residents have utilized free or low-cost food resources during the COVID-19 pandemic
Improve transportation access (e.g., vans, car-share, mobility hub, volunteer rideshare) to health and wellness hubs.
Partner with healthcare providers to make transportation to healthcare providers more seamless and eliminate long wait times. One idea suggested by residents to explore further with partners is providing free, direct transportation through vans, car-share or volunteer rides, to Allegheny General Hospital for appointments and regular check-ups.
In addition, continue to assess resident use and trust of the closest Federally Qualified Health Centers (Northview Heights Health Center and North Side Christian Health Center). Additional conversations and focus groups are needed to determine the design of a volunteer ride-share type of system but models exist through the existing private ride-share providers in an effort to more easily connect people with primary care, well-visits, and vaccines - potentially saving lives and substantial costs long-term.
Work with existing healthcare facilities to implement telehealth and mobile healthcare for routine visits, and seek out options for an urgent care center in the neighborhood, diverting residents from emergency rooms.
In recent years, and evidenced by the COVID-19 pandemic, many households are finding benefits in telehealth as a cost-effective and convenient way to see their family doctors. Residents and providers have become more comfortable with virtual healthcare over the last few years but additional information and awareness around options is needed. However, inadequate internet and cellular service can be a barrier to accessing virtual health services.
In addition, there is an opportunity to expand partnerships with Allegheny General Hospital, UPMC, and mobile clinics to offer routine, free or low-cost visits in the community, including dental, vision, hearing, podiatry, STI testing, and other health screenings.
Move PGH is creating 50+ Mobility Hubs in locations across Pittsburgh. Features include: near frequent transit stops, Healthy Ride stations, e-scooter charging ports, and real-time transit arrival information. Currently there are few on the Northside, but there is room for expansion and interest from residents.
The closest location is currently at Federal Street and North Avenue.
Increase trusted awareness of new and existing health and service resources in the community, using a communityspecific resource hotline, bulletin board or community hub, web page, social media through HACP and the neighborhood groups, available healthcare apps, and physical mail.
One common theme expressed by residents through the planning process is that residents are not aware of or connected with the many resources that exist. This is, in part, because it’s hard to filter through the messages and materials that reach residents, and in part, due to the COVID-19 pandemic which has made it difficult for the community to come together in a physical gathering space. Partners should work with Community Ambassadors to offer feedback on communication and materials before they are shared with residents to ensure that language and messaging is culturally competent and relevant.
Increase cross-collaboration events and activities amongst service providers based on topics that are of interest to community members and directly respond to needs identified through the Choice Neighborhood needs assessment survey. As part of the needs assessment survey, residents were asked about their interest in follow-up services to help navigate their needs. Within the early follow-up, about 17 households participated and had needs met (the greatest area of need at the time was access to better food and meals). HACP, neighborhood groups, and partners should continue to monitor and track those connections and consider establishing monthly resource meetings (inperson, virtual and recorded) and/or a monthly resource newsletter specific to the Choice Neighborhood. Outreach like this needs to continue and expand, so that residents can get the resources they need.
Invest in streetscape improvements, public spaces, and infrastructure to work towards a more livable, safe neighborhood for residents.
Increase or replace lighting in areas that are extremely dark but utilized throughout neighborhood like bus routes, greenways, and areas with open spaces/amenities with “dark-sky” friendly LED lighting.
Residents stressed the importance for safety and consistent lighting standards along bus routes and in public spaces like parks. Work with the City of Pittsburgh and DOMI to ensure that new LED lighting will be installed along key corridors (e.g. N. Charles St., Brighton Rd. and California Ave.) and key amenity areas where current lighting is limited. Students and bus riders are often walking these streets in the dark for much of the year.
After passing the nation’s first citywide dark-sky approved outdoor lighting guidelines to overhaul street lights with energy-efficient LED lighting, the City budgeted $16 million for streetlight replacement to improve safety and reduce negative impacts of outdoor lighting on plants, insects, and other wildlife.
Work with City of Pittsburgh & DOMI to clear away overgrowth, particularly below streetlights and along pedestrian corridors.
Existing green spaces that are neglected can be improved as functioning greenways, providing the many benefits of an urban forest, including enhanced stormwater management and outdoor recreation, while serving to connect the Choice Neighborhood and having a positive impact on healthy living for neighborhood and Allegheny Dwellings residents.
Prioritize replacement and maintenance of needed stairs and sidewalk repairs particularly in locations near schools, bus routes, and retail services.
Create a neighborhood-wide coalition to monitor areas that are unsafe and work directly with the City of Pittsburgh, DOMI, and the Department of City Planning to implement repairs focusing first on high-use areas. Step repairs are needed in key locations, including: City steps from Brighton Rd. and Ferris St. (bus stop) to Izora St.; The Citywide Steps Assessment found that even smaller projects - like clearing away weeds and trash - can go a long way in improving experience. Neighborhood groups should continue to organize clean-up days and community events to celebrate and support improvements.
The mural will be located on the side of a privatelyowned home visible when traveling down Perrysville Ave. The community has stated that they would like to enjoy a mural in this location. A process of community engagement is being planned to determine draft ideas and the final project.
The intersection of Brighton Rd., California Ave., and Brighton Pl. is the entryway and the heart of the California-Kirkbride community. Historically, community members have gathered here to learn about upcoming community events and connect with their neighbors. This is the site of the seasonal produce market and home to annual community celebrations.
Fineview Park it is relatively new, however there is no signage for it. Residents would like to construct a new sign and also add art onto the fence on the perimeter of the park, making it more kid- and family-friendly.
In an effort to reactivate open spaces in the neighborhood with health/wellness initiatives, the creation of a new trail near Fineview Park through Edenvale St., Warren St., and Catoma St. will help better connect the neighborhood while providing residents with a new area where they can walk and carry on activities, as well as connecting the existing open spaces.
Fineview Overlook is an important landmark in the community, and its highly utilized by its members. The site has some of the best views of downtown Pittsburgh and it is a historical landmark as the site of the first curved incline in the country. Residents would like to see signage displaying the history of the Overlook and the neighborhood.
Historically, the Carrie Street Sculpture is an attraction for the neighbors of Fineview who enjoy the fitness trails and outdoor attractions of the neighborhood. The community has lacked the necessary resources to maintain the sculpture. The revitalization of this neighborhood icon will encourage and excite the community.
Actions that will improve and add to the existing open spaces in the Choice Neighborhood for a healthy, active livingAllegheny Dwellings residents with young children would like to reclaim the play area in their community. To improve the safety of this area, the playground will be resurfaced, seating areas will be included for parents to use while their children play, and trash receptacles will be added. This project also provides the opportunity to include a small garden area for community members.
The Letsche Street community at Allegheny Dwellings has requested a gathering area for its residents at the entryway intersection of Federal Street and Mercy Street leading into Letsche Street. This gathering area may include a pre-built gazebo structure and seating area.
It is important that the structure is able to be relocated depending on the finalized redevelopment plans for Allegheny Dwellings. To connect this area with Belleau playspace, ground planter boxes will be included.
The California Avenue parklet is highly used by community members as well as residents from other neighborhoods. This playground is on a main road through the community and attracts people by being bright and colorful. The playground needs additional maintenance and repairs, including replacing some of the wooden play structures. There is also no fencing present which poses a safety risk for children.
Fowler Park is a frequently used playground by the entire Choice Neighborhood community. To improve the area, this Early Action Activity will include seating areas to provide residents with a distinguished gathering area, and trash receptacles to tackle the litter issue.
Ballfield Farm has the unique opportunity to engage community members in urban farming while also addressing the issue of lack of access to fresh produce. Assembly and installation of picnic tables, solar panels, native plants such as perennials, and the installation of port-a-potty will help volunteers make a call to action to community members.
The Cross-Strauss parklet in the Charles Street Valley neighborhood is an important site that is widely utilized by community members. However, it is in need of improvements including the revitalization of the basketball court, creating a seating area for families, improving the play structure and fencing, and installing trees and shrubs.
Implement new street design standards with redevelopment at Allegheny Dwellings at Federal St., Mercy St., and Belleau St. that provide enhanced connections, allow safe walking and driving access, and improve the neighborhood street network.
Residents have stated throughout the planning process that pedestrian access is a significant challenge given the topography and current street design. Existing switchbacks and narrow streets make travel on Letsche St. and Belleau St. dangerous for buses and emergency vehicles. Improvements to key pedestrian connections should include new sidewalks, safe crossings, traffic calming measures, signage, and public art.
A Traffic Calming/Crosswalk at Federal St. and Perrysville Ave.: A mid-block crossing and traffic calming measures on Federal St. will help Fineview residents cross Federal St. in a safe manner to the bus stops located at Perrysville Ave. Traffic data, including speed and volume, will determine the traffic-calming measures to be included in this intersection.
B
Letsche St./Belleau St. widening: Existing switchbacks and narrow streets make access difficult, not only for vehicles but also pedestrians living in the area. Partners should explore options for widening this intersection, repairing and completing sidewalks, and include crossings and traffic signs.
C D
Belleau St./Belleau Dr. intersection: The entry into the main Allegheny Dwellings "Town Green" will transition from two-way traffic to a one-way loop, and includes crosswalks and narrower streets to slow traffic and promote walkability. On-street parking will not be permitted, but it is recommended to include a loading zone that does not interrupt traffic or walk patterns.
Belleau Dr. Loop: The proposal shows a one-way in and one-way out loop around a new "Town Green" plaza, eliminating the existing dead-end street.
Throughout: Partners should repair and install important sidewalk and step connections; add as many crosswalks as possible and needed to help residents connect across the Fineview neighborhood to existing bus and pedestrian routes.
* Additional studies in and around Allegheny Dwellings will be required before the Plan moves into implementation, including further analysis of parking and circulation and review and approval of public street improvements by DOMI.
*Further engineering and traffic studies will be needed to determine feasibility of recommendations
Promote hands-on, community-based activities with strategies to infill vacant lots (e.g., clean-up events, urban gardens, activate temporary community spaces, native plant/bird habitats).
Look for opportunities to increase community/urban food access through reuse of vacant lots, providing stewardship of land and opportunity to improve community food access. The Department of City Planning's Adopt-A-Lot program allows resident use of City-owned vacant lots for urban farms, wildflower planting, or rain gardens/ green infrastructure improvements. In addition, the URA's LandCare program engages small businesses and community organizations to maintain several hundred URA-owned lots across the city. This program incorporates technology, community engagement, and business/ workforce development. Lots are maintained on a monthly basis.
What have we heard?
What are the desired amenities neighborhood residents would like to see?
Vacant lots well-taken care of #2
Community/ Rec center #1
Steps conditions and safer access #3
The Vacant Lot Toolkit is a comprehensive overview of the goals, policies, processes, procedures, and guidelines for transforming vacant, blighted lots into temporary edible, flower, and rain gardens.
Residents of the City of Pittsburgh can refer to this toolkit when thinking about creating a vacant lot project on city-owned land, and will find it useful throughout the process. The toolkit can also be a resource for projects on other publicly- and privately-owned land throughout the city.
Fineview Garden is a volunteer-run garden on Carrie Street in Fineview. Residents can rent a plot for $15 for the growing season. Weekly workdays are held with tools provided onsite. The Ballfield Farm (BFF) community is a neighborhood project collectively growing organic food near the corner of Danbury and Crispen Streets in the Perry Hilltop. Membership starts at $15 for an individual and $30 for a family for the entire growing season. Ballfield Farm is open three days per week, including evening and weekend hours.
In addition, Northside Food Pantry Advisors is looking to establish one or two new outdoor markets, and Ballfield Farm is a potential site being considered. Additional resources and volunteers should be deployed to bolster these efforts.
United Somali Bantu of Greater Pittsburgh has established a community garden in Charles Street Valley, and has sold their produce to the community in the past. Through expansion of community gardens and connecting residents with fresh produce, additional support should be provided so this can happen on a more frequent and regular basis in the future.
Work with URA to catalyze investment in the commercial district at Perrysville Ave. and N. Charles St. through facade improvements, attraction and support for Black-owned business catering to families, and streetscape/public realm improvements.
The first phase of housing redevelopment is anticipated to occur at N. Charles St. and Perrysville Ave. within the URA Avenues of Hope program. Within this district, opportunities for commercial facade improvement and infill development exist. Stacked townhomes with ground floor retail or live-work units are proposed for city-owned lots along the corridor.
Lighting, more "eyes on the street," pedestrian activities, and streetscape improvements are needed to create a stronger gateway and take advantage of new affordable and mixed-income housing, access to the soon to be revitalized Fowler Park, and improved transit service. A planned community space is anticipated for the new multifamily building on Elzey St., which will allow residents access to services and needed amenities. Several AfricanAmerican entrepreneurs already own property and are working on developing within the district - including a new spaces for childcare and restaurants.
“This area needs the most attention, there is much potential in this community to develop it into a great place for families with the potential to increase economic improvement through jobs, and security by offering something FRESH, NEWLY improved, and appealing. It’s a thoroughfare with easy access to connecting communities (McKnight Rd., East St., Federal St., Brighton Rd., N. Charles St.) ... with the funding sources in place we can begin to rebuild the desolate, undeserved, blighted Black communities again. - URA Avenues of Hope 2022 Draft Report
N Charles St & Perrysville Ave, Avenues of Hope Investment area Google Earth N Charles St & Perrysville Ave, Avenues of Hope Investment area Google EarthCreated via local ordinances in 2014, URA integrated the Pittsburgh Land Bank (PLB) as an affiliate entity and is working with limited funds with a goal of returning 30,000 distressed parcels to the private ownership. There are currently about 27 properties within the Choice Neighborhood owned by URA on the PLB inventory. The majority of these are vacant land, and two of them listed as vacant structures. Coordination between City, County, School Board, and State legislation has impeded implementation of a streamlined process for land transfer through progress has been made with removing tax liens. There is new leadership at the Land Bank, and with funding from the American Recovery Act, it is poised to become a very powerful tool and effective entity for land acquisition in the near future.
The Avenues of Hope Initiative is a URA-led model for rebuilding Pittsburgh’s Black main streets. Overall, the program goals are to support Black ownership, centers of arts and culture, mixed-use and transit friendly environments, and access to education and health care. Grant funding for up to $12,000 for facade improvements is available (up to 25% can be used for interior improvements and 50% for ADA improvements). Residents would like to see: full-service restaurants, coffee shops, arts & entertainment, take-out, and a pharmacy. Several Black-owned businesses are currently in concept stage.
Reactivate open spaces, greenways, and parks in the neighborhood with health/wellness initiatives and community amenities that will help build shared connections and a sense of community belonging for residents.
Strategy 3.1
Expand community and recreational programming at parks and refresh local parks with amenities and public art at Fowler Park and Pool, Cross-Strauss Parklet, and California Avenue playground.
What have we heard?
Programs children would be interested in:
Music and dance #2
Arts and crafts #1
Homework help #3
+80% of residents enjoy physical activities that involve having a sense of community.
Partners should create new, welcoming community spaces that serve as meeting places, small group and event spaces, and gardens for relaxing outdoors (e.g., community space across from Propel School). Recent park improvements at Fineview Park show the level of community impact parks bring to the neighborhood. Far beyond places to play, successful parks build community and create opportunities for connection. Recreational facilities and programs are major features of the Fowler Park Master Plan, which is set to be implemented in the coming years.
In addition, HACP is re-opening a computer lab and considering opening their wellness center (closed during COVID-19), which will provide space for boxing as well as other positive youth and adult programming.
Draft
Include a variety of open spaces for recreation, views, connections, and community gathering onto the existing site as part of the redevelopment.
A new “Town Green” within the redeveloped Allegheny Dwellings that provides opportunities for seating, play spaces, events, pop-ups with resource providers, and community days will be developed. Integrate accessible connections, trails, areas for picnic, recreation, and taking in the views.
The central "Town Green" at Allegheny Dwellings is a small hardscaped plaza at the heart of the new housing development, comprised of three smaller zones for community gathering. Each of these zones will be designed with slightly different character, but each will create an outdoor space for neighbors to meet and relate. At the southern end of the plaza a small playground anchors the Town Green and creates a focal point for the community to engage with the neighborhood's youth.
The entire plaza is designed as a subtle trapezoid to frame the site's spectacular views to Downtown Pittsburgh and beyond. Belleau Dr. will be reconstructed as a oneway loop to minimize traffic and reserve space for the community gathering in the middle. Tree canopy, landscaping, and furnishings line the Town Green, and the housing on either side will keep eyes on the public space to help alleviate safety concerns.
South of the Town Green, a larger plaza in front of the anchoring multi-family building acts as a space for larger festivals, accommodating food trucks and other activities and leading to the community overlook. Pathways connect from the larger neighborhood into the Town Green at several key points, improving overall connections with the surrounding context.
Strategy 3.3
Explore possibilities for indoor/outdoor amenities that could host a range of activities for after school: arts, cultural, cooking, dance programming and recreational activities.
Partners should promote physical activities and programs for families and children that promote a healthy lifestyle and a sense of community. These can include running clubs, nature and greenway exploration, community/ school garden partnerships.
The proposed Greenway Loops (above) range from 0.5 to over 1 mile, with options for residents to connect to the Northside trail system for further activity.
Housing investment area
Parcels designated for greenway
New greenway connector street improvements
Neighborhood trail
Proposed neighborhood trail
Existing amenities in the greenways
New activities in the greenways
Throughout the process, Allegheny Dwellings and neighborhood residents have expressed their desire to bring the greenways to life for the community's use as an active outdoor space:
"Activities related to nature for children"
"More street lights near Fineview trail"
"Adult stress relieving activities"
"Would like walking trails!"
"Would like to see more street lights!"
"Plantings and outdoor activities for children"
" Picnic areas"
"Activities for teens"
"Bike and walking trails"
"Climbing wall and slides taking advantage of the slopes!"
"Clean-up and maintenance of the greenways"
"Trails and mile markers"
Prioritize the maintenance and community use of the greenway network through partnership with the City’s Greenway Park program.
Expand the trail network and connect neighborhoods through city-supported greenways, including the existing link from Allegheny Dwellings to Fineview Park. Increase visibility and sense of neighborhood ownership of open spaces and greenways. Include Scenic Pittsburgh, Landforce, Grounded, Grow Pittsburgh, Allegheny Goatscape, and Allegheny Cleanways in partnership.
Since the 1980s, the City of Pittsburgh has designated conservation areas along steep abandoned hillsides and non-buildable slopes, and completed the Greenways for Pittsburgh 2.0 Plan (2013) with goals to expand the system and developing hiking/mountain biking trails. Given the challenges of maintaining proper funding for land conservation and recreational upkeep, in 2020 the Pittsburgh Greenways Partnership Program was created using the Hazelwood Greenway as a pilot program, focused on improving social equity and climate resilience in partnership with funded community maintenance. The partnership led to additional funding of $430,000 to expand restoration efforts that are currently in progress.
Greenways for Pittsburgh is a program of the City of Pittsburgh that helps communities designate and steward the City's greenways to become neighborhood and city assets.
The designation of greenways aims to promote social equity by improving access to green space and passive recreation while helping communities grow; connecting neighborhoods through pedestrian and bicycle networks and stitching together parks and open spaces; providing quality green space and preserving cultural and historic assets; protecting habitats, improving air quality, managing stormwater, reducing heat island and improving human health and improving property values and opportunities for workforce development.
The proposed Harlen Avenue Greenway located within the Charles Street Valley consists of a walking trail/loop, lighting and landscaping improvements complementing new development.
Social equity in Pittsburgh's greenway system for accessible, inclusive open spaces
Implement a community-based, preventative safety model that develops strong partnerships between residents, community partners, and police.
Strategy 4.1
Implement a “walk to school program” or “walk to the bus stop program” where parents can be engaged to make sure children are safe.
Safe Routes to School is a national program with a mission to increase the number of students safely walking and biking to school. The Pittsburgh program provides skill-building and safety education for students, group activities to get students and parents moving together through engagement, education, and engineering and traffic calming around key paths to schools.
Allegheny Dwellings, 2017 to date
-38% -45% -64% -64% -58%
crime reports
the need for arrest
robberies
theft
Collective decrease in crime at Allegheny Dwellings, through increased advocacy, coordination with the Pittsburgh Police & safety/ lighting improvements on site
Create regular forums for Q&A sessions with police and residents so they can express their concerns and look for possible solutions together.
As in many neighborhoods, residents and law enforcement in the Choice Neighborhood have both voiced some distrust. By creating regular forums we can build relationships and trust between all parties. Partners should explore the possibility of a partnership with Northside Public Safety Committee, who recently hosted a "Cops and Conversations" event.
In 2022, BikePGH, PennDOT, and local communities at Pittsburgh Arsenal, Pittsburgh Faison, and Pittsburgh King participated in the local Safe Routes to School Safety Week. They shared safety tips on the importance of staying safe while walking, bicycling, and riding a school bus.
Establish
Block captains can give neighbors the confidence they need to be stronger, more intentional leaders, and caretakers on their block. They look out for their neighbors and if they witness someone in danger they physically step in or call for help. Additionally, they can share information about youth programs and other services.
What have we heard?
Allegheny Dwellings residents top 3 safety concerns:
Drug activity #2
Gang activity/ gun violence #1
Domestic violence #3
Community meeting @ Allegheny Dwellings, May 2022 Community Meeting Photographera network of block captains to encourage the community to look out for one another and intervene in situations where there are concerns using a preventative safety model.
Positive youth programs exist: The Pittsburgh Project, Urban Impact, Sarah Heinz House, and Youth Places. However, space can be limited and transportation can also be a barrier. During the pandemic, opportunities were further restricted. We need to increase access to the opportunities that exist and create additional ones so youth can thrive.
!Community agrees: They want to help make the Choice Neighborhood a safer place
64% of Allegheny Dwellings residents do not think it is safe for children to walk to and from school.
60% of Allegheny Dwellings residents do not think it is safe for children to play outside.
Community Meeting @ Allegheny Dwellings, May 2022Build collective efficacy– the combination of mutual trust and social ties in a neighborhood along with the willingness of neighbors to intervene to address neighborhood problems for the sake of the common good (e.g., raise awareness and foster conversations around drug and violence issues and solutions).
Fineview and Perry Hilltop Citizens Councils partnered with the University of Pittsburgh School of Social Work to implement a Violence Prevention Pilot Project. After forming a Community Advisory Board, the group named the initiative Pathways to Community Safety, Healing, and Wellness. The Community Advisory Board created a Community Survey, which was distributed widely. Then, the initiative had more than 20 young people participate with adults in a 7-week training. The training culminated in the identification of a community improvement project. The group decided to improve Fowler Park basketball court and host a community BBQ.
In addition, Northside Partnership Project has been hosting conversations with youth and community leaders on solutions to gun violence. More collaboration is needed to address safety issues locally in connection with larger partners like Moms Demand Action, BPEP, and CeaseFirePA.
Throughout the process, Community Ambassadors have been working to get educated in the Choice Neighborhood planning process and engage their community significantly for the well-being of all Allegheny Dwellings residents.
Through conversations with their peers and community members, residents have expressed their concerns and Community Ambassadors have started a Public Safety Program that was introduced at the October 2022 Allegheny Dwellings Community Meeting. Ambassadors set up a station about public safety, and this is what they heard:
How can you keep your community safe?
"I spend time on the porch so it feels like there are folks around"
"Stick together instead of arguing with one another!"
"Engage the kids more by role models like constables"
How can the community come together to help?
"A community center would help us come together"
"By working together!"
"Organize more events!"
Who else needs to help to keep the community safe?
"Neighbors keep neighbors safe, first and foremost!"
" The people"
"Folks out on the sidewalk, with their kids at the playground, keeping eyes on the street"
"Constables are important"
Increase
Offer digital literacy classes in the community.
In 2017, HACP launched the ConnectHomePGH with HUD and the City of Pittsburgh with a focus on access and literacy. With the onset of the COVID-19 pandemic, disparities became even more pressing. Additional grants and programs allowed residents at Allegheny Dwellings to access tablets, WiFi, and digital literacy classes, including training for Zoom meeting applications. Digital literacy remains a priority for the entire neighborhood. Several organizations are working in this space, including Literacy Pittsburgh.
Partner with internet providers to provide free internet to residents in the Choice Neighborhood with the understanding that WiFi is a basic necessity.
What have we heard?
The COVID-19 pandemic exacerbated the need for access to reliable and fast WiFi service. Communities with highspeed, high-quality internet access were able to transition to telework and remote schooling, while those without access were at an immediate disadvantage. At least one service provider in the Pittsburgh region offers reduced and no-cost internet connectivity for income-qualifying households. For example, the Comcast Affordable Connectivity Program (ACP) offers a $30 credit towards a household WiFi subscription which can be used toward any service including the $30 Internet Essentials package for qualifying households. Partners should continue to support residents by providing information on how to get connected easily and with minimal cost. They should also explore possibility of adding a cellular service tower at The Pittsburgh Project to deal with the dead zone that exists in this area.
the number of households that have reliable, affordable internet access and cellular service at home and ensure that residents are digitally literate.
Create outdoor, public WiFi hubs where community members can utilize charging stations and free WiFi and install extenders/technology to enhance the wireless signal in neighborhood areas with dense tree coverage.
Universal internet access is essential for education and employment, however, poor internet infrastructure remains a barrier for places like the Choice Neighborhood. Given the reliance on internet access to be able to participate in remote learning and work from home, this is a major concern for residents. Public WiFi hotspots are a potential solution for ensuring access to high-speed service, however they have to be located abundantly enough to allow equitable access. These are citywide issues, as a study of internet access vulnerability in Pittsburgh published by Carnegie Mellon University found that only 60% of employed persons and residents in Pittsburgh are within 45 minutes walking distance of existing public WiFi spots. Potential future locations for public WiFi include parks and community serving centers (e.g., The Pittsburgh Project). Comcast provides WiFi hubs in various public housing communities and other community sites. Expansion to a redeveloped site is something that should be explored.
IN THIS SECTION:
Getting Ready for Plan Implementation
People Action Table
Housing Action Table
Neighborhood Action Table
A first Draft Plan (the Outline with Content) was developed in June 2022, with feedback and ideas generated from a series of Task Force meetings held monthly and bi-monthly between January and May 2022. In addition, the planning team hosted several community walking tours, small neighborhood popups, an HACP-led tour of revitalized housing in three Pittsburgh communities. The planning team also participated in neighborhood meetings for broader outreach.
Over the summer of 2022, the Housing Task Force Co-Chairs (HACP and TREK Development) and the planning coordinator continued to work with residents and neighborhood groups to identify additional off-site locations for housing. Development of the Housing Plan was not an easy lift as many publicly owned sites within the Northside and the Allegheny Dwellings planning area have steep slopes and inclines, posing challenges for access, transportation, and development. Through the planning process and beyond, the planning team (including FCC, HACP, and TREK Development) is committed to working together with residents, neighborhood groups, the City of Pittsburgh and URA to achieve the redevelopment of Allegheny Dwellings into a mixed-income, mixed-use, connected community. Strategic acquisition to provide the best redevelopment strategy will continue to happen even after this Plan is submitted.
Over the two-year planning process, the core planning team has been deeply involved in the planning process and development of the Plan and will continue to be champions and organizers of its implementation. HACP and the City of Pittsburgh will lead the Plan's implementation along with key partners including the Allegheny Dwellings Tenant Council, Allegheny Dwellings Community Ambassadors, Trek Development Group, Fineview Citizens Council, and the URA of Pittsburgh.
The capacity of HACP and the City of Pittsburgh to lead a Choice Neighborhoods Transformation Planning Process has been demonstrated previously in their collaboration in the Larimer/East Liberty neighborhood and in Bedford Choice Neighborhoods.
The Housing Plan implementation will be led by HACP and TREK Development. The critical Neighborhood Plan improvements will be shepherded by Urban Redevelopment Authority (URA), Department of Mobility and Infrastructure (DOMI), and Pittsburgh Regional Transit with input and oversight from the Mayor’s Office, Department of City Planning, and the engagement of the citizen and neighborhood group partners: Fineview Citizens Council, Perry Hilltop Citizens Council, Charles Street Area Council, and the California-Kirkbride Neighbors.
The implementation of the People Plan includes many partners engaged through this process, such as HACP, Allegheny County DHS, the Buhl Foundation, TREK Development, A+ Schools, the neighborhood groups, advocacy organizations, and foundations.
Through this planning process, Allegheny County DHS emerged as the People Plan lead for implementation. In this role, DHS will procure services and establish contracts with community-based partner(s) to deliver case management and supportive services; meet regularly and consult on demand with communitybased partner(s) to ensure residents' needs are being met; support data collection by community-based partners and data integration with Allegheny County data warehouse; and work in partnership with HACP and community-based partners to meet all Choice Neighborhoods-related deliverables, including data and narrative reporting.
In addition, DHS will be responsible for the budget and outcomes associated with the People Plan. Management of the goals and strategies related to education, employment, health will be determined with additional input from the partners.
HACP’s Resident Self-Sufficiency (RSS) will provide a lead role in the Resident Relocation plan through its commitment to one-for one replacement of all public housing units to be demolished at Allegheny Dwellings and to ensure that re-occupancy of replacement units is carried out with minimal disruption for returning households.
Pittsburgh Choice Neighborhood Transformation
Plans have had tremendous success in impacting the neighborhoods where they are located. In the implementation of the Larimer/East Liberty Choice Neighborhoods Plan, the latest phase of development will bring more mixed-income housing to the neighborhood and renovate the former Larimer School, a historic community center that was vacant for four
decades. Liberty Green Park is another success story that came to fruition through the community's focused efforts on rebuilding a sustainable neighborhood with affordable housing and active, green spaces. The planning team and partners working together to develop the Allegheny Dwellings Choice Neighborhood Plan are optimistic and excited about the potential for change.
The charge will be to continue to build on the momentum we’ve catalyzed over the last two years, keep resident voices at the table, build on the success of the Community Ambassador program and its leaders, and celebrate the success of the planning process and early actions, as well as the longer-term strategies that will bring the most positive impact to the Allegheny Dwellings residents and the four neighborhoods engaged in the planning process.
As part of the Housing Plan due diligence over the spring and summer of 2022, TREK Development commissioned geotechnical sampling and site surveys at the Lanark Street site and Allegheny Dwellings Gateway to provide more information related to soil and water conditions for new buildings. The results of the geotechnical analysis found the site to be suitable for a multi-family building with additional costs associated with construction and site preparation. DOMI provided feedback and initial recommendations for streets and transportation mobility improvements as part of the planning process. Additional engineering analysis of traffic, circulation, parking, and transit improvements will be needed as the plan moves into implementation.
HACP, the Allegheny Dwellings Tenant Council, the City of Pittsburgh, and the URA, in partnership with community stakeholders, are committed to identifying and leveraging the resources necessary to make this Transformation Plan’s housing strategy a reality. To assist with implementing the replacement housing strategy for Allegheny Dwellings, HACP has procured TREK Development Group, Inc., a distinguished real estate development firm specializing in building innovative and sustainable communities within the Pittsburgh region. Since 1991, TREK has developed over 74 housing projects with more than 3,000 units, most of which included a component of affordability. TREK Development led the successful transformation of Phase 1 of the Allegheny Dwellings redevelopment with Sandstone Quarry, with 65 units of mixed-income housing.
Pittsburgh has experienced continued economic growth in recent years and for a formerly-affordable city like Pittsburgh, these sudden spikes in market values have started to cause displacement for lowerincome communities that are not able to keep up. Pittsburgh’s recent comprehensive planning efforts (Forging PGH) are focused on leveling out these peaks and valleys in market value, with a focus on equitable distribution and community benefits, but the risks of further displacement are real.
The residentia primary maket area for the Choice Neighborhood includes the three zip codes that make up Pittsburgh’s Northside: 15212, 15214, and 15233. The population of the Primary Market Area (PMA) and the
City of Pittsburgh as a whole are expected to grow over the next five years, and that growth will increase demand for new or substantially-renovated housing units.
The Allegheny Dwellings residential market analysis states that there are 25,590 housing units within the PMA, of which 18% are vacant. Of the occupied units, 53% are owner-occupied and 47% are renteroccupied. The market analysis further identified 972 existing income-restricted PMA units for family/general occupancy and another 324 incomerestricted units in the PMA development pipeline, all part of the major Northside Residences rehabilitation initiative undertaken by Northside Associates/ Mistick Construction.
The rental apartment market in the Pittsburgh metro area overall is very tight. REIS reports that the Q2 2022 metro area rental vacancy rate was 3.8%, lower than the national average vacancy level of 4.5%. The Pittsburgh metro Q2 vacancy rate declined from 4.5% in Q2 2021. With available units in short supply, metro area average Q2 rents have increased 16.7% yearover-year (matching the national Q2 year-over-year rent growth rate). Throughout the metro area, spiking rents and the decline in rental housing affordability are challenges for households at most income levels. Low- and moderate-income households—with relatively lower levels of discretionary income—are disproportionately affected, particularly now that consumer prices for many goods and services are rising due to inflation.
An estimated 48% of all renter households within the Northside PMA had incomes below 60% AMI in 2022. These households are the primary target for income-restricted affordable rental housing. The
current supply of affordable units for families/general occupancy is inadequate to meet the demand in the lowest AMI band.
The income-restricted inventory serves approximately 38% of income-eligible households. Given the mismatch between income-eligible households and the supply of affordable housing, it is not surprising that the 2015-2019 ACS data show that an estimated 2,248 PMA renter households (22.5% of all renter households) are severely cost-burdened, paying over 50% of income for rent and utilities.
The analysis of supply and demand conditions impacting a housing strategy in the Allegheny Dwellings Choice Neighborhood finds sufficient demand to support a five-year Choice Neighborhood housing development program of up to 350 rental units, including new construction and, where financially feasible, substantial rehabilitation of older residential units. The analysis, along with community input, suggests development potential for a limited affordable homeownership development component in the housing strategy in addition to the rental development program.
To successfully implement multiple phases of mixedincome replacement housing, the real estate financing capital stack will include numerous sources in each phase. Below are financing sources that may be used in combination with one another to implement the Plan.
Cutler St & Wilson Ave WRT22.5% of all renter households are severely cost-burdened, paying over 50% of income for rent and utilities.
The federal Low Income Housing Tax Credit (LIHTC) program will be the primary funding source for the affordable multi-family housing proposed. The Pennsylvania Housing Finance Agency (PHFA) administers the Commonwealth’s allocation of Federal 4% and 9% Low Income Housing Tax Credits (LIHTC) and complies with an annual Qualified Allocation Plan (QAP) that outlines PHFA’s programs, the agency’s process for underwriting development projects and awarding tax credits and its ongoing requirements and compliance. Presently, PHFA has one application period for 9% LIHTC annually with a submission deadline that fluctuates from year to year. PHFA accepts 4% LIHTC requests through June of the year a project is anticipated to close on its construction financing. PHFA has the ability to issue the Volume Cap Bonds that are used in conjunction with 4% LIHTC credits. The 9% LIHTC awards are highly competitive and are generally awarded by PHFA to projects that clearly align with community goals for greater impact.
A new Pennsylvania Housing Tax Credit (PHTC) program was signed into law in 2020 by the Commonwealth of Pennsylvania. Like the federal LIHTC program, the PHTC is administered by Pennsylvania Housing Finance Agency (PHFA). Applications are submitted to PHFA concurrently with the federal LIHTC application. Projects are able to receive a maximum of $1.5 million in tax credits. The PHTC has a five-year credit period with the total credit allocation being claimed in an amount not to exceed 20% for each year during the credit period.
Pittsburgh Urban Initiatives (PUI), an affiliate of the Urban Redevelopment Authority of Pittsburgh (URA), catalyzes investments in low-income neighborhoods by applying for and facilitating New Markets Tax Credits. The New Markets Tax Credit Program (NMTC Program) was established by Congress in 2000 to help bring operating businesses and/or real estate investments into low-income neighborhoods. The NMTC Program attracts investment capital to these communities by permitting individual and corporate investors to receive a tax credit against their federal income tax return in exchange for making equity investments in specialized financial institutions called Community Development Entities (CDEs). Because the NMTC Program funds commercial real estate, this source is suited for mixed-use developments.
PHFA’s CRFP program provides financing for the construction or rehabilitation of projects providing affordable housing in commercial corridors in Pennsylvania. This financing helps to bridge the gap that exists between traditional housing programs and commercial lending. Funding is available for mixeduse projects that are consistent with a well-defined community development or revitalization plan such as the Perrysville Avenue – Avenue of Hope Initiative.
Though housing developments which contain all affordable rental units have little cash flow after operating expenses are paid to support amortizing debt, the market rate units in mixed-finance developments provide income that can support a small piece of such debt. The amortizing loan can be a conventional mortgage, which is provided by a private lending institution, or an FHA or HUD-mortgage program such as the 221d4 loan that is insured by the Federal Housing Administration.
Pennsylvania Housing Affordability and Rehabilitation Enhancement Fund (PHARE)
PHFA offers a 0% interest, pool of gap financing under the heading of PHARE that requires that a percentage of the funds assist low-income households. PHARE’s Realty Transfer Tax (RTT) fund may only be utilized with 4% LIHTC projects and must benefit households earning below 50% of the area median income. PHARE serves as a pass through for National Housing Trust Fund dollars - providing grants that benefit households earning below 30% of the area median income. These competitive funds are typically awarded once a year with an application schedule that coordinates with PHFA’s 9% LIHTC application round. Developers can apply for funds for LIHTC projects or other affordable housing developments.
The City of Pittsburgh’s Housing Opportunity Fund (HOF) is a local housing trust fund that “aims to increase and preserve the supply of decent, safe, and sanitary affordable housing for low-income households”.
The HOF is administered by the Urban Redevelopment Authority (URA) and funded by the City of Pittsburgh with $10 million annual commitment through 2029.
The annual allocation includes funding for the Rental Gap Program (RGP) which provides 0% loans to developers for the creation and preservation of affordable rental housing in addition to other affordable housing resources (e.g. homebuyer assistance).
HACP’s PBV/Gap Financing program provides project-based operating subsidy and last resort development financing for Owners/Developers to develop, rehabilitate and/or preserve affordable rental units throughout the city. HACP founded the PBV/ Gap Financing program to address specific housing needs. The first is the need to expand the availability of housing to low income families in the city. The second is the need to provide these same families access to quality housing, which they can feel safe in and be proud of. Eligible uses of these funds are the development, rehabilitation and/or preservation of affordable, quality housing in the City of Pittsburgh.
An initiative of the City of Pittsburgh and URA, Avenues of Hope focuses on seven major Pittsburgh business corridors, including Perrysville Avenue. Its goal is to invest in existing small businesses and residents, supporting the inclusive growth of the neighborhoods. The URA is working with the City of Pittsburgh to focus on housing investment, workforce connectivity, commercial corridor activation, facade renovations, and other impactful Minority and Women Business Enterprises and small business support. The Avenues of Hope Commercial Real Estate Program provides capital to local and minority small businesses and developers doing business on Hope corridors.
There are four phases of the development plan over the course of nine years. The Plan calls for new housing to be constructed off-site at Perrysville and North Charles Streets as the first phase. This off-site construction (build-first approach) provides for minimal disruption to everyday life for residents during the early phase of redevelopment. Residents who live in existing buildings 1, 4, and 5 (54 housing units) would then be relocated to the first phase of development once complete at Perrysville and North Charles in Year 4.
Phase 2 includes nearby off-site (adjacent) construction at the Federal and Mercy Gateway South with relocation for residents in buildings 2, 3, 6, & 7 in Year 5. The third phase of off-site housing would begin in Year 5 at Lanark Street & Kirkbirde Street and residents of the remaining Buildings 8, 9, 10 & 11 would relocate in Year 7. In Phase 4, the development team would begin and complete redevelopment of on-site housing with a targeted completion in Year 9.
Replacement units/PBV
Non-replacement affordable units
Market rate units
HOUSING REDEVELOPMENT PLAN
Phase 1 - Perrysville Ave & N Charles St
Phase 2A - Federal & Mercy Gateway
Phase 2B - Federal & Mercy Gateway
Phase 3A - Lanark
Phase 3B - Kirkbride
Phase 4A - Belleau Plaza
Phase 4B - Town Green
Phase 1 relocation: 54 units
Phase 2 relocation: 58 units
HACP has implemented multiple large-scale relocations including the Choice Neighborhoods projects of Larimer/East Liberty and has a deep understanding of both the complicated process and the stress that is experienced by residents through the relocation efforts. HACP is also currently working with residents in communities including Bedford Dwellings to plan for and manage future redevelopment.
The Housing Plan calls for the demolition of all the existing 174 units at Allegheny Dwellings. HACP plans to replace every public housing unit, with replacement housing units developed back on-site and off-site in the surrounding community. Every resident will be offered the right to return to a newly-developed unit.
The new units will be built in four phases. The HACP team will have dedicated relocation staff that will work with Allegheny Dwellings families both collectively and individually so that an overall Relocation Plan is finalized with maximum resident involvement and that each individual household has a plan that fully meets its needs. The relocation staff will fully apprise each household of all its replacement housing options and benefits so that they can make informed choices.
In addition, the People Plan has been designed to offer supplemental support to residents through case management, while they grow their personal supports and networks. The People Plan provides opportunities for new areas of growth, while supporting families with young children with their early education needs and out-of-school-time activities (e.g., recreation, summer programming, art, and sports).
Residents of Allegheny Dwellings will be ensured ongoing communication and input into relocation in the following ways:
» To develop the relocation priorities, HACP Resident Services will work with the Allegheny Dwellings Tenant Council and the Allegheny Dwellings Community Ambassadors to form a relocation committee comprised of residents and HACP relocation staff. This committee will serve to develop a shared understanding of the relocation process, requirements, and timeline. This committee will host a special Allegheny Dwellings Community Meeting to inform the broader community about the relocation strategy/timeline and to vote on the recommendation made by the Relocation Committee.
HACP will host resident meetings about Relocation as needed to ensure residents are informed of any changes and to field questions and concerns directly from residents.
» Resident Tracking & Timeline
Understanding the long timeline for this transformation, HACP is committed to a robust communication plan through the redevelopment effort. Beginning prior to the formal 90-day notice, residents will be communicated with in various ways from individual support to community meetings.
To ensure a consistent message, HACP will provide all residents with resources and a FAQ sheet that details the relocation process including right to return, benefits, services and contacts. This will be distributed to residents at HACP information meetings and
will be available at the Allegheny Dwellings Community Centers, RSS Office, and Management Office and will be distributed periodically during resident gatherings.
» For ongoing and regular support, as described in the People Plan, Case Managers will be offered to residents and will be an integral part of the relocation process. Case Managers will complete an in-depth Housing Needs Assessment with each family. The purpose of the assessment is to determine housing and supportive services needs of each family. All Allegheny Dwellings residents will be given access to a HACP Relocation Specialist for information on relocation options, assistance, rules, and procedures and assistance in accessing that assistance, and to counseling through their case managers to assist with personal decisions and the impact of relocation on their families. This assistance will be provided until families return to redeveloped housing or have successfully relocated to other permanent housing. A substantial component of the counseling will focus on helping families understand the importance of achieving self-sufficiency and improving their standard of living. Residents will be provided with appropriate referrals and information and ongoing case management support services designed to help residents become and remain economically independent, ensuring 100% resident success.
To assist in the location of housing, HACP/Case Managers will work collaboratively with each household to provide:
» One-on-one family counseling to review the Relocation process;
» An individualized understanding of the needs and housing preferences of individual families and explain the availability of relocation assistance and services, including eligibility requirements, the procedures for obtaining assistance and services, the amount of replacement housing payment available, the timetable for relocation, and resident’s right to return;
» Advice about comparable housing units potentially available in Pittsburgh, Pennsylvania and in other jurisdictions, and referrals to additional housing options;
» Help with organizing a Relocation kit that includes items required when in search or housing (social security cards for all family members, picture ID birth certificates, etc.) and help with transportation if needed;
» Help in preparing applications and other necessary forms needed to move into a new community if needed;
» Monitoring families as required by the Uniform Relocation Act and all other applicable grant requirements.
Because much of the current provision of care and education for young children is left to the private market in Pennsylvania, beyond subsidies offered based on a given provider’s Keystone STARS (Standards, Training/Professional Development, Assistance, Resources) rating, an agency should be contracted to focus on both coordinating a network of current early childhood providers within a reasonable distance of our Choice Neighborhood to improve their Keystone STARS ranking and therefore increase their subsidies and provide further expertise on lowering costs and expanding capacity. At the same time, a pipeline of families with young children should be developed via a substantial case management arm and physical presence at the Choice Neighborhood Community Resource Centers. In addition, a strategy including training for possible early childhood entrepreneurs and educators should be developed to create an additional pipeline of new providers to the Choice Neighborhood planning area.
As a longer-term goal of redevelopment, an on-site childcare/early education facility should be included within new mixed-use development, which could compliment and expand the impact of a Community Resource Center. There are successful models within the Housing Authority of City of Pittsburgh for on-site childcare facilities that can be replicated, including the highly successful Bedford Hope Center in Pittsburgh’s Hill District. In addition, Jeremiah’s Place in the East Liberty neighborhood offers emergency, 24-hour childcare for children 0-6 in Pittsburgh’s East End, a model that can be explored both for possible on-site and off-site provision of care.
Both private and non-profit providers could be considered as the operator for on-site Allegheny Dwellings early childhood facility, but flexible hours, affordability, etc. should be weighed as primary concerns in contracting.
In every case above, holding slots for a prioritized list of Allegheny Dwellings and Choice Neighborhood planning area residents will be highly important for the intermediary coordinator, and must include important considerations that overlap with following pieces of the overall People Plan. These include special considerations for residents pursuing educational and training programs, those transitioning to new employment, experiencing physical or mental health strain, and more.
Due to the complicated network of independent nonprofits providing the bulk of out-of-school programming, including tutoring programs, resident confusion is unfortunately no surprise. Currently, dozens of programs exist within the larger Northside available to young people, including many at low or no cost to young people or their families. These programs are widely varied from specific tutoring programs based on Perry High School curriculum (Urban Impact Foundation), to screen-printing (Artist Image Resource), to flag football (Manchester Youth Development), and more. This includes many with faith-based components, and many without.
Therefore, HACP’s FSS and partners can help to create a bridge between young people and families with children, and out-of-school time providers and tutoring programs playing a “matchmaking” role. A now-defunct program, ONYX (One Northside Youth eXcel), which convened nearly all Northside providers monthly and worked to facilitate communication and curriculum across providers, should be revived or a similar initiative should be created within the Choice Neighborhood and surrounding areas. Just as with childcare access, special considerations/prioritization should be given to youth and families with identified needs (e.g., academic struggles, behavior issues/ needs, and caregivers unable to be home due to employment, job training, or academic pursuits).
It is likely that not all important out-of-schooltime programs are currently open and available to Allegheny Dwellings and Choice Neighborhood planning area residents. Where desired programs do not exist (e.g., “age appropriate life skills training” that was referenced by Allegheny Dwellings residents), the programs should be created. As such, the intermediary coordinator should be responsible for collecting an initial survey, ongoing recommendations/feedback, and evaluating providers' performance.
The Reimagine Perry partnership will continue to find solutions to increase student attendance through family partnership and creating time for non-attendance, non-case management collaboration (e.g., curriculum coordination, joint field trips, and other positive reinforcement mechanisms) that could be streamlined across partner efforts. These interventions should rely on both available Pittsburgh Public Schools services, and out-of-school providers and tutoring services, as well as mental health and trauma services and more, all based on need.
Many employers work with the Northside North Shore Chamber of Commerce’s NorthsideWorks! Program directly to document their specific vacancies, as well as overall education, training, and employment needs. As part of that program, hundreds of current vacancies have been documented as of summer 2022, yet a structured pipeline of employees into these jobs does not yet exist. A legitimate barrier to some of these opportunities is specific education, training, and certification requirement that many job seekers may not possess, which confirms residents’ suggestions that training and placement programs must be created to broker successful job placement to nearby opportunities. Close coordination with the Housing Authority of the City of Pittsburgh’s existing job placement programming will be a key component of this work.
In the long term, a coordinating intermediary should be contracted to both develop and coordinate a pipeline of resident job seekers within the Choice Neighborhood to serve as the recruitment arm of the NorthsideWorks! Initiative and other employment/training programs. A systematized approach to attacking this training and job placement effort should be employed, including further job seeker surveys and review of available data sets projecting our regional employment needs and training gaps.
Goal 1 - Education. Connect families with safe, affordable, accessible, and educational childcare so that all children enter kindergarten ready to learn, and all youth is proficient in core academic subjects and graduate from high school college- and career-ready.
STRATEGY METRICS LEAD AGENCY & PARTNERS
1.1 Locate an early education center within a new mixed-use development in partnership with an experienced local provider (e.g,. ABK, Project Destiny, Angels Place, Kindercare).
# of available childcare spots increased; # of resident families enrolled
Pittsburgh Public Schools, HACP, A+Schools, local childcare provider, DHS
TIMEFRAME (ST, MT, LT)
FUNDING SOURCES
LT
Public Funds, Foundations
Goal 2 - Education. Promote graduation readiness through increasing access to affordable and quality out-of-school-time programs.
STRATEGY METRICS LEAD AGENCY & PARTNERS TIMEFRAME (ST, MT, LT)
2.1 Increase participation in and take advantage of the existing community spaces in after-school and summer programs (e.g., Northside Partnership, Urban Impact, Pittsburgh Project, Basketball Dreams).
# of target resident students that will be at or above grade level according to state mathematics and English language arts assessments; # of target residents students that will graduate from High School
FUNDING SOURCES
HACP, local programs, neighborhood groups, Pittsburgh Parks & Recreation Dept. Ongoing Community Partners, City of Pittsburgh, Buhl Foundation
2.2 Strengthen existing relationships with principals and social workers at Pittsburgh public feeder schools King and Perry to assist individual families in addressing academic concerns including attendance, behavior, and academic performance of their children.
# of youth connected to educational programs and trainings will increase
HACP, local programs, neighborhood groups, Pittsburgh Parks & Recreation Dept.
LT Community Partners, Reimagine Perry/Buhl Foundation
Goal 3 - Employment. Increase opportunities for community members to earn a living wage and have meaningful work throughout their lives.
3.1 Work with existing partners (e.g., CareerLink - the Workforce Investment Board) and within HACP programs to connect adults without a high school diploma to GED and other training opportunities (e.g., identify available secondary education and vocational trade programs and connect interested individuals to them).
3.2 Partner with workforce development organizations to connect underemployed and unemployed adults to job readiness and job training services, identify and connect job seekers to new opportunities including paid on-the-job training and entrepreneurship programs, connect job-seekers to existing barrier mitigation programs including shortterm childcare and transportation assistance (e.g., Triangle Tech, CareerLink, CCAC, Manchester Bidwell, Goodwill).
3.3 Create entrepreneurship opportunities through increased training, networking, and business start-up support from organizations that provide this education and training (e.g., Riverside Center for Innovation, NorthsideWorks).
% of targeted residents employed increased by 5%
HACP, CareerLink, DHS Ongoing, LT
HACP, CareerLink, Employers, Foundations, Public Funds
Increased annual income by at least $1,200 for the average household
HACP, workforce development organizations
Ongoing, LT
Partners for Work, Public Funds, Foundations
# of new small business or enterprises created over 10 years
Riverside Center for Innovation, NorthsideWorks, URA
Ongoing, LT
Partners for Work, URA, Foundations
Goal 4 - Health. Promote improved quality of life with a holistic health approach; all Allegheny Dwellings residents will have a choice in where they live and have their basic needs met.
4.1 Work with existing local health providers and help residents establish a regular "healthcare home" where they can access consistent care as they age.
4.2 Connect families to existing food access supports such as SNAP and food banks, partner with local businesses and organizations to bring new opportunities for accessing healthy foods such as grocery delivery, farmers markets, and ride shares.
4.3 Identify culturally competent mental health providers in the neighborhood and assist families in navigating barriers to access and connecting to mental health services; offer new and creative opportunities for participation in holistic health practices such as yoga, art, and mindfulness.
4.4 Ensure that residents are aware of how to participate in HACP programs and services including Resident Self-Sufficiency (RSS), Family SelfSufficiency (FSS), and Resident Opportunities and Self- Sufficiency (ROSS) programs.
Increase # of target residents connected with PCP to at least 50% of households
HACP, DHS, Buhl Foundation, healthcare institutions LT
Foundations, Healthcare Providers, Public Funds
Reduce # of households reporting food insecurity by at least 20%
HACP, 412 Food Rescue, Food Bank of Greater Pittsburgh, Northside Pantry Advisors, Just Harvest, Food Trust (Food Bucks Program)
MT
Farmers Market Nutrition Program, PA Senior Food Box Program, SNAP, WIC, City of Pittsburgh Summer Meals
59% of target residents indicate awareness of local behavioral health and wellness services available
HACP, Center for Victims, Pressley Ridge ST
Foundations, Community Organizations
Increase # families enrolled in the HACP FSS program HACP Ongoing, LT HACP
Recommended services for the People plan include four Case Managers and three Liaisons to provide supportive services, case management, and administration for the resident employment, health, and educational services described in the Plan.
Estimated additional staffing costs for the Allegheny Dwellings People strategies equate to approximately $490,000 per year.
Goal 1 - Integrate Allegheny Dwellings into the larger neighborhood and provide community spaces and opportunities for engagement.
1.1 Organize redevelopment of Allegheny Dwellings around community gathering places and connections into larger neighborhood.
Develop units around central plaza and create connections to city streets, eliminate dead-ends
LEAD AGENCY & PARTNERS
TIMEFRAME (ST, MT, LT)
HACP, TREK LT
FUNDING SOURCES
LIHTC, City of Pittsburgh (Streets), HACP, Other Public Sources
1.2 Cluster new housing around potential community hub spaces where resources exist (e.g., around Fineview Park, Fowler Park and the North Charles/Perrysville district, N. Charles at the Cross and Strauss Parklet, the Pittsburgh Project, Wilson Ave., Perrysville Ave., Lanark St., Mercy Street).
Successful housing development of estimated 20+ PBV units, 45+ along Perrysville Ave, 15+ near Fineview Park
HACP, TREK MT, LT
LIHTC, City of Pittsburgh (Streets), HACP
1.3 Continue to sponsor community events that engage residents across the neighborhoods and provide ways to connect.
Increase participation in neighborhood events
HACP, Neighborhood Groups, Allegheny Dwellings Tenant Council, Allegheny Dwellings Community Ambassadors
ST
Foundations, Community Organizations, Corporate Sponsors
1.4 Promote physical activities happening in community spaces, with programming for all ages and abilities.
At Allegheny Dwellings: provide walking access (trails, steps, paths) to newly created open spaces; Partner with CitiParks to advertise and increase participation
HACP, FCC/PHCC, CitiParks MT - LT
Foundations, Community organizations, Pittsburgh CitiParks
Goal 2 - Support residents interested in working towards homeownership and existing homeowners in accessing skills/programs to make improvements in their homes.
2.1 Assist new homeowners through educational programs and share information related to financial and homeowner support programs, including home repairs and upkeep.
10+ homeownership units in CaliforniaKirkbride; supportive service with homeownership experience
TREK, HACP LT PHFA, HACP, Foundations
2.2 Ensure all interested residents have access to current programs (e.g., HACP Homeownership, URA’s Down Payment Assistance and Closing Cost) providing entry to capital, banking/lending partnerships, and credit assistance for closing costs.
Increase participation in HACP’s Homeownership program with a minimum of four new homeowners per year from the Choice Neighborhood planning area
HACP, URA, Neighborhood Groups ST, MT HACP, URA
2.3 Increase awareness and use of the Legal Assistance Program (LAP) for tenants and homeowners.
Communication materials, electronic signage, include as part of meeting announcements
URA, HACP, Neighborhood Groups ST
URA, Community Justice Project, Community Organizations
2.4 Provide local training for residents to gain renovation/repair skills, develop properties, and build wealth locally.
Track participation of Choice
Neighborhood residents
URA, TREK, Neighborhood Groups, CCAC, Triangle Tech ST
CommUnity Pittsburgh, URA, Foundations, Other Public Funds, Corporate Sponsor
Goal 3 - Work towards green, energy efficient models of housing.
3.1 Ensure new housing and renovated housing incorporates model energy-efficiency, indoor air quality, and biophilic and traumainformed design considerations.
3.2 Link neighborhood groups and residents with existing programs to encourage high quality, energyefficient housing rehab and new construction.
Certify all new housing using Enterprise Green Communities; measure LEED ND
TREK, HACP, City of Pittsburgh, URA LT LIHTC, HACP, Other Public Sources
Track participation and increase enrollment in programs by 5-10% per year
URA, Carnegie Mellon, Neighborhood Groups, Action Housing Ongoing, ST Foundations, Other Public Sources
Goal 1. Improve access and ease of mobility to everyday needs, employment, and healthcare by minimizing transportation barriers.
1.1 Improve bus route reliability, as well as the quality and quantity of bus shelters.
Wait times less than 20 mins; later evening and weekend hours
Pittsburgh Regional Transit (PRT), DOMI MT PRT
1.2 Provide diversity in transportation options within the Choice Neighborhood.
Two new routes that cross the Northside and extend directly to Pittsburgh's northern suburbs
DOMI, Bike PGH, Pittsburghers for Public Transit, PRT ST
PRT, Other Public Funds
1.3 Improve immediate connections to/from Allegheny Dwellings into the surrounding neighborhoods, with special attention to safe sidewalks, lighting, visibility, street crossings, paths, and stairs.
1.4 Promote neighborhood-wide monthly programs where residents are hands-on engaged in the beautification of their streetscapes, helping them make the neighborhood more welcoming and safe.
1.5 Increase the use of painted crosswalks and traffic calming measures to improve safety for pedestrians and cyclists, particularly at key bus stop locations (e.g., at Wilson St. & N. Charles St.).
1.6 Participate in and encourage resident involvement in the Pittsburgh Regional Transit’s bus network redesign planning to advocate for and better understand the needs for 24/7 transit services.
Additional sidewalk segments, Improved sidewalks, Increased safe crossings
DOMI, DPW, Duquesne Light, City of Pittsburgh MT
City of Pittsburgh, DCED, US Department of Transportation, PENNDOT
Increase participation and awareness, minimum # monthly events promoted
Neighborhood Groups, The Pittsburgh Project, Northside Partnership Project
ST Foundations, Other Public Funds
Locate at least one neighborhood-specific painted crosswalk with community input (location and design); implement street calming measures on N. Charles St.
5-10 residents from Allegheny Dwellings and each neighborhood are represented via attending meetings or responding to surveys
DOMI, Bike PGH, Office of Public Art, Art Commission MT City of Pittsburgh, Foundations
Neighborhood Groups, PRT ST Foundations, Other Public Funds
1.7 Strengthen access to fresh food and produce through ongoing partnerships (e.g., DoorDash partnership with Northside residents, 412 Food Rescue) and increase the presence of locally grown food and markets.
Establish one new outdoor market; ensure consistent food drops at senior centers; increase availability of fresh produce at local corner stores; attract a new affordable grocery store
LEAD AGENCY & PARTNERS
412 Food Rescue, Department of City Planning, Allegheny General Hospital, Light of Life, Propel Wellness Center, Project Destiny, Northside Common Ministries, Pittsburgh Higher Ground Ministries, Northside Food Pantry Advisors
TIMEFRAME (ST, MT, LT) FUNDING SOURCES
ST
Foundations, Just Harvest, Other Public Funds
1.8 Improve transportation access (e.g., vans, car-share, mobility hub, volunteer rideshare) to health and wellness hubs.
Establish a volunteer program to drive people to the doctor; work with hospitals to provide transportation for special populations such as young mothers
Allegheny General Hospital, ACCESS; Northside Christian Health Center, Bellevue Pediatrics, Allegheny Health Network Suburban General, UPMC
MT
Foundations, Healthcare Providers, Northside Community Development Fund, Other Public Funds
1.9 Work with existing healthcare facilities to implement telehealth and mobile healthcare for routine visits, and seek out options for an urgent care center in the neighborhood, diverting residents from emergency rooms.
Number of new telehealth opportunities provided; presence of a new urgent care in the area
Allegheny General Hospital, ACCESS; Northside Christian Health Center, Bellevue Pediatrics, Allegheny Health Network Suburban General, UPMC
ST
Foundations, Healthcare Providers, Northside Community Development Fund, Other Public Funds
1.10 Increase trusted awareness of new and existing health and service resources in the community, using a community specific resource hotline, bulletin board or community hub, webpage, social media through HACP and the neighborhood groups, available healthcare apps, and physical mail.
1.11 Increase cross-collaboration events and activities amongst service providers based on topics that are of interest to community members and directly respond to needs identified through the Choice Neighborhood needs assessment survey.
Creation/distribution of local, helpful, accurate, and current resource guide; creation of marketing campaign to distribute resource information; establish an interagency database to track referrals and successful navigation of service
HACP, TREK, Allegheny General Hospital, Project Destiny, The Buhl Foundation, Veteran's Leadership Program, Department of Human Services
MT
Foundations, Healthcare Providers, Other Public Funds
Establish annual health fairs; hosting resource tables at annual neighborhood events
Project Destiny, Thrive 18, Allegheny General Hospital/Allegheny Health Network
Ongoing
Foundations, Healthcare Providers, Other Public Funds
GOAL 2 - Invest in streetscape improvements, public spaces, and infrastructure to work towards a more livable, safe neighborhood for residents.
2.1 Increase or replace lighting in areas that are extremely dark but utilized throughout neighborhood like bus routes, greenways, and areas with open spaces/amenities with “dark-sky” friendly LED lighting.
City installs new lighting on N. Charles St. and other areas that are specially dark; The Pittsburgh Project/ Urban Impact installs new light on their campus
DOMI, DPW, The Pittsburgh Project/ Urban Impact Duquesne Light
MT City of Pittsburgh, Foundations
2.2 Work with City of Pittsburgh and DOMI to clear away overgrowth, particularly below streetlights and along pedestrian corridors.
Several strategic lots will be identified and improved in each neighborhood where safety is biggest concern; City will sell lots or maintain them: 1/month at a minimum
Allegheny Cleanways, Grounded Strategies, Goatscape, Scenic Pittsburgh, Land Force, Neighborhood Groups, Grow Pittsburgh
MT City of Pittsburgh, Foundations
2.3 Prioritize replacement and maintenance of needed stairs and sidewalk repairs particularly in locations near schools, bus routes, and retail services.
Submit 311 requests for improvements to key areas; seek Main Street related funds to hasten improvements
DPW, City of Pittsburgh MT
Foundations, City of Pittsburgh, ARPA funds, URA/Avenues of Hope, Other Public Funds
2.4 Implement new street design standards with redevelopment at Allegheny Dwellings at Federal St., Mercy St., and Belleau St. that provide enhanced connections, allow safe walking and driving access, and improve the neighborhood street network.
New and enhanced streets near Federal St., Mercy St., Belleau St., and Letshe St.
DOMI, City of Pittsburgh
MT City of Pittsburgh
STRATEGY METRICS
2.5 Promote hands-on, communitybased activities with strategies to infill vacant lots (e.g., clean-up events, urban gardens, activate temporary community spaces, native plant/bird habitats).
Maintain care for existing gardens and lots under the care of the neighborhood groups and neighbors; renovate/ work with another neighbor, steward, or owner to renovate one new vacant space annually
City of Pittsburgh, neighborhood groups, URA; Adopt A Lot; Farm a Lot, Scenic Pittsburgh, Grow Pittsburgh, Grounded Strategies, Allegheny Cleanways, Allegheny Goatscape
TIMEFRAME (ST, MT, LT)
FUNDING SOURCES
ST
Neighborhood Initiative Fund, Community Development Block Grant Funds, City of Pittsburgh, Love your Block, Other Public Funds
2.6 Work with URA to catalyze investment in the commercial district at Perrysville Ave. and N. Charles St. through facade improvements, attraction and support for Blackowned business catering to families, and streetscape/public realm improvements.
Assist two MWBE businesses with opening on Perrysville Ave. and Charles St., establish community gathering space on redeveloped mixed income replacement housing sites
URA, Neighborhood Groups, Neighborhood Allies MT
URA, Avenues of Hope, ACRE, Storefront Facade Program, Small Contractor Line of Credit, Minority Business Recovery and Growth, CRIB, Neighborhood Community Development Fund
GOAL 3 - Reactivate open spaces, greenways, and parks in the neighborhood with health/wellness initiatives and community amenities that will help build shared connections and a sense of community belonging for residents.
FUNDING SOURCES
3.1 Expand community and recreational programming at parks and refresh local parks with amenities and public art at Fowler Park and Pool, Cross-Strauss Parklet, and California Ave. playground.
Create mural at Fowler Park as Early Action Activity; expand pool house at Fowler Park to include recreational activities as part of the Plan
City of Pittsburgh Parks and Recreation Dept., DPW, Pittsburgh Parks Conservancy, Office of Public Art, Art Commission
ST
City of Pittsburgh
Parks and Recreation, DCNR Grants, Choice Early Action Funds, Foundations, Other Public Funds
NEIGHBORHOOD
STRATEGY METRICS LEAD AGENCY & PARTNERS TIMEFRAME (ST, MT, LT) FUNDING SOURCES
3.2 Include a variety of open spaces for recreation, views, connections, and community gathering onto the existing site as part of the redevelopment.
New open spaces for the community to gather outside, being created as part of the redevelopment
HACP, TREK LT
City of Pittsburgh, Foundations, Other Public Funds
3.3 Explore possibilities for indoor/ outdoor amenities that could host a range of activities for after school: arts, cultural, cooking, dance programming and recreational activities.
More activities being provided for youth in existing spaces; new indoor and outdoor spaces for the programming to be implemented and included as part of the redevelopment
HACP, TREK, DCP, Foundations, City Parks, Venture Outdoors, youth program providers (e.g. Urban Impact, The Pittsburgh Project, Youth Places, etc.)
ST
Foundations, City of Pittsburgh, Other Public Funds
3.4 Prioritize the maintenance and community use of the greenway network through partnership with the City’s Greenway Park program.
Regular improvement and maintenance of the neighborhood greenways
Neighborhood Groups, City of Pittsburgh Greenways for Pittsburgh
ST
Foundations, City of Pittsburgh, Other Public Funds
GOAL 4 - Implement a community-based, preventative safety model that develops strong partnerships between residents, community partners, and police.
STRATEGY METRICS LEAD AGENCY & PARTNERS
4.1 Implement a “walk to school program” or “walk to the bus stop program” where parents can be engaged to make sure children are safe.
Identify at least one location and time in year one where neighbors have concerns for their youth; provide volunteers were necessary to ensure safe passage between parents/ school
TIMEFRAME (ST, MT, LT) FUNDING SOURCES
Safe Routes to School, Pittsburgh Public Schools, Neighborhood Groups, Northside Public Safety Committee
MT
Foundations, City of Pittsburgh, Stop the Violence Grants or Public Service Grants (CDBG), Other Public Funds
4.2 Create regular forums for Q&A sessions with police and residents so they can express their concerns and look for possible solutions together.
Police start meeting regularly with resident in other parts of the Choice Neighborhood
Community Ambassadors, Pittsburgh Police Dept Zone 1, Neighborhood Groups, Other Community-based Organizations
ST
Foundations, City of Pittsburgh, Stop the Violence Grants or Public Service Grants (CDBG), Other Public Funds
4.3 Establish a network of block captains to encourage the community to look out for one another and intervene in situations where there are concerns using a preventative safety model.
Create a job description and outline of expectations; Host community block captain trainings; Identify 5-10 block captains in year one
Pittsburgh Police Dept Zone 1, Northside Public Safety Committee, Neighborhood Groups
MT
Foundations, City of Pittsburgh, Stop the Violence Grants or Public Service Grants (CDBG), Other Public Funds
4.4 Expand access to positive youth programming and spaces that prevent violence, and build youth leadership and civic engagement.
Start an on-site after school programming at Allegheny Dwellings as well as childcare; provider markets after-school programming at PGH King and provides transportation
Carnegie Library of Pittsburgh Federal Street branch, Urban Impact, The Pittsburgh Project, Youth Places, Sarah Heinz House, Allegheny Center Alliance Church, Neighborhood Groups
ST, Ongoing
City of Pittsburgh, Stop the Violence Grants or Public Service Grants, Foundations
4.5 Build collective efficacy– the combination of mutual trust and social ties in a neighborhood along with the willingness of neighbors to intervene to address neighborhood problems for the sake of the common good (e.g., raise awareness and foster conversations around drug and violence issues and solutions).
Replicate Pathways to Safety, Wellness, and Healing program or similar model
Neighborhood Groups, University of Pittsburgh School of Social Work, Pittsburgh Police Dept Zone 1, Northside Public Safety Committee, Northside Partnership Project
Ongoing
City of Pittsburgh, Stop the Violence Grants or Public Service Grants, Foundations
CONTINUED
NEIGHBORHOOD
GOAL 5 - Increase the number of households that have reliable, affordable internet access and cellular service at home and ensure that residents are digitally literate.
5.1 Offer digital literacy classes in the community.
Work with Carnegie Library to assist with getting the word out about digital literacy classes available
Carnegie Library of Pittsburgh Allegheny Branch, PGH Public Schools, HACP, AfterSchool Providers, The Pittsburgh Project
ST Foundations, Other Public Funds
5.2 Partner with internet providers to provide free internet to residents in the Choice Neighborhood with the understanding that WiFi is a basic necessity.
5.3 Create outdoor, public WiFi hubs where community members can utilize charging stations and free WiFi and install extenders/ technology to enhance the wireless signal in neighborhood areas with dense tree coverage.
Increase households with access to internet to 95% at Allegheny Dwellings; Increase Neighborhood Access
Create a minimum of two WiFi hubs in the Choice Neighborhood; include access to WiFi in all new construction
HACP, Comcast Affordable Connectivity Program MT Comcast, Foundations, Other Public Funds
NEIGHBORHOOD PLAN COST ASSUMPTIONS USES
HACP, TREK, Comcast, Foundations, Other Public Funds $10,000