Workshop/APD Residential Practice - Armonk Case Study

Page 1


RESIDENTIAL PRACTICE ARMONK HOME

Phase 1 | Pre-Design

Phase 2 | Schematic Design

Phase 3 | Design Development

Phase 4 | Permitting and Approvals

Phase 5 | Construction Documents

Phase 6 | Bidding and Negotiation

Phase 7 | Construction Administration

INTERIOR DESIGN AND DECORATION

Phase 1 | Concept Design

Phase 2 | Design Development

Phase 3 | Pricing, Proposals & Purchasing

Phase 4 | Project Administration

Phase 5 | Installation and Acceptance

ARCHITECTURE

Our architectural process is a rigorous and detail-driven approach that transforms vision into built form. From initial concept to final execution, we refine spatial organization, structural systems, and material selections to ensure cohesion and precision. Throughout construction, we remain deeply involved, safeguarding the integrity of the design. The phases of this work consist of the following:

EXISTING CONDITIONS

PRE-DESIGN

This is the research phase of the project where we gather information that will be the foundation for the design phases to follow. The main goal is to learn about the project site and program, as well as your goals and space requirements. Clients should expect to be very involved and ready to answer personal questions during this phase.

In this phase, we become familiar with the site and its existing conditions - with an eye towards identifying potential constraints and opportunities, we conduct site studies, we establish a program based on your needs and preferences, we review space planning options that correspond with your program needs, and we develop the concept narrative, through imagery and text, resulting in a presentation that sets the tone and mood for the project.

Once approved, the program and concept are used as the basis for all aspects of the project and are referenced repeatedly throughout the design process to ensure that the design choices remain true to the concept.

PRE-DESIGN

Required to begin work

• Executed contract and deposit

• All Background documentation (if available)

• Copies of building’s alteration policies and/or contact to building management

Pre-Design Milestones

• Site Visit: Become familiar with the site and the existing conditions

• Programming: Establish the program (list of wants/needs), the preliminary project schedule, the overall budget targets (if known at this stage).

• Space Planning & Concept Narrative: Review bubble/blocking diagrams and adjacencies overlaid on the plan, finalize the arrangement and relationship of the program elements, and review imagery/text that sets the tone and mood for the project.

Pre-Design Deliverables

• Coordinate documentation of existing conditions.

• Program listing required spaces, functions, and approximate square footage

• Preliminary project schedule

• Preliminary high/low construction budget based on current local cost-per-square foot data

• Preliminary zoning and code analysis/summary

• Milestones and filing strategies for the permitting process with the NYC Department of Buildings (DOB), and other municipal/ community entities as required.

• General space planning & adjacency diagrams

• Design narrative presentation (concept imagery and vision boards)

SITE DIAGRAM
VIEW DIAGRAM PROGRAM

SCHEMATIC DESIGN

The purpose of Schematic Design is to translate the client-approved program, space planning, and imagery concepts into an efficient project design. In this phase, Workshop/APD will prepare and present a preliminary design illustrating the scale and relationship of the Project components. By the end of this phase, we will have final floor plans and preliminary selections for fixtures & finishes.

Required to begin work

• Client Approval of Pre-Design Phase

Schematic Design Milestones

• Schematic Design: Review preliminary floor plans & preliminary material palettes.

• Preliminary coordination & kick-off meetings with applicable consultants: Review a list of consultants whose services will be necessary (or recommended) as the project progresses and proposals will be requested at appropriate milestones in subsequent phases. Coordination of applicable consultants, as required.

Schematic Design Deliverables

• Final floor plans

• Identification of critical path items (items that have extended lead times or that may be problematic)

• Preliminary selection of finish palette

• Preliminary selection of fixtures and appliances

• Confirmed project and documentation schedule

PERSPECTIVE

PERSPECTIVE
BIRD’S EYE VIEW
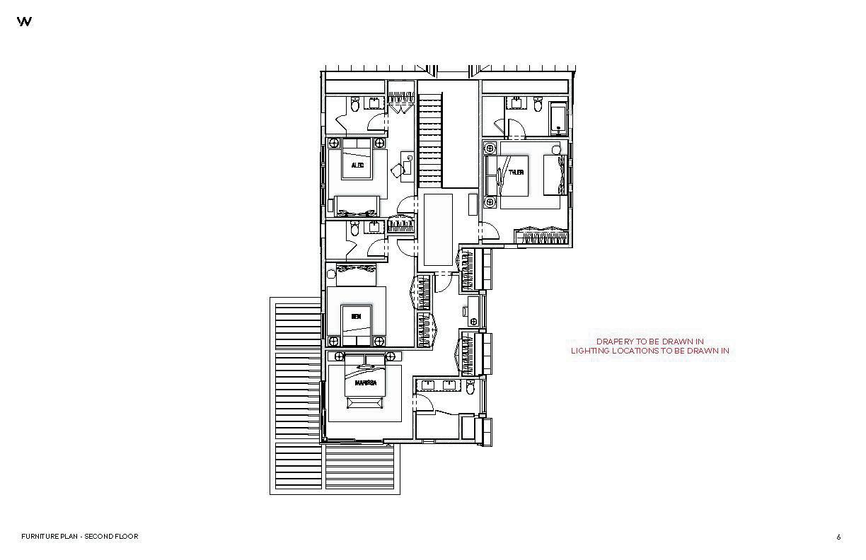
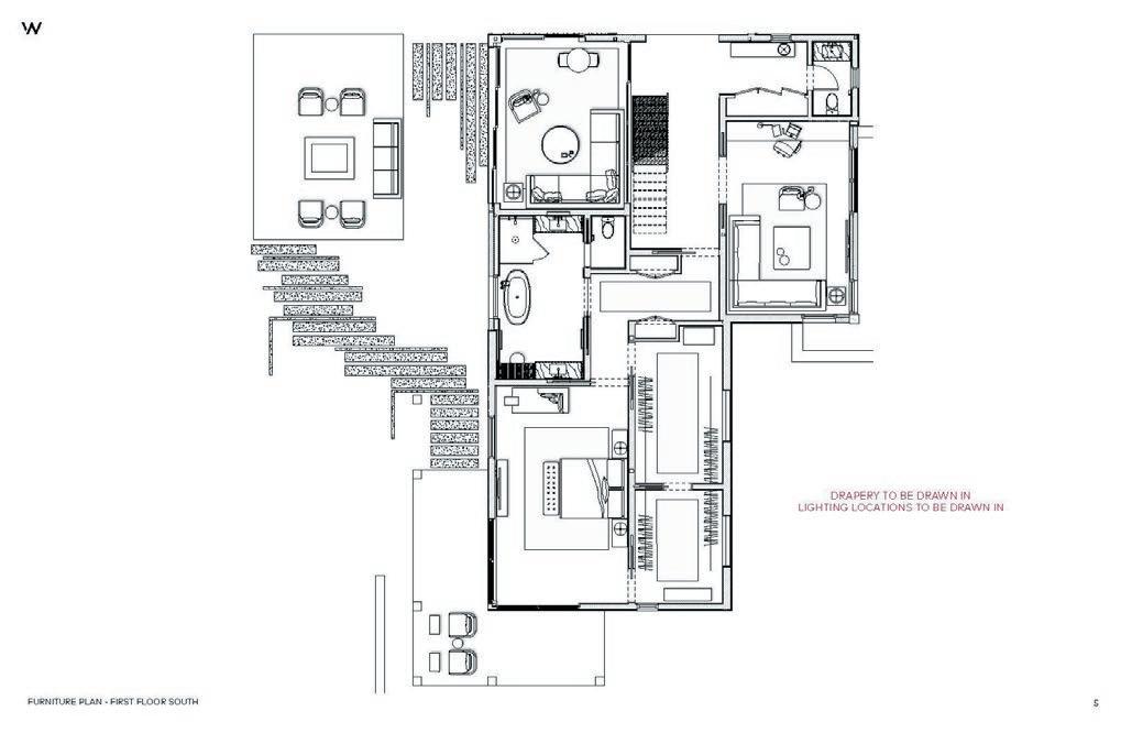
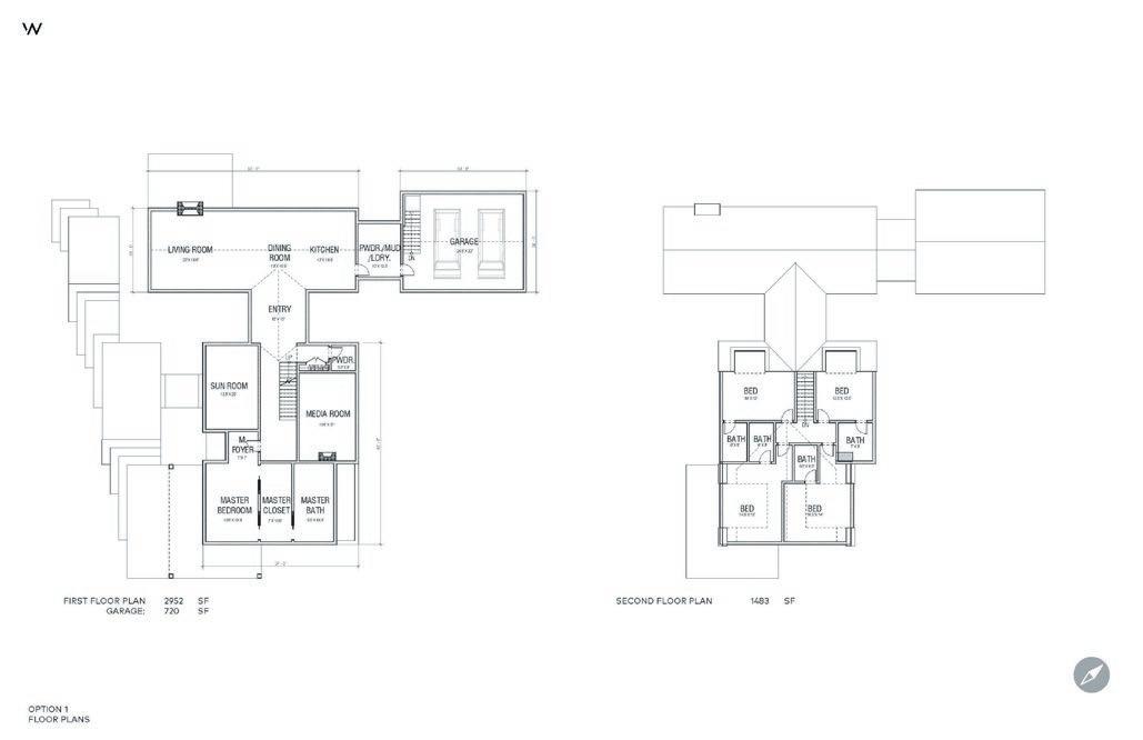
FLOOR PLANS

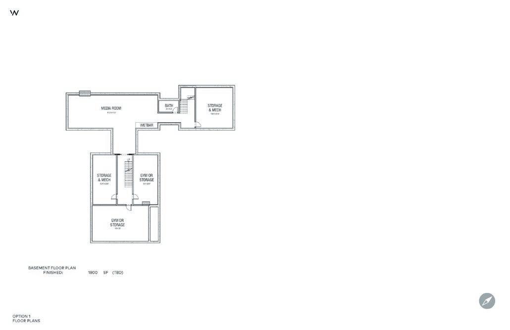
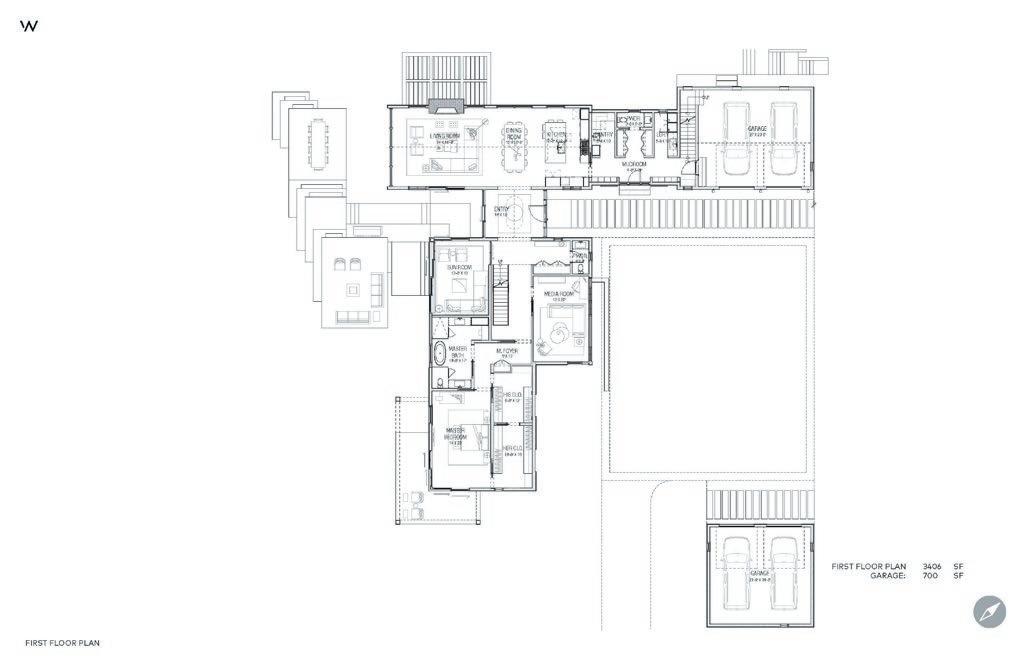
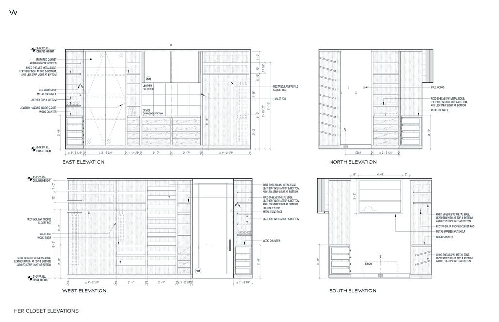
DESIGN DEVELOPMENT

The purpose of Design Development is to develop major elements and details based upon approved Schematic Design Documents. By the end of this phase, the unit and interior will be fully designed, the interior layout completed, dimensions of all spaces finalized, and all materials and products selected. Client should be prepared to make all decisions during this phase.

Required to begin work

• Client approval of Schematic Design deliverables (specifically floor plans & budget)

Design Development Milestones

• Present and develop drawings and/ or renderings (3D views/rendered 2D elevations) for select primary and secondary interior spaces so that client can make an informed decision and see what options look like in the completed spaces. Materials, finish options and products will also be presented at this time.

• Consultant Coordination Meetings, as required: Confirmation and development of the proposed structural systems, if applicable, preliminary MEP/HVAC shaft and duct coordination via development of plans and building sections for MEP space requirements.

Design Development Deliverables

• Drawings and/or renderings for select primary and secondary interior spaces sufficient for use in refining the project budget and engaging additional consultants, vendors, etc. as needed.

• A set of drawings that communicates the overall project: Interior material and finish selections, Product selections, including appliances, plumbing fixtures, and hardware, Fixture and device selections, Lighting and electrical location plans

DESIGN DEVELOPMENT

Exterior I

Upon confirmation of final massing and elevation drawings in schematic design, the team will create highly detailed greyscale renderings to better understand every aspect of the design.

DESIGN DEVELOPMENT

Exterior II

Building on the detailed perspective massing renderings, professional renderings are created for an accurate understanding of what the future residence will look like.

PHASE 3 of 7

DESIGN DEVELOPMENT

Interior I

Drawings and/or renderings for select primary and secondary interior spaces sufficient for use in refining the project budget and engaging additional consultants, vendors, etc. as needed.

• A set of drawings that communicates the overall project

• Interior material and finish selections

• Product selections, including appliances, plumbing fixtures, and hardware

• Fixture and device selections

• Lighting, electrical, and floor-finish plans

• Major millwork elements

• Door & Trim Details

INTERIOR ARCHITECTURE MOOD

STAIRCASE INSPIRATION

INTERIOR ARCHITECTURE PALETTE

CLOSET INSPIRATION

KITCHEN INSPIRATION FIREPLACE
KITCHEN CABINETRY DETAILS
PRIMARY BATHROOM

PHASE 3 of 7

DESIGN DEVELOPMENT

Interior II

Drawings and/or renderings for select primary and secondary interior spaces sufficient for use in refining the project budget and engaging additional consultants, vendors, etc. as needed.

• A set of drawings that communicates the overall project

• Interior material and finish selections

• Product selections, including appliances, plumbing fixtures, and hardware

• Fixture and device selections

• Lighting, electrical, and floor-finish plans

• Major millwork elements

• Door & Trim Details

KITCHEN APPLIANCE OPTIONS
KITCHEN PLAN
KITCHEN ELEVATION
KITCHEN PLUMBING OPTIONS PRIMARY

DESIGN DEVELOPMENT

Visualization

Workshop/APD finds that for most clients, the design process is just as important as the finished home. In order to make this process accessible and immerse our client’s in our ideas, we develop highly detailed, photorealistic visualizations of what the completed space will look like. This removes the fear of the unknown, inviting clients to experience the space and make well-informed decisions and/or revisions before any construction work begins.

KITCHEN

PERMITTING AND APPROVALS

The Permitting phase may run concurrently with the Schematic Design, Design Development and/or Construction Documents Phases.

In this phase, the client-approved construction drawings, along with any additional information required to get a building permit are submitted to the local department of buildings and other municipal entities & community associations with jurisdiction over the project, including the Landmarks Preservation Commission (if required).

Required to begin work

• Client approval of Schematic Design

• Consultants established and retained

Permitting Milestones

• Building Management Submission Package: In NYC, these packages typically include General Notes, Details, Diagrams and Relative Permitting Data, Demolition Plan, proposed Construction Plan, typical construction, and waterproofing details.

• Revise package based on Building Management comments until approval is secured.

• NYC Department of Buildings Submission: Zoning, Energy, Accessibility, and other diagrams and studies as coordinated with consultants

• Consultant Coordination Meetings, as required: Coordination of zoning and code requirements, structural systems, and MEP/ HVAC systems.

• Permitting Deliverables: Submittals related to municipal entities & community associations with jurisdiction over the project, as listed above.

Construction Documents Deliverables

• Issuance of construction floorplans, RCP, floor finish, electrical plans, elevations, architectural details, schedules, and finish details

• Final finish & fixture schedules

• Final material and finish samples

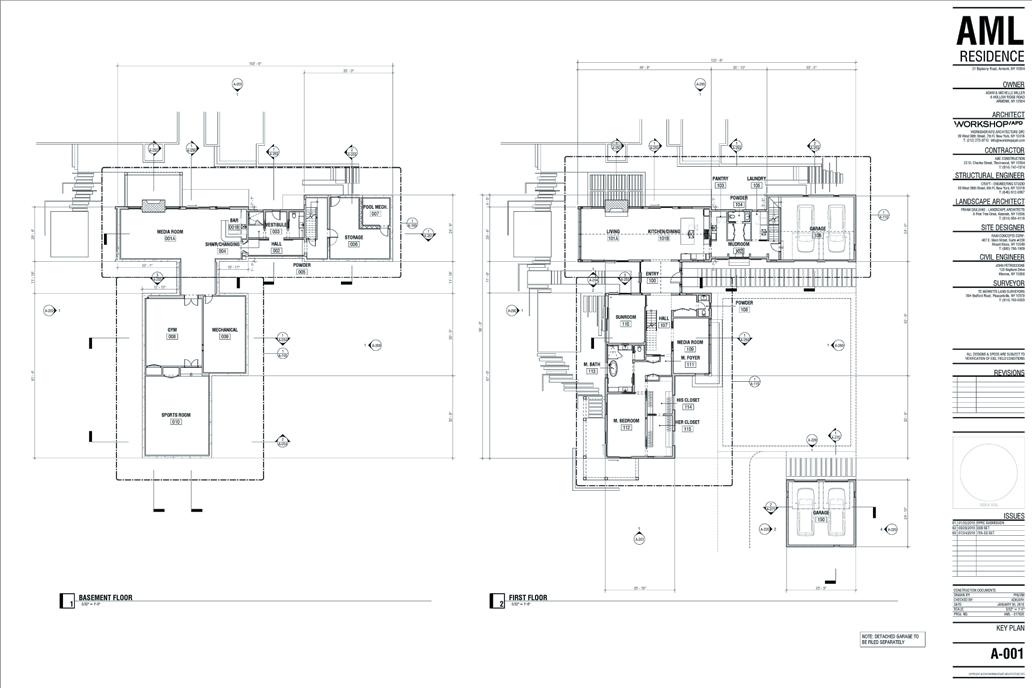
CONSTRUCTION DOCUMENTS

The client-approved Design Development Documents are developed into a set of drawings and specifications containing all of the information necessary to communicate the design to a general contractor and build the project. Any remaining design decisions must be made early in this phase.

Required to begin work

• Client approval of Design Development deliverables and authorization to proceed

Construction Documents Review

• Review construction and pricing documents prior to full completion and issuance to finalize any open items and outstanding selections from the Design Development phase.

• Familiarize the client with the Construction Documents package.

• Coordination with consultants, as required.

Construction Documents Deliverables

• Issuance of construction floorplans, RCP, floor finish, electrical plans, elevations, architectural details, schedules, and finish details

• Final finish & fixture schedules

• Final material and finish samples

BUILDING ELEVATION

BUILDING ELEVATION

EXTERIOR DOOR TYPES

BUILDING ELEVATION

WINDOW ELEVATION

BUILDING ELEVATION

PLAN

GABLE
ROOF

BIDDING AND NEGOTIATION

During this phase, bidding information will be prepared and tendered to facilitate the award of the Project contract for construction.

The Bidding & Negotiation phase may run concurrently with the other phases. A general contractor may be engaged early in the process, before full documentation is completed, to provide pre-construction services, including feasibility, estimating and scheduling.

Required to begin work

• Written Client approval of bid documents and authorization to proceed

Bidding and Negotiation Milestones

• Bidding Review with General Contractor(s): Typically all bidding meeting are held on the same day at the jobsite.

• Bid Review with Client: Review and compare submitted bids with client and identify any necessary cost evaluation measures.

Bidding and Negotiation Deliverables

• Identify, evaluate, and interview potential bidders

• Prepare and issue a Bid Package (including drawings and specifications)

• Upon receipt of bids, prepare bid analysis spreadsheet and cost evaluation

• Assist the client with awarding a contract for construction

100% CD’S FOR PRICING

CONSTRUCTION ADMINISTRATION

In this phase, we communicate with the contractor and visit the job site at regular intervals to answer questions from the builder with an eye toward maintaining the integrity and quality of the design intent.

Required to begin work

• Selection of general contractor, vendors, fabricators, and specialty trades.

• Approval of Construction Documents

Construction Administration Milestones

• The number, frequency, and length of site visits will be determined once a construction schedule has been established.

Construction Administration Deliverables

• Correspond with the general contractor, subcontractors, and other manufacturers to clarify the design intent.

• Correspond with consultants accordingly, as required.

• Review shop drawings, mockups, and submittals for adherence to design intent and Construction Documentation.

• Issue clarification sketches to the field as required.

• Prepare site observation reports and a project punch list, as required. Review and correct such reports if issued by contractor.

• Review and advise client as to potential value engineering solutions and potential warranty issues

• Review and certify contractor applications for payment based on our evaluation of the work performed and to the best of our knowledge

• Approve final certificate of payment to contractor based upon final inspection

INTERIOR DESIGN AND DECORATING

The Interior Design and Decoration process will begin in earnest once the Design Development Phase above is underway. This will include the sourcing and selection of all furniture, fixtures and equipment (FF&E). FF&E includes all movable furniture or other equipment that has no permanent connection to the structure. Examples of this are upholstery, case goods, decorative wall finishes, decorative lighting, rugs/carpeting, window treatments, accessories, and art. The phases of this work consist of the following:

CONCEPT DESIGN

The purpose of this phase is to develop the concept for the furnishings, through imagery and text, resulting in a presentation that sets the mood and tone for the project. Once approved, this concept is applied to all other areas of the Project.

Required to begin work

• Written client approval of the Schematic Design Plans

ID Concept Design Milestones

• Kick-off meeting with clients to discuss furnishings preferences, programming requirements, and any other special considerations

• Review preliminary furniture plans and corresponsonding concept imagery that sets the tone and mood for the home’s furnishings, a budget range will also be reviewed.

ID Concept Design Deliverables

• Precedent “mood” images that define the desired look and feel of certain primary spaces or individual pieces of furniture

• Detailed furniture plan for all rooms in the home that clearly identifies options for the scale and placement of primary and secondary pieces.

• Preliminary FF&E budget that includes all of the upholstery, case goods, decorative wall finishes, decorative lighting, rugs/carpeting, window treatments, and accessories

• List of any existing client-owned pieces that may be reused.

• Preliminary palette of fabrics and finishes that define the desired look and feel of the home.

INTERIOR INSPIRATION

INTERIOR PRECEDENTS

INTERIOR PALETTE

INTERIOR PRECEDENTS

DESIGN DEVELOPMENT

The purpose of this phase is to apply the approved concept to the design of each room of the home. We will present each of the FF&E items in conjunction with the furniture plan and budget for approval. This phase typically runs concurrently with the Construction Documents phase. Client is expected to make timely decisions during this phase.

Required to begin work

• Written client approval of the ID Concept Design, furniture plan, and FF&E budget

ID Design Development Milestones

• Confirmation of meeting and approval cadence with client and ID team

• Review selection options per item that are in line with the Concept Design and FF&E Budget

ID Design Development Deliverables

• Updated furniture plan

• Options of the following for each room: Specific furniture pieces (broken out by room) and/or custom furnishing designed by Workshop/APD

• Updated FF&E budget, in accordance with selections

• Proposal from consolidator/warehouse partner for receiving and storage

& DINING OPTIONS

SUNROOM OPTIONS

MEDIA ROOM OPTIONS

POWDER ROOM OPTIONS

KITCHEN & DINING OPTIONS
KITCHEN

PRICING, PROPOSALS AND PURCHASING

During ID Pricing, Proposals & Purchasing, all items are submitted to client for final approval and payment. Orders are placed and tracked through to delivery and installation. Any delays in approval and/or payment will result in extension of schedule.

Required to begin work

• Written client approval of furniture plan and FF&E budget

• Signed Proposals and full payment for individual pieces

• Retained (signed agreement and deposit paid) consolidator/moving company for receiving, storage & delivery.

ID Pricing, Proposals, & Purchasing Milestones

• Review proposals & confirm payment with client

• Order approved items for delivery to consolidator/moving company

ID Pricing, Proposals, & Purchasing Deliverables

• Proposals for individual pieces

• Budget update

• Routine updates on all purchased items via weekly project report

PROJECT ADMINISTRATION

During this phase Workshop/APD will provide project administration to ensure all interior design and decoration project components will be ready for installation upon construction completion. This administration work may run concurrently with the other Interior Design & Decoration phases.

Required to begin work

• Written client approval of all interior design work from previous phases and payment of all approved proposals

ID Project Administration Milestones

• Coordination with the project team including all vendors, fabricators, contractors, installers, etc.

• Confirmation of all onsite conditions in collaboration with the project team and general contractor

• Coordination of all custom furnishings including shop drawing reviewed, samples, strike-offs, showroom/workroom visits, in accordance with client approved selections from previous phases

ID Project Administration Deliverables

• Coordination, sign-off, and approval of all custom products, including millwork, furnishings, rugs, window & wall treatments, etc.

• Updated delivery & installation schedule

• Coordination of all custom furnishings including shop drawing reviewed, samples, strike-offs, showroom/workroom visits, in accordance with client approved selections from previous phases

INSTALLATION AND ACCEPTANCE

During this Phase, all items will be received and installed. We will review all items to ensure that they match what was specified.

Required

to begin work

• Sufficient portion of FF&E items received in storage and ready for delivery

• Completion of construction by all construction trades

• Professional post-construction cleaning by a licensed cleaning crew that specializes in post-construction cleanup

• Cleaner shall be retained to also provide professional cleaning following the install of FF&E

Installation & Acceptance Milestones

• “The Big Reveal” at the completion of installation as well as a client walkthrough to address any open issues.

Installation & Acceptance Deliverables

• Workshop/APD shall coordinate the delivery, installation and setup of all products purchased for the project in the previous phases

• Workshop/APD shall provide on-site oversight of the installation of all furniture, lighting, carpets, drapery, etc. into the home by the consolidator/moving company

• Workshop/APD to provide final styling & accessorizing (including bed making, set up, incorporation of personal/existing furnishings & accessories)

PROJECT PUNCHLIST AND CLOSEOUT

During this phase Workshop/APD will identify any outstanding issues or items to be resolved with the project team. Any new or additional scope items requested by client to be addressed and incorporated into project punch list.

Required to begin work

• Completion of the Installation & Acceptance phase

• Client walkthrough to document and address any open issues

The following milestones and deliverables are part of the ID Project Punch list & Closeout Phase:

ID Project Punch list & Closeout Milestones

• Development of Punch list

• Coordination with the project team including all vendors, fabricators, contractors, installers, etc.

• Confirmation with client on resolutions for open issues

• Confirmation of any additional scope items

ID Project Punch list & Closeout Deliverables

• Documented punch list including photos where applicable outlining open issues

• Resolution & execution plan coordinated with the general contractor and other consultants as require

PHOTOGRAPHY

Workshop/APD staffs a team of Interior Designers who work alongside the architects to develop the interior design and decorations of the homes we create. We feel this integrated, in-house approach allows for a more cohesive end-product and holistic design.

Turn static files into dynamic content formats.

Create a flipbook
Issuu converts static files into: digital portfolios, online yearbooks, online catalogs, digital photo albums and more. Sign up and create your flipbook.
Workshop/APD Residential Practice - Armonk Case Study by Workshop/APD - Issuu