

PORTFOLIO
WINIFRED NEVIS
SANTA CATERINA MARKET
TABLE OF CONTENTS
GRAD STUDIO - UC BERKELEY
Fall 2025
Broken Spine
Professor: Liz Galvez
Design Excellence Award Winner
UNDERGRAD STUDIO - UIUC
Fall 2024
Island Hopping - Factory + Island Production
Professor: Gideon Schwartzman
ACSA Steel Competition
Earl Prize Nomination
Spring 2025
Mid-Rise Housing
Professor: Sara Bartumeus Ferre
Earl Prize Nomination
Spring 2024
The Vision of Music - Music School
Professor: Alejandro Lapunzina
Fall 2023
Voided Conservation - Social Housing
Professor: Laia Cisteró
MISC. GRAD WORK
Bamboo Bricks
Material + Making
Study of Sky House
Analytical Drawings + Renders
SKETCHING
Professors: Raimon Farré Moretó + Guillem Bosche
Santa Caterina Market
Santa Maria del Mar
St. Margaret’s Chapel
Institute del Teatre
Universidad
Cliffs of Moher Visitor’s Center
The Glucksman




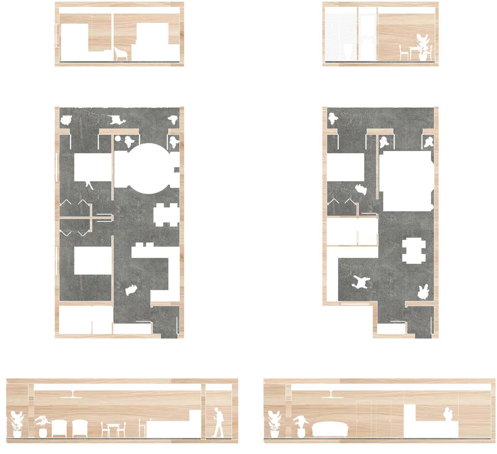
A Bro ken Spine
Located in West Berkeley, this project aims to create a dwelling that examines a systematic progression of interlocking servant and served spaces. Designed for six roommates, it breaks the nuclear familial housing typology to produce spaces that lack hierarchy and promote an equality of program.
The project began as a singular room focusing on the intersection of two verbs: “cleanse” and “play.” These verbs manifest through two individual masses intersecting at a perpendicular angle - one short, dense mass to hold servant space and one tall, lofty mass to hold served space. Programmatically, the servant space contains a bathroom, and the served space fits a pool. The emphasis of the intersection of these two volumes is illustrated by a partition wall, with openings in the fenestration allowing for circulation to the exterior of the rooms themselves.
The singular room is then transitioned into a canon object, creating an outline for the production of additional rooms which likewise merge servant and served space - joining together to form the overall aggregaation.
SERVED MASS
TALL, LOFTY MASS HOUSES “PLAY” ACTIVITIES
POOL / BATH
RIB WALL
MARKS
INTERSECTION OF SERVANT AND SERVED SPACES
TRANSITION TO EXTERIOR
SERVICE MASS
SHORT, DENSE HOUSES “CLEANSE” ACTIVITIES
SINKS, SHOWER, + TOILET


The subsequent servant and served spaces are paired into the entry and living room, the kitchen and dining room, the laundry and drying room, and the workspaces and bedrooms. As in the canon, the intersection of each mass enunciates through a partition wall that splices the volumes, allowing the creation of an exterior patio for each room.
The organization of the overall dwelling is linear in form, with two sets of each servant mass running as single-loaded corridors, acting as the vertebrae of the project. These dense, servant spaces enfilade from one to another, separated by junctions after each mass to allow for a perpendicular transition into the served spaces. The shared wall between the two single-loaded corridors extrudes upwards, emphasizing the spine of the project, which all service utilities and spaces reside off of.


MATERIALS
The materials extend into the broader context of the site. While all of the served spaces maintain a darker, dense green gypsum material, the partition and spine materiality vary by location. The spine is composed of larger panels of material, with the east face green to reflect the Berkeley hills to the east, and the west face pink to reflect the sunset over the bay. The partitions are tiled, with those on the east side emitting pink to contrast with the green spine, and those on the west side showcasing green to contrast with the pink spine. However, the edges of the partitions match those of the spine, allowing for a coherent elevation to relate to the larger context.

IDIOSYNCRASIES IN SECTION
The individual components composing the overall massing are modified to support the idiosyncratic needs of each program and the broader context. The height of the served spaces is one such distinction. The public spaces are triple the height of the 7’ served spaces - measuring 21’ - while the bedrooms and more private programs are double height, measuring 14’.
Likewise, the spine is adjusted as a result of the height of the greater context as well. While the spine itself is a relative product of the organization, its prominence grounds the dwelling in West Berkeley. The tallest point of the spine reaches 22’, equalling the height of neighboring industrial buildings. The lowest point of the spine reaches 15’, matching the elevational height of the residential buildings to the east.
Furthermore, the profile of each roof is another indication of public or private space; public spaces maintain a double sawtooth roof, while private spaces utilize a single sawtooth roof. Finally, the material translucency of each surface is a result of their programs as well, with the bedrooms maintaining the dominant amount of opaque walls and the public programs illustrating the greatest translucency.
SERVICE MASS FINISH

SPINE
PLATFORM FRAMED TRIPLE
HEIGHT WALL
2x6 STUDS
RIB WALL FINISH
8” TILE SQUARES ON GYPSUM BOARD
SERVICE MASS
PLATFORM FRAMED SINGLE HEIGHT
2x4 STUDS
RIB WALL
PLATFORM FRAMED TRIPLE HEIGHT WALL
2x4 STUDS


Island Hopping
Once deemed the dumping ground of the meatpacking industry, Bubbly Creek - located on the southern branch of the Chicago River - is transforming. Originally an industrial neighborhood, the river has suffered extreme contamination. However, restoration attempts have begun to clean the pollutants from the water and river sentiment. One effective solution is the introduction of manufactured wetland islands.
Wetland islands have several ecological benefits, and reflect the original wetland ecosystem of Bubbly Creek prior to human interaction. The main cleansing aspect derives from the root system; the plantings’ roots purify the waterestablishing and regulating bacteria and algae levels. Likewise, the roots also provide protection and breeding areas for local fish populations - allowing them the opportunity to reestablish within the ecosystem; similarly, the islands offer safe havens for birds and animals to rest and hunt - reinstating ecology into the ecosystem.
There are three sizes of islands - large, medium, and small. The large and half of the medium islands are propagated for human use and feature docks accessible to kayaks. They harbor activities such as swimming, sunbathing, fishing, and adventuring. The other half of the medium islands and small islands: which are exclusively for animals and plants and include topography that cultivates productive habitats.
ISLAND PLANS


The islands are produced by a building on shore. During the initial stages of water purification, the building serves as a factory. A conveyor belt transfers the building elements from stage to stage, and the size of the operation is supported with long-span structure.
The process begins in a room designated for welding, where the prefabricated rebar cage and flotation canisters are unloaded and assembled. The cage is then loaded with pumice and capped. Finally, pre-cut PET pieces are layered on top and planted before the islands are launched into the river; the plants are harvested from a green facade of the factory. Visitors are able to view the process through a catwalk which lofted through the largest web of each truss.
Once the river has reached capacity, the factory is transitioned into an exhibition space with each construction step displayed on the conveyor belt. The storage units turn into classrooms, and the island launch becomes a kayak rental + launch.
CONSTRUCTION PROCESS

ARRANGE FLOTATION DEVICES RADIALLY TO UPHOLD STRUCTURE
ATTACH TO CAGE WITH A C-SHAPED BRACKET
STRUCTURALLY, CAGE ACTS AS THE ISLAND FLOOR PLATE
ISLANDS SPECIFIC TO WILDLIFE HOLD TOPOGRAPHIC CHANGES FOR HABITATS
HARVEST WETLAND PLANTS FROM THE FACTORY’S GREEN FACADE

REBAR ARRIVES TO SITE IN PREFAB. PIECES WELD TOGETHER TO FORM INITIAL CAGE, PLACE ON TOP AND ATTACH TO FLOTATION CANSITERS

FILL CAGE WITH PUMICE AND LEVEL OFF
PUMICE: VOLCANIC, POROUS ROCK WITH BUOYANT PROPERTIES
LAYER PRE-CUT
P.E.T. TO FORM DESIRED TOPOGRAPHY
HUMAN ISLAND TOPOGRAPHIC CHANGES FACILITATE ACTIVITIES
PLANT WHOLE ISLAND WITH A VARIETY OF SPECIESINCLUDING MOSSES AND REEDS
1. WELD CAGE + FLOTATION DEVICES
2. FILL WITH PUMICE + CAP CAGE
3. LAYER PET

CORRUGATED METAL ROOF
PUMICE
KAYAK ENTRY
WELDING ROOM MAIN ENTRY
GREEN FACADE
STORAGE
LABS
ISLAND / KAYAK LAUNCH
STEEL APPLICATION
The islands utilize chromium-infused steel as an integral structural component; its resilience to corrosion allows the structures to last within polluted water compared to other potential materials. The main flotation devices are steel canisters with systematic components that control the buoyancy of each island. The flotation devices are connected with steel to a rebar cage - lined with a steel mesh. This cage houses pumice - which provides a stable buoyant platform for the topography - created from layers of PET.
The building utilizes steel as its main structural element. It provides a long-span structure which allows the production of islands to continue without interruption of columns. These trusses also house a catwalk, due to the application of rigid joints in the largest web of each truss. Finally, the structure holds a green facade, tensioned between each column with steel cable.
RIGID JOINTS
REMOVES NEED FOR BRACED FRAME - ALLOWS FOR CATWALK
TRUSSES CREATE A FRAME FOR GREEN FACADETENSIONED IN PLACE WITH STEEL CABLES


GREEN FACADE
LAYER P.E.T. POLYETHELYNE TEREPHALATE
RECYCLED, POROUS, PLASTIC LAYERS FOR PLANTING PUMICE LAYER
INCREASES BUOYANCY AND STABILITY OF STRUCTURE
FLOTATION CANISTERS
MAIN FLOTATION DEVICESACT AS THE BEAMS OF THE STRUCTURE
FLOTATION MOTORS
MOTOR FLOODS OR DRAINS TO REGULATE BUOYANCY OF EACH ISLAND DEPENDING UPON ITS RESIDENCES



LONG-SPAN STRUCTURE
SUPPORTS FACTORY
PRODUCTION WITHOUT INTERRUPTION OF COLUMNS
REBAR CAGE LINED WITH STEEL MESH
ACTS AS FLOOR PLATE DISTRIBUTES LIVE AND DEAD LOADS TO STABILIZE ISLANDS
STEEL ANCHOR
ATTACHES TO RIVER FLOOR


Filling the Frame
Humboldt park is a vibrant Puerto Rican neighborhood located within Chicago. In response to the need for affordable housing - this project implements Puerto Rican affordable housing practices into the frame of the Chicago urban fabric, following the patterns and rhythms of a city block.
A common practice of Puerto Rican housing revolves around shipping containers. A shipping container unit maintains the height and width of 9.5 feet, and several options of depth including 10 feet, 20 feet, 30 feet, and 40 feet. The housing typologies in this project add and stack shipping container units to create functional and enjoyable spaces. There are 89 total units; 22 studios, 22 one-bedrooms, 24 two-bedrooms, and 21 three-bedrooms.
The containers are held by an HSS scaffolding frame which relates to the steel gateway flags; the structural frame follows a 20 foot by 20 food grid. Due to the nature of the structure, typologies can be interchangeable with thousands of different combinations and configurations. This project maximizes the integrity of the plan by first pairing typologies that share wet zones and circulation - then, these typologies are integrated into the plan with their locations resulting from their levels of privacy.
The scaffolding does not just frame the project - but its relationship to the neighborhood as well. The pockets of solid wall between pixelated facade creates a canvas for murals and artist interaction with the space - carrying on the vibrant nature of the Puerto Rican neighborhood.


The cultural and urban context of Humboldt Park are the driving force behind the integration of this project.
Artwork is instrumental within the Humboldt park community - as its presence increased over time so did pedestrian circulation and interaction with the space. It also functions as a guide, adorning points of access and transitionary spaces; this project seeks to continue these patterns, furthering the extent of Puerto Rican culture within the Chicago.
The massing responds to the urban fabric itself. The ground floor is split following preexisting intersections and and connected with vertical circulation nodes. While the housing mass vertically responds to the surrounding building heights, the facade along Division Street shifts back and fourth, extending the preexisting rhythm of the Chicago block.
MASSING:

URBAN
CARTOGRAPHY: Examining Impact of Artowrk + Ground Floor Plane
LOW HIGH
PLINTHS + CIRCULATION
HOUSING MASS
HEIGHTS
AGGREGATE
PEDESTRIAN CIRCULATION: 2025
PEDESTRIAN CIRCULATION: 2007
VEHICULAR CIRCULATION: 2025
VEHICULAR CIRCULATION: 2007
PREVIOUS INFRASTRUCTURE: 2007
PARKING LOTS
PARKS: 2025
PARKING LOTS (2007) TO PARKS (2025)
MURALS: 2025
MURALS: 2007

INTERACTIVE ART
URBAN GRID
SCALE
SHIFT RHYTHYM
PROPOSAL: ECLECTIC REAR-FACADE
SITE MAP: Humboldt Park Neighborhood



The ground floor is comprised of four plinths, which are split following the natural extension of the urban fabric. At these divisions, circulation cores not only connect the plinths but also provide vertical circulation for residential areas.
The ground floor of the project serves as a replacement to the existing Erie Health Center; in addition to providing the health center’s programatic needs, the building also maintains a market, adjacent to the natural pedestrian flow on Division Street.
GROUND FLOOR PLAN: Erie Health Center + Market

WESTERN AVENUE
URBAN GARDEN CHILD
UNIT AGGREGATION
STUDIO ONE-BED TWO-BED THREE-BED COMMUNAL

HOUSING AGGREGATION: Second Level
VOIDS
Disperse circulation to create semi-private housing walkways and larger, public spaces for gathering
SECTION: Interior Wall Connection
SPRAY FOAM INSULATION
2 1/2” METAL FRAMING
1/2” GYPSUM WALL BOARD
CONTAINER DECK
A common practice of Puerto Rican housing revolves housing typologies in this project add and stack shipping for wet zones. These unit types are mixed together
TYPOLOGIES: Shipping Container Aggregations
ONE-BEDROOM

TYPOLOGIES: Upper Levels

TYPOLOGIES: Lower Levels
revolves around shipping containers. A shipping container unit maintains the height and width of 9.5 feet, and several options of depth including 10 feet, 20 feet, 30 feet, and 40 feet. The shipping container units to create functional and enjoyable spaces. There are two of each unit type: studio, one-bed, two-bed, and three-bed. Each unit type has a pair, which shares a wall across all floor plans to ensure the interaction of different tennants.
ONE-BEDROOM
30ft + 20ft

THREE-BEDROOM
+ 30ft + 30ft + 10ft
TWO-BEDROOM
+ 20ft + 20ft

THREE-BEDROOM
+ 30ft + 20ft
CIRCULATION
Horizontal circulation paths are supported by the steel structure
Voids in the pathways provide exterior spaces for group gathering, and deter circulation towards private residences


CIRCULATION
The vertical circulation cores bridge between the four housing plinths

STRUCTURE
The main structure is held by a 20’x20’ grid of HSS
The ground floor crosssection is 8.25”x8.25” and it decreases by floor until the top level which maintains a cross-section of 4.125”x4.125”

MARKET
surrounding neighborhood
SHADING
Transluscent, colored curtains provide privacy and shading for residents
Adjacent to Humbold Park downtonprovides fresh food to

LAYERED

The Vision of Music
Often, sound connotes movement; it is observed physically within rhythm and dance, and it is also present in the invisible movement of the soundwave on the decibel scale. This project manifests a physical representation of sound - as a layering of distinct waves.
Two holes puncture these forms; the southernmost void extends to the ground, and the northernmost void extends up from the auditorium and is open to the sky. In sound, when a wave hits a hole, part of the sound energy is stored in the hole and is rejuvenated - in other words, sound energy is created. The holes in the building break into the waves, rejuvenating energy by housing outdoor music spaces.
The site is located on an edge of a superblock in Poblenou, Barcelona. The area was originally part of industrial Barcelona, and is currently in development. The site illustrates a variety of buildings, ranging from empty lots and one-story factories, to skyscrapers. To relate to this context, the elevation of each level corresponds to neighboring building heights to match and not overwhelm the surrounding context.

PROGRAM
There are six floors - or layers; the uses of the building stratify by layer and its level of privacy.
The ground floor is the only level open to the public, and is denoted by its larger porportion of glass facade on the exterior. There are two entrances, one which leads into a cafe and faces the main pedestrian pathway, and one which leads to the central stair and auditorium space.
Each floor above the ground floor is private to the students and faculty of the music school. The second and third floors are reserved for administration, and the remaining upper floors are dedicated for student use - learning and practicing.
FIFTH FLOOR: INDIVIDUAL-INSTRUMENT

THIRD FLOOR: ADMIN + LIBRARY
GROUND FLOOR: CAFE, FRONT DESK, + AUDITORIUM
SIXTH FLOOR: MULTI-INSTRUMENT + PERCUSSION
FOURTH FLOOR: INDIVIDUAL-INSTRUMENT + CLASSROOMS
SECOND FLOOR: ADMIN
STRUCTURE
The music school structure is a complex structure - it is a meld of three cooperating systems: concrete, wood, and steel.
The concrete is applied to the two northeast service bars - housing the elevators, emergency stairs, and bathrooms. These bars are typical from per floor, and provide support for horizontal and vertical loads.
Steel HSS columns provide vertical support, connecting to the steel beams with welded joist hangers. There are two column grids which extend radially outwards from the voids. The stairs function as an intermediary structural system where the two grids meet.
Mass timber is utilized for the floor slabs - which are topped with concrete per. code. Wood is beneficial for several means; the material is acoustically absorbent, which benefits the function of the building. Likewise, timber is a natural carbon sink and provides sustainable benefits. While the structure may have not been possible utilizing only CLT, the fusion of multiple systems allows the structure to function while having the greatest positive environmental impact possible.

STRUCTURAL PLAN

CLT FLOOR SLAB
STEEL BEAMS HIDDEN WITHIN SLAB
PROVIDES ACOUSTICAL BARRIER

INTERMEDIARY

CLT DECKING
SLABS


COMPOSITION

CLT FLOOR SLABS CONTAINS STEEL BEAMS TO BE TOPPED WITH CONCRETE LAYER
HSS STEEL COLUMNS



ADMINISTRATION
OFFICES, CONFERENCE ROOMS, + LOUNGE AREAS
PERFORMANCE VOID
ACTS AS A SOUND
DISTRIBUTOR - CONNECTS TO BASEMENT
CLASSROOMS
MUSICAL + NON MUSICAL CLASSROOMS
CAFE PUBLIC TO VISITORS
PROVIDES ACCESS TO PERFORMANCE VOID
LOCKERS
PROVIDE INSTRUMENT
STORAGE BALCONY
ADDITIONAL EXTERIOR PERFORMANCE SPACE

PRACTICE ROOMS
SINGLE-INSTRUMENT AND MULTI-INSTRUMENT SPACES
LIBRARY
ENCAPSULATES PERFORMANCE SPACE
PERFORMANCE VOID
ACTS AS SOUND DISTRIBUTORCONNECTS TO AUDITORIUM CEILING
AUDITORIUM
CEILING SUPPORTED BY STEEL SYSTEM
CEILING AND ROOM GEOMETRY ENHANCE SOUND PROJECTION + ACOUSTICS
HOUSES 120 PEOPLE
BASEMENT
PROVIDES STORAGE AND FULFILLS STRUCTURAL FOUNDATION NEEDS


Voided Conservation
In a city whose history is built in density and constant addition, this project revolves around creating a healthy living environment through the extraction of mass. Located at 149 Carrer de Viladomat, in the Eixample district of Barcelona, this social housing project focuses on sustainability and health for a its residents.
To achieve this, the project revolves on creating voids to foster greenspace and facilitate natural ventilation. There are three main voids - the largest forming a central community space and garden for the housing residents, while two peripheral voids create small, vertical garden ventilation stacks.
While the overall form of the project conforms to the rectilinear nature of the Eixample, the three voids pierce through the building to create a mass which is unique and cuts openings within a densely populated neighborhood - adding breath to a condensed area.



As one of the few remaining Eixample blocks with an inner courtyard, green space is incorporated wherever possible. The roof terrace is home to solar panels and a community garden; the crops grown by residents are then transported to the ground floor - occupied by a market.
One-third of the ground floor is occupied by a market with a seating area, with entrances from both sides of the Eixample. As it is public to everyone, the market provides the residents to expand on their community and share their produce with the city. The opposing side features a pathway through the dense block into one of the few remaining Eixample courtyards; one horizontal void connects the outside world to an oasis of green.
The first floor is marked with the large, main void. This extraction allows for the application of greenspace within a rather dense array. This greenspace is beneficial in multiple aspects; it acts as a carbon sink while also promoting biophilia and increased mental health for residents. The greenspace extends out onto a roof terrace, overlooking the Eixample courtyard. The first floor also harbors a gym, enhancing the residents’ physical health. The first floor is public for resident usage, and also houses laundry, a lounge, and office space.


GROUND + FIRST FLOOR PROGRAM

PRIVATE OFFICE LAUNDRY
OFFICE SPACE
ROOF GARDEN
GARBAGE ROOM
RESIDENT ENTRANCE

EDIBLE GARDEN GROWN BY RESIDENTS, SOLD IN MARKET
RESTROOMS
RESTROOMS FREEZER
PRODUCE GROWN ON ROOF STORAGE PATH TO EIXAMPLE
MARKET
LOUNGE TERRACE


HOUSING TYPOLOGIES
Each typical floor plan for the upper five floors contains bedroom units and 20 one-bedroom units. Each creating livable and enjoyable housing while taking are streamlined with a floor plan created by two bars, one side and private zones - bed and bath - on the The bar typology is also effective in terms of health effective ventilation throughout each zone of space. to one of the three void-like courtyards, or through windows also provides sunlight, views, and access the residents as well.


1. ENTRYWAY: 2.1m2
2. KITCHEN: 14.9m2
3. BATHROOM: 4.2m2
4. BEDROOM: 12.4m2
5. BALCONY: 6.9m2
6. DINING + LIVING: 22.5m2
contains eight units, with 40 units in total: 20 twoapartment typology is designed to be efficientup minimum spatial requirements. The typologies bars, separating public zones - living and dining - on the other.
health and wellness of the residents; it allows for space. Each area is ventilated either through access through access to the site. This amount of doors and access to green space, increasing the mental health of




1. ENTRYWAY: 2.1m2
2. BATHROOM: 4.2m2
3. BEDROOM 1: 12.4m2
4. BEDROOM 2: 12.4m2
5. BALCONY: 7.7m2
6. DINING + LIVING: 19.7m2
7. KITCHEN: 16.5m2
CONCRETE WALLS ATTACH TO EXISTING SITE BUILDINGS

MASS TIMBER STRUCTURE FROM SECOND FLOOR TO ROOF
TOPPED WITH CONCRETE PER CODE
STACK VENTILATION
VERTICAL GARDEN SPACE
OPEN TO TUNNEL
TUNNEL PASSES THROUGH BUILDING PROVIDES ACCESS FROM EXTERIOR TO INTERIOR OF EIXAMPLE
STACK VENTILATION
VERTICAL GARDEN SPACE

CONCRETE WALLS ATTACH TO EXISTING SITE BUILDINGS
CONCRETE COMMUNICATION CORE
CONCRETE GROUND FLOOR + FOUNDATION
MISC. GRAD WORK
Bamboo Bricks
This project explores the act of making through material exploration. These standard sized “bricks” are made of plant material - bamboo and hemp - woven together through traditional East-Asian weaving and joinery techniques.




Sky House - Kiyonori Kikutake
This project examines the use of solid concrete as structure while upholding the transitory values of the Metabolism movement.

EXTERIOR RENDERING

“ENGAWA”
SKETCHING




ST. MARGARET’S CHAPEL; EDINBURGH CASTLE, SCOTLAND
CLIFFS OF MOHER VISITOR’S CENTER; IRELAND

