Skip to main content

Wiktoria Ziomek | Interior Design Portfolio

Page 1


INTERIOR DESIGN PORTFOLIO

Wiktoria Ziomek

I

THE COLLEGE OF DUPAGE

Created with SketchUp, rendered in Enscape.
Created with SketchUp, rendered in Enscape.
Created with SketchUp, rendered in Enscape.
Created with SketchUp, rendered in Enscape.

Snug is a family-centered clothing store located in Oakbrook, IL, spe- cializing in ultra-soft bamboo pajamas and loungewear with matching options for the whole family- even the stuffed animals.

BRANDING

• Cohesive color palette reinforces brand identity

• Pajama prints paired with matching character displays

• Branded photo moment encourages social sharing

BRANDING

Visualization created using generative AI and post-processed in Adobe Photoshop.

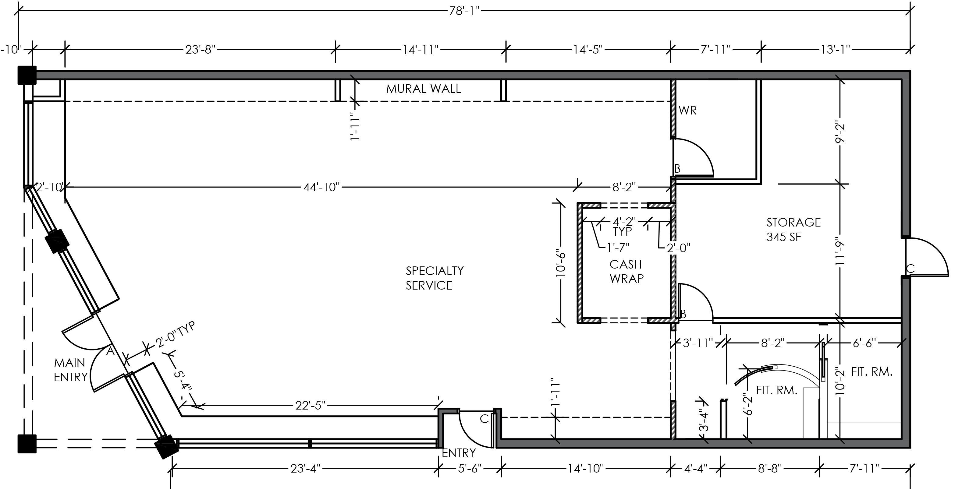
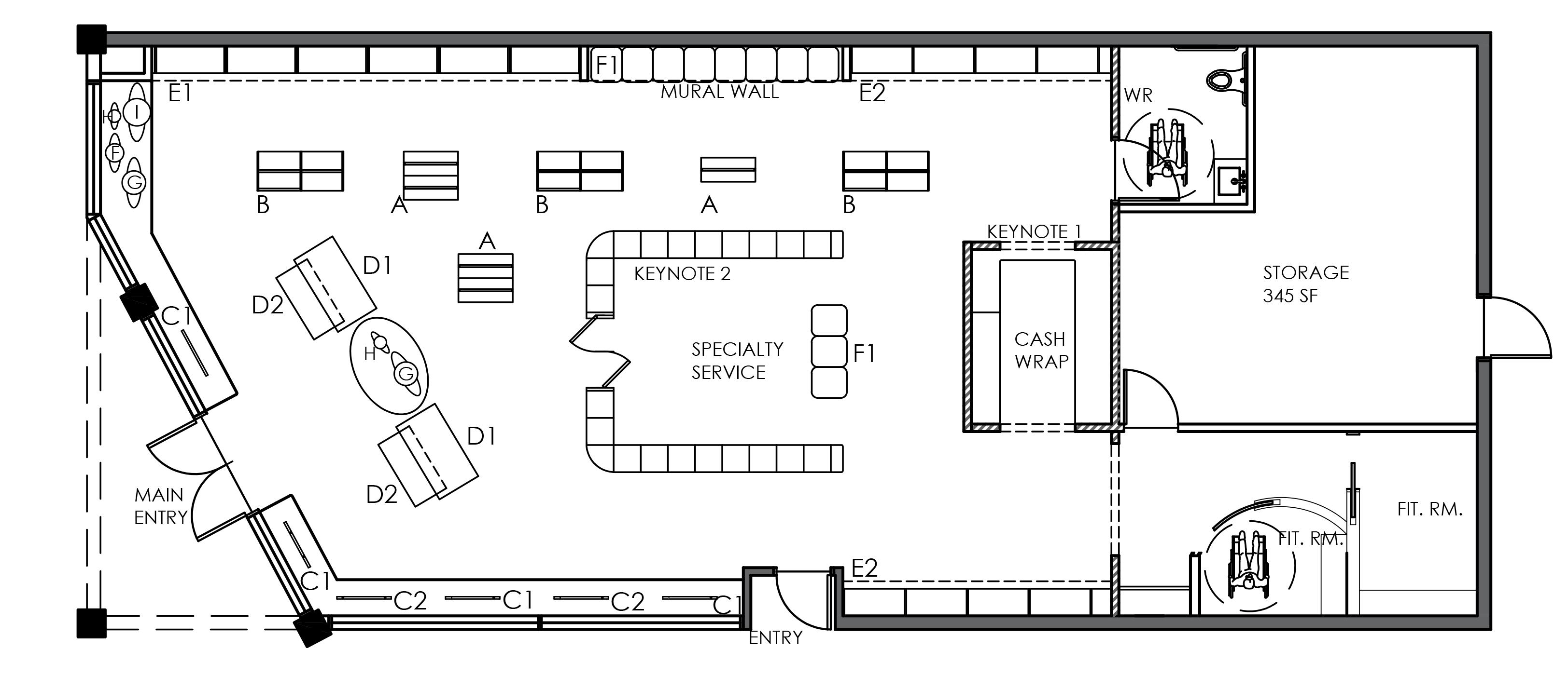
MERCHANDISE PLAN

Visualization created using generative AI and post-processed in Adobe Photoshop.

Created with SketchUp, rendered in Enscape.
Created with SketchUp, rendered in Enscape.
Created with SketchUp, rendered in Enscape.

ACCESSIBILITY

• Wide, open aisles

• Shelving and product displays at accessible heights for both adults and children

• Spacious fitting rooms

Created with SketchUp, rendered with Enscape, enhanced in Adobe Photoshop.

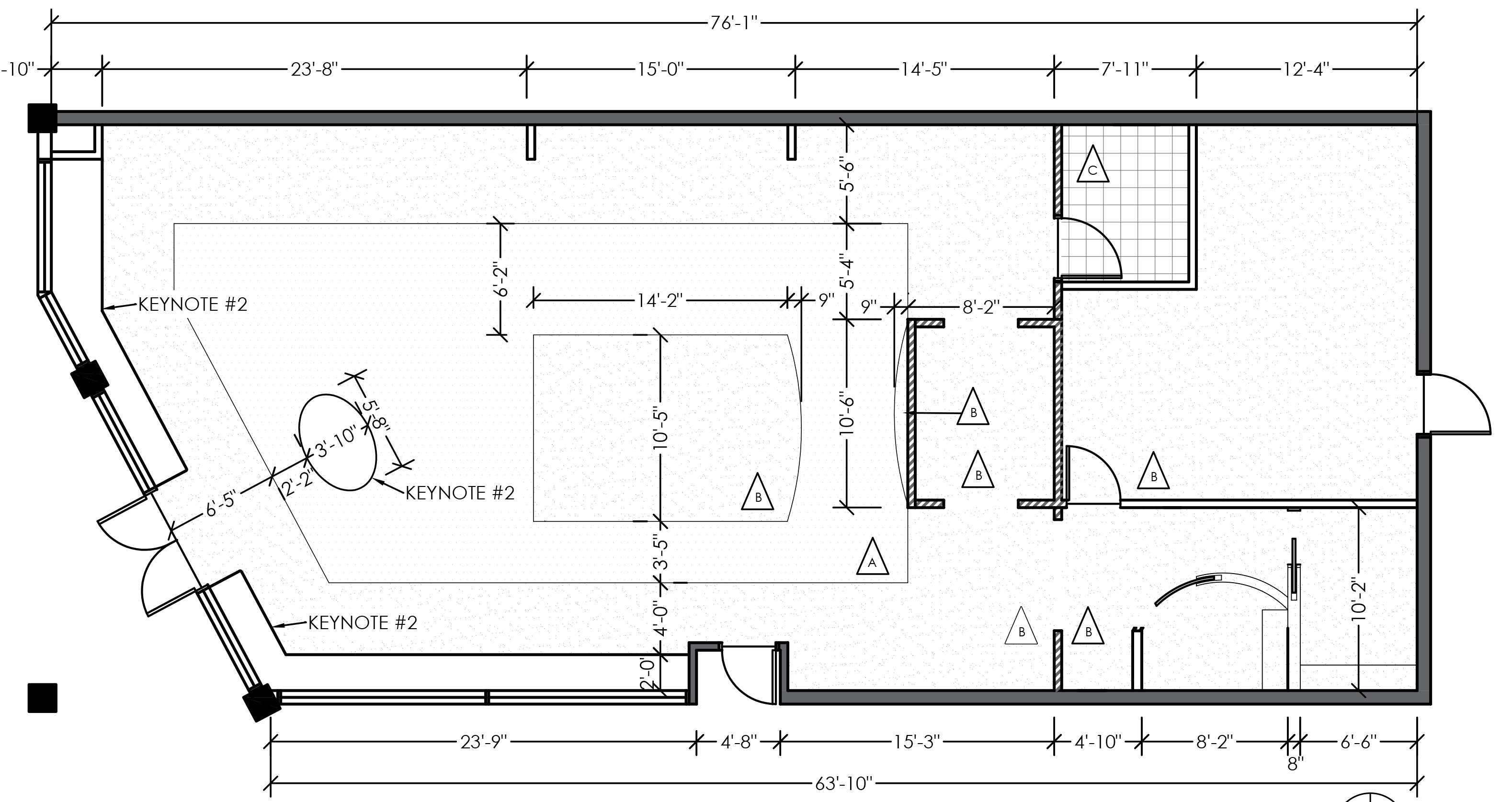
CEILING PLAN

PLAY AREA DESIGN ISOMETRIC DETAIL

CUSTOM CLOUD CEILING FIXTURES

ENTRANCE

BUILT-IN PLAY KITCHEN FOR AN INTERACTIVE FEATURE

PARTITION PLAN

BRANDED STUFFED ANIMAL DISPLAY AT KIDS’ REACH

Created in SketchUp, Enhanced in Adobe Photoshop

FLOORING PLAN

Created in Autodesk AutoCAD Not to scale, original scale = 1/8’’=1’-0’’

FLOORING SELECTIONS

WHY BEHIND THE FLOORING SELECTIONS:

•DURABLE, HIGH-TRAFFIC MATERIALS ENSURE LONGEVITY AND PERFORMANCE

•SLIP-RESISTANT FLOORING SUPPORTS SAFETY AND ACCESSIBILITY

•COHESIVE, HIGH-CONTRAST PALETTE ENHANCES WAYFINDING AND VISUAL CLARITY N

WAYFINDING

• Floor + ceiling cues guide circulation

• Clear zoning for intuitive navigation

• Color feature wall draws customers inward

• Layout encourages exploration +20 min dwell time

EAST WALL ELEVATION

EAST WALL ONE POINT SECTION PERSPECTIVE

NORTH ENTRANCE ELEVATION

Created in Autodesk AutoCAD

CONCEPT

RECRAFTED HEIRLOOM:

A design approach that preserves the soul of the original architecture while thoughtfully upgrading it with modern craftsmanship: warm, moody, and timeless, like history polished for a new chapter.

FURNITURE AND FINISHES:

• Natural materials with depth: wood, stone, plaster, and metal

• Traditional furniture, with contemporary twists

• Warm, cohesive palette layered to create richness, contrast, and a sense of timelessness

BRANDING

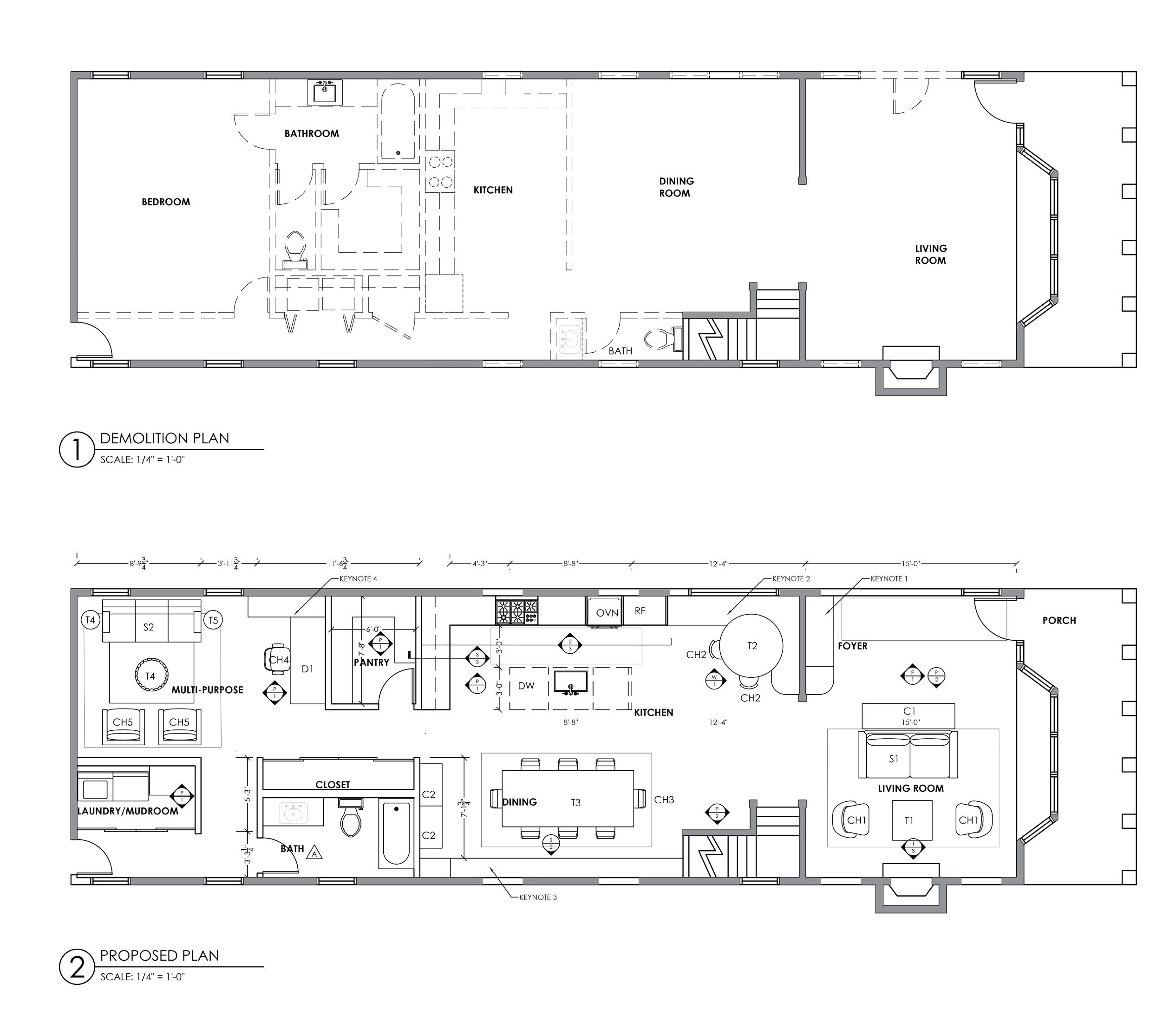
RENDERED FLOOR PLAN

MERCHANDISE LEGEND
Created in Autodesk AutoCAD. Rendered in Adobe Photoshop. Not to scale, original scale = 1/8’’=1’-0’’
Created in Autodesk AutoCAD. Rendered in Adobe Photoshop. Not to scale, original scale = 1/2’’=1’-0’’
Created with SketchUp, rendered in Enscape.
Created with SketchUp, rendered in Enscape.
Created with SketchUp, rendered in Enscape.

Created in Autodesk AutoCAD. Not to scale, original scale = 1/8’’=1’-0’’

Created in Autodesk AutoCAD. Not to scale, original scale = 1/8’’=1’-0’’

SPACE PLAN:

• Preserved architectural bones with a modernized flow

• Intimate, cozy zones that feel intentional and layered

• Rebalanced circulation that honors original room proportions while introducing smart updates

DINING ROOM ELEVATION

Created in Autodesk AutoCAD. Rendered in Adobe Photoshop. Not to scale, original scale = 1/2’’=1’-0’’

KITCHEN ELEATION

KITCHEN RENDERING

Created in Autodesk AutoCAD. Not to scale, original scale = 1’’=1’-0’’

Created with SketchUp, rendered with Enscape, enhanced in Adobe Photoshop.

ARCHITECTURAL FEATURES:

• Custom ceiling details rooted in traditional forms, executed with contemporary precision

• Integrated built-in storage and display that feel original to the home

• Thoughtful millwork that bridges historic character with modern craftsmanship

LIVING ROOM CEILING SKETCH

SCULPTED PLAYFULNESS:

This living space combines retro-inspired curves with modern elegance, layering warm earthy tones, sculptural furniture, and tactile textures for a space that feels both stylish and inviting

MAXWELLS

ARCHITECTURAL FEATURES:

• Clean, sleek lines

• Tall ceilings and generous windows maximize natural light

• Use of statement architectural lighting as a sculptural feature

SPACE PLAN:

• Emphasis on open flow and conversational seating layouts with rounded forms

• Sculpted zones for lounging, display, and accent pieces without overcrowding

• Symmetry balanced with playful asymmetry (e.g., off-center art, sculptural lighting)

CEILING AND LIGHTING PLAN

FURNITURE+FINISHES:

• Rounded, low-profile seating upholstered in plush boucle and velvet for texture and warmth

• Sculptural accent chairs and ottomans to create visual rhythm

• Natural finishes: warm wood tones, soft wool rugs, and matte ceramics

• Modern abstract art and organic accessories that reinforce the retro-luxe feel

Created with SketchUp, rendered in Enscape.
Created with SketchUp, rendered in Enscape.
Created with SketchUp, rendered in Enscape.

ISOMETRIC VIEW OF THE FLOOR PLAN

Created with SketchUp, rendered with Enscape, enhanced in Adobe Photoshop.
Created in SketchUp, Enhanced in Adobe Photoshop

wiktoriaziomek31@gmail.com

Wiktoria is an emerging interior designer with an interest in both commercial and residential environments. She is drawn to the strategy behind retail and office spaces, as well as the intimacy and personalization of residential design. For her, every project begins with understanding how people move, gather, focus, and live within a space.

Her work is grounded in thoughtful spatial planning, clear zoning, and strong visual organization. She values layouts that feel intuitive and efficient, while also creating spaces that evoke emotion and comfort, not just function well.

Her skill set includes space planning, furniture and material selection, and the development of floor plans and 3D visualizations, using a range of digital tools to communicate ideas clearly and bring concepts to life.

Whether designing a workplace, a retail environment, or a home, her goal is to create spaces that feel intentional, balanced, and genuinely supportive of everyday life.

Turn static files into dynamic content formats.

Create a flipbook