
1.Repair
2.Adaptive
4.Ionian
5.Master
![]()

1.Repair
2.Adaptive
4.Ionian
5.Master
Location: Regensburg, Germany.
Prof. Albrecht Thomas and Weatherill Jonathan , Fall 2025

Regensburg, Germany is a city where history and urban life exist in lasting harmony from its Roman origins.
Shaped mixed-use buildings that respect historic irregularity while strengthening street life and urban continuity through facade rhythm, proportions, roofscape and the articulation of the corner conditions.
Location: Regensburg, Germany.
Prof. Albrecht Thomas and Weatherill Jonathan , Fall 2025

Regensburg, Germany is a city where history and urban life exist in lasting harmony from its Roman origins. Shaped mixed-use buildings that respect historic irregularity while strengthening street life and urban continuity through facade rhythm, proportions, roofscape and the articulation of the corner conditions.







Using historical analysis as a tool for urban repair organized movement, massing, and mixed-use developments while respecting context through a disciplined yet expressive architectural language of Regensburg.
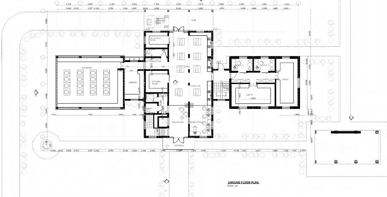
Location: South Bend, Indiana, USA.
Prof. Ming Hu , Spring 2025
Revit, Archicad, Photoshop, Lumion.


This project taught me to design sensitive architectural extensions; integrating historic Gothic barn fabric with phased growth, climatic response, and landscape continuity to form a cohesive and contextual whole. Perspective render Perspective render


This project strengthened my ability to extend historic structures through precise timber construction and traditional joinery, integrating phased additions that respect typology, site, and the integrity of the original Gothic barn.


Location: Corfu, Greece.
Prof Richard Economakis, Fall 2024

This project refined my ability to apply classical orders and Renaissance proportioning to craft disciplined civic architecture that respects historical context while redefining the Corfu’s theater facade.


Translating historical and cultural context into architecture, shaping a recital hall that integrates public and private spaces, urban vibrancy, and classical elegance into a cohesive, culturally resonant design.
Inspired by the principles of the French court and garden design.
Location: Corfu, Greece.
Prof. Richard Economakis, Fall 2024
Design strategy centered on dynamic motion, use of hinges and visual cues through the court and the garden, serving as a pivotal space for reorientation. Layering the public and the private spaces.




Location: Corfu, Greece.
Prof. Richard Economakis, Fall 2024

Existing Masterplan.
This masterplan was an opportunity to craft a cohesive urban fabric that celebrates cultural heritage enhancing streets, plazas, and civic spaces while balancing pedestrian experience, visual focus, and contextual architectural character.
Careful consideration has been given to the scale and form of buildings, drawing inspiration from the historic context of Corfu’s architecture.


Combining hand sketches, field drawings, and watercolors with measured drawings, to developed a precise understanding of proportions, details and spatial composition. Learning throught direct engagement with place, light and materiality guiding thoughtful and expressive design decisions.




Location: Africa, Kenya, Kerio Valley
Chomyet Eco Lodge taught me to translate cultural and ecological research into architecture that responds to site, climate, and local settlement patterns. I designed a contemporary lodge rooted in critical regionalism—reinterpreting the Kerio Valley homestead, framing dramatic views, and integrating conservation, cultural, and communal functions.


Accommodation Elevation
Designed accommodations that frame views and wildlife experiences while respecting natural behaviors, seamlessly integrating cottages with the existing landscape.







Chomyet Eco-Lodge.









“I cannot imagine architecture worthy of the name without urbanism, nor urbanism without architecture. Urban space is not the leftover between buildings—it is the very reason they exist.” Leon Krier
Thank You.
