Wilden Chang Design Portfolio | Architecture. Interior. Grasshopper + Digital Fabrication|

Page 1

Graduated from Chung Yuan Christian University, Master of Architecture Wilden Chang

Selected Works : 2018 - 2022 1996 -

张玮峻 Wilden Chang 平面與室內設計學習經歷,並以參數與數位製造撰寫論文取得中原建築碩 士,具備良好的繪圖及渲染動畫能力,注重細節,於校內設計表現出歸納 統整及判斷力並多次選上正評。 工作经历学习历程 新竹市環境景觀總顧問計畫委託服務案 專案助理 文心建設 Winsing Development 模型案 團隊成員 高雄瞿堂室內設計事務所 實習生 橫山 USR 以「大師駐營」綠色內涵整體實踐行動計畫 團隊成員 110年7月~111年7月 109年1月~109年3月 106年7月~106年9月 106年3月~106年6月 Architect, Interior and Parametric Designer Tel : +886 988118550 Email : wldn.chang@gmail.com Adress : 臺北市士林區中正路707巷21-1號12樓 設計概述 建築碩士學位 108年度-111年度 105年度-108年度 103年度-105年度 室內設計學士學位 高中文憑 中原大學 建築研究所 樹德科技大學 室內設計系 士林高級商業職業學校 廣告設計科 个人简历 出生年月 国籍 性别 年龄 1996/09/04 台湾 男 26 Resume 個人簡歷

自我简介

技能专业/社团竞赛经验

1996年出生於臺北士林,今年26歲,

個性專注、好學,擅長掌握重點並自我學習, 熟悉各式軟體,並整合各項工具的優勢創造作品。

自高中起加入街舞社,對文化及音樂內涵有所了解,

並因興趣認識許多不同設計領域的朋友,

體會各項專業需具備的能力,崇尚多元專業發展。

注重細節,並實事求是,對待專業不馬虎。

2019 樹德科技大學室內設計系 畢展競賽評圖 / 第二名

Autodesk Autocad

Contact

2015 College high vol.11 樹德科技大學團體賽 / 前八強

張博碩 副教授指導,以「浮世隱逸-紀念一個山海交會 的聚落」為題,規劃整合山坡上的舊社區,以學生宿舍為概念 並置入活動中心,融入鼓山社區,活絡老舊空間並發展新生。 全國大專院校共同參與的大型街舞競賽活動,由各校進行 舞蹈編排,以隨機播放的音樂進行臨場發揮,待評審委員評分 後評選出八強,再以團體中的五位進行競賽一對一淘汰賽。

Sketchup

Lumion

Rhino grasshopper

Vray for sketchup

Adobe illutrator

Adobe photoshop

Cell phone : 0988118550 Line ID : 0988118550 Email : wldn.chang@gmail.com Issuu : issuu.com/wei_lden.chang
Resume 個人簡歷
01 聚/望/日常 02 尺度/凝聚力 03 水岸黑膠咖啡廳 04 逐浪者/商旅/飯店 05 浮世隱逸-紀念一個山海交會的聚落 06 摺疊單元應用於砌石拱頂構造模擬與 數位製造之研究 01 02 03 04 05 06 Contents 01 目錄

01 聚/望/日常

住宅設計/商業空間

移動在莒光公園人行步道上,生活日

常與新街溪潺潺水流生環環相扣,居民即

使被溪流分隔兩側,透過水流如此的白

噪,環境氛圍讓彼此似乎還在相同空間之

中,可能是這樣的原因,莒光公園的居民

們總是充滿歡笑、談話。

一家四口,以父親「私廚」工作展開

日常生活,切菜、洗菜、做菜的程序成為

環境白噪,陪伴著家庭成員,乃至成為空

間氛圍,並伴隨著共餐行為擴展至鄰里關

係。

莒光公園擁有很好的景觀及空間條件,公園路徑

伴隨著水流聲、樹受到風而擺動的聲音,以及居民交

流,孩童嬉鬧的聲音,也是社區鄰里經常交流與聚會

的場域。而基地或許可以以私廚執業的置入,設計聚

會共餐空間,作為社區集會、活動的場域,因此設計

將以「食」為啟發點,創造居民們停留,以及可以留

下記憶的空間。

過去,公園隨著新街溪河道一分為二,溪岸兩側分離,居民也僅剩「對望」的關係,後來

興建了橋梁,居民間產生連結,過橋的「儀式感」,讓日常的散步活動,成為居民期待與彼此 相見的過程。莒光公園的居民關係就是如此美妙的一件事,也成為設計概念的起點,

對望、移動、相聚,這些視線與聲音的連結,是牽起家庭乃至社區關係的起點,伴隨著父 親職業「私廚」所帶來的「食」的連結,美妙的空間遊戲就此展開。 1 2 3 4 Architecture Design 03 聚/望/日常
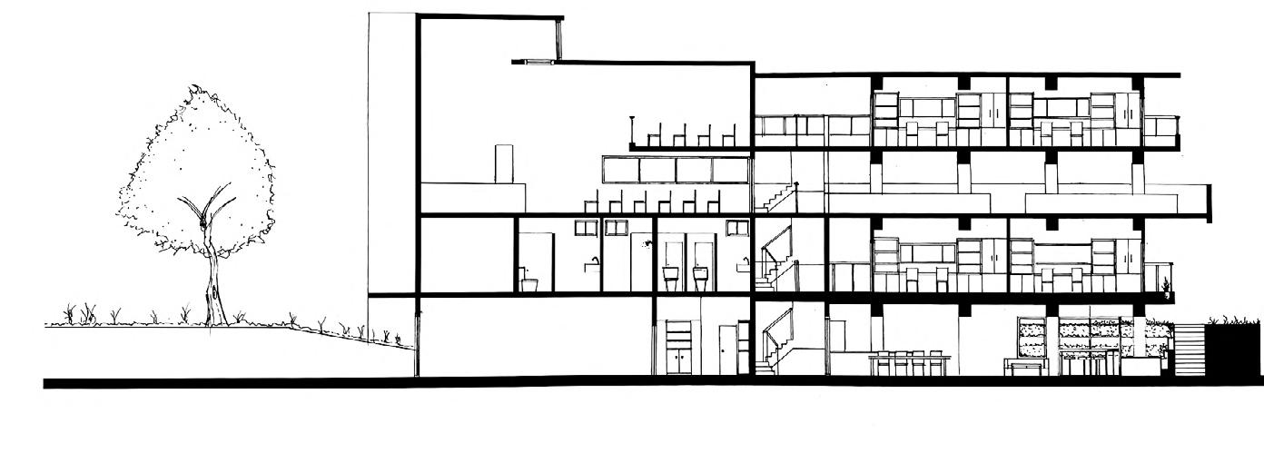
設計上透過介入虛空間,產生「光影」及「聲 音」的傳遞,同時使用錯層差,使各領域能夠彼 此對望,家庭關係彼此牽絆。 實、虛之間的空間遊戲 一樓平面圖 二樓平面圖 三樓平面圖 剖面圖AA' 剖面圖BB' 剖面圖CC' 剖面圖DD' Architecture Design 聚/望/日常 04

建築物北側與廟宇相鄰,透過脫開的外牆進行阻隔,

圍蔽形成內院空間,模糊了私領域與庭院的界線,並將自

然環境帶入其中,各項開口的設計巧思,使住宅與庭院沒

有明確的隔閡。

虛空間的梯間天井設計,與各空間相鄰,為室內空間

帶來充足的採光,同時也是連結個空間的橋梁,同時也帶

來對望的關係,回應主題的聚與望。

Architecture Design 05 聚/望/日常

流少,學生們會在街道上嬉鬧、追逐等等

時候,過大的空地導致原本的空間氛圍消

失,這裡沒有什麼注目性,也像失去了方

02 尺度/凝聚力 敬拜堂/學生中心與宿舍 全人村一側校園出口,是一個寧靜、 尺度小的巷道,這裡植栽豐富,隱蔽性高, 學生彼此互動緊密,沿著巷道漫步進入社 區後,尺度變得稍微開闊,舒適,並且車
比較活潑的互動,而漸漸的移動到基地的
向感一樣,在開闊的空間生活也讓學生彼 此關係變得疏遠。 設計期望延續原本巷弄尺度的感受, 延續放學回家路徑帶來的氛圍,使學生彼 此關係更加親密。 尺度/凝聚力 06

從設計之初開始尋找感知的原因,路徑被舒適的街道尺度圍蔽,彎曲

的路徑使視線避開了新中北路的龐大車流,因此空間安靜、舒適,並且 伴隨豐富的植栽,而這樣的氛圍至基地後被阻斷,過大的空地帶來的尺 度差異導致空間氛圍不連續。

基地位在各宿舍及校園空間的中繼站,周邊有許多學校設施,為學生 上學、放學經常通過的場域,作為校園生活的中繼站,並提供附近的學 生休息,聚會的場所。如何引導動線成為配置最主要的概念。

放學回家的路徑,氛圍舒適,學生多游走、漫步,漫步的路徑是帶有曲線 的,再沿著拋物線向彼此前往的地點分散出去。信實與熱忱宿舍從環中東路前 進的路徑,發生在前往學校的路上,像是切線般移動到基地外的人行道。力 行、體育館及游泳池前往的路徑,通常是休息、吃飯、找朋友的學生,會沿著 靠新中北路的入口斜向進入。並且基地現況沒有人行道,配置上必須再退縮一 些,提供行人行走的空間。西側、南側也有許多的學生族群住宿,將來建築物 建造完後,原本穿透的視線將被阻隔,在配置上視線的交會處退縮一點空地, 讓建築物能被梯井垂直的玻璃窗空間有所注目。同時起到邀請學生們進入空地 使用,強化兩側居民的凝聚力的作用。另外再基地西北方擁有美好的夕陽光, 在建築物的面相上予以保留。

Architecture Design 07 尺度/凝聚力
地下一層平面圖 一層平面圖 二層平面圖 三層平面圖 BB'剖面圖 A A' B B' Architecture Design 尺度/凝聚力 08

透過銜接街道的尺度以延續全人村出口至基地的街道氛

圍,讓學生放學回到宿舍的感受是連續性的,並在匯集處應

用下沉廣場設計,可以阻擋視線穿透看到車流,也強化了領

域感。在私領域的宿舍配置貼近地面,空間氛圍延續了原本

的巷弄感,讓住宿者與周邊環境連結更緊密,內部的生活空

間設計以散落的島嶼為概念,目的是使學生找到彼此喜好的 休息空間。

在入口意象上,設計以凝聚力出發,作為學生族群的中

繼站,現況基地印象薄弱,因此以較為封閉,匯聚人流的入

口,並加入教會背景西方藝術的意象,讓建築帶有一點曲線,

使用較高聳的整體及中心性進行規劃。

回家路徑銜接街道尺度 空間下沉作為動線的匯集處 以敬拜堂中心性提升凝聚力動線的交織處的相聚空間
Architecture Design 09 尺度/凝聚力

水岸黑膠咖啡廳

室內設計/商業空間設計

數位化、科技化的時代,人們一年買

不到一張唱片,「唱片行」不確定還是不

是所有人都知道的名詞,在駁二,客源買

東西大多是買一個感覺或是回憶,而最需 要抓住消費者前往的方式是「特色」,結

合以往唱片行的復古懷舊風情,賦予咖啡

廳的約會、聊天、休息元素,開設一間提 供休息,聽音樂,喝咖啡,買唱片的水岸

商店。

03
Parking area Open-air Theatre PavilionPark Dining area Shopping AreaeaBar Afternoon tea 1.購物空間 5.親子閱讀區 2.點餐櫃檯 6.多人用餐區 3.檢票櫃台 7.唱片包廂 4.單人用餐區 8.二手唱片區 1.2. 3. 4. 5. 6. 7. 8. Interior Design 11 水岸黑膠咖啡廳
Interior Design 水岸黑膠咖啡廳 12

6.黑色石紋以深淺排列,營造專注的空間氛圍

7.展示櫃運用淺色木紋,襯托顏色多變的商品

8.應用深色拼接木紋區分販售商品的領域狀態

點餐櫃檯空間 軟性元素 購物空間 1.樓梯以深色木紋強調空間連貫性,運用暖色調轉換較私密的氛圍 2.點餐空間以複雜拼湊的木紋強調空間的獨立性 3.運用白色粉刷梯面帶出立面的整體感,強烈對比北歐藍的壁面 5.以深色木紋作為櫃面,強調底部重量感
黑膠唱片作為主體的商業空間,商品本身具有大量資訊與色彩,因此在 裝飾上、燈具上,以淺色、素面的材質進行設計,以商品本身特性 裝飾空間,運用商品特性設計氛圍。 1. 5. 6. 7. 8. 2. 3. 4. Interior Design 13 水岸黑膠咖啡廳
設計理念 空間配採用迴廊式設計,並且在視覺上設計複雜排列的主牆面,作為重點展示區域,點餐櫃檯與戶 外用餐空間、2樓用餐空間相鄰,並配置大面落地窗與水岸風景連接,引入戶外空間氛圍。 黑膠唱片包裝琳瑯滿目,顏色多變,因此在空間的色彩設計上較單一,承襲傳統黑膠唱片機經常出 現的深色調、金屬色調、木紋質感,在空間材質的配置上也做出相對應的設計,帶出設計出發點的氛圍。 Interior Design 水岸黑膠咖啡廳 14

在二樓空間中,設計了兒童閱讀區,提供父母與小孩同樂的場所,剩餘

空間劃分為多重座位區,在座位區的兩側有CD播放機,可在店內租用CD 後撥放,也可戴上耳機沉浸在音樂之中,在空間的另半部設置了個人及雙人

休息室,休息室內採用凸窗的設計,有更寬廣的視野,外部則是老舊物品販

賣區,是遊客挖寶的秘密基地。

在通往二樓的樓梯下,利用樓梯板延伸出置物空間,使大面落地玻璃有 了注目的焦點,由於前後都採用落地玻璃,路過的遊客除了近景外更可遠眺 後方的公園景觀。 咖啡吧檯區的設計,材質選擇較為華麗,整體空間更加明亮,透過大面 採光玻璃營造通透性更高的區域,讓原本走在駁二街道上的遊客,視線可穿 透直達水岸邊
Interior Design 15 水岸黑膠咖啡廳

逐浪者/商旅/飯店

室內設計/商業空間設計

衝浪者的文化是一種信仰,一些人會

在黎明前醒來,為了在開始工作或上學前 衝浪幾小時。真正的衝浪者是「從容不迫 的」,因為衝浪,教會了他們保持耐心等 待下一個挑戰。

東河金樽是臺灣唯一正在形成的陸連 島,綿延達三公里長的純淨沙灘及海浪, 除了吸引臺東當地的衝浪好手挑戰,更抓 住了世界衝浪聯盟的目光。以「衝浪」為 概念,結合其發源地「波利尼西亞」的裝 飾風格元素,發展逐浪者度假飯店設計。

04
1. 2. 4. 5. 6.3. Interior Design 17 逐浪者/商旅/飯店

繼承衝浪信仰,在大廳的氛圍以安靜、注目性為出發點進行設計,動線分為用餐動 線及入房動線,主視覺使用衝浪板進行呈現,在材質運用上,使用石英磚的沙色調作為 設計主軸,以大地色調輔助空間的層次與搭配,並運用柱列強調對稱引導視覺焦點。

大廳材質運用

1.石材壁面突顯材質的層次感,應用拋光石英磚、紋理石英磚、花崗岩、 木紋石拋光磚,設計上採亂數排列,避免單調。

2.大廳等待區的地板鋪面使用灰色調木紋磚進行設計,暖化空間氛圍、同

3.運用竹紋清水模壁面導入紋理,引導動線至餐廳。

4.人造米蘭石地板鋪面的應用,模仿了沙灘帶來的氛圍。

5.主視覺牆面應用深色胡桃木紋理,突顯藝術壁畫。

6.混凝土粉光材質的運用,界定建築結構的力學美感

時達到銜接石材鋪面的作用。
大廳 餐廳 夜店酒吧 Interior Design 逐浪者/商旅/飯店 18
海景房設計 房間的設計發想,帶入南洋風格語彙,大量使用木質地,結合衝浪發源地「波利尼 西亞」的風格,以裝飾輔助氛圍的營造,暖色調及波里尼西亞文化常見的編織品,塑造 溫暖木屋的氛圍,讓入住的旅客更能體會到南洋島嶼風情。 Interior Design 19 逐浪者/商旅/飯店
對於衝浪者來說,衝浪板不僅僅是工具,更是共同努力的夥伴,在房間 一處設計置放衝浪板的位置,與衣櫃壁面做結合,讓住宿旅客共同參與創作 空間。 Interior Design 逐浪者/商旅/飯店 20

紀念一個山海交會的聚落

大學畢業製作

過去的舊都哈瑪星,邊緣有許多像安

船街三十巷一樣的庶人聚落,這些自行搭 建的建築順應著自然建構,並充滿生活的 痕跡。

以舊社區保留的議題出發,將聚落重 新規劃為薪火相傳的學生宿舍,賦予新的 使用,並給予學生們建構及改善環境的環 境,老舊聚落注入不同的靈魂延續新的生 命,以此將學生的足跡遺留於安船街三十

巷,並延伸、且照亮過去的舊都哈瑪星。

05 浮世隱逸

過去,哨船頭是高雄港區最早期發跡的海港,曾是船

貨、釣具及倉庫混雜的地方,打狗開港以後,外國商人等

共同設計開墾山地,並填海造陸,當時的海關、外國領事

館均設置於此地。

安船街30巷,一個年代很久,卻默默無名的地方,在

因緣際會下,我們來到了這個基地,起初覺得是個很破舊

地形特殊的地方,但深入了解後,才發現這裡的身世。原

至英國領事館,以及上山砍柴取水使用,也就是我們現在

來,在清朝時期,這條步道是作為奴僕們運送乘客或貨物
的安船街30巷,隱匿在哨船頭之後,壽山之間。 壽山,珊瑚礁地形,戰後的遺民們在此沉澱打造了建築,成為富 含人文背景的土壤,舊有聚落導入書院宿舍理念,學生在此學習發表, 同時也為聚落帶來新生與綻放。 -建築群並沒有經過規劃,自行搭建而成的聚落建築物。充滿著各式 生活的痕跡。 -安船街三十巷,過去為通往英國領事館的工作之道,也因此成為庶 民的聚集地。 雞籠山頭上 日據時代遺留下的機槍堡位置 基地位置 高雄市鼓山區安船街三十巷 壽山 第一船渠港口 過去繁華都市哈瑪星 Graduation Project 浮世隱逸-紀念一個山海交會的聚落 22

基地於1977年經過賽洛瑪襲擊高雄後遭受重創,當時木造房子幾

乎全毀,現況是由當地住戶重建而來,由於並沒有經過規劃,在山頭

上的房子呈現隨地形而建的狀況。

閱讀基地的建築狀態,在整體規劃上,首先注重基地面對的碼頭景

觀,那是過去人文背景的重要連結。因此建築順應著等高線發展,能

夠使每個空間都能夠擁有景觀,並拆除過度增建,換得建築中的緩息

空間,以增加虛空間使空間產生流動性。由於高程影響人行動線,在 規劃時增加樓梯與平台,串聯錯落的各項空間。 -拆除增建的建築成為空地,規劃植栽種植課程,後花園除了增加採光以外,也過濾了夏季較熱的西南季風。 下午光照 在建築規劃上,保留原本建築的外觀,重新規劃開口並改善屋頂的抗輻射熱能力,增建複層屋頂、使用隔熱 牆建材,並依據夏季與冬季改善開窗方位,除了有更好的採光,室內也更加舒適 -宿舍室內設計保留建築原始的樣貌,採用素水泥牆面與木材質做搭配,延續基地的樸實。增設天窗後有效解 決了採光的問題,室內更加明亮。 Graduation Project 23 浮世隱逸-紀念一個山海交會的聚落
1.串聯高層後的平台空間 2.順應等高線的共饗食堂 3.整體坡地為階梯草坪的導師宿舍 1. 2. 3. Graduation Project 浮世隱逸-紀念一個山海交會的聚落 24
建築外觀延續了基地原本質樸的氛 圍,使用混凝土及磚造材質,另外增 加了架高式的臥室以及採光罩等新的 宿舍使用公共區域的時間較長,保留大部分空間為公 共區域,將綠植栽引進室內中心。抬高地板打造簡易的 和室,並延伸至室外,除了減緩前往二樓的上下落差, 也給予學生一個親近自然、放鬆看書的場域。 舊建築與新元素融合 解構樣貌傳統建築 Graduation Project 25 浮世隱逸-紀念一個山海交會的聚落
傳統宿舍大多只附有交誼廳,對於學生課後學習並沒有實質幫助, 在新型宿舍中針對學生個別規劃機能,將專業學 習的場域結合,設計專屬學生的實務辦公室。 原本緊鄰的建築各自退縮成走廊,利用挑空引進光源,也增加上下 互動關係,室內成為學生輕辦公的空間,也歡迎客人參觀及前來討論。 跳脫傳統宿舍空間機能 建築改建計畫 Graduation Project 浮世隱逸-紀念一個山海交會的聚落 26
在議題的尾聲,討論聚落式的書院宿舍如何擁有未來展望,面對的是部分的商業 與學校計畫的置入,大學即為小型的社會縮影,在書院宿舍的理想下,學生們的專業 培養是開放且能被檢視的,即是書院宿舍將成為學生們展示自我價值的舞台,以專業 發展的辦公室出發,同時經營咖啡廳、並且置入展示作品的空間,能夠讓學生在這個 Graduation Project 27 浮世隱逸-紀念一個山海交會的聚落

的人們都忘了要彼此交流,在晚上的收聽由學生經營的聚落電台,講述著聚落及社區 的大小事,它會成為學生時期中共同的回憶及經歷,同時也是一個透明的,可以被哈

過去,在安船街三十巷旁的雞籠山頭上,遺留下來了日治時期的碉堡,它是防衛 鼓山區的設施,碉堡的存在也敘述著它將守護著鼓山區的人民,是使人「安心」的象 徵。設計中,想到了延伸議題的結尾,如何延續聚落的新生以及拉近與社區的距離, 與過去的「放送臺」聯想並與之呼應。 設計上將碉堡的保衛概念,轉化成為散播關懷的場所,在忙碌生活中,各式各樣
瑪星所看到的地方,在晚上也將哈瑪星的一個亮點及象徵,帶給人們舒心的夜晚。 營造社區形象的打狗放送臺 Graduation Project 浮世隱逸-紀念一個山海交會的聚落 28

Applying the Folding Unit on Simulation and Digital

Fabrication of Masonry Vault

06 摺疊單元應用於砌石拱頂構造 模擬與數位製造之研究 碩士論文/數位製造與結構優化 指導教授 : 陳宏銘 博士 利用離散化單元能夠分別加工製造、組裝、高自由度 較易施工的特性,發展結構橫截面調整的結構優化方式, 透過參數編程及數位加工製造優化,完成拱頂構築實作。 利用板材具有韌性、可彎曲並能摺疊產生結構抗性,以二 維切割摺疊系統編程製造,快速成形三維砌石拱頂構造, 並以Karamba3D負重及彎曲應變能分析作為基礎,進一 步檢討橫截面與整體結構的可能性。以兩種力學模擬軟體 分析結果與數位製造的實作相互檢驗過程,作為擬定開發 流程的基礎,並以多種拱頂形態設計反覆演繹開發流程進 行實體構築驗證,最後提出一種有效的整體與單元生成方 法。
Key word : Digital Fabrication, Folding Unit, Free-form masonry vaults, Discrete assembly, Structural Analysis, Cross section optimization, The structural Development Process

研究嘗試透過兩種力學模擬軟體操作與數位製造的實作

相互檢驗過程,並提出一種有效的整體結構與離散化單元生 成方法。首先以RhinoVault進行拱頂的找形設計,軟體基於

Philippe Block所開發的Thrust Network Analysis(TNA),以

圖解方法計算壓縮的拱形樣式和網路,並在重力載荷下進行 互動互易,接著基於Karamba3D結構分析與優化制定拱頂結 構測試方式,提出一套砌石拱頂構造的實作流程。

綜合測試結果來說,橫截面優化是一種梳理拱頂結構的方 法,使結構彼此的關係開始有脈絡可循,結構利用率被明確 的規劃,並且產生力流傳遞的連續性。橫截面厚度的變化也

使拱頂的形態產生變化,建立了單元彼此壓縮的關係,也就 是說,均質的厚度並沒有完全發揮找形設計後形態所提供的

結構力學作用,並說明橫截面優化對於拱頂結構十分重要。

作為單元塊體以形抗原理建構的拱頂結構系統,其離散化塊體的分割

方法與摺疊系統能夠被巧妙的進行轉換,同時以網格建構的參數編程方

法應用與摺疊系統的幾何原理具有相當程度的適應性,能夠取得其幾何 原理參數資訊並進行編程。 本研究以Karamba3D進行結構分析及優化,透過輸出分析圖面並且 以模擬施加不對稱負重方法,取得結構利用率數據實證,反覆探討分析 圖與利用率之間的關係,並在最後提出拱頂橫截面優化形態變化的方式 與邏輯,並以橫截面厚度資訊對比結構利用率數據圖表判定優化成效。 Master's Dissertation 摺疊單元應用於砌石拱頂構造模擬與數位製造之研究 30 Parametric programming & Digital Fabrication Structural Analysis & Cross section optimization -當推力網路分析碰上塊體物化及結構優化這兩項挑戰時,才是真正踏上拱頂結構實踐的開始,以RhinoVault2進行型態設計,並應用編程及分析優化方法,研究使用8種自由曲面拱頂基本型態 進行優化測試比對,在論文的最後,驗證橫截面優化對於拱頂結構來說至關重要。

離散化單元的砌石拱頂在結構正確運算並精準分割的

情況下緊密接合,受壓後生成的推力力流能夠提升作用於

砌石單元間的壓縮力,整體結構將會變得更加穩固,而當

砌石拱頂的形抗原理轉換至摺疊系統結構,石塊具有的質 量及切面接合的摩擦力是輕薄摺疊材料不具備的,這在拱

頂結構系統中是不可或缺的要素。

而在Voussoir cloud案例中,束帶巧妙的取代了這項

要素,束帶的作用除了將摺疊單元的端點處彼此進行固定

以外,上寬下窄並彼此接合的離散化單元幾何關係也讓束

帶提供了外框架拉力,進而提升了材料摺疊形成的張應力,

並在負重受壓時,能夠利用材料摺疊及束帶作用產生的材

料抗彎剛度及張應力傳遞拱頂結構中的要素之一「推力」。

力學關係與拱頂系統中透過負重及壓縮傳導推力的方式 極為相似,在形成拱頂結構體後,負重產生的壓力傳導至

底面,彼此擠壓的底面生成與薄殼結構相同的表面張力,

使整體結構產生上推力量,緊密的接合也讓整體結構能夠

將力流傳導至拱頂結構的支撐處。

Master's Dissertation 31 摺疊單元應用於砌石拱頂構造模擬與數位製造之研究 研究摘要 ABSTRACT 研究方法 Research Methodology 數位製造 Digital Manufacturing 結構優化 Structural Optimization 文獻探討 Literature Review 參數編程 Parametric Design RhinoVault2形態找尋 Form Diagram Thrust DiagramForce Diagram Kangaroo物理運算平面化 建立側翼後進行攤平工作 03 .摺疊系統的參數編程 Form Force Thrust

進行摺疊系統的編程,首先,使用RhinoVault以3X12的 網格進行拱頂的初步設計。研究將曲面沿網格頂點合向量擠

出,能夠保持法向量的一致性並得到隨曲率變化的側翼,但 生成的側翼可能為曲面,不適合二維切割製造,因此要進行

製造優化。研究使用物理運算引擎Kangaroo2對側翼進行平

面化工作流程,操作方式是將側翼轉角的錨點 (Anchor) 及邊

長(Edgelengths)施加一個固定的力,再施加足夠的攤平力

(Planarize)。這個工作流程使用Grasshopper的物理引擎模 擬外掛軟體袋鼠(Kangaroo)。

的四邊形由四個點構成,且每個點皆有 軸的座標資訊,因此在三 維空間中由四個點構成的面可能會產生曲率。而使用平面板材構成

拱頂由四邊形曲面網格構成,二維製造必須在材料平整的 狀態進行加工並摺疊形成曲面,因此進行三角剖分有利於二 維製造,剖分方法使用德勞內三角剖分,能夠分割出具有良 好性質的三角形,並避免銳角三角形導致曲面偏離。

離散化單元的龐大資訊量,是參數編程的難題,對流程的 設計、製造及施工進行參數化,能夠快速編修,更重要的是 通用的製造方法,其中「幾何學」就是一項取得資訊的關鍵, 運用四邊形幾何原理與四邊形網格資訊作為自動化流程基礎, 能夠幫助「資料結構」的整理配對及攤平製造。

本研究編寫的自動組織及優化方法,使用了Ngon幾何優 化外掛的配對投射,將網格與側翼組織成獨立單元,再將底 面與橫截面拆分,底面使用德勞內三角剖分,並以參數邏輯 統一面的法向量,橫截面使用網格拆分成四邊側翼,再依照

底面、左、上、右、下的順序重新編入群組。

-網格的組成概念

取自於Dymano對於網面的解釋與說明

-形與其幾何關係的幾何數據

Table of Geometry, from the 1728 ''Cyclopaedia'', Volume 1.

Master's Dissertation 摺疊單元應用於砌石拱頂構造模擬與數位製造之研究 32
塊體的方式, 雖然紙材能夠彎折,但在人工進行的施工及製造中,曲面是較難控制的因素,因此需 要劃分彎折的線,使面能夠達到接近曲面的狀態。 配對投射 會將底面及頂面 彼此配對後以投影的方式組成 嵌 塊體 ,投影 方法是 將頂 面及底 點的差值 制點 傳導 用原本的曲面進行投射,並將差值設定為 面 無論座標怎麼移動,都能夠確保面是 平整 的狀態 ,因此將曲面進行三角剖分 (Triangulation)後將有利於後續的製造。 圖 3 6 09 網格的組成概念 網面面 頂點法線 網面邊 網面網格 裸露邊 網面 網面網面面網面邊 點 Delaunay triangulation Not suitable 研究摘要 ABSTRACT 研究方法 Research Methodology 參數編程 Parametric Design 數位製造 Digital Manufacturing 結構優化 Structural Optimization 文獻探討 Literature Review 研究結論 Conclusion 拱頂結構自動優化組織方法 拆分單元群組 底面三角剖分 統一底面法向量 橫截面拆分重組 拆分底面及側翼組織 底面三角剖分並 橫截面按順序 與底面共同組成 操作邏輯 拆分底面及側翼組織為 群組單元 底面三角剖分並 統一法向量 橫截面按順序 重新組織 與底面共同組成離散化 結構單元 操作邏輯

在系統設計中,摺疊系統的製造是以中心向外攤

開的展開圖摺疊成形,之前的工作中已經對每個單元

的五個面進行編排順序並進行群組,在這一個工作

流程中,將會對這些群組內容加入參數進行編輯。

Grasshopper網格展開外掛 常春藤(Ivy)是一個能夠將

網格分析、分區、展開並生成平面展開圖進行製造的 外掛軟體,運算邏輯使用「圖論」中的概念和算法,

並將它們應用於網格幾何探索,主要操作的方式是對

每個面施加「權重」來決定攤開面的順序。

在操作邏輯中,展開圖希望以底面為中心向外攤

開,首先取得每個網格的中心處(Mesh Area)由於塊

體是曲面,中心處在面之外,因此使用接近網格的點

(Mesh Closet Point)取得網格中心點,再取出圖邊的

中點(Point On Curve),最後計算網格中心點到圖邊

中點的距離,以此距離作為「權重」資訊,將資訊代

入進行展開的運算工作。依序對紙板進行折疊、再使 用束帶束緊後生成摺疊系統建構的拱頂結構系統。

Master's Dissertation 33 摺疊單元應用於砌石拱頂構造模擬與數位製造之研究
研究摘要 ABSTRACT 研究方法 Research Methodology 數位製造 Digital Manufacturing 結構優化 Structural Optimization 文獻探討 Literature Review 網格圖邊運算及拆解 拆分邏輯編寫 自定義權重攤平方式套入運算邏輯 參數編程 Parametric Design 研究結論 Conclusion 輸入網格拆分邏輯攤平製造 04 .摺疊系統的數位製造 由圖邊運算拆分的線尋 求中心點 取得每塊拱頂網 格的中心點 中心點相連計 算距離 參數化數值 編寫權重 攤平邏輯

摺疊系統能夠快速製造及快速施工,能夠進行多項測試並延伸討論結構系統 與優化。離散化單元的橫截面對結構非常重要,透過觀察負重與撓曲分析,討論 結構橫截面優化的可能性,再比對結果進行優化的迭代循環找尋最佳設計方案。

分析模擬及優化軟體將使用Karamba3D,軟體操作方法將結構拆解成模型、 支撐點、負重方式等參數,重新組裝後即可察看結果。

本研究將利用率分析作為判定結構狀態的方法並使用 數據進行檢討,判斷結構是否為有效結構。

綜合各項分析方法,提出了橫截面優化改善方向:

1.優化形態提升整體結構的壓縮力

2.增加拱頂的支撐處厚度抵抗負重造成結構的向外伸張

3.透過橫截面的厚度變化引導力流傳導

4.橫截面的厚度變化能建立離散化單元彼此的壓縮關係

5.調整力流傳導方向改善結構易撓曲區域

6.計算利用率低的區域減少厚度

Master's Dissertation 摺疊單元應用於砌石拱頂構造模擬與數位製造之研究 34 拆分 重組 分析 研究摘要 ABSTRACT 研究方法 Research Methodology 文獻探討 Literature Review 參數編程 Parametric Design 數位製造 Digital Manufacturing 研究結論 Conclusion 結構優化 Structural Optimization 非線性WIP分析方法 研究摘要 ABSTRACT 研究方法 Research Methodology 文獻探討 Literature Review 參數編程 Parametric Design 數位製造 Digital Manufacturing 研究結論 Conclusion 結構優化 Structural Optimization 調整負重 迭代次數、最大撓度、結構利用率 設定橫截面厚度區間 研究摘要 ABSTRACT 研究方法 Research Methodology 文獻探討 Literature Review 參數編程 Parametric Design 數位製造 Digital Manufacturing 研究結論 Conclusion 結構優化 Structural Optimization 03 .結構優化的流程及分析比對 調整負重 迭代次數、最大撓度、結構利用率 設定橫截面厚度區間 研究摘要 ABSTRACT 研究方法 Research Methodology 文獻探討 Literature Review 參數編程 Parametric Design 數位製造 Digital Manufacturing 研究結論 Conclusion 結構優化 Structural Optimization 03 .結構優化的流程及分析比對
拱頂結構可變負重分析 橫截面優化後負重分析 橫截面優化後撓曲分析 拱頂結構撓曲分析 拱頂結構橫截面優化

在實踐論文的階段,運用RhinoVaul2t找形設計中塑形能力最高的從 骨架找形方法,以正交的方式進行最初繪製,並預留兩個開孔處,其一為 生成下拉拱結構的位置以增強結構穩定性,其二作為最終接合處及引進光 線的開口,方便施工閉合。下階段可以透過移動骨架點及調整網格邊界等 等去修改生成Pattern狀態,並運用軟體運算找尋合理的邊界條件,逐步 運算能夠避免形變過大產生邊界交錯狀況,以利後續製造。

在設定均等橫截面5公分寬時進行分析,負重分析中發現結構並沒有

取得良好的關係。撓曲分析中在跨度較大的開口也有多處撓曲。而在軟體 運算優化後重新進行負重分析,可以觀察到壓縮及拉伸取得良好的狀態, 說明結構受壓穩固,支撐處的強度足夠,並以利用率分析觀察,發現結構

有起到支撐及平衡的作用,後續將會以此方案進行構築。

負重分析比對

撓曲分析比對

研究摘要 ABSTRACT 研究方法 Research Methodology 研究結論 Conclusion 文獻探討 Literature Review 參數編程 Parametric Design 數位製造 Digital Manufacturing 結構優化 Structural Optimization Curve Initial Form Diagran Design Form finding design Create curves From skeleton 05 .拱頂構築找形設計 研究摘要 ABSTRACT 研究方法 Research Methodology 研究結論 Conclusion 文獻探討 Literature Review 參數編程 Parametric Design 數位製造 Digital Manufacturing 結構優化 Structural Optimization Secondary Form Diagran Design Force Diagran Thrust Diagran Move Skeleton Vertices Identify Supports Move Coarse Mesh Vertices Reduce the number of units From line to create Pattern Update boundaries Horizontal equilibrium Vertical equilibrium Form Diagran Update boundaries Master's Dissertation 35 摺疊單元應用於砌石拱頂構造模擬與數位製造之研究
利用率分析比對
Master's Dissertation 摺疊單元應用於砌石拱頂構造模擬與數位製造之研究 36 -當圖解靜力學拓展至參數化設計軟體,非結構專業的設計者也能夠利用RhinoVault設計工具進行拱頂設計,而當推力網路分析碰上塊體物化及結構優化,才是真正踏上拱頂結構實踐的開始。由於多向 度的力流與複雜幾何分割,結構需透過精細計算才能夠穩固,也導致實踐十分困難,因此本研究透過分析、編程,並進行模擬及模型測試以驗證拱頂結構力學,進而擬定拱頂結構的開發流程,並利用此 流程找尋拱頂設計及實踐的最佳方案,以真實的構築實踐驗證模擬與假設。

Turn static files into dynamic content formats.

Create a flipbook
Issuu converts static files into: digital portfolios, online yearbooks, online catalogs, digital photo albums and more. Sign up and create your flipbook.