Revista Cromos: Paseo de la Sexta

Page 1


CROMOS

PASEO DE LA SEXTA

Historia y casos de estudio

Recuperación Integral de Barrios Extractos de la Cuarta Actuación

CENTRO HISTÓRICO, CIUDAD DE GUATEMALA

Municipalidad de Guatemala

Álvaro Arzú Irigoyen

Alcalde

Ernesto Porras Castejón

Presidente del Consejo Consultivo del Centro Histórico

Ricardo Rodríguez Hevia

Dirección Centro Histórico

Arturo Portillo Rodas

Coordinación General Programa

Revitalización Integral de Barrios

María Paz Suasnávar

Coordinación Seminario

Andrés Herrera

Diseño Gráfico y Diagramación

Junta de Andalucía

Elena Cortés Jiménez

Consejera de Fomento y Vivienda

José Antonio García Cebrián

Viceconsejero de Fomento y Vivienda

Amanda Meyer Hidalgo

Secretaria General de Vivienda, Rehabilitación y Arquitectura

Emilio García Fernández

Secretario General Técnico

Francisco Márquez

Coordinador de Cooperación

Internacional en Guatemala

Esta publicación es una reedición ampliada y actualizada, de la versión digital elaborada en noviembre 2011 y su impresión fue posible gracias a la Consejería de Fomento y Vivienda de La Junta de Andalucía

Colaboraciones Especiales

Aníbal Chajón

Consultor de Historia para el Centro Histórico

Indira García

Edición Digital Previa

INDICE

INTRODUCCIÓN

Cuarta Actuación 02 Protocolo General 03 De La Junta de Andalucía

LA SEXTA AVENIDA

Sexta Avenida, Historia de una Calle Real 04 Anécdotas y cambios constantes 08 El Sexteo y otras actividades 10 Arquitectura de ayer y hoy de La Sexta

Empresa Eléctrica 11 Pasaje Rubio, La Perla, Elma 12 Astoria, Hispania, La Juguetería 13 Banco Internacional y Central Club Guatemala, Esquina de la 11 Calle 14 Engel, Samayoa Boniface, Teatro Lux 15 Mansión San Francisco, Santa Clara y su convento 16 Templo de San Francisco 17 Palacio de la Policía Nacional, Parque Gómez Carrillo

PASEO DE LA SEXTA

Un Centro Histórico para vivir 18 Un joven corre por la Sexta Avenida 19 El proceso de cambio 21 El Paseo de la Sexta

SEMINARIO PASEO DE LA SEXTA

Patrimonio Futuro

24 Actividades previas y paralelas

26 Las mesas de trabajo

28

32

36

40

44

Equipo 1: París XXI

Equipo 2: Casa Sky

Equipo 3: NeighborHUB

Equipo 4: Pixelarte

Equipo 5: Quince 22

INTRODUCCIÓN

Cuarta Actuación

Protocolo General

En Ciudad de Guatemala y Sevilla, reunidos D. Juan Espada Cejas, Consejero de Vivienda y Ordenación del Territorio de la Junta de Andalucía, y D. Álvaro Arzú Irigoyen, Alcalde Municipal de la Ciudad de Guatemala, exponen el Programa de Actuaciones, dentro del cual se define la Cuarta Actuación:

4. Intercambio de experiencias y conocimientos

4.1. El objetivo fundamental de la presente actuación es mejorar la capacitación de profesionales guatemaltecos y favorecer el contacto profesional internacional entre jóvenes estudiantes universitarios.

4.2. Para la consecución de tales objetivos se pondrán en marcha las siguientes actividades: Realización de un taller anual de intercambio de experiencias y conocimientos en temas de Centros Históricos durante los tres años de vigencia del presente Programa de Actuaciones. Se invitará a tres profesionales de Universidades de Andalucía y tres profesionales de Universidades de Guatemala para que impartan talleres para jóvenes estudiantes universitarios que se encuentren cursando los últimos años de las carreras de arquitectura, urbanismo, historia, antropología, economía y demás disciplinas relacionadas con los centros históricos.

Los talleres se compondrán de un máximo de 50 estudiantes previamente seleccionados por un comité conformado por miembros de la Oficina del Centro Histórico de la Municipalidad de Ciudad de Guatemala. La duración de los talleres será de una semana.

4.3 La parte española destinará a estas actuaciones, una cantidad de hasta € 40,000 (euros) para transporte, alojamiento y pago de aquellos profesionales que impartan los talleres, así como materiales y el equipo necesario para la ejecución de los mismos.

4.4. La parte guatemalteca sufragará los gastos derivados de las aportaciones de personal para la gestión general del programa y se compromete a coordinar los talleres y proveer el espacio físico y los servicios para la realización de los mismos.

De La Junta de Andalucía

Entre el 19 y el 23 de septiembre de 2011, se ha celebrado en la Casa Ibargüen de la Oficina del Centro Histórico de la Ciudad de Guatemala el primer seminario correspondiente a la Cuarta Actuación del Programa de Actuaciones que da forma al Protocolo de Cooperación Internacional entre la Consejería de Fomento y Vivienda de la Junta de Andalucía y la Municipalidad de Ciudad de Guatemala que gestiona la Oficina del Centro Histórico.

La Cuarta Actuación pretende establecer un intercambio de experiencia y conocimientos entre profesionales de la arquitectura guatemaltecos y andaluces. Como desarrollo de esta actuación se produce el primer seminario en apoyo a la intervención que la Municipalidad de Ciudad de Guatemala ha realizado en la 6ª Avenida, a partir de la elección de cinco propuestas para intervenciones de rehabilitación de edificios situados a lo largo de dicha arteria, dirigidos por arquitectos guatemaltecos a partir de un régimen de taller donde han participado estudiantes de universidades guatemaltecas y con apoyo de profesionales andaluces.

Podrán conocer en esta publicación el excelente trabajo realizado por

los distintos talleres que dirigieron los arquitectos guatemaltecos, David Garda, Thomas Bland, Rafael Yee, Alejandro Paz y Manuel Pineda, con el apoyo del arquitecto andaluz José Ramón Sierra y del arqueólogo y ex-alcalde de Úbeda, Marcelino Sánchez, quienes impartieron sendas conferencias donde se desarrollaron nuevos conceptos entre la relación Arte- Arquitectura y el modelo de gestión municipal para conseguir la declaración de Patrimonio de la Humanidad que Úbeda consiguió conjuntamente con Baeza.

Con este primer seminario se pone en marcha una experiencia de alto valor para difusión de la cultura arquitectónica como instrumento imprescindible para la intervención y salvaguarda de los centros históricos y su aportación al impulso de la actividad inmobiliaria en la zona 1, a partir de ejemplificar con los trabajos realizados las oportunidades existentes en el Centro Histórico después de la intervención de rehabilitación de la 6ª Avenida que recupera un paseo tradicional de los guatemaltecos a la vez que la dota de una infraestructura actualizada a los nuevos requerimientos de una sociedad moderna.

Agradecer al alcalde Álvaro Arzú su apoyo y sobre todo al Director

del Centro Histórico de la Municipalidad de Guatemala, Ricardo Rodríguez su incondicional aliento, que junto a la dedicación y buen hacer de los arquitectos Arturo Portillo y María Paz Suasnávar intentan hacer realidad las aspiraciones de los habitantes del Centro Histórico de Ciudad de Guatemala.

Francisco Márquez Pedrosa. Sevilla, Septiembre de 2011

SEXTA AVENIDA

Historia de una

Calle Real

Anécdotas y cambios constantes

Aníbal Chajón

Si hay un punto urbanístico que define a la Ciudad de Guatemala, es la Sexta Avenida, verdadero corazón de la urbe. La vía ha estado ligada a todos los cambios ocurridos en la ciudad y el país, desde los gustos, que abarcan la moda constructiva y de indumentaria, hasta la política, las aficiones gastronómicas, las preferencias por estrellas de cine, los vaivenes de la economía y las costumbres higiénicas.

“La que se ha empeñado en seguir llamándose [calle] real, con escándalo de nuestro sistema republicano, es la más famosa de todas. Partiendo de San Francisco, va en línea recta a desembocar en la Plaza Mayor, formada por dos hileras de espaciosas y cómodas construcciones.”

José Milla

La vía más importante de la ciudad fue la Calle Real. Originalmente, se extendía por 600 varas de largo y conducía del conjunto de San Francisco hasta el Palacio Real. Fue la primera en recibir alumbrado público, con faroles de sebo en 1835. Cuando se concluyeron las obras de San Francisco, en 1851 y Santa Clara, terminada en 1852 , la calle quedó configurada.

El político liberal Ramón Salazar, la describe así con ocasión de una fiesta religiosa: “El corpus de la santa iglesia metropolitana era la gran fiesta de la aristocracia, la fiesta de las gentes de la Calle Real. Para celebrar ese día se sacudían las casas solariegas, cuyas ventanas se abrían de par en par. Yo recuerdo... contemplar a los señores, quienes se brindaban unos a otros dulcecillos de mazapán...”

En el decenio de 1870, la vía era conocida por Calle del 30 de junio. Ese nombre lo recibió por la ascensión al poder de un nuevo régimen en 1871. En palabras de Martí: “Hermosa calle lleva del alto Calvario a la plaza orgullosa: a la diestra está la plazuela, con sus dátiles; con sus cactus; con sus masas salomónicas; con sus grandes dalias amarillas; con sus racimos de uva; con sus araucanas; más adelante

La historia de una Calle Real la Aduana laboriosa, el reciente Telégrafo, el cumplidísimo Correo; luego, club rico, abundantes almacenes, tiendas lujosas”. La plazuela era La Victoria, convertida en La Concordia, y la Aduana, Telégrafo y Correo ocupaban el antiguo complejo franciscano.

La Sexta Avenida

En 1877 el nombre de la calle fue cambiado una vez más. En esa época se aplicó la nomenclatura por número a las vías y se les dio el título de avenidas a las que tenían dirección norte-sur y calles a las de oriente-poniente correspondiéndole a la Calle Real el nombre de Sexta Avenida. Dos años más tarde, se estrenó el alumbrado público de gas, en 1882 se fue instalado el tranvía por la Sexta Avenida y en 1884 se colocaron los primeros teléfonos en los edificios ubicados en la vía y ya para 1885, el alumbrado público era eléctrico. En ella se colocó el primer ferrocarril urbano.

Entre los hechos ocurridos en la calle, la procesión realizada por la definición del dogma de la Inmaculada Concepción (1855); la entrada triunfal del ejército liberal, el 30 de junio de 1871; se encontraban la procesión de la Virgen de Dolores del Cerro, cuando fue llevada a la iglesia de Candelaria (1874); el

ingreso de Justo Rufino Barrios, bajo arcos triunfales, después de firmar el tratado de límites con México, en Nueva York, a su regreso en 1883; el retorno de sus restos mortales, en 1885, y el desfile histórico del 12 de octubre de 1892 .

En 1914, la Sexta Avenida estaba bordeada por importantes construcciones, como una de las primeras viviendas en las que se utilizó granito, diseñada por el canadiense Henry Morgan para María Samayoa Boniface (hoy, en la esquina de la 12 calle). Importantes almacenes abrían sus puertas sobre la Sexta Avenida, como el Femina, de Julia Uberschaer y Cía., que vendía ropa femenina a la “moda reinante en París”, y Rosa de Francia, de Magdalena de Morales, con el mismo tipo de mercadería. También estaba El Ancora, de Gustavo Oetiker y Co., de alfombras y tapetes; la talabartería La Americana y la joyería El Empaque, ésta de Daniel Hernández. Funcionaban además el Hotel Internacional, frente a La Concordia, de Basilio Saenz, y el Leon Restaurant et Patisserie, propiedad de Leon Campagnolle, ambos con servicio de restaurante. La Sexta Avenida era el lugar donde se encontraban la Guatemala tradicional y las novedades europeas, gracias a propietarios inmigrantes.

Los terremotos de Navidad Pero en diciembre de 1917 y enero de 1918 fuertes seísmos destruyeron casi por completo la ciudad. Las estructuras de mampostería no soportaron el impacto telúrico y dejaron a la ciudad en ruinas. Los habitantes tuvieron que reedificar la urbe. Era una oportunidad dorada para los diseñadores para edificar construcciones que resistieran los seísmos, los materiales se convirtieron en un símbolo de estatus, pues eran costosos y garantizaban durabilidad. Además, nuevas necesidades urbanas requirieron un cambio en el aspecto de la vía, se abandonó el diseño tradicional por uno que hiciera más eficiente el espacio y que permitiera actividades bancarias, comerciales, hoteleras y de distracción. De lo ostentoso, los diseñadores pasaron a lo moderno como símbolo de riqueza y la arquitectura se abrió a la calle. Para conseguir un uso eficiente del espacio se construyeron edificios de varios pisos, lo que creó un nuevo paisaje urbano. Muchos de los patrocinadores de estas nuevas edificaciones eran inmigrantes, la mayoría alemanes, y quienes recurrieron a ingenieros de Europa, que estaban a la vanguardia arquitectónica, para levantar las nuevas construcciones, lo que creó un ambiente eurocéntrico en la Sexta Avenida.

El sexteo caracterizó a la Ciudad de Guatemala durante los primeros dos tercios del siglo XX. Se inició después de 1918, cuando el Parque Central fue ocupado por champas que impedían las actividades que marcaban los estratos sociales. Desde que se convirtió en parque, en dicho espacio público se realizaban conciertos de banda en el quiosco, los habitantes da-

ban paseos continuos y en círculos concéntricos, desde las élites, en los espacios contiguos al quiosco, hasta los menos favorecidos, en los extremos. Desde luego, al convertirse en un campamento, los paseos fueron interrumpidos por lo que se empezó a frecuentar la Sexta Avenida para pasear, sin acompañamiento musical. Como era una avenida con circulación de vehículos, no

era posible ni se deseaba la separación social, de manera que todos los estratos sociales compartieron el mismo espacio.

Dentro del imaginario colectivo, la antigua Calle Real era la que se extendía desde el ingreso de la ciudad, frente a la iglesia de San Francisco hasta el Palacio Real, por lo que el paseo se realizaba desde la 8ª hasta la 13 calle, de manera que el sexteo consistió en el recorrido por la Avenida entre dichas calles, con preferencia por la banda poniente. Es probable que estuviera relacionado con los primeros comercios que fueron reconstruidos después de los terremotos y con la apertura del Teatro Lux.

Ya en 1922 el término “Sextear” estaba acuñado y tenía las características descritas. Debido al roce de todos los estratos sociales, las personas menos acomodadas lucían sus mejores trajes, mientras que los miembros de la élite usaban ropas costosas, por lo que el paseo se convirtió en el momento más agradable y de mejor lucimiento en la ciudad.

“pasaba la gran dama vestida de gala, olorosa a agua florida de Lanmann y Kemp..., con saya de gro crujiente, de color chillón rojo, verde o amarillo encendido, cubriendo una esponjada crinolina que hacía parecer a la dama, al andar, una campana mayor, oscilando; cubierta por arriba, con un pañolón bordado... los dedos cuajados de anillos, el pecho lleno de cadenas de oro de 18 quilates, y pendientes en las orejas en forma de torres de muchos pisos, y que casi les llegaba a los hombros” Rafael Salazar

Otros cambios se realizaron sobre este eje vial. En 1926, se instaló en la rúa un tranvía con motor. Sin embargo, a los dos años fue suspendido porque se aprobó la circulación de autobuses, a cargo de la Empresa Guatemalteca de AutoÓmnibus. En 1929 se inauguró el alumbrado eléctrico, que contaba con faroles de tres burbujas y cableado subterráneo. En 1930 se inició la pavimentación, a cargo de la firma estadounidense Warren Brothers. En 1948, se volvió a cambiar el pavimento, esta vez a cargo de la Dirección General de Obras Públicas, que incluyó la perforación de colectores para aguas pluviales. En 1963, el gobierno del General Miguel Ydígoras Fuentes intentó convertir la avenida en peatonal, pero fue objetado por los comerciantes y el proyecto fracasó.

Escenario político

Como eje vial de magnitud simbólico, en la Sexta Avenida se desarrollaron numerosas actividades políticas. El 11 de marzo de 1920 una manifestación ocupó la avenida para protestar contra el gobier-

no de 22 años de Manuel Estrada Cabrera y, del 8 al 15 de abril, se levantaron barricadas en la esquina de la 11 calle, para contener a los policías que intentaban prolongar el período de gobierno. Poco después de los cambios políticos, los desfiles triunfales se continuaron realizando en la Sexta Avenida. Por ella paseaba a caballo el presidente Jorge Ubico, quien ordenó la construcción del Palacio de la Policía Nacional y del Palacio Nacional, así como la pavimentación de la vía.

Cuando en 1944 se quiso cambiar de gobernante, el 24 de junio circuló por ella una manifestación en contra de Ubico. Rafael Arévalo narra que para engrosar el cuerpo de participantes, uno de los estudiantes entró al teatro Lux y gritó “¡Fuera, de este recinto! Estamos derribando a Ubico”, por lo que “una gran porción de gente se apresuró a salir...”. Un día después, en otra manifestación, una maestra resultó herida de muerte, cinco días más tarde el presidente firmó su renuncia. Pero el régimen no cambió hasta que el 20 de octubre fue

asaltado el fuerte de San José, que podía verse desde la Sexta Avenida, y luego se consiguió el cambio de gobierno. Para celebrarlo, nuevos desfiles se realizaron por la vía.

Los aires políticos cambiaron, y así la Sexta Avenida fue el escenario de manifestaciones anticomunistas. Numerosos grupos de personas caminaron en grupos por la vía para protestar por las innovaciones gubernamentales realizadas entre 1944 y 1954. Cuando se produjo otro golpe de Estado, en 1954, un avión sobrevolaba la ciudad, especialmente sobre la Sexta Avenida, amedrentando a la población civil, hasta que el gobernante dimitió.

La conmemoración del 15 de Septiembre continuó con la celebración de desfiles, realizados por alumnos de numerosos colegios y escuelas, que hasta 1996 pasaban por la Sexta Avenida, y el desfile bufo, integrado por alumnos de la Universidad de San Carlos, el viernes anterior a Semana Santa, conocido como Huelga de Dolores se realiza desde 1898 por esa vía.

El Sexteo y otras actividades

Los visitantes de la Sexta Avenida podían ir a comunicarse con el mundo, gracias a los cables o radiogramas, ya que allí estaban la Tropical Radio y la All American Cable, adquirir un boleto aéreo fuera del país en la aerolínea Panamerican Airways o simplemente a pasear y saludar a conocidos, vecinos o amigos y comer algo en una cafetería o restaurante de moda.

Por las noches se divertían en uno de los bares, billares o clubes nocturnos, a los que llegaban famosos músicos y cantantes de la época, nacionales como Paco Pérez autor de Luna de Xelajú quién la estrenó precisamente en uno de los clubes de la Sexta Avenida, o extranjeros, como Pedro Vargas o María Victoria, muy populares en el decenio de 1950. También podían asistir a alguna función de teatro, ópera,

Ha sido impresionante, la gente volvió a retomar el camino de la Sexta Avenida, la gente está entusiasmada, alegre. Demostramos que los guatemaltecos somos gente de bien y gente que le gusta compartir con sus semejantes” Álvaro Arzú, diciembre 2010

zarzuela, ballet y conciertos en uno de los teatros o ver alguna película estadounidense, mexicana o incluso europea en los cines.

Los jóvenes iban a ver y ser vistos, conversar y pasear con sus amigos, y, probablemente, entablar una relación romántica con alguna señorita. También ellos podían asistir a alguna cafetería y comer la versión guatemalteca del hot dog, llamada mixta hecha a base de tortilla de maíz, y beber milk shake, al gusto estadounidense. Por su parte, los niños iban a patinar al Parque Central y parte de la Sexta Avenida.

Quienes tuvieran recursos económicos podían comprar y consumir, los que no llevaran dinero podían adquirir al crédito en el almacén más prestigioso, La Paquetería, o disfrutar de las vitrinas, que se adornaban con gran esmero. La Municipalidad premiaba las mejor decoradas, con lo que la gente podía admirarlas y evaluarlas. Los jóvenes que no podían pagar las localidades de lujo de los cines podían ver los carteles de las estrellas o acceder a las populares y alegres galerías.

El sexteo era una actividad muy convencional, regida por la etiqueta, las personas iban “bien comportadas”. Los jóvenes aprendían allí las costumbres de los adultos.

SEXTA AVENIDA

La historia de una Calle Real

La mayor actividad del sexteo se verificaba dos veces al día. Alrededor de las 12:00 y a las 18:00 horas, cuando los empleados y estudiantes pasaban por la vía. A lo largo de todo el día, en el Parque Centenario sobre la Sexta Avenida entre 6a. y 8a. calles, personas de la tercera edad se dedicaban a conversar mientras les lustraban los zapatos o leían algún periódico, bajo una pérgola conocida como “el peladero”, porque los asistentes se dedicaban a criticar desde el gobierno hasta la moda. Allí, las jóvenes generaciones podían conocer a gente famosa, como José Rodríguez Cerna y Rafael Arévalo Martínez.

El sexteo era un pretexto para lucir la ropa y joyas de moda. Cualquiera que llevara un artículo comprado en la Sexta Avenida ostentaba su capacidad económica, y otros lucían sus vehículos automotores.

Durante su apogeo, entre 1918 y 1967, la mayoría de los propietarios de los comercios, ubicados en la Sexta Avenida, eran de origen extranjero. Almacenes como Delmar pertenecían a judíos, los apellidos delataban su origen, Rosenberg, La Paquetería, de Engel; La Flor de París, de Cohen; la joyería La Marquesa, de Stein y Heinemann; y otros como los Tabush, Sabbagh, Kairé Kamishka, en resumen había comercios de alemanes: tales como Liscutin, Danziger, Eichenberger, Biener y los conocidos La Perla y Mi Amigo, éste de los Richter, españoles, como la fotografía Serra y el restaurante Altuna, de libaneses o árabes, como la Técnica Fotográfica Kodak, checos, además de los propietarios guatemaltecos.

Otras actividades tenían lugar en la Sexta Avenida, como la celebración del carnaval, en la que participa-

ban entusiastas jóvenes de toda la ciudad, viajando en automóviles en ambos sentidos y tirándose confeti de un carro al otro.

Diferentes atracciones llamaban la atención de la gente, principalmente los que no vivían en la capital, como el anuncio de la Empresa Eléctrica, que los provincianos iban exclusivamente a contemplar, así como los rótulos luminosos de los almacenes, de gas neón.

Esta camaradería permitió que todos en la ciudad se conocieran, desde los propietarios de comercios, fincas o industrias hasta obreros, dependientes u oficinistas, quienes se saludaban cortésmente mientras caminaban. Los hijos de esas personas se encontraban mientras sexteaban, ya fuesen adolescentes o niños, quedando en todos grabada como un grato recuerdo.

LA SEXTA AVENIDA

Historia de una Calle Real

Arquitectura de ayer y hoy de La Sexta

Aníbal Chajón

Los edificios

Varias construcciones han caracterizado esta importante vía capitalina.

Empresa Eléctrica

En el ángulo de la 8ª calle se encontraba una vivienda cuya construcción original fue hecha para alojar a los funcionarios de la Real Audiencia, que se encontraba del otro lado de la calle. En esa vivienda residió el presidente José Domás y Valle, gobernador y capitán general entre 1794 y 1801. La Corona vendió la propiedad, que pasó a manos de diversos dueños. A finales del siglo XIX, era propiedad de José Tomás Larraondo y Urruela , quien la alquiló a Justo Rufino Barrios, entre 1873 y 1885. La casa de Larraondo fue descrita como una residencia de dos niveles, con balcones sencillos y un portón con arco de medio punto. En su patio, se destacaba un árbol de aguacate, célebre entre los contemporáneos al dictador liberal. Luego, sirvió de residencia para uno de los funcionarios de la IRCA, el señor Hodgsdon, y tras ser destruida la casa por los sismos de 1917 y 1918, se construyó el edificio provisional para el Banco de Guatemala, que fue adquirido luego por la familia Castillo Azmitia, por US $80 mil, para ser vendido al poco tiempo a la Empresa Eléctrica por $120 mil. En mayo de 1924, se anunció que se construiría el edificio de la institución, de cuatro pisos, “como no lo tiene ninguno en Centro América”. El edificio empezó a construirse en 1924. De los cuatro pisos diseñados, solamente se construyeron dos, la empresa responsable de la construcción fue Phoenix Util y Co. El ingeniero encargado fue Luis Schlessinger Carrera. El primer piso se dividió entre las oficinas de la Empresa y algunos locales comerciales, entre éstos la librería La Lectura y la venta de cajas registradoras propiedad de José Azmitia, protagonista en la destitución de Manuel Estrada Cabrera. En 1931 se finalizó la construcción.

SEXTA AVENIDA

La historia de una Calle Real

Pasaje Rubio

En terreno de la familia Rubio Asturias se establecieron comercios que fueron destruidos por los terremotos de 1917 y 1918, lo que dio origen a la construcción de un pasaje entre 1928 y 1929, a cargo del arquitecto español Cristóbal Azori. Con decoración historicista y algunos elementos Art Decó, el inmueble, inspirado en los pasajes italianos, es una versión sofisticada del antiguo Pasaje Aycinena. Era una propuesta innovadora, pues cuenta con cubierta y locales comerciales, oficinas y apartamentos. Su planta en T evitó que se convirtiera en una ampliación de las calles y obligó a los visitantes a dirigirse a sus tres extremos que comunican al Portal del Comercio, la Sexta Avenida y la 9ª Calle. Algunos de sus locales emblemáticos son el bar El Portal y la joyería El Sol. Su recuperación concluyó en 2008.

La Perla

En 1921 ya funcionaba en este terreno, el Teatro Rívoli, que fue remodelado. En 1928, toda la estructura fue demolida para construir un nuevo edificio diseñado por los arquitectos alemanes Wilhelm Krebs y Roberto Hoegg. Es un edificio de cuatro pisos (comercios a nivel de calle en doble altura y los dos pisos superiores para la Pensión Asturias). Obra en concreto armado para las estructuras y mamposterías reforzadas en las paredes. Debido a la amistad entre los propietarios y los del almacén La Perla, el edificio recibió este nombre. Otros locales fueron ocupados por Biener y Cía., Tabush y Mi Amigo. Como dato anecdótico, en 1966 fue valuado en US $300 mil. No sufrió daños durante el terremoto de 1976. Al finalizar el siglo XX, La Perla abandonó su local, hoy lo ocupa una cafetería.

Edificio Elma

El predio en el que se encuentra estuvo ocupado originalmente por la Real Aduana. Luego pasó a propiedad de Juan Bautista Álvarez de Asturias. El edificio Elma fue construido en 1950, por el arquitecto Carlos Asensio Wunderlich. De siete pisos, fue uno de los primeros edificios funcionalistas de la ciudad y rompió por completo con el paisaje que había prevalecido en la Plaza Mayor hasta entonces. Fue concebido como un edificio para oficinas con locales comerciales a nivel de la calle. Su rasgo más característico es la estructura metálica que se encuentra en el muro poniente, que protege a las oficinas de la luz solar directa durante la tarde. Cuenta con un muro de vidrio hacia la Plaza, desde donde se ingresa, lo que permite que las oficinas de ese lado tengan una vista panorámica del conjunto histórico.

Hotel Astoria

El terreno perteneció originalmente a Antonio Urruela Urruela y Valle y María Teresa Jacoba de Urruela y Urruela. En esa residencia vivió Rafael Angulo Urruela (1843-1903), uno de los fundadores del Asilo de Dementes, antecedente del Hospital Nacional de Salud Mental, y del Hospital de Elefantiasis así como director del Hospital General San Juan de Dios. Como todos los edificios de la ciudad, fue dañado en 1917 y 1918. La construcción de la obra actual se inició hacia 1928 y se inauguró en 1937. La obra se atribuye al ingeniero italiano Manlio Giracca y posteriormente, recibió el nombre de Hotel Panamerican. En este hotel se alojaron varias personalidades de la época, como el famoso arqueólogo estadounidense Sylvanus Morley.

Edificio Hispania

Hacia el sur del edificio El Cairo se encuentra el edificio Hispania. Fue erigido en un solar de la familia Urruela, en 1927, con un diseño del alemán Wilhelm Krebs, profesional de la oficina del también germano Roberto Hoegg. Ha alojado establecimientos comerciales en sus locales, desde ventas de electrodomésticos y artículos para el hogar, hasta abarroterias y farmacias. Actualemtne también está en uso su segundo nivel.

La Juguetería

Las construcciones de este ángulo de la manzana se edificaron sobre un predio que perteneció originalmente a Miguel Álvarez de Asturias. La propiedad pasó a manos de Alfonso Asturias, quien la vendió a Gregorio Valdés, por US $40 mil. Valdés la aseguró en US $57 mil. En marzo de 1926 la construcción fue destruida por un incendio. En ese momento, se encontraban varios establecimientos ubicados en el inmueble: Casa Legrand, de Luis Legrand, dedicada a artículos fotográficos; la sastrería de Julio Siedler; la Casa de Modas de Rosa Saravia y, en la esquina de la 10ª calle, la farmacia La Salud, propiedad de José Flores Penedo. La propiedad colindaba con la sede de Schlubach, Sapper y Cía., que limitaba con el callejón de la 6ª Avenida A (actual Callejón de Tasso). Sobre la Sexta Avenida, tenía por vecinos a la casa Stahl, La Rosa de Francia, Commercial Bank, Broadway y el Banco Rosenthal e Hijos. Según el artículo periodístico: “hubo mucho más curiosos que cuando se quemó el edificio del Banco Colombiano y, hace un año, el Palacio Centenario”. Hacia el oriente, los vecinos eran la ferretería La Estrella; la casa Amos Anderson; El Candado Rojo, del señor Iselín; así como las casas de las familias Monteros, Montealegre, Biener y Shacher Hnos.

SEXTA AVENIDA

La historia de una Calle Real

Banco Internacional y Central Según Víctor Miguel Díaz, toda la cuadra pertenecía a la familia Pavón y los alquileres alcanzaban “sumas extraordinarias”. La sede del Banco Internacional fue una obra de dos pisos, con decoración historicista neoclásica, como aparece documentada en el Libro Azul, publicado en 1915. El segundo piso colapsó con los sismos de 1917 y 1918, deviéndose demoler las partes del segundo piso y reforzarse el primero con hierro, cemento y madera. Pocos años después, cambió de usuarios, en diciembre de 1926, se anunció el traslado al inmueble del Banco Central de Guatemala. En 1933, se remodeló el edificio y sirvió para alojar la farmacia La Providencia, propiedad de Ramón Guzmán, se inauguró el 26 de julio con una fachada decorada con motivos modernistas, con coronas y guirnaldas en estuco.

Club

Guatemala

La sede del Club Guatemala, fundado en 1897, se empezó a construir en 1926, con un presupuesto de US $175 mil. La propiedad era de la familia Azmitia. El edificio estaba concluido en 1930, cuando fue decorado en su interior por el artista José Aranda Klée. Posteriormente, se habilitó para el funcionamiento del cine París, que fue remodelado en 1967. También funcionó en el segundo piso la Radio Nuevo Mundo, famosa por la transmisión de la radio-comedia cubana La Tremenda Corte y por los radionoticieros “El Debate” y “El Independiente”. En el período de violencia interna, esta radio sufrió un atentado con ametralladora, en 1978 y el inmueble sufrió un incendio en 1981. En esa época el cine fue denominado Sexta Avenida. En la actualidad su amplio local ha sido dividido para varios comercios.

Esquina de la 11 calle

En este terreno, propiedad de Antonio Asturias Pavón, se construyó una casa con mirador sobre el ingreso, desde el cual, la mañana del 30 de junio de 1871, miembros del partido conservador observaron el ingreso del ejército liberal victorioso. La construcción debió dañarse mucho en 1917 y 1918. El edificio actual, con decoración modernista era de dos niveles fue dañado por el terremoto de 1976 por lo que tuvo que demolerse el segundo piso. En la actualidad aloja un restaurante de comida rápida, una venta de helados, que anteriormente fue el bar Granada, muy importante a mediados del siglo XX y donde se presentaban artistas mexicanos, como Pedro Vargas y María Victoria. Sobre la calle, aloja un restaurante de comida vegetariana. El ingreso principal, sobre la 11 calle, dio cabida al restaurante Don Quijote.

Edificio Engel

La casa que estuvo originalmente en este predio fue construida en 1876. En ella vivió Julián Batres. En ese lugar se instaló el bar Granada, que había estado ubicado en el local en la esquina de enfrente. En 1945 se produjo un incendio que destruyó toda la estructura. Los propietarios, de la familia Engel, decidieron construir un edificio de seis pisos en el lugar. Tres años después, se inició la construcción. Fue diseñado por James Allan Willard, también conocido como Jaime, y por Joaquín Olivares, e inaugurado en 1953. Willard (1904-1997) era ingeniero, nacido en Santa Ana, El Salvador, hijo de Allan Willard, de origen canadiense y de una salvadoreña. Una de sus hermanas, había nacido en la Ciudad de Guatemala, en 1902. Por ello, Willard trabajó otras obras en nuestra ciudad.

Casa Samayoa Boniface

En el ángulo formado por la Sexta Avenida y 12 calle, en parte de lo que fue la huerta del convento de Santa Clara, se construyó la casa de la señorita María Samayoa Boniface. La construcción estuvo a cargo del ingeniero canadiense Henry Morgan. Estaba por ser concluida en 1915. Es una magnífica obra de ladrillo visto, con un portal sostenido por columnas. El primer piso se construyó para locales comerciales y, el segundo, para residencia de la propietaria y su familia. Fue inspirado por los palacios venecianos, con la intención de impresionar al transeúnte. En 1919, el local comercial estaba ocupado por el almacén El Louvre, y en 1924 el almacén Los Niños. Renovado en el 2013, hoy lo ocupan el tradicional Fu Lu Sho, dos restaurantes de cómida rápida y una tienda de artículos fotográficos.

Teatro Lux

En la esquina de la 11 calle, donde se encontraban varios establecimientos, se demolieron las construcciones antiguas para dar paso a la construcción de un nuevo teatro. Esta propiedad había pertenecido a Antonio Taboada y Asturias. En 1918 funcionaba el establecimiento La Primavera. En 1934 se inició la demolición de las casas para erigir un teatro, a cargo del ingeniero Roberto Hoegg, a un costo estimado en Q100 mil, con un diseño del también germano Rodolfo Bader. En octubre ya estaban construidos los cimientos. Fue inaugurado en 1936, lo que constituyó todo un evento social. Es una de las mejores obras en estilo Art Decó de su época. Contaba con una amplio vestíbulo, el más alto construido hasta entonces en la ciudad. Fue utilizado también como teatro. Se le remozó en 2012.

Mansión San Francisco

Uno de los primeros edificios para apartamentos en la ciudad fue la Mansión San Francisco, construido en la esquina opuesta al templo del que tomó el nombre. Fue propiedad de la familia Engel. Se construyó en 1928 y, en la planta baja, se construyeron locales comerciales. Por ejemplo, en 1936, estaba allí la Gran Vinatería S. García y Co. Sucs. En el último piso superior se estableció la residencia de la dueña del inmueble. En las postrimerías del siglo XX fue convertido en hotel y remodelado, con una ampliación hacia la parte poniente. Desde sus balcones puede observarse con comodidad, tanto la tradicional Huelga de Dolores, algunas procesiones religiosas así como el paisaje urbano que conforman los templos de Santa Clara y San Francisco dada su privilegiada posición en esquina. SEXTA

La historia de una Calle Real

Santa Clara y su convento Las religiosas franciscanas llegaron a Guatemala en 1699. Con el traslado a la capital, fueron establecidas en la antigua casa parroquial del pueblo de La Ermita, actual zona 6, donde permanecieron hasta 1795, cuando se concluyó el convento. El predio asignado estaba en la Calle Real contiguo al convento de San Francisco. Al parecer, el convento ocupaba toda la manzana. Las expulsiones de órdenes religiosas afectaron este conjunto que fue fraccionado y vendido. En 1880, el terreno era propiedad de Eduardo Lehnhoff, quien decidió establecer un mercado, La Reforma. Según Víctor Miguel Díaz, “concluyó por ser un mesón grande”. Los terremotos de 1917 y 1918 destruyeron el conjunto. En 1924 funcionó el Skating Risk que popularizó más el patinaje, sin embargo en agosto de ese año se construyó en ese predio

el Teatro Capitol, diseño de Roberto Hoegg con capacidad para 2,450 espectadores en sus localidades.

El templo mientras tanto fue reparado. En 1936 se elevó el techo. La sencilla iglesia fue inaugurada en 1946 y, la fachada, en 1948, obra de José María Sagone. En 1992 fue víctima de un incendio provocado que destruyó el altar mayor y dos laterales. Entre las pérdidas se encontraron la pintura del Nazareno de Santa Clara y la escultura de la Virgen de Dolores. El templo fue reparado y se le renovó el techo. El interior del templo es de una sola nave, con cubierta en forma de bóveda ojival. Los altares son neogóticos, con una sola hornacina, con gablete y pináculos a los lados. Del lado del evangelio, en el presbiterio, está una reproducción de la perdida pintura del Nazareno de Santa Clara.

Templo San Francisco

A los franciscanos se les asignó un solar en el sur de la ciudad, hoy el Hogar Rafael Ayau. Los religiosos solicitaron la plazuela de Santa Clara y otros terrenos, cambio que se les permitió en 1787. Compraron terrenos, y así su propiedad se extendió de la 13 a la 15 calles y de la Sexta a la 8ª Avenidas actuales. El templo se inició en 1800 con planos de Santiago Marqui, 20 años después, se solicitó autorización para construir torres campanarios de 55 metros de altura. En 1825 el convento estaba finalizado. La construcción del templo estuvo a cargo de Miguel Rivera Maestre, el templo es neoclásico con planta de cruz latina y una sola nave dividida en cinco tramos. La fachada presenta una sola puerta, enmarcada en un arco rebajado, flanqueada por dos columnas de fuste toscano y capitel jónico, completan la fachada cuatro columnas compuestas, símbolo de los evangelistas, que sustentan un frontón semicircular. Se concluyó la obra en 1851. En el templo se encuentran una hermosa talla barroca del Crucificado, la cabeza y un brazo del Cristo de Trujillo, Nuestra Señora de los Pobres y la Virgen de los Reyes, imagen donada por el emperador Carlos V y la reina Juana I, hermosa escultura de gran devoción en la capital. En pintura destacan las obras de Villalpando.

En 1871 los liberales volvieron a expulsar a los religiosos y expropiaron definitivamente el convento, al que se le dio un uso diverso. El complejo franciscano contaba con cuatro áreas: el convento, que ocupaba la parte central del conjunto, el área de la Tercera Orden, hacia el poniente, que pasó a ser la sede de Correos, el templo, hacia el norte y la huerta, que rodeaba al convento por el sur y oriente que pasó a manos particulares y cuyo extremo fue convertido en 1874, en la estación del ferrocarril. Los terremotos de 1917 y 1918 dañaron el conjunto. Entre 1932 y 1934 se restauró la fachada y la sacristía. En 1948 se inició la construcción de una nueva cúpula, en hierro y cemento, a cargo de los arquitectos Rafael Pérez de León y Enrique Riera, que se concluyó en 1952. Las pechinas presentan en relieve a cuatro papas franciscanos. En 1958 se concluyó la casa conventual. En 1965 se instaló un nuevo altar mayor, diseñado por el escultor español José Nicolás Almanza inspirado en el cuadro San Francisco abrazando al Crucificado (1668), del pintor Murillo. El terremoto de 1976 dañó severamente la iglesia, mientras era reparada, el Ministerio de Gobernación decidió demoler lo que quedaba del convento, que en 1979 fué dinamitado. La iglesia ha recibido algunas reparaciones, aunque nunca se concluyó su restauración.

SEXTA AVENIDA

La historia de una Calle Real

Palacio de la Policía Nacional Ocupa el terreno original de los terciarios franciscanos. Luego de la expropiación liberal en 1871, la parte sur del edificio fue convertida en Aduana y en estación de ferrocarril. La capilla de los terceros que contaba con dos torres con chapiteles fue usada como edificio de Correos, pero quedó destruida en 1917 y 1918. En 1930 se propuso la venta del terreno para construir el edificio de Correos en otra parte de la ciudad, por fin, el gobierno de Ubico decidió construir allí el Palacio de la Policía Nacional. Fue empezado en 1937 e inaugurado en 1942. El día de su inauguración recibió 25 mil visitantes. El edificio historicista está inspirado en el palacio de los condes de Monterrey, en Salamanca, España y cuenta con decoración inspirada en el románico, el gótico y el renacimiento español, llamado plateresco.

La construcción, a cargo de Manuel Moreno Barahona, tiene tres pisos, el ingreso principal se encuentra sobre una escalinata. Toda la fachada está confeccionada en concreto imitando piedra rosada de diferentes tonos. El patio principal cuenta con una réplica de la fuente de Carlos III. En el ángulo de la 14 calle tiene una torre de cuatro pisos. El último piso tiene galería y garitones con troneras en los ángulos. La terraza está almenada, lo que le da un aspecto de fortaleza al conjunto. El Escudo de Guatemala adorna la torre que da hacia la Sexta Avenida. Las oficinas contaban con los servicios más cómodos de su época y tenían un mobiliario adecuado al diseño general. Contaba con estacionamiento subterráneo y un sistema de ventilación al que se accedia desde el patio principal. Actualmente es sede del Ministerio de Gobernación.

Parque Gómez Carrillo

En 1787 la iglesia de Los Remedios fue instalada en el Calvario mientras se construía el templo en el predio que actualmente es el parque Gómez Carrillo. El templo nunca se construyó y el predio fue usado como cementerio. Hubo originalmente en el terreno un montículo prehispánico. En 1863, después de una victoria contra El Salvador y Honduras, se le denominó Plaza de la Victoria. En 1871 cambió el nombre por Plaza de la Concordia. En 1898, se le colocó un quiosco y esculturas de mármol y bronce. Al finalizar 1947 se le cambió el nombre por el de Enrique Gómez Carrillo y en 1966 se inauguró el monumento elaborado por Rodolfo Galeotti Torres. Su última modificación ocurrió en 2004, cuando se construyó un estacionamiento subterráneo, y se instalaron esculturas de Sergio de Gandarias.

“Me retracto del pesimismo evidenciado en varias oportunidades, cuando al referirme al Centro Histórico de Guatemala, expresé que la única solución viable para su recuperación sería dinamitar y empezar todo de nuevo... lo logrado por la Muni en la Sexta Avenida es digno ejemplo de recuperación urbana. La nueva Sexta está viva, con el rostro renovado, llena de historia y cambio”. Adolfo Méndez Vides, agosto 2011

PASEO DE LA SEXTA

Un Centro Histórico para vivir

Arturo Portillo

Un joven corre por la Sexta Avenida De pequeño muchas veces esperé salir del edificio de la Empresa Eléctrica a mi padre, mientras tanto, con precisa exactitud cronométrica, a cada rojo de semáforo veía correr a jóvenes con un par de lentes de sol que habían arrancado a un conductor estacionado en el crucero de la Sexta Avenida y la Octava Calle. La mayoría de guatemaltecos recordamos aún ese pasado mediato: el devenir de los vehículos a vuelta de rueda mientras sus conductores esquivaban transeúntes que bajaban de las aceras para agilizar su paso, y si era el medio día, el olor a churrasco con frijol en un plato plástico que acompañaba a los vendedores. Pero quizá muy pocos recuerdan, las vicisitudes que los vendedores afrontaban al estar directamente expuestos al clima, la lluvia especialmente, la contaminación y las condiciones de venta en plena calle.

Para algunos el proceso de decaimiento del Centro Histórico parecía no tener fin. Incluso los más optimistas se negaban siquiera a considerar que la avenida de más abolengo en la ciudad pudiera recuperarse de los retos que afrontaba desde principios de la década de los ochentas. La mayoría de comercios que por muchos años habían dado prestigio a la arteria con sus lujosas vitrinas se habían mudado a otras áreas de la ciudad, o simplemente desaparecieron. Pero aquí es cuando comienza el rescate de la Sexta Avenida de manera integral. Como equipo municipal, y bajo las instrucciones del Alcalde Álvaro Arzú, varias dependencias municipales elaboraron y ejecutaron proyectos en el área que desde 1998 conocemos como Centro Histórico, siendo algunos de los primeros detonantes la recuperación de la Plaza Barrios, las “8 manzanas” y el Portal del Comercio. Estos cambios en los espacios públicos y de convivencia atrajeron a nuevos visitantes, las mejoras tampoco pasaron desapercibidas para los vecinos y la fe en el cambio empezó a rendir frutos.

“El espacio público es concebido como instrumento de convergencia social que estimula la participación cívica y cultural del ciudadano. La propuesta se desarrolla mediante el rescate del espacio público, el ensanche de aceras e introduce el concepto paseo peatonal”.

Urbanística, Taller del Espacio Público

El Proceso de Cambio

El centro de la ciudad empezó a atraer nuevo público. Uno de los factores en este proceso, fue el impulso que a través de la Municipalidad de Guatemala se brindó a esta área de régimen especial por medio de un Consejo, luego vino el Acuerdo Ministerial de 1998. El departamento del Centro Histórico empieza a funcionar en 1999, en el lugar que conocimos como Centro Cultural Metropolitano (CCM), con la recuperación del Antiguo Palacio de Correos se trajo nueva vida y poco a poco colectivos artísticos y direcciones municipales retomaron sus espacios.

La Dirección de Abastos, reconoce en el área los puntos de comercio informal, y Centro Histórico, es la dependencia que comienza las pláticas definitivas y realiza los censos de vendedores de la Sexta Avenida (2004/2005). El Salón de Usos Múltiples del CCM, fue testigo de las reuniones en las cuales Ricardo Rodríguez, su director, siguiendo los lineamientos de Alcaldía, se dirigía a los vendedores de La Sexta y les exhortaba a participar en el proceso de cambio, un proceso que siempre se planteó dentro de las líneas del diálogo y la participación. Habiendo logrado avances al respecto, la coordinación, programa y ejecución del traslado fue tomada

por la Policía Municipal, mientras que el análisis y diseño urbano corrieron a cargo de Urbanística

A estas acciones siguieron capacitaciones en economía y diversos talleres para que los vendedores expresaran sus ideas respecto al espacio de venta en la plaza de El Amate y ya en octubre del 2009 se da inicio a los trabajos que en tan solo algunos meses después, a partir del 7 de junio de 2010, ya están a disposición los nuevos puestos para los vendedores. Mientras tanto, el día 6 por la noche; las excavadoras empezaban las obras sobre la Sexta Avenida. Con anterioridad los topógrafos habían realizado los estudios para el trazo de la obra. Luego de la demolición de banquetas y la excavación para la introducción de infraestructura (drenajes, electricidad, agua y telecomunicaciones) se realizó la obra gris y finalmente la pavimentación; sobre ésta se procedió a ubicar el mobiliario urbano y por último las obras complementarias (cámaras de seguridad, semáforos, jardineras, etc.). Finalmente, el 4 de diciembre del 2010, se inaugura el Paseo de la Sexta.

El Diseño Urbano

A nivel de proyecto urbano hay cuatro líneas de acción básicas:

1. Movilidad Integral, es adoptar soluciones eficientes de transporte público,

Un Centro Histórico para vivir

desplazamientos peatonales y bicicletas.

2. Desarrollo Social, mediante la dignificación ciudadana y la inserción social, a través del proceso de Modernización del Comercio Popular.

3. Espacio Público Revitalizado, el proyecto de intervención física propiamente dicho y su uso como lugar de encuentro ciudadano, y

4. Desarrollo Económico, creando las condiciones y/o incentivos para la atracción de nuevas actividades compatibles con el concepto del Paseo de la Sexta y el incremento en la oferta de servicios.

El diseño enmarca como objetivos finales: un destino accesible con recorridos agradables dentro de un espacio incluyente en el que se desarrolla una cultura urbana de convivencia ciudadana y se logra la revitalización y atraer funciones mixtas (comercio y vivienda) las bases generales que explican el proyecto. Además el diseño urbano considera estética y funcionalidad proveyendo a los usuarios un espacio público de alta calidad. La acera oriente se ensancha hasta 5.00 metros y la poniente hasta 2.50 metros, ambas con franja de mobiliario. Magnolias adornan el paseo y el mobiliario urbano incluye además de bancas, macetones y luminarias. Para su durabilidad, los pasos de cebra son fundidos in situ, en fin, cada detalle ha sido cuidadosamente planeado.

“Hoy asistimos a lo que probablemente será el renacimiento de la sexta. Confío que esta nueva disposición estimulará la reactivación económica a través de peatones que se reencontrarán con lo que una vez fue pasatiempo de sus padres: caminar por la sexta, compartir un café, realizar algunas compras, y disfrutar de la arquitectura de otro tiempo, edificios que sin duda serán ahora remozados”.

Harold Caballeros, junio 2011

El Paseo de la Sexta

Mientras EMPAGUA y la Dirección de Obras ejecutaban a toda marcha, por los montículos de escombros recién extraídos de la avenida, los vecinos, trabajadores y visitantes del Centro Histórico se paseaban con absoluta confianza, la población había descubierto un nuevo sexteo... el Paseo de la Sexta. Los comercios renovaron sus fachadas con la colaboración de gestores asignados a cada cuadra, que también ayudaban a solucionar los imprevistos de obra y se organizó el Comité Central del Paseo de la Sexta (vecinos/comerciantes), por medio de Desarrollo Social

Como instrumento de apoyo, a finales del 2011 se publica y entra en vigencia el acuerdo COM-012-2011, conocido como Acuerdo para normar el funcionamiento del “Paseo de la Sexta” que, entre otros aspectos, incluye: Delimitación, competencias, actividades, usos de suelo, estacionamientos, áreas de carga y descarga entre otros. Mientras que el seguimiento y sostenibilidad se apoya desde una Mesa de Gestión que se reúne semanalmente. El espacio público ha sido revitalizado y en la actualidad se destacan dos cambios visibles desde un primer momento: Apropiación del espacio público e inversión privada en servicios e inmuebles.

Para facilitar intervenciones, se emitieron nuevos criterios para rótulos y toldos en el Paseo de la Sexta, además se agilizaron los procesos de trabajos menores dándose seguimiento a las solicitudes de licencia de obra, desde la Ventanilla Única, a cargo de Control Territorial. Esto ha dado pie, en principio a una tímida inversión privada en locales comerciales, especialmente en servicios de alimentación, Café Gittane, Quiznos, Café Saúl, a los que siguieron locales de telefonía, sin embargo a partir del 2012, se han sucedido inversiones como: Tacontento, Subway, Taco Bell, debiendo resaltar especialmente el Centro Cultural de España en el renovado Teatro Lux.

Estos nuevos espacios han elevado la oferta disponible para los paseantes en el área, que se calcula ya suman los diez millones de viandantes durante un año. En el Paseo de la Sexta hay en promedio, al menos una actividad social o cultural especial programada por día. No es difícil escuchar marimba frente al Palacio de Gobernación, o a los pies del edificio La Perla y deleitarse con el baile de las parejas, además de exposiciones conciertos y representaciones teatrales que se efectúan regularmente como parte del Festival del Centro Histórico y en la época navideña.

PASEO DE LA SEXTA

Un Centro Histórico para vivir

Los ciudadanos han retomado el espacio y es común ver exposiciones de arte en las aceras y parques vecinos, donde enormes fotogramas y artistas urbanos conviven ante las miradas de los pequeños que empiezan a identificarse con un espacio renovado y dinámico y para quiénes el Paseo de la Sexta significará un aliciente de guatemalidad, un punto de encuentro en el que cada estrato de nuestra sociedad puede, como en la época de antaño disfrutar de la compañía de la familia o de los amigos y sentirse parte de la ciudad, vivir la ciudad.

Hoy la actividad es evidente en cada cuadra: voluntariado, manualidades, ecología, obras de beneficio social, transmisiones en directo, filmaciones, en fin, una incontable cantidad de opciones para todo público en un ambiente sano y seguro. Hoy… un joven corre por el Paseo de la Sexta, le siguen cientos, porque el corazón del Centro Histórico es el escenario perfecto para las carreras de la ciudad, la 10K nocturna y la 21K, la media maratón, en las que participan miles de guatemaltecos que dejan su huella en este sitio que ha visto tantos acontecimientos a lo largo de los siglos, y ése, ése es el recuerdo que espero las nuevas generaciones guarden en sus mentes mientras la historia se sigue escribiendo…

“El término patrimonio tiene las mismas raíces que patria, patriarca, padre y patricio, uniéndose, así, ideas relativas a lugares y personas que parecen tener con nosotros relaciones de origen genético.”

José Ramón Sierra

SEMINARIO

PASEO DE LA SEXTA

Patrimonio Futuro

Actividades previas y paralelas

En mayo del 2011 se impulsó el trabajo con las facultades de arquitectura de las diversas universidades del país y a partir de junio se coordinó la participación de 30 estudiantes en el seminario-taller y la logística durante la semana de actividades, tales como inducción, recorridos guiados y ponencias, las que se describen a continuación:

26 de agosto 2011

Arq. Arturo Portillo Introducción al Centro Histórico, Metodología, presentación de grupos.

02 de septiembre 2011

Arq. María Paz Suasnávar

Instrumentos Legales

09 de septiembre 2011

Arq. Mario Catalán / Arq. María Paz Suasnávar

Criterios patrimoniales y visitas a inmuebles

Los recorridos guiados

Luego de los levantamientos arquitectónicos realizados durante las semanas previas, el martes 20 de septiembre, se realizó un recorrido especial por el Paseo de la Sexta. Comenzó en el Palacio de la Policía Nacional sitio sobre el cual, los participantes recibieron por parte del Dr. Carlos Lemus, una visita guiada que resaltó los trabajos de restauración recientes y recorrieron los cuatro pisos accesibles del edificio. Luego se trasladaron al templo de San Francisco para escuchar la historia del mismo y su importancia en la vida social y religiosa de la ciudad. Finalmente, recibireron por parte del arquitecto Alejandro Paz, un resumen in situ de las transformaciones, planificación, revitalización y futuro del Teatro Lux, cuyos trabajos de restauración avanzan según lo establecido y el que albergará al Centro Cultural de España en un futuro próximo.

Las Conferencias

Se programó un ciclo de conferencias en la Casa Ibargüen, que incluyó el 19 de septiembre, una charla por parte de Marcelino Sánchez Ruiz, “Revitalización del Centro Histórico de Úbeda”. La ponencia expuso temas de planificación urbana y desarrollo regional, se presentaron estrategias económicas, algunas relacionadas al turismo, y se expuso el rol que juega el gobierno del municipio en la coordinación y ejecución de mejoras físicas y de bienestar social.

El 20 de septiembre, el arquitecto José Ramón Sierra presentó “El Patrimonio Arquitectónico y la Arquitectura Contemporánea”. De manera reflexiva y profunda expuso una serie de conceptos e ideas que cuestionaron a los asistentes en las líneas de la estética, el bien patrimonial, histórico y cultural. En sus propias palabras: “Desde el punto de vista del método, el proyecto en el patrimonio suele incorporar equipos pluridisciplinares. En realidad, se ha consumado, por fin, un serio acoso a la figura solitaria del arquitecto como único intermediador entre la colectividad y su memoria histórica, ahora comprendida en su valor económico no solo inmaterial sino como principal generador de ilimitados beneficios.”

Como cierre de ponencias, el miércoles 21, el arquitecto David Garda disertó sobre el tema “La experiencia del diseño arquitectónico en el Centro Histórico”, presentando el caso del edificio de la 7ª. Avenida 12-42 zona 1, conocido como Ex-Céntrico, pudiendo los asistentes aprender de los retos y retribuciones del trabajo arquitectónico en esta área de régimen especial y las experiencias del arquitecto expositor. Con el ciclo de capacitaciones, visitas de campo a construcciones gubernamentales, religiosas y comerciales, así como a las ponencias, los participantes terminaron el seminario con una imagen renovada del centro de la ciudad.

SEMINARIO PASEO DE LA SEXTA

Patrimonio Futuro

Las mesas de trabajo

Las reuniones de coordinación previas fueron la base para conformar los grupos de trabajo. Se decidió seguir la sugerencia de armar las mesas con al menos un integrante por cada universidad participante. El resultado fue la integración de jóvenes con diferentes puntos de vista, así se suscitó el interés de los participantes en el intercambio de experiencias de arquitectura y enriqueció las discusiones y los resultados.

Universidad de San Carlos de Guatemala

http://www.usac.edu.gt/

Arq. Carlos Valladares

Arq. Karim Chew

Pablo César Aragón De León

William Flores Obregón

Carlos Osberto Mendizábal Oliva

Gilberto Salvador Torres Hernández

Melvyn Danilo Yoc Ávila

Lester David Yupe Alvarado

Universidad Rafael Landívar

http://www.url.edu.gt/Portalurl/

Arq. Rodolfo Castillo Magaña

Arq. Gerardo Ramírez

Ignacio España Villareal

Patricia Hurtado Agustín

Esteban Ismael Lavagnino Sánchez

Michelle Mena Barreto

Editha María Tobar Arias

Jorge Fernando Zou Sitú

Universidad Mariano Gálvez

http://www.umg.edu.gt/

Arq. Víctor Hernández

Arq. Johanna Castillo

Jessica Michelle Aldana Lemus

María Alejandra Castro Porres

Daniel Gonzáles Álvarez

Bianca Paola Pagliara Vasquez

Melannie Waleska Palomino Ramírez

Edgar Arturo Tánchez Cordón

Universidad Francisco Marroquín https://www.ufm.edu/index.php/Portal

Arq. Roberto Quevedo

Arq. Manuel Pineda

Gabriela Aguilar

Andrés Barrios

Andrés Castañeda

Odra Girón Fernández

Oscar Emilio Recinos Serrano

Alexandra Urruela

Carmen Zarceño

Universidad del Istmo http://www.unis.edu.gt/

Arq. Eduardo Escobar

Arq. Emilio Vargas

Ana Gabriela Escalón Valiente

Javier Fernández Porres

Julissa Michelle Godoy

Tania Ninette González Orozco

Rodrigo Rafael Larios Sincuir

Nancy Fabiola Rojas Alarcón

Se realizó una selección de profesionales de arquitectura para coordinar a los equipos. Nuestro grupo de asesores estuvo conformado por:

David Garda (Turín, 1954)

Arquitecto graduado en Guatemala con Doctorado en arquitectura bioclimática por Berkeley, donde trabajó como un sobresaliente asistente de investigación y cátedra. Ha estado activo en Guatemala con una firma de diseño arquitectónico e interiores comerciales y corporativos, y es miembro de firmas de arquitectura en Turín y Milán.

Alejandro Paz (Guatemala 1975)

Arquitecto por la Universidad Francisco Marroquín de Guate-

mala. Ha incursionado en el campo de la arquitectura y el diseño trabajando proyectos en Centro América y USA. En el campo del arte se ha caracterizado por su trabajo de corte conceptual, reflexionando sobre aspectos sociales y políticos tanto individuales como sociales.

Rafael Yee (Guatemala 1975)

Licenciado en Arquitectura por la Universidad Rafael Landívar, con Maestría de la Universidad de Michigan en Ann Arbor. Ex becario Fulbright y catedrático en Guatemala, Panamá, México y profesor visitante en los USA. Profesionalmente, su experiencia incluye proyectos internacionales con Eric van Egeraat, Arquitectos Asociados de Budapest.

Manuel Pineda (Guatemala, 1977)

Arquitecto inversionista en el Centro Histórico de Ciudad de Guatemala con un máster en Urbanismo y Diseño del Paisaje en Barcelona. Catedrático de Diseño y Urbanismo en la Universidad Francisco Marroquín posee amplia experiencia en diseño arquitectónico.

Thomas Bland (Guatemala 1978)

Arquitecto por el Instituto Tecnológico y de Estudios Superiores de Monterrey (ISTM), con Especialización en Planificación y Gestión Urbana de la Universidad Rafael Landívar. Empresario y desarrollador de proyectos residenciales, especialmente viviendas y edificios de apartamentos.

SEMINARIO PASEO DE LA SEXTA

Equipo 1:

Edificio París XXI

Arq. David Garda

Godoy, Julissa Michelle, UNIS

Larios Sincuir, Rodrigo Rafael , UNIS

Mena Barreto, Michelle, URL

Tánchez Cordón, Edgar Arturo , UMG

Yupe Alvarado, Lester David, USAC Zarceño, Carmen, UFM

Análisis Urbano

El proyecto está ubicado en una zona altamente privilegiada, principalmente por su valor histórico y su centralidad estratégica en la mancha urbana de la ciudad. Rodeado de imponentes inmuebles históricos, altas densidades de po-

blación visitante y cercanías con la Plaza Mayor de la Constitución y el Palacio Nacional de la Cultura. Estar situado en el corredor de la Sexta Avenida, con una facilidad de circulación peatonal, ejes de ciclo vía, y el equipamiento urbano en la zona central brindan características especiales para el desarrollo arquitectónico de nuestra propuesta.

Análisis del Inmueble

Construido en 1931, (fecha aproximada), de época Republicana, el Edificio París ubicado en la Sexta Avenida del Centro Histórico de la Ciudad de Guatemala, entre 9ª y 10ª Calle de la zona 1, refleja un estilo arquitectónico en su fachada tipo Art Decó. En cuanto a la distribución de ambientes en el edificio, presenta un uso mixto de locales comerciales al frente, oficinas en la planta baja y vivienda y oficinas en el segundo piso. Morfológicamente en el interior del inmueble no presenta ningún estilo en particular.

El Edificio París tiene un legado patrimonial en fachada, que es,

después del estudio, el único registro de un elemento con contenido original que se considera prioritario preservar. La edificación está compuesta por muros de ladrillo y block, tabiques de tablayeso, pisos de piedra en el ingreso y el corredor central y de cemento liquido en las oficinas y apartamentos del segundo piso, entrepiso y cubierta de concreto armado. Actualmente el edificio se encuentra parcialmente ocupado con comercio en la parte frontal baja y oficinas en la primera crujía del segundo piso, el resto del inmueble equivalente al 70% de la totalidad del Edificio se encuentra sin uso debido a condiciones ambientales como poca iluminación natural y ventilación, lo que repercute en problemas de humedad y falta de comodidad en general.

Conceptualización

La Concordancia Urbana se logra a partir de mantener los ejes existentes en la fachada original, y en la nueva que se plantea proyectar. La intensión de densificar el Centro Histórico de la Ciudad, compromete las alturas a construir en la

manzana hasta alcanzar el tercer piso, como en el caso del Edificio París, que inicia esta aplicación según la propuesta presentada. Integración a través de la convivencia y el uso de espacios compartidos visualmente con los espacios públicos. Valorizar el patrimonio a través del contraste y dejar en evidencia los diferentes periodos constructivos en la fachada y mantener los tipos de uso del inmueble.

Transformación

Se construye un tercer piso, en el cual, a través de una terraza se crea una convivencia e interacción entre los ocupantes del inmueble y el de-

sarrollo de las actividades urbanas de la Sexta Avenida, ambiente que agrega valor al proyecto, al contemplar áreas de uso común en simbiosis del interior con el exterior del edificio. Principalmente el espacio busca reforzar el valor patrimonial del sector a partir de la conexión visual entre arquitectura, urbanismo y usuarios.

La propuesta de la marquesina es rediseñada a partir de la que existe actualmente en vista de que no hay evidencia que compruebe su originalidad histórica. Se considera por tanto una visión abierta al respecto del mencionado elemento.

En lo que se refiere a los acabados de obra de la propuesta, se tomó en consideración el contraste mediante elementos contemporáneos de vigas de acero y vidrio entre otros, logrando evidenciar la construcción nueva y respetando la antigua, manteniendo un equilibrio entre las historias del edificio, generando así una armonía en el diseño. Los parámetros no aplicados representan una contradicción justificable de plantear, una solución arquitectónica razonada en aras de la experiencia sensorial, la convivencia ciudadana y el refuerzo del patrimonio del Centro Histórico.

SEMINARIO PASEO DE LA SEXTA

Equipo 2:

Casa Sky

Análisis Urbano

La intersección de la Sexta Avenida y la Doce Calle brinda un sinfín de posibilidades, ya que es el cruce de la principal avenida comercial del Centro Histórico con una de las calles de más larga tradición, en la cual se encuentran no solamente

Arq. Thomas Bland

Castañeda, Rocío, UFM

España Villareal, Ignacio, URL

Flores Obregón, William, USAC Girón, Odra, UFM

González Orozco, Tania Ninette, UNIS

Palomino Ramírez, Melannie Waleska, UMG

edificios gubernamentales, sino además históricamente ha servido de eje para actividades universitarias, sociales y culturales, y en la cual se han localizado diversos comercios entre los que sobresalen los anticuarios.

Actualmente el sector comercial, que es mayoritariamente de menudeo, se apoya en estacionamientos ubicados sobre la Quinta Avenida, y brinda principalmente servicios de comida, ropa y calzado, medicinas y entretenimiento.

Análisis del Inmueble

Según diferentes referencias orales de historiadores, la conocida en antaño como Casa Urruela (por ser propiedad de esta familia), fue una de las primeras residencias de dos pisos en la Ciudad de Guatemala. Perteneciente a una familia que durante mucho tiempo apoyó la actividad religiosa de los franciscanos, la vivienda se encontraba en una posición estratégica, cercana al templo de San Francisco y en vía de comunicación directa hacia el palacio de gobierno. Desde prin-

cipios del siglo XX se tiene conocimiento que su primer piso fue utilizado para comercios, especialmente en el lateral de la avenida, lo cual dio facilidad a que las múltiples subdivisiones y arrendatarios causaran alteraciones a lo largo de las décadas. Los muros existentes están en condiciones críticas en algunos puntos del inmueble, e impiden la utilización de los mismos como elementos estructurales sin realizar antes una evaluación a detalle y plantear las consolidaciones necesarias, en caso de ser posible la inversión. Es difícil determinar a simple vista las características de la fachada original, sin embargo, su segundo piso tiene un estilo Neoclásico. La existencia de balcones, puertas, parapetos y otros detalles son importantes a considerar en la propuesta para el inmueble.

Conceptualización

A nivel urbano, el objetivo será proveer una vialidad de alta calidad peatonal y ambiental, realizando una propuesta de diseño de acera sobre la Doce Calle. El concepto arquitectónico será también ami-

gable al ambiente y se propone que el uso prioritario sea vivienda compacta. El edificio deberá contar con estacionamientos en sótano.

Transformación

Se analizó la situación actual del conjunto y del inmueble a intervenir a través de un diagnóstico gráfico y de valores patrimoniales.

Conceptualización

A nivel de intervención y debido al actual uso de ocupación del predio, se plantean dos pisos de estacionamiento, con cuarenta y seis plazas para vehículos, esto con la intención de proveer al futuro in-

mueble intervenido de una fuente de ingreso para mantenimiento, y aprovechar las oportunidades comerciales de los locales que se mantendrán funcionando en el primer piso, aunados a un comercio de bajo impacto (actividad cultural exclusivamente) que se propone para el segundo piso. Los apartamentos que se plantean (9 en el segundo nivel), para el proyecto tendrán de 48 a 73 metros cuadrados y contarán con áreas comunes de apoyo (lavandería y terraza. El sistema de captación y reutilización de agua será una ventaja ambiental para sus ocupantes, estimando que el 50% de la cubierta será terraza jardín.

La fachada es un elemento importante dentro de la propuesta final, el segundo nivel se restaurará, considerando especialmente: los balcones, el trabajo de madera de ventanas e inspirándose en los elementos geométricos en repetición para la propuesta de intervención de la primera planta. En ella, el módulo básico sobre puertas y ventanas será una adaptación en proporciones de los balcones existentes. El interior será renovado a excepción de aquellos elementos patrimoniales detectados que pueden ser recuperados y que darán al proyecto la mezcla deseada entre lo contemporáneo y lo antiguo.

SEMINARIO PASEO DE LA SEXTA

Equipo 3: Neighborhub

Arq. Rafael Yee

Barrios, Andrés,UFM

Fernández Porres, Javier, UNIS

Pagliara Vasquez, Bianca Paola, UMG

Tobar Arias, Editha María,URL

Torres Hernández, Gilberto Salvador,USAC Urruela, Alexandra,UFM

Zou Sitú, Jorge Fernando,URL

Análisis Urbano

Frente al parque Centenario, sobre la Sexta Avenida y 15 Calle esquina se ubica el inmueble a analizar, su uso actual es comercial. Sobre esa misma cuadra se ubican dos edificios comerciales y de oficinas (Edificio Valenzuela y Edificio Briz)

ambos con cinco pisos. Asimismo, se encuentra un restaurante de comida rápida y a su lado un almacén de productos electrodomésticos y una farmacia. La cercanía del parque, así como los flujos peatonales del Paseo de la Sexta, convierten a este punto en el sitio ideal para proponer un uso mixto.

Análisis del Predio

El área en donde Se ubica desde hace más de cuarenta años un pequeño restaurante de comida china, al entrar se puede apreciar piso de cemento líquido, muros recubiertos en el interior por una fachaleta de madera que recuerdan un estilo moderno típico de los años sesenta, y el cielo falso con un curioso diseño de un dragón rojo, que vino desde Hong Kong. Sus gruesos muros muestran el paso del tiempo y los distintos usos que se le han dado a la vivienda han causado que su diseño neoclásico original haya evolucionado a ecléctico. A pesar de ello aún mantiene algunos detalles arquitectónicos valiosos en su fachada frontal, como las pilastras, el parapeto y las cornisas.

Conceptualización

NeighborHUB o Concentrador vecinal, explora como estrategia programática la mezcla de usos en la edificación en los ámbitos privados, semipúblicos y públicos, con la intención de ser un concentrador vecinal en la Guatemala de hoy. Cada una de las unidades habitacionales, consideradas como los recintos privados, tienen morfología y tamaño único. La intención es celebrar la variedad de personas que se concentran en el Centro Histórico, no homogeneizar a los inquilinos, permitir la vida de las persona en cualquier etapa de su vida y aprovechar lo más posible el frente estrecho frente al Parque Concordia y sus vistas.

Transformación

Todos los usos están dentro de una envoltura que actúa como piel integradora del edificio que provee seguridad pero no suprime las caracterizaciones espaciales particulares al ser semi-transparente y de un material resistente e innovador: cadenas delgadas colocadas verticalmente, son ese elemento.

En la esfera semipública se propone la publicitación de los espacios menos privados de unidades habitacionales como modelo económico independiente para facilitar la atracción de vecinos al tener la posibilidad de contar con servicios adicionales de mayor tamaño o inexistentes en las unidades habitacionales. Por otro lado, las circulaciones podrán convertirse en espacios de convivencia casual para usuarios, visitantes y residentes. Los espacios públicos se han diseñado para dos tipos de usos: el deliberadamente programado y el programable. Ambos tipos como modelos económicos indepen-

dientes a la vivienda que colaboren a la creación de vida barrial. Los recintos privados con morfología única permiten maximizar las áreas y generar una respuesta para cada uno de los usuarios potenciales en donde todos tengan acceso a la comodidad ideal en un espacio con ventilación e iluminación natural.

Se propone la restitución hasta donde sea posible de la fachada frontal de la edificación al estado que tuvo el bien patrimonial original. De especial consideración son: Recuperación de pisos, que se encuentran dañados por el uso. Carpintería, especialmente marcos de puertas

y ventanas. Las cubiertas debido a problemas de humedad y algunos detalles arquitectónicos.

Adicionalmente, la autorización de construcción de niveles adicionales por encima de la fachada existente hasta una cota máxima establecida, permitiendo al interior modificaciones que pueden apartarse sustancialmente de la edificación existente. La propuesta intenta liberar espacios al eliminar muros y separaciones con la creación de un patio interior que sirve como punto central del diseño y vestíbulo. Ello permite aprovechar al máximo las áreas y tener un juego de espacios.

SEMINARIO PASEO DE LA SEXTA

Equipo 4:

Pixelarte

Análisis Urbano

El inmueble se ubica en la esquina de la 6ª Avenida y 15 Calle esquina, a un lado del Parque Gómez Carrillo. Este inmueble se ubica en una de las esquinas comerciales del “Paseo de La Sexta”, lo cual lo convierte en punto de interés.

Arq. Alejandro Paz

Aldana Lemus, Jessica Michelle, UMG

Escalón Valiente, Ana Gabriela, UNIS Gonzáles Álvarez, Daniel, UMG

Hurtado Agustín, Patricia, URL

Mendizábal Oliva, Carlos Osberto, USAC Recinos, Oscar, UFM

El “Paseo de La Sexta” es un área comercial por excelencia. Esto ha generado que este inmueble sea aprovechado para el uso de locales comerciales. La cuadra de intervención de este proyecto, presenta inmuebles que pueden ser renovados en su totalidad, según la normativa actual, aunque dos de ellos poseen un valor patrimonial importante a considerar como imagen urbana.

El comercio de “La Sexta” es variado, aunque gira principalmente alrededor de la venta de ropa y zapatos, así como de electrodomésticos. Existen muy pocos restaurantes, pero no existe ningún banco del sistema. El área tiene cierta tendencia a la contaminación auditiva, tanto por el tránsito vehicular sobre la 15 Calle, así como por los transeúntes, la cercanía de actividades en el Parque Gómez Carrillo y la competencia entre comercios.

Análisis del Predio

El inmueble posee varios locales comerciales en su primer nivel (venta de ropa, zapatos, electrodomésticos y regalos) que dan hacia

el “Paseo de La Sexta” y hacia la 15 Calle, en un predio de 593.31 metros cuadrados. En el segundo piso se puede encontrar las bodegas que son utilizadas por los locales comerciales. Este inmueble posee poco o nulo valor patrimonial, lo cual permite que se pueda realizar cualquier cambio en su estructura o hacer una intervención completa en el terreno. Decidimos por tanto, dar paso a una nueva construcción que este más acorde a lo que representa esta esquina para la “La Sexta”, y que nos brinde un espacio de descanso y entretenimiento.

Conceptualización

La Sexta Avenida históricamente ha sido la calle de más flujo y movimiento de la ciudad, al punto de ser la calle que inicio el crecimiento de la metrópoli que buscaba nuevos rumbos de expansión. Por esto “La Sexta” ha sido un lugar propulsor, lleno de energía y vitalidad que los capitalinos le imprimen con cada paso que dan por sus cuadras y que debemos aprovechar, especialmente hoy, para revitalizar el Centro Histórico de la ciudad.

Nuestro proyecto propone la unión de dos puntos de referencia, distanciados por diez manzanas, éstos son: la Plaza de la Constitución (Octava Calle) y la Plaza El Amate (18 Calle), las cuales se encuentran en el parque Gómez Carrillo como punto intermedio del recorrido entre ambas. Nuestro proyecto pretende ser aquel propulsor del flujo de gente que recorre “La Sexta” de norte a sur y viceversa, tratando de que todas estas personas encuentren un lugar que los atraiga a través de arte, cultura, recreo y contemplación, y se convierta en memorable su recorrido.

SEMINARIO

Transformaciones

El desarrollo de este proyecto empieza desde el aprovechamiento del flujo de gente sobre “La Sexta”. El uso de textura de la calle que se introduce dentro de nuestro edificio ayuda a integrarse y ser parte de la energía que “La Sexta” transmite. La primera planta es un espacio abierto y público que invita al usuario a expresarse libremente con un área de “Gift Shop” o compras, donde el peatón puede adquirir obras de arte de los artistas en residencia que se encuentran trabajando en los “Project Rooms” ubicados en las plantas superiores.

El sistema constructivo que se propuso es el uso de muros de carga de concreto alrededor de la propiedad y dentro de la misma dos muros/ columnas para soportar todo el edificio, lo cual hace que sea muy libre de su estructura y muy libre de su funcionalidad, ya que no se mira limitado a seguir una estructura de marcos rígidos. Se diseñó un proyecto de cinco pisos para aprovechar al máximo las posibilidades de uso y mercadeo del predio, ya que debemos recordar que también es importante tener un pronto retorno para contar con la inversión en el proyecto.

SEMINARIO PASEO DE LA SEXTA

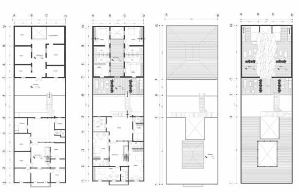
Equipo 5:

Quince 22

Arq. Manuel Pineda

Aguilar, Gabriela, UFM

Aragón De León, Pablo César, USAC

Castro Porres, María Alejandra, UMG

Lavagnino Sánchez, Esteban Ismael, URL

Rojas Alarcón, Nancy Fabiola, UNIS Yoc Ávila, Melvyn Danilo, USAC

Análisis Urbano

Para la intervención del edificio ubicado en la 6ª Avenida 15-22 zona 1 del Centro Histórico de la Ciudad de Guatemala, se propuso la idea de realizar un hotel boutique considerando el potencial turístico del Centro Histórico, debido a su

revitalización y a la carencia de alojamiento de alto nivel en las áreas circundantes.

El inmueble a intervenir data de la época republicana (1920), y se compone de dos edificaciones, de dos pisos cada una. La primera, ubicada en la parte frontal, es de estilo neorrenacentista, compuesta de muros de mampostería de ladrillo, puertas y ventanas de madera originales, losas planas y techos de madera y lámina, así como artesonados de mampostería propios del estilo. El segundo edificio, que se encuentra en la parte posterior, es de origen desconocido, además que carece de un estilo definido. Ambos edificios se encuentran separados por un patio interior.

En la actualidad, en el primer edificio se encuentra un taller de reparación de electrónicos y una zapatería en el piso de ingreso; y el segundo piso se encuentra habitado por una familia. En el segundo edificio se encuentra un comedor popular en el piso de ingreso; y el segundo piso también con uso resi-

dencial. Debido a sus características, es probable que el edificio fuera concebido originalmente como residencia en la parte superior, con un área comercial en la parte inferior.

Análisis del Predio

Debido a sus características formales, este edificio se encuentra clasificado en la categoría B dentro del catálogo de inmuebles patrimoniales del Centro Histórico. Su intervención se encuentra regida por esta circunstancia, lo que limita su modificación. Esto también sugeriría, que un hotel con servicios complementarios sería el proyecto más factible para dicho inmueble, ya que las intervenciones para adecuar el programa de necesidades espaciales serían las mínimas, adecuándose a las condicionantes legales y economizando el proyecto. Así mismo, dicho proyecto revaloriza el inmueble, a través de la integración de usos acordes a su arquitectura y entorno.

Conceptualización

El hotel boutique consiste en el desarrollo de un restaurante, café

y bar en el nivel de ingreso del primer edificio. La galería de arte y salón de convenciones se propuso en el nivel de ingreso del segundo edificio, que consiste en un espacio abierto de características formales genéricas. Para proveer privacidad, el área habitacional del hotel fue propuesta en el segundo piso de ambos edificios, conectados a través del patio interior.

Transformaciones

Dichas intervenciones fueron concebidas bajo los criterios de la arquitectura de integración en contextos patrimoniales. Para ello, se realizo

un análisis formal de la fachada del edificio, proponiendo la restauración de los elementos que se tenían evidencia de su estado original, e integrando elementos nuevos que complementaran la composición. de la misma. En la parte inferior, la fachada estaba originalmente compuesta por cuatro vanos de arcos de medio punto, los dos laterales se encuentran en buen estado, por lo que se propuso su restauración, a nivel de fachada, el segundo piso se preserva adecuadamente. Dicha fachada contiene elementos arquitectónicos únicos y la consideramos de alto valor patrimonial.

En el mismo sentido de integración y conservación del patrimonio, para esta intervención se realizo un análisis estructural básico para poder realizar la apertura de vanos en algunos muros, sin afectar su integridad estructural, para responder adecuadamente a las necesidades espaciales que eran requeridas. Además se integran los cielos falsos acorde a la retícula estructural existente, y para los espacios multifuncionales, se colocan tabiques móviles que crean diferentes escalas dentro del inmueble. El proyecto siguió desarrollándose después del seminario.

Índice de Gráficas

Portada “Extinción Siglo XXI”, Jamie Bischof

Arturo Portillo

Portada Interna

Plano de Centro Histórico, Unidad de Investigación

02 Arquitectos Andaluces en la oficina del Señor Alcalde, Representantes académicos en el cierre del seminario

Comunicación Social, Municipalidad de Guatemala

04 Vista de la Sexta Avenida desde El Calvario

Eadweard Muybridge, 1876

06 Kiosko en la Plaza de La Victoria, Santa Clara en ruinas

Museo Nacional de Historia 08 Sexteando 09 Esquina de la 13 Calle, Vehículos en la Sexta Avenida

Colección Gutiérrez Minera 10 Empresa Eléctrica

11 Edificio Elma

Pasaje Rubio

Arturo Portillo

12 Sexta Avenida entre 9ª y 10ª Calle

Colección Gutiérrez Minera

13 Detalles arquitectónicos

Sexta Avenida

Arturo Portillo

14 Edificio Engel Yasmin Hage

Edificio Lux y motorista

Colección Gutiérrez Minera 15 Bar Salamandra, Piso de cemento líquido

Arturo Portillo

16 Templo de San Francisco y la Tercera Orden

Eadweard Muybridge, 1876

17 Detalle columnas en galería, Vista aérea Parque Gómez Carrillo

Arturo Portillo

18 Congestionamiento 2006, Niño estudiando 2006

Aníbal Chajón

20 Paseo de La Sexta en Obras 2010

Jorge Linares

Empleado municipal con Teodolito Bernardo Euler

Frente a San Francisco

Silvia García Vettorazzi En obra

Werner Solórzano

22 Inversión Privada: Café Casa, Fu Lu Sho, Biblioteca CCE/G, Auditorio CCE/G, Taco Bell, Arturo Portillo

23 Atletas visitan Paseo de la Sexta

Werner Solórzano

Guatemala Diversa,

Oliverio Toscani

10 K

Municipalidad de Guatemala

Inauguración Paseo de la Sexta

José Rodolfo Yaguas

25 Visita al Lux

Ponencia José Ramón Sierra

Arturo Portillo

Vista aérea de Úbeda

Marcelino Sánchez Ruiz

Entrevista TVR

27 Dibujando

Arturo Portillo

28 Mapa Sexta Avenida Área de trabajo (Equipo 1)

Unidad de Investigación

29 Detalle Edificio Paris

Gabriel Escobar

30 Detalle Edificio Paris

Elvira Castellanos

Sexta Avenida frente a Edificio Paris, Render Paris XXI

31 Render vista aérea

Render interior apartamento Equipo 1

32 Mapa Sexta Avenida Área de trabajo (Equipo 2)

Unidad de Investigación

33 Detalle Casa Urruela Ricardo Estrada

34 Detalle Casa Urruela

Arturo Portillo

Planos propuesta Casa Sky

35 Render vista desde la esquina, Estudio, Dormitorio, Sala de estar Equipo 2

36 Mapa Sexta Avenida Área de trabajo (Equipo 3)

Unidad de Investigación

37 Monumento a Enrique Gómez Carrillo

José Godínez

38 Detalle cielo falso

Arturo Portillo

Planos propuesta NeighborHUB Sección Longitudinal

39 Render proyecto, Corte isométrico, Esquema de áreas Equipo 3

40 Mapa Sexta Avenida Área de trabajo (Equipo 4)

Unidad de Investigación

Edificio Roma

José Godínez

42 Monumento a Enrique Gómez Carrillo

Arturo Portillo

Plantas arquitectónicas

43 Render, Sección del proyecto Equipo 4

44 Mapa Sexta Avenida Área de trabajo (Equipo 5)

Unidad de Investigación

45 Detalle Inmueble 15-22

Gabriel Escobar

46 Vista parcial segundo nivel

Elvira Castellanos

Plantas arquitectónicas

47 Renders: Vista interna,Vestíbulo, Vista superior, Patio y escalera

Equipo 5

Contraportada interna Monumento a Tasso Hadjidodou

Arturo Portillo

Colaboraciones de Vecinos e Instituciones

Familia Capuano

Familia Dorión

Familia González

Familia Valdez

Familia Vila

Museo Nacional de Historia

Miguel Alfredo Álvarez

Julio Cañas

Centro Cultural de España / Guatemala

David Ruiz López-Prisuelos

Yanira Gálvez Bolaños

Teatro Lux

Patricia Rosenberg

Colección Gutiérrez Minera

Ministerio de Gobernación

Hotel Royal Palace

Enrique Barroso

Café Casa

Romeo Sapón

Fu Lu Sho

María de los Ángeles Porras

La Salamandra

Gustavo González

Taco Bell

Juan Carlos García

Apoyo Municipal

Centro Histórico

Gestión

Isabel Urruela

Hans Bendfeldt Planimetría

Gabriel Escobar

Ricardo Estrada

José Godínez

Apoyo Logístico

Paola Méndez

Difusión

Comunicación Social Página Web

Urbanística

Silvia García Vettorazzi

Werner Solórzano

Información

Dirección del Centro Histórico

7ª Avenida 11-66 Zona 1, Ciudad de Guatemala (502) 2285.8950 / 51 T http://www.muniguate.com/index.php/centro historico/53-revitalizacion/9516-intervencion

A modo de conclusión

El Centro Histórico de la Ciudad de Guatemala, se enfrenta a profundos cambios funcionales y sociales. En él se sobreponen centralidades históricas, económicas, culturales, turísticas y simbólicas, y se configuran realidades urbanas y sociales conflictivas que conviven en tensión permanente, la tensión de los cambios de antes y de sus nuevas funciones. Cuando asumí este reto, pensé en el trabajo que representa para un estudiante de la carrera de arquitectura, sumarse a diseñar nuevos espacios en un contexto patrimonial, el actual Paseo de la Sexta, que fue el escenario urbano seleccionado para el desarrollo de los proyectos.

La participación de treinta estudiantes en una primera experiencia inter facultades, abrió la creatividad y la innovación hacia el diseño. La interacción entre los participantes, orientados por cinco arquitectos guatemaltecos, permitió la reflexión para producir propuestas capaces de transmitir, reinterpretar y recuperar el espacio patrimonial del Paseo de la Sexta. El resultado plasmado, en la exposición de los proyectos diseñados puso de manifiesto que la participación de los jóvenes y de la sociedad en general, constituye una enorme oportunidad para orientar y visualizar las diferentes facetas del patrimonio, al mismo tiempo que evocan la responsabilidad colectiva.

Al final entendí, que nuestro Centro Histórico tiene el valor de historia, que se suma al valor del uso y el valor de cambio. Entendí también que implica superar la óptica de la conservación. Este primer cometido se efectuó y agradezco la oportunidad y confianza por parte del equipo coordinador y La Junta de Andalucía, para el desarrollo de este seminario. Añadir que esta práctica académica, me permitió descubrir el valor que constituye la formación y el intercambio de experiencias hacia las oportunidades que despliega a futuro el patrimonio arquitectónico del Centro Histórico.

María Paz Suasnávar 11 de noviembre 2011

Turn static files into dynamic content formats.

Create a flipbook
Issuu converts static files into: digital portfolios, online yearbooks, online catalogs, digital photo albums and more. Sign up and create your flipbook.