042_StrutturaLegno_2023

Page 1

STRUTTURALEGNO

☐ Inaugurato a giugno il Wood Passage di Bolzano per incentivare l’edilizia verde

☐ Norbert Lantschner: “il passaggio dalla transizione energetica a quella materica”

☐ Le connessioni metalliche per strutture in legno e una storia familiare lunga 60 anni

☐ I sistemi di giunzione lignei e le ramificazioni strutturali innaturali del prof. Ragazzo

☐ Simposium Restructura: elementi per una progettazione e realizzazione di qualità

☐ Gelsomino edilizia: verso un progetto “chiavi in mano” dalle fondamenta alla finitura

☐ Al via la II edizione del Wood Architecture Prize 2024 con tre diverse categorie

☐ Il prossimo 8 e 9 novembre ritorna Architect@Work all’Allianz MiCo di Milano

Poste Italiane spaSped. Abb. Post.D.L. 353/2003 (Convertito in legge 27/02/2004 n. 46), art. 1, comma 1 LO /MI/euro 1 0,00 In caso di mancato recapito rinviare all’ufficio CMP Roserio (Mi) per la restituzione al mittente che si impegna a pagar e la relativa tariffa Editrice webandmagazine s.r.l.Via Valla, 16I-20141 Milanowww.webandmagazine.media ISSN 2283-8651 042 settembre 2023 english text www.webandmagazine.media
www.xlamdolomiti.it
con payo

STRUTTURALEGNO 42 SETTEMBRE 2023

COLOPHON

RIVISTA DELL’ARCHITETTURA IN LEGNO

editrice WEBANDMAGAZINE s.r.l.

VIA VALLA, 16 - 20141 MILANO ITALIA

TELEFONO +39/02 84173130

TELEFONO +39/02 84173121 (MARKETING)

amministrazione@webandmagazine.com

www.webandmagazine.media/legno-edilizia www.webandmagazine.media

DIRETTORE RESPONSABILE

EDITOR IN CHIEF

SONIA MARITAN SONIAMARITAN@GMAIL.COM REDAZIONE@WEBANDMAGAZINE.COM

COMITATO SCIENTIFICO

SCIENTIFIC COMMITEE

GIORGIO BIGNOTTI, PIETRO FERRARI, DAVIDE MARIA GIACHINO, DANILO PIERUCCI, FRANCO PIVA, FELICE RAGAZZO

UFFICIO LOGISTICA LOGISTIC OFFICE LOGISTICA@WEBANDMAGAZINE.COM

UFFICIO GRAFICO

GRAPHIC LAYOUT

UFFICIOGRAFICO@WEBANDMAGAZINE.COM

IMPAGINAZIONE LAYOUT

GIADA BORDONI REDAZIONE@WEBANDMAGAZINE.COM

AMMINISTRAZIONE ADMINISTRATION

LAURA GREGORUTTI

AMMINISTRAZIONE@WEBANDMAGAZINE.COM

WEB AND MEDIA ADVERTISING

BEATRICE GUIDI DIREZIONE MARKETING BEATRICEGUIDI_MKT@WEBANDMAGAZINE.MEDIA ADVERTISING@WEBANDMAGAZINE.COM MKT@WEBANDMAGAZINE.MEDIA

WEB AND SOCIAL MEDIA EDITOR

MONICA ZANI

MKT@WEBANDMAGAZINE.MEDIA

Stampa AGP Aziende Grafiche Printing Via Milano, 3/5

20068 Peschiera Borromeo Milano

COVER

X-LAM DOLOMITI s.p.a.

www.xlamdolomiti.it

TRIMESTRALE: POSTE ITALIANE SPA SPED. ABB. POST.D.L. 353/2003 (CONVERTITO IN LEGGE 27/02/2004 N.46), ART. 1, COMMA 1 - LO/MI

REGISTRO DEGLI OPERATORI

DI COMUNICAZIONE - ROC 23567

REGISTRO MONDIALE DELLE PUBBLICAZIONI ISSN 2283-8651

RIVISTA TRIMESTRALE QUARTERLY MAGAZINE

UNA COPIA ONE COPY EURO 10,00

ABBONAMENTO ANNUO ITALIA EURO 30,00

A YEAR’S SUBSCRIPTION ABROAD EURO 60,00

MODALITÀ

DI PAGAMENTO ABBONAMENTO

TRAMITE BONIFICO BANCARIO CON TUTTI I VOSTRI DATI

E CAUSALE UTILIZZANDO IL SEGUENTE IBAN: CRÉDIT AGRICOLE:

IT19K0623001619000040434367 - B.I.C. CRPPIT2P166

I NOMI, LE DITTE E I PRODOTTI CITATI REDAZIONALMENTE SONO PUBBLICATI SENZA RESPONSABILITÀ DELL’EDITORE; TESTI E FOTOGRAFIE, ANCHE SE NON PUBBLICATI, NON VENGONO RESTITUITI NAMES, FIRMS AND PRODUCTS WICH ARE QUOTED EDITORIALLY ARE PUBLISHED WITHOUT PUBLISHER’S RESPONSABILITY; TEXTS AND PHOTOS, ALTOUGH UNPUBLISHED, ARE NOT RETURNED

INFORMATIVA EX D. LGS.196/03 – WEBANDMAGAZINE S.R.L., TITOLARE DEL TRATTAMENTO TRATTA I DATI PERSONALI LIBERAMENTE CONFERITI PER FORNIRE I SERVIZI INDICATI. PER I DIRITTI DI CUI ALL'ART. 7 DEL D. LGS N. 196/03 E PER L'ELENCO DI TUTTI I RESPONSABILI DEL TRATTAMENTO RIVOLGERSI AL RESPONSABILE DEL TRATTAMENTO, INFO@WEBANDMAGAZINE.COM.

I DATI POTRANNO ESSERE TRATTATI DA INCARICATI PREPOSTI AGLI ABBONAMENTI, AL MARKETING, ALL'AMMINISTRAZIONE E POTRANNO ESSERE COMUNICATI A SOCIETÀ ESTERNE PER LA SPEDIZIONE DEL PERIODICO E PER L'INVIO DI MATERIALE PROMOZIONALE.

IL RESPONSABILE DEL TRATTAMENTO DEI DATI RACCOLTI IN BANCHE DATI A USO REDAZIONALE È IL DIRETTORE RESPONSABILE A CUI CI SI PUÒ RIVOLGERE, PER I DIRITTI PREVISTI DAL D. LGS. 196/03, PRESSO: EDITRICE WEBANDMAGAZINE S.R.L., VIA VALLA, 16 - MILANO.

STRUTTURALEGNO Poste Italiane Sped. Abb. Post. D.L. 353/2003 (Convertito legge 27/02/2004 46), art. comma LO/MI/ eur 10,00 caso mancato recapito rinviare all’ufficio CMP Roserio (Mi) restituzione mittente che impegna pa gare relativa tariffa Editrice webandmagazine s.r.l. Valla, I-20141 Milano www.webandmagazine.media ISSN 2283-8651 042 settembre 2023 english text www.webandmagazine.media ☐ Inaugurato a giugno Wood Passage di Bolzano per incentivare l’edilizia verde ☐ Norbert Lantschner: “il passaggio dalla transizione energetica a quella materica” ☐ Le connessioni metalliche per strutture in legno e una storia familiare lunga 60 anni ☐ sistemi di giunzione lignei e le ramificazioni strutturali innaturali del prof. Ragazzo ☐ Simposium Restructura: elementi per una progettazione e realizzazione di qualità ☐ Gelsomino edilizia: verso un progetto “chiavi in mano” dalle fondamenta alla finitura ☐ Al via la II edizione del Wood Architecture Prize 2024 con tre diverse categorie ☐ prossimo 8 e 9 novembre ritorna Architect@Work all’Allianz MiCo di Milano www.xlamdolomiti.it
LA PRIMA LINEA DI COLLA PROFESSIONALE
LEGNO senza formaldeide PRO 25% LF ACONE IN PLAST I C A RICICLATA Idroresistente, per legni esposti all’acqua La colla classica D1 Super rapida, per legni esposti all’umidità NOVITÀ NUOVO FLACONE SQUEEZABLE, ERGONOMICO, ANTISPRECO E TAPPO SVITABILE! PRODOTTO IN ITALIA LEGNO EXTRA SUPER FASTD2 D3PLUS YO UR PA R TN E R IN P O LY MER S vinavil.com
PER

RINGRAZIAMO PER LA COLLABORAZIONE A QUESTO NUMERO:

Marco Allasia, Melissa Bado, Roland Baldi, Omar Barbero, Antonella Battista, Manuel Benedikter, Gregor Baumbusch, Massimo Bessone, Gianni Bizzotto, Claudio

Boncompagni, Andrea Bouquet, Guido Callegari, Dario Castellino, Gianpiero Cavallo, Paolo Cavan- na, Luca Compri, Patrizia Corriero, Barbara Corsico, Valeria Cottino, Markus Damiani, Giuliano De Costanzi, Giacomo Del Bianco, Paolo

Forza, Mauro Frate, Walter Frisart, Luca Galeasso, Federica Gaio, Roberto Gargiani, Roberto Gelso- mino, Giuseppe Gherardi, Davide

Maria Giachino, Luca Gibello, Michael Gilli, Francesco Giovanetti, Devis Guiguet, Erwin Hinteregger, Arno Kompatscher, Bettina König, Franco Laner, Peter Lang, Norbert

Lantschner, Gemma Leone, Franz

Locher, Alice Lusso, Luca Maier, Christof Mairinger, Manuela Mon- sorno, Alberto Moretti, Barbara

Moretti, Elena Moretti, Don Luigi

Moretti, Gabriella Moretti, Mauro

Moretti, Thomas Mur, Armin Pixner, Gianbattista Pomatto, Daniele Poncino, Agostino Presutti, Feli- ce Ragazzo, Peter Rosatti, Stefan Rubner, Diego Ruggeri, Moreno Scarchini, Thomas Schrentewein, Arnold Schuler, Nicola Sella, Fabio Spera, Cristina Sella, Giovan- ni Sella, Pasquina Simone, Paolo Simeone, Hannelore Taelman, Matteo Trotta, Cinzia Valente, Nicola Vuovolo.

EDITORIALE di Sonia Maritan VERSO UN’EUROPA VERDE

IN PRIMO LIMINE

XLAM DOLOMITI di Giacomo Del Bianco I PROTAGONISTI DELLA TRANSIZIONE ECOLOGICA

IN NUCE WEINIG-ESSETRE a cura della Redazione WEINIG ACQUISISCE QUOTE DI ESSETRE

CHRONICHAE IDM ALTO ADIGE di Sonia Maritan e Pietro Ferrari IL WOOD PASSAGE DI BOLZANO

Alla base del software di Dietrich’s c’è l’interazione tra sistemi. E il vantaggio per voi? Il mondo dei CAD non è mai semplice, si sa, eppure noi abbiamo l’ambizione di rendervi il lavoro il più semplice possibile. Le tecnologie di Dietrich’s sono state concepite basandosi sulla stessa struttura di interazione per potersi muovere facilmente in tutti i programmi e moduli.

Configurazioni personalizzate ottimizzano ulteriormente il livello di efficienza. Ed è proprio questo il grande vantaggio: Dietrich’s vi aiuta a realizzare le vostre idee!

Edilizia in legno. Tutto un programma. Curiosi? Venite a trovarci su dietrichs.com o scriveteci a: experten@dietrichs.com

SOMMARIO
COLLOQUIUM NORBERT LANTSCHNER di Sonia Maritan LA TRANSIZIONE MATERICA 009 014 010 016 019 TECHNICA GRUPPO PFEIFER di Beatrice Guidi IL NUOVO CLT 125 PUBBLIREDAZIONALE CONCRETE di Luca Maier e Thomas Schrentewein SOPRAELEVAZIONE A BOLZANO 022 026 PROIECTUM EGGER di Laura GregoruttiFUNZIONALITÀ E TONI CALDI 024 dietrichs.com
PROGETTARE DIMENSIONARE REALIZZARE Dietrich's Italia Est - Centro - Sud Hans Peter Prantner T. +39 348 553 75 60 prantner@dietrichs.com Dietrich's Italia Ovest Roland Troger T. +39 348 269 07 84 troger@dietrichs.com
Voi avete l’idea, noi lo strumento per realizzarla.
IDEARE

FOCUS CONNESSIONI Introduzione

a cura della Redazione

I SISTEMI DI GIUNZIONE LIGNEI E LE CONNESSIONI METALLICHE

SCIENTIA

di Felice Ragazzo

RAMIFICAZIONI STRUTTURALI INNATURALI

COLLOQUIUM ADVECO

di Sonia Maritan e Pietro Ferrari

UNA TRADIZIONE LUNGA TRE GENERAZIONI

COLLOQUIUM

Gelsomino Edilizia - SCM

di Sonia Maritan

ANIMA D’ACCIAIO, ANIMA DI LEGNO

SIMPOSIUM GQL + ENVIRONMENT PARK A RESTRUCTURA 2022

di Luca Galeasso, Sonia Maritan e Davide Maria Giachino

LEGNO PER L’ARCHITETTURA

SOSTENIBILITÀ DEL LEGNO E FILIERE DI PROSSIMITÀ di Luca Galeasso

TERRITORI SCARSAMENTE ESPLORATI TRA MECCANICA E DIGITALE NELLE APPLICAZIONI LIGNEE di Felice Ragazzo

PIANIFICAZIONE, GESTIONE FORESTALE

E FILIERE REGIONALI: A CHE PUNTO SIAMO? di Marco Allasia e Daniele Poncino

ARCHITETTURA PER IL BENESSERE ABITATIVO: L’USO SOSTENIBILE DEL LEGNO NELLE STRUTTURE A TELAIO di Gianbattista Pomatto

DALLE COMPONENTI ALL’EDIFICIO DI LEGNO: ELEMENTI PER UNA PROGETTAZIONE E REALIZZAZIONE DI QUALITÀ di Davide Maria Giachino

RECUPERARE EDIFICI TRADIZIONALI CON LEGNO

SOSTENIBILE E DA FILIERA CORTA di Gianpiero Cavallo

ARREDARE CON IL LEGNO DA FILIERA CORTA: IL PROGETTO E LA LINEA “TRACCIALEGNO” di Omar Barbero e Andrea Bouquet

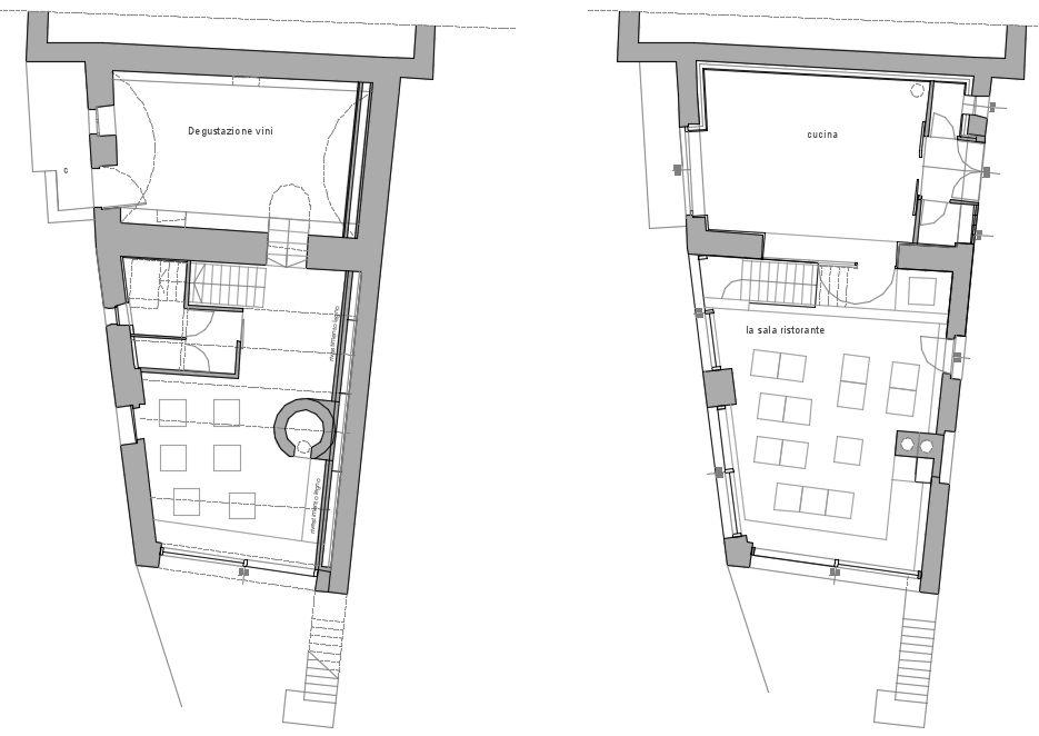
RECUPERO DI UN VECCHIO “SECOU”

LOU ESTELA BED&BREAKFAST A FILIERA CORTA di Dario Castellino

LA CERTIFICAZIONE AMBIENTALE DEI PRODOTTI IN LEGNO COME REQUISITO PER LA PROGETTAZIONE SOSTENIBILE di Giuliano De Costanzi

COSTRUIRE CON LEGNO LOCALE: IL PROGETTO DEL CENTRO DELLA CULTURA D’ALTA QUOTA A BARDONECCHIA di Devis Guiguet

USO DEL LEGNO NEL CONSOLIDAMENTO/MIGLIORAMENTO DI EDIFICI DI MURATURA ESISTENTE di Diego Ruggeri

UN PATENT PENDING CHE SEGNA UN SALTO DI QUALITÀ NEL CONCEPIRE STRUTTURE NEL SETTORE DELLA PREFABBRICAZIONE LIGNEA di Fabio Spera

ANTICIPATIO ARCHITECT@WORK

di Beatrice Guidi

ALL’INSEGNA DELLA BELLEZZA E DEL BENESSERE

ANTICIPATIO

WOOD ARCHITECTURE PRIZE 2024

di Sonia Maritan

AL VIA LA SECONDA EDIZIONE DEL WAP

QUALITÀ SENSAZIONALE

Centro Taglio ROBOT-Drive

Dal disegno CAD al pezzo fnitoCompleto, preciso, in un solo passaggio

La nuova generazione di macchine si distingue soprattutto per l‘alta fessibilitá in poco spazio e a costi bassi. Con la ROBOT-Drive é possibile fare tutte le lavorazione di carpenteria, anche le sezioni grandi, in un solo passaggio senza dover girare il pezzo.

ROBOT-Drive 450

da 20 x 60 mm a 300 x 450 mm. Macchina base per piccole carpenterie.

ROBOT-Drive 650 da 20 x 60 mm a 300 x 650 mm. Macchina adatta alle grandi sezioni.

ROBOT-Drive 1250

da 20 x 60 mm a 300 x 1300 mm. La soluzione a tutte le richieste, pannelli XLAM compresi.

NUMERO 42 SETTEMBRE 2023
INDEX
076 072 074 031 042 032 036 050 051 053 056 057 059 061 062 064 064 065 067 069
IO E LA MIA HUNDEGGER! Never change a winning team!
HUNDEGGER ROBOT- Drive
12.10. - 15.10.20221, Mailand Padiglione 24, Stand C 24

Efficienza. Produttività.

HS Punta a spirale XL.

■ Foratura senza scarichi intermedi

■ Elevata qualità di foratura

■ Lunga durata

■ Meno sforzo

L‘ESPERTO PER FORATURE PROFONDE NEL LEGNO MASSELLO
Leitz Italia Srl, Zona Industriale 9, 39011 Lana (BZ), Telefono +39 473 55 28 00, lana@leitz.org, www.leitz.org

Sonia

Verso un’Europa verde

Lo scorso Primo giugno in occasione dell’installazione del Wood Passage in Piazza Silvius Magnago a Bolzano, eravamo presenti per condividere il messaggio di cui questa iniziativa si è fatto portavoce. D’altra parte l’architetto Devis Guiguet, di Oulx in provincia di Torino – uno dei relatori del Simposio di Restructura –, afferma “dalle nostre parti stiamo costruendo sempre di più con legno massello locale”, indicando una direzione precisa. Il legno è una materia prima rinnovabile. Un esempio: la quantità di legno utilizzata per costruire Wood Passage, 13 metri cubi, nelle foreste europee ricresce in meno di un secondo. Attraverso una gestione sostenibile, la silvicoltura tutela l’habitat forestale e la disponibilità di legname. Ogni giorno la superfcie forestale in Europa cresce quanto 1.500 campi da calcio e solamente due terzi della crescita viene effettivamente utilizzata. Per effetto del processo di fotosintesi degli alberi, in un metro cubo di legno rimane imprigionata una tonnellata di CO2. Eloquente in questo senso l’ultimo Rapporto di Allied Market Research1, divulgato il 5 settembre dal Gruppo Rubner: un interprete di primo piano di questo trend, secondo il quale l’industria globale delle costruzioni in legno si prevede genererà 1.542,2 milioni di dollari entro il 2031, con una crescita percentuale media del 6% dal 2022 al 2031. In particolare, con più della metà del mercato globale delle costruzioni in legno, è proprio l’Europa che ha detenuto la quota di mercato più alta in termini di revenue nel 2021 e che probabilmente dominerà il mercato durante il periodo di previsione. A favorire questo traguardo, le iniziative governative volte a promuovere la sostenibilità e l’aumento dell’adozione di materiali da costruzione ecocompatibili che hanno favorito in modo signifcativo la crescita delle costruzioni in legno in Europa. Anche la Geografa delle fonti energetiche rinnovabili (elaborazione EnergRed – settembre 2023) vede l’Europa al primo posto: « l’86% dell’energia generata in Europa proverrà da energia solare, eolica onshore, eolica

strutturalegno pagina 009

offshore o idroelettrica, rispetto all’attuale 50%», ha sottolineato Moreno Scarchini, ceo di EnergRed. Al secondo posto troviamo l’Australia con l’80% e sul podio anche l’India con il 57%. Mentre la Cina si attesta al 49% e gli Stati Uniti al 36%. «Il mercato delle grandi costruzioni in legno sta cambiando a ritmo incalzante – ha sottolineato Peter Rosatti, ceo di Rubner Bressanone –. Se fno a qualche anno fa, tra i nostri clienti, prevalevano le imprese piccole con dimensioni e progetti facilmente governabili, nell’ultimo periodo abbiamo assistito a una crescita di complessità non solo nei volumi ma anche nei contenuti architettonici e ingegneristici. A queste sfde abbiamo reagito elevando al massimo il livello di prefabbricazione e con risposte chiare sull’aspetto di valutazione del ciclo di vita dei materiali riutilizzabili». I prodotti in legno lamellare, come i pannelli a fbre incrociate (Xlam) stanno crescendo di popolarità in architettura, grazie alla loro capacità di offrire un materiale da costruzione a basse emissioni di carbonio. Inoltre, contribuiscono a conferire un’estetica naturale agli edifci, sostenendo i principi della bioflia che favoriscono un maggiore benessere di chi vi abita. «Le nuove soluzioni tecnologiche di cui oggi disponiamo permettono di costruire condomini ed edifci in legno alti oltre i 16 piani – ha aggiunto Rosatti –. Ne è un esempio il progetto a cui stiamo lavorando ad Amburgo: più di 70 metri d’altezza e un totale di 16 piani in legno con 1.200 elementi prefabbricati. Roots si candida a essere il grattacielo in legno più alto della Germania! Come un secondo bosco, questo grattacielo è in grado di catturare 3.520 tonnellate di CO2 ».

I vantaggi delle costruzioni in legno multipiano vanno dalle tempistiche ridotte con maggiore velocità nella posa (es: un piano al “Roots” – che richiameremo sul prossimo numero – viene montato in meno di 3 settimane), ai cantieri meno impattanti dal punto di vista dei rumori e delle polveri, all’elevata personalizzazione architettonica. Grazie al legno, il peso della struttura è inferiore a quello di costruzioni realizzate con altri materiali (es: acciaio e/o calcestruzzo), il che implica un minore impatto sulle fondazioni, tema rilevante soprattutto in caso di terreni poco resistenti. Il sistema formato da elementi lignei e connessioni in acciaio può offrire una risposta sismica complessiva molto performante e garantire maggiore sicurezza statica e poi la presenza di numerose connessioni metalliche tra gli elementi lignei conferisce alle strutture un buon livello di duttilità. Il Simposium che si è tenuto a Restructura lo scorso anno si intitolava “Legno per l’architettura: identità, sostenibilità, qualità” e fra le pagine di questo numero riportiamo le dodici relazioni legate all’uso del legno per l’architettura green, anche come contributo concreto per mantenere l’obiettivo di limitare il riscaldamento globale a 1,5 gradi rispetto ai livelli preindustriali! L’evento in preparazione in autunno – che si terrà a Restructura 2023 il prossimo 25 novembre (vedi pagina 70) – rappresenterà un altro importante contributo, interrogandoci su quali competenze siano necessarie per un’edilizia in legno sempre più sostenibile. In occasione dell’inaugurazione del Wood Passage a Bolzano, abbiamo incontrato anche Norbert Lantschner e colto l’opportunità di uno scambio con lui, che ci ha ricordato che “abbiamo messo in prima fla il risparmio energetico perché le case erano energivore, ma adesso si tratta di fare il secondo importante passo: dalla transizione energetica alla transizione materica”. L’utilizzo di prodotti per l’edilizia realizzati con materie prime rinnovabili, come il legno, consente di risparmiare e garantire risorse per il futuro e, tali prodotti, sostituiscono i materiali da costruzione ottenuti da materie prime limitate. In particolare, gli edifci in legno presentano grandi vantaggi ecologici e svolgono un ruolo fondamentale nello sviluppo sostenibile. Nel momento in cui il legno si rivela inadatto a qualsiasi tipo di utilizzo strutturale, può essere usato anche per la produzione di energia.

EDITORIALE
di Maritan
1:“Mass Timber Construction Market by Construction Type (1-8 Stories and Above 8 stories), Timber Type (Glue-Laminated Timber (GLT), Cross-Laminated Timber (CLT), Nail-Laminated Timber (NLT) and Others), and End-user Industry (Residential Construction, Commercial Construction, and Industrial Construction): Global Opportunity Analysis and Industry Forecast, 2022-2031”.
Sonia Maritan lo scorso giugno a Bolzano, in occasione dell’inaugurazione del “Wood passage” nella Piazza centrale di Silvius Magnago.

strutturalegno pagina

I protagonisti della transizione ecologica

XLAM Dolomiti appartiene al Gruppo Paterno e si occupa della produzione di componenti strutturali in legno provenienti da foreste certifcate secondo criteri di ecosostenibilità. alla specializzazione nella produzione di pannelli XLAM mutua il suo nome, mettendo a disposizione prodotti all’avanguardia e una conoscenza tecnica altamente specializzata a imprese, progettisti e architetti. La millenaria esperienza nella lavorazione del legno del Trentino, quasi interamente ricoperto da boschi, è il territorio che accoglie la sede principale dell’azienda. In linea con i principi del Green Deal Europeo le costruzioni in legno progettate nelle due sedi di Castelnuovo e di Trento aprono a una visione dell’edilizia nuova e contemporanea alle soluzioni che garantiscono un ambiente vitale salubre e confortevole, inalterabile nel tempo e rispettoso delle risorse ambientali, l’azienda affancherà il primo bilancio sulla sostenibilità: pietra miliare in questa fase di transizione ecologica.

XLAM Dolomiti S.p.a. appartiene al Gruppo Paterno e si occupa di progettazione, produzione e costruzione di edifci sostenibili con tecnologia XLAM. L’azienda si occupa di strutture dal 2012 quando questa tecnologia ha dimostrato sul campo di offrire enormi vantaggi rispetto ai tradizionali sistemi costruttivi. L’alternativa green al cemento e mattone non poteva che prendere forma e cuore in Trentino, là dove la superfcie boschiva supera quella urbana

XLAM Dolomiti è l’interlocutore ideale fn dalle prime fasi di valutazione dove il supporto tecnico risulta fondamentale

per ottimizzare le strutture rendendo l’intervento più competitivo; grazie all’importante staff di progettazione interno l’azienda riesce a seguire numerosi progetti in tutto il mondo e in multilingua. Oggi XLAM Dolomiti è composta da oltre 80 collaboratori divisi su due sedi quella produttiva e storica di Castelnuovo e quella operativa di Trento che da gennaio ha spostato in città una parte importante del team, incrementando le possibilità di crescita e di confronto.

XLAM Dolomiti mette a disposizione prodotti all’avanguardia e una conoscenza tecnica altamente specializzata a impre-

IN PRIMO LIMINE XLAM DOLOMITI www.xlamdolomiti.it
010 011
In questa pagina la sede storica di XLAM Dolomiti a Castelnuovo (TN). Nella pagina accanto, in alto l'Università La Trobe a Melbourne in Australia, mentre in basso il complesso residenziale di Rovereto, in provincia di Trento: il più alto d'Italia attualmente.

se, progettisti e architetti che intendono costruire guidati da una visione dell’edilizia nuova e contemporanea.

Il Trentino è quasi interamente ricoperto da boschi e possiede una millenaria esperienza nella lavorazione del legno; per questo motivo, il CNR-IVALSA (Istituto per la Valorizzazione del Legno e delle Specie Arboree), il Green uilding Council Italia, Arca certifcazione, e altri Enti specializzati in edilizia sostenibile hanno scelto il Trentino come sede principale delle loro attività.

Il punto di forza di XLAM Dolomiti è la sapiente congiunzione tra il know-how

trentino della lavorazione del legno e le più avanzate tecniche di costruzione in bioedilizia.

Le costruzioni in legno progettate da XLAM Dolomiti intercettano le esigenze contemporanee che esigono un nuovo modo di vivere le abitazioni costruite con materiali dal basso impatto ambientale e caratterizzate da un’alta effcienza energetica Le soluzioni XLAM Dolomiti garantiscono un ambiente vitale salubre e confortevole, inalterabile nel tempo e rispettoso delle risorse ambientali.

La materia prima utilizzata proviene da

Nella doppia pagina successiva, in alto (e in copertina) tre foto del progetto di retroft di Norman Foster a Madrid, nominato Ombù. Sotto il progetto Paint shed al Porto di Pesaro: due padiglioni per la riverniciatura di yacht di lusso. A sinistra, la Fox town svizzera e una villa privata a Milano. A destra, un edifcio residenziale multipiano a Verona.

IN PRIMO LIMINE_ XLAM DOLOMITI

strutturalegno pagina

foreste certifcate secondo criteri di ecosostenibilità e viene lavorata presso lo stabilimento produttivo di Castelnuovo, in Valsugana, per dare forma e struttura agli elementi portanti prodotti dall’azienda. Lo stabilimento produttivo altamente automatizzato opera ora su una nuova superfcie di oltre 13.000 mq con una capacità produttiva di oltre 12.000 mq di pannello ingegnerizzato, prodotto e lavorato per turno di lavoro.

In linea con i principi del Green Deal Europeo, XLAM Dolomiti utilizzando una materia prima naturale e sostenibile per antonomasia riesce a preservare parte dell’anidride carbonica che la pianta assorbe durante la fase di crescita generando un bilancio positivo sulle emissioni risulta quinti maggiore l’anidride carbonica assorbita naturalmente rispetto a quella emessa per l’intero ciclo di lavorazione. A coronamento di questo processo, a breve XLAM Dolomiti presenterà il primo bilancio sulla sostenibilità, milestone fondamentale in questa fase di transizione ecologica.

Negli ultimi anni di attività XLAM Dolo-

miti si è posizionata sul mercato delle grandi strutture in legno come punto di riferimento sul mercato nazionale e internazionale riuscendo a realizzare anche progetti di prestigio.

Ne sono un esempio la Monash e La Trobe University di Melbourne, Australia, le prime vere sfde oltreoceano che dal 2019 hanno caratterizzato una serie di successi internazionali; per poi passare ad Antigua, Uruguay, Nuova elanda, atar, con diversi edifci per il illagio dei Mondiali di calcio del 2022 e Madrid, dove sono state realizzate le opere in legno di un prestigioso progetto di retroft: Ombù dell’architetto Norman Foster con struttura il lamellare di Castagno e pannelli XLAM.

L’Italia non è rimasta sicuramente a guardare, anzi, con i suoi 9 piani, a Rovereto, sorge l’edifcio in legno più alto d’Italia realizzato al 100% con il legname degli alberi abbattuti nel 2018 dalla tempesta Vaia; un progetto che ha dato una seconda vita a questo materiale che sarebbe altrimenti andato perso.

Un altro esempio di versatilità e bellez-

IN PRIMO LIMINE XLAM DOLOMITI www.xlamdolomiti.it
012 013

za del costruire con questo materiale lo troviamo al porto di Pesaro dove, con il progetto Paint shed, XLAM Dolomiti ha realizzato due padiglioni per la riverniciatura di yacht di lusso fno a 50 metri di lunghezza. Il progetto molto ambizioso ha previsto la realizzazione di due hangar in legno con la stessa forma di due chiglie di nave rovesciate e poi rivestite in lamiera. L’opera alta oltre 30 metri e lunga circa 80 è stata nominata la “cattedrale del mare”.

XLAM Dolomiti sta portando avanti un importante progetto di ricerca che prevede lo studio di nuove specie legnose per l’utilizzo strutturale insieme alla prefabbricazione e la modularità che sono tematiche centrali per la crescita e lo sviluppo dell’azienda con una visione innovativa, globale e futurista

A chiunque stia valutando nuovi progetti se è attratto dalle strutture in legno, ricordiamo che può contattare lo staff di XLAM Dolomiti per trovare insieme la soluzione più adatta, è questa la specialità di un’azienda “sinonimo” di legno strutturale!

THE PROTAGONISTS OF THE ECOLOGICAL TRANSITION

XLAM olomiti belongs to the aterno Group and deals ith the production of wooden structural components coming from forests certifed according to eco-sustainability criteria.

XLAM takes its name from its specialization in the production of panels, making cutting-edge products and highly specialized technical kno ledge available to companies, designers and architects. The thousand-year e perience in ood orking in Trentino, almost entirely covered by forests, is the territory that hosts the company s headquarters. In line with the principles of the European Green Deal, the wooden buildings designed in the t o locations in Castelnuovo (TN) and Trento open up a vision of ne and contemporary construction the company ill add the frst sustainability report to the solutions that guarantee a healthy and comfortable living environment, unalterable over time and respectful of environmental resources: a milestone in this phase of ecological transition. XLAM olomiti is also carrying out an important research pro ect hich involves the study of ne ood species for structural use together ith prefabrication and modularity hich are central themes for the gro th and development of the company ith an innovative, global and futurist.

www.essetre.com

www.weinig.com

a cura della redazione

strutturalegno pagina

Weinig acquisisce quote di essetre

Espansione dell’alleanza strategica per rafforzare la cooperazione tra le due Aziende: Weinig potrà contare sulla ricerca della qualità dei prodotti e sul famoso genio made in Italy ed Essetre potrà benefciare dell’esperienza, della professionalità e del net ork di un colosso da sempre proiettato sul miglioramento produttivo e commerciale.

Essetre e einig hanno uffcializzato la loro alleanza strategica gi presentata durante la fera Ligna. Con l’acquisizione del 50% di Essetre da parte di einig, le due Aziende continueranno lo sviluppo strategico insieme come partners alla pari. Essetre e Weinig insieme sono pronte ad affrontare le sfde del mercato internazionale con una straordinaria prospettiva di sviluppo in termini di capacità produttiva e commerciale. Questa partecipazione va letta in chiave di strategia e lungimiranza: Weinig è molto vicina a Essetre in termini di sviluppo innovativo e tecnologico e l’alleanza porterà numerosi vantaggi per entrambi i marchi. Essetre potrà benefciare dell’esperienza, della professionalità e del net ork di un colosso da sempre proiettato sul miglioramento produttivo e commer-

WEINIG è stata fondata nel 1905 da Michael Weinig come un’Azienda commerciale e produttiva. Dal 1947 Weinig si è specializzata nello sviluppo e nella produzione di macchine e attrezzature per l’industria del legno massiccio e attività di orkshop. einig ha realizzato vendite per 586 milioni di euro nel 2022 nel mondo. L’Azienda conta uno staff di 1.000 persone nella sede principale di Tauberbischofsheim e circa 2.500 nel gruppo mondiale Weinig. Gregor Baumbusch è CEO dal 2018.

ESSETRE è una azienda fondata nel 1979 da Giovanni Sella, tutt’ora alla guida dell’Azienda di Thiene ( icenza) assieme ai fgli. L’Azienda si è specializzata nella progettazione e realizzazione di centri di lavoro a CN per il legno, soprattutto nell’industria delle costruzioni in legno, proponendo soluzioni per lavorare travi, strutture in legno, elementi di carpenteria, tetti, pareti, travi curve, puntando sempre su innovazione, qualità e affdabilità. Grazie alle sue tecnologie sempre all’avanguardia e una capacità di gestione essibile e dinamica, il brand Essetre è cresciuto esponenzialmente negli ultimi anni, portando al raddoppio del fatturato in poco tempo ed espandendo il suo mercato a livello internazionale.

ESSETRE is specialized in the furniture and timber construction

industry. Founded in 1979 by Giovanni Sella, the family business is based in Thiene, province of icenza in Italy. Since then, Essetre has e panded its market to more than 30 countries and has been designing and manu-facturing 1200+ exclusive and branded CNC ood orking machines, i.e., 5-a is machining, ood construction, panels, and tops.

Essetre is a renowned specialist for ood machining centres, and above all for innovative solutions characterized by highest possible effciency and perfection.

IN NUCE WEINIG - ESSETRE
014 015 n momento sim olico dell ac uisizione del di Essetre da parte di einig rappresentato da uesta foto di gruppo, dove appaiono da sinistra a destra Nicola Sella, Gregor aum usch, Giovanni Sella, Cristina Sella e Giuseppe Gherardi.

EINIG AC IRES SHARES IN ESSETRE

Expansion

Alliance to foster the cooperation etween the two companies.

Essetre s.r.l. and Michael Weinig AG (Weinig) have formalized the strategic alliance, already presented during Ligna Fair 2023. ith the acquisition of 50% of Essetre s shares by einig, the t o companies ill continue to develop strategically together as equal partners. Together Essetre and Weinig are ready to face the challenges of the international markets ith an e traordinary prospect of development in terms of production and sales capacity.

Weinig and Essetre are very close in terms of innovation and technology. This collaboration will bring value for both brands: Essetre will have access to einig sales and service net ork. einig ill strengthen his market position. «With this partnership and access to the product portfolio of Essetre – says Gregor aumbusch (CEO einig) –, we are further strengthening our market position and can now offer our customers the entire process chain, from the sawmill to timber construction, completely from a single source». Essetre will continue to be managed by the Sella family. «We would not have made such a collaboration with any other partner. Weinig and Essetre – says Giovanni Sella, founder of Essetre – represent the top technologies in the market. We both have huge ambitions by combining our respective excellences. We trust it will be a strong and lasting growth».

ciale. ’altro canto, einig potrà contare sulla ricerca della qualità dei prodotti e sul famoso genio made in Italy. «Con questa partnership e con l’accesso al portfolio prodotti di Essetre – ha affermato Gregor aum usch CEO einig –, rafforzeremo la nostra posizione sul mercato e offriremo ai nostri Clienti l’intero processo di lavorazione, dalla segheria alla costruzione in legno, completamente da una singola fonte». Essetre continuerà ad essere gestita dalla famiglia Sella: «Non avremmo fatto una simile alleanza con un’altra Azienda. Weinig ed Essetre – sottolinea il fondatore di Essetre Giovanni Sella – rappresentano le Top technologies nel mercato. Entrambe hanno grandi ambizioni coniugando le nostre rispettive eccellenze. Crediamo che sarà un’alleanza forte e duratura».

EINIG was founded in 1905 by Michael Weinig as a trading andmanufacturing company. Since 1947, einig has specialized in the development and production of ood orking machinery and equipment for the solid wood processing industry and orkshop businesses. einig achieved sales of 586 million euros in 2022 and operates world-wide. The company employs a staff of 1,000 people at its headquarters in Tauberbischofsheim and around 2,500 in the einig Group worldwide. Gregor Baumbusch has been CEO of the world market leader for solid ood processing since 2018.

of the Strategic

www.idm-suedtirol.com/it/

016 017

Il ood assage di Bolzano

Lo scorso Primo giugno in occasione dell’installazione del Wood Passage in Piazza Silvius Magnago a Bolzano, abbiamo incontrato e ascoltato i maggiori rappresentanti delle istituzioni. Wood Passage si è confgurata come un’importante iniziativa simbolica per l’edilizia “verde” ed è già stata allestita in molte piazze di città europee con l’obiettivo di sottolineare, come in Alto Adige, i vantaggi ecologici degli edifci in legno siano prioritari. Il progetto di questa installazione in legno “itinerante” è stato fnanziato da I M Alto Adige. In prima linea all’inaugurazione c’era eter Lang, uno dei titolari di Rotho laas, che ha moderato l’evento in italiano e in tedesco, oltre ad altri membri di roRamus, come Michael Gilli (XTimber), Markus amiani ( amiani olz O), Stefan Rubner (Rubner Gruppe) e Armin i ner (Alpi Fenster).

Il Presidente della Provincia Arno Kompatscher, l’Assessore alle Foreste Arnold Schuler, l’Assessore all’Edilizia Massimo Bessone, il Consigliere Franz Locher e il CEO di IDM Erwin Hinteregger hanno inaugurato l’installazione “Wood Passage”, giovedì 1° giugno, in Piazza Silvius Magnago a Bolzano. Si tratta di un’iniziativa di proHolz Austria, proHolz Bavaria e Lignum Schweiz, che ha l’obiettivo di richiamare l’attenzione sull’importanza del legno come materia prima naturale. L’installazione in legno “itinerante” è già stata allestita in molte piazze di città europee e a inizio giugno ha fatto tappa

anche a Bolzano, su invito di ProRamus. ProRamus, un’iniziativa comune delle organizzazioni altoatesine del settore foresta - legno, è stata fondata sette anni fa per far entrare in contatto tra loro gli operatori dell’industria del legno e sostenere il settore in modo effciente. L’iniziativa è coordinata da IDM Alto Adige, che sviluppa anche diverse misure per promuovere le costruzioni in legno. Il sostegno all’installazione Wood Passage ha l’obiettivo di sottolineare, anche in Alto Adige, l’importanza del legno come materia prima rinnovabile. Wood Passage è lungo 8,65 metri, pesa 14,5 tonnellate ed

Nella foto di gruppo, un momento dell'inaugurazione del "Wood Passage" a Bolzano il Primo di giugno scorso, alla presenza delle istituzioni, da sinistra a destra: Peter Lang, uno dei titolari di Rothoblaas; Paul Lintner, Sindaco di Renon; Arnold Schuler, Assessore provinciale all’agricoltura, alle foreste, alla protezione civile e al turismo; Massimo Bessone, Assessore provinciale all'edilizia, al libro fondiario, al catasto e al patrimonio; Erwin Hinteregger, CEO di IDM Alto Adige; Franz Locher, Consigliere provinciale dell'SVP e Manfred Mayr, Sindaco di Cortina sulla Strada del vino.

Nella pagina di destra, due immagini del "Wood passage", inaugurato a Bolzano nella Piazza centrale di Silvius Magnago lo scorso Primo giugno.

060 061
CHRONICHAE
IDM ALTO ADIGE
strutturalegno
di Sonia Maritan e ietro Ferrari
pagina

THE WOOD PASSAGE IN BOLZANO

Last une 1st, in the occasion of the installation of the ood assage in iazza Silvius Magnago in olzano, e met and listened to the ma or representatives of the institutions. ood assage has taken the form of an important symbolic initiative for green construction and has already been set up in many European city squares ith the aim of underlining, as in Alto Adige, the ecological advantages of ooden buildings are a priority . The pro ect for this itinerant ooden installation as fnanced by I M Alto Adige. At the forefront of the inauguration as eter Lang, one of the o ners of Rotho laas, ho moderated the event in Italian and German, as ell as other members of roRamus, such as Michael Gilli (XTimber), Markus amiani ( amiani olz O), Stefan Rubner (Rubner Gruppe) and Armin i ner (Alpi Fenster). The resident of the rovince Arno ompatscher, the Councilor for Forestry Arnold Schuler, the Councilor for Construction Massimo essone, the Councilor Franz Locher and the CEO of I M Er in interegger inaugurated the “ ood assage” installation on Thursday 1st une, in piazza Silvius Magnago in olzano. It as an initiative by pro olz Austria, pro olz avaria and Lignum Sch eiz, hich aims to dra attention to the importance of ood as a natural ra material. The itinerant ooden installation has already been set up in many squares of European cities and at the beginning of une it also stopped in olzano, at the invitation of roRamus. roRamus, a oint initiative of South Tyrolean forestry and ood sector organizations, as founded seven years ago to bring ood industry operators into contact ith each other and support the sector effciently. The initiative is coordinated by I M Alto Adige, hich also develops various measures to promote wooden constructions.

è composto da quattro passaggi realizzati in legno di Abete rosso, su cui sono presenti varie informazioni in italiano, tedesco, ladino e inglese. Il legno è una materia prima rinnovabile. Un esempio: la quantità di legno utilizzata per costruire Wood Passage, 13 metri cubi, nelle foreste europee ricresce in meno di un secondo. Attraverso una gestione sostenibile, la silvicoltura tutela l’habitat forestale e la disponibilità di legname. Ogni giorno la superfcie forestale in Europa cresce quanto 1.500 campi da calcio e solamente due terzi della crescita viene effettivamente utilizzata. er effetto del processo di fotosintesi degli alberi, in un metro cubo di legno rimane imprigionata una tonnellata di CO2. uesto signifca che anche un edifcio in legno si trasforma in un vero e proprio serbatoio di CO2, a vantaggio del clima. Wood Passage ha immagazzinato circa 13 tonnellate di CO2: questo corrisponde alle emissioni che un’automobile produce in 8 anni. «La silvicoltura altoatesina è di dimensioni molto ridotte – ha dichiarato l’Assessore alle Foreste Arnold Schuler –. I proprietari di boschi sono in totale 23.000, mentre sono circa 2.900 le aziende attive in Alto Adige nell’industria forestale e del legno. Il legno è un materiale naturale, riciclabile e, al termine del suo ciclo, può essere utilizzato come fonte di energia rinnovabile. Circa il 60% del nostro bosco ha anche una funzione protettiva, che deve essere tutelata attraverso una gestione forestale attiva».

Nel settore delle costruzioni con uisce circa il 40% di tutte le risorse. L’utilizzo di prodotti per l’edilizia realizzati con materie

prime rinnovabili, come il legno, consente di risparmiare e garantire risorse per il futuro e, tali prodotti, sostituiscono i materiali da costruzione ottenuti da materie prime limitate. In particolare, gli edifci in legno presentano grandi vantaggi ecologici e svolgono un ruolo fondamentale nello sviluppo sostenibile. Nel momento in cui il legno si rivela inadatto a qualsiasi tipo di utilizzo strutturale, può essere usato anche per la produzione di energia. L’Assessore all’Edilizia Massimo Bessone è convinto che l’Alto Adige sia sulla strada giusta: «Lo sviluppo sostenibile e la tutela dell’ambiente sono per noi una sfda,

ma anche una grande opportunità. Abbiamo sviluppato progetti concreti per ridurre le emissioni di CO2 . In questo modo, possiamo contribuire attivamente alla tutela del nostro ambiente e garantire alle generazioni future una prospettiva per una migliore qualità della vita. ella costruzione degli edifci utilizziamo, ove possibile, materiali riciclati e riciclabili a basso impatto ambientale, tra cui il legno. Il legno riduce le emissioni di anidride carbonica e può essere usato in edilizia come materiale da costruzione e per la produzione di mobili, oltre che

per scopi energetici. Per gli ampliamenti di edifci utilizziamo prevalentemente il legno, perché garantisce una maggiore stabilità». Gli stakeholder altoatesini dell’industria forestale e del legno, riuniti nel gruppo ProRamus, hanno auspicato un maggior numero di progetti in Alto Adige e raccomandato che almeno il 30% dei nuovi edifci del territorio sia costruito in legno.

obbiamo al nostro clima e alle generazioni future una maggiore sostenibilità nell’edilizia e un maggiore utilizzo di risorse locali e rinnovabili, come il legno.

060 061 CHRONICHAE WOOD PASSAGE IDM ALTO ADIGE www.idm-suedtirol.com/it/
Sonia Maritan strutturalegno pagina 018
Due dettagli del "Wood passage", inaugurato a Bolzano lo scorso giugno: un invito ai cittadini per educarli all'uso del legno nelle costruzioni (fonte foto IDM / Patrizia Corriero).

COLLOQUIUM

La transizione materica

di Sonia Maritan

strutturalegno

NORBERT LANTSCHNER pagina 019

L’obiettivo di contribuire a portare le emissioni di CO2 a zero entro il 2050, attraverso il settore edilizio, sta molto a cuore a Norbert Lantschner, riconosciuto esperto nel campo delle tematiche ambientali nonch ideatore e promotore del progetto CasaClima nato per intervenire effcacemente sui consumi nel settore più energivoro in assoluto, l’edilizia per l’appunto. Qualche mese dopo la Settimana del Legno a Roma, in occasione dell’inaugurazione del Wood Passage a Bolzano, lo abbiamo inaspettatamente incontrato e colto l’opportunità di uno scambio con lui: i suoi messaggi sono sempre pregni di signifcato.

Il Primo di giugno a Bolzano, abbiamo incontro di nuovo Norbert Lantschner con il quale abbiamo condiviso recentemente la III edizione della Settimana del Legno 2023 all’Università Tor Vergata di Roma, iniziativa dedicata alla sensibilizzazione e divulgazione delle tecniche costruttive degli edifci di legno di cui lui ha curato la relazione introduttiva della tavola rotonda di chiusura della SDL 2023 intorno alla quale si sono raccolti altri eminenti esperti: il prof. arch. Guido Callegari, l’arch. Mauro Frate, l’arch. Davide Maria Giachino, l’arch. Francesco Giovanetti, l’ing. Agostino Presutti e il prof. Felice Ragazzo Aumentare l’effcienza (ridurre i consumi complessivi) e spostare la tecnologia da fonti fossili a fonti rinnovabili riguarda tutti i maggiori comparti responsabili dell’inquinamento di terra, aria e acqua; quelli legati al cibo, al trasporto e al costruito. Per riuscire a rendere l’edilizia più sostenibile e rispettosa dell’ambiente l’Unione Europea ha puntato sulla costruzione di edifci a energia quasi zero, ma per raggiungere questo obiettivo è fondamentale sviluppare nuove tecnologie e materiali che riducano sensibilmente l’impronta energetica. Questi sono i temi di cui è stato precursore Norbert Lantschner, riconosciuto esperto nel campo delle tematiche ambientali, ideatore/inventore di “CasaClima”, che ha aperto la tavola rotonda fnale della “Settimana del legno” per rappresentare lo stato dell’arte di un settore in continua evoluzione. Tutto ciò che Norbert Lantschner ha fatto nel suo lungo impegno nel settore delle costruzioni del legno è sotto il segno delle sostenibilità. In occasione di questa inaugurazione di una struttura altamente simbolica, come il Wood Passage che ha visto Alpi Fenster, Damiani Holz & KO, Rotho Blaas, Rubner Gruppe, XTimber

tra i suoi protagonisti, ha sottolineato quanto sia importante, come in questo caso, la presenza e il coinvolgimento delle istituzioni. «Infatti, ci troviamo in un luogo importante – ha esordito Norbert Lantschner –, davanti alla sede della Provincia Autonoma di Bolzano, un centro frequentato che serve a puntare il focus sul legno in un territorio che è ricco di legno e ricco di boschi e che esprime in questo contesto il suo linguaggio: non dimentichiamo che l'edilizia è uno dei fattori più rilevanti nel contesto climatico e in questi decenni la cosa più importante per non perdere la capacità di tutelare il clima è l'utilizzo del bosco; il mondo dell'edilizia non è solo il settore più energivoro ma anche il maggior consumatore di materie prime».

Fin dall'inizio del tuo impegno con “CasaClima” tu parlavi non solo di approccio energetico ma anche di approccio materico ...ma dicevi anche poc'anzi che in Europa il discorso dell'energia è già superato! «Vent'anni fa quando siamo partiti con “CasaClima” – ha risposto Norbert Lantschner –, abbiamo messo in prima fla il risparmio energetico, perché le case erano energivore, adesso si tratta di fare il secondo importante passo: dalla transizione energetica alla transizione materica. Perché dobbiamo sempre ricordare che ogni prodotto utilizzato ha una storia che inizia con il suo prelievo e fnisce con il suo smaltimento se non può essere riciclato, tenendo conto di tutta la fliera, analizzandola non solo dal punto di vista funzionale ma anche dal punto di vista di quanto incide la produzione di un materiale in funzione della sua natura: metallo, calcestruzzo oppure un materiale rinnovabile. I dati in nostro possesso sono signifcativi: un metro

In occasione dell’inaugurazione del Wood Passage a Bolzano lo scorso giugno, abbiamo incontrato Norbert Lantschner e colto l’opportunità di uno scambio con lui come testimoniano le immagini a corredo dell'intervista.

Il dottore forestale Andrea Zenari è proprietario della “fattoria del legno” di Caltrano (VI) che nasce dall’unione di due concetti pratici legati alla “fattoria” come ambiente dove si coltiva e si produce e il “legno”: il materiale nobile prodotto in modo sostenibile utilizzato nell’edilizia e nel benessere della vita quotidiana.

La fattoria del legno è una tipica tree farm dove al vivaismo, vocato alla produzione di alberi di Natale, si associa la valorizzazione del territorio con funzione turistica e didattica legata alla materia prima legno. Ma tree farm è anche il servizio di gestione delle aree forestali con scopo produttivo dal punto di vista manageriale: l’azienda che gestisce gli impianti e il taglio dei boschi con la certifcazione forestale PEFC.

LAVORAZIONE DEL LEGNO

SELVICOLTURA

NATURALISTICA

CONOSCERE IL BOSCO

LABORATORI PER BAMBINI

SILVOTERAPIA

CORSI DI CARPENTERIA

CORSI PER BOSCAIOLI

cubo di cemento scarica 350 chilogrammi di CO2 che rimane per secoli attivo come gas serra nell'atmosfera. Occorre dunque ridurre drasticamente le emissioni, tanto più che oggi sappiamo che dobbiamo sottrarre ciò che già esiste in atmosfera e, in questo, l'albero ci dà una grande mano. In sostanza, per compensare questo metro cubo di cemento un albero impiega almeno dieci anni, invece un metro cubo di legno "parcheggia" una tonnellata di CO2 per decenni: è un fatto non simbolico ma sostanziale. È importante però uscire dalla nicchia, perché oggi purtroppo, gli edifci sono in gran parte costruiti con il classico cemento o mattone: dobbiamo invece spingere i materiali rinnovabili».

Anche perché siamo in ritardo sulle scadenze fssate per il ...

«Purtroppo questo non viene percepito: oggi abbiamo 420 parti per milione nell'aria di questa famosa CO2, dobbiamo scendere a meno di 350 per evitare che il pianeta venga a trovarsi in uno stato febbrile. Anche per raggiungere questo traguardo il più grande amico dell'uomo è l'albero e il settore in cui l'effetto è moltiplicato in dimensioni maggiori è l'edilizia».

Il cambiamento climatico è oggi abbastanza percepito ma vent'anni fa lo era pochissimo, basti pensare che metà dei climatologi del mondo pensava a dinamiche climatiche di natura epocale su cui non c'era nulla da fare, mentre l'altra metà pensava a un effetto perverso dell'azione antropica. Cosa si può dire per dare una risposta defnitiva agli scettici

«Ci sono diversi aspetti: il primo è che secondo me in Italia c'è una particolare presenza di negazionisti a differenza di altri Paesi europei, poi ci sono persone che vedono queste tematiche come qualcosa di moda, ma va ricordato che il mondo scientifco lancia questo allarme almeno da cinquant'anni. Il problema è che i media lasciano lo stesso spazio agli improvvisati che farneticano sul tema, rispetto la gran parte degli esperti del pianeta. Invece si stima che circa il del mondo scientifco sostiene il tema della responsabilità umana di queste dinamiche negative.

Questi pochi "scettici" creano insicurezza

ma sono strumentalizzati dalle grandi multinazionali del mondo delle energie fossili, contro la generale condivisione attuale delle tematiche della sostenibilità. L'unica vera questione è che non abbiamo più tempo, per cui andare a toccare ancora questi temi è pericoloso e crea ulteriore danno al pianeta.

La dinamica reale è intuitiva: basta pensare alla quantità di sostanze nocive che abbiamo scaricato dall'inizio dell'età industriale in atmosfera, e questa è fsica. n esperimento di grande valore condotto in America nel 1859 ha dimostrato come la CO2 sia stata causa dell'innalzamento della temperatura in atmosfera, quindi già nell'Ottocento questo concetto era ben conosciuto».

Il tema dei materiali è dunque cruciale! «Sì, oltre ai temi che abbiamo trattato poc'anzi – conclude Norbert Lantschner –, va anche sottolineato quello delle materie prime che diventa sempre più stringente: miliardi di tonnellate che andiamo a prelevare dalla terra, di cui il 60-65% viene destinato all'edilizia: cemento, metallo e altri materiali lapidei. Oltre a ciò la richiesta di energia nella lavorazione di questi materiali è enorme.

Nei prossimi decenni si prevede cha altri due miliardi di persone richiederanno spazi abitativi: se noi li forniremo con le stesse modalità adottate fnora il 0 del budget di CO2 previsto verrà interamente divorato dal settore delle costruzioni, ma bisogna anche mangiare, trasportare merci e persone, produrre merci e via dicendo. Negli ultimi anni l'ingegnerizzazione del legno nelle costruzioni ha fatto passi da gigante, palazzi di 80 e cento metri, non le casette unifamiliari di due piani. on è una sfda economica è una sfda culturale .

Un mondo in ritardo nell’affrontare questa emergenza, quello che ci ha illustrato Norbert Lantschner, di cui si parla già dagli Anni ’70 prefgurando il tracollo della civiltà a seguito degli shocks estremi cui il mondo è sottoposto, così estremi che le capacità di adattamento vengono meno e le soluzioni non sono alla portata (“La tempesta perfetta” prevista dal Club di Roma nel 1972, è il titolo di uno dei primi testi sul tema).

SEGHERIA MOBILE
ATTIVITÀ
www.fattoriadellegno.com
FORMAZIONE

Modellazione geometrica 3D

Modellazione FEM automatca

Analisi sismica statca o dinamica

Verifica paret e collegament

Verifica travi e pilastri

Verifiche al fuoco

Sofware per la progetazione struturale

di edifici a paret portant di legno

Paret XLAM

Paret Platorm Frame

Travi di legno e acciaio

Pilastri di legno e acciaio

Travi di fondazione

Disegni dxf con distnte paret e connessioni

AbiesWALL 6.0 Abies Engineering srl - Piazza Aldo Moro, 16 - 35030 Rubano (PD) -Tel.049 8979095 - info@abieseng.com

strutturalegno pagina

022 023

Il nuovo CLT 125

Negli ultimi tre anni, feifer CLT si è affermato come partner affdabile per le imprese di costruzioni in legno, le carpenterie e l artigianato. In risposta alle richieste di molti clienti, l azienda sta ampliando la sua gamma di prodotti con il feifer CLT 125, che offre la consueta alta qualità di feifer a un prezzo interessante.

L’ampia proposta nel settore del legno del Gruppo feifer spazia dalla cassaforma (pannelli per edilizia, travi per armatura), ai blocchetti per pallet legno da imballaggio (blocchetti per pallet, legno da imballaggio), ai segati (segati, perline e listelli), all’energia (pellet, bricchetti, energia elettricità verde) fno all’edilizia in legno (travi lamellari, pannelli di legno massiccio monostrato e a tre strati, legno massiccio da costruzione e CLT).

Il Gruppo Pfeifer è un produttore di CLT affdabile e essibile con una gamma e un servizio orientati al mercato.

alle lavorazioni tecniche ai certifcati: tutti i dettagli, le caratteristi -

TECHNICA GRUPPO PFEIFER
www.pfeifergroup.com
Nelle foto ui a fanco, il progetto Groningen Superhu , foto di alter Frisart.

che tecniche, le strutture dei pannelli e le superfci del feifer CLT 125 sono riportati nella brochure del prodotto, disponibile virtualmente con un solo clic.

I ANTAGGI PI IMPORTANTI EL SISTEMA IN LEGNO LAMELLARE CLT SONO IL FORMATO

• Facilità di movimentazione, ad esempio come elementi per sofftti e tetti

• Tutte e 3 le qualità di superfcie possibili - industriale, vista industriale, vista residenziale

• Rapida disponibilità: produzione individuale su progetto o pannelli standard a magazzino con una lunghezza di 13,50 m

• Opzione falegnameria, ad esempio su macchine per falegnameria da 125 mm

• Nessun ingombro della griglia nelle lunghezze da 8,00 a 14,50 m – unto di forza visivo: lunghezze progettate senza giunti per i denti

• Capacità di archiviazione - per ussi di lavoro uidi e disponibilità sicure.

THE NE CLT

Over the past three years, Pfeifer CLT has esta lished itself as a relia le partner for wood construction companies, carpenters and craftsmen. In response to re uests from many customers, we are expanding our product range with the Pfeifer CLT , which offers Pfeifer s usual high uality at an attractive price.

The feifer Group s broad offering in the wood sector ranges from formwork (building boards, reinforcing beams), pallet blocks packaging timber (pallet blocks, packaging timber), sa n timber (sa n timber, bead and battens), energy (pellets, briquettes, energy green electricity) to wood construction (laminated beams, single-layer and three-layer solid wood panels, solid construction timber and CLT). The feifer Group is a reliable and e ible CLT manufacturer with a market-oriented range and service. From technical workmanship to certifcates: all the facts, technical characteristics, panel structures and surfaces of the Pfeifer CLT 125 can be found in the product brochure, available virtually at the click of a button.

THE MOST IMPORTANT A ANTAGES OF THE CLT GL LAM S STEM ARE FORMAT

• Ease of handling, such as ceiling and roof elements

• All 3 possible surface qualities-industrial, industrial vie , residential vie

• Rapid availability: individual production to design or standard stock panels ith a length of 13.50 m

• Joinery option, e.g., on 125 mm joinery machines

• No grid footprint in lengths from 8.00 to 14.50 m - isual strength: designed lengths ithout tooth oints

• Storage capacity-for smooth work o s and secure availability.

TECHNICA_ GRUPPO PFEIFER
In uesta foto, l utilizzo del CLT del Gruppo Pfeifer in un cantiere a Mannheim in Germania.

strutturalegno pagina

Funzionalità e toni caldi

I prodotti di Egger si adattano a diversi ambiti della vita privata e pubblica: in cucina, bagno, uffcio, soggiorno e in camera da letto. All’insegna della promessa "More from wood”, oltre a prodotti per mobili e arredamento d’interni, l’azienda offre anche pavimenti a base di legno (laminato, sughero e pavimenti design) e prodotti per l’edilizia. Il progetto descritto rappresenta un bell’esempio di total wood.

L’azienda belga D'leteren si occupa della mobilità del futuro, come dimostra da maggio 2022 nel suo nuovo negozio di biciclette a Bruxelles.

Il negozio di punta di 3000 m², con showroom, workshop e pista di prova, è la punta di diamante di un totale di undici negozi Lucien Bikes presenti a Bruxelles e ad Anversa e offre ai clienti un’esperienza completa. Un’esperienza immersiva totale per l’impostazione generale dello spazio e l’arredamento del negozio su due piani, che in precedenza ospitava uno showroom Volkswagen, per il quale è stato scelto il decoro H3303 ST10 Rovere Hamilton naturale. Oltre al rivestimento delle pareti su ampia superfcie con sistemi integrati per appendere le bici, sono stati creati anche piedistalli per biciclette speciali. Gli accessori si in-

tegrano in modo discreto nell'ambiente, grazie all'abbinamento con la base in laminato PerfectSense Topmatt in U999 PT Nero. I podi per le biciclette cargo sono realizzati in F638 Chromix argento, mentre il Rovere Hamilton è stato usato anche per il resto dei piedistalli. L'aspetto piacevolmente caldo del Rovere Hamilton emerge anche nella zona bambino e nei mobili da cucina nell’angolo caffetteria. Il decoro H3303 ST10 si combina alla perfezione con la tonalità grigio caldo delle piastrelle al piano terra e con i colori del pavimento in laminato preesistente al primo piano.

Nell’area di lavoro aperta l’effetto legno rimanda alla maestria artigiana. L’architetto è riuscito a creare un’atmosfera moderna e al contempo accogliente, che pone l'attenzione sulle biciclette.

PROIECTUM EGGER www.egger.com
024 025

FUNCTIONALITY AND WARM COLORS AS THE PERFECT STAGE

The Belgian company D'leteren focuses on the mobility of the future and has been showcasing it since May 2022 in its new bike shop in Brussels. The 3000 m agship store, complete with showroom, workshop and test track, is the centrepiece of a total of eleven Lucien Bikes stores spread across Brussels and Antwerp. This offers customers an all-round experience. The furnishing of the two-storey shop, which used to be a Volkswagen showroom, shows the wide application of the H3303 ST10 Natural Hamilton Oak decor. In addition to the large-area wall cladding with integrated hanging systems, pedestals were also built for special bicycles. They blend unobtrusively into the room concept with their black base made of PerfectSense Topmatt laminate in U999 PT Black. The podiums for cargo bikes were made of F638 Chromix Silver, while Hamilton Oak was also used for the rest of the pedestals. The warm look of amilton Oak is also re ected in the children's corner and the kitchen cabinets in the coffee station. On the ground oor, the 3303 ST10 decor combines perfectly with the warm grey tone of the tiles, as well as on the frst oor ith the colours of the pre-e isting laminate ooring. In the open-plan work area, the wood effects are a nod to craftsmanship. The architect has managed to create a modern but at the same time cosy atmosphere that draws the attention to the bicycles.

EXECUTED BY

Customer/Builder: Lucien Bikes - https://lucien.bike/nl/

Architect: Wave of engagement, Antwerpen (BE) - https://waveofengagement.com/

Fabricators: Conceptexpo, Wavre (BE) - https://www.conceptexpo.com/ Construction period: february to april 2022

Decors used:

• U999 PT Black

• F638 ST16 Chromix silver

• H3303 ST10 Natural Hamilton Oak Products used:

• Eurodekor faced MDF boards

• Laminates PerfectSense Topmatt

IDENTIKIT PROGETTO

Cliente/committente: Lucien Bikeshttps://lucien.bike/nl/

Architetto: Wave of engagement, Anversa (BE)

https://waveofengagement.com/ Costruttore/esecutore: Conceptexpo, Wavre (BE) - https://www. conceptexpo.com/

Data del cantiere: febbraio/aprile

2022

Decori utilizzati:

• U999 PT Nero

• F638 ST16 Chromix argento

• H3303 ST10 Rovere Hamilton naturale

Prodotti utilizzati:

• Eurodekor MDF nobilitato

• Laminati PerfectSense Topmatt

www.concrete.it

contributo dell’ingegner architetto PhD. Thomas Schrentewein e dell’ingegner

strutturalegno pagina

026 027

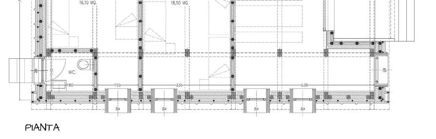
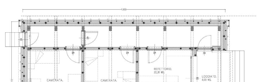
Sopraelevazione a Bolzano

La sopraelevazione in legno rappresenta un particolare caso di studio a Bolzano, anche se ricavare nuovi spazi abitabili con la sopraelevazione di un edifcio è prassi consolidata da tempo. Utilizzare sistemi costruttivi in legno comporta diversi vantaggi, specialmente in fabbricati pluripiano e la resa predittiva del software gioca un ruolo fondamentale.

Negli edifci oggetto di ristrutturazione, i sottotetti che non presentano caratteristiche suffcienti per renderli abitabili sono spesso demoliti, a favore di una sopraelevazione del piano. Le norme edifcatorie favoriscono questo approccio, talvolta con l'obbligo, allo stesso tempo, di una riqualifcazione energetica Purtroppo talvolta l’intervento di sopraelevazione non è affrontabile, specialmente quando la sottostruttura esistente o le sue sole fondazioni non sono in grado di sopportare il carico aggiuntivo. Non è questo il caso dell’intervento di ristrutturazione con sopraelevazione in legno degli alloggi sociali della città di Bolzano, recentemente conclusi, progettati architettonicamente dall’architetto Marco Sette

Gli edifci esistenti erano costituiti da quattro livelli fuori terra e da un piano seminterrato. Realizzati nel 1954, si trovavano comunque in una buona condizione strutturale. La parte seminterrata era

realizzata in calcestruzzo armato, i primi due piani in muratura portante in pietra naturale, mentre gli ultimi due piani in muratura portante in laterizio (mattoni forati). Per una fascia di circa un metro in corrispondenza degli angoli di ciascun edifcio, al posto dei mattoni forati erano stati messi in opera dei mattoni pieni. I solai di interpiano erano in latero-cemento, le coperture in legno. Nella parte centrale di ciascun edifcio era presente una travata di spina in cemento armato, sostenuta da pilastri, anch’essi in cemento armato.

uesti tre edifci con alloggi sociali della città di Bolzano, situati in via Parma, sono stati energeticamente ristrutturati e sopraelevati con un nuovo intero piano, ricavando un totale di 16 nuovi appartamenti.

Oltre alla sopraelevazione e alla ristrutturazione energetica, il progetto ha previsto la realizzazione di balconi, nonché la costruzione di un vano tecnico comune

PUBBLIREDAZIONALE CONCRETE

Interventi sulle strutture esistenti Ai fni di valutare la fattibilità statica dell’intervento di sopraelevazione, il solaio esistente coinvolto nell’intervento (quello dell’ultimo livello) è stato sottoposto a una prova di carico. Sono stati eseguiti diversi sondaggi e rilievi a campione nelle strutture verticali portanti al fne di ricavare il grado di armatura dei pilastri in calcestruzzo armato maggiormente sollecitati. Si è supposto, infatti, che tutti e tre gli edifci con la stessa tipologia costruttiva fossero stati realizzati dalla stessa impresa costruttrice.

Il sovraccarico della sopraelevazione deriva principalmente dalle nuove pareti esterne/interne realizzate a telaio di legno, dalla nuova composizione stratigrafca del solaio e da un carico d’esercizio maggiore.

La verifca delle strutture esistenti è stata svolta sia in ambito statico che sismico.

Per l’analisi numerica sono state individuate tre distinte compagini strutturali modellate con il software a elementi fniti Sismicad,

PUBBLIREDAZIONALE_ CONCRETE

www.concrete.it

contributo

dell’ingegner architetto

strutturalegno pagina

028

svolgendo un’analisi lineare dinamica. Per le opere di fondazione esistenti i risultati sono stati positivi; allo stesso modo, i pilastri in cemento armato rilevati sono risultati verifcati. La verifca delle murature, invece, ha portato in evidenza la necessità di operare degli interventi locali, al fne di conseguire l’adeguamento sismico delle strutture esistenti. In particolare, si è ravvisata la necessità di aumentare la resistenza a taglio di alcuni setti in corrispondenza delle pareti perimetrali. Il rinforzo è stato eseguito con betoncino e rete elettrosaldata sul lato esterno del paramento. Per alcuni setti al piano terzo, inoltre, è stato necessario realizzare anche un rinforzo in termini di resistenza alle azioni verticali: in questi casi sono stati inseriti in breccia dei profli di acciaio tipo HEA.

Sopraelevazione

Per consentire la sopraelevazione degli edifci, è stata demolita la struttura esistente del sottotetto non abitato. In merito alla nuova struttura, sono state realizzate pareti a telaio di legno sostenenti una copertura piana realizzata con elementi scatolari in legno (“Box”). La struttura portante della copertura si compone di due livelli. Quello inferiore è costituito da travetti che portano esclusivamente il peso proprio e il peso dell’isolamento, interposto fra gli stessi. Essi hanno lo schema statico di trave a campata singola terminando in corrispondenza delle pareti perimetrali e di quelle di spina interne. Gli elementi del livello superiore, invece, sono composti da travetti che hanno lo scopo di portare i carichi derivanti dal tetto verde, dall’impianto fotovoltaico e dalla neve. Questi travetti sono a una campata con sbalzo, quest’ultimo a copertura dei balconi. In questa zona, la parte terminale è completata da due pannelli tipo OS che sostengono la grondaia, seguendone l’andamento planimetrico. Nel complesso, questa tipologia costruttiva può essere considerata come “leggera” poiché il peso per unità di superfcie delle strutture è inferiore a 1 kN/m2 .

I balconi del nuovo piano sottotetto sono realizzati con travi a sbalzo in acciaio. Interposti fra queste travi, vi sono dei travetti in legno lamellare, controventati all’estradosso con un pannello OSB. Infne, per consentire l’accesso al nuovo livello, sono stati estesi i vani scala. Gradini e pianerottoli sono realizzati in cemento armato gettato in opera.

Nuovi balconi sulle strutture esistenti Come ulteriore intervento, sono stati realizzati dei nuovi balconi in legno in corrispondenza dei livelli esistenti, ottenuti tramite l’assemblaggio di 4 pannelli compensati di tavole incollate tipo X-LAM. Tali elementi si presentano come “scatole aperte” costituite da due parapetti laterali, uno frontale e un basamento (tutti elementi monolitici) pre-assemblati a terra, quindi portati in posizione e fssati all’edifcio esistente in corrispondenza dei cordoli di piano, tramite pilastri continui in acciaio, preventivamente installati in facciata. L’intervento si è concluso con successo e rappresenta un altro esempio di effcacia negli interventi di sopraelevazione in legno di edifci esistenti.

PUBBLIREDAZIONALE CONCRETE
029

TIMBER TOP STOREY: A CASE STUDY

The renovation of the existing real estate can be promoted through new living spaces obtained using raising. In this type of intervention the use of timber structures can have advantages.

In refurbishable buildings hen the attics cannot be habitable are destroyed so to do a oor raising. The building norms favour this method combined, sometimes, ith compulsory energy upgrading orks. Unfortunately, sometimes the raising intervention cannot be doable, particularly when the existing substructure, or its sole foundations, are not able to support the adding load. This as not the case for the renovation pro ect, recently fnished, ith timber raising of the social housing in olzano, architecturally designed by the architect Marco Sette. The e isting buildings ere made up of four levels above ground and a basement oor. uilt in 1954, but ith a good structural condition. The basement as in reinforced concrete, the frst t o oors in natural stone load-bearing masonry, hile the t o top oors in brick load-bearing masonry (hollo brick). Full bricks have been used instead of hollo bricks for about a meter strip in correspondence of the corners of each building. The or slabs ere in brick-concrete, the timber roofng. In the middle part of each building there as a beam in reinforced concrete supported by pillars in reinforced concrete too. These social housing three buildings of Bolzano, sited in via Parma, have been strongly refurbished and raised with an entirely ne oor, obtaining a total of 16 ne apartments. In addition to the raising and the energy upgrading orks, the pro ect provided the implementation of balconies and the construction of a common technical room.

Restoration works on the existing structures

In order to value the static feasibility of the raising project, the existing slab involved (the one of the last level) has been subjected to a load check. arious soundings and sample surveys have been carried out in the vertical load bearing structures to obtain the reinforcement level of the reinforced concrete pillars most stressed. It has been assumed that the orks of all the three buildings, with the same construction type, were carried out by the same building company. The overload of the raising come mainly from the new outer/inner walls made with timber frame, from the new stratigraphic composition of the slab and from a heavier e ercise load. The e isting structures check has been performed both for the static and seismic aspect. For the numeric analysis have been detected three distinct structural sets modeled ith fnite elements soft are Sismicad, carrying out a dynamic linear analysis. For the e isting foundation orks the results have been positive in the same ay, the reinforced concrete pillars have been checked. The masonry check instead, highlighted the necessity to carry out some in site actions so to obtain the seismic retroftting of the e isting structures. In particular it as recognized the necessity to increase the shear resistance of some walls in correspondence of the perimeter walls. The reinforcement was made with grout and electro-welded mesh on the outer side. For some alls at the third oor it as also necessary to apply a reinforcement in terms of resistance to the vertical actions: in these cases have been used some HEA type steel sections.

Raising

In order to allow the raising of the buildings the existing structure of the uninhabited attic was demolished. For the ne structure have been realized timber frame walls bearing a at covering made ith timber bo elements (“ o ”). The load bearing structure of the roofng consists of t o levels. The lo er one is formed of beams that e clusively bear their o n eight and the eight of the insulation between them. They have the static scheme of single span beams ending in correspondence of the perimeter walls and of the inner ones. The elements of the upper level, instead, are formed of beams that have to bear the loads coming from the green roof, from the photovoltaic system and from the snow. These beams are of single span with cantilever to cover the balconies. In this area the ending segment is completed by two OSB type panels that support the gutter following its layout. As a whole this building type can be considered as “light” because the eight per area unit is lo er than 1 kN/m2. The balconies of the new attic oor ere made ith steel cantilevers. et een the cantilevers are some laminated ood oists e trados braced ith an OS panel. Finally, in order to allo the access to the ne level, the stair ells have been enlarged. Steps and landings ere made in reinforced concrete cast on site.

New balconies on the existing structures

A further improvement to the project was to add some new timber balconies in correspondence of the existing levels, obtained assembling 4 plywood panels of glued boards X-LAM type. Such elements are like “open bo es” formed of t o side parapets, a front one and a basement (all monolithic elements) pre-assembled, and then placed and f ed to the e isting building in correspondence to the curbs using steel continuous pillars, previously placed in facade. The pro ect as fnished ith success and represent a good example of effectiveness for the interventions on existing buildings with timber raising.

Il professor Felice Ragazzo in questa occasione propone le sue ri essioni tecnologiche sulle possibili interpretazioni d’artifcio a riguardo di come in un albero si sviluppano – naturalmente – i legami tra membrature lignee principali e secondarie. er questo focus Connessioni abbiamo abbinato alla trattazione di questo esimio esperto precursore delle giunzioni apoliedriche, l’intervista all’azienda Adveco giunta al suo Sessantesimo anno di vita – che segue nelle pagine successive al professor Ragazzo – in modo da testimoniare attraverso la voce di un produttore anche altre dinamiche che per rispondere a quesiti commerciali hanno di fatto creato nel tempo un ampio catalogo di prodotti nati da progetti ad hoc, come se questo aspetto di unicità fosse connaturato nel legno anche quando legato alla produzione di ferramenta per strutture in legno. Il diverso approccio alla giunzione di pareti o elementi strutturali potrà forse nel tempo portare a sinergie e alla realizzazione di innovativi sistemi e processi produttivi. I sistemi di giunzione lignei e metallici, oggi spaziano dalle componenti lignee collegate fra loro attraverso viti, alle colle per il legno lamellare, alle staffe metalliche per le pareti o il fssaggio pareti-solai, alle code di rondine legno-legno, alle giunzioni apoliedriche del professor Felice Ragazzo che omaggia cos l’intelligenza della “designer” più antica: madre natura!

FOCUS Connessioni

WOODEN AND METALLIC JOINTING SYSTEMS

rofessor Felice Ragazzo on this occasion proposes his re ections by comparing the bonds present bet een the main and secondary ooden members of a tree ith those used in the technological orld. For this Focus ointing System e have combined the discussion of this eminent e pert precursor of apolyhedral unctions ith the intervie ith the Adveco company no in its si tieth year of life - hich follo s in the pages follo ing rofessor Ragazzo - in order to bring t o different e periences and testify through the voice of a producer hat are the dynamics that arise from commercial questions, effectively creating over time a large catalog of products born from ad hoc pro ects, as if this aspect of uniqueness as inherent in ood even hen linked to the production of hard are for ooden structures, perhaps in memory of its organic origin. ooden and metal oint systems today range from ooden components connected to each other through scre s, to glues for laminated ood, to metal brackets for alls or all- oor fastening, to ood-to- ood dovetails... to apolyhedral oints by rofessor Felice Ragazzo ho thus pays homage to the intelligence of the oldest designer : mother nature! The different approach to the oining of alls or structural elements may perhaps over time lead to other synergies, to the creation of innovative systems and production processes for prostheses ith increasingly uid morphologies and more daring laboratory e periments.

i SISTEMI DI GIUNZIONE LIGNEI E LE CONNESSIONI METALLICHE

032

Ramifcazioni strutturali innaturali

Il professor Felice Ragazzo questa volta propone le sue ri essioni tecnologiche sulle possibili interpretazioni d’artifcio a riguardo di come in un albero si sviluppano – naturalmente – i legami tra membrature lignee principali e secondarie. Una chiave di lettura particolarmente originale e geniale quella di questo esimio esperto, precursore delle giunzioni apoliedriche, che proponiamo all’interno del focus Connessioni anche come auspicio futuro di innovativi sistemi e processi produttivi.

Desta stupore e meraviglia osservare come in determinati alberi si estendano rami per svariati metri – pressoché in orizzontale – con sezioni d’attacco che percepiamo come assai esigue (Figura 01). Desta maggiormente stupore e meraviglia se su quell’albero prospera un forte vento, aggravando con un carico dinamico i gi rilevanti momenti ettente e d’inerzia ordinari. Non solo, occorre aggiungere che per sua funzione un ramo è generalmente carico di numerosi altri rami più piccoli, i quali, a loro volta, quando a giusta dimensione, sostengono una porzione del manto di foglie. E se

piove o nevica si aggiunge un ulteriore carico statico, ed è rarissimo vedere che il ramo si schianti dove si attacca al fusto. Bisogna proprio considerare che si ha a che fare con un legame eccezionale che non può avere uguali nel mondo artifciale. Non pu avere uguali per la semplice ragione che sono radicalmente diverse le modalità con cui si generano e stabiliscono i legami. Ma qui vi sottoponiamo un tentativo di mimesi con le armi di eccellenti tecnologie attuali.

Iniziamo il percorso cercando di intendere la distinzione che occorre fare tra legami nel mondo naturale e nel mondo tecnologico. er fare ci , con dovuta ponderazione, occorre fare mente locale sul fatto che con l’albero vivo si è nel mondo biologico, mentre con il materiale-legno si gravita soprattutto nel mondo tecnologico. Nel primo l’aggregazione della materia avviene a partire da particelle infnitesime in ordine a leggi chimiche e fsiche nel secondo, invece, occorre parlare di assemblaggi tra componenti macroscopici. Nel primo caso l’unità di aggregazione a livello dei tessuti legnosi è la cellula nel secondo l’unità di assemblaggio è il componente cos come lo si ricava da una seconda lavorazione. Nel primo caso, i vari tipi di cellule si aggregano in ordine alle varie fsiologie dell’organismo nel secondo caso i vari assemblaggi avvengono in ordine a un progetto. Nel primo caso va rimarcato il fatto che – fsiologicamente – la distribuzione delle cellule è condizionata da stati di occorrenza, per cui in prossimità dell’innesto di un ramo, al fne, di sopperire al maggior sforzo, si determina – naturalmente – un accumulo adeguato di materia, da cui la maggior sezione che progressivamente si affusola (e in certi

pagina SCIENTIA
FOCUS
strutturalegno
www.feliceragazzo.it di
033
Figura 2
Frammento di ramo di legno di Pino in cui è rimasta integra la parte precedentemente occlusa.

casi anche di ispessimento delle pareti cellulari) nel secondo caso la dimensione e organizzazione dei componenti ha carattere intenzionale ed è dettata da umana scienza. A questo punto risulta evidente che il sistema delle funzioni statiche in un albero si pu defnire “capillarmente organico” mentre, in una struttura lignea artifciale, “organicamente frammentario”. Nel primo caso non ha molto senso di parlare di “giunzioni”, ma bens di “legami” nel secondo caso ha invece proprio senso parlare di “giunzioni” e magari anche di “unioni”. Nel primo caso il legame è dato dalla coesione tra le cellule nel secondo caso il legame è dato dall’incastro. ben evidente che nel primo caso il legame ha un carattere irreversibile (su questo aspetto in natura non è data la marcia indietro ), mentre nel secondo caso la giunzione a incastro è per defnizione reversibile.

Scorsa questa breve e succinta rassegna di osservazioni a dimostrazione dell’inalienabile distinzione tra mondo della natura e mondo tecnologico, passiamo ora a un tentativo di mimesi di forme naturali con mezzi altamente tecnologici. Lo spunto viene offerto da due reperti raccolti passeggiando in un parco. Il primo reperto consiste in uno spuntone di ramo di Pino, eccezionalmente staccatosi da un ramo maggiore per la ragione che la massa legnosa circostante aveva subito una forte degradazione (Figura 02). Il secondo reperto consiste in una ramaglia ricavata dalla potatura di un albero di Fico (Figura 03). Lo spuntone di ino offre abbastanza chiaramente una conformazione approssimativa a cono dei tessuti, in ragione della massa legnosa occlusa nel ramo più grande. evidente che prima e dopo di questo stato a fbre

Fabio Spera

aggrovigliate, il loro andamento torna a essere pressoch rettilineo o, più propriamente, parallelo al midollo. La ramaglia ha un carattere attrattivo per la sua notevole regolarità, sia per quanto riguarda la linearità del fusto principale, sia per quanto riguarda le sezioni dei rametti, sia per quanto riguarda la simmetria rotatoria, ma anche per quanto riguarda la dislocazione in una compatta corona, degli stessi (Figure 4-5). Come con ogni altra sorta di reperto, una volta scoperto e raccolto, si apre la strada per comprenderne l’importanza, per dedurne l’essenza, per ammirarne la bellezza, per tentarne l’eventuale utilizzazione. È soprattutto per quanto riguarda quest’ultimo aspetto che mi preme di portare a compimento il presente contributo. Le premesse sono semplici e forti: lo spuntone pare particolarmente adatto a ispirare una nuova tipologia di giunzioni che emancipa l’incastro a “cava e tenone”. La ramaglia pare invece particolarmente adatta a ispirare un frammento di struttura adatto a un oggetto funzionale in considerazione delle forme a sbalzo costituite dai rametti. er il momento mi fermo alla piccola scala, ma il giro di orizzonte che ho in mente spazia in ogni dimensione. A questo riguardo si tratterà soltanto di mole tecnologica. ertanto, una prima eventuale destinazione d’uso potrà riguardare un appendiabiti o la struttura di una lampada. A scale maggiori si potranno ipotizzare piccole o medie strutture di copertura, o vari tipi di armatura spendibili nel campo dell’outdoor design, ma anche in campo edilizio, non escludendo altre forme di costruzione.

Fin qui le ipotesi di percorso. Ora , i mezzi con cui operare! Il primo passo, quello fnora effettivamente esperito, è costituito

Fabio Spera è consulente nell’ambito della progettazione antincendio dal 1998, iscritto negli elenchi del Ministero dell’Interno, ha collaborato a progetti di adeguamento di centri commerciali, alberghi, case di cura e soprattutto all’adeguamento delle strutture sportive del CONI al Foro Italico di Roma e dei Musei Capitolini. La sua attività professionale per conto di strutture pubbliche e private non si è mai interrotta e prosegue ancora oggi, accompagnata negli ultimi anni da docenze per la formazione di quadri RPP, centri di avviamento al lavoro e interventi al Master internazionale di II livello sul Restauro architettonico e cultura del patrimonio. Negli ultimi anni si è dedicato alla sperimentazione e ricerca nel settore della prefabbricazione leggera di sistemi costruttivi legno con legno, ottenendo di brevetto per invenzione industriale per un “Sistema costruttivo a pannelli intelaiati per la realizzazione dizioni in campo strutturale” (domanda n.

Gruppo di Platani dotati di estese ramifcazioni stima ili in diversi metri ove in alcuni casi prevale un assetto pressoch orizzontale.
Figura 1
www.linkedin.com/in/fabio-spera-3b417b6b

UNNATURAL STRUCTURAL RAMIFICATIONS

This time rofessor Felice Ragazzo proposes his technological re ections on the possible artifcial interpretations regarding ho the links bet een main and secondary ooden members develop - naturally - in a tree. A particularly original and ingenious interpretation comes from this eminent e pert, a precursor of apolyhedral unctions, hich e propose ithin the Connections focus also as a future hope for innovative production systems and processes. ith the living tree you are in the biological orld, hile ith the ood material you gravitate above all to the technological orld. In the frst, the aggregation of matter occurs starting from infnitesimal particles in accordance ith chemical and physical la s in the second, ho ever, e need to talk about assemblies bet een macroscopic components. The inspiration is offered by t o fnds collected hile alking in a park. The frst fnd consists of a branch spike of pine, hile the second consists of a branch obtained from the pruning of a fg tree. The true feat ith hich it is orth spending oneself ithout saving, does not consist so much in mere technical daring, but in the conceptual one aimed at grasping more acute and unusual aspects, hich nature, even in an almost daily dimension, puts before our eyes.

dalla modellazione 3 delle forme. Trattandosi di un esperimento semplifcativo, si è omesso il precedente gradino del rilievo tramite nuvola di punti. La generazione mimetica delle forme è avvenuta – bens in modo accurato – ma con tutti i margini di aleatorietà dovuti a una spiccata impronta intuitiva. ’altro canto, non è sempre detto che il rilievo a nuvola di punti debba essere implicato, poich pu anche occorrere che la forma strutturale ricercata vada inventata di sana pianta. Nel caso presente, nonostante i lievi margini di aleatorietà di cui sopra, si è voluto mantenere stretto il legame visivo tra contesto naturale e prodotto artifciale, al fne di mettere bene in luce fno a che livello riusciamo a percepire la spontaneità delle forme naturali e come riusciamo a riprodurne dei simulacri artifciali con i nostri mezzi tecnologici. E, si badi bene, non con fnalità meramente ornamentali, ma bens prettamente strutturali. Non che con ci si sia voluto penalizzare l’estetica, ma con la chiara intenzione di mettere in attivo anche la statica. eraltro, in totale assenza di supporti di giunzione non lignei, se si esclude il collante. Ecco dunque che lo scampolo di ramo di ino ha ispirato la geometria di separazione tra fusto e bracci. La ramaglia di Fico ha ispirato forma e concetto strutturale. Circa la geometria di sepa-

razione tra fusto (corona) e rami, essendo ricca di implicazioni sia statiche, sia tecnologiche inerenti la successiva fase di stereotomia, per non dire della forma affusolata dei rametti nella parte che, in un comune incastro a cava e tenone, è il rasamento e, pertanto, con dense implicazioni di digitalizzazione 3 , merita puntualizzare alcune signifcative osservazioni. Per quanto riguarda gli aspetti statici, per il momento, la partita è chiusa in esclusivo ambito intuitivo. Sarà molto interessante in futuro valutare i risultati di calcoli ai cosiddetti Elementi Finiti e quelli relativi a sistematiche prove distruttive. A ogni modo, l’essenziale preoccupazione progettuale (come sempre in un incastro) ha riguardato l’equilibrio tra materia asportata e materia lasciata in esercizio er quanto riguarda le cave, la preoccupazione è stata quella di frammentare il minimo indispensabile il corpo ligneo che le ospita tutte (Figura 6). er quanto riguarda i rametti la preoccupazione è stata quella di delineare una piccola propaggine cilindrica terminante a semisfera raccordata a un ampio rasamento non planare che di fatto è una “rigata” (Figure 7-8). ui il punto delicato è il raccordo, il quale essendo concavo e dovendo essere praticato con una fresa (cilindrica e a testa semisferica), deve essere concepito come una sorta di collare a raggio

pagina SCIENTIA
FOCUS
strutturalegno
www.feliceragazzo.it di Felice Ragazzo
034 035 Figura 3 Ramaglia di legno di Fico, ricco di una regolare corona composta da sei rametti Figura 8 Vista dei soli rametti raggruppati nelle rispettive posizioni. Figura 4 Ricostruzione in vista generale del modello 3D della ramaglia di Fico.

costante (Figura 9). Lo stesso problema si ripropone in taluni punti del raccordo tra la strombatura terminale del rametto e la superfcie della corona. Si tratta di un raccordo con la erre maiuscola in quanto le due superfci adiacenti devono essere tangenti in ogni punto. Qui non sussistendo una semplice e sicura base cilindrica d’appoggio, non è praticabile il collarino a raggio costante visto prima, ecco dunque che la soluzione deve essere trovata nella forma delle linee generatrici meridiane della strombatura. Ovvero occorre fare in modo che in nessun punto di dette linee il raggio di curvatura sia inferiore a quello della testata semisferica della fresa prestabilita. E ci è possibile farlo dislocando opportunamente i relativi punti di controllo (Figura 10). Naturalmente, per quanto accurati, si tratta sempre di livelli approssimativi di precisione.

Le dotazioni tecniche ritenute idonee per attuare le varie elettro-fresature riguardano essenzialmente quelle tipologie di CNC che funzionano come un tempo i pantograf copiatori. Con la differenza che prima occorreva un modello (generalmente di metallo) da copiare tramite tastatore, mentre oggi la stessa funzione la svolge il modello virtuale 3 del singolo componente. Nella presente fattispecie, data la matrice essenzialmente cilindrica

dei pezzi, di fatto si tratta di una serie di torniture con vari gradi di libertà operativa. Un po’ più complesse saranno le lavorazioni inerenti le cave, le quali andranno considerate come fase aggiuntiva a quella della tornitura. Nell’oggetto qui studiato è previsto un pezzo principale, il quale, volendo, lo si pu articolare in più segmenti, ovvero un fusto “a” (parte inferiore) un fusto “b” (parte superiore, dove peraltro si innestano due monconi più corti di ramo) una corona, inframmezzata tra i due fusti, ove si innestano i rametti. Come si pu vedere il quadro tecnologico non presenta particolari complessità. Gli unici aspetti di una certa laboriosità potranno essere costituiti dalle metodiche di fssaggio dei pezzi sul CNC.

Ma per concludere, la vera prodezza con cui merita spendersi senza risparmio, non consiste tanto nel mero ardimento tecnico, peraltro oggi assai ben supportato da eccellenti dotazioni tecniche, quanto in quello concettuale volto a cogliere aspetti più acuti e profondi, o quanto meno inusuali, che la natura anche in una dimensione pressoch quotidiana ci mette sotto gli occhi e, beninteso, stando comunque alla larga dal rischio che penalizz rom teo e magari, invece, prestando ascolto al dolce suono musicle della Lyra di Orfeo.

www.arataecobuilding.eu

Marco Arata

Laureato a Genova in Ingegneria Edile-Architettura, specializzato in Effcienza energetica e acustica è Consulente Energetico (Energieberater e Agenzia CasaClima dal 2010), iscritto a Zephir PassivHaus Italia (2015), affliato International assive Haus Association IPHA (2015), progettista PassivHaus Certifcato ( assiv aus laner dal 2016) e Membro fondatore del Gruppo Qualità Legno.

Progetta case a basso impatto ambientale con un costo di gestione quasi zero per creare ambienti sani sottolineando che è possibile raggiungere la certifcazione CasaClima GOLD o PassivHaus anche per gli interventi di Ristrutturazione Energetica e negli edifci antichi senza rinunciare a nessun comfort per “progettare un edifcio con la stessa cura con cui un passerotto fa di un pugno di rametti un luogo caldo e accogliente”!

Dettaglio ravvicinato della ricostruzione in modello 3D della parte più complessa della ramaglia. Vista delle cavità destinate a ospitare i rametti nella parte detta “corona”. Esibizione delle geometrie delle sole cavità. Figura 5 Figura 6 Figura 7 Esibizione della testata d’innesto di un rametto con la messa in evidenza del raccordo a forma di collare tra cilindro e superfcie rigata. Il raccordo si distingue per la colorazione azzurra. Esibizione del “cerchio osculatore” minimo, ma comunque di raggio maggiore rispetto alla fresa a testa semisferica prescelta, in una generatrice della superfcie di strom atura in un rametto. Figura 9 Figura 10

Una tradizione lunga tre generazioni

Il 30 maggio scorso abbiamo avuto il piacere di visitare Adveco situata a Cogozzo di Villa Carcina in provincia di Brescia. Un’azienda metalmeccanica, nata sessant’anni fa, specializzata in staffe personalizzate su misura, ferramenta per strutture in legno e stampaggio e imbutitura di lamiere a freddo conto terzi. Adveco festeggia quest’anno il suo 60° anno di vita e la sua struttura societaria attuale è composta dai cinque fgli dei diretti discendenti del fondatore Luigi Moretti, i fratelli Amelio e Pietro: rispettivamente le sorelle Gabriella ed Elena Moretti e i tre fratelli Mauro, Barbara e Alberto Moretti. Cinque soci-cugini uniti dallo stesso nome e lo stesso ideale: una tradizione che si ripete da generazioni da preservare come il più sacro dei tesori.

La visita ad Adveco nel distretto metalmeccanico della provincia di Brescia ci regala una storia tutta italiana, a conduzione familiare e che, giunta alla terza generazione, ha conservato il sapore autentico di una ricetta che ha saputo tramandarsi non solo in termini di conoscenza e sapienza da perpetrare con precisione, impegno e rispetto nei confronti di clienti e collaboratori, ma anche con lo sguardo sempre teso alla ricerca di nuovi prodotti e nuovi mercati. Dalle parole dei cinque soci-cugini emerge il percorso che si traduce nel passaggio da realtà artigiana a impresa metalmeccanica più strutturata – delineatosi ormai un lustro fa e via via defnitosi – che guarda oltre i confni nazionali con i suoi prodotti progettati ad hoc che arricchiscono e articolano sempre più l’offerta presente sul catalogo.

In Adveco, il cui nome riunisce in sé i due elementi “adventure” ed “ecology”, siete stati dei veri precursori dell'ecologia nell'ambito dei tergivetro, una delle prime produzioni dell'azienda! «L'azienda è nata a Lumezzane nel 1963 e via via è cresciuta – racconta Alberto Moretti –, trasferendosi a Villa Carcina negli anni Settanta, acquisendo nel 1976 il nome di “Adveco di Amelio e Pietro Moretti”, poi qui sempre nello stesso periodo è stato costruito anche il nuovo magazzino. Il cambio della produzione con l'inserimento della ferramenta per le costruzioni in legno è avvenuta negli anni Ottanta, l’indimenticabile periodo in cui abbiamo conosciuto Geom. Giovanni Cenci che faceva con noi le prove con le resine coadiuvato dalla fglia Sabrina. Abbiamo realizzato il palazzetto dello Sport di Casalecchio di Reno con il pro-

strutturalegno pagina COLLOQUIUM ADVECO
www.adveco.com
FOCUS
036 037 In queste pagine, diverse angolazioni del reparto produttivo di Adveco e alcuni dettagli delle innumerevoli gamme di prodotti che a Villa Carcina, in provincia di Brescia, prendono forma. Nelle immagini di gruppo, a fanco, Sonia Maritan fra i fratelli Mario e Al erto Moretti e nella pagina a destra, in asso Al erto Moretti con Pietro Ferrari. In alto alcuni momenti dell intervista di Sonia Maritan con Al erto Moretti e con le sue cugine, le sorelle Gariella ed Elena Moretti.

getto delle piastre del Geometra Cenci! Le resine non erano un articolo a catalogo anche se si lavorava prevalentemente con articoli standard a campionario. La nostra particolarità è diventata via via quella di collaborare nella realizzazione di progetti.

Questo vuol dire avere una struttura produttiva in grado di dare un servizio al cliente e di dare un servizio a chi progetta lo specifco pezzo, fornendo un prodotto fnito, trattato, zincato e imballato.. A corredo abbiamo tutta la nostra linea standard che nasce da quello che c'è in commercio, ma anche dalla nostra costante ricerca e dall'esperienza nei diversi progetti realizzati nel corso del tempo, un campionario che viene venduto direttamente».

Quindi il prodotto standard viene implementato dai progetti che voi realizzate su misura e poi inserito a catalogo, anche all’estero le modalità commerciali sono le stesse?

«Con l'estero (particolarmente Austria e Germania) stiamo incrementando adesso la nostra attività – spiega Alberto Moretti – e sarà il lavoro dei prossimi anni, oggi abbiamo un uffcio in Germania che fa ricerca e tiene i rapporti con i clienti attivi.

In Italia abbiamo invece rivenditori che

gestiamo direttamente. Prevediamo di ampliare la gamma.

Oltre alle case in legno facciamo tracciatura conto terzi nell'automotive e nell'idraulica, in particolare produciamo per questi settori alcuni dettagli per la pompa idraulica».

C'è un nesso tra questi diversi prodotti/ ambiti?

«C'è un nesso nella sinergia di produzione, nel senso che si usano le stesse presse, le produzioni si integrano.

In produzione i componenti di ricambistica auto sono quelli che si vendono di più, e quelli del legno si vendono bene, ma c'è un'integrazione totale nelle varie fasi di lavorazione».

Una specializzazione metalmeccanica da cui è scaturita la differenziazione della produzione nei diversi ambiti della carpenteria, dell'automotive e dell'idraulica e che vi ha portato a una crescita graduale nel corso del tempo… «Negli ultimi anni abbiamo avuto un aumento del volume d'affari e dell'organico, oggi l'azienda è dimensionata in modo corretto.

Abbiamo lavorato per aumentare gli spazi, abbiamo cambiato strategia di vendita soprattutto nel settore legno, fornendo distributori medio piccoli instau-

COLLOQUIUM_ ADVECO

038

039

Nell'immagine sotto e in alto nella pagina a destra il magazzino di Adveco acquistato nel 2019 e operativo dal 2020. 3100 metri quadrati di area coperta attrezzati con scaffalature sui quali sono riposti migliaia di prodotti diversi. La logistica è fondamentale: questo è uno spazio immenso e razionale dedicato al servizio che può ospitare sia cestoni sia bancali. In questa pagina, in alto un'altra ripresa del reparto produttivo a Villa Carcina provincia di Brescia. Il magazzino, rispetto l'azienda, si trova dalla porta opposta del paese. Nell'ultima pagina, i pezzi prodotti da Adveco con tutto il sapore che questa azienda metalmeccanica sprigiona attraverso questa miriade di articoli e i relativi stampi.

rando collaborazioni e sinergie durature nel tempo».

Avevate uno stand di grande apertura all'ultimo Legno&Edilizia 2019.

« stata una fera dettata da un importante cambio di mentalità. stata la fne di un percorso iniziato prima. Oggi abbiamo una situazione molto stabile in Italia e ci interessa spingere sui mercati esteri».

Adveco quest’anno festeggia il suo Sessantesimo Anniversario, crescer ancora?

«C'è ancora spazio e abbiamo la capacità e la logistica per crescere: cerchiamo un punto di appoggio in Spagna dove ci piacerebbe ampliare il mercato. Ci piacerebbe anche affancare al settore legno qualcosa di affne sia pure con logiche diverse…».

Non vi ponete dunque limiti né in termini di merceologia né di mercati!

«Ci guardiamo intorno e continuiamo il nostro cammino un passo alla volta. Relativamente al nostro Sessantesimo Anniversario, organizzeremo una celebrazione sobria».

Come vi dividete le mansioni all’interno della vostra azienda familiare?

«Io mi dedico alla parte commerciale, mio fratello Mauro si occupa della produzione e le nostre cugine Gabriella ed Elena Moretti della parte amministrativa, mentre nostra sorella Barbara fa parte del CDA e segue il suo percorso in campo sociale».

Interviene Pietro Ferrari per chiedere come si muovano i prezzi dei materiali.

«I prezzi oggi si sono stabilizzati e c'è margine di trattativa – conclude Alberto Moretti –, nel periodo peggiore abbiamo dovuto fare qualche sacrifcio sul margine ma gli ottimi rapporti con i fornitori ci hanno permesso di mantenere una continuità di fornitura nel tempo, anche nei momenti pi diffcili.

Il tema della zincatura elettrolitica e della zincatura a caldo, verniciatura e cata-

foresi non sono invece ancora ritornati a prezzi accettabili, i prezzi sono saliti e non sono scesi perché i costi dei materiali e dell'energia sono rimasti alti».

Riprende la conduzione dell’intervista Sonia Maritan coinvolgendo anche Gariella, Elena e Mauro Moretti, chiedendo loro quando siano entrati in azienda e come l’abbiano vista crescere.

«Dopo la terza media ho cominciato subito a lavorare – risponde Ga riella Moretti –, mentre facevo un corso in cantabilità sotto la guida di una segretaria storica di Adveco, fnché ho imparato il mestiere: mi piace quello che faccio».

«Anche io ho iniziato da piccolina – aggiunge Elena Moretti –, mi piaceva la-

strutturalegno pagina COLLOQUIUM ADVECO www.adveco.com
FOCUS
di Sonia Maritan e Pietro Ferrari

vorare in magazzino, oggi mi occupo di contabilità e altre cose, faccio da aiutante nei vari settori.

Cerco di trasmetterlo ai bambini: la quarta generazione.

Abbiamo anche un fratello sacerdote a cui però piace stare vicino alla famiglia: è Don Luigi Moretti, soprannominato Don Gigi».

«Io sono qui da ventisei anni e mi piace molto il mio lavoro – racconta Mauro Moretti, cugino di Gabriella, Elena e Luigi, nonché fratello di Alberto e Barbara –, ho visto crescere l'azienda. Ma oltre alla parte produttiva è importante anche il magazzino.

Abbiamo fatto aggiornamenti tecnologici. Sono io che scelgo le macchine».

IDENTIKIT ADVECO

uale settore affancheresti a uelli che già segui?

«Il settore dell'outdoor – risponde Mauro Moretti dal suo regno: la fabbrica –, anche in quell’ambito ci sono prodotti che già facciamo».

Con Mauro Moretti parliamo del reparto produttivo di Adveco.

«Abbiamo una zona di carico e scarico – risponde Mauro Moretti –, a livello di sequenza, prima di tutto c'è il reparto stampaggio, poi il taglio, la piegatura e la saldatura. Si parte quindi dal magazzino stampi – che rappresenta il nostro grande patrimonio –, poi ci sono le presse al lavoro, l'arrivo del materiale per la carpenteria. La parte carpenteria è in un magazzino apposito, ma vicino agli altri settori».

1° marzo 1963: Luigi Moretti, respirando il fermento imprenditoriale del tempo, avvia una piccola attività insieme ai fgli Amelio e ietro. Nasce cos la “Moretti Amelio e ietro tranciatura e imbottitura lamiera”. Luigi afftta una stanzetta a Lumezzane Fontana, in via Fonte Nona, a cui si accede da una porticina bianca, dove inizia a produrre particolari per cariglioni per fnestre: le prime macchine da lavoro sono un trapano e una pressa, mentre i prodotti, avvolti in piccoli pacchetti di cartone, sono consegnati dai fgli utilizzando l’autobus. Tra il 1964 e il 1965, Luigi sposta l’attività a Cogozzo di illa Carcina, in un ambiente più ampio, dove poter lavorare con maggior sicurezza, e introduce nuove macchine per migliorare sempre più l’offerta dei loro prodotti. L’aumento del lavoro porta alle prime assunzioni. Nel 1970, Luigi Moretti muore prematuramente, colpito da un male inguaribile: ai suoi fgli lascia in eredità l’esperienza lavorativa e le qualità umane maturate in 45 anni di lavoro. Amelio e Pietro, di 30 e 22 anni, fanno tesoro degli insegnamenti del padre, continuando a lavorare con precisione, impegno e rispetto nei confronti di clienti e collaboratori, e con lo sguardo sempre teso alla ricerca di nuovi prodotti. A nove anni dagli esordi, nel 1972, la sede si sposta in via Monte Guglielmo 61, sempre a Cogozzo, e cambia la denominazione sociale in s.n.c. Nel 1976, i due fratelli Moretti costituiscono una nuova società con i proprietari della “ ulindustria Cime ”, i signori Guizzi, produttori di articoli per pulizie industriali. Nasce cos il nome A ECO, che riunisce in sé due elementi: Adventure ed Ecology. Si tratta di un punto cruciale per la crescita futura dell’azienda, in quanto grazie a tale collaborazione, i fratelli Moretti apprendono nuove nozioni gestionali e di vendita. Con l’uscita dei Signori Guizzi dalla società, nel 1981, Amelio e Pietro portano avanti l’esperienza di Adveco s.r.l. lo stesso anno Amelio va in pensione, mentre la struttura societaria passa da 2 a 6 soci, con l’ingresso delle due fglie di Amelio, Gabriella ed Elena, e i tre fgli di ietro, Mauro, arbara e Alberto. Nel 2018, Adveco ha festeggiato il suo 55 anno di vita con il passaggio da realtà artigiana a piccola impresa metalmeccanica. L’azienda presenta oggi, nel 2023 al suo 60° anno di vita, un’organizzazione sempre più strutturata, composta da un uffcio amministrativo, un uffcio tecnico, un uffcio qualità, un uffcio commerciale, un uffcio estero, mentre l’offcina conta circa una ventina di operai. Le certifcazioni conseguite nel tempo garantiscono l’alta qualità dei prodotti, e il continuo desiderio di migliorarsi promosso dai cinque cugini offre ai clienti e dipendenti una realtà dinamica, stimolante e in continua evoluzione, tesa alla ricerca della migliore soluzione per ogni progetto.

A TRA ITION THREE GENERATIONS LONG

Last May 30th e had the pleasure of visiting Adveco located in Cogozzo di illa Carcina in the province of rescia. A metal orking company, founded si ty years ago, specialized in custom-made brackets, hardware for wooden structures and cold sheet metal molding and padding for third parties whose transition from an artisan reality to a small metal orking company dates back fve years ago. Adveco celebrates its 60th year of e istence this year and its current corporate structure is made up of the fve children of the direct descendants of the founder Luigi Moretti, the brothers Amelio and ietro: respectively the sisters Gabriella and Elena Moretti and the three brothers Mauro, Barbara and Alberto Moretti. Five cousin-cousins united by the same family name and the same ideal: a tradition that has been repeated for generations to be preserved as the most sacred of treasures. The company presents today, in 2023 at its 60th year of life, an increasingly structured organization, composed of an administrative offce, a technical offce, a quality offce, a commercial offce, a foreign offce, hile the orkshop counts about t enty orkers. Adveco is increasing its business abroad, particularly in Austria and Germany.

Quest'azienda famigliare è diventata un’impresa ben caratterizzata nel settore metalmeccanico!

«È una fabbrica che dai semilavorati affronta diversi processi di produzione. Dopo gli stampi ci sono le presse meccaniche, ognuna delle quali fa un particolare, una piegatura, uno schiacciamento. Si parte dalle bobine di metallo o dai fogli che si trovano in due magazzini diversi. Il rotolo per le componenti di un pezzo più grande.

Arrivano da una parte tutte le bobine, dall'altra parte gli stampi. Si fanno le lavorazioni di carpenteria per la ferramenta delle strutture in legno.

Ci sono piegatrici e punzonatrici, il magazzino automatico delle lamiere in fogli (da 1500 per 3000 massimo).

Passano alla taglierina, poi c'è la fase di assemblaggio fnale per alcuni pezzi, mentre altri vanno in zincatura e tornano e vengono inviati al cliente. Sono oggetti anche per il settore automotive».

Dopo il capannone c’è un’ampia area aperta.

In linea con il trend green non solo nell'ambito abitativo con la crescita delle costruzioni in legno, che rappresenta uno dei nostri business, ma anche con uno stile di vita più sano, abbiamo fatto gli orti per il personale Adveco e l'orto dei ragazzi.

C’è un dipendente in pensione che segue l'orto, e i collaboratori dell’azienda vengono con i coniugi e con i compagni a raccogliere gli ortaggi . Uno spazio anche simbolico che ha rafforzato il legame fra tutti i collaboratori di Adveco».

Infne, Sonia Maritan con Pietro Ferrari e Al erto Moretti si recano nel magazzino poco distante dalla sede produttiva, uno spazio davvero ampio e interamente dedicato alla logistica!

«Questo magazzino di Adveco – illustra Alberto Moretti – lo abbiamo acquistato nel 2019 ed è operativo dal 2020. Sono 3100 metri quadrati di area coperta e prima dell'acquisto sono state eliminate le tramezzature che dividevano le

varie proprietà e il capannone è stato attrezzato con le scaffalature. I due portoni davanti sono per i fornitori e i corrieri, e un terzo per le consegne degli articoli: i nostri mezzi effettuano consegne dirette sulla provincia.

Presso alcuni clienti facciamo direttamente le consegne. Quindi vengono controllati i prodotti in entrata nelle fniture, dopo essere stati ricevuti. Vengono controllati relativamente ai difetti visivi e vengono inviati al cliente. Alcuni prodotti vengono confezionati con grande cura, sono dei "gioielli".

Possono essere creati diversi termoformati personalizzati come imballo particolare per il cliente, talvolta pronti per essere inseriti nella linea di produzione.Abbiamo migliaia di codici diversi. Non era più possibile gestirli nella sede produttiva».

La logistica è fondamentale: questo è uno spazio immenso e razionale dedicato al servizio!

«Può ospitare sia cestoni sia bancali. Utilizziamo il codice a barre: il materiale va in accettazione, l'operatore lo controlla e gli dà un nome, tutto viene smistato. L'ordine è importante. Si entra con il carrello apposito».

strutturalegno pagina COLLOQUIUM ADVECO www.adveco.com
FOCUS
di Sonia Maritan e Pietro Ferrari
040

MINORE INGOMBRO, MAGGIORE FLESSIBILITÀ.

IL NUOVO CONTUREX VARIO XS MOBILITÀ 3D IN FORMATO XS.

La nuova versione XS del Conturex Vario o re alla vostra azienda possibilità illimitate, col minimo ingombro. Consente la lavorazione completa, senza attrezzaggio, in un solo serraggio e, grazie al PowerGrip Motion 2D/3D, risulta incredibilmente flessibile. Grazie a lui è possibile un cambio di paradigmi – sia in termini di lotti unici che di produzione di serie.

Maggiori informazioni su vario-xs.weinig.com
WEINIG OFFRE DI PIÙ.

COLLOQUIUM

Gelsomino Edilizia

SCM

www.scmwood.com

www.gelsominoedilizia.it www.arredolegnofoggia.it

strutturalegno pagina

Anima d’acciaio, anima di legno

Gelsomino Edilizia a Manfredonia, in provincia di Foggia, produce e realizza strutture e case in legno ed è specializzata nella vendita di sistemi a secco e materiale isolante. L’impresa è presente da più di 30 anni nella sua regione ed è sempre stata un punto di riferimento importante per il mondo dell’edilizia. Oggi lo è anche come cuore produttivo, con il Centro Autorizzato Trasformazione Acciaio per la piegatura e sagomazione del ferro d’armatura e il Centro Taglio per la lavorazione delle strutture in legno. Inoltre, nel mese di maggio si è unita ad ArredoLegno specializzato nella vendita e posa in opera di fniture per abitazioni civili e locali commerciali. Gelsomino Edilizia è oggi una realtà di assoluto rilievo sul territorio con oltre 30 dipendenti. Il 2 febbraio scorso Sonia Maritan ha visitato l azienda con aolo Forza.

Gelsomino Edilizia sin dal 2010, in controtendenza rispetto all’andamento del mercato, si è specializzata nella vendita dei sistemi a secco per l’isolamento termico, acustico e antincendio e ha spostato il suo core-business sul legno e sul ferro. Sono questi gli ambiti che oggi caratterizzano le due sue anime, anche se il primo sta prendendo il sopravvento perché incarna l’ideale di sostenibilità verso cui questa realtà punta e perché ha trovato in SCM il partner ideale.

L’azienda è cresciuta con il territorio e oggi si sviluppa su una superfcie di oltre 5000 mq con all’interno un ricco magazzino e un’area produttiva con macchine a tecnologia 4.0. Ne abbiamo parlato il 2 febbraio scorso con il titolare Roberto Gelsomino e la responsabile commerciale Antonella Battista.

«La nostra è un’azienda presente da più di trent’anni sul nostro territorio – esordisce

Roberto Gelsomino –, io sono nato in cantiere perché mio padre faceva l’imprenditore edile e fn da bambino ho respirato la polvere del cantiere. Ero molto contento di poter cogliere quell’energia tipica che caratterizza una costruzione in corso d’opera ed ero affascinato dalla produzione dei suoi diversi componenti. Da più di 30 anni siamo un punto di riferimento nell’edilizia per il territorio della provincia di Foggia, ora non più solo come rivendita edile. La mia attuale visione supera la distribuzione pura per andare verso la produzione. Attualmente, vogliamo raccontare il nostro progetto “ecologico” e questa nostra visione di fare edilizia. Dare il nostro contributo a un nuovo modello, sicuramente pi sostenibile e pi attento al rispetto dell ambiente e delle persone. Riteniamo che questo progetto nel suo insieme, sia della costruzione in legno e sia dell'acquisto della macchina di SCM,

042 043

ci permetta oggi di avere un prodotto più di qualità e di riuscire a essere meglio organizzati all'interno della nostra azienda e sul cantiere, perché il progetto stesso si realizza con un livello di dettaglio che garantisce il buon risultato fnale. uesta è diventata la nostra visione, che abbiamo tracciato, iniziando dal commercio del legno. Lavoriamo in un ambito circoscritto in particolare nella provincia di Foggia, toccando qualche volta Bari e il Molise, ma il nostro cliente può realizzare il lavoro a cinquecento chilometri di distanza e noi lo assistiamo anche da remoto. Stiamo anche investendo per creare più cultura e più lavoro nella nostra regione, vogliamo far crescere il nostro territorio».

Gelsomino Edilizia ha sede a Manfredonia, in provincia di Foggia, e opera in tutto il territorio del nord della Puglia fno a estendersi alle regioni confnanti del Molise e della Campania con commesse anche nella parte meridionale dell’Abruzzo. È una realtà peculiare che ha scelto la strada della sostenibilità esprimendola attraverso due diverse direttrici “materiche”, quella dell’acciaio e quella del legno e i due stabilimenti produttivi operano uno a fanco all altro con l obiettivo comune di concorre alla realizzazione di grandi opere.

Certo, il focus sono i sistemi a secco e il legno il core business, come suggerisce anche il convegno organizzato lo scorso 15 ottobre 2022 rappresentativo della fliera del legno con alcuni suoi importanti rappresentanti quali SCM, Soltech, Rockwool e Siniat, e un grande protagonista del settore come il professor Franco

Laner a coronamento dell’evento. Parliamo della due anime di Gelsomino Edilizia: il legno e l’acciaio. L’azienda costruisce principalmente case in legno nel rispetto dell’ambiente e delle persone. «Se noi risaliamo il percorso di Gelsomino Edilizia – illustra Roberto Gelsomino – troviamo alle origini il commercio del legno, mentre oggi l’azienda produce case in legno nella loro completezza con sistemi a secco. Attualmente siamo anche un centro autorizzato per la trasformazione e la sagomatura dell’acciaio per la costruzione del ferro da armatura. Abbiamo due anime: quella della costruzione dei tondini per fare le platee delle case in legno e non, un grande business che struttura e sostiene economicamente questa realtà e quella di fare le costruzioni “naturali”. Oggi però sta avvenendo una seconda evoluzione legata al fatto che dal grezzo stiamo passando alle fniture. Ci apprestiamo a realizzare le prime due ville chiavi in mano su un terreno poco distante da qui: un bel messaggio per la nostra zona. Sul territorio rappresenterà una svolta».

Il mondo dell’acciaio come nasce in Gelsomino Edilizia?

«Sette anni fa circa ho iniziato il percorso del ferro con il CSF, iniziando a dare dei servizi in modo artigianale a dei clienti che comperavano il ferro in barre. egli anni, la pandemia e la chiusura hanno fatto maturare in me la volontà di produrre sempre di più in azienda e poi montare in cantiere, optando per le macchine a controllo numerico che garantiscono una precisione e una qualità che l’artigiano non riesce a dare. Creare un siste-

COLLOQUIUM_Gelsomino Edilizia_ SCM
In apertura, una vista dello stabilimento di Gelsomino Edilizia a Manfredonia, in provincia di Foggia. Nella foto di gruppo in alto, da sinistra a destra: il titolare dell'azienda Roberto Gelsomino, la direttrice di Struttura Legno Sonia Maritan, il Product Area Manager di SCM Paolo Forza e la responsabile commerciale di Gelsomino Edilizia Antonella Battista durante l'incontro del 2 febbraio scorso di cui diamo cronaca in questo articolo.

www.scmwood.com

www.gelsominoedilizia.it www.arredolegnofoggia.it

044 045

ma di lavoro effciente, un’organizzazione che permetta di ottenere tempi e risultati certi è diventato l’obiettivo, soprattutto dopo la pandemia e la riapertura, quando c’è stato un eccesso di domanda che ci ha messi un po’ in crisi. Le agevolazioni e le banche ci hanno sostenuto in questi progetti e ho iniziato a specializzarmi nelle nostre attuali due anime: il ferro e il legno. Oggi il nostro core business è l’acciaio, ma io voglio che diventi il legno».

Ferro e legno sono uniti dall’impostazione di un cantiere pulito, che opera in sicurezza e con grande precisione. Ogni casa in legno poi ha bisogno delle fondamenta...

«Io oggi non penso solo alla casa in legno ma all’edilizia sostenibile e innovativa: produrre in azienda e montare in cantiere. ealizzare un edifcio in legno completo dalle fondamenta al colmo del tetto: così possiamo fornire il servizio completo!

oi vogliamo avere il controllo per fornire la casa in legno certifcata, anche perché riteniamo che l’edilizia per aumentare la qualità debba appoggiarsi a un’azienda che fornisca il controllo completo di tutte le fasi di lavorazione. Le imprese locali sono legate ai vecchi sistemi guidati dalla mentalità di “fare tutto in cantiere”, l’avvenire è invece il cantiere come luogo di montaggio».

« oi abbiamo un uffcio tecnico che affanca il progettista. isogna lavorare con un certo rigore – aggiunge la responsabile commerciale Antonella Battista –per passare dal progetto in calcestruzzo sovradimensionato rispetto a quello esatto del legno».

Gelsomino Edilizia ha dunque connotato fortemente il territorio con la sua attività ampia e ricca in termini di proposta edile! Quali sono i servizi offerti oggi al cliente?

«Gelsomino Edilizia – risponde Antonella Battista – è un’azienda orientata alla consulenza, vendita, produzione e posa di prodotti per l’edilizia. La sua flosofa è quella di promuovere sistemi di costruzione innovativi, volti al risparmio energeti-

co nel rispetto dell’ambiente. l cliente è sempre al centro, viene seguito dalla progettazione alla realizzazione, grazie alla squadra di posa specializzata. Il nostro uffcio tecnico svolge attività di consulenza e assistenza alla progettazione, collaborando con architetti, ingegneri e designer per contribuire a trovare le soluzioni più adatte alle esigenze dell’utilizzatore fnale.

Il lavoro di progettazione inizia dal disegno del cliente o da quelle che sono le sue esigenze. Infatti, non produciamo modelli standard ma strutture altamente personalizzate, uniche e originali. Il primo passo consiste nel defnire le soluzioni migliori e più adatte alla tipologia di progetto. Con i primi incontri si analizzano le aspettative del cliente procedendo con la stesura del progetto defnitivo, una volta approvato si procede con la progettazione esecutiva, nella quale vengono defniti tutti i particolari e i dettagli tecnici. Concluso l’esecutivo si avvia la produzione degli elementi sul centro di lavoro di SCM e dei particolari curando anche l’eventuale colorazione. I tecnici organizzano la squadra di posatori che procederà al montaggio e seguono accuratamente tutte le fasi realizzative».

Antonella Battista è diventata una rappresentante importante di questa realtà! «Io e Antonella ci conosciamo da 25 anni – risponde Roberto Gelsomino – e dopo essere stata nostra fornitrice, da due anni e mezzo è diventata una collaboratrice preziosa. nsieme, abbiamo cercato, di creare una rete per condividere valori, prodotti, servizi, mettendo l’accento sulla produzione del ferro sagomato, e questo mi ha portato a leggere ancora meglio le esigenze dell’edilizia, dando importanza al committente e a quello che il mercato chiede».

Un ‘produttore-distributore’ che nell’ottica di promuovere un’edilizia di qualità ha installato un Centro Autorizzato Trasformazione Acciaio per la piegatura e sagomazione del ferro d’armatura e un Centro Taglio per la lavorazione delle

COLLOQUIUM Gelsomino Edilizia SCM
strutturalegno pagina
In queste pagine, il centro di lavoro OIKOS X di SCM è il protagonista indiscusso del reparto produttivo della sezione legno di Gelsomino Edilizia. Nella foto in basso a destra, un momento dell'intervista al titolare dell'azienda Roberto Gelsomino e la responsabile commerciale di Gelsomino Edilizia Antonella Battista da parte della direttrice di Struttura Legno Sonia Maritan in visita con il Product Area Manager di SCM Paolo Forza presso l'azienda pugliese.

strutture in legno. Cosa è cambiato con l’acquisto del centro di lavoro di SCM? « cambiata la mentalità chiosa Roberto Gelsomino –. L’innovazione è sempre stata un punto di forza di Gelsomino Edilizia tanto nei prodotti quanto nei processi di produzione. Partendo dal centro di sagomazione ferro è iniziato un vero e proprio percorso di cambiamento anche nel settore legno con l’introduzione della macchina OIKOS X che ha trasformato l’intera area produttiva in un’area digitalizzata a tecnologia 4.0! La partnership con SCM per il settore del legno è nata grazie al know-how tecnologico offerto e al suo servizio di consulenza, in primis del Product Area Manager di SCM Paolo Forza, che ci ha permesso di conoscere a fondo le potenzialità di lavorare con una macchina ad alta tecnologia. Il servizio di formazione con gli esperti SCM nella fase di consegna e avviamento della macchina è stato di vitale importanza per la formazione dei collaboratori che operano giornalmente nella progettazione e realizzazione delle strutture in legno. Oikos X è il centro di lavoro cnc di SCM per la produzione di travi strutturali e pannelli parete X-LAM/CLT di larghezza fno a .250 mm. l gruppo operatore a assi permette qualunque lavorazione su

tutte le facce dell’elemento in un unico posizionamento.

Grazie alla tecnologia SCM è ora possibile ottenere ogni tipo di taglio con precisione millimetrica, senza pi bisogno di aggiustamenti e risagome in cantiere. disegni vengono elaborati in formato digitale, dal progetto al taglio. Il materiale che esce dal centro di lavoro OIKOS X non richiede ulteriori lavorazioni così da velocizzare la posa in opera. Gli elementi sono prodotti con la massima precisione e permettono un montaggio della casa perfetto, semplice e veloce L’avanzamento tecnologico ha permesso di abbattere i tempi di realizzazione, perché buona parte del processo produttivo viene svolto in fabbrica al momento della progettazione e del taglio dei pannelli che andranno poi assemblati .

Il linguaggio digitale per l uffcio tecnico è diventato l’interprete determinante! Con la tecnologia di SCM l’azienda può lavorare al meglio calandosi nel mondo dell’industria 4.0…

«Le nuove tecnologie costruttive richiedono un accurato lavoro di progettazione e Gelsomino Edilizia attraverso il proprio uffcio tecnico offre un servizio di consulenza e assistenza alla progettazio-

COLLOQUIUM_Gelsomino Edilizia_

www.scmwood.com

www.gelsominoedilizia.it www.arredolegnofoggia.it

In questa pagina, in alto, la visita a un cantiere in corso a Foggia, per il quale l’azienda ha curato la fornitura delle strutture, ha completato l’incontro del 2 febbraio scorso.

In questa pagina, in basso, un momento del convegno di ottobre 2022 in occasione del quale in azienda era stata allestita una "sala convegni" che ha accolto 400 persone. Nella foto sotto il professor Franco Laner con Paolo Forza in un momento del Seminario tecnico dello scorso 15 ottobre 2022 organizzato presso la sede dell’azienda dal titolo “Edilizia Sostenibile" intorno alla tecnologia SCM.

ne con il compito di pianifcare a tavolino con il progettista di riferimento ogni più piccolo dettaglio costruttivo. Lo sviluppo esecutivo, attraverso un software di modellazione è affdato fn dalle prime fasi a un tecnico interno all’azienda il quale si occupa della defnizione di tutte le operazioni da effettuare con il centro di lavoro, i dettagli costruttivi utili alla costruzione, la defnizione dei tempi di lavoro, il coordinamento delle maestranze che lo rendono il principale referente per il cliente durante tutte le fasi del cantiere. La modellazione del progetto diventa di fondamentale importanza per la defnizione di quelle che saranno tutte le informazioni che verranno trasmesse al centro di lavoro, che sulla base delle stesse effettuerà tutte le operazioni che occorrono per la produzione dell’intera commessa.

Oikos X è infatti dotato del software SCM “ aestro beam all” che permette l’integrazione con i più diffusi CAD di progettazione utilizzati nel settore della carpenteria in legno. uesto scambio digitale di informazioni tra il software di modella-

zione e la macchina diventa importante nell’ottica di una gestione ottimizzata del processo produttivo».

…e garanzia di una qualità precisa al millimetro anche del processo costruttivo! «Lo schema di montaggio è fondamentale – spiega Roberto Gelsomino –, il cliente può montarsi da sé una parte e si sente tranquillo perché sa che può rivolgersi a noi per qualsiasi esigenza. Molto importante è stato aver trovato un partner come SCM che ha sposato la nostra flosofa di ampliamento alle costruzioni in legno, offrendo una tecnologia italiana e consentendoci di modernizzare completamente il modo di lavorare all’interno della nostra azienda».

La tecnologia ha completamente cambiato l’identità aziendale con altissimi livelli informatici sia per il presagomato in acciaio sia per le componenti in legno con il centro di lavoro: come è cambiata l’area produttiva con Oikos X di SCM?

«Stiamo riuscendo a lanciare al mercato un messaggio di sostenibilità e centralità

Gelsomino Edilizia SCM
COLLOQUIUM
strutturalegno pagina
046 047

Gelsomino Edilizia in Manfredonia, in the province of Foggia, is today a company of high relevance in the area - ith over 30 employees - hich produces and builds ooden structures and houses and specializes in the sale of dry systems and insulating material. The company has been present in its region for more than 30 years and has al ays been an important point of reference for the construction world. Today it is also a production heart, with the Authorized Steel Transformation Center for the bending and shaping of reinforcing iron and the Cutting Center for the processing of ooden structures. Furthermore, in May it oined Arredo Legno specialized in the sale and installation of fnishes for residential homes and commercial premises. The company has grown with the territory and today it spreads over an area of over 5000 m2 with a rich warehouse and a production area with 4.0 technology machines. e talked about it last February 2nd ith the o ner Roberto Gelsomino and the sales manager Antonella attista together ith the roduct Area Manager of SCM aolo Forza. “SCM as truly invaluable in instilling step by step not only the practical information – stated Roberto Gelsomino – but also the culture that is specifc to the processing of this material and provided us ith a made in Italy solution ith the possibility of managing and possibly repair it yourself. I didn t buy a machine that could do ust one thing ell but rather a very e ible and versatile technology: this is important.

dell’uomo-cliente e dell’operatore. Stiamo parlando al nostro territorio di costruzioni a telaio e di X-LAM.

all’inizio del “progetto legno” abbiamo assunto sette persone e la formazione di SCM è stata davvero preziosa per instillare passo dopo passo non solo le informazioni pratiche ma anche la cultura che è propria della lavorazione di questo materiale. SCM ci ha fornito una soluzione made in tal con la possibilità di gestirla ed eventualmente ripararla in modo autonomo. on ho acquistato una macchina che sapesse fare bene solo una cosa ma una tecnologia molto essibile e versatile: questo è importante».

In defnitiva, il lavoro uindi parte dall accettazione del progetto defnitivo e dalla sua ingegnerizzazione. Poi arrivano i tecnici, una volta costruito questo puzzle, e la squadra di posatori coordinati dall’uffcio tecnico. Tutto uesto appartiene anche alla nuova frontiera dell’industria 4.0, nella quale il linguaggio digitale è diventato l’alfabeto di tutto il processo. Questo è il contributo materiale, ma poi c’è anche quello “immateriale” perché è importante anche la cultura del costruire con il legno che sostiene e alimenta il settore!

«Senza dubbio la cultura del legno sta arrivando nella nostra regione – spiega Antonella Battista – , costruire in legno è un’esigenza sentita nel nostro territorio per il turismo e per l’abitare bene.

Gelsomino Edilizia svolge un intenso lavoro di promozione tecnica presso studi di progettazione per offrire soluzioni concrete volte a progettare e costruire case a risparmio energetico, conciliando il comfort abitativo con esigenze di sostenibilità. n binomio che non è mai scontato su un mercato che ha ancora molto radicata la cultura del mattone e del cemento. l 5 ottobre 2022 l’azienda ha organizzato presso la sua sede un Seminario tecnico dal titolo “ dilizia Sostenibile”, presieduto dal prof. arch. Franco Laner dell’ niversità uav di enezia, pioniere dell’impiego del legno lamellare in Italia, che ha illustrato le nuove opportunità

Il cantiere di una casa in legno.

del costruire con il legno, ma soprattutto ha appassionato i tecnici presenti con la sua capacità comunicativa di toccare le corde emozionali della platea: un relatore di altissimo livello che ha iniziato parlando del trabucco di eschici. Per noi il Seminario tecnico dello scorso ottobre ha rappresentato un evento importante, perché venivamo da un periodo di pandemia e il valore di farlo in presenza con l’ordine degli ingegneri, degli architetti e dei geometri e con il riconoscimento dei Crediti Formativi Professionali è stato apprezzato».

«Abbiamo voluto far toccare con mano la logica aziendale – aggiunge Roberto Gelsomino – e trasmettere l'identità del luogo dove vengono sviluppati i loro progetti… È stato il primo evento, sono venute 00 persone ed è andato benissimo! oi ci rivolgiamo all’utilizzatore fnale in modo incisivo ormai, grazie all’entrata in azienda di Antonella da due anni e mezzo. C’è anche una mia esperienza di venditore in sala mostra di fniture. o non mi voglio occupare solo di una parte della casa ma di tutti gli aspetti del progetto, cercando di migliorare la mia cultura come imprenditore. oi prima eravamo solo venditori e poi è stato necessario fare il salto. Come perito industriale trovo che entrambi i percorsi, scolastico e professionale, siano stati utili in questa impresa. Ho capito che era importante creare un valore e che lo si può ottenere solo con tecnologie innovative, perché l’artigiano non riesce a dare marginalità».

Dove guarda l’azienda, oggi?

«Gelsomino Edilizia è un’azienda in continuo movimento – risponde Roberto Gelsomino –, costantemente tesa alla ricerca di soluzioni e prodotti ideali per un’edilizia sostenibile che possa regalare qualità, sicurezza e un ambiente confortevole. Come dimostra l’unione, lo scorso maggio, con ArredoLegno – specializzato nella vendita e posa in opera di fniture per abitazioni civili e locali commerciali l’azienda si sta predisponendo alla fnitura completa dell’edifcio.

COLLOQUIUM_Gelsomino Edilizia_ SCM
STEEL CORE, WOOD CORE

www.scmwood.com

www.gelsominoedilizia.it www.arredolegnofoggia.it

strutturalegno pagina

Gelsomino Edilizia e Arredo Legno – un marchio molto presente sul nostro territorio – si uniscono e si riorganizzano».

« oberto Gelsomino Amministratore nico sarà affancato da Nicola Vuovolo irettore Commerciale e Matteo Trotta irettore Amministrazione, inanza e Controllo) – aggiunge Antonella Battista con l’obiettivo di poter offrire ai clienti la possibilità di dar vita all’idea dei loro sogni dalle fondamenta alle più piccole fniture, scegliendo fanco a fanco tutti gli elementi che la compongono in base ai propri gusti ed esigenze.

Da più di trent’anni, molti si rivolgono a Gelsomino dilizia, costituita da oberto Gelsomino, per la sua esperienza e per le sue competenze nell’edilizia sostenibile, un settore in costante crescita ed evoluzione. Arredo Legno, fondata da icola uovolo nel 20 3, da dieci anni ormai sostiene i propri acquirenti con un attento studio nella selezione dei materiali, sfruttando al massimo ogni centimetro dei loro spazi e garantendo un ambiente dal design ricercato e unico. I due team oggi si fondono, confrontandosi e supportandosi, per crescere assieme, grazie a una contaminazione di competenze ed esperienze a livello personale, per assicurare ai clienti un unico punto di riferimento. Con l’unione di Gelsomino Edilizia e Arredo Legno, sarà, infatti, possibile realizzare la casa e/o l’attività dei sogni, con l'acquisto e la posa in opera degli elementi e delle fniture pavimenti, pareti, pitture, porte, infssi, cucine e arredi su misura, divani, strutture esterne, scale etc… dall’outdoor all’indoor!). Il tutto supportato dalla progettazione tridimensionale e virtuale, che offre la possibilità di vedere il proprio ambiente in anteprima .

Il punto di forza di questa unione?

«I valori condivisi: innovazione e rispetto per l’ambiente. L’impegno di Gelsomino dilizia e la flosofa di Arredo Legno hanno radice comune – termina Antonella Battista –, ovvero promuovere sistemi di costruzione innovativi, volti al risparmio energetico. Scegliere la sostenibilità ga-

rantisce non solo risultati a lungo termine in una prostettiva ambientale, ma anche in ottica economica e sociale. La promessa è quella di proporre sempre prodotti il pi naturali possibile, con particolare attenzione al benessere del cliente. Altro punto di forza è la tecnologia 4.0 nella lavorazione del legno e del ferro nel Centro Autorizzato Trasformazione Acciaio e nel Centro Autorizzato Sagomazione Legno, mediante i quali si riesce a offrire una lavorazione specializzata e dettagliata di questi materiali, senza abbandonare l artigianalità e la personalizzazione

Le costruzioni in legno e l’edilizia sostenibile sono l’obiettivo primario. nuovi investimenti mirano ad ampliare i servizi da offrire ai nostri clienti dando loro la possibilità di costruire un edifcio personalizzato secondo i propri desideri e canoni estetici, creando un prodotto unico e non standardizzato, che segua le esigenze di ognuno di loro e delle loro famiglie. La visione dell’azienda prevede di puntare sul legno, arrivare al progetto della costruzione chiavi in mano, nella classe energetica massima e portare sul territorio l’idea che la casa in legno non è la baita di montagna ma una costruzione moderna Con le nostre tecnologie, il progettista può realizzare qualsiasi edifcio e soluzione di design. na casa dove non ci sono problemi di condensa e senza dispersione termica costituisce il nostro obiettivo. Trattiamo di ventilazione meccanica e di tutti gli accorgimenti per creare un ambiente salutare: una casa in legno, ecologica e sostenibile .

«In futuro, io vedo l’azienda ancora più specializzata nel legno – conclude Roberto Gelsomino per dare un prodotto di qualità, una casa degna di questo nome, fornendo un prodotto che rispecchia la mia visione e la mia specialità. n prodotto che crei un sistema, da trasmettere al cliente, rispettando il committente a cui dare delle sicurezze. La casa è un percorso che va condiviso, che sarà il luogo più importante di chi lo abiterà, è impossibile farlo senza fducia .

Gelsomino Edilizia SCM
COLLOQUIUM
In chiusura, la "squadra" al completo di Gelsomino Edilizia, seppur oggi ulteriormente cresciuta in termini di organico dell'impresa con la sua recente unione ad Arredo Legno, richiamata dalla foto sotto per sottolineare la recente unione di Gelsomino Edilizia con questa realt a signifcare la volont di dare un servizio completo attraverso un unico interlocutore: un progetto chiavi in mano dalle fondamenta alla fnitura.
048

27th International Wood Construction Conference (IHF)

29 th of November – 1st of December 2023

Innsbruck, Congress Center

Practical experience – Practical application

2‘400 partecipanti da 35 paesi di tutto il mondo

Traduzione simultanea

Tedesco <> Inglese <> Francese

www.forum-holzbau.com/IHF/

Premium Partner Partner

www.climate-value-chains.com www.envipark.com

www.gruppoqualitalegno.org

www.restructura.com

di Luca Galeasso, Sonia Maritan e Davide Maria Giachino

strutturalegno

Legno per l’Architettura

Il 19 novembre scorso, in occasione di Restructura 2022 a Lingotto Fiere Torino, Environment Park con il Gruppo Qualità Legno ha organizzato il convegno con il titolo “Legno per l’architettura: identità, sostenibilità, qualità”, nell’ambito del progetto LIFE 20 CCM/DE/001665 “Climate Value Chains” con un’ampia casistica di progetti, casi studio, tutti signifcativi e importanti per il territorio locale nel quale ricadono, ma anche per l’ambiente nel senso più ampio del termine. Ricalcando l’ordine delle presentazioni sono intervenuti: Luca Galeasso, Felice Ragazzo, Marco Allasia e Daniele Poncino, Gianbattista Pomatto, Davide Maria Giachino, Gianpiero Cavallo, Omar Barbero e Andrea Bouquet, Dario Castellino, Giuliano De Costanzi, Devis Guiguet, Diego Ruggeri e Fabio Spera. Il seminario, moderato dalla direttrice di Struttura Legno Sonia Maritan, ha previsto il riconoscimento di CFP per le categorie di architetti, agronomi e forestali.

All’inquadramento generale dell’arch. Giachino sono seguite le relazioni, oltre alla sua, di tutti i relatori intervenuti che riproponiamo nello stesso ordine in cui sono state presentate, nello scorso novembre a Lingotto Fiere Torino: dott. Luca Galeasso (Environment Park), prof. Felice Ragazzo (presidente GQL), dottori agronomi forestali Marco Allasia e Daniele Poncino (Federazione dei dottori agronomi e dottori forestali di Piemonte e Val -

le d’Aosta), arch. Gianbattista Pomatto, arch. prof. Davide Maria Giachino (membro direttivo GQL), arch. Gianpiero Cavallo (Consulente esperto CasaClima), Omar Barbero (Artefarelegno) e Andrea Bouquet (Piccola Falegnameria), arch. Dario Castellino, l’esperto di serramenti in legno Giuliano De Costanzi, Devis Guiguet (Coutan Studio), l’ing. Diego Ruggeri (membro direttivo GQL) e l’arch. Fabio Spera (membro direttivo GQL).

Le immagini si riferiscono al progetto di Lou

Estela a Moiola, nella Valle Varaita, nell’amito del ripristino di molteplici edifci della zona, oltre al restauro di un tipico essiccatoio di castagne a cura dell’arch. Dario Castellino, l’arch. Valeria Cottino e l’arch. Alice Lusso.

Nelle immagini in alto a destra, alcuni momenti del convegno “Legno per l’architettura: identità, sostenibilità, qualità” organizzato dall’Environment Park con il Gruppo Qualità Legno a Restructura 2022 a Lingotto Fiere Torino, lo scorso 19 novembre.

SIMPOSIUM
RESTRUCTURA GQL + ENVIROMENT PARK
pagina 050 051

INTRODUZIONE A CURA dell’arch. prof.

Il convegno organizzato dall’Environment Park in particolare dal dott. for. Luca Galeasso, insieme al Gruppo Qualità Legno nell’ambito del progetto LIFE 20 CCM/ DE/001665 “Climate Value Chains” è un momento di conoscenza importante. È la dimostrazione che unire le forze è oggi fondamentale per vincere le sfde del futuro, per mettere a sistema le esperienze dalla più piccola alla più grande. I relatori presenti al convegno hanno proposto un’ampia casistica di progetti, casi studio, tutti signifcativi e importanti per il territorio locale nel quale ricadono, ma anche per l’ambiente nel senso più ampio del termine. Quando, a Torino dal 17 al 19 novembre, si è tenuta Restructura, si era appena conclusa la Conferenza delle Nazioni Unite sui cambiamenti climatici (COP 27), vertice sull’attuazione per il clima, a Sharm el-Sheikh (Egitto), che quest’anno perseguiva quattro obiettivi principali, il primo la mitigazione: mantenere l’obiettivo di limitare il riscaldamento globale a 1,5 gradi rispetto ai livelli preindustriali e noi del settore del legno possiamo fare molto e dobbiamo lavorare per implementare l’uso del legno per l’architettura

Per fare questo c’è estremo bisogno di collaborazione, bisogna assicurare un’adeguata rappresentazione di tutti i pertinenti portatori di interessi, per investire su tutta la fliera legno. Il mi di competenze presente in questa giornata di studio è stato vincente e ha rappresentato un esempio di come sia necessario lavorare a scale diverse, dal micro progetto realizzato con il legno locale al mega progetto che guarda al futuro grazie all’economia circolare e all’innovazione. Le proprietà nel campo della sostenibilità del legno sono ormai note e sempre più progetti vengono pensati in legno in tutto il mondo. Ricordiamo che per produrre 1 Kg di alluminio sono necessari 215 MJ/Kg mentre per produrre 1 Kg di legno sono necessari 14 MJ/ Kg, circa 15 volte in meno. Nella nota “Piramide” di Byggeriet che ordina i materiali da costruzione per GWP (Global Warming Potential) emesso, il legno risulta alla base

mentre il calcestruzzo è a metà e i metalli sul vertice

Il legno è l’unico materiale da costruzione totalmente rinnovabile e che oggi consente di realizzare anche edifci multipiano: in Scandinavia sono già stati realizzati 3 grattacieli di oltre 20 piani. Gli edifci e in futuro le città potranno diventare dei grandi serbatoi di CO2. Ma il legno non è solo questo, perché ha effetti positivi sul sistema nervoso, abbassa la pressione e la frequenza cardiaca, riduce lo stress e facilita le interazioni sociali, ecco perché nella capitale del Galles, a Cardiff, verrà realizzato il più grande ospedale per la cura del cancro interamente di legno. In Italia la strada è ancora in salita, ma i dati del 6° rapporto di Federlegno 2021 sono incoraggianti e dimostrano i progressi che sono stati compiuti in questi ultimi anni nonostante il blocco dovuto alla crisi pandemica. Il nostro Paese si colloca al 4° posto in Europa per la produzione di case di legno, con oltre 3000 abitazioni realizzate. All’interno del contesto globale si osserva che le aziende operanti nel settore delle costruzioni in legno hanno dimostrato di sapere riprendere più velocemente rispetto ad altri comparti dell’edilizia e il settore ha registrato complessivamente una riduzione più contenuta e presenta aspettative di ripresa in rialzo.

Le stime per il 2021 evidenziano il ritorno ai valori del 2019, il valore dell’edilizia in legno nel 2020 è stato di 1.39 MLD di euro. Il momento storico è molto diffcile e lavorare tutti uniti è l’unica strada percorribile per vincere bene.

LUCA GALEASSO - SOSTENIBILITÀ DEL LEGNO E FILIERE DI PROSSIMITÀ

L’intervento ha introdotto al progetto LIFE Climate Value Chains (a cui è dedicato un approfondimento a parte), il cui obiettivo è promuovere l’utilizzo di legno di prossimità nel settore dell’edilizia, dell’arredo e della produzione di energia. Il principale strumento proposto è il Protocollo Low Carbon Tim-

WOOD FOR ARCHITECTURE

Last November 19th, on the occasion of Restructura 2022 at Lingotto Fiere Torino, Environment Park with the Gruppo Qualità Legno organized the conference with the title “Wood for architecture: identity, sustainability, quality”, as part of the LIFE 20 project CCM/ DE/001665 “Climate Value Chains” with a wide range of projects, case studies, all signifcant and important for the local territory in which they fall, but also for the environment in the broadest sense of the term. Following the order of the presentations, the speaker were: Luca Galeasso, Felice Ragazzo, Marco Allasia and Daniele Poncino, Gianbattista Pomatto, Davide Maria Giachino, Gianpiero Cavallo, Omar Barbero and Andrea Bouquet, Dario Castellino, Giuliano De Costanzi, Devis Guiguet, Diego Ruggeri and Fabio Spera. The seminar, moderated by the director of Struttura Legno Sonia Maritan, included the recognition of CFP for the categories of architects, agronomists and foresters. The theme chosen for the thirty-fourth edition of Restructura in Turin was that relating to the use of wood for architecture e pressed on three different levels: identity, sustainability, quality.

SIMPOSIUM_ GQL RESTRUCTURA

Carbon imber

ber, che permette di certifcare la ridotta distanza percorsa dal legno a partire dal bosco e comunicarne il valore ambientale. Il tema che ci ha spinto come Environment Park a organizzare l’evento “Legno per l’architettura: identità sostenibilità qualità” in occasione di Restructura 2022 è quello relativo alla sostenibilità del legno nel senso più ampio della defnizione. È bene ribadire che il legno ha delle prestazioni ambientali notevoli rispetto ad altri materiali da costruzione, ma non tutto il legname ha le stesse caratteristiche e gli stessi impatti ambientali. Due aspetti estremamente rilevanti nella fliera del legno sono in particolare la provenienza della materia prima e la distanza percorsa dal materiale lungo l’intera fliera, basti pensa re che le emissioni legate alla produzione e al trasporto di serramenti prodotti con

legname e tra-europeo possono essere anche circa dieci volte superiori rispetto ai serramenti prodotti con legname locale. Questa enorme differenza è legata principalmente alla fase di trasporto, che spesso avviene su gomma con distanze estremamente rilevanti, in particolare per l’import da fuori Europa.

Inoltre, è noto che le foreste durante la loro crescita stoccano carbonio nel legno, carbonio che verrà riemesso in atmosfera al momento della decomposizione del materiale creando un ciclo chiuso, che può essere tuttavia garantito solo se

egno di prossimità il sistem o C r on im er

Stock finale di CO2 nei prodotti legnosi

di Luca Galeasso, Sonia Maritan e Davide Maria Giachino strutturalegno Stock finale di CO2 nei prodotti legnosi

Le caratteristiche della filiera hanno importanti effetti sulle emissioni di Incentivare l’uso di legno locale porterebbe a dei benefici significativi di termini di riduzione di emissioni di CO in legname da costruzione da filiere di prossimità

Le caratteristiche della filiera hanno importanti effetti sulle emissioni di Incentivare l’uso di legno locale porterebbe a dei benefici significativi di termini di riduzione di emissioni di CO

Stoccaggio di CO in legname da costruzione da filiere di prossimità

Stoccaggio di CO2 in legname da costruzione proveniente dalla Russia

SIMPOSIUM RESTRUCTURA GQL
PARK www.climate-value-chains.com www.envipark.com www.gruppoqualitalegno.org www.restructura.com
+ ENVIROMENT
Stoccaggio di CO2 legno 790 kg CO2/m3 Riduzione dovuta all'indice di crescita 790 kg CO2/m3 Riduzione per indice di suolo 790 kg CO2/m 776 kg CO2/m3 772 kg CO2/m 721 kg CO2/m 721 kg CO2/m3
legno 790 kg CO2/m3 crescita 790 kg CO2 Stoccaggio di CO2 legno 790 kg CO2/m3 Riduzione dovuta all'indice di crescita 119 kg CO2/m3 Riduzione per indice di suolo 101 kg CO2/m3 Riduzione per la raccolta del legname 45 kg CO2/m3 Riduzione per trasporto -113 kg CO2/m3 Riduzione per produzione -161 kg CO2/m3 Stoccaggio di CO2 residuo -161 kg CO2/m3 Stoccaggio di CO2 in legname da costruzione proveniente dalla Russia
m di profili in legno lamellare di castagno per finestre kg CO2
pagina 052 053
Legno da filiera corta Legno da paesi
km
dal bosco
22 kg di CO2 stoccata
IMPATTO AMBIENTALE ASSOCIATO AL TRASPORTO DI 3 M3 DI LEGNO LAMELLARE DI CASTAGNO PER FINESTRE, IN DIFFERENTI SCENARI DI FILIERA unità di misura (kg CO2)
percorsi
2.
I grafci e gli attestati si riferiscono all intervento di Luca Galeasso.

mondo la normativa è molto più labile e il rischio di perdere grandi superfci forestali è estremamente elevato L’utilizzo di legname da fliera corta permette di “conservare” in maniera ottimale il carbonio all’interno del prodotto; considerando infatti uno stoccaggio di circa 790 kg di CO2/m3 nel legname in foresta, a seguito di tutte le fasi di lavoro è stimabile che nel prodotto fnito saranno ancora stoccati circa 720 kg di CO2/m3 . Nel caso di prodotti ottenuti da fliere e tra-europee invece, in alcuni casi le emissioni superano addirittura il carbonio

Solidità della costruzione; Geometria per volare alto; Meccanica e digitale per an dare oltre orma come fne di perfezione assunti come traccia narrativa. Tracce su alcuni territori, brevemente identifcati:

FISIOLOGIA DEL LEGNO

or a co e ne di per e ione

uello della fsiologia del legno è un dato imprescindibile, anche in riferimento al costruire. Il materiale legno prima di di ventare tale è appartenuto a un essere vi vente, il quale per prodigio è nato, per sor te è cresciuto sottostando a innumerevoli condizionamenti, per fatalità è stato pre scelto al fne di far parte di una delle fliere versate all’edifcazione o, più in generale, alla costruzione. Già nella condizione di essere vivente è implicato nel legno il con cetto di struttura. Un concetto assai più sofsticato di quello che assumerà come oggetto d’artifcio. Si potrebbe dire “struttura di sussistenza” e, talvolta, di sopravvivenza, ma il cui fulgore, quando diventerà “materiale”, si affevolirà a tal punto da circoscrivere i benefci offerti al numero limitato di argomenti elaborati da architetti, ingegneri, costruttori. Non viene meno in ogni caso la bellezza sempre ricca di sorprese, sia in un caso, sia nell’altro.

strettamente pertinenti, come indicato nei cinque punti di: Fisiologia del legno;

di di di di
- Meccanica e digitale per andare oltre
07/0
- or a co e
Restructura Salone dell dilizia e dell rc itettura - 19/11/2022 elice Ragazzo eliceragazzo it Roma Restructura Salone dell dilizia e dell La relazione di Felice Ragazzo è divisa in cinque macrotemi, le immagini in alto a sinistra sono relative al capitolo: “Meccanica e digitale per andare oltre”, mentre quelle sotto, in questa pagina, sono attinenti a Forma come fne di perfezione”. Il prof. Ragazzo stringe la mano a Claudio Boncompagni di Legnomeccanica (concessionario di SCM).

pagina 054 055

Restructura Salone dell dilizia e dell rc itettura - 19/11/2022 elice Ragazzo eliceragazzo it Roma

funghi e insetti, le caratteristiche di effcienza strutturale permangono potenzialmente elevate. Il grado di ciò varia ovviamente da legno a legno, tuttavia anche un legno a bassa densità come l’Abete può vantare una resistenza a trazione che a parità di massa supera di ben sette volte quella dell’acciaio. Ma questo vantaggio potenziale è assai diffcile da utilizzare nel

della mediazione tra due sfere scarsa mente comunicanti tra di loro: da un lato quella oggettiva di statica e meccanica, etc., dall’altro quella espressiva di forma ed estetica, etc.

- olidit della co tr ione

Restructura Salone dell dilizia e dell rc itettura - 19/11/2022 elice Ragazzo eliceragazzo it Roma

- olidit della co tr ione

In entrambe i casi, tra i linguaggi implicati c’è quello della geometria, specialmente quando si manifesta in modo grafco. Per statica e meccanica, un rilievo particolare è assunto dalla natura delle parti in connessione, mentre per forma ed estetica, un rilievo particolare è assunto dall’impronta visiva che nel complesso emerge dall’evento costruttivo. Si tratta di un linguaggio decisivo, poten te e dirimente che quando avvilito da superfcialità tutto l’evento costruttivo fni Ecco dunque che a benefcio della qua lità costruttiva il linguaggio geometrico ha da essere sempre arioso, colto e illu

Restructura Salone dell dilizia e dell rc itettura - 19/11/2022 elice Ragazzo eliceragazzo it Roma

- olidit della co tr ione

Restructura Salone dell dilizia e dell rc itettura - 19/11/2022 elice Ragazzo eliceragazzo it Roma

Restructura Salone dell dilizia e dell rc itettura - 19/11/2022 elice Ragazzo eliceragazzo it Roma

elice Ragazzo eliceragazzo it Roma

eo etria per olare alto

mente, sia con tipi di energia più potenti, tuttavia sempre controllati soggettivamente, fu un gigantesco balzo in avanti l’avvento della geometria proiettiva. In tempi anteriori, per controllare lo sviluppo di un cantiere, ma anche la manifattura di un componente d’arredo, occorreva ricorrere a una costruzione in scala ridotta costituita dal modello analogico. La geometria proiettiva ha permesso di ridurre tutto a due dimensioni,

05/0

- eo etria per olare alto

- eo etria per olare alto

FORMA COME FINE DI PERFEZIONE

Il concetto di perfezione in un oggetto costruito si manifesta mediante l’apporto di ogni possibile aspetto qualitativo implicato. La condizione assoluta, in linea di principio, non ammette lacune. Si sa tuttavia, che nella realtà tutto ciò diventa pura utopia.

Per tale ragione è vano e illusorio perseguire la perfezione con la sola sfera degli “obiettivi”, i quali, essendo cosa misurabi le e ponderabile, sono vincolati alla rigi

Poiché è sempre presente l’assillo del for marsi idee e scopi sulle cose che ci servo no o riguardano, ha per altro verso sen so considerare anche la sfera dei “fni”, i quali, essendo cosa a cui tendenzialmen te mirare (ma senza il fardello dei dati), sono connaturati a tutto ciò che ruota intorno alla soggettività e alla facoltà di

Nel campo del costruire, un aspetto pri vilegiato per quanto riguarda l’espressivi tà, l’eloquenza, l’estetica, etc., è costituito

Ecco perché sussistono motivate ragioni per considerare quello della forma un pri vilegiato fne, o scopo, di

La relazione di Felice Ragazzo è divisa in cinque macrotemi, le immagini in alto a sinistra di questa doppia pagina, sono relative al capitolo Filosofa del legno , uelle in asso a sinistra rappresentano il gruppo di immagini relative a “Solidità della costruzione”, mentre quelle in basso “Geometrie per volare alto”.

eo etria per olare alto

etria per olare alto

GQL RESTRUCTURA
-
perfezione.
04/0 Roma
-
Restructura Salone dell dilizia e dell rc itettura - 19/11/2022 elice Ragazzo eliceragazzo it Roma
eo
Restructura Salone dell dilizia e dell rc itettura - 19/11/2022 elice Ragazzo eliceragazzo it Roma
Restructura
rc itettura - 19/11/2022
-
Salone dell dilizia e dell
05/0

SIMPOSIUM

RESTRUCTURA GQL + ENVIROMENT PARK

www.climate-value-chains.com www.envipark.com

www.gruppoqualitalegno.org

www.restructura.com

pagina 056 057

popolamenti

MARCO ALLASIA E DANIELE PONCINOPIANIFICAZIONE, GESTIONE FORESTALE E FILIERE REGIONALI: A CHE PUNTO SIAMO?

A oggi in Piemonte ci sono oltre 930.000 ettari di superfcie boscata, circa il 37% della superfcie del territorio piemontese e una superfcie in crescita di circa l’1% all’anno: negli ultimi 35 anni è aumentata di 280.000 ha. Di questi, però, solo 150.000 sono attualmente pianifcati (PFA), circa il 15% del totale. Perché sono importanti la pianifcazione e la “gestione dei boschi” Perché è importante continuare a “tagliare” nell’ambito di questa gestione Perché non è il bosco ad avere bisogno dell’uomo ma l’uomo ad avere bisogno di un bosco gestito: è fondamentale che il bosco sia gestito da tecnici competenti affnch esso continui a garantirci i suoi molteplici servizi (legna – materiale rinnovabile e naturale, protezione idrogeologica, biodiversità, paesaggio, stoccaggio

di CO2), che in una dinamica completamente naturale potrebbero essere erogati con discontinuità o non erogati del tutto (ad esempio protezione).

stabilità .

Questi tecnici sono i Dottori Agronomi e Forestali: fgure professionali, laureate in Agraria o Scienze Forestali e iscritte al relativo Albo, che possono caratterizzare le superfci forestali, redigere stime di provvigione, fare progetti di taglio, ma soprattutto pianifcare la gestione forestale con la redazione di specifci iani Forestali. Il Dottore Forestale fa da cinghia di trasmissione tra gli interessi di enti pubblici, proprietari boschivi, imprese forestali, segherie, falegnami e i mercati di riferimento e contemporaneamente salvaguarda l’interesse collettivo dato dalla “salute” del bosco, dalla sua ricchezza in biodiversità e dai servizi ecosistemici che esso offre alla collettività. Non dimentichiamoci infatti che il bosco non è un elemento statico del paesaggio,

Fonte Regione Piemonte

Le immagini e il grafco si riferiscono alla relazione di Marco Allasia (in alto a sinistra) e Daniele Poncino (in basso a destra in questa pagina) riguardo la superfcie oscata del Piemonte in continuo aumento e soprattutto alla sua gestione.

Il grafco nella pagina di destra, in asso, riguarda il volume complessivo di circa 200 milioni di m3, in crescita di circa il 2,5% annuo che equivale a circa 5.000.000 di m3 all’anno. Di questi, in Piemonte si prelevano in media 1.000.000 di m3 di legname all’anno, dei quali l’80% per uso energetico e il restante 20% per usi durevoli.

GRAZIE PER L’ATTENZIONE

Fra queste, insieme metà della
e, se abbandonati, deperire

come potrebbe essere una fotografa ma è piuttosto un elemento dinamico come un flm. Un flm nel quale, in una successione naturale di eventi sono possibili fasi di crollo, incendi, pullulazioni di insetti, senza che questo pregiudichi minimamente la nuova evoluzione del bosco. Ma è chiaro che simili eventi possono ridurre o annullare i servizi che il bosco svolge per la collettività.

Ecosa importiamo dall’estero?

A livello nazionale l’Italia è una grande importatrice di legname, in particolare si piazza al primo posto nel mondo come importatrice di legna da ardere!

Cosa Quanto Da chi

3,7 Mm3

0,76 Mm3

Segati di conifere Austria, Germania, Ucraina Segati di latifoglie Croazia, USA, Cameroon Legna da ardere Principalmente Est Europa

Tondo

1,08 Mm3

1,54 Mm3 Altri, Cameroon, Congo, Slovenia, Francia, USA

mente neutri dal punto di vista delle emissioni climalteranti

GIANBATTISTA POMATTO - ARCHITETTURA PER IL BENESSERE

La tabella sopra si riferisce all’import di legname. A livello nazionale l’Italia è una grande importatrice di legname, in particolare si piazza al primo posto nel mondo come importatrice di legna da ardere!

Fonte Compagnia delle foreste –

ABITATIVO: L’USO SOSTENIBILE DEL LEGNO NELLE STRUTTURE A TELAIO

preleviamo dai nostri boschi?

La selvicoltura e la ianifcazione forestale sono pertanto un prerequisito importante per una gestione forestale sostenibile. Solo in questo modo si possono garantire le funzioni del bosco in rapporto ai bisogni dell’uomo in modo sostenibile e duraturo. Infne, dal punto di vista del ciclo del carbonio e del consumo di una materia prima rinnovabile come il legno, in grado di stoccare CO2 atmosferica anche per lungo tempo se impiegato per usi strutturali, è fondamentale l’uso a cascata del legname: favorirne gli usi strutturali ove possibile senza tralasciare la valorizzazione energetica degli assortimenti meno pregiati o di cascami di lavorazione che, ricordiamo, sono combustibili potenzial -

Utilizzare il legno nell’architettura consente ampie possibilità nella industrializzazione dei processi costruttivi, nella rapidità di esecuzione, nella riduzione delle emissioni di CO2 , nel raggiungimento di

SIMPOSIUM_
Dati FAO
COSA IMPORTIAMO DALL’ESTERO
in Piemonte si prelevano in media 1.000.000 di m 3 di legname dei quali l’80% per uso energetico ed il restante 20% per usi
Fonte Regione Piemonte e IPLA – marzo 2019

SIMPOSIUM

RESTRUCTURA GQL + ENVIROMENT PARK

www.climate-value-chains.com

www.envipark.com

www.gruppoqualitalegno.org

www.restructura.com

pagina 058 059

Le immagini e i disegni in questa doppia pagina si riferiscono al progetto “Saluto al sole” di Cinzia Valente e Gianbattista Pomatto (presentazione a cura di Melissa Bado), che incarna i principi della Progettazione Aurea.

elevati standard di comfort e risparmio energetico, in una frase: il rispetto della Natura e il benessere abitativo Personalmente credo che non abbiamo fatto altro che un viaggio di ritorno tra le braccia della Natura. Io stesso ispirato dalle parole di James Edward Gordon, sin dai tempi degli studi universitari, che in uno dei suoi libri, ha scritto: «Di fatto, la maggior parte degli edifci e delle altre strutture tecnologiche devono sopportare carichi piuttosto leggeri rispetto alle loro

dimensioni e sono in genere più costosi e pesanti del necessario […].

La natura, praticamente senza eccezioni, ha sempre prodotto strutture soggette a carichi leggeri».

Prospetto Sud: IL LATO CORTO DEI PETALI A sud la casa riceve la luce e i ca ore de sole n autunno e in inverno senza creare problemi d estate; e aperture sono frequenti ma ridotte così da assorbire i doni dell ambiente e non aver b sogno di ombreggianti

con ni sono a ti er essere s erat dan ando

La progettazione aurea si basa sullo studio e la comprensione di come la natura si sviluppa seguendo delle geometrie precise e ripetute nel tempo e nello spazio Tutto in natura si basa sul rispetto di una particolare relazione tra due lunghezze chiamata appunto sezione aurea che fornisce bellezza e armoniosità ma anche funzionalità alle strutture naturali. Utilizzare questi principi nella progettazione di edifci consente di avvicinarci maggiormente alla natura e al benessere psico-fsico che ne deriva, rispettando nello stesso tempo le esigenze abitative moderne; si tratta di cambiare approccio progettuale verso nuove forme e strutture che rendono l’edifcio più attraente e perfettamente integrato con l’ambiente.

energet a ra uori e dentro o s opo uel o di r reare un ol ega ento ra l a itante e a iente attra erso l a itato on la or a desideria o innes are uesta d na a portando interno al esterno e i e ersa n un ontinuo s a io posit o

Il progetto presentato in occasione di Restructura si chiama “Saluto al Sole” e si basa su tre principi. Il primo è la forma della natura, che ci invita a rispettare le forme e le proporzioni presenti in natura, proprio come è stato fatto in questo lavoro in cui ci si è ispirati alla forma dei petali di un fore facilitando l’integrazione con l’ambiente naturale circostante. Il secondo principio è il respiro delle piante in quanto la struttura è realizzata con una struttura a telaio in legno con pareti realizzate in calce e canapa che permettono alla casa di “respirare”, contribuendo al mantenimento della temperatura e alla regolazione dell’umidità.

Il tetto verde vivo migliora la coibentazione nel periodo estivo, la qualità energetica, la gestione delle acque meteoriche e l’impatto visivo, integrandosi con la natura circostante.

Prospetto Ovest GRAZIA E RISPETTO L ingresso dell abitazione si trova sul lato ovest della casa che interagisce con l edificio prospiciente Saluto al Sole mostra un carattere morbido e spirito di adattamento, assumendo una forma al 'apparenza quasi trad zionale www progettazioneaurea it

Il terzo principio è il calore del sole, grazie a un innovativo sistema di trasmissione del calore è possibile riscaldare la casa attraverso i raggi a infrarossi lontani, esattamente come il sole.

Questi raggi vengono assorbiti dalle pareti generando un piacevole

riscaldante

uniformante distribuito evitando
per integrarsi www progettazio Desiderava così tanto sentirsi viva che la vita l avvolse Vista dal alto Prospetto Ovest DENTRO COME FUORI: ut lizzia o e stesse linee auree sia per l interno e per 'esterno in odo da reare una ont nuit si a ed
effetto
i Nata

moti d’aria e la formazione di muffe sulle pareti. Il lucernario posto al centro della casa è composto da vetri fotovoltaici trasparenti, che come le classiche vetrate, contribuisce a soddisfare il fabbisogno energetico dell’abitazione. Inoltre, il lucernario a forma di stella consente alla luce di penetrare all’interno dell’abitazione distribuendola su tutti i piani. Complessivamente questo innovativo approccio alla progettazione garantisce salubrità, benessere e risparmio energetico per il riscaldamento domestico.

DAVIDE MARIA GIACHINO - DALLE COMPONENTI ALL’EDIFICIO DI LEGNO: ELEMENTI PER UNA PROGETTAZIONE E REALIZZAZIONE DI QUALITÀ

Nella triplice veste che mi ritrovo a rappresentare di membro del Direttivo del Gruppo Qualità legno, come docente e come progettista desidero riportare l’attenzione su di un tema oggi fondamentale: La qualità dell’architettura di legno.

Per il gruppo GQL è il punto di partenza, ma insieme alla qualità vi sono altri termini fondamentali che ruotano attorno alla progettazione di qualità: conoscenza, magistero, innovazione.

me all’Environment Park spa (Parco Scientifco Tecnologico per l’Ambiente) per la trentaquattresima edizione di Restructura a Torino è stato quello relativo all’impiego del legno per l’architettura declinato su tre differenti piani: identità, sostenibilità, qualità

Per brevità di trattazione vorrei soffermarmi su alcune considerazioni relative alla qualità, perché per il GQL la qualità è sempre stata il punto di partenza, tanto che al momento della fondazione del gruppo il termine qualità fu scelto dal direttivo come parola chiave da includere nel logo.

Per perseguire la qualità è oggi necessario, più che nel passato, studiare molto! anale Non direi, siamo immersi in una società dove non manca l’informazione, anzi al contrario c’è n’è troppa, oggi si verifca quella che il professor Bertram Gross defn nel 1964 la overloading information, ma con alcune diverse sfumature legate al cyebrspazio (insieme delle risorse informatiche e dei siti web che possono essere visitati simultaneamente da milioni di persone tramite reti di computer) in cui noi oggi viviamo.

Le fonti bibliografche classiche cartacee sembrano per molti obsolete, le ricerche e gli approfondimenti si indagano solo sul web, rimbalzando da link a link in una dan za sfrenata che occupa tempi sproposita ti e che porta spesso al disorientamento. I miei studenti universitari mi dicono che

Architetto Gianbattista Pomatto Consigliere OAT e imprenditore Saluto
PROGETTAZIONE AUREA PRESENTA: www progettazioneaurea it Idea e Progetto Cinzia Valente Gianbattista Pomatto Presentaz one a cura di Mel ssa Bado Verso la Simbiosi Passiamo tutta a
senza
www
www
al Sole
vita a cercare "casa"
accorgerci che abbiamo lasciata fuori dalla porta
progettazioneaurea i
progettazio Prospetto Est
Le immagini della pagina successiva si riferiscono alla relazione di Davide Maria Giachino.

SIMPOSIUM RESTRUCTURA GQL + ENVIROMENT PARK

www.climate-value-chains.com

www.envipark.com

www.gruppoqualitalegno.org

www.restructura.com

non hanno tempo per recarsi in biblioteca e che su internet c’è tutto, basta cercare bene!

L’incapacità oggi di riuscire a mettere a fuoco l’informazione e soprattutto di saperla fltrare correttamente è a mio avviso il problema maggiore

Ma veniamo ora alla costruzione degli edifci, noi costruiamo con il legno senza renderci conto che stiamo usando un materiale delicato che va trattato con grande attenzione.

La Circolare 21 gennaio 2019, n. 7 C.S.LL. PP. riporta al paragrafo C4.4.1 “Il legno è un materiale di origine biologica […]. Per quanto riguarda la durabilità, dovrà essere tenuta in considerazione la sensibilità del legno al biodegrado, principalmente per azione di funghi e insetti xilofagi”.

La circolare mette in guardia il progettista ricordandogli che il legno si può biodegradare in quanto materiale vegetale. Le fonti del degrado potranno derivare dal mancato controllo di alcuni fattori ambientali (es. pioggia-umidità persistente >12%) oppure dalla scorretta posa di elementi tecnologici indoor o al loro invecchiamento o maltrattamento (es. impianti adduzione acqua, scarichi). Sono molti gli edifci di legno in Italia che presentano problemi legati alla durabilità, i contenziosi nei tribunali si moltiplicano, come sono molti quelli realizzati

correttamente perché si è attuato un appropriato processo di conoscenza. Senza conoscenza non è possibile progettare. La conoscenza precisa dei problemi ed è indispensabile alla loro soluzione.

Si dice “venire a conoscenza di qualcosa”, signifca esserne messo al corrente. Per progettare in modo cosciente bisogna “venire a conoscenza” e il legno richiede molta conoscenza.

Per “venire a conoscenza” di qualcosa bisogna studiare, bisogna imparare, bisogna cercare, bisogna essere curiosi. Ci vorrebbe un maestro che insegni con sapienza, con abilità, con eccellenza, con magistero.

Oggi abbiamo il web che pare sostituire qualsiasi processo tradizionale di apprendimento, in passato si imparava a bottega, cercando di “rubare con gli occhi” dal maestro.

La qualità va perseguita continuamente, non è un fatto statico, ma dinamico. Bisogna innovarsi, bisogna guardare oltre, non bisogna mai accontentarsi: è il legno che lo richiede.

La tecnologia oggi ci offre la possibilità di spingerci avanti, le CNC, i software, le nanotecnologie, sono strumenti potenti a nostra disposizione.

Oggi il legno ha molto bisogno di qualità: conoscenza, magistero, innovazione.

pagina 060 061

Le immagini in questa pagina e nella doppia pagina successiva sono relative al recupero con ri ualifcazione energetica di un’antica struttura nella borgata di “Chiot Martin”, nel Comune di Busca – Municipio di almala alle araita), con le fnestre di Cobola Falegnameria che ritroviamo in una delle relazioni successive. Il progetto è di Gianpiero Cavallo.

RECUPERARE EDIFICI TRADIZIONALI CON LEGNO SOSTENIBILE E DA FILIERA CORTA

La tipologia dell’intervento nella borgata

“Chiot Martin”, Comune di Busca, nel Municipio di Valmala (Valle Varaita), tramite una serie di casi studio tra i quali il progetto di recupero e riqualifcazione energetica di un’antica struttura situata in Val Varaita (Cuneo), oggi gestita dallo chef stellato Juri Chiotti, presenta un approccio alla progettazione basato sull’utilizzo di materiali sostenibili e di fliera corta.

Il progetto, che ha visto la collaborazione dell’azienda Cobola Falegnameria, ha vinto il premio Comunità Forestali Sostenibili 2022 del PEFC Italia e Legambiente per la categoria “prodotti”.

Risalendo il vallone di Valmala, piccola Valle dal passato faticoso, ci si ritrova a un certo punto in un’antica borgata posta al limitare del bosco.

Insediamento costituito da vecchie case dai tetti a capanna volte con il timpano a sud, in cerca del sole invernale, così prezioso un tempo.

È qui che il committente, dopo aver ottenuto una Stella Michelin, ha scelto di “tornare alle radici” (da qui il nome del

un progetto di vicinanza con le montagne dei suoi an tenati e valorizzando il concetto di pastore/agricoltore/cuoco che utilizza materie prime autoprodotte in loco (o acquistate da fornitori della vallata).

Anche il cantiere ha seguito le stesse regole: materiali provenienti da località limitrofe o comunque con certifcazioni di ecosostenibilità. Imprese, artigiani e professionisti del posto.

Non in ultimo, grande attenzione ai consumi energetici.

Così, sfruttando la forma originaria dell’ampio fenile, si è operato con estrema semplicità, tamponando le grandi aperture volte a sud e a ovest (vista sul Monviso), con vetrate performanti. Vere e proprie stufe nel periodo invernale.

Energie rinnovabili Recuperare edifici tradizionali

Sono stati installati serramenti rigorosamente in Castagno prodotto da fliera locale certifcata. I muri sono stati isolati dall’interno, evitando di snaturarne l’aspetto esterno costituito da paramenti in pietra “messi su” con maestria dai nonni La scelta dell’isolante non poteva che ricadere su di un materiale naturale e fornito da un’azienda del fondo valle: calce e canapa. Un materiale isolante, igroscopico, che ha visto lo stesso committente impegnato nella posa che ha riservato grande cura e attenzione nella correzione dei

Energie rinnovabili e risparmio energetico

Recuperare edifici tradizionali con legno sostenibile e da filiera corta

Energie rinnovabili e risparmio energetico Recuperare edifici tradizionali con legno sostenibile e da filiera corta

Gianpiero Cavallo architetto no embre T CT A Gianpiero Cavallo architetto
no embre T CT A
Gianpiero Cavallo architetto

SIMPOSIUM

RESTRUCTURA GQL + ENVIROMENT PARK

www.climate-value-chains.com

www.envipark.com

www.gruppoqualitalegno.org

www.restructura.com

ove recuperare il legname necessario Niente di più facile e ovvio, considerati i principi sui quali si basa il recupero con riqualifcazione energetica dell’antica struttura. Esattamente un anno prima dell’inizio del cantiere, aiutati dal papà, custode delle conoscenze tramandategli dagli anziani, si sono scelte, nel vicino bo-

pienti ne hanno tratto travi e tavolame. Anche gli impianti sono stati scelti nell’ottica della sostenibilità e semplicità. Per il sistema di riscaldamento e produzione di acqua calda per i sanitari e soprattutto la cucina (un consumo medio di 1000 litri/giorno) è stata scelta una pompa di calore idronica collegata alla rete e stipulato un contratto con un fornitore di energia proveniente esclusivamente da fonti rinnovabili. Il locale necessita infatti di una potenza elettrica giornaliera con punte di 30-35 kW. Non in ultimo, l’arredo è frutto di recupero di quanto dismesso da altri locali chiusi per cessata attività, all’insegna del riutilizzo e del tramandarsi delle memorie abitative del luogo.

OMAR BARBERO E ANDREA BOUQUET - ARREDARE CON IL LEGNO DA FILIERA CORTA: IL PROGETTO E LA LINEA “TRACCIALEGNO” Omar Barbero e Andrea Bouquet (rispettivamente nelle foto-ritratto in alto e in basso) hanno presentato la linea di arredi “Traccialegno”, realizzata nell’ambito dell’omonimo progetto che ha visto coinvolte le aziende del gruppo Legno Locale Pinerolese. Partendo dallo studio dei mobili tradizionali dell’arco alpino, sono stati individuati alcuni elementi fondamentali. Gambe, telaio in facciata, cornice, dimensioni contenute, utilizzo di più specie legnose, utilizzo delle decorazioni, sono diventati le linee guida del progetto che hanno permesso di lavorare su un concetto di modulo con l’intento di mantenere un prodotto replicabile ma fortemente artigianale. Nell’ambito del progetto “Traccialegno” è stata sviluppata una linea di arredo fnalizzata all’utilizzo di specie lo-

no
T CT A
embre
Gianpiero Cavallo architetto Gianpiero Cavallo architetto Energie rinnovabili e risparmio energetico Recuperare edifici tradizionali con legno sostenibile e da filiera corta
no
A
Energie rinnovabili e risparmio energetico
embre T CT
Recuperare edifici tradizionali con legno sostenibile e da filiera corta Cavallo architetto Le immagini, a esclusione dei mobili, sono relative al progetto in Valle Varaita di Gianpiero Cavallo. pagina 062 063

mente nella zona del Monviso Val Chisone, Val di Susa e del Queyras. L’epoca studiata è quella che va dalla fne del Settecento alla prima decade del 900. Un arredo principalmente povero composto di pochi ed essenziali mobili, di modeste dimensioni se paragonati ai mobili delle nostre abitazioni. Gli arredi erano caratterizzati da una tecnica costruttiva molto semplice, si trattava molto spesso di una struttura a telaio e pannelli con incastri a tenone e mortasa. Le specie legnose utilizzate erano principalmente di conifera: Larice, Pino cembro e Abete e in alcuni casi Tiglio e Castagno. In molti arredi, quelli più poveri, abbiamo riscontrato la mescolanza di più specie. Un ruolo importante lo svolge la decorazione, che varia da motivi più semplici ma molto caratteristici come l’intaglio a coltello di rosoni e motivi geometrici, a motivi più complessi quali modanature e intagli più elaborati Nello studio abbiamo individuato alcune caratteristiche costruttive dettate sia dai pochi strumenti di lavoro, sia dalle esigenze del tipo di abitazione dell’epoca. Nel tentativo di ricreare una linea d’arredo fortemente in uenzata dal passato ma con

uno sguardo verso il futuro ci siamo lasciati ispirare da alcune peculiarità come le gambe, il telaio in facciata, la cornice, le dimensioni contenute e l’utilizzo di più specie. Questi elementi sono diventati le linee guida del progetto che ci hanno permesso di lavorare su un concetto di modularità, con l’intento di mantenere un prodotto fortemente artigianale. Sviluppando questi moduli, sono state pensate delle soluzioni prestabilite per ottimizzare il processo di lavorazione, mantenendo comunque l’unicità del “fatto a mano” in ogni arredo, dando così la possibilità di personalizzare l’estetica e la composizione. Questa impostazione basata sulla modularità permette di avere una visione dinamica più contemporanea dell’arredo, destinato alle case di oggi che hanno strutture abitative molto diverse tra loro. Per caratterizzare fortemente l’estetica, e a livello sperimentale per capirne le possibilità di utilizzo, ci sarà un’attenzione particolare nella scelta di legni certifcati (legno locale pinerolese, PEFC e Low Carbon Timber). Per il progetto andremo a mescolare le tipologie lignee di alta valle quali Pino cembro, Larice e Abete con le specie legnose di bassa valle, come Noce, Castagno, Tiglio, Olmo, Frassino, Acero per creare nuovi contrasti di colore e massimizzare gli aspetti estetici dei vari legni.

no embre T CT A no embre Gianpiero Cavallo architetto Gli arredi della linea “Trraccialegno” sono i protagonisti della relazione di Omar Barbero e Andrea Bouquet, mobili tradizionali dell’arco alpino rivisti in chiave moderna.

SIMPOSIUM

RESTRUCTURA GQL + ENVIROMENT PARK

www.climate-value-chains.com www.envipark.com

www.gruppoqualitalegno.org

www.restructura.com

Lou Estela nasce dalla necessità di salvare e restaurare un tipico essiccatoio di castagne abbandonato all’interno di una piccola borgata ai piedi delle montagne cuneesi. L’edifcio esistente presentava una pianta quadrata e la sua limitata superfcie non consentiva l’inserimento degli spazi necessari per soddisfare i comfort primari di una residenza privata, destinazione tipo voluta dalla committenza. Dunque si presenta la necessità di aggiungere un volume che riesca a integrarsi con il paesaggio e contesto circostanti. L’esistente non è dimenticato, bensì consolidato e recuperato aggiungendo un’estensione, un corpo ex novo totalmente in legno locale. Il nuovo corpo, quasi estraneo, non si sviluppa seguendo l’unidirezionalità del metato (essiccatoio) ma assume una forma organica e slanciata, in cerca dell’illuminazione solare verso sud e delle migliori viste montagnose che la vallata ha da offrire. Questa particolare forma, insieme allo sfalsamento delle assi di legno sulle facciate e la rastremazione del corpo stesso verso l’esistente, creano movimento e gioco dando alla struttura dinamismo.

Nonostante l’evidente contrasto materico tra i due volumi, essi dialogano in modo armonico ponendo nell’esistente la zona notte e nella componente nuova la zona giorno. L’inserimento nel contesto è dato dall’attenta scelta del materiale: Larice nativo lavorato in una segheria locale, resistente ai complicati agenti atmosferici esterni del clima montano. I materiali esterni ri ettono quelli interni, la zona notte è rivestita internamente da una fnitura nera che riprende l’annerimento delle possenti pareti in pietra causato dalle essiccazioni delle castagne. La zona giorno invece è rifnita da pannelli in legno chiaro di Quercia per accogliere al meglio la luce proveniente dall’estesa vetrata. Il collo della struttura ospita un blocco bianco in pareti a secco contenente i servizi igienici. La nuova struttura in legno è totalmente portante con puntoni progettati a diverse altezze e forme in modo da restituire una volta assemblati, alla linea di colmo un andamento sinuoso.

GIULIANO DE COSTANZI - LA CERTIFICAZIONE AMBIENTALE DEI PRODOTTI IN LEGNO COME REQUISITO PER LA PROGETTA ZIONE SOSTENIBILE Cobola Falegna meria presenta le sue

DARIO CASTELLINORECUPERO DI UN VECCHIO “SECOU” LOU ESTELA BED&BREAKFAST A FILIERA CORTA pagina 064 065

politiche per l’ambiente e la sostenibilità, che l’hanno portato a ottenere una linea di serramenti in legno certifcati PEFC, EPD e realizzabili con legno da fliera corta. Il prodotto, impiegato nel progetto di riqualifcazione del caso studio Reis in al araita, ha ottenuto il premio del PEFC Italia “Comunità Forestali Sostenibili”. “Gli ecosistemi forestali – spiega Giorgio Zampetti, direttore generale Legambiente – oltre a essere un patrimonio per la salvaguardia della biodiversità e dei territori, sono strategici alleati contro la crisi climatica, per il raggiungimento della neutralità climatica al 2050”.

LA SOSTENIBILITÀ DI COBOLA FALEGNAME-

RIA E LA CUCINA STELLATA DI JURI CHIOTTI

Cobola Falegnameria, azienda piemontese che si occupa della progettazione / produzione e installazione di serramenti, ha da tempo puntato sulla sostenibilità. A novembre 2022, durante la fera Ecomondo, ha ricevuto il premio di PEFC Italia e Legambiente come primo classifcato nella categoria “Prodotti di origine forestale”, è membro del network di aziende Low Carbon Timber per la fornitura di

Energie rinnovabili e risparmio energetico

stenibilità è il progetto di ri ualifcazione energetica di un’antica struttura situata in Val Varaita (Cuneo), realizzata utilizzando il legname già presente in loco o materiale da fliera corta, tra cui i serramenti in Castagno PEFC di Cobola Falegnameria. Dopo aver ottenuto una Stella Michelin, lo chef Juri Chiotti ha scelto di “tornare alle radici”, realizzando per la sua struttura un progetto di vicinanza con le montagne dei suoi antenati e valorizzando il concetto di pastore/agricoltore/cuoco che utilizza materie prime autoprodotte in loco o acquistate da fornitori della vallata. Il progetto ha previsto inoltre il ripristino degli edifci adiacenti con la realizzazione di strutture ricettive, per ridare vita a una valle meravigliosa (vedi progetto di Gianpiero Cavallo nelle pagine precedenti).

DEVIS GUIGUET - COSTRUIRE CON LEGNO

LOCALE: IL PROGETTO DEL CENTRO DELLA CULTURA D’ALTA QUOTA A BARDONECCHIA

Il progetto, fnanziato con fondi europei Alcotra, consiste in

Le immagini in questa doppia pagina si riferiscono al progetto di Lou Estela a Moiola, nella Valle Varaita, nell’ambito del ripristino di molteplici edifci della zona, oltre al restauro di un tipico essiccatoio di castagne a cura di Dario Castellino, Valeria Cottino e Alice Lusso. Le immagini sotto in questa pagina, invece, si riferiscono al recupero con ri ualifcazione energetica, per opera dell’arch. Cavallo, di un’antica struttura nella borgata di “Chiot Martin”, nel Comune di Busca – Municipio di Valmala (Valle Varaita).

Energie rinnovabili e risparmio

I tetto rea i ato con i castagni i ro riet ortati in seg eria er i tag io e a avora ione serramenti rea i ati con egno i rovenien a oca e entro i m Nuovo Reis Focus: I serramenti in Castagno

SIMPOSIUM RESTRUCTURA GQL + ENVIROMENT PARK

www.climate-value-chains.com

www.envipark.com

www.gruppoqualitalegno.org

www.restructura.com

pagina 066 067

Nuovo Reis Focus: I serramenti in Castagno

completato nel 1963 ed era realizzato con un basamento in cemento e muratura e sormontato da due prefabbricati in lamie ra rossa

tetto utilizzo di legno presente nel sito ( Castagno)

serramenti utilizzo di Castagno certificato PEFC

Nell’inverno del 1969 una prima valanga danneggiò la struttura ma nel 1970 il bar fu ricostruito e poi restaurato nella parte superiore. Dopo il 1985 però, fu l’abban dono totale: i resti del rifugio e l’unico ski lift, ancora esistente sul ghiacciaio, furono vandalizzati e l’incuria, nel tempo, fece il resto fno al 2004, quando, con un intervento, fnanziato dall’Amministrazione

Nuovo Reis Focus: I serramenti in Castagno

Comunale di Bardonecchia, il Ghiacciaio e il Colle del Sommeiller furono ripuliti e vennero poste delle barriere in legno per bloccare il traffco veicolare, poco prima della spianata del lago. L’obiettivo del progetto attuale è la promozione del colle e del territorio con una nuova struttura incentrata sull’aspetto turistico Promosso dalla Comunità Montana Alta Valle di Susa e dal Comune di Bardonecchia, il nuovo progetto intende, alla luce del nuovo turismo ciclistico e motoristico, riproporre una struttura per l’accoglienza capace di promuovere e valorizzare la storia del luogo. Le opere in oggetto hanno previsto la costruzione di un nuovo edifcio che è collocato in una posizione maggiormente protetta da frane e valanghe rispetto al precedente rifugio. La nuova struttura è stata realizzata nella piana del colle e guarda da un lato sul lago e dall’altro sull’arrivo della strada carrozzabile. Il nuovo bivacco presenta un basamento cementizio su cui poggia una struttura portante in legno. L’involucro è completamente coibentato e rivestito da una lamiera rossa opaca.

È accessibile su due fronti, mentre sul lato lungo è presente una serie di fnestre con imbotte in lamiera nera che guarda verso il ghiacciaio. Internamente sono presenti due camerate, un locale ristoro e un locale tecnico. Lungo il corridoio interno una serie di pannelli esporrà la storia del colle.

Sul fronte ovest, che si affaccia sull’arrivo della strada carrozzabile, sono presenti 2 porte, una di ingresso che conduce al corridoio e una di accesso al locale tec nico. Sul fronte sud trovano sede una serie di fnestre che riprendono formalmente le piccole fnestre del rifugio Ambin che, oltre a dar luce ai locali interni, si affacciano su ciò che rimane del ghiacciaio; in copertura sono inoltre inseriti alcuni pannelli solari necessari al funzionamento della struttura.

Sul fronte est, che si affaccia sul lago glaciale, due vetrate ben protette permettono di godere della vista privilegiata dall’interno della struttura. Sempre su questo fronte una rientranza crea un piccolo loggiato dove trovare riparo dalle intemperie rimanendo all’esterno. Infne, sul fronte a nord, maggiormente a rischio per quanto riguarda frane e valanghe, si è deciso di non inserire fnestre o altri elementi che possano essere danneggiati. Il progetto si sviluppa con l’intento di riprendere alcuni elementi architettonici del rifugio degli anni ’60, per reinterpretarli, andando così a realizzare una nuova struttura che non risulti come un elemento totalmente nuovo ed estraneo al luogo, bensì capace per forme, sagome, materiali, colori di ispirarsi all’unico elemento architettonico che sia mai stato realizzato sul colle, attuandone una reinterpretazione compositivo/formale in chiave contemporanea. Il nuovo edifcio, inoltre, presenta caratte -

C R C
C R C
Castagno
7 C R C
gi gno TA T A Giuliano ecostanzi Nuovo Reis Focus: I serramenti in Castagno Estratto CTR La carta riporta fedelmente l’orografia del territorio nonché il riferimento alla struttura del vecchio albergo rifugio Ambin. Estratto Ortofoto Relazione VI. L’obiettivo sull’aspetto l progetto omunit ciclistico del luogo. Le opere maggiormente infatti carro l nuovo sar completamente che guarda una serie esposi nternamente direttamente

Relazione Paesaggistica Ordinaria

Descrizione degli interventi in progetto

L’obiettivo del progetto la promo ione del colle e del territorio con una nuova struttura certamente incentrata sull’aspetto turistico.

ristiche ormai comuni e consolidate, ana loghe in molte strutture di alta quota nelle quali ricorre l’uso della lamiera in colori facilmente identifcabili dai soccorsi oltre a scelte costruttive dettate da esigenze di robustezza, durabilità e sicurezza.

DIEGO RUGGERI - USO DEL LEGNO NEL CONSOLIDAMENTODI EDIFICI DI MURATURA ESISTENTI

progetto per la reali a ione di una nuova struttura nella modalit di rifugio bivacco promosso dalla omunit ontana Alta alle di usa e dal omune di ardonecchia intende alla luce del nuovo turismo ciclistico e motoristico riproporre una struttura per l’accoglien a capace di promuovere e valori are la storia luogo.

Le immagini della pagina sinistra si riferiscono al recupero con ri ualifcazione energetica dell’antica struttura nella borgata di “Chiot Martin”, nel Comune di Busca – Municipio di Valmala (Valle Varaita) del progetto dell’arch. Gianpiero Cavallo.

Le immagini di questa pagina e le tre foto in alto nella doppia pagina successiva si riferiscono al progetto del centro della cultura a Bardonecchia, in luogo di un antico rifugio risalente ai primi Anni ‘60 per opera dell’arch. Davis Guiguet.

Nella pagina successiva a sinistra e in basso le immagini sono invece relative all’intervento dell’ing. Diego Ruggeri.

L’ing. Diego Ruggeri (Dottorando l’Università Tor Vergata e Presidente Commissione tematica Ingegneria per le Costruzioni di legno presso l’Ordine degli Ingegneri di Roma) ha trattato dell’uso del legno strutturale nel patrimonio edilizio esistente. I recenti sviluppi della ricerca unitamente

opere in oggetto prevedono la costru ione di un nuovo edificio che sar collocato in una posi ione maggiormente protetta da frane valanghe e intemperie rispetto al precedente rifugio. La nuova struttura sar reali ata nella piana del colle e guarder da un lato sul lago e dall’altro sull’arrivo della strada abile.

nuovo rifugio presenter un basamento cementi io su cui pogger una struttura portante in legno. L’involucro completamente coibentato e rivestito da una lamiera rossa opaca. ar accessibile su due fronti uello guarda sul lago e uello opposto che guarda sull’arrivo della strada mentre sul lato lungo sar presente serie di finestre con imbotte in lamiera nera che guarder verso il ghiacciaio considerata la migliore esposi ione su uest’ultimo lato saranno inoltre collocati i pannelli solari. nternamente saranno presenti due camerate e un locale ristoro sar inoltre presente un c accessibile direttamente dall’esterno. Lungo il corridoio interno una serie di pannelli esporr la storia del colle.

all’aggiornamento delle Norme Tecniche per le Costruzioni hanno contribuito a porre notevole interesse sul tema dell’applicazione del legno nel retroft sismico ed energetico di edifci esistenti, con particolare riferimento a quelli di muratura, nel rispetto della vincolistica delle Sovrintendenze. Tale impiego è in linea con gli indirizzi della Comunità Europea in termini di contenimento della produzione e stoccaggio per lungo periodo di CO2, in quanto i prodotti a base legno, sono tra i pochi capaci di essere rigenerati e di incarnare l’approccio progettuale from cradle to cradle Del legno viene sfruttata la leggerezza e la capacità naturale di resistere sia a trazio ne che a compressione, mentre la muratu ra offre robustezza e capacità dissipativa; essa rappresenta il metodo costruttivo più diffuso a livello nazionale nel patrimonio edilizio esistente.

ul fronte vest che si affaccia sull’arrivo della strada carro abile saranno presenti porte una di ingresso che conduce al corridoio e ad una prima camerata e una di accesso al c sar inoltre presente un’inse con la dicitura olle ommeiller . m .

ul fronte ud troveranno sede una serie di finestre che riprendono formalmente le piccole finestre del rifugio Ambin che oltre a dar luce ai locali interni si affacceranno su ci che rimane del ghiacciaio in copertura sulla facciata saranno inoltre inseriti alcuni pannelli solari necessari al fun ionamento della struttura.

ul fronte st che si affaccia sul lago glaciale due vetrate ben protette permetteranno di godere della vista privilegiata dall’interno della struttura. empre su uesto fronte una rientran a creer un piccolo loggiato dove trovare riparo dalle intemperie rimanendo all’esterno.

er finire sul fronte a ord maggiormente a rischio per uanto riguarda frane e valanghe si deciso di inserire finestre o altri elementi che possano essere danneggiati.

O
Estratto Ortofoto
Relazione Paesaggistica Ordinaria 3
Relazione Paesaggistica Ordinaria

www.climate-value-chains.com www.envipark.com

www.gruppoqualitalegno.org

www.restructura.com

calizzata l’attenzione sull’incremento della durata del legno da impiegare come elemento di rinforzo: si prediligeva l’uso di legni locali, generalmente di latifoglia, e si prevedeva la bruciatura o la catramatura delle testate e delle parti maggiormente esposte all’umidità. Anche i dettagli costruttivi erano studiati per impedire all’acqua di ristagnare per troppo tempo, attivando processi di marcescenza nel legno.

L’attuale normativa riprende i principi alla base delle tecniche costruttive del passato, consentendo l’impiego delle seguenti tecniche di intervento: diaframmi di piano con comportamento a membrana ottenuti mediante tavolato o pannelli di legno; coperture scatolari antisismiche; strutture lignee “innestate” nella scatola muraria esistente (nested buildings); placcatura mediante pannelli di legno CLT; applicazioni di contrafforti lignei.

Dalle prove eseguite in diversi istituti di ricerca, in particolare il CNR-IBE e l’Università di Trento, relative a rinforzi lignei applicati a pareti in muratura, emergono risultati confortanti.

Le criticità principali di tipo applicativo riguardano: aspetti logistici e di movimentazione, propri della prefabbricazione offsite; ispezionabilità del presidio strutturale effcacia del rinforzo ligneo nel caso

di pannelli murari con spessore superiore a 30 cm. Come aspetto positivo si ha che l’aumento del moltiplicatore di collasso avviene senza incremento della rigidezza del pannello murario originario: si può dunque ipotizzare di predisporre un rinforzo locale, senza modifcare sensibilmente la posizione del baricentro delle rigidezze dell’intera unità strutturale oggetto di intervento. La reversibilità del sistema è infne un punto a favore dell’impiego di tali tecniche.

La recente crisi nell’approvvigionamento dei materiali ha suggerito la valorizzazione e sviluppo programmati delle fliere di prossimità, al fne dello sfruttamento sostenibile delle risorse. La dorsale appenninica è ricca di Castagno ottimo per costruire, in particolare in Toscana, Lazio (area dei Castelli Romani e dei Monti Cimini), Campania e Calabria. Dal punto di vista meccanico e di durabilità, il legno massiccio di Castagno è quello che meglio si comporta come elemento di rinforzo strutturale della muratura perché a parità di sezione possiede una resistenza meccanica e biologica superiori all’Abete.

ul fronte vest che si che conduce al corridoio con la dicitura olle

ul fronte ud troveranno Ambin che oltre a dar sulla facciata saranno

ul fronte st che si affaccia privilegiata dall’interno trovare riparo dalle intemperie er finire sul fronte a inserire finestre o altri

Relativamente alle connessioni, le tipologie da preferire sono quelle a gambo cilindrico, in abbinamento a giunti di carpenteria tradizionali (tenoni, semi-incastri, giunti mezzolegno), al fne di incrementare la vita nominale complessiva del sistema. In presenza di vincoli degli spazi interni imposti dalle Sovrintendenze, una soluzione compatibile con i materiali storici presenti prevede il ricorso a contrafforti di rinforzo in massiccio di Castagno a vista.

Qualora il progetto di restauro preveda il “diradamento” dei presidi lignei, fnalizzato a minimizzare l’impatto architettonico, il consolidamento continua ad avere effcacia solo se abbinato ad esempio a una ristilatura armata dei letti di malta esistenti. I rinforzi possono anche essere carterizzati, preferibilmente con camere a canne o intonaci addittivati con fbre naturali, al fne di nascondere il presidio strutturale e di incrementarne la durata, nel rispetto della tradizione.

Relativamente all’approvvigionamento, le fliere certifcate e la marcatura CE del

SIMPOSIUM RESTRUCTURA GQL + ENVIROMENT PARK
pagina 068 069

legno di Castagno ne garantiscono le prestazioni meccaniche e il controllo della stabilità dimensionale in fase di essiccazione, unitamente a una bassa emissione di prodotto e processo in termini di CO2.

FABIO SPERA - UN PATENT PENDING CHE

SEGNA UN SALTO DI QUALITÀ NEL CONCEPIRE STRUTTURE NEL SETTORE DELLA

PREFABBRICAZIONE LIGNEA”

a specifche e diversifcate soluzioni architettoniche, unitamente alla realizzazione di giunzioni lisce “a-poliedriche”. I principali vantaggi sono: il minimo uso di carpenteria metallica per attacchi a terra e controventi; i disassemblaggi facilitati dell’intero organismo costruttivo o per singole membrature; la minor formazione di patologie degenerative che riducono la vita utile del componente strutturale; la riduzione delle concentrazioni di sforzo nelle zone maggiormente sollecitate in caso di eventi eccezionali (uragani, sisma, ecc).

si affaccia sull’arrivo della strada carro abile saranno presenti porte una corridoio e ad una prima camerata e una di accesso al c sar inoltre presente un’inse ommeiller . m .

Frame+ è un nuovo sistema costruttivo per strutture intelaiate leggere costituito da componenti modulari lignei (o misti, legno e polimeri), unioni legno con legno prive di colle per assemblaggi e successivi disassemblaggi.

troveranno sede una serie di finestre che riprendono formalmente le piccole finestre d dar luce ai locali interni si affacceranno su ci che rimane del ghiacciaio in co inoltre inseriti alcuni pannelli solari necessari al fun ionamento della strutt

affaccia sul lago glaciale due vetrate ben protette permetteranno di godere dell della struttura. empre su uesto fronte una rientran a creer un piccolo lo intemperie rimanendo all’esterno.

ord maggiormente a rischio per uanto riguarda frane e valanghe si deciso elementi che possano essere danneggiati.

Un approccio alla progettazione reso possibile dall’utilizzo di tecniche di modellazione 3D anche di tipo parametrico; realizzabile con tecniche di stereotomia lignea computerizzata tramite CNC, stampaggio 3D per compositi e montaggio robotizzato.

I caratteri innovativi del progetto risiedono nell’aver concepito un nuovo sistema di prefabbricazione specializzato per forma, impiego e dimensione atto ad assolvere

3
i n ioni li ce ento G ingotto iere Torino T CT A abio pera oma rame n n o o bre etto per il legno i n ioni li ce ento G
n n o o bre etto per il
i n ioni li ce ento
o o
ingotto iere Torino T CT A abio pera oma rame
legno
G
ingotto iere Torino T CT A abio pera oma rame
n n
bre etto per il legno
i n ioni egno con legno
Il sistema costruttivo Frame+, un brevetto dettagliatamente descritto su Struttura Legno n , a pagina nella ru rica Certifcatus” con il titolo “Frame+, un nuovo brevetto per il legno a frma di Felice Ragazzo.

FOCUS

Il progetto LIFE Climate Value Chains si propone di contribuire a una riduzione sostenibile e duratura delle emissioni di carbonio generate dalle fliere di produzione dei prodotti in legno nei settori dell’edilizia e dell’arredamento.

A tale scopo il progetto prevede delle azioni di supporto alla conversione e alla nascita di nuove fliere di prossimità, tramite azioni di sensibilizzazione e promozione nei confronti delle imprese del settore, delle pubbliche amministrazioni, dei consumatori e di progettisti e designer, che rappresentano un anello fondamentale nella fliera per quanto riguarda la scelta dei materiali e la progettazione secondo criteri di sostenibilità. Uno degli strumenti utilizzati e proposti nel progetto LIFE Climate Value Chains è il protocollo Low Carbon Timber, un innovativo sistema di certifcazione in grado di tracciare le distanze percorse dal legname lungo l’intera fliera produttiva Il sistema, integrando la tradizionale visione di legno “locale” associato a uno specifco ambito geografco, mette in evidenza la sostenibilità del materiale, in quanto per poter ottenere la certifcazione il legno impiegato per la realizzazione del prodotto o del semilavorato, oltre a dover provenire da foreste gestite in maniera sostenibile, deve rispettare delle distanze massime di approvvigionamento. La distanza massima stabilita dal sistema di certifcazione varia in funzione del tipo di prodotto e al suo grado di ingegnerizzazione; tendenzialmente più il prodotto è complesso più la distanza di riferimento è maggiore in quanto si presume che la fliera a monte sia più articolata. Riducendo la distanza percorsa dal legname si riducono enormemente le emissioni di CO2 in atmosfera, favorendo lo sviluppo locale dei territori e contribuendo a coprire l’attuale domanda di materiale, aspetto che alla luce dei nuovi sviluppi geopolitici risulta essere fondamentale. Il progetto intende inoltre promuovere la valenza ambientale del legno di prossimità come materiale da costruzione. Esso negli ultimi anni è stato protagonista di un’enorme rivalutazione, in parte grazie alle nuove tecnologie costruttive che ne hanno esteso il campo di applicazione e in parte grazie alle sue caratteristiche di sostenibilità. L’utilizzo del legno per prodotti durevoli è infatti considerato a pieno titolo dall’Unione Europea come uno degli strumenti di carbon removal (stoccaggio della CO2), caratteristica unica tra i materiali da costruzione che rende il legno estremamente interessante nella lotta ai cambiamenti climatici. Grazie a LIFE Climate Value Chains è prevista la creazione e l’ampliamento di un network di operatori impegnati nell’utilizzo di legno di prossimità, supportati da specifche attività di certifcazione e comunicazione dei loro prodotti, con la creazione di una vetrina di progetti, prodotti e buone pratiche di fliere di prossimità in grado di rappresentare esempi trasferibili in altri contesti. Fondamentale è inoltre l’azione prevista nel progetto rispetto alle Pubbliche Amministrazioni, supportandole, tramite linee guida e cataloghi di prodotti, nella richiesta di legno sostenibile all’interno dei progetti e delle forniture di cui necessitano, in conformità con i CAM (Criteri Ambientali di Minima) previsti dal codice degli appalti.

Quali competenze per una edilizia in legno sempre più sostenibile? n percorso tra fliere di prossimit ed esperienze internazionali.

Salone dell’edilizia e dell’architettura Restructura 25/11/2023

ore 14.00 -18:00 - Padiglione 3 - Lingotto Fiere Torino – Sala Rosso

La partecipazione al convegno riconosce:

4 crediti formativi professionali per architetti

0,44 SDAF 06 per la categoria Dott. Agronomi e Dott. Forestali Registrazione obbligatoria sulla pagina dedicata all’evento: https://www.eventbrite.it

Introduce e modera Arch. Sonia Maritan - Struttura Legno by Web and Magazine

PRIMA SESSIONE (a cura di Environment Park)

SECONDA SESSIONE (a cura di GQL)

LIFE CLIMATE VALUE CHAINS -
PROGETTO

architect meets innovations

Allianz MiCo Milano

8 & 9 novembre 2023

EVENTO ESCLUSIVO PER ARCHITETTI E INTERIOR DESIGNER CON INNOVAZIONI DI QUALITÀ

SOLO PRODOTTI SELEZIONATI presentati da produttori e distributori

L’IDEALE PER FARE RETE rimanendo aggiornati sulle novità

CONTENUTI SPECIALI sul tema FAB FUTURES

Linguaggi emergenti per le generazioni future

• 4 talk con cfp a cura di DDN

• 2 talk con cfp a cura di Fondazione | Ordine Architetti Milano

• Mostra di materiali NEXT BEAUTY a cura di Baolab

• Project Wall di world-architects.com

Registrati qui

Registrati su ARCHITECTATWORK.IT per l’ingresso gratuito con il codice 1020

Con la partecipazione di

All’insegna della bellezza e del benessere

All’Allianz MiCo a Milano, il prossimo 8 e 9 novembre, torna l’appuntamento di networking per il mondo del progetto con una ri essione sulla bellezza nel futuro. Architect ork si rivolge esclusivamente ad architetti e interior designer e vanta un approccio altamente qualitativo leggibile nei circa 200 espositori presenti in questa edizione. Oltre alle centinaia di innovazioni esposte, in programma anche una serie di contenuti ispiratori e formativi sul tema “Fab Futures”.

IN THE NAME OF BEAUTY AND WELL-BEING

At Allianz MiCo in Milan, next 8 and 9 November, the net orking event for the orld of design returns ith a re ection on beauty in the future. Architect ork is aimed exclusively at architects and interior designers and boasts a highly qualitative approach that can be seen in the approximately 200 exhibitors present in this edition which, as always, will bring together an enthusiastic audience of professionals around the best new products for architecture, construction and interior design. In addition to the hundreds of innovations on display, a series of inspirational and educational contents on the theme of Fab Futures are also planned. The event is characterized by stands, all identical in size, hich follo one another along ordered rows, creating a real exhibition gallery where products, ideas and novelties are the protagonists even more than the brands that distinguish them. The corridors go beyond their function as simple passage areas and become places of personal meeting and fruitful e change. The formula ith free snacks and drinks available for the hole day as highly appreciated by both exhibitors and visitors.

Aprirà le porte dell’Allianz MiCo il prossimo 8 e 9 novembre Architect ork Milano, e come sempre riunirà un pubblico entusiasta di addetti ai lavori intorno alle migliori novità di prodotto per l’architettura, l’edilizia e l’interior design. Oltre alle centinaia di innovazioni esposte, in programma anche una serie di contenuti ispiratori e formativi sul tema “Fab Futures”. L’evento si rivolge esclusivamente ad architetti, progettisti e interior designer, con una scenografa originale che gli conferisce un’atmosfera raccolta e raffnata, e vanta un approccio altamente qualitativo: è una commissione tecnica di professionisti a selezionare ci che viene presentato dalle circa 200 aziende partecipanti. Gli stand, tutti identici per dimensioni, si susseguono lungo fle ordinate dando vita a una vera e propria galleria espositiva dove i prodotti, le idee,

le novità sono protagoniste ancor più dei marchi che le contraddistinguono. I corridoi esulano dalla loro funzione di semplici aree di passaggio e diventano luoghi di incontro personale e di scambio profcuo. Molto apprezzata, sia dagli espositori sia dai visitatori, la formula con snack e bevande gratuite disponibili per l’intera giornata.

Chi già conosce Architect@Work, ne siamo certi, attende con impazienza di poter tornare a immergersi nell’ambiente minimal e al contempo ricercato della due giorni dedicata al networking e all’aggiornamento professionale, perché se è vero che il layout originale viene riconfermato anno dopo anno e il mood rilassato fa ormai sentire “a casa” i tanti progettisti che seguono l’evento fn dal suo esordio in Italia nel 2014, sempre nuovi, e spesso addirittura mai visti prima, sono i materiali e i prodotti che volta per volta vengono mostrati e descritti sugli stand con dovizia di particolari tecnici, informazioni sul processo produttivo e certifcazioni di sostenibilità.

Per non parlare dei contenuti extra e delle collaborazioni speciali che corredano la manifestazione: il ricco programma di talk (tutti con crediti formativi professionali), la mostra di materiali, le gallery fotografche, le installazioni e le performance artistiche gravitano tutte attorno a un tema ogni volta diverso, e che ogni volta cerca di rispondere ai quesiti attuali che il mondo del progetto, e il Mondo in generale, ci spingono ad affrontare. Con il titolo “Fab Futures – linguaggi emergenti per le generazioni future”, la nona edizione milanese della kermesse feristica internazionale propone una riessione sul futuro e sui suoi paradigmi in continua evoluzione: crisi climatica, nuove potenze digitali, nuovi fattori culturali

ANTICIPATIO ARCHITECT @WORK
www.architectatwork.com
072 073

che, come uomo e natura insegnano, si trasformano nel tempo.

L’intento del tema è dare lo spunto per un pensiero prospettico sul concetto di bellezza e benessere per le prossime generazioni.

È possibile registrarsi on-line per l’ingresso gratuito con il codice 1030

ediamo nel dettaglio tutto ci che Architect@Work Milano 2023 ha da offrire:

• 200 espositori con innovazioni selezionate

Aziende dell’industria manifatturiera leader nei loro settori di attività, che presentano novità di prodotto recenti e selezionate da una giuria di esperti, coprendo tutte le categorie merceologiche coinvolte nel progetto di architettura e di interior design; dai serramenti al materiale fonoassorbente, dalle ceramiche alle cerniere, dalle coperture per tetti all’illuminazione, dal rubinetto al parquet, dai sistemi per facciate alla domotica

• Un palinsesto di 6 talk con CFP a cura di DDN e di Fondazione dell’Ordine degli Architetti P.P.C della Provincia di Milano

Tre seminari al giorno, tutti con crediti formativi gli interventi dei protagonisti del settore in un programma appassionante per ascoltare la voce di chi, oltre alla conoscenza teorica, pu condividere con il pubblico esperienze professionali uniche e regalare ispirazione.

• L’esposizione NEXT BEAUTY curata da Baolab

L’agenzia di trend forecasting specializzata nella ricerca sui colori e sui materiali di design negli ambiti dell’abitare, dell’automotive e della tecnologia ci accompagnerà in un viaggio attraverso evoluzione e sensorialità

della materia, il racconto del bello e del suo rapporto col tempo.

• L’installazione STUDIO SULLA LUCE di Raffaele Salvoldi

Un’opera/performance unica nell’ambito del progetto artistico oodArc: l’installazione verticale in mattoncini Kapla è priva di colla o adesivi e verrà allestita durante l’intera durata dell’evento, fno alla spettacolare demolizione alle 16:30 di giovedì 9 novembre.

• TEMPORARY BOOKSTORE

Una selezione di volumi a tema curata dalla libreria specializzata in architettura, design, arte, fotografa ad hoc per questa edizione di A Milano.

• La gallery fotografca PRO ECT WALL a cura di world-architects.com

In mostra 40 opere di membri della piattaforma dedicata al panorama architettonico contemporaneo, da tutto il mondo.

LINK UTILI

Lista espositori:

https://milan.architectatwork.it/it/partecipa/lista-espositori/

Programma talk:

- Mercoledì 8 novembre: https://milan.architectatwork.it/it/speciali-e-seminari/?tab=1

- Giovedì 9 novembre: https://milan.architectatwork.it/it/speciali-e-seminari/?tab=2

Mostra di materiali: https://milan.architectatwork.it/it/speciali-e-seminari/e/10606/next-beauty

Arte:

https://milan.architectatwork.it/it/speciali-e-seminari/e/14904/arte-a-cura-di-raffaele-salvoldi

Bookstore:

https://milan.architectatwork.it/it/speciali-e-seminari/e/66/temporary-bookstore

Gallery fotografca

https://milan.architectatwork.it/it/speciali-e-seminari/e/10597/project-wall-a-cura-di-world-architectscom

ANTICIPATIO_ ARCHITECT@WORK

PRIZE 2024

.ferabolzano.it/klimahouse

Al via la seconda edizione del A

L’8 giugno, in attesa di limahouse a Fiera olzano dal 31 gennaio al 3 febbraio, per il lancio della prossima edizione del premio dedicato all architettura in legno si è svolto l evento dal titolo rogettare in legno: gli esempi del ood Architecture rize nella prestigiosa cornice del Castello del alentino – sede del olitecnico di Torino – con la partecipazione di Thomas Mur e dei giurati prof. Guido Callegari e arch. Mauro Frate e la descrizione di alcuni progetti vincitori del A 2023 – in particolare quelli dell’arch. Luca Compri e dell’arch. Roland aldi –, la presentazione dell’arch. arbara Corsico della mostra presso la Sala Colonne del olitecnico e la presentazione del bando ood Architecture rize ( A ) 2024 by limahouse. Nuovi orizzonti per le costruzioni in legno danno il via alla seconda edizione del ood Architecture rize by limahouse

A fronte del grande successo dell edizione 2023, si conferma anche quest anno il prestigioso premio che celebra il valore architettonico e sostenibile delle opere italiane in legno. Architetti, ingegneri, committenti e innovatori del settore costruttivo sono invitati a candidarsi a questo riconoscimento, istituito da Fiera olzano nell ambito di limahouse – fera internazionale di riferimento nel settore del risanamento e dell’effcienza energetica in edilizia in Italia –, con la partnership scientifca del Politecnico di Torino e l’Università Iuav di Venezia La call sarà aperta dal luglio fno al novembre 2023.

Trampolino di lancio per il futuro delle architetture in legno, l iniziativa si colloca all interno del dibattito europeo che riconosce in questo nobile materiale una risorsa fondamentale per trasformare il settore edilizio in un modello circolare, capace di affrontare la crescente crisi climatica. Il premio, primo a livello nazionale per l architettura in legno, mira infatti a sostenere la ricerca di un processo di progettazione e costruzione in linea con gli urgenti temi internazionali le -

gati al clima e alla sostenibilità. All’edizione 2024, potranno partecipare opere relative a nuove edifcazioni, riqualifcazioni e/o ampliamenti, sopraelevazioni di edifci esistenti, architetture sperimentali, progettate e realizzate sul territorio nazionale – con una particolare attenzione rivolta alla durabilità progettuale e all utilizzo combinato con altri materiali sostenibili appartenenti alle seguenti categorie:

1. Architettura privata: opere destinate all utilizzo privato con qualsiasi connotazione funzionale (edilizia residenziale, terziario, alberghi ecc.)

2. Architettura pubblica: opere destinate all’utilizzo collettivo/pubblico con qualsiasi connotazione funzionale di servizio (edifci scolastici, biblioteche, uffci e sedi di servizi pubblici ecc.)

3. Architettura temporanea: opere destinate a un utilizzo temporaneo. Sono ammesse le opere in legno realizzate in Italia a partire dal 2020 presentate da architetti, ingegneri civili e ambientali e paesaggisti iscritti agli Ordini professionali italiani cos come professionisti di altri aesi che abbiano realizzato progetti sul territorio nazionale su commissione di enti pubblici, privati o di amministrazioni pubbliche. Anche committenti, imprese, startup, A e altri soggetti potranno partecipare, a dimostrazione che le costruzioni all’avanguardia sono il frutto di un lavoro di squadra sinergico e non individuale. Fra le opere che concorreranno alla vittoria del premio, saranno prima selezionati i progetti fnalisti per ogni categoria, i quali successivamente saran-

ANTICIPATIO WOOD ARCHITECTURE
074 075

no sottoposti a una ulteriore valutazione per identifcare i tre progetti vincitori. La giuria potrà attribuire delle menzioni speciali ai progetti fnalisti e una menzione speciale – trasversale rispetto alle tre categorie – che verrà attribuita a un’opera riconducibile a un progettista under «L’ambizione del Wood Architecture Prize è quella di offrire un palco a soluzioni innovative che, attraverso varie forme di espressione architettonica, possano elevare il legno a perno attorno al quale sviluppare l’idea progettuale – ha affermato il nuovo Presidente di giuria, arch. Manuel Benedikter dello Studio enedikter –. Il mio auspicio è di poter conoscere, discutere e premiare progetti portatori di soluzioni concrete alle crescenti problematiche legate al cambiamento climatico e alla sostenibilità nell’edilizia. Questa ricerca, unita alla volontà di rivitalizzare le fliere locali, potrebbe innescare un processo virtuoso alla riscoperta di maestranze e competenze legate al territorio». Oltre all architetto Benedikter, la giuria è composta dall arch. Sandy Attia - Mo usArchitects, dal professor Guido Callegari - olitecnico di Torino, dall arch. Mauro Frate - Studio MFA Architects e già docente a contratto Iuav, dal professor Roberto GargianiE FL - Ecole olytechnique F d rale Lausanne, da Luca Gibello – irettore de Il Giornale dell Architettura e dal professor Paolo Simeone - olitecnico di Torino. «A seguito dell’interesse suscitato dalla prima edizione del Premio, con una partecipazione di ben 70 progetti candidati, il Wood Architecture Prize 2024 intende

proseguire l’opera di valorizzazione di esperienze progettuali maturate in Italia negli ultimi anni grazie alle competenze di professionisti e imprese – ha affermato Thomas Mur, Direttore di Fiera Bolzano –. L’iniziativa, che vede l'alleanza strategica con gli ordini professionali e con autorevoli media partner, ha saputo creare solide connessioni e una community con i maggiori esperti del settore». I vincitori verranno annunciati durante limahouse, che si terr dal gennaio al 3 febbraio 2024: i loro progetti saranno valorizzati con un esposizione fotografca itinerante a livello nazionale e con la partecipazione degli autori delle opere premiate in qualità di speaker alla manifestazione “ aiting for ood Architecture rize 2025” e ad altri eventi organizzati o partecipati da Fiera olzano, sinergici al mondo del legno sia a livello nazionale che all’estero. I progetti premiati otterranno inoltre visibilità su riviste e strumenti di comunicazione di limahouse e Fiera olzano ( eb e canali social) e dei media-partner. Il vincitore della menzione Under 35 avrà diritto a un reportage fotografco della propria opera a cura dello studio fotografco ar ara Corsico ( .barbaracorsico.com). Media partner dell iniziativa: Professione Architetto, Struttura Legno e il Network professionale Partner24ORE del Gruppo 24 ORE. Tutte le informazioni e candidature: .ferabolzano.it/it/klimahouse/candidatura- ood-architecture-prize

Alcuni momenti dell'evento organizzato da Fiera Bolzano dal titolo "Progettare in legno: gli esempi del Wood Architecture Prize" nella prestigiosa cornice del Castello del Valentino - Politecnico di Torino – l'8 giugno scorso.

THE SECOND EDITION OF THE WAP KICKS OFF

On 8 une, hile aiting for limahouse at Fiera olzano from 31 anuary to 3 February, the event entitled esigning in ood: the e amples of ood took place to launch the ne t edition of the a ard dedicated to ooden architecture. Architecture rize in the prestigious setting of the alentino Castle - home of the olytechnic of Turin - ith the participation of Thomas Mur and the prize commision prof. Guido Callegari and arch. Mauro Frate and the description of some inning pro ects of the A 2023 - in particular those of the architect. Luca Compri and the architect. Roland aldi –, the presentation of the architect. arbara Corsico of the e hibition at the Sala Colonne of the olytechnic and the presentation of the ood Architecture rize ( A ) 2024 by limahouse call. Ne horizons for ooden buildings kick off the second edition of the ood Architecture rize by limahouse, follo ing the great success of the 2023 edition, e continue to celebrate the architectural and sustainable value of Italian ooden orks. Architects, engineers, clients and innovators in the construction sector are invited to apply for this recognition, established by Fiera olzano as part of limahouse - the international reference fair in the sector of renovation and energy effciency in buildings in Italy -, ith the partnership science of the olytechnic of Turin and the Iuav University of enice. The call ill be open from 20 uly until 15 November 2023.

ANTICIPATIO_ WOOD ARCHITECTURE PRIZE 2024

INDEX

SETTEMBRE 2023

STRUTTURALEGNO ▼ COLLE E ADESIVI▼

COLLANTI CONCORDE S.R.L.

COLLE SPECIALI PER APPLICAZIONI INDUSTRIALI Via Schiaparelli, 12 – Zona Industriale 31029 Vittorio Veneto (Treviso) , Italy

Tel +39 0438 912121 – Fax +39 0438 501822 info@collanticoncorde.it www.collanticoncorde.it

Collanti Concorde produce l’adesivo poliuretanico “XILOBOND T” certificato secondo la norma EN 15425 e con “Attestato di Conformità” dell’MPA di Stoccarda del 13.02.2015. Lo XILOBOND T è idoneo per produzione di legno lamellare per prodotti quali KVH, bilama, trilama e per pannellature portanti strutturali tipo XLAM; per strutture lignee in bioedilizia, costruzione edifici prefabbricati, case clima; per l’incollaggio di specie legnose termotrattate (tipo THERMOWOOD). Collanti Concorde produce altresì una vasta gamma di colle poliuretaniche, viniliche, ureiche, polimeri innovativi, hot-melt e hot-melt PUR.

▼ COMMERCIANTI▼

▼ EDILIZIA▼

Valle d’Anterselva 1

39030 Rasun-Anterselva (Bolzano)

tel +39/0474 496128 r.a. - fax +39/0474 496192

info@holzhof-prugger.com

www.holzhof-prugger.com

Legname per edilizia e imballaggio. Travi lamellari. Produzione listelli e morali abete.

di BRUGNARA & CHISTÈ s.r.l.

Centro taglio tetti e case in legno - Vendita legname 38015 LAVIS (Trento) - Via Stazione F.S., 4 tel +39/0461 246408 info@fal.tn.it - www.fal.tn.it

Punto di riferimento per la vendita di legname all'ingrosso e al dettaglio - Nuovo Centro Taglio Hundegger K2-Industry 5 ASSI - Linea di finitura travi automatizzata - Levigatrice e impregnatrice travi - Ampio Magazzino e XLAM in pronta consegna - Materiale per edilizia - 3 centri taglioProgettazione e Consulenza - Trasporto in cantiere.

Rockwool Italia s.p.a.

Via Antonio Canova, 12 - 20145 Milano tel +39/02 34613 - fax +39/02 34613321 inforockwool@rockwool.it www.rockwool.it

Lana di roccia per isolamento termo-acustico.

srl

Compagnia Del Legno s.p.a.

Viale della Vittoria, 245 - 31029 Vittorio Veneto (TV) tel +39/0438 940433 cdl.info@cdlegno.com - www.cdlegno.com

Una realtà nata tra i faggi del bosco del Cansiglio che si è innamorata del profumo, delle venature e dei nodi del legno: COMPAGNIA DEL LEGNO si caratterizza sul territorio come agenzia d’importazione legname proveniente da varie parti del mondo. È possibile trovare il legno più adatto al settore di applicazione: segati di conifera europei, segati nord e sud americani, lamellari per serramenti, pannelli multistrato, mdf, nonchè LVL e pavimenti prefiniti.

Via 4 Novembre 71

38030 Roverè della Luna (Trento) tel +39/0461 658553 - fax +39/0461 658548 info@segnalegnami.it - segnalegnami@mailboxpec.it www.segnalegnami.it

Segheria, travi Uso Trieste, travi Uso Fiume, travi Spigolati e Torniti in Abete, Larice e Rovere, LamellariPiallatura e spazzolatura travi e tavolatoProgettazione e taglio strutture in legno - ESSICCAZIONE TECNICA DELLE TRAVI.

hsbITALIA di Pallaver geom. Andrea

Via San Giovanni Nepomuceno, 5 - 38121 Trento tel. +39/0461 983044 - fax +39/0461 1631078 www.hsbcad.it - www.hsblabs.com

Software su base Autocad per progettazione 3D di costruzioni in legno e comando centri taglio CNC.

Di Nunzio Legnami s.r.l.

Timber Agency

C.so Svizzera 185 - Int. 003 - P. 2 - Sc. D

10149 TORINO

tel +39/011 7509020 r.a. - fax +39/011 7509005 info@dinunziolegno.it - www.dinunziolegno.it

Rappresentanze: segati resinosi e di latifoglie • travi lamellari • KVH - BILAMA • pannelli per casseforme

• perline • tronchi • Travi U.T • compensati • X-LAM

• elementi per pallets • pellet.

Abies Engineering s.r.l.

Piazza Aldo Moro, 16 - 35030 Rubano (Padova) tel. +39/049 8979095 - fax +39/049 8984196 info@abieseng.com - www.abieseng.com

Il primo software italiano interamente dedicato al calcolo e alla verifica di strutture in legno.

Imola Legno s.p.a. Socio Unico

Sede legale e stabilimento:

Via Don Luigi Sturzo 10 - 40026 IMOLA (BO) tel +39/0542 630411 - fax +39/0542 640418

Deposito di Molfetta:

Via dell’Arte Bianca 4 - 70056 MOLFETTA (BA) tel +39/080 3385825 - fax +39/080 3385826 info@imolalegno.com - www.imolalegno.com

CONCRETE s.r.l.

Via della Pieve, 19 - 35121 Padova tel. +39/049 8754720 - mob. +39/3357556114 commerciale@concrete.it - www.concrete.it

IMPIANTI DI ESSICCAZIONE E VAPORIZZAZIONE Da 40 anni al vostro servizio

Via G. Marconi 30 - 31010 Maser (Treviso)

tel +39/0423 923170 - fax +39/0423 546170 mart.legno@libero.it - www.martignagolegno.it

Latifoglie europee ed americane. Legnami Esotici. Resinosi. Tronchi e boules. Lamellari per serramenti.

Sismicad Legno

Il software semplice e completo per il calcolo sismico di strutture in legno con le norme italiane. Gestisce pareti in legno X-LAM, Platform-Frame nonché con altre tecnologie e pannelli dotati anche di fogli di controvento in OSB, gessofibra etc. Prevede collegamenti tipo Holddown e particolari condizioni di vincolo non-lineari. Tratta anche verifiche di colonne, travi, arcarecci e delle loro giunzioni con piastre in acciaio o alluminio e viti, chiodi o bulloni. Tutte le verifiche prevedono relazioni tecniche e disegni.

Il software per i moderni professionisti del calcolo strutturale proposto da chi tratta questi strumenti da venticinque anni.

HOLZMATIC Engineering s.r.l.

Zona Artigianale Rasun, 19

39030 RASUN/ANTERSELVA (Bolzano) tel +39/0474 496552 • fax +39/0474 498358

holzmatic@rolmail.net - www.holzmatic.it

▼ SOFTWARE▼ ▼ LEGNAMI▼
legnami software
▼ TECNOLOGIE▼

INDEX STRUTTURA

SETTEMBRE 2023

LEGNO

Hundegger Italia s.r.l.

Via Marie Curie, 15 39100 Bolzano

tel +39/0471 823630 • fax +39/0471 812415 info@hundegger.it - amministrazione@hundegger.it www.hundegger.de

Già da molti anni, l'azienda Hundegger è leader di mercato nel settore dei centri di taglio CNC con una quota di mercato che supera il 90 percento.

Le macchine universali e flessibili vengono utilizzate per tutte le parti in legno di carpenteria, lavorazioni, costruzioni con telai in legno, costruzioni a tronchi d'albero, costruzioni prefabbricate, fino alla produzione di attrezzi per parco giochi.

Innovativa - competente - orientata al cliente.

Per mezzo della loro struttura modulare, le macchine CNC possono essere adattate rapidamente e perfettamente alle specifiche richieste del cliente. L'alta precisione e qualità degli impianti completamente automatici incrementano il rendimento e la competitività di un'azienda di carpenteria in legnodalle piccole alle grandi imprese.

tecnologie

PRIBO s.r.l.

Via Galizia, 12 38087 SELLA GIUDICARIE (Trento)

tel +39/0465 901945 - fax +39/0465 901959

info@pribo.it - www.pribo.it

Progettazione e fornitura macchine e impianti per la lavorazione del legno.

Scortecciatrici - Decatastatori - Accatastatori. Tecnologie per segheria – Piallatrici per legno rotondo – Vasche per immersione per pacchi/tavole – Rusticatrici – Macchine per la produzione di truciolo per lettiere di animali – Macinatori per scarti –Canali vibranti – Tavoli di montaggio per pareti in legno.

ADLER Italia s.r.l.

Via per Marco, 12/D

38068 Rovereto (Trento)

telefono +39/0464 425308 - fax +39/0464 480957

info@adler-italia.it - www.adler-italia.it

Con 630 dipendenti, ADLER è il principale produttore austriaco di vernici, pitture e protettivi per il legno. Fondata nel 1934, l'azienda a conduzione familiare rifornisce ogni anno con 21.000 tonnellate di vernice clienti in oltre 30 paesi in tutto il mondo. È inoltre la prima azienda del settore ad essere 100% neutrale per il clima dal 2018. In più, ha ridotto al minimo il suo impatto ambientale attraverso diverse misure: compensa le emissioni residue inevitabili con certificati di protezione del clima riconosciuti e contribuisce al finanziamento di nuovi progetti di protezione del clima.

▼ VERNICI
PER LEGNO

Riduzione dei costi, risparmio di tempo, affidabilità della progettazione e qualità superiore: con il nostro strumento di supporto alla progettazione, tutto questo è realizzabile. È sufficiente scaricare i componenti nei formati digitali adatti e integrarli al vostro sistema BIM o CAD. Il vostro progetto funzionerà con il supporto alla progettazione di EGGER. Registratevi e provate il vostro nuovo strumento di lavoro: to.egger.link/progettazione-digitale

Ci piace quando i vostri piani funzionano

Dove alcuni cedono, altri resistono.

Connettori resistenti, adatti a materiali diversi e a ogni tipo di ambiente, anche il più aggressivo.

Giocare una partita così ha infinite mosse e nuove soluzioni che siamo pronti a darti.

Fissa le regole della costruzione insieme a noi, sfoglia il catalogo online

rothoblaas.com

Turn static files into dynamic content formats.

Create a flipbook
Issuu converts static files into: digital portfolios, online yearbooks, online catalogs, digital photo albums and more. Sign up and create your flipbook.