TUINHUIZEN CATALOGUS 2020





![]()





De eerste zonnestralen die op je huid aan het dansen zijn, vogeltjes die je toe fluiten en de geur van vers gemaaid gras?
En hoe proeft de regen ook alweer? Het leven buiten is leven met al je zintuigen. Het prikkelt, stimuleert en inspireert.
Een leven buiten leven.

Uw favoriete blokhut bestellen is heel eenvoudig. Bij de keuze van uw blokhut of tuinhuis kunt u duidelijk aangeven welke extra opties; zoals een houten vloer, afwateringsprofiel en dakbedekking u eventueel wilt bijbestellen.
Wij laten niets aan het toeval over. Nadat we met u een afspraak gemaakt hebben kunnen wij de blokhut bij u thuis afleveren.
Vraag naar de voorwaarden bij uw dealer.
Het bouwen van een blokhut vereist geen ‘hogere klusacademie’.
De tekeningen zijn altijd helder en logisch opgebouwd. Stap voor stap wordt u door het gehele traject geleid. Speciaal gereedschap heeft u hierbij niet nodig. Snel, met gemak en met trots laat u uw blokhut verrijzen.
Mocht u het tuinhuis toch liever door een montageploeg op laten bouwen ? Vraag dan naar de mogelijkheden bij uw dealer.
Hout leeft. Als natuurproduct kan hout miniem kromtrekken en scheurtjes vertonen onder invloed van de weersomstandigheden. Dat is normaal en het hoort bij een natuurproduct. Het geeft uw blokhut zelfs die natuurlijke ‘look’. Juist omdat wij overtuigd zijn van de kwaliteit van onze blokhutten en tuinhuisjes geven wij op tuinhuisjes met een wanddikte vanaf 28mm vijf jaar garantie op constructie- en materiaalfouten (uitgezonderd hang en sluitwerk), omdat wij van mening zijn dat u op elk moment ongestoord moet kunnen genieten. Zo zit u altijd goed!
tuinhuizen & chalets








pagina 04
Algemene informatie
pagina 05
Verfsysteem informatie
pagina 8
Tuinhuizen & Chalets
pagina 30
Garages
pagina 33
Kapschuren & Lounge
pagina 52
Bergingen & Tuinhuizen
Elementbouw
• Wandbalken van massief vurenhout: 18, 28, 34 of 40mm dik, voorzien van messing en groef (34mm en 40mm wandbalken met dubbele messing en groef), vierzijdig geschaafd en zorgvuldig uitgefreesd.
• Inclusief dakhout, dikte van 15mm met messing en groef.
• Inclusief dak- en gevellijsten.
• Dakbedekking : zwart asfaltpapier. Deze standaard meegeleverde dakbedekking is een basis laag. Dit betreft een bitumen
• Voorzien van kunststof beglazing of echt glas en decoratieve raamverdeling.
• Deuren met cilinderslot of opbouwslot (18mm).
• Tuinhuizen 28-34-40mm worden geleverd met cilinderslot.
Drukimpregnatie is een hout-verduurzamingsmethode waarbij onder vacuüm en druk een schimmel- en insect werend middel (genaamd Tanalith E) aan het hout wordt toegevoegd. Dit geschiedt middels een moderne techniek waarbij uw tuinhuis volledig wordt behandeld waardoor de levensduur wordt verlengd. Over het behandelingsproces : het hout wordt in een grote vloeistofdichte tank geplaatst, vervolgens wordt de tank afgesloten en vacuüm gezogen. Daarna wordt de impregneervloeistof binnengelaten en dit wordt onder druk in het hout geperst. Vervolgens wordt de vloeistoftank leeggelaten en wordt deze vacuüm getrokken waarbij het hout wordt gezuiverd van overtollige vloeistof. Na dit proces wordt het hout uit de tank gehaald en droogt dit op natuurlijke wijze een korte tijd na. Vervolgens wordt het tuinhuis verpakt en bij u geleverd. Het impregneren is van uw tuinhuis is geen eind- of decoratieve afwerking. Het tuinhuis wordt dan wel beschermd tegen schimmel, houtrot en insecten, maar niet tegen vocht en UV straling. De olijfgroene kleur van de impregnatie zal na ver-
dakbedekking voor tijdelijke toepassing. Voor een meer permanente afwerklaag adviseren wij een upgrade naar dakshingles of EPDM folie.
• Vloer is optioneel (tenzij anders aangegeven): Vloer is inclusief drukgeïmpregneerde vloerbalken 4x6 cm
• Vloerhout dikte 15 mm met messing en groef.
• 28,34 en 40 mm stapelbouw blokhutten worden geleverd inclusief houten dakverankeringset.
• Alle deuren en ramen worden compleet inclusief hang- en sluitwerk geleverd.
• Alle ramen zijn naar binnendraaiend.
loop van tijd verkleuren naar een grijze teint. Wij adviseren uw geïmpregneerde tuinhuis binnen een half jaar na plaatsing (gedurende een droge periode) rondom te behandelen met een hiervoor geschikte beits of verf. Extra aandacht is nodig voor de binnen en buitenzijde van de tuinhuisdeuren. Het verven van uw tuinhuis biedt een bescherming tegen vocht, UV-straling en beperkt de werking (krimpen en uitzetten) van het hout. Vraag verfadvies aan uw dealer.

Impregneren heeft zeker voordelen maar ook enkele nadelen:
+ langere levensduur van uw tuinhuis
+ een zeer goede bescherming tegen schimmels, insecten en houtrot
+ natuurlijke kleur
— meer krimp en uitzetting, waarbij krimp- en droogte(kop)scheuren binnen kwaliteitsnormen vallen kans op kromtrekken van hout en deuren (de toelaatbare tolerantie is zolang deur sluitend blijft) montage kan door bovenstaande punten soms wat lastiger zijn
U kunt er voor kiezen om uw Tuinhuis in een geverfde uitvoering te bestellen.
We behandelen uw tuinhuis middels Drywood Woodstain VV.
Dit is een watergedragen, semi-filmvormend, transparant houtbeschermingsproduct op basis van oliegemodificeerde acrylaat hars. De verf dringt diep in het hout, is waterafstotend en vanwege het zijdematte karakter blijft de mooie houtstructuur licht zichtbaar.
De dak schrootjes worden 1-zijdig behandeld en alle wanden overige delen worden rondom behandeld. Omdat alle bouwdelen al voor montage zijn voorzien van de verflaag is uw tuinhuis duurzaam beschermd. Een groot voordeel van deze rondom behandeling is de bescherming van de kwetsbare plekken zoals de mes en groef van de wanddelen, de hoekverbindingen en zaagkanten. Hier kunt u na opbouw van




Deuren, ramen en lijstwerk standaard in créme wit!
het tuinhuis namelijk zelf niet meer bij komen. De verflaag zorgt voor bescherming tegen schadelijke weersinvloeden, Uv-straling, insecticiden, schimmel en blauwschimmel. U kunt kiezen uit 4 eigentijdse kleurcombinaties, hierbij worden alle wanddelen van uw tuinhuis in de door u gekozen basiskleur gespoten en alle overige onderdelen in crème wit. Zie hiervoor ook de foto’s in deze catalogus. Middels deze behandeling is uw tuinhuis voor circa 3 tot 5 jaar beschermd. (Let op : tuinhuisvloeren kunnen niet worden gecoat). Uiteraard dient u de verflaag regelmatig te controleren en schoon te houden. Voor regulier onderhoud kunt u verf via uw dealer nabestellen. Om kleine defecten aan het oppervlak bij de montage te herstellen, hebben wij van elke kleur een 500 cc flacon verf aan het bouwpakket toegevoegd.
Samengevat:
• 4-zijdig behandeld tuinhuis.
• 4 kleuren om uit te kiezen.
• Deuren en ramen rondom gecoat in crème/wit.
• Gevellijstwerk, afdeklijsten en balkhout 4-zijdig gecoat in crème/wit.
• Milieuvriendelijk en geurarm verfproduct.
• Beschutting tegen schadelijke weersinvloeden, Uv-straling, insecticiden, schimmel en blauwschimmel.
• Meegeleverd : herstelverf 500 cc in alle kleuren.
• Voor onderhoud is de verf op kleur te bestellen.
• Tuinhuis vloeren kunnen niet worden gecoat.

informatie
Hout is een natuurproduct en is daarom onderhevig aan bepaalde eigenschappen als krimp en uitzetting. Omstandigheden zoals vocht en droogte kunnen er voor zorgen dat bij de blokhut scheuren en kieren kunnen optreden.
Ondanks onze uiterste zorgvuldigheid en aandacht voor kwaliteit bij het produceren van uw blokhut kunnen er toelaatbare afwijkingen optreden. Dit heeft echter geen constructieve gevolgen voor uw blokhut.


TIP:
Wij raden u aan om uw tuinhuis zowel van binnen als van buiten te behandelen. Vraag hierna bij uw dealer
Pas uw blokhut aan naar uw wens!
U kunt uw blokhut of tuinhuis op elk moment precies zo versieren, opfrissen of uitbreiden zoals u wilt. Dit is natuurlijk dé manier om uw tuinhuis zo aan te kleden dat het resultaat precies uw gevoel weerspiegelt.
U kunt uw persoonlijke smaak in uiteenlopende manieren uitdrukken. Van de kleur van de wanden, een houten terras en fraai bewerkte raamluiken tot kleurrijke shingles, een afdakje of passende bloembakken. En dat is nog lang niet alles.
Natuurlijk kunt u met een zandbak erbij ook een hoekje inrichten voor de kinderen. Of u kunt de blokhut inrichten als atelier, studeerkamer of logeerverblijf. Met onze blokhutten kunt u werkelijk alle kanten uit. Dat betekent ook, als u het hout goed behandelt, dat u er jaren plezier van zult hebben. Uw blokhut naar uw wens!
Een overkapping geeft u ruimte
Met een boek en een goed glas wijn in de luie stoel onder de overkapping? Of een sprankelende conversatie met uw beste vrienden?
Met een boek en een goed glas in de luie stoel onder de overkapping? Of een kelende conversatie met uw beste vrienden?
Een tuinhuis met overkapping geeft u alle ruimte om in stijl rustig achterover te leunen.
Een tuinhuis met overkapping geeft u ruimte om in stijl rustig achterover te leunen.
Natuurlijk kunt u de overkapping ook benutten door er allerhande tuinattributen beschut weg te zetten.
Natuurlijk kunt u de overkapping ook benutten door er allerhande tuinattributen beschut weg te zetten.


Onze tuinhuizen worden meestal geleverd met een standaard dakbedekking van zwartgrijs asfaltpapier. Wilt u een mooiere dakbedekking met een langere levensduur, kies dan voor shingles. Shingles voor het dak kunt u extra bestellen. Het asfaltpapier dient dan als onderlaag. De shingles zijn verkrijgbaar in zwart, rood en groen.
Een houten blokhutvloer voorkomt problemen met optrekkend vocht. Een blokhutvloer bestaat uit drukgeïmpregneerde onderbalken waarop blanke vloerplanken (met messing en groef) bevestigd worden.
De funderingsbalken adviseren wij als u geen blokhutvloer plaatst. Funderingsbalken dient u te plaatsen onder de eerste wandbalklaag van uw tuinhuis. Deze zorgen voor een goede afwatering van regenwater en geven bescherming tegen optrekkend vocht.
Regenwater afvoeren verloopt perfect met een dakgootset bestaande uit dakgoten, afvoerpijpen en bevestigingsmaterialen. De set is geschikt voor een dakgoot en afvoer aan beide zijden van uw blokhut.

De dakverankering aan de binnenkant van uw blokhut, verbindt de gevelpunt van uw tuinhuis aan de onderste wandbalklaag. Dit zet uw dak vast aan de onderste balk van de blokhut wat de kans op stormschade vermindert.
De dakverankering kunt u uitsluitend toepassen bij huisjes met het blokhut-stapelbouwsysteem.
De dakverankering wordt bij 28mm, 34mm en 40mm stapelbouw blokhutten vaak standaard meegeleverd.
Verduurzaam uw blokhut door de geïmpregneerde versie. U heeft de mogelijkheid om uw blokhut in de kleur groen te laten impregneren. Dit geeft niet alleen een extra tintje aan uw blokhut maar bevordert tevens een langere levensduur.
Verduurzaam uw blokhut door uw blokhut, tuinhuis of overkapping trendy kleur te geven!
U heeft de mogelijkheid uit 4 moderne tinten; ‘Carbon grey’ (antraciet), ‘Platinum grey’ (lichtgrijs), ‘Pigeon blue’ (lichtblauw) en ‘Jungle green’ . Dit geeft niet alleen een extra dimensie aan uw blokhuit maar bevordert tevens een langere levensduur. Het coaten gebeurt onder ideale omstandigheden in onze moderne spuitlijn.


dat door het open raam naar


Specificaties Fredrik
Artikelnummer:
Houtsoort: onbehandeld noord-europees vuren
Wanddikte: 28mm
Funderingsmaat (bxd):
Buitenmaat (bxd):
Dakmaat (bxd):
Deur afmeting:
Raam afmeting:
Glas:
Dakbedekking:
Prijzen & opties 2020


Specificaties Mikkel
Artikelnummer: 1015432
Houtsoort: onbehandeld noord-europees vuren
Wanddikte: 28mm
Funderingsmaat (bxd):
Buitenmaat (bxd):
Dakmaat (bxd):
Deur afmeting:
Raam afmeting:
cm
Prijzen & opties 2020
Uw Tuinhuis verduurzaamd middels groene druk-impregnatie :
Uw Tuinhuis behandeld in trendkleuren:
Glas: enkel glas 4mm
Dakbedekking: incl. asfaltpapier


Specificaties Indi 175
Artikelnummer:
Houtsoort: onbehandeld noord-europees vuren
Wanddikte: 28 mm
Funderingsmaat (bxd):
Buitenmaat (bxd):
Dakmaat (bxd):
Deur afmeting:
Raam afmeting:
Glas:
Dakbedekking: incl. asfaltpapier
Prijzen & opties 2020
Uw Tuinhuis behandeld in trendkleuren:


Specificaties Indi 230
Artikelnummer:
Houtsoort: onbehandeld noord-europees vuren
Wanddikte: 28 mm
Funderingsmaat (bxd):
Buitenmaat (bxd):
Deur afmeting:
Raam afmeting: -
Glas: enkel glas 4 mm
Dakbedekking: incl. asfaltpapier
Prijzen & opties 2020
Indi 230 (onbehandeld vuren)
Uw Tuinhuis verduurzaamd middels groene druk-impregnatie :
Indi 230 geïmpregneerd (olijfgroen)
Uw Tuinhuis behandeld in trendkleuren:
Indi
:

Groen geïmpregneerd

Specificaties Ingo 175
Artikelnummer: 1009515
Houtsoort: onbehandeld noord-europees vuren
Wanddikte: 28 mm
Funderingsmaat (bxd): 230x175 cm
Buitenmaat (bxd): 250x195 cm
Dakmaat (bxd): 262x195 cm
Deur afmeting: 149.4 x 185 cm
Raam afmeting:
Glas: enkel glas 4 mm
Dakbedekking: incl. asfaltpapier
Prijzen & opties 2020
Uw Tuinhuis verduurzaamd middels groene druk-impregnatie : 1009579 Ingo 175 geïmpregneerd (olijfgroen)
Uw Tuinhuis behandeld in trendkleuren:


Specificaties Ingo 230
Artikelnummer:
Houtsoort: onbehandeld noord-europees vuren
Wanddikte: 28 mm
Funderingsmaat (bxd): 230x230 cm
Buitenmaat (bxd): 250x250 cm
Dakmaat (bxd): 262x250 cm
Deur afmeting: 149.4 x 185 cm
Raam afmeting: -
Glas: enkel glas 4 mm
Dakbedekking: incl. asfaltpapier
Prijzen & opties 2020 1009516 Ingo 230 (onbehandeld vuren)
Uw Tuinhuis verduurzaamd middels groene druk-impregnatie : 1009580 Ingo 230 geïmpregneerd (olijfgroen) € 1.159,00
Uw Tuinhuis behandeld in trendkleuren: 1009644 Ingo 230 Platinum Grey
Ingo 230 Carbon Grey
Ingo 230 Pigeon Blue
Ingo 230 Jungle Green
:
1.569,00


Specificaties Talinn
Artikelnummer:
Houtsoort: onbehandeld noord-europees vuren
Wanddikte: 28mm
(bxd):
Deur afmeting: 125,1x173,6 cm
Raam afmeting:
Prijzen & opties 2020
Tuinhuis verduurzaamd middels groene druk-impregnatie :
Uw Tuinhuis behandeld in trendkleuren:

Nadia Platinum Grey

Specificaties Nadia 175
Artikelnummer: 1009526
Houtsoort: onbehandeld noord-europees vuren
Wanddikte: 28 mm
Funderingsmaat (bxd): 275x175 cm
Buitenmaat (bxd): 295x195 cm
Dakmaat (bxd): 295x213 cm
Deur afmeting: 149.4 x 185 cm
Raam afmeting: -
Glas: enkel glas 4 mm
Dakbedekking: incl. asfaltpapier
Prijzen & opties 2020
Uw Tuinhuis verduurzaamd middels groene druk-impregnatie : 1009590 Nadia 175 geïmpregneerd (olijfgroen)
Uw Tuinhuis behandeld in trendkleuren:


Specificaties Nadia 230
Artikelnummer:
Houtsoort: onbehandeld noord-europees vuren
Wanddikte: 28 mm
Funderingsmaat (bxd):
Buitenmaat (bxd):
cm
cm
Dakmaat (bxd): 295x269 cm
Deur afmeting: 149.4 x 185 cm
Raam afmeting: -
Glas: enkel glas 4 mm
Dakbedekking: incl. asfaltpapier
Prijzen & opties 2020 1009527 Nadia 230 (onbehandeld vuren)
Uw Tuinhuis verduurzaamd middels groene druk-impregnatie : 1009591 Nadia 230 geïmpregneerd (olijfgroen) € 1.265,00
Uw Tuinhuis behandeld in trendkleuren: 1009655 Nadia 230 Platinum Grey
1009687 Nadia 230 Carbon Grey
1009719 Nadia 230 Pigeon Blue
1022455 Nadia 230 Jungle Green
:


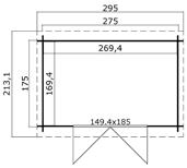
Specificaties Nadia 275
Artikelnummer: 1009528
Houtsoort: onbehandeld noord-europees vuren
Wanddikte: 28 mm
Funderingsmaat (bxd): 275x275 cm
Buitenmaat (bxd): 295x295 cm
Dakmaat (bxd): 295x314 cm
Deur afmeting: 149.4 x 185 cm
Raam afmeting:
Glas: enkel glas 4 mm
Dakbedekking: incl. asfaltpapier
Prijzen & opties 2020
Uw Tuinhuis verduurzaamd middels groene druk-impregnatie : 1009592 Nadia 275 geïmpregneerd (olijfgroen)
Uw Tuinhuis behandeld in trendkleuren: 1009656 Nadia 275 Platinum Grey


Specificaties Nina 230
Artikelnummer: 1009522
Houtsoort: onbehandeld noord-europees vuren
Wanddikte: 28 mm
Funderingsmaat (bxd): 275x230 cm
Buitenmaat (bxd): 295x250 cm
Dakmaat (bxd): 307x250 cm
Deur afmeting: 77.5 x 185 cm
Raam afmeting: draai / kantelraam 68.5 x 88.2 cm
Glas: enkel glas 4 mm
Dakbedekking: incl. asfaltpapier
Prijzen & opties 2020 1009522 Nina 230 (onbehandeld vuren)
1.165,00 Uw Tuinhuis verduurzaamd middels groene druk-impregnatie : 1009586 Nina 230 geïmpregneerd (olijfgroen)
Uw Tuinhuis behandeld in trendkleuren: 1009650 Nina 230 Platinum Grey
1.829,00 1009682 Nina 230 Carbon Grey
Nina 230 Pigeon Blue
1.829,00
1.829,00 1022448 Nina 230 Jungle Green € 1.829,00
Opties :
OLP Vloer


Specificaties Nina 275
Artikelnummer:
Houtsoort: onbehandeld noord-europees vuren Wanddikte: 28 mm
Funderingsmaat (bxd): 275x275 cm
Buitenmaat (bxd): 295x295 cm
Dakmaat (bxd): 307x295 cm
Deur afmeting: 77.5 x 185 cm
Raam afmeting: draai / kantelraam 68.5 x 88.2 cm
Glas: enkel glas 4 mm
Dakbedekking: incl. asfaltpapier
Prijzen & opties 2020
Nina 275 (onbehandeld vuren)
Uw Tuinhuis verduurzaamd middels groene druk-impregnatie :
Nina 275 geïmpregneerd (olijfgroen)
Uw Tuinhuis behandeld in trendkleuren:


Specificaties Norah 230
Artikelnummer: 1009524
Houtsoort: onbehandeld noord-europees vuren
Wanddikte: 28 mm
Funderingsmaat (bxd):
cm
Buitenmaat (bxd): 295x250 cm
Dakmaat (bxd):
Deur afmeting:
Raam afmeting:
Glas: enkel glas 4 mm
Dakbedekking: incl. asfaltpapier
Prijzen & opties 2020
Uw Tuinhuis verduurzaamd middels groene druk-impregnatie :
Uw Tuinhuis behandeld in trendkleuren:


Specificaties Norah 275
Artikelnummer:
Funderingsmaat (bxd):
Buitenmaat (bxd): 295x295 cm Dakmaat (bxd): 307x295 cm
Deur afmeting: 149.4 x 185 cm
Raam afmeting: -
Glas: enkel glas 4 mm
Dakbedekking:
Prijzen & opties 2020
Norah 275 (onbehandeld vuren)
Uw Tuinhuis verduurzaamd middels groene druk-impregnatie :
Uw Tuinhuis behandeld in trendkleuren:


Specificaties Amira 230
Artikelnummer: 1009512
Houtsoort: onbehandeld noord-europees vuren
Wanddikte: 28 mm
Funderingsmaat (bxd):
cm
Buitenmaat (bxd): 400x250 cm
Dakmaat (bxd):
Deur afmeting: 149.4 x 185 cm
Raam afmeting: draai / kantelraam 68.5 x 88.2 cm
Glas: enkel glas 4 mm
Dakbedekking: incl. asfaltpapier
Prijzen & opties 2020
Amira 230 (onbehandeld vuren)
1.365,00 Uw Tuinhuis verduurzaamd middels groene druk-impregnatie :
Uw Tuinhuis behandeld in trendkleuren:

Deze hut kan ook gespiegeld opgebouwd worden! !

Specificaties Amira 275
Artikelnummer:
Houtsoort: onbehandeld noord-europees vuren
Wanddikte: 28 mm
Funderingsmaat (bxd):
Buitenmaat (bxd):
(bxd):
Deur afmeting:
cm
x 185 cm
Raam afmeting: draai / kantelraam 68.5 x 88.2 cm
Glas: enkel glas 4 mm
Dakbedekking: incl. asfaltpapier
Prijzen & opties 2020
Uw Tuinhuis verduurzaamd middels groene druk-impregnatie :
Uw Tuinhuis behandeld in trendkleuren:


Specificaties Timian 230
Artikelnummer:
Houtsoort: onbehandeld noord-europees vuren
Funderingsmaat (bxd):
Buitenmaat (bxd): 400x250 cm
Dakmaat (bxd): 400x255 cm
Deur afmeting:
Raam afmeting:
cm
cm
Glas: enkel glas 4mm
Dakbedekking: incl. asfaltpapier

Arvid 300 Groen geïmpregneerd

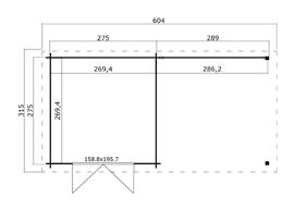
Specificaties Arvid 300
Artikelnummer: 1022492
Houtsoort: onbehandeld noord-europees vuren
Wanddikte: 28 mm
Funderingsmaat (bxd): 380x300 cm
Buitenmaat (bxd): 400x320 cm
Dakmaat (bxd): 417x340 cm
Deur afmeting: 149,4x195,7 cm
Raam afmeting: draai / kantelraam 68,5x88,2 cm
Glas: enkel glas 4mm
Dakbedekking: incl. asfaltpapier
Prijzen & opties 2020 1022492 Arvid 300 (onbehandeld vuren) € 1.595,00
Uw Tuinhuis verduurzaamd middels groene druk-impregnatie : 1022493 Arvid 300 geïmpregneerd (olijfgroen) € 1.925,00
Uw Tuinhuis behandeld in trendkleuren: 1022494 Arvid 300 Platinum Grey
2.599,00 1022495 Arvid 300 Carbon Grey
2.599,00 1022496 Arvid 300 Pigeon Blue € 2.599,00 1022497 Arvid 300 Jungle Green € 2.599,00
Opties :


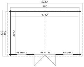
Specificaties Udo 300
Artikelnummer: 1009535
Houtsoort: onbehandeld noord-europees vuren
Wanddikte: 28 mm
Funderingsmaat (bxd): 480x300 cm
Buitenmaat (bxd): 500x320 cm
Dakmaat (bxd): 522x320 cm
Deur afmeting: 149.4 x 185 cm
Raam afmeting: draai / kantelraam (2x) 68.5 x 88.2 cm
Glas: enkel glas 4 mm
Dakbedekking: incl. asfaltpapier
Prijzen & opties 2020 1009535 Udo 300 (onbehandeld vuren)
Uw Tuinhuis verduurzaamd middels groene druk-impregnatie : 1009599 Udo 300 geïmpregneerd (olijfgroen) € 2.195,00
Uw Tuinhuis behandeld in trendkleuren:
Udo 300 Platinum Grey
3.049,00
Udo 300 Pigeon Blue € 3.049,00 1022450 Udo 300 Jungle Green € 3.049,00


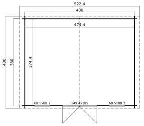
Specificaties Udo 380
Artikelnummer:
Houtsoort: onbehandeld noord-europees vuren
Wanddikte:
Funderingsmaat (bxd): 480x380 cm
Buitenmaat (bxd): 500x400 cm
Dakmaat (bxd): 522x400 cm
Deur afmeting:
x 185 cm
Raam afmeting: draai / kantelraam (2x) 68.5 x 88.2 cm
Glas: enkel glas 4 mm
Dakbedekking: incl. asfaltpapier
Prijzen & opties 2020
Uw Tuinhuis verduurzaamd middels groene druk-impregnatie :
Uw Tuinhuis behandeld in trendkleuren:




Specificaties Caroline
Artikelnummer: 1010185
Houtsoort: onbehandeld noord-europees vuren
Wanddikte: 40 mm
Funderingsmaat (bxd):
Buitenmaat (bxd):
cm
cm
Dakmaat (bxd): 675x490 cm
Deur afmeting:
Raam

van een slot dat open draait voor 't geluid

TIP: Deze hut kan ook gespiegeld opgebouwd worden!

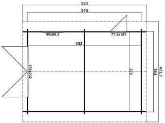
Specificaties Dillon 540
Artikelnummer:
Houtsoort:
Buitenmaat (bxd):
cm Dakmaat (bxd): 340x580 cm
Deur afmeting: (1x) 239 x 202 / (1x) 77.5 x 185 cm
Raam afmeting: draai / kantelraam 99 x 88.2 cm
Glas: enkel glas 4 mm
Dakbedekking: incl. asfaltpapier
Prijzen & opties 2020
Uw Tuinhuis verduurzaamd middels groene druk-impregnatie :
Uw Tuinhuis behandeld in trendkleuren:

Deze hut kan ook gespiegeld opgebouwd worden!

Specificaties Yarik 540
Artikelnummer: 1009541
Houtsoort: onbehandeld noord-europees vuren
Wanddikte: 40 mm
Funderingsmaat (bxd):
Buitenmaat (bxd):
cm
cm
Dakmaat (bxd): 474x583 cm
Deur afmeting: (1x) 239 x 202 / (1x) 77.5 x 185 cm
Raam afmeting: draai / kantelraam 99 x 88.2 cm
Glas: enkel glas 4 mm
Dakbedekking: incl. asfaltpapier
Prijzen & opties 2020
Yarik 540 (onbehandeld vuren)
Uw Tuinhuis verduurzaamd middels groene druk-impregnatie :
Uw Tuinhuis behandeld in trendkleuren:
:

Jelle 175 Plus
TIP: Liever geen helder glas? Gebruik decoratief raamfolie! !
Jelle 175 Plus Platinum Grey


Specificaties Jelle 175 Plus
Artikelnummer: 1009521
Houtsoort: onbehandeld noord-europees vuren
Wanddikte: 28 mm
Funderingsmaat (bxd):
Buitenmaat (bxd):
Deur afmeting:
Raam afmeting:
Glas: enkel glas 4 mm
Dakbedekking: incl. asfaltpapier Staander: 90x90 mm
Prijzen & opties 2020 1009521 Jelle 175 Plus (onbehandeld vuren) € 1.119,00
Uw Tuinhuis verduurzaamd middels groene druk-impregnatie : 1009585 Jelle 175 Plus geïmpregneerd (olijfgroen) € 1.329,00
Uw Tuinhuis behandeld in trendkleuren: 1009649 Jelle 175 Plus Platinum Grey € 1.749,00 1009681 Jelle 175 Plus Carbon Grey
1.749,00 1009713 Jelle 175 Plus Pigeon Blue € 1.749,00 1022460 Jelle 175 Plus Jungle Green € 1.749,00
Opties :
OLP Vloer Compleet tbv 175x175/390 € 119,00
TIP: De overkapping kunt u links of rechts aanbouwen


Specificaties Aida 800
Artikelnummer: 1009542
Houtsoort: onbehandeld noord-europees vuren
Wanddikte: 28 mm
Funderingsmaat (bxd): 760x275 cm
Buitenmaat (bxd): 780x295 cm
Dakmaat (bxd): 780x314 cm
Deur afmeting: 149.4 x 185 cm
Raam afmeting: draai / kantelraam 68.5 x 88.2 cm
Glas: enkel glas 4 mm
Dakbedekking: incl. asfaltpapier
Staander: 90x90 mm
Prijzen & opties 2020 1009542 Aida 800 (onbehandeld vuren)
Uw Tuinhuis verduurzaamd middels groene druk-impregnatie : 1009606 Aida 800 geïmpregneerd (olijfgroen)
Uw Tuinhuis behandeld in trendkleuren: 1009670 Aida 800 Platinum Grey € 3.289,00 1009702 Aida 800 Carbon Grey
3.289,00 1009734 Aida 800 Pigeon Blue
3.289,00 1022459 Aida 800 Jungle Green
Opties : 1010471 OLP Vloer Compleet tbv 380x275/780
299,00 651081 Set 6x Fundamentbalk Geimpregneerd 300cm € 90,00 1015954 Set 6x Fundamentbalk Composiet 300cm € 165,00 1010625 Set 6x Fundamentbalk Hardhout 300cm
235,00 1017217 Dakgootset Ø10cm / E800cm € 215,00 1017250 EPDM rubberfolie Dakpakket 8834 compleet € 585,00
1010247 Inbouwwand BH275 € 249,00 1010249 Inbouwwand BH275 geïmpregneerd (olijfgroen) € 295,00 Inbouwwand BH275 in trendkleur € 379,00 679337 Ventilatie rooster set € 9,95


Specificaties Kristyna
Artikelnummer:
Houtsoort: onbehandeld noord-europees vuren
Wanddikte: 28 mm
Funderingsmaat (bxd):
Buitenmaat (bxd):
Dakmaat (bxd):
Deur afmeting:
Raam afmeting:
Glas:
Staander:


Specificaties Karyna
Artikelnummer: 1022510
Houtsoort: onbehandeld noord-europees vuren
Wanddikte: 28 mm
Funderingsmaat (bxd): 570x275 cm
Buitenmaat (bxd): 590x295 cm
Dakmaat (bxd): 590x313 cm
Deur afmeting: 149,4x195,7 cm
Raam afmeting:
Glas: enkel glas 4mm
Dakbedekking: incl. asfaltpapier
Staander: 90x90 mm
Prijzen & opties 2020 1022510 Karyna (onbehandeld vuren)
Uw Tuinhuis verduurzaamd middels groene druk-impregnatie : 1022511 Karyna geïmpregneerd (olijfgroen)
2.149,00 Uw Tuinhuis behandeld in trendkleuren:
Karyna Pigeon Blue
2.875,00 1022515 Karyna Jungle Green
Opties : 1004163 OLP Vloer Compleet tbv 230x275/590
651074 Set 5x Fundamentbalk Geimpregneerd 300cm
75,00 1015953 Set 5x
Shingles Groen / 8 pak incl. nagels
Inbouwwand BH275 geïmpregneerd (olijfgroen)
Inbouwwand BH275 in trendkleur
Nu met verbeterde en hogere deur!!

Groen geïmpregneerd

Specificaties Sunniva
Artikelnummer: 1022498
Houtsoort: onbehandeld noord-europees vuren
Wanddikte: 28 mm
Funderingsmaat (bxd): 570x275 cm
Buitenmaat (bxd): 590x295 cm
Dakmaat (bxd): 590x304 cm
Deur afmeting: 149,4x195,7 cm
Raam afmeting:
Glas: enkel glas 4mm
Dakbedekking: incl. asfaltpapier
Staander: 90x90 mm
Prijzen & opties 2020 1022498 Sunniva (onbehandeld vuren)
Uw Tuinhuis verduurzaamd middels groene druk-impregnatie : 1022499 Sunniva geïmpregneerd (olijfgroen)
1022502 Sunniva Pigeon Blue
TIP: De overkapping kunt u links of rechts aanbouwen


Specificaties Manuel
Artikelnummer:
Houtsoort: onbehandeld noord-europees vuren
Wanddikte: 28 mm
Funderingsmaat (bxd):
Buitenmaat (bxd):
Dakmaat (bxd):
Deur afmeting:
Raam afmeting:
Glas: enkel glas 4mm
Dakbedekking:
Prijzen & opties 2020


Specificaties Fraya
Artikelnummer: 1022516
Houtsoort: onbehandeld noord-europees vuren
Wanddikte: 28 mm
Funderingsmaat (bxd): 570x275 cm
Buitenmaat (bxd): 595x295 cm
Dakmaat (bxd): 595x315 cm
Deur afmeting: 149,4x195,7 cm
Raam afmeting:
Glas: enkel glas 4mm
Dakbedekking: incl. asfaltpapier
Staander: 90x90 mm
Prijzen & opties 2020
1022516 Fraya (onbehandeld vuren) € 1.925,00
Uw Tuinhuis verduurzaamd middels groene druk-impregnatie : 1022517 Fraya geïmpregneerd (olijfgroen) € 2.289,00
Uw Tuinhuis behandeld in trendkleuren:
1022518 Fraya Platinum Grey € 3.129,00 1022519 Fraya Carbon Grey € 3.129,00 1022520 Fraya Pigeon Blue € 3.129,00
1022521 Fraya Jungle Green € 3.129,00
Opties : 1005192 OLP Vloer Compleet tbv 275x275/670 € 209,00 651081 Set 6x Fundamentbalk Geimpregneerd 300cm € 90,00
Shingles Zwart / 9 pak incl. nagels
Shingles Rood / 9 pak incl. nagels
Shingles Groen / 9 pak incl. nagels
Dakgootset Ø10cm / D600cm
Inbouwwand BH275
Inbouwwand BH275 geïmpregneerd (olijfgroen)
Inbouwwand BH275 in trendkleur
Ventilatie rooster set

Prijzen & opties 2020
Octavio (onbehandeld vuren)
2.249,00 Uw Tuinhuis verduurzaamd middels groene druk-impregnatie :
Uw Tuinhuis behandeld in trendkleuren:
Pigeon Blue
Octavio Jungle Green
Opties :
Specificaties Octavio
Artikelnummer: 1009533
Houtsoort: onbehandeld noord-europees vuren
Wanddikte: 28 mm
Funderingsmaat (bxd): 681x380 cm
Buitenmaat (bxd):
Dakmaat (bxd):
cm
cm
Deur afmeting: 149,4x195,7 cm
Raam afmeting:
Glas: enkel glas 4mm
Dakbedekking: incl. asfaltpapier
Staander: 120x120 mm
OLP Vloer Compleet tbv 300x380/701
Set 7x Fundamentbalk Geimpregneerd 300cm € 105,00
Set 7x Fundamentbalk Composiet 300cm €
Set 7x Fundamentbalk Hardhout 300cm
Shingles Zwart / 12 pak incl. nagels
Shingles Rood / 12 pak incl. nagels
Shingles Groen / 12 pak incl. nagels
Dakgootset Ø10cm / D700cm
Ventilatie rooster set
275,00


Specificaties Lara
Artikelnummer:
Houtsoort: onbehandeld noord-europees vuren
Wanddikte:
Funderingsmaat (bxd):
Buitenmaat (bxd):
Dakmaat (bxd):
Prijzen & opties
TIP: Ook in spiegelbeeld op te bouwen
Kirian Carbon Grey


Specificaties Kirian
Artikelnummer: 1010182
Houtsoort: onbehandeld noord-europees vuren
Wanddikte: 28 mm
Funderingsmaat (bxd):
Buitenmaat (bxd):
Dakmaat (bxd):
Deur afmeting:
Raam afmeting:
cm
cm
Prijzen & opties 2020 1010182 Kirian (onbehandeld vuren)
Uw Tuinhuis verduurzaamd middels groene druk-impregnatie : 1010197 Kirian geïmpregneerd (olijfgroen)
Uw Tuinhuis behandeld in trendkleuren:
Shingles Rood / 7 pak incl. nagels
Shingles Groen / 7 pak incl. nagels
Dakgootset Ø10cm / D450cm
TIP: Ook in spiegelbeeld op te bouwen


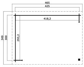
Specificaties Ragnar
Artikelnummer:
Houtsoort: onbehandeld noord-europees vuren
Wanddikte: 34mm (dubbele mes en groef !)
Funderingsmaat (bxd):
Buitenmaat (bxd):
Dakmaat (bxd):
Deur afmeting:
Raam afmeting:
TIP: Ook in spiegelbeeld op te bouwen


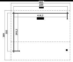
Specificaties Rosea
Artikelnummer: 1017232
Houtsoort: onbehandeld noord-europees vuren
Wanddikte: 34mm (dubbele mes en groef !)
Funderingsmaat (bxd): 425x300 cm
Buitenmaat (bxd): 445x320 cm
Dakmaat (bxd): 467x389 cm
Prijzen & opties 2020 1017210 Rosea (onbehandeld)
Uw Tuinhuis verduurzaamd middels groene druk-impregnatie : 1017210 Rosea geïmpregneerd (olijfgroen) € 1.795,00
Uw Tuinhuis behandeld in trendkleuren: 1018917 Rosea Platinum Grey
Dakbedekking: incl. asfaltpapier
Opties : 651067 Set 4x Fundamentbalk Geimpregneerd 300cm € 60,00 1015952 Set 4x Fundamentbalk Composiet 300cm € 110,00 1010623 Set 4x Fundamentbalk Hardhout 300cm
1006017 Shingles Zwart / 8 pak incl. nagels
249,00 1005995 Shingles Rood / 8 pak incl. nagels
249,00 1005951 Shingles Groen / 8 pak incl. nagels
1017221 Dakgootset Ø10cm / D500cm


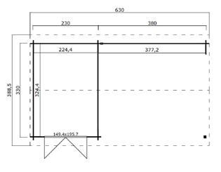
Specificaties Kenzo 300
Artikelnummer: 1009540
Houtsoort: onbehandeld noord-europees vuren
Wanddikte: 34mm (dubbele mes en groef !)
Funderingsmaat (bxd): 540x300 cm
Buitenmaat (bxd): 560x320 cm
Dakmaat (bxd): 580x390 cm
Deur afmeting: 149.4 x 195.7 cm
Raam afmeting:
Glas: enkel glas 4 mm
Dakbedekking: incl. asfaltpapier
Staander: 120x120 mm
Prijzen & opties 2020
Uw Tuinhuis verduurzaamd middels groene druk-impregnatie :
Uw Tuinhuis behandeld in trendkleuren:
Opties :
Shingles Zwart / 10 pak incl. nagels
Shingles Rood / 10 pak incl. nagels
Shingles Groen / 10 pak incl. nagels

Prijzen & opties 2020
Uw Tuinhuis verduurzaamd middels groene druk-impregnatie : 1017233 Maribel geïmpregneerd (olijfgroen)
Uw Tuinhuis behandeld in trendkleuren:
Specificaties Maribel
Artikelnummer: 1017211
Houtsoort: onbehandeld noord-europees vuren
Wanddikte: 34mm (dubbele mes en groef !)
Funderingsmaat (bxd): 680x300 cm
Buitenmaat (bxd): 700x320 cm
Dakmaat (bxd): 720x390 cm
Deur afmeting: 149,4x195,7 cm
Glas: enkel glas 4mm
Dakbedekking: incl. asfaltpapier Staander: 120x120 mm
Opties : 1024001 OLP Vloer Compleet tbv 300x300/720
1017237 Shingles Zwart / 12 pak incl. nagels
365,00 1017236 Shingles Rood / 12 pak incl. nagels
365,00 1017235 Shingles Groen / 12 pak incl. nagels

TIP: Liever geen helder glas? Gebruik decoratief raamfolie!

Specificaties Narelle (groen geïmpregneerd)
Artikelnummer: 1022559
Houtsoort: geïmpregneerd noord-europees vuren
Wanddikte: 28mm
Funderingsmaat (bxd): 610x330 cm
Buitenmaat (bxd): 630x350 cm
Dakmaat (bxd): 630x359 cm
Deur afmeting: 149,4x195,7 cm
Glas: enkel glas 4mm
Dakbedekking: incl. asfaltpapier Staander: 90x90 mm
Prijzen & opties 2020
Uw Tuinhuis verduurzaamd middels groene druk-impregnatie : 1022559 Narelle (groen geimpregneerd) € 2.195,00
Opties 651081 Set 6x Fundamentbalk Geimpregneerd 300cm
90,00 1015954 Set 6x Fundamentbalk Composiet 300cm
165,00 1010625 Set 6x Fundamentbalk Hardhout 300cm
EPDM Rubberfolie Dakpakket compleet 6639


Prijzen & opties 2020
Uw Tuinhuis verduurzaamd middels groene druk-impregnatie : 1022547 Mikaela geïmpregneerd (olijfgroen)
Specificaties Mikaela (groen geïmpregneerd)
Artikelnummer: 1022547
Houtsoort: geïmpregneerd noord-europees vuren
Wanddikte: 28 mm
Funderingsmaat (bxd): 610x330 cm
Buitenmaat (bxd): 630x350 cm
Dakmaat (bxd): 630x388 cm
Deur afmeting: 149,4x195,7 cm
Glas: enkel glas 4mm
Dakbedekking: incl. asfaltpapier
Staander: 90x90 mm
Opties : 651081 Set 6x Fundamentbalk Geimpregneerd 300cm
Set 6x Fundamentbalk Composiet 300cm
1010625 Set 6x Fundamentbalk Hardhout 300cm
1006021 Shingles Zwart / 10 pak incl. nagels
1005999 Shingles Rood / 10 pak incl. nagels
310,00 1005955 Shingles Groen / 10 pak incl. nagels

TIP: Liever geen helder glas? Gebruik decoratief raamfolie!
Prijzen & opties 2020
Uw Tuinhuis verduurzaamd middels groene druk-impregnatie : 1022565 Olenka (groen geimpregneerd) € 2.399,00
Specificaties Olenka (groen geïmpregneerd)
Artikelnummer: 1022565
Houtsoort: groen geïmpregneerd noord-europees vuren
Wanddikte: 28mm
Funderingsmaat (bxd): 710x330 cm
Buitenmaat (bxd): 730x350 cm
Dakmaat (bxd): 730x359 cm
Deur afmeting: 149,4x195,7 cm
Glas enkel glas 4mm
Dakbedekking: incl. asfaltpapier Staander: 90x90 mm
Opties 651098 Set 7x Fundamentbalk Geimpregneerd 300cm
105,00 1015955 Set 7x Fundamentbalk Composiet 300cm
192,50 1010626 Set 7x Fundamentbalk Hardhout 300cm
275,00 1024023 EPDM Rubberfolie Dakpakket compleet 7639
Dakgootset Ø10cm / E800cm
679337 Ventilatie rooster set
569,00

Prijzen & opties 2020
Uw Tuinhuis verduurzaamd middels groene druk-impregnatie : 1022553 Madita (groen geimpregneerd) € 2.495,00
Specificaties Madita (groen geïmpregneerd)
Artikelnummer: 1022553
Houtsoort: groen geïmpregneerd noord-europees vuren
Wanddikte: 28mm
Funderingsmaat (bxd): 710x330 cm
Buitenmaat (bxd): 730x350 cm
Dakmaat (bxd): 730x388 cm
Deur afmeting: 149,4x195,7 cm
Glas: enkel glas 4mm
Dakbedekking: incl. asfaltpapier
Staander: 90x90 mm
Opties : 651098 Set 7x Fundamentbalk Geimpregneerd 300cm
1015955 Set 7x Fundamentbalk Composiet 300cm
1010626 Set 7x Fundamentbalk Hardhout 300cm
1017237 Shingles Zwart / 12 pak incl. nagels
1017236 Shingles Rood / 12 pak incl. nagels € 365,00 1017235 Shingles Groen / 12 pak incl. nagels
Dakgootset Ø10cm / D750cm
Ventilatie rooster set
365,00

14-19mm

! Snel en overzichtelijk de specificaties in beeld
Maatvoering (fundament) in mm.
FRODO 18 200x200 210 193 4.0 21 15/15 156x172 - PE
Artikel nummer + naam
Wanddikte blokhut stapelbouw (in mm.)
Wanddikte blokhut elementbouw (in mm.)
Afmeting fundering:
Breedte x Diepte (in cm.)
Nokhoogte (in cm.)
Wandhoogte (in cm.)
Oppervlakte (in M2.)
Maat overkapping luifel (in cm.)
Dikte dakhout- en vloerhout (in mm.)
Deur afmeting BxH (in cm.)
Raam afmeting BxH (in cm.)
Ruit: PE (kunststof) / GLAS
Dakbedekking (standaard dakleer)
Dakbedekking EPDM-folie
*Genoemde adviesverkoopprijzen zijn exclusief accessoires.
Meerprijs voor optie
Optie: Dakbedekking-Shingles
Optie: Vloer
Optie: Dakverankering
Inclusief
Optie: Mogelijkheid
Optie: Niet mogelijk

Prijzen & opties 2020 103900 Nick 180 (onbehandeld vuren)
Opties : 651067 Set 4x Fundamentbalk Geimpregneerd 300cm
1015952 Set 4x Fundamentbalk Composiet 300cm
1010623 Set 4x Fundamentbalk Hardhout
1006007 Shingles Zwart / 3 pak incl. nagels
Shingles Rood / 3 pak incl. nagels
Specificaties Nick 180
Artikelnummer: 103900
Houtsoort: onbehandeld noord-europees vuren
Wanddikte: 18 mm
Funderingsmaat (bxd): 180x180 cm
Buitenmaat (bxd): 198x198 cm
Dakmaat (bxd): 218x220 cm
Deur afmeting: 86x166 cm
Raam afmeting:
Glas: Kunststof (PE) glas 2 mm
Dakbedekking: incl. dakleer
1005941 Shingles Groen / 3 pak incl. nagels
Dakgootset Ø10cm / D200cm
Ventilatie rooster set

Prijzen & opties 2020
Felix 180 (onbehandeld vuren)
Geimpregneerd 300cm
Set 4x Fundamentbalk Composiet 300cm
Shingles Zwart / 3 pak incl. nagels
Shingles Rood / 3 pak incl. nagels
Specificaties Felix 180
Artikelnummer: 105485
Houtsoort: onbehandeld noord-europees vuren
Wanddikte: 18 mm
Funderingsmaat (bxd): 220x180 cm
Buitenmaat (bxd): 238x198 cm
Dakmaat (bxd):
Deur afmeting:
Raam afmeting:
Shingles Groen / 3 pak incl. nagels
cm
cm
Glas: Kunststof (PE) glas 2 mm
Dakbedekking: incl. dakleer
Dakgootset Ø10cm / D300cm

Prijzen & opties 2020
Gregor 180 (onbehandeld vuren)
Specificaties Gregor 180
Artikelnummer: 105409
Houtsoort: onbehandeld noord-europees vuren
Wanddikte: 18 mm
Funderingsmaat (bxd):
Shingles Zwart / 3 pak incl. nagels
Shingles Rood / 3 pak incl. nagels
Shingles Groen / 3 pak incl. nagels
cm
Buitenmaat (bxd): 258x198 cm
Dakmaat (bxd):
Deur afmeting:
cm
cm
Raam afmeting: 93x70 cm (vast raam)
Glas: Kunststof (PE) glas 2 mm
Dakbedekking: incl. dakleer
Dakgootset Ø10cm / D300cm

Prijzen & opties 2020
Specificaties Jorn 200
Artikelnummer: 105683
Houtsoort: onbehandeld noord-europees vuren
Wanddikte: 18 mm
Funderingsmaat (bxd):
Buitenmaat (bxd):
Dakmaat (bxd):
Deur afmeting:
Raam afmeting: Glas:
cm
cm



TIP:
De overkapping kunt u links of rechts aanbouwen






! Makkelijke montage door voorgemonteerde wandpanelen!









Disclaimer:
Alle maten zijn bij benadering aangegeven. Eventueel afgebeelde accessoires zoals bloembakken, raamluiken, decoraties en dergelijke zijn niet bij de prijs inbegrepen. De kleur van het object op de foto kan afwijken van het geleverde exemplaar. Constructiewijzigingen voorbehouden.
Alle genoemde prijzen zijn advies verkoopprijzen inclusief 21% BTW.
Outdoor Life Products® is een merknaam van Outdoor Life Group Nederland Gouderak B.V. Uit deze uitgave mag niets worden verveelvoudigd en/of openbaar gemaakt door middel van fotokopie, microfilm, opslag in computer bestanden of anderszins, zonder voorafgaande schriftelijke toestemming van de uitgeefster. Aan de tekst in deze uitgave kunnen geen rechten worden ontleend.
Outdoor Life Group B.V. aanvaardt geen aansprakelijkheid voor mogelijke fouten en tekortkomingen in deze uitgave. Prijzen en voorwaarden kunnen aan verandering onderhevig zijn.
Auteursrechten © 2020 Outdoor Life Group Nederland Gouderak B.V.
Folder en prijslijst 2020/1, prijswijzigingen 2020 voorbehouden. Druk- en zetfouten voorbehouden.

