FIRM INTRODUCTION & PROJECT APPROACH


ADAPTATION CHALLENGES & EXPERIENCE
COMPETITIVE LANDSCAPE & CURRICULAR CONCERNS
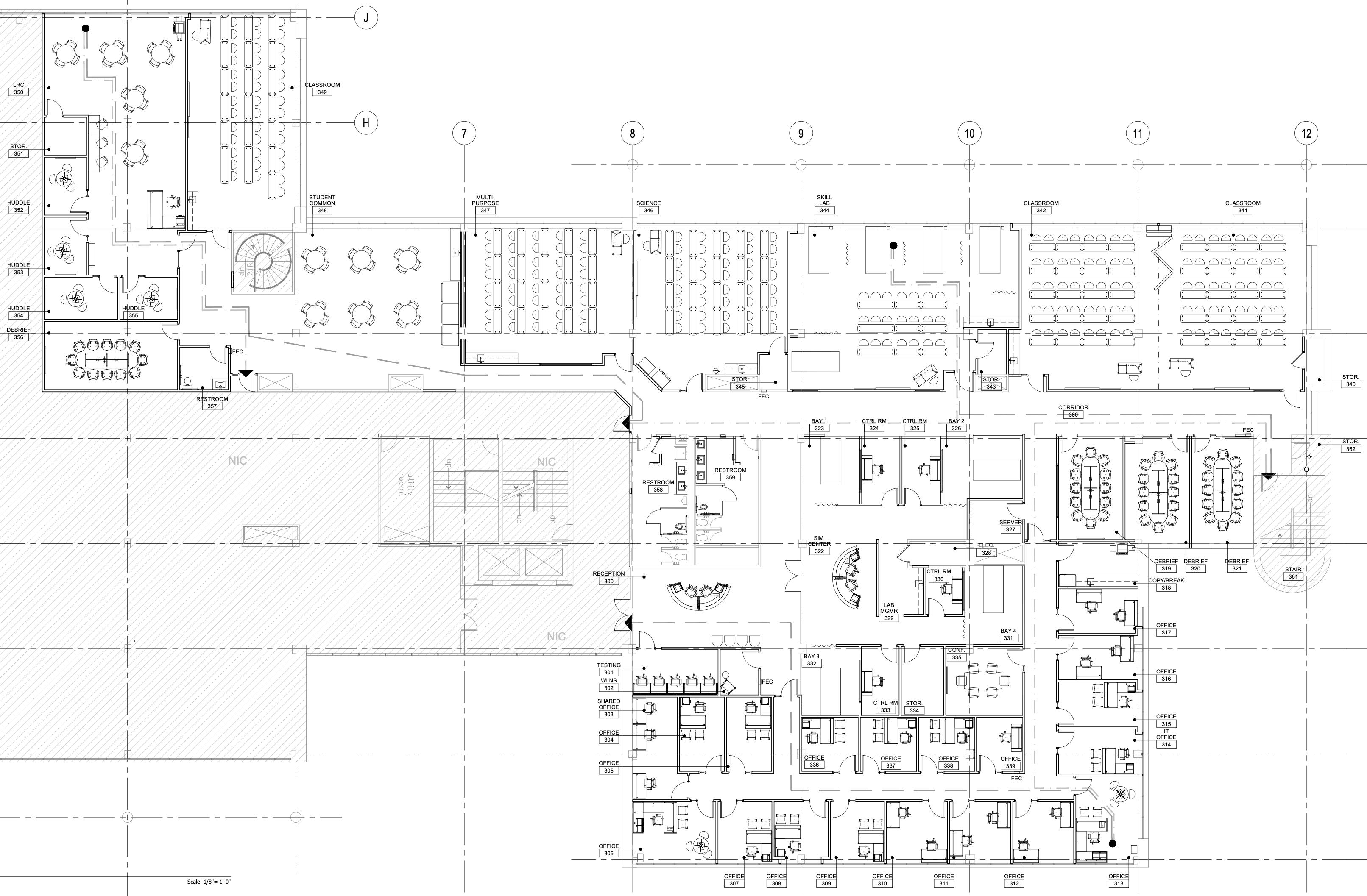
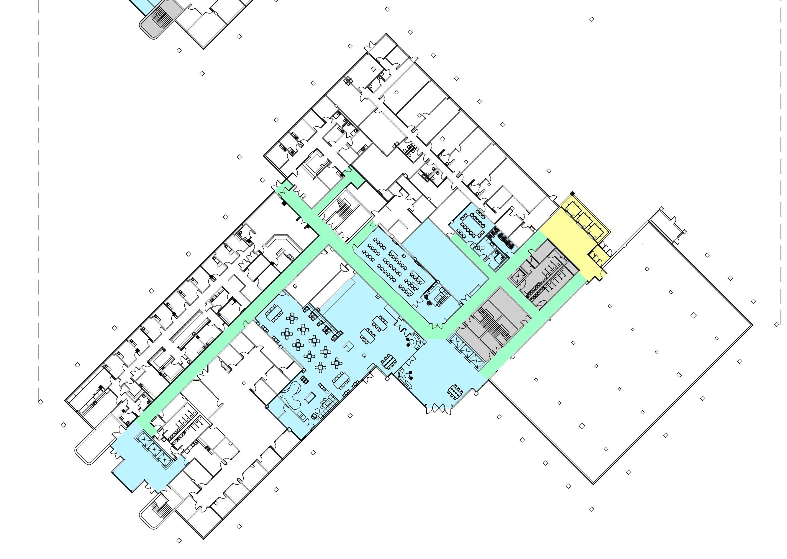
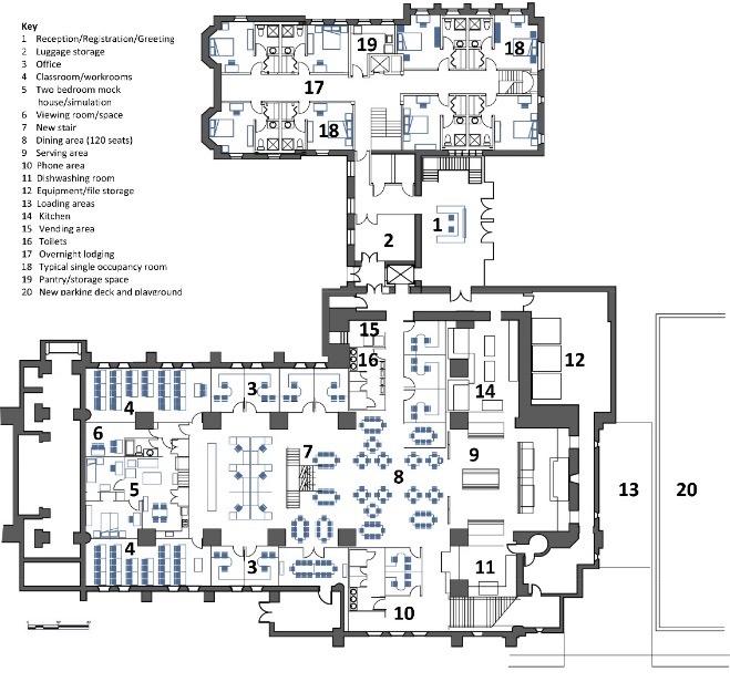
BUILDING-SPECIFIC CHALLENGES AND OPPORTUNITIES
PEDAGOGICAL CONSIDERATIONS

![]()


ADAPTATION CHALLENGES & EXPERIENCE
COMPETITIVE LANDSCAPE & CURRICULAR CONCERNS
BUILDING-SPECIFIC CHALLENGES AND OPPORTUNITIES
PEDAGOGICAL CONSIDERATIONS

We are experts in adapting existing buildings to new uses, with dozens of high-complexity conversions of existing office buildings completed.
Since the pandemic, Kimmerle Group has been at the forefront of converting of existing office properties to alternate uses.
Complex programs fit into commercial office buildings include academic, industrial, manufacturing, and medical office uses. In some cases, these uses have been fit into existing buildings alongside other existing office functions, requiring careful consideration of the impacts of new operations on existing users.
Converting an existing office or retail building to a school is a challenging task. Our team has extensive experience with complex building conversions.
650 From Road, Paramus, NJ
Building-within-a-building conversion for licensed medical suites associated with Hackensack Meridian Health.
300 Interpace Parkway, Parsippany, NJ
High tech manufacturing and laboratory uses fit into an existing Class A commercial office building, including the provision of new industrial lifts floor-to-floor for inventory movement.
10 Waterview Boulevard, Parsippany, NJ
High tech manufacturing and research/development for defense and aerospace industry actuation products in an existing Class B commercial office building. Included vibration and environmental testing functions.
Arizona College of Nursing, Rochelle Park, NJ
Multidisciplinary teaching facility within an existing Class A office building.
Job Haines Home
Skilled nursing and acute care facility, relocating to a commercial office building in Essex County (site pending).



In a high rise or mid-rise urban building, the stacking within a facility must be strategically examined
• Locating commonly used elements, particularly cafeteria, multipurpose, and media library spaces, is important to consider for best access from floors that are more distantly separated vertically.
• In a vertically stacked educational program, key facilities like media libraries, and support functions may be best located at the center of the stacking, with administration at the level of entry.
• Alternatively, shared uses like media libraries may be located in multiple locations, clustered within floor groupings. This could also be possible for smaller food service spaces local to floor clusters.
• Educational structural floor loading is greater than business loads –corridors in particular require review to ensure structural load is correctly accommodated, and if additional reinforcing is required, that is accounted for.
In adaptive reuse projects, certain spaces can require additional accommodations in multi-story buildings:
• Locating chemistry classrooms at low floor levels where hazardous materials quantities will not be limited due to the restrictions on higher stories, while simultaneously.
• Locating high enough in the building to alleviate excess costs for direct ventilation through multiple floors.


Stair Sizing, Egress, Student Flow
• At typically 40 to 48-inches challenges: travel floors can particularly if the institution will be spread across a high structure.
• That travel between floors may prove difficult within bell schedules, and attention must be paid to student schedules, so that travel between periods is to adjacent floors to ensure travel time is adequate – additional stairs or increased stair size can improve this flow.
• Secure access for stair reentry will be an area of key concern students travel between floors for classes, badging will present concerns for piggybacking and access control.
Restrooms & Core Facilities
• Restrooms in historically office minimize sightlines from main circulation.
• These sightlines must be closely studied and adjusted to prevent additional staff required on duty to supervise students (sometimes new, more centrally located restrooms can be considered and priced).
• The intended occupancy per floor must be closely studied densities are typically higher than other uses and require additional plumbing fixtures.





• Relocating programs or designing for new future student populations requires careful planning of need year-over-year in the introductory period.
• Evaluations of present class size and projected growth pair tightly into the deployment schedule for a new facility.
• New program deployment should be keenly scheduled to ensure space is brought online at appropriate times that align institutional facility needs with capital expense timelines.
• If an existing building has tenants in place, those tenancies can be maintained through interim periods if capital improvements will be made gradually over time.
• If existing leases are in place at other facilities, those timelines should be factored into overall phasing plans to ensure space is brought online at the right time and overhead is minimized throughout the process.

• Toilet rooms are of particular concern in accommodating diversity of gender identities in this age
• In recent facilities, trends sometimes point towards implementation of single occupant toilets serving the entirety of the student population.
• Single-occupant toilets pose considerable risk management concerns, with low visibility for staff supervision.
• In many cases, individuals of differing gender are accommodated at a single user restroom within the nurses’ office. The new facility will need to take into consideration how gender considerations will be managed.
• The traditional school library is quickly giving way to more adaptable, media and collaboration
• Today’s library is a space where students can collaborate around digital media, and where varying study accommodated (high top seating, soft seating, presentation spaces, and huddle rooms).


We are sought after for our opinions on larger issues in the design and real estate industries in the tri state.
George Kimmerle, PhD, AIA, PP, NCARB has been specifically designated a career ICON by two major NJ business and real estate publications - NJBIZ and NJ Real Estate.
A soon to be presented article related to education institutions is in the pre published stage but will appear shortly.
By George J. Kimmerle, PhD, AIA, PP, NCARB
The educational landscape is undergoing a dramatic transformation. As architects and educators, we at Kimmerle Group are uniquely positioned to help institutions navigate this shift and create spaces that truly foster learning. Here's what we've learned from our recent work and decades of experience in both fields:
1. Embracing New Learning Paradigms
Traditional classrooms are giving way to dynamic, flexible spaces that support diverse learning styles. Team-based projects, hands-on learning, and technology integration are now essential. Our redesign of Villa Walsh Academy's library and science labs exemplifies this approach, creating adaptable environments for the future of education.
2.
The pandemic accelerated the adoption of remote learning, and its impact is here to stay. Our work with Pearson and Savas has provided valuable insights into designing spaces that seamlessly integrate n-person and online learning modalities.
3. Blended Learning: The Best of Both Worlds
Blended learning combines the benefits of face-to-face interaction with the flexibility of online learning. This requires spaces that can adapt to various teaching formats, from individual instruction to group collaboration.
4. Breaking Down Disciplinary Silos
Interdisciplinary learning is key to preparing students for the complexities of the 21st century. We advocate for co-teaching models and incorporating expertise from diverse fields, enriching the learning experience and fostering critical thinking.
5. Hands-On Learning and Collaboration
Seminars and workshops provide invaluable opportunities for hands-on learning and peer-topeer interaction. These active learning experiences encourage deeper engagement and knowledge retention.
6. Creating Inclusive Environments
Addressing the needs of students with learning disabilities is crucial. Our firm has a long history of designing inclusive spaces that support diverse learners and help them thrive.
7. Prioritizing Safety and Security
Creating a safe and secure learning environment is paramount. Our experience in designing secure facilities, coupled with my personal encounters with the challenges students face, underscores the need for spaces that foster a sense of well-being and allow students to focus on their education.
8. Sustainability and Innovation
We are committed to sustainable design practices, incorporating energy-efficient systems and innovative solutions into our projects. Our work on the Willing Heart Community Health and Life Center in Newark demonstrates our dedication to creating healthy, sustainable, and community-focused spaces.
9. Navigating Regulatory Landscapes
Successfully implementing innovative design solutions requires a deep understanding of regulatory requirements. We are adept at navigating these complexities and finding creative solutions within existing frameworks.
10. Communication is Key
Effective communication is crucial throughout the design process. We prioritize clear and transparent dialogue with stakeholders, ensuring that everyone is aligned on the project goals and budget.
At Kimmerle Group, we believe that architects and educators must work together to create learning environments that inspire and empower students. Our expertise in both fields allows us to bridge the gap between design and pedagogy, resulting in spaces that support the evolving needs of learners and educators alike.
Architectural firms deeply seated in the educational sector as teachers and designers offer a wider set of insights to a long list of challenges emerging in the industry – many of which are open ended and deserve deeper consideration.




DIVERSE
EDUCATIONAL EXPERIENCE
UNPARALLELED PRIVATE AND NON -PROFIT
EXPERIENCE
UNMATCHED
TENANTING & OWNER SERVICES
TRUSTED
PARTNERS IN ADAPTIVE REUSE & CONVERSION
20+ years experience designing facilities at the elementary, middle, secondary, collegiate, and research university levels.
We have decades of experience working with private schools and private non-profits of all varieties.

We are experts in commercial building leasehold renovation –we are the premier architect in NJ Class A office buildings
We are experts in converting commercial buildings to new uses and occupancies


Educational Facilities
Broadway School, Elmira, NY
Coburn Elementary School, Elmira, NY
Pine City Elementary School, Elmira, NY
New York University – Wagner School of Public Service (Puck Bldg.)
New York University – School of Journalism (Puck Bldg.)
New York University – Vivarium, Main Bldg.
Wellesley College – Campus Science Center
Vassar College – Seeley G. Mudd Chemistry Building
Colgate University – New Multidisciplinary Building
Cornell University – Multi-floor BL2/3 Research Lab Renovation
Columbia University – Multi-floor seminar/classroom, faculty offices & research space
Villa Walsh Academy, Morris Township, NJ
New York City School Construction Authority (Multiple Sites), New York, NY
Stevens Institute of Technology – SG Williams Library
Stevens Institute of Technology – MacLean Building
Montclair State University – Blanton Hall
DeVry Technical Institute
St. Joseph’s High School
Stevens Institute of Technology – Site studies for dormitory expansion
Bergen Community College – New science wing
Kean University – Wilkins Theatre: Sound, Lighting & AV Control Booth Replacement
Kean University – University Century Entry Improvements
Bergen Community College – New technical education center building Kean University – Student Organizations Office Renovations
SUNY @ Buffalo – Medical school & school of dental medicine/ Main St. Campus w/ MP Kean University – Sky Room Student Lounge & Game Center
SUNY @ Stony Brook – Dental School and Research Center National Child Protection Training Center
Adelphi University – Master plan and multiple teaching facility upgrades NJIT Greek Village Redevelopment Plan
UMDNJ – School of Dental Medicine SUNY Downstate Campus Redevelopment Master Plan
Rutgers the State University – Renovations to student classrooms and faculty offices
Bergen Community College – West Hall
Columbia Health Sciences Renovations

Educational Facilities





Educational Facilities











Office Building-Within-a-Building | 650 From, Paramus, NJ












Defense Production Facility in a Class B Office Building | Parsippany, NJ












Villa Walsh Academy, Religious Teachers Filippini, Morris Township, NJ


Villa Walsh Academy, Religious Teachers Filippini, Morris Township, NJ


Villa Walsh Academy, Religious Teachers Filippini, Morris Township, NJ





The Elisabeth Morrow School, Englewood, NJ

Honorable mention in national campus housing competition | Project was noted for its use of traditional planning forms of academic quadrangles to effect a student community-based structure that also complemented the local vernacular in this Midwest frame and clapboard neighborhood




The Willing Heart Educational & Community Campus, Newark, NJ


Honorable mention in national campus housing competition | Project was noted for its use of traditional planning forms of academic quadrangles to effect a student community-based structure that also complemented the local vernacular in this Midwest frame and clapboard neighborhood




SUNY Downstate, Brooklyn, NY






Long Island University & The Brooklyn Hospital Center


Long Island University & The Brooklyn Hospital Center






Drury College Student Housing Master Plan, Springfield, MO

Honorable mention in national campus housing competition | Project was noted for its use of traditional planning forms of academic quadrangles to effect a student community-based structure that also complemented the local vernacular in this Midwest frame and clapboard neighborhood




National Wildlife Refuge | AIA National Award for Educational Architecture





National Wildlife Refuge | AIA National Award for Educational Architecture


National Child Protection Training Center, Sacred Heart Cathedral, Jersey City






Archive: Bergen Community College, Technical Education Center – AIA Merit Award





Bergen Community College, Technical Education Center – AIA Merit Award





NJ LEEP College Access & Success Program, Newark, NJ





Weil Cornell Medical College, Stevens University








Weil Cornell Medical College, Other Medical Educational Providers






Clients: Weil Cornell Medical College, Other Medical Educational Providers












