Lugia Residence | Details

Page 1

_ VO HOANG CUCNG
2 HIGH-RISE CONDOMINIUM & COMMERCIAL PODIUM
Phối cảnh từ đường Nguyễn Cơ Thạch
CHUNG CƯ CAO TẦNG KẾT HỢP THƯƠNG MẠI DỊCH VỤ THỦ THIÊM LUGIA RESIDENCE 51

P.A 1:

Ưu: có tính toán vạt góc để tăng view cho căn hộ. Vị trí khối thương mại hợp lí Nhược: Khối đế chưa đủ diện tích. Kết cấu đỡ khối tháp cần tính toán lại

P.A 2:

Ưu: góc view về phía hồ trung tâm khá rộng. Có tổ chức sân trong kết nối cảnh quan

Nhược: Khoảng cách các khối tháp bị gần. Các tầng cao còn đồng đều

CÁC PHƯƠNG ÁN TỔ CHỨC KHÔNG GIAN KHỐI THÁP & ĐẾ
52 HIGH-RISE CONDOMINIUM & COMMERCIAL PODIUM

P.A 3:

Ưu: có phân tầng cao giữa các tháp. Các đơn nguyên bố trí lệch để phù hợp với khu đất

Nhược: Các tầng vẫn khá đồng đều. Không đủ khoảng hở giữa hai tháp

P.A 4 (chọn)

Ưu: có phân tầng cao để tối ưu

hóa view nhìn. Khoảng cách

giữa các tháp vừa đủ. Có bố trí

các tháp lệch nhau phù hợp

hình dạng khu đất

Nhược: cần thêm tầng cao để

đảm bảo mật độ xây dựng

CHUNG CƯ CAO TẦNG KẾT HỢP THƯƠNG MẠI DỊCH VỤ THỦ THIÊM LUGIA RESIDENCE 53

P.A 1:

Ưu: facade chuyển động độc đáo

Nhược: các đường chuyển động bị gắt, chưa tương đồng với mặt bằng công trình, các khoảng vươn ra không được sử dụng nhưng vẫn bị tính vào mật độ xây dựng. Hình thức mặt đứng khối tháp còn đơn giản.

P.A 2:

Ưu: mặt đứng tương đồng với mặt bằng

Nhược: facade còn 2 chiều, đơn giản, chưa thể là điểm nhấn cho vị trí đắc địa của khu đất

CÁC PHƯƠNG ÁN MẶT ĐỨNG
54 HIGH-RISE CONDOMINIUM & COMMERCIAL PODIUM

P.A 3: Ưu: facade bắt đầu có khối. Có các khoảng mở tăng view cho 1 số căn hồ đắc địa Nhược: các khối của facade chưa đủ chiều sâu, các khoảng mở còn gắt, mặt đứng khối đế chưa tương đồng

P.A 4 (chọn):

Ưu: facade có khối có chiều sâu và tạo cảm giác chuyển động. Các khoảng mở view nhẹ nhàng, ăn nhập với đường chuyển động. Mặt đứng khối đế đã tương đồng với khối tháp, tạo điểm nhấn cho khu vực

CHUNG CƯ CAO TẦNG KẾT HỢP THƯƠNG MẠI DỊCH VỤ THỦ THIÊM LUGIA RESIDENCE 55
56 HIGH-RISE CONDOMINIUM & COMMERCIAL PODIUM
CHUNG CƯ CAO TẦNG KẾT HỢP THƯƠNG MẠI DỊCH VỤ THỦ THIÊM LUGIA RESIDENCE 57
58 HIGH-RISE CONDOMINIUM & COMMERCIAL PODIUM
CHUNG CƯ CAO TẦNG KẾT HỢP THƯƠNG MẠI DỊCH VỤ THỦ THIÊM LUGIA RESIDENCE 59
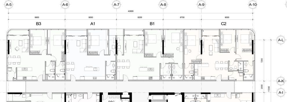
DIAGRAMPHÂNKHUCHỨCNĂNG-GIAOTHÔNG 60 HIGH-RISE CONDOMINIUM & COMMERCIAL PODIUM
CHUNG CƯ CAO TẦNG KẾT HỢP THƯƠNG MẠI DỊCH VỤ THỦ THIÊM LUGIA RESIDENCE 61
HIGH-RISE CONDOMINIUM & COMMERCIAL PODIUM 62
CHUNG CƯ CAO TẦNG KẾT HỢP THƯƠNG MẠI DỊCH VỤ THỦ THIÊM 63
HIGH-RISE CONDOMINIUM & COMMERCIAL PODIUM 64
CHUNG CƯ CAO TẦNG KẾT HỢP THƯƠNG MẠI DỊCH VỤ THỦ THIÊM 65
HIGH-RISE CONDOMINIUM & COMMERCIAL PODIUM 66
CHUNG CƯ CAO TẦNG KẾT HỢP THƯƠNG MẠI DỊCH VỤ THỦ THIÊM 67
68 HIGH-RISE CONDOMINIUM & COMMERCIAL PODIUM
CHUNG CƯ CAO TẦNG KẾT HỢP THƯƠNG MẠI DỊCH VỤ THỦ THIÊM LUGIA RESIDENCE 69
70 HIGH-RISE CONDOMINIUM & COMMERCIAL PODIUM
CHUNG CƯ CAO TẦNG KẾT HỢP THƯƠNG MẠI DỊCH VỤ THỦ THIÊM LUGIA RESIDENCE 71
72 HIGH-RISE CONDOMINIUM & COMMERCIAL PODIUM
CHUNG CƯ CAO TẦNG KẾT HỢP THƯƠNG MẠI DỊCH VỤ THỦ THIÊM LUGIA RESIDENCE 73
VŨ HOÀNG CƯỜNG | 74 HIGH-RISE CONDOMINIUM & COMMERCIAL PODIUM
CHUNG CƯ CAO TẦNG KẾT HỢP THƯƠNG MẠI DỊCH VỤ THỦ THIÊM LUGIA RESIDENCE 75
VŨ HOÀNG CƯỜNG | 76 HIGH-RISE CONDOMINIUM & COMMERCIAL PODIUM
CHUNG CƯ CAO TẦNG KẾT HỢP THƯƠNG MẠI DỊCH VỤ THỦ THIÊM LUGIA RESIDENCE 77
VŨ HOÀNG CƯỜNG | 78 HIGH-RISE CONDOMINIUM & COMMERCIAL PODIUM
CHUNG CƯ CAO TẦNG KẾT HỢP THƯƠNG MẠI DỊCH VỤ THỦ THIÊM LUGIA RESIDENCE 79
VŨ HOÀNG CƯỜNG | 80 HIGH-RISE CONDOMINIUM & COMMERCIAL PODIUM
LUGIA RESIDENCE 81
VŨ HOÀNG CƯỜNG | 82 HIGH-RISE CONDOMINIUM & COMMERCIAL PODIUM
CHUNG CƯ CAO TẦNG KẾT HỢP THƯƠNG MẠI DỊCH VỤ THỦ THIÊM LUGIA RESIDENCE 83
VŨ HOÀNG CƯỜNG | 84 HIGH-RISE CONDOMINIUM & COMMERCIAL PODIUM
CẢNHQUAN
CHUNG CƯ CAO TẦNG KẾT HỢP THƯƠNG MẠI DỊCH VỤ THỦ THIÊM LUGIA RESIDENCE 85
VŨ HOÀNG CƯỜNG | 86 HIGH-RISE CONDOMINIUM & COMMERCIAL PODIUM
CHUNG CƯ CAO TẦNG KẾT HỢP THƯƠNG MẠI DỊCH VỤ THỦ THIÊM LUGIA RESIDENCE 87
VŨ HOÀNG CƯỜNG | 88 HIGH-RISE CONDOMINIUM & COMMERCIAL PODIUM
CHUNG CƯ CAO TẦNG KẾT HỢP THƯƠNG MẠI DỊCH VỤ THỦ THIÊM LUGIA RESIDENCE 89
VŨ HOÀNG CƯỜNG | 90 HIGH-RISE CONDOMINIUM & COMMERCIAL PODIUM
CHUNG CƯ CAO TẦNG KẾT HỢP THƯƠNG MẠI DỊCH VỤ THỦ THIÊM LUGIA RESIDENCE 91
NỘITHẤT VŨ HOÀNG CƯỜNG | 92 HIGH-RISE CONDOMINIUM & COMMERCIAL PODIUM
CHUNG CƯ CAO TẦNG KẾT HỢP THƯƠNG MẠI DỊCH VỤ THỦ THIÊM LUGIA RESIDENCE 93
VŨ HOÀNG CƯỜNG | 94 HIGH-RISE CONDOMINIUM & COMMERCIAL PODIUM
CHUNG CƯ CAO TẦNG KẾT HỢP THƯƠNG MẠI DỊCH VỤ THỦ THIÊM LUGIA RESIDENCE 95

Turn static files into dynamic content formats.

Create a flipbook
Issuu converts static files into: digital portfolios, online yearbooks, online catalogs, digital photo albums and more. Sign up and create your flipbook.
Lugia Residence | Details by Vu Hoang Cuong - Issuu