

OBSAH
ŽIVOTOPIS CURRICULUM VITAE
ING. ARCH. VERONIKA VÁVROVÁ
Adresa / Address Konopova 365, Praha 5, Řeporyje, 155 00
Telefon / Telephone +420 731 373 624
E--mail / E--mail veronikavav1@gmail.com
Datum narození 17. 10. 1997
/ Date of birth
VZDĚLÁNÍ EDUCATION
2013 -- 2017 S třední odborná škola Václava Hollara, obor Grafický design
Václav Hollar´s Secondary School of Arts, Graphic design
2017 -- 2021 Fakulta architektury ČVUT, obor Architektura a urbanismus (Bc.)
Faculty of Architecture CTU Prague, Architecture and Urbanism
2021 -- 2024 Fakulta architektury ČVUT, obor Architektura a urbanismus (Mgr.)
Faculty of Architecture CTU Prague, Architecture and Urbanism
2022 E rasmus
UCL, The B artlett School of Planning
PRÁCE WORK EXPERIENCE
2021 – 2022 P ráce v architektonickém studiu MIAOW
Job in an architectural studio MIAOW
2023 – 2024 P ráce v architektonickém studiu DIVOKO
Job in an architectural studio DIVOKO
DOVEDNOSTI SKILLS
Angličtina / English C.1/C.2
Programy / Software Archicad, AutoCAD, SketchUp, Rhinoceros, Grasshopper (basics), Adobe Photoshop, Illustrator, InDesign Ostatní schopnosti vazba knih, tiskové techniky (litografie, sítotisk, tisk z hloubky, ...), fotografie
/ Other skills bookbinding, printing techiques (litography, silk-screen printing, intaglio,...), photography

IDEÁLNÍ MĚSTO AN IDEAL CITY
STUDIO REDČENKOV–DANDA MASTER THESIS
2024
Co pro nás dnes vůbec znamená ideální město? Je to něco reálného, dílo jediného stvořitele nebo dílo nás všech, může vůbec existovat? To jsou jen první z otázek na které při zkoumání tohoto tématu narazíme. Ač si každý z nás na ně pravděpodobně odpoví jinak, nesmí nám to však bránit ve snaze se právě jimi zabývat, protože za mnohé, co dnes máme, vděčíme právě práci utopistů. Tato rozdílná povaha věci je logická, pramení už ze slova ideální, které pro každého z nás znamená něco jiného. Ač by pro mě bylo nejbližší definicí ideálního města rovné město, aneb takové, které dává všem stejné možnosti, ve své práci nepřicházím s jedinou definicí, ale vnímám téma jako kontinuální vývoj – ideální město není dílem jediného stvořitele, ale tisíců jedinců, kteří se o něj společně zasadí. Navazuji tak pomyslně na dlouhou tradici hledání ideálu jakožto jedné ze základních tendencí architekta/urbanisty, kterou v diplomní práci rozšiřuji o společenský rozměr, kdy především pomocí plánování je do velké míry možné ovlivňovat kvalitu života obyvatel. Skrze analýzu dosavadních teorií o tématu a jejich propojení s jinými odvětvími tak sleduji spojitosti mezi prací architekta/urbanisty a sociální segregací, krizí bydlení, ekologickými dopady, ekonomickým rozvojem a kvalitou prostředí, jejichž poznatky se pak pokouším aplikovat v konkrétním návrhu urbánní a architektonické studie. To vše je zasazeno do kontextu Česka a existujících konkrétních problémů a legálních nastavení. Konečným výsledkem práce je tak kritika stávajícího stavu, která se snaží ve své teoretické části nabízet alternativy k dnešním vybraným problémům měst. V praktické části pak řeší konkrétní území města Plzně, které navrhuje zastavět podle současného právního nastavení systému. Výsledný rozpor mezi možným stavem měst teoretické části a navrženým projektem na konkrétním místě pak nejlépe ukazuje limitaci existujícího systému vybrané problémy řešit na obecné úrovni a podtrhuje potřebu otevřít širokou diskusi ohledně změn legálního nastavení, a to jak stavebního zákona a praxe územního plánování, ale i památkového zákona a praxe, daňového systému, centralizace úřední správy a dalších.
What is a today´s meaning of an ideal city? Is it real, is it a result of one genius´ work or a result of our collective interest, can it even exist at all? Those are just the first questions we have to answer if we want to think about the ideal city and we probably answer them differently. It is logical, the differences come from the very word “ideal” which means something else for all of us. But even though we have diverse opinions it shouldn´t stop us because many great thing we have today came from utopians and their work. For me, the answer would probably be an Equal city – one that offers the same chances for everyone, but I do not come up with a single definition in my thesis. Instead I perceive this topic as an continual process – an ideal city is not a result of one individual´s work, rather it is a result of thousands of people and their doings. My work is therefore a continuation of a natural human´s longing for the ideal. The work of an architect/planner is in my thesis presented from the point of its impact on the society. Through analysis of existing discourses my thesis takes a closer look on impacts of architecture/planning on social segregation, housing crisis, ecology, economy and quality of life in the context of Czech republic. Theoretical part of the work offers alternative solutions for existing problems which come from academic discourse or existing practices in different countries. Practical part of the work uses current Czech legal settings to design a part of the city Pilsen. The resulting contradiction between theoretically possible “ideal city” and concrete design shows us current limitation of our system and emphasizes the need of rethinking our legal settings – whether the building code, heritage law, taxation, current centralized administration and more – to reflect our current knowledge and take us a bit further in our longing for the ideal.

Pilsen




ní v rozvoji města, začínají u absence ambice formování dnešního ideálu. Regulativní a administrativní povaha českého plánování, náročná tvorba plánů a konzervativní společnost zajišťují jen velmi malý posun k novějším trendům. Chybí povědomí a ambice o ustanovení nástrojů zachycování zisků ze zhodnocení území, komunitní plánování a navrhování ´ze spoda´, běžná je korupce a černé stavby. Bydlení jako základní lidská potřeba je státní sférou přehlíženo a ponecháno na starosti jednotlivce, je tedy téměř plně komodifikováno. Kvůli vysokým nákladům je tak ekvivalentem zlata sloužící bohatým
dě jako nutná jistota. Tento systém by tak dle klasifikace Sonii Arbaci (2019) odpovídal nejlépe familismu. Konzervativní postoj společnosti koresponduje i se současným rozdělením kontinuity tvorby našeho prostředí tak jak jej popisuje diskurs památkové péče. Společnost tak více tíhne ke zmražení existujícího stavu ze strachu před možným negativním dopadem dnešních zásahů. V neposlední řadě v Česku chybí i legislativa ohledně ekologičnosti stavebních materiálů a jejich uhlíkové stopy a odvaha odsoudit procesy, které se zakládají na porušování základních lidských práv.
today in progress towards an ideal city is a discussion about its very meaning. In addition, regulative and administrative Czech planning and conservative majority ensure very slow progress towards modern methods in planning. There is very little ambition in establishing land–value capturing principles, community planning, or bottom-up design, common is corruption in planning and informal development. Housing is perceived as individual responsibility and therefore a commodity. As such it is used by wealthy as a tool of valorization and invest-
a necessity to achieve safety for the family. Our system would probably be closest to Arbaci (2019) definition of familism. Conservative approach also corresponds with current discourse in heritage preservation, and existing state of our cities is rather frozen than risking possible harm from new ambitions. The continuity of constructive processes in our cities is therefore broken. Lastly, Czechia lacks legislative concerning material sustainability and CO2 emissions and bravery to stand against forced labour in material industry.















LÁVKA KLÍNOVVKA A FOOTBRIDGE OVER THE KLÍNOVÝ STREAM
STUDIO VALOUCH–STIBRAL COOPERATION WITH LINH HA TRINH, DAVID VINTERA
2023
V rámci letního semestru 2023 jsme se spolu s dalšími 4ateliéry zúčastnili projektů design and build. Každý z nich zpracoval návrh lávky do Krkonošských hor, který studenti dostali za úkol sami navrhnout, vypracovat a následně i postavit. Jednalo se už o druhý takový čin, první studentské lávky si nechala správa KRNAPu zhotovit už v roce 2019 a spolu s útulnami, které vznikly v dalších letech, tvoří atraktivní magnet pro turisty, kteří už do hor nejezdí pouze obdivovat přírodu, ale i mladou architekturu. V rámci ateliéru vzniklo 9 návrhů od jednotlivých studentů z nichž byl k realizaci vybrán jeden. Návrh mé lávky vychází z několika úvah. Jako první je problematika nedostupnosti místa. Ke Klínovému potoku vede pouze úzká pěšina, která znemožňuje použití jeřábu či nákladové techniky. Lávka musí být rozložitelná na díly, které lze přenést ručně, a musí umožňovat opakované sestavení a rozložení. Druhou úvahou je výběr materiálu. Nacházíme se na místě, kde přírodní podmínky výrazně limitují užití dřeva, ač je mu intuitivně nejbližší. Dřevěné konstrukce zde kvůli neustálému zatížení vodou a sněhem vytrvají nejdéle 7 let, neumožňují použití kratších rozložitelných elementů, které by bylo možno snadno přenést nebo opravit a koryto potoka, které má překlenout, činí 12 metrů. Betonové i kamenné prvky jsou příliš těžké, zato pozinkovaná ocelová konstrukce zde může existovat 50 i 100 let. Výsledkem snažení je tak kompromis. Kompromis mezi udržitelností ekologickou, ekonomickou, morální i sociální. Konstrukci lávky tvoří dvojice Vierendeelových nosníků, které využívají nutné výšky zábradlí pro vytvoření nosného prvku. Lávka je v něčem tvrdá a výrazná, ale zároveň i jemná a zranitelná. Je to lávka odhalená, jejíž nosné elementy můžeme vidět i cítit každý krok. Je to lávka lidská, vytvarovaná ze surových materiálů podle přesné dokumentace do nepřesného lidského finálního tvaru. V její pravdivosti a nedokonalosti se tak odráží nedokonalosti naše vlastní.
During the spring semester of 2023 several FA CTU studios participated in design and build projects. The topic for our work was to create footbridges for the Krkonoše National Park. KRNAP administration had already cooperated with FA CTU in the past and there are already several footbridges and forest shelters existing within the park made by students. It is becoming more and more known and tourists come to the park not just to see nature but also young architecture. During the semester each of participating students came with his own design for the footbridge and one of them was then manufactured. My design is a reaction to several problems of the site. First problem is that the future site is quite secluded within the forest and no crane or truck can reach it. The footbridge has to be therefore designed from prefabricated pieces that can be carried by hand and assembled and disassembled as needed. Second problem is materiality. The location in the deep mountain forest calls logically for the use of wood but from the experience of the administrators no construction was able to withstand the harsh conditions for more than 7 years, preceding footbridge lasted only 3 years. Wooden elements are mainly problematic in their junctions that are necessary since no larger elements can be transported here and the span of the footbridge measures 12 meters. Those findings led me to choose zinc steel which can fulfill all those demands. The result is a compromise in sustainability – ecological, economical, moral and social. The proposed footbridge utilizes height required for railings as a load bearing element – Vierendeel truss – assembled from 12 pieces. In some way it is tough and bold but also soft and fragile made just out of 12 mm thick steel plate. The footbridge was designed imperfect and true as we all are.







ZBYLÉ NÁMĚSTÍ SVOBODY LEFTOVER SQUARE
STUDIO REHWALDT
LANDSCAPE ARCHITECTURE
2023
V letním semestru roku 2023 jsem se rozhodla přihlásit do krajinářského ateliéru a vyzkoušet si v navrhování měkčí krajinářské postupy. Protože nejsem krajinář, přišlo mi logické vybrat si malé zadání, které je blíže architektuře, a zpracovávala návrh náměstí Svobody v Libčicích nad Vltavou. Libčice jsou krásné malé městečko venkovského rázu ležící pouhých 15 minut na sever za Prahou. Náměstí samo o sobě je momentálně možné popsat jako místo mezi místy – ani náměstí, ani ulice, ani park. To co je dnes nazýváno náměstím Svobody je totiž centrální část na křížení hlavních ulic a dále nahoru do kopce se táhnoucí zelený pás, který je k němu připojen úzkou ulicí. Zatímco centrální část opravdu funguje jako náměstí s městským úřadem a je na něj zpracována studie od Ehl & Koumar, zbylý zelený pás nekonečně stoupající do intravilánu a krajiny leží zatím mimo zájem. Ve svém návrhu se snažím proměnit tento zbylý pás v místa – každé se svým vlastním charakterem a smyslem využití. Pomyslně tak opět propojuji dvě části náměstí do jednoho celku – veřejného prostoru – který má svou nezměrnou hodnotu právě v otevřenosti a postupné gradaci od náměstí přímo až do volné krajiny. V návrhu přicházím s dvoufázovým řešením, kdy část sadu přibývá až v druhé fázi jako reakce na nově navrženou zástavbu, která by jej v budoucnu měla obklopit.
In the spring semester of 2023 I desiced to apply for a landscape architecture studio and learn a bit about their view on public spaces. Since I am not a landscape architect I chose a small scale task and designed a square on Libčice nad Vltavou. Libčice is a beautiful small town just 15 min north of Prague. The square itself is currently a space between places - nor a square, nor a street, nor a park. The whole Svoboda square is much more than is currently being used, not just a central part which is currently used as a square with a municipal hall and a new proposition for reconstruction, but also almost 0,5 km long green belt elevating up the hill into the landscape. That part is not perceived or used as a square although it has an enormous value. In my design I try to give it a character of different places with their own meaning and use, and melt currently divided space into one whole public space gradating from the busy central square into silent free landscape. Because of planned new development in its upper part my design comes in two phases – in the second one an orchard is added to work as a meeting space for new individual development and also as a mediation between it and open landscape.







monument
gazeboo
plateau forest
meadow
orchard

HUSTOTA, TYPOLOGIE LAYOUT, DENSITY, TYPOLOGY
UCL | PAULA MORAIS, TSE–HUI TEH
COOPERATION WITH J. CHAN, M. HATORI, M. DANIAL A. HJ A. RAHMAN, D. LAM
2022
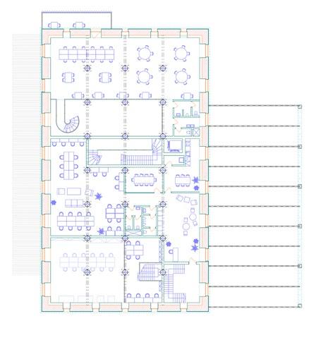
Tento semestr jsem pracovala na zadání v Londýně ve čtvrti Tower Hamlets. Plocha zadání se rozprostírá přímo nad světoznámým obchodním centrem Canary Wharf. V semestru byla naše práce rozdělena do dvou částí - individuální analýzy obytných typologií a následně skupinové práce a vytvoření masterplanu oblasti. Zadání naší práce bylo navrhnout kvalitní bylední jako husté ale nízké město. Hlavním limitem zadání byl výškový limit pro všechny stavby do 30 metrů / 10 podlaží. Naším úkolem bylo experimentovat s vybranými typologiemi a kompozicemi tak, abychom dosáhli co nejvyšší hustoty. Náš konečný návrh dosahuje průměru 174 bytů/hektar, neboli 579 obytných místností /ha. To z našeho pohledu není dostačující hustota pro tak centrálně položenou část Londýna. Mnohem více by zde byla patřičná vyšší hustota kolem 300 bytů/ha, které by ani s maximálním využitím ploch v daném výškovém limitu nešlo dosáhnout. Proto jsme shledali že není vhodné pro tuto oblast omezovat výstavbu touto výškou. Co se týče samotné oblasti návrhu, jejím hlavním elementem je rozdělující nepřekonatelná bariéra ve formě 6 pruhové rychlostní silnice Aspen Way a k ní přiléhající železnice, která oblast dělí na sever a jih. Ovšem fyzické dělení oblasti je jen z jedním přítomných problémů, velmi patrné je i sociální rozdělení: jih je charakterizován Canary Wharf - vysokou zástavbou především kancelářských budov užívanou převážně zámožnějšími singles. Sever je oproti tomu nízký, obývaný hlavně rodinami minorit a jiných sociálně slabých skupin. Naším úkolem nebylo tedy jen zacelit fyzické předěly, ale i ty sociální. Fyzickou bariéru silnice a železnice zacelujeme centrálním mostem uličního typu, s budovami po obou stranách, tunelem a přeměnou existujícího mostního spojení. Náš návrh je otevřen k myšlence možné budoucí transformace silnice, kdy se omezením automobilové dopravy může proměnit na příjemný bulvár s parterem. Výškové rozdíly v terénu řešíme rampami, abychom umožnili volný prostup novou městskou částí pro všechny.
The studio was assigned a site in London, Tower Hamlets, directly north above the well-known Canary Wharf development. Our work was divided into 2 tasks: first the individual analysis of selected housing typologies and second a masterplan design. The group work was to try and design a dense low-rise city with quality housing. We were strictly limited to 30 metres/10 stories height limit. The studio task was to experiment with different housing typologies and compositions to achieve the highest possible density. Our masterplan achieved the average density of 174 units/ha, or 579 habitable rooms/ha. In our point of view the achieved densities are not suitable for the selected area, which would benefit much more from higher densities around 300 units/ha and thus higher buildings. The site itself is characterised by a strong impenetrable barrier in a form of a high-frequented 6-lane Aspen Way and a railway, dividing it into southern and northern part. The division is present on more levels than just physical, there is a strong division in functions and social groups: the south is office-based high-rise Canary Wharf, the north is low-rise family and mainly minorities-occupied social housing. The south is inhabiting wealthy singles, the north low-income families. Our task was therefore not to just mend the physical, but also the sociological barrier. In our design we mend the physical barrier with a street-type central bridge, tunnel and a renovation of an existing bridge. We try to make our design open to the thought of future transformation of the road towards a less frequented, more city-like boulevard that can host retail functions and active frontages.



CANARY WHARF
POPLAR
Key
Open courtyard typology
Street slab typology
Closed courtyard typology
Podium typology
Cascading tower typology
Podium typology
Cascading tower typology
Amenities
Green/sport space
Community facilities
Access across Aspen Way




proposition tries to work with the height differences caused by roads rising up Canary Wharf by using sloped streets, maintaining the maximum level of accessibility for everyone while also establishing uninterrupted spaces to walk through Majority of the proposed streets in the south are pedestrian zones, mixing pedestrians together. Car access route is proposed in the central boulevard also a pedestrian zone, to allow deliveries and supplying necessary for the hall, school, shops and residential uses, with short-time parking in the street. residential buildings is not proposed in individual buildings but it is located north-eastern corner with direct connection to the Aspen Way for the whole development. Important is also the introduction of greenery into the streetsprivate and public, helping to cool the cities down in the summer and establishing of local people in caring for their surroundings thus increasing street safety.






ČOKOLOKOKLIKYTRIKY CHOCOLOCOCLICKSTRICKS
STUDIO REDČENKOV–DANDA
COOPERATION WITH PATRIK MICHAL BERINŠTER
2022
Zpracovávané zadání semestru se rozprostírá v městě Opava, konkrétně jeho část na sever od stejnojmenné řeky Opavy. Jedná se o oblast poznamenanou ponejvíce v posledních letech, kdy zde došlo ke smetení původní urbánní struktury panelovým sídlištěm. Dnes je tato oblast vnímána v zásadě jako vyloučená a ocitá se tak na okraji zájmů společnosti. Projekt je rozdělen do 3 měřítek: macro, mezzo a micro. Macro se zabývá celkovým fungováním města Opavy: zelenou infrastrukturou, krajinou kolem města, dopravou, revizí využití ploch a řeší napojení zpracovávané části do celkového organismu města. Mezzo se podrobněji zaměřuje na severní část města: MHD, plochy zeleně, návrh nové zástavby a vybavenosti. Micro měřítko podrobně rozpracovává sídliště Kateřinky, hlavní část oblasti, a jeho možnou transformaci a realizaci původní idey bydlení v zeleni plné vybavenosti. V macro měřítku se v koordinaci s ostatními studenty urbanismu ustanovil zelený pás, obepínající město, který má zabraňovat dalšímu růstu sídelní kaše. V severní části města je námi navržený pás nejblíže k stávající zástavbě a limituje silněji budoucí rozvojové plochy. Toto řešení bylo zvoleno vzhledem k trendu ´shrinking cities´, který zahrnuje i Opavu. Město má velké vnitřní rezervy pro zahušťování. Vzhledem ke kompaktní velikosti města je podporován rozvoj MHD a cyklotras. V našem návrhu umisťujeme lužní les do jiho-západního cípu zpracovávané oblasti, navázaný na řeku Opavu a znovuustanovený potok do místa, které by mělo být v současném plánu zastavěno individuální zástavbou. Nejpodrobněji se věnujeme sídlišti Kateřinky, které ačkoli má největší hustotu v celém městě, se potýká s velkým nedostatkem vybavenosti a veřejného zájmu způsobený absencí jiných funkcí než bydlení, dopravy a neurčité zeleně.
This studio assignment was the Opava city, in detail, the part of the city situated on the north bank of the Opava river. This area is characterized mainly by a development undergone in 1970´s when the original urban structure was demolished and replaced by modernist housing estate. Today is the area perceived negatively by local people and faces neglect alongside with decreasing quality of life. Our work is divided into 3 scales: macro, mezzo, and micro. The Macro scale is mainly dealing with overall organization of the city and ´plugging in´ our design into it. Its concerns are green infrastructure, landscape and its permeability, traffic and zoning. The Mezzo scale is dealing with the assigned part of the city: public transport, parks and proposed new development and amenities. The Micro scale deals with the mentioned housing estate ´Kateřinky´ in detail and its possible transformation into the original modernist idea of high-quality living in the green. In the Macro scale, we coordinate our designs with other urbanism students to propose a Green belt which is meant to establish a clear division and stop the urban sprawl. In our part of the city, this belt is located the closest to the existing development. We wanted to create more pressure towards using brownfield areas which are many present in the city, and towards densification in currently very low-density city. Because of the compact city size, we mainly encourage public transport and cycling. In our design we also propose a riparian forest, located in the south-eastern corner of assigned area, linked to the Opava river and re-established creek. This area is currently meant for individual housing development by the city. In the greatest detail we are dealing with the Kateřinky housing estate with the highest density in all Opava city but lowest number of amenities caused by lack of different functions than housing, traffic and leftover greenery.

zelená –lesy / green –forest modrozelená –měkký luh / teal –riparian forest modrá –voda / blue –water žlutá –pole / yellow –field
růžová čárkovaná –ÚSES / pink dashed –green corridor světle šedé bloky –stávající / light grey blocks –existing tmavě šedé bloky –nově navržené / dark grey blocks –proposed
zeleň / natural elements


azurová –nové cesty / cyan –new pathways žlutá –mezipolní cesty / yellow –field paths
světle šedé bloky –stávající / light grey blocks –existing tmavě šedé bloky –nové / dark grey blocks –proposed čárkovaná černá –hlavní tahy / black dashed –major roads červená –cyklostezky / red –cycslopaths zelená –obnovené historické cesty / green –restored historic paths
doprava / roads
světle oranžová –30 os/ha / light orange –30 people/ha středně oranžová –40 os/ha / medium orange –40 people/ha tmavě oranžová –70 os/ha / dark orange –70 people/ha červená –90 os/ha / red –90 people/ha modrá –voda / blue –water fialová –nově navržená vybavenost / violet –proposed amenities žlutáindustriální plochy / yellowindustrial areas
rozvoj / development strategy



příklad nové výstavby / new development



DŮM PRO ZEMĚDĚLSKÉ DRUŽSTVO
A HOUSE FOR AN AGRICULTURAL COOPERATIVE
STUDIO CÍSLER–PAZDERA BACHELOR THESIS
2020–2021
Zadání začíná vytvořením družstva. Ve skupině jsme zvolili zemědělské družstvo podporující drobné lokální zemědělství ve městě. Pozemek pro stavbu domu se nachází v Libni mezi ulicemi Na Hrázi a Světova. Vzhledem ke stávajícímu stavu je dům rozetnut vedví a vytváří mezi svými hmotami průchozí ulici. V parteru na nově vzniklý prostor navazují farmářské obchody, kde členové družstva mohou prodávat své produkty. V prvním patře jižního domu se nachází kanceláře družstva. Základní úlohou skupiny vlastnící dům není totiž pěstování, na které tu není dost místa, ale vzdělávání. Prostor pro pěstování poskytují střechy a střešní skleník. Zbytek domu je rozdělen byty - od klasických po variabilní s možností ubytování rodiny i skupiny mladých lidí. Hlavní myšlenkou domu je pravdivost. Nacházíme se v době, kdy si nemůžeme dovolit stavět domy stejně jako před 50lety kvůli ekologii a energetické náročnosti. V navrhování je nyní dominantou kontaktní zateplovací systém a je zde minimální snaha stavět domy jinak. I dobrá architektonická studia pracují tak, že zateplovací systém překryjí esteticky příjemným obkladem. Ve studii své bakalářské práce se ptám, jestli je to opravdu jediná možnost, co máme, a v technickém rozpracování bakalářské práce odpovídám. Mnou navržené domy mají obvodové stěny tvořeny cihelnými tvárnicemi Porotherm, vnitřní nosnou vrstvou a vnější tepelněizolační vrstvou oddělenou 40mm polystyrénu. Nalézám 4 možné způsoby, jak docílit odhaleného obvodového zdiva a zároveň ho ochránit. Tři z nich jsou: engoba, glazura a impregnační nátěr. Nejzajímavější mi však připadá možnost nechat tvárnice slinout, stejně jako jsou slinuty venkovní mrazuvzdorné dlaždice. V současnosti ale neexistuje výrobní linka, která by toto dokázala. Je tomu proto, že po takovém výrobku není poptávka.
The studio assignment starts by creating a cooperative. We chose an agricultural cooperative which associates small local farmers in the city. The building is located in Prague, Libeň, between streets Na Hrázi and Světova. Due to the current situation, I divided the house into two and created a street between them which connects the streets Na Hrázi and currently dead end street Světova. On the ground floor there is a space for a farmers market. On the first floor there are two offices for the cooperative. The main purpose of the cooperative is education and connecting small farmers which individually cannot compete with large farms. The houses have rooftop greenhouses and gardens meant for producing fruit and vegetables. The rest is filled with apartments both variable and classic. The main idea of the house is truthfulness. We find ourselves in the times, when we cannot build houses the same way as we did 50 years ago. Most of the houses are built with thermal insulation covering the true core of the house, the necessary raw material which is the real building. Then we cover it all in plaster or some cladding. Those buildings are untrue because they pretend to be made of something they are not. In my work I ask a question: Is this the only way we have? And in my bachelor´s project I answer that question. My design of the houses has curtain walls made of a load bearing layer from ceramic blocks and a layer of thermal insulating ceramic blocks connected through a 40 mm thick layer of polystyrene. I found 4 ways of achieving facade made of raw ceramic blocks. Three of them are: engobe, glaze and a protective sealer for ceramics. But the fourth way is the most interesting one - we could expose ceramics blocks to much higher temperatures as we do with ceramic tiles and make them impervious. Unfortunately, currently there is no production line able to do this because there is no demand.










GALERIE LANNOVA A GALLERY IN THE LANNOVA PARK
STUDIO CÍSLER–PAZDERA
2019
Dnešní Lannova je zmatené místo. Park, zahloubená rušná komunikace, Letná, Staré město. Vše se zde střetává, ale zároveň uzavírá. Neexistují zde vazby, spojením je snad jen pohled na letenský svah. Ve snaze vytvořit smíření těchto prvků, zde navrhuji menší budovu veřejné kulturní instituce. Dopravní situace vychází ze studie AOC s menšími úpravami, díky srovnanému terénu dochází k propojení prvků, vyvážení vztahu chodec/automobil a lepší přehlednosti. Po obou stranách komunikace navrhuji aleje. Podlouhlá hmota galerie tvoří clonu mezi ruchem této komunikace a parkem. Zelený plac přiléhá ke galerii z jihu, druhá část parku za křížením je ponechána nezměněná. Sama galerie současného umění je budovou, která se snaží vytvářet pouze volný prostor. Záměrem bylo umožnit umělci nakládat s ním jakkoli uzná za vhodné. Venkovní výstavní prostory, prosklená galerie v prvním patře a velká výstavní hala s horním denním osvětlením v patře druhém. Výraz budovy má pevný řád tvořen konstrukcí, narušený lehkou hrou ve formě vystrčení kavárny směrem do parku. Primární snahou bylo vytvořit co nejsvobodnější prostor urbanisticky dotvářející struktury Lannovy.
Today the area of the Ludvík Svoboda embankment and neighboring Lannova park is a chaotic space. Many things intersects right here but don´t work together. There are no connections but the same view over the Letenská slope. I tried to mend the broken connections by designing a smaller building for a cultural institution. It is a gallery for contemporary art which we currently lack in Prague. I take over a traffic situation designed by studio AOC with minor changes. The place was flattened to get rid of the height barriers among points of interest. In my design I equalize the value of a pedestrian with a car and make the whole area clearer. On both edges of the road are alleys. The longitudinal mass of the gallery creates a veil between the road and a park which adjoins the gallery from the south. The gallery itself only tries to create empty spaces. A contemporary artist works with any medium and should not be restricted in any way. There is an outdoor space for exhibitions, glazed galley on the first floor with clear windows and a large exhibition space with rooftop skylights with diffused light on the second floor. The face of the building is strict, formed by its structure with playful disruption in the form of the café. My goal was to design a non-limiting space which completes the urban structure of the embankment.



první patro first floor
druhé patro second floor

FOTOGRAFIE PHOTOGRAPHY
Námět moji fotografie tvoří především město. Bizarní či absurdní nebo magické situace a místa, ke kterým jsme již otupěli, chvíle, které nám připadají nereálné. Opuštěná místa, opomenuté stavby, dočasné procesy. Ve svých fotkách se snažím zachytit právě je.
V kresbě jsem oproti tomu zaujata lidmi a jejich pohybem a chováním. Neaspiruji na dokonalost fotografií, snažím se proto zachytit to, co by foťák nemohl – rychlost, průběh času, vztahy, chování.
The main theme of my photography is a city. Bizarre, absurd, and magical places and situations we no longer see that way, almost unreal existence. Forgotten places, overseen structures, invisible processes - in my pictures I try to capture exactly those.
My drawing is on the other hand centered around people. Their movement, behaviour – things a camera can not capture – speed of movement, relationships, act in time.



