Vi Xuong_Undergraduate_WorkSample_2023

Page 1

VI XUONG VI XUONG

Vxuong@calpoly.edu

Linkedin.com/vixuong

(925)-997-7386

EDUCATION:

California Polytechnic State University, San Luis Obispo, CA

September 2020 - June 2023 [GPA: 3.75]

Bachelor of Architecture. Minor in Sustainable Environments.

Cal Poly Los Angeles Metropolitan Program

January 2022- June 2022

Advanced Architectural studio with internship.

Diablo Valley College, Pleasant Hill, CA

January 2017 - June 2020

Associate in Science Architecture Design.

SKILLS :

Software

Rhino/ V-ray

Lumion

Adobe Suite

Enscape

AutoCAD

Vector-works

Basic

Grasshopper

Basic Revit

Sketch-up

AWARDS :

Fabrication

3D Printing

Laser Cutting Model Making

CNC Milling

Bio-plastic

Language:

English Vietnamese Cantonese

WORK EXPERIENCE :

Baumgartner + Uriu Architecture (B+U)

January, 2022 - June, 2022

Architectural Intern

Established 2D drafting and 3D modeling using Rhino and Grasshopper.

Prepared diagrams illustrating spatial relationships and functional adjacencies.

Assisted with production of construction documents, schematic designs, and technical drawings for client meetings.

Prepared and organized CNC milling files.

CPS Oltmans Construction

Scholarship for Design Excellence

Awarded in 2022 based on student distinction in architectural design, professional promise, and portfolio review.

Robert Hifumi Odo Scholarship

Nominated in 2022 by Cal Poly professors based on demonstration of high quality academic works.

AIA California Central Coast 2020

Integrated Design Citation Award

Cal Poly Design Village 2019

Best Craftsmanship (team project)

Dean’s List and President’s Honor List [2020-2022]

Laraarchitecture

June, 2020 - September, 2020

Architectural Intern

Created 3D rendering using Lumion, Photoshop, Indesign, and Rhino.

Participated in site consultation with practice architects and supervisors.

Assisted in producing working drawings of interior and exterior elevations, floor plans, and ceiling plans of residential housing using AutoCAD.

Diablo Valley College

October, 2018 - December, 2019

Laser-cutting and 3D printing Technician

Operated Type A, Delta-bot, and Ender 3 Series 3D printing machines and laser-cutting machines. Assisted and provided advices in setting up 3D print files for efficient print time.

Organized facility such as cleaning and sorting parts.

ARCH 220

Diablo Valley College

September 2019 - December 2019

Teaching Assistant

Provided feedback for students in schematic design progress.

Organized workshops for Rhino 3D modeling. Assisted instructor with course activities.

Chapels of Element

The Chapel of Elements is a transparent box that contains the four basic elements of nature: wind, light, earth and water which represent the balance in nature. Each element is embedded into a chapels according to the light quality and air circulation in the building.

Winter + Spring 2020 Vi Xuong Chapels of Elements Advisor Jeff Ponitz
DEC 21, 4 PM JUNE 21, 3 PM
Cross section
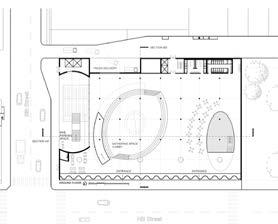
Library | Pershing Square, Los Angeles, California
Detail section Public

Public Library | Pershing Square, Los Angeles, California

CHAPEL OF WATER

Artificial waterfall for passive cooling strategy

AAT Acrylic Panels

Meditation Center

Botanical garden

Plumbing System and HVAC

Chanel Glass Facade

Art Gallery

Computer labo-

Coffee shops and lounge spaces

Study space

The Palm Tree Garden

The Cactus Garden

Public hygiene station

Ground level

Underground Level

Corrugated ceiling with embedded recess light

Hey, I’m at the Arch An Arch? Let’s go check it out! Waterfall! The breeze! *woof* Diffuse light! This is calming 1 10 11 2 3 6 7 8 9 4
1. Theater / Lecture Room 2. Common Space 3. Open study space
4. Sitting area 5. Aquarium 6. Green House Winter + Spring 2020
(hydroponic garden) 7. Cactus Garden 8. Palm Garden 9. Computer Lab 10. Metro Entrance Vi Xuong Chapels of Elements Advisor Jeff Ponitz 11. Wind Chapel Chapels of Elements
Operable Louver Mullion
Perspective from the cactus garden looking Synthetic waterfall cooling system CHAPEL OF LIGHT AND EARTH Water pipe

Solar Bench [roof design]

Fall 2020 Vi Xuong Solar Bench Advisor Jonathan Reich
Solar Bench - Roof Design and Fabrication | San Luis Obispo, CA Counter Sunk with 5/16” x 3” Hex Bolt 2”x 2” x 1/8” Existing Steel Angle 2”x 2” x 1/8” Additional Steel Angle 2”x 2” x 1/8” Steel Angle with 5/16”x 1” Hex Bolt 2 x 3 Wood Blocking 6’ Electrical Grounding Rod Grounding wire clamped to grounding rod West Side Gutter in Background Sun-power E20 435w Solar Panel CONNECTOR PIECE The Finger Hem Edge Hem Edge The Finger No Hem for 6” (see 2D drawing) Hem Edge Hem Edge for 6” (see 2D drawing) LONG GUTTER ROOF OVERVIEW WEST HOOD Solar Bench Roof Hood & Gutter 22 gauge sheet metal (= 1/32” (.028”) thick) Contact: Cal Poly Professor Jonathan Reich Email: jreich@calpoly.edu Tel: (805) 801-8848 Rendering of finished solar bench Installing steel bracket Water jet perforated metal roof 2x3 Wood Blocking PV Panel Mounting Strip Eave Flashing 5/8 inch 22 Gauge galvanized sheet metal Sunpower E20 435w 8 ft height Concrete Wall Gutter 22 Gauge Folded B-1 “B”: Existing bracket B-2 B-3 B-4 Angle Steel 2”x 2” x 1/8” Grounding Rod PV Equipment 2x3 Wood Purlins 22 Gauge galvanized perforated sheet West side gutter

Foraging Delight

Catching yourselves putting items in your shopping cart mindlessly?

Shopping has become more accessible and convenient when the human lifestyle is busier. However, the pandemic has helped most people understand the significance of human instinct-hunting and gathering, or in this case, foraging. Although foraging takes time and effort, it is proven to be better for human mental health. Bread making, food preservation, and home gardening have become hobbies and saving strategies for many become hobbies and saving strategies for many for a lot of people. Besides, it’s starting to become a conversation starter that helps people connect. In response to this notion, the Foraging Kit is designed to be a cabinet, coffee table, and preparation station.

Fall 2022 Vi Xuong Foraging Delight Advisor Angela Bracco
Cal Poly CAED Furniture Competition & Exhibition
Masher Food preparation bowl Berry Picker Mushroom foraging knife
CNC Medium-density
Propagation station or spice rack
fibreboard
Mezzaluna

Round Sound

Mix-used high-rise residential | Los Angeles, California

Exploring the concept of musical composition by utilizing ellipsoid structure that allows mundane daily noises and musical performance to compose “Round Sound”. Sounds travel from residential balcony to musical performance spaces and the central of the ellipsoids (common spaces).

Winter +Spring 2021 Vi Xuong Round Sound Stephen Phillips

Round Sound

Mix-used high-rise residential | Los Angeles, California

Winter +Spring 2021 Vi Xuong Round Sound Advisor Stephen Phillips

Interweaving domains

Avarage diesel delivery truck release 18 tons of carbon dioxide anually

Introducing non-human entity that helps provide resources and compost waste.

Predictable common and inefficient shopping spaces

Current Consumption’s Embodied Energy Cluster of common found Merchandises elements that contribute to waste

Proposed Consumption Platform Integrating ecosystem into consumption method

[1] Design manifestation model : the injection of biomaterial into big-box store. [2] Agar-based Spirulina bioplastic [1] [2]
Fall
Vi Xuong Foraging
Bio-plastic design experiment
2022
Delight Advisor Angela Bracco

Turn static files into dynamic content formats.

Create a flipbook
Issuu converts static files into: digital portfolios, online yearbooks, online catalogs, digital photo albums and more. Sign up and create your flipbook.