Willowbrook Center - Houston, TX

Page 1

WILLOWBROOK CENTER

HOUSTON, TX (MSA)

Willowbrook Center

2 FINANCIAL ANALYSIS WILLOWBROOK CENTER - HOUSTON, TX PRICING & FINANCIAL ANALYSIS OFFERING SUMMARY Price $2,400,000 Proforma Cap Rate 11.34% Proforma NOI $271,923 Price PSF $88.25 Occupancy (As-Is) 40.57% Occupancy (Proforma) 100% Year Built 2004 Gross Leasable Area 27,197 SF Lot Size 1.3 Acres
17200 SH 249 Houston, TX 77064
3 FINANCIAL ANALYSIS WILLOWBROOK CENTER - HOUSTON, TX PRICING & FINANCIAL ANALYSIS PROJECTED INCOME & EXPENSES CURRENT PSF Base Rent - Occupied Space 41% $198,612 $18.00 Base Rent - Lease Up Space 59% $161,630 $10.00 GROSS POTENTIAL RENT $360,242 $13.25 Expense Reimbursements Real Estate Taxes $44,172 $1.62 Insurance $6,263 $0.23 CAM $90,381 $3.32 Management Fee $15,689 $0.58 Total Expense Reimbursements $156,505 $5.75 GROSS POTENTIAL INCOME $516,747 $19.00 EFFECTIVE GROSS REVENUE $516,747 $19.00 Operating Expenses Real Estate Taxes ($74,326) ($2.73) Insurance ($10,538) ($0.39) CAM ($133,560) ($4.91) Management Fee 5.11% ($26,400) ($0.97) Total Expenses ($244,824) ($9.00) Net Operating Income $271,923 $10.00 EXPENSES CURRENT PSF Real Estate Taxes $74,326 $2.73 Insurance $10,538 $0.39 Total CAM $133,560 $4.91 Management Fee 5.11% $26,400 $0.97 Total Expenses $244,824 $9.00 For Financing Options, Please Contact: Greg Holley | Managing Partner High St Capital (O) 469-998-7200 | (C) 714.514.2990 gholley@highstcapital.com
4 FINANCIAL ANALYSIS WILLOWBROOK CENTER - HOUSTON, TX PRICING & FINANCIAL ANALYSIS CAM Current PSF Janitorial Contract $19,077.53 $0.70 Pressure Washing $1,108.48 $0.04 Trash Removal $756.19 $0.03 Exterminating $1,104.12 $0.04 Elevator Repair/Maintenance $3,795.46 $0.14 Exterior Lights $2,005.65 $0.07 Parking Lot Sweeping $5,196.00 $0.19 Parking Lot Lighting $2,962.26 $0.11 Plant Maintenance & Irrigation $5,270.84 $0.19 Grounds Contract $6,377.40 $0.23 Electricity $4,9647.83 $1.83 Water & Sewer $3,806.08 $0.14 Irrigation Water $592.87 $0.02 Fire Alarm Sprinkler Inspection $1,220.00 $0.04 Fire Alarm Repairs & Maintenance $8,790.54 $0.32 Fire/Water $2,070.80 $0.08 Window Washing $1,135.54 $0.04 Electrical Maintenance $8,142.38 $0.30 HVAC Maintenance $10,499.75 $0.39 Total CAM Expenses $133,559.72 $4.91
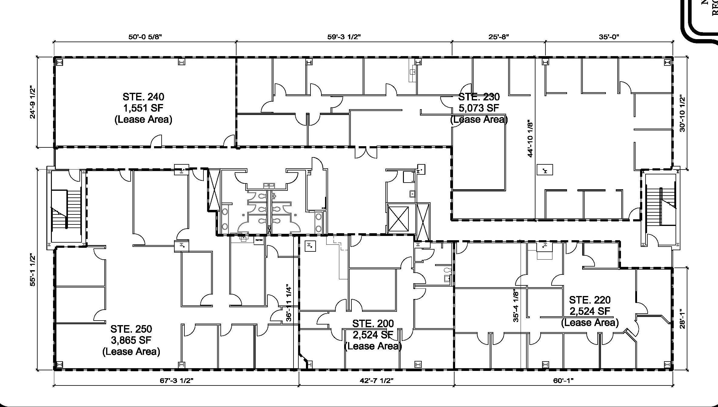
5 FINANCIAL ANALYSIS WILLOWBROOK CENTER - HOUSTON, TX RENT ROLL Suite Tenant SQ FT % of SQFT Start End Annual Rent PSF Lease Type 150 Cole Rehabilitation 6030 22.17% 01/01/2017 12/31/2026 $108,540 $18.00 Mod Gross 200 Pediatrix Medical Group 5004 18.40% 07/01/2019 06/30/2029 $90,072 $18.00 Gross 100 Lease-Up 3411 12.54% 07/01/2023 06/30/2028 $34,110 $10.00 NNN 170 Lease-Up 2095 7.70% 07/01/2023 06/30/2028 $20,950 $10.00 NNN 230 Lease-Up 5073 18.65% 07/01/2023 06/30/2028 $50,730 $10.00 NNN 240 Lease-Up 1491 5.48% 07/01/2023 06/30/2028 $14,910 $10.00 NNN 250 Lease-Up 3865 14.21% 07/01/2023 06/30/2028 $38,650 $10.00 NNN CAD Lease-Up 228 0.84% 07/01/2023 06/30/2028 $2,280 $10.00 NNN Occupied 11,034 40.57% Vacant 16,163 59.43% Total 27,197 100.00% $360,242 $13.25

DBA Cole Rehabilitation

Corporate/Franchise Corporate

Locations 23+

Public/Private Private

Line of Business

Cole Health provides pediatric therapy and ABA services that bring hope and change lives, here and around the world. At Cole Health, we are committed to demonstrating our four core values in all decisions and actions we make: Patient First, Integrity, Heart of Service and Faith and Hope. We believe that by maintaining these core values, we will preserve what is truly important to us as a company. Cole Health is a family of companies including Cole Pediatric Therapy and Cole ABA Solutions. Through these divisions, Cole Health provides Speech Therapy, Occupational Therapy, Physical Therapy and Applied Behavior Analysis to children of all ages and abilities. In total, Cole Health has 23 locations throughout Texas, North Carolina, Washington, and the DMV area.

DBA Pediatrix Medical Group

Corporate/Franchise Corporate

Locations 1,190+ Locations in 43 States & Territories

Public/Private Public (NYSE: MD, S&P 600 Component)

Line of Business

Our physician-led health care organization partners with hospitals, health systems and health care facilities to offer clinical services across numerous specialties and subspecialties supporting the continuum of care from birth through adulthood. Together with our growing network of office-based specialists, we make a difference in the lives of our patients and their families.

6 PROPERTY DESCRIPTION WILLOWBROOK CENTER - HOUSTON, TX TENANT INFORMATION

• Value-Add Opportunity – Proforma Cap Rate of 11.34% with Major Upside in Leasing Up Remaining 59% of the Gross Leasable Area

• Priced Well Below Replacement Cost at $88 PSF

• Well-Positioned on State Highway 249 Just 2 Miles from Sam Houston Tollway (Beltway 8) on a Busy and Growing Commuter Corridor

• High Traffic Location – Over 148,000 Vehicles Per Day on Tomball Pkwy (TX-249)

• Outparcel to Willowbrook Mall – Positioned Along Mall Entrance with Additional Access from Willowbrook Mall’s Ring Road

• Nearby Major Attractions Include – Houston Methodist Willowbrook Hospital, Sam’s Club, Costco, Target, REI, Best Buy, Chickfil-A and Many More

7 PROPERTY DESCRIPTION WILLOWBROOK CENTER - HOUSTON, TX INVESTMENT HIGHLIGHTS

First Floor

8 PROPERTY DESCRIPTION WILLOWBROOK CENTER - HOUSTON, TX FLOOR PLAN

Second Floor

9 PROPERTY DESCRIPTION WILLOWBROOK CENTER - HOUSTON, TX FLOOR PLAN

148,345VPD

10 MARKET OVERVIEW WILLOWBROOK CENTER - HOUSTON, TX AERIAL MAP
WILLOWBROOK MALL TOMBALLPKWY
11 MARKET OVERVIEW WILLOWBROOK CENTER - HOUSTON, TX LOCAL MAP
12 MARKET OVERVIEW WILLOWBROOK CENTER - HOUSTON, TX REGIONAL MAP

Houston, TX

OVERVIEW QUICK STATS

Houston is the most populous city in Texas and the fourth-most populous city in the U.S., with an estimated 2020 population of 2,304,580. The seat of Harris County, Houston is the principal city of the Greater Houston metropolitan area, which is the fifth most populous MSA in the country (2021 population estimate of 7,206,841). Houston has one of the fastestgrowing and most diverse populations anywhere in the world. From 2010 to 2018, Houston added 1.1 million new residents, an 18.2 percent increase, the fastest rate of population growth among the 10 most populous U.S. Metros.

The Houston region is made up of 12 unique counties, and the region’s geographic location makes it easy to move both goods and people around the globe. Houston's strategic, central location coupled with the infrastructure of four of the country's largest ports, two international airports and major highway and rail service make this a dynamic hub for a large cross-section of industries. As these industries digitize, Houston is a hotbed of rapid technological development thanks to access to customers and expertise.

Houston’s economy has a broad industrial base in energy, manufacturing, aeronautics, and

transportation. Only New York City is home to more Fortune 500 companies. The city is also home of the Texas Medical Center, the world's largest concentration of health care and research institutions, and NASA's Johnson Space Center. The Port of Houston ranks first in the U.S. in international waterborne tonnage handled and second in total cargo tonnage handled. Houston is ranked third in the entire world in the Financial Times Cities of the Future global rankings. Houston secures the third spot for being “a reputable talent hub,” boasting five of the world’s Top 500 universities and placing second in the world in business expansion with 53 new projects between 2015 and 2020. Houston has many cultural institutions and exhibits which attract more than 7 million visitors a year to the Houston Museum District. The U.S. Bureau of Economic Analysis (BEA) estimates Houston’s gross domestic product (GDP) at $512.2 billion in 2019, ranking it as the nation’s seventh largest metro economy. The Houston region has a GDP greater than 37 states and accounts for 27.8 percent of Texas’ GDP.

Once predominantly oil and gas focused, today Houston is a diverse, vibrant metro with a dynamic quality of life and a variety of growing industries.

1 st Most-Populous City in the State of Texas

3rd Best Global Cities of the Future (Financial Times, 2020)

4th Most-Populous City in the United States

7th Largest Metro Economy in the United States

24 Fortune 500 Companies Call Houston Home (Fortune)

13 MARKET OVERVIEW WILLOWBROOK CENTER - HOUSTON, TX MARKET SUMMARY
14 MARKET OVERVIEW WILLOWBROOK CENTER - HOUSTON, TX DEMOGRAPHIC STATISTICS Demographic data © CoStar 2021 1 Mile 3 Mile 5 Mile Population 2010 Population 6,848 88,209 287,174 2020 Population 7,391 97,347 316,716 2025 Population Projection 7,595 100,372 326,528 Annual Growth 2010-2020 0.70% 0.90% 0.90% Annual Growth 2020-2025 0.60% 0.60% 0.60% Median Age 34.1 36.3 35.9 Bachelor's Degree or Higher 31% 31% 29% U.S. Armed Forces 2 47 88 Population by Race White 4,220 63,027 206,642 Black 1,674 17,772 59,671 American Indian/Alaskan Native 76 998 3,306 Asian 1,246 13,328 39,841 Hawaiian & Pacific Islander 5 103 327 Two or More Races 169 2,120 6,929 Hispanic Origin 2,868 33,530 115,704 Housing Median Home Value $171,318 $188,597 $191,902 Median Year Built 2001 1994 1991 1 Mile 3 Mile 5 Mile Households: 2010 Households 2,875 33,433 101,455 2020 Households 3,028 37,373 113,986 2025 Household Projection 3,101 38,614 117,854 Annual Growth 2010-2020 0.80% 1.10% 1.10% Annual Growth 2020-2025 0.50% 0.70% 0.70% Owner Occupied 1,020 22,207 72,778 Renter Occupied 2,081 16,408 45,076 Avg Household Size 2.4 2.6 2.8 Avg Household Vehicles 1 2 2 Total Consumer Spending $73.1M $1.1B $3.6B Income Avg Household Income $67,187 $84,977 $89,593 Median Household Income $49,364 $64,170 $67,024 < $25,000 672 5,345 15,826 $25,000 - 50,000 866 8,962 24,922 $50,000 - 75,000 585 7,451 23,026 $75,000 - 100,000 369 5,330 15,481 $100,000 - 125,000 251 3,400 10,516 $125,000 - 150,000 68 2,156 7,558 $150,000 - 200,000 96 2,369 8,385 $200,000+ 120 2,362 8,273

CONFIDENTIALITY AGREEMENT

The information contained in the following offering memorandum is proprietary and strictly confidential. It is intended to be reviewed only by the party receiving it from STRIVE and it should not be made available to any other person or entity without the written consent of STRIVE. By taking possession of and reviewing the information contained herein the recipient agrees to hold and treat all such information in the strictest confidence. The recipient further agrees that recipient will not photocopy or duplicate any part of the offering memorandum. If you have no interest in the subject property at this time, please return this offering memorandum to STRIVE.

This offering memorandum has been prepared to provide summary, unverified financial and physical information to prospective purchasers, and to establish only a preliminary level of interest in the subject property. The information contained herein is not a substitute for a thorough due diligence investigation. STRIVE has not made any investigation, and makes no warranty or representation with respect to the income or expenses for the subject property, the future projected financial performance of the property, the size and square footage of the property and improvements, the presence or absence of contaminating substances, PCBs or asbestos, the compliance with local, state and federal regulations, the physical condition of the improvements thereon, or the financial condition or business prospects of any tenant, or any tenant’s plans or intentions to continue its occupancy of the subject property. The information contained in this offering memorandum has been obtained from sources we believe to be reliable; however, STRIVE has not verified, and will not verify, any of the information contained herein, nor has STRIVE conducted any investigation regarding these matters and makes no warranty or representation whatsoever regarding the accuracy or completeness of the information provided. All potential buyers must take appropriate measures to verify all of the information set forth herein. Prospective buyers shall be responsible for their costs and expenses of investigating the subject property.

ALL PROPERTY SHOWINGS ARE BY APPOINTMENT ONLY. PLEASE CONTACT STRIVE AGENT FOR MORE DETAILS.

Commercial Disclaimer

STRIVE hereby advises all prospective purchasers of commercial property as follows:

The information contained in this Marketing Brochure has been obtained from sources we believe to be reliable. However, STRIVE has not and will not verify any of this information, nor has STRIVE conducted any investigation regarding these matters. STRIVE makes no guarantee, warranty or representation whatsoever about the accuracy or completeness of any information provided.

As the Buyer of a commercial property, it is the Buyer’s responsibility to independently confirm the accuracy and completeness of all material information before completing any purchase. This Marketing Brochure is not a substitute for your thorough due diligence investigation of this investment opportunity. STRIVE expressly denies any obligation to conduct a due diligence examination of this Property for Buyer.

Any projections, opinions, assumptions or estimates used in this Marketing Brochure are for example only and do not represent the current or future performance of this property. The value of a commercial property to you depends on factors that should be evaluated by you and your tax, financial and legal advisors. Buyer and Buyer’s tax, financial, legal, and construction advisors should conduct a careful, independent investigation of any commercial property to determine to your satisfaction with the suitability of the property for your needs.

Like all real estate investments, this investment carries significant risks. Buyer and Buyer’s legal and financial advisors must request and carefully review all legal and financial documents related to the property and tenant. While the tenant’s past performance at this or other locations is an important consideration, it is not a guarantee of future success. Similarly, the lease rate for some properties, including newly-constructed facilities or newly-acquired locations, may be set based on a tenant’s projected sales with little or no record of actual performance, or comparable rents for the area. Returns are not guaranteed; the tenants and any guarantors may fail to pay the lease rent or property taxes, or may fail to comply with other material terms of the lease; cash flow may be interrupted in part or in whole due to market, economic, environmental or other conditions. Regardless of tenants history and lease guarantees, Buyer is responsible for conducting his/her own investigation of all matters affecting the intrinsic value of the property and the value of any long-term leases, including the likelihood of locating replacement tenants if any of the current tenants should default or abandon the property, and the lease terms that Buyer may be able to negotiate with any potential replacement tenants considering the location of the property, and Buyer’s legal ability to make alternate use of the property.

By accepting this Marketing Brochure you agree to release STRIVE and hold it harmless from any kind of claim, cost, expense, or liability arising out of your investigation and/or purchase of this commercial property.

Information About Brokerage Services

Texas law requires all real estate license holders to give the following information about brokerage services to prospective buyers, tenants, sellers and landlords.

TYPES OF REAL ESTATE LICENSE HOLDERS:

• A BROKER is responsible for all brokerage activities, including acts performed by sales agents sponsored by the broker.

• A SALES AGENT must be sponsored by a broker and works with clients on behalf of the broker.

A BROKER’S MINIMUM DUTIES REQUIRED BY LAW (A client is the person or party that the broker represents):

• Put the interests of the client above all others, including the broker ’s own interests;

• Inform the client of any material information about the property or transaction received by the broker;

• Answer the client’s questions and present any offer to or counter-offer from the client; and

• Treat all parties to a real estate transaction honestly and fairly.

A LICENSE HOLDER CAN REPRESENT A PARTY IN A REAL ESTATE TRANSACTION:

AS AGENT FOR OWNER (SELLER/LANDLORD): The broker becomes the property owner’s agent through an agreement with the owner, usually in a written listing to sell or property management agreement. An owner’s agent must perform the broker’s minimum duties above and must inform the owner of any material information about the property or transaction known by the agent, including information disclosed to the agent or subagent by the buyer or buyer ’s agent.

AS AGENT FOR BUYER/TENANT: The broker becomes the buyer/tenant’s agent by agreeing to represent the buyer, usually through a written representation agreement. A buyer’s agent must perform the broker’s minimum duties above and must inform the buyer of any material information about the property or transaction known by the agent, including information disclosed to the agent by th e seller or seller ’s agent.

AS AGENT FOR BOTH - INTERMEDIARY: To act as an intermediary between the parties the broker must first obtain the written agreement of each party to the transaction. The written agreement must state who will pay the broker and, in conspicuous bold or underlined print, set forth the broker’s obligations as an intermediary. A broker who acts as an intermediary:

• Must treat all parties to the transaction impartially and fairly;

• May, with the parties’ written consent, appoint a different license holder associated with the broker to each party (owner and

• buyer) to communicate with, provide opinions and advice to, and carry out the instructions of each party to the transaction.

• Must not, unless specifically authorized in writing to do so by the party, disclose:

ӽ that the owner will accept a price less than the written asking price;

ӽ that the buyer/tenant will pay a price greater than the price submitted in a written offer; and

ӽ any confidential information or any other information that a party specifically instructs the broker in writing not to disclose, unless required to do so by law.

AS SUBAGENT: A license holder acts as a subagent when aiding a buyer in a transaction without an agreement to represent the buyer. A subagent can assist the buyer but does not represent the buyer and must place the interests of the owner first.

TO AVOID DISPUTES, ALL AGREEMENTS BETWEEN YOU AND A BROKER SHOULD BE IN WRITING AND CLEARLY

• The broker’s duties and responsibilities to you, and your obligations under the representation agreement.

ESTABLISH:

• Who will pay the broker for services provided to you, when payment will be made and how the payment will be calculated.

LICENSE HOLDER CONTACT INFORMATION: This notice is being provided for information purposes. It does not create an obligation for you to use the broker’s services. Please acknowledge receipt of this notice below and retain a copy for your records.

Information
Regulated by the Texas Real Estate Commission
available at www.trec.texas.gov
IABS 1-0
469.844.8880 STRIVERE.COM exclusively listed

Turn static files into dynamic content formats.

Create a flipbook
Issuu converts static files into: digital portfolios, online yearbooks, online catalogs, digital photo albums and more. Sign up and create your flipbook.