Hassuani Vitoria_Portfolio 2023

Page 1

architecture portfolio selected works 2023
VITÓRIA HASSUANI

2

Vitória Hassuani Brazilian, 25

Birth 26.06.1997

From Piracicaba, São Paulo, Brazil

Currently in Milano, Italia

Phone

+55 19 982241152

+39 3487168456

Email vitoria.hassuani@usp.br vitoria.hassuani@mail.polimi.it

Architecture Portfolio 2023

AcademicExperiences

2021_now [2023]

Double Degree - Master of Science in Building Architecture

School of Architecture Urban Planning Construction Engineering Politecnico di Milano, PoliMi

2016_now [2023]

Graduation in Architecture and Urbanism Faculdade de Arquitetura e Urbanismo da Universidade de São Paulo, FAUUSP

1o sem_2023

Laboratorio del Costruire - Prof. Arch. Renzo Piano

School of Architecture Urban Planning Construction

Engineering Politecnico di Milano, PoliMi and Fondazione Renzo Piano

2019_2020

Academic Exchange

Università degli Studi di Roma, La Sapienza

ProfessionalExperiences

Jul2022_Aug2022

OBR Open Building Research [Milan, Italy]

Collaboration as Junior Architect in Architecture

Competition for designing a new pavilion and proposing the renovation of the existing hospital, developed and delivered in BIM, for “Istituto Giannina Gaslini”, Genova, Italy

Aug2020_Aug2021

23 Sul Arquitetura [SP, Brazil]

Architecture internship. Development of di erent project stages and scales, from housing and building design, to infrastructures, masterplans, and urban designs

Jun2020_Jun2021

Project (concept, preliminary studies, budget management, executive project), work monitoring and interior design of building remodeling in Piracicaba, in collaboration with Architect Pedro Balotin

Mar2020_Aug2020

Zol Design [SP, Brazil]

Design internship. Project creation o ice in graphic design, visual programming, communication, branding, signage, environmental and product design

Feb2019_Aug2019

Estúdio Módulo [SP, Brazil]

Architecture and Design internship. Collective dedicated to architectural projects, interior design, urban design and graphic design

Courses

2021/22

Parametric Modeling BIM Oriented Autodesk Revit Politecnico di Milano

2019

Investigative and design subsidies for the preservation of built heritage

FAUUSP and La Sapienza di Roma

2019

Architecture Representation Course. Sketchup, Vray, Indesign e Photoshop CURA

2018

SketchUp and Vray Course DRC

CV

Awards

2021

For Estúdio Módulo, 8o Saint Gobain-Prize, AsBEA - with Agora MOB Building - Category of Comercial Architecture

2021

For Estúdio Módulo, 8o Saint Gobain-Prize, AsBEA, from 2000m2 to 10.000m2 - with New Headquarters of AEAS - Association of Engineers and Architects of Sorocaba

Competition

2019

For Estúdio Módulo, IAB SP Award, mixed structure projects category , with New Headquarters of AEAS - Association of Engineers and Architects of Sorocaba

2019

For Estúdio Módulo, 1st Prize with New Headquarters of AEAS - Association of Engineers and Architects of Sorocaba

Competition

Competitions

2022

Competition to design new Giannina Gaslini Hospital [OBR Open Building Research]

2020

Senegal Elementary School Competition

Archstorming + Let’s Build my School

2019

Competition to design the New Headquarters of AEASAssociation of Engineers and Architects of Sorocaba [Estúdio Módulo]

OtherActivities

2018

Graduation Monitoring

AUH0516 Social Foundations of Architecture and Urbanism II

Tutor DSc. Ana Lucia Duarte Lanna

2017_2018

Contributor in AAAFAUUSP, Associação Atlética Acadêmica

2016_2018

Italian Language Course, basic_advanced

CAVC Idiomas

Autocad

Revit

Archicad

SketchUp

Rhino

Enscape

Vray

Qgis

MidasGen

Adobe Illustrator

Adobe Photoshop

Adobe Indesign

Adobe XD

Ms O ice

French Basic

3
Languages
Fluent
Skills
Portuguese Native English
Italian Fluent [CILS B2]
PARCO NORD LINKING PATH Infrastructure PoliMi, 2021/22 22 RESIDENTIAL COMPLEX PADOVA Residential/Commercial/ Cultural PoliMi, 2022 08 EXPANSION PAVILION MENIL COLLECTION Cultural PoliMi/Fondazione Renzo Piano, 2023 16 23 Sul Arquitetura _OBR Sapienza Università di Roma 34 ELICA PAVILION Commercial/Cultural La Sapienza Roma, 2019/20 38 NEW AEAS HEADQUARTERS Institutional Estúdio Módulo, 2019 42 THREE CHALETS AND A HOUSE Residential 23 Sul, 2020/21
INDEX SENEGAL ELEMENTARY SCHOOL Educational FAUUSP, 2020 28 46 ‘JARDIM AMÉRICA’ SHED Commercial/Cultural 23 Sul, 2020/21
04 REFERENCE LETTERS

Carta de recomendação

4

Carta de recomendação

5

OBR

Open Building Research ® obr.eu

info@obr.eu

OBR Via Ciovasso, 4

20121 Milano

T +39 02 84268200

Open Building Research S.r.l.

R.I. Milano

R.E.A. Milano 1901348

c.f. e Partita IVA 01584820995

Certified ISO 9001:2015

Milano, 30th March 2023

To Whom It May Concern.

Dear Sir/Madam,

We are pleased to introduce Architect Vitoria Hassuani.

Vitoria did an internship in OBR Open Building Research from July to August 2022.

Vitoria improved her design skills being part of the OBR Team in the design competition for the Nuovo Ospedale Gaslini in Genova.

She was involved in OBR design activities with several tasks, delivering drawings from preliminary to schematic and technical design.

During her collaboration in OBR, Vitoria has proven herself to be of great value to her Team. She is a dedicated person both in the design process and in the personal interaction with the Team.

Vitoria has demonstrated a strong passion for architecture with a critical attitude, showing great curiosity and interest in culture, always striving to understand the projects’ surroundings.

We were very pleased to have Vitoria part of our Team, as we found her to be imaginative, clear and capable within the interdisciplinary environment which we maintain in our firm.

We are optimistic about her success and wish her the best in her future endeavours.

Best regards,

6

13/05/2022

To whom It MayConcern:

therequest of VitóriaHassuani. I haveknown Vitória for a Sapienza. She attendedmy Atelierdi Publice Exhibit Design(2020) this subject. Based on Vitória’s grades, attendance, andclass academicperformanceinmyclassesasexceptional.

I write thisrecommendationat therequest ofVitóriaHassuani.I haveknown Vitóriafora semesterasa teacheratSapienza.SheattendedmyAtelierdi Publice Exhibit Design(2020) andscoredaboveaveragein thissubject. Based on Vitória’sgrades,attendance,andclass participation,I rateheracademicperformanceinmyclassesasexceptional.

Vitóriahasmanyskills tooffer.First of allsheisverycuriousintellectuallyandhasculturaland designskills that allowsher to facechallengingprojectsandprograms. Alsosheisalwaysinterestedinhelpingothersandisconcernedwithlearningquickly.

First of allsheisverycuriousintellectuallyandhasculturaland facechallengingprojectsandprograms. eisalwaysinterestedinhelpingothersandisconcernedwithlearningquickly. Vitória. I amavailable for furtherinformation, if necessary, byemail mclaudia.clemente@labics.it

Inshort, I highlyrecommend Vitória. I amavailable for furtherinformation, ifnecessary,byemail at mclaudia.clemente@labics.it

Yourssincerely,

7

RESIDENTIAL COMPLEX PADOVA

_ Laboratorio Architecture of Complex Structures I _Politecnico di Milano, 2022

_Team

Antonio Todarello

Cláudia Aires de Sá Vitória Hassuani

_Orientation

Prof. Tomaso Monestiroli

Prof. Simone Boldrin

Prof. Vassilis Mpampatsikos

Prof. Fulvio Re Cecconi

_Local Ex Caserma Prandina, Padova, Italy

_Tools

Revit

Autocad

Rhino

Grasshopper

Illustrator

Photoshop Indesign

This project was conducted as part of the “Laboratory of Complex Constructions I” during the final Studio of the Master’s Degree in Building Architecture at Politecnico di Milano.

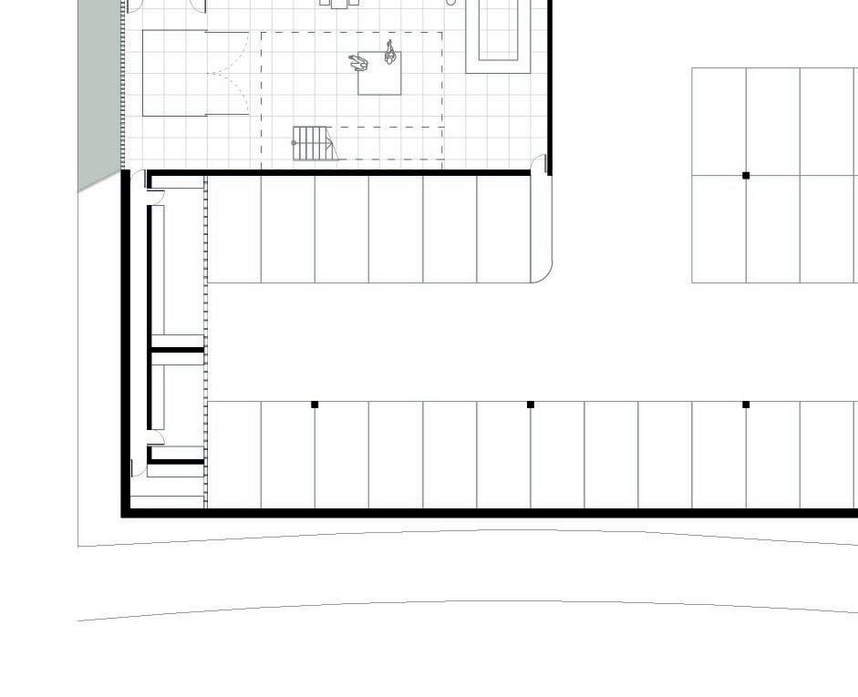
The project site is situated on the outskirts of the historic center of Padova, within a former military complex. Presently, the area, which is partly owned by the Municipality of Padova, is in a state of nearabandonment and decay. The open spaces are currently utilized as parking lots, while some of the old buildings serve as public o ices. Additionally, there is a significant portion of public gardens and a Monastery, which have been preserved as part of the project.

One of the primary objectives of the project was to create a building complex integrated within a green park. Given the unfavorable condition of the existing buildings in the area, we opted to demolish them entirely and completely redesign the lot, with a focus on preserving as much greenery as possible.

Furthermore, the overall masterplan took into account the existence of an ancient wall, and therefore, we aimed to establish pathways that relate to it. These pathways include the linear park, the residential complex, the collective buildings, and the main square.

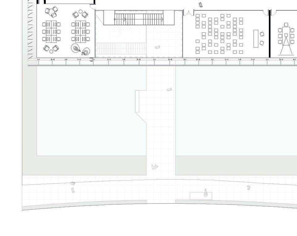
As a result, the new complex consists of a total of six buildings. Four of these buildings are designated for residential use, considering the significant role that the university plays in the city of Padova. Additionally, there is a library building and a multifunctional hall that hosts exhibitions, sports activities, recreational events, and shows. Moreover, commercial spaces have been incorporated, intended to serve both the new tenants of the area and the city’s residents.

8
9 Axonometric view masterplan
Masterplan volumetric plan
Masterplan oor plan Masterplan type plan 0 10 30m 20
DET.3 DET.1 DET.2 0 1 3m 2 Floor plan
Transversal section Type oor plan
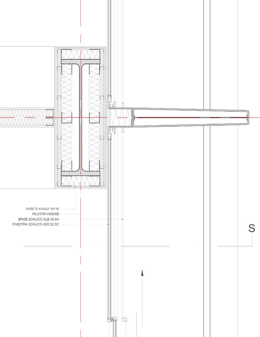
DET.1 | Collective façade detail Isometric: bridge building
DET 3 | Rooms façade - top to bottom detail
0 0.51m
DET.2 | Rooms façade detail
0 1 3m 2 Floor plan
Transversal section Isometric: Navata Building
Lower oor plan
Main elevation
0 1 3m 2 Upper oor plan Floor plan
Transversal section Isometric: Quadratone Building Main elevation

EXPANSION PAVILION MENIL COLLECTION

_LaboratoriodelCostruire

_PolitecnicodiMilanoand

FondazioneRenzoPiano, 2023 [in progress]

_Team

Andrea Varone

Jessica Boriello

Tommaso Caldara

Vitória Hassuani

_Orientation

Arch. Renzo Piano

Prof. Francesca Belloni

Prof. Massimiliano Nastri

Prof. Massimiliano Bocciarelli

Prof. Ingrid Paoletti

Elisa Boeri

Michella Pilotti

_Local Houston, Texas, United States

_Tools

Revit

Autocad

Rhino

Illustrator

Photoshop Indesign

Physical models

This project is currently in development as part of the “Laboratorio del Costruire,” a course led by Architect Renzo Piano and the Tutors from Politecnico di Milano.

The main goal of the course was to recognize aspects of a specific project that could be subject to debate. This goal was achieved by considering the testimonies of Architect Renzo Piano and his collaborators, who shared insights about the development of notable projects from his career. By drawing upon their experiences and expertise, the course aimed to identify thematics within a project that could be reconsidered, improved, or approached di erently, and to propose alternative solutions or ideas based on those re ections.

Motivated by Architect Piano, our case study was Menil Collection. A very remarcable project of the Architect’s career, it has changed the way we see natural light and interact with it when designing a building. However, understanding that the museum was designed in the 80s, our research started with persuing a possibile improvement of the energy consume for the existing building and, after that, moved into the proposition of a new museum, inspired by light and energetic sustainability, next to the Menil Collection.

By saying that, the project consists in the creation of a ‘light box’, an experimental museum and its roof was the main object of study. The building is 48m x 48m, modulated as Menil Collection, with a 12m x 6m grid. We proposed a 3 layer roof, composed by a layer of reticular beams, glass, and the leafs to filter the sun light before it enters the building.

16
17 Section Nord-Sud
0 510m
Exploded structure Floor plan detail Plan 6.5m detail 0 0.51m

Glass layer

Profile Ø 4cm

Profile Ø 4cm

Profile Ø 6cm

Secondary reticular beam

Roof scheme layers

Glass layer

Secondary reticular beam

Leafs

IPE 100 Secondary structure which sustain the leafs

Mero sferical node

Profile Ø 8cm

Profile Ø 6cm

Primary reticular beam

Primary reticular beam

Leafs layer

Exploded detail

PARCO NORD LINKING PATH

Laboratorio Architecture forinfrastructures

_PolitecnicodiMilano, 2021/22

_Team

Alice Lomio

Anna Lotto

Marco Lampugnani

Mariarita Loiacono

Samuel Ma ioli

Vitória Hassuani

_Orientation

Prof. Stefano Guidarini

Prof. Matteo Bruggi

Prof. Marco Gianinetto

_Local Parco Nord, Milano, Italia

_Tools

Revit Autocad

Rhino Grasshopper

Lumion

Illustrator

Photoshop

Indesign

This project was undertaken as part of the “Laboratory of Structures and Infrastructures in the Landscape” within the Master’s Degree Course in Building Architecture at Politecnico di Milano.

The primary objective of the project is to reconnect existing cycling and pedestrian paths through a new intervention. The initial studies involved an analysis of the area and its context, focusing on an existing bridge with a symmetrical shape that crossed Viale Fulvio Testi, connecting two areas near the Giulio Casiraghi school and the Multimedica. It was observed that the former bridge was unable to e iciently distribute the ow of pedestrians and cyclists, not only due to its plan shape but also its limited width.

The proposed solution aims to create a significantly di erent bridge, characterized by uid shapes that facilitate connectivity between the surrounding areas. The bridge section has been designed with a width of 5 meters, providing ample space for the smooth passage of both pedestrians and cyclists.

From a construction perspective, the new bridge is positioned alongside the existing one, ensuring its continued use during the construction phase.

The bridge features four arms that gradually rise in altitude with a gradient of 6%. Adjacent to one of the entrances to the wooded area, two sets of circular stairs accompany the arms of the bridge. This placement of the staircases allows for the interruption of the corresponding lengths of two arms, providing additional points of descent for users.

22
23

Exploded structure

BRIDGE
PARAPET

Cylindrical steel handrail with Ø 4 cm, height 90 cm

Parapet in cylindrical tubular steel with Ø 2 cm, height 110 cm

Internal downspout Ø 10 cm

Concrete 5 cm with 2% slope

Corrugated sheet 5 cm and 2 mm thick

Bridge support 10 x 10 x 10 cm

Beam HEA500 (height 49 cm and ange width 30 cm, thickness 2.30 cm and web thickness 1.20 cm)

Pillar CHS 610/50, Ø 61 cm and thickness 5 cm, maximum height 600 cm

Reinforced concrete plinth and anchor plate

BRIDGE SUPPORT

HEA200 cross beam, height 19 cm and base 20 cm, thickness 1 cm and web thickness 0.65 cm

Longitudinal beam and head beam HEA500, height 59 cm and base 30 cm, thickness 2.30 cm and web thickness 1.20 cm

CONCRETE FOUNDATION

0 1m Perspective section

STAIRCASE

Continuity plates

End plates

Beam HEB280, 280x280mm (bxh), thickness 18mm, web thickness 10.5mm

Pulvino stump; connected with HEB280

Connection plates of the beams, with bolts

Pillar of Ø 40 cm, thickness of 3 cm

PARAPET

Cylindrical steel handrail with Ø 4 cm, height 90 cm

5 x 10cm profile for passing the lighting power supply

Parapet in cylindrical tubular steel with Ø 2 cm, height 110 cm

Rectangular beam, 55 x 10 cm, thickness 1.25cm 5 x 10cm profile for lighting power supply passage

Concrete foundation

CONCRETE FOUNDATION

BRIDGE SUPPORT AND BEAMS 5cm thick steps; in metal sheet of 0.8cm with concrete casting
0
STAIRS
123m
Staircase section

SENEGAL ELEMENTARY SCHOOL

ArchstormingSenegal Elementary SchoolCompetition

_FaculdadedeArquiteturae Urbanismo

daUniversidadedeSãoPaulo, 2020

_Team

Cláudia Aires

Nathan Brito

Lívia Frugoli

Vitória Hassuani

_Orientation

Prof. Antonio Carlos Barossi

Prof. Ricardo Ronconi

Prof.a Helena Ayoub

_Local Marsassoum, Senegal

_Area

1172m2

_Tools

Autocad

Sketchup

Enscape

Illustrator

Photoshop

Indesign

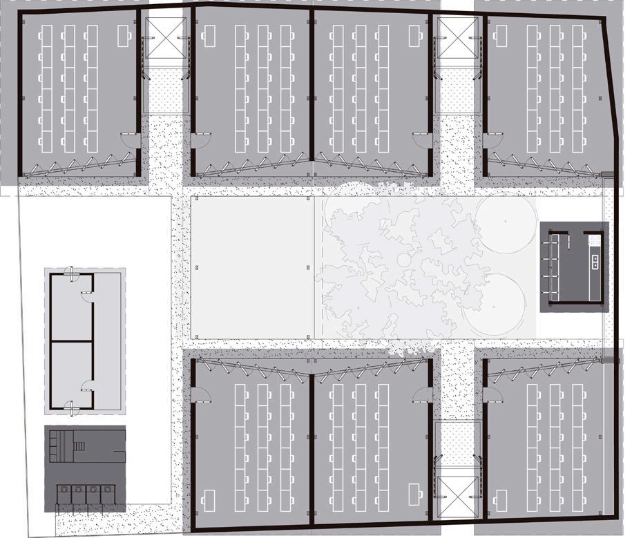
The Senegal Elementary School project was developed within the context of a competition organized by the Archstorming Association, in collaboration with LBMS (Let’s build my school).

The primary objective was to replace the existing school facility located in Marsassoum, Senegal, with a new structure constructed using local materials, local labor, and volunteers.

The project was guided by a process of construction rationalization, taking into consideration a restricted budget and a specific program.

The team’s main focus was to design a building that fosters social interaction and creates permeable spaces, not only visually but also for e icient wind circulation. The proposed design consists of seven rooms, each measuring 63m2, arranged in two rows around a central courtyard where a mature tree is already present. A living area is situated between the courtyard and the entrance, while gravel paths connect all the di erent areas.

The construction process was carefully planned to optimize material usage and ease of construction. Local materials such as sand, wood, cement, and clay were chosen, as they are familiar to the community and readily available. Additionally, a comprehensive installation manual was created to guide and involve the community in the construction process, thereby instilling a sense of ownership in building their new school.

28

Program functional adm classes

Program departments

administrative services classrooms open spaces

Section L1 Section L2 Section L3
Cycles
insolation water waste ventilation
1
X tightener
accessories
4 X steel cable
1 X base 12 X bolt PILLAR WAGON BEAM ROOF 30% clay 70% sand 15 cm spacing 12 cm concrete 30 cm concrete 60 cm gravel TAIPA
4 X eye bolt
1 4 2 5 3 6 7 X p1 7 X p2 2 X p6 1 X p4 1 X p3 2 X p5 FURNITURE PANELS CISTERN ROOF
4 X p3 4 X p4 c.
//l.
k.
d.direction//s.W.C. c1 c2 c5 l k d s c3 c6 c4 c7 24 X p1 24 X p2
1.wood frame//2.concreting 1//3.reinforcement//4.spacer//5.concreting//6.unmolding
classroom
living spaces//
kitchen//

ELICA PAVILION

AtelierdiPubliceExhibit Design

_SapienzaUniversitàdi Roma,2019/20

_Team

Julia Lima

Luiza Campi

Vitória Hassuani

_Orientation

Prof. Maria Claudia Clemente

Arch. Gaia Maria Lombardo

_Local

Pavillion in ‘Salone dei Mobili’

_Area

400m2

_Tools

Autocad

SketchUp

Illustrator

Photoshop

Indesign

This project was conducted in 2019 as part of the “Atelier di Public e Exhibit Design” course at Sapienza Università di Roma during my exchange student period.

The installation was developed for Elica Aria Nuova, an innovative company specializing in the production of hoods and air purifiers. The design concept aimed to create an exhibition pavilion that showcases the company’s products and brand communication.

The project draws inspiration from the Italian company’s ability to create shapes and spaces that cater to customer needs. The design incorporates a grid system and adaptable modules that can be adjusted to di erent levels, oors, and spatial requirements, considering a well-defined program.

The structure is constructed using metallic sca olding with a minimum module size of 60x60 centimeters, which can be adapted to 120x60 centimeter modules. These modules are combined with colored MDF boards to form benches, side enclosures, and ooring elements.

The team employed an assembly and disassembly strategy, utilizing both solid and void elements to achieve a final installed form of 20x20 meters, derived from the primary module. The exploration of paths and shapes within the longitudinal and transversal aspects of the installation was a significant focus of the study.

In terms of the program, the installation includes an entrance locker room, meeting rooms, exhibition spaces, a lounge area, and a kitchen designed for events.

34
Perspectives
Photos of model, made of metallic wires
3 4 5 7 8 9 10 11 6 1_Entrance 2_Lockers 3_Meeting Rooms 4_Kitchen 5_Lounge Area 6_Snaps Room 7_Expographic Area 8_Expographic Area 9_Expographic Area 10_Expographic Area 11_Exit PROGRAM AND SPACIAL DISTRIBUTION Ground Level Plan Perspective section 0123m Upper Level Plan
Ground level plan [1.5m
Section BB
AA A A 01 23 B B
height]
Section
Upper level plan [2.5m height]

circolazione

Circulation

circolazione

Equipments

apparecchiature

apparecchiature

apparecchiature

circolazione lounge

apparecchiature

lounge

Lounge

circolazione lounge

esposizioneExposition

esposizione

esposizione

esposizione

volume vuoto

volume vuoto volume pieno

Empty volume

volume
Full volume
pieno
INSTALLATION MOUTING LAYERS

NEW AEAS HEADQUARTERS

CompetitionfortheNew HeadquartersofEngineers andArchitectsofSorocaba

_EstúdioMódulo,2019

_Authors

Marcus Vinícius Damon

Guilherme Bravin

_Team

Andressa Diniz

Érica Tomasoni

Lucas Zabeu Cunha

Vitória Hassuani

_IndividualCollaboration

Concept, graphic design, diagrams and images post production

_Awards

First Prize, IAB SP Award, Sain-Gobain Award

_Tools

Autocad

SketchUp

V-ray Photoshop Indesign Illustrator

This project was developed as part of the “Competition for the New Headquarters of Engineers and Architects of Sorocaba.” I had the opportunity to participate in this competition as an intern with Estúdio Módulo.

The proposed new headquarters for AEAS (Engineers and Architects Association of Sorocaba) in the city of Sorocaba aims to re ect the institution’s mission of promoting the development and dissemination of scientific content and knowledge through its architectural design.

The headquarters are divided into three stages and consider a phased construction approach: the bar, the terrace, and the base. The bar, constructed with a metallic structure supported by concrete pillars, appears to oat on a water mirror and e iciently organizes the workspaces. At the city level, the esplanade invites visitors from the sidewalk to take a linear and direct path, while also providing a visually engaging experience by intersecting the water mirror. The design ensures panoramic views of the city and Morro Ipanema, which remain accessible to the public. The base, constructed with concrete, houses more enclosed spaces that are intelligently connected through patios and voids. The central atrium serves as a focal point for circulation. The architectural design aims to strike a balance between the sensations of grandeur, urban integration, and human scale.

38
Roof plan Future tower perimeter Auditorium Civic square AEAS headquarters Lower square plan Area reserved for expansion and tower Auditorium Area for technical access and future works Access control Ground level plan Exploded perspective 0510m

Plan concentrates support areas on the north face and allows greater exibility in the layout of the oors

Rooms with dry-wall and glass closures to facilitate rearrangement of layout

First level plan

Second level plan

Future tower perimeter
Connection planned for future tower Central control concierge
Longitudinal section 0 10m 5 0 10m 5
Trasnversal section

THREE CHALETS AND A HOUSE

23SulArquitetura,2020/21 _Coordenation

Luiz Florence

Gabriel Manzi

_Team

Barbara Sula

Vitória Hassuani

_Local

São Francisco Xavier

_Phases

Concept

Preliminary Study

Legal Project

Executive (in progress)

_Tools

Revit

Autocad

SketchUp

Enscape

Photoshop

Illustrator

Indesign

Physical model

The project for the three chalets and the main house was developed between 2020 and 2021 during my internship with Studio 23Sul Arquitetura.

The concept behind the project was to create a complex consisting of a main house, smaller retreat volumes (chalets), and a common leisure area. Several premises were established, including the avoidance of machine usage due to limited access, minimal use of retaining walls, maintenance of privacy for the main house and chalets, and the provision of collective access to the existing street.

To address these premises, the volumes were positioned radially, ensuring privacy for each unit. Additionally, elevating the buildings from the ground was considered to enhance comfort, particularly given São Francisco Xavier’s humid and rainy climate.

Regarding materiality, the design aimed to use lightweight and easily constructible materials for the house and chalets. This included wood-frame construction, wall panels, minioned tile, plywood, cement board, and wooden structures. The foundation pillars were made of concrete, and cyclopean concrete was chosen for the retaining walls.

2 2 1 2 B C A 1 2 B C A 1 B C A 42
House perspective Chalet perspective
Chalet ground oor plan Chalet upper oor plan 0 3m2 1
Chalet perspective
1 2 3 4 5 6 7 8 9 10 11 A B C D E House oor plan Axonometric overview 0 3m2 1

wall panel 4cm

wood beam 150x300

wood beam 50x100

concrete pillar

wire mesh guardrail

wood panel 3cm

external wood frame+ plywood/OSB

wood ooring

glass courtain wall

miniwave

CHALET Transversal section chalet 0 3m2 1
miniwave
wood ooring wire mesh guardrail wood panel 3cm external wood frame+ plywood/OSB glass courtain wall wood beam 150x300
HOUSE Transversal section house 0 3m2 1
concrete pillar

‘JARDIM AMÉRICA’ SHED

23SulArquitetura,2020/21 _Coordenation

Ivo Magaldi

Gabriel Manzi

_Team

Ana Mulky

Tatiane Teles

Vitória Hassuani

_Local

São Paulo

_Area

697 m2

_Landscaping

Klara Kaiser

_Tools

Autocad

SketchUp

Indesgin

Illustrator

Photoshop

Enscape

Maquete física

_Phases

Concept

Preliminary Study

Legal Project Executive (in progress)

This project was developed between 2020 and 2021 during my internship with Studio 23Sul Arquitetura.

The design concept was primarily driven by the intention to create a gallery, an experimental, multiuse and open space, by maximizing the use of the available land and incorporating external spaces into the interior. To achieve this, an elongated shape was created with an internal garden, enclosed by a glass skin that provides ample natural light to the interior spaces.

By studying di erent grids, a guiding module was established to determine the layout of the roof, frames, structure, and overall arrangement of the building. The project encompasses a wide scope, featuring a main hall integrated with an atrium, a rear intimate area housing services, toilets, a kitchen, and a living room/library.

The upper oor consists of a raised platform with multiple functions, extending throughout the building and facing the atrium facades. Additionally, a private room is located on this oor.

Aesthetically, the building aims to embrace its industrial identity by showcasing the metallic structure, steel frame slabs, and ‘vitrô’ frame enclosures. The atrium facade features a frame that extends to the structural height of the walkway, allowing the hall to fully open up to the internal garden.

Images: Martorelli

46
Section L1 Upper oor plan Ground oor plan Section L2 510m 20
Transversal section Structure diagram Isometric longitudinal section Pillar 150x150 Pillar 200x100 Beam 250x150 Grid roof structure 2m10
Thank you! vitoria.hassuani@usp.br vitoria.hassuani@mail.polimi.it +55 19 982241152 +39 3487168456 VITÓRIA
HASSUANI

Turn static files into dynamic content formats.

Create a flipbook
Issuu converts static files into: digital portfolios, online yearbooks, online catalogs, digital photo albums and more. Sign up and create your flipbook.