Viktória Éva Lélek
Lebenslauf

BERUFSERFAHRUNG
2024 - 2026
Doktorandin
Institut für Stadt- und Regionalforschung, Österreichische Akademie der Wissenschaften, Wien
AUSBILDUNG
2022 - 2026
Doktoratsstudium Architektur
Technische Universität Wien & Universitat Polytechnica de Catalunya
Barcelona
2023 - 2024
Architektin, Projektteam
Berger Parkkinen Architekten, Wien
2020 - 2022
Architektin, Projektteam
Gerner Gerner Plus, Wien
2019 - 2020
Architektin, Wettbewerbsteam
Gerner Gerner Plus, Wien
2018 - 2019
Architekturpraktikum
Gerner Gerner Plus, Wien
2017
Architekturpraktikum
Renner Hainke Wirth Zirn Architekten, Hamburg
2017 - 2019
Masterstudium Architektur
Technische Universität Wien
2013 - 2017
Bachelorstudium Architektur
Technische Universität Wien
2016 - 2017
Interior Design Assistentin
Mayr & Glatzl Interiors, Formdepot, Wien
Englisch C2 Cambridge Certificate in Advanced English
Deutsch C1 Deutsches Sprachdiplom
Ungarisch Muttersprache
Inhalt
Architekturprojekte | Wohnbau
Architekturwettbewerb | Gesundheitszentrum
Architekturwettbewerbe | Wohnbau
Architekturwettbewerb | Schule
Bachelorarbeit | Copy - Paste
Europan 16 | Polycube
Studentenwettbewerb | wall in one
Eigene
Masterarbeit



www.linkedin.com/in/viktoria-eva-lelek/
| Interior Design

Schönbrunner Straße



Architekturprojekte Wohnbau in Österreich und Deutschland
Mitarbeit in Leistungsphasen: Vorentwurf, Entwurf, Einreichplanung und Ausführungsplanung bei diversen Neubau-, und Umbauprojekten.

Grundriss
Axonometrie Lageplan
Architekturwettbewerb
Gesundheitszentrum
Gerner Gerner Plus.

Gesundheitscampus Bad Säckingen
Gesundheitscampus Bad Säckingen

Konzept zur Erweiterung eines Krankenhausareals in Deutschland mit zusätzlichen medizinischen Einrichtungen, Wohn- und Erholungsbereichen. Entwicklung eines Mobilitätskonzepts mit Parkierung und ÖV-Anbindung sowie eines Freiraumkonzepts mit Parks und Plätzen zur Vernetzung der Gebäude und Förderung der Aufenthaltsqualität.
Psychiatrische Tagesklinik
Psychiatrische Tagesklinik
Grundriss Axonometrie Lageplan
Therapiezentrum und Patientenbad
Therapiezentrum und Patientenbad
Architekturwettbewerbe Wohnbau
Gerner Gerner Plus. Mitarbeit in dem Wettbewerbsteam bei mehreren Wohnungsbauwettbewerben in Neubaugebieten in Wien. Die vier Ansichten zeigen das Projekt Jahresringe im Wildgarten, das den ersten Preis gewonnen hat und bereits realisiert wurde. Ergänzend wurden verschiedene Konzeptstudien für neue Wohngebiete entwickelt, darunter das auf der folgenden Seite dargestellte Projekt in Holz-Beton-Hybridbauweise.
Ansichten
Visualisierung



Perspektive Sonnenterrasse
Architekturwettbewerb
Schule
BRG Wr. Neustadt
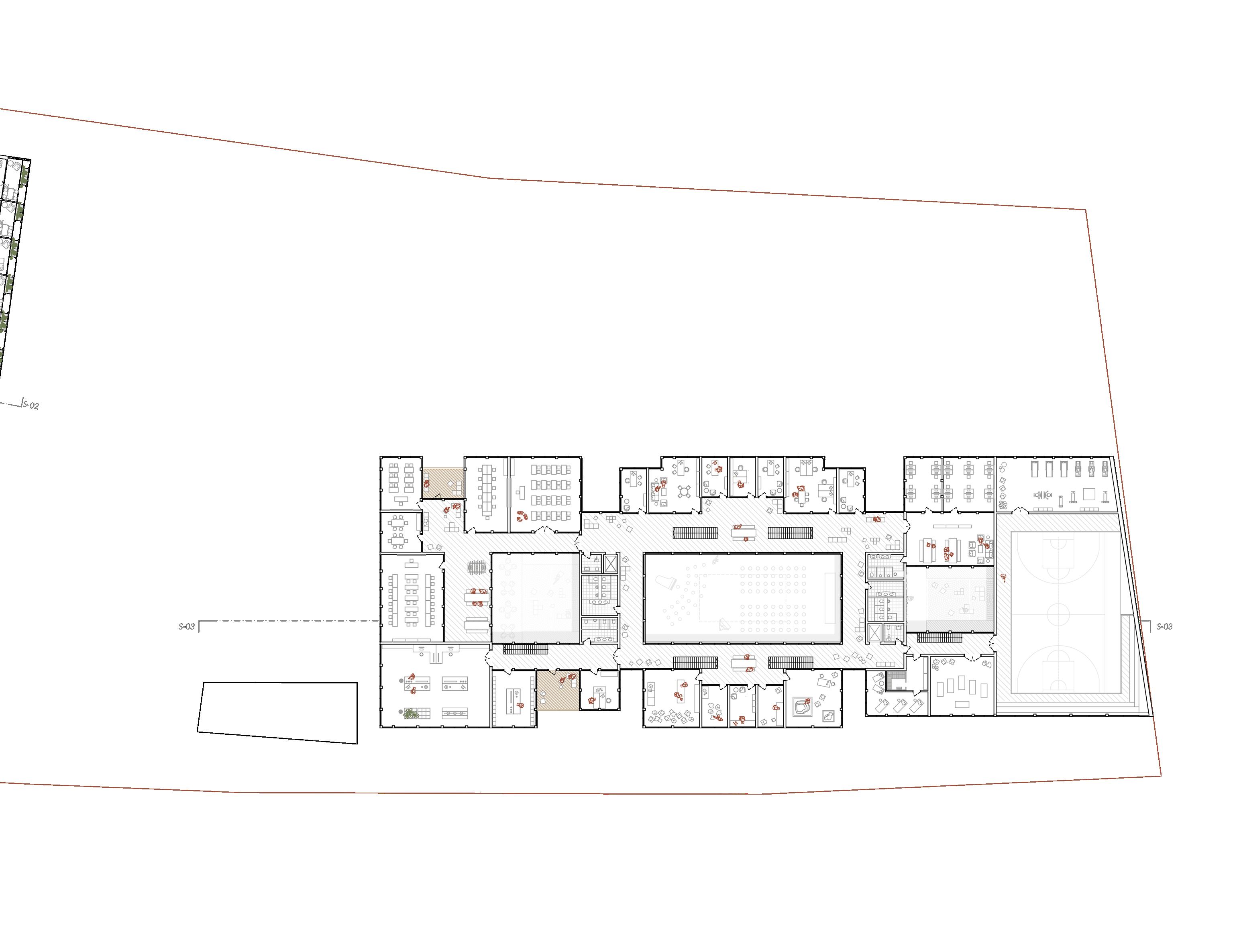
Gerner Gerner Plus. Wettbewerb zur Erweiterung eines Gymnasiums um zusätzliche Sportanlagen und Unterrichtsräume. Die Klassenzimmer sind über der Sporthalle angeordnet und durch große Öffnungen mit Terrassen auf mehreren Ebenen verbunden. Tageslicht, Außenbezug und Lernbereiche im Freien bilden zentrale Elemente des Entwurfs.
Architektonisches Konzept
Für die Schulerweiterung des BRG Wiener Neustadt wird eine klare und offene Struktur konzipiert, die in das bestehende Ensemble eingefügt wird Die Dynamik der Form entsteht durch die Drehung eines strengen Volumenkörpers, der auf mehreren Ebenen mir der bestehenden Struktur verbunden wird Durch diese Verbindungen entstehen großzügige Räumlichkeiten im Inneren, die fließend in Terrassen im Außenraum übergehen Es entsteht eine architektonische Landschaft, die gleichzeitig eine neue Identität dem BRG Wiener Neustadt zulegt
Schritt 2
Positionierung der neuen Spielhalle & Bildung von Terrassen im Süden
Das bestehende Gebäudeensemble auf dem Wettbewerbsgebiet umfasst die unter Denkmalschutz stehende Burkhardvilla aus dem Jahr 1885 und das eigentliche Schulgebäude aus dem Jahr 1981 Die beiden bestehenden Turnsäle werden aufgrund bautechnischer Mängel abgerissen und durch einen Erweiterungsbau ersetzt Das erweiterte Raumprogramm beinhaltet eine neue Spielhalle, sowie neue Theorieräume, allgemeine Bereiche und weitere zusätzlichen Funktionen Die geforderte Nutzfläche wird ausgehend von einer Personenanzahl von 110 LehrerInnen und 1000 SchülerInnen berechnet
Die neue Spielhalle wird an der westlichen Seite des Grundstücks parallel zur Grundstücksgrenze positioniert Durch die Drehung des Baukörpers entstehen großzügige Zwischenräume, die als allgemeine und gemeinschaftliche Flächen - Mehrzweckhalle im Erdgeschoß und Garderoben im Untergeschoß - funktionieren Als Verbindung zum Bestand werden Terrassen auf mehreren Ebenen gebildet, die nach Süden orientiert sind Die Eingänge des Bestandes bleiben erhalten, zusätzlich wird der neue Spielhallenbereich wird mit einem separaten Eingang erschlossen Der Hallenbetrieb wird somit unabhängig vom Schulbetrieb ermöglicht Die Verbindung der Erweiterung mit dem Bestand erfolgt nicht nur mehrfach im Außenraum, sondern auch im Inneren des Gebäudes Die zentrale Aula im Erdgeschoss verbindet die allgemeinen Bereiche mit der Funktionen der Tagesbetreuung Der Speisesaal und die Aufwärmküche haben einen direkten Zugang zu der nach Süden gerichteten Sonnenterrasse und sind von den Gruppenräumen gut erreichbar
Schritt 4
Neustadt wird eine in das bestehende Form entsteht durch Volumenkörpers der auf mehreren verbunden wird Durch großzügige Räumlichkeiten im Außenraum übergehen Es die gleichzeitig eine zulegt dem Wettbewerbsgebiet stehende Burkhardvilla aus Schulgebäude aus dem Jahr Turnsäle werden aufgrund und durch einen erweiterte Raumprogramm neue Theorieräume zusätzlichen Funktionen Die einer Personenanzahl SchülerInnen berechnet westlichen Seite des Grundstücksgrenze positioniert Durch entstehen großzügige und gemeinschaftliche und Garderoben im Verbindung zum Bestand Ebenen gebildet die nach des Bestandes bleiben Spielhallenbereich wird mit Der Hallenbetrieb wird ermöglicht Die Verbindung nicht nur mehrfach im des Gebäudes Die verbindet die allgemeinen Tagesbetreuung Der einen direkten Zugang Sonnenterrasse und sind von


Schritt 1










Abbruch der bestehenden Turnsäle Erweiterung des Raumprogramms






Schulhochbeet

Lageplan Ansicht Visualisierung
Schritt 3
Klares statisches System & großzügige Terrassen Südseitige


Schritt 1 Abbruch der bestehenden Turnsäle & Erweiterung des Raumprogramms












Lageplan M 1:500
Stand: 25.08.2020
Erweiterungsbau 2023
Neue Sporthalle, neue Stammklassen & weitere Funktionen













Ergänzung & Neuorganisation im Bestand errassen
Axonometrie Entwurfskonzept


Lageplan M 1:500
Stand: 25.08.2020
Erweiterungsbau 2023

Neue Sporthalle, neue Stammklassen & weitere Funktionen Hauptgebäude
PKW-Stellplätze Neuorganisation













Schritt 2 Positionierung der neuen Spielhalle & Bildung von Terrassen im Süden
Schema Sonnenterrassen
Schulhochbeet
Perspektive Übersicht











Schritt 3








































Ergänzung & Neuorganisation im Bestand Schritt 4 Klares statisches System & großzügige Terrassen
Axonometrie Entwurfskonzept






Schema Sonnenterrassen
Perspektive Übersicht







Fahrradabstellplätze Neuorganisation



Fassadensschnitt M 1:50 Perspektive Übersicht
Lageplan M 1:500
Wr. Neustadt
Architektonisches Konzept









Burkhardvilla 1885 Neuorganisation bestehender Funktionen, eine bauliche Änderung Vorplatz Villa Keine bauliche Änderung





Visualisierung
Detail
Schnitt

Fahrradabstellplätze Neuorganisation
Erweiterungsbau 2023
Neue Sporthalle neue Stammklassen & weitere Funktionen
Hauptgebäude 1981
PKW-Stellplätze Neuorganisation
Neuorganisation bestehender Funktionen, neue Verbindungen
Durchgang Neue Verbindung
Lageplan M 1:500






Fassadensschnitt M 1:50
Burkhardvilla 1885
Stand: 25.08.2020
Aussenanlagen Basketballarena
Grundriss
Untergeschoss Souterrain M 1:200
Erweiterungsbau 2023
Neue Sporthalle, neue Stammklassen & weitere Funktionen
Neuorganisation bestehender Funktionen, keine bauliche Änderung Vorplatz Villa Keine bauliche Änderung







Schulerweiterung des BRG Wiener Neustadt wird eine offene Struktur konzipiert die in das bestehende eingefügt wird Die Dynamik der Form entsteht durch eines strengen Volumenkörpers der auf mehreren der bestehenden Struktur verbunden wird Durch Verbindungen entstehen großzügige Räumlichkeiten im fließend in Terrassen im Außenraum übergehen Es eine architektonische Landschaft, die gleichzeitig eine Identität dem BRG Wiener Neustadt zulegt bestehende Gebäudeensemble auf dem Wettbewerbsgebiet unter Denkmalschutz stehende Burkhardvilla aus 1885 und das eigentliche Schulgebäude aus dem Jahr beiden bestehenden Turnsäle werden aufgrund bautechnischer Mängel abgerissen und durch einen Erweiterungsbau ersetzt Das erweiterte Raumprogramm eine neue Spielhalle, sowie neue Theorieräume Bereiche und weitere zusätzlichen Funktionen Die Nutzfläche wird ausgehend von einer Personenanzahl LehrerInnen und 1000 SchülerInnen berechnet Spielhalle wird an der westlichen Seite des parallel zur Grundstücksgrenze positioniert Durch Drehung des Baukörpers entstehen großzügige Zwischenräume die als allgemeine und gemeinschaftliche Mehrzweckhalle im Erdgeschoß und Garderoben im Untergeschoß - funktionieren Als Verbindung zum Bestand Terrassen auf mehreren Ebenen gebildet, die nach orientiert sind Die Eingänge des Bestandes bleiben zusätzlich wird der neue Spielhallenbereich wird mit separaten Eingang erschlossen Der Hallenbetrieb wird




Aussenanlagen Basketballarena
Perspektive Übersicht
Bachelorarbeit
Copy - Paste
Technische Universtät Wien
Detailierungsgrad 1:50
Erweiterung des TBA-Museums im Augarten mit zusätzlichen Ausstellungsflächen, Kunstdepot im Untergeschoss und neuen Büroflächen. Ein „Artist-in-Residence“Programm ermöglicht Künstlerinnen und Künstlern das Arbeiten und Wohnen vor Ort. Die neuen Funktionen sind in Glashäusern untergebracht, die die bestehenden Formen interpretieren. Das Konzept versteht die TBA als experimentellen Raum für Performance und zeitgenössische Kunst.
Lageplan Grundriss


EG - Detailierungsgrad 1:200
Grundriss
Modell
Schnitt




Europan 16 Polycube
Roquetas de Mar, Spanien
Beitrag in einer Kleingruppe zum Wettbewerb Europan 16 in Roquetas de Mar. Die Stadt fungiert als funktionales Zentrum der Agrarmetropole im westlichen Teil des Ballungsraums Almería. Die Region ist geprägt durch intensive landwirtschaftliche Produktion mit innovativen Technologien in Gewächshäusern, sowie durch starkes Bevölkerungswachstum seit der zweiten Hälfte des 20. Jahrhunderts. Neben ihrer Bedeutung für den nationalen Gemüseexport ist sie auch ein internationales Touristenziel mit überdurchschnittlichen Besucherzahlen im Vergleich zum andalusischen Durchschnitt.
Lageplan Grundriss 1.OG




Ansicht

Blick aus den Wohnungen
Das Wohnkonzept basiert auf der Idee gemeinschaftlich genutzter Räume. Der Grundriss organisiert sich um ein zentrales Treppenhaus und einen Sanitärkern, der die technischen Installationen bündelt. Parallele Doppelflure verbinden die Zellenwohnungen mit gemeinschaftlichen Bereichen wie Küchen, Bibliothek, Spielund Aufenthaltsräumen und erschließen alle drei Gebäudeteile. Die Typ-S-Wohnungen sind für Einzelpersonen oder junge Paare konzipiert und können zu Gruppen von vier Einheiten mit gemeinsamer Küche und Sanitärbereich zusammengefasst werden, mit dem Ziel, bezahlbaren Wohnraum für junge Menschen zu schaffen.
Grundriss 1.OG

Die Gebäudehülle besteht aus mehreren Schichten: einer tragenden Massivwand, einer vorgelagerten Loggienzone als Erweiterung der Wohnräume sowie einer äußeren Holzrahmenkonstruktion mit Polycarbonat-Doppelwand. Dazwischen befindet sich ein vertikaler Garten, der als klimatische Pufferzone dient und zugleich als Gewächshaus für die Bewohner genutzt werden kann.
Der Projektstandort liegt zwischen dem östlich gelegenen Stadtteil Las Lomas und dem westlichen Randgebiet La Molina. Urbane Leerstellen entlang der Grenze zwischen Siedlungsraum und landwirtschaftlichen Flächen bieten Potenziale für eine städtebauliche Revitalisierung. Das Projekt Polycube schlägt punktuelle Interventionen vor, die die unterschiedlichen Stadtbereiche miteinander verbinden und zugleich einen markanten städtebaulichen Akzent setzen. Zwei Gebäude und eine dazwischenliegende Grünfläche bilden einen neuen Ort der Begegnung, der für verschiedene Nutzergruppen aus beiden Quartieren konzipiert ist.

Blick in den Innenhof



Studentenwettbewerb wall in one
Archistart Beitrag in einer Kleingruppe zu einem Studentenwettbewerb. Das Projekt reagiert auf die Wohnsituation vieler junger Paare in Mietwohnungen, die flexible Lösungen ohne größere bauliche Eingriffe benötigen. Vor dem Hintergrund zunehmender Home-Office-Nutzung wurde eine multifunktionale Möbelwand entwickelt, die zwischen Wohnund Schlafbereich angeordnet ist und je nach Nutzung geöffnet oder geschlossen werden kann Das modulare System besteht aus handelsüblichen Möbelkomponenten und kann ohne besondere technische Kenntnisse montiert werden. Trotz Wandbefestigung bleibt das System flexibel und anpassbar und eignet sich für unterschiedliche Wohnungsgrößen.


Eigene Projekte
Interior Design und Sanierungsprojekte
Zwischen 2024 und 2026 wurden mehrere Interior-Design- und Umbauprojekte in Ungarn entwickelt und begleitet. Die Projekte umfassen Innenraumkonzepte und deren Ausführungsbegleitung für zwei neu errichtete Einfamilienhäuser und zwei Wohnungen in Sopron, den Umbau einer Wohnung in Budapest sowie die Transformation eines verlassenen denkmalgeschützten Gebäudes in Sopron zu einem Wohnhaus. Der Schwerpunkt lag auf der Entwicklung funktionaler Raumkonzepte, Material- und Farbgestaltung sowie der Koordination der Umsetzung.
Nappali-Konyha


- javaslat: válaszfal eltávolítása, lehetőséget biztosít
Neubauprojekt


Fotos
Foto Grundriss
Neubauprojekt
főzés közben könnyebb háromszög: tárolás/hűtés - tálalás vagy gyors - nagy ablakfelület




Masterarbeit
Urban Parterre Budapest
Technische Universität Wien
Der Begriff StadtParterre beschreibt die Erdgeschosszone als Schnittstelle zwischen gebauter Struktur und öffentlichem Raum. Während eines zweimonatigen Forschungsaufenthalts in Budapest wurde eine Straßenanalyse mittels Stadtrundgängen, Kartierung und einer Umfrage durchgeführt. Ergänzend entstand auf Basis historischer Pläne aus dem Budapester Stadtarchiv ein digitales UrbanParterre-Modell (UPM), das die räumliche Struktur der Erdgeschosszonen detailliert abbildet. Die Analyse konzentriert sich auf ausgewählte Gründerzeitquartiere in Budapest und Wien, deren städtebauliche Entwicklung eng mit der Urbanisierung des 19. Jahrhunderts verbunden ist. Untersucht werden insbesondere Straßenzüge in Józsefváros (Budapest) und in der Josefstadt (Wien), die durch dichte Blockrandbebauung, gemischte Nutzungen und eine aktive Erdgeschosszone geprägt sind. Diese Gebiete ermöglichen einen Vergleich der historischen Entwicklungsprozesse und der heutigen Nutzung des Stadtparterres.
Hofhaus Seitenflügelhaus
Hofhaus mit zwei Höfen
Hofhaus
Krúdy Str. Nr. 16-18
Krúdy Str. Nr. 20
Ansicht Krúdy Gyula Straße
Krúdy Gyula Straße
Forschungsarbeit und Lehre TransHerit
Österreichische Akademie
der Wissenschaften
Ab 2024 wurde die Forschungsarbeit im Rahmen des Forschungsprojektes TransHerit am Institut für Stadt- und Regionalforschung weitergeführt. Das Projekt untersucht die Transformationsprozesse historischer Stadtquartiere und deren Bedeutung für die zeitgenössische Stadtentwicklung. Im Fokus stehen Gründerzeitquartiere in Wien und Budapest sowie deren materielle und immaterielle Dimensionen. Ein wesentlicher Bestandteil der Forschung ist die Analyse von Stadtplanungsinstitutionen und -instrumenten (z.B. der Denkmalpflege) sowie deren Einfluss auf die Transformation dieser Quartiere. Die Arbeit umfasst in erster Linie qualitative Forschungsmethoden, wie Interviews, architektonische- und städtebauliche Analysen sowie die Auswertung historischer und aktueller Planungsdokumente. Gleichzeitig werden quanititative Analysemethoden, digitale Kartierung und GIS Analysien angewendet.



Schema-Schnitt Gründerzeitquartier Budapest



Das Forschungsprojekt ist mit Lehrund Wissensvermittlungsformaten verbunden. Dazu gehören universitäre Lehrveranstaltungen, Workshops, Exkursionen sowie kollaborative KartierungsÜbungen mit Studierenden. Beispielsweise wurde gemeinsam mit der MATE University in Budapest ein Urban Built Heritage Course organisiert, in dem Studierende der Landschaftsarchitektur und des Urbanismus Quartiere in den Budapester Bezirken 7 und 8 analysierten und ihre Ergebnisse in Form von gemeinschaftlichen Kartierungen dokumentierten. In Kooperation mit der TU Wien wurde der Entwurfskurs Supergrätzl 2.0 durchgeführt, in dem Architekturstudierende Quartiere in Wien analysierten und darauf aufbauend Konzepte für neue Superblock-Strukturen entwickelten. Die Lehrformate verbinden analytische Methoden wie Kartierung, Datensheets und Quartiersanalysen mit städtebaulichen Entwurfsaufgaben. Ergänzend wurden Studienexkursionen und Workshops organisiert, unter anderem eine Studienreise nach Budapest, bei der Studierende die Transformation des historischen Gründerzeit-Wohnungsbestands im 8. Bezirk untersuchten und aktuelle Projekte der Stadterneuerung vor Ort kennenlernten.