Sample Portfolio

Page 1


VKD

/ PORTFOLIO OF SELECTED WORKS

/ COLUMBIA UNIVERSITY IN THE CITY OF NEW YORK

Norwegian architect and previous international fashion model. Taking a strategic break after completing a Bachelor of Arts in Architecture from Columbia University before pursuing a Master’s degree in Architecture.

Passionate about social and environmental sustainability, grounded in Nordic sensibilities, with a special interest in academic, civic, residential, and cultural spaces.

Approaching architecture as a method of inquiry rather than mere construction, this body of work explores how systematic interventions engage with complex issues and foster dialogue around challenges such as climate

and

01 Multinational Embassy

MOROCCO

Under the status quo, the Mediterranean Sea is a unique border between North Africa and Europe. For migrants, refugees, and asylum seekers in the region, the current politics surrounding these international waters presents both hope and opportunity as well as many dangers – the Mediterranean is the site of the world’s deadliest migration route in the world. The sheer number of people who attempt the illegal crossing each year is a testament to the failures of current diplomatic and migratory systems that are in place.

In response to this issue, our embassy proposes a diplomatic vision for the region, which frames the Mediterranean Sea as a connection site rather than a division. Like the system of the Schengen region, which exists between many European countries today, we wonder what would happen if all countries with a presence along the coast of the Mediterranean Sea were represented as a singular accessible region. The Multinational Embassy prototype thus reimagines current diplomatic structures by providing consular and embassy services for multiple nationalities rather than one, encouraging cross-cultural relationships and direct diplomatic interactions between nationstates. And, though the site of this project is in Casablanca, we imagine that these multinational embassies will exist in many countries and locations across this region.

Professor Kadambari Baxi

Advanced Architectural Research & Design

In collaboration with Sophia Yiyang Zhang, Andrea Bustamante, and Kaelyn Bowers

Fall 2022

MEDITERRANEAN COUNTRIES SCHENGEN

/ CONTEXT

Map of the site and its context.

/ LARGE SCALE MODEL

A large physical model made in collaboration with the group.

/ EXPLODED AXONOMETRIC

Our group conceived the conceptual idea and the massing model together, then shared design responsibilities.

/ RENDERINGS

Exterior and interior view of consulate pavilions.

/ CIRCULATION

A diagram of ground level and canopy circulation.

AXONOMETRIC

Axonometric drawing of the multilingual library.

02 San Lorenzo Wetland Research Center

Our project transforms the historic San Lorenzo cloister into a vital hub for wetland preservation, addressing the critical disappearance of Venice’s salt marshes. This innovative research center brings the “barrena” (salt marsh) into the urban fabric, creating a living laboratory that combines scientific research with public education.

The design balances private research facilities with public spaces, featuring a central testing field and areas for community engagement. By merging cutting-edge research with public outreach, the center’s permeable architecture reflects its mission of transparency and knowledge sharing, inviting the public to witness and participate in the vital work of wetland conservation while fostering understanding of Venice’s unique lagoon ecosystem.

Summer 2024
Venice Studio with Snøhetta
Guided by Jette Hopp, Jules Gallissian, and Tommaso Maserati
In collaboration with Thitaree Suwiwatchai, Yiwei Bu, and Faris Al-Madani

Hypothetical first map of marshy Venice.

Diversion of the Piave, Sile, and Brenta rivers.

Dredging of the canalto make room for bigger boats.

The MOSE system preventing flood and sediment influx.

/ CONCERN

The disappearance of salt marshes.

Venice, a city with a rich history of marshlands, is now witnessing the degradation of these vital ecosystems due to various human interventions.

The Venetian lagoon, originally a collection of marshy islands, has been transformed over centuries through activities like river diversion, dredging for navigation, and flood prevention measures, all of which have disrupted the natural sediment flow essential for marshland formation and maintenance.

/ PRODUCTION

The production in this productive garden is knowledge. It establishes tem. The center aims to address environmental concerns, educate

To study salt marshes.

Map of the site and its context.

Wetlands are invaluable for their role in absorbing CO2, thus combating climate change more effectively than equivalent areas of forests. They also protect land from storm surges and erosion by buffering tidal currents, and provide crucial habitats for local biodiversity, including halophyte plants that thrive in brackish water. establishes a dedicated space for studying Venice’s overlooked salt marshes, giving Venice a center to study their critical natural ecosysthe public, and lay a foundation for future generations to develop innovative solutions for preserving Venice’s unique ecosystem.

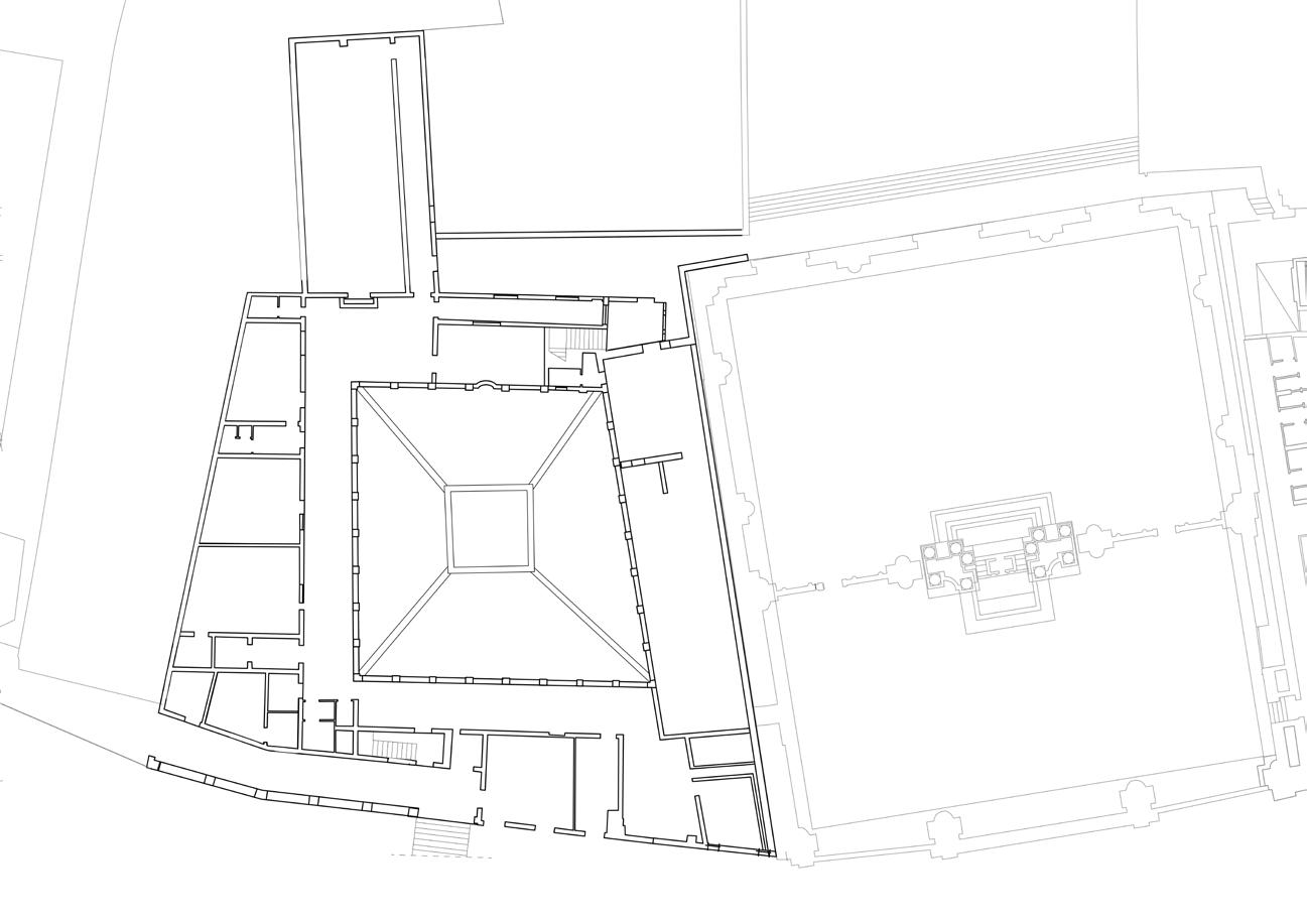
/ DEMOLITION PLAN

/ PUBLIC - PRIVATE DIVISION

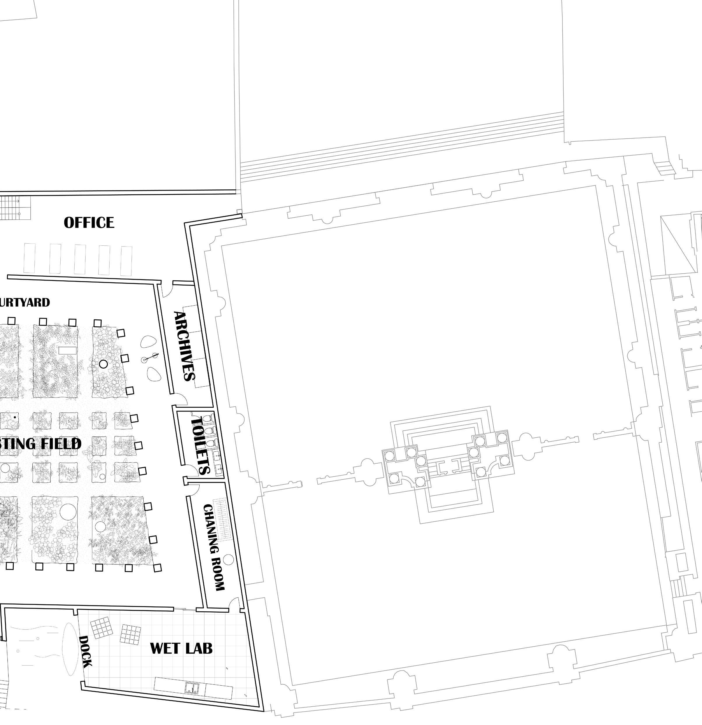
/ PLAN OF INTERVENTION WITH PROGRAM

Our intervention at the old cloister of San Lorenzo transforms the space into a Marshland Research Center, with a central testing field, private research facilities to the rights, and public areas including a visitor center and library to the left.

/ POSSIBLE EXPERIMENTS

a. Most salt cocentrated water

b. Brackish water

c. Least salt concentrated water

d. Low tide

e. PH level samples

f. Hide tide

g. Genetic engineered samples

h. Floating marsh

i. Harvest samples

j. Petri samples

k. Chemical concentration

l. Hydro Experiment

The central testing field is divided into grids for various research purposes, such as pH level analysis, tidal and sea level impact studies, salinity concentration assessments, and experiments with genetically engineered halophytes to withstand environmental changes.

/ SECTION OF WATER ACCESS

Close proximity to the canal secures water access, and floodgates control water flow into experimental tanks, allowing researchers to simulate different conditions and study their effects on the wetland environment.

Showing the relationship to the San Lorenzo church, cutting through the central axis of the testing field with a view of the public visitor center.

/ NORTH FACING VIEW FROM VISITOR CENTER

03 HARLEM NEXUS

Spring 2024

Professor Amina Blacksher

Advanced Architectural Design ll

In collaboration with Davis Hodge

All drawings by me, unless stated otherwise

This housing complex transcends conventional design, fusing residential living with public engagement. Inspired by Harlem’s rich cultural legacy, it creates a nexus of social interaction and cultural exchange. The project embodies connectivity by integrating public amenities like a theater, library, and basketball court for both residents and the wider community. It blurs boundaries between public and private spaces, fostering inclusivity and shared ownership.

Architecturally, stacked, spiraling volumes with rotational cantilevering optimize views, light, outdoor access, and social interaction on every floor. The design accommodates diverse household compositions, from single parents to multigenerational families, reflecting modern living arrangements. At the core of each residential cluster, shared social spaces nurture communal bonds.

This project stands as a manifesto for modern living, demonstrating architecture’s power to shape communities, elevate lives, and enrich the human experience. It’s not merely a building, but a testament to the transformative potential of thoughtful urban design.

/ PROGRAM DIAGRAM

At the heart of our design is the idea of connectivity—both physical and social. We’ve integrated public amenities to function as invitations for people to interact, engage, and belong.

/ EXPLODED AXONOMETRIC OF HOUSING UNITS

Our dream housing addresses the needs of today’s diverse living arrangements, from single parents to multi-generational families. It offers a wide selection of units ranging from studio to 3 bedroom apartment, but what sets us apart from other housing complexes is that each section of our housing complex - there are 4 in totalincludes shared social spaces that are central to fostering community support and interaction.

/ CANTALEVERING DIAGRAM

This diagram of layering demonstrated how stacked volumes are cantilevering in a spiral upwards - offsetting to maximize outdoor space, light, and social interaction on each floor.

/ SITE PLAN OF CONTEXT

1 “ = 1/64’

Our building aims to create visual, physical, and social connection. Visual connection through voids, physical connection through open space and a path  connecting Old Broadway and Broadway, and social connection through programming and building layout.

/ ISOMETRIC SECTION WITH CUT FLOOR PLAN

Emphasizing the integration of the theater, library, and basketball court into the housing complex.

/ EXPLODED ISOMETRIC OF SOCIAL SPACES

In collaboration with Davis Hodge - post production by me.

/ STRUCTURAL MODEL OF HOUSING

Demontrating the simple spiraling rotation for optimized outdoor space, social interaction, light, and views on every floor.

/ WEST-FACING SECTION

West-facing section, showcasing the interplay of natural and artificial light throughout the complex, and the seamless integration of public amenities within the residential structure.

/ FLOOR PLAN

2nd, 5th, 8th, and 11th floor.

/ FLOOR PLAN

1st, 4th, 7th, and 10th floor.

San Lorenzo Research Center /

Multinational Embassy / Harlem Nexus /

B + C / Architecture

Dauer Viktoria

Turn static files into dynamic content formats.

Create a flipbook
Issuu converts static files into: digital portfolios, online yearbooks, online catalogs, digital photo albums and more. Sign up and create your flipbook.