STYeo2023@gmail.com/email vic.folio/instagram victoria yeo/linkedin
How can architecture mediate between human needs and ecological processes?
This portfolio investigates how urban and rural typologies might evolve to operate within, rather than against, natural systems
01/ politics of care
02/ manual of regrowth
03/ work experience
04/ can you smell the petrichor or is it just the blossoms?
















01/ politics of care
Using food as a medium to connect the older and younger generations, The Politics of Care is a project that bridges this gap through the exchange of knowledge.
The brief looks into exploring a radical way of living by focusing on the interior of a listed building rather than its exterior. The design proposes two additional floors on top of the existing building to increase residential density by 20% and also provide a community garden for the people of Peckham.
It connects an aspect of the Peckham experiment that influenced a paradigm shift with a technological advancement, hence promoting the growth of both mixed reality and gardening to cultivate a new Pioneer Health Centre.
Site location: Frobisher Place, London










/smell of trash affecting other users when they are in the living room /cramped balcony space allowing little to no freedom /cold living area resulting in uncomfortable living space opportunities and constraints at home




















The thesis explores the potentiality of clear wood as an alternative to glass. The initial test in making clear wood looks into the different outcomes achieved from an array of wood species through the use of a conventional process.The experiment then delves into exploring the properties of the clear wood in comparison to glass:
1. Translucency
2. Thermal efficiency through a wind test
3. Carbon footprint



1. A thin layer of sodium hydroxide is brushed onto a side of the wood pieces


2. Hydrogen peroxide is added into the tin foil tray for the wood to be soaked








3. Wood pieces brushed on with sodium hydroxide and soaked in hydrogen peroxide were left in the fume hood under UV exposure for 160 mins 4. Step 2 is repeated for the other side and left under UV for another 160 mins






resin is used for the purpose of this experiment


halfway

9. Wood pieces are placed gently into the mould






10. The remaining resin is poured into the mould until it is filled and a small stick is used to adjust the position of the wood pieces when shifted






Calculating the carbon emissions of glass, polycarbonate and clear wood during the production stage (A1-A3) and comparing them





03/ manual of regrowth
The main render (Visual 1) of this project was shortlisted by ArchiSource for the drawing of the year 2025 awards and was exhibited at the Truman Brewery, London
Amchitka’s lost domestic wildlife is memorialized through the re-claiming of post-nuclear test fabric to regrow the habitat.
Addressing both the repercussions of the 1971 nuclear testing and commercial exploitation, the ‘Manual of Regrowth’ leaves behind a distinctive and new connection between individuals, materials, and our environment.
Competition in collaboration with: Jason Mok , Eujin Oh, Joanne Kim
Degree of involvement [0 to 5]
As it is a collaborative project, a 1-5 scale is used to indicate the degree of the author’s involvement with 5 being the author’s own work.
Author’s role:
Site analysis, design development, 3D model making, rendering






04/ work experience
The Nishi-Shinjuku Commons:
Situated in Shinjuku - Tokyo’s emblem of intense modernity, the timber frame structure from 1961 is preserved through its skeletal form. The proposal aims to weave a fragment of the past into the city’s contemporary growth to provide a welcoming and comfortable space for foreigners.
Projects in collaboration with: Shotaro Oshima
Degree of involvement [0 to 5]
As it is a collaborative project, a 1-5 scale is used to indicate the degree of the author’s involvement with 5 being the author’s own work.
Author’s role: 3D modelling, rendering, 2D drawing

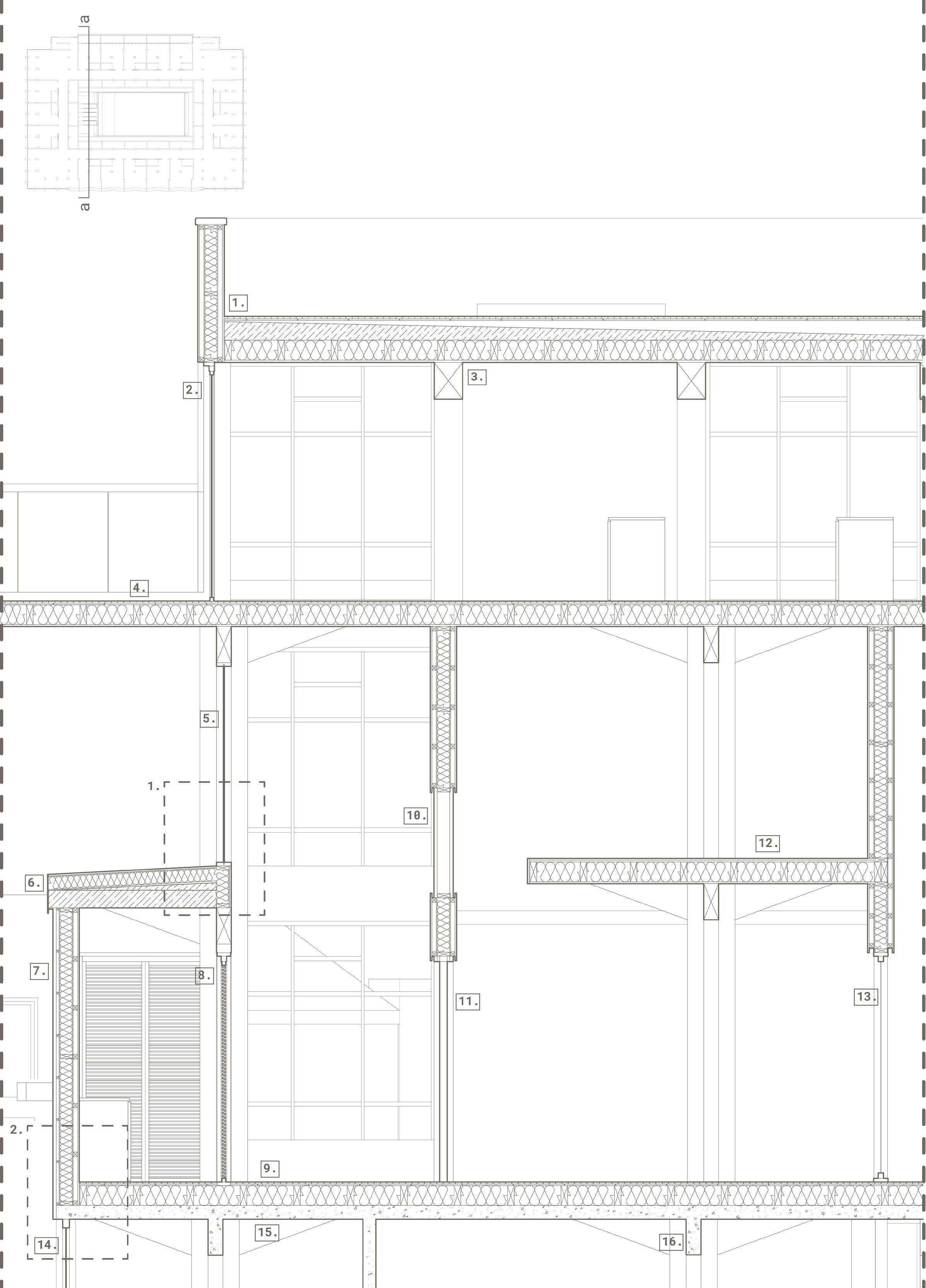
About the Building
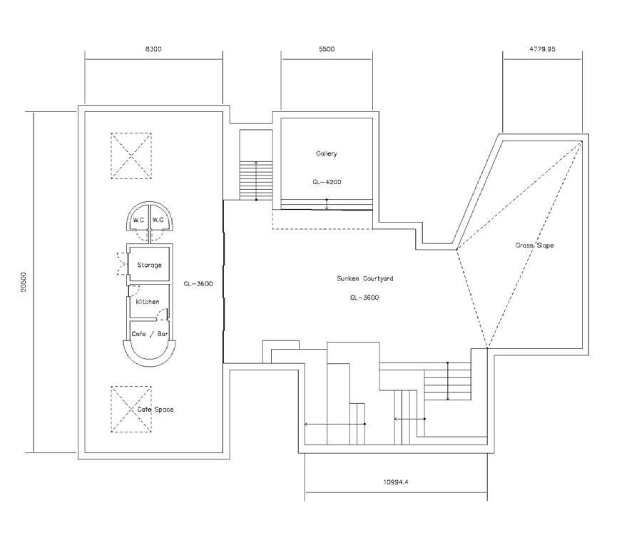
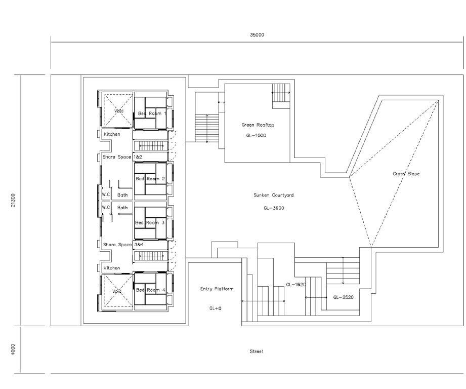
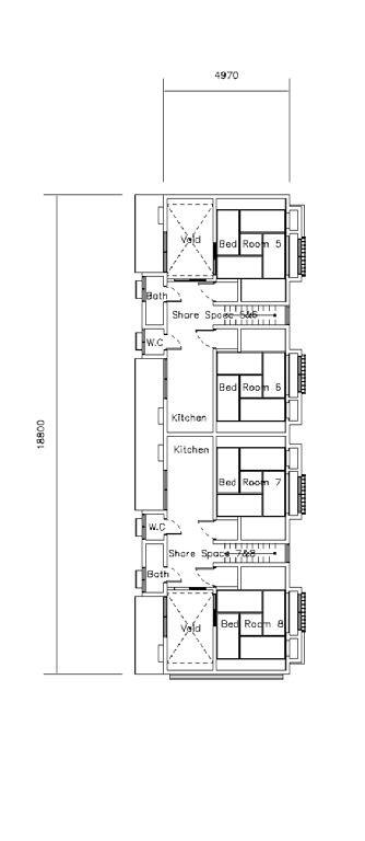
Whilst preserving the structure and elevation, we planned a space where habitability and new activities in the underground courtyard seamlessly connect. The existing structure is supported by a foundation seismic isolation system. The 3.2-metre-high seismic isolation pit below houses a café, public toilets, and a disaster supply storage facility. The first and second floors contain eight shared-type residential units. Each pair of units shares a kitchen, toilet, and bathroom with natural light and ventilation secured through two light wells extending from the basement to the third floor.
About the Public Courtyard
In Shinjuku-ku, there is a growing demand for flexible workspaces driven by the rise of remote working. Additionally, there is a need for shaded areas under trees to cope with the increasing summer temperatures, alongside benches where people can enjoy conversation. Globally, cities are increasingly planting more street trees and preserving existing ones in response to rising temperatures. However, recent research indicates that the number of trees within Tokyo is actually declining. This plan proposes a public courtyard overflowing with trees and flowers, evoking the feeling of playing outdoors.
The People’s Cultural Heritage
Currently, wooden apartment buildings in Tokyo are disappearing due to perceived ugliness and ageing. Yet, these wooden apartment buildings can also be considered cultural heritage that supported Japan’s period of population growth and high economic growth. Shion-So, renovated in this project, is said to have housed many construction workers during the high-rise building boom in Nishi-Shinjuku. Without this apartment and its workers, the development of Nishi-Shinjuku as we know it today would not have been possible. To preserve the indigenous affection long held by the Japanese people, I believe we must create spaces where local residents can gather and converse. The neighbourly bonds once cherished by the Japanese have become relics of the past. This stems from contemporary urban development misreading the (spaces/ intervals).












Interior and furniture design for a high-end fashion brand:
The project focuses on designing furnitures, organising interior spaces and exploring multiple layout configurations for the store. At the core of the concept is the synthesis of traditioanl joinery techniques and modern materials, producing a modular and sophisticated design language for the brand.
Project in collaboration with: Shotaro Oshima
Degree of involvement [0 to 5]
As it is a collaborative project, a 1-5 scale is used to indicate the degree of the author’s involvement with 5 being the author’s own work.
Author’s role:
Brand research, furniture design, layout configuration, interior layout design, 2D drawing, producing technical package and rendering 04/ work experience


















05/ can you smell the petrichor or is it just the blossoms?
Commissioned by the Affordable Art Fair, this interactive installation was made to celebrate its 10th edition in Hampstead Heath.
The installation explores the co-existent relationship between man and nature as we emerge from the pandemic. During lockdowns around the world, natural life had a chance to recover from man’s absence. Simultaneously, many people began to explore new interests or revisit hobbies which allowed them to ‘bloom’ into a more rounded version of themselves. Within the installation, each flower, made from reused plastic bottles, represents an individual, blossoming yet enveloped within the larger whole.
The artists see each flower as a reminder: to remember that our actions have consequences, and it is often the natural world that pays the price.
Installation in collaboration with: Pei
AAF Article: https://affordableartfair.com/inspiration/the-emergencecommission-hampstead/ Ham&High Print News: https://www.hamhigh.co.uk/news/21323801. affordable-art-fair-makes-successful-return-heath/



