

Formação Acadêmica
Arquitetura e Urbanismo
Victoria Jannuzzi da Cunha
61 . 98122-1104
victoria.jannuzzi@gmail.com
http://lattes.cnpq.br/8333553654203194
ID lattes 8333553654203194
Universidade de Brasília | FAU - UnB
Conclusão em 2023
Arquitetura e Urbanismo
Universidade Federal do Rio de Janeiro | FAU - UFRJ
Mobilidade Acadêmica entre 2019 - 2020
Desenho Industrial
Universidade Estadual do Rio de Janeiro | ESDI - UERJ
Graduação Interrompida em 2017
Idiomas
Português
Inglês
Espanhol
Italiano
Software
AutoCad
ArchiCad
SketchUp
Rhinoceros
Qgis
Adobe Illustator
Adobe Photoshop
Adobe Indesign
Experiência Profissional
Arquiteta
Estudio de Arquitetura Ana Neri 2023 - atual
Estagiária
Estudio de Arquitetura Ana Neri 2019 - 2023
Experiência Extracurricular Acadêmica
Organizadora
Seminário Internacional TOPOS
Landscapes of Power: Reconsidering the Twentieth Century Capital Cities 2022
Monitora
Disciplina Projeto de Urbanismo I
Faculdade de Arquitetura e Urbanismo - UnB 2021
Membro do corpo editorial
Revista Arqui - FAU UnB 2017-2018
Monitora
Disciplina Desenho Arquitetônico
Faculdade de Arquitetura e Urbanismo - UnB 2018
pesquisa acadêmica e desenho
docomomo BR
publicação nos anais do 14º Seminário Docomomo BR . 2021
“cidade pós-compacta: estratégias de projeto a partir de brasília
contibuição na representação gráfica . 2021
arquitetura e paisagem
entre escalas: do monumental ao cotidiano
intervenção entre ministérios
PROAU . FAU UnB . 2021
urbanismo e paisagem
navegando por brasília: estações hidroviárias no lago paranoá trabalho de conclusão de curso . FAU UnB . 2023
masterplan rancho da raposa
projeto em parceria com Marcela Rezende e Matheus Amorim . 2024
Capitólios e capitais modernas: Ancara, Turquia e Brasília, Brasil
Autores
Victoria Jannuzi da Cunha
Luciana Saboia Fonseca Cruz
Resumo
Os conceitos de planejamento urbano e arquitetura modernos foram amplamente difundidos ao longo do século XX. Com isso, o desejo de emancipação alavancou o uso da paisagem como expressão simbólica e identitária nacional. O ideário moderno influenciou o planejamento urbano de Ancara (Turquia) como uma nova capital projetada para a independência no início da década de 30.
A partir da proclamação da República (1923), e com a transferência da capital de Istambul para o interior, a transformação do núcleo da cidade existente em Ancara foi uma forma de consolidar o Estado pós-imperialista, sendo associada à afirmação de uma nação moderna e independente. Brasília (Brasil), embora quase 30 anos depois, também teve projeto inspirado nos mesmos preceitos modernos. Erguer a “capital da esperança” em 1956 veio do desejo da paisagem como expressão emancipatória, inaugurando o desenvolvimento econômico também no interior do país.
As duas capitais, com suas paisagens empoderadoras e identitárias, representadas respectivamente pelo Distrito dos Ministérios e Esplanada dos Ministérios, constroem o locus do poder político, onde a Grande Assembleia Nacional Turca e o Congresso Nacional fazem parte de um complexo do Capitólio e encerram perspectivas monumentais.
Por meio da análise de características espaciais e morfológicas de cada capital e do redesenho cartográfico, a pesquisa busca — comparativamente — relacionar a solução comum da monumentalidade moderna com a construção de paisagens simbólicas de cada nação-estado, abarcando questões que envolvem paisagem, poder e espaço público.
Publicação completa disponível em:
https://docomomobrasil.com/wp-content/uploads/2021/12/ Anais-14%C2%B0-Docomomo-BR-ISBN.pdf
https://drive.google.com/file/d/1_FbBQxJVWA6O5sEy9qd9xXt0PORiyBTQ/view




“Cidade pós-compacta: estratégias de projeto a partir de Brasília”
Autores
Guilherme Lassance
Luciana Saboia
Cauê Capillé
Carolina Pescatori
Resumo
Cidade pós-compacta apresenta a hipótese de que um outro olhar sobre o urbanismo moderno pode nos fornecer pistas para lidar com os desafios do fenômeno urbano contemporâneo. Defendemos ser urgente um projeto que busque uma alternativa, por um lado, à receita de tornar compacto o nãocompacto e, por outro, à simples inclusão da condição de não-lugar, não-cidade e não-edificado numa nova epistemologia ampliada do urbanismo.
Contribuições
- organização do acervo de desenhos que serviram de base para a elaboração dos desenhos do livro, reunindo documentos fornecidos pelo Arquivo Público do Distrito Federal
- redesenho de plantas originais do Ministério das Relações Exteriores (Palácio do Itamaraty)
- modelagem 3D do Ministério das Relações Exteriores (Palácio do Itamaraty)
- contribuição na elaboração do desenho do Ministério das Relações Exteriores (Palácio do Itamaraty) | páginas 96 e 97






03. tratamento do desenho com padrões estabelecidos

A Esplanada dos Ministérios, inserida no Eixo Monumental, compõe uma das mais simbólicas paisagens de Brasília. Com sua Escala Monumental — proposta por Lucio Costa dentre as outras três escalas da capital — é ressaltada pelo grande vazio central projetado e pelo alinhamento ritmado dos edifícios de ministérios. A grandiosidade utópica e qualidade arquitetônica de seu espaço urbano são responsáveis por conferir à cidade moderna o título de “cidade patrimônio”. Entretanto, por meio de um olhar mais cuidadoso e se distanciando um pouco da escala monumental, é possível perceber o cotidiano e o monumental coexistindo.
A partir da percepção de uma vivência na Esplanada dos Ministérios — e mais especificamente uma vivência inter-ministerial — onde características e funções inerentes ao espaço construído compatilham o mesmo contexto que o patrimônio muitas vezes visto como intocável, busca-se dar maior atenção à sociedade que usufrui desse espaço rico culturalmente e socialmente, mas cujas potencialidades são pouco exploradas.

esplanada dos ministérios
estacionamento





No espaço entre os blocos C e D da Esplanada dos Ministérios, onde hoje se localizam os Ministérios da Economia e do Desenvolvimento Agrário e Agricultura familiar, respectivamente, algumas dinâmicas urbanas acontecem, mesmo sem muita infraestrutura projetada e adequada. Uma movimentada banca de jornal, paralela à Esplanada, oferece um serviço de pequeno comércio e loteria, e acaba se tornando ponto de encontro e socialização. Adentrando o terreno, uma praça com pouco tratamento paisígisco e mobiliário urbano também se faz um espaço articulador de dinâmicas sociais urbanas.
Logo, por meio de uma estrutura de apoio e serviços, o projeto tem como objetivo dar aos cidadãos a oportunidade de transitar entre as escalas existentes de maneira sutil, onde, ao longo de seu percurso projetado, seja possível usufruir de diferentes serviços e funções cotidianas, como por exemplo engraxar o sapato, jogar na loteria, sentar-se para fazer uma refeição, tomar um café pós-almoço e até mesmo descansar à sombra das árvores. Projetualmente, busca-se propiciar possibilidade de encontros e serviços com uma qualidade arquitetônica e infraestrutura dequada à escala inter-ministerial, dialogando tanto com o espaço urbano do “entre” — de menor escala – quanto com a própria escala Monumental do “exterior”. Além disso, um centro de atendimento ao turista, estacionamento e pontos de aluguel de bicicletas e guarda-volumes fazem parte da infraestrutura proposta, de forma que o espaço não seja apenas voltado para os trabalhadores locais, mas também para que possa se tornar parte da vivência de muitos outros frequentadores da Esplanada dos Ministérios e de Brasília, garantindo a sua heterogeneidade de usos e usuários.
o projeto
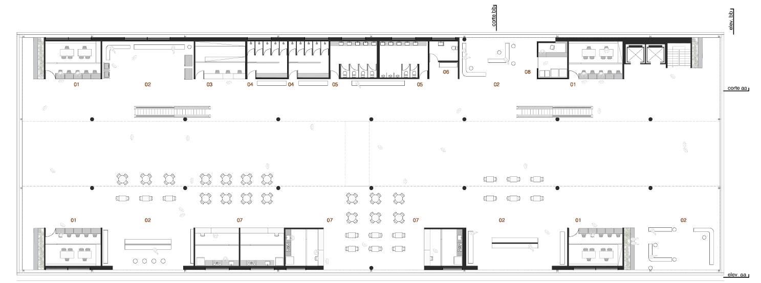
No térreo, foi priorizada a ligação direta entre os Ministérios, que acontece por meio de duas passarelas suspensas sobre uma praça rebaixada. A ideia de continuação do espaço público é materializada pela escadaria que conecta o nível térreo ao nível rebaixado. Desse modo, onde hoje existe uma praça, atualmente pouco explorada quanto às suas potencialidades, manteve-se a ideia, mas com propostas de inovações e melhorias de mobiliário urbano, paisagismo e serviços, abrigados por uma cobertura em grelha metálica.
Partindo desse princípio, a banca de jornal — que foi realocada e também recebeu melhorias arquitetônicas — foi mantida no nível térreo, local de maior movimento e fluxo, assim como o centro de atendimento ao turista (CAT) e o guarda-volumes. Já o nível inferior, alcançado por meio de escadarias e elevador, abriga importantes infraestruturas do dia a dia, como por exemplo restaurante, caixas eletrônicos, banheiros e engraxate. O núcleo deste nível rebaixado, onde o pé-direito é mais avantajado, tem função voltada para o lazer e momentos de pausa, propondo-se uma praça, a qual se tem acesso por meio de elevadores e uma escada helicoidal central. Distanciando-se da Esplanada, a praça central se conecta a um espaço de café e área de leitura de caráter mais intimista de dois níveis, conformadas por um talude adjancente a uma escadaria secundária, por onde se tem acesso direto ao estacionamento, localizado mais ao sul do terreno.


1. centro de atendimento ao turista (CAT)
2. banca de jornal 3. guarda-volumes

térreo


biblioteca













O Lago Paranoá, corpo lacustre que banha o Plano Piloto da capital do país, é elemento essencial para a conformação da paisagem brasiliense. Ao vivenciar sua orla, é possível visualizar um horizonte repleto de possibilidades e conexões dos outros lados de suas margens. O céu azul, refletido na água, convida a população da cidade a usufruir desse enorme espaço público. Entretanto, a realidade do Lago Paranoá e de sua orla é a de territórios pouco explorados e pouco acessíveis, embora com muitos potenciais.
A partir da intenção de tornar o Lago Paranoá e suas margens mais democráticos e qualificados, impulsionando também novas possibilidades de mobilidade urbana para Brasília, o projeto propõe uma rede de transporte lacustre, a partir de implantações de modelos de estações hidroviárias, em sete pontos da orla.
Por meio de rotas elaboradas com base em estudos de demanda, levando em consideração também a conexão com a rede de transporte existente, por meio de balsas rápidas (ferryboats), a população teria a oportunidade de navegar pela capital, se deslocando de maneira eficiente e estratégica. A escolha das sete áreas de intervenção teve como objetivo não só trazer melhorias na mobilidade urbana de Brasília, mas também qualificar, reviver e ressignificar o Lago Paranoá.
A qualificação dos pontos da orla onde as estações são implantadas passa por uma proposição de programa que varia de acordo com as vocações e potencialidades de cada área. A partir disso, as intervenções foram categorizadas como: “balneário e lazer”, “ecologia” e “cultura e educação”. O programa de cada um dos pontos vai de acordo com as categorias atribuídas a eles, e leva em consideração o nível de intervenção necessário, podendo ser mais alto ou mais baixo.
É comum a todas as áreas um tipo de equipamento que fornece uma infraestutura base, essencial para funcionamento das estações lacustres, denominados de Galpões. Foram projetados - visando atender os diferentes programas e se encaixar em diferentes escalas de cada estação - três tipos de galpão: Galpão Galeria, Galpão Varanda e Galpão Quiosque, sendo todos carcaterizados por um volume simples construído e implantado junto à uma praça de chegada de cada estação lacustre.
Os pontos de implantação da rede lacustre são nomeados de A a F, sendo três na parte Norte da cidade (Prainha do Lago Norte, Parque das Garças e L4 Norte), dois em margens opostas da porção central (Concha Acústica e Barragem do Paranoá), e um na parte Sul divido em dois segmentos (Morro do Asa Delta e Parque Vivencial da Península Sul). Uma vez na estação lacustre, o usuário se depara com uma praça de mobilidade urbana, que possibilita a integração com a rede de transporte viário da capital, para qual também são propostas melhorias, com adição de novos percursos, linhas exclusivas da rede lacustre, novos pontos de ônibus e ciclovias.










Após um longo processo de análise de demandas, necessidades e potenciais ao longo da orla em escala territorial urbana, o projeto busca retomar e ressignificar o Lago Paranoá e sua orla, apresentando-os como espaços de fruição pública e relevante articulação urbana. Para isso, busca-se, em diferentes escalas, projetar em pontos ao redor das margens que possuam potenciais de conexão urbana, lazer e uso educacional/cultural. O objetivo é contemplar não só a diversidade de usos que o Lago em si já propõe, mas também possibilitar novos espaços públicos de qualidade para a população e novas formas de se locomover na capital.
As premissas de projeto buscam conciliar questões patrimoniais com necessidades atuais, respeitando a escala bucólica de Lucio Costa, mas o mesmo tempo entendo-a como importante articuladora de espaços públicos da cidade moderna. Logo, será mantido o princípio de que o Lago Paranoá e sua orla devem ser locais de “passeios e amenidades bucólicas de toda a população urbana”, mas propõe-se incorporar usos contemporâneos de lazer que acontecem na Brasília de hoje.
A partir de percursos estratégicos, foram posicionadas estações em locais que possuam potenciais nos quesitos de mobilidade urbana e de espaço público. Para a escolha das áreas de intervenção, foram levadas em consideração: necessidades já existentes, possibilidade de conexões intermodais, questões de ordenamento urbanístico e tipos de uso, que visará tanto o turístico e lazer, quanto o de traslado diário.
Na escala urbana, o PPCUB de 2012 e o Projeto Orla Livre serviram de base para traçar diretrizes mais específicas.
São as premissas projetuais:
•Democratização do acesso ao Lago e à orla;
•Implantação do sistema de transporte lacustre como uma conexão ativa para melhoria da mobilidade urbana, garantindo integração entre outros modais;
•Requalificação das áreas que receberão as estações, com uma infraestrutura projetada a partir de programas de necessidades que variam de acordo com os potenciais e demandas de cada área;
• Acessibilidade a todos os locais propostos;
•Propor espaços com tratamento urbanístico e paisagístico com caráter de praças e/ou parques, se integrando e qualificando a escala bucólica;
D - Concha Acústica
E - Barragem do Lago Paranoá
F - Morro do Asa Delta e Parque Vivencial da Península Sul

A fim de possibilitar estrategicamente o acesso a dois importantes pontos de conexão urbana do DF – a Rodoviária do Plano Piloto e a Universidade de Brasília – cada uma das áreas recebeu pontos de ônibus incorporados ao sistema de paradas, e, de maneira complementar e obrigatória, foi prevista uma linha exclusiva que liga as áreas de intervenção a um dos dois focos de conexão urbana escolhidos, ou a ambos. Essa linha de ligação direta dos pontos de projeto com a Rodoviária e com a UnB funcionaria como uma baldeação para passageiros que não são contemplados com as linhas existentes que já circulam pelas áreas de intervenção.
A rede de transporte lacustre foi elaborada propondo dois tipos de percursos que compõem dois tipos de linhas:
1) linhas diretas: distâncias mais longas, ligando pontos com maiores demandas e priorizando ligações mais rápidas, evitando baldeações (ex.: ponto A com ligação direta ao ponto F).
2) linhas parador: distâncias mais curtas, ligando pontos consecutivos e fazendo paradas ordenadas (A - B - C - D - E - F).
Dessa forma, espera-se que cada uma das áreas de projeto seja totalmente integrada com outros modais, sendo complementar à rede de transporte coletivo existente e possibilitando novas conexões dentro do DF.
projeto rede lacustre | 1:75000
estação rede lacustre
percurso lacustre linha paradorparada em pontos consecutivos
percurso lacustre linha direta (A - D - E)
percurso lacustre linha direta (B - D - F)
percurso lacustre linha direta (C - E - F)
percurso lacustre linha direta (A - F)

projeto integração redes de transporte | 1:75000
percurso com integração com linhas e pontos existentes de ônibus novo percurso de ônibus proposto novo ponto de ônibus proposto ponto de conexão urbana | Rodoviária e UnB
percursos rede lacustre
estação rede lacustre

escala urbana .
áreas de intervenção




















































