Skip to main content

PORTFOLIO

Page 1


Experience

Career Objective

Highly skilled and experienced interior designer with 12+ years of proven track record of delivering successful residential and commercial projects, seeking a challenging position to leverage my creativity and leadership skills.

Education

B Interior Design

2010-2013

Indian School Of Bussiness Management

Diploma In Interior Design

2007-2010

Kle’s Polytechnic, Hubli

Diploma In Interior Design

2006

Bassel, Mission, English, Medium, School, Hubli

Langauge

• English

• Marathi

• Hindi

• Kannada

Work Experience SKILLS

Reliance Retail Pvt Ltd

2018-Present

Design Manager In Retail Stores

Four Dimensions Retail Design (India) Pvt.ltd.

2016-2018

Senior Designer In Retail Stores/ Hospitality Design

Landmark Group (Home Center)

2014-2016

Senior Designer In Modular Kitchen and Wardrobe

Hindware Home Retail Pvt Ltd 2013

Junior Designer In Modular Kitchen and Wardrobe

Design Forum, B’glore

2010-2012

Junior Designer In Retail Stores Design

Software

Sneha Patil

Portfolio

• Eye For Detail

• Time Management

• Goal Oriented

• Creative Thinking

• Leadership

• Problem-Solving

• Communication

• Teamwork

• Adaptablity

Extra Curricular

• Past 3 years

Member of Retail summit Rai

• 2023-Present

Participant at VMRD Awards

• Past 6 years

Part of sports event management & volley Ball Player

Table Of Content

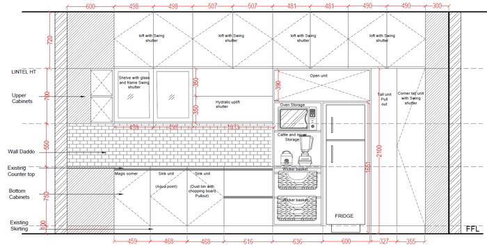
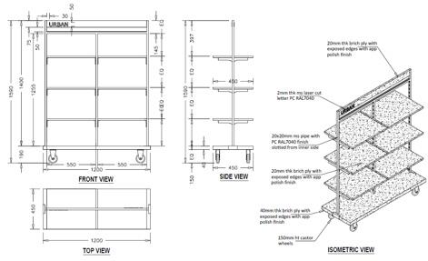
Kitchen

This is a small section of interior design work focused on kitchen design & layout. The following are some of the selected design/re-model work 2013-2016. These are approved designs of clients across Bangalore, India & Some completed projects.

A modular kitchen is a modern kitchen design where pre-fabricated modules, like cabinets and countertops, are assembled together to create a functional and aesthetically pleasing space. Unlike traditional kitchens built on-site, modular kitchens offer customizable options and are often considered more efficient and organized.

Key Features:

• Modular Design:

Modular kitchens utilize pre-fabricated modules that are assembled on-site.

• Customization: The modules can be customized to fit specific needs, space constraints, ` and aesthetic preferences.

• Efficiency:

Modular kitchens are designed to maximize storage and space utilization, making themideal for smaller homes.

• Variety:

Modular kitchens offer a wide range of design styles, materials, and finishes, including modern, contemporary, and traditional options.

• Ease of Maintenance:

Modular kitchens are typically made with durable materials and finishes that are easy to clean and maintain

Executed Photo’s

Sneha Patil

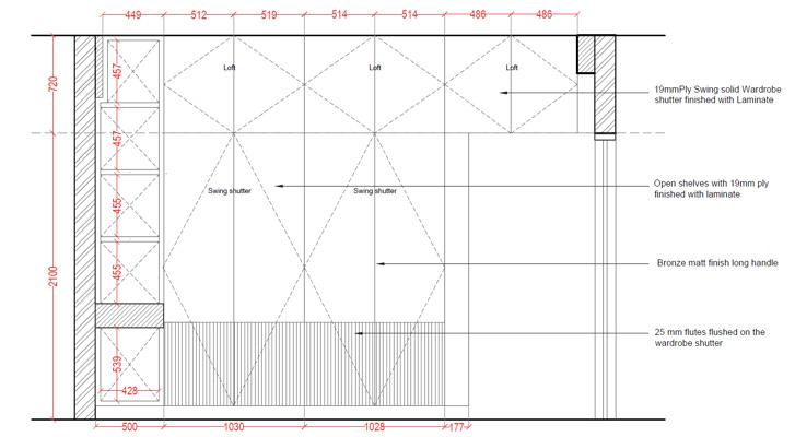
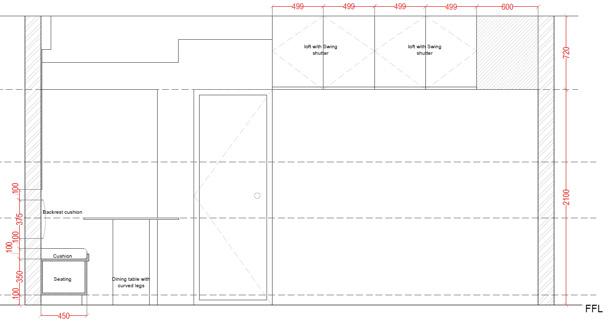
Wardrobe Design

A modular wardrobe is a customizable storage solution built from pre-fabricated, interlinked units, offering flexibility and personalization in storage design. Unlike traditional wardrobes, modular units can be arranged and combined to fit specific needs and space constraints, and they are often easier to install and dismantle than built-in closets.

Key Features:

• Customization:

Modular wardrobes can be tailored to the specific dimensions and layout of a room, as well as to the user's storage preferences.

• Flexibility:

Units can be added, removed, or rearranged to adapt to changing storage needs or design preferences.

• Space Optimization:

Modular wardrobes can help make the most of available space, especially in smaller rooms.

• Easy Installation:

Compared to custom-built wardrobes, modular units are generally easier and faster to install.

• Variety of Designs:

They come in various styles, finishes, and configurations to suit different aesthetics and functional requirements.

• Organization

The modular design allows for efficient organization of clothing and accessories with shelves, drawers, and hanging spaces

Executed Photo’s

3D View

Wall bays

Luxury Brand/ Boutique Retail

Floor Fixture

Project Title: VENTURNINI

Project brief:

To design the venturini store located in Kalher, Bhiwandi

Maharashtra. The store is a single floor around 5000 sft area. The store communication and engagement planned is used to tell the story of Crafting Global Italian Fashion and Classic designs.

Venturini The store design is based on the use of forms, color and material palette inspired from a shoe craftsman's studio. A material palette, of raw bricks, wood and metal, are used to create a differentiated ambience for the brand. The store fixtures are created in a combination of clean metal and wooden forms

Plan
Executed Photo’s

Furniture layout

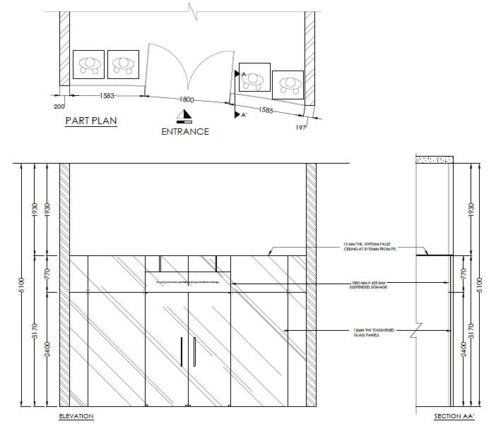
Façade Elevation

Façade Plan

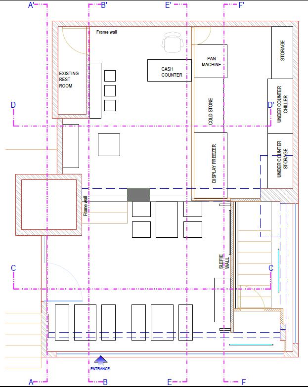
Department Store Chain Shopper (Multi Brand Outlet)

Project title: H&M

Project brief:

H&M's store design concept focuses on creating a dynamic and evolving retail experience, emphasizing both physical and digital elements to enhance the customer journey. The store and its display windows are the most important communication channel H&M has with customer, & that’s why window design is so important.

Interiors program has to work around different conditions and to be adapted to suit. In this way each store becomes unique. When we set up new stores we often chose the premises because of its location – not because of how it looks. The store’s most important task is to create a clear framework for a range that is constantly changing. The aim is to offer a varied shopping experience throughout the whole store.

Designed H & M Store located in Maharashtra, single Floor around 20,000 sft area

Signage Detail

Executed Photo’s

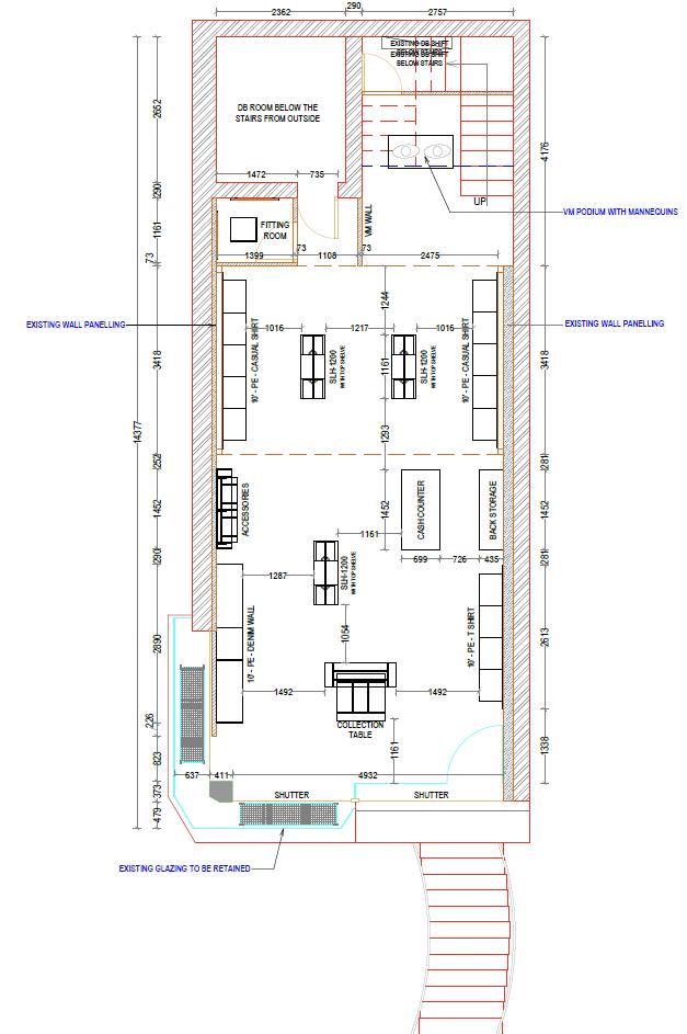
Branded Apparel Retail

Peter England is a leading menswear brand in India, renowned for its wide range of apparel, including shirts, trousers, suits, and activewear, catering to the fashion needs of young Indian men. Founded in 1889 in Ireland, the brand was acquired by Aditya Birla Fashion and Retail Limited (ABFRL) in 2000 and has since become a dominant force in the Indian menswear market.

Store is about 2500sft store is from cochin, Kerala.

Peter England stores are designed to provide a vibrant and engaging shopping experience, often featuring large formats with a wide variety of clothing options. They aim to be a "one-stop destination" for men's fashion, offering a diverse range of styles, from formal to casual wear, with an emphasis on quality and affordability.

Project Title: PETER ENGLAND

Ground floor

Furniture layout

Sectional

Project Title: PETER ENGLAND
Wall Unit
Project Title: PETER ENGLAND

Furniture Layout

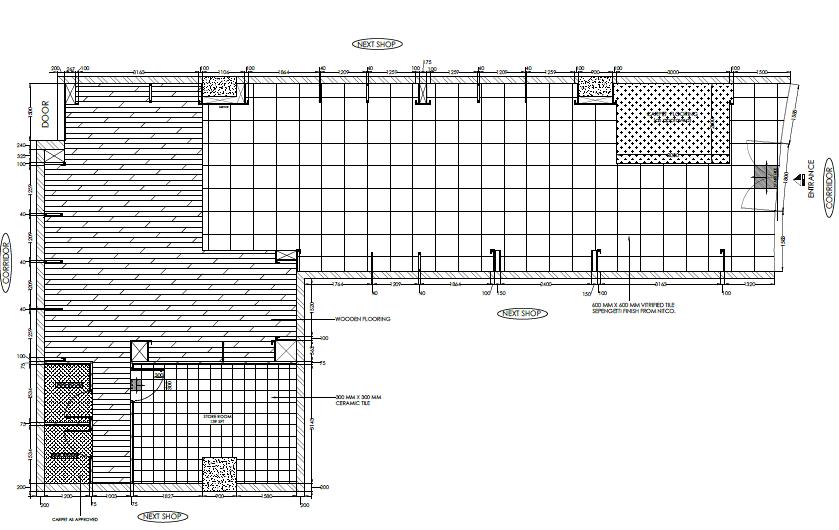
Flooring Layout

Project Title: Louise Philippe

Project brief:

The Louis Philippe store design and interiors are based on inspiration from Heritage European Architecture and living spaces. Each element of the store have different kind of furniture and fixture, which ideally feels like some one who has the taste for art and architecture has collected over a period of time.

Designed Louise Philippe located in BANAGLORE KARNATAKA single floor around 1400SFT area.

Sneha Patil
Project Title: Louise Philippe
Project Title: Louise Philippe

Project Title: VanHeusen

Project brief:

Van heusen The store design was conceptualized with inspirations from a “sophisticated man cave”. This was interpreted architecturally in classy, bold, sophisticated and contemporary lines. A material palette composed of wood, brick and dark metal have been applied across all elements of the store design in sophisticated corporate formal colors. The main signature used for the design forms is the ‘V-slant’ of the Van Heusen logo.

Designed VanHusene Store located in BANAGLORE KARNATAKA single floor around 1200SFT area.

Sneha Patil
Project Title: VanHeusen

drawings

Furniture Layout Flooring Layout

Project Title: VanHeusen

Furniture Layout

3D View

Food And Beverage, Hospitality

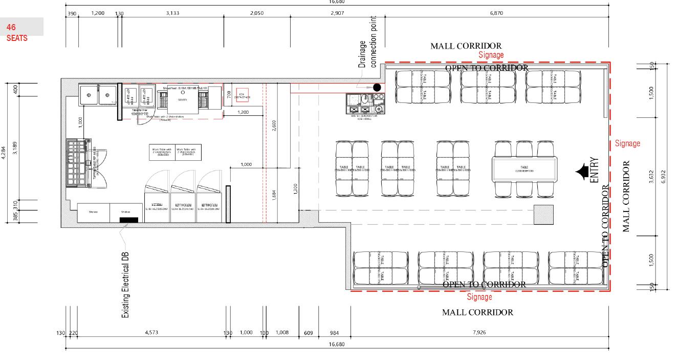
Project Title: GOPIZZA

Project brief:

GOPIZZA utilizes patented technology like the "GOVEN" oven and robotic systems to streamline the pizza-making process, ensuring efficiency and consistent quality.

The oval shape of GOPIZZA's pizzas symbolizes innovation and change, representing the brand's commitment to evolving pizza offerings. The design reflects the brand's culture and its ability to cater to diverse customer tastes.

GOPIZZA's stores are designed to create a semi-dine-in experience, capturing the vibe of Korean eateries.

The design prioritizes efficiency and allows for a one-person operation in a small kitchen.

Executed Photo’s

Furniture Layout

Executed Photo’s

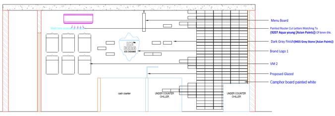
Project Title: Iceberg

Project brief:

Iceberg is an Indian ice cream brand, known for its focus on organic and healthy ingredients, and for introducing innovative flavours like "Dragon's Breath".

Sneha Patil

Furniture Layout

Project Title: BBQ NATION

Project brief:

Barbeque Nation's design concept centers around a rustic and casual atmosphere, emphasizing interactive grilling and a vibrant, celebratory experience. The design incorporates live grills embedded in dining tables, allowing customers to cook their own food, and a series of live counters to accentuate the "unlimited food" offering. The overall design aims to create a memorable and holistic dining experience.

The restaurant's design allows it to be adapted to various themes and requirements, making it suitable for a range of events, from book club gatherings to sports team victory partie

Sectional Elevation
Executed Photo’s

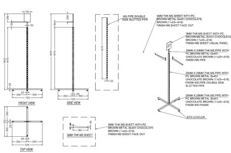
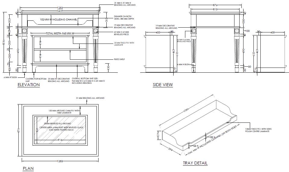
Exhibition Booth Design

Sneha Patil
Fixture Layout
Flooring Layout
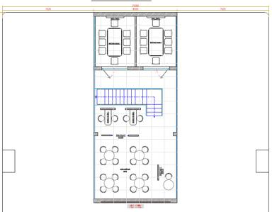
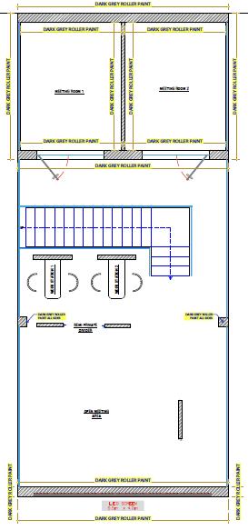
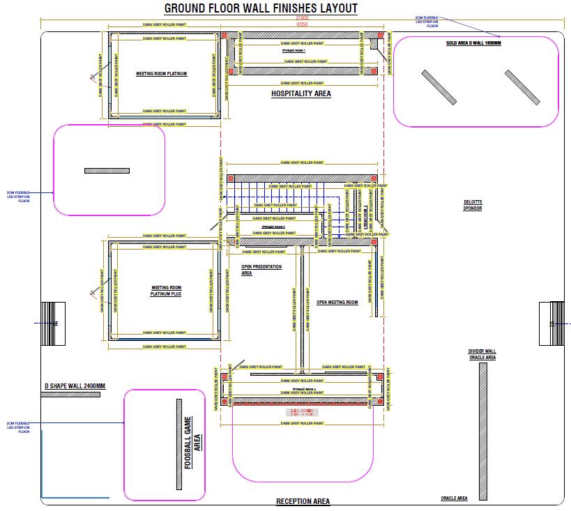
Project Title: Oracle @Leap 2024 Orientation Plan

MEZZANINE FLOOR WORK STATION DETAIL DRAWING

08 Fashion Retail Chain , (uni brand)

Ground Floor Furniture layout

Floor Furniture Layout

Project Title: BLACKBERRY

Project brief: Blackberrys store design aims to create a "smart business café" atmosphere, incorporating visual merchandising and architecture to convey the brand's "keep rising" story. The stores feature spacious layouts with designated areas for different clothing categories, along with "fashion staging points" and "style spots" to enhance the shopping experience. The design emphasizes quality and craftsmanship, with a focus on timeless elegance and modern aesthetics.

The stores offer ample space for customers to navigate and explore different sections Each clothing category is highlighted with dedicated display areas, making it easier for customers. The stores reflect Blackberrys' commitment to quality and craftsmanship, with attention to detail in the design and materials used. The design blends classic and contemporary elements to create a sophisticated and stylish atmosphere.

Sneha Patil
Mezzanine
Store Views
Façade View

Ground Floor Furniture layout

First Floor Furniture layout

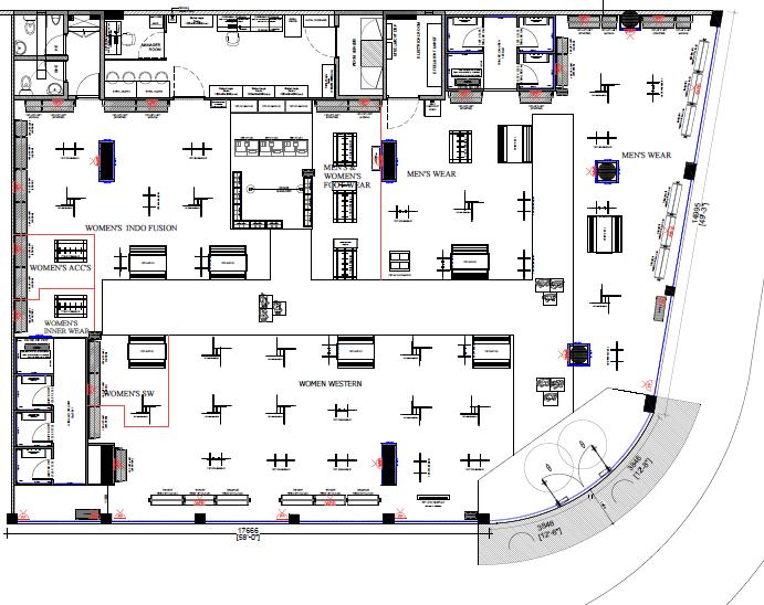
Project Title: Reliance Trends

Project brief:

Reliance Trends stores are being revamped with a focus on technology and a modern aesthetic. This includes features like self-checkout, electronic shelf labels, and RFID-enabled inventory. The stores are also incorporating global best practices for merchandising and product display, and some even have dedicated spaces for local artists. The stores are being redesigned with a new look and feel, including updated facades, fixtures, lighting, ceilings, and flooring.

Executed Photo’s

Project Title: Yousta

Project brief:

Yousta stores, the youth-focused fashion brand from Reliance Retail, are designed with a focus on contemporary tech-enabled layouts and an emphasis on affordability and style. They aim to create a vibrant and engaging shopping experience for young consumers. Key features include: Yousta stores utilize modern design principles and incorporate technology to enhance the shopping experience.

Sneha Patil
Furniture layout
Façade Elevation B
Façade Elevation A
Executed Photo’s

Thank You

Turn static files into dynamic content formats.

Create a flipbook
PORTFOLIO by vickyrcks202 - Issuu