IDS 60608 - Interior Architecture Design IV - E-Portfolio

Page 1

Verena

BachelorofArts(Hons)inInteriorArchitecture

IDS60608

InteriorArchitecture DesignIV E-Portfolio

Semester 4

March -

Project01

GroupNarrativeBoard

IndividualNarrativeBoard

Project02

Project2A:GroupSiteModel

Project2B:IndividualModel

FinalProject

OverallBoardComposition

PinnedupBoardPhoto

LayoutPlan

IsometricView+MaterialPallete

Sections+Elevations

Perspectives

Project03

QRCodeforWalkthroughVideo

GroupMiroLink

WeeklyProgress

Reflection

July 2023

Project01 NarrativeProgramming

InteriorArchitectureDesignIV-Project01-NarrativeProgramming

To design an off-grid tiny home with comfortable living spaces that are not limited to the conventional room-kitchen-dining layout underthethemeofWomenandWelfare. Eachstudentinthegroupisrequiredtodesign1ofthespaces,andIwasassignedtodesign thebathroomarea.

GroupBoard

InteriorArchitectureDesignIV-Project01-NarrativeProgramming

IndividualBoard

Project02 ModelMaking

InteriorArchitectureDesignIV-Project02-ModelMaking

Project2A:tocreatea1:100scaledmodelofRekascape,Cyberjaya,whichisthesitechosenforourfinalproject.

Project2B:tocreatea1:20scaledconceptualmodelrepresentingthebespokefurnitureofourspacedesign.

Project2A:GroupModel

Project2B:IndividualModel

FinalProject Live,Work,Play

InteriorArchitectureDesignIV-FinalProject-Live,Work,Play

Todesignauniqueandinnovativeworkspacewhichhas"work+playaspec community,cultureandpromotesgrowth,collaborationandproductivity.

Clientchosen:TheBodyShop

FinalBoardComposition

InteriorArchitectureDesignIV-FinalProject-Live,Work,Play

FinalPinnedUpBoardComposition

Crit1
InteriorArchitectureDesignIV-FinalProject-Live,Work,Play
SpacePlanningProgress
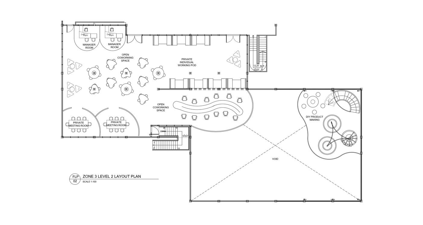
FinalLayoutPlan

InteriorArchitectureDesignIV-FinalProject-Live,Work,Play

ExplodedIsometricView+MaterialPallete

InteriorArchitectureDesignIV-FinalProject-Live,Work,Play

Perspectives

Project03 Video

InteriorArchitectureDesignIV-Project03-Video

WalkthroughVideo:Youtube WalkthroughVideoQRCode

LinktoGroupMiro:

https://miro.com/welcomeonboard/Vld2WFRXNXVMWllJcE1TbEpLN2Q5dTd3TEEyVm5nNVY1SFdRejlqVGh5UXlYVWlI

N08yNWI3cEQxa0hOMTRCb3wzMDc0NDU3MzYyOTc1Nzg4NjU1fDI=?share_link_id=96355377494

InteriorArchitectureDesignIV-WeeklyProgress

Week1 Week2 Week3 Week3 Week4 Week4 Week6 Week9 Week12 Week13 Week14

Inconclusion,duringthejourneyofthissemesterIfindmyselfoverwhelmedwithasenseofgrowthandaccomplishment.Throughout the course, I was given the opportunity to learn various things from space planning and material exploration to conceptual development.Theexperiencehasbeenbothchallengingandrewarding,pushingmetoexpandmycreativeboundariesandhoning mytechnicalskills.

One of the highlights of this module was the opportunity to collaborate with classmates on group projects. Working as a team exposed me to diverse perspectives and taught me the importance of effective communication and compromise in achieving designexcellence.Ialsodevelopedadeeperappreciationforthepowerofcollaborationinturningideasintotangiblesolutions.

Moreover,Ihavecometounderstandthesignificanceofincorporatingsustainableandeco-friendlyelementsintomydesigns.This module emphasized the importance of creating a space that not only delight aesthetically but also contribute positively to the environmentandthewell-beingofoccupants.

Whilethereweremomentsofself-doubtandcreativeblock,Idiscoveredthatperseveranceandcontinuousexplorationareessential inovercomingthesechallenges.IamalsoverythankfulforMs.Fatimahasherguidanceandfeedbackplayedavitalroleinrefining myconceptsandrefiningmyapproachtodesignproblems.

Lookingahead,Iamexcitedtoapplytheknowledgegainedfromthismoduletofutureprojectsandinternships.Iameagertofurther developmysoftskills,suchaseffectivetimemanagement,adaptability,andpresentationabilities,tobecomeawell-roundedinterior architectureprofessional.

Turn static files into dynamic content formats.

Create a flipbook
Issuu converts static files into: digital portfolios, online yearbooks, online catalogs, digital photo albums and more. Sign up and create your flipbook.