
Portfolio

“Design creates culture. Culture shapes values. Values determine the future.” - Robert L. Peters
![]()


“Design creates culture. Culture shapes values. Values determine the future.” - Robert L. Peters
04|SPRING
Architecture as an intrument - one that does not simply house performance but actively shapes and amplifies it. Layered volumes and carved voids create a rhythm between movement, sound, and occupation, blurring interior and exterior performance. Compression and release organize the form - enclosed spaces support rehearsal while open volumes frame moments of performance. Circulation acts as a tempo, guiding users through sequences of anticipation, pause, and reveal. Material and light reinforce this rhythm, balancing solidity with transparency to connect spaces visually and acoustically. The building ultimately performs alongside its users, tuned to a collective spatial and acoustic experience.





SECTION D-D



























SCALE 1/8"=1'-0"





















SECTION C-C


































SECTION B-B



















SCALE 1/8"=1'-0"











SCALE 1/8"=1'-0"






















SECOND FLOOR PLAN
SCALE 1/16"=1'-0"






GROUND FLOOR PLAN


SCALE 1/16"=1'-0"



























































SCALE 1/8"=1'-0"



GATHERING BACKSTAGE PERFORMANCE REHEARSAL




A Gradient is the site analysis in “The Station” site in the Fenway-Kenmore district in Boston. “The Station” is located at the intersection of Boylston Street and Park Drive facing the Muddy River. My group focused on Typologies and this went along with sketching, photography, maps and diagrams. For the final takeaway we came to the conclusion theat the site is a “Gradient” between the residential and commercial areas.




FIGURE GROUND DIAGRAM
This section includes Precedent studies on two performace centers done in preparation for the final studio 04 project of design one. The two chosen spaces were the Perelman Performing Arts Center in New York and the Salle de Spectacle Fribourg in Switzerland.
Perelman Performing Arts Center
Location: New York, US
Architects: REX Architecture
Year: 2023
Area: 129,000 sq ft
Main Space Capacity: 90-1200 seats

Salle de Spectacle
Location: Fribourg, Switzerland
Architects: DURIG AG
Year: 2011
Area: 16404 sq ft
Main Space Capacity: 681 seats

Flexible walls
Patrons/ Front of House
Performers/ Back of House







Light blue- private performer circulation Darker blue- public guests circulation


My design for the boat building school focuses on the separation of spaces for the school members and its visitors within a larger unified form, with a center courtyard used by both. The wooden fin cladding is used to express the wooden structure of the boats being fabricated inside, and creating a clear external divide from the mass timber on the public gallery space. Before entering the school you arrive at a plaza and picnic areas underneath the roof overhang. As you enter the building from the path, you arrive in a public lobby/ lounge that includes circulation to the gallery above. Following further into the school you enter a courtyard that can be used as an outdoor presentation space. From that you could either move into the Big shed and to the outdoor work space by the river, or take the stairs to the balcony overlooking the courtyard.








Architect: Cristian Izquierdo Lehmann
Client: Alcantara Real Estate
Construction Year(s):2018-2019
Location: Las Condes, Chile






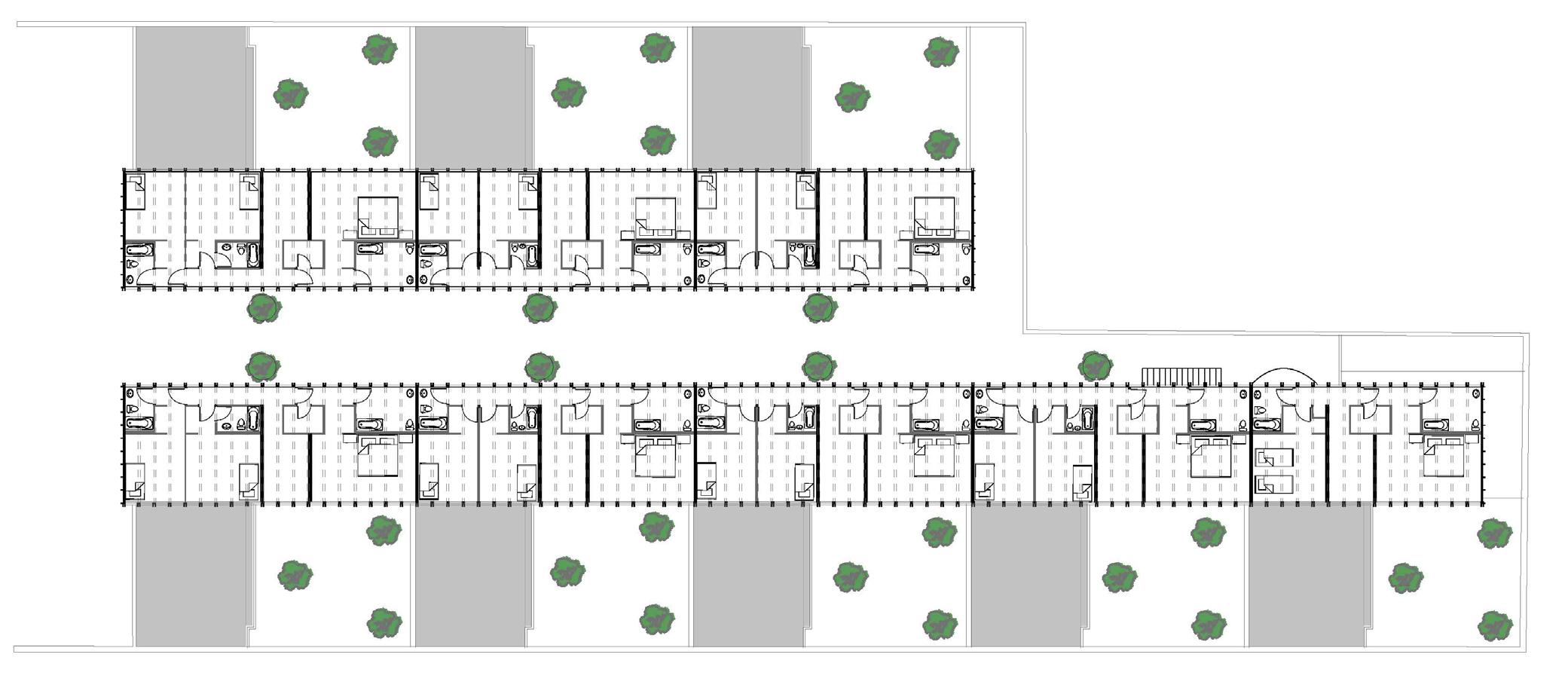
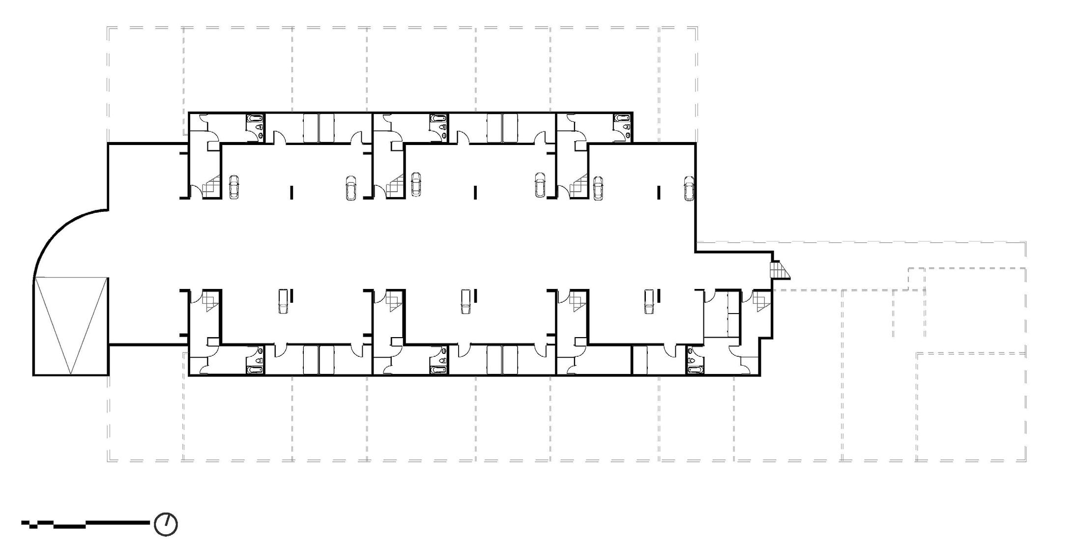
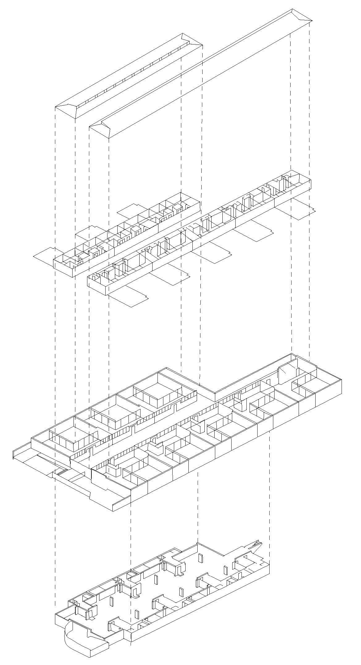
PLANS BASEMENT, FIRST, SECOND (BOTTOM-TOP)










Our pavilion at Christian A. Herter Park is conceived as a contemporary pergola that draws from a long tradition of garden and park structures. The design emphasizes openness, lightness, and permeability, establishing a framework that engages the surrounding landscape. Rather than imposing on the site, the structure frames views and creates distinct places for gathering, passing through, and pausing within the park. Vegetation was the center drive for our concept. With the climbing vines and seasonal greenery integrated into the framework, transforming it into a dynamic and evolving the environment that is consistently changing with the seasons. As the plants grow and weave, shade, texture, and color are introduced through the vegetation, creating an immersive sensory experience. The interplay between the geometric framework and planted growth creates a balance of shelter and openness, transparency and enclosure. Rather than replicating an existing landscape condition, the pergola establishes a new place within Herter Park. It is an intervention that adds to the park’s character through structure, vegetation, and inhabitation, offering a setting that evolves with the seasons and supports a range of public experiences.




























































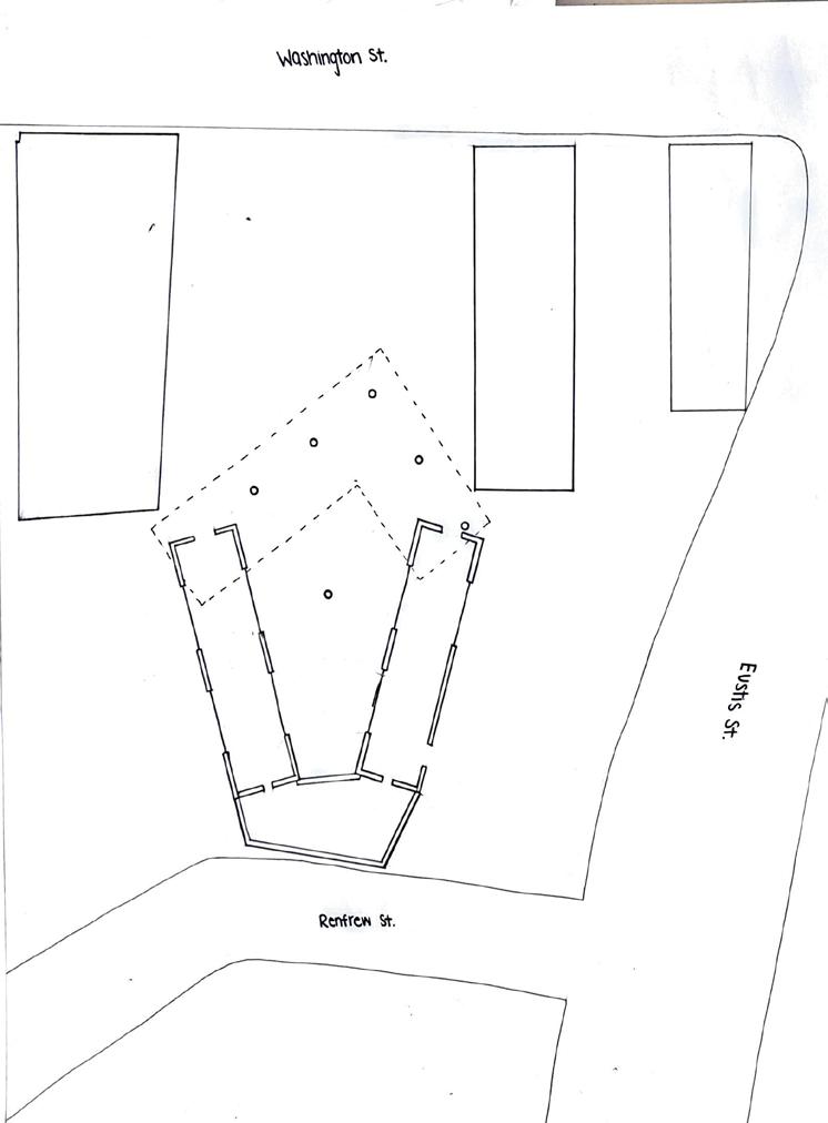
My goal for the Roxbury Migration Center, that led my design was unity. The tree in the center void, the alignment and rotation of my buildings and having my building shifted back in the site are all key parts to show unity with the community and those who will be migrating to the site.










SITE PLAN




C

Project one of the digital fabrication module consisted of learning how to use the 3D printer and laser cutter.




Barragan Luis Barragan Cueramaro Mexico 1948






This chapter includes work in from studio 01 and arch rep. Mostly sketches and the cube project.

HOLD, DRAW


ONE POINT PERSPECTIVE


