Skip to main content

Stephenville - Design Presentation

Page 1


STEPHENVILLE RESIDENCE

CAGE HOUSE

DESIGN CONCEPT

FLOOR PLAN

MOOD BOARD

THROUGHOUT

SELECTIONS PER SPACE

Timelessly enhancing historic integrity.
CAGE HOUSE

Floor Plan

1ST FLOOR

NOTE PLAN NOT TO SCALE

NOTE : PLAN NOT TO SCALE

Floor Plan

2ND FLOOR

CAGE HOUSE

DETAILS THAT CONNECT THE DESIGN

HERRINGBONE

Listone Giordano Oak Civita 55

EXISTING BASEBOARD

Refinish/match existing and match wall paint.

EXISTING CROWN MOLDING

Refinish/match existing and match wall paint.

DOOR HARDWARE

Textured brass hardware adding a refined finish.

Unified by tone, proportion, and material, these details quietly elevate the design – creating flow, character, and continuity from space to space.

STEPHENVILLE RESIDENCE

REFINISH/PAINT STAIRCASE IN WHITE

C AGE HOUSE

Living Room

INSPIRATION MOODY SPACE

B M WROUGHT IRON COLOR DRENCH
PIETRA DEL CARDOSO FIREPLACE DETAILING
MEDIAN CONCE (QTY 2)
LISTONE GIORDANO HERRINGBONE

DIAMOND PLASTER COLOR DRENCH

Dining Room C

RIMADESIO – COVER BAR/STORAGE IN NICHE IN 69 PALLADIO & 00 TRANSPARENTE

LISTONE GIORDANO HERRINGBONE

FIREPLACE MANTAL CAST STONE

CHANDELIER (48”)

Powder Bath C AGE HOUSE

CESAR - NOTRE DAME SINK/CABINET/CLADDING
MARBLE NOOK INSPIRATION WITH CUT-SHEET MIRROR
LISTONE GIORDANO HERRINGBONE
PENTA - CLASH SCONCE (QTY 2)

Powder Bath

PLUMBING SELECTIONS

AGAPE – MEMORY CLASSIC

WALL MOUNTED FAUCET IN BRUSHED BRASS

WATERMARK – DUAL FLUSH

PUSH BUTTON PLATE IN AGED BRASS

TOTO – RP WALL HUNG TOILET IN WHITE

AGAPE – MEMORY TOILET PAPER HOLDER IN BRUSHED BRASS

Kitchen & Pantry

LISTONE GIORDANO HERRINGBONE
CESAR – SAINT LAURENT
CESAR – BLU FES FX28
TANGRAM ISLAND
VIAIBIZZUNO – AURA CLUSTER OF (5) PENDANTS
CESAR – CARRARA MARBLE COUNTERTOP + BACKSPLASH **HONED FINISH
CESAR – NEBULA LA11
MAXIMA CABINETS

Kitchen & Pantry

PLUMBING SELECTIONS

FOSTER – CAPRI
FAUCET
IN SATIN
FOSTER – LEONARDO
33” X 20” SINK
IN SATIN

AGE HOUSE

Family Room

LISTONE GIORDANO HERRINGBONE
NERO MARQUINA MARBLE FIREPLACE DETAILIING

Mud Room

LISTONE GIORDANO HERRINGBONE
CESAR – CANAPA LM50 MAXIMA CABINETS
CESAR – EERO HANDLES IN CHAMPAGNE
CESAR – ENG. BIANCO APUANO STONE COUNTERTOP + BACSPLASH

CESAR – IRIS LIGHT GREY CE36 COUNTERTOP

Powder Bath 02

TRAVERTINE BAMBOO WALL TILE ONLY 4’ HIGH (12”X24”)

VIABIZZUNO – N22 (QTY 2) SCONCES IN BRASS
LISTONE GIORDANO HERRINGBONE
CESAR – CANAPA LM50 MAXIMA CABINETS
SALVATORI

C AGE HOUSE

Powder Bath 02

PLUMBING SELECTIONS

AGAPE – MEMORY CLASSIC

WALL MOUNTED FAUCET IN BRUSHED BRASS

WATERMARK – DUAL FLUSH

PUSH BUTTON PLATE IN AGED BRASS

TOTO – RP

WALL HUNG TOILET IN WHITE

S TEPHENVILLE RESIDENCE

Powder Bath 02

PLUMBING SELECTION

HOOK IN BRUSHED BRASS

TOILET PAPER HOLDER IN BRUSHED BRASS

AGAPE – MEMORY
AGAPE – MEMORY

Primary Bath

CESAR MAXIMA SHAKER CABINETS & WALL PANELS TO MATCH

GINKGO 59 PORCELAIN LIGHTING INSTALLATION

CUSTOM CUT ON-SITE MIRROR

CESAR HANDLES IN CHAMPAGNE

APPARATUS – CIRCUIT SCONCES (QTY 2)

BUSTER & PUNCH – CLOSET BAR SHOWER GLASS DOOR HANDLE

MARGRAF – CALACATTA ORO FLOORING + WALLS 24”X48”

Primary Bath

PLUMBING SELECTIONS

WATERMARK – DUAL FLUSH

PUSH BUTTON PLATE IN AGED BRASS

– RP WALL HUNG TOILET IN WHITE

AGAPE – MEMORY CLASSIC 3-HOLE FAUCET IN BRUSHED BRASS (QTY 2)
TOTO
AGAPE – MEMORY CLASSIC
SHOWER HEAD & HAND SHOWER IN BRUSHED BRASS (QTY 2)
AGAPE – MEMORY
TOWEL HOOK
IN BRUSHED BRASS (QTY 6)
AGAPE – OTTOCENTO 01
SINK/COUNTERTOP (5” THICK) IN WHITE (QTY 2)
AGAPE – IN OUT
ROUND TUB IN WHITE AND MC TUB FILLER IN BRASS
AGAPE – MEMORY
TOILET PAPER HOLDER IN BRUSHED BRASS

Primary Closet

IN PALLADIO 69 STRUCTURE & 62 RETE BRONZO GLASS

LG
RIMADESIO – VALERIA POCKET DOOR
RIMADESIO – DRESS BOLD CLOSET SYSTEM

APPARATUS – HORSEHAIR SCONCE IN BRASS

MIRROR HOME 24”X40”IN BRASS FRAME

CESAR HANDLE IN CHAMPAGNE
CESAR – BIANCO LM01 MAXIMA FLAT CABINETS
MARGRAF – CARRARA COUNTERTOP + BACKSPLASH ONE SHOWER WALL 24”X24”
MARGRAF – TALA GREY FLOORING + WALLS 12”X24”

Bath 02

PLUMBING SELECTIONS

AGAPE – MEMORY CLASSIC

WALL MOUNTED FAUCET IN BRUSHED BRASS

WATERMARK – DUAL FLUSH PUSH BUTTON PLATE IN AGED BRASS

TOTO – RP

WALL HUNG TOILET IN WHITE

AGAPE – MEMORY CLASSIC

SHOWER HEAD & HAND SHOWER IN BRUSHED BRASS

TOILET PAPER HOLDER IN BRUSHED BRASS

AGAPE – MEMORY
TOWEL HOOKS IN BRUSHED BRASS (QTY 2)
AGAPE – MEMORY

PRESOTTO TECNOPOLIS WARDROBE SYSTEM

S TEPHENVILLE RESIDENCE
MARGRAF – BOTTICINO SEMICLASSICO FLOORING + WALLS + BATHTUB FRONT 12”X24”
CESAR GRIGIO FUMO LM51 MAXIMA FLAT CABINETS
CESAR – PAONAZZO COUNTERTOP + BACKSPLASH ONE SHOWER WALL 24”X24”
CESAR HANDLE IN CHAMPAGNE

Bath 03

PLUMBING SELECTIONS

AGAPE – MEMORY CLASSIC

WALL MOUNTED FAUCET IN BRUSHED BRASS

WATERMARK – DUAL FLUSH PUSH BUTTON PLATE IN AGED BRASS

TOTO – RP

WALL HUNG TOILET IN WHITE

AGAPE – MEMORY CLASSIC

SHOWER HEAD & HAND SHOWER IN BRUSHED BRASS

Bath 03

PLUMBING SELECTION

TOWEL HOOKS IN BRUSHED BRASS (QTY 2)

TOILET PAPER HOLDER IN BRUSHED BRASS

AGAPE – MEMORY
AGAPE – MEMORY

Bed 03 & Bed 04

PRESOTTO QUERINI WARDROBE SYSTEM

S TEPHENVILLE

CESAR – CENERE LM15 MAXIMA CABINETS

Utility Room

CESAR – ACCENTO HANDLE IN CHAMPAGNE

CESAR – BRECCIA IMPERIALE COUNTERTOP + BACKSPLASH

MARGRAF – BIANCO PERLINO
12”X24” FLOOR TILE

Utility Room

PLUMBING SELECTIONS

FOSTER – CAPRI
FAUCET
IN GOLD
FOSTER – LEONARDO
33” X 20” SINK
IN GOLD

Sitting Room

INSPIRATION WOOD CEILING DETAIL

LISTONE GIORDANO HERRINGBONE

BM – BEWITCHED HIGH GLOSS PAINT

CARRIAGE HOUSE

DESIGN CONCEPT

FLOOR PLAN

MOOD BOARD

SELECTIONS PER SPACE

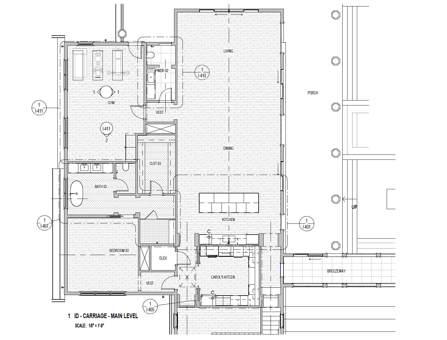
CARRIAGE HOUSE

Layering additions with timeless care.

NOTE PLAN NOT TO SCALE

Floor Plan

1ST FLOOR

Floor Plan

2ND FLOOR

NOTE : PLAN NOT TO SCALE

DETAILS THAT CONNECT THE DESIGN

MATCH BASEBOARD

Match cage house design and match wall paint.

DOOR HARDWARE

Textured chrome hardware adding a refined finish.

By aligned detail, color, and craft, the design unfolds with clarity – offering a calm rhythm and sense of unity throughout.

Listone Giordano

CESAR – CANAPA LM50 MAXIMA CABINETS

Wine Room

SALVATORI – CREMA D’ORCIA RAW TEXTURE WALL TILE (MIXED LENGTHS)

VIABIZZUNO LIGHTING N22 CUSTOM INSTALL

RIMADESIO – SOHO SLIDING DOOR SYSTEM

CESAR - NOTRE DAME COUNTERTOP
SALVATORI – CREMA D’ORCIA STRAIGHT LAY PARQUET 8”X48”

Wine Room Storage

CESAR - NOTRE DAME COUNTERTOP
SALVATORI – CREMA D’ORCIA STRAIGHT LAY PARQUET 8”X48”
RIMADESIO – SOHO SLIDING DOOR SYSTEM
CESAR – CANAPA LM50 MAXIMA CABINETS

Wine Room Storage

PLUMBING SELECTIONS

FOSTER – CAPRI
FAUCET
IN GOLD
FOSTER – PHANTOM
24” x 18” SINK
IN GOLD

Game Room

APPARATUS – LARIAT PENDANT INSTALLATION

APPARATUS – TASSEL PENDANT

**CEILING PAINT TO MATCH CABINETS COLOR

CESAR – VERDE COMODORO LS26 MAXIMA CABINETS
CESAR – BRECCIA IMPERIALE COUNTERTOP & BACKSPLASH
LISTONE GIORDANO STRAIGHT LAY
GLAMORA – TANGE WALLPAPER

Game Room

PLUMBING SELECTIONS

FOSTER – CAPRI
FAUCET
IN GOLD
FOSTER – PHANTOM
24” x 18” SINK IN GOLD

Powder Bath 01

LISTONE GIORDANO STRAIGHT LAY
GLAMORA – SINGSPILE WATERPROOF WALLPAPER
AGAPE – NUDO LED TALL BACKLIT MIRROR

Powder Bath 01

PLUMBING SELECTIONS

AGAPE – MEMORY

FLOOR MOUNTED FAUCET IN CHROME

WATERMARK – DUAL FLUSH

PUSH BUTTON PLATE IN CHROME

TOTO – RP WALL HUNG TOILET IN WHITE

– BJOHN 1

PEDESTAL BASIN IN WHITE

AGAPE

Powder Bath 01

LUMBING SELECTION

AGAPE – MEMORY

IN CHROME

TOILET PAPER HOLDER

RIMADESIO – COVER

STORAGE/BOOKCASE SYSTEM IN 303 BRONZO STRUCTURE & 00 TRANSPARENTE

LISTONE GIORDANO STRAIGHT LAY
WALLPAPER BEHIND STORAGE SYSTEM

CESAR – NOCE MORO LM77 MAXIMA CABINETS

CESAR – INOX MAT IX30 STAINLESS STEEL COUNTERTOP WITH INT. SINK

Utility

INSPIRATION WARM CONSTRAST

MARGRAF – ROSSO CARDINALE + CALACATTA VIOLA
CHECKER FLOORING TILE 12” X 12”
FOSTER – CAPRI
FAUCET
IN SATIN

Library

INSPIRATION JOB-BUILT BOOKCASE

LISTONE GIORDANO STRAIGHT LAY

CESAR – CENERE LM15

Crafts Room

CESAR – NOCE MORO LM77

MAXIMA SINK WALL CABINETS
MAXIMA TALL CABINETS
CESAR – ENG. BIANCO APUANO STONE COUNTERTOP

Crafts Room

PLUMBING SELECTIONS

FOSTER – CAPRI
FAUCET
IN SATIN
FOSTER – LEONARDO
33” X 20” SINK
IN SATIN

Bath 01

MARGRAF – BIANCO PERLINO FLOORING + WALLS 12”X24”
CESAR – NOTRE DAME THICK COUNTERTOP
ROBERN – STATUESQUE LED MIRROR 86”X44”
CESAR – SABBIA LA07 MAXIMA CABINETS

Bath 01

AGAPE – MEMORY

SINGLE HOLE FAUCET IN CHROME (QTY 2) C ARRIAGE HOUSE

S TEPHENVILLE RESIDENCE

PLUMBING SELECTIONS

WATERMARK – DUAL FLUSH

PUSH BUTTON PLATE IN CHROME

TOTO – RP

WALL HUNG TOILET IN WHITE

AGAPE – MEMORY

SHOWER HEAD & HAND SHOWER IN CHROME

AGAPE – MEMORY

TOWEL HOOKS

IN CHROME (QTY 4) C

Bath 01

PLUMBING SELECTIONS

AGAPE – MEMORY

TOILET PAPER HOLDER IN CHROME

S TEPHENVILLE RESIDENCE

Bath 02

ROBERN – VITALITY LED MIRROR 36”X40”
MARGRAF – ARABESCATO VAGLI FLOORING + WALLS 12”X24”
CESAR – SAINT LAURENT THICK COUNTERTOP + BACKSPLASH
CESAR – NEBULA LA11 MAXIMA CABINETS

Bath 02

PLUMBING SELECTIONS

AGAPE – MEMORY

SINGLE HOLE FAUCET IN CHROME

WATERMARK – DUAL FLUSH

PUSH BUTTON PLATE IN SATIN CHROME

TOTO – RP

WALL HUNG TOILET IN WHITE

AGAPE – MEMORY SHOWER HEAD & HAND SHOWER IN CHROME

AGAPE – MEMORY

TOWEL HOOKS

IN CHROME (QTY 2) C

Bath 02

PLUMBING SELECTIONS

AGAPE – MEMORY

TOILET PAPER HOLDER IN CHROME

S TEPHENVILLE RESIDENCE

CESAR – NEBULA LA11 MAXIMA CABINETS

Kitchen

CESAR – CARRARA PN01 COUNTERTOP + BACKSPLASH

VIABIZZUNO – N55 PENDANT (QTY 5)

INSPIRATION KNIFE EDGE ISLAND

CESAR – ACCIAIO OSS. LE02 N’ELLE ISLAND

LISTONE GIORDANO STRAIGHT LAY

Kitchen

PLUMBING SELECTIONS

FOSTER – CAPRI
FAUCET
IN SATIN
FOSTER – PHANTOM
30” X 18” SINK
IN SATIN

Dining

LISTONE GIORDANO STRAIGHT LAY
VIABIZZUNO – N55 PENDANT (CLUSTER OF 3)

Carole’s Kitchen C

CESAR – NOTTURNO LS20 MAXIMA CABINETS
CESAR/MARGRAF – PIETRA DEL CARDOSO COUNTERTOP & BACKSPLASH
MARGRAF CARRARA + BARDIGLIO NUVOLATO CHECKER FLOORING 12”X12”
CESAR – PIPE HANDLE IN CHAMPAGNE

Carole’s Kitchen

PLUMBING SELECTIONS

IN GUN METAL

IN GUN METAL

FOSTER – CAPRI
FAUCET
FOSTER – LEONARDO
33” X 20” SINK

SALVATORI – RAIN MARBLE WALL TILE

Bath 03 (Primary)

CESAR – ROVERE RR10

MAXIMA SHAKER CABINETS

SALVATORI – CARRARA MARBLE FLOOR PARQUET
- COPPIBARTALI SCONCES (QTY 2)
MEDICINE CABINET MIRROR (QTY 4)

WALL MOUNTED FAUCET IN BRUSHED BURNISHED (QTY 2) C ARRIAGE HOUSE S TEPHENVILLE RESIDENCE

Bath 03 (Primary)

PLUMBING SELECTIONS

WATERMARK – DUAL FLUSH

PUSH BUTTON PLATE IN CHARCOAL

WALL HUNG TOILET IN WHITE

SHOWER HEAD & HAND SHOWER IN BRUSHED BURNISHED (QTY 2)

AGAPE – LIMON
TOTO – RP
AGAPE – LIMON

Bath 03 (Primary)

PLUMBING SELECTIONS

– MEMORY

TOWEL HOOK IN BRUSHDED BURNISHED (QTY 6)

AGAPE – OTTOCENTO 01

SINK/COUNTERTOP IN WHITE

AGAPE – CUNA

FREESTANDING TUB IN WHITE AND TUB FILLER IN BB

AGAPE – MEMORY

TOILET PAPER HOLDER IN BRUSHED BURNISHED

AGAPE

AGE HOUSE

Bath/Closet

03 (Primary) C

RIMADESIO – MAXI POCKET DOOR

RIMADESIO – DRESS BOLD CLOSET SYSTEM IN PLATINO 304 STRUCTURE & 01 ACIDATO

COLOR ATELIER – DIAMOND PLASTER PAINT (WALLS + CEILING)

Powder Bath 02

SALVATORI CABINETS IN WALNUT WOOD

LISTONE GIORDANO STRAIGHT LAY
SALVATORI – PUNTO COMPLETE VANITY SYSTEM
SALVATORI MARBLE PIETRA D’AVOLA

Powder Bath 02

PLUMBING SELECTIONS

AGAPE – LIMON

WALL MOUNTED FAUCET IN BRUSHDED BURNISHED

WATERMARK – DUAL FLUSH

PUSH BUTTON PLATE IN CHARCOAL

TOTO – RP

WALL HUNG TOILET IN WHITE

AGAPE – MEMORY TOILET PAPER HOLDER IN BRUSHED BURNISHED

GLAMORA – ETEREA ACCOUSTIC WALLPAPER

CESAR – CREATA LS13 MAXIMA STORAGE CABINETS
2TEC2 – HYBRID ALABASTER RUBBER FLOORING WITH (ECOSURFACE UNDERNEATH)
RULON – INTEGRILLE ACCOUSTIC CEILING WOOD SLATS

POOL HOUSE

DESIGN CONCEPT

FLOOR PLAN

SELECTIONS PER SPACE

Leisure, seamlessly added.
POOL HOUSE

Pool House

NOTE PLAN NOT TO SCALE

STEPHENVILLE – POOL HOUSE

CESAR – WILLIAMSBURG AISI 316 STAINLESS STEEL

Kitchen

CESAR – FIOR DI PESCO ½ ISLAND COUNTERTOP

BEVOLO – VIEUX CARRE SERIES ISLAND PENDANT

MATHEWS – GERBER CORNER FAN (QTY 2)

WHITE QUARTZITE 16”X24” FLOORING
FOSTER – CAPRI
FAUCET
IN SATIN

Bathroom

WHITE QUARTZITE
16”X24” FLOORING + ½ WALL
CESAR – BLU FES FX28
MAXIMA CABINETS
FIORANESE – FIO GLOSSY BRICK
3” X 12” BIANCO #2
ROBERN – VITALITY LED MIRROR 36”X40”

POOL HOUSE

Bathroom

PLUMBING SELECTIONS

AGAPE – MEMORY

SINGLE HOLE FAUCET IN CHROME

WATERMARK – DUAL FLUSH

PUSH BUTTON PLATE IN CHROME

TOTO – RP

WALL HUNG TOILET IN WHITE

AGAPE – MEMORY

SHOWER HEAD & HAND SHOWER IN CHROME

S TEPHENVILLE RESIDENCE

Bath 02

PLUMBING SELECTION

AGAPE – MEMORY HOOKS (QTY 2) IN CHROME IN WHITE
AGAPE – MEMORY
TOILET PAPER HOLDER IN CHROME

Turn static files into dynamic content formats.

Create a flipbook