
7 Aug 2000
73 rue de Ségur, Bordeaux, France
valeria.pavlova4@gmail.com
(33) 6 47 89 13 51
Permis B
![]()

7 Aug 2000
73 rue de Ségur, Bordeaux, France
valeria.pavlova4@gmail.com
(33) 6 47 89 13 51
Permis B

Etudiante de Master en architecture à Bordeaux, je suis à la recherche d’un stage dans une agence d’architecture afin d’étendre mes compétences. L’ensemble de mes experiences au tant au niveau scolaire que professionnel m’ont permis de développer mon autonomie.
2023 - 2024
Master 1 d’Architecture
Ecole Nationale Supérieure d’Architecture et de Paysage de Bordeaux - ENSAP | Bordeaux, France
2023
2019
Français Courant
Niveau C1
Licence d’Architecture
Ecole Nationale Supérieure d’Architecture et de Paysage de Bordeaux - ENSAP | Bordeaux, France
Baccalauréat scientifique - Spécialité mathématiques
Lycée de Mathématiques de Sofia | Sofia, Bulgarie
Anglais Courant Niveau C1 Bulgare Langue maternelle
Arts plastiques et manuels : Dessin, Aquarelle, Design Intérieur, Photographie
Sports : pilates, yoga, ski alpin
Voyages : Espagne, Portugal, Angleterre, Ile Maurice, Italie, Suisse, Grèce, USA, Turquie, UAE, Belgique, Pays-Bas, Autriche, Serbie, Russie, France, Bulgarie
JFA Architects, Floréal, Île Maurice
Stage de formation pratique (1 mois)
06/2023
• Dessin de plans des villas résidentiels, propositions à main levée pour présentation client.
Modélisation 3D sur ArchiCAD et BIMx - analyse volumetrique d'un projet de 150+ logements
Suivi de points d’avancement avec le client et réunions de chantier.
• Réalisation de plans techniques pour des maisons individuelles.
Idol Ltd | Sofia, Bulgarie Assistant technique (2 mois)
07/2021 - 09/2021
Dessinatrice sur ArchiCAD, conception des façades dans un projet de logements collectifs (projet réalisé)
• Utilisation d’ArchiCAD et BIMx pour visualiser un immeuble résidentiel de 9 étages avec un parking souterrain.
Création de visualisations à des fins marketing.
Participation à la conception des plans des logements étudiants.
Conception d’aménagement paysager.
Idol Ltd | Sofia, Bulgarie
Stage ouvrier (2 semaines)
Accompagnement dans les visites chantier.
01/2021
Observation de la construction brute d’un bâtiment résidentiel - coffrage, armature et bétonnage aux niveaux supérieurs, et la maçonnerie aux niveaux inférieurs.
• Formation pratique sur les procédures administratives standards de l’entreprise liées à l’obtention d’un permis de construire en Bulgarie, en conformité avec les réglementations d’urbanisme.


p. 6-15
Logements HLM à Paris
Master 1

Licence 3 p. 16-27
Une enfance à Grand Parc

Logements sociaux Petites villes de demain
Licence 2 05 p. 46-53

Densifier la rue
Arago
Licence 2 06 p. 54-61

Maison bioclimatique
Master 1 03 p. 28-33
07

p. 62-67
Habiter les 35 m3 : Tiny House
Licence 3

p. 34-45
Habiter la montagne
Licence 3
08

2018-2024 p. 68-73
Réalisations artistiques
Paris 11eme
Master 1 - S7 - Projet d'architecture
Enseignant : Loeiz Caradec
Ce projet prend place sur le Boulevard de Ménilmontant à Paris dans le 11e arrondissement en face de la Basilique Notre-Dame du Perpétuel Secours. Cette opération a d’abord pour vocation de densifier l’actuel TEP Ménilmontant - un terrain végétalisé laissé à libre disposition de tout public. Le collectif vient s’adosser aux bâtiments existants en respectant leurs hauteurs afin de mieux s’intégrer au site. Une place est crée en face de la Basilique qui redonne de l'attractivité au site.
Le projet propose deux immeubles de 55 logements sociaux du T1 au T5 duplex et 8 « maisons de ville » superposées en duplex, au cœur d’îlot. L’ensemble des logements sont traversants, doubles ou bien orientés, de sorte à privilégier des vues sur la basilique ou sur la cour intérieure centrale. Aux derniers étages on y trouve des duplex qui profitent d’un accès sur le toit-terrasse et des jardins privatifs, offrant ainsi un espace extérieur supplémentaire avec point de vue.



Elévation SUD (Passage de la Folie-Régnault)


Carte au 2000e

Murs pignons existants sur le terrain




Axonométrie commune des 2 projets


Vue depuis le Passage de la Folie-Régnault
Les deux bâtiments logements collectifs conçus autour d’une de 6 mètres. La barre au permet le passage au RDC connecte les deux batiments existants.
Le projet comporte commerces et bureaux RDC, dont une boulangerie destinée aux habitants quartier, qui est située à l'angle du bâtiment au niveau passage sous le bâtiment. plus, un équipement se trouve sur l'axe pieton biblothèque.

bâtiments de sont trame au Sud RDC et batiments comporte des bureaux au boulangerie habitants du l'angle niveau du bâtiment. De public pieton - la





Vue sur le jardin commun entre la barre et les logements sémi-collectifs

Façade Nord
Séparé du collectif par l’espace vert, le cœur de parcelle est occupé par l’habitat individuel superposé (sémi-collectif).
Le rez de chaussée accueille 4 T3. Les étages sont occupés par 4 logements organisés en duplex, desservis par deux escaliers et deux coursives à l'extérieur.
Les accès aux logements sont privilégiés par le nord pour que les séjours s’ouvrent au sud. Ils possèdent tous un prolongement extérieur : terrasse, jardin ou balcon.






Coupe perspective du hall d'entrée
Rehabiliter Grand Parc
Licence 3 - S6 - Projet d'architecture
Enseignante : Karine Louillot, Vincent Arné
Grand Parc est un quartier qui rencontre le défi, exprimé par les élus, de voir s’améliorer sa qualité de vie. Il accueille l’une des plus nombreuses populations jeunes de la ville, caractérisée par un fort taux de chômage, 50 % de familles monoparentales maternelles et un vrai questionnement sur son avenir.
La commande propose une ferme urbaine hors sol comme l’une des réponses. Le but exprimé est semble-t-il de fournir une certaine autonomie alimentaire pour une consommation locale ainsi qu’éduquer la population à une alimentation goûteuse de qualité.
Avec de nombreux nouveaux arbres, autant de surface en jardins et en culture que de surface bâtie, nous espérons cette zone du quartier comme une oasis où les enfants de Grand Parc auront été heureux de grandir et peut être de se découvrir une vocation de cultivateur.






bâti 4 696 m²
Surface parcelle
Limites parcelles
Sous le favorable climat bordelais, la ferme urbaine pourra être extérieure. Et pédagogique, puisque directement mise en œuvre par les habitants, spécifiquement les enfants de l’école, les adhérents du Centre Social et les résidents de l’Ehpad.
Nous avons choisi la permaculture en bacs hors sol qui permet à la fois des vergers, la culture de fruits, de légumes et d’herbes selon le degré d’ombrage.



Centre Social - Plan intial et demolition





Plan R+1


Plan RDC
Le Centre Social, véritable cœur vivant de cette partie du quartier est revalorisé par la création de 500 m2 supplémentaires et la réorganisation des usages.
S’y ajoutent, un logement de gardien pour le Centre Social est prévu ainsi que 5 logements en terrasse au 1er étage.
Nous avons souhaité proposer une architecture la plus végétale possible : des toits végétalisés et la surélévation en bois attestent du souci de solidité et de douceur


Façade Sud Centre Social & Surelevation et Salle Polyvalente



Plutôt que d'opter pour une ferme urbaine traditionnelle, nous avons conçu un espace multifonctionnel, la halle de vente alimentaire pour les producteurs locaux, répondant aux besoins locaux en alimentation. Ce lieu de commerce accueillera également un restaurant solidaire qui doit pouvoir nourrir directement (et à bon marché) la population du quartier à des tarifs mis au niveau de revenus de ses habitants.
Le projet comprend également l'extension du Centre Social avec des logements et la construction d'une nouvelle crèche pour soutenir les mères monoparentales dans leur parcours professionnel.
Enfin, une salle polyvalente est crée afin d'offrir un véritable lieu privatisable pour les événements des familles, à l’occasion à usage de culte, mais aussi un nouvel espace aux associations puisqu’il compte également 3 salles de classe et une vaste cuisine.






Plan

Coupe longitudinale
Afin de prioriser l’inclusion sociale des femmes en charge de famille, population à la fois pauvre, socialement marginalisée et surreprésentée à Grand Parc, une nouvelle crèche est créée.
La crèche peut accueillir 76 enfants afin de permettre à leurs mères d’engager un projet professionnel, démarche actuellement accompagnée par le Centre Social mitoyen.

Plan et zonage de la crèche

Sozopol, Bulgarie
Master 1 - S7 - STA
Enseignant : Yann Heckler
La maison est située à Sozopol devant la mer. Cette région est assez connue en Bulgarie pour son climat doux et modéré. Nous avons misé au maximum sur l’inertie de l’enveloppe globale de la maison en travaillant sur le choix des matériaux ainsi que leur épaisseur. En outre, nous avons réfléchi à la taille et à la composition des menuiseries ainsi qu’aux façades sur lesquelles elles seraient placées.
Nos choix architecturaux, notamment la création de la pergola et de la casquette, ont également contribué à la baisse du nombre d’heures supérieures à 27°C dans le bâtiment.
Pour de réduire les consommations d’électricité et d’eau, nous avons prévu des panneaux photovoltaïques et des bassins de phytoépuration. Ces derniers, bien que coûteux au moment de la création, nécessitent peu d’entretien et permettent une économie d’eau.







Nous avons créé une terrasse semi couverte par une casquette et conçu une pergola à l’avant.
Cette casquette et les lattes de bois, prolongeant les façades Sud-Est et NordOuest, servent de protection solaire car nous avons constaté que sur les façades SudOuest et Sud-Est, les baies des extrémités laissaient passer beaucoup plus de chaleur et donc, favorisaient la surchauffe.
Nous avons également réduit la taille des baies pour diminuer l’inconfort thermique et les avons dimensionnées et disposées en sorte qu’un maximum de lumière pénètre dans l’habitation en hiver.
Pour les murs intérieurs qui séparent les pièces de vie, nous avons choisi un matériau avec de l'inértie - BTC (brique de terre comprimé). Le mur en BTC est rafraîchi lorsque la maison est ventilée et il restitue cette fraîcheur dans la soirée.
Notre première esquisse comprenait une serre que nous avons décidé d’enlever à cause de l’inconfort thermique qu’elle provoquait.
Ayant pris cette initiative tardivement, nous avons gardé l’organisation initiale du plan mais avons mis un point d’honneur à choisir un vitrage qui nous semblait adapté.

Axonométrie structurelle

- Structure en bois entièrement porteuse
- Isolant intégré dans le MOB + ajout d’une deuxième couche d’isolation pour limiter les pont thermique
- Contreventement : Panneaux de fibre de bois
- Mur intérieur en BTC avec des poteaux en bois ;
- Plancher bois
- Fondation en béton armé
Détail MOB & plancher
Echelle : 1/10

Détail MOB & toiture
Echelle : 1/10

Pasaia - Pays Basque Espagnol
Licence 3 - S5 - Projet d'architecture
Enseignante : Kristell Filotico, Vincent Tricaud
Mon intention est d’intégrer le projet des logements au coeur de la forêt afin de contempler le port de Pasaia entre les arbres depuis leur cime et s’élever vers le ciel.
On rentre par une passerelle sur le toit depuis la partie supérieure de la pente et on accède aux appartements en descendant. Ou bien par la route dans le bas de la colline.
On entame cette route et on se rapproche de ce paysage sinueux comme un but à attendre, avec le choix de s’arrêter si on le souhaite. On monte encore au sein de cette si belle forêt et on découvre une bélvèdere sur ce paysage, une forêt, une mer et des champs. En se promenant dans la zone, on peut voir les bâtiments apparaître lentement derrière des dizaines d’arbres hauts.

Les façades sont réalisées en bardage bois de chêne et des grandes baies vitrées. Le bardage en bois et la transparence du verre permettent aux bâtiments de s’intégrer dans l’environnement naturel.
Les logements collectifs s’ouvrent sur le paysage dans toutes les directions, ce qui offre une vue exceptionnelle sur le panorama à travers des bois de pins, de chênes et de hêtres.
À l'intérieur des appartements, l'espace ouvert dans le salon et dans les chambres mène et s'étend sur la terrasse en bois vers le monde extérieur. La forêt nous cache des autres, signe d’intimité et de repos, et nous invite littéralement à déambuler pieds nus et à s’immerger doucement dans l'ambiance boisée.
L’espace est encadré par des poteaux placés de manière irrégulière qui répondent aux tronc des arbres qui créent un sentiment d’intimité. De larges avant-toits protègent agréablement le bâtiment du soleil de l’après-midi.
Maquette du site 1/400






Le programme :
56 logements collectifs en R+9; +8; +4
Habitants : 122 personnes
- RDC : salle de travail commune, espace vélos, salle de stockage, local poubelle
- 20 x T1 - étudiants / jeunes actifs / jeunes couples
- 4 x T3 - familles avec 1-2 enfants
- 8 x T4 intergénérationnel


A Pasaïa, le réchauffement climatique s’exprimera notamment par une montée des eaux depuis la mer, soutenue par les pluies montagneuses.
La partie Est de la baie retrouvera très probablement, à un siècle, un trait de côte similaire ou proche à celui du début du XIXè siècle, à l’époque où la baie n’était pas encore un centre urbain et Lezo un petit bourg.
Renaturation, modelage du trait de côte, propositions programmatiques et stratégie des franchissements visent à s’emparer de cette contrainte majeure.
Cette relation renforcée à l’eau peut devenir un atout pour la ville et une source d’agrément pour ses habitants.

Maquette du site au 1/2000

Objectif 1 :
La zone humide
- restitution des espaces naturels marécageux
- reconstitution d’un lit au plus près des lignes naturelles
- renaturation par phases progressives
Objectif 2 :
Révéler une nouvelle façade urbaine en contact avec l’eau
- implanter des projets d’architecture
- évider la dalle portuaire
Objectif 3 :
Activer la plaque portuaire
Faire se rencontrer les deux villages
- base de loisirs
- activité agricole et commerçante
- renaturation


Aménagements urbains sur la partie Est de la baie

Le franchissement : fil rouge du projet

Projet des logements collectifs dans la colline
Villeréal - Lot et Garonne
Licence 2 - S4 - Projet d'architecture
Enseigant : Michel Dupuy de Cazeres
Mon projet de deux immeubles avec logements sociaux s’inscrit dans un terrain non bâti, entre la place de l’église et l’un des principaux
axes d’entrée de la ville. J’ai implanté les nouveaux bâtiments dans l’îlot central de la bastide avec l’intention de maintenir la continuité des lignes des bâtiments existants et d’intégrer la composition dans l’environnement urbain.
Le projet comprend également l’aménagement d’un parc urbain avec une aire de jeux dans la cour, accessible depuis les trois rues - par les deux tunnels séparés sous les bâtiments et par une ruelle.


Maquette au 100ème

Maquette au 500ème



Au coin d’un des bâtiments, j’ai conçu un café qui aura des tables à l’extérieur, situé dans le tunnel à côté qui vient les ombrager. Et afin d’utiliser au maximum l’espace dans l’autre tunnel, j’ai prévu un parking à vélos et l’escalier du bâtiment.
Les appartements des immeubles nouvellement conçus sont compacts mais fonctionnels, avec des tailles différentes, du T2 au T4, et pourront accueillir le maximum de personnes. Tous les logements sont situés dans les orientations les plus favorables du soleil, et sur l’un des bâtiments, afin d’orienter tous les logements vers le sud-est, j’ai situé la coursive de l’étage entièrement vers le nord-ouest.


Suspente
Isolant : laine de bois
Parement
Finition sol : parquet Pare vapeur
Isolant
Protection solaire de la façade sud par la console - en été









Pour les façades des bâtiments et la structure j’ai utilisé la pierre et le bois locaux pour revitaliser le centre historique, en offrant un îlot de fraîcheur aux habitants d’une ville plutôt minérale.
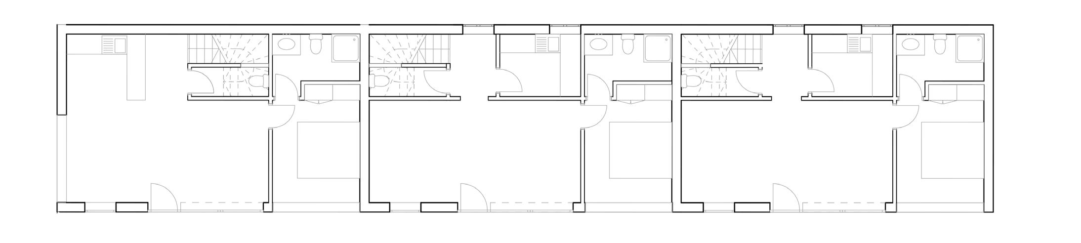
Rue Arago - Bacalan, Bordeaux
Licence 2 - S3 - Projet d'architecture
Enseignant : Pierre Goutti
Le projet se situe au centre du quartier résidentiel de Bacalan, au nord de Bordeaux. Afin de favoriser la densification des espaces résidentiels, j’ai décidé de construire des nouveaux logements à partir de l’existant, du déjà là, dans les jardins pavillonnaires qui s’étalent de manière importante, sur de grandes surfaces pouvant être repensées.
Cette démarche suppose d’assurer une alternative aux maisons existantes, ainsi elles seront toutes orientées vers un cœur d’îlot verdoyant et privatif afin d’organiser sainement et efficacement la refonte du tissu urbain.
La vie de quartier est aussi repensée, avec la création d’espaces privés et partagés tels que des parcs, stationnements, jardins privés…

Ce projet introduit une nouvelle manière de vivre qu’est le co-living et va permettre à d’autres profils de résidents de s’installer dans le quartier. Les profils ciblés sont des personnes âgées, des jeunes actifs, des couples, ou encore des familles avec 1 ou 2 enfants. Différentes tranches de la population que je souhaite faire interagir au cœur d’un même projet pour développer une cohésion entre ces profils qui peuvent s’entraider, partager au quotidien et vivre ensemble.
Ce quartier accueillant et inspirant composera alors un tissu urbain hétérogène aux formes urbaines diverses tout en redéfinissant un ensemble, une communauté, une société.










Le programme se compose de 16 maisons individuelles, construites sur deux ou trois étages afin de s’intégrer dans un tissu urbain pavillonnaire.
Pour ce qui des orientations spatiales, les séjours/pièces de vie de chaque logement s’ouvrent largement sur des espaces extérieurs, terrasse ou jardin, plus ou moins intimistes grâce à leurs baies vitrées généreuses. Chaque penthouse offre une juste composition entre pièces de vie et espaces de nuit, cultivant et développant l’espace des unes tout en préservant l’intimité des autres.
Au niveau des matériaux, je souhaiterais m’orienter vers le bois et la maçonnerie enduite qui sont des matériaux de plus en plus demandés dans une démarche durable de création de la ville et du territoire.




Habiter les 35 m3
Licence 3 - S5 - Art et Techniques de Représentation
Enseignants : Fabienne Darricau, David Delesalle, Irena Rosinski, Agnès Clotis
Les êtres humains évoluent sans cesse et leurs besoins aussi. La pandémie nous a amené à repenser notre époque. Cette situation nous a poussé à adopter un mode de vie plus simple, à nous redéfinir et à réinventer la façon dont nous coexistons les uns avec les autres.
Le monde change constamment, et avec lui, nos maisons nous font passer plus de temps à l’intérieur. Notre habitat n'est plus seulement un lieu où l'on vit, c'est un lieu qui vit avec nous.
En plus d'être un abri, l’habitat doit servir de bureau, de cuisine à plein temps, de lieu de divertissement et de lieu de paix.
Le problème du logement est l'une des grandes questions du monde moderne, dans lequel les unités d'habitation sont de plus en plus petites. L’organisation spatiale est le seul moyen de faire d'une petite maison un habitat.


Mon idée est de concevoir une Tiny house pour 2 personnes qui offrirait une accommodation confortable et faire en sorte que la maison s’adapte aux divers besoins d’aujourd’hui; et qu’elle soit plus proche de la nature. Parce qu'il s'agit d'une unité autonome, les utilisateurs pourront s'arrêter et vivre temporairement dans toutes sortes d'endroits à travers le monde, parce que, si compressée, la maison s’adapte parfaitement sur une remorque routière.
L’intérieur de la maison est divisé en deux environnements principaux. Le principal, selon la disposition des meubles, remplit les fonctions de dortoir, salle à manger et espace de travail, tandis que le second contient les parties sanitaires et la cuisine
Les fonctions sont interchangeables, grâce au sous-sol élevé de la maison, à partir duquel l'ameublement peut être retiré ou caché selon la fonction requise, permettant de vivre chaque environnement avec le maximum de surface. Inspirée du design japonais, la salle à manger a une pop-up table qui se dissimule dans le sol lorsque l’on n’a pas de l’utilité.
Le stockage, bien sûr, est toujours un problème dans une maison aussi petite. Alors on profite de la hauteur sous plafond pour installer une série de rangements. Les éléments de mobiliers escamotables permettent ici de maximiser l’espace.





Référence du pop-up :
Permet de dévoilé par simple pliage un espaces. Le pop-up permet de créer des espaces.

Le principe de la maison pliante est de permettre aux utilisateurs d'agrandir leur maison en fonction de la saison, de la météo et du contexte dans lequel elle se trouve. Au printemps et en été, la chaleur augmente. On vit davantage à l'extérieur et on veut en profiter. La maison s'agrandit en conséquence. La façade se transforme et devient un sol, elle devient un espace supplémentaire entre l'intérieur et l’extérieur, qui est invitant et agréable.


Idée de déploiement/ d’étirement : Extension - Système de rail
Ce module permet également d’avoir par un système de rail une extension qui ajoute 15m3. Dans cette situation c’est pas forcément l’Homme qui se déplace mais bien les éléments de mobilier.



Peinture à l'aquarelle - Crayon - Encre et plume + Autres projets
2018-2022
Le dessin est le premier language de l'architecture, il est depuis toujours le médium universel pour représenter celle-ci. Sa liberté et sa richesse en font le meilleur outil de conception, d'expérimentation, de reflexion et de représentation.
J'ai commencé à frequenter des cours de dessin en 2018 chez le célèbre aquarelliste bulgare Nikola Angelakov, qui a poursuivi la tradition de l'aquarelle en Bulgarie après un autre peintre de renom - Vasil Stoilov.
J'ai pu experimenter et apprendre de nouvelles techniques de dessin, qui m'a permis de mieux apprendre les formes et la lumière du monde qui nous entoure. J'aspire à trouver la beauté autour de nous et la peindre est toujours un plaisir pour moi.

Dessins réalisés à l'aquarelle 2018 - 2022















Nature morte réealisée au crayon Etude et dessins d'observation au crayon





Place de la Bourse à Bordeaux
Licence 2 - S3 - Construire avec l'existant
Parc Brandenburg
Enseignant : Pierre Goutti



