Skip to main content

Salisbury & Avon Gazette Edition 24

Page 1

Salisbury & Avon Gazette Edition 24 September 11, 2023 FREE EVERY FORTNIGHT TANDOORI NIGHTS Fully Licensed Indian Restaurant & Take Away Two for One Dining In Only Cheapest Main Meal Free With This Advert, 7 Days A Week Tel: 01980 626260 / 626126 26 High Street, Amesbury, Wiltshire SP4 7DL HOMES PLAN Anger over plans for nine homes in village centre Page 8 Don’t miss our wedding special with Allum & Sidaway Page 37 VICTIM TRIBUTES Family remembers ‘amazing’ man after stabbing Page 4 Young people and volunteers join forces to brighten up city walkway Page 3 WHAT A WAY TO UNDER-PASS THE TIME!
Salisbury & Avon, September 11, 2023 2 salisburyandavon.co.uk
Editorial deadlines are the Monday the week before publication. Display ads must be booked by Wednesday the week before publication, with final copy submitted by the Friday Classified ads may be accepted after this, however these will be subject to space. EDITORIAL ADVERTISING CLASSIFIED ADVERTS: adverts@salisburyandavon.co.uk - 01963 400186 Debi Thorne Advertising Sales Manager Debi.thorne@blackmorevale.net 07714 289409 Lloyd Armishaw Publisher newsdesk@blackmorevale.net 01963 400186 Lorraine Drake Distributor lorraine_drake@icloud.com 07850 529937 Kye Harman Sports Editor sports@blackmorevale.net 01963 400186 Mandy Bacchus Account Manager amanda.bacchus@blackmorevale.net 07714 289414 Online: www.salisburyandavon.co.uk We love hearing your news and views. Get in touch with us by emailing newsdesk@salisburyandavon.co.uk
Jane
Senior Account Manager Jane.toomer@blackmorevale.net
Antiques & Collectables 33 Arts & Entertainment 30-32 Business 28 Education 24 Farming 23 Field & Stream 22 Food & Drink 27 Health & Wellbeing 21 History 26 Home & Garden/Gardening 20 Local Services 33 Motoring 46-47 Politics 18-19 Property 36 Puzzles 34-35 Recruitment 44-45 Sport 29 Volunteering 25 Weddings Feature 37-43 Phoenix
Classified Adverts adverts@salisburyandavon.net 01963 400186
What’s inside this issue…
Top: Lord Lieutenant’s tribute a year on from Queen’s passing page 11 Above: House plan for village pub page 9 Left: Roadworks warning as schools return page 6
Toomer
07714 289411
Witt-Tower

Working group has a splashing time brightening up city underpass!

YOUNG people joined forces with volunteers - including city and district councillors - to brighten up a Salisbury underpass.

The Underpasses Working Group, in collaboration with Salisbury City and Wiltshire Councils, joined a group of young people from Splash Wiltshire - supported by artist Fred Fieber - to create a colourful mural in the Exeter Street walkway.

The two-day project was the second of its kind in Salisbury by Splash Wiltshire.

And the group said passersby were ‘very impressed not only by the young people’s excellent work but also by how the mural lightened and brightened the underpass, making it feel safer’.

Councillors Sven Hocking and Lynne Blackwood lent helping hands amid many laughs and paint-daubed

moments with the youngsters.

Splash has been supporting Wiltshire’s young people for nearly 35 years and forms part of Youth Action Wiltshire, the ‘Youth Arm’ of Wiltshire charity, Community First.

The Splash project was

supported by the Salisbury Area Board and Salisbury City Council.

However, the team is also reaching out to local shops and suppliers for any donations of materials and resources such as paint brushes, paint trays,

protective gloves, paint and dust sheets for future projects.

Splash worker, Rachel, said a great time was had: “This was a real community project and it would be wonderful to get local businesses involved in any way we can.”

Blue plaque unveiled to honour doctor who transformed research in the field of genetics

A BLUE plaque recognising the work of a ‘groundbreaking’ doctor at the former Salisbury Infirmary will be unveiled next week.

The plaque recognises the work of Dr Marina Seabright OBE (pictured), who carried out a raft of landmark research in the field of cytogenetics, studying cells to identify abnormalities in chromosones which could indicate a genetic disease or disorder.

Representatives from the Salisbury Civic Society and Salisbury Soroptimists, who organised the tribute, will be on hand at the unveiling of the plaque at Pembroke House on Wednesday, September 6, at 2.30pm.

They will be joined by the Mayor of Salisbury, along with representative scientists from

Wessex Genomics. The plaque was inspired by the successful Her Salisbury Story project, completed by the Soroptimists last year, recognising the achievements of women in the city.

Dr Seabright produced the first significant results by accident, but revisted the method some years later and recognised its significance.

By using trypsin, she was able to simply, speedily and cheaply characterise individual chromosones. This transformed the field of human genetics and is still widely used today.

She was born in Calabria, Italy, in 1922 and studied medicine at Palermo before marrying Harold Seabright, an English sub lieutenant in the

Royal Navy volunteer reserves. They settled in Ringwood, Hampshire, and she began work at Salisbury pathology department after being turned down by University of Bristol.

In 1971, she published her much cited paper on trypsin G-banding technique for chromosomes and was awarded a PhD in the mid 70s for work on the effects of xrays on chromosomes.

She became consultant scientist and director of the Wessex Regional Cytogenetics unit, based in Salisbury, which flourished under her leadership.

On the day she retired, December 31, 1987, she was awarded an OBE.

She lived in Ringwood until her death in 2007.

News Salisbury & Avon, September 11, 2023 3 salisburyandavon.co.uk
The Splash Wiltshire team was helped by volunteers, including city and district councillors

Family pays tribute to ‘amazing’ man and thanks city after stabbing

THE family of a man who died after being stabbed in Salisbury have paid tribute to an ‘amazing’ person.

Tsvetomir Genov died after a stabbing in Gainsborough Close on August 22.

Now, his family has has remembered the father-of-one, whose little boy will now ‘have to grow up without his father’.

“We lost our first-born amazing son TG suddenly and it is a really hard time for our family,” they said.

“He is a brother to two boys and also a father to a little boy.

“We still don’t want to believe he is not here anymore and he will never be back and we will never see his smile again, will not hear his voice, his little boy will have to grow up without his father.

“It is hard and painful, sad and heart breaking.

“He will stay forever 20 as someone took him from us in such a cruel and horrible way.”

Maurice Jones, 25, has been charged with Tsvetomir’s murder, but the family said ‘it won’t bring TG back’.

“The thought that we have to live without him now is hard,” they added.

“No one should have to go through this.

“We would like to say thank you to every service involved for their hard work, it has meant a lot.

“Also, we are grateful to all the community, friends and everyone being with us in this hard time and we would like to thank them all for their support, for sympathy cards and flowers.

“They are still arriving, people even bring us hot food. We have no words for this. Whatever we say will not be enough.

“It is lovely to see so many people thinking of TG and us.

“A lot of people get in touch with us and it is really appreciated, people we don’t know have been crying and praying for our son and offering us help.

“Thank you all.”

Road closures in Amesbury and Larkhill during October

TWO temporary road closures will be in place in Amesbury and Larkhill during October.

The decision to close each road has been made by

Wiltshire Council to allow works to be carried out.

From October 16 to 25 between the hours of 9am and 4pm, part of The Packway in

Larkhill will be closed so that Wiltshire Council can carry out carriageway resurfacing, patching works, road markings, and adjustment of ironworks.

The closure and diversion route will be clearly indicated by traffic signs.

While the works are ongoing, an alternative route will be singposted: via The Packway (the unaffected length) – A345 – A303 – A360 – B3086 and vice versa. The closure can also be found on one.network here: https://one. network/?tm=134858674

For further information please contact Wiltshire Council on 0300 456 0105.

From October 23 to November 17, part of Church Street and Salisbury Street will be closed to allow Wessex Water to carry out sewer renovation and other associated

works.

Church Street will be closed from its junction with Salisbury Street to outside the Kings Arms. Salisbury Street will be part closed from its junction with Church Street to outside No 6 Salisbury Street.

While the closures are in place, an alternative route has been suggested: via High Street – A345 – C292 – C42 –Stonehenge Road – Church Street (the unaffected length) and vice versa.

The closure and diversion route will be clearly indicated by traffic signs, the council said.

The closure can also be found on one.network here: https:// one.network/?tm=134943198

For further information please contact Wessex Water on 0345 6004600

News
Salisbury & Avon, September 11, 2023 4 salisburyandavon.co.uk
‘Amazing’ victim Tsvetomir Genov died after a stabbing in Gainsborough close, Salisbury
Salisbury &Avon Gazette Edition 20 ROW OVER Page5 Council chair officially opens new facilities (but they’re actually for children!) Page19 THOUSANDS TAKE ON CHARITY WALKPage3 SCOUTS HIT THE WATER Page11 INTO PLACE! TANDOORI NIGHTS Fully Licensed Indian Restaurant & Take Away Two for One Dining In Only CheapestMainMealFreeWithThisAdvert,7DaysAWeek Tel: 01980 626260 / 626126 26HighStreet, Amesbury, Wiltshire SP4 7DL Salisbury & Avon Gazette Edition 20 July 17, 2023 FREE EVERY FORTNIGHT BASKETS Page Council chair officially opens new facilities (but they’re actually for children!) Page 19 TAKE ON CHARITY Page 3 SCOUTS HIT THE WATER 11 NEW-LOOK PLAY AREAS SLIDE INTO PLACE! TANDOORI NIGHTS Fully Licensed Indian Restaurant & Take Away Two for One Dining In Only Cheapest Main Meal Free With This Advert, 7 Days A Week Tel: 01980 626260 / 626126 26 High Street, Amesbury, Wiltshire SP4 7DL Salisbury & Avon Gazette Connecting with 125,000 readers per month Your local magazine for your local audience Salisbury & Avon Gazette

Advertising feature

Best Buds! St Ives House Residents Create Beautiful Bouquets As They Take Part In Flower Arranging

St Ives House is a warm and welcoming residential and dementia care home nestled on the edge of the New Forest near Ringwood. St Ives House residents and staff recently participated in a flower arranging activity which took place within the hub of St Ives House, the Bistro. The activity was inspired by two residents at the home who used to do flower arranging at their local church. The various colourful flowers included sunset orange, fuchsia pink and bright white with residents creating beautiful arrangements that brightened the room.

The fun afternoon activity unlocked fond memories for some residents as they reminisced about taking part in flower arranging during their youth.

Deputy Home Manager, Natalie Hosking said: “It’s wonderful to see

the residents creating these beautiful flower arrangements which have been displayed around the home.”

At the heart of St Ives House is Food, Fun and Friendship, providing hearty, nutritious meals and a wealth of fun activities. A daily activities programme exists to create a mix of fun and engaging activities that appeal to everyone, such as group games, interacting with the community, relaxing during performances from visiting entertainers, and getting out and about on day trips. All activities are also tailored to offer something to those who prefer to be in smaller groups or need one-to-one interactions. The events and activities on offer are all designed to reflect resident’s interests and ensure that they can embrace their golden years.

St Ives House is owned by Care South, a not-for-profit charity and leading provider of residential and home care across the south of England. The home features 60 welcoming, fully furnished rooms and has been meticulously designed to create a homely, safe and comfortable environment for residents. With several communal areas, including spacious lounges, themed sitting areas, balconies, and beautifully landscaped courtyard and gardens, St Ives House is the perfect place to relax with a cup of tea, or socialise with friends and loved ones.

For further information about St Ives House call 01425 209464 or visit www.care-south.co.uk

News Salisbury & Avon, September 11, 2023 5 salisburyandavon.co.uk
AWARD2023 20 TOP “ I would highly recommend St Ives House, as Mum feels safe, secure and very well cared for. The food is very nice and the ” A real review taken from carehome.co.uk As voted for by residents in our care, their families and friends Contact us today to see how we can help create a new home for you or a loved one | care-south.co.uk St Ives House | Horton Road | Ashley Heath | BH24 2EE Care South is a . Registered Charity No. 1014697 A Care South home for residential and dementia care 9.8 9.8/10 – Sept 2023
In the heart of the your community

Drivers warned to plan extra time to make journeys through Salisbury

COMMUTERS planning the back-toschool trips in Salisbury this week are being reminded of a one-way system in place during major works.

Drivers are being warned to allow extra time for their journey given the construction works currently taking place in the city as part of a multi-million pound scheme.

Work is underway on improvement works at Fisherton Gateway. Due for completion in Summer 2024, the works include widening pavements, introducing new street lighting, enhancing landscaping, improving street furniture and wayfinding, and introducing continuous footpaths at junctions to enhance pedestrian priority.

A one-way system is in place on Fisherton Street for the duration of the works, with traffic able to travel from the junction of South Western Road and Fisherton Street, towards the junction of Fisherton Street and High Street.

The work is being carried out in phases, with excavation works and kerb removal

currently being undertaken between Fisherton Bridge to Malthouse Lane.

A phasing plan with timescales for the works, plus weekly updates on the project can be found online at www. wiltshire.gov.uk/ salisbury-trafficmanagement.

Cllr Caroline Thomas, Wiltshire Council’s cabinet member for transport, said: “A mission supported by our Business Plan is to have vibrant, well-connected communities.

“This project aims to create a vibrant and sustainable city centre for Salisbury by improving the pedestrian areas along Fisherton Street to make it easier, safer and more convenient for local residents, regular visitors and tourists alike to access the city centre.

“Road improvements of this scale can cause some disruption and we apologise for any inconvenience.

“With the traffic around Salisbury likely to increase as youngsters return to school and college, we want to remind drivers to plan ahead and allow extra time for their journeys, taking the one-way system into account.

“For those using buses, Salisbury Reds have published details of the Fisherton Street bus stops which have been temporarily moved on www. salisburyreds.co.uk.

“Those who travel by train also need to be aware that their ongoing journey from the train station may look a little different and pavements may be temporarily closed with alternative footpaths in place during the work phases.”

“Regular updates on the changes to the traffic management arrangements as the project progresses will be available on the council’s website www.wiltshire.gov.uk/ salisbury-traffic-management.

“While the works are taking place and Fisherton Street looks a little different, we would like to reassure everyone that it is only temporary. All the wonderfully independent and quirky businesses in the area are all still very much open for business so please do continue to support them.”

Local people and visitors are being encouraged to follow the existing signed routes to enter/exit the car parks in the immediate vicinity. Entry/exit to Culver Street and the Old George Mall Car Parks are unaffected by the works in Fisherton Street.

News Salisbury & Avon, September 11, 2023 6 salisburyandavon.co.uk
Left: Fisherton Street roadworks phasing and traffic management plan Current roadworks on Fisherton Street

Auction and raffle raise thousands in fundraising drive for two hospitals

IF you were in Salisbury around 6.30pm, on September 2, you may have heard music and a hubbub in the Market Square by The Ox Row where a very special raffle and auction was taking place, along with live music from Tramps & Amps.

The event was organised by Liz Coombes, director of Artisan Wine and Spirit Co, and was the first of a two-part fundraising event in aid of both Salisbury and Southampton hospitals that together helped save her son Fraser’s life.

Liz takes up the story: “My eldest son Fraser was found unresponsive on Christmas morning and we rushed him to Salisbury Hospital where they found an abscess on his brain and further infection.

“He was bluelighted to Southampton where he underwent emergency brain surgery for the rest of Christmas Day and further surgery two weeks later after going downhill again.

“I’m raising money for both hospitals as they did equally important jobs in saving

his life. They didn’t expect him to survive Christmas Day so he is a bit of a miracle.”

On the night, the auction was hosted by Tramps & Amps, between their two live sets which saw the gathered crowd dancing well into the night.

It’s safe to say the event was a success. “It went brilliantly,” said Liz. “It was so much fun, the band were amazing and we raised around £4,000 just during the evening. It takes my total so far to nearly £6,500 and now I’m trying to work out how

to get that up to £10K.”

The auction included: A 4-course meal cooked for up to six people, cooked in the successful bidder’s own home by Tim of Allium Restaurant.

A framed oil painting of an Art Deco building by Jane Walker, a Salisbury artist.

A bottle of House of Commons Champagne signed by the PM himself.

A private wine tasting for up to eight people. A freshwater pearl necklace kindly donated by Tribbecks Jewellers.

A raffle, which included 45-year-old cognac, a fire pit cookery course and more, raised £2,200 for Liz’s fundraising drive.

The auction and raffle were precursors to the second fundraising event which will see Liz and a team of friends and customers walking from Salisbury Hospital to Southampton Hospital.

You can read more about the background to the events on the Just Giving pages: https://www.justgiving.com/page/ r2rsalisbury

News Salisbury & Avon, September 11, 2023 7 salisburyandavon.co.uk
The auction was hosted by Tramps & Amps between the band’s two live sets

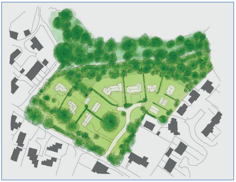
Permission requested to build on land at Cuckoo Pen in Porton

NINE new homes could be built in the centre of a picturesque Wiltshire village.

D C Li (Builders) Ltd has applied to Wiltshire Council for permission to develop land at Cuckoo Pen, on Winterslow Road, in Porton.

The scheme would see nine new homes - one two-bed, five three-bed and three four-bed - builton the site, with a house already on the site also retained.

In the planning application, the applicant says the site is ‘in prime location’ and that it consists of two ‘areas’ totalling some 0.932 hectares.

“The land with the residential property of Cuckoo Pen comprises a fairly flat, linear site of 0.473 hectares, which is occupied by the dwelling and its gardens, together with a rough area of more elevated scrubland, which has been used for past chalk and flint extraction,” it said.

“The latter is a sort of triangular shape and extends towards a public footpath, which runs parallel with the River Bourne.”

Together, the sites add up to 0.932 hectares, it said.

“The applicant’s ownership extends beyond the footpath, to include an area of woodland which runs down to the river and forms part of an extensive wildlife corridor,” the application went on.

“This is to remain as such and does not form part of the application site.”

The application said the site had formerly been owned by a family for more than 60 years, who were ‘concerned to secure a suitable developer, with the ability to deliver a guality housing scheme’ that ‘has the support of residents’.

Built in 1937, the house already on the plot would be retained and refurbished, the

plan said, with homes built to either side.

As many ‘healthy trees as is practicable’ would be retained, it said, with the plans also including an intention o create a ‘belt of new planting’ to replace lost trees.

The main access would be off Winterslow Road, the plans said, with a junction near the burial ground of St Nicholas’ Church.

The application also outlines plans to create off-road parking for the church, in a bid to improve the dafety of Winterslow Road.

“It should be noted that there is no off-street car parking provision for the church, which can result in significant congestion on the Winterslow Road when events are taking place at the church and church

hall, such as weddings, Christenings and funerals,” it went on.

“This compromises the safety and efficiency of existing junctions.

“To address this, it is proposed to provide car parking for church use between the proposed access road and the burial ground.”

An area adjacent to the church wuld also be kept free of development, so the ‘green appaearance of the site will

remain largely unchanged’.

The public footpath elsewhere on the plot would be resurfaced, with public access remaining ‘as it is today’.

However, despite the stated intentions of the applicant, a number of residents have objected to the plans.

In response to the application, Gerald Cuthbert wrote: “My objection is that part of the proposed development - the area closest to the River Bourne and the Limes – is outside the designated plan policy.

“It is also one of the few areas in Porton where you can walk and enjoy the countryside and wildlife, which includes, at dusk, bats.”

Ian Green objected to the plans on a number of grounds, including the loss of ‘one of the last remaining wild spaces within the centre of the village’ and the potential loss of mature trees.

Andrew Minting also said the plan should be ‘refused’.

“Without firm details of the proposed dwellings and landscaping, we cannot properly assess the extent of all impacts and I can therefore only suggest the application should be refused,” he said.

“Even with the details, as in a full application, there are elements that would be of significant concern.”

For more details, and to comment on the plans, log on to www.wiltshire.gov.uk and search for application reference PL/2023/07027.

To view the progress of the planning application, visit: https://development.wiltshire. gov.uk/pr/s/planningapplication/

News Salisbury & Avon, September 11, 2023 8 salisburyandavon.co.uk
a0i3z00001BM1a0AAD/ pl202307027
Credit: Google Credit: Dorset Council Credit: Dorset Council Above: the site as seen from Winterslow Road Right and below right: plans for the site

Plans to turn Black Horse into a home

A LANDMARK village pub could be converted into a home if plans are approved. An application has been submitted to Dorset Council outlining a scheme that would see the Black Horse pub, in Winterbourne Earls, converted into a two-bedroom property.

A report alongside the plans details how the business, in Black Horse Lane, has been non-profit making for some years, with competition and a lack of local clientele making it unviable.

“Winterbourne Earls is a small isolated and dispersed village of around 300 persons within a very rural setting,” it said.

“It has no recognisable centre such as a grouping of shops or a market square. The access roads to the residential areas are all quite narrow and on the day of inspection were used primarily by farm traffic moving from field to field.

“The premises comprise a traditional public house directly fronting the highway. To one side is a tarmacked surfaced customer car parking area and to the rear are trade and private gardens.

Orginally, the building was divided into 17th Century cottages and the village forge. It said the pub would once have served local farm workers, but changes in the ‘rural economy and the much reduced rural population has meant the pub has had to rely on car borne custom or heavy use by the remaining residents’.

“Because of the decline in beer consumption and subsequent wastage the pub has ceased trading. There is a well documented list of previous managers and owners with extensive knowledge of the industry who have all failed to make this business work.

Protect Your Home From Care Costs & Inheritance Tax With A Living Trust.

A Living Trust, also known as a revocable trust or inter vivos trust, is a legal arrangement that allows you to protect your assets, including your home, from care costs and potential inheritance tax implications. Here are a few key points to consider:

1. Asset Protection: By transferring ownership of your home and other assets to a living trust, can help protect them from certain creditors and potential claims, including care costs.

2. Care Costs: Placing your main home into a living trust can ring fence the property from any potential future care costs. Thus, protecting your inheritance.

3. Inheritance Tax Planning: A living trust can be part of an estate planning strategy to minimize inheritance tax liability. By placing assets into a trust, they can be excluded from your taxable estate upon your passing, potentially reducing the amount of inheritance tax your beneficiaries would owe.

4. Revocable Nature: One of the advantages of a living trust is that it is revocable, meaning you can make changes to the trust or even revoke it entirely during your lifetime. This flexibility allows you to adapt to changing circumstances or wishes.

5. Trust Administration: When you establish a living trust, you typically designate yourself as the trustee, thus maintaining control over the assets and allowing you to continue using and managing them as you did before. You can also name successor trustees to take over the administration of the trust upon your incapacity or death.

The effectiveness of a living trust in achieving your specific goals will depend on your individual circumstances. Oakwood Wills offer a free consultation in the privacy of our own home.

Tel 07832 331594

email: info@oakwoodwills.co.uk

“The problem is the very nature of it being in a small village which has no heart and within easy reach of at least three other pubic houses, located in more compact, attractive villages.”

It continues to outline problems in making the business profitable, concluding how an exemption to planning rules designed to protect ‘community assets’, such as pubs, should be ‘seriously considered’.

“The best chance of preserving the building for generations to come is to allow a change of use to residential, giving a private homeowner reason to protect their personally held asset through maintenance and restoration which would in turn benefit the village,” the report added.

“My final conclusion is that this small public house in an isolated dispersed community is non-viable and that an exception to the council’s planning policy should be seriously considered in this case.”

For more information, and to comment on the plans, log on to wiltshire.gov.uk and search for application reference PL/2023/06931.

News Salisbury & Avon, September 11, 2023 9 salisburyandavon.co.uk
feature
Advertisement

Police hunt catapult car

POLICE are hunting people who have been driving around Verwood, firing a catapult at drivers and property.

A Dorset Police spokesperson said at around 3pm on Wednesday, August 30, occupants of a silver Suzuki Vitara were seen to fire catapults at a number of other motorists as it drove through the town, including in the areas of Home Farm Road and Station Road.

It was further reported that the window of a barbers shop in the Ringwood Road area was damaged around the same time, after apparently being shot by a catapult.

Anyone with information should contact Dorset Police via www.dorset.police.uk or by calling 101, quoting incident number 55230137364.

Dog

handler

hurt in crash

A POLICE officer was airlifted to hospital with head injuries after a crash during a pursuit.

The incident happened near Figheldean in the early hours of Sunday, September 3, Wiltshire Police said.

An 18-year-old man from the Marlborough area has been arrested on suspicion of a number of driving offences, including drink driving.

“A policewoman was airlifted to hospital to be treated for head injuries, thought to be non-life threatening or life changing,” a police spokesperson said. “A teenage passenger was also taken to hospital with injuries thought to be minor.

“The driver, an 18-year-old man was arrested on suspicion of drink driving, failing to stop and -dangerous driving. He remains in police custody for questioning.”

Police dogs in the vehicle at the time were not injured.

Drink driver disqualified from driving for 18 months after Winterslow crash

A 28-YEAR-OLD drink driver will be off the road for 18 months after a crash in Winterslow.

Lauren Leeson, of Jacob Way, appeared at Salisbury Magistrates Court on Friday, September 1, charged with drink driving.

She was arrested in the early hours of August 6 after her Nissan Qashqai crashed on the A30.

No other vehicles were involved.

Although Leeson did not sustain any injuries, there was significant damage to the vehicle.

She admitted drinking alcohol prior to driving and a roadside breath test was carried out. She was arrested and later charged with drink driving.

At court, she was disqualified from driving for 18 months, fined £128 and ordered to pay CPS costs of £85 and a £48 victim surcharge.

A/Insp Will Ayres, of the Roads Policing Unit, said: “This case just proves exactly why we have

been running a road safety campaign over the summer - we have spent the past few weeks trying to educate drivers on the importance of road safety and the fatal five offences which are the main contributing factors to serious or fatal collisions on our roads.

“Drink driving is one of the fatal five and it is extremely frustrating that people like Leeson get behind the wheel of the car when they are in no fit state to drive.

“It is fortunate that nobody was injured in this collision – Leeson’s actions were both selfish and reckless and put other road users at risk.

“I cannot stress enough the importance of planning your journey home if you are intending on drinking alcohol.

“We will continue to target drivers who commit driving offences of this nature in a bid to keep Wiltshire’s roads as safe as possible.”

Hope & Anchor applies for permission to

revamp exterior with new lights

A CITY centre pub in Salisbury is set for a makeover if a planning application is approved.

Plans have been submitted to Wiltshire Council to revamp the exterior of the Anchor & Hope pub, in Winchester Street – a listed building.

While the name will remain, paintwork colours will be changed, along with new signage and lighting.

“When selecting the signage for this listed building, consideration has been given to its historical nature in terms of

the sizing and design of the new signage,” the application said.

The changes would give the building a ‘cleaner finish’.

“The swan neck lights will be replaced with a new, neater looking trough light to illuminate the house name without projecting as far from the building, with the flood lights being replaced like for like,” it went on.

“The illumination will be warm white and the lights will be angled to light the signs only to avoid any kind of light pollution.”

For more information on the plans, and to comment, log on to www.wiltshire.gov.uk and search for application reference PL/2023/07234.

News Salisbury & Avon, September 11, 2023 10 salisburyandavon.co.uk

Lord Lieutenant remembers ‘wonderful’ Queen on the anniversary of her death

THE Lord Lieutenant of Wiltshire has paid tribute to the late Queen Elizabeth II, who passed away a year ago.

Sarah Troughton urged people to use the anniversary of her death to remember the ‘wonderful’ late Queen.

“A year ago our much loved and admired Monarch, Her Majesty The late Queen Elizabeth II died aged 96 years of age,” she said.

“This anniversary is an opportunity for us to remember with respect and affection a wonderful person, admired not only in Wiltshire and Swindon but the world over. It is my privilege as HM LordLieutenant of Wiltshire to invite you to pause and reflect for a moment on the memories of her long and unique reign.

“On your behalf I would also like to send our best wishes to HM King Charles III as

he completes the first year of his new reign. God Save the King.”

Thousands of local tributes were paid to HM The late Queen Elizabeth II following last year’s announcement, who at the time was the world’s longest reigning monarch. Her Majesty visited Wiltshire several

times, including attending Salisbury Cathedral during her Diamond Jubilee Celebrations in 2012 and most recently visiting Dstl Porton Down, in October 2020. She also regularly visited the county for military engagements, including meeting the Royal Welsh Regiment in Tidworth in 2017.

Imagine a little peace of mind...

...with the reassurance that your loved one is surrounded by caring people who value them for the unique person that they are. Where they’re supported to continue their comforting routines, enjoy their favourite food, and spend time doing the hobbies and interests that they love most.

You can expect all this and more for your loved one at Wilton Place Care Home.

News Salisbury & Avon, September 11, 2023 11 salisburyandavon.co.uk
Residential care • Dementia care • Respite breaks
Credit: Museum of New South Wales
Care as unique as you are
Buckeridge Road, Wilton, Salisbury, SP2 0FX barchester.com/Wilton1 Call 01722 622 982 to find out how we can help you.

Sarum Bridge Club open to new members as

season restarts

“WHAT could be better than playing competitive bridge on a Monday evening? Well, winning I guess might be!”says Nigel Lewis, chair of Sarum Bridge Club.

“On Monday, September 4, bridge playing restarts and the good news is that we will have room for you to join us. We invite all those of you who are interested in playing competitive bridge in a friendly local club to come along.

“Sarum Bridge club meets in the Cricket Club on the Wilton Road in Salisbury three times a week.

“We are affiliated to the EBU, and the Wiltshire Contract Bridge Association and our doors are always open to new members and visitors.

“Our premises are disabledfriendly (there is a lift to the first floor) and there is a bar where refreshments can be ordered. There is a large, free car park.

“Monday and Wednesday evenings are competitive evenings and play starts promptly at 7pm. Members are asked to be at the club by 6.45pm.

“On Thursday we hold a social session, starting at 2.45pm with members being asked to arrive by 2.30pm.”

Table fees are £3.00 for members and £4.00 for visitors. The annual membership fee is £10.00.

https://www.bridgewebs.com/ sarum/

Be a Chorister for a Day kicks off recruitment season

BE A Chorister For A Day, the music event that traditionally marks the start of the chorister recruitment season, returns to Salisbury Cathedral on Saturday, October 7, offering an afternoon of fun and singing for girls and boys (school years 2, 3 and 4) who are interested in joining the Cathedral Choir.

As well as meeting current choristers and taking part in lively and friendly Evensong rehearsals conducted by the cathedral’s director of music, David Halls, the children tour the cathedral and school and are given high tea in the atmospheric undercroft in the Bishop’s Palace.

There’s time for play on the school lawn too – a chance to let off steam before taking part in a special Evensong with the cathedral choristers.

David Halls, director of music said: “This is a great opportunity to learn about the cathedral and what being a chorister entails. We are very lucky here because we have a boys choir and a girls choir –

they share the singing duties –so there is plenty of scope for children who love to sing and want to join our ‘team’.

“In return, we offer an amazing musical education that is not just for now but for life.”

While the children play and sing, parents and guardians get the chance to look around and

learn what being a chorister parent entails – and, of course, there’s the opportunity to see their children sing during Evensong, part of a music tradition that goes back over 900 years.”

To book a place for your child and for further details, please email Catherine Mitchell at musicofficer@salcath.co.uk

Families enjoy a grand day out at the Amesbury Scarecrow Trail

Words and photos Steve Kemp

DOZENS of families participated in the Amesbury Scarecrow Trail on the afternoon of Sunday, September 2.

Thirty-three scarecrows were on display around the town, in shop windows and businesses.

Well-known characters, from nursery rhymes to cartoons, films to historical figures were waiting to be found and identified.

Organised by the Friends of Amesbury Parish church, prizes were given for the most correct answers, and all proceeds on the day went to the Abbey church of St Mary and St Mellor restoration fund.

After the event, teas and delicious cakes were enjoyed in the Wyndham Hall. A marvellous fun afternoon for old and young.

News Salisbury & Avon, September 11, 2023 12 salisburyandavon.co.uk
01963 400186 Advertise Get in touch with us
The day offers an afternoon of fun and singing for children interested in joining the choir
News Salisbury & Avon, September 11, 2023 13 salisburyandavon.co.uk New Blackmore Vale, June 23, 2023 3 News 29 hampshirechronicle.co.uk/news/romsey/ Friday, September 16, 2022 Romsey Adver tiser

Cathedral Close Preservation Society to hold its autumn lecture

THE SALISBURY Cathedral

Close Preservation Society is promoting its Autumn Lecture which will take place at the Guildhall on Wednesday, September 20, 2023 at 7pm.

The society is building a reputation for attracting some first-class speakers from across the country to tell compelling stories about the care and maintenance of heritage properties of all shapes and sizes.

The autumn lecture will be given by Alex McCallion, director of works and precinct at York Minster in what promises to be an inspiring and informative evening.

Nick Bacon, a society trustee, said: “Our historic buildings and landscapes are so rich and precious, but sadly years of economic hardship have placed massive pressure on maintenance budgets.

“All too often essential maintenance works have been thought to be unaffordable and work has been left undone.

“The Chapter of York is responsible for nearly seven hectares of York city centre and a collection of over 300,000 artefacts, but its estate is far from fit for purpose.

“In his lecture, Alex will

Bells ring out at Imber

EIGHTY years ago this year

150 people were obliged to evacuate their homes in Imber on Salisbury Plain.

A few times each year the public is allowed in to see what remains and to view displays in the church about the local environment and the history of the former settlement.

The church tower houses a light ring of six bells, the oldest having been cast in 1852. On

the afternoon of Sunday, August 27, a group of bellringers, mostly from the Salisbury area, gathered at St Giles church to attempt a Quarter Peal of Cambridge Minor.

That attempt was successful and the six ringers are pictured here celebrating their achievement with a mug of tea – having first inscribed the performance in the official record book.

share with us how a host of fresh ideas have enabled a strategic partnership with the City of York Council, Historic England and other stakeholders.

“Working together these partners have developed a masterplan which now forms part of the Development Plan for the City.

“This is the first time a

Neighbourhood Plan has been used to map the future care of a heritage estate.

“The Plan has allowed York Minster to drive forward some of the largest changes in the Precinct since 1855.

This includes a Centre of Excellence for Heritage Craft Skills & Estate Management, a new museum and learning centre, extensive public realm improvements, a new refectory, extensive solar and ground source technologies as well as delivering commercial opportunities to support the care of the Minster for years to come.”

Tickets for the talk are £20, (£15 for SCCPS members) and can be purchased from the Salisbury Cathedral Preservation Society website. www. salisburyclosepreservation.org

PCSO caught driving over the limit while on duty

A PCSO was caught drinkdriving in Salisbury – while on duty with Wiltshie Police.

Police Community Support Officer Neil Turnball, who resigned from his position earlier this month, was convicted of drink-driving on August 16.

The charge came after Turnball was identified as being drunk behind the wheel of a police car by colleagues on March 6.

He was immediately suspended from the force, Wiltshire Police said.

Now that the criminal proceedings have concluded, a police spokesperson confirmed a gross misconduct investigation

will resume into his actions.

Detective Inspector Adam Leakey said:

“Clearly, the actions of Mr Turnbull fly in the face of the standards the public rightly expect from us.

“As a direct result of his actions, he could have posed a significant risk to the public, his colleagues and himself.

“A gross misconduct investigation can now continue and we will keep the public updated as to how this develops.”

Turnball was disqualified from driving for a period of 12 months by magistrates, unless he completes a driving course, when this might be further reduced.

News Salisbury & Avon, September 11, 2023 14 salisburyandavon.co.uk
The Society will hear how the Chapter of York works with its strategic partners Pictured: Liz Thornton, Alan Frost, Chris Caryer, Martin Wilson, Jacqui Fletcher, Rhoda Wilson

Salisbury Slimmers Take Action For Autumn!

For many of us, becoming slimmer, fitter and healthier over the summer months were not at the top of our lists - what with holidays, days out, BBQ’s, and social events.

Indulgent food choices and disrupted routines with schools out for 6 weeks, have left us seeing healthy habits fall by the wayside.

Now with Summer nearly over, and Christmas approaching we may be fearing old patterns repeating themselves.

Members of Trudie Hardy’s Slimming World groups in Harnham, Laverstock and Downton have taken this year by storm with their weight losses and this has meant that they were able to do different activities that they may not have even attempted before due to their size.

With nearly 54 years experience of community support, Slimming World groups harness the power of Social Connection, with like minded members joining together with people who understand what it’s like to be overweight and who genuinely care about their success.

Group isn’t just a place to learn new healthy eating habits and behaviours. Emma Pearce, who attends Trudie’s Laverstock group says “I started on my weight loss journey because I just hated myself (couldn’t even look in a mirror anymore) I was so heavy I couldn’t even walk up the stairs without being in so much pain in my knees! It was hard, but I just had to change. Putting it bluntly it has been nothing short of life changing! Losing 5 stone has not only made me healthier and more active but also filled me with a sense of accomplishment and pride.Over the summer, I have been enjoying canoeing on the River Wye with my family, something I would not have been able to do, also fitting in a wetsuit and just buying normal clothes off the racks in a shop (which I’ve never been able to).

With the support of fellow members, I have also started running - now up to 5k without stopping! I’m so proud of myself. If my journey has inspired others along the way then it is all the more humbling. I still have quite a bit more to loose and with the help of all in group and of course Trudie, I’m excited to

keep pushing forward and continue inspiring those around me”.

Studies have shown that being part of an encouraging group can boost our chances of achieving our slimming goals. Being part of a community also taps into a deep, biological, human need – the need to connect, to work together, to support others and be supported. In our recent study, 98% of Slimming World members said receiving and giving support has been important to their weight loss success and 97% said feeling that being helped to succeed by their Slimming World group has been important to them successfully losing weight.

News Salisbury & Avon, September 11, 2023 15 salisburyandavon.co.uk
Advertisement Feature

Another milestone for Lover Repair Café as doll marks 5,000th restoration

A 68-YEAR-OLD doll called Mandy was recently introduced to the Lover Repair Café team by Sally, who asked the team to provide some TLC. Mandy was in a pretty sorry state: she’d lost her voice, neither her head nor legs were working, her eyelids were missing and she was naked.

The team was delighted to be able to return Mandy back to Sally, fully restored and dressed in a new tailor-made frock, as part of a celebration, as Mandy is also the café’s 5,000th repair since they opened in March 2019.

Lover Repair Café’s team of repairers take on the repair of all sorts of items including electrical items, small kitchen appliances, toys, furniture, tools, textiles, ceramics, clocks, watches and technical items (such as laptops and tablets).

Amazingly, the team has also raised over £28,000 for local charities, including Salisbury Hospital’s Stars Appeal, Wiltshire Air Ambulance, Salisbury Hospice,

Royal

Artillery

THE ROYAL Artillery Museum will be taking part in Heritage Open Days this year. From 14 to 17 September 2023, it will be opening its stores at Wood Road through a limited number of pre-booked tours as part of the England-wide event.

Visitors will be able to view some of the historic collection as well as find out about the unique history of the building that houses it.

Heritage Open Days is England’s largest grassroots heritage festival involving over 40,000 volunteers and 5,000 events. Each year, places across the country throw open their doors and give people the chance to see hidden places and try new experiences for free.

Visitors to the stores at Wood Road will have the opportunity to see some unique and fascinating

Home Start South Wiltshire and many more.

On average, Lover Repair Café’s volunteer team tackles around 90 items a month – and successfully repairs almost all of them. This means repaired items are being used for longer and don’t have to be thrown away.

By completing these 5,000 repairs the team have diverted an estimated 15 tonnes from landfill and saved over 160 tonnes of CO2 equivalent.

A Repair Café is a meeting place where visitors bring their broken items along for repair. Visitors are encouraged to stay with the repairer so that they learn how to undertake repairs themselves, or they can meet others and enjoy a cup of tea or coffee in a positive, friendly atmosphere while their repair is carried out.

Lover Repair Café are part of the Repair Café Foundation, a global movement of some 2,800 Repair Cafes across 30 countries with 42,000 volunteers and repairing over 50,000 items every month.

Museum to reveal historic collection

items from the historic collection, including artefacts from the small objects store, as well as 20 of the finest historic field guns in the country, dating from the seventeenth century to the start of the Second World War.

This part of the collection is currently housed in the oldest surviving aircraft hangars in Europe, giving those attending not only the opportunity to go behind the scenes to explore historic field guns but also to find out about the birthplace of British military aviation.

The Wood Road hangars are Listed Grade 2* and were built in 1910. That year, pilots flying from these sheds took part in a major military exercise that finally convinced the Army there might be a use for aircraft in war.

Larkhill became Britain’s first military airfield, but was only

operational until 1914, and the sheds are now almost all that remains of this key moment in aviation history.

Until last year, the sheds stored surplus furniture for the nearby Army camp but they have now been made available for use by the Royal Artillery Museum, providing office, workshop and storage space.

The Royal Artillery Museum’s collection was established in

1778 for training purposes and is one of the oldest and most significant of all military collections.

It opened to the public in 1820 at the Rotunda on Woolwich Common, moving to the nearby Firepower museum in 2001. This closed in 2016, pending the creation of a new museum near Larkhill, the modern home of the Royal Artillery. That project is ongoing – for the time being most of the collection remains in various storage locations and is not generally accessible to the public.

Limited places are available on Thursday 14, Friday 15, Saturday 16 and Sunday 17 September and booking is essential.

You can book your place using the following link: https://bit.ly/ RAMopendays

News Salisbury & Avon, September 11, 2023 16 salisburyandavon.co.uk
Mandy was returned her owner Sally after becoming the 5,000th repair undertaken by the team

Visitors welcome as Sarum u3a hears all about the honey bee

ON WEDNESDAY, September

20, Richard Rickitt will be giving a talk to Sarum u3a titled, “Introducing the Amazing Honey-Bee”.

Do you know how many eyes a bee has (it’s not two), or which part of its body it uses to taste with (not its tongue)? Or how many hundreds of miles flying it takes to make one teaspoon of honey for your toast?

If the answer is no, then Richard Rickitt’s talk to Sarum u3a on Wednesday, September 20 will inform, amaze and entertain you.

You will find out about the extraordinary life cycle of honeybees, how they live, breed, communicate, and, perhaps most importantly, make honey.

This highly-recommended illustrated talk takes a peek inside a beehive, explaining the

complex, finely-tuned relationship of its tens-ofthousands of inhabitants.

The talk will be of interest to anyone who gardens, would like to know more about bees and beekeeping, or who just enjoys a bit of honey on their porridge.

Members and guests are welcome to attend the meeting which will start at 10am with coffee, with the talk due to begin at 10.30am.

Guests are invited to join Sarum u3a after two visits.

The talk will take place at St Francis Church, Beatrice Road Salisbury SP1 3PN.

Parking is available at the rear of the church or in a car park on the opposite side of the main road from the church. Sarumu3a.org.uk

This highly-recommended illustrated talk takes a peek inside a beehive and reveal the hidden world the lives of honey bees

News Salisbury & Avon, September 11, 2023 17 salisburyandavon.co.uk 30 High Street, Shaftesbury, SP7 8JG Tel:01747 852444 Visit our website www.shirleyallum.co.uk SALE FINAL REDUCTIONS TROUSERS JEANS CROPS SALE SALE SALE SALE SALE DRESSES BUY 3 SALE ITEMS GET CHEAPEST FREE (Selected lines) GENUINE REDUCTIONS (Selected lines) (Selected lines) £20 FASHION RAIL (Selected lines) MEY (Selected lines) (Selected lines) 70% OFF NIGHTWEAR HALF PRICE HALF PRICE BRAS 70% OFF SHOES £20 RAIL Ends Sat 16th September

A ‘tidal wave of harm’ has hit the NHS

IT IS always worth reading a range of national newspapers to acquire a balanced view of the world, so this week I was particularly pleased to see, Kate Pickles, health editor of the Daily Mail (28.08.23), along with The Guardian (03.09.23.), publish a clear health warning to the nation.

The Mail headline was provided by former government food adviser Henry Dumbleby. “Britain is particularly bad for ultra-processed food (UPF). It is storing up problems for the future. If we do nothing, ‘a tidal wave of harm’ will hit the NHS...”

This warning is welcome and pertinent, but also too late. The ‘tidal wave of harm’ has been battering our underfunded and overwhelmed NHS for several years. Tackling obesity currently costs the NHS £6.5bn a year and is the second biggest cause of cancer.

According to the Mail, UPF, including sliced bread, cereal and ready meals, constitutes 57% of our diet putting millions at risk of heart attacks and strokes. Studies have already linked eating high levels of UPF with a range of health issues including obesity, type 2 diabetes and cancer.

Kate’s article concludes with a statement from a department of Health and Social Care spokesperson: “We have introduced legislation to restrict the placement and promotion of certain products in supermarkets

City Council)

to discourage unhealthy food choices.”

The article did not specify the legislation or when it was introduced, or even the identity of the spokesperson.

However, we do have recent contradictory, clear, and specific statements from our Prime Minister about legislation to address the ‘tidal wave of harm’ which is currently evident and certain to gain momentum.

Rishi Sunak announced legislation, due to be introduced in October 2023 and targeting multi-buy promotions on products high in fat, sugar and salt (HFSS) by enforcing a government ban on ‘two-for-one’ junk food deals, was to be deferred until October 2025.

The PM justified his decision in the name of protecting “people’s rights to choose” claiming “it is not fair for government to restrict the options available to consumers.”

The PM assured us this move was due to the current cost of living crisis but, if as the PM claims, the legislation will come into effect in October 2025 he is also only deferring the decision to restrict ‘people’s rights to choose’ and their ‘available options’.

Perhaps the lead up to a general election is not an ideal time to deal with a widespread public health issue and a ‘tidal wave of harm’ hitting the NHS.

In his book, Ultra-Processed People, serialised in the Daily Mail, Dr Chris van Tulleken claimed food manufacturers should be viewed in the same light as tobacco companies. “Just like tobacco, we need to see ultra-processed food company money as dirty.”

The Guardian also published the sentence preceding that statement: “We need to remove the influence of the industry. Until the major charities that inform policy, the research groups doing dietary health research, and the doctors and scientists that write in the media stop taking money from the food industry, very little will change.”

Unfortunately, there is a conflict of interest between healthy eating and profits. A diet of food, including high levels of sugar and salt, produces ‘cravings’ tempting consumers to continue to include them in their diet.

RAAC has been known about since 1994

AT the time of writing, many families will be gathering together the last few bits for the new school term, worrying about shoe sizes and if they have enough shirts. It’s a stressful time.

There is an extra stress this year with the serious concerns about school building collapse. At the time of writing, 156 schools across the country have been identified as being affected by Reinforced autoclaved aerated concrete (RAAC).

Despite the Department of Education knowing about concerns with this building material since the spring, schools have been informed that they must close buildings just days before the start of the new school year leaving families scrambling around for childcare - as well as the last minute labelling of school uniforms.

While I absolutely agree that child safety is of paramount importance, I was truly baffled to hear that the Local Government Association said it had been warning about the risk of RAAC since 2018 and that the government says it has been aware of RAAC in public sector buildings, including schools,

since 1994.

Furthermore, Government funding to fix crumbling school buildings was cut by £900 million for 2024-25 despite these concerns.

Hearing this reminded me of another building which we are told is at imminent risk of collapse: our beloved City Hall, a building that until recently was used by the NHS as a covid vaccination centre, we are told is not safe to use due to the risk of the ceiling collapsing from noise stress.

Again, my understanding is that the ceiling was surveyed in 2018 and yet it was not until

June of this year that “significant risk and liability” to Wiltshire Council was identified which now prevents the building from reopening.

This building, we are told, requires at least £2m to open and yet, despite knowing this issue since 2018, no plan to reopen has been formed in the preceding five years.

Finally, I am reminded of Salisbury’s Guildhall roof, the repair of which the current Lib Dem/Labour/Independent administration has committed to after years of Conservative administration kicking into the long grass.

Repeatedly, at all levels of government, is the Conservative disregard for necessary maintenance of our public buildings, buildings needed for families and communities to go about their daily lives.

It is another appalling example of the chaos of this Conservative Party.

City Hall has housed the Beatles, the Rolling Stones, David Bowie and so many more – to keep it closed is horrendous.

To send children back to online learning, days before the new school term, is obscene.

Salisbury & Avon, September 11, 2023 18 salisburyandavon.co.uk
Politics
Victoria Charleston Lib Dems Parliamentary spokesperson for Salisbury constituency

Climate change, a view from the other side

MUCH was made last in the last edition about Conservatives coming to their senses around windfall taxes on energy companies profits, the impact of energy costs on the general public and climate change activists ‘caring about the long term future of the planet’.

Basic corporation tax in the UK is 25% for business generally, far too high in my opinion by the way. Oil and gas companies are taxed at 30% of their UK business profits with a supplementary 10% on top, increased by another 35% in January 2023 through the Energy Profits Levy making a total tax rate of 75%.

Keep that rate for long and the desire to invest in UK oil and gas will rapidly disappear and despite the recent announcement of 100 drilling licences it remains to be seen whether big oil and gas will decide that it’s worth taking them up.

Who of us entrepreneurial types out there would start a business knowing that for all your efforts, three quarters of your profits (at the moment) will be confiscated by

whatever government of the day?

In the private sector world where I have spent my entire working life, reduced supply and/or high demand equates to higher prices. Post Covid restrictions plus the Ukraine situation were a double whammy, and energy prices are reflective.

In light of those two events, the Conservative government has spent billions on support for householders. What it hasn’t done, under the guise of climate change, is introduce a massive ULEZ zone and unleash the cost on those on the lowest

incomes who are least able to pay.

Funnily, the Labour Party opposition in Westminster, who are the first to bleat about anything that impacts the lower income scale, are completely missing in action. Furthermore, we have seen that trend at local level where a cost of living crisis didn’t stop the Lib/Lab/Indy coalition raising our Salisbury City Council precept by 12% in their first year, 44% in their second with yet more to come according to their budget forecasts.

I completely agree that we should use our resources responsibly and moving forward on decarbonisation to a certain level will require consensus, but consensus cuts both ways.

The capacity is simply not currently available, nor will it be for decades yet, to “Just Stop Oil”. Restricting energy supplies through not using fossil fuels will push prices higher and keep us dependent on third party suppliers, for whom the UK may not be a priority when the chips are down. Sound familiar?

Ask the Leader event to visit Alderbury, lcoal elections to fill council vacancies

WILTSHIRE Council’s next ‘Ask the leader of the council’ event will be held at Alderbury Village Hall on the evening of September 26, from 6-7.30pm.

It is the latest in a series of community events being held by Wiltshire Council across the county where people can ask questions and find out more about the work of the council.

People are encouraged to ask any questions about the council, its objectives and priorities, and the challenges ahead. The events are an opportunity to put questions directly to the leader of the council, Cllr Richard Clewer, and to hear his thoughts and plans for the future.

Previous events have taken place in Chippenham, Devizes, Westbury and Trowbridge.

Cllr Richard Clewer, said: “Thank you to everyone who has come along to an ‘Ask the Leader’ event so far this year. It’s been really valuable to hear

more about key local issues and discuss possible solutions.

“The next event takes place in southern Wiltshire on September 26 and I would encourage residents to come along and ask me any questions and find out more about the work we are doing.

“These events are a great way to ensure our priorities

reflect those of local communities. If you can’t make the event but would still like to ask a question, you can submit it in advance to communications@wiltshire.gov.

Wilton Town Council byelection results

An election was at the end of August for a new town

councillor in Wilton. Michael Whillock (Independent) was elected after receiving 489 votes, beating Peter Edge (Lib Dems), who received 339 votes. Turnout as 25.5%.

Vacancy on Salisbury City Council

Following the resignation of Eleanor Wills, a vacancy has arisen in the Office of Councillor for the Salisbury (Salisbury Harnham West Ward) of the City Council. An election to fill the vacancy will be held if 10 electors from the Parish of Salisbury (Salisbury Harnham West Ward) electoral area write to the Returning Officer at Wiltshire Council by September 15, 2023 asking for an election to be held. Otherwise, the vacancy will be filled by co-option. If an election is called, it will take place no later than November 17, 2023.

Salisbury & Avon, September 11, 2023 19 salisburyandavon.co.uk
Politics
uk
The southern Wiltshire, ‘Ask the Leader’ event with council leader Richard Clewer (inset), will take place at Alderbury Village Hall on September 26 Alderbury credit: Google

On The Move: Latest English Housing Survey Results

ACCORDING to figures from the recently released 2021-22 English Housing Survey, average deposits for first time buyers was an eye-watering £43,693.

Armishaws Removals & Storage give a rundown of the key figures from the Office of National Statistics latest annual report.

● The average age of first-time buyer was 34.

● The average first-time buyer deposit was a hefty £43,693.

● On average homeowners spent 22% of total household income on mortgage payments, up from 18% in 2011-12.

● Private renters (not including social housing) forked out a massive 33% of their income on rent payments.

● Just 7% of English households didn’t have internet access.

● The largest group of owner ‘types’ in England were couples with no dependent children 41%, 24% of owners were lone female households, while lone males accounted for 15%.

● Only 62% of private renters (2.8 million households) and 27% of social renters (1.1 million households) said they expect to be able to buy their own property in the future.

● Average household sizes rose from 2.2 persons to 2.3. This was a decrease from 2.4 in 2019-20.

● There were more first-time buyers during the 2020 lockdown than in 2021. While there were 852,000 during the first year of the pandemic, the number dropped by 100,000 the following year.

● Households with savings decreased from 68% to 64%.

● 9.3 million households were considered by the government to be ‘underoccupied’, having two or more empty spare bedrooms.

● 81% of homes had a garden or private outside space, while 13% had a shared plot.

● 99% of houses and bungalows had outside areas, compared to just 57% of flats.

● Approximately 1.8 million households had moved home in the previous 12 months. 620,000 were moving in or out of privately rented accommodation, 363,000 were new households and 361,000 were owner occupiers.

● However, general ‘happiness’ was on the up. The average life satisfaction score in English homes increased from 7.3 to 7.5. The score of those thinking ‘life is worthwhile’ rose from 7.6 to 7.8 and happiness danced up from 7.2 to 7.5.

So it’s not all bad.

01963 400186

WANTED - Dave buys all types of tools. Call 01935 428975 Salisbury & Avon, September 11, 2023 20 salisburyandavon.co.uk Home & Garden/Gardening Suppliers of quality Compost and Topsoil 01725 518673 GARDEN & LANDSCAPING SERVICES Ask for a free quote 07379 895851 AFFORDABLETREE Fully Insured TREE SURGERY HEDGE TRIMMING DRIVEWAYS GRASS CUTTING SERVICE GRAVELLING PATHS PATIOS RAISED BEDS POWER WASHING RE-SEALING GENERAL GARDEN TIDYUPS ALL SITES LEFT TIDY TURFING ALL TYPES OF FENCING & REPAIRS MANY YEARS EXPERIENCE FAMILY RUN BUSINESS Call John for a free estimate 07379 895851 Email affordablegardenservices73@outlook.com TREE CONTROL Tree & Garden Services I offer the following services for t shrubs & hedges • Pollarding • Felling • Topping • Pruning Free estimates and advice All work guaranteed and fully insured

Verve Festival returns to celebrate health, wellness and nature

Words by Katrina ffiske VERVE Festival is back for another year and will be held in the grounds of the beautiful Hatch House near Tisbury on the 16 and 17 September. This festival is a ‘celebration of health, wellness and nature, the ultimate reset deep in the Wiltshire Countryside’.

During the two days there are many things to choose from including: yoga, meditation, sound bathing, breathwork, wood-fired saunas and cold water therapy. You could try a meditation in the ancient woodland, listen to inspiring speakers, book a spa treatment, browse our garden market and finally enjoy an evening of music and delicious food and drink.

Charlotte Cummings and Anna Hayward are co-founders of this inspiring festival which has been tipped as the ‘Woodstock of Wellness, where the tribes are gathering in 2023’ by Conde Nast Traveller.

I met up with Charlotte who encourages us all to go and have two days out from our day-to-day lives.

“Verve is an opportunity to get away from everything,” Charlotte said. “You can come

and experience classes, talks and workshops by our talented and inspiring guest speakers and instructors.

“We encourage everyone coming to create their perfect two-day escape, perhaps trying an activity or class that’s different from anything you have tried before, enjoy a spa treatment then share fantastic local food and finally dance the night away under the Wiltshire skies, with a cocktail in hand.

“There is also camping and glamping available so people can truly become immersed in

the two-day event.”

It all began with Charlotte and Anna dreaming up the idea when walking to their local yoga class together. “We’re neighbours as well as good friends,” Charlotte said. “It didn’t take us long to realise we shared a passion for leading a healthy and balanced life.

“We were very keen to start a project that could be a creative outlet for everything we believed in. We sat down with our empty notebooks and Verve was born. Megan Romilly, our inspirational yoga teacher became the festival yoga director and we’re incredibly proud of what we have created together.”

The first festival was held in 2019, and has grown and evolved over the years.

“Last year it was a one-day event,” said Charlotte.

“Everyone asked if it could be longer, some people travel from far away so were keen to stay and relax into a weekend of events.

“The weekend of the festival is always a magical experience. To be surrounded by the talented people who support the festival, from instructors, suppliers and sponsors, to our brilliant volunteers is such a privilege and to see people

enjoy the festival and come back year on year really does feel like a dream come true.”

The festival is very much about looking after yourself, and Charlotte ensures that she takes time out from her busy life to keep fit and healthy.

“I’m a busy, working mum and frequently travel for work so I find exercise a really good way to find some time for myself. I particularly like a challenge and feel inspired when I have a goal to work towards so have enjoyed rock climbing, triathlon and running in the past. I am currently training for the Bath Half Marathon in October.

“It’s a challenge to fit in time to go to regular classes so I train once a week with Joanna Gulliver, a brilliant personal trainer based in Fordingbridge. Jo has introduced me to Boxercise and it is the perfect blend of exercise and mindfulness for me, you have to pay attention.”

The 2023 Verve programme is packed with so many events, it is well worth studying it in advance and planning ahead. You may want to try the face yoga or the disco flow yoga, or perhaps learn about the revolution of kindness, or you may simply want to enjoy the wonderful setting and relaxed convivial atmosphere.

Feeltheverve.com

Salisbury & Avon, September 11, 2023 21 salisburyandavon.co.uk
Health & Wellbeing salisburyandavon.co.uk
Above: Charlotte Cummings, co-founder of Verve Festival Left and bottom left: Meditation and yoga are just two things to try at the festival

Wildlife Trust responds to government scrapping pollution legislation

THE GOVERNMENT has announced that it will be scrapping the Nutrient Neutrality scheme, which ensures that suitable measures are put in place by developers to counteract an increase in pollution of our rivers as a result of new housing development, including in protected areas of Wiltshire.

This, according to the Wiltshire Wildlife Trust will place ‘further pressures on our already severely damaged rivers and globally rare Wiltshire chalk streams’.

Every new house built results in more sewage being produced, while sewage works are already failing, with repeated discharges of raw sewage.

Even when treated, the effluent from sewage works is adding harmful nutrients, which causes an increased growth of algae. This results in decreased levels of dissolved oxygen, which can choke our rivers, killing fish and other aquatic life.

Chalk streams, with their diverse ecosystems, are particularly vulnerable to nutrient pollution.

The government announcement follows

complaints from housebuilders that pollution-limiting requirements were ‘costly and time-consuming’, despite the success of schemes which saw farm pollution reduced, or wetlands created to buffer and filter pollution to offset that from new development.

The Wildlife Trusts have

already demonstrated a range of nature-based solutions that can take the nutrients out of the system.

Landholders and environmental organisations such as Wiltshire Wildlife Trust are in a position to rapidly invest in large, landscape-scale nature recovery schemes with

funding from developers to protect and improve water quality.

Under these proposed changes to the Levelling-up and Regeneration Bill, instead of making developers pay to offset their pollution, the government will increase funding to the nutrient mitigation scheme run by Natural England – meaning that taxpayers rather than builders will pay to prevent pollution.

Jo Lewis, CEO of Wiltshire Wildlife Trust, says: “In exempting housebuilders from playing their part in preventing more nutrients polluting our precious rivers, the government is simply transferring more of the burden to farmers and to the public via higher taxes and water bills.

“The public has made clear their outrage about the state of our rivers, and now they hear they are to pick up the bill for simply stopping housebuilders from making the situation worse. This is one more broken Government promise on the environment, and short-sighted in the extreme. A one-off injection of funds to compensate will not rescue our rivers.”

Protecting hedgerows: consultation set to close soon

IN JUNE, Defra launched a consultation on hedgerow protections in England.

Hedgerows are a vital feature of the English countryside. Among their many benefits, they create habitats, support crop pollinators and store carbon.

The government has pledged to preserve the hedges we have, invest in their maintenance and support further planting.

Since the consultation opened, around 2,000 people have shared their views.

Defra’s Leanne Joyce, posting on the department’s website, said: “With only a

couple of weeks to go before the consultation closes on September 20, there is still time to help shape future regulations so that they work for wildlife, the environment and farmers.”

The consultation

She continued: “Defra wants your views on maintaining and improving current hedgerow management rules, our approach to enforcing these, and what future hedgerow policy could look like.

“Currently, farmers must not remove important hedgerows, must not cut or trim hedgerows during bird nesting and rearing

season, and must maintain a buffer strip along their hedgerows. We’re seeking feedback on our proposal to replicate the following measures in domestic law:

● To have a ‘buffer strip’ two

metres from the centre of a hedgerow to protect its structure

● To not cut hedgerows during bird nesting season to protect important bird species

● We’d also like your opinion on a proposal to introduce civil sanctions (non-criminal penalties and notices) for enforcing these measures.

“We want everyone who cares about hedgerows to respond: from farmers and stakeholder organisations, to members of the public.

https://consult.defra.gov.uk/ legal-standards/consultationon-protecting-hedgerows/

Field & Stream Salisbury & Avon, September 11, 2023 22 salisburyandavon.co.uk
Credit: Annie Spratt/Unsplash

GB Potatoes & CUPGRA working to fight biggest threat to the industry

POTATO Cyst Nematode (PCN) is one of the biggest threats facing the British potato industry with the potential to seriously reduce the future productive capacity of the entire UK potato sector.

Historically, work has been carried out by different organisations to try and combat the threat, however, until now there has never been a joined-up industry approach.

GB Potatoes and CUPGRA announced earlier in the year that together they were establishing the GB PCN forum, to produce a comprehensive strategy for the future management of PCN.

The Forum will focus on bringing together all those from across the industry who have an interest in, or knowledge of PCN and coordinate an approach that turns that information into a practical industry plan.

The Forum’s interest will include research past and present, future threats to chemical control, breeding of resistant/tolerant varieties and information on trap cropping and bio fumigation, among other areas, to provide the industry with a strategy for tackling the PCN issue in an integrated way.

An initial workshop was held on 21st March 2023 at CUPGRA, attended by representatives from all sectors of the industry where the need for such a forum was agreed.

The first meeting of the PCN Forum took place last month.

Mark Taylor, chair of GB Potatoes said: “PCN is one of the major issues facing the

Association says there is no room for further Incentive scheme delays

FOLLOWING the government’s announcement that the Sustainable Farming Incentive (SFI) scheme will not open until September 18, Country Land and Business Association president Mark Tufnell said: “I firmly believe that the ‘public money for public goods’ model is the right one – for farmers, for the public and for the environment.

“The Environmental Land Management Schemes will work, but it is impossible to ignore the impact that continued delays are having on the confidence of land managers to engage with them.

“As a first step to re-establishing that confidence, DEFRA Ministers must recognise the immediate cash flow problems many farmers across England will be having, as BPS cuts bite.

“There is no room left for further delays, and Ministers must redouble their efforts to ensure applications are processed and payments are made as soon as possible.”

potato sector and without a coordinated approach to the pest the industry is under a grave threat of walking into a situation from which it will be difficult to reverse.

“This is why it is so important that the industry comes together to tackle the problem in a joined up and focused way. As the voice of the

GB potato industry, GB Potatoes is ideally placed to facilitate this forum in partnership with CUPGRA.

“It is vitally important that we produce defined goals, realistic timelines and create practical solutions that support the industry. It is not a talking shop, and we will expect to be measured on our outputs.”

David Almond, deputy chair of CUPGRA said: “CUPGRA is delighted to be working with GB Potatoes to create this forum and ensure that the industry takes a major step forward in developing a plan for tackling this costly and devastating pest.”

The GB PCN forum has been set up to be an open and inclusive group that pulls on technical expertise from wherever it is available, as well as utilising the practical skills of growers to produce a strategy that is workable in the field.

The steering group will be the ‘initiator’ to get the forum underway. Beyond that, all interested parties will be encouraged to contribute.

The forum wants buy-in from the wider industry, including land agents, landowners, consultants, retailers, and the supply chain.

Salisbury & Avon, September 11, 2023 23 Farming salisburyandavon.co.uk
Salisbury & Avon Gazette
Over 20,000 people see our posts on Facebook each month

Students praised for GCSE results

STUDENTS were praised at the end of August as they collect their GCSE results.

Wiltshire Council and Salisbury MP John Glen were among those to offer congratulations.

Here, we’ve collated the reacion from a small selection of schools in and around Salisbury, please see the Gazette website to see more reaction and photos.

South Wilts Grammar School

Michele Chilcott, headteacher, said: “We are delighted to celebrate the superb achievements of our wonderful Year 11 students.

“A total of 157 students took their examinations this year. The number of students achieving the very highest grades is again outstanding. Almost 70% of all the examinations taken were awarded 7-9 grades, with 46% of those grades awarded at 8-9. 42 students achieved eight or more 8-9 grades, with four students achieving at least 10 grade 9s.

“It is easy to forget that a significant proportion of Year 11’s school experience was impacted by the Covid-19 pandemic. Their excellent results are a real credit to them and are borne of hard work, perseverance and commitment over their school career.

“They are a fantastic year group with very bright prospects ahead of them. We look forward to seeing the vast majority of them in Year 12 in September and wish all of them the best for the future.”

Bishop Wordsworth’s School

Headteacher, Dr Stuart Smallwood, said: “In the run up to this set of Key Stage 4 results the message from the exam boards was clear – school should expect a reduction from the previous high levels towards the outcomes in summer 2019.

“That is what has happened this year and, while the reduction from 2022 is fairly stark the outcomes are still very

good for this set of students.

“The 155 boys in Bishop’s Year 11 gained nearly 64% of all of their papers at Grades 7-9, with 33 of the year group passing all of their papers at one of the top three grades.

“This set of results comes at

the end of several years’ determined effort for boys who had experienced education that was punctuated by the pandemic of course.

“They have been helped through those difficult times by the determination and creativity of their teachers, and the unwavering support of parents.

“They’ve done well, and, most importantly, will have gained the qualifications that they need for the next stage. For most that will mean A levels with us, but I wish all of our Year 11 good fortune wherever their next steps may lead.”

Leehurst Swan School

A spokesperson from the school said: “Leehurst Swan students gathered today to collect their GCSE results. The results they

gained reflected the hard work and dedication they showed to their studies and it is a clear demonstration of their commitment to their education.

“We know their time at Leehurst Swan will have set a strong foundation for their post 16 studies and beyond.

“These achievements will pave the way for exciting future opportunities and we wish our class of 2023 the best of luck.”

Wyvern St Edmund’s Academy

Headteacher, Louise Henderson, said: “Wyvern St Edmund’s Academy is so proud of our students from the class of 2023. Both boys and girls have achieved high grades in equal measure across our curriculum areas of Sciences, Languages, Maths, creative subjects, the humanities and English.

“Our students returning from lockdown in Year 9 have worked hard to close the gaps of lost learning. Our staff have shown love and dedication in supporting our students to believe that they can achieve more.

“As a result there are a large number of students who have achieved or exceeded the target grades they were aiming for. I’m delighted that students have been rewarded for all their hard work and efforts.

“I would like to personally thank all the staff at WSE for the continued guidance and support that is given.

“While we are proud of the achievements of each and every one of our students, there are some successes which we’d like to single out.”

Among the top performers were: Eloise Fellows achieved 4 grade 9’s and two grade 8’s, 2 grade 7s, 1 grade 6 and 1 grade 5; Catherine Hinder who achieved Two 9s, Three 8S, Four 7s and 1 Distinction; Thomas Mills who achieved 5 grade 8s, 4 grade 7s and 1 grade 6; Noor Ullah who achieved 6 grade 8s, 2 grade

1 grade 6 and 1 Distinction*

Salisbury & Avon, September 11, 2023 24 Education salisburyandavon.co.uk
7s, Clockwise from top: Darcy, Emma, Lucy, Yashvi and Nina, South Wilts Grammar School; students from Leehurst Swan; Wyvern St Edmund’s featuring Noor, Eloise and Catherine, Thomas Mills

Volunteering is not just good for you it also benefits the whole community

Wessex Community Action is the council for voluntary services in Wiltshire and provides practical support for community organisations on funding, governance, planning, policy development, recruiting and leadership.

This monthly volunteering column looks at all aspects of volunteering and how people can give up their time for the benefit of their communities.

GIVING up time as a volunteer can make a huge difference to the organisation you volunteer for, not to mention the people it helps, but it’s also hugely beneficial to you too.

Volunteering can reduce stress, combat depression, keep you mentally stimulated, and provide a sense of purpose. It’s also a great way to meet new people, especially if you are new to an area. It strengthens your ties to the community and broadens your support network, exposing you to people with common interests, neighbourhood resources, and fun and fulfilling activities.

People build closer relationships, better connections and more powerful attachments to those they work together with. You have shared experiences, things to smile about and the satisfaction of working together to accomplish something.

Harry Theobold has been volunteering ever since he moved to Wiltshire in the 1980s. He moved from Warminster to Salisbury 18 years ago and has been volunteering and fundraising for Alzheimer’s Support, the Allotment Association, and the Cats Protection League.

He and his wife Ali have raised more than £15,000 for charities by selling homemade jam from stalls at events and from outside their home in Ramparts Road.

The retired Financial Times archivist says volunteering is good for their wellbeing. “I get a sense of helping people and the community. I love meeting people like when we do stalls down in the market square, it’s great,” he says.

“My view of the world is that you only get back what you put in and I’ve met so many lovely people. Ali and I are of the same personality and we really enjoy helping

support people and the well-being we get from that. We like lots of banter, having a good laugh and supporting people.”

If you are interested in trying volunteering, speak to Wessex Community Action. It can help assess your volunteering areas of interest, your requirements and help find a suitable match to an opportunity. It also offers training and support around what to expect from volunteering.

Volunteer and Community Development Worker Sarah Pickering says: “Volunteering can have such an incredible impact on peoples’ lives. The enriching experience can help them feel connected and fulfilled. It creates a sense of participation and pride that is helping to support good causes in the Wiltshire community.”

An ideal place to look for volunteering opportunities is Wiltshire Together, a digital community hosted by Wessex Community Action but where community organisations and charities manage all their own content and activities so it’s always up to date, and

you are connected straight back to that organisation.

It’s free to use and allows you to browse and pledge interest for the wide range of fantastic volunteer opportunities available on the site.

You can also set up a member profile that allows you to log your volunteer hours, which can help with your CV and employability prospects.

To find out more and to register interest in volunteering, contact Sarah at volunteerdev@wessexcommunityaction. org.uk.

The site now has a new Volunteering in Wiltshire page and can be found at wiltshiretogether.org.uk

Over 20,000 people see our posts on Facebook each month

Salisbury & Avon, September 11, 2023 25
Volunteering salisburyandavon.co.uk
Salisbury & Avon Gazette Gazette August 14, 2023 VIKINGS WELCOME! WI helps Page FLATSscheme for landmark building16 Tel: 01980 626260 / 626126 26 High Street, Amesbury, Wiltshire 7DL Salisbury swimmer heading for France Page
Harry and Ali Theobold enjoying running their fundraising homemade jam stall

Probus Club of Sarum hear strategic overview of The Falklands War

AT A recent meeting of the Probus Club of Sarum, Col James Porter gave members a well-illustrated overview of the Falklands War, including some fascinating details.

The Colonel was stationed at Port Stanley one year after the conflict and was thus able to combine a strategic overview of the campaign with local detail.

The 10-week conflict between Argentina and the United Kingdom over the two British dependent territories in the South Atlantic: the Falkland Islands, and South Georgia and the South Sandwich Islands began on April 2, 1982.

Argentine forces, eventually 12,000 strong, invaded and occupied the Falkland Islands, followed by the invasion of South

Georgia the next day.

The British government responded by dispatching a naval task force to engage the Argentine Navy and Air Force before making an amphibious assault on the islands.

In support, eventually 52 merchant navy ships were requisitioned and speedily modified.

On April 12, 1982 the UK declared an exclusion zone around the Falklands. On May 2, the task force deployed. It included five nuclear submarines and the two aircraft carriers HMS Hermes and HMS Invincible.

The Argentine cruiser General Belgrano was sunk by the submarine HMS Conqueror on May 2, 1982, with the loss of 323 Argentine lives. This ended the threat posed by the Argentine surface fleet. However, enemy aircraft and especially Exocet missiles continued to be a lethal threat.

The loss of HMS Sheffield pointed to errors and highlighted the dangerous lack of point-topoint air defence. Also, multiple targets confused the missile systems and made them ineffective.

On May 18, the amphibious force assembled and an SAS commando landed and destroyed 12 Bukhara aircraft.

This was followed by the main amphibious landings on May 21, 1982 at San Carlos Water on East Falkland in ‘Operation Sutton’. The landing comprised Army, Royal Marines, and Parachute units with support from the Royal Navy and Royal Air Force.

Col Porter

emphasised what a feat it was. The troops had to march with all their heavy supplies 25 miles over rough terrain; practically all their helicopters had been lost during a major accident on Ascension Islands.

One of the decisive battles was fought by the 2 Bn Paras, led by Col. H. Jones, at Goose Green, despite being heavily outnumbered by 1,000 dug-in Argentines.

Eventually, the surrender was signed on June 14, 9.30 pm.

During the ensuing discussion Col Porter pointed out that, surprisingly, the overwhelming proportion of Argentine troops were poorly trained and unmotivated conscripts. This led to the question whether the Argentine military Junta was feeling fairly sure that there would not be a decisive response from Britain.

Probus Club of Sarum meets every second and fourth Friday of the month at the White Hart Hotel. Its members are retirees who value intellectual stimulation as well as a sociable atmosphere.

Guests and new members are always welcome. T: 01722 392 043

History salisburyandavon.co.uk Salisbury & Avon, September 11, 2023 26
HMS Cardiff anchored outside Port Stanley at the end of hostilities (not part of the presentation) Credit: Liam Quinn from Canada, CC BY-SA 2.0 via Wikimedia Commons Liberation memorial (not part of presentation) Credit: Griffiths911, CC BY-SA 3.0, via Wikimedia Commons Maps showing the position of the Falkland Islands and South Georgia and thr movement of forces during Operation Rosario

Bramleys make the best snowfall

TRADITIONALLY, Bramley apples are a late bloomer in this country, often harvested in October.

However, they can be picked from August onwards, as soon as they start falling from the tree.

The obvious answer to what to make with them is a crumble or pie (you never got to taste my nan’s apple pies, unless you are one of my cousins or siblings, but oh my they trounced any other apple pie on this lovely planet of ours, and that’s just a fact).

However, as I’m writing this in an early September heatwave, I wanted to find something slightly lighter to try and came across a whole heap of slightly old-fashioned Apple Snow recipes.

It dates back to at least the 17th century and is sometimes called Apple Fluff.

My first stop for hedgerow recipes is usually the River Cottage books and website because they are usually far less fussy and rather more enjoyable than many others out there.

I am more than happy to hear your recommendations, however, as I do love a good hedgerow recipe (as an aside, I am getting slightly excited by the amount of sloes appearing this year…).

Ingredients

Most recipes have similar ingredients with the odd variation here and there:

● 500g cooking apples, Bramleys give a nice sharpness to the taste

● 75g caster sugar

● Finely grated zest and juice of 1 medium lemon

● 1 large free-range egg white

● 150ml double cream (some recipes omit the cream).

Timings

15 mins to prepare and the same amount of time to cook.

Method

Peel, quarter and core the apples, and thinly slice them into a saucepan.

Add 50g of the sugar, the lemon zest and juice, and 50ml water.

Bring to a simmer and cook for about 15 minutes, stirring often, until the apples have broken down and become a pulp (you can mash them with a fork, a potato masher or pass through a sieve if necessary).

Once pulped, set aside to go cold.

Next, whisk the egg white in a bowl until it forms into and holds soft peaks, then add the remaining sugar and whisk again until it becomes a meringue (again, it should form and hold soft peaks).

Being gentle, you need to fold this lightly into the

apple puree using a large metal spoon.

Then, whip the cream until it just holds soft peaks (you don’t want this to be too stiff).

Fold the whipped cream into the apple puree, keeping as much air in the mix as possible.

You will need to put the mixture in the fridge for an hour or more before serving, ideally spooned into the glasses or dishes you will be eating from.

Enjoy.

Food & Drink Salisbury & Avon, September 11, 2023 27 salisburyandavon.co.uk TANDOORI NIGHTS Fully Licensed Indian Restaurant & Take Away TWO FOR ONE Dining In Only Cheapest Main Meal Free With This Advert, 7 Days A Week Tel: 01980 626260 / 626126 26 High Street, Amesbury, Wiltshire, SP4 7DL
So,
you
Are you you pizza ingredients. Each combining feast, variety about regular
aroma

Family-run Your Mortgage Expert celebrates its 8th anniversary

ON August 25, Your Mortgage Expert celebrates its 8th anniversary. The family-run mortgage broker first opened its doors in 2015. It has an office on New Canal and is dedicated to helping local Salisbury people with their mortgage needs.

Adam Nanson, managing director at Your Mortgage Expert comments: “I have now worked in financial services for 23 years. And, the last eight months stands out as particularly extraordinary.

“First we had the disastrous mini budget from Liz Truss that resulted in mortgage rates soaring. Then we had continued stubborn inflation meaning that the Bank of England has risen the base rate 14 times in a row.

“I have felt fortunate to have a strong, stable business and such an experienced team around me to help navigate these tricky few months. I really do believe it has meant we have been better able to help our customers and to be a safe pair of hands.

“In fact, between us, our eight strong team now has 82 years of experience in the mortgage and protection markets. And, all

members of our customer facing team have obtained CeMAP qualifications.

“This means that, no matter who you speak to, you can be reassured that person understands the rules around mortgage and protection advice.

“I also feel very proud that our clients continue to be our greatest advocates. In fact, a third of all our new enquiries come from client referrals. Which tells me that our clients trust the advice we provide as they are willing to recommend us to their friends and family.

Menkind comes to Old George Mall

THE gift and gadget retailer, that’s all about fun, geeking out, embracing your inner child, and ‘being weirder than broccoliflavoured ice cream’ opened in Old George Mall in mid-August. It is the company’s eighth store in the south west, with the nearest store for the region’s gadget lovers previously being in Southampton.

“Added to that, our clients have now left 70 five star reviews on Google. We know our clients are busy, especially if they’ve just moved house. So, when someone takes the time to leave positive feedback on Google, we genuinely know we’ve provided a good service to them.

“One of our other greatest achievements is the strong network of businesses we have built up over the last eight years. I am proud to be part of the thriving Salisbury business community. As part of what we like to refer to as the “Salisbury Property Hub”, we have built up a strong, carefully selected network of local property partners who are business contacts that are renowned for their customer service.

“With uncertainty over the forthcoming year, we believe impartial, experienced mortgage advice is more important than ever. With mortgage rates predicted to stay high until 2025, we believe it is essential that people get appropriate advice from an experienced firm like ours before making important financial decisions.”

Primark store set to open in Salisbury this week

PRIMARK will open in Salisbury on September 13.

It will be the affordable fashion giant’s 192 store in the UK and its first store opening in two years.

Once open, the store will span 29,700 square feet over two floors of the Old George Mall.

Opening day customers can expect to be greeted by a live DJ and before shopping in store, customers can use the online stock-checker to check the availability of certain styles.

After the BHS department

store closed in 2016, the unit remained unused until 2022.

In 2022, Primark revealed plans to open as part of a £140 million investment into UK retail by the end of 2024.

Since this announcement, excitement has been building as Primark fans will no longer have to travel to Basingstoke or Southampton to visit their local store.

Primark says shoppers will be offered an extensive and affordable selection of womenswear, menswear, kidswear and more.

Salisbury & Avon, September 11, 2023 28 salisburyandavon.co.uk Business
Although the past eight months have been an extroadinary period for mortgage brokers in general, the company is in good health
Salisbury & Avon Gazette
Over 20,000 people see our posts on Facebook each month

Amesbury Town FC maintain good start to season with convincing wins

AMESBURY Town’s good start to the season continued with home wins against Ludgershall Sports and Wroughton.

It was a convincing performance against Ludgershall with three first half goals from Tyler Brockway, Ally McCracken and Harry Hale. Keiron LeBrun scored two goals in three minutes before Keiran Diaz-Benitez made it six on 78 minutes.

The most spectacular goal was saved for last when Matt Devereux scored with a 35 yard cross from the right wing that flew into the top corner to seal a 7-0 victory. Amesbury also missed two penalties which would have made the score even more emphatic.

On Saturday 26, Wroughton were the visitors to Bonnymead Park. Cameron Hoyle opened the scoring before a free kick from Keiron LeBrun and a penalty from Keiran DiazBenitez made it 3-0 at the break.

Cameron Hoyle scored his second before goals from Josh Moore and Jake Connor completed the Amesbury scoring. There was still time for a late consolation goal for

Wroughton as Amesbury ran out 6-1 winners.

On Tuesday 29, it was local derby night as Amesbury made the short trip to play Salisbury Development at the RayMac. After a quiet start to the game, Ally McCracken scored from a Ben Morris cross on 25 minutes.

The second goal was a penalty, scored by Danny Field after Ben Morris was brought

down in the box. Amesbury made the game safe in the 40th minute when

Ben Morris latched on to a misplaced Salisbury pass to run from the halfway line, round the goalkeeper and slot the ball home.

Salisbury pulled one back in the 2nd half but Amesbury comfortably won the game 3-1. Manager Robbie Skeates said afterwards: “The game was won with our pressing and desire to win the second balls. The lads worked hard to force the development side into mistakes and we managed the second half well to secure the points.”

Amesbury Town’s next matches are at home to Odd Down (Bath) Development on Saturday 16 and Kingsdown on Saturday 23, both games at 3pm.

Amesbury’s walking rugby club grace Twickenham before England vs Fiji men’s international match

ON SATURDAY, August 26, for the first time in history, a Touch Union Rugby Festival took place on the pitch prior to an International match at Twickenham.

Amesbury Walking Rugby were invited to not only play but also to participate in the pre-game Flag Bearers and Guard of Honour.

Amesbury played five games on the hallowed turf, winning three, drawing one and losing one, but the day was not about results, “it was something that ‘money can’t buy’ and that was the experience that we had on the day,” said Bob Bailey.

“Our selection team had an headache in picking the 10 to represent Amesbury, those

chosen were: Kath, Michael, Bryan, Duncan, Katrina, Ros, Stuart, Barry, Mark, Bob.

“A big thank you also to all our supporters who made their voices heard.

“To round off the day we were invited to a half-time pitch walk-out in front of over 56,000.

“If anyone would like to come along to one of our training sessions, which is open to both male and female players, we train on Tuesday mornings from 9.45 to 11am and Thursday evening, 5.45 to 7pmm at Centennial Park, SP4 7WQ.

Salisbury & Avon, September 11, 2023 29 salisburyandavon.co.uk Sport salisburyandavon.co.uk
Amesbury Town beat Salisbury Development 3-1 at the RayMac Amesbury’s players soak up the atmosphere at Twickenham Amesbury Town (in lilac) on the attack against Wrougthon in a match they would go on to win 6-1

Arts society announces new programme and takes a walk around Bugmore

IN SEPTEMBER, The Arts Society Salisbury will be taking a walk around Bugmore or ‘Boggy Moor’.

This was a marshy area to the south of the city that for 300 years was the site of a Franciscan Friary operated by the Grey Friars.

Demolished by Henry VIII and now only obliquely referred to in street names, its former importance deserves our attention today.

In the early 17th century, the area was also the site of a workhouse and, when the new workhouse was built in Crane Street, it became a pest house to care for victims of epidemics such as plague, smallpox and cholera.

Nearby can be seen a medieval red light district, a modern almshouse, and a Victorian Catholic church. The walk will also look briefly at the work of Gothic revivalist AWG Pugin, who began his architectural career in Salisbury.

The society’s 2024 lecture series has now been confirmed. The programme which gives details of all the talks will be available in the Information Centre and library from September.

The topics discussed offer a variety of subjects including Making Sense of Portraits in Country Houses; The Legacy of

The Beatles: Here, There and Everywhere; Art & The Atlantic Slave Trade – Perspectives from England; and the ‘Wild Men of the North’: Tom Thomson and the Group of Seven Canadian artists.

The next lecture will be on October 10 when Douglas Skeggs’ subject will be David Hockney – The Old Master of the Modern World. From the early

abstract expressionist images, to the photo-montages of the mid-80s, this talk follows the career of an artist whose wit and imagination have never faltered.

All lectures are held at St Francis Church, Beatrice Road, Salisbury and start at 1.50pm.

For further information: www. theartssocietysalisbury.org.uk and Facebook, search for The Arts Society Salisbury. If you wish to telephone: 01722 331216.

Free Fringe festival weekend coming to Salisbury

NEXT month’s Salisbury Fringe weekend promises an exciting and diverse line-up of events. The annual free festival dedicated to showcasing new work by local writers runs from Friday, October 6 until Sunday 8, at various city venues.

The packed programme features compelling theatre, punchy bite-sized plays, vivid and dramatic pieces inspired by paintings, a creative writing workshop, an intriguing 18th century tale of murder, a magical storytelling session, a scratch show where writers try out exciting and provocative work-in-progress, plus poetry and spoken word, all topped off by a light-hearted knockout contest in which the audience vote for their favourite monologues.

Linda Morse is the chair of the organising committee. “Salisbury Fringe

has become a firm fixture in the city’s cultural calendar,” she said.

“We are delighted to be able to showcase Salisbury’s creative richness and trumpet the talent that lies within the city and its surrounding regions. The festival aims to appeal to the whole community, attracting a wide and diverse audience to all its events, which still remain free-of-charge.”

She added: “As a not-for-profit organisation, any donations received and pass-the-hat collections at the door are put straight back into the festival and go towards all the professional actors and directors who help to make Salisbury Fringe such a successful event.”

Last year, the Fringe celebrated its 10th anniversary and, as Linda says, everyone involved with the event is keen to keep evolving throughout the next decade.

All Fringe events and performances are free. You can find out more on the festival website: www. salisburyfringe. co.uk/events

Salisbury & Avon, September 11, 2023 30 salisburyandavon.co.uk Arts & Entertainment
Clues in road names reveal the former land use of the area that was once known as Bugmore

Tickets now on sale for Salisbury’s 10th Celebrate Voice Festival

THE WORLD-renowned BBC Singers will take centre stage as Celebrate Voice reaches its milestone 10th festival in October.

From the BBC Proms at the Albert Hall to Wilton Italianate Church, Celebrate Voice continues its commitment to programming world-class performers in intimate settings with a golden opportunity to hear the BBC Singers outside of London on October 19.

The performance will be conducted by one of the UK’s foremost composer/conductors Bob Chilcott.

Joining the festival line-up, from October 19-28, is Natalie Williams, award-winning jazz singer with Ronnie Scott’s All Stars, having appeared as the festival’s first ever jazz artist. Stars from London’s West End (including former Christine in Phantom of the Opera, Zoe Curlett) create a specially curated evening for Celebrate Voice in Live at the Musicals.

And this year’s hit of the Edinburgh Fringe Festival –Amy Webber brings her 5* sell-out show for cabaret and comedy night.

The festival has become

renowned over the past decade for its operatic output, with principals from leading opera houses, this year with a Hi-deHi inspired production of Mozart’s Cosi Fan Tutte.

Theatre lovers are catered for with BAFTA award-winner, Guy Masterson, and his legendary interpretation of Under Milk Wood – playing all 69 roles.

There are plenty of opportunities to take part as well – in either a BBC Singers’ workshop, a Singalong HMS Pinafore with leading opera singers, family events, world

Salisbury Baroque will offer ‘French potpourri’ on its return this month

A Potpourri of French Baroque Music’ is what Salisbury Baroque will be offering when they are back in action in St Martin’s Church in Salisbury at 4pm on Sunday 24, September.

Led by Catherine Martin, the baroque group will be exploring the very attractive music of French composers from Lully to Rameau.

Both of these wrote much dance music for their operas, and this will be interspersed with works, including a violin concerto, from a time in the early eighteenth century of great vigour in French music.

Tickets (£15, accompanied under-16s free) are now on sale at the website www.salisburybaroque.org.uk.

music meditation, plus therapeutic events for older people.

All events (except the BBC Singers) will be held at Salisbury Guildhall in partnership with Salisbury City Council.

The festival also celebrates becoming a charity in its 10th year. Founder and director,

Lynsey Docherty said:

“Bringing a British musical institution such as the BBC Singers in a year where they have featured in the world press is a momentous achievement for Celebrate Voice.

“The festival line-up represents the high-level of artists people have come to expect, and our new charity status reflects our commitment to bringing the best artistic experiences to our loyal audiences and our dedication to contributing to the cultural landscape of this wonderful city.”

The festival’s opening weekend of sales have broken all previous records, with increased membership, which the festival hopes points to a wider cultural upturn in arts support in the city.

Tickets and further information on the 2023 festival, which runs from October 19-28 are available from www. celebratevoice.co.uk.

Timespan set to rock Wilton

Ricky Vernon and the Pathfinders were formed in 1960, with members from Winterslow and Salisbury. For six years they supported many of the top groups including The Hollies and the Searchers.

Now, Pathfinders’ drummer Phil Bryant and lead guitarist Dave Adams, have joined bass guitarist Steve Whitwell and rhythm guitarist Jamie Donaghy in a group called Timespan.

They will be joined by Ricky Vernon as a special guest and a show at the Michael Herbert Hall in Wilton on September 23, performing hits from the 60s and raising money for the British Heart Foundation.

Tickets £15 and more info from www.salisbury-mushc-anddance.co.uk

Arts & Entertainment Salisbury & Avon, September 11, 2023 31 salisburyandavon.co.uk
The world-renowned BBC Singers will be appearing at the 10th Celebrate Voice festival in October; below: Cabaret Amy Webber

Margaret Calvert, the woman who designed a way to tell us where to go

The Arts Society Salisbury recently had a lecture from Mark Ovenden who talked about the Woman Who Told Us Where to Go!

The woman in question was a young student called Margaret Calvert who began working with designer Jock Kinneir in the 50s. Together, they designed the road sign system and the look of the National Health service and British Rail with new fonts, colours and shapes. Much of their and many of their ideas have been copied around the world.

Jock Kinneir, born in 1917, was a successful designer of posters, e.g. “You can be sure of Shell”, “Coughs and sneezes spread diseases”.

Margaret Calvert was born in South Africa in 1936 and came to the UK to study. Kinneir was one her lecturers and, when she graduated, she became his assistant.

In the 1950s, there was a plan to expand Gatwick and a chance meeting on a bus resulted in Jock Kinneir and Margaret Calvert being given the task to design its signage. New, clear typefaces were designed, plus pictograms to help non-UK passengers.

The lettering was put on a yellow background, which is

the last colour to go when people have problems with their eyesight.

Early road signs were milestone markers but, with the advent of motorised vehicles, these became the wooden finger posts. In 1903, the AA and RAC produced their own signs.

In the late 50s, however, Colin Anderson of P&O was appointed to a government committee who entrusted Margaret Calvert and John Kinneir with the design for the signage for the proposed new motorway roads.

The first design was for the Preston bypass and the signs were very crisp so that they were easy to read at night.

Margaret Calvert designed the images and she came up with simple, easy-to-understand pictograms including the signs for ‘men at work’ (a man digging), ‘farm animals’ (based on a cow that lived on a farm near to where she grew up), and ‘schoolchildren nearby’ (a girl leading a boy by the hand), based on one of her own photographs.

Early railway station names were shown on what was widely known as the ‘sausage roll’ (the name sitting between two halves of an oval) but by the 1960s these looked dated and again Margaret Calvert and Jock Kinneir were asked to

produce new ideas consistent with the signs they were producing for the motorways.

Gerry Barney, who was a lettering artist, came up with the pictogram for the railways which is still in use today: two tracks and a set of points – the recent Docklands Light Railway chose their typeface.

Again, with the establishment of the NHS, Calvert and Kinneir were asked to produce designs.

Margaret Calvert, although mostly retired, is still working today. She taught at the Royal College of Art for many years and in the 2016 Birthday Honours was awarded an OBE for services to typography and road safety.

The Arts Society Salisbury is currently on its summer recess and will recommence lectures on October 10 when Douglas Skeggs’ subject will be David Hockney – The Old Master of the Modern World. From the early

abstract expressionist images, to the photo-montages of the mid-80s, this talk follows the career of an artist whose wit and imagination have never faltered.

All lectures are at St Francis Church, Beatrice Road, Salisbury and start at 1.50pm. www.theartssocietysalisbury. org.uk; FB: The Arts Society Salisbury; t: 01722 331216.

Arts & Entertainment Salisbury & Avon, September 11, 2023 32 salisburyandavon.co.uk
Rail Alphabet designed by Kinneir and Calvert for British Railways in the early to mid-60’s Public domain, drawn by Pneumaman via Wikimedia Commons Calvert’s lettering in use at the on the Tyne & Wear Metro Tom Page CC BY-SA 2.0 via Wikimedia Commons Calvert, alongside Kinneir, designed many of the road signs that we still use today

Next Sale

European Ceramics & Glass; Clocks & Instruments; and Selected Antique Furniture & Objects

For a full list of our specialist sales please see our website Saturday 16th September

An amethyst, moonstone & enamel necklace, circa 1890, by Carlo Giuliano. SOLD FOR £27,000

For free verbal valuations please contact and South Kensington, London

Station Road, Semley, Shaftesbury SP7 9AN 01747 855122 www.semleyauctioneers.com

Wilton Antiques Fair

Michael Herbert Memorial Hall, South Street, Wilton, SP2 0JS

Saturday 30 September

Saturday 25 November 9am - 4.30pm

A wide range of Decorative, interesting and unusual items. Antique Furniture, Silver, Jewellery, China and Glass, Militaria, and Motor memorabilia.

WE WILL ALSO BUY Refreshments: Tea, Coffee and home made cakes.

Contacts: Carol 07870 432805 or Steve 07915 663251 carolfentum@gmail.com salty280@aol.com

Salisbury & Avon, September 11, 2023 33 salisburyandavon.co.uk
Antiques
FREE ENTRY & FREE PARKING
Find us in Antiques Atlas
https://antiques-atlas.com/dbevents/ FUNERAL DIRECTORS Local Services PLUMBING, HEATING & DRAINAGE FOR ALL YOUR DRAINAGE NEEDS • Blocked Drains • Drain Repair/Relining • CCTV Surveys for Drains • Drainage Investigation • Septic Tank Installation/Repair • Sewage Treatment Plant Installations/ Services 24 HOUR DRAIN CLEARANCE Office: 01747 859203 Mobile: 07453 319391 Email: Info@wefix-drains.co.uk Salisbury&AvonGazette Edition 20 July17,2023 FREEEVERYFORTNIGHT ROWOVER HANGING BASKETS Page Councilchairofficiallyopensnewfacilities (butthey’reactuallyforchildren!) CHARITYWALK Page SCOUTSHITTHE WATER Page11 NEW-LOOK PLAY AREAS SLIDE INTO PLACE! TANDOORINIGHTS FullyLicensedIndianRestaurant&TakeAway Two for OneDiningInOnly CheapestMainMealFreeWithThisAdvert,7DaysAWeek Tel:01980626260/ 626126 26HighStreet, Amesbury, SP4Wiltshire 7DL Salisbury & Avon Gazette 6,000 magazines delivered door to door 25,000 distributed within the area and
-

Arrow words

Toolbox

9 2 5 7 7 9 3 7 6 1 2 7 8 1 7 6 8 4 9

Brain chain

Salisbury & Avon, September 11, 2023 34
salisburyandavon.co.uk
CHISEL CLAMP HAMMER LATHE MALLET NAIL PLANE PLIERS PLUNGER RULER SAW SOLDERING IRON SPANNER VICE WELDING MASK WRENCH I N E A M E S D S H T D P R R N K R L N W A S N R A I S E N O E S A R H R R E N P M M N P R T L A C C C L R C L L M C A I P M P M A L C E A I E N E W G T E K V G H H C N E R W E R N R E M M I N N T S R C E R A I A A L S L C I R I S A P U A R E U E L S H E D R L L S L D E N L E N A A L L L U A E E H D A E E S P M A L N E E T R I L I C R R O R U G R E W H H L O L A N U D W E I R K C R L E S S G P G E R H K K H R N H G S H R A C R E N N A P S P P L 34 RESULT ÷2 +26 -15 +50% ×1/2 West Indian state Hawaiian guitar Consumed In a majestic manner Be cyclical Appals Give out Stitch Punk-rock crossover Seize Brawl Soaks up Of little intellectual interest Crooked Prison sentence Shy Had been Short haircut Care for Measures used in cooking Live theatrical technique Like an automaton Large Australian bird Deities Decline Pinch Sums
Sudoku 5 1 9
9 6 6
7 8 9 10 11 14 18 19 20 21 1 2 3 4 5 6 12 13 15 16 17 Across 7 Device for taking pictures (6) 8 Back to back (2,1,3) 9 Pasty-faced (4) 10 Removed passage of text (8) 11 Neck of a stringed instrument (11) 14 Denizens (11) 18 Bodily exertion (8) 19 Red jewel (4) 20 Judge (6) 21 Legally responsible (6) Down 1 Combat vessel (7) 2 To a great amount (4) 3 Portable climbing frame (6) 4 Statement agreeing to a request (4,2) 5 One-cell organisms (8) 6 Automaton (5) 12 Create (8) 13 Short facial hairs (7) 15 Each (6) 16 Principles (6) 17 Minor actor (5) 19 Far side (4) 7 8 9 10 11 14 18 19 20 21 1 2 3 4 5 6 12 13 15 16 17 Across 7 Device for taking pictures (6)
Back to back (2,1,3)
Pasty-faced (4)
Removed passage of text (8)
Neck of a stringed instrument (11)
Denizens (11)
Bodily exertion (8)
Red jewel (4)
Judge (6)
Legally responsible (6) Down 1 Combat vessel
To a
Portable
Statement
One-cell
Automaton
Short
Minor
Far side
SALISBURY & AVON GAZETTE ISSUE 24 P 3 U 1 Z 10 Z 10 L 1 E 1 S 1
Wordsearch Crossword
3
3 5
8
9
10
11
14
18
19
20
21
(7) 2
great amount (4) 3
climbing frame (6) 4
agreeing to a request (4,2) 5
organisms (8) 6
(5) 12 Create (8) 13
facial hairs (7) 15 Each (6) 16 Principles (6) 17
actor (5) 19
(4)

Place 1 to 9 once into every black-bordered 3x3 area as well as each of the 54 rows indicated by the coloured lines. Rows don’t cross the thick black lines.

Brain chain (hard version)

77

×2/7 ×6 +112 -50% -58

SALISBURY & AVON GAZETTE

Cryptic crossword

Across

1 Element from zone in Cuba (4)

4 Bruce too confused to get mathematical quantity (4,4)

8 Agreement in a cricket club or ground lately (6)

9 Harsh cut close to face (6)

10 Inactive maid leaving bottles (4)

Across

1 Element from zone in Cuba (4)

Down

4 Bruce too confused to get mathematical quantity (4,4)

2 Frequency of an event in police department from now commonly expressed (9)

8 Agreement in a cricket club or ground lately (6)

3 Miss in competition for intimate photo (5-2)

4 Promotion in upcoming college for trainee

9 Harsh cut close to face (6)

10 Inactive maid leaving bottles (4)

11 Rota Walt disrupted in unsparing conflict (5,3)

5 Bachelor on American vessel by leading up point? (3,4)

13 At home with lift that’s ill-fitting (13)

6 Victor in haunt upset opponent (5)

11 Rota Walt disrupted in unsparing conflict (5,3)

13 At home with lift that’s ill-fitting (13)

16 Give comfort to son in love when time’s gone (8)

19 Large-scale Eastern film (4)

20 English river over long time source of photos (6)

23 Republican guy in place that’s filthy and awful (8)

24 Support a book and film (4)

Across

1 Element from zone in Cuba (4)

4 Bruce too confused to get mathematical quantity (4,4)

8 Agreement in a cricket club or ground lately (6)

9 Harsh cut close to face (6)

10 Inactive maid leaving bottles (4)

11 Rota Walt disrupted in unsparing conflict (5,3)

13 At home with lift that’s ill-fitting (13)

16 Give comfort to son in love when time’s gone (8)

19 Large-scale Eastern film (4)

Place 1 to 9 once each into every row, column and boldlined 3x3 box. No digit maybe repeated in any dashed-lined cage, and each dash-lined cage must result in the given value when the stated operation is applied between all of the digits in that cage. For subtraction and division operations, start with the highest number in the cage and then subtract or divide by the other numbers in that cage

20 English river over long time source of photos (6)

22 Posh conservationists taken with regret?

That’s false (6)

23 Republican guy in place that’s filthy and awful (8)

24 Support a book and film (4)

7 Old Arab in row (3)

16 Give comfort to son in love when time’s gone (8)

12 Property in area that’s first given honour

19 Large-scale Eastern film (4)

14 Fruit that could be forced? Nonsense (7)

20 English river over long time source of photos (6)

15 Lethargy in a rite requiring reform (7)

17 Make solemn allegiance in Sunday sport

22 Posh conservationists taken with regret?

That’s false (6)

18 Escape European lecturer due for replacement (5)

23 Republican guy in place that’s filthy and awful (8)

22 Posh conservationists taken with regret? That’s false (6)

21 A game in the past (3)

24 Support a book and film (4)

Down

2 Frequency of an event in police department from now commonly expressed (9)

3 Miss in competition for intimate photo (5-2)

4 Promotion in upcoming college for trainee (5)

5 Bachelor on American vessel by leading pickup point? (3,4)

6 Victor in haunt upset opponent (5)

7 Old Arab in row (3)

12 Property in area that’s first given honour (9)

14 Fruit that could be forced? Nonsense (7)

15 Lethargy in a rite requiring reform (7)

17 Make solemn allegiance in Sunday sport (5)

18 Escape European lecturer due for replacement (5)

21 A game in the past (3)

For the solutions,

Salisbury & Avon, September 11, 2023 35 salisburyandavon.co.uk
turn to page 47
RESULT
7 5 7 5 1 3 4 1 1 2 9 1 5 2 7 9 1 8 2 7 7 8 3 4 8 3 4 7 4 8 2 6 7 3 9 4 6 8 4 6 5 3 4 3 1 5 7 2 8 1 3 6 5 5 6 7 8 1 4 6 7 2 9 8 4 4 2 9 5 4 5 9
Jumbo sudoku
1 4 8 9 10 11 13 16 19 20 22 23 24 2 3 5 6 7 12 14 15 17 18 21
1 4 8 9 10 11 13 16 20 22 23 2 3 4 5 14 17 18 21
Down 2 Frequency from 3 Miss 4 Promotion 5 Bachelor up 6 Victor 7 Old 12 Property 14 Fruit 15 Lethargy 17 Make 18 Escape replacement 21 A game 1 4 8 9 10 11 13 16 19 20 22 23 24 2 3 5 6 7 12 14 15 17 18 21
Killer sudoku 11 4 12 13 9 15 11 12 31 20 9 5 17 26 24 17 8 11 11 4 8 17 25 10 6 17 19 20 13 ISSUE 24
P 3 U 1 Z 10 Z 10 L 1 E 1 S 1

Incentives to buy new homes

IF YOU are considering purchasing a new home in the countryside, Symonds & Sampson is a very good place to start your search.

Not only can they offer a range of apartments, conversions and newly built properties in our local towns, villages and countryside, but they can also tell you about exciting incentives and open days to tempt you further.

Higher Stour Meadow lies on the outskirts of Marnhull. Attractive detached three-bedroom houses are built to a high specification by AMB Developments and come with a 10-year warranty and all the efficiency and convenience of a new property.

Prices are from £560,000, Freehold (EPC & CTB, TBA). Incentives to prospective purchasers include stamp duty contributions and fitted wardrobes in the main bedroom (subject to conditions). Details from Chloe Barrett 01258 473766

Plumber Farm is a traditional farmyard development of just nine character dwellings set in a delightful rural location, yet only just over a mile from Sturminster Newton.

Prices start at £475,000 Freehold (EPC & CTB TBA) for the three and fourbedroom individual properties. Incentives to prospective purchasers include contributions to stamp duty and solicitors fees (subject to condition). Details from Chloe Barrett 01258 473766.

An open day at Hill Ash Court at Woolston in South Somerset provides a wonderful opportunity to get a feel for a prestigious countryside development of just six individual houses in a small hamlet surrounded by beautiful South Somerset countryside, yet within striking distance of Bruton, Wincanton and Castle Cary.

Built by Woolavington Homes, prices are from £625,000 Freehold (EPC & CTB TBA). Contact Andy Wakinshaw 01935 814488

Symonds & Sampson has established a reputation for selling new homes throughout the region. Acting on behalf of developers large and small, the firm’s experts can offer a full range of professional services from identifying sites, obtaining

planning permission to selling new homes. For further details, please contact Andy Wakinshaw 01935 814488.

From top: Plumber Farm; High Stour Meadow; Hill Ash Court

Property Salisbury & Avon, September 11, 2023 36 salisburyandavon.co.uk Salisbury&AvonGazette Edition July 2023 FREEEVERYFORTNIGHT OVER Councilchairofficiallyopensnewfacilities (butthey’reactuallyforchildren!) Page CHARITYWALK SCOUTS WATER NEW-LOOK PLAY AREAS SLIDE INTO PLACE! TANDOORINIGHTS FullyLicensed Restaurant Away Two for One Dining Only CheapestMain Advert, Days 01980626260 626126 High Amesbury, Wiltshire Salisbury & Avon Gazette TANDOORI NIGHTS Two for One –Soroptimists’ record-breaking bra appeal will give BRA-VO TO DONATIONS! Salisbury&AvonGazetteEdition August14,2023 FORTNIGHT WELCOME! Projectwillseestreetstransformed –butdriversbeware… Page Newlandmarkbuilding £9MCITY REVAMPIS UNDERWAY TANDOORINIGHTSFullyLicensedIndianRestaurant& Away TwoforOneDiningInOnly Cheapest Meal With Advert, Week HighStreet, Amesbury, Wiltshire7DL CHALLENGE Salisburyswimmer heading France Salisbury & Avon Gazette Connects with 125,000 readers per month

WEDDINGS

For all your wedding planning and ideas inspiration.

Advertising Feature Salisbury & Avon, September 11, 2023 37

Doris Days Out

01722 336575

flowers@gullicksflorists.co.uk

A family run business for over 10 years, we are committed in ensuring your vision becomes a reality.

We have created a complete event hire company that continues to retain the same values we have always provided to our customers of which is high end, well maintained equipment at competitive prices.

With our wealth of experience, we can provide a wide range of various sized marquees and pagodas with everything you need to make your wedding run smoothly, comfortably and with no stress.

Call: 01225 709805

E-mail: info@wiltshire-marquees.co.uk

is a 1964 split split screen VW camper van. She comfortably seats 5 - 6 people and provides you with plenty of leg room. With newly upholstered custom white & cream curved seating, Doris is the perfect car for your wedding. info@dorisdaysout.co.uk
580033 Your Perfect Wedding Venue ~ Marquee Hire in Wiltshire
Arrive at your wedding in style... Doris
07989
by Wiltshire Marquees
us to discuss your event: Wiltshire Marquees Limited, Unit 22A Intercity Industrial Estate, Bath Road, Shurnhold, Melksham, Wiltshire, SN12 8DE
Contact
Specialist Wedding Florist
Website: www.wiltshire-marquees.co.uk Beautiful Bespoke Designs
Creating
109 Fisherton Street, Salisbury, Wiltshire, SP2 7SS Salisbury & Avon, September 11, 2023 38
Photography by Barbara Leatham
Salisbury & Avon, September 11, 2023 39

Ahuvi Photography - Salisbury Based Wedding

Photography

I personally want you to look back on your day having thoroughly enjoyed every moment of it and to have the joy of looking through your wedding photos with excitement and feeling con dent to share them with guests and family. Photos that are so magical and fantastic that they make people gasp “Wow! at looks gorgeous”.

I’m Jonathan, a professional wedding photographer of over 12 years. I specialise in blending into the background to capture your key wedding moments from start to nish - even if that means staying late into the night to photograph you dancing your socks o . My aim is to put everyone at ease whilst being friendly and engaging. I’ve even had guests ask me what side of the family I’m from! Because when you’re relaxed, the real magic of your wedding can be captured. Nothing gives me more of a thrill than seeing people enjoy their big day and then reliving those magic moments when they get their postcard-perfect photos a erwards.

My goal is to give you exactly what you want… Not the standard shots any old photographer can produce. at’s why we’ll discuss exactly what shots you want beforehand, and I’ll help you organise any timings to ensure these shots

are taken with minimal fuss. When I’m not capturing your ‘wishlist’ shots, I’ll be blending in with the guests. Capturing natural, relaxed photos of people enjoying themselves.

My aim is to make sure your day runs smoothly and that you are able to enjoy it to the full without worrying about all the details. I will be here to help guide you. I’ll be out of the way for the important parts, but I’ll be by your side for the rest of the time making sure you get the best wedding day possible.”

Salisbury & Avon, September 11, 2023 40

Plan your dream wedding at The Guildhall Wedding Fair

Save the date for e Guildhall Wedding Fair on Sunday, September 24, from 11am to 3pm. With free entry and a complimentary drink on arrival, couples who are preparing to walk down the aisle are invited to our popular Wedding Fair which will take place in Salisbury’s magni cent grade II* listed Guildhall.

As one of Salisbury’s most beautiful wedding venues, e Guildhall provides the perfect backdrop to this fantastic event.

ere will be a variety of the best local wedding suppliers around, with orists, photographers, venues, catering, bridal wear, jewellery and much more; providing a great opportunity to ask any questions and get inspiration for your big day.

e team from e Guildhall will also be attending to o er information on how you can use the historic building for your wedding venue.

e Wedding Fair is the perfect destination to start your wedding planning or make those nishing touches so come on down and see what the suppliers have to o er.

Salisbury & Avon, September 11, 2023 41

YOUR DREAM WEDDING

Welcome to Allum & Sidaway; your destination Bridal store. We are an award-winning family jewellers & dress boutique situated in the heart of Salisbury.

Book an appointment in our 1st oor spacious wedding dress showroom; we o er private appointments so our boutique is entirely yours to enjoy. Browse our seven designer collections including Savin, Dando London and Mark Lesley, with prices ranging from £700- £4400. From romantic boho to modern clean lines & structure: our dresses are anything but ordinary. We’ve also got veils, accessories and of course jewellery for your big day covered too!

Head downstairs to the jewellery team and discover your perfect wedding rings, plus personal gi s for all the bridal party. Our wedding rings are available in all precious metals, countless patterns and pro les. Make the most of our Wedding rings promotion and enjoy 25% o the lower priced wedding ring when you order both with Allum & Sidaway.*

We also o er an expert bespoke service so if you need a shaped to t ring or want to design something from scratch you are in the safe hands.

For bridal jewellery; choose from our precious gemstones or coveted brands such as Pandora, Georg Jensen and Alex Monroe.

We consider it such a privilege to play a part in your big day. For professional, passionate and friendly service visit the team in Salisbury. Head to Google to read our 5 star reviews.

*Ts & Cs apply.

Salisbury & Avon, September 11, 2023 42
Salisbury & Avon, September 11, 2023 43

Wages rise at their fastest rate for 20 years - but fuel interest rate fears

UK wages have risen at their fastest rate in 20 years - raising expectations that UK interest rates will have to rise.

Regular pay excluding bonuses increased by 7.2% in the three months to April, although it still lags behind rising prices due to inflation, according to the Office for National Statistics (ONS).

It has increased fears among homeowners interest rates could rise again, meaning higher mortgage repayments for households, as the Bank of England seeks to reign in inflation.

The Bank of England has previously

warned big pay rises are contributing to the UK’s still-high rates of inflation, and has put up interest rates 12 times since 2021 to try to slow price rises.

Higher interest rates are good for savers, as the interest on their money rises, but it means higher repayments for mortgage holders - and large increases for those seeking to renew their mortgage after enjoying a lower fixed rate in previous years.

The mortgage market has seen disruption amid the figures, with many lenders withdrawing mortgages amid uncertainty

over rates, with many predicting they could raise as high as 5.5%.

On Tuesday, the government’s borrowing costs - which directly impact mortgage rates - rose to their highest rate since last year’s mini-budget.

Darren Morgan, director of economic statistics at the Office for National Statistics (ONS), said in cash terms, basic pay is now growing at its fastest since current records began, apart from the period when the figures “were distorted by the pandemic”.

“However, even so, wage rises continue to lag behind inflation,” he added.

More than 1,000 Wilko jobs set to go

MORE than 1,000 Wilko staff are set to be made redundant after the chain announced the sale of dozens of stores.

Administrators working for the retailer have been working to secure the sale of the brand.

However, despite an announcement this week that B&M had agreed to buy up to 51 Wilko stores - a deal worth up to £13 million - it also confirmed the closure of 52 shops.

As well as 1,016 people facing losing

their jobs at the stores, another 299 redundancies have been announced at distribution centres in Worksop and Newport.

In the south west, stores set to close are Falmouth, Weston-super-Mare, Avonmeads in Bristol, St Austell and Truro.

Falmouth and Weston-super-Mare will close on September 12. Avonmeads, St Austell and Truro will shut their doors on September 14.

Wages have grown at a rapid rate - but still lag behind inflation, according to Darren Morgan, from the ONS, inset
Salisbury & Avon, September 11, 2023 44 salisburyandavon.co.uk Recruitment salisburyandavon.co.uk

DRIVERS WANTED ARMISHAWS

REMOVALS LTD

are currently looking to recruit experienced class 1 (Class C+E), class 2 (License cat C) and 7.5t, (C1) Removals drivers to join our teams in Salisbury SP2 8RA. Driving our 18 & 21 ton rigid lorries and smaller vehicles as required, as well as being involved with the packing and loading / unloading of your vehicle.

Experience in the removals industry is desirable although consideration will be given to drivers with the right aptitude. The job also involves some working away from home during the week.

* Salary on application

* Monday to Friday working with very few weekends

* Opportunity of Progression

* Opportunity of overtime

* Guaranteed hours (following probation)

Tel John on 01963 34065

Or email transport@armishaws.com

The Blackmore Vale Ltd is looking for an experienced Sales Executive to join our team.

About You

• You’ll need to be target driven.

• Have a proven track record of B2B sales.

• Have the ability to work independently sourcing your own leads, through competitive media, online and social media.

• An understanding of both print and digital advertising.

• The personality to build a strong customer base.

• Your own transport is a must with mileage paid. This is a full time role.

• You’ll be joining a friendly, supported team, where you’ll be selling across a range of regional magazine titles.

• We DON’T do hard sell, these are local magazines, supporting local communities, success is key, but we’re also building a reputation we’re proud of.

• We DO recognise and reward success especially team members who exceed their targets. Be nice, but be successful!

• You’ll need to be based within and familiar with the Blackmore Vale area.

• You’re welcome to work from our Wincanton office or work from home within Dorset, Wiltshire or Somerset.

www.armishaws.com Get your free quote. ON THE MOVE? Rated ‘Excellent’ on Trustpilot Family Owned Business Est. 1973 British Association of Removers Eco Friendly Removals Removals made easy. UK Removals All houses great and small! A worry-free service from planning, packing to completion. Storage 24-hour to long term contracts, our advanced containerised system makes storage simple. European Removals Our friendly team will help guide you through the process from beginning to end. Country House Moves Armishaws provide the highest levels of customer service, tailored to your move. THE SOUTH WEST’S LEADING REMOVAL SERVICE Salisbury 01722 322616 Amesbury 01980 881971 Dinton 01722 448436 Andover 01264 353 221 Fordingbridge 01425 200154 Southampton 02382 028194 Salisbury & Avon, September 11, 2023 45 salisburyandavon.co.uk
more information or to apply,
contact; debi.thorne@blackmorevale.net
For
please
Recruitment
01963 400186 Advertise with us Call us TrustScore 4.4 Book your free quote today. www.armishaws.com Safe. Secure. Simple. Household Storage Blandford 01258 447005 Dorchester 01305 231267 Shaftesbury 01747 440426 Sherborne 01935 316221 Warminster 01925 984459 Wincanton 01963 34065 your free www.armishaws.com Safe. Secure. Household 447005 Dorchester 01305 231267 316221 Warminster 01925 984459 Salisbury 01722 322616 Andover 01264 353221 Amesbury 01980 881971 Dinton 01722 448436

Four-Wheel Laser Alignment

We use the latest specialist equipment to accurately check the front and rear wheels of your vehicle. If the alignment is not set correctly it was cause excessive wear to your tyres, steering and suspension components. To prevent high repair costs, or tyre replacement from misaligned wheels you could poten�ally save yourself money by checking the alignment.

Salisbury & Avon, September 11, 2023 46 salisburyandavon.co.uk Motoring salisburyandavon.co.uk AVANT GARDE MOT CENTRE LTD 01725 519555 Call us today! Pinewood Business Park, Blandford Road, Salisbury, SP5 5RF. All MOT's done on site so no extra fees to pay! LOCAL COLLECTIONS AND DELIVERIES Class 4 & 7 All vehicles up to 3,500kg. OWN A BUSINESS? WE WILL GIVE YOU TRADE DISCOUNT. JUST ASK! ONLY £45 Unit 3-4 Pinewood Business Park, Blandford Road, Salisbury, SP5 5RF. 01725 519418 fairwaymotorengineers@outlook.com www.fairwaymotorengineers.co.uk FREE Collec�on and Delivery - Courtsey Cars Available For
Motoring
Servicing - MOT Class 4 & 7 - Tyres - Four
Wheel Laser Alignment - ADAS Calibra�ons - BrakesAir Condi�oning - Diagnos�cs - Welding - ExhaustsBa�eries - Suspension - Clutches FREE TYRE CHECK FREE WINTER CHECK ADAS Alignment Checks and Recalibra�ons. Ask for more details. CLASS 4 & 7 MOT'S ONLY £45. All MOT's done on site so no extra fees to pay. Discounts available for Traders - just ask!
All Your
Needs...
-

Half of drivers admit speeding in 30mph zones

HALF of drivers admit to breaking the 30mph speed limit, a new report has revealed.

The data, released by the Department for Transport (DfT), showed that in 2022, under free-flowing traffic conditions, 50% of car drivers exceeded the speed limit on 30mph roads.

The data also revealed 45% of drivers also exceeded speed limits on the motorway, while 11% of those behind the wheel admitted to breaking the national speed limit when driving on single carriageway roads.

Overall, DfT said speed limit compliance in 2022 was slightly higher than 2021, where lower levels of compliance may be partly attributed to the impact of the coronavirus pandemic on lower traffic levels.

However, vehicle speed limit compliance in 2022 has remained broadly similar when compared to vehicle speed limit compliance levels between 2011 and 2019.

Last year, the percentage of car drivers exceeding the speed limit by more than 10mph was much lower than overall speeding, at 8% on motorways, 5% on 30mph roads and 1% on National Speed Limit single carriageway roads.

These recordings were only on road conditions where traffic is free flowing - such as where there are no junctions, hills, sharp bends, speed enforcement cameras or other traffic calming measures.

The average car speed, under free flow conditions, was just

Puzzle solutions

Edition 24

under the speed limit on motorways at 69mph.

Drivers matched the speed limit on 30mph roads and drivers were on average 9mph slower than the single carriageway roads limit (51mph).

The statistics do not cover roads where the road layout or traffic calming measures are likely to impact vehicle speeds.

RAC head of policy, Simon Williams, said: “The implications of speeding on these roads is likely to be greater than on faster roads, not least as they’re generally in areas with more pedestrians and cyclists.”

(from pages 34-35)

Brain chain (hard)

Arrow words

Salisbury & Avon, September 11, 2023 47 salisburyandavon.co.uk Motoring salisburyandavon.co.uk
Killer sudoku 5 8 4 1 2 7 9 3 6 6 2 3 9 5 4 1 7 8 9 7 1 3 6 8 5 4 2 3 6 8 4 9 1 7 2 5 2 5 7 6 8 3 4 1 9 1 4 9 2 7 5 8 6 3 4 3 2 8 1 9 6 5 7 8 1 5 7 3 6 2 9 4 7 9 6 5 4 2 3 8 1 4+ 8+ 10+ 21× 2 30× 1 45× 140× 18+ 96× 224× 32× 19+ 0 6 18+ 16+ 240× 2÷ 16+ 19+ 24+ 12+ 2÷ 27+ 33+ Sudoko 5 4 8 1 6 9 7 2 3 7 9 3 5 8 2 1 6 4 1 2 6 4 3 7 5 9 8 9 8 1 2 4 5 6 3 7 2 6 7 3 1 8 9 4 5 3 5 4 7 9 6 2 8 1 4 3 2 9 7 1 8 5 6 8 1 9 6 5 3 4 7 2 6 7 5 8 2 4 3 1 9 Jumbo sudoku 8 3 1 7 4 9 5 2 6 5 7 3 2 9 8 4 6 1 2 5 6 9 7 4 8 1 3 4 8 9 6 1 7 3 5 2 9 4 3 1 8 5 2 7 6 6 9 8 1 3 5 2 4 7 5 6 2 3 9 7 1 8 4 6 2 1 4 3 5 9 7 8 7 8 1 3 2 6 9 5 4 8 9 2 3 6 4 5 1 7 4 7 1 8 5 2 9 6 3 5 6 3 9 7 1 8 2 4 7 6 1 8 5 2 4 3 9 3 4 5 6 9 7 2 1 8 8 9 2 1 4 3 6 7 5 6 5 3 1 4 9 2 8 7 6 2 4 7 3 9 5 8 1 2 5 3 4 6 9 1 7 8 2 9 6 7 8 5 3 1 4 7 1 4 3 6 9 2 8 5 5 8 3 1 2 4 9 6 7 4 9 8 2 5 7 3 6 1 3 5 1 4 8 6 7 9 2 7 2 6 9 3 1 5 8 4 3 4 1 8 7 2 9 5 6 2 1 3 8 4 5 6 7 9 6 9 7 5 2 8 1 3 4 Cryptic crossword Z I N C C U B E R O O T N L A U I A A C C O R D S E V E R E I S E S A I D L E T O T A L W A R E U O T I N A P P R O P R I A T E C H N R R E A S S U R E E P I C W B L R B C A M E R A U N T R U E G A R D I T H O R R I B L E A B E T Crossword W V L W B R C A M E R A I N A R O W R R D L C B A S H Y D E L E T I O N H E D E T F I N G E R B O A R D P E I S I N H A B I T A N T S E E P D U E X E R C I S E R U B Y T A E A E B C R I T I C L I A B L E A E E S R E
G A M R O U T R A G E S T A K E E C E I S S U E R A T E R M L O W B R O W O W A S S T R O B O T I C I M P R O E M U E B B N I P G O D S A D D S 40 RESULT 30 10 50 25 5 Brain chain Wordsearch I N E A M E S D S H T D P R R N K R L N W A S N R A I S E N O E S A R H R R E N P M M N P R T L A C C C L R C L L M C A I P M P M A L C E A I E N E W G T E K V G H H C N E R W E R N R E M M I N N T S R C E R A I A A L S L C I R I S A P U A R E U E L S H E D R L L S L D E N L E N A A L L L U A E E H D A E E S P M A L N E E T R I L I C R R O R U G R E W H H L O L A N U D W E I R K C R L E S S G P G E R H K K H R N H G S H R A C R E N N A P S P P L
77 RESULT 22 132 244 122 64
EXTRA Redeemable against any product* Please bring this voucher with you! % OFF10 VOUCHER CARPETS | FLOORING | VINYL | RUGS STORES NOW OPEN 7 DAYS A WEEK SAG 9 We aim to beat any like for like written quote! Unit 3, Bourne Retail Park, Hatches Lane, Salisbury, SP1 2QQ 01722 696111 | carpetsandbeds.com *Excludes floor preparation materials, labour and any already discounted items. Only reclaimable at the time of purchase. FREE LOCAL DELIVERY

Turn static files into dynamic content formats.

Create a flipbook