Memoria de proyecto: Acabados para departamento

Page 1


Acabados para departamento

Memoria de proyecto José Ángel Elizondo Almaraz

Resultados de la asignatura “Elementos complementarios de la edificación”

Docente: Arq. José de Jesús Ramírez Sanromán

Coordinación editorial: Alejandra Palmeros Montúfar

Cuidado de la edición: Sara Xochil Uscebrka Milosevic

Ediciones G- Universidad Gestalt de Diseño

Av. 1ero de Mayo no. 113

Colonia Obrero Campesina

Xalapa-Enríquez, Veracruz.

https://gestalt.edu.mx/

José Ángel Elizondo Almaraz

El objetivo principal de este apartado es diseñar y justificar la remodelación y planificación de los departamentos, aplicando los conocimientos adquiridos en la clase de Elementos complementarios de la edificación (acabados).

Se busca demostrar una comprensión profunda de los principios de diseño de interiores, selección de materiales y técnicas de acabado, integrando conceptos estéticos y funcionales para optimizar el espacio habitable. Además, se pretende argumentar las decisiones tomadas en función de la eficiencia, durabilidad, estética y las tendencias contemporáneas en acabados, evidenciando la aplicación práctica de los aprendizajes obtenidos en el ámbito académico.

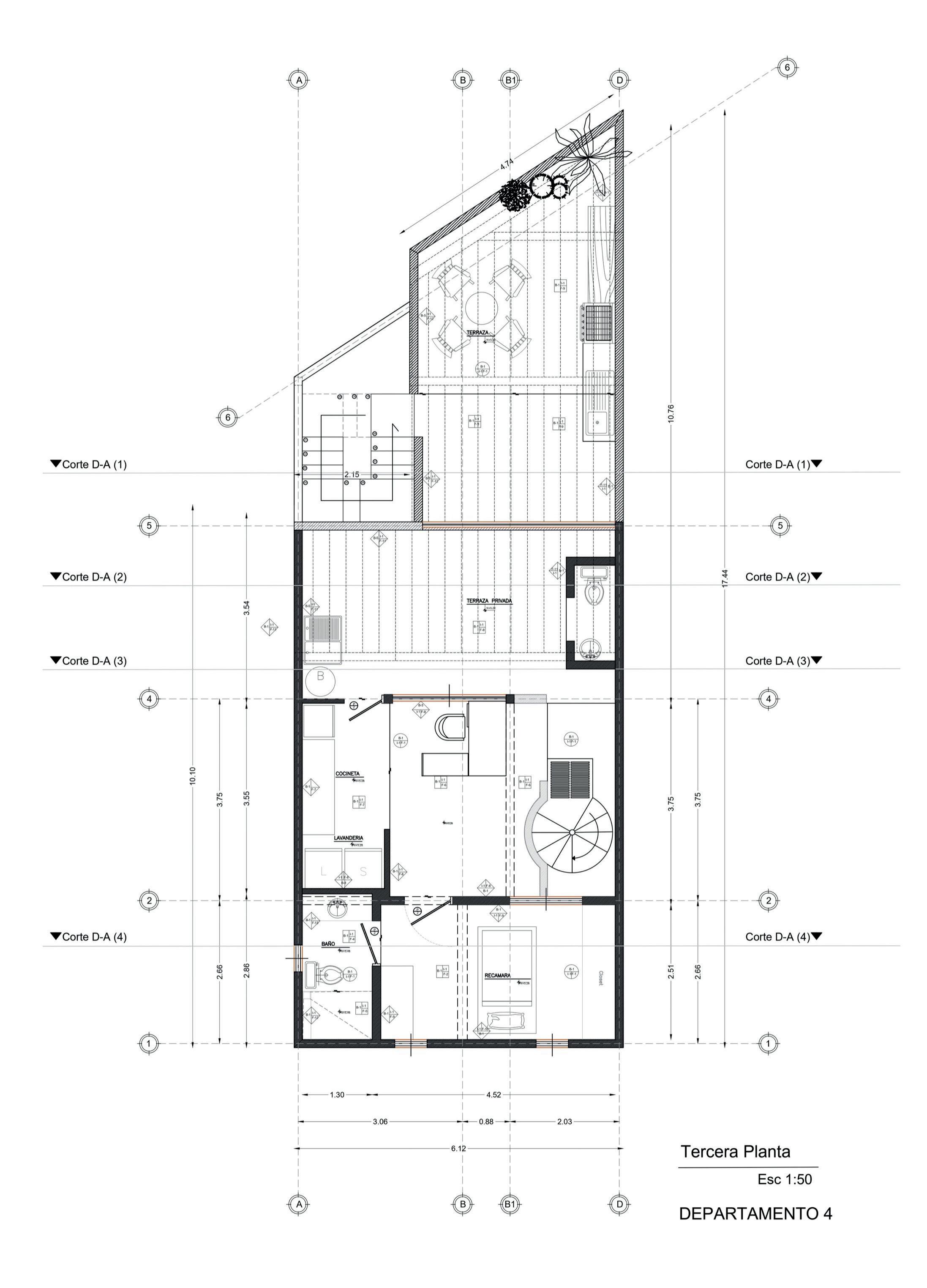
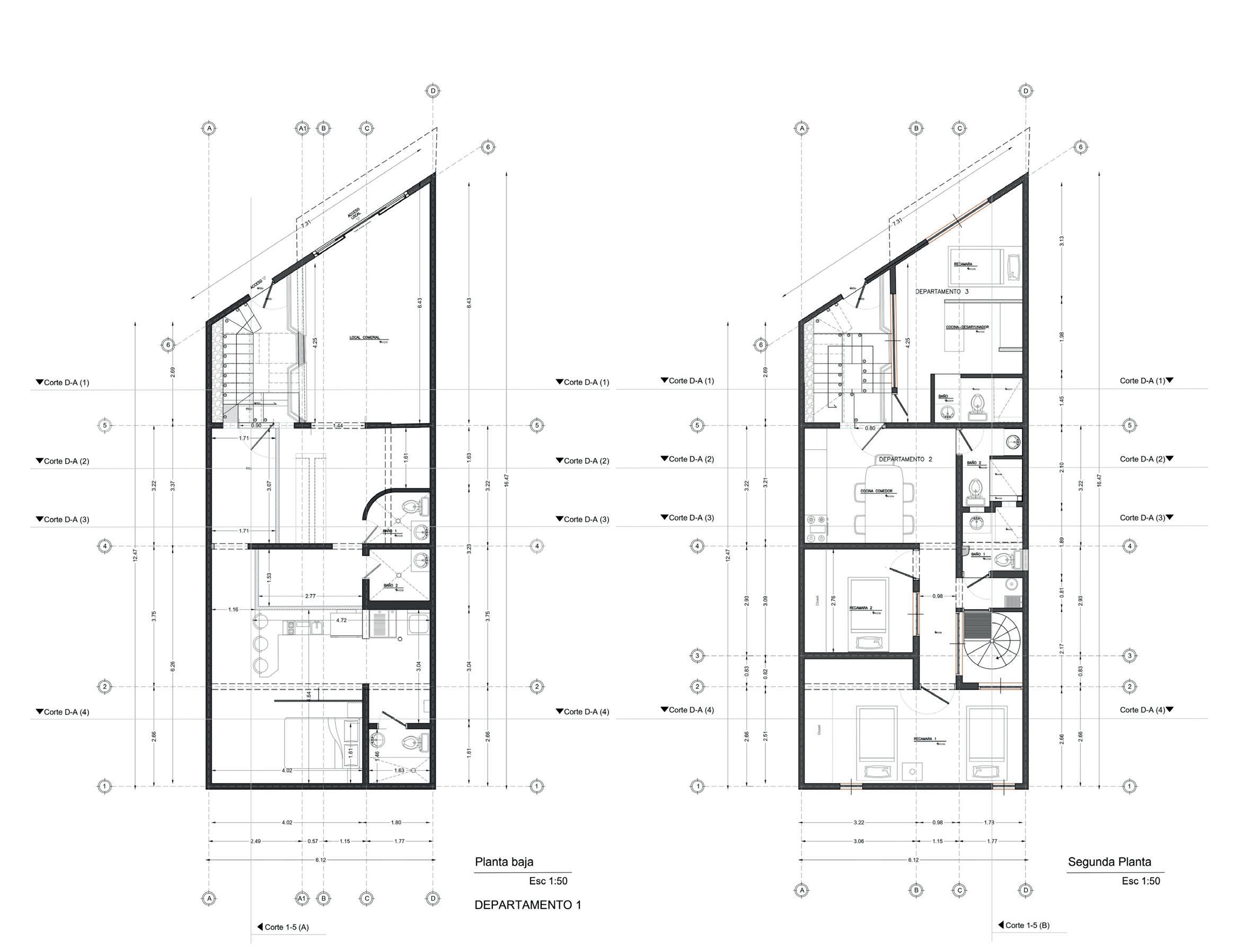
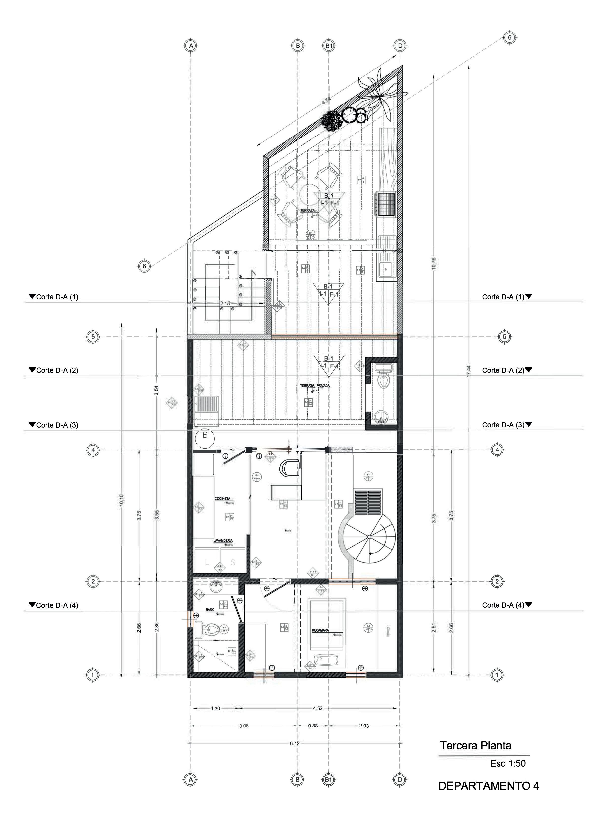
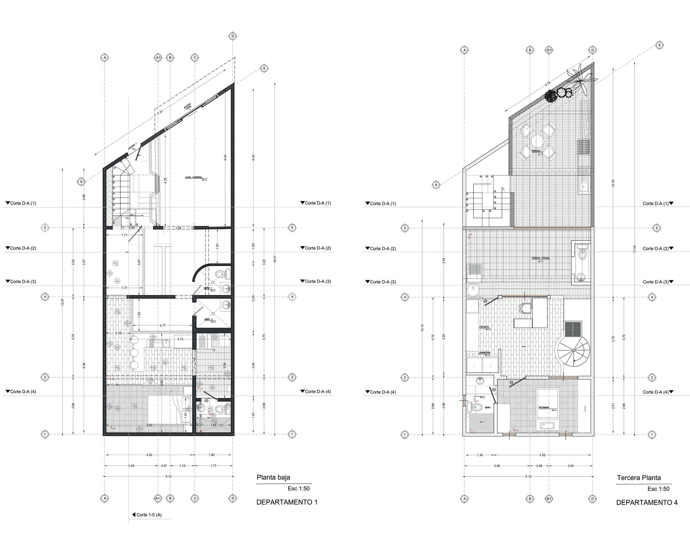
La elección de materiales para la remodelación se centra en maximizar la funcionalidad y la estética en espacios pequeños, promoviendo un ambiente acogedor y minimalista. Los acabados seleccionados buscan la eficiencia en el uso del espacio y reflejar la tendencia contemporánea hacia la simplicidad.

En cuanto a los recubrimientos de paredes y suelos, se opta por tonalidades neutras y texturas suaves que aportan luminosidad y amplitud visual. Materiales como la madera clara y laminados de alta calidad añaden calidez sin abrumar visualmente, manteniendo la coherencia con la estética minimalista.

Los muebles se eligen cuidadosamente para maximizar la funcionalidad sin sacrificar el espacio. Materiales livianos como el metal y la madera esbelta, contribuyen a la sensación de ligereza y apertura.

En términos de iluminación, se prefiere una luz tenue y cálida para crear un ambiente acogedor. Por ejemplo, lámparas de diseño minimalista y focos empotrados proporcionan la cantidad justa de luz, evitan la saturación visual y enfocándose en resaltar áreas específicas.

Esta elección de materiales se basa en la premisa de que menos es más, contribuyendo a la creación de espacios armoniosos, acogedores y eficientes que aprovechan al máximo cada rincón, mientras ofrecen una experiencia estética y funcional a quienes habitan los departamentos.

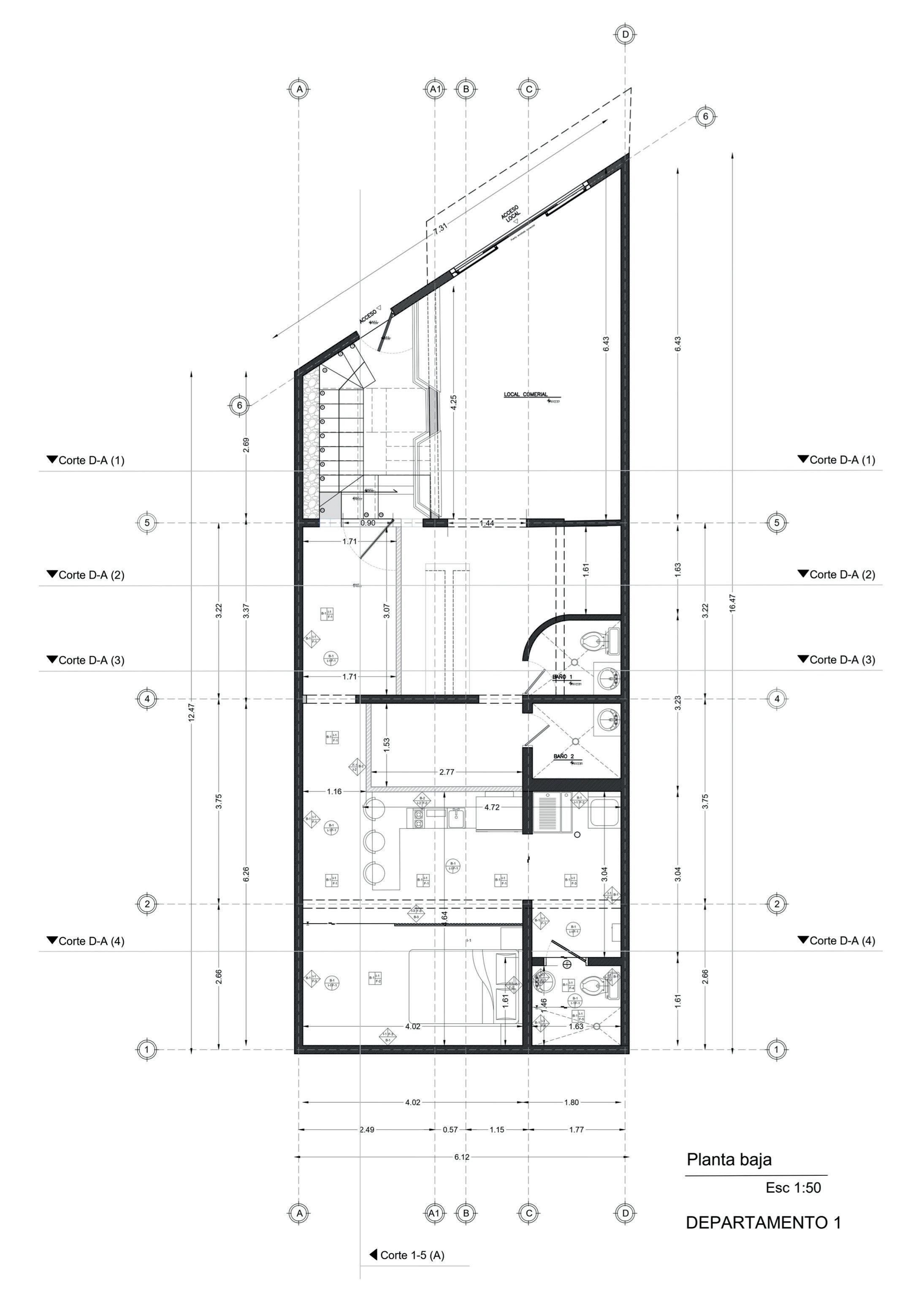
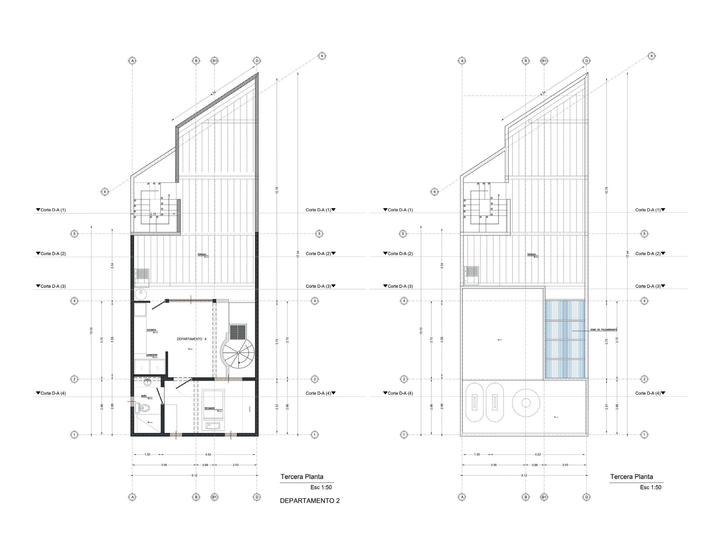
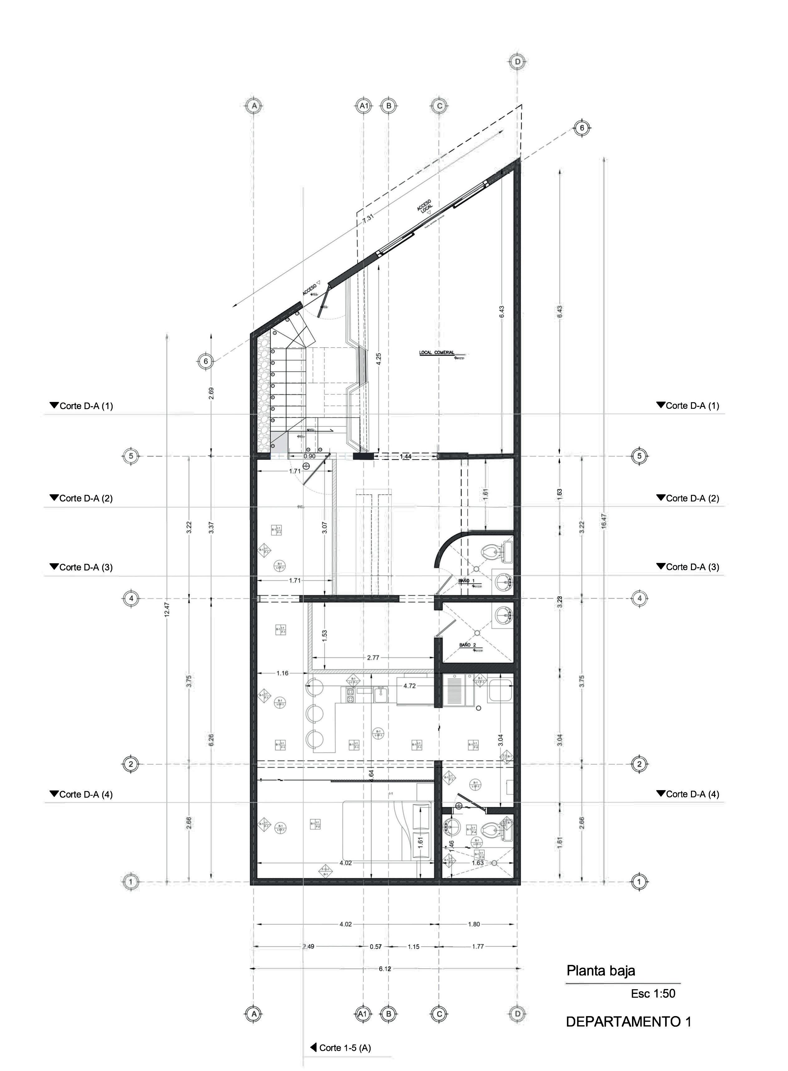
planos arquitectónicos

planos acabados

renders (propuesta)

Este proyecto no solo representa un ejercicio de diseño, sino también un testimonio del dominio de los conocimientos adquiridos en la clase de acabados. La justificación cuidadosa de cada material, textura y color refleja una comprensión profunda de cómo estos elementos contribuyen a la funcionalidad y estética general de los espacios. En definitiva, este proyecto consolida la habilidad de aplicar de manera efectiva los conceptos de acabados, marcando un paso significativo en la evolución como arquitecto.

Turn static files into dynamic content formats.

Create a flipbook
Issuu converts static files into: digital portfolios, online yearbooks, online catalogs, digital photo albums and more. Sign up and create your flipbook.
Memoria de proyecto: Acabados para departamento by Universidad Gestalt de Diseño - Issuu