Skip to main content

ARQUITEKTURA Issue 01

Page 1

Kultura: Municipal Halls of the BARMM

Paglulunan: The Development of Arkitekturang Pilipino

Proyekto: Cor Jesu Oratory

APRIL 2022 ISSUE 01
The Official Journal of ARQUITEKTURA

Editorial

The UAP journal has inherent opportunities as the official repository, publication and exhibition reading material for the creative expressions of Filipino architects in the Philippines and on the global stage. Taking lessons learned from the past and acknowledging that the technological and cultural advances have already altered editorial content, the UAP Journal will undergo a process of change and development-an evolution. The journal is evolving so that its content, brand, voice, and visuals can keep up with the contemporary times.

The evolved journal will have diverse contents from scholarly articles, to essays, project features and news. This varied content allows us to feature more architects and expand readership. This allows more architects to express themselves creatively thru writing and content creation making the journal more inclusive. The evolution continues with the introduction of three main sections of the journal, namely: Karunungan, Proyekto and Kultura. We hope that through these sections, more architects will be enticed to contribute content and expand the readership of the journal beyond the membership.

In this issue are 10 articles written and delivered by architects both in the country and abroad. For this first issue, our theme is on The Filipino Brand. This theme seeks to celebrate the distinctive Filipino design and touch that makes us unique, distinguishable, and globally competitive. We would like to thank all the contributors for sharing your insightful study, research, and projects.

We firmly believe that by evolving the UAP journal, we can express our architectural identity into new platforms. It allows acceptance and showcases the influence of contemporary times while not forgetting its roots and heritage. We enjoin everyone to welcome the evolution of the new journal and embrace its new identity as ARQUITEKTURA - The official journal of the United Architects of the Philippines .

We wish everyone an inspiring and rewarding reading.

Arquitektura Team

Foreword

The fast-paced lifestyle nowadays makes people rush every time and expect instant results. There are times that we need to sit back, relax, and update ourselves through media related to our profession. This does not entail work but more of inclusivity and information dissemination. As architects, we are creative and critical thinkers, we need continuous inspiration and information.

It is evident that we are one of the best architects in the world and we have proven this numerous times. Top architectural firms in the world would most likely include Filipino architects who are instrumental in creating architectural icons from concept-making down to its execution. We have established ourselves as a talented lot, globally competitive and very resilient with whatever challenges are thrown at us. This is what makes us different and distinguishable -- we can easily adapt yet still manage to excel. Let us break out from the stigma of being a backdoor platoon. It is time to step up as we are Filipino Architects who can show the world that we belong up there.

There are so many ways to keep people informed, entertained, and educated. The line of communication has evolved throughout the times, indeed, technology made information faster and people closer. “ARQUITEKTURA”, as the official journal of the United Architects of the Philippines is in line with the times but still very much grounded on tradition. The authors have ensured that the maiden issue will be focusing on us, the world-class Filipino architect, and our branding. This is one effective tool to showcase who we are, what we can do and how much we matter as architects in both our home country and overseas. We should all capitalize that we use all platforms to show everyone how unique, talented, and vital we are in nation building all across the globe.

We are Filipino Architects and “ARQUITEKTURA” is for all of us.

Ar. Armando Eugene C. De Guzman

UAP National President

Messages

Metamorphosis is a change of physical form, structure, or substance. Just like how a caterpillar evolves into a butterfly, this rebrand is a part of the evolution of the UAP journal to suit the ever-changing and growing industry. I am delighted and honored to be part of the first issue of Arquitektura and be able to congratulate the team behind this project. Envisioned to capture all segments of the market, this journal is no longer just for local consumption; it shall now be a globally-recognized architectural journal that is filled with the Filipino brand and culture.

With this new audience, we hope to present astonishing projects, articles and the like by professionals in the architecture field. Again, congratulations to the entire editorial staff and to the contributors that made this rebrand possible. I am looking forward to holding a copy of the first issue of Arquitektura during the upcoming 47th UAP national convention.

Ar. Richard M. Garcia, FUAP, AA, PALA, PIEP

Warmest congratulations to the team that brought this year’s UAP Journal uniquely branded as Arquitektura, being the symbol and the face of our organization’s scholarly and creative works in the global front. The Professional Development Commission has successfully gone leaps and bounds in its effort to showcase to the members and to the general public a topnotch product that promotes that distinctive Filipino brand in the design arena.

We have barely explored the realm of the 21st Century and producing a material that ushers us into understanding its cross-border elements and how Filipinos can exhibit their artistry and global products is truly something that we as architects must be very proud of.

Let Arquitektura cascade to us new and interesting insights on Filipino Architecture and let it also learn from us as we contribute to the call for world-class outputs that are feature-worthy and deserving to land on the pages of this journal.

Again, my hats off to the team and may you be able to sustain this victory for our organization and for our profession. Let this product continue to spread the good news about our very own Filipino architecture. Mabuhay kayo at mabuhay ang mga Arkitektong Filipino!

Ar. Jonathan V. Manalad, PhD., UAP, PIEP

Paglulunan

Gerard Lico

An exploration of the forces that led to the continuous development of Philippine Architecture.

C OBeyond Grit

Bryll Edison Par

Envisioning resilient, comfortable and secured walkable facilities and infrastructure in highly urbanized areas.

Poblacion

Allan Silvestre

Incorporating the rich history and traditions of Mindanao into a modern and contemporary interpretation of the Taboan.

Rizal Coliseum

Gerard Lico

Signalling the rebirth to one of the nation’s enduring symbols.

The House of Healing

Louie Vito

Exploring concepts on spaces that heal.

N Issue 01 Arq qui tek tura
Proyekto
1 8 12 16 5
Karunungan

20

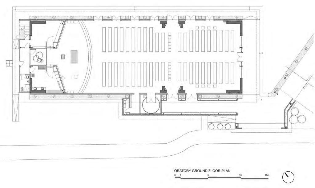
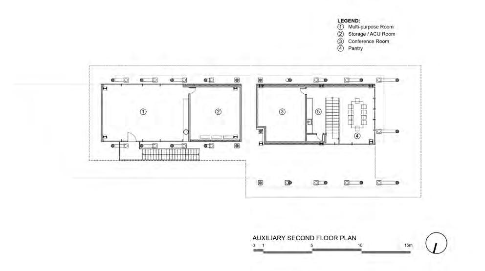
Cor Jesu Oratory

Justine Eduave

Embracing uniqueness and the diversity of the Filipino in a modern place of worship.

24

Gloryrose Dy-Metilla

N T T

Gianfranco Galagar

Exploring the role of today’s architects in public architecture. K-Farm

ERetelling memories through Mindanao Architecture. Municipal Halls of BARMM 28 32 34

Kultura

CDO Heritage Zones

Aimeelou Jean Demetrio

Insights on Kagay-anon culture, heritage, and historical identity.

Kawayan Journey

Anthony Sarmiento, Jed Michael de Guzman

Architect Jed Michael de Guzman’s kawayan journey.

Contributors

Aimeelou is a Cagayan de Oro city-based architect and an active officer of UAP CDO Bay Area Chapter. Coming from a family affiliated with the Philippine Culture and Local History in Mindanao, she has interests in history, anthropology, performing arts, graphic design, and illustration. Stumbling on a German version of Tadao Ando’s book of sketches sparked her love for architecture. Since then, she continues to gain experience exploring and learning more about design and other operations within the field of architecture. In her senior year, she was awarded Best Thesis in the Architecture Department for her undergraduate thesis, Visage of the Lumad: Proposed Northern Mindanao Lumad Heritage Center. In 2013, she graduated from Mindanao University of Science and Technology (MUST) with a Bachelor of Science in Architecture degree. Before becoming a registered and licensed Architect in January 2016, she was an apprentice to Ar. Edwin Uy and Ar. Jonathan Sogoc. She was a freelance architect for many years before becoming a College Instructor for the University of Science and Technology of Southern Philippines (USTP) in Cagayan de Oro City under the College of Engineering and Architecture (CEA). She is currently the Cluster Head for the History and Theory of Architecture subjects in the Department of Architecture for the Undergraduate Program Bachelor of Science in Architecture.

Allan Silvestre

Allan is the Project Architect of Poblacion Market Central. He joined PCTAN Architects and Associates in 2012 as an intern. At 22 years old, he gained his professional license that elevated him to Junior Architect. He is also a corporate member of the United Architects of the Philippines – Davao Alpha, as well as the Philippine Institute of Architects

– Davao Section. Currently, he is one of the company’s Associate Architects.

Outside of his project work, Allan is a homebody who loves reading books, doing handicrafts and a certified plant lover.

Anthony Demin Sarmiento, is a graduate of Architecture at Mapua Institute of Technology, and is having his graduate school in Urban Design at the University of Santo Tomas – Graduate School. He also studied at Bamboo U, Bali, Indonesia a university specializing in Bamboo Design and Construction. Ar. Sarmiento is a registered and licensed Architect, Environmental Planner and Master Plumber. He is an active officer of the United Architects of the Philippines and a member of the Philippine Institute of Environmental Planners, he also holds an International Associate membership at the American Institute of Architects. He had worked with the architectural office of Arch. William V. Coscolluela and Ar. Felino Palafox Jr. who has been his mentors. At present he is the principal architect of Genius Loci Architects, an architecture and parametric design consultancy firm. Also, he is passionate about architecture education and research as he currently teaches at the National University College of Architecture. He also speaks Deutsch (German) and Nihongo (Japanese). He is a professional watercolor artist and a violinist. Bryll is a licensed Architect, Master Plumber, and a qualified Safety Officer. He is a member of the United Architects of the Philippines Manila Centrum Chapter and currently an architectural private practitioner, and a parttime professor at the National University – Baliwag campus. He obtained his bachelor’s degree at National University-Manila in 2016 and became a design architect at one of the premier architectural

firms in the Philippines, Archion Architects. After leaving Archion in 2020, he joined the government workforce as an architectural design consultant for the governor of Marinduque, where he was exposed to different public officials in the province and provided architectural advice and solutions to selected projects. He is currently pursuing his master’s degree at the University of the Philippines-Diliman to expand his knowledge so that he can share his learnings to new generations of Architects.

Justine

Justine is an architect who hails from Cebu Institute of Technology-University. She is part of Zubu Design Associates where she handled the Cor Jesu Oratory project. As part of the team handling Cor Jesu Oratory during the contract documentation of the interiors and construction supervision phase, she is proud to have worked with and collaborated with the other designers, contractors, and suppliers throughout the project. For Justine, it was a humbling experience to have been part of the collaboration team to design, plan, and execute the structure up to its inauguration day and even during post-construction.

Trained in Bali under Elora Hardy and BambooU, he extends his passion and knowledge of Bamboo to support his advocacy of a sustainable Philippines. He believes that by spreading what he learned means that giving the Filipinos to thrive in more ways than one. He shows how diverse Bamboo can be in terms of design, while demonstrating how to care for it and get to know its properties so we may be able to utilize all its strength while overcoming obstacles that may come with working with it. His holistic approach to training allows for participants to fully understand the scope of the Bamboo, while his love for it and our nation fuels passion and eagerness to learn.

Aimeelou Jean Demetrio Anthony Sarmiento Bryll Edison Par Jed de Guzman Eduave

Contributors

Gerard Lico is a Professor and Director of the Research Office at the College of Architecture, University of the Philippines Diliman. He practices architecture as a heritage conservation professional and designer of institutional buildings. He is a prolific author of publications on Filipino architecture and cultural studies, curator of architectural exhibitions, and director of documentaries on Philippine architecture.

He has been involved in the conservation of landmarks such as the Manila Metropolitan Theater, the Rizal Memorial Coliseum, and the core buildings of the University of the Philippines campus in Diliman. He also served as a consultant of conservation planning initiatives for other local and national heritage sites across the country. Apart from presently serving as Consulting Architect for the City of Valenzuela, he heads a multidisciplinary, research-oriented design consultancy practice.

Gianfranco Galagar

Gianfranco Galagar is a UAP architect who has been working in Hong Kong for the past four years and has worked in various offices on projects with a focus on social agenda. His twoyear involvement with Avoid Obvious Architects provided him experience for a more bottom-up approach to the practice. He was part of the team that designed K-Farm, a public urban farming educational and wellness park that won the American Institute of Architects Urban Design Honor Award and Sustainability Award. He was also involved in the writing of Adventures in Architecture for Kids, a book that introduces architecture and design thinking

to children through design exercises in the hopes that these future generations will lead the future with a designer’s mindset. Currently, he works at Domat Community and Architecture, a not-for-profit practice which aims to work with people who cannot usually afford architectural services.

and Urban and Cultural Heritage. The firm is currently working on the Department of Tourism Region XI Cultural Complex and Bangsamoro Ministry of Interior and Local Government Infrastructure Projects and international projects.

Apart from being an architect, she is also the Editor in Chief of Filipina Architect Resource Magazine, an online magazine she created during the pandemic.

Rose is an architect and the Director of Swito Architectural Designs and BalayBalay3D Architecture. She is a product of University of the Philippines Mindanao – BS Architecture in 2009 wherein she garnered the Best Thesis Award and shortly after she won the Red Point National Thesis Award, an award given to exemplary undergraduate Architecture thesis in the Philippines. In 2018, she finished the Design Summerschool from the College of Architecture and Urban Planning in Tongji University, Shanghai, China, and then her Masters in Urban and Cultural Heritage from the Melbourne School of Design, University of Melbourne, Australia with an Australia Awards Scholarship. Currently finishing her Doctor of Philosophy in Management at the University of Mindanao.

She has been a United Architects of the Philippines North Davao Chapter President 2015 - 2016, Balangkasan Chair for Area D in 2016, and Editor of Area D Committee of UAP Journal under the Commission on Professional Development 2019 -2020 and a member of the International Council on Monuments and Sites or ICOMOS.

Currently, she is the founding partner of Swito Designs Architects. A studio is focused on Cultural Sensitivity in Design

Louie Nandro M. Vito is a Filipino Architect from San Mateo Rizal, Artist, Educator and a community Architect with specialization in Wellbeing Architecture by designing holistic approaches for the people who really matter most. He also specializes in Creatives and in handling corporate Events.

He has experience working in various Local and international companies for more than a decade and doing community service as a Consulting Architect for some Local Government Units in Luzon.

He is an active member of Rotary Club San Mateo Central, National Real Estate Association of the Philippines and United Architects of the Philippines, and became the President for UAP QC Elliptical Chapter in the year 2012 as the young President of the record.

A faculty instructor at Central Colleges of the Philippines for a year and for National University Manila for almost Nine Years and a pioneer for National University Fairview for two years.

Gloryrose Dy-Metilla Gerard Lico Louie Vito
Arkitekturang Pilipino: A History of Architecture and the Built Environment in the Philippines is a two-volume work outlining a transdisciplinary approach to the development of the Philippine Built Environment. The book covers the history of Filipino architecture from early history to the contemporary built environment and shows a rich visual narrative of Filipino architecture through time. The book also highlights the development of the Philippine architectural profession, and the field of heritage conservation in the Philippines.

The development of Arkitekturang Pilipino Paglulunan:

The search for Arkitekturang Pilipino has been a quest undertaken time and again by many architects of generations past and present. It has boggled the minds of both practitioners and scholars, each quest in search of singular typological examples. Many posit that the quintessential Filipino architecture may be seen in the bahay kubo, or the bahay na bato of yore. But even these examples fail to fully encapsulate the complexities of the Filipino spatial experience as it was and has become. Moreover, the multi-faceted experience of an archipelagic nation, which has witnessed the arrival of many influences, betray a development that may be better appreciated beyond a distillation into one or two building types and spaces. Rather, it would be better seen as spaces in relation to the forces that have shaped them, allowing us to see not only spaces, but places.

After all, architecture goes beyond merely demarcating and creating spaces. It is a practice of paglulunan or placemaking—where raw spaces are inhabited by people and imbued with meanings and memories. Architecture thus becomes artifacts that encapsulate the spirit, values, and sensibilities of the people that produced them.

Architecture can be a mirror into the lives and contexts of ages past; and with an understanding of these, we can better know the built environment, its ethos, and the people who inform its being. Upon gaining this true essence of Arkitekturang Pilipino, we may learn and better participate in the process of placemaking, and from there, preserve Filipino places for the future to inherit.

The vernacular sensibilities are carried on to life in other conditions such as in mountain dwellings, as seen in the Ifugao fale, which uses wooden boards for its walls and floors to allow for better heat retention during cold weather, as opposed to lowland dwellings made of thatch or woven bamboo, which provide a climatic permeability; ideal for warm, humid conditions.

Architecture as a Response

Architecture began as a response to nature. Man needed to shelter oneself and to provide a suitable venue for the activities of the day, giving rise to creative responses for addressing spatial requirements. Our Austronesian lineage imparted a primeval affinity towards the water—and the communal nature of maritime life. This in turn informed the development of our vernacular architecture, which gives premium to multi-functional, shared spaces.

Man’s first experience of architecture was with crafting ways to shield themselves from harsh environmental conditions. In the Philippines, early inhabitants made homes out of caves and crafted ephemeral lean-tos for use when out foraging or hunting. Later, the development of communities across the country gravitated towards living near bodies of water, which afforded better access to basic needs for survival and the development of agricultural methods allowed for food security and drove people to go search for more fertile lands, wherever they may be. Water travel developed and became a means upon which communities grouped and orchestrated themselves, developing a culture around the barangays which bore them to new lands. The rigors of maritime travel created a system of communal living which secured and sustained the boat communities and was later carried on to life back on dry land. The early barangganic societies became the basis for social arrangements and dictated how space would be allotted among people.

Our notions of vernacular architecture find their roots here; the affinity for shared spaces used for many functions. The multi-use space of the bahay kubo and other houses on stilts across the archipelago developed uniquely according to the necessities and constraints (ecological or otherwise) of their specific cultural communities and locales. The archipelagic nature of the country, coupled with its almost inhospitable conditions of raging typhoons, humid days, and constant earthquakes mean that the country’s architecture must be able to respond to these adverse conditions. Vernacular architecture is built on the ability to intuitively harness one’s surroundings to create spaces. Hence, while similar in essence, Philippine vernacular architecture exhibits different materialities and morphologies. The introduction of Islam and Muslim culture into the islands contributed

Philippine vernacular architecture’s sensibilities stem from Austronesian maritime living—being in close proximity to the water or residing on boats with communal arrangements. This in turn created an affinity for shared, multi-use spaces for the conduct of everyday activities. The Spanish colonial condition introduced notions of urban life within the cuadricula, and the vernacular houses evolved into the arquitectura mestiza or hybrid architecture of the bahay na bato. The shift in the cultural and economic environment of Filipinos is enacted in the encounter of colonial control and native ingenuity in architecture.

Architecture and the Colonial Encounter

to a unique development of vernacular architecture. It created places infused with Islamic sensibilities and informed by the rigors of a maritime Muslim culture, assimilating with the local cultural and spatial structures that have been established prior to its arrival in certain areas.

Morong Church, Rizal. Grand churches developed a local flair through the meeting of the friar’s fleeting memories of European and Mesoamerican churches, and the talents and capabilities of local artisans. Coupled with a uniquely volatile environment in the path of earthquakes and typhoons, the earthquake baroque churches emerged.

The colonial encounter, beginning with Spain in the 16th to 19th century, and later with America in the 20th century, brought sweeping, if not severe changes to the Philippine cultural landscape. To an extent, the colonial encounter gave birth to the idea of a Filipino nation—the various archipelagic polities forged into one political body under Hispanic, then American rule. In the process, the notions of nationhood would emerge among the local population, as they begin to recognize and form an identity which may only be realized with independence.

The arrival of colonists to the country introduced a new spatial order—characterized by a dynamic built on domination, segregation, and control. This was enforced through rigid social hierarchies along racial lines, the assertion of cultural superiority, and later, the imposition of an encompassing techno-scientific agenda to regulate colonial bodies. Even in this case however, the process of resistance and counter-cultural interactions betray the fact that the Filipino is no mere recipient, but an active player in shaping its identity and places.

Hispanic towns and cities were dominated by the cuadricula or grid street system, which allowed for colonial administration to be meted with military efficiency. The intense environmental conditions of the country forced colonial architecture to adapt, taking on the essential vernacular architecture and reinterpreting it with local materiality. Thus, the quintessential Filipino-Hispanic bahay na bato, at its core would be a wooden house on stilts dressed with a veneer of stone at its base. The strictly regimented spaces of

Paglulunan

Paglulunan

Western residential architecture are appropriated for the social order of the local population. While bearing many rooms, the Filipino-Hispanic residential archetype (which also defined the institutional and commercial archetypes of the period) would be composed of multiple shared spaces, defined by their relative permeability shrouded with Spanish and European finery. Colonial church design gave way to sprawling and buttressed development over soaring architectural forms. Churches were contrived from vague memories of Hispanic examples, reinterpreted with the variety of Chinese and other Southeast Asian influences that converged in the Philippines. The baroque architectural sensibility boded well with Filipino tastes, creating earthquake baroque architecture. Even the introduction of technological feats such as steel and concrete construction, for example, were meant as a response to the unique conditions of the country.

A short-lived Independence was achieved from Spanish rule, to be eclipsed by the arrival of American forces. The American colonial encounter would be remarkable for the use of techno-science to control Filipinos within spaces, enforcing medical interventions on the unfit, native bodies. Moreover, the technological advancement of the period and the American imperialist agenda were garbed with the veneers of neoclassicism. The exercise created buildings which are imbued with the legitimacy of classical antiquity—expressed in ferroconcrete— to project a democratic lineage which the colonial authority wished to impart on the native population as an act of altruism.

Among the requisites of a sustainable, independent nation was the greater inclusion of capable and competent Filipinos in the colonial bureaucracy.

Laguna Provincial Capitol, Sta. Cruz, Laguna. American colonial authority was exercised through state architecture built in the image of imperial classicism. Through mission revival and neoclassical architecture, the colonial government enforced its power across the archipelago. Eventually, this would be subverted by the pensionado architects with the introduction of Filipino elements in their own designs of state buildings. Crystal Arcade, Escolta, Manila. Art deco became an outlet for Filipino architects to incorporate local imagery more apparently into their designs. As the nation grew closer to independence, the built environment was changed into an image of decadence and hope for the future.

Department of Agriculture, Diliman, Quezon City. Post-war architecture was characterized by modernism, which architects used as a means to break away from the vestiges of the colonial past. The clean lines and bold geometry of modernism was infused with design elements that adapted the international style to the local tropical environment—and afforded the inclusion of unique designs such as carabao-head brise soleil or sunbreakers.

Specifically in the Bureau of Public Works, the return of the pensionado architects who were trained in the United States and Europe, demonstrated the cultural sophistication that signified the Filipino’s readiness for independence and acceptance into the family of nations. The inclusion of native architects in the state building program coincided as well with the rise of art deco and greater economic prosperity, bringing significant changes to the lifestyles of Filipinos. Art deco became a manner for local architects to better explore the nation’s architectural character, allowing a generation of Filipino architects to express their local identity in anticipation of independence.

The intersections of local vernacular knowledge and experiences produced a unique, creative response to the colonial encounter. Jubilation over impending emancipation was overshadowed by the clouds of war, which brought widespread destruction to the country, destroying the work of many generations. Though many aspects of the nation’s architectural heritage were lost in the war, the promise of independence generated a renewed sense of hope. As the Philippines rose from the ashes, the world now welcomed a new and independent Filipino nation.

Architecture as Self-Actualization

Now an independent nation amongst other sovereign states, the Philippines needed to assert itself on the international stage, while reeling from wartime destruction. Modernism provided a welcome way to address the growing need for functional and lyrical spaces devoid of colonial associations. While homogeneity was the ultimate form of modern architecture, the concurrent need to assert one’s individuality and identity in architecture was a primary goal of the post-war years. Through modernism, local architects asserted and explored notions of Filipino identity in the built environment, adapting the international style to the tropical environment of the country.

Stylistic explorations ranged from the literal to the poetic interpretations of local design sense in the built form. For many, the dictum of “form follows function” that characterized modernism yielded spaces that were spartan within but outwardly unique and at times unconventional, through the use of tropical sun-shading devices such as brise soleil, pierced screens, and deep overhanging eaves. The best examples of Filipino modernist spaces are delicately balanced form and function—aesthetics, practicality, and economics. Often however, many other examples across the archipelago ended up with structural functionality becoming the paramount concern, leaving aesthetic merit behind.

Modernism’s potential for expressing Filipino identity found great opportunities in state architecture. The wave of government constructions needed for housing the expanding state services and functions provided a welcome recipient for direct interpretations of Filipino architectural forms. Perhaps, the largest examples of these may be found throughout the post-war and Marcos eras, defining the local architectural milieu. Nativist tendencies in architecture were further intensified with the state-sponsored architectural agenda under the Bagong Lipunan program of the authoritarian regime. Modernism’s limits as a tool for expressing individuality and forward-thinking were tested in this period, resulting in various edifices to serve the caprices of the regime. Cracks began to appear in the machinery of the regime, owing to the various abuses and atrocities it has committed, ultimately causing its downfall. Likewise, the homogenizing tendencies of modernism became more apparent; thus a new stylistic development emerged to better express and appreciate local identity. A return of appreciation for ornament and interest in historical references drove a romantic way forward for Filipino architecture. Thus, the singularity of modernism gave way to the plural expressions of postmodernism.

Postmodern exploration persists in contemporary urban scenography. The wealth of historical references and architectural possibilities offer a wide trove from which notions of Filipino architecture may be better defined, given emphasis, informed, and built upon. An appraisal of the contributions of the past to the current possibilities and realities of Philippine architecture must be staked, so that the process of placemaking may continue to flourish more meaningfully.

Accompanying a contemporary wave of architectural nostalgia, the recognition of our shared heritage becomes a matter of interest. The process of heritage conservation is a negotiation of narratives among various stakeholders. It is a process of navigating tangible layers of history and intangible values of a building to distill which elements matter to the people, and which facets they wish to conserve and pass on to the next generations. Heritage builds on the architectural pedigree of a place, which serves as a springboard from which we can assert, reify, and cherish our shared identity and cultural memory.

Heritage conservation, more than the preservation of the tangible remains of the past, is a preservation of the knowledge and sensibilities that have long informed the creation of the Philippine built environment. As Filipino architects, we are now called to create buildings which preserve, build on, and propel Philippine architectural identity to new grounds.

San Miguel Headquarters, Mandaluyong, Metro Manila. With the pitfalls of modern architecture becoming apparent, architects ventured into creating works with romanticized influences, references to the past, and sustainability in mind.

Mactan International Airport Terminal 2, Mactan, Cebu. Contemporary architecture continues to explore the notions of Filipino identity in placemaking, informed by the developments in the local context and its interface with global movements.

Arkitekturang Pilipino

Buildings and places are historical records that reveal the creative responses of individuals and society towards nature, technological advances, and power structures. Architecture is no silent witness to the push and pull of history. It is an accomplice to the development and demise of peoples through time. Its accounts wait to be heard and understood by those willing to listen to the unraveling tale within. Thus, as a product of human genius and even folly, the built environment is never neutral. Understanding the complexities that informed—and continue to shape—the development of the built environment would allow us to learn from the past; and take Philippine Architecture to new possibilities and potentialities today and in the future.

Philippine architecture is richly multifaceted, just as the Filipino nation as a whole is a wealth of diverse cultural, historical, and geographic influences. Due to its geographic location and archipelagic permeability, the Philippines has been a locus of exchange and cross-cultural encounter, producing a multitude of architectural expressions.

As a tangible intersection of various influences, the Philippine built environment has developed its own unique architectural response to the forces of nature, societal movements, and cultural constructs. Thus, to ask if Filipino architecture does exist is moot; rather, the question should be how it came to be. The same applies to the search for a singular Filipino cultural identity devoid of external stimuli. Development is a product of a long and arduous process of encounter, assimilation, and response with various forces at play: fueling the enrichment of knowledge and sensibilities, which in turn inform the built environment.

Thus, we must take a critical look at these different forces that have driven, and continue to drive, the development of Filipino architecture and the built environment. It is through an appraisal of the circumstances—socio-cultural, political, natural, even personal—vis-a-vis our spaces and places, that we get to better appreciate how our built environment, with its rich plurality, has come to be. After which, we may be able to share it with the next generations.

In 2020, at the ons et of the pandemic, the UAP Area B put forward the call for architects to be creative problem-solvers in society through its Assembly. Although it was often said that Filipinos were resilient, we rather believed that on our side was GRIT or “tapang ng loob”, which is how we have kept going despite disasters. To be resilient however means to have a vision to bounce back and not merely survive.

Words are cheap, and there is a need to take action after the jam-packed assembly program, from the speakers to their topics. This was how the Beyond Grit national conceptual competition was launched. To prepare for it, a collaboration was further created with the UP Resilience Institute by the setting up of a series of workshops wherein we learned more about design thinking and participatory design as well as the problem tree analysis and the allied topics.

As a result, thirty signed up to join the competition, of which 7 have been finalists. The first prize was awarded to Bryll Edison Par, a member of the United Architects of the Philippines Manila Centrum Chapter and currently an architectural private practitioner, a part-time professor at the National University – Baliwag campus, and a student at the Integrated Graduate Program (Master of Architecture – Urban Design Studio Lab) of the University of the Philippines – Diliman. He proposed the “Urban Link”, which is a mobility design intervention for commuters. Residing in the city allowed Ar. Par to experience the limited provision for comfortable and secured walkable facilities and infrastructure which he surmised stunted the economic growth, produced automobile dependency and an offshoot of problems like pollution and discomfort for the majority of city residents

BEYOND GRIT COMPETITION WINNER

Urban Link

Featuring Skywalk, the Pedestrian Centric Counterpart of the Skyway

One of the problems in Metro Manila is traffic congestion, prominent in main avenues and roads in the city. The dependency of people on automobiles has existed since the past centuries with wide road networks developed to help the mobility of the trade of resources for commerce, and at the same time to give comfort to the travel of different status groups. As time went by, more vehicles were manufactured for the growing urban need that adopts this system leading to traffic congestion and chained problems like air and noise pollution. In this case, more road networks got constructed, even though there were very few plans and developments addressing the shortage of pedestrian-friendly infrastructures. The main problem with Metro Manila is the imbalance between vehicle-oriented road networks and pedestrian-friendly walkways. People choose to use private vehicles and public transport because of safety, security, and comfort. It also serves as a status symbol discriminatory to the majority who can’t afford to own cars and other private vehicles.

Eliminating the problem of pedestrians, solving traffic congestion, addressing pollution and climate change, promoting renewable energy, and providing disaster-resilient infrastructure are the key points considered in conceptualizing Urban Link. Urban link is an ambitious design solution for the modern generation of road networks, public transport systems, and pedestrian infrastructure design. It allows people to have the freedom to choose from waiting in long lines in public transport terminals (e.g., MRT, LRT, UV Express services, and Busses) or avoid the depressing traffic-congested road networks.

The big challenge with the conceptualization of Urban Link is the lack of available areas for pedestrian infrastructure development at the ground level. Road networks and sidewalks for pedestrian access in Metro Manila were already permanent. Another challenge in the crafting stage of the design is the flooding in most areas in the city, disabling pedestrian capability to pass during disasters. In addition, safety, security, comfort, and ambiance were concerns in the current condition of pedestrian infrastructures. They are the reason why people choose automobiles and public transport over walking.

The design of the Urban Link revolves around one of the United Nation’s sustainable development goals (SDGs). Industry, innovation, and infrastructure were the driving force of urban growth. Most of the time, we forget that the cause of urban development is the people. We must prioritize them in all our design of infrastructures and incorporate innovative solutions that will give people the power to maximize their full potential and expand the capability of the industry to grow and evolve. Urban Link features Skywalk or the pedestrian-centric counterpart of the Skyway project of the government. The Skywalk is strategically located on top of the MRT and LRT lines and stations with a fully air-conditioned facility, using renewable energy through kinetic tiles or power generated from footsteps. Through this, people can choose from waiting in long lines in public transport stations and the freedom to walk safely in an area equipped with a full-blown security system (e.g., CCTV Camera). Elevating the walkway also addresses the accessibility problem during a typhoon with flooding on the ground level. Several accessory concepts were also included such as the use of green walls, affirmation walls for mental health and positive mindset, and reverse vending machines in all station entrances and exits to give people the ability to get paid from returning and recycling their plastic bottles and caps.

Urban Link

The Skywalk is composed of four main parts. First is the Main Concourse or the entry and exit point of the system. Second is the Urban orchard with vegetations increasing the fresh feel in the area and promoting the plant exchange concept where people can take plants in exchange for another. The third is the museum part with murals explaining history and culture. Last is the Backdrop City or the marketing arm of the Urban Link beside the digital billboards at its exterior, located at concourses of stations of central business districts and high-end shopping malls that aim to attract bloggers and photographers alike to use the facility with provided backdrops done by well-known and new artists. Through social media hashtags and location tags, the Urban Link will reach a wider audience. The Skywalk connects all parts of Metro Manila through a pedestrian system that promotes inclusivity and true resiliency.

Rizal Revival

Inside the Restoration and Rehabilitation of the Rizal Memorial Coliseum

The fate of the Rizal Memorial Sports Complex almost ended tragically in 2016 if not for the vigilance of heritage groups. Nearly destined to face the wrecking ball, the Complex faced the threat of destruction in 2016 when the Local Government of Manila, which owns the property, expressed their interest in transforming the property into a mixed-use development through a partnership with a private company. Through public consultations and stakeholder discussions, the Philippine Sports Commission (PSC), which operates the sprawling sports complex, decided against the sale of the property. The continued existence of the complex was assured in April 2017, when the National Museum of the Philippines and the National Historical Commission of the Philippines jointly declared the Rizal Memorial Sports Complex as a National Historical Landmark and Important Cultural Property, recognizing the significance of the sports complex in the history and heritage of the country. This declaration was secured through the efforts of multisectoral advocacy groups, who lobbied against the property’s sale and conducted the necessary research and documentation to support their cause. Today, the Rizal Memorial Coliseum stands proudly as the product of multi-sectoral efforts to conserve our built heritage.

A Postcard photo of the Rizal Memorial Coliseum, formerly the Rizal Memorial Tennis Stadium which opened in 1940.

Rizal Memorial Coliseum

How we got here

The Rizal Memorial Sports Complex was envisioned to fill Manila’s need for a national sporting venue described as “an imposing structure which shall be known the world over for its beauty, its size, and its practical utility”. (R.N. Perley, 1918, 357-58)

Inspired by the prestige of the Osaka City Municipal Playground, which was built to host the 1923 Far Eastern Championship Games, Filipinos were set to embark on building their own. A Playground and Recreation Commission was formed, tasked to “further the cause of athletics in the Philippines”. First among the recommendations of the Commission was “to provide an athletic stadium for Manila to be used as a public playground and athletic field capable of seating 30,000 people.” (Macaraig 1929, 367) This launched the movement to construct a “great national playground to be named Rizal Stadium.” (Laubach 1925, 389) Rizal was a leading figure during the struggle against Spanish colonialism and advocated modernization and Western education.

Designed by Juan Arellano, then Consulting Architect of the Bureau of Public Works, and sitting member of the commission, the plans called for a stadium with a seating capacity of 30,000 at the cost of one million pesos.

Initially slated for completion in time for the 7th Far Eastern Championship Games scheduled in May 1925, the sports complex’s construction lagged due to a lack of funds. By 1927, the 400-meter track and field and two swimming pools were opened for public use. Work on the other structures in the complex dragged on. By 1934, the baseball, swimming, track-football

stadia were ready for use for Manila’s hosting of the 10th Far Eastern Championship Games. However, the coliseum was not finished in time and was completed in 1940.

The complex was designed in the Streamlined Art Deco style, taking cues from nautical and aeronautical forms, coupled with sparing use of geometric patterns executed in precast ornaments and grill works. First opened for public use in 1927, the Swimming Stadium or natatorium has a capacity of 4,000. It contains two swimming pools measuring 50 by 20 meters and another measuring 20 by 6 meters. The first one is used during competitions while the other is primarily for children. The Track-Football stadium has a 400-meter cinder running track and a soccer field. It is provided with a flood lightning system for night events and can seat 30,000 people. The Baseball Stadium has a seating capacity of 15,000 and is provided with an electrically operated concrete scoreboard. Finished in 1940, the Coliseum, originally known as the Tennis Stadium, had a capacity of 10,000 and is the only covered stadium in the Rizal Memorial Field. It contains a shell tennis court and a removable wooden platform for basketball, boxing, wrestling, volleyball, and other sports. It was provided with a boxing ring, Olympic wrestling platforms, glass-banked and steel-framed basketball goal standards, any of which facilities may be set up or dismantled in a few hours. The coliseum also boasted an electric scoreboard and timing device for boxing and basketball, skylights and electric lightning system for day and night events, and a ventilation system which reduces inside temperature and removes vitiated air through the use of large electric blowers.

The Rizal Coliseum before the conservation and rehabilitation, taken in 2019. A large freestanding concrete canopy built in the 1980’s shrouds the lobby in darkness The lobby—dark, decrepit, and drab. Notable are the rounded pylons with a peculiar cut-out shape. This was later found out through archival research to be cylindrical ornamental lamps.

Golden Era

In its pre-war heyday, the sports complex was host to a plethora of national and international sporting events. Beyond sports, other events of national importance that happened in the sports complex include the unification of the Nacionalista Party in 1934, the acceptance of Manuel Quezon and Sergio Osmeña as the respective Presidential and Vice-Presidential candidates of the same party for the 1935 elections, to name a few. In the years before the Second World War, the Sports Complex served as the premiere venue for the events of the PAAF, the National Collegiate Athletics Association (NCAA), the University Athletics Association of the Philippines (UAAP).

In the analysis of Stephan Huebner, the stadium was part of the visual politics of modernity under a colonial power structure, a demonstration of progress through the “blessing of Protestant American modernity.” He asserts that: “…the stadium visually underlined the transformation of the Philippines from a ‘backward’ country into a modern one. Filipino politicians reject colonialism but not Western civilization itself.” (Huebner 2016, 86)

Streamlining towards Independence

As the country was marching towards independence during the Commonwealth era, Arellano, in his design for the buildings of the Rizal Memorial Sports Complex, turned away from Neoclassicism—which was strongly associated with American colonial rule—and embraced the progressive language of deco streamlining. Streamlining was modernist in inclination, eliminating ornamental excesses to highlight the mechanistically smooth building skin and reverence to the machine. Stylistically and ideologically, the streamlining was an opportunity to distance himself from the classical tradition with the erasure of classical ornaments and simplification of form. In this way, the stylistic departure manifested his rejection of American colonialism with his bold move towards the streamlined aesthetics and rejection of American imperialism.

Battle for Manila and Post-Independence

The 1945 Battle for Liberation witnessed the massive decimation of Manila’s urban built heritage and the irreplaceable treasures of colonial architecture. The complex was part of the final stronghold of the Japanese Imperial Army. It was the site of a decisive

Gerard Rey Lico
The focus of the space was a blank wall featuring a painted-on sign. A pair of step-flood barriers or zocalo flanked the main stair, indicating that flooding was frequent at some point. The toilets and athlete’s locker facilities were badly in need of a makeover. It was paramount that this were to become a point of pride post-rehabilitation. Worn and weary, the arena space was cluttered with metal fencing—a crude form of crowd control. Plastic seating from the 1980’s were deteriorating. The original hardwood benches were surprisingly in good condition in most places, except where roof leaks occurred; rotting the wood. Lighting was illsuited to televised sports coverage. Even without crowds, the arena space was uncomfortably hot; owing to the lack of roof insulation and dysfunctional ventilation fans.

Rizal Memorial Coliseum

On the exterior, the color palette was carefully selected by revealing the layers of accretionary paint and archival research. A generous amount of exterior façade lighting highlighted and celebrated the building’s character-defining elements. Lines, planes, ornaments, and curves of the streamlined modern architecture were bathed in the warm glow of LED lights.

battle between the 12th and 5th cavalry divisions of the American troops weeding out the 2nd naval battalion of Japanese soldiers holding garrison in the concrete structures of the sports complex. As the war came to a bloody end in Intramuros, the sports complex’s concrete shell, sustaining heavy damage, barely survived. Despite the seemingly impossible task to resuscitate war-ravaged Manila, the city rose again, and the rehabilitation of the Rizal Memorial Sports Complex was akin to a phoenix rising from the ashes.

The Philippines became an independent republic in 1946. Amidst the reconstruction and return to normality, the country hosted the 1953 Philippines International Fair in Luneta, which heralded to the world the 500-year progress of the Philippines and its recovery from the war. Participated in by ten foreign countries, this served as a showcase of national spectacle where the Philippines presented itself as a progressive, democratic nation embracing modernity. Concurrently, the reconstruction of the Rizal Memorial Sports Complex was in full swing. This regenesis would give the site a new life and meaning -- taking on a different symbolic mantle. It was to be the bearer of Filipino resilience and post-war recovery.

The culmination of this display of post-war national self-actualization was the country’s hosting of the Second Asian Games in 1954. The event served as the successor to the Far Eastern Championship Games in advocating the Pan-Asian diplomatic relations through sports. While brewing tensions between the democratic and communist nations overshadowed the event, the 2nd Asian Games served as an opportunity for the Philippines to project itself as a new nation of the free world. The Philippines’ hosting of the 1954 Asian Games was the first big international sporting event that the new Republic would undertake in its post-colonial existence.

Owing to its unparalleled capacity as a collection of large venues, the Rizal Sports Complex was host to local, national, and international events. Annual collegiate sporting events of the NCAA and UAAP continued to be held here, along with the games of the Manila Industrial and Commercial Athletic Association (MICAA), which was the forerunner of today’s Philippine Basketball Association (PBA).

Other non-sporting events have also found a home in the Rizal Memorial Sports Complex. The Rizal Coliseum in particular, was the largest indoor venue of the period and was host to many local events and international shows, such as the concert

In the spirit of Art Deco opulence, the central lobby wall was clad in luxuriant cream-colored travertine, while the base was clad in Rojo Cebuano Philippine marble. Together, they resonated with the original red terrazzo floor, which had a reddish concrete base with cream marble chip inlay.

of Jose Iturbi, exhibition bout of Rocky Marciano, the Holiday on Ice which was an ice-skating performance that premiered on April 29, 1955, and was a charity benefit for the Anti T.B. Society and Boys Town. Numerous other commencement exercises such as those of the Philippine Women’s University and the College of Physical Education, as well as various benefit performances were held at the Coliseum throughout the 1950s.

Rizal Memorial Sports Complex, especially the Rizal Coliseum’s preeminence as the multipurpose venue of Manila and its neighboring towns was unchallenged in subsequent years as it was perhaps the only indoor venue sizeable enough to accommodate a large audience, until the creation of other venues outside the city of Manila, such as the Loyola Center, now known as the Blue Eagle Gym, which opened in 1949, and the Araneta Coliseum which was inaugurated in 1959, both in Quezon City. One of the last major events before its steady decline into the 1970s, was the concert of The Beatles in 1966, which had an audience turnout of 80,000, one of the largest for the band’s concerts.

The Southeast Asian Games (SEA Games), regional counterpart to the Asian Games, paved the way for the Rizal Memorial Sports Complex to again return to the fore with the Philippines’ hosting of the 11th installment of the Games in 1981, and the subsequent hostings of the 16th SEA Games in 1991, and the 23rd SEA Games in 2005, and its counterpart 2005 ASEAN Para Games. As the de facto national stadium, Rizal Memorial Sports Complex had been the go-to venue for the hosting of international sporting events, but it was proving more and more inadequate, as was apparent in the opening and closing ceremonies of the 2005 SEA Games being held at the Quirino Grandstand in Luneta instead. In the years between hostings, the sports complex served as the training grounds for the national athletic teams who represent the country in international sporting events. The prominent games of its original collegiate and professional league residents have since transferred to the newer, better maintained, and far more adequate venues.

Decline and Revival Rehabilitation

Recognizing the 2017 declarations of the National Museum and the National Historical Commission of the Philippines, in April 2019, the Philippine Amusement and Gaming Corporation (PAGCOR) remitted Php 842.5 million to the PSC

Inside the arena, workers carry sections of the air-condition ducting. The obstructive metal fencing was removed, while new art deco gates were installed. The original upper-tier bench seats were restored, while the lower-tier plastic seats were replaced with newer, more comfortable seating. All exterior windows were replaced, while lighting fixtures introduced light to the interior.

Gerard Rey Lico
Engineers test the custom-fabricated lighting fixture which was to be installed at the lobby piers.

Rizal Memorial Coliseum

for the rehabilitation its facilities for the SEA Games, including 250 million earmarked for the Rizal Memorial Coliseum. This allowed for a much-needed comprehensive rehabilitation of the coliseum, including the installation of a centralized air conditioning system, the installation of new stadium seating, and the total refurbishment of toilet and locker facilities, among others. The author, owing to his prior experience with the works of Juan Arellano, was commissioned as consulting architect for the rehabilitation of the Rizal Memorial Coliseum in the early half of 2019. For the reader to visualize the extent of the building’s deterioration, the building’s condition will be discussed.

Dilapidation

Not having undergone a comprehensive renovation since 1954, the Coliseum had deteriorated into a shadow of its former self. The roof was leaking in places, bleachers were rotting; the walls revealed multiple layers of peeling paint. Once ventilated by large machine blowers, these have since broken down; exhaust fans gathering dust. Over the years, minor modifications have been made—wooden mezzanine floors in some rooms added for office space, makeshift partitions, spectator wire fences, concrete flood barriers, and a large, freestanding concrete canopy fronting the façade. The piecemeal changes and haphazard repairs slowly disfigured the iconic art deco character of the building. Over decades of its use as a sporting facility, its poor maintenance resulted in its slow deterioration: with its outdated facilities, dimly lit interiors, and poor ventilation.

Approach to Conservation

With its historico-social context and significance in mind, the interventions were specifically laid-out to highlight the character defining elements of the building and ensure the integrity of the structure. The objective of the rehabilitation was two-fold: first, to upgrade the existing facilities to suit the needs of modern sporting events; and second, to restore the heritage value of the building by returning it to its streamlined deco roots. This entailed comprehensive research on the history and significance of the complex, color studies, defects analysis, and a careful study on the effects of the proposed interventions. Some interventions required a cautious approach, such as the boring of holes in the slab for ducting; and the partial removal of a section of bleachers to make way for a service entrance to the arena.

A FIBA-compliant lighting system was installed at the arena floor to allow for international television coverage of live sporting events. The arena floor served as staging area for various equipment, supplies, and stockpiles during construction. Retractable seating (red seats) were installed to increase capacity while allowing for flexibility. Tubular air-condition ducting was installed—echoing the machine aesthetics of the streamlined modern architecture.

The 30th SEA Games

In addition to the challenges of rehabilitation, the Philippine Sports Commission designated the Rizal Memorial Coliseum as one of the venues for the 30th Southeast Asian Games slated to open on November 30, 2019. This condensed the rehabilitation time frame from an ideal 12 months, down to four months. Key components and materials had to be sourced from local, readily available suppliers. Imported materials, such as the air-conditioning system had to have a guarantee for timely delivery from their suppliers. Towards the end of the third month, over 400 workers were on-site, working 24/7 in three shifts.

In July 2019, to engage the public in the process of rehabilitation, a fence exhibit was launched along the board-up fence of the site while rehabilitation works were on-going. The exhibit featured archival photographs of the Rizal Memorial Sports Complex, a timeline of its history, and a brief bi-lingual introduction to the complex’s origins and significance. This exhibit was intended to re-introduce the public to the building, generate anticipation for the rehabilitation, and to place government heritage conservation efforts into the public consciousness.

First things, first

As the rehabilitation commenced, the first priority was to remove all debris, and dismantle all the unnecessary additions that have accrued over the years—light frame partitions, wooden mezzanines, defunct vents and exhaust fans, uncharacteristic gates and metalwork, obsolete seating, and old sporting equipment. The freestanding concrete canopy, which was thought to be built in the 1980s, was demolished as it diminished the aesthetics of the façade and blocked sunlight from entering the main lobby. As they were slated to be replaced to make way for air-conditioning, most of the windows were removed.

Keeping it cool

By far, the largest component of the rehabilitation was the installation of a centralized air-conditioning system, which is composed of indoor air handling units (AHUs), outdoor air-cooled condensing units (ACCUs), and the air distribution system or (ducting). The installation of the system required rooms to be cleared and repurposed to accommodate AHUs. Wall and slab openings were created to accommodate vents, ducting, and facilitate return airflow.

Gerard Rey Lico
A steelworker grinds the newly-fabricated gates at the arena space. The destijl-inspired chevron design was adapted from the original gates at the lobbies to achieve a unified, cohesive aesthetic.

Rizal Memorial Coliseum

The installation of the ACCUs required the erection of an independent steel platform—a long, elevated deck along a narrow alley on the side of the Coliseum, hidden from view from the façade. The steel deck serves as a platform for the outdoor condensing units. Its erection proved challenging, as its supports were constrained by the space provided: the narrow alley. The footings of both the Coliseum, and the adjacent badminton hall made the placement of footings for the support difficult. The soil was composed of infill, as the site had formerly been part of a creek. Further limiting the support placement was the design constraint: that the alley had to be passable by delivery trucks and service vehicles.

A solution was arrived at by designing the elongated platform to have only one row of support columns instead of two. This avoided the complex and irregular footing and support configurations. The steel deck was to be cantilevered from the support and reinforced with a diagonal brace. The remaining width of the alley was enough for service vehicles to pass.

To seal the space and prevent the escape of cooled air, existing door, window, and roof openings were sealed or gasketed. The large roof louvers were covered with ribbed pre-painted galvanized steel roof sheets. Metal gates at the lobbies were replaced with glass doors and glass curtain walls. Exhaust fans were removed. Windows were replaced.

Large cylindrical ducts were suspended from the roof trusses, distributing cooled air evenly all throughout the venue. Since the ducts were to be exposed in the interior, a circular profile was selected so that the ducting would be visually compatible with the streamlined moderne style of the building and adhere to the poetry of machine aesthetics.

Systems upgrade

The rehabilitation required a total overhaul of the electrical and plumbing systems of the building; as well as the introduction of a Fire Detection and Alarm System (FDAS), to enhance the safety of the building users, and to conform to modern building standards and codes. Existing electrical lines, lighting, and panel boards were removed; as the new electrical system was designed to accommodate higher electrical loads, owing to the installation of the air conditioning, and new pumps, water heaters, and lighting systems.

After the removal of the dysfunctional exhaust fans, a copious amount of natural light began to pour into the space for the first time in years. Care was taken to restore the original terrazzo floor at the lobbies. The floor was sanded, polished, and re-sealed to reveal its natural shine and luster. The toilets and locker rooms were entirely re-done to rehabilitate the image of the coliseum in the popular imagination.

An all-new LED sports lighting system was installed, replacing the old metal halide lamps which took several minutes to achieve full illuminance. The new system was brighter, conformed to the standards set by the International Basketball Federation (FIBA), and energy efficient. Emergency lighting was introduced to facilitate orderly exit during power interruptions and emergencies.

The storm drainage system was also redesigned. Investigation into the roof leaks pointed to the insufficient drainage from the roof gutters as the cause. Roof drainage was organized and improved by the installation of a system of downspouts, catchment basins, and drainage lines. Likewise, new clean water and sanitary lines were installed to complement the new configuration of toilet and shower facilities. A new water cistern and septic tank were constructed to meet the new demand. To comply with the requirements of the Fire Code, a new FDAS was installed, which includes sprinklers, dry standpipes, and fire hose reels.

The architectural requirements revolve around conserving the heritage value of the building and restoring its art deco character. Character-defining elements—the lobbies, the façade, grillwork, and terrazzo flooring were identified to be conserved, while new spaces such as toilets, showers, and locker rooms, were to be treated in a modern interpretation of art deco.

As rehabilitation work began, color studies were undertaken to determine the color palette of the building from different periods. The color palette selected by the client was a selection of greys and whites—which could be seen from pre-war archival photographs and videos of the complex. The grey palette provided subtlety and nuance, while highlighting the decorative elements without appearing garish. The painting of the façade was carefully matched from archival photos, taking care to be faithful to the original design, as it forms the most iconic and recognizable part of the building.

Special attention was given to the design of the lobby, which had most of the original art deco lauanit ceiling intact. The ceiling was treated for termite control, and portions of it were repaired. The terrazzo flooring was restored, polished to a smooth finish. As the layers of paint were stripped

Gerard Rey Lico
The newly-restored Rizal Coliseum debuts in its first event after the conservation. The façade by day. The lobby dazzles in light and opulent surface treatments. Original porthole windows were uncovered, while new spaces: a Gallery and Visitor Center connect to the lobby to activate the lobby as a place of prominence. Deco decoded

Rizal Memorial Coliseum

off, a layer of scagliola or faux marble was uncovered. It must be noted that one of the key principles of art deco is opulence. Perhaps due to budgetary or time constraints, natural marble was not installed during the Coliseum’s construction in the 1930s. Unfortunately, the scagliola was damaged. It had some chipping and missing fragments. Time constraints did not allow for a careful recreation of the technique used to facilitate its restoration. It was decided that this would be concealed with natural stone slabs. This would serve as an “upgrade” from the faux-marbling, and would serve as a protective layer for the time being until the technique to repair the scagliola could be found. Two large porthole windows were uncovered at the lobby, sealed off in concrete. This was “re-discovered” from archival photographs, which showed them prominently. They were subsequently restored to bring back the streamlined modern character of the lobby.

The original grillwork of the building was given proper care. Alterations were removed, and damaged portions were repaired. New spectator gates at the arena level were fabricated, deriving their design from the original gates at the lobbies. Interior lighting at the lobbies and corridors was designed to exude opulence and reflect the geometricism of art deco. Missing art deco lighting at the columns of the main lobby entrance and the two road-facing side lobby entrances were custom-fabricated using fiberglass and brass strips to recreate their original design based on archival photographs and postcards. Warm lights and increased luminance on the interiors had a transformative effect on the spaces, visually enlarging them while enhancing the luxuriant aesthetics of art deco.

As the lobby’s centerpiece, a large brass emblem was installed to welcome guests, to serve as a backdrop for selfies, and to underscore the character of the building. An art-deco inspired wayfinding and navigation system—a necessity in modern sporting venues—was designed to complement the new configuration of the building, so that guests could find their way to the restrooms, and to their seats. To conceal the new downspouts installed and reduce its visual impact, metal corbels were installed at the top of the downspouts, deriving from the concrete corbels at the base of the metal flagpoles.

Games Under Flak

As the opening of the SEA Games approached, media coverage intensified, focusing on the readiness of the

Completed in time for the 30th Southeast Asian Games, the coliseum reopened on November 30 for the Gymnastics event, where Filipino athlete Carlos Yulo won a gold medal. Spectators are re-introduced to the newly-rehabilitated coliseum, basking in the light, comfortable in the new seats and air-conditioning, and with all-eyes on the game.

organizers and venues to host the event. Concerned that the venues would not be completed in time, the media aired footage of the on-going rehabilitation projects at the Rizal Memorial Sports Complex and at the PhilSports Complex.

Several incidents during the run-up to the games— athlete’s delayed check-ins at the hotel, the lack of transportation to the venues, insufficient provisions for food and water, and frustrating unpaid volunteer work—had put the Philippine Sports Commission (PSC), and the Philippine SEA Games Organizational Committee (PHISGOC) under flak. Senator Franklin Drilon questioned the cost of the cauldron to be lit for the games, stating Php 55 million is an extravagance that is so unnecessary, and somebody had to answer for this… A classroom costs P1 million, so we could have built 56 classrooms if the money of the people was not abused.

Citing that without concrete post-Games plans for the facilities, the new and rehabilitated venues could turn into white elephants.

Saving Grace

As the Rizal Memorial Coliseum transformed through its rehabilitation, sports officials, the media, and the general public began to take notice. Article after article, news reports sprung up, praising the on-going rehabilitation. On social media, posts about the Rizal Memorial Coliseum went viral. The story of the transformation of the Coliseum was a much-needed bit of good news for the beleaguered Sports Commission. The coliseum re-opened on December 1, 2019, hosting the Gymnastics event with an attendance of about 3,000 people. On its opening day, 19-year-old Filipino gymnast Carlos Yulo clinched the gold medal, besting other ASEAN athletes for the prize; marking the triumphant revival of the Rizal Memorial Coliseum: a testament to Filipino excellence.

Conclusion

The Rizal Memorial Sports Complex demonstrates Filipino skill, ability, and achievement. Owing its design to Juan Arellano, the sports complex’s architecture demonstrated that the Philippines was finally ready for its long-awaited independence. With its rehabilitation, its continued role in international soft diplomacy, pop culture, and sportive camaraderie are ensured. Coming full circle, the Stadium’s own cathartic rehabilitation signals its own rebirth as an

Gerard Rey Lico
The façade by night featuring the restored cylindrical pier lighting fixtures. Bold colors, deco-inspired mirrors, and bordered tile floors leave a lasting impression on the spectator experience.

Poblacion Market Central

Continuing the Legacy of the Taboan

“Tabo”- a vernacular term more recognized in the provinces, is a local Market Day held weekly in the town center bustling with farm produce and people who are out to market in an open area setting called the “Taboan”. The activity creates social encounters and build relationships among the “suki” which makes the experience more meaningful and special. This very experience is what the architect attempts to create amongst the building users and thus, inspired the core concept of the “Poblacion Market Central”, also known as PMC.

Nestled the city center, PMC stands prominent with its industrial-style façade, bare concrete finishes and exposed structural elements that reflect the simplicity of a traditional “Taboan”. Due to its prime location where the property value is very high, every square inch of the lot area must be fully utilized to its highest potential. A lower ground floor was therefore provided and planned to house the main building utilities, as well as ensure that the ratio of parking space requirements- which posed as one of the major design challenges, is met. This allowed for the allotment of all the upper floors for rentable commercial units. With carefulplanning and a series of consultations, the designers were also able to provide architectural and engineering solutions for possible flood problems at the lower ground floor.

Occupying the main ground floor are mainly restaurants and antique shops. Slightly elevated from the street level, the main ground floor creates a sense of separation from the busy street traffic and the sidewalk. The second floorhouses small retail shops of jewelries and souvenir items- all highlighting the good quality of Mindanaoan craftsmanship. Service shops like banks, dental clinics and salons are also provided to complete the customers’basic needs and leisure experience.

Like the “Taboan” in rural areas, the project uses an energy-efficient and cost-effective approach that minimizes electrical load by harnessing natural light and ventilation. The monitor roof of the building is equipped with industrial fans that draw out hot air, allowing continuous fresh air to continually flow through the hallways and other common spaces of the building. Several studies were conducted by the engineers for various ways to achieve a comfortable microclimate for the users without using conventional air conditioning system. This also made the spaces safer in this pandemic period of the Covid-19 virus.

Main Entry Stair Poblacion Market Central, Food Hall

Poblacion Market Central

Additional energy efficient measures such as LED lights, water-saving toilet fixtures, and rainwater harvesting were also implemented to improve the sustainability of the project.

For lower maintenance cost, the building has minimal applied finishes. Bare concrete walls and columns, exposed slab soffits, visible utilities and polished floor dominate the general look of the structure. Accent metal works with green creeper and landscaping were also implemented to soften the overall structure and act to filter the harsh sun.

Aside from the rich local products that contrast with the simple exposed concrete structure of the building, colorful architectural appliqués were incorporated to make the building livelier and fuller of character. Traditional patterns from the different tribes of Mindanao inspired the ethno-modern graphical designs highlighted on the metal works, columns, and most of the interior spaces. Murals painted by local artists expressing the beauty of the city also adorn the interiors. The PMC Food Hall, designed in collaboration with DDC Architectural Studio, also reflects the vibrant and festive culture of Mindanao.

Set to be Davao’s next dining, shopping and lifestyle destination, PMC will become the new home of Aldevinco Shopping Center, one of Davao’s finest Commercial Development with a history spanning over 50 years. The owner, Alsons Dev, aims to continue the legacy of promoting local and Mindanao culture, heritage and identity as well as taking pride to the third-generation shop owners of Aldevinco Shopping Center for the continuous support over the past few decades.

PMC will also highlight wide selections of local foods that are carefully curated in a fun and stimulating ambiance. Through this, PMC aims to incorporate the rich history and traditions of Mindanao into the modern and contemporary culture that we have today.

View of the elevator and stairs from the second floor Ground floor atrium area Second floor hallway during the Mindanao Art 2021

PCTAN Architects & Associates

C. Bangoy St. Davao City

3,892.00 square meters

10,606.00 square meters

PCTAN Architects & Associates

Door 1-4 ALA28 Bldg, Lower Kawayan, Km 7.5, Cabantian, Davao City

Tel No.: 082-392-8810

Website: www.pctandesign.com

Email: pctan.designstudio@gmail.com

Ar. Patrick C. Tan, UAP, FPIA

DDC Architectural Studio

ALSONS Development and Investment Corporation

AC PAMA Engineering Design & Consultancy

ASB Electrical Engineering Inc.

Engr. Romeo Lestojas, PME

AJMLARA and Associates

Name Year Completed Project Location Lot Area Gross Built Area Architectural
Contact
Lead
Design
Client
Project
Firm
Details
Architect
Team & Collaborators
Engineering Consultants Poblacion Market Central 2022
Poblacion Market Central Section
Front Elevation Aerial view of Poblacion Market Central
Architects & Associates
PCTAN

Healing House The

The human connection is an integral part of our system as a society. These connections transpire different ideas that are monumental for growth and progress. Much like in architecture, a person’s connection to space is tantamount to emotional connections. However in the practice of Architectures, most structures have been designed primarily toward a single sense—sight. Architecture should be holistic and should consider the other senses as well. It is high time to design spaces that will not only satisfy the eyes, but also the mind and soul.

Architects play a critical role in shaping the qualities of our environment; they work in collaboration with end users and their needs and ambitions, and they have the power to restore and promote solidarity, mental and physical health and be a source of happiness. This is the primary goal of Wellbeing Architecture. Wellbeing Architecture seeks to improve the human perception of a space in order to evoke a feeling of wellness for the user/s. It can be done by considering the multisensory factor of the users with consideration of the Physical, Emotional, Spiritual, and Intellectual wellbeing.

The four principles of wellbeing architecture

Healing House The

An individual’s well-being can be affected by their built-environment by the sense. The feeling of safe, secure, and danger within a space can affect a person’s well-being.

Emotion in architecture can be linked to how architecture exudes a “sense of place”where the emotion experienced of a particular architecture can be shaped by its “sense of place”. Often, “sense of place” can help an architecture take on a type of personality and this personality can serve to trigger emotion in its building occupants because it connects with them.

Physical: Built Environment, Senses, Lifestyle

Human beings innately feel and assess the environment through the five senses. A person’s reaction to a space can be based through the senses, either negatively or positively. Humans have evolved through their senses and have built systems that cater to their needs.

Emotional: Feelings, Emotions, Social Relationships

Studies show that emotions are the key factors in a person’s wellbeing. That said, emotions and feelings can affect a person’s judgement. While emotions are associated with the physical aspect, feelings are the conscious experience of emotional reactions.

The Healing House

Spiritual: Beliefs, Traditions, Purpose

Studies have established connections between psychology and physiology in architecture. These studies illustrate the relationship between a person’s sense of self and spirituality with their built environment. Spiritual wellbeing is what separates a typical consideration for wellbeing. It is rooted in the traditions and beliefs of the Filipino household, and how the space affects both the individual and the family.

Intellect: Mindset, Behavior, Judgement

Intellectual functioning—also called intelligence—refers to general mental capacity, such as learning, reasoning, problem solving, and etc. A person’s wellbeing can be affected by their intellect, specifically their ability to make rational choices.

Architecture can affect behavior because people adapt and react to their surroundings and when the built environment considers what’s healthier for people, those modiciations are for the good.

Spirituality design strategies in connection to nature and an individual’s roots.

The Healing House

Roof Deck

A safe space for tranquility to enjoy the scenic view and feel the gentle breeze. This transpires to the site level. Every floor is considered to fi the needs of the client.

Introduces personal and spiritual wellbeing. Each room was designed to celebrate individuality and sense of purpose. Ease of access is represented on the second floor. This trend was kept on both floors due to human-centric activities of the spaces.

Designed in such a way the design pattern is easy to understand. The vantage point of each space is at close proximity to the eyesight. The living and dining areaintroduction of cross ventilations in line with this scientific design is the harmony of colors and nature.

Second Floor Ground Floor Landscape

The site provides an intuitive design that is easy to distinguish. Axis of main points are provided for ease of access. The site also introduces softscapes that contrast with the hardscapes.

Integration of wellbeing architecture

For Vito Associates, the Healing House presents an interesting opportunity to apply the principles of Wellbeing Architecture in a residential setting. The client tasked them to design a two storey house with a pool and roof deck. The client envisioned a house that will make them safe, enlightened, and most of all heal in all aspects of wellbeing. Having been diagnosed with a chronic spinal cord condition, the client desired a home that could help them cope and heal. The architect’s role to translate vision and desires to conducive space for healing has never been more imperative.

The site is located at Filinvest, Batasan Hills, Quezon City. The Sierra Madre along the Rizal horizon complements the scenic and pristine view of the city’s skyline, a contrast of mother nature and human ingenuity. It is said that the Sierra Mountain ranges protect the region from harsh storms. The designers took this concept and applied it to the meaning of a house, which is to protect its users.

Design consideration

Ambiance

The character and atmosphere of the space within the facility. It also refers to the sensoral qualities that a space gives off. It is recognized through emotional sensibility by an immediate form of physical perception.

Cohesion

Designing space to belong together and act as a whole. Shared resources become vital in creating a sense of community and how spaces are linked with each other to operate as one facility.

Experience

The interaction between spaces and user that can articulate a place that can affect one’s feeling.

Spatial Harmony

Deals with how different space could come together to have a clear communication.

Engagement

Enables users to participate to different collaborative spaces. This allow’s the proposed project to have spaces that allows the users to share different educational or social spaces.

Vito Associates

The Healing House

The firm also took into consideration the four categories of Wellbeing Architecture— Physical, Emotional, Spiritual, and Intellectual wellbeing. The firm’s specialization on wellbeing is about the interrelation of these four principles.

Physical Wellbeing

The exterior of the house was formulated with consideration of the client’s condition. All the spaces brought about by the designers are based on the client’s vision—which is to have a sense of ease. Upon entry, the road connecting to the park drive is angled. In response to the chronic condition of the client, the entrada was designed to minimize head movement and make navigation easier.

Emotional Wellbeing

A tropical theme was employed to make the structure more biophilic. The tropical theme seeks to create a closer connection between the building, the user and nature which would then help heal the mind and the senses. The site was planned so that rooms would have views of the green and blue spaces that were carefully interspersed within the overall development.

Spiritual Wellbeing

To enhance the sense of purpose and being within a space, the healing house was designed to maximize light and ventilation in both the indoor and outdoor spaces.

Intellectual Wellbeing

Due to the client’s chronic condition, the healing house is designed to facilitate wayfinding using familiar design patterns.

Physical Wellbeing

Spiritual Wellbeing
Kitchen Grand Entrance
Emotional Wellbeing
Intellectual Wellbeing
Vito
Louie
Associates
Floor Plan Roof Deck Plan
Floor Plan Roof Plan
Vito
Ground
Second

The Healing House

Evolution of forms

Every individual has their own upbringing much like design. Architects orchestrate solutions directed to a problem. The “Healing House” brought about a dire need of life improvement and foresight. The inspiration of the house was based on the clients’ situation, where they wanted to be at ease—and for VITO ASSOCIATES, this house is a culmination of their experience and research which led to the creation of a house that heals.

Al Fresco Living Incorporation of landscape
Vito
Louie
Associates
Vito
Front Elevation Right Side Elevation Longitudinal Section Cross Section Cor Jesu Oratory

Design Brief & The Site

The Cor Jesu is an oratory for the Sacred Heart School-Ateneo de Cebu. The Cor Jesu is an oratory for the Sacred Heart School-Ateneo de Cebu. The project site is a 5,500 plus square meters situated at an exposed vantage point across the campus’s grand lobby. It sits at a corner lot among decades-old mango trees that would later influence the relationship of the interior space and exterior space. This Oratory brings together five different chapels within the 3000-student school campus. Its location near the entrance makes it ideal as a catchment of people and a more suitable venue for hosting institution-wide masses which were previously held in the school’s sports arena.

Cor Jesu is a design collaboration between two of the school’s alumni: Kenneth Cobonpue and Buck Sia of Zubu Design Associates. Purposefully designed to be a symbol of Christian faith, the oratory reflects the progressive Ignatian values and underscores the Jesuit mission for education. The name Cor Jesu was actually derived from the Latin translation of the ‘Heart of Jesus’ where the design behind the oratory was inspired from.

Composed of two buildings, the oratory has a capacity of 360 seats while the smaller auxiliary building houses supplementary spaces such as the office, a recollection area, an indoor and outdoor dining area and restrooms. Both buildings are connected through a bamboo portal. Similar to the effect at the oratory building, the bamboo in the portal dapples the light that sifts through the pathway and ‘prepares’ the user for the solemn space ahead.

Cor Jesu is an amalgamation of poetic symbolisms of Christian spirituality manifested in architectural and design elements. While the actual output tells a story inspired from the liturgical arts, the design process behind the scene will tell you that just like the oratory that unites the different Sacred Heart campuses, this building is a beacon of a successful collaboration of people from different fields.

Cor Jesu Oratory

The Story

In context with the purpose of the oratory, the initial intent of the client was to create a place where they, as a community, can gather to worship and celebrate the sacraments. Their collective devotion to the Sacred Heart of Jesus has always been the heart and the root of the schools’ existence.

As a continuously expanding community, there was a growing need for a place of worship to accommodate more people than their existing chapels. The oratory thus will become a sacred space and a visible reminder of the reason for the school’s existence that can stand witness to their Catholic faith and Jesuit institution. The beauty of the Cor Jesu is that not only did it become a physical space of worship for their community but it also strengthened the community that built it. The school is now able to accommodate more people for daily mass and have bigger gatherings to celebrate the sacraments.

With this in mind, the designers did not fail to do so as their collaborative efforts paved the way to successfully complete the oratory that has now become the school’s icon and the focal point of their whole campus, as an offering to the Lord and the entire community.

Buck Sia

Project Narrative & Features

Envisioned as a non-traditional approach to sacred spaces, the Cor Jesu Oratory derives its name from the Latin for the ‘Heart of Jesus’. The curvilinear shape of the building contrasts the linear bamboo elements. The undulation of the roof and the inclined posts at the exterior expresses a sense of direction or movement, while the interior resonates a calm and solemn atmosphere. The warmth evoked by the natural elements like wood and stone contrasted the concrete and steel envelope of the structure.

Composed of two buildings, the oratory has a 360-eating capacity. The smaller auxiliary building houses supplementary spaces such as the office, a recollection area, indoor and outdoor dining rooms, and restrooms. Both buildings are connected through a bamboo portal. The bamboo in the portal dapples the light that sifts through the pathway and prepares the user for the solemn space ahead. Considered as the more dramatic entrance, this tunnel creates a two-way effect. One, it serves as a transition space and masks the exterior surroundings. Two, it paints the promenade with light and shadow and enhances it to make it feel more surreal, more spiritual and intimate. This cadence of light invites the user to reflect in silence and to prepare himself or herself for the Lord’s presence.

At the culmination of this procession, a cathartic moment is experienced as the grand undulating bamboo ceiling reveals itself in full glory. The altar dips almost at mid-enter and then ascends to the highest point at the altar where the cross of Jesus hovers before a backdrop of mango trees framed by a tall thin glass window.

Cor Jesu is a collection of paradoxical design languages: between sturdiness and flexibility, strength and fragility, coldness and warmth. This balance could only be attained by the careful and meticulous curation of materials.

Zubu Design Associates

Cor Jesu Oratory

Innovations

Contrast to the typical vernacular use of bamboos in architecture, the intent of the intuition embodied by the series of bamboos at the portal and the formation of the bamboos as the interior ceiling of the oratory is one of the most defining features of the project as its showcases a spectacular use of bamboo in a modern approach. With a total of 2,412 poles of bamboo used for the project both interior and exterior, the use of bamboo on this scale and complexity, even for a tropical island like Cebu, is the first of its kind and announces the aspiration and progressive ambition of the project.

The bamboo installation on the ceiling was made possible by the different collaborators involved from the knowledge of the consultants of the material’s capabilities to the thorough analysis in detailing every connection and framing. The bamboo ceiling reflects the undulation of the roof while diagonal slats of bamboo installed with sequenced arches frame the interior space.

The authenticity within the context of the design for the oratory was evident in how the building was oriented in accordance to its built environment, providing a perfectly framed view of the ‘tree of life’ as a poignant backdrop of the crucifix visibly seen by the users facing the altar. The steps taken to ensure that the needs of the users were met while the built environment was carefully incorporated with the design showed good architecture does not compromise ingenuity and is capable of enriching human life.

Sia
Buck

Zubu Design Associates

Allied Professions

The great sense of collaboration between designers from the architect to the industrial designers, contractors, landscape architects, bamboo consultants, and lighting consultants resulted in the successful completion of the building. The great collaboration between the craft and the modern ways of construction between the industrial designer’s knowledge in furniture-making together with the architect’s expertise in detailing made this architectural edifice possible. Even from the modern metalwork sculptor for the bronze finished pieces used on the door and other elements to traditional sculptors with the life-like saint statues. This project gave plenty of opportunities for the different people involved with their diverse contributions to the project.

All the bamboo used for the project were actually sourced locally in the northern part of Cebu, in the island of Bantayan, creating numerous jobs for the whole duration of the construction and positively contributing to the sustainability of the project.

Through this project, the culture and the message of excellence does not only impact the current stakeholders but will affect the future generations for the community showing that good architectural design can be an interpretation of excellence in aspiring the school’s community and society as well.

Basically, the Cor Jesu Oratory enabled the exchange of knowledge and expertise between different professions and careers resulting in a diversified creation – a masterpiece.

Cor Jesu Oratory

On celebrating the Filipino brand in design

Throughout the course of architectural history, the house of worship has been prevalent as examples of relevant architecture; it starts from the grandiose and to honor God while modern counterparts revolve around the person to ensure he can experience God in a more human scale. The Cor Jesu metaphorized a simple expressive gesture, something relatable to the Filipino, the building surrounding itself from the garden and the environment, thus embracing the existing landscape and the local climate. This complements a humble experience aside from the form portrayed.

The building is planned to form a processional, a characteristic of a contemplative journey of a Filipino in his religious centered life. The dip and rise of the roof both is didactic in the Filipinos’ humility and at the same time the need for aspiration. The Cor Jesu as much is formed from concrete, glass and steel and attempts a vernacular material, the bamboo. We see this to be both how Filipinos possess to embrace a multi-faceted identity, embracing your heritage while embracing foreign influence. The Cor Jesu breaks away from the traditional yet still rooted in values of craft and ingenuity, modern yet familiar in its form, visually appealing yet tactile - it hopes to characterize the uniqueness and the diversity of a Filipino. Lastly, the Cor Jesu is a testament of a great collaboration - a need characteristic to progress the Philippine Society in general.

Design Associates
Zubu

Jesu Oratory

Photo Credits: Ed Simon website: www.instagram.com/monsied email: edwardpsimon@gmail.com Cor

1,410.80 sqm (Total Floor Area)

Buck Richnold I. Sia

Zubu Design Associates

2/F Unit D12, Axis Entertainment, Vibo Place, N. Escario St., Cebu City, Philippines

www.zubuda.com

info@zubuda.com

Kenneth C. Cobonpue

KennethCobonpue

3A General Maxilom Avenue, Cebu City, Philippines

www.kennethcobonpue.com

info@kennethcobonpue.com

Vincent Martin B. Pinpin

Zubu Design Associates:

Jorge Rocha, Miljo Negapatan

Chester Hinagdanan, Kevin Bacalla, Justin Lei Ramos, Justine Eduave, Kristian Selgas, & Joshua Tenio

KennethCobonpue:

Maximo Barbar III, Andre Chan, & Christy Manguerra

Primary Structures Corporation:

William Chrisopher U. Liu, Stepehen Charles U. Liu, Rodel M. Cabigon, Juncel A. Merced, & Wilbert Q. Bautista

Jerry B. Maratas

Jemar Engineering Services

MEPF Consultant

Electrical Consultant

ECE Consultant

Safety Officer

Bamboo Supplier

Bamboo Consultant

Quantity Surveyor Management Committee

Leonides Paragsa

Christopher Capul

Victor Navarro

Lorence Dingding

Chris White Bantayan Bamboo

Bryan Auman

BradLab

Rider Levett Bucknall

Rev. Primitivo E. Viray Jr. S. J.

Provincial Superior, Society of Jesus

Rev. Manuel A. U Jr., S.J.

School President

Mario A. King

Chairman, Board of Trustees

Jack T. Huang

Edmun H. Liu

Lighting Consultant

Sculptors

Interior Cabinetries

Interior Furniture

Media Credits

Andrew Li

Green Group Inc.

Juan Sajid Imao

Justino “Paloy” Cagayat

Oliver Ko

Palmax Solutions Inc.

KennethCobonpue

Project Name Year Completed Project Location Lot Area Area Project Credits Architect of Record Design Collaborator Liturgical Architect Design Team Contractor/Builder Structural Consultant
Jesu Oratory 2018 H. Abellana St., Canduman, Mandaue City 5,500 sqm 844.26 sqm (Oratory Building) 464.47 sqm (Auxiliary Building) 102.07 sqm (Main Portal)
Cor
Design Associates
Zubu
Cor Jesu Oratory
Jesu Oratory Buck Sia
Cor
Design Associates
Zubu

Municipal Halls of the BARMM

Smart Vernacular Principles in Mindanao Architecture

We are surrounded by architecture. We are influenced by it, provided continuity with the past, and connected to the future. Considering a building or a place that is dear to us and thinking back to the past, we could ask: why are we connected to that place? The answer is simple. The place holds memories for us. The place has both positive and negative memories that make it valuable and significant.

Memory is a universal way to attach value to a place. “

We do this all the time. As a family, we value our homes so much, and we even have favorite spots. My favorite spot was my main door because it shows my height progression. When I was 8, I was slightly taller

than my sister Pearl, but by the time she was 10, she was by half an inch taller than me.

We value places at the local level by making them historical landmarks in tourist spots, and at the national level by making them our national treasures. The World Heritage Sites (WHS) list includes places with historical or aesthetic value around the world. The Taj Mahal and the Great Wall of China have become universally valuable because of the WHS.

Values associated with places carry memories over time. We give our significant stories a home, which allows a continued dialogue from generation to generation. The question is, how can we carry on the important stories of places when their identity is on the verge of extinction, like Mindanao Architecture? I never heard about this in architecture school. Japanese and Chinese religious buildings were discussed in a section on Asian Architecture and World Architecture.

Filipino architecture was discussed, especially Spanish-Filipino architecture. In most cases, architects’ research on Philippine heritage focuses on the Spanish and American influences.

Architecture in Mindanao received little attention.

The irony is that our pre-colonial heritage dates back 30,000 years and has been preserved even today through the cultures of our indigenous brothers and sisters.

A living heritage has created value by preserving memory and passing it on through generations.

The Philippines is made up of over 110 ethnolinguistic groups, according to the

United Nations Development Program. In the Philippines, 33% of these groups are in the north, and 61% are in Mindanao. There are 67 Indigenous peoples living either at the foot of mountain ranges or on them.

What exactly is Mindanao Architecture?

It refers to Filipino architecture in Mindanao. Mindanao has an architecture that reflects the ethnolinguistic groups as well as the evolutionary changes inherent in every architecture.

In addition to being an architecture of the cultural communities, Mindanao Architecture is sustainable architecture. Sustainability and smartness are characterized by three elements and principles. It is an architecture that is simultaneously modern and vernacular. These principles include livability, sustainability, and cultural sensitivity.

For a better understanding of this, I present to you my Left side view of the building

design of the municipal halls in the Bangsamoro Autonomous Region of Muslim Mindanao.

Under the Minister of the Interior and Local Government, Atty. Naguib Sinarimbo, the Municipal Halls of BARMM offers one of the best examples of modern Mindanao architecture incorporating smart vernacular principles. Currently, eleven municipal halls are being constructed in the BARMM areas, designed by Swito Designs Architects, my firm.

Livability

Floor plans for the BARMM Municipal Halls depict a half-moon with major offices at each end. With Panolong end beams and Okir details, the elevation is in keeping with a Maranao style. There are vents in the transom and gable ends of the roof for maximum airflow. The building is livable because of this. It is livable due to its multi-dimensionality and multiple uses in space. To improve airflow and provide a sense of openness, the floor-to-ceiling height is high.

Sustainability

Furthermore, BARMM’s Municipal Halls are examples of sustainability because they are built in accordance with nature. The materials used in the production are sourced locally and include local timber, and woodcarvings by woodcarvers in the area, which are then combined with modern technology to produce the product. It also reduces logistical costs and boosts the local economy.

Cultural Sensitivity

BARMM’s municipal halls are also designed with cultural sensibility in mind. Because traditional elements have been preserved in the design, it resonates with Moro peoples. It’s like an endless tale of aesthetic storytelling. Throughout each building is décor that represents the making, building, and retelling of memories by the Bangsamoro people.

The building of the Municipal Halls of BARMM is historical the sites did not have municipal halls.

It was a dream come true for our Moro brothers and sisters and all a dream for development in areas where people perceive differently. “

And because it is SMART Vernacular, it hopes to inspire other buildings in the BARMM and in the Philippines to have those principles as well. Let architecture heal and promote peace everywhere.

KEY PLAN
OKIR DETAILS

Designing Prototypal Public Spaces K-Farm for the People and the Community

Introduction

The Philippines faces a severe deficiency in the supply of public spaces and development has been slow since the 1960s, though recent public awareness has begun to gain traction. While the World Health Organization (WHO) recommends a minimum of 9 square meters of open space per person, both the Philippines and Hong Kong do not meet this recommendation at 5 square meters and 2 square meters of open space per person respectively. The HKSAR government proposes to raise the minimum standard 2.5 square meters per person under the 2030+ Planning Vision and Strategy. While a direct comparison of both countries may be inappropriate due to various factors, the need for various stakeholders like the government, different agencies, and the public to identify communal needs to plan open spaces for everyone’s benefit remains universal. Co-creation allows the development of appropriate public spaces that can enhance and support Filipino values. This process was used during the development of K-Farm in Hong Kong.

K-Farm Gianfranco Galagar

Avoid Obvious Architects

Strawberry harvesting

About K-Farm

K-Farm is the first prototype urban farm in Hong Kong that deploys a combination of hydroponic, aquaponic, and conventional farming systems as part of an educational and well-being communal platform.

Located in the Western District Public Working Cargo Area known as Belcher Bay, the site was originally a shipping cargo dock. It was considered unsafe and thus closed from public use. Nevertheless, people continued leisure activities like fishing, strolling, and exercising.

Though the city has generous amounts of public facilities like sports parks, leisure parks, libraries, etc., the project’s location had limited public spaces for recreation. Nearby facilities had operating hours which made access limited and were not petfriendly.

Recognizing the value of communal spaces and the harborfront as a natural asset, the government hosted a competition inviting nonprofit organizations (NPOs) and social enterprises (SE) to design a leisure farm and space for people to use safely and comfortably. Avoid Obvious Architects, together with the NGO Rough-C, won the

Aerial view of K-Farm
Shing Sai Site Plan Greenhouse BFA Planters Rainshelters Event Space Tray Farm HK BD Custom planters for accessible use during workshops Outdoor Vertical Farming Shelter for classroom & leisurely use Central open for larger gatherings and events Main area of hydroponic systems Site Elevation
K-Farm

Aquaponic Pond Lawn Reflective Farms

Sit-down space for leisure use

Includes educational equipment

Water feature that reflects the environment

Conventional farming ground

Office Pantry/Classroom

Open classroom for multi-programs

Belcher Bay Bus Terminal

Rough C’s main administrative space

N
Sai Road
Space Park open space gatherings events

Community use of K-Farm

Design Philosophy

Traditional Hong Kong parks use the optimized and standardized rectilinear forms in planning and equipment. While serving its purposes well, its optimization focuses on the financial, logistical, and managerial aspects rather than the human experience. For example, play areas and modules are designed for child use which restrict intergenerational activities.

Holding community dialogues and events led us to understand that people do not look to the most updated variety of equipment for their well-being –people spend recreational time outside as a necessary element for a healthier life. Community members sought to break away from the traditional perception of leisure space and this drove the development of

the project’s main design language: the curvilinear form. Environmental-behavioral studies show that this form promotes communication, encourages physical activities, and enhances social experiences.

Collaborations with the farmers and NGO operating the urban farm informed the use of circular forms, facilitating ease of communication during knowledge sharing and workshops as the instructor stands in the center of the participants. By focusing on creating spaces of activities during planning, we allocated more spaces to do things rather than creating more circulation to do or see things. Circulation is treated informally and doubles as extended socializing pathways where users can spontaneously interact during farming activities around the edges of the

Pick your own veggies/fruits Pantry in site Classes on dishes Prepare your own fresh food in K-Farm
K-Farm Gianfranco Galagar

From the southernmost part to the northernmost part of the site, the six main spaces of K-Farm are as follows:

The Office is the administrative building located at the most private corner of the site and located adjacently is the community pantry, Green Chef, where cooking classes are held.

The Organic Garden hosts farming and educational activities. Lines inscribed on the floor encourage family play. It is next to the pantry so people can easily prepare their freshly harvested food. It has successfully cultivated chili, sunflowers, and watermelons, among others.

The Lawn, The Aqua and The Sky Mirror are the relaxation clusters where people can enjoy sitting down and socializing. They work together as a picnic lawn with an aquaponic farm whose equipment can be viewed for educational purposes. Crowds enjoy taking photos of the environmental reflection here. At the center of the site is K-Plaza, an open area that accommodates flexible programs. To date, designorganization organized children’s programs, music performances, and various presentations have been successfully held in this space.

Three rain shelters are evenly distributed across the site to maximize the panoramic view of the Victoria Harbour and provide public seating. A lot of Filipinos come during the weekend to create socializing space with makeshift dining tables and chairs here!

Finally, the two-storey Hydroponic Garden is located at the western most part of the site. The use of glass provides high communal visibility and invites the public in to learn about hydroponic farming. Thai basil, peppermint, and rosemary are among the many produce it has successfully cultivated. Its steel structure would allow disassembly and relocation to different parts of Hong Kong.

Wood finish materials are used as an extension to the waterfront promenades nearby. The site’s floor finish is continued from the adjacent government’s open leisure space and establishes physical and visual connection.

All materials were sourced within an 800-kilometer radius as part of a sustainability strategy.

Greenhouse section Greenhouse Axonometric Diagram
1. Main Entry 2. Air Shower Machine 3. Work Sink (Workshop area) 4. Stairs 5. Mezzanine 6. Circular Duct 7. Return Air Duct (from Work Sink) 1 2 3 4 5 10 11 13 12 6 7 8 9 8. Supply Air Duct 9. Surface Channel 10. Steel Structure 11. SGP Laminated Tempered Glass 12. Gutter 13. Trench (MVAC S.A.D. & R.A.D.)
K-Farm Facilities Avoid Obvious Architects
1. Rough-C Administrative Office 2. Storage Room 3. Fire Hose Reel Cabinet 4. Utilities/M &E Rooms 5. Ladder to G/F 6. Roof Access 7. PV Panels 8. Pantry 9. Open Classroom Section - Pantry/Classroom Section - Pantry/Classroom Section - Office 1 2 3 4 5 6 7 8 9
Galagar K-Farm
Gianfranco

Avoid Obvious Architects

The Philippine Connection

As a Filipino architect, I realize there is great potential in creating something similar and unique to the Philippine context that would benefit the Bayanihan spirit. What does it mean to have a better public space and why do it at all? Does a better space mean having physical amenities the public can use? What if they don’t actually fit the needs and demands of the community? Some public spaces can be too prescriptive while some can be too unorderly. There is too much fixation on what architecture physically needs to be rather than what the architecture can be for its users. A successful public space should cultivate the collective community’s growth and strengthen its identity and affinities.

If the K-Farm project can influence the younger generation of Hong Kong about the importance of farming in society, I believe modern Filipino architects can imagine the possibilities of tackling different relevant issues of society in the Philippines through architecture.

Wan Chung Engineering Co. Ltd.

Imagennix | Scott Brooks

Gianfranco Galagar

Gianfranco Galagar

Avoid Obvious Architecture

Vicky Chan, AIA

Gianfranco Galagar, Melissa Chan, Krystal

Lung, Karlo Lim, Crystal Hu, Wijdene Kaabi

Modus Architecture | Ken Hau, FAIA

Studio 9527

Sky Mirror
Project Name Year Completed Project Location Lot Area Gross Built Area Architectural Firm Lead Architect Design Team & Collaborators
K-Farm 2021
Town, Hong Kong 1,930 square meters
square meters
Engineering Consultants Photography Diagrams Senior Architect Advisor Branding Design
Kennedy
608
Community participation in workshops Valleyfarm’s facility Graphic poster for public event

Cagayan de Oro’s

A Struggle in Valuing the Past to Grasp a Sustainable Future Heritage Zones

“Heritage zone” shall refer to historical, anthropological, archaeological,artistic geographical areas and settings that are culturally significant to the country, as declared by the National Museum and/or the National Historical Institute. (Republic Act 10066, 2009)

The city of golden friendship or Cagayan de Oro is the gateway to Mindanao since it is the regional center and a business hub of Region 10: Northern Mindanao. Formerly named Cagayan de Misamis, it was known for its golden mines during the Spanish Colonial Period, hence the moniker Cagayan de Oro or River of Gold. As a port city, it has a rich immigrant history reflected in Kagay-anon culture, especially in diverse cuisine and fiestas. It is a hub of multinational companies, car industries, and retail which attract investors and businesspeople nationally and internationally. The city has an equal balance of high urbanization and rural life, where people can pursue business and career opportunities while living the idyllic life of the province. However, the city’s rapid growth of urbanization hides a problem in protecting its heritage zones. Despite having active heritage advocates and professionals, the city‘s urban heritage preservation is struggling.

Tragedy of Huluga

As early as the late Neolithic Period, Cagayan de Oro showed signs of ancient habitation as evidenced by the Huluga Open Site and Caves in Sitio Taguanao, Barangay Indahag, just eight (8) kilometers away from the present-day urban core. In 1970, field researchers from the National Museum discovered significant finds in the area. They found skeletal remains, tools, and accessories that implied trade with neighboring countries (Figure 1). The present-day downtown Cagayan de Oro was not inhabited until the arrival of the Spaniards in 1622. The Augustinian Recollect Missionaries were the first to arrive at Himologan. The inhabitants of Himologan were animists that paid tributes to Sultan Kudarat. Four (4) years later, Datu Salangsang of Himologan was convinced by the Augustinian friars, to relocate their settlement to another area. The new settlement became Fuerza Real de San Jose which is now known as a heritage zone where the Gaston Park, City Museum, Archbishop's Palace, and Saint Augustine Metropolitan Cathedral stand.

Significant finds in Huluga Open Site and Caves (Gomez, 2003) Huluga Open Site Damage (Ostique, 2003)

In 2003, to give way to the Taguanao-Balulang Road-and-Bridge project of the city government, the destruction of a large portion of the Huluga Open site transpired (Figure 2). The site is protected by R.A. 4846 (Cultural Properties Preservation and Protection Act) as amended by P.D. 347 and declared an archaeological site in 1992, but still was destroyed by the city government. Recommendations and protests by heritage practitioners and groups fell on deaf ears. Because of this, tensions between the city government and the heritage groups ensued for many years. Around 60% to 80% of the archaeological site was damaged and defaced due to quarrying. The Environmental Management Bureau (EMB) ordered the city hall to pay for damages, but they never complied. Because of this, all heritage zones of Cagayan de Oro are at risk in the name of urbanization. Only a few of the city’s Heritage Zones, including structures, buildings, and landmarks, were declared and protected by the NHCP. Until now, there are no city ordinances to protect them.

Valuing the Past

In recent years, there has been a change of outlook on the city’s urban heritage preservation. Earlier this year, an online interview regarding the city government’s plans on heritage zones with the City Museum’s officer-in-charge, Mr. Jesus Christopher Salon, a former protégé of the late Dr. Erlinda Burton, a distinguished anthropologist and former curator of Museo de Oro who protested against the destruction of the Huluga Open Site.

There have been improvements in architectural conservation efforts starting with the adaptive reuse of the Cagayan de Oro Waterworks tank into the official city museum.

The city museum is collecting documents to submit to the NHCP to protect the city’s heritage zones. These heritage zones include historical buildings, structures, and archaeological sites such as:

• The Executive Building (Pre-world war 2);

• Plaza Divisoria (1910);

• Archbishop Palace (1934-35);

• Xavier University - Ateneo de Cagayan Campus (1950s);

• MOGCHS Building (1909);

• Lourdes College Main Building (American Colonial Period); and

• Several prominent Ancestral Houses and public buildings from the Pre-war and Post War periods.

There are still some persistent issues that arise due to new developments in the city. An example of this is the precarious fate of the city’s first University, Xavier University - Ateneo de Cagayan. Its historical buildings have an unclear future with the emergence of the Vatican-approved “Campus of the Future”. Despite this, Mr. Salon is hopeful for the future of Cagayan de Oro’s Heritage Zones as the city museum aims to apply its theme of “Valuing the Past to Grasp a Sustainable Future” next year.

Grasping a Sustainable Future

Cagayan de Oro’s heritage zones are the essence of Kagay-anon culture, heritage, and historical identity.

In recent times, heritage property’s significance and value have been a casualty of the inevitable urban development. There must be no separation between urbanization and heritage conservation to achieve sustainable development. The tragedy of Huluga is a lesson on the effects of indifference to the city’s past and identity. The indifference resulted in the disregard of laws that protect these heritage zones, lack of dialogue with stakeholders, and the absence of proper conservation management plans and environmental impact assessments. There should be a more stringent implementation of R.A.10066 and a consultation of experts before pushing through any urban development within the city’s heritage zones.

There is a need to include urban heritage preservation in any development plan to balance the conflict between urbanization and urban heritage preservation,

to achieve a more sustainable and eco-efficient solution in heritage conservation and urban planning, and to spread awareness of its importance.

KAWAYAN JOURNEYS

I am Anthony Demin Sarmiento and I am on my Kawayan journey. I called this kawayan journey simply because I am trying to record my discovery and mastery of Bamboo Architecture and how it will manifest or give form to Parametric Design.

In my Kawayan journey I have met a lot of interesting people who delve really deeply in bamboo design and architecture and so I set out to get to know all of them. The first in the list was Architect Jed Michael de Guzman, a fellow alumnus of Bamboo U in Bali, Indonesia and the pillar of Bamboo Bootcamp. Here is what he has to say on his own kawayan journey and what really is Bamboo Bootcamp.

Anthony: What is Bamboo Bootcamp?

Jed:

OUR VISION

Activated catalysts influence communities engaging in sustainable lifestyle and act as stewards of our natural and built landscapes. This results in a global movement where biodiversity is mainstream and sustainable products are the norm.

OUR MISSION

Provide communities innovative mentoring supported by relevant data, knowledge and skills to demonstrate supply, process and fully utilize bamboo, thereby producing a sustainable proof of concept. This will influence responsible agri-food and agro-forest commerce for the Philippines.

OUR CORE VALUES

We are conscious catalysts who act with integrity and are totally committed to sustainable stewardship of the environment through innovative, tailor-fit mentorship that produces multipliers.

Anthony: What was the inspiration behind Bamboo Bootcamp?

Jed:

Directly after I graduated from Bamboo U November 2018, I saw the need for Bamboo Education in the Philippines and the need to revive the Bamboo Craftsmanship and also augment it with new building methodologies being practiced Globally. I wanted to build with Bamboo but there was no one that could build it for me, so a need for training similar to what I experienced in Bamboo U was the quickest solution I could think of.

It first started to echo Bamboo U, but along the way it has become contextualized to the Philippine setting with much emphasis on the need to stabilize the supply of Bamboo through proper syntropic farming and resilient Bamboo Forestry. The climate and context of the Philippines, compels you to adapt to a Filipino way of doing things. As of now Bamboo Bootcamp has become a truly Filipino way of Bamboo Education, where it is not fixed on a specific location but rather a traveling movement that goes to areas where there is Bamboo and the potential to develop it.

It is a revival of our Bamboo Craftsmanship with the challenge of giving something to aspire for especially for our carpenters and lay people that still view the kawayan as poor man’s timber. By showing quick Bamboo builds in a challenging and holistic approach by tackling the full supply chain we hope to slowly change perspectives and create appreciation for Bamboo as a spiritual Material.

Anthony: Can you share significant lesson that you have learned in the course of this project?

We are about 10-20 years behind in terms of skill set, when it comes to building Bamboo structures in the past decade, in comparison to countries such as China, Thailand, Indonesia, Vietnam, Columbia and the other pioneering countries for Bamboo.

The patience to acknowledge that our workforce still needs a learning curve as we continuously train them is very apparent. We first started with post and lintel structures and gradually shifted to curve structures and grid shell techniques, doing so, a lot of mistakes were made which cost time and money, these are significant steps in order to move forward. In essence each of our builds tells a story of progression and how we are gradually tempering our future Bamboo craftsmen. A community that supports you and collaboration with a good team made this possible for Bamboo Bootcamp.

Anthony: Moving forward what can we expect on Bamboo Bootcamp?

Jed:

We have planned our short-term and long-term goals, and are constantly reviewing and introspecting ourselves. Every Bamboo Bootcamp is unique and we keep on improving the contents as the situation calls for it. Moving forward as a catalyst, we want multipliers that will share our vision and mission and echo Bamboo Bootcamp in their own sphere of influence. There will be more Bamboo Bootcamps throughout the country and we are expecting there will be regional growth centers for Bamboo in order to complete the full supply chain of Bamboo taking us one step closer to our vision.

Anthony:

Bamboo Bootcamp is contextualizing what I have learned from Bamboo U in Bali. It is most fitting in the locality, having local species of bamboo together with local craftmanship. I am set to join the bootcamp on February so join me again in the second installment of this article in my kawayan journey. Also, I am interviewing the founder of The Regenesis Project another pillar of the Kawayan Architecture in the Philippines.

This has been Anthony Sarmiento, Mabuhay ang Kawayan!

Turn static files into dynamic content formats.

Create a flipbook