Skip to main content

Arquitektura Issue 04

Page 1


Published annually by the United Architects of the Philippines UAP National Headquarters Building, No. 53 Scout Rallos St., Barangay

Laging Handa, Quezon City, Metro Manila 1103

UAP is not responsible for statements, views or opinions expressed in Arquitektura, nor do such statements necessarily represent the views of UAP, unless otherwise stated.

Issue No. 4

Cover from Avally Design Studio

ACCLIMATED

Joan S. De Leon-Tabinas, UAP

PDC Director Publication Committee

Michaela Y. Constantino, UAP

John Lemuel G. Llacuna, UAP

Editorial Team

Gianfranco Galagar, UAP

Kristy Marie Lagamon, UAP

Vince Bation, UAP

Creatives, Media, and Information

Michaela Y. Constantino, UAP

Roseller P. Junsay Jr., UAP

Ways and Means

Ariel A. Tabang Jr, UAP

Contributors

Bernard B. Berberabe

Christine Buyco-Sy

Francis Neil B. Quijano

Harold Delima

Jean Michael Diosma

Joan De Leon-Tabinas

Jose Adrian Jimenez

Josh L. Puenteblanca

John Rey Briones

Kim Russel Manjares

Kier Vince L .Tinae

Mark Jesson Ronquillo

Melanio L. Martinez Jr.

Nicole Mabanag

Razul Jade Said

Regalado G. Jasmin

Von Martin Salas

EDITORIAL

In recent years, the United Architects of the Philippines has been actively engaged across multiple fronts: policies and regulations, professional practices and standards, educational program progression, and the strengthening of ties with overseas Filipino practitioners and our organizational counterparts abroad. These are significant, outward-facing initiatives that have set important changes in motion.

But as with any ambitious venture, it is equally vital to look inward. To know where we stand as an organization is to know where we are headed. It is with this spirit of reflection that I hope we can leverage our collective knowledge, not only to chart our trajectory on the largest fronts, but also to guide our smallest, most deliberate steps forward.

This issue, we embrace this duality through our theme: Re:Frame. We seek to forge new dialogues between Filipino design and its environment, calling for tangible outputs— buildings, plans, and writings—that propose creative alternatives to the status quo.

Central to this are the voices that often shape the profession from its edges. Our architectural schools cultivate the critical thinking of future practitioners. Small and emerging practices, both local and international, offer fresh perspectives that challenge convention and enrich our built environment. While we will continue to showcase established work, we believe it is time to turn the spotlight more deliberately toward these vital contributors. Within these pages, we feature student work that questions the status quo, alongside projects from other practices whose ideas can ignite discussions of the Filipino architectural landscape.

This introspection serves as a heuristic for navigating an increasingly complex profession. By understanding where we stand, we can better serve, not only our organization, but Filipino society as a whole.

TABLE OF CONTENTS

Way of

Jean Michael Diosma & Harold Delima

Avally Design Studio

CORE+ Studio

De Leon-Tabinas

Christine Amy Buyco-Sy
Joan
Razul Jade Said
Bernard B. Berberabe
Von Martin Salas

AGRITEKTURA

Redefining Food Sustainability

THE HIVE INITIATIVE

REVITALIZING NABAO CREEK AS A WALKABLE URBAN SPINE

Applying the B.A.Y.A.N. Framework in Cabanatuan’s Central District Incubating Innovation in Architectural Education

Francis Neil B. Quijano

A Retrospective on What Went Wrong: The Tragedy in the Eyes of an Architect

Regalado G. Jasmin

Mark Jesson Ronquillo

Jose Adrian Jimenez

John Rey Briones

Casa A. Gamboa and the Practice of Living Heritage

Melanio L. Martinez Jr.

CONTRIBUTORS

Joan De Leon-Tabinas

Christine Amy Buyco-Sy, was born and raised in Davao City. As Principal of Avally Design Studio, she has more than 20 years of experience – ranging from big architectural projects in Makati and Singapore to township master planning projects in China. Aside from her own Architectural and Urban Design firm which was established in 2018, she is also a master planning consultant to other architectural firms, with projects all over Philippines.

Her design practice is a process and data-driven design combined with years of entrepreneurship experience producing innovative, sustainable and feasible architectural and urban planning solutions. Reinforced by her strong academic background, graduating with Most Outstanding Thesis in BS Architecture at the University of Santo Tomas, Commendation on her Final Urban Design Project in Masters in Art at the National University of Singapore and a Professional Certificate in esign Thinking and Innovation from Massachusetts Institute of Technology in Boston, USA, where she also won Best Slingshot Design.

Ar. Joan De Leon-Tabinas is a Singaporebased architect and sustainability strategist with over two decades of global practice, having led projects across the Middle East, Southeast Asia, and the Asia-Pacific. She is the Managing Director and Co-Founder of CORE+ Studio, a consultancy renowed for its expertise in hospitality and sustainable design.

She also co-founded Green Building Experts Pte Ltd (GBuildEx), which offers certification preparatory courses for LEED, WELL, EDGE, PMP, and CAPM. A strong advocate for lifelong learning, Ar. Joan believes that upskilling is key to staying competitive in today’s dynamic professional environment.

She is a mentor at the National University of Singapore, an adjunct professor at Adamson University, and the visionary behind research initiatives such as CORE 360° Systemic Thinking, Cost of Change, and The Sustainability Quadrant — frameworks shaping the future of sustainable design and development.

Bernard B. Berberabe

Ar. Regalado Jasmin is currently the Lead Architect at the House of Consulting Office (HCO) in Saudi Arabia. In this role, he manages a team of architects responsible for conducting code compliance reviews. His responsibilities include ensuring that buildings adhere to the building code, which encompasses fire and life safety, accessibility, and energy efficiency. His duty also involves the preparation of reports and analyses. A graduate of the Technological Institute of the Philippines, Ar. Jasmin is a registered and licensed architect, as well as an ASEAN architect and a member of the Saudi Council of Engineers (SCE) with a professional category in architecture.

Bernard B. Berberabe is an architect and founder of VIZCODE, a digital learning platform dedicated to improving the understanding of architectural codes and standards in the Philippines. His work is driven by curiosity and a constant pursuit of learning, refinement, and innovation. He is also the principal architect of BEECUBEE Design, where he leads architectural projects in professional practice. Through VIZCODE, he advocates for empowering future architects- transforming technical challenges into opportunities for clarity, growth, and more responsible design practice.

Von Salas is a fresh graduate from the Technological Institute of the Philippines, finishing Bachelor of Sciences in Architecture, with a specialization of Environmental Planning and Design. His undergraduate thesis was primarily focused on improving the quality of life inside a social housing unit, while still complying to standards, through the approach of replicable architecture. He was once the creative director of the organization, Junior Philippine Institute of Architects Nationals, wherein he was in charge of overseeing, and responsible for creating visual needs of the organization. He is currently undergoing his apprenticeship period. His design philosophy focuses more on the exploration and experimentation of shapes to amplify on beauty, while focusing on logic, and functionality, deviating from the common use of curvilinear forms.

Harold is an architect and co-founder of 5XD, a Philippine-based architecture and design firm. His practice centres on sustainable design, environmental stewardship, and placemaking. He is committed to creating spaces that enrich lives, promote inclusivity, and harmonise with nature. As the co-convenor of Placemaking Davao, he advocates for community-led design and quality civic spaces in cities across the Philippines. Harold holds a master’s degree in Architectural Science (Sustainable Design) from the University of Sydney. A Placemaking Sandbox Fellow with the Melbourne School of Design–University of Melbourne and Place Agency, he advances nature-based, regenerative placemaking at the intersection of design, sustainability, and collective experience of place.

Regalado Jasmin
Christine Amy Buyco-Sy
Von Martin Salas
Harold Delima

Razul Jade Said

In his tenure at Ateneo de Davao University, he assumed the role of Creative Head of the Doric-UPSA, a champion in DALOY DABAW, a prominent inter-collegiate architectural design competition. His academic excellence was underscored by receiving the prestigious Best Thesis and Thesis of the Year awards. Harnessing the aftermath of his thesis, he emerged as an articulate speaker, advocating for poverty alleviation, architecture aimed at benefiting communities, and the adoption of sustainable construction methodologies. His scholarly pursuits gravitate towards sustainable design and the intricate dynamics of Philippine urban poverty.

Kier Vince L. Tinae

Kier Vince L. Tinae is an Architecture student at Lyceum of the Philippines University–Cavite, based in General Trias, Cavite, Philippines. His academic interests center on architectural design and urban spaces, with a strong focus on how built form expresses ideas and narratives. Through participation in national and international architectural competitions, he continuously explores, learns, and refines his design thinking. He translates these experiences and insights into thoughtful spatial concepts, using design as a medium for experimentation, growth, and expression. Kier Vince seeks to develop his creative and technical skills while contributing concept-driven, peoplecentered architectural perspectives.

Josh Puenteblanca is an architecture student from Lyceum of the Philippines University–Cavite, who is driven by the genuine curiosity for architecture and its impact on people and place. He understands that architecture is not only the making of structuress, but an emotional and intellectual process shaped by context, culture, and human experience. As a student, he continually questions how design can respond to the needs of real-world problems, with the hopes of creating spaces that are functional and provide solutions.

Kim Russel Manjares is a freelance creative, Junior Architect, and visionary dedicated to designing community-driven solutions that reflect local artistic, cultural, and social contexts. He advocates for peoplecentered spaces that foster a strong sense of place while promoting environmentally responsive design. A graduate of Bachelor of Science in Architecture from Lyceum of the Philippines University–Cavite, he is recognized for his leadership and active involvement in professional and community initiatives. He specializes in architectural visualization, 2D graphic design, and multidisciplinary arts. He has represented the country in international design competitions across more than twelve countries, earning numerous local and global recognitions, and is a sought-after guest speaker in academic and industry forums.

Jean Michael Diosma is a co-founder of 5XD, a Philippine-based architecture and design firm. His active role in connecting each project’s stakeholders to pursue the value of architecture from concept and design development to construction documentation stands at the core of his practice, where thoughtful collaboration transforms ideas into built form. His passion for the arts and creative media has drawn him to various social and cultural activities, from the local indie music scene to urban art. These experiences expand his understanding of today’s social landscape in relation to the built environment. He is currently pursuing a Master’s Degree in Architecture at the University of the Philippines Diliman College of Architecture.

Melanio L. Martinez Jr. is a registered and licensed architect, heritage conservation practitioner, and documentary researcher from Bulacan. A UAP Outstanding New Member Awardee, 2022 and Gawad Sineliksik recipient, 2024 he trained under the National Commission for Culture and the Arts (NCCA) Cultural Mapping Program, 2022 and served as Cultural Mapper for Zambales with Grupo Kalinangan Inc., 2019. He is a member of the Bulacan Culture and Arts Council (BCAC) and now leading community engagement initiatives with Doh Eain’s Young City Shapers and Our Heritage Homes Ltd. Philippines. Currently pursuing his Master of Architecture Major in History, Theory, and Criticism at UP Diliman, his research on early Philippine cinema flyers has qualified for nomination to UNESCO’s Memory of the World Register, underscoring their cultural and historical significance.

Ptr. | Ar. Francis Neil “Ran” B. Quijano is a visionary architect, agritect, educator, and pastor committed to transforming sustainable food systems through innovation, design, and community transformation. He is the Prime Mover and Lead Agritect of AGRITEKTURA, integrating architecture, agriculture, and technology to develop scalable solutions in food sustainability. He currently serves as Program Head of the Architecture Department at John Paul College and leads HIVE, an innovation program for nationbuilding enterprises. A BS Architecture graduate of Far Eastern University and a Master in Innovation and Business graduate at Asian Institute of Management, his work bridges education, sustainability, and inclusive development at local and national levels.

Melanio L .Martinez Jr.

A New Way of Living

MARIPOSA MEWS

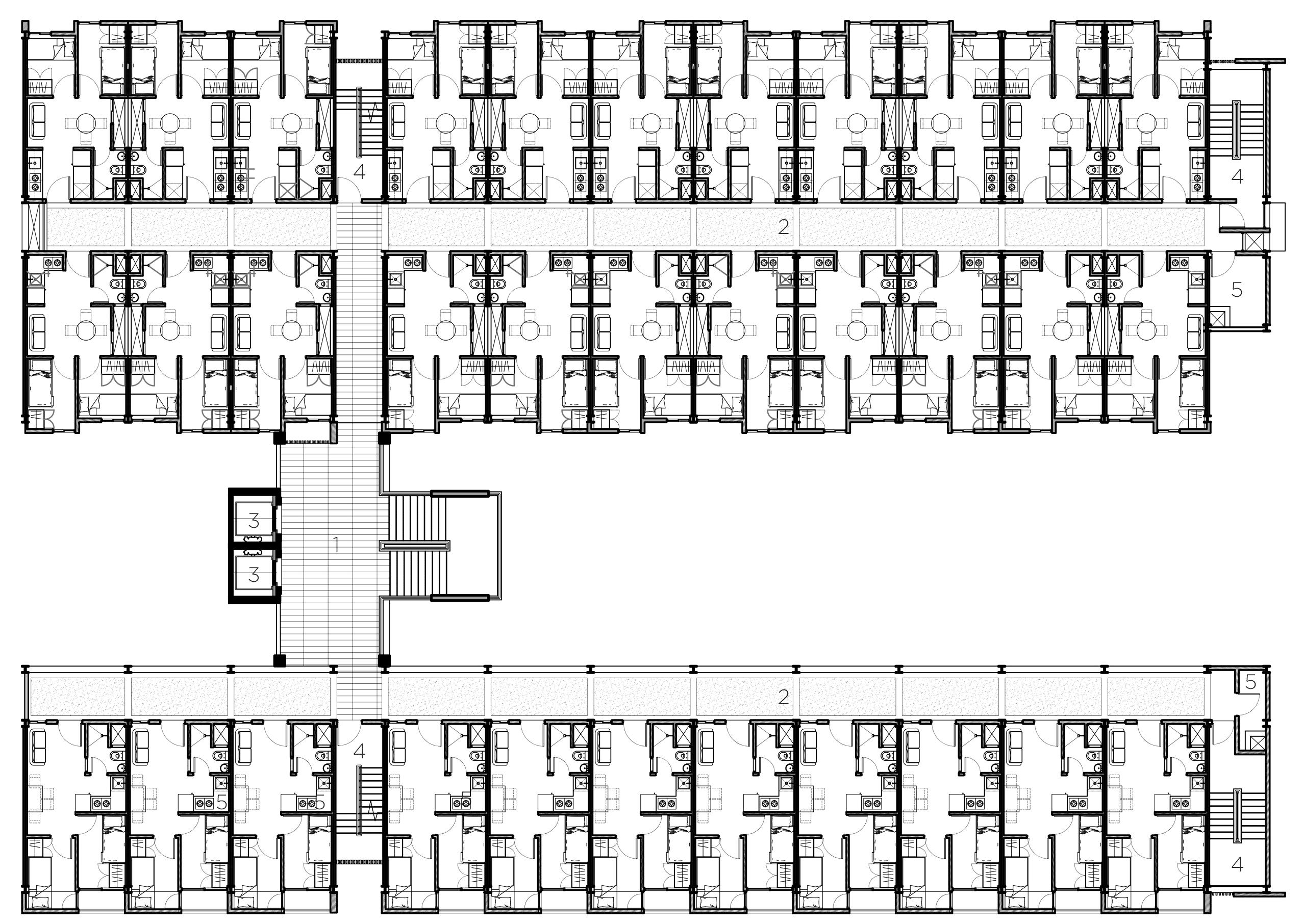
Mariposa Mews aimed to demonstrate a new way of living by understanding the local context, practising intentional design, and respecting the environment. Set on a 1,239 sq. m lot in Quezon City, Philippines this eight-storey, with a roof deck, 36-unit residential building rethinks urban density through light, air, and shared space. Homes range from one to three bedrooms with generous living spaces, organised around a skylit central atrium that draws daylight deep into the building and encourages natural cross-ventilation. The massing gently tapers, its roofline recalling a softened mountain silhouette, while small gardens, open spaces, and a communal ground floor with a lobby, fitness centre, and gathering space cultivate everyday interaction. Two basement levels consolidate parking, bicycle facilities, and building services to keep the street edge calm and pedestrian-friendly. The project balances financial viability with environmental responsibility. Certified LEED for Homes Gold project and the first of its kind in the Philippines. It has been recognised at the Dot Property Philippines Awards 2025 as the Best LEED Development and Best Boutique Developer. Mariposa Mews demonstrates that environmentally responsive living can be both market-ready and contextually grounded, offering a compact urban refuge instead of a conventional apartment block.

Drone view of the site

Design Brief

Across many Philippine cities, residential buildings rise quickly, yet too often at the expense of performance. Electricity rates remain among the highest per kilowatt-hour in the region, the climate demands near-constant air conditioning, and typical construction still relies on uninsulated walls, outdated lighting, and inefficient HVAC systems that lock residents into high energy bills and uncomfortable interiors. The result is housing that works hard to cool itself, but rarely works intelligentlywith its environment.

Against this backdrop, the client defined a focused and purposeful brief. The task was to develop a clusterof residential units with access to generous open space, supported by a comprehensive sustainability agenda that treats spatial planning,

project data

ARCHITECT/FIRM: 5XD Architecture Co.

LOCATION: Quezon City, Philippines

CLIENT: Makiling Mews Corp.

PROJECT TEAM: Harold Delima and Jean Michael Diosma

CONSULTANTS: Lea Angela Lee Diosma, Sam Canoy, and Phoebe Blanquisco (Interior Architecture), Mehrdad Eizadfar (Lighting Designer), Gianfranco Galagar (Visualisation), Danny Lim (Energy Simulation Consultant), ECCruz Corporation (Structural Engineer), Camila P. Alteza

Consulting Engineers (Mechanical, Plumbing, Sanitary, and Fire Protection Engineer), Gloval Integrated Solutions and Technological Services, Inc. (Electrical Engineer),

energy performance, water stewardship, material selection, and indoor air quality as interconnected design drivers rather than afterthoughts. The ambition is straightforward yet demanding: to shape a residential landmark that demonstrates that environmental responsibility and financial viability can coexist in the local context of the Philippines.

Plontur. Inc. (Landscape Architect)

GreenSolutions Inc. (Green Building Consultant), ELS Consultancy & Mgmt, Inc. (Project Manager)

CONSULTANTS:

Evermount Construction Corporation (General Contractor)

SITE AREA/GROSS FLOOR AREA:

1,239.54 sqm / 10,202.50 sqm

PHOTOGRAPHER

Makiling Mews Corp. and 5XD Architecture Co.

Design Concept and Intent

The design begins with its address; the project draws conceptual clarity from the former street name, Makiling, and from the owner’s intention to reinterpret the mews housing typology within a contemporary tropical context.

Makiling evokes the silhouette of a mountain. The word originates from the Tagalog word kiling, meaning to lean, slant, or be crooked, which references the mountain’s uneven, reclining profile. That image informed a gently contoured roofline and a massing strategy that softens the building’s profile against the sky, offering a subtle reminder of landscape within a dense urban district. The idea of the mews adds another layer to the project. Historically,

mews converted former stables into compact homes arranged around shared courts, encouraging proximity and everyday interaction.

Mariposa Mews adopts this spatial logic, organising residences around open communal areas rather than enclosed
The result is a breathable pocket of light, air, and greenery within Metro Manila’s dense urban fabric, fostering a compact yet connected community.

Site Analysis and Form Finding

Site Context and Constraints

The site is located along C. Benitez Street in Quezon City, with a plot area of 1,239.54

Sq.M. Access is provided from C. Benitez Street on the southeast, while established residential buildings define the remaining edges of the property. Set within a predominantly residential neighbourhood, the site is also close to commercial centres, schools, and hospitals, making everyday needs easily accessible within its urban radius.

Given the likelihood of neighbouring buildings being built up to their boundaries, the design team initially focused on reversing the façades, approaching the project from the inside out. Introducing an atrium optimised the program by opening it, influencing most of the layout. This spatial core draws daylight deep into each level and carries air from the ground floor up to the roof deck, reducing reliance on mechanical cooling. In addition to providing necessary natural light and ventilation for health and well-being, it articulates the interior circulation, providing a focal point for users to situate themselves in the building, making wayfinding, ambience, and spatial character a shared experience among residents.

Aerial view of the site.
Exploring the synthesis of Mount Makiling’s profile and traditional Mews typology.
corridors.

Materiality and Structure

Material choices reinforce this environmental logic. Planter boxes are woven into corridors and shared spaces, softening edges and introducing living greenery, while wood gives warmth against the restraint of exposed concrete floors and stone finishes. The palette is intentionally simple. It serves as a quiet backdrop that allows residents to imprint their personalities and routines on the space over time.

Structural decisions were equally deliberate, such as specifying Autoclaved Aerated Concrete blocks early in the process for their lighter weight and thermal performance, easing material transport on a tight urban site while reducing the overall structural load. This efficiency informed the sizing of structural members and streamlined construction, aligning material selection with both environmental performance and buildability.

Material palette of wood, stone, concrete, and plants.
JEAN MICHAEL DIOSMA / HAROLD DELIMA

Environmental and Sustainability Approach

Design strategies in this project revolved around orientation, fenestration, and materials. The limited site influenced the building volume from the start; hence, the team focused on optimising the building envelope by maximising views and shading, while managing privacy and material selection. Through a deliberate integration of passive and active design strategies and performance-driven systems, the project achieves measurable gains in energy and water efficiency while reducing overall emissions. Enhanced ventilation, low-impact materials such as AAC in place of conventional hollow blocks, rainwater harvesting, and resource-conscious construction methods work together to create healthier indoor environments, lower operating costs, and a smaller environmental footprint. The result is a durable, climateresponsive building that conserves resources, supports occupant well-being, and demonstrates how coordinated sustainability approaches can deliver long-term environmental and economic value.

Notable Collaborations

An integrated design approach brought the architects, engineers, consultants, and client into the process from the very beginning, aligning spatial vision with performance, cost, and constructability. It treats the building as a connected system rather than a collection of parts, allowing environmental, social, and technical decisions to inform one another in deliberate and measurable ways. The result is a more resilient, efficient project, with fewer compromises and clearer outcomes for both users and developers.

Strategic building facade design with fenestration and shading fins.

Special features or Innovations

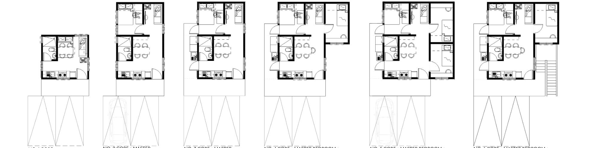
Flexibility was treated as a core feature, not an upgrade. From the outset, the units were planned to evolve with their occupants. Residential units can be combined horizontally by linking adjacent units through a new internal hallway, or vertically by transforming a room into a private stair that connects two or more levels. This allows residents to expand their homes over time without relocating, responding to changing family structures

or work patterns within the same building. The strategy acknowledges a simple reality. Urban life is not static.

Internal zoning adds another layer of adaptability. Owners can define controlled access to certain areas, enabling part of the unit to function independently for extended family, guests, or vacation use while preserving privacy and spatial clarity.

Indoor environmental quality was equally prioritised. Each unit receives a continuous supply of fresh air through a dedicated ventilation system, complemented by operable windows and doors that capture prevailing breezes for natural cross ventilation. The result is a home that can be sealed when needed yet remains breathable by design, aligning comfort with health in a hot, energy-intensive climate.

Internal zoning adds another layer of adaptability. Owners can define controlled access to certain areas, enabling part of the unit to function independently for extended family, guests, or vacation use while preserving privacy and spatial clarity.

Indoor environmental quality was equally prioritised. Each unit receives a continuous supply of fresh air through a dedicated ventilation system, complemented by operable windows and doors that capture prevailing breezes for natural cross

ventilation. The result is a home that can be sealed when needed yet remains breathable by design, aligning comfort with health in a hot, energy-intensive climate.

JEAN MICHAEL DIOSMA / HAROLD DELIMA

A Sanctuary of Faith, Healing, and Transformation

ASanctuary of Faith, Healing, and Transformation is envisioned as a spiritual landmark within Tengah, Singapore’s first car-free district designed around walkability, greenery, and community-centered living.

Conceived by CORE+ Studio, headed by Ar. Rizalito Tabinas and Ar. Joan De Leon-Tabinas, in collaboration with CIAP under Ar. Theodore Chan, former President of the Singapore Institute of Architects, the church represents a contemporary

interpretation of sacred architecture within a future-oriented urban ecosystem. Designed to accommodate 1,000 worshippers, the building is envisioned not only as a place of prayer but also as a sanctuary for healing, reflection, and community transformation.

Elevation, Tengah Catholic Church

The architecture expresses a powerful spiritual presence through a minimalist yet symbolic form. The façade is anchored by a monumental crucifix rising along a vertical light slot, creating a dramatic visual focus that represents the connection between earth and the divine. This vertical axis of light serves both symbolic and environmental purposes, drawing natural illumination deep into the sanctuary while emphasizing the spiritual ascent that defines the worship experience. The building’s clean sculptural geometry allows sacred symbols to stand prominently while maintaining a calm and contemplative architectural language suited to the surrounding urban landscape.

Elevation
Roof Plan

The arrival sequence to the church is intentionally ceremonial. A broad flight of steps and a welcoming forecourt guide visitors toward the main entrance, forming a gentle transition from the public realm to the sacred interior. In keeping with Tengah’s pedestrian-oriented planning, the church emphasizes walkability and openness, welcoming residents approaching from surrounding green corridors and community spaces.

The arrival sequence to the church is intentionally ceremonial. A broad flight of steps and a welcoming forecourt guide visitors toward the main entrance, forming a gentle transition from the public realm to the sacred interior. In keeping with Tengah’s pedestrian-oriented planning, the church emphasizes walkability and openness, welcoming residents approaching from surrounding green corridors and community spaces.

Main Sanctuary

One of the defining architectural features of the building is the series of tall stained-glass windows lining the sanctuary wall, representing the Stations of the Cross. These vertical panels introduce filtered light into the interior, transforming sunlight into vibrant colors that animate the worship space throughout the day. The play of light and color creates an atmosphere of transcendence and serenity, reinforcing the sacred character of the sanctuary while enriching the spiritual experience of the congregation. Adjacent to this façade, a perforated architectural screen introduces a delicate pattern of light and shadow, providing passive shading and ventilation while enhancing the building’s visual depth.

Central to the design is the integration of 360° Systemic Thinking, a framework developed by CORE+ Studio that views architecture as part of an interconnected environmental and social ecosystem. Through this approach, the church functions as a sustainable micro-environment within Tengah’s broader green infrastructure. Passive cooling strategies, daylight optimization, and high-performance building envelopes reduce energy demand, while landscape integration supports biodiversity and microclimate cooling. Rainwater harvesting and green landscape zones contribute to water sustainability while reinforcing the connection between nature and spirituality.

Courtyard
CHURCH OF SAINT JUDE
JOAN

Beyond its architectural presence, the church is designed as a place of healing and community support. The 1,000seat sanctuary forms the spiritual heart of the complex, complemented by spaces for counseling, small group gatherings, administrative offices, a priests’ residence, classrooms, and an urban garden. Reflection gardens, shaded walkways, and multi-purpose space allow the church grounds to remain active throughout the day, inviting quiet contemplation even outside worship hours.

Within the progressive landscape of Tengah, A Sanctuary of Faith, Healing, and Transformation demonstrates how sacred architecture can evolve alongside sustainable urbanism. Through thoughtful design, symbolic expression, and systemic environmental integration, the church becomes more than a religious structure—it becomes a living sanctuary where architecture, community, and nature converge to nurture faith and human well-being in the heart of Singapore’s newest forest town.

HARMONIZING WITH NATURE & COMMUNITY: Contextual Design and Solar Integration

The design of this sanctuary is deeply informed by its surrounding context and the sun path. The adjacent Plantation Farmway (green-shaded) provides a green buffer and promotes biodiversity, which the structure leverages while considering solar orientation. The neighboring Educational Institution (orange-shaded) offers a symbiotic relationship, potentially drawing students to the sanctuary’s catechism classrooms. The proposed Tengah Pond opposite the site integrates a bioswale, further enhancing the environmental approach. Pedestrian access is thoughtfully provided from all sides save the rear, with vehicular access via Tengah Garden Ave.

HARNESSING PREVAILING WINDS: Design for Optimized Sanctuary Ventilation

Analysis of the site’s wind rose reveals the yearly wind distribution, guiding the sanctuary’s ventilation strategy. The design leverages these prevailing winds through carefully positioned openings and a central courtyard, which collectively work to enhance crossventilation and optimize airflow within the structure.

ACCLIMATED Sports + Multipurpose Hall

Heat waves happen more often and at a dangerous level, causing environmental and occupational hazards - from forest wildfires to the increasing cases of heatstroke. In the Philippines, where public (and some private) schools have no air-conditioning, classes are suspended as temperatures soar up to 48 degrees Celsius. Moreover, funding for schools in the Philippines is limited. Classrooms made of bare concrete walls and galvanized iron roofing sheets offer little respite or none at all.

Concurrently, the building and construction industry accounts for up to 40% of global emissions, largely contributing to climate change. Sustainable design, now more than ever, should go beyond limiting resources to restoring resources. Every site is endowed with natural features and inherent attributes that uniquely hold the answers to the design brief. Inspired by Michelangelo’s creative process, when he said, “Every block of stone has a statue inside it, and it is the task of the sculptor to discover it.”

Hence, Avally Design Studio coined ACCLIMATED ARCHITECTURE, encapsulating the principles of Regenerative Architecture, Climate-Adaptive Architecture, and Vernacular Architecture all in one. Taking cue from the project site itself, adapting to the climate and environment, and working with local imagery, materials, and workmanship, sculpting a building out of the landscape.

project data

ARCHITECT/FIRM: Avally Design Studio

PROJECT TEAM: Lead Architect - Christine Buyco-Sy; Team Kristine Joy Mole-Rellon, Jamila Jae L. Kalilanngan, Karl Labrador, Christian Emmanueal Vistal

CONSULTANTS: Jed de Guzman and Steven Babate (Hayag Farm) - Bamboo detailing and structural guidance;

Design Brief

Global warming is starkly real. In the Philippines, heat waves now push temperatures as high as 48 degrees Celsius. This is the present reality: Classes are cancelled because most schools are not airconditioned. Classrooms are made of bare concrete walls that simply trap heat, making them an uncomfortable space for a learning environment.

Ronnie Yumang (Balika Rammed Earth) - Rammed earth construction expertise

PROJECT LOCATION: Davao City, Philippines

CLIENT: Davao Medical School Foundation

SITE AREA/GROSS FLOOR AREA: 8,000 sqm

COMPLETION DATE: Target November 2028

IMAGES BY: Avally Design Studio

This local medical school’s proposed sports hall with classrooms was an opportunity to address this growing challenge, aligning with the client’s vision:

1. Create a relaxing environment in nature as a holistic medical school.

2. Contribute to the local health of the region by regenerating the local ecology.

3. Strengthen local identity to showcase this to visiting academics from around the world.

4. With a limited budget, find creative ways to make it cost-efficient.

The buildings are oriented to catch northeast winds (October–March) while blocking harsher southwest winds. A “forest patch” of 100+ native trees cools the microclimate and creates student gathering spaces.

Site Context and Constraints

The project site is in Davao City, located at the southern tip of the Philippines. It’s a 30-minute drive from the City Center. It sits on higher ground with a sloping terrain, surrounded by lush vegetation. The site has an approximate area of 8,000 sqm, which forms part of a 6-hectare campus of Davao Medical School Foundation, Inc.

There is an existing gym— which will be conserved and upgraded to save costs and for sustainability—with breathtaking views of Mt Apo, the highest peak in the Philippines. What is also exciting is the abundance of foliage, especially bamboo. We talk about rootedness in place. What better way than to use this local, renewable material inspired by the site.

Design Concept and Intent

With this, three (3) core strategies encapsulated the project’s vision and more:

1. Climate-responsive Approach — to design with wind, sun, and landscape.

2. Regenerative Materials — to use materials and methods that restore, not deplete.

3. Vernacular Architecture — to root design in local culture, skills, and identity.

These three (3) overlapping elements make up what we coined as Acclimated Architecture.

The use of regenerative materials – rammed earth and bamboo is in harmony with the environment.
The spikey component reminiscent of the Durian is used repeatedly to create a simple yet striking form that is culturally rooted.

Materiality and Structure

The locals and the clients themselves strongly identify with the Durian—a local spikey fruit—because when you say Durian in the Philippines, it’s synonymous with Davao City. Computational design aided in generating this repetitive, spiky form, inspired by the durian fruit, using bamboo. This design was a blend between local materials & craftsmanship with technology.

The Sports Hall is enveloped by this spikey component, creating a multi-layered bamboo roofing from skin to ceiling, which terminates on a roof deck at the other end. This bamboo roof is highly porous, which allows it to breathe in the tropical climate. A central feature is the inverted pyramids with intricate weaving (reminiscent of local bamboo baskets), which allow for filtered natural light to seep through the expansive space.

Age-old natural systems and modern science are fused together for the building’s structural integrity. To achieve the continuous length of the main supports, surrounding every splice of the bamboo are 6-7 bamboo poles with internal webs, installed by the artisans for additional support. It uses well-tested structural details adapted from earlier bamboo installation methods.

The result of this assemblage is a simple yet striking form that grounds itself in place and culture. Architecture that is poetic; a part of a larger ecological system.

Each layer of the building features biophilic design. The western side is planted with hundreds of native trees to create a cooler microclimate, as well as endemic plants on terraced garden to courtyard green spaces for a relaxing environment. The open layout allows for cross-ventilation as well.

RUNNING TRACK Ramp for accessibility doubles as a sloped running track, complemented by stairs and seating as an outdoor amphitheater for students.

CLASSROOMS By conforming to the terrain, a courtyard space opens the deep Multipurpose Hall to cross-ventilation and improves environmental quality.

SPORTS HALL The bamboo roofing is highly porous, which allows for hot air to breathe out. Natural daylight is diffused as it seeps through the bamboo-weaved inverted pyramid.

Environmental and Sustainability Approach

The new buildings were oriented to capture the northeast winds from October to March, while shielding against the harsher southwest winds for the rest of the year. The Sports Hall’s highly porous, bamboo-layered roof allows hot air to escape easily. It faces the vista, while three levels of lecture rooms are tucked into the slope to minimize cut and fill — cool, shaded, yet still connected to the view.

At the base is an amphitheater integrated into the terrain. Circulation across the slope is provided by a 200-meter ramp, shaped like a running track, with steps and seating that not only serve as a pathway, but also as an outdoor hangout for students. Along the western edge, over a hundred species of native and endemic trees were planted, serving as a “forest patch” for a cooler microclimate while creating outdoor spaces for students to gather.

The façade is wrapped with balconies for extra sun protection, with an alternating zigzag pattern so trees may provide shade and have enough room for them to grow in their pockets. Biophilic elements are intricately placed around the vicinity: courtyards with bamboo gardens, rooftop spaces for wellness and medicinal plants, and even amphitheaters with built-in planting boxes. The goal is always the same — bring nature into the heart of the learning environment.

Special Features

Another highlight of this project is the use of a regenerative material, RAMMED EARTH, with very minimal embodied carbon. True regeneration begins when we no longer see the earth as a resource to extract, but as a

SECTION The Sports Hall features a porous bamboo roof that vents hot air efficiently. Oriented toward the vista, three levels of lecture integrated into the terrain.
Biophilic features are incorporated all throughout
Biophilic features are incorporated all throughout the Sports Hall – from the open layout of the lobby for cross-ventilation to the planting

living part of our own existence. Hence, a hybrid structural system was adopted: steel columns and reinforced slabs support the entire building, while the 400mm thick rammed earth walls — though load-bearing — serve as the building’s “skin.” This is a more sustainable approach than cement, which carries high embodied carbon.

Rammed Earth’s thickness absorbs heat, creating a cooler indoor climate, reducing outside temperatures by as much as 10 degrees Celsius. It also lowers construction costs by at least 30%. It has a beautiful finish. Once formworks are removed, there is no need for plastering and painting.

Other Innovations

Davao City is prone to earthquakes. Hence, the 400mm thick rammed earth wall uses a locally patented shear key interlock system that improves horizontal load resistance. This innovative design ensures that each section of the wall locks securely, distributing seismic forces evenly, minimizing the risk of structural damage.

Bamboo slats were also used as an alternative to steel rebars, to allow thinner rammed earth for balcony parapets. It is finished off with limewash to enhance weather resistance.

This culmination of materials achieves a simple but striking monolithic look. Together with the bamboo roof, the rammed earth structure is in harmony with its environment.

Architecture is much more than an aesthetic pursuit and a technical solution — it is a relationship with the land and every life that surrounds us.

throughout the Sports Hall – from the open layout of the lobby for cross-ventilation to the planting of native and endemic
planting of native and endemic trees.

AFFORDABLE HOUSING FOR ISLA VERDE

A person unable to obtain even a tiny house because of cost is deprived of their essential needs. It would resort in building houses that do not follow building codes, leading to in the development of informal settlements. As the informal settlements grow, so does the number of people who can not afford a decent house capable of holding safety, sanitation, and the well-being of users. In Davao City, with several informal settlements, 66 959 (PSA, 2019) are needed for the lower-income group to afford a housing unit.

The study focused on an informal settlement (Barangay 23-C) in Davao City with the question of how construction methods and alternative materials create affordable housing for the poor. The researcher examined cost-effective materials and methods from the scientific journals published worldwide (case studies), as well as quantitative and qualitative research design survey questionnaires, and interviews. Regarding alternative material, the data collected were analyzed and tabulated on an ordinal scale from economical to socialized. In contrast, the data collected regarding the construction method were analyzed using descriptive analysis. The overall results will provide recommendations for creating affordable housing.

Balcony view of daily life: tricycle passing, garden work below.

Turning community waste into sustainable, affordable alternative building materials.

Davao City’s housing crisis fuels informal settlements, posing safety risks, garbage disposal issues, and fire hazards, as seen in the Bolton Bridge, Punta Dumalag, Isla Verde, and Bucana fires. These settlements compromise the basic needs of residents and neighboring communities. The research addresses the pressing housing issue by exploring alternative materials and construction

methods for the urban poor. It seeks cost-effective and sustainable solutions, particularly for Barangay 23-C (Isla Verde), addressing safety concerns and evaluating the advantages and disadvantages of alternative approaches.

Polluted waterways and scattered waste surrounding a struggling Isla Verde.

The design concept is inspired by incremental construction (related to CM) and Earthship biotecture (related to ABM). Together, but together they share a common philosophy: sustainability through locality and empowerment. This offers low-income communities a chance to create affordable but adaptive, resource-efficient, and community-driven housing. By grounding design and CM in context, culture, site, and availability of materials (such as plastic waste on site), the project aims to redefine the housing process as one empowerment rather than just an outcome. A house utilizing ABM and Incremental Construction allows residents to take pride in ownership & skill making, sharing of insights, practices, bayanihan (a cultural fit), and modify their homes over time. The Incremental Construction method offers a very flexible way to build houses, based on the owner’s availability of funds or level of involvement in the construction process.

Community bonding through local trade, shared gardens, and everyday collaboration.
Daily life unfolding in an Earthship & Incrementally built home.

By 2030, urban housing scarcity is expected to intensify, driven by the allure of urbanization for job seekers, population growth, and the demand for conventional materials, rendering housing unaffordable and impacting the less fortunate. In Davao City, we face rising informal settlements and associated challenges, such as insecure tenure and inadequate services, but with an optimistic outlook on our Filipinos. The Philippines will have a community around the country where they can replicate this concept and CM with a circular community where everyone can afford housing, and discarded materials have value since they are the primary construction materials. There are no existing waste management issues.

The construction materials are similar to conventional materials, but the ingredients in ABM are derived from municipal, agricultural, and industrial by-products, creating structures that respond to local conditions. However, the column and beams are made of the same conventional materials, so the structural integrity is not compromised.

In line with Environmental and sustainability, below is a list of key design strategies and outputs:

• Principles & Goals for affordable, ecological, & safe housing

• Circular community approach

• In-depth Analysis on Community Local Resource Mapping

• Applied the concept of 45 degrees of Separation from Hiroshi Nakamura and NAP Architectural Design Office, where different types of unwanted materials are segregated.

• Development of a resettlement organizational structure that is intended only for the Brgy. 23-C Isla Verde, Davao City.

• Development of a bootcamp (Symposium) Organizational structure for community engagement, as this will relay processing, harvesting, and construction methodologies for the alternative building material.

• An affordable cost for an Incrementally Constructed two-storey house would be only Php. 487,359.20 compared to a conventional house that can cost 696,227.85 or higher.

• Affordable cost on a Tenement Housing Tower with ABM materials would cost only Php. 259, 562, 737.3 compared to a tower with the same design but with conventional materials

• Demolition and construction phasing are tailored to the site’s specific needs.

• Integrates the United Nations Sustainable Development Goals no. 1, 9, 11, & 12

• Earthship Biotecture Principles: Natural and Repurposed Materials; Maximizing Solar, Thermal, & Wind; Water harvesting; Contained Sewage Treatment; & Food Production.

Transforming discarded waste into functional, affordable, and sustainable construction components.

LEGEND

1 Non-load bearing plastic eco-hollow blocks

2 Compacted soil with tire aggregates

3 12x12 or 24x24in plastic tiles

4 Plastic bottles

5 10x100x100cm pressed cocofiber insulation

6 Plastic panels made from municipal waste for cabinets

7 Bamboo stem

8 Sliced bamboo

9 Custom cut 10x20x1000mm tire

10 Plastic lumber for stairs only

11 1x4x18in wood lumber

12 20x100cm plastic planks

Plastic materials are used to create a variety of products, including curtains, plastic hollow blocks, plastic tiles, plastic planks, and plastic lumber. Bamboo became railings and furniture. Used tires were used as nonslip stair details, garden pots, and backfill for areas not exposed to sunlight and water sources. Coconut waste was used to create pressed insulation for the ceiling.

The development utilizes the concept of Incremental Construction, featuring core units designed for later expansion. These units are constructed using modular, easy-to-assemble components that allow families to upgrade gradually.

2-Storey Incremental House Elevations
2-Storey Incremental House Sections

• On the topic of Tires and Industrial Solid Waste

• Using Rubberized concrete for non-load-bearing applications, such as partition walls, garden walls, pavements, or pathways, can lead to improved toughness and durability.

• On Plastics and Municipal Solid Waste

• Innovations from plastics include modular cement eco-bricks and plastic bottle wall systems made from shredded or filled plastics, creating lightweight, durable, and stackable building units. These materials reduce reliance on costly construction supplies, lower transportation costs, and improve insulation. By turning community waste into building components, they support local recycling, make housing more affordable, and empower residents with simple, sustainable construction methods.

• On Coconut Fibers & Agricultural Solid Waste

“In terms of the overall construction, it offers a shared space for social interaction, urban farming, & community activities, which reflects our Filipino values such as pakikipagkapwa (togetherness). In an incremental & earthing house, passive cooling, ventilation, community participation, and daylighting are highlighted in every possible design aspect to reduce reliance on mechanical and electrical energy, creating opportunities and a sense of stewardship.” Use locally available ABMs sourced within a

• Agricultural Solid Waste, such as rice husks, straw, coconut fibers, and maize cobs, can be converted and engineered into lightweight and adequate insulation.

• Another use of it is by mixing it with plaster to create a unique architectural texture that is both aesthetically pleasing and cost-effective.

Tenement Housing Typical Second Floor to Fourth Floor Plan
Tenement Housing Ground Floor Plan

UPLIFT

A Blueprint for Replicable Housing in

Pasig City

This project is an answer to Pasig City’s housing crisis due to the lack of socialized housing within the city, which resulted in overcrowded informal settlements along the Pasig River, where thousands of Informal Settlers live. The project enagages with the theme “Re:Forge” by redefining social housing design in the Philippines, in order to improve the quality of life of Informal Settler Families (ISFs), through challenging the conventional, by proposing a replicable housing model concept that is not only just affordable, but also climate responsive, and fosters social cohesion. With the project being situated in Pasig City, the project develops a replicable housing

framework that still complies with Department of Human Settlements and Urban Development (DHSUD) standards, while remaining adaptive to varying site conditions and urban contexts, rather than imposing a fixed architectural form.

The design is conceptually inspired by the Pasig River, translating its principles of flow, connectivity, and connectivity. Replication is redefined not as a uniform repetition, but as a flexible architectural logic capable of responding to climate, orientation, and community needs. Shared spaces and visual permeability are integrated to support social

interaction, and collective living, reinforcing Filipino cultural values within high-density environments.

The project ultimately envisions socialized housing as a Filipino Settlement where informal social interaction, spatial adaptability, and environmental responsiveness shape everyday lives. Through human-scaled density, shaded traditional spaces, and porous communal spaces, Uplift positions housing as a resilient, evolving system that reflects communal spirit and urban realities of contemporary Filipino environments.

ABOVE Exterior perspective of the development with ground floor commercial components

UPLIFT: A Blueprint for Replicable Housing in Pasig City
VON MARTIN SALAS

The client for this project is the Local Government of Pasig City; the city is currently facing housing issues due to a lack of socialized housing, leading to overcrowded informal settlements and lowered living standards for low-income communities; which also resulted in most of its residents residing along the Pasig River, having a number of 10,000 ISFs living along the river. Rapid urbanization, limited resources, and outdated construction techniques hinder the creation of viable housing alternatives. Rising land prices and insufficient land parcels increase vulnerability for households, exacerbating flooding problems in the city. The beneficiaries of this housing project are the residents living along the Westbank Floodway, Maybunga, Pasig City, the LGU is targeting of providing 600 units, catering an approximate number of 136 ISFs.

Site Development Plan
Amenities like bicycle parking are included in the community.

The concept, to which the design of this project was inspired, was inspired from rivers. Rivers play a crucial role in the earth’s ecosystem. they transport water, sediments, and other nutrients across different landscapes. They also serve as an important source of water for drinking, irrigation, and transportation. The concept exhibits connectivity, and diversity, since it represents natural flow that connects to different places, improving the lives of people. The overall design of the project will revolve on reflecting connectivity and introducing a new way of living for the beneficiaries. What also guided the project’s overall design intent was the philosophy of the 2023 Pritzker Prize winner: Diebedo Francis Kere, wherein he said “My philosophy is to say that everyone deserves luxury in terms of quality. So the poorest, but also the rich. I want the building to inspire the user. To make the user happy.” He emphasizes equal access to high-quality architecture regardless of socioeconomic status. By providing displaced communities and informal settlers with dignity, comfort, and thoughtful design, it challenges the idea that luxury is an exclusive privilege. Despite financial limitations, the project aims to create well-thought-out, motivating environments that enhance well-being and establish architecture as a transformative and inclusive force for everyone.

The site is located at Brgy. Kalawaan, Pasig City; the lot falls under mixed-use occupancy according to the city’s zoning map, making it fit for the project. However, the surrounding structures of the site are mostly single-detached residential buildings. The lot has a total area of 1.4 Hectares, allowing the city government to cater more of the backlog numbers. This site could be used as a pilot site, in order to design a housing concept that can be replicated and adopted by the city government. This site was chosen due to the near proximity of places where residents can get their basic needs, such as schools, supermarkets, a place for employment, and transportation. The site’s location allows the project to still be part of the community, and not be totally isolated, being located to a different city, wherein ISFs will have to travel a huge distance going to work. The site is also adjacent to 3 roads surrounding the site. However, the 2 roads located at its front and right side are too narrow, wherein vehicles will have a difficult time passing by. Another constraint found for this site is its inevitability to experience flooding due to its near proximity to the Pasig River.

With the trend of sustainable architecture, there is a need to search and use alternative construction materials to alleviate the concern of carbon emissions contributed by the construction industry. So for this project, the material that was mainly used for this project are Autoclaved Aerated Concrete (AAC) Panels. Compared to conventional

Form Translation

1 SOURCE Concept and initial massing is inspired from the river’s origin - the foundation of a community.

4 CONFLUENCE Paths and open spaces intersect to encourage social interaction and cohesion. They also provide natural ventilation throughout the building.

7 CHANNELING Mass subtracted to bring natural light and ventilation into interior hallways.

2 EROSION & BRANCHING The mass is carved to form courtyards, establishing circulation cores and access.

5 DELTA Upper mass expands to form a canopy for the vertical circulation and cores, representing a transition between built environment and open space for the roof deck.

8 FLOW Circulation and visual movement are emphasized to enhance spatial continuity across levels.

3 MEANDER The mass is carved to form courtyards, establishing circulation cores and access.

6 EMBANKMENT Railings define edges and provide safety for users.

9 RIVERSIDE & RIVER Canopies are added at the ingress/egress of the building.

B01-02 Ground Floor Plan

concrete, AAC panels reduce waste by up to 30% and greenhouse gas emissions by 50%, making them a sustainable building material. By reducing the need for extra insulation and increasing energy efficiency, their thermal insulation qualities lower carbon emissions. AAC ensures a safe construction environment by reducing landfill waste, eliminating CO2 while in use, and being non-toxic and non-combustible. It is made of natural and recyclable materials. AAC panels have a low life-cycle cost, are reusable, and are certified as a Cradle-to-Cradle product under LEED standards. Additionally, they are less expensive than traditional systems because they require less labor, fewer materials, and a shorter construction time.

During the conceptualization phase of the project, common problems observed in typical housing structures made by the government were listed down:

lack of light, and air ventilation passing through the units, the units were too cramped, space planning showed electrical inefficiency resulting in more usage to electrical power. In order to solve these, the units have to be increased in length instead. With its length increased, while still in compliance to DHSUD’s standard housing unit areas, this allowed for possibilities of including balconies, a floor to ceiling sliding doors, light wells, and wind catchers, to assure cross ventilation within the units. With the use of AAC Panels, thermal comfort was also achieved due to low heat transfer. The project also used thermal dynamic facade, in order to mimic how dynamic a river is, this allowed the units to have balconies, and was able to provide sun shading to every single units. Given how small the standard unit sizes are, the project relied on microliving planning methods by having the units have an open plan, which gives opportunities to unit

occupants to place beddings on the ground or any other furniture, if necessary. With project being a housing model concept, it features a replicable feature, meaning that this could be duplicated to any site or to any location, due to the layout’s adaptive nature.

AAC Floor & Ceiling Panels

Concrete smooth-look texture render finish directly applied to aerated wall panels including interior walls except vent shaft.

Steel Framing (All metal building component)

I-Beam steel painted with dark grey automotive semi gloss paint.

AAC Wall Panels

Fine texture render finish painted with off-white semi-gloss paint

Floor to Ceiling Openings

Grey powder-coated local doors and windows aluminum frame

VIZCODE is a technology-driven learning platform that repositions architectural codes and standards as visual, interactive, and spatial knowledge systems. Developed for architecture students, licensure examinees, and professionals in the Philippines, it addresses the long-standing difficulty of interpreting dense, text-based regulations by translating them into structured diagrams, guided explanations, and applied digital tools.

The platform consolidates key Philippine building laws- including The National Building Code of the Philippines (PD 1096), Accessibility Law (BP 344), Fire Code (RA 9514), Subdivision and Condominium (LawPD 957), Economic and Socialized Housing (BP 220) and the Green Building Code - into a cohesive visual framework designed for comprehension and retention. Through the integration of gamification,

artificial intelligence, and collaborative learning environments, VIZCODE transforms code study from passive reading into active engagement.

By reframing how regulatory knowledge is accessed and understood, the platform supports not only licensure preparation but also long-term professional competence. VIZCODE ultimately advocates for a generation of architects who are both design-driven and code-literate - equipped to practice with greater clarity, safety, and responsibility within the built environment.

The VIZCODE Discord serves as a collaborative space for discussion and guided review. Source: VIZCODE Website

VIZCODE began from a simple but persistent observation within architectural education in the Philippines: building codes are among the most important foundations of practice, yet they are also some of the most difficult materials for students and young professionals to fully understand.

Most encounter them as dense legal textfragmented across multiple laws, written in technical language, and often studied through memorization rather than comprehension. While this may be sufficient for examinations, it rarely translates into long-term professional confidence. The gap between reading the code and applying it in design becomes evident early in practice.

VIZCODE was developed as a response to this condition.

Rather than treating regulations purely as written law, the platform approaches them as spatial systems.

Architectural codes govern dimensions, movement, accessibility, fire safety, and environmental performance - elements that are inherently visual and experiential. By translating provisions into diagrams, spatial breakdowns, and guided visual frameworks, the platform allows learners to see how rules operate within the built environment.

The content consolidates major Philippine regulatory frameworks, including The National Building Code of the Philippines (PD 1096), Accessibility Law (BP 344), Fire Code (RA 9514), Subdivision and Condominium (LawPD 957), Economic and Socialized Housing (BP 220) and the Green Building Code. Instead of reproducing the codes in full, the platform focuses on provisions that can be visualized, compared, and operationalized - prioritizing clarity and practical relevance.

The VIZCODE Library provides full, unfiltered texts of building codes, laws, and standards. Source: VIZCODE Website

Isolation Mode enables focused study of specific laws through detailed visual breakdowns. Source: VIZCODE Website

Comparison Mode presents multiple building codes side-by-side for clearer regulatory analysis. Source: VIZCODE Website

Structurally, the system mirrors how architects process information. Topics are organized hierarchically, allowing users to understand relationships between provisions rather than encountering them in isolation. This structure is supported by three primary study environments.

Isolation Mode enables focused review of specific laws or topics, allowing users to study provisions in depth without distraction. Comparative Mode presents multiple regulations side by side, making it easier to identify overlaps, conflicts, and distinctions. Game Mode introduces recall-based challenges and scenario exercises that encourage application rather than passive reading.

Gamification is not treated as entertainment, but as a cognitive tool.

project data

ARCHITECT/FIRM: Vizcode.

LOCATION: Manila, Philippines

WEBSITE: vizcodeph.com

CLIENT: Private/Self-Initiated Project

PROJECT TEAM:

Founder/Project Lead: Bernard B. Berberabe (Architect)

Co-Founders: Martin B. Berberabe, Antonino B. Berberabe (Industrial Engineers)

Web Conceptual Artists: Miguel Macam, Althea Poblete, Jarvis Cal Ortiz, Luis Ilagan, Angela Badiola (Architects) Research Team: Franchesca Lopez, Andrea Ugay (Architects)

Web Developer: Andie Poblete

CONSULTANTS:

Jeboy Giron - PD 1096 Consultant

Armand Eustaquio - BP 344 Consultant

Enkiel Cuvos - BP 220 & PD 957 Consultant

Matthew Louise Celis - RA 9514 Consultant

VISUALS/DIAGRAMS: Vizcode

By requiring participation - dragging, selecting, recalling -the platform reinforces memory pathways that traditional reading often fails to activate. The result is stronger retention and faster recognition during both examinations and design work.

A more recent layer of the platform is the integration of artificial intelligence through its in-system mentor, QUBI. This tool assists users by explaining complex provisions in simplified language. Its role is not to replace study, but to support it- functioning as an on-demand guide that helps learners unpack difficult topics at their own pace.

Beyond the interface itself, VIZCODE has evolved into a collaborative learning environment. Community spaces allow examinees and professionals to exchange insights, form study groups, and participate in discussions. Supplementary programs such as masterclass sessions and talks with licensure topnotchers extend the platform’s educational reach, grounding digital learning in shared professional experience.

The project’s development reflects this same collaborative spirit. Architects, researchers, designers, engineers, and licensure topnotchers contributed to its formation. Regulatory content underwent structured research and validation, while visual artists translated technical provisions into diagrams and animations. Systems engineers optimized usability and workflow, ensuring the platform remained both academically rigorous and technically accessible.

While VIZCODE exists in a digital medium, its implications are rooted in the physical built environment. Clearer understanding of codes leads to safer buildings, more inclusive spaces, and more environmentally responsive design decisions. In this way, the platform contributes indirectly but meaningfully to the quality of architectural practice.Ultimately, VIZCODE is less about simplifying codes and more about reframing how they are learned. It proposes that regulatory literacy can be cultivated through visual cognition, structured systems, and technological supportaligning the study of law with the spatial mindset of design.

By doing so, it positions code mastery not as an academic burden, but as an integral and empowering component of becoming an architect.

REDEFINING FOOD SUSTAINABILITY

AGRITEKTURA’S Innovative Path to Future-Proof Systems

The Philippines is in a critical need in upgrading food processing systems due to inefficiencies in infrastructure, the lack of adaptability in adopting modern technology, outdated methods in farm practices, and substantial post-harvest food losses. As agriculture is always a pivotal element in the economy, it is a challenge that needs urgent attention. AGRITEKTURA was formed in response to this need, with the innovation of creating a new interdisciplinary enterprise in transforming sustainable developments through intersectoral approaches and forward-looking strategies. AGRITEKTURA represents an integrated way of thinking that combines Agriculture, Architecture, Technology & Engineering, Education, Environmental Protection, Fitness & Wellness, Social Entrepreneurship, Impact Investments, Community Transformation, Communication, and Tourism. This is because AGRITEKTURA promotes sustainable and resilient change through an integrated and progressive approach to development. At the heart of every endeavor of AGRITEKTURA is the TRAILS Framework –Transformative, Revolutionary, Alternative, Integrated, and Leading Edge Solutions.

This framework not only addresses the problems in the agricultural sector but also supports long-term sustainability in it by encouraging innovation and community engagement. Its iconic solution in this area is the SHIP System that stands for Sustainable, Smart, Holistic, Human-centered, Integrated and Innovative Platform and provides modular and scalable food solutions that can cater to different topographic conditions even in urban and rural areas alike.

SHIP System Solutions of this framework has a modular and scalable food sustainability solution that has three different models to satisfy different needs:

1. Pre-designed Models for Urban and Compact Areas:

pocketSHIP: Smaller systems designed for urban environments, such

as rooftops.

portaSHIP: Portable systems that may be adapted for use in distant or transitional regions.

permaSHIP: systems with high yields for long-term aquaculture use

2. Personalized Models for Larger Areas:

microSHIP | macroSHIP: Integrated systems of modules for larger areas. Training centers, shared workspace, and creative studios can be included for purposes of innovation and community engagement.

3. Progressive Redevelopment for Traditional Farms: Integration of smart technology and infrastructure with consideration for culture transforming traditional farmland into a smart system.

pocketSHIP

AGRITEKTURA’s application of smart technologies, renewable resources, and modular solutions signifies a revolution in the field of aquaculture and agriculture. Smart Recirculating Aquaculture Systems (Smart RAS) and remote monitoring help to increase output and decrease waste. Digitized system help to achieve maximum efficiency, lower costs, and boost sustainable production levels. Agriculture, architecture, and technology come together to make the SHIP System environmentally and socially sustainable. Training sessions help to provide necessary skills to the farmer, entrepreneurs, and students, encouraging the development of a new wave of creative agriculturists. Industry 5.0 by AGRITEKTURA

makes it the leader in smart agriculture.

The SHIP System provides customized solutions for different groups of stakeholders revitalized farm operations for conventional farmers, innovation platforms for startup companies, productive asset re-use for developers, as well as food security solutions for social groups. Partnerships with municipal, nongovernmental, and academic institutions serve to extend and strengthen networks initiated by AGRITEKTURA in order to produce cumulative impacts.

Looking forward, AGRITEKTURA seeks to replicate its initiatives by adopting tiered solutions, partnerships, and e-commerce solutions for product accessibility. The plan is to extend the initiative to high-density regions such as Singapore and partnerships worldwide, focusing on sustainable agriculture practices. Through innovation, AGRITEKTURA is changing the face of local development and making the world a resilient place through its sustainable practices in agriculture.

portaSHIP
permaSHIP
Aqua MicroFarm
Mindoro Prototype, The CRIB Hub
Mindoro Prototype, The CRIB Hub
The Crib Hub

The HIVE Initiative: Incubating Innovation in Architectural Education

The Hub for Innovation, Ventures, and Exploration or HIVE is a cutting-edge endeavor of AGRITEKTURA, prototyped at the John Paul College (JPC) Architecture Department in Roxas, Oriental Mindoro in partnership with JPC Architecture Department and UAPSA JPC Chapter. HIVE seeks to foster innovation, collaboration, and growth among students through interactive industry engagements. As part of the incubation wing of AGRITEKTURA, HIVE merges scholarly activities with hands-on experiences, imparting creativity, critical acumen, and entrepreneurship in aspiring architects. HIVE embodies innovation, exploration, and growth, as exemplified by the creativity and togetherness of a beehive, wherein students,

ABOVE United Architects of the Philippines Student Auxiliary. John Paul College Chapter.

administrators, and industry practitioners and leaders come together as partners in promoting advancements and achieving positive impact and changes in their respective realms and capacities.

HIVE spreads out and touches educational institutions and training facilities, with orientation toward experience-building and leadership-building activities, with their collective and long-term vision of building a nation-building enterprise through collaborative innovation and campus empowerment by diverse disciplines. Based on the innovation of Toronto Metropolitan University and School of Architecture Tsinghua, HIVE brings together faculty members, students, and partners of the community through experiences in innovation, mentorship, and collaboration.

HIVE’s components include innovation solution design and prototyping, which integrate multiple disciplinary areas, student venture support,, research and development for collaborative projects with practical impact, and innovation projects for aligning with industry requirements. It also facilitates academic and professional capacity building through workshops on innovation in emerging technologies through innovation, entrepreneurship and leadership. In addition, it has faculty development enhancement programs for innovation in teaching and research. Mentorship programs provide networking for students with professionals in industry, and community outreach projects focus on making significant contributions. Studentinitiated projects such as workshops and competitions provide opportunities to be creative.

Key Initiatives and Programs include INSIGHT TALKS, which involves industry experts sharing knowledge and trends; INNOV LAB, which provides hands-on discovery and exploration with technology and design; INTERNSHIP PROGRAMS that pair students with professionals; INTERACTIVE WORKSHOPS that improve design and technical abilities; and INTEGRATED OUTREACH that encourages responsible design and architecture with community transformation components. These play an essential role in an integrated learning environment that provides students with necessary resources and elements needed to succeed as architects.

We are now undergoing a design and development study of our future Innovation Hub to be established in Roxas Oriental Mindoro. This is a replicable template design developed by AGRITEKTURA which feature fablab and co-working space.

FabLab
Aerial Plan Perspective

Co-working Space Lobby

OZONE DISCO

A Retrospective on What Went Wrong The Tragedy in the Eyes of an Architect

Thirty-one years have passed since 1996, yet the tragedy of the Ozone Disco remains one of the deadliest fire disasters in both the Philippines and the world. According to the National Fire Protection Association (NFPA), it is ranked as the seventh-deadliest nightclub fire in history (NFPA, n.d.). The fire resulted in the loss of 162 lives and was followed by another tragic incident at the Kentex slipper factory in Valenzuela in 2015, which claimed 72 lives.

The terrible thing that happened at the Ozone Disco is over, and justice has been done. Now, it’s very important to find out what went wrong and how to make sure it doesn’t happen again. It’s also important to make sure that people don’t put lives and property at risk by not following safety rules.

Ensuring fire and life safety is vital in any built environment, and architects must take these factors into account in their designs. Over the years, both active and passive fire protection systems have been developed to reduce fire risks.

How did it start?

On the evening of March 18, 1996, a small disco house was packed with delighted college graduates celebrating their years of hard work and late nights. As more places in Greater Manila got ready for graduation, the owner of the disco house and others gave discounts and free stuff to students who were graduating. The owner made changes to the building, such as adding a mezzanine floor, to get ready for the expected large number of customers.

That night, 390 people, including employees, gathered, surpassing the maximum permitted attendance. A fire broke out at the DJ’s booth during the party. Initially, people attributed the fire’s smoke to the party’s effects. The crowd rushed to get out as the fire got worse, but it was too late for many.

The use of makeshift connections contributed to the fire that resulted in their deaths.

The Facility

Ozone Disco, located near the 11th World Scout Jamboree Memorial Rotonda on Timog Avenue, opened in 1991. Before that, the site housed a jazz club called “Birdland,” owned by Sergio Orgaoow, from 1978 to 1990. Orgaoow sold the property to Hermilo Ocampo, president of Westwood Entertainment Company, Inc. (Wikipedia, n.d.).

The tragedy that occurred on that fateful night at Ozone Disco in Quezon City became the headline of major newspapers and tabloids in March 1996. Image courtesy of PEP.ph.
The Ozone Disco before the tragedy (Image grab from FlipScience).

The image of the Ozone Disco, years after the tragedy, Goodah now occupies the site.

The Ocampos then converted the site to a discotheque, capitalizing on the popularity of electronic music in the Philippines; they made refurbishments to the building and added mezzanines.

What went wrong?

There has been a change in the facility’s occupancy classification. Prior to the tragedy, the permitted capacity was 35 people. The repealed Fire Code of the Philippines (PD 1185) defines assembly occupancy as a facility with an occupant load exceeding 50 for commercial purposes and 100 for non-commercial purposes. However, this code does not specify the occupancy classification

The image above is grabbed from ‘idighardware.com,’ where the 3D represents 31 people blocking the entrance, and only 11 survived.

for this facility since its occupant load is below 50. The Ozone disco could be classified as either business or mercantile; nevertheless, under the Revised Fire Code of the Philippines (RA 9514), it is classified as mercantile. The change in occupancy classification is due to an increase in the occupant load, requiring the facility to comply with assembly occupancy requirements, including the fire protection system.

In accordance with PD 1096, Section 702, any alterations or renovations—particularly those involving a change in occupancy classification from a lower to a higher hazard— require the approval of the appropriate municipal authority. There is similar requirem requirements in PD 1185 section 1.104.

In practice, a gap analysis is required to identify the building’s current condition and what needs to be done to ensure its performance and efficiency.

Exit Details: Both the PD 1185 and the RA 9514 stipulate that every assembly must have a main exit capable of accommodating half of the occupant load, with secondary exits required to handle two-thirds of that load.

The main entry mentioned in the code refers to the primary point of entry that individuals typically use to access the facility. It is common for people to exit through this same entry point during an emergency.

According to the Life Safety Code (NFPA 101), assembly facilities must have a main entrance and exit that can accommodate half of the facility’s total capacity. In contrast, nightclubs are required to accommodate two-thirds of their capacity. RA 9514 has adopted the ½-capacity rule for assembly occupancy, which includes nightclubs.

This requirement was not specified in the previous PD 1185. For a facility accommodating 300 occupants, such as the Ozone Disco, the main entry and exit must accommodate 150 individuals. Although the main entry features double-leaf doors, the direction in which they swing hinders effective exiting. This situation was confirmed on the morning of March 19, 1996, when authorities arrived at the site and found bodies piled up at the main entrance and in the corridor leading to the outside door.

The Ozone Disco Tragedy, which exposed serious safety concerns and claimed 162 lives—many of whom were discovered obstructing the entrance—is comparable to the 2003 fire at the Station Nightclub in West Warwick, Rhode Island. Experts, including those from the National Fire Protection Association (NFPA), have been moved by this tragic occurrence to reassess the causes of such disasters and investigate viable remedies to reduce the loss of life and property.

The 3D depiction of the Ozone Disco highlights key areas that contributed to the stampede, which resulted in the deaths of over 100 individuals and injuries to many patrons. Disclaimer: This 3D representation is based on information gathered from available online sources and may not be entirely accurate; however, it serves as a valuable tool for understanding the lessons learned from this tragic event.

Door Swing: The door swing was a critical factor in the deaths of the patrons, as it opened in the wrong direction, leading to a stampede.

The code requires that the door swing in the direction of exit travel (PD 1185 section 3.402(B.1)).

Both PD 1185 and RA 9514 do not allow exemptions for doors that swing inward when the occupant load is fewer than 50. Additionally, both PD 1185 and PD 1096, which were enacted in the same year, have overlapping requirements that apply to this situation. If the owner did not increase the occupant load and adhered to the approved limits set by the Office of the Building Official, there will be no code violations as outlined in PD 1096, section 1207.3.a.

Number of Exit: Another major reason for the tragic outcome was the lack of exits and the required separation distances. The report notes that a nearby business has obstructed the secondary exit, making it unusable. Consequently, the required number of exits is not met. The previous Fire Code (PD 1185) requires that exits be located at a distance from each other, although it does not provide specific distance guidelines.

According to RA 9514, the exit must be at least ½ of the diagonal distance of the building for an unsprinklered structure and 1/3 for a sprinklered one. The facility was found to be non-compliant since there is only one exit available.

Finally, it was discovered that the facility was not in compliance with fire safety regulations because it lacked a sprinkler system for fire protection and prevention.

The Government’s Response

The government’s response to prevent this tragedy from happening again involves repealing the previous Fire Code of the Philippines (PD 1185), which aimed to provide better enforcement mechanisms and a clearer framework for fire safety. This change is necessary to address alarming fire losses and to better align with the needs of a growing and complex nation, fostering a new national awareness of fire prevention and suppression.

Conclusion:

Greed often leads to tragic incidents resulting in unnecessary deaths. Several events in the country, including the Ozone disco fire, highlight a blatant disregard for safety protocols. In the wake of the Ozone incident, further disasters, such as the Manor Hotel fire in 2001 and the Kentex slipper factory fire in 2017, along with multiple residential fires in Manila from 2024 to 2025, illustrate that lessons from the past remain unheeded.

This situation serves as a reminder for qualified professionals, such as architects and engineers, to rigorously implement and oversee fire and life safety requirements as mandated by law. We are bound by our oath and must adhere to the stipulations of Article 1723 of the Civil Code of the Philippines.

“The time is always right for doing the right thing,” as stated by Martin Luther King Jr.

Problems

1. Introduction: The Imperative for a Blue-Green Transition

Cabanatuan City, a growing urban asset in Central Luzon, faces increasing socio-environmental stress due to dense development, limited green spaces, and chronic flooding. One of the concerns is the Nabao Creek corridor, an underutilized natural waterway degraded by encroachment and pollution. At present, the creek functions as rigid, hydro-geomorphically degraded grey infrastructure, intensifying the Urban Heat Island (UHI) effect and failing to serve as a public amenity. Addressing these challenges necessitates a shift from conventional engineering approaches, which treat water as waste,

toward a holistic philosophy that recognizes the creek as a vital, multifunctional urban asset.

The study applies the locally contextualized B.A.Y.A.N. Framework, a Water Sensitive Urban Design (WSUD) intervention essential for enhancing Cabanatuan City’s climate resilience, public health (SDG 3), and sustainable economic growth (SDG 8). This revitalization represents a comprehensive investment in a resilient urban future and serves as a model for integrating ecological restoration and social equity into regional infrastructure design.

2. Benchmarking Resilience: The WSUD and ABC Waters Model

The revitalization is theoretically grounded in the Water-Sensitive Cities (WSC) framework, implemented through Water-Sensitive Urban Design (WSUD), which integrates stormwater management, water use, and ecosystem health into the urban environment (Wong

& Brown, 2009). (Wong et al., 2009) The methodology adapts Singapore’s Active, Beautiful, Clean (ABC) Waters Programme, a successful model for converting concrete drains into vibrant bluegreen corridors through political will and integrated governance

(Centre for Liveable Cities, 2017). (Cities, 2017)

Case studies from Singapore’s flagship projects provide essential technical and institutional insights. The conversion of Bishan-Ang Mo Kio Park’s 2.7 km concrete canal into a 3.2 km naturalized river demonstrated that ecological engineering can increase flood capacity by over 40% and improve water quality through bioswales and cleansing biotopes (C40 Cities, 2018). (Singapore: Bio-Engineering Works at Bishan-Ang Mo Kio Park to Prevent Urban Flooding, 2018) This underscores the necessity of implementing Nature-Based Solutions (NBS) at Nabao Creek. Institutionally,

Jurong Lake Gardens illustrates the importance of a governance model grounded in extensive public consultation and political accountability to ensure sustained collective ownership and enforcement. (Public views sought on new Jurong Lake Gardens, 2025) In the Philippine context, the Iloilo River Esplanade demonstrates the feasibility of phased development, economic stimulation (SDG 8), and multi-stakeholder collaboration for largescale riverfront revitalization. (Ejeda & L., 2024) These benchmarks are critical for developing an adaptable framework for Cabanatuan.

3. Designing for Climate Mitigation and Social Equity

The Nabao Creek WSUD design prioritizes ecological function and social integration through four primary interventions. First, hydro-geomorphic degradation will be addressed by naturalizing creek banks, replacing concrete with stepped, vegetated, and bioengineered edges to stabilize soil and create floodable zones. Second, Blue-Green Infrastructure (BGI),

including expanded tree canopy, bioswales, and permeable surfaces, will mitigate the Urban Heat Island (UHI) effect through

evapotranspiration and shading, thereby reducing building energy demand (SDG 7). Third, the Movescape principle will establish a continuous promenade and dedicated bikeway, transforming the creek into a safe, non-motorized transport and recreation network that connects key areas (SDG 11) and promotes physical activity (SDG 3). Finally, designated programming zones, such as outdoor learning and well-being areas, will encourage active community use and civic engagement, consistent with the Bayanihan mandate for co-management and long-term stewardship (SDG 17).

4. The B.A.Y.A.N. Framework

The Process Phase

The Process Phase is the operational core, translating theory into five adaptive co-management pillars:

1. Bayanihan (Stakeholders’ Involvement): Elevates public participation to co-production and shared stewardship, securing equitable resource distribution and local ownership through the bayanihan spirit.

2. Accessibility (Movescape): Focuses on kinetic connectivity, mandating continuous, high-quality, non-motorized networks along the creek to connect open spaces, foster active mobility, and enhance civic/recreational value.

3. Yamang Inprastraktura BGI (Blue-Green Infrastructure): Integrates engineered natural systems (wetlands, bioswales, rain gardens) to provide aesthetic/recreational benefits while

managing stormwater, improving water quality, and mitigating the Urban Heat Island (UHI) effect.

4. Adaptability (Governance): Strengthens institutional capacity through policy integration, formalized collaboration, and the implementation of a robust structure for participatory decisionmaking and adaptive management to ecological and climate change.

5. Nature-Based Solutions (Hydroecology): Prioritizes restoring natural hydrological systems and ecological corridors to enhance the creek’s self-purification, increase biodiversity, and improve passive flood resilience.

5. Implementation and The Comprehensive SDG Impact

The success of the B.A.Y.A.N. Framework depends on critical institutional reforms that extend beyond design, including the adoption of a Co-Managed Infrastructure Model. This model formalizes robust partnerships (SDG 17) among the City Engineering Office, DENR, local government units, national government agencies, and community-based organizations to address capacity gaps and maintenance funding challenges. Additionally, the revitalized creek should receive legal protection through legislation such as the E-NIPAS Act (RA 11038), designating the riparian ecosystem as a critical habitat and strengthening easement enforcement. (An Act Declaring Protected Areas and Providing for Their Management, Amending for This Purpose Republic Act No. 7586, Otherwise Known

as the “National Integrated Protected Areas System (NIPAS) Act of 1992” and for Other Purposes, 2018)

The Nabao Creek revitalization adopts a holistic approach, addressing 17 United Nations Sustainable Development Goals. The project targets climate resilience (SDG 13) and water quality (SDG 6), while also advancing SDG 9 (resilient green infrastructure) and SDG 12 (minimizing material use through Nature-Based Solutions). By restoring the ecosystem and establishing a green corridor, the initiative makes significant contributions to SDG 14 (Life Below Water) and SDG 15 (Life on Land), thereby creating an ecological core for urban Cabanatuan.

Conclusion

The revitalization of Nabao Creek is essential for redefining sustainable urban development in Cabanatuan City. Through the integration of WSUD, the ABC Waters Programme, and the localized B.A.Y.A.N. Framework, the city can reverse hydro-geomorphic degradation and establish a resilient blue-green urban spine. This initiative provides critical climate mitigation, secures water resources, and exemplifies institutional and community-led sustainability. The Nabao Creek project sets an urgent precedent for transforming urban waterways throughout the Philippines into vital ecological and social assets.

References

C40 Cities Climate Leadership Group, Inc. (2018, September). Singapore: Bio-engineering works at Bishan–Ang Mo Kio Park to prevent urban flooding (Case study). C40 Cities. https://www.c40.org/ case-studies/singapore-bio-engineering-works-at-bishan-ang-mo-kiopark-to-prevent-urban-flooding/ Centre for Liveable Cities. (2017). The Active, Beautiful, Clean Waters Programme: Water as an environmental asset. Ministry of National Development.

Ejeda, L. M. (2024). Iloilo Esplanade wins big in 2024 Asian Townscape Awards. Philippine Information Agency. https://pia. gov.ph/news/iloilo-esplanade-wins-big-in-2024-asian-townscapeawards/

Republic of the Philippines. (2018). An Act declaring the Expanded National Integrated Protected Areas System (NIPAS), amending for this purpose Republic Act No. 7586, otherwise known as the National Integrated Protected Areas System (NIPAS) Act of 1992, and appropriating funds therefor (Republic Act No. 11038). Official Gazette. https://lawphil.net/statutes/repacts/ra2018/ ra_11038_2018.html

The Straits Times. (2025). Public views sought on new Jurong Lake Gardens. https://www.straitstimes.com/singapore/environment/ public-views-sought-on-new-jurong-lake-gardens

Wang, J., Liu, H., & Zhou, Y. (2024). The role of urban green spaces in mitigating the urban heat island effect: A systematic review from the perspective of types and mechanisms. Sustainability, 17(13), 6132. https://doi.org/10.3390/su17136132

Wong, T. H. F., & Brown, R. R. (2009). The water sensitive city: Principles for practice. Water Science & Technology, 60(3), 673–682. https://doi.org/10.2166/wst.2009.436

RE: FRAMING STEWARDSHIP

Casa A. Gamboa and The Practice of Living Heritage

Photographs by Gianfranco

On the second day of the National Conference of Architects 2025 of the United Architects of the Philippines in Bacolod City, four curated tours redirected delegates from plenary halls to the lived landscapes of Negros Occidental. Assigned to the Heritage of Silay route, our group visited Casa A. Gamboa, a 1939 ancestral house that has evolved into an active platform for culinary and cultural continuity. Guided by its steward, Reena Fernandez, the visit revealed a compelling model of adaptive reuse that moves beyond preservation toward sustained cultural production. This essay positions Casa A. Gamboa not merely as an object of conserva/on but as a working framework for reframing Filipino architectural heritage — where climatic intelligence, intergenerational knowledge, and community programming converge. In the context of Re: Frame, the house demonstrates how built heritage can forge meaningful dialogues between Filipino design and its environment — social, ecological, and historical.

When Architecture Steps Outside the Conference Hall

Midyear 2025, Bacolod City hosted the National Conference of Architects of the United Architects of the Philippines. Days 0 and 1 centered on policy, governance, and technical discourse. On Day 2, architecture left the projection screens and returned to the ground. Four tours were organized. My bus was assigned to the Heritage of Silay.

What I anticipated as a routine heritage visit became instead a critical encounter with stewardship in practice.

Silay as Built Archive

Silay City remains one of the Philippines’ most intact enclaves of ancestral domestic architecture — products of sugar-era affluence and colonial hybridity. These houses are often admired for ornamentation and scale, yet their deeper intelligence lies in climatic adaptation and spatial pragmatism.

Built in 1939, Casa A. Gamboa reflects this negotiation. Elevated from the ground in continuity with Spanish bahay-na-bato logic, it incorporates American colonial chalet proportions while retaining tropical sensibili/es: wide overhangs, permeable façades, and approximately forty (40) operable doors that facilitate cross ventilation. Its timber structure is not merely aesthe/c nostalgia; it is a climatic system.

Before sustainability became codified vocabulary, the house already embodied it.

Stewardship as Architectural Agency

What distinguished the visit was that our guide was Reena Fernandez — a descendant of the Gamboa family and the present steward of the house. Her narration did not frame the structure as a fragile inheritance; instead, she articulated it as evolving infrastructure.

Casa A. Gamboa has moved through multiple identities: private residence, wartime headquarters, and postwar domestic home. Today, it functions as a cultural venue, a culinary research site, and the host of the annual midyear event of the United Architects of the Philippines (UAP). Rather than isolating heritage behind velvet ropes, the family has activated it.

This shift is critical.

Too often, ancestral houses are preserved as frozen tableaux— visually intact yet socially disengaged. Here, preservation is inseparable from programming. Rooms are used. Dining tables host curated meals. Gardens transform into communal gathering grounds. Architecture becomes a framework for exchange.

Cultural Continuity in Built Form

The house is inseparable from the legacy of Doreen Gamboa Fernandez, whose scholarship elevated Filipino cuisine into intellectual discourse. Yet, what I witnessed was not memorialization but continuation.

Culinary philosophy is spatially embedded. The dining room becomes site of research and reinterpretation. The veranda becomes threshold between domesticity and public engagement. The garden becomes participatory arena.

In this context, architecture operates as cultural engine.

Heritage here is not commodity; it is lived pedagogy.

Local regional food are crucial embodiments of culture. Publications act as memory archives of ways of living - some remembered, some disappearing.
Reena Fernandez, descendant of the Gamboa and current steward of the Casa A. Gamboa house, narrates the rich history of the site to visitors.

Reframing the Environmental Dialogue

The issue theme, Re: Frame, calls for new dialogues between Filipino design and its environment. Casa A. Gamboa reframes that dialogue in at least three ways. First, it reminds us that environmental responsiveness is already present in vernacular and colonial-era hybrids. Cross ventilation, material durability, and elevation strategies were not aesthetic decisions; they were ecological responses. To reframe design is to acknowledge inherited intelligence rather than defaulting to imported solutions. Second, it demonstrates cultural sustainability.

The NCA Bacolod 2025 hosted on site does more than afract delegates — it embeds intergenerational knowledge within architectural space. The building becomes both container and catalyst. Third, it models economic viability without architectural erasure. Through curated stays and cultural programming, the house sustains itself financially. This challenges the prevailing assumption that conservation and development are mutually exclusive.

RE:FRAMING STEWARDSHIP - CASA A. GAMBOA AND THE PRACTICE OF LIVING
L. MARTINEZ JR.

A Critical Position

The status quo of contemporary development often privileges demolition over adaptation, novelty over continuity, spectacle over stewardship. Against this backdrop, Casa A. Gamboa offers a quiet but firm counterpoint.

It argues that innovation need not always mean new construction. Sometimes innovation lies in reframing use, activating memory, and expanding relevance.

As architects, we frequently discuss resilience in structural terms. Yet resilience is also temporal. A building that remains functional and meaningful across decades demonstrates a different kind of durability — one rooted in care, adaptation, and community integration.

Walking through a house completed in 1939 yet fully operational in 2025 was a reminder that longevity itself is design intelligence.

Fellowship Under Timber Beams

The Heritage of Silay tour ultimately became more than site documentation. It became fellowship — among architects, historians, stewards, and community members. Under one timber roof, the profession encountered a living argument: that architecture extends beyond authorship of new forms. It includes responsibility toward what already stands.

To reframe Filipino design is not solely to imagine future skylines. It is to cultivate deeper conversations with climate, memory, and culture embedded in existing structures.

Casa A. Gamboa stands not as relic, but as proposition.

And perhaps that is the most urgent lesson for our practice today.

RE:FRAMING STEWARDSHIP - CASA A. GAMBOA AND

ARQUITEKTURA is the annual trade journal of the United Architects of the Philippines that seeks to provide a wider perspective on Philippine Architecture and Desgin.

A nationally and internationally inspired resource comprising outstanding articles, photography illustration and literature for the general membership, industry partners and design enthusiasts.

Architectural Research Student Research Awards

Industry Partners

Featuring projects and the architects behind them. Showcase projects representing the Philippines and the world.

Articles and content reflecting issues and topics relevant to architects today.

Turn static files into dynamic content formats.

Create a flipbook