UDUMA IFUNANYA

Page 1


HI! I’M IFUNANYA AND I’M PLANNING TO BE AN ARCHITECT I am passionate about creating, representing, and imagining spaces. I am interested in created designs inspired by nature. I believe in the possibility of revolutionizing the way we live through architecture.

udumaifunanya05@gmail.com +2348085729420 Nigeria.

EDUCATION GRADUATE

University of Nigeria, Enugu Campus. Bachelor of Science in Architecture, From September,2018 to July, 2023. Magna Cum Laude, Second Class Upper division

ARCHITECTURAL DESIGNER 2022-2023

EXPERIENCE

ARCHITECTURAL DESIGNER/INTERIOR DESIGNER 2023-Present

WEEN AND ASSOCIATES|Enugu state,Nigeria.

Architecture designs

KOLA DESIGN STUDIO|Enugu state, Nigeriaa.

Architectural design

Interior design

SKILLS

CAD AND MODELLING

RENDERING

ADOBE CC

MICROSOFT OFFICE

Revit, Rayon, Enscape

Indesign

Word,Power point,

CONTENTS: The projects below are a small sample of my academic work and professional work in the last two years. I hope you enjoy them!

METHODIST CHURCH CATHEDRAL

FOURTH YEAR, SECOND SEMESTER

MENTOR: ARC ANIH, ARC OKWOSA

PROFESSIONAL WEEN AND IKECHUKWU’S

CHINESE LOUNGE

PROFESSIONAL WORK

ASSOCIATES

KOLA DESIGN STUDIO

METHODIST CHURCH CATHEDRAL

Methodist Church Cathedral is a project located in the sub-urban area of Enugu state, Nigeria. The design of the religious edifice draws its inspiration from Nature.It aims to provide a monumental, spiritual and communityoriented space for the people in the community.

SITE PLAN

The site features a gentle slope and contour. The slope is carefully incorporated into to design. The site measures 24,000 sqm.The entrance faces the east, adjacent the minor road.The church building is centred in the site to allow optimum acces all around the building.

KEY LEGEND

A Proposed Building

B Bishop’s residence

C Block of flats

D Lettable shops

E Storage

F Security post 1

G Generator house

H Security post 2

GROUND FLOOR PLAN

The ground floor plan layout is designed with the slope of the site in consideration.The entrance features a spiral ramp that links the ground floor to the gallery. This is to achieve inclusivity.

The slanting walls serves as a light funel. Beyound the Sanctuary is the administrative zone. This houses offices of the presbysites, pastors and the bishop.

On the left side is the auditorium for children mass.

LOWER FLOOR LEVEL

This is a level on the contour of the site.It consists of two auditoriums , 300 and 450 stting capacities. They are seperated by a courtyard at the centre. This allows for quality lighting and indoor air quality.

WIND CATCHER TOWER

Inspired by the Egyptian and Iran architecture is the wind catcher.With this, the typical tower seen in christain churches and cathedrals tends to have more function. The tower draws in cool air from the atmosphere and channels it into the cathedral and takes it out as hot air through the difference in air pressure.

PASSIVE

Inspired by the Beehive terracotta pots with evaporative cooling technique air to a cool air as cutting down the cost

PASSIVE COOLING SYSTEM

Beehive is the hexagonal hollow water circulating system around. This technique is used to convert humid or hot hot air passes through the pots, thus of electricity in the cathedral.

WATER FALL SYSTEM

The water fall system is strategically placed at the rare of the sanctuary, inside the courtyard. This ensures the continous circulation of collected storm water. This water feature can also be viewed from the sanctuary, bring nature into the house of God.

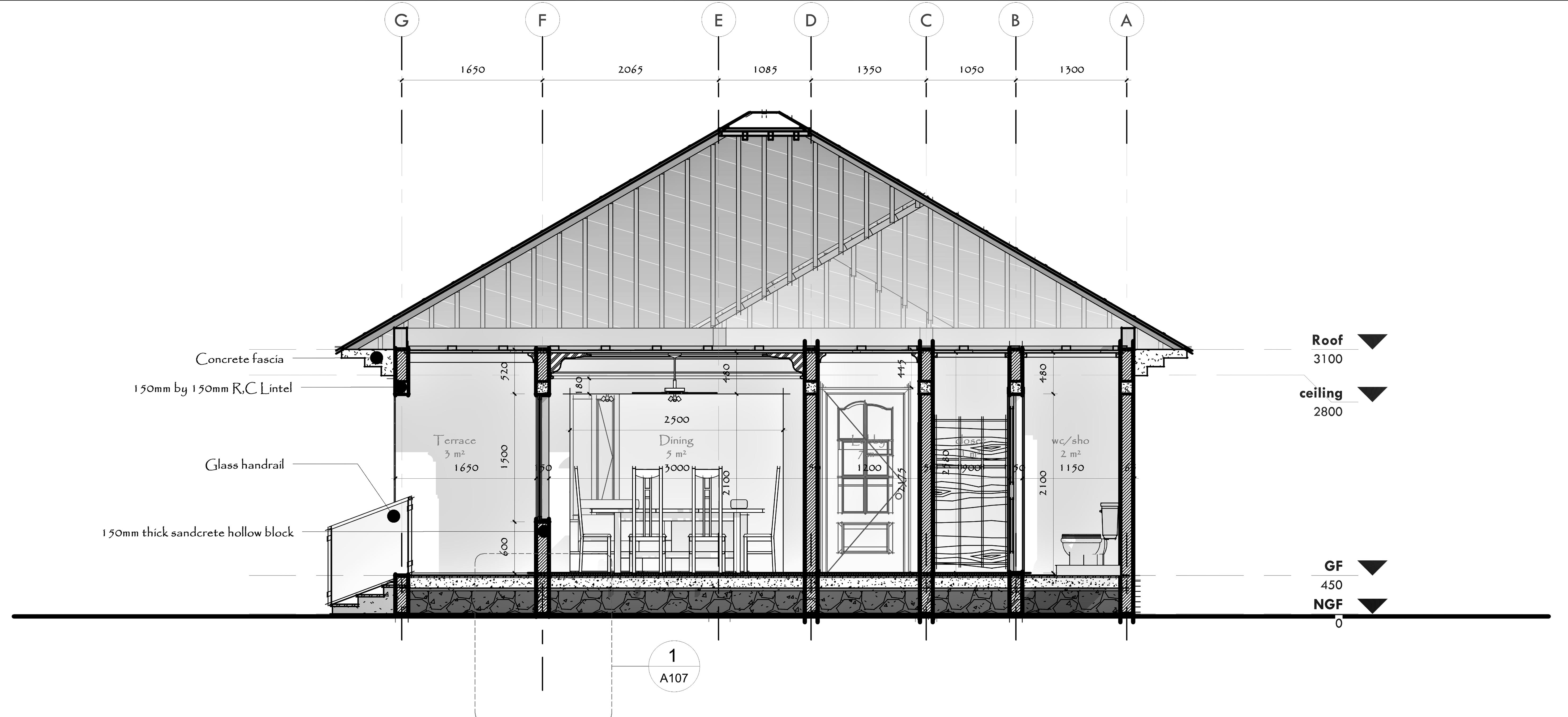
IKECHUKWU’S HOUSE

The provision of a standard living space for a family that will meet the demand of propective occupants functionally and aesthetically.

The project aim is to give inhabitants a more comforting and sustainable environment within a limited site boundary provided for 3 ensuite bedrooms, terrace, a big living room etc which are designed in a modern style architecture, considering its detail, its utility and vitality.

FLOOR PLAN

The floor plan layout is structured to serve the family.It features a central lobby. Other spaces are created around the lobby.Each bedroom has cross ventilation and quality lighting.

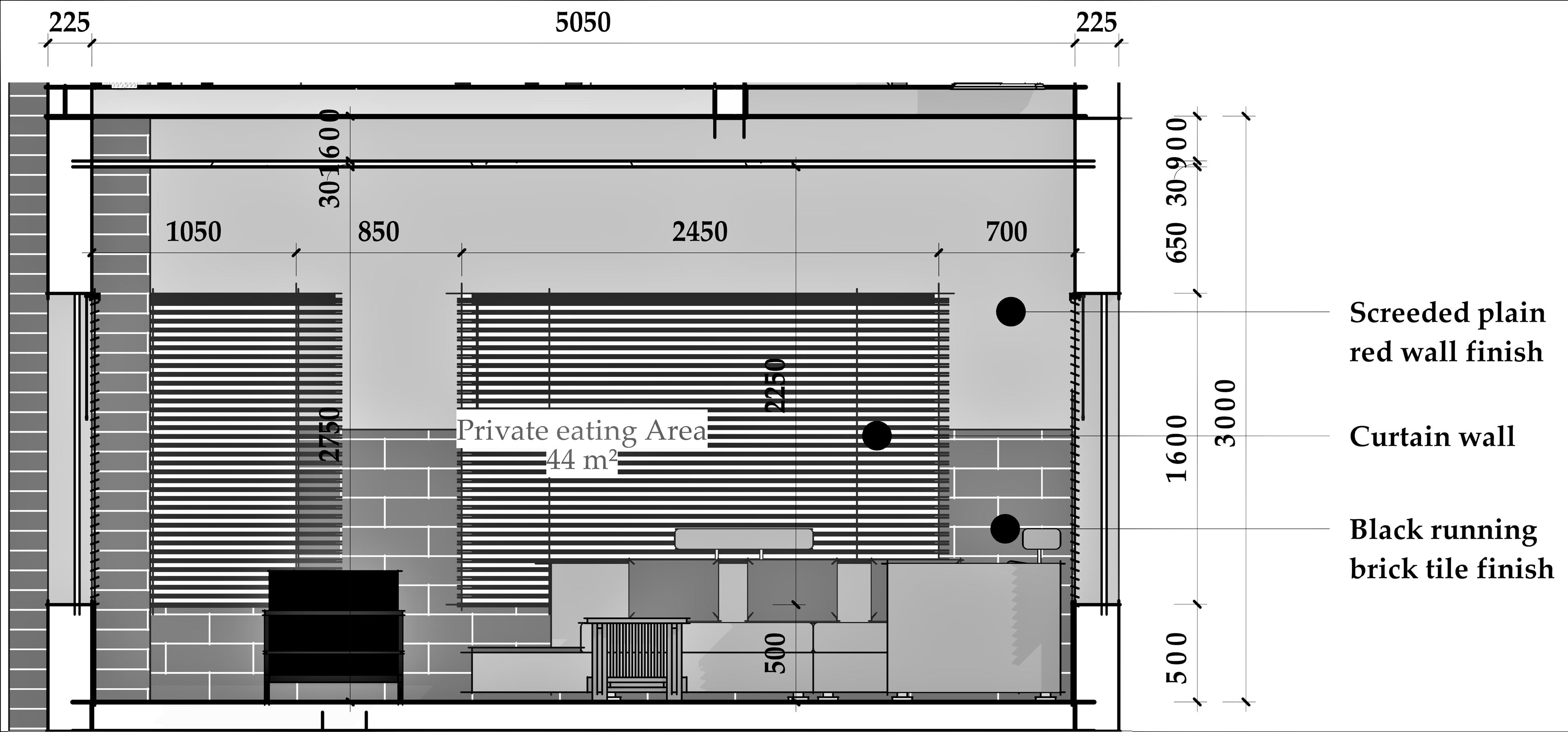
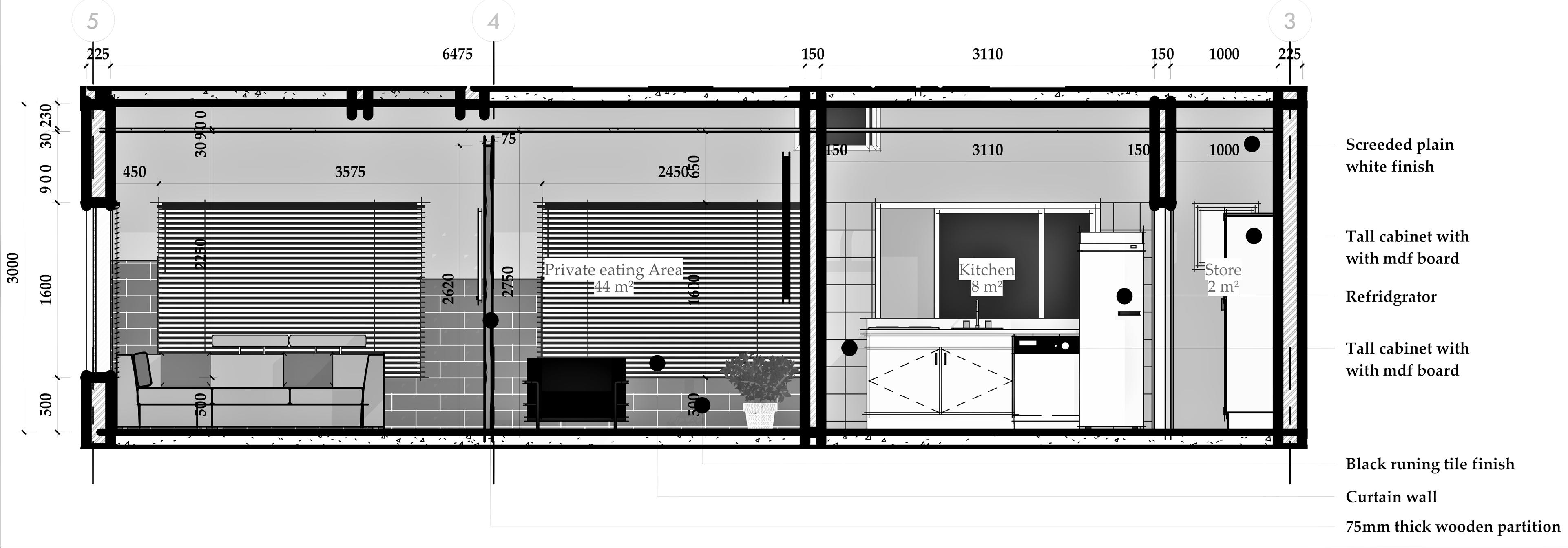
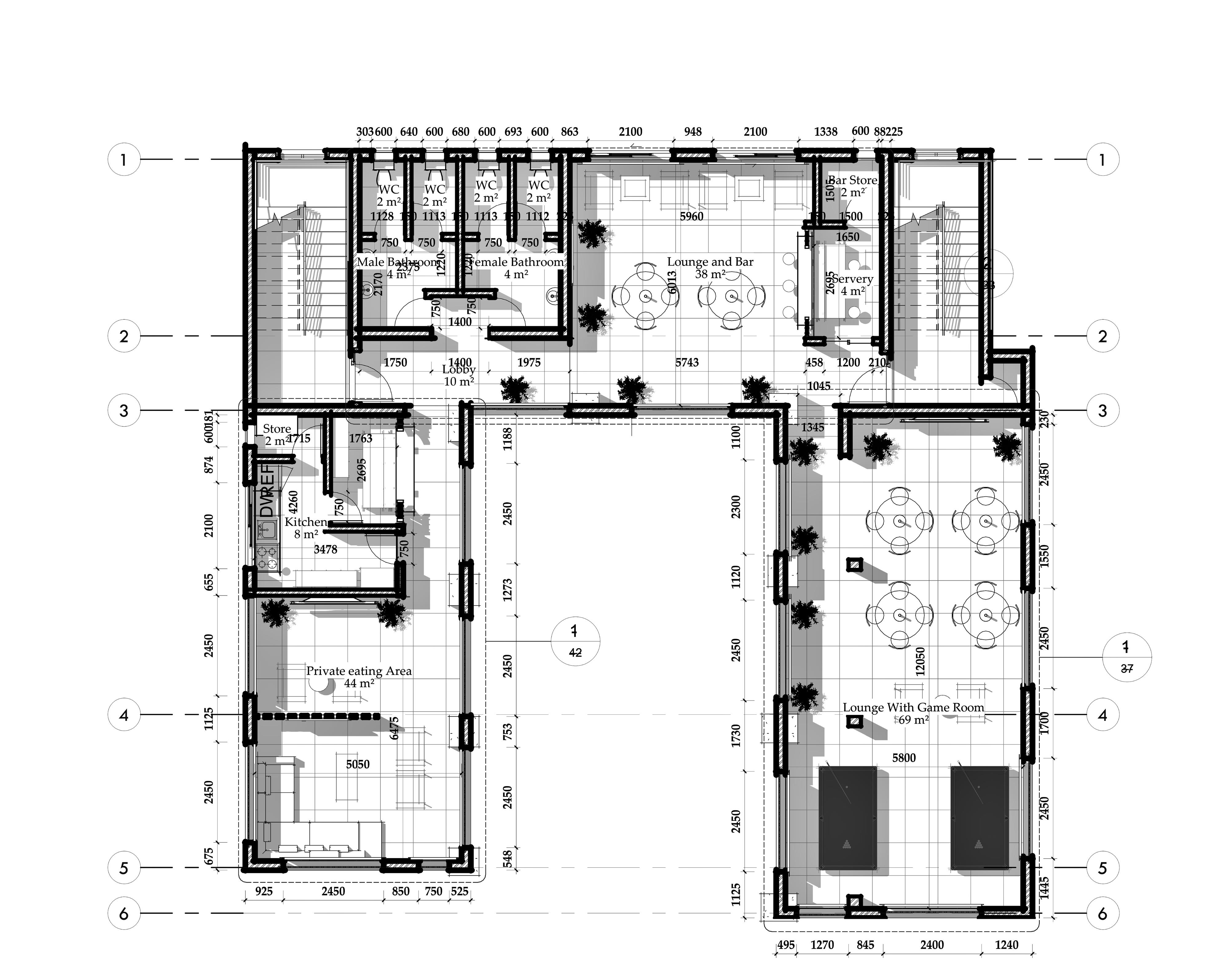
CHINESE LOUNGE

The proposed Chinese-themed lounge design is designed with chinese traditional aesthetic principles; this is to internationalize the community of Uruagu Nnewi.The design comes with a modern chinese kitchen for producing chinese cuisines as well as other asian cuisines.

The interior features a predominant red facade, which is a common traditional color of chinese decor. Dark-colored brick material is employed to create a contrast effect, thus acheiving harmony in design.

Chinese popular bonsai plants are placed strategically as a decor elements to enrich the interior design. Secondly, “Moon gate”is created with wood to create a warm natural feeling in the interior design.

I’M MY MOST IMPORTANT PROJECT, I’M IN CONSTANT DEVELOPMENT AND IMPOVEMENT!

Thank you for paying attention to my work, hope we meet soon!

Turn static files into dynamic content formats.

Create a flipbook
Issuu converts static files into: digital portfolios, online yearbooks, online catalogs, digital photo albums and more. Sign up and create your flipbook.