ARCHITECTURE PORTFOLIO p.t 2

Page 1


METHODIST CHURCH CATHEDRAL IS A PROJECT LOCATED IN THE SUB-URBAN AREA OF ENUGU STATE, NIGERIA. THE DESIGN OF THE RELIGIOUS EDIFICE DRAWS ITS INSPIRATION FROM NATURE.IT AIMS TO PROVIDE A MONUMENTAL, SPIRITUAL AND COMMUNITY-ORIENTED SPACE FOR THE PEOPLE IN THE COMMUNITY.

METHODIST

CHURCH CATHEDRAL:

A MONUMENT OF FAITH, LIGHT, AND CULTURAL SYNTHESIS

THE METHODIST CHURCH CATHEDRAL, LOCATED IN THE SUBURBAN HEART OF ENUGU STATE, NIGERIA, IS A VISIONARY ARCHITECTURAL PROJECT THAT REIMAGINES SACRED SPACE THROUGH A PROFOUND SYNTHESIS OF SPIRITUALITY, LOCAL HERITAGE, AND GLOBAL DESIGN PHILOSOPHY. DEVELOPED AS PART OF A FINAL YEAR PROJECT, THE CATHEDRAL ASPIRES TO BE MORE THAN A BUILDING—IT IS CONCEIVED AS A MONUMENTAL, SPIRITUAL, AND COMMUNITY-ORIENTED SANCTUARY ROOTED DEEPLY IN BOTH NIGERIAN AND UNIVERSAL SACRED TRADITIONS.

DRAWING INSPIRATION FROM NATURE, THE CATHEDRAL’S FORM RISES ORGANICALLY, ECHOING THE SPIRITUAL ASCENSION FOUND IN HORYU-JI TEMPLE IN JAPAN—ONE OF THE OLDEST WOODEN STRUCTURES IN THE WORLD. LIKE THE TEMPLE, THE CATHEDRAL EMPLOYS A TIMELESS MATERIAL PALETTE AND MODULAR RHYTHM TO CONVEY PERMANENCE, HUMILITY, AND DIVINE ORDER. THE DESIGN ALSO REFLECTS THE MINIMALIST ETHOS OF TADAO ANDO’S CHURCH OF LIGHT, WHERE THE PLAY OF SHADOW AND LIGHT CARVES SPIRITUAL DEPTH INTO CONCRETE. HERE, LIGHT PENETRATES THE SANCTUARY THROUGH HIGH CLERESTORY WINDOWS AND SYMBOLIC SLITS, CREATING A SUBTLE INTERPLAY BETWEEN ILLUMINATION AND DARKNESS, REMINISCENT OF JUN’ICHIRŌ TANIZAKI’S “IN PRAISE OF SHADOWS,” WHICH CELEBRATES THE MYSTERY AND SPIRITUAL RESONANCE FOUND IN DIMLY LIT SPACES.

LOCALLY, THE DESIGN IS GROUNDED IN IGBO TRADITIONAL COOLING TECHNIQUES, SUCH AS STACK VENTILATION, SHADED COURTYARDS, AND THE THERMAL MASS OF EARTHEN WALLS, WHICH CREATE A NATURALLY TEMPERATE INTERIOR CLIMATE. THIS FUSION OF VERNACULAR WISDOM WITH CONTEMPORARY SUSTAINABILITY ENSURES THE CATHEDRAL REMAINS ENERGY-EFFICIENT AND CLIMATICALLY RESPONSIVE, WHILE ALSO HONORING INDIGENOUS KNOWLEDGE SYSTEMS.

THE ARCHITECTURAL COMPOSITION INTEGRATES LITURGICAL SPACES WITH COMMUNITY FUNCTIONS, INCLUDING PRAYER HALLS, YOUTH FELLOWSHIP AREAS, A BAPTISTRY, AND A SEMI-OPEN AMPHITHEATER FOR OUTDOOR WORSHIP AND EVENTS. THE SPATIAL EXPERIENCE INVITES REFLECTION, UNITY, AND PARTICIPATION—OFFERING BOTH SOLITUDE AND SHARED RITUAL.

CRAFTED WITH LOCALLY SOURCED MATERIALS AND ARTISANAL FINISHES, THE CATHEDRAL BECOMES A SYMBOL OF CONTEXTUAL REVERENCE, SPIRITUAL TRANSCENDENCE, AND CULTURAL DIALOGUE. IT IS A SPACE WHERE TRADITION MEETS MODERNITY, SHADOW MEETS LIGHT, AND NIGERIA MEETS THE WORLD—A BEACON OF FAITH THAT EMBODIES THE SACRED AND THE COMMUNAL IN A SINGLE ARCHITECTURAL GESTURE.

LEGEND

A Proposed Building

B Bishop’s residence

C Block of flats

D Lettable shops

E Storage

F Security post 1

G Generator house

H Security post 2

SITE PLAN

THE SITE FEATURES A GENTLE SLOPE AND CONTOUR. THE SLOPE IS CAREFULLY INCORPORATED INTO TO DESIGN. THE SITE MEASURES

24,000 SQM.THE ENTRANCE FACES THE EAST, ADJACENT THE MINOR ROAD. THE CHURCH BUILDING IS CENTRED IN THE SITE TO ALLOW OPTIMUM ACCES ALL AROUND THE BUILDING.

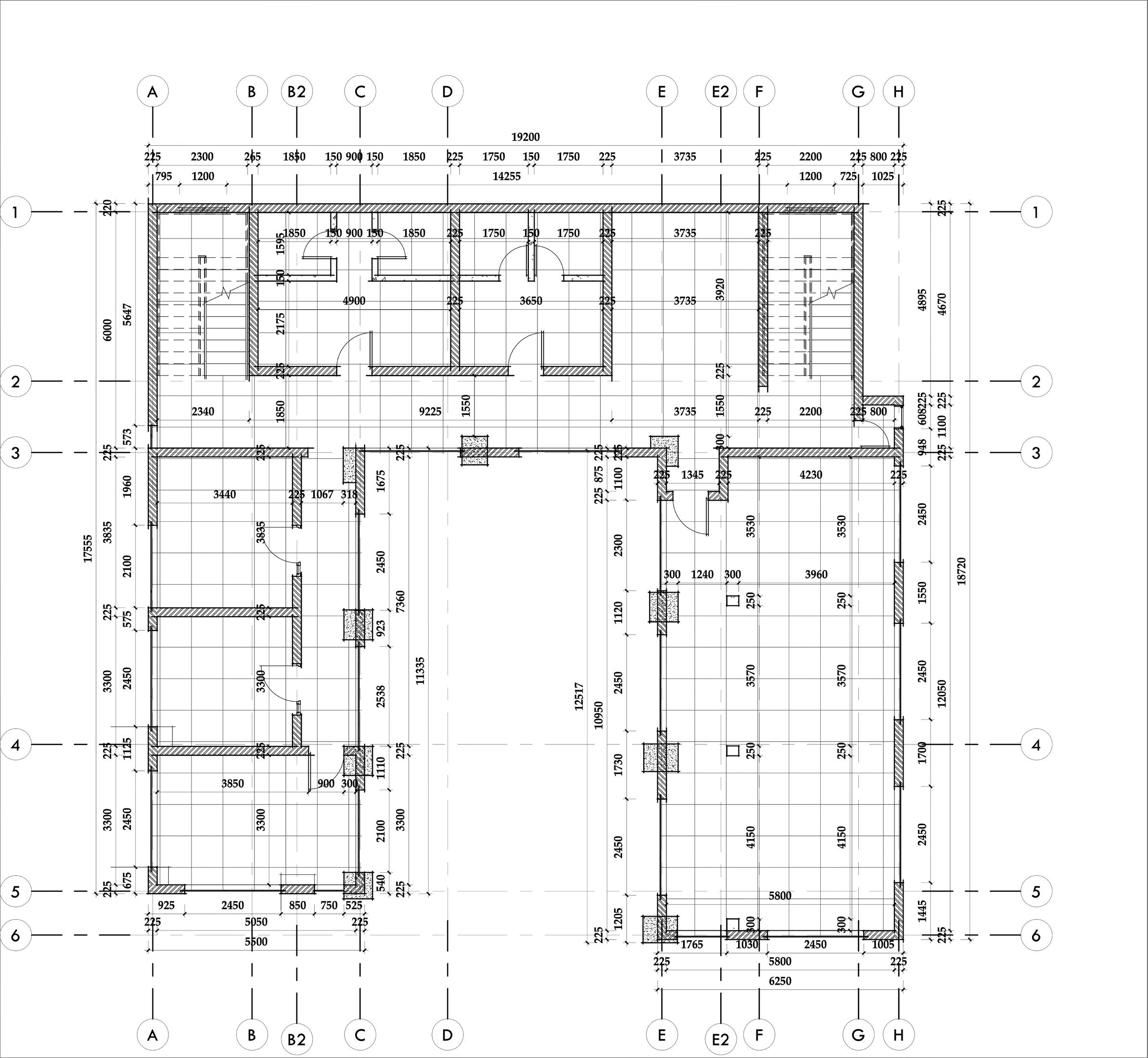
GROUND FLOOR PLAN

THE GROUND FLOOR PLAN LAYOUT IS DESIGNED WITH THE SLOPE OF THE SITE IN CONSIDERATION.THE ENTRANCE FEATURES A SPIRAL RAMP THAT LINKS THE GROUND FLOOR TO THE GALLERY. THIS IS TO ACHIEVE INCLUSIVITY.

THE SLANTING WALLS SERVES AS A LIGHT FUNEL. BEYOUND THE SANCTUARY IS THE ADMINISTRATIVE ZONE. THIS HOUSES OFFICES OF THE PRESBYSITES, PASTORS AND THE BISHOP.ON THE LEFT SIDE IS THE AUDITORIUM FOR CHILDREN MASS.

THIS IS A LEVEL ON THE CONTOUR OF THE SITE. IT CONSISTS OF TWO AUDITORIUMS , 300 AND 450 STTING CAPACITIES. THEY ARE SEPERATED BY A COURTYARD AT THE CENTRE. THIS ALLOWS FOR QUALITY LIGHTING AND INDOOR AIR QUALITY.

LOWER FLOOR LEVEL

SECTION 2

WIND CATCHER TOWER

INSPIRED BY THE EGYPTIAN AND IRAN ARCHITECTURE IS THE WIND CATCHER.WITH THIS, THE TYPICAL TOWER SEEN IN CHRISTAIN CHURCHES AND CATHEDRALS TENDS TO HAVE MORE FUNCTION. THE TOWER DRAWS IN COOL AIR FROM THE ATMOSPHERE AND CHANNELS IT INTO THE CATHEDRAL AND TAKES IT OUT AS HOT AIR THROUGH THE DIFFERENCE IN AIR PRESSURE.

PASSIVE COOLING SYSTEM

INSPIRED BY THE BEEHIVE AND IGBO CLAY TADITIONAL POT IS THE HEXAGONAL HOLLOW TERRACOTTA POTS WITH WATER CIRCULATING SYSTEM AROUND. THIS EVAPORATIVE COOLING TECHNIQUE IS USED TO CONVERT HUMID OR HOT AIR TO A COOL AIR AS HOT AIR PASSES THROUGH THE POTS, THUS CUTTING DOWN THE COST OF ELECTRICITY IN THE CATHEDRAL.

WATER FALL SYSTEM

THE WATER FALL SYSTEM IS STRATEGICALLY PLACED AT THE RARE OF THE SANCTUARY, INSIDE THE COURTYARD. THIS ENSURES THE CONTINOUS CIRCULATION OF COLLECTED STORM WATER. THIS WATER FEATURE CAN ALSO BE VIEWED FROM THE SANCTUARY, BRING NATURE INTO THE HOUSE OF GOD.

THE PROVISION OF A STANDARD LIVING SPACE FOR A FAMILY THAT WILL MEET THE DEMAND OF PROPECTIVE OCCUPANTS FUNCTIONALLY AND AESTHETICALLY.

THE PROJECT AIM IS TO GIVE INHABITANTS A MORE COMFORTING AND SUSTAINABLE ENVIRONMENT WITHIN A LIMITED SITE BOUNDARY PROVIDED FOR 3 ENSUITE BEDROOMS, TERRACE, A BIG LIVING ROOM ETC WHICH ARE DESIGNED IN A MODERN STYLE ARCHITECTURE, CONSIDERING ITS DETAIL, ITS UTILITY AND VITALITY.

MODERN COMFORT WITHIN BOUNDS: A SUSTAINABLE 3-BEDROOM FAMILY

THE PROJECT AIMS TO PROVIDE A WELL-DESIGNED, FUNCTIONAL, AND AESTHETICALLY PLEASING RESIDENTIAL LIVING SPACE TAILORED FOR A MODERN FAMILY. IT SEEKS TO MEET THE CONTEMPORARY DE MANDS OF COMFORT, EFFICIENCY, AND SUSTAINABILITY WITHIN THE CONSTRAINTS OF A LIMITED SITE BOUNDARY. THE DESIGN INCLUDES THREE FULLY ENSUITE BEDROOMS, OFFERING PRIVACY AND CONVE NIENCE FOR EACH OCCUPANT, ALONGSIDE A SPACIOUS LIVING ROOM DESIGNED AS THE HEART OF FAMILY INTERACTION AND RELAXATION. A TERRACE EXTENDS THE LIVING EXPERIENCE OUTDOORS, PROMOTING NATURAL VENTILATION AND CONNECTION WITH NATURE.

THE ARCHITECTURAL STYLE FOLLOWS MODERN DESIGN PRINCIPLES, EMPHASIZING CLEAN LINES, OPEN SPACES, MINIMALISM, AND NAT URAL LIGHT. SPECIAL ATTENTION IS GIVEN TO THE INTERPLAY OF SPACE, MATERIALITY, AND NATURAL ELEMENTS, ENSURING BOTH FUNCTIONAL UTILITY AND EMOTIONAL VITALITY. ENERGY EFFICIENCY AND CLIMATE RESPONSIVENESS ARE ALSO CONSIDERED THROUGH STRA TEGIC ORIENTATION, USE OF PASSIVE COOLING TECHNIQUES, AND INCORPORATION OF SUSTAINABLE MATERIALS.

IN ITS TOTALITY, THE PROJECT IS A THOUGHTFUL BALANCE OF SPA TIAL PLANNING, ENVIRONMENTAL SENSITIVITY, AND VISUAL HARMO NY, ULTIMATELY OFFERING A COMFORTABLE, FUTURE-FORWARD HOME THAT ENHANCES THE EVERYDAY LIVING EXPERIENCE OF ITS INHABI TANTS.

FLOOR PLAN

THE FLOOR PLAN LAYOUT IS STRUCTURED TO SERVE THE FAMILY.IT FEATURES A CENTRAL LOBBY. OTHER SPACES ARE CREATED AROUND THE LOBBY.EACH BEDROOM HAS CROSS VENTILATION AND QUALITY LIGHTING.

SECTION 1

SECTION 2

FOUNDATION DETAIL

ROOF DETAIL

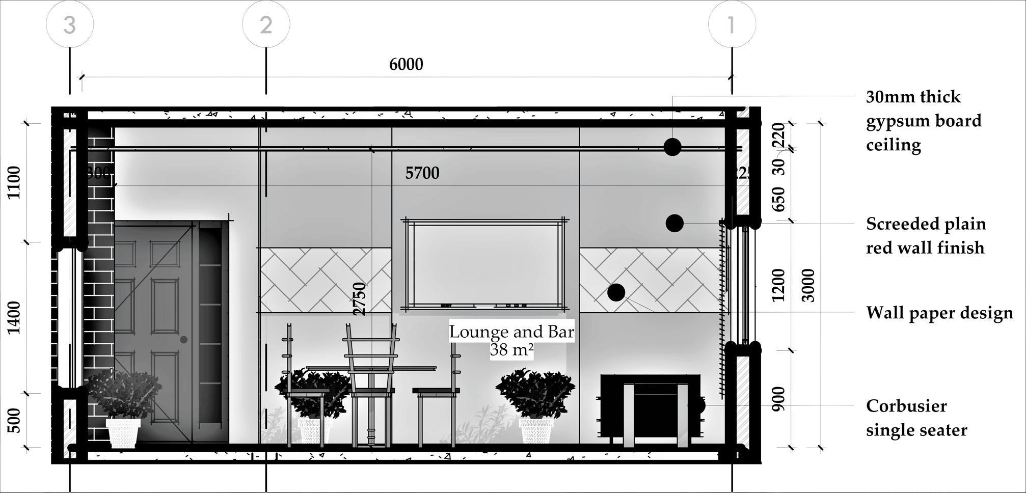
THE PROPOSED CHINESE-THEMED LOUNGE DESIGN IS DESIGNED WITH CHINESE TRADITIONAL AESTHETIC PRINCIPLES; THIS IS TO INTERNATIONALIZE THE COMMUNITY OF URUAGU NNEWI.THE DESIGN COMES WITH A MODERN CHINESE KITCHEN FOR PRODUCING CHINESE CUISINES AS WELL AS OTHER ASIAN CUISINES.

THE INTERIOR FEATURES A PREDOMINANT RED FACADE, WHICH IS A COMMON TRADITIONAL COLOR OF CHINESE DECOR. DARK-COLORED BRICK MATERIAL IS EMPLOYED TO CREATE A CONTRAST EFFECT, THUS ACHEIVING HARMONY IN DESIGN.

CHINESE POPULAR BONSAI PLANTS ARE PLACED STRATEGICALLY AS A DECOR ELEMENTS TO ENRICH THE INTERIOR DESIGN. SECONDLY, “MOON GATE”IS CREATED WITH WOOD TO CREATE A WARM NATURAL FEELING IN THE INTERIOR DESIGN.

A FUSION OF CULTURE AND CUISINE: CHINESE RESTAURANT DESIGN IN URUAGU, NNEWI

NESTLED IN THE HEART OF URUAGU, NNEWI, ANAMBRA STATE, THE DESIGN OF THIS CHINESE RESTAURANT PROJECT STANDS AS A VIBRANT INTERSECTION OF ASIAN CULTURAL ELEGANCE AND LOCAL NIGERIAN CONTEXT. CONCEPTUALIZED AS MORE THAN JUST A DINING SPACE, THE RESTAURANT WAS DESIGNED TO PROVIDE AN IMMERSIVE CULTURAL AND CULINARY EXPERIENCE, INTRODUCING THE RICH VISUAL TRADITIONS OF CHINA TO THE PEOPLE OF NNEWI.

THE ARCHITECTURAL DESIGN DRAWS HEAVILY FROM CLASSICAL CHINESE AESTHETICS—FEATURING SLOPED, TILED ROOFING FORMS, CIRCULAR “MOON GATE” ENTRANCES, AND A HARMONIOUS BALANCE OF SYMMETRY AND FLOW. THE LAYOUT IS ORGANIZED AROUND A CENTRAL DINING HALL, FLANKED BY PRIVATE BOOTH AREAS AND GARDEN-INSPIRED COURTYARDS THAT SIMULATE THE SERENE AMBIANCE OF A TRADITIONAL CHINESE TEAHOUSE. BAMBOO, RED LANTERN LIGHTING, AND CARVED WOOD PANELS ARE PROMINENT ELEMENTS, CAREFULLY SELECTED TO EXPRESS AUTHENTICITY AND AMBIANCE.

INTERNALLY, THE RESTAURANT USES EARTH-TONE COLOR PALETTES WITH ACCENTS OF DEEP RED AND GOLD, SYMBOLIC OF PROSPERITY AND HOSPITALITY IN CHINESE CULTURE. LOCALLY SOURCED MATERIALS SUCH AS POLISHED TERRAZZO FLOORING AND CLAY BRICKS WERE EMPLOYED NOT ONLY FOR SUSTAINABILITY BUT ALSO TO CREATE A SUBTLE BLEND OF IGBO VERNACULAR TEXTURES WITH ORIENTAL FINESSE.

THE DESIGN ADDRESSES THE LOCAL TROPICAL CLIMATE THROUGH THE INTEGRATION OF CROSS-VENTILATION, SHADED VERANDAS, AND OPEN-AIR TRANSITION SPACES, ENSURING THERMAL COMFORT WITHOUT OVER-RELIANCE ON MECHANICAL COOLING. A KOI POND AT THE ENTRANCE AND SMALL ZEN-INSPIRED GARDEN NOOKS CONTRIBUTE TO THE RESTAURANT’S TRANQUIL ATMOSPHERE, MAKING IT A RETREAT-LIKE SPACE IN THE BUSTLING ENVIRONMENT OF NNEWI.

THIS CHINESE RESTAURANT IS NOT JUST A PLACE TO EAT; IT IS A CULTURAL LANDMARK, PROMOTING DIALOGUE BETWEEN TWO ANCIENT TRADITIONS—CHINESE AND IGBO—THROUGH SPACE, FORM, AND EXPERIENCE. THE PROJECT ULTIMATELY CELEBRATES THE GLOBALIZATION OF DESIGN WHILE ANCHORING IT FIRMLY IN LOCAL REALITIES AND COMMUNITY NEEDS.

I’M MY MOST IMPORTANT PROJECT, I’M IN CONSTANT DEVELOPMENT AND IMPROVEMENT!

Thank you for paying attention to my work, hope we meet soon!

Turn static files into dynamic content formats.

Create a flipbook
Issuu converts static files into: digital portfolios, online yearbooks, online catalogs, digital photo albums and more. Sign up and create your flipbook.