FACULTADDEARQUITECTURA/1AAR0344-2510-8334
PORTAFOLIO ALBAÑILERIA
2025-1
Profesores:
Ing. Oswaldo Moisés Ríos Zúñiga
Arq. Gustavo Francisco Súarez Robles
Grupo: Grupo 2 - Albañileria Confinada
Integrantes:
Solymar Mora Quispe
Camila Molina Moreno
Stephanie Aguilar Schlaefli
Juan Daniel Aquino U202310899
Miguel Angel Garro Amoretti


Í N D I C E
02 Entorno y Usuario
Base teórica, Costos y Análisis de densidad de muros 01
03 Diseño Arquitectónico
04 Referencias Bibliográficas
05
Detalles Constructivos


LOCALIZACIÓN





PLANO DE EMPLAZAMIENTO

Fuente: GoogleMaps

COMERCIO HOTELES
COLEGIO
GALERIA
UROLOGIA
JARDINERIA
PLANO
DE UBICACIÓN

VIA PRINCIPAL
VIA SECUNDARIA
VIA TERCIARIA

Fuente: GoogleMaps
PLANO DE AGLOMERACIÓN




ZONA DE CONCENTRACIÓN PLAZAS
PRINCIPALES
Fuente: https://bvpad.indeci.gob.pe/doc/estudios CS/Region San Martin/san martin/tarapoto.pdf Av.
LEYENDA
UNIVERSIDAD NACIONAL DE SAN MARTIN PLAZA VEA
UNIVERSIDAD UPEU
MERCADO ECOLÓGICO
UNIVERSIDAD NACIONAL CÉSAR VALLEJO
CENTRO EDUCATIVO DE EDUCACIÓN ESPECIAL

JIRÓN CAPIRONA 462-496, TARAPOTO 22202
PLANO DE UBICACIÓN




PERFILES DE USUARIOS

COMERCIO: CAFETERIA + CO-WORKING
Un lugar de estudio y trabajo en equipo, donde concientizar sobre la tradición cafetera de tarapoto Se realizarán catas según temporada de café e ifusiones tradicionales

VIVIENDA 1: FAMILIA PROPIETARIA
Se conforma de un matrimonio , y dos hijos una niña de 8 y un niño de 12

ZONACO-WORKING
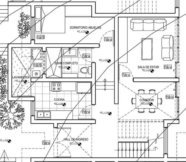
PROGRAMA ARQUITECTÓNICO


COMEDOR SALA
3 DORMITORIOS
SECUNDARIOS
SALA-COMEDOR
TERRAZA
COCINA
ZONA
3DORMITORIOS
RELAJO - FAMILIA
COCINA
LAVANDERIA
1DORMITORIO PRINCIPAL
SSHH
HALL
ZONADEESTUDIO
FOTOGRÁFICO
VIVIENDA 2: PAREJA
ARTISTA
Vivienda para una pareja de artistas, él pintor y ella escultora en cerámica. Incluye dos talleres: uno con luz cenital para pintura y otro ventilado para cerámica, conectados a la terraza que funciona como espacio de exposición.

ESTRATEGIA DE CATA
Se organizarán sesiones de cata de café y tés con distintas mezclas maceradas Cada mes se presentará una edición especial, la cual será seleccionada según las preferencias y sugerencias de los clientes. CATA

ACTIVIDADES RECREATIVAS CONTROLADAS

PROGRAMA ARQUITECTÓNICO

Actividades de constante permanencia y que puedan contribuir a la casa, generará un interés propio de los menores y fomentará una actividad familiar, donde podrán adentrarse al trabajo colaborativo y responsabilidad propia
TERRAZA
HALL
ESTUDIO FOTOGRÁFICO

SSHH
ZONAMULTIUS
LAVANDERIA
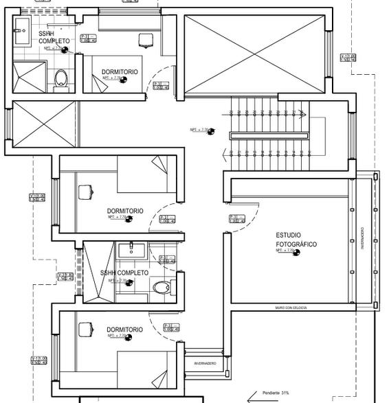
Para garantizar la calidad del estudio de arte, es fundamental contarconunespaciodeluzcontrolada.Unamaneraeficientey estéticadelograrloesmedianteelusodecelosías,queregulan la entrada de luz natural sin perder conexión con el exterior. Estasestructurasnosolocumplenunafuncióntécnica,sinoque también aportan valor arquitectónico, creando juegos de sombras y texturas que enriquecen el ambiente creativo y la experienciaartística.
ANÁLISIS CLIMÁTICO
SEGÚN KOOPEN
UBICACIÓN:


COMERCIO


Fuente: https://koppen earth/
CLASIFICACIÓN
Af (Ecuatorial) - Clima ecuatorial lluvioso o tropical húmedo
GRUPO A: CLIMAS TROPICALES
Ningún mes con temperatura media superior a 10ºC.
f : Lluvias constantes durante todo el año (sin estación seca marcada). Ningún mes con precipitación por debajo de 60 mm.

ALTA PRECIPITACIÓN
Promedio: 175mm/m
Más bajo: 60mm/m
La ciudad de Tarapoto al tener un clima torpical presenta una alta presipitación durante todo el año.
Donde ningún mes tiene un nivel de presipitación por debajo de 60 mm, segun la escala Koopen. Esto indica la ausencia de una estación seca definida, lo que exige soluciones adaptadas a la humedad constante.
Fuente: https://meteo.navarra.es/definiciones/koppen .cfm

Fuente: Meteoblue
TEMPERATURA CÁLIDA
Máximas: 29°C - 32°C
Mínimas: 20°C - 21°C
El gráfico muestra que Tarapoto mantiene temperaturas cálidas durante todo el año, con máximas medias diarias entre 29°C y 32°C, y mínimas alrededor de 20°C a 21°C. No existen variaciones térmicas significativas entre estaciones, lo que confirma un clima cálido-húmedo constante.
Fuente: Meteoblue
ANÁLISIS CLIMÁTICO
VIENTO


BRISA LIGERA
Principalmente del Suroeste (SO)
Velocdad: 10km/h
Los vientos más fueres registrados son de aprox . 55km/h en septiembre del 2024 (Brisa fuerte)
Fuente: Meteoblue


ASOLEAMIENTO
Dirección: Este a Oeste NORTE y SUR donde más refleja el sol
El recorrido del sol presenta muy poca variación debido a la cercanía con el Ecuador.
Fuente: shadowmap

ESTRATÉGIAS

TOPOGRAFIA
VIENTOS
ATECHOS CON TEATINAS (EFECTO CHIMENEA)
Sistema Pasivo de refrigeración para aprovechar los vientos, ventilar y refrescar. Esto mediante teatinas en los parte suprior de los techos.


Sistema pasivo de refrigeración y uso de actividad recreativacrontrolada para familia y estudio fotografico. B C D A A B C D E E

P Fuente: Elaboración Prop a
ADMISIBLE DE 3.0 KG/CM2.

ALTA PRECIPITACIÓN
TECHOS INCLINADOS
Uso de techos inclinados de al menos 20% de pendiente para preservar los muros e interiores de las precipitaciones.

ASOLEAMIENTO
Sombrear los muros y vanos para poder d moderadamente dirección norte menos perforacio zonas más expu

ORIENTACIÓN EN EL TERRENO ALERO
Generar aleros, e la zona este y controlar el s habitaciones en para aprove


TEMPERATURA CALIDA
JARDINES INTERIORES







VIVIENDA :
Zona Residencial R-1, R-2, R-3, compatible con uso mixto.
VIVIENDA;
RETIRO (5M)
ESTACIONAMIENTOS
AREA LIBRE
VIVIENDA 1
COMERCIO:
COMERCIO (1MER PISO)
ESTACIONAMIENTOS
VIVIENDA 2 3 PISOS + TERRAZAS

Máximo 3 pisos más azotea.
Área libre mínima: 30 % del terreno.
Coeficiente de edificación: 1.8 (unifamiliar), 2.5 (multifamiliar), 3.5 (conjunto residencial).
Retiro frontal: 3 m (vía local) o 5 m (vía principal); lateral/posterior: 2 m.
Estacionamientos pueden ubicarse en retiros, dejando 1.20 m de área verde.
COMERCIO :
Permitido en zona residencial como comercio local.
Debe ubicarse en el primer piso con acceso independiente.
Se aplica mismo coeficiente de edificación que vivienda
Retiro frontal puede usarse para estacionamientos, respetando área verde mínima.
PLANO DE USO DE SUELOS


LEYENDA
EDUCACIÓN
RESIDENCIAL DENSIDAD MEDIA OTROSUSOS
RECREACIÓN

Base teórica, Costos y Análisis de densidad de muros
SISTEMA CONSTRUCTIVO
ALBAÑILERIA CONFINADA
UNIDAD DE ALBAÑILERIA: LADRILLA KING KONG
Norma Técnica: E-070 Albañilería
Los ladrillos King Kong de 18 huecos son unidades cerámicas huecas utilizadas principalmente en albañilería confinada o armada, donde el refuerzo de acero puede colocarse en los huecos rellenados con mortero o concreto
MATERIALES:
Arcilla cocida
Agua
Resistencia mínima a la compresión: > 35 kg/cm²
Usos Principales

Muros portantes y no portantes
Muros divisorios
Albañilería armada o confinada
Edificaciones de hasta 5 pisos (según norma y zona sísmica)


VENTAJAS
Buena resistencia estructural en muros portantes
Permite conducción de instalaciones eléctricas o sanitarias
Mejor comportamiento térmico y acústico que ladrillos
macizos

Compatible con sistemas de albañilería armada
Mayor ligereza en comparación con ladrillo macizo
Reducción de peso en estructuras altas

ESTIMACIÓN DE COSTOS





ESTIMACIÓN DE COSTOS DE UN AMBIENTE:
DORMITORIO PRINCIPAL



ESTIMACIÓN DE COSTOS DE UN AMBIENTE:
DORMITORIO PRINCIPAL

1 . T A R R A J E O D E M U R O S I N T E R I O R E S


ESTIMACIÓN DE COSTOS DE UN
AMBIENTE: DORMITORIO PRINCIPAL

2 . P I S O S




ESTIMACIÓN DE COSTOS DE UN AMBIENTE:
DORMITORIO PRINCIPAL





ESTIMACIÓN DE COSTOS DE UN AMBIENTE:
DORMITORIO PRINCIPAL

4 . P I N T U R A D E M U R O S




ESTIMACIÓN DE COSTOS DE UN
AMBIENTE: DORMITORIO PRINCIPAL

5 . P U E R T A S



6 . V E N T A N A S


ESTIMACIÓN DE COSTOS DE UN AMBIENTE:
DORMITORIO PRINCIPAL


ANÁLISIS DE DENSIDAD DE MUROS

Fuente:Normas NTE E.030







Área total techado = 205.71 m2
0.35 x1.00x1.15x4 00
Tanto en el eje “ x ” como en el eje “ y ” se cumple la condición de densidad mínima de muros portantes.Por lo tanto la edificació es sismorresistente.
Área de cada muro = Longitud×Espesor


CONCLUSIÓN:
Según la Norma Técnica E.030 – Diseño Sismorresistente, la densidad mínima por dirección debe ser ≥ 1% (0.01).



Diseño Arquitectónico
PLANTAS EN BASE DE USUARIOS
ZONA PRIVADA
Esta zona tendrá almacén de alimentos, refrigeración y barra interna para calentar y preparar alimentos básicos y bebidas.
COMERCIO: CAFETERIA + CO-WORKING




pasillo de medida necesaria para silla de ruedas, igual que la puerta de 1.5m con apoyo y pañalera
ZONA PÚBLICA
zona de reparto y barra de atención, se realizará cata en la zona co-working según un calendario semanal.
PLANTAS EN BASE DE USUARIOS



ZONA SOCIAL ZONA HÚMEDA
DORMITORIO
Para respnder a las necesidades del cliente se apuesta por una zona de relajo/recreación familiar aislado de los ambientes (autismo).
Recalcar que como parte de la respuesta se usará los jardines internos como actividad lúdica y controlar la temperatura en una zona frecuente para niños y padres.


PLANTAS EN BASE DE USUARIOS

PISO 1
ZONA HÚMEDA

DORMITORIO

PISO 2

VIVIENDA 2: ESTUDIANTES UNIVERSITARIOS
Esta vivienda esta diseñada para alquilar a estudiantes, y cuenta con un estudio fotográfico
ZONA
SOCIAL
El estudio cuenta con una pared con celocia, realizada por la unidad de albañileria


TERRAZA


DORMITOR
TERRAZA
ZONA DE RELAJO-FAMILIAR LEYENDA








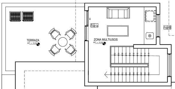
ZONA MULTIU LEYENDA
TERRAZA


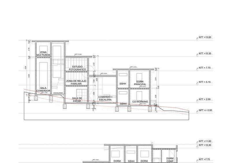
ELEVACIONES PRINCIPALES EN BASE A LAS VARIABLES CLIMÁTICAS

ASOLEAMIENTO
ORIENTACIÓN EN EL TERRENO
Dirección: Este a Oeste NORTE y SUR donde más refleja el sol







Promedio: 175mm/m Más bajo: 60mm/m
Principalmente del Suroeste (SO) Velocdad: 10km/h
E INTERCONEXIONES


E


CORTES E INTERCONEXIONES

E INTERCONEXIONES


COSTRUCTIVO
PROYECTO - NORMATIVO - ESTRUCTURA
CASO 1: GIRO DE SILLA DE RUEDA PARA COMERCIO (D=1.5M)

CASO 2: PASAMANOS Y BARANDAS NO DEBEN INVADIR RUTA ACCESIBLE

CASO 1 : E.070 - 19.3.2.1 - ESPESOR
DE MUROS PORTANTES MÍNIMO
DE 0.14 M

CASO 2 : E.070 - 19.5.1.3 - ESPESOR
DE JUNTAS HORIZONTALES Y VERTICALES DE MORTERO MÍNIMO
DE 10 A 15 MM



Detalles Constructivos
DETALLES Encuentro de Losa con Muro

Viga de concreto armado
��Sección: 20 × 25 cm
��Concreto: f’c = 210 kg/cm²
��Estribos: Ø 1/4”
Losa aligerada
��Ladrillo de techo: 15 × 30 × 30 cm
��Varillas de acero: Ø 3/4"
��Concreto: f’c = 210 kg/cm²
Albañilería
��Ladrillo King Kong de 18 huecos
��Dimensiones: 13 × 24 × 9 cm
Mortero
��Dosificación: C:A = 1:5
��Espesor de junta: 1.5 cm
Tarrajeo
��Mortero cemento–arena 1:5
Contrapiso
��Espesor: 4 cm
��Dosificación: 1:5
Piso
��Parquet laminado e = 1 cm
Contrazócalo
��Madera 0.13 × 0.24 × 0.09 m
Normas aplicables
��RNE E.060 – Concreto Armado
��RNE E.070 – Albañilería
��RNE E.030 – Diseño Sismorresistente
��RNE E.020 – Cargas

DETALLES Encuentro de Cimiento con Muro


Albañilería
��Ladrillo King Kong 18 huecos
��Dimensiones: 13 × 24 × 9 cm
Mortero
��Cemento–arena 1:5
��Junta: 1.5 cm
Tarrajeo
��Mortero 1:5
Sobrecimiento Concreto ciclópeo
��Dosificación: 1:8 + 25% piedra mediana
Cimiento corrido Concreto ciclópeo
��Dosificación: 1:10 + 30% piedra grande
Solado
��Dosificación: 1:4
��Espesor: 5 cm
Relleno
��Material seleccionado
��Compactación en capas de 10 cm
Contrapiso
��Mortero 1:5
��Espesor 4 cm
Piso
��Parquet laminado 1 cm
Contrazócalo
��Madera 1.5 × 10 cm
Normas aplicables
��RNE E.050 – Suelos y Cimentaciones
��RNE E.060 – Concreto Armado
��RNE E.070 – Albañilería
DETALLES
Encuentro de Cimiento con Escalera
Escalera Estructura
��Concreto armado
��Resistencia: f’c = 210 kg/cm²
Refuerzo
��Barras de acero Ø 1/2"
��Armado inferior: 20 Ø 1/2"
Paso de madera
��Espesor: 4 cm
Contrapaso de madera
��Espesor: 2 cm
Parquet laminado
��Espesor: 1 cm
Entrepiso Concreto ciclópeo
��Dosificación 1:10
��Espesor: 10 cm
Cimentación Cimiento corrido
��Concreto ciclópeo 1:10 + 30% piedra grande
Dado de concreto
��Dimensiones aproximadas 0.10 × 0.10 m
Normas aplicables
��RNE E.060 – Concreto Armado
��RNE E.050 – Suelos y Cimentaciones
��RNE E.030 – Diseño Sismorresistente

DETALLES Encuentro de Losa con Escalera

Viga de concreto armado
��Sección: 0.20 × 0.25 m
��Concreto: f'c = 210 kg/cm²
��Estribos: Ø 3/8” o Ø 1/4”
Losa aligerada
��Concreto: f'c = 210 kg/cm²
��Refuerzo: varillas de acero Ø 1/4”
Escalera de concreto armado
��Concreto: f'c = 210 kg/cm²
Refuerzo
��Varillas de acero Ø 1/2”
��Armado inferior: 20 Ø 1/2”
Paso de madera
��Espesor: 4 cm
Contrapaso de madera
��Espesor: 2 cm
Parquet laminado
��Espesor: 1 cm
Contrapiso
��Mortero cemento–arena 1:5
��Espesor: 4 cm
Tarrajeo
��Mortero cemento–arena 1:5
��Espesor aproximado: 4 cm
Normas aplicables
��RNE E.060 – Concreto Armado
��RNE E.030 – Diseño Sismorresistente
��RNE E.020 – Cargas
DETALLES Encuentro de Techo con Muro
Albañilería
��Ladrillo King Kong de 18 huecos
��Dimensiones: 13 × 24 × 9 cm
Mortero de asentado
��Cemento–arena 1:5
Tarrajeo
��Mortero cemento–arena 1:5
��Espesor: 10–15 mm
Losa maciza
��Concreto: f'c = 210 kg/cm²
��Espesor aproximado: 0.20 m
Tejas de arcilla
��Dimensiones aproximadas: 0.02 × 0.30 m
Torta de barro aligerado
��Capa niveladora y de soporte para tejas
Mortero
��Dosificación: C:A = 1:5
Canaleta
��PVC Ø 4"
Soporte metálico
��Perfil 4"
Viga de concreto armado
��Sección: 0.20 × 0.25 m
��Concreto: f'c = 210 kg/cm²
��Estribos: Ø 3/8” o Ø 1/4”
Normas aplicables
��RNE E.060 – Concreto Armado
��RNE E.070 – Albañilería
��RNE E.030 – Diseño Sismorresistente
��RNE EM.110 – Instalaciones sanitarias (evacuación pluvial)


Referencias Bibliográficas

REFERENCIAS BIBLIOGRÁFICAS
meteoblue. (2024). Clima histórico y modelado - Tarapoto, Perú. meteoblue. Recuperado de: https://www.meteoblue.com/es/tiempo/historyclimate/climatemodelled/tarapoto_per%C3%BA_3691474
SENAMHI. (2022). Pronóstico turístico - Tarapoto. SENAMHI. Recuperado de: https://www.senamhi.gob.pe/?p=pronostico-detalleturistico&localidad=0023
Imágenes de la sección numero 2 generadas por inteligencia artificial Köppen. (2022). Köppen climate classification. https://koppen.earth/
Gobierno de Navarra. (2019). Definiciones de clima según Köppen. https://meteo.navarra.es/definiciones/koppen.cfm
Meteoblue. (2025). Clima modelado. https://www.meteoblue.com/es/tiempo/historyclimate/climatemodelled/-6.482N-76.371E326 America%2FLima
SunEarthTools. (2025). Calculadora de posición solar. https://www.sunearthtools.com/dp/tools/pos_sun.php?lang=es
Shadowmap. (2025). Shadowmap 3D. https://app.shadowmap.org/?
lat=-6.48190&lng=-76.37036&zoom=16.82&azimuth=0.00000&basemap=map&elevation=nextzen&f=29.0&hud=true&polar=0.52360&time=1744332165
412&vq=2
Corral, J., & American Institute of Architects. (1984). La casa pasiva: clima y ahorro energético. Hermann Blume.
Deffis Caso, A. (1994). La casa ecológica autosuficiente para climas cálido y tropical. Arbol Editorial.
Ministerio de Vivienda, Construcción y Saneamiento (2019). Plan de Desarrollo Urbano.Instrumentos - San Martin. Gobierno del Perú https://es.scribd.com/document/407979617/PDU-TARAPOTO-pdf
https://www.studocu.com/pe/document/universidad-peruana-de-ciencias-aplicadas/comportamiento-y-diseno-en-concreto/cdc-analisis-sismicoestatico/106028457
