TranVanTuan Portfolio 2023

Page 1

Email: tranvantuan3142@gmail.comPhone: 0903866803Selected works: 2020 - 2023 ARCHITECTURE PORTFOLIO Tran Van Tuan

GRADUATION PROJECT

SAI GON CULTURAL CENTER

Project Location Year Instructor

Sai Gon Cultural Center

Thu Thiem - Ho Chi Minh City

2023 - 5th year student

Mrs. Nguyen Thi Kim Tu

Saigon Cultural Center was implemented with the desire to create a space for community cultural exchange activities such as art performances, club activities, organizing festivals, events,... Thereby, the project contributes to encouraging the preservation and promotion of traditional cultural and artistic values of SaigonHo Chi Minh City, contributing to improving cultural and spiritual life for people as well as promoting Sai Gon culture to tourists

In the context of a city that is transforming and developing strongly, the project focuses on modern and symbolic architectural shapes for the city with free curvinglinesandflyingshapes,inaccordancewiththespiritofcreative,dynamic, always open to receive and learn new things of Saigon people today.

01 4
5
6
7
8
9
10
11

DIAGRAM MẶT CẮT

12
13
14
15
16
17
18
19

INTERNATIONAL PRIMARY SCHOOL

Project Location Year Instructor

International Primary School District 7 - Ho Chi Minh City

2020 - 2nd year student

Mr. Dam Huynh Quoc Vu

PrimaryschoolisthesecondlevelofeducationintheVietnamese education system. The school teaches students the initial foundations for proper and long-term moral development to form intellectual, physical, aesthetic and other aspects of life. basic skills. Creating an environmentally friendly space and creating a sense of stimulating learning and playing activities for students are issues that need to be considered in the process of finding design ideas for this project.

02 20
21
22
23

COMMUNITY LIBRARY

Project Location Year Instructor

Community Library District 7 - Ho Chi Minh City 2020 - 2th year student

Mr. Dam Huynh Quoc Vu

District 7 Library is a cultural project serving the entertainment, learning, research and information access needs of local residents. The work is likened by the author to a “Garden of knowledge” and has a relatively interesting approach. It can be said that when you accidentally get lost in the “Garden of Knowledge”, the journey of discovery and search for knowledge seems to have begun unintentionally...

03 24
25
26
27

WATER SPORTS CENTER

Project Location Year Instructor

Water Sports Center District 4 - Ho Chi Minh City 2022 - 4th year student

Mrs. Nguyen Thi Kim Tu

The Water Sports Center project is designed as a place to organize modern water sports competitions. At the same time, it aims to become a community sports center with many public service facilities. The project aims for a modern architectural form, bringing the dynamic, healthy and flexible beauty of water sports.

04 28
29
30
31
32
33
34
35

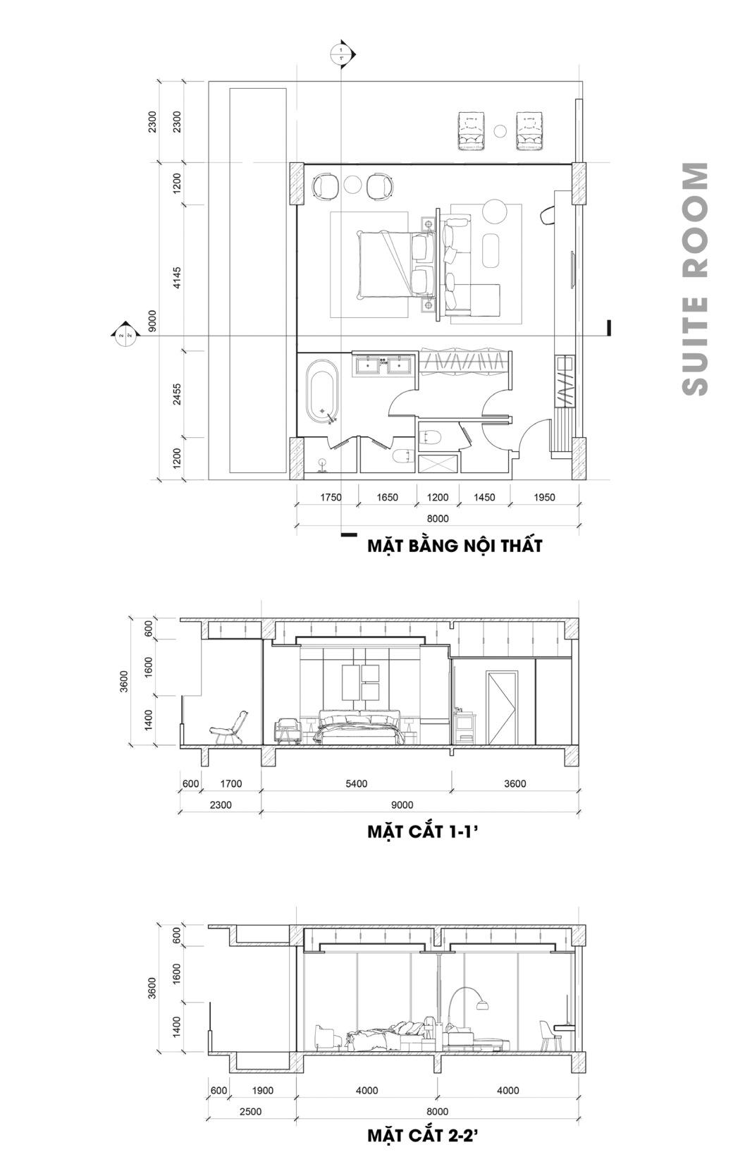
SALA - THU THIEM TRANSIT HOTEL

Project: Location Year Instructor

Sala Thu Thiem Transit Hotel Sala Thu Thiem - Ho Chi Minh City

2022 - 5th year student

Mr. Duong Trong Binh

The building is located in the “gateway” area to enter the central area of Ho Chi Minh City from the direction of Long Thanh airport, meetingtheaccommodationfunctionforshortorlong-termtransit guests while waiting for connecting international flights at city airport. The goal of the project is to aim for a modern architectural form, while creating a “memorable” impression for guests to choose to stay when they return to travel to Ho Chi Minh City.

05 36
37
38
39
40
41
42
43

INTERIOR DESIGN

SAI GON MORIN

Project Location Year Instructor

Interior design

Sai Gon Morin Hotel - Hue City

4th year student

Mr. Dinh Anh Tuan

Sai Gon Morin Hotel is located in the ancient capital of Hue, from the hotel you can see the Hue citadel on the opposite bank of the Perfume River. The unique ancient nature of this land is the main inspiration for the project. Familiar materials of Hue such as patterns, ancient texts, lanterns, ceramic vases, yellow and green colors and symmetry in Hue ancient architecture are applied by the author in the project.

06 44
45
46
47
THE END.
Thanks for watching
TRAN VAN TUAN - 2023 tranvantuan3142@gmail.com (+84) 0903 8668 03

Turn static files into dynamic content formats.

Create a flipbook
Issuu converts static files into: digital portfolios, online yearbooks, online catalogs, digital photo albums and more. Sign up and create your flipbook.
TranVanTuan Portfolio 2023 by Van Tuan Tran - Issuu