Skip to main content

Politi Architecture_Portfolio

Page 1


POLITI ARCHITECTURE

1. Profile

2. Mission Statemtent

3. Architecture

The Urban House

Mayfield Presbyterian: Food Pantry

Modern Amphitheater

Tiny Black House

VT3 Housing Project

Central Park South

West Village Apartment

Upper Eastside Apartment

Lake George House

Steven Institute of Technology

Stonehouse II

Stonehouse

Shoal Bay Spa & Wellness Center

Incheon High-Speed Rail Station

CONTENT

4. Urban Gloversville DRI

Utica DRI

The City of Elmira | Comprehensive Plan

City of Watertown | Comprehensive Plan

5. Design Competition

Big Idea for Small Lots NYC

United States Peace Corp

Process Sketches

1. Profile

Founded by architect Thomas M. Politi - Politi Architecture is redefining contemporary luxury through architecture rooted in elegance, innovation, and enduring craftsmanship. The firm specializes in high-end residential design, boutique commercial environments, and adaptive reuse, creating spaces that seamlessly unite sophistication with sustainability and modern technology.

With studios in New York City and Saratoga Springs, Politi Architecture serves discerning clients throughout New York, New Jersey, Connecticut, and Massachusetts, delivering transformative, bespoke design solutions that elevate both private living and commercial experiences.

Service Offerings

High-End Residential Design

Designing luxury homes that balance architectural beauty with livability, integrating sustainable and forward-thinking practices.

Boutique Commercial Design

Crafting immersive hospitality and lifestyle environments— including hotels, resorts, and dining destinations—where operational performance meets exceptional design.

Adaptive Reuse & Master Planning

Revitalizing existing structures and communities to meet contemporary needs while honoring historical integrity and context.

Interior Architecture & Bespoke Millwork

Providing refined interior environments and custom-crafted millwork that harmonize seamlessly with the architecture.

Smart Home & Sustainable Design

Integrating cutting-edge technology, energy efficiency, and resilient systems to support modern living and long-term sustainability.

By offering a fully integrated suite of services—including architecture, interior design, urban design, custom fabrication, and project management—Politi Architecture is uniquely positioned to deliver comprehensive design solutions that exceed expectations. This holistic approach reflects the firm’s commitment to timeless quality, innovation, and a deeply client-centered design process.

2. Mission Statement

At Politi Architecture, we believe design is a transformative force—one that elevates personal experience and strengthens the environments in which communities thrive. Our mission is to create site-specific, elegant, and innovative architecture that reflects both creative vision and rigorous problem-solving, regardless of scale.

Guided by our core values of Professionalism, Leadership, Investment, Communication, and Craftsmanship, we are committed to delivering exceptional architectural solutions tailored to the distinct goals of each client.

Through a deeply collaborative and client-centered process, Politi Architecture crafts bespoke, high-end spaces where functionality and beauty are seamlessly aligned. With a forward-thinking approach and an uncompromising commitment to quality, we design environments that enrich daily life and leave a lasting, meaningful impact.

3. Architecture

Politi Architecture serves forward-thinking, innovative clients who understand the transformative potential of exceptional design in enriching their quality of life. This distinguished clientele seeks out an unmatchable blend of vision, strategic insight, and creativity—qualities that define Politi Architecture’s approach.

As strategic partners, we are dedicated to each project, ensuring that every design is shaped with a holistic, client-focused perspective. Our design process begins with an indepth evaluation, resulting in a series of analytical studies— spanning Site, Program, Feasibility, Technology, and more. This approach clarifies the project’s scope-of-work, identifying present challenges, anticipating future needs, and providing lasting, effective solutions.

Politi Architecture consistently delivers precision and quality across all projects. By combining unparalleled expertise, advanced technologies, and clear, personalized communication, we set a new standard in architectural design.

"Everyone deserves to experience beautiful, inspiring spaces, regardless of a project's scale or function. Our design philosophy centers on modern elegance and simplicity, where we reimagine the built environment by blending clean, minimalist lines with the finest materials. Our goal is to craft tailored, sophisticated environments that reflect our clients' unique needs and aspirations."

The Urban House

A refined, minimalist residence that redefines contemporary living within an urban context. Constructed with an all wood structure and an exterior that is primarily of metal and glass, the home reflects the firm’s modernist beliefs, where simplicity, clarity, and functionality are elevated through thoughtful design. With its deliberate restraint and forward-thinking sensibility, The Urban House embodies Politi Architecture’s signature synthesis of innovation and elegance.

Emerging from its setting, the residence is nestled into a softly contoured landscape of native grasses and undisturbed vegetation, creating a quiet dialogue between built form and natural terrain. Its striking silhouette is composed of interlocking geometric volumes and strategically placed glazing that dissolve the boundary between interior and exterior, inviting the surrounding environment inward. The architecture in conjunction with the landscape captures the natural beauty of nature: filtered sunlight dances across the façade, casting shifting patterns and illuminating the material richness within—where warm natural finishes soften the rigor of its modern lines.

Inside the home, seamless spatial transitions foster a continuous sense of openness and calmness. Oversized windows and fluid interiors bathe the home in natural light, while a restrained palette of neutral hues and pale wood finishes evoke clarity, softness, and serenity. Every detail—hidden seams, integrated systems, and the purity of form—reflects Politi Architecture’s commitment to precision, intentionality, and quiet refinement.

Gently elevated above the terrain, the structure appears to hover, imparting a feeling of lightness and stillness. Sustainability is woven into every aspect of the design, from the use of eco-conscious materials to the integration of high-performance, energy-efficient systems. These choices reflect a deeper architectural philosophy: timeless, place-sensitive design rooted in elegance and purpose.

More than a home, The Urban House is a meditation on light, materiality, and restraint—a sanctuary within the city that is both unmistakably modern and deeply attuned to the natural world.

Mayfield Presbyterian: Food Pantry

A Minimalist and Sustainable Space for Community Nourishment

The Mayfield Presbyterian Church Food Pantry is a considered response to a deeply human need—supporting the community with dignity, clarity, and care. The project reflects our design ethos: simplicity, sustainability, and a meaningful connection to nature.

Working within a modest budget, we focused on strategic design decisions that deliver lasting impact. A minimalist structural approach and the use of durable, honest materials allowed the project to meet every programmatic requirement without compromise. This cost-effective strategy supports both the church’s mission and our commitment to high-performance, sustainable architecture.

True to our belief that spaces are defined by atmosphere and restraint, the pantry is shaped through:

Natural Light

Expansive windows draw daylight deep into the interior, creating an uplifting environment for guests, volunteers, and staff.

Neutral Palette

Soft whites, warm greys, and earth tones establish a calm, uncluttered backdrop for daily activity.

Natural Materials

Birch and ash wood surfaces bring warmth and tactility, reinforcing a sense of nature within the space.

Sustainability

Eco-conscious materials and energy-efficient strategies reduce environmental impact while ensuring long-term usability.

More than a food pantry, this project is a space of care, connection, and quiet dignity. Designed with purpose and restraint, it reflects the values of the Mayfield Presbyterian Church while embodying Politi Architecture’s core principles: elegant simplicity, functional clarity, and harmony with the natural world.

Modern Amphitheater

A Serene, Adaptive Performance Space for Children with Special Needs

A modern, inclusive amphitheater thoughtfully designed for children with special needs and their families—a place defined by serenity, sensory balance, and a profound connection to nature.

Nestled within a gently sloping landscape, the amphitheater’s fluid, curvilinear form opens outward to the surrounding environment, framing the forest as a living, ever-evolving backdrop. As light shifts throughout the day and seasons unfold, the architecture engages in a continuous dialogue with its setting: trees dissolve into silhouettes at dusk, foliage glows with warm evening light, and the horizon itself becomes an extension of the stage. This seamless interplay between built form and landscape creates a dynamic, sensory-rich environment that celebrates time, movement, and diversity of experience.

Key Features

Universal accessibility through gently sloped pathways and integrated seating that comfortably accommodates wheelchairs and mobility aids.

Tiered garden terraces that double as soft, tactile seating, allowing nature to become an intimate part of the audience experience.

A protective canopy supported by angled columns inspired by branching trees, offering shelter while preserving openness to sky and landscape.

Subdued, sensory-sensitive lighting carefully calibrated to minimize overstimulation, supporting evening performances and moments of quiet reflection.

Nature as a co-performer, where trees, sky, light, and ambient sounds enrich the experience and provide calming, therapeutic sensory engagement.

More than a venue, this amphitheater is a place of belonging. Designed with empathy, restraint, and elegance, it offers a restorative environment where children of all abilities can engage with performance, nature, and community—on their own terms.

Tiny Black House

Commissioned to design a “Tiny Home” that would be mass produced and economical. This gave us another opportunity to study our design concept - Architecture as a comprehensive relationship between the built environment, landscape, engineering, and art.

Due to the size of the Tiny Home, the following items were examined: programmatic needs, budget, structural system, connective to the landscape, and how to introduce natural light into the interior volumes. We also noted that the flexibility of interior volumes would be key.

The Tiny Home was divided into Private and Public zones. This allowed for the zones to function independently and to be defined by the use of materials. The Private Zone (Bedroom and Bathroom) defined by the metal encloser was noted to be quiet and restful spaces with critically placement of opening to minimize the natural light entering the volume. The Public Zone (Living, Kitchen, and seating area) defined by the glass encloser becomes an expressive and flexible space that maximizes natural light entering the volume. Also, within this zone - the residents would be engaged with landscape more. The glass walls are moveable, allowing for the Public Zone to expand in size when the weather allows.

This design concept was always seen to blend more complex forms to the natural landscape… a blurring of the boundaries between manufactured and nature. After shaping the Tiny Home restrictive volume with flexibility and critically placements of openings. A similar agreement can be made about the architectural value for a simple structure, which is even transported to site and/or built by modest means by engaging with the landscape in a creative and thoughtful manner.

VT3 Housing Project

A New Standard in Veteran-Focused Urban Redevelopment

The VT3 Housing Project reflects Politi Architecture’s commitment to designing inspiring, high-performance environments that elevate urban living while strengthening communities. Selective in our partnerships, we collaborate with clients who share our belief that architecture should deliver more than shelter—it should create meaningful experiences where technical precision and artistic vision converge.

Located in Amsterdam, NY, VT3 represents a new model for veteran housing, urban revitalization, and community-centered redevelopment. The project is envisioned as a catalyst for long-term growth, supporting both residential stability and broader economic development within the city’s evolving downtown fabric.

Urban, Architectural, and Social Impact

VT3 is shaped around three core ambitions:

Urban Impact

Strengthening the city’s neighborhoods through thoughtful infill development and renewed civic investment.

Architectural Impact

Introducing a modern, design-forward residential building that contributes a refined contemporary identity to Amsterdam’s streetscape.

Social Impact

Providing supportive, dignified housing for military residents and veterans, fostering belonging, wellness, and community cohesion.

Our design process began with extensive site analysis, aerial studies, and strategic collaboration with local leadership, including direct coordination with city officials and the mayor, ensuring alignment with Amsterdam’s long-term redevelopment goals.

Design Concept

Inspired by the minimalist modernist principles of Le Corbusier, VT3 is conceived as a low-rise residential complex defined by its linear form, clean geometry, and carefully detailed metal accents. The architecture balances simplicity and strength—creating an elegant contemporary presence while integrating seamlessly into the existing urban landscape.

The project promotes sustainable urban development patterns, encouraging walkability, connectivity, and an enhanced quality of life for residents.

A Catalyst for Amsterdam’s Future

By thoughtfully blending architecture, landscape, engineering, and social purpose, Politi Architecture has designed VT3 as both functional and uplifting—an environment rooted in clarity, dignity, and modern elegance.

The VT3 Housing Project stands as a model for veteran-focused housing in Upstate New York, demonstrating that thoughtful design and community vitality can coexist at the heart of urban redevelopment.

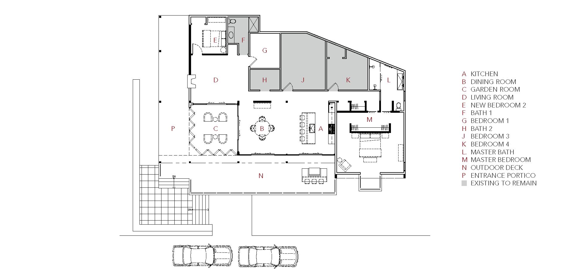
CPS - Penthouse

Situated in the prestigious Central Park South neighborhood, this duplex penthouse commands breathtaking panoramic views from its unrivaled position above the treetops at the southern edge of the park. Originally configured as a two-bedroom, two-bath residence, the home is undergoing a complete renovation to become a spacious three-bedroom, three-and-a-half-bathroom retreat—thoughtfully tailored to the client’s lifestyle while maximizing the extraordinary relationship to Central Park.

Design Concept

The design concept is rooted in the timeless elegance of this iconic location, using light, proportion, and restraint to create interiors that feel both refined and serene. Each space is carefully composed to invite abundant natural light and frame the surrounding landscape, allowing the park itself to become an ever-present element of the home.

A soft, neutral palette of crisp white surfaces and light wood flooring provides a calm architectural backdrop, ensuring that both the sweeping views and the client’s curated art collection remain the focal points.

Through precise detailing and a modern sensibility, Politi Architecture is transforming this Central Park South penthouse into a luminous urban sanctuary—one that celebrates the harmony between sophisticated interiors and New York City’s most iconic green space.

West Village Apartment

Located at the edge of Jackson Square in the heart of New York City’s West Village, this 1929 pre-war cooperative apartment presented a rare opportunity to reimagine a historic interior while preserving its architectural soul. Politi Architecture was commissioned to renovate the approximately 800-squarefoot one-bedroom residence, transforming it into a contemporary urban sanctuary that quietly bridges past and present.

The design approach is rooted in contextual restraint and clarity. Rather than imposing a new identity, the renovation amplifies the apartment’s relationship to its most defining assets, the expansive views and seasonal rhythms of Jackson Square. Through a careful orchestration of light, material, and proportion, the interior is conceived as an extension of the landscape beyond its windows, allowing the park to become an ever-present backdrop to daily life.

A neutral, luminous palette of white walls and natural wood flooring establishes visual continuity while maximizing daylight penetration throughout the space. Historic pre-war proportions are respected, yet subtly refined, resulting in interiors that feel both timeless and distinctly modern. Strategic sightlines and a disciplined material vocabulary dissolve visual boundaries, creating an open, airy environment that enhances spatial perception without increasing footprint.

Custom millwork and bespoke furnishings—hallmarks of Politi Architecture’s practice—play a central role in the project’s success. Each element is precisely tailored to the apartment’s scale and function, reinforcing the idea that architecture extends beyond walls to include furniture as integral infrastructure. Highlights include a stone-topped bathroom vanity, a built-in living-area workstation, and a custom kitchen credenza, each designed to balance minimalism, craftsmanship, and performance.

Sustainability is embedded through durability, longevity, and thoughtful material selection rather than overt gestures. By prioritizing timeless design, adaptive reuse, and high-quality detailing, the project demonstrates how small-scale residential architecture can achieve lasting value with minimal intervention.

The 2 Horatio Street Residence exemplifies Politi Architecture’s belief that great design is contextual, intentional, and quietly powerful—where architecture, landscape, and craft converge to elevate everyday living within the historic fabric of New York City.

Upper Eastside Apartment

Located on Manhattan’s Upper East Side, this one-bedroom, one-and-a-half-bath pre-war cooperative apartment was thoughtfully renovated to better support the client’s lifestyle and extensive art collection. The scope of work included opening the foyer to the living room to improve spatial flow, modernizing both bathrooms, introducing significant new storage solutions, and integrating a discreet laundry closet within the existing footprint.

Design Concept

The design approach sought to honor the elegance of the apartment’s original architecture while introducing a lighter, more contemporary spatial experience. By removing unnecessary partitions and opening key sightlines, natural light is allowed to penetrate deep into the home, enhancing both daily living and the display of art.

A restrained material palette of crisp white walls and wideplank white oak flooring provides a calm architectural backdrop, allowing the client’s curated collection to bring vibrancy and character to the space. Mid-century furnishings further define the interiors, creating a deliberate juxtaposition with the apartment’s Edwardian fireplace—an intentional dialogue between historic detail and modern clarity.

A key architectural intervention is the introduction of a knifeedge ceiling plane with integrated LED lighting. This element provides museum-quality illumination for artwork while preserving the openness of the original exposed beams and dramatic 11-foot ceilings.

Transformation

What was once a traditionally compartmentalized, shabby-chic residence has been transformed into a clean, airy, and light-filled home—one that maximizes its south-facing views and elevates the relationship between architecture, art, and everyday experience.

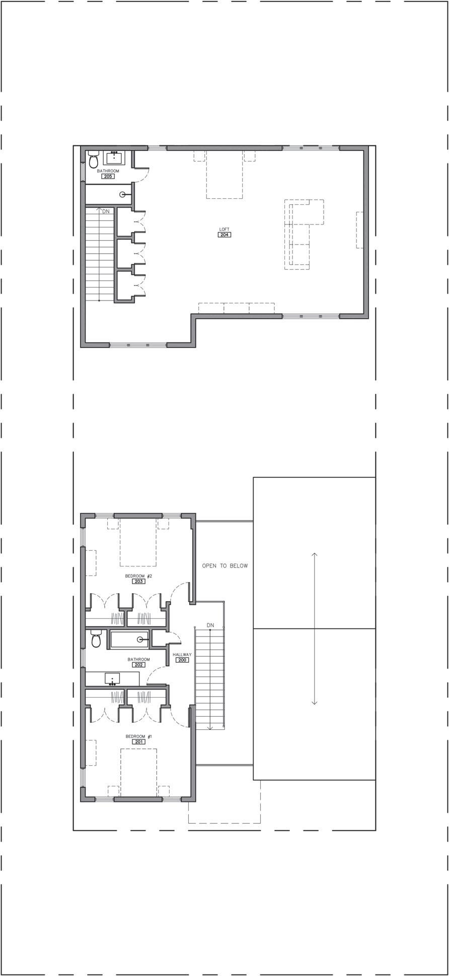
Lake George Residence

A Home Rooted in Place. Designed for the Future.

Set against the quiet landscape of Upstate New York, this home reflects Politi Architecture’s ongoing exploration of sustainable, modern living—where thoughtful design, performance, and timeless aesthetics come together.

Defined by clean lines, natural materials, and expansive views, the home is carefully oriented to engage the land, capture daylight, and reduce environmental impact—without sacrificing comfort or elegance. It is part of a growing family of residences designed for those who value quality, longevity, and a deep connection to place.

For homeowners seeking more than square footage—for those who want a home that supports well-being, efficiency, and beauty—this project represents a new standard for living well in Upstate New York.

Architecture that is calm, intentional, and built to endure.

Steven Institute of Technology

Engineering Laboratory & Waterfront Campus Vision

Completion: 2009

In Collaboration With: Ammann & Whitney

Architecture has the power to elevate infrastructure into civic identity.

This engineering laboratory was conceived not simply as an academic building, but as a transformative waterfront catalyst—an institutional anchor that strengthens the university’s relationship to the Hudson River while elevating its presence within the greater New York metropolitan context.

A Campus as Civic Infrastructure

The vision extended beyond delivering a functional laboratory. The objective was to create a refined, forward-looking academic environment that integrates research, sustainability, and urban life into a single architectural gesture.

The program supports advanced engineering research focused on sustainable construction methodologies—positioning the university at the forefront of responsible innovation. Yet the project’s ambition reaches further: to redefine how technical facilities contribute to the public realm.

The Social Dimension of Engineering

At its core, this project recognizes that engineering is both analytical and communal.

The building opens toward the waterfront, establishing a public urban terrace that serves as a shared platform between institutions and community. Students, faculty, and local residents converge within a carefully articulated landscape that frames views of New York City while reinforcing a sense of collective ownership.

The result is a campus presence that feels intentional, elevated, and enduring.

Design Discipline + Strategic Execution

Mindful of budget and quality, the design approach maximized architectural impact through clarity of form, disciplined materiality, and strategic program organization. Every decision balances performance with permanence—delivering a project that performs technically while resonating experientially.

This work reflects an early exploration of a principle that continues to guide Politi Architecture today:

Great architecture does not separate buildings from the urban spaces — it fuses them.

By aligning academic innovation with civic space and waterfront identity, the project transforms an engineering lab into an urban statement—one that reinforces the university’s mission while contributing meaningfully to the cultural and physical fabric of the Hudson River corridor.

Stonehouse II

Welcome to the Stonehouse Series, a visionary collection of sustainable homes that seamlessly integrate with the natural landscape. These homes are designed with a keen awareness of budgetary considerations, ensuring they are not only functional and cost-effective but also aesthetically captivating and environmentally responsible.

Design Philosophy: Our intent is to create a series of contemporary homes that harmoniously blend design, science, technology, and construction. By taking a holistic approach, we aim to craft architecture that enriches everyday life, ensuring each home is a testament to modern elegance and simplicity.

Modular Design: This homes in the Stonehouse Series are designed modularly, using standardized dimensions of four feet and eight feet. This approach maximizes material usage, minimizes waste, and accelerates the construction process. All finish options and building materials are eco-friendly and require minimal maintenance, reducing material off-gassing and heat loss.

Sustainable Features: Energy Efficiency: Each home is equipped with energy-efficient appliances, water-conserving plumbing fixtures, and instant hot or tankless water heaters.

Water Recycling: A cistern system is used for water recycling, promoting sustainability, and reducing water waste.

Eco-Friendly Materials: The use of eco-friendly materials ensures a healthier living environment and a reduced carbon footprint.

Design Concept: The design concept revolves around an open living space developed from a 40-foot square footprint, divided into three parts: private areas, public areas, and exposed circulation. This tri-parti layout is visually present in both the plan and elevation of the home, offering a unique blend of traditional and modern elements.

Customization and Community Impact: Customization: Clients have the option to customize certain aspects of their homes, such as the layout or finishes, while maintaining the overall design philosophy.

Community Impact: These homes are designed to contribute positively to the communities they are built in, fostering a sense of harmony and connection with the natural surroundings. Additional Features: Smart Home Technology: Incorporating smart home systems enhances the functionality and appeal of these homes.

Landscape Integration: The landscape is designed to complement the natural surroundings, further enhancing the seamless integration with the environment.

The Stonehouse Series by Politi Architecture is more than just a collection of homes; it is a commitment to sustainable living, modern elegance, and community enhancement. We invite you to explore this innovative approach to suburban living and discover how these homes can transform your lifestyle.

“Our design philosophy is centered on elegance and simplicity—creating spaces where beauty, functionality, and inspiration meet. We reimagine the built environment by combining clean lines and high-quality materials to craft a well-tailored, sophisticated spaces that elevate daily life.”

Stonehouse

Stonehouse Series, a visionary collection of sustainable homes that redefine suburban living by seamlessly integrating with the natural landscape. Designed with a keen awareness of budgetary considerations, these homes are not only functional and cost-effective but also aesthetically captivating and environmentally responsible.

Design Philosophy: Our intent is to create a series of Contemporary Farm Homes that harmoniously blend design, science, technology, and construction. By taking a holistic approach, we aim to craft architecture that enriches everyday life, ensuring each home is a testament to modern elegance and simplicity.

Architectural Innovation: The Stonehouse Series features a basic rectangular form that is sheared along the east-west axis. This innovative design approach allows for a unique spatial composition with the surrounding landscape, creating diverse volumes of space both within the home and in the outdoor areas. This thoughtful design not only enhances the visual appeal but also fosters a deeper connection with nature.

Material Use: In our commitment to sustainability, each home in the Stonehouse Series is constructed using local and reclaimed materials. Interior finishes prominently feature reclaimed wood and FSC-certified wood products, ensuring that every element of the home is environmentally conscious.

Sustainable Features: These homes are designed to harness natural resources to their fullest potential. Key sustainable features include:

Daylighting: Maximizing natural light to reduce energy consumption and create bright, inviting spaces.

Natural Ventilation: Promoting airflow to maintain a comfortable indoor environment without relying heavily on mechanical systems.

Storm Water Control: Implementing systems to manage and utilize rainwater effectively.

Solar Power: Integrating solar panels to provide a renewable energy source, reducing the home’s carbon footprint.

Experience the Difference: The Stonehouse Series is more than just a collection of homes; it is a lifestyle choice that prioritizes sustainability, functionality, and beauty. By choosing a Stonehouse home, you are investing in a future where architecture enhances your daily life and respects the environment.

Shoal Bay Spa & Wellness Center

Back of House (BoH) Building Anguilla, British West Indies

The Shoal Bay Spa & Wellness Center was envisioned as a comprehensive luxury resort community set on an expansive 11+ acre site along Anguilla’s pristine north shore. The master plan included 12 private villas ranging from three to five bedrooms, five luxury condominium buildings with residences from studios to four-bedroom units, and a 12,000-square-foot clubhouse featuring a wellness center and fitness facilities.

The beachfront experience was further activated through two mixed-use buildings extending along the shore, incorporating curated retail spaces and a signature beachfront restaurant. Supporting the resort’s long-term operations was a 10,000-square-foot Maintenance and Service Facility, referred to as the Back of House (BoH) building.

Back of House: Infrastructure as Architecture

The BoH building served as a critical component of the overall development—both functionally and experientially. As the first structure encountered upon arrival, it was designed not only to support essential resort operations, but also to contribute to the project’s architectural identity. The facility housed key infrastructure including site deliveries, workshops, janitorial services, and the resort’s potable water systems—forming the operational backbone of the community.

Design Concept: The Found Landscape

Throughout the site, architecture and landscape were seamlessly integrated to dissolve the boundary between built form and natural terrain. The guiding concept, “The Found Landscape,” was inspired by the cultural legacy of the Arawak people, native to the island. The design drew upon the elemental relationship between air, water, and land, shaping an earth-conscious environment that fosters wellness, connection, and a deep appreciation of place.

Shoal Bay represents a holistic approach to resort design— where luxury, nature, and infrastructure are unified into a refined architectural experience rooted in the spirit of Anguilla.

Incheon High-Speed Rail Transit Station

(Concept Design, 2009)

This conceptual rail transit station was designed in 2010, prior to the founding of Politi Architecture. During this period, architect Thomas M. Politi had the privilege of contributing as part of the design team for a visionary transportation project in Incheon, South Korea—a rapidly expanding commercial and industrial center, as well as an international tourist destination.

The proposed station was conceived as a critical infrastructural link, connecting multiple urban districts within Incheon to the international airport, reinforcing the city’s evolving role as a global gateway and center of innovation.

The primary design objective was to create an iconic architectural identity that embodied the future of high-speed rail—bold, dynamic, and technologically expressive. Through a series of exploratory concepts, the client gravitated toward a solution defined by dramatically tilted planes of metal and glass, supported by an exposed structural framework. The resulting composition evokes the precision and energy of advanced aerospace engineering, subtly referencing the formal language of a space vehicle.

The architecture establishes a powerful presence within the landscape while heightening the experiential quality of arrival and departure. Its dynamic geometry and transparency reinforce a sense of motion, speed, and progress—positioning the station not only as a transportation hub, but as a civic landmark for a next-generation rail system.

4. Urban Design

Politi Architecture specializes in partnering with communities facing stagnant or declining urban districts to unlock economic growth opportunities, attract and retain residents, enhance local government revenues, and optimize land-use management—all while helping communities define and celebrate their unique identity.

Our urban design services are rooted in a deep understanding of a place’s history and current conditions. We create innovative, bold design concepts that prioritize human-scale improvements, strategic architectural zoning, and sustainable Blue-Green Infrastructure. Every solution is tailored to the specific site, drawing from a rigorous process that includes Site Analysis, Program Analysis, Financial Analysis, Site Planning, and 3D Building Massing.

We believe that generic, “one-size-fits-all” design fails to address the complexity of urban environments or honor the rich histories of individual places. Instead, our approach begins with active engagement: interviewing stakeholders, conducting comprehensive site visits, and collaborating with clients, consultants, and community members to analyze data and insights. This collaborative process ensures we deliver responsive, site-specific solutions that stand the test of time and position our clients’ communities as distinctive and vibrant destinations.

Politi Architecture’s strategic, analytical approach offers innovative solutions to complex urban challenges. By addressing economic, environmental, and social dynamics, we create beautiful, functional urban environments that foster growth, resilience, and pride for generations to come.

“Cities are inherently complex, and the urban spaces we create within them must offer a diverse range of spatial experiences that seamlessly connect exterior and interior spaces. These spaces should be designed with a continuous and cohesive spatial composition, ensuring fluid transitions that foster a dynamic urban environment. The spatial qualities should vary, from peaceful, tranquil atmospheres to areas of high intensity, offering a multi-sensory experience that invites exploration. The design should incorporate an expressive, unpredictable attitude, unfolding through shifting perspectives that keep the urban landscape engaging and ever-evolving.”

Gloversville Downtown Revitalization Initiative (DRI)

A Collaborative Effort by Elan Planning and Politi Architecture

Elan Planning and Politi Architecture partnered to support the City of Gloversville’s Downtown Revitalization Initiative (DRI) through the development of an innovative Strategic Investment Plan (SIP). Politi Architecture contributed design expertise and produced detailed 3D visualizations and renderings, helping to align proposed interventions with Gloversville’s long-term vision for downtown renewal and placemaking.

The City of Gloversville is deeply committed to sustainable urban development and the creation of a vibrant, walkable city center. Through the Strategic Investment Plan, the city assessed existing assets, reflected on past redevelopment efforts, and identified key stakeholders and implementation partners. This comprehensive framework establishes a clear path forward— grounded in community engagement and focused on transformative projects that strengthen the public realm and enhance quality of life for residents and visitors.

Gloversville’s DRI serves as a central component of New York State’s Smart Growth initiatives, promoting responsible investment in urban density, economic vitality, and environmental performance. By integrating goals of sustainability, energy efficiency, and community-centered design, the initiative positions downtown Gloversville as a model for resilient, forward-looking revitalization.

Through this collaborative effort, Politi Architecture helped envision a renewed downtown core—one defined by opportunity, identity, and a lasting sense of place.

Utica Downtown Revitalization Initiative (DRI):

Streetscape Enhancement & Northern Gateway Redesign

The Utica Downtown Revitalization Initiative (DRI) is a transformative urban design effort focused on reimagining downtown Utica’s public realm through streetscape improvements that support a more walkable, bike-friendly, and vibrant city center. The project enhances key corridors—including Genesee Street, Broad Street, and the Northern Gateway— strengthening connectivity, safety, and the overall experience of downtown.

Rooted in sustainable, cost-effective strategies, the initiative seeks to elevate Utica’s civic identity while creating welcoming, functional spaces for residents, visitors, and local businesses.

Key Project Areas

Genesee Street & Adjacent Streets

As the heart of downtown Utica, Genesee Street is being redesigned to improve pedestrian accessibility, cycling infrastructure, and traffic flow—creating a safer and more enjoyable multimodal corridor.

Broad Street

Targeted improvements at the western end of Broad Street enhance conditions for pedestrians, cyclists, and motorists, supporting a balanced streetscape and a more active urban environment.

Northern Gateway Redesign

The city’s northern entrance is reimagined as a welcoming threshold—establishing a strong first impression and reinforcing Utica’s commitment to revitalization.

Design Approach

With limited funding, Politi Architecture’s strategy prioritizes high-impact interventions using durable, low-maintenance materials to maximize long-term value. The project not only transforms existing public spaces, but also establishes scalable design standards to guide future city-wide improvements.

Core Initiatives

Complete Streets Transformation (Genesee Street)

Genesee Street is reconfigured to reduce vehicle lanes, introduce dedicated bike lanes, and incorporate a center turning/delivery lane—enhancing safety, accessibility, and sustainable mobility.

Strategic Streetscape Enhancements (Broad Street)

Focused upgrades improve pedestrian comfort, cycling connectivity, and traffic performance, contributing to a more vibrant and user-centered corridor.

Community-Centered Impact

Community engagement remains central to the process, ensuring the revitalization reflects the needs and aspirations of Utica’s residents. By focusing on key gateways and high-traffic areas, the DRI delivers visible, immediate improvements while supporting long-term economic and civic growth.

Through thoughtful urban design, the Utica DRI positions downtown as a more connected, welcoming, and resilient public environment—reinforcing its role as a renewed civic destination.

5. Design Competitions & Research as a Catalyst for Innovation

Design competitions and research initiatives play an important role in advancing the creative rigor behind our practice. They provide a focused platform to explore bold ideas, test innovative strategies, and engage the evolving challenges of contemporary architecture—work that ultimately strengthens what we deliver to our clients.

Through this research-driven process, our studio investigates emerging themes such as housing, sustainability, adaptive reuse, urban resilience, and the future of civic space. These explorations sharpen our design thinking, deepen our technical expertise, and expand the architectural language we bring to every commission.

Competitions reinforce our commitment to excellence—encouraging precision, experimentation, and visionary problem-solving. The insights gained directly inform our built work, allowing Politi Architecture to create high-performance environments that are both timeless and forward-looking.

For our clients, this ongoing pursuit of innovation ensures that each project benefits from the highest level of design leadership, creativity, and thoughtful architectural advancement.

Big Ideas for Small Lots

New York, NY

Project Statement: Small Lot, Big Idea — Redefining Urban Living Through Spatial Innovation

Big Ideas for Small Lots reimagines the potential of urban infill architecture by transforming a highly constrained New York City site into an expansive, light-filled living environment. The project demonstrates how thoughtful design can convert limitation into opportunity—offering a forward-looking model for density, community, and contemporary urban life.

Design

Concept

The architecture is organized through two intersecting volumes: a horizontal element that reinforces the established street edge, and a vertical tower form that strategically optimizes allowable Floor Area Ratio (F.A.R.). Together, these volumes create a dynamic dialogue between urban context and vertical aspiration—balancing spatial efficiency with openness, views, and architectural presence.

The composition merges landscape and infrastructure, dissolving boundaries between interior and exterior space. What begins as a compact footprint becomes a layered architectural experience—simultaneously intimate and expansive.

Site Experience and Spatial Flow

Arrival is choreographed through a sequence of interconnected communal spaces, including the Entry Garden, Lobby, and shared courtyard. These elements are aligned to create uninterrupted visual corridors that expand the perceived depth of the site and establish a sense of openness uncommon to small-lot development.

This spatial continuity extends upward through the building, where carefully framed volumes and circulation paths reinforce a cohesive experiential journey—linking residents to light, landscape, and the surrounding city.

Innovation and Urban Strategy

Responding to the lot’s unique constraints, the project advances a series of adaptable architectural strategies:

Zoning and F.A.R. Optimization

Maximizing livable area while maintaining clarity of form and spatial generosity.

Community-Centered Design

Integrating shared spaces that foster connection and strengthen neighborhood engagement.

Flexible Urban Living

Designing interiors capable of evolving with changing residential needs over time.

Precision Construction Technologies

Employing advanced building methods suited to tight urban conditions.

Material and Environmental Performance

Selecting durable, refined materials that balance elegance with sustainability.

High-Value Design Within Constraint

Delivering architectural quality and luxury through intelligent cost-conscious decisions.

Conclusion

Small Lot, Big Idea challenges conventional assumptions about urban infill by demonstrating that density need not sacrifice light, landscape, or livability. Through spatial clarity, zoning intelligence, and architectural restraint, the project proposes a new paradigm for small-lot housing—where innovative design transforms limited space into an engaging, community-oriented urban experience.

U.S. Peace Corps Design Competition

Washington, D.C.

Project Intent and Design Excellence

This project is conceived as a bold civic gesture that reflects the ambition, integrity, and global mission of the United States Peace Corps. The design seeks to translate abstract values—service, diplomacy, unity, and resilience—into a physical and experiential form that is both timeless and contemporary. Through a clear and disciplined architectural language, the project aspires to elevate public space while reinforcing architecture’s role as a cultural and social catalyst.

Concept and Formal Expression

Architectural and sculptural in nature, the project intentionally dissolves the boundary between structure and art. The composition is defined by a series of interdependent elements— each incomplete on its own, yet powerful when unified. This formal strategy mirrors the Peace Corps’ ethos: meaningful impact emerges through collaboration and shared purpose. The result is a legible, elegant form that balances strength with refinement.

Context and Urban Integration

Located within the civic landscape of Washington, D.C., the project establishes a new urban node that engages the pedestrian realm and enhances the public experience. Rather than functioning as an isolated object, the design is carefully integrated into the surrounding fabric, reinforcing existing circulation patterns while offering a moment of pause within the city. The project contributes to the broader civic dialogue of the capital through restraint, clarity, and presence.

Social Impact and Human Experience

At its core, the project is driven by a human-centered design philosophy. It emphasizes the importance of relationships— between people, cultures, and environments—as essential to societal progress. Visitors experience the space through

movement and discovery, encountering changing perspectives shaped by light, scale, and materiality. These spatial transitions encourage reflection, connection, and a heightened awareness of one’s role within a larger global community.

Materiality, Light, and Craft

The design leverages simplicity and precision to achieve clarity of intent. Light is treated as an active architectural element, transforming the perception of form throughout the day and reinforcing the project’s experiential richness. Material choices emphasize durability, elegance, and tactility, ensuring the work remains both resilient and relevant over time.

Enduring Value

This project embodies Politi Architecture’s commitment to thoughtful urban design, civic responsibility, and architectural excellence. It is a contemporary expression of American values—optimism, service, and collaboration—rendered through a refined architectural lens. The result is a meaningful public work that transcends function, offering an enduring contribution to Washington, D.C.’s civic realm.

Turn static files into dynamic content formats.

Create a flipbook
Politi Architecture_Portfolio by tpoliti - Issuu