

Dien P Truong
Chicago, IL | (346)-212-7536 | tonytruongarch@gmail com | linkedin com/in/dientruong
Summary
Bachelor of Architecture candidate specializing in adaptive reuse and material-driven design, with strong collaborative experience and advanced representation skills. Seeking an architectural firm position where thoughtful design and teamwork are central
Education
ILLINOIS INSTITUTE OF TECHNOLOGY, IL
Bachelor of Architecture, GPA: 3.26
Skills
Technical skills: Model Making, Wood Working, Photography, Video Editing
Expected May 2026
Digital & Design Software: Rhinoceros, Grasshopper, Sketchup, Revit, Lumion, Adobe Creative Suites, Microsoft Office Suites
Work Experience
Exhibition Designer Chicago, IL
January 2026 - Current
- Scheduled team meetings and delegated tasks to group members to support efficient collaboration
- Design and refine the exhibition layout in collaboration with artists and curator
- Designed lighting concepts aligned with the exhibition’s spatial intent
- Installed the exhibition space and fabricated supporting structures for display.
Architectural Visualization Artist
SGT Construction, Ho Chi Minh, Vietnam
May 2025 - Aug 2025
- Produced high-quality architectural renderings for a newly renovated school to support client presentations and parent recruitment
- Interpreted design intent and material selections to create visuals aligned with the school’s vision and branding goals.
- Coordinated directly with school representatives to refine render requirements and incorporate feedback efficiently
- Delivered all visualization materials on a tight schedule, meeting fixed deadlines for external presentations
Architectural Intern
VN ART ARC, Ho Chi Minh, Vietnam June 2024 - Aug 2024
- Developed site and massing 3D models to support design proposals for the Future Center for German Unity and European Transformation competition
- Produced architectural sections, elevation and analytical drawings to clearly communicate design intent
- Coordinated with senior architects, consultants, and internal teams to align design development and competition requirements.
- Contributed to collaborative design workflows, ensuring timely delivery of competition materials
References
Martin Felsen Jonathan Miller
Urban Lab / Founder Associate Teaching Professor
Email: felsen@illinoistech edu
Email: miller@illinoistech edu
ARCHITECTUAL PROJECT.
Rush Field House
Year: Fall 2023
Type of Project: Field House
Setting: Independent project
Faculty: Prof. Trent Fredricson
Location: Chicago
Chicago is one of the hotspots for anyone who wants to pursue a career in acting or any kind of motion art. Due to the city’s rich culture, historic value, and various job opportunities regarding acting and motion art, many choose Chicago as the place to pursue their dream in acting or directing. However, when people first start their acting journey, not many have a platform to showcase their work or display their skills.
The Rush Field House aims to provide young actors and directors with cinema and theater space where they can showcase their work. However, at the same time, the Rush Fieldhouse will also serve as a place dedicated to sports and recreational activities, featuring a large indoor gymnasium.


PROGRAME DIAGRAM

STRUCTURE DIAGRAM







Dynamic Structure
The design conveys movement and dynamism through the use of a moment frame construction with skewed columns that converge at the the top. The contrast between the dynamic collumn grid and the fieldhouse’s box-like form leads to a striking architectural composition.







SECTION B-B’
WORK SELECTED.






FIELDHOUSE’S VIGNETTE

FIELDHOUSE’S ELEVATION
Multipurpose Program
The addition of multipurpose areas, such as the main indoor gymnasium on the second floor and the outdoor theater on the third floor, enhances the field house’s performance. The fieldhouse’s adaptability promotes collaboration among visitors and enables it to evolve to meet changing demands in the future.



ROOFTOP OUTDOOR CINEMA SPACE


Bridge the Site
The given site is uniquely divided diagonally by a train track, creating a design challenge that requires meticulous planning. In order to solve this challenge, a bridging concept was incorporated into the design. Each half of the site has a vertical structure, and on the second floor, a big gymnasium spans the space, both visually and functionally linking the two sections of the building.





Book Bank
Year: Spring 2024
Type of Project: Adaptive Reuse
Setting: Independent project
Faculty: Prof. Vinz Charls
Location: Chicago
Book bank is an adaptive reuse project that aims to transform an abandoned bank of the 19th Century into a resource hub that aims to provide the community with a wide range of information and knowledge, from educational to recreational material. Due to the lack of financial institutions like banks in the neighborhood, the Book Bank also aims to provide local residents and businesses with education on financial matters. Using the existing infrastructure of the bank, the project aims to bring a new purpose to a building that is tied to the history of the neighborhood and, at the same time, preserve the history.


EAST FACADE TRANSFORMATION

ROOF TRANSFORMATION









Old vs New
Book Bank’s fundamental design concept emphasizes preserving significant historical treasures while refining areas that are not up to standard. To improve natural lighting, a contemporary passive solution such as a sawtooth roof was utilized. In addition, the material palette utilizes repurposed site materials, assuring sustainability and continuity. Meanwhile, historic features such as the limestone facade have been kept in their original state to commemorate the site’s rich history and narrative.




WEST FACADE
SOUTH FACADE
Embracing History
Utilizing existing limestone and Chicago Common Brick into the bank’s redesign not only preserves its historical relevance but also solidifies its architectural identity. The limestone on the north face will be left as is, retaining its original persona, while the bricks on the east side will be refurbished and repurposed as cladding material for the new wall system, perfectly merging the past and present.

New Axis
A new axis was built on top of the bank’s existing grid with the goal of breaking free from the rigid mold to establish a more dynamic circulation across the building.
To further conform the structure to this new axis, a central atrium with a grand staircase that also serves as a seating space was added. This stairway additionally doubles as a social area, connecting the groundfloor financial institution to the second-floor library.


AXIS DIAGRAM


Basalt Trail
Year: Fall 2025
Type of Project: Exhibition Hall
Setting: Independent project
Faculty: Martin Felsen
Location: Garni Village, Armenia
Basalt Trail is a project that explores basalt as a material holistically. It investigates various methods of extracting and using basalt as a construction and architectural element.
The project also examines how materials can shape space. It consists of four structures: a resting bench, a rest pavilion, an outdoor exhibition space, and a chapel.
Together, these structures work in coordination to create a new tourist attraction that helps boost the village’s income. Beyond tourism, the Basalt Trail also serves the religious community of Garni village.

SITE VISUALIZATION





Trail Extension
Basalt Trail is an extension of the original Harmony of Stones located in Garni, Armenia. This extension explores previously unvisited parts of the trail, creating a journey that engages visitors both spiritually and physically as they move along the path.


Rocky Rest Stop
Benches embedded along the trail serves as a resting station for visitors on their journey. The bench features a heavy post and lintel stone structure that supports a thin, translucent PTFE roof, creating a harmonious and contemplative rest stop.







PLAN VIEW


Waypoint Pavillion
A pavilion designed for gathering and promoting social interaction. Featuring a main steel frame and a roof composed of angled basalt tiles, the structure interacts with sunlight and prevailing winds to create a unique experience for visitors throughout the day.








CUSTOM BASALT FURNITURE

INTERIOR DINING HALL VIEW
Nature Exhibition
An outdoor exhibition composed of three large basalt columns and a roof cast in place using a basalt concrete aggregate mix. Each column is clad in a different basalt pattern, creating a rich maze of textures, which create a visual explosion for visitors.



EXHIBITION HALL PLAN VIEW
BASALT TILE CLADED COLLUMN AND LEVITATING ROOF

ROOF CONSTRUCTION DIAGRAM



COLLUMN AND ROOF MATERIAL TEXTURE
Chapel of Stone
Located at the end of the trail, the Chapel of Stone serves as a community hub and a religious resting place for visitors. The chapel functions not only as a tourist attraction but also as a space for the local Christian community.



DIEN PHAT TRUONG. ARCHITECTURE PORTFOLIO.
CHAPEL OF STONE SPACE LAYOUT DIAGRAM



MAIN CHAPEL VIEW TO NATURE

SLANTED WALL CONSTRUCTION SEQUENCE


CHAPEL OF STONE PLAN VIEW PROGRAM DIAGRAM

Year: Fall 2024 - Spring 2025
Type of Project: Adaptive Reuse
Setting: In colabortion with Javin Buie
Faculty: Prof. Michal Ozjanovski, Prof. Steve Pantazis
Location: Englewood, Chicago
Square One aims to be a natural refuge in the historical Englewood Community. Mixing both man-made and organic elements to bring a space patrons can use for all their health needs. Sensory gardens to help calm the anxiety of everyday life, while at the same time stimulating all six senses. A hydroponic farm housed in the historic Bontemps Elementary School serves as not only a source of clean organic food, but as a laboratory and classroom to help members navigate the technical art of farming. Woven together with the proposed Englewood Trail, the farm and gardens draw in patrons and scholars from all over not only the Englewood Community, but Chicago as a whole.




Concept
Square one consists of 2 components, the Bontemps Englewood Educational Farm (located on the north of the trail, and the Senses Pavillion which is located to the south of the trail and extend to 59th Street.
The “back-bone” of the project is our community farm, called Bontemps Englegood Educational farm, which resides in the former Bontemps elementary school. From there, how we design the rest of the site to support and celebrate that farm was a complicated weaving process.
The second compornet of the project are the sensory gardens, that works together to create a botanical garden that excites all the senses, drawing patrons to our market space, located on the old abandon structure where farmers and artists can sell goods, is all part of the vision.


Vision
The community expressed the need to have a neighborhood they could be proud to live in and a proposal that focuses on three main areas: Congregation, celebration, and city beautiful. How we tackled this directive was to think about the way we could bring these three elements to a cohesive project. Instead of just designing cool structures we designed elements that are all connected, woven together, implicitly or otherwise.


Driving factor: Kogome Pattern
The traditional kagome weaving pattern was an essential element we kept circling back to. The Kagome weaving pattern is a style from Japan used in bamboo basket weaning, however, the trihexagonal pattern is common in many cultures. The traditional kagome weaving pattern was an essential element we kept circling back to. The Kagome weaving pattern is a style from Japan used in bamboo basket weaning, however, the trihexagonal pattern is common in many cultures.


SOUND PAVILLION

PROPRIOCEPTION PAVILLION




TASTE PAVILLION
SIGHT PAVILLION





Senses Pavillion Design
The botanical gardens will act like a tree’s roots, drawing patrons in to meander and eventually making their way to the vertical farm. The botanical garden will comprise 6 smaller sensory gardens, one for each human sense.
These gardens and pavilion are all connected to an above-ground canal system, which facilitates two functions, water reclamation and serves as a visual wayfinding device. These ‘roots’ weave their way through our site and travel to the top of our ‘tree’, the beating heart ofthe site, our vertical farm.
TOUCH PAVILLION
TOUCH PAVILLION


Bontemps Englewood Educational Farm
A vertical farm designed to be able to grow food year round at a high efficiency. As well as serving as a learning center for all things farm related to help educate the community of Englewood on food producation and help with the food desert problem that have plagued the community for many decades.








PLAZA
Hydrponic Farm
Aquaponic Farm
Aeroponic Farm


Atrium Space
The atrium has a garden that serves as a gathering area and a way winder for visitors’ circulation through the building. From here, an elevator in the garden connects visitors to every farm level. On each farm level, there is a transitional space between the farm space and atrium that serves as a demonstration area, where visitors can engage with the experience unique to each level. The curved language of the atrium extends to the facade to help draw people in, whether they arrive from the southern trail or the northern community entrance.


FARM CENTRAL ATRIUM VIEW
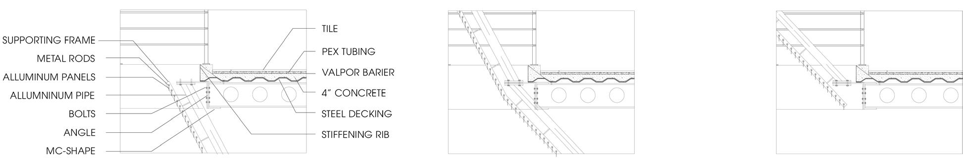
ATRIUM FLOOR STRUCTURE
Thermos Concept
Double-skin system acts like a thermos, insulating the building with a layer of air that adapts to seasonal changes. During the day, louvers open to let in fresh air, which circulates throughout the building. A louver at the roof releases excess heat if needed. At night, all louvers close, forming an air barrier that traps warmth and allows the air within the double skin to recirculate, maintaining stable conditions for farming.

AIR CIRCULATION DURING DAY TIME



NIGHT TIME
AIR CIRCULATION DURING
FARM AXONOMETRIC PERSPECTIVE VIEW AND ATRIUM LIGHT STUDIES




ROOF STRUCTURE


EUI STUDIES CONDUCTED ACROSS MULTIPLE BUILDING SYSTEMS.



Mechanical Systems improvement
Since an indoor farm requires significant energy to operate various me systems, an Energy Use Intensity (EUI) study was conducted to identify opportunities for improved energy efficiency. Through this investigation, we found that by utilizing a ground source heat pump, implementing natural ventilation, and installing high performance glazing, we were able to reduce the EUI by 20% compared to the baseline condition, which relied on a conventional forced air system. Heating load, collong load, and electrical equipment loads were sectors that reduced the most.
Ground Source Heat Pump Baseline
Ground Source Heat Pump + High Performance Glazing


OTHER WORKS


Photography
Story
Every building has its own story, and it is up to us to uncover and interpret it.



Story in Composition
Composition can shape the how people percieve an image. Depend on how you frame a space, the same space can give out different atmosphere.











The Studio Chair
In my architectural studio class, the school provided us with tall stools that were ergonomically flawed in relation to the desk. This leads to poor posture and results in back and neck pain after working for a long time. To address this issue, I designed the Studio chair as a replacement to the stool.


Beauty of Simplicity
The form of the chair is inspired from a director chair with a taller seat height and a lower back support compare to a normal office chair. Ash wood was chosen as the primary material due to its lightweight yet durable properties, which ensure both strength and portability.