Portfolio - Tongling Hu

Page 1


Liangchu Historical Museum - Stage 3

Shigeruban Architects - Tokyo Internship

June 2023 - Sept. 2023

Site : Zhejiang, China

Liangchu Museum - Zhejiang, China

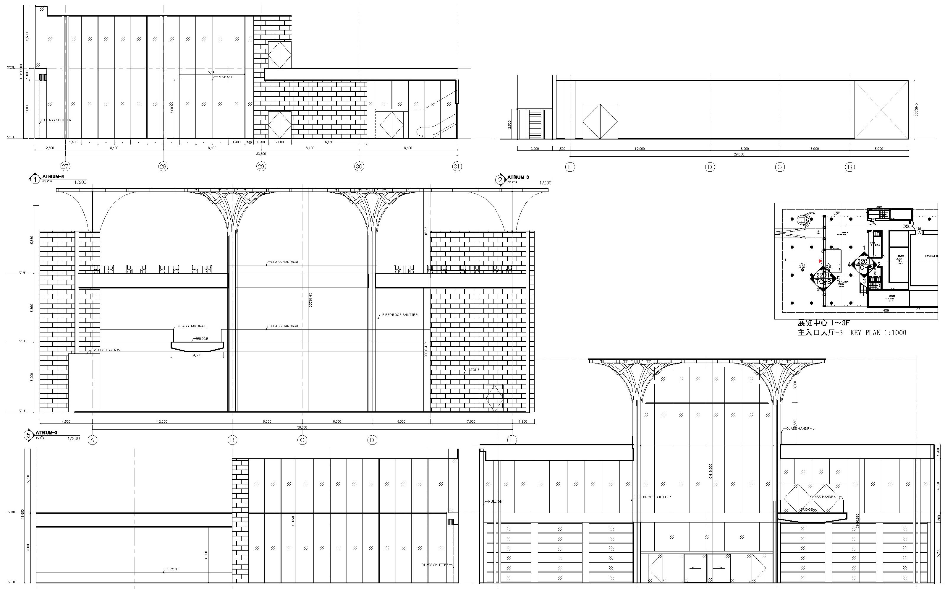
During my three-month internship, I contributed to updating CAD drawings and rewriting the column tree Grasshopper file to support future applications with different variables and design versions. The project is about designing a national museum inspired by local culture and heritage.

The ground floor is mainly used for special exhibitions, a cafe, and an atrium lobby. The first floor is used for collecting and donating local antiques. The third floor is for offices and facilities.

Tree Column (Grasshopper)
Arium Elevations (AutoCAD)
Grasshopper script

Parametric Screen Design

Using Grasshopper, I developed various screen design options for the atrium area to create a separation between the guest and facility areas. The parametric design approach allows the team to easily adjust the geometry in response to future dimensional changes.

Diagram (Rhino + illustrator)
Rhino + Vray

Seesaw

Unit 8 - Third Year

Tutor: Silvana Taher & Laurence Lumley
Site : Woodbine Close Park, London, UK

Woodbine Close Park

This project is a seesaw between the enclosed retired community and the relatively young generation, between being isolated and being exposed.

The site is an isolated park living neighborhood for retired people in the greenbelt. The existence of the park acknowledges that there is the greenbelt has the capability for hiding an isolated neighborhood.

Greenbelt Site Map (hand drawing + openstreet map data)

Curiosity Driven Spatial Design

In Japanese Tea house where the guests and hosts have different entrance routes to the tea house, and the host can know the guest’s movements, giving host the control over preperation stage.

Using framed views that as they walk around the space they are engaged and curious by the views of the community and observing their lifestyle

Japanese Tea House Routine
Neighbor Interaction (rhino +enscape render)

Studio Project - Seesaw

Community Threshold

Visitors would park their cars on the hill and begin their journey through a series of continuous spatial movements.

Visitor's Journey (enscape + photoshop)
Plan and Viewpoints (rhino + illustrator)

Communication Mechanism

As they walk, the wall will push them to see the 4cm hole in the brick wall, watching the life activities of the residents. The space is gradually opened to them as they emerge into it where they are guided by the door and are led to a low cabin.

If they are curious about the community, they can take some water from the water fountain at the end of the wall. And put it into the mist room that the residents can see from their window as a sign that the outsiders are sending their signal for conversation and small talk.

Rhino enscape renders + photoshop

Festinsel

Media Study - Datascape
Tutor: Francesca Silvi & Mattia Santi Group Project

Vision

In recent decades, music industry has grown significantly. There are more artists, genres, tastes, ideas and ways to compose.

Our project is aiming to create a digital island for new artist to reach their audiences and gain larger following in an industry that becomes more and more competitive.

Project animation:

https://www.youtube.com/watch?v=0oP3itDeXFc

Grasshopper Modeling
Nomad sculpt modeling

Purpose

Our meta-verse is open to everyone who is interested in music. Those who wish to visit a concert from the comfort of their home, find new genres, artists, communities and friends.

Set on the imaginary island, our meta-verse is a small and an intimate stage for new and aspiring musicians to reach wider public.

Catch the Steam

Technical Study - Third Year Site : Park West Place, London, UK

Catch the wasted domestic water vapor

Condensation is by far the most common cause of dampness in homes. It affects both new and old properties.

The daily water vapor will invade the wooden structure, go through the attic, and damage the roof structure. Also, in wet areas, the rain and dampness from outside will cause interstitial condensation when they go inside through joint fissures.

In this technical research, I am to create a cycle of wasted water vapor to water and back to steam within site context.

Kettle testing and driptip study

kettle as the source of wasted domestic vapor. In order to "catch" it, the shape and material choice of the roof is the key.

Studying from shape of leaves that those with narrow and thin drip tips (candate) are likely to drip more frequently than round drip tips. However, the volume of round driptip droplets is significantly bigger than narrow and sharp driptips.

Expand and Shrink (hand drawing)
Extend the Pause (experiment records)

Water Cycle and Dripping

The circle:

Liquid water - boiled by the kettle - hot water vaporcondensed to warm water - drip into mist maker - warm mist for atmospheric effect - condensed to waterdrops for handwashing and playing.

Plan (Rhino line drawing + illustrator)
Model made by metal, wood, and tiles

Kingscross Masterplan Design

First Year Competition - Group Project

Tutor: Monia De Marchi & Pol Castello
Site : King's Cross

Flooding background

We start our design with the background of flooding, creating a system that guides people from going into the area and gradually moving upward.

We isolated the whole area with canals and separated it into 10 islands, people will enter the area through bridges. As they gradually populate the area from the edge to the center, there will be cores start to be built in the highest part of each island.

Model (cardbroad, metal, paper)
Design Strategy

Transformation Over Time

Inhabitants are guided from periphery to the highest point of the island through gradual construction of the main roads. Meanwhile, core the first tower is built. As the ground level gets denser and issue of flooding becomes more important, inhabitants are forced to start to move to the tower.

Addtional towers on top exisitng buildings are constructed over time.

Reference: MAS Museum

Flooding scenerio simulation
Change through time
(rhino model + illustrator)

Ever-growing Structure

As the flooding situation becomes severe, the structure will start to build on the existing structure by adding truss units on the top and side of the tower as connection bridges for the Kingscross community.

Masterplan Render(google map data + rhino enscape + photoshop)

Drip

First Year Group Project Site : London Duration: 2 weeks

Concept - raindrops

The main concept is derived from raindrops falling between layers of leaves. People can travel freely in-between the layering of “leaves”, allowing for a fluid circulation organization.

The design provides more choices of paths towards the ground level but becomes more controlled towards the bottom/end.

Concept Diagram
Rhino model + line drawing

Fluid Circulation Paths

Since the circulation is organiized in a fluid way, people get to choose diifferent ways to navigate in the space depending on the desired speed, as well length of the path.

Scissors lifts are used to build connections between each platform. When people are walking on the platform, the scissors lift will gradually go down. Therefore, when they reach the tip of the platform, they can simply step down to the next one.

City Parking Garage

ILI Architects - Competition

Internship

Sept. 2025 - Nov. 2025

Site : Kolašin, Montenegro

Concept and Design Statement

How can a car park become more than a car park — a place for people, community, and nature?

The design is inspired by the dramatic topography of the Bay of Kotor — a landscape of fluid, folding forms and reflective surfaces. The building’s split oval shape responds directly to the constraints of the site and allows maximum spatial efficiency within the irregular site.

Long Section
Rhino Model + Blender Render

Environmental and Sustainable Design

A light well pierces the northern half of the building, flooding the interior with natural light and creating visual connections between levels.

Low-carbon material: Use of sustainably sourced CLT drastically reduces embodied carbon compared to conventional concrete structures.

Renewable energy: Photovoltaic panels integrated on the south-facing roof pitches supply a portion of oper-ational energy demand.

Water management: Rainwater collected and filtered through planted bio-swales around the site, re-used for greywater and irrigation.

Natural ventilation and daylighting: The central light well and open façades minimize the need for mechanical systems.

Lower Ground Floor Plan
Interior renders (Blender)
Cross Section

Ripple as an Eye (Film Project)

Unit 7 - Second Year

:

Tutor: Marko Milovanovic & Fearghus Raftery
Site
Island of Mull - Scotland

Tell story of the Land via Underwater Landscape

Water acts as the medium through which the landscape perfumes itself, capturing both visible and invisible elements of its surroundings from light to air. It reflects the environment through the curves of the waves, showing the essence of the landscape. I propose using water as the language of the land, performing the land’s movements through time.

By designing an underwater landscape using local rocks and marble, visitors can observe the geological history through the movements of light and ripple. The site, Loch Ba, is located within the Mull Central Complex, a region shaped by three volcanic centers. These centers are like gigantic ripples that form the land with rings of magma.

Project Film

https://youtu.be/quu8qtWmTLg?si=JXtzTQKDu_ybIi5v

GIS data to point cloud render

Underwater Landscape Design

Five views sculpted through the water and ripples tell the land's story as visitors pass by. A form of language appears when the wind drives the waves across Loch Ba.

It becomes a subtle way to build connections between humans and land without disrupting Mull’s natural environment.

Underwater landscape design and viewpoints (Rhino + illustrator)
View C View

Transformation Over Time

A1 size terrain and scenery model of the site. I used wood plates to construct the terrain and oil-based clay to give texture to the mountain. Then, I sprinkle dry tea leaves from English tea bags to show the Scotland mountain surface texture in winter.

In the middle is Loch Ba without water and the underwater landscape under the water's surface.

A1 Size model (Oil Clay and Tea Bags) of the site's geological features and the underwater landscape

Turn static files into dynamic content formats.

Create a flipbook
Issuu converts static files into: digital portfolios, online yearbooks, online catalogs, digital photo albums and more. Sign up and create your flipbook.