UCL_Architectural Design portfolio_Tong Yang

Page 1


ARCHITECTURE PORTFOLIO

TONG YANG

Home museum

This project is a home museum addressing urban amnesia caused by rapid urbanization. It preserves urban and communication memories, focusing on living memories through "home" and "furniture" as the carriers. Located in Columbia Circle, Shanghhai, the two existing office buildings are repurposed, blending old and new to retain the city's texture and memories. The museum showcases lifestyles across different eras using abstract spatial design, with furniture exhibits adapting to various times.

The museum also encourages public participation. Visitors can donate or store furniture, share stories, help maintain items, and arrange exhibits through a furniture delivery system, fostering interaction and collective urban memory. The design centers around a five-story atrium connecting the two buildings via spiraling ramps, integrating new functions within the old structure. The exterior retains most original walls, with new volumes creating a contrast between old and new. Fixed exhibitions are placed in corners, while flexible spaces and workshops intersperse throughout. An aerial transmission system allows exhibit changes, encouraging visitor participation and interaction. Large glass areas enhance the dialogue between new and old functions.

Site Analysis

Citizens'

Nodes

Markers

Abstract interpretaion of housing typology —— Permanent exibition

Carrying

Building

Participatory and interactive —— Flexible exibition

Maurice Halbwachs
Aldo Rossi
Kevin Lynch
“On Collective Memory”
“The Architecture of the City”
“The Image of the City”
Nora
Corbusier
“Les Lieux de Mémoire”
Fun Palace, Cedric Price 1964
“A

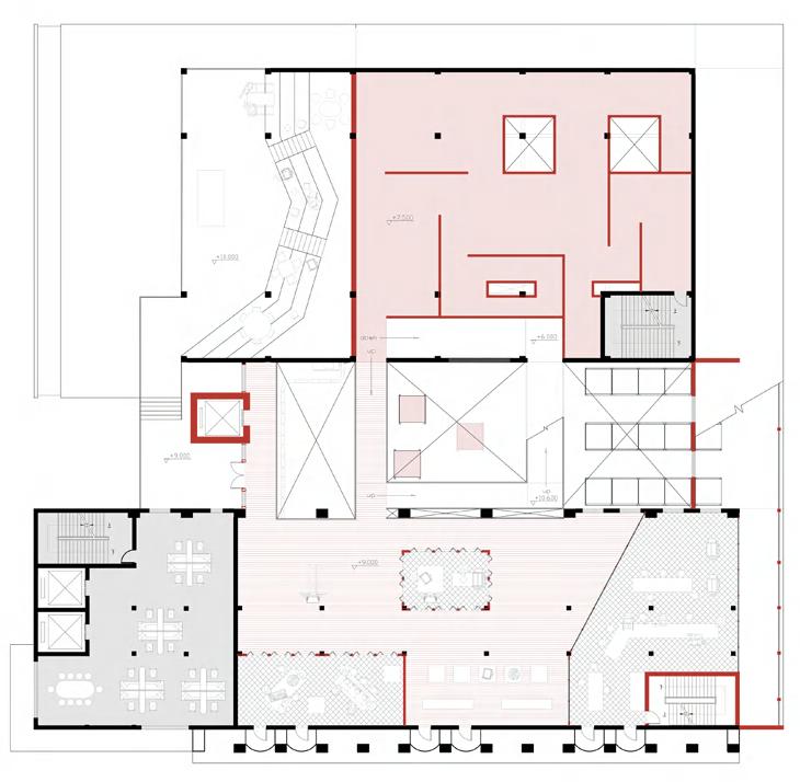
Ground Floor

Atrium
Perspective
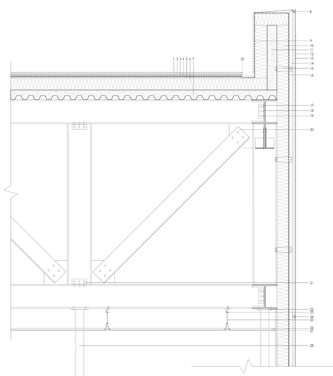
Elevation

Roof Slab Foundation

Urban Oasis

Masterplan | Group work | 2023.09 -2024.01

Site location: Shanghai

Group member

Dilikeremu Duolikun

Tong Yang

Linde Ji

Jie Qiu

Feng Guan

Urban Oasis may incorporate various elements to support the well-being of its residents, such as green spaces, pedestrianfriendly design, access to cultural and recreational activities, and initiatives that encourage a sense of community and social connection. It can also involve urban planning strategies that prioritize mental health, reduce stress, and enhance overall quality of life. The concept of Urban Oasis is often associated with the broader movement towards creating sustainable, healthy, and livable urban spaces.

Oasis walking paths are designed to promote mindfulness and well-being among residents. They are usually located in parks or other green spaces and are marked with signs that encourage people to walk mindfully and appreciate their surroundings.

My responsibility:Concept and form generation, Topographical design, Digital modeling, Architectural drawing.

Concept —— Urban oasis

Residentials

The area of residents’ balconies is increased to visually relate to the keyspace, while also enriching the types of circulation lines.

Topography Plaza

Spreads from the ground to the building, and part of the building's skin was removed to serve as a semioutdoor activity space for residents.

Urban Farming

The residents of the original site were keen on farming, so more space for farming was added to the residential area.

Ambiguous housing

Collective housing | Individual work | 2022.09 -2023.01

Site location: Ningbo

I have always believed that the housing is more than just a shelter for human beings; it creates and defines social relationships and atmosphere. The organisation of space can completely change the temperament of a field.

In the midst of increasing urbanisation, China's housing stock has become dominated by high-rise commercial dwellings with high occupancy efficiency. The social distance between neighbours has gradually increased and opportunities for social interaction have decreased. This project seeks to create a collection of houses with ‘ambiguous’ neighbourhoods. The project is aimed at white-collar workers who lack social time.

The building achieves ambiguous spatial and user relationships by creating half-spaces, where each unit is connected to a fully public space through a semi-private, semi-indoor, semi-transparent garden. This creates a more appropriate social distance and neighbourhood relationship.

Site analysis

Concept Design process

Through the observation of the surrounding streets, it is found that residents use some ambiguous Spaces subconsciously. Compared with clearly planned Spaces, these Spaces are more casual and convenient and closer to the social distance between people. The ambiguous space allows the smooth transition between the interior and exterior, so that private and public relations can penetrate each other. Therefore, "ambiguous space" will be the main concept discussed in this project.

Visual ambiguity
Indoor
"Many Small Cubes" "House N"
Sou Fujimoto
First floor
Etrance
Courtyard

Library

The public space on the west side is designed as a shared library for residents to work and read books. The central part is designed as a sunklike public reading area with a social aspect.

Cafe

The public space on the east side is designed as a coffee shop, which serves as the main area for neighbors to chat and relax and socialize.

Corridor

All the walls on the ground level are made of hollow brick structures, which create a connection between the semi-private courtyard and the public space, creating a visual and auditory communication, and the windows on the walls enable the interaction of the neighborhood to occur anytime and anywhere. Thus creating an "ambiguous" neighborhood atmosphere。

Section

Section B-B'

Pick Up The Ruins

This composite façade material is consistent in material texture and basing logic with the brick of the old building, but provides a new sense of vitality through modern construction techniques. The site is located in the old town, surrounded by a large number of old buildings, full of history, so the design of the façade responds to the surrounding urban fabric, using modern techniques to express the old elements, realising a reflection and reconstruction of the “ruins”

Plan detail
Facade

Forest library

Library design | Individual work | 2023.02 -2023.06

Site location: Ningbo

The main body of the project is the learning center of "The school of life", which contains public library, office space, ferry and many other public activity Spaces. The site is located in the downtown of Ningbo. The concept is to bring the forest into the city to contrast with the old city and to activate the city, with the integration of natural space and indoor learning and leisure space,it creates a relaxed, pleasant and slow-paced public space atmosphere.

A gentle transition of three floors is formed through the long-span slope, while the split-level space brings visual interaction, and through the interpenetration of natural courtyards and interior spaces, a sense of forest is created horizontally and vertically.

Bussinese

Axonometric

First floor
Sunken space
Section A-A'
Section B-B'
North Elevation
South Elevation

Other works

Includes installation design, small-scale architectural design, and interior design internships in addition to major coursework during the four years of college.

Parametric design | Group work | 2022.12 -2023.01

responsibility:

My group and I used our knowledge of grasshopper to build a shelter on campus. The design concept is based on the Chinese "yin yang" to create an interactive space between the indoor and outdoor space.

Concept

Parametric design

Section

Group members: Tong Yang, Shufan Yao, Dilikeremu Duolikun, Yunqi Jia, Qiaoyi Zeng
My
Concept and form generation, Grasshopper editing, Section and elevation drawing, Rendering.

Dancing wall

Community center design | Individual work | 2021.02 -2021.06

Located in the ancient city of Cicheng, Ningbo, this community centre is inspired by the ancient city walls, with elements of the walls abstracted to form a dynamic façade. The interior of the community centre contains an art gallery, leisure space, coffee shop and meeting rooms. The concept of the city wall and the design of translucent partitions allow for smooth observation and communication between people.

North elevation

West elevation

Section B-B'
Section A-A'
Ground floor
First floor

Internship projects

Interior design | Internship | 2022.07 -2022.09

During the internship experience, was responsible for checking the construction site nodes and preparing architectural drawings for the Dome Duo project, as well as some detailing design, rendering and modelling for the House of Incense project.

Dome Duo

The House of Incense

Turn static files into dynamic content formats.

Create a flipbook
Issuu converts static files into: digital portfolios, online yearbooks, online catalogs, digital photo albums and more. Sign up and create your flipbook.
UCL_Architectural Design portfolio_Tong Yang by tong_yang - Issuu