Portfolio dTobias Burrai

Page 1


Portfolio de Arquitectura

Tobias Burrai

Soy estudiante de arquitectura de la Universidad Nacional de Rosario, actualmente finalice el cursado de la carrera. Me considero una persona que esta constantemente en la búsqueda de incorporar nuevos conocimientos, de aprender más sobre la profesión y sus herramientas, para luego poder realizar los trabajos de la mejor forma posible.

Idiomas:

- Ingles intermedio

Software que utilizo: :

- AutoCAD

- Rhinoceros

- Sketchup - D5 Render

- Photoshop

- Illustrator

- InDesign

Contacto:

Mail: tobiasburrai@gmail.com

Tel: 2477673555

Tobias Burrai
Índice

Tabla de contenidos

6 Teatro Parque Urquiza

Analisis Proyectual II. Catedra Garcia

12 Conjunto de viviendas Pichincha

Proyecto Arquitectonico I. Catredra Beltramone

18

Centro de Justicia Federal Rosario

Proyecto Arquitectonico II. Catredra Beltramone

24

32

36 Frente Urbano Ex Batallon 121

Proyecto Arquitectonico II. Catredra Beltramone

40 Área Industrial Petit Fours

Experiencia laboral, Tasta Construcciones

ABARQ 3D

Experiencia laboral.

DUOMO LAB

Experiencia laboral, DUOMO Construcciones

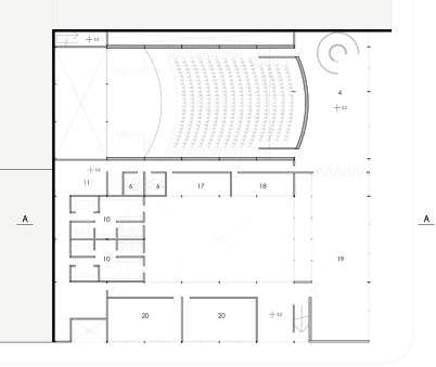
Teatro Parque Urquiza

TEATRO URQUIZA

Analisis Proyectual II

Catedra Garcia

El proyecto se encuentra ubicado en la ciudad de Rosario, frente al Parque Urquiza. Este se trata de un teatro, el cual posee un área educativa la cual está orientada a las artes y la actuación. La particularidad de este terreno es que se encuentra en una esquina y este está en coexistencia con el Planetario y el Anfiteatro Municipal el cual se encuentra dentro del Parque Urquiza.

El proyecto busca conectarse con el Parque Urquiza, de modo que el patio del proyecto está enfrentado hacia este para que funcione como escenario, en el cual se pueden realizar diversas actividades públicas. Este patio al aire libre, es el núcleo principal del proyecto, el cual funciona como circuito constante que rodea a este elemento.

CORTE A-A
CORTE

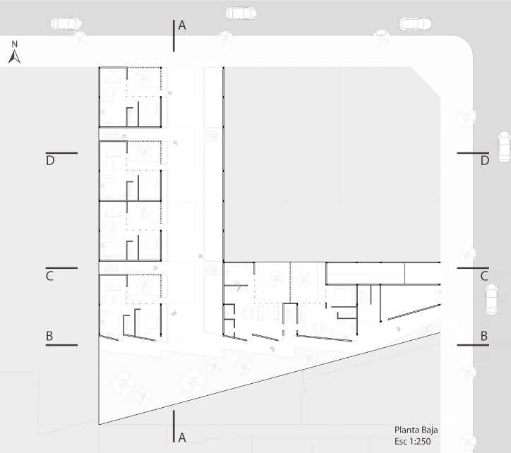
Conjunto de Viviendas Pichincha

CONJUNTO DE VIVIENDAS PICHINCHA

Proyecto Arquitectonico I

Ubicado en Rosario, Santa Fe, Argentina, este conjunto de viviendas se encuentra localizado en el barrio Pichinchas, en la manzana comprendida por la calles Brown, Pichincha, Suipacha y Jujuy.

Se ubica en un terreno pasante con salidas a las calles Brown y Pichincha, adoptando la altura máxima reglamentaria de 13m mas el 5% (13,75m o 5 pisos). Sin embargo sobre la calle pichincha, el proyecto se pega al edificio medianero preexistente para obtener la misma altura, el cual posee una altura de 22m (8 pisos), dejando del otro lado del proyecto, un espacio verde el cual le pertenece al conjunto de viviendas.

Por la entrada de calle Brown se ubican casas de ambos lados de la medianera, pero se sustraen los primeros dos pisos de la tira derecha, dejando así una planta libre para permitir la circulación pasante del terreno, en el cual también los patios de las casas sirven como óculos de luz para iluminar este recorrido peatonal, brindándole una mayor calidad.

En total el conjunto consta de 32 viviendas, de las cuales 19 son de una habitación, 9 de dos habitaciones, y 4 de tres habitaciones. En cuanto a los amenities posee 16 cocheras en el subsuelo del conjunto, 2 locales comerciales en planta baja, 5 pisos de co-worcking, un SUM y un quincho de uso colectivo.

Corte

TIPÓLOGIAS DE VIVIENDAS

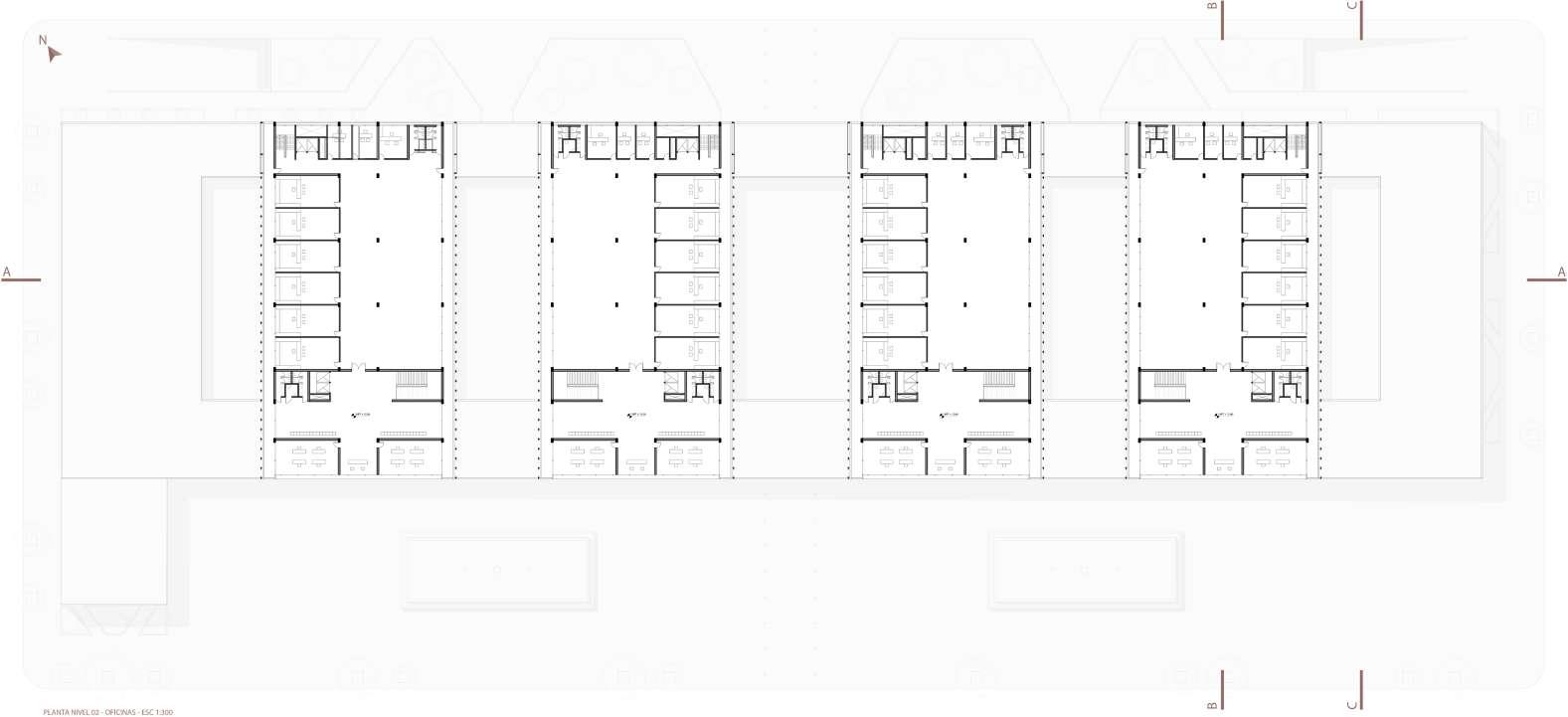
Centro de Justicia Federal Rosario

CENTRO DE JUSTICIA

FEDERAL ROSARIO

Proyecto Arquitectonico II

Catedra Beltramone

El proyecto se implanta en las 2 manzanas comprendidas entre las calles Suipacha, Ovidio Lagos, Pellegrini y Montevideo. Con una pisada en forma de ``L´´, se pega al trazado típico de la ciudad y crea una plaza cívica en relación al Parque Independencia y a la franja verde de la manzana a la cual se enfrenta.

En planta baja, esta ``L´´ en se divide en 2 volúmenes, separados por el pase de la calle Ricchieri, pero conectados por una terraza que los vincula, contiene en su mayoría el programa más público y, sobre esta base de 6m de alto, se levantan los 4 diferentes fueros del centro judicial como edificios independientes. Cada uno de los fueros va incrementando su altura, generando un escalonamiento que acompaña el perfil la ciudad, ganando altura hacia la zona de la ciudad donde se encuentran edificios más altos.

El ingreso peatonal público se da por la plaza cívica que da a la Av. Pellegrini, una de las más importantes en Rosario, mientras que el ingreso privado se da por Montevideo. Los ingresos vehiculares se dan por calle Montevideo, donde el proyecto se retrae y genera una calle.

PLANTA BAJA - SALAS DE JUICIO
CORTE A-A - SALAS DE JUICIO
PLANTA NIVEL 01 - SALAS DE JUICIO
PLANTA
CORTE
CORTE C-C
PLANTA NIVEL 03 - OFICINAS
PLANTA NIVEL 05 - OFICINAS
PLANTA NIVEL 04 - OFICINAS

Frente Urbano Ex Batallon 121

El proyecto para el nuevo plan integral en los terrenos del ex Batallón 121, que contempla múltiples usos, principalmente residenciales, busca promover la relación colectiva entre sus habitantes poniendo al espacio colectivo como característica principal.

Sector 1 y 2:

Se propone continuar con el lineamiento tomado para el proyecto del CJF, donde buscaba continuar la avenida Bermúdez y el corredor arbolado que la caracteriza desde plaza “Las Heras”. En base a esto, se propone la disposición de distintas tiras edilicias con orientaciones Norte y Sur, donde las frentistas hacia el CJF poseen una altura de PB+7 y las ubicadas dentro de la manzana PB+3.

Sector 3 y 4

Se propone, con la continuación de la calle Ingeniero Huergo, la división del terreno lineal paralelo al parque “Héroes de Malvinas”. Así se generan dos nuevas manzanas lineales en las cuales continuamos con la tipología edilicia en tiras, con orientaciones principales Norte Sur. El vacío central comprendido entre ambas tiras genera un paseo peatonal comercial público y también brindara ingreso a los distintos edificios. Por otro lado, en los terrenos dobles, insertados en el tejido barrial existente, se propone continuar con tiras residenciales hacia el norte y revitalizando el centro de manzana como espacio colectivo del proyecto.

Vista Sur - Frente Urbano - ESC 1.500
Sector Planta Baja
1.500
Planta Azotea - Amenities - ESC 1.250

Fabrica de cremas Petit Fours - Carcaraña, Santa Fe

2- Oficina supervisor

3- Comedor

4- Sala de reunión

5- Patio

6- Vestuario

7- Baño

8- Laboratorio

9- Sala exclusa

10- Sala cocinado

11- Depósito de materias primas

12- Materiales de limpieza

13- Depósito de envases

14- Sala de elaboración

15- Palletizado

16- Sala de maquinas

17- Antecámara

18- Vestuario

19- Cámara frigorífica

20- Piking

21- Anden

Area

El proyecto consistió en elaborar una nueva planta que tuviera todo lo necesario para producir y empaquetas cremas heladas. Se trabajó de forma colaborativa debido a las instalaciones y requerimientos necesarios que debía tener el proyecto para que la producción tenga mejores resultados de rendimientos. Es así que el proyecto cuenta con un programa el cual tiene un orden cronológico en el que circula la materia prima hasta convertirse en el producto deseado, el que cual sale finalmente para su comercialización

El proyecto cuenta con dos etapas; en la primera etapa se construirá el ala industrial que permite la elaboración del producto, y una segunda etapa que consiste en la construcción de oficinas que servirán al ala industrial creada anteriormente.

indrustial de cremas, Petit Fours. (Carcaraña, Santa Fe)
Trabajos realizadaos en ABARQ3D
San Jose, Costa Rica

DUOMO LAB - Peyrano, Santa Fe

DUOMO LAB (Fase 1) - Peyrano, Santa FE

El proyecto se encuentra ubicado en una manzana del pueblo de Peyrano, Santa fe. El mismo abarca un cierto programa el cual está pensado para el cultivo y extracción de flores de cannabis para uso medicinal, por solicitud del comitente Duomo Lab, la cual es una empresa privada que posee los permisos para realizar esta actividad de forma legal. De esta forma es que se contrató a DUOMO Construcciones para realizar el proyecto y construcción del mismo. El proyecto se dividió en 2 fases, ya que el comitente necesitaba con mayor urgencia una parte del proyecto para poder empezar a cultivar y cosechar. Por lo cual el enfoque primeramente se realizó en la fase 1 y la fase 2 se postergo para fines del año 2025.

La fase 1 está integrada por:

- Garita de seguridad (1)

- Invernadero piloto (2)

- Sala de maquinas (3)

- Sala de secado (4)

Actualmente el proyecto se encuentra en la etapa final de la construcción de la Fase 1 y se está retomando el proyecto que integra la Fase 2, que contiene áreas como el laboratorio de extracción, salas de secado, vestuarios, oficinas, etc. Por motivos de privacidad con el comitente no se pueden adjuntar planos pertenecientes a dicha fase.

Render - Garita de seguridad

Imagen de obra

Turn static files into dynamic content formats.

Create a flipbook
Issuu converts static files into: digital portfolios, online yearbooks, online catalogs, digital photo albums and more. Sign up and create your flipbook.