Architecture & Landscape Portfolio 2024

Page 1


Latest Education

Institut Teknologi Sepuluh Nopember

Bachelor Architecture, GPA 3.51/4.00 Surabaya, Indonesia 2016-2021

Work Experiences

PT. Townland International

Assistant Architect | Landscape Architecture Team | Apr. 2022 - present

• Contribute in more than 15 projects

• Assisting Principal Designer to draw and detailing 2D measured drawing using AutoCAD and 3D model using SketchUp from their sketch

• Make 3D Rendered Visualisation of designed projects using Enscape then 2D Visualisation using Photoshop

• Contribute in DED drawing especially on floor finishing and furniture details

Septian Harits Hilmi

People normally call me Tian. A Bachelor degree Architectural Designer who have been working on Landscape Design and Housing Developer also being a Freelance Architect for more than two years.

Contacts

tianharits@gmail.com

tianharits

081232318238

Technical Skills

3D Modelling

Technical Drawing

Image Editting

Design Sketch

Design Research

Software Skills

SketchUp

AutoCAD

Enscape

Adobe Illustrator

Adobe Photoshop

Adobe Indesign

Ms. Office

Ms. Power Point

Ms. Excel

Language

Native Indonesian

Professional English

• Involved in construction montioring especialy on floor finishing and furniture details

The

OZ - PT. Podo Joyo Masyhur

Architect/Supervisor | Nov. 2021 - Mar. 2022

• Supervise house units construction and reparation (4 Construction & 30+ Reparation)

• Manage Building repairman (8 people/4 teams) work including placement, tools, materials, weekly payment and coordination with higher ups

• Make Interior design and Rendered Visualisation using SketchUP and Enscape

• Assisting in technical drawings

• Contacting vendor for materials and products, and then manage the purchasement

Aness Labs

Architect/Researcher | Nov. 2021 - present

• Being part of the research team, prepare discussion topics and references

• Making Design, 3D Modelling and Rendered Visualisation using SketchUP and Enscape

• Assisting in technical drawings

• Contacting vendor for materials and products offering

Leadership Experiences

Architecture ITS Student Council (Hima Sthapati)

Head of Student Resource Deveopment | 2018 - 2019

• Manage Managerial and Student Development team to formulate some programs

• Associating University Development program with Student Council programs

• Coordinating with lecturer and other units program to be informed to Resource Developmet Team

Competition Experiences

Non-Architecture Competition (Blooming End)

DYING-Alternative Design for Cemetery Participant - 2019

Environment Recovery in Rumpin, West Java by Ministry of Environment and Forestry Participant - 2021

PT. Townland International
The OZ - PT. Podo Joyo Masyhur
Aness Labs
Portfolio Work Portfolio

PT. Townland International

Urban Planning and Landscape Design

Assistant Architect

April 2022 - Present

Responsibilities

• Contribute in more than 15 projects

• Assisting Principal Designer to draw and detailing 2D measured drawing using AutoCAD and 3D model using SketchUp from their sketch

• Make 3D Rendered Visualisation of designed projects using Enscape then 2D Visualisation using Photoshop

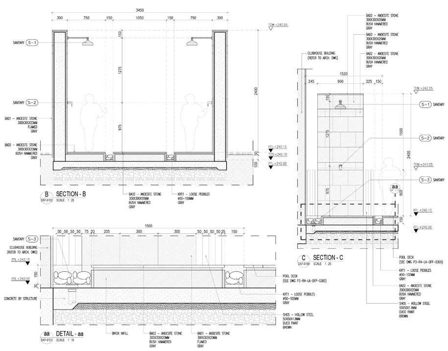
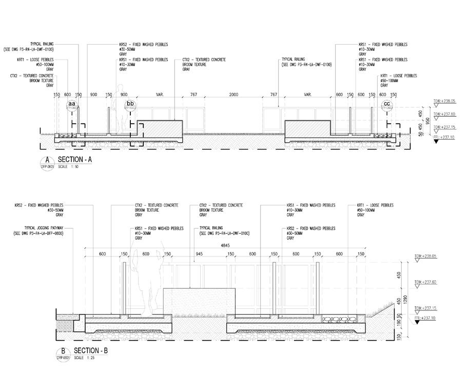
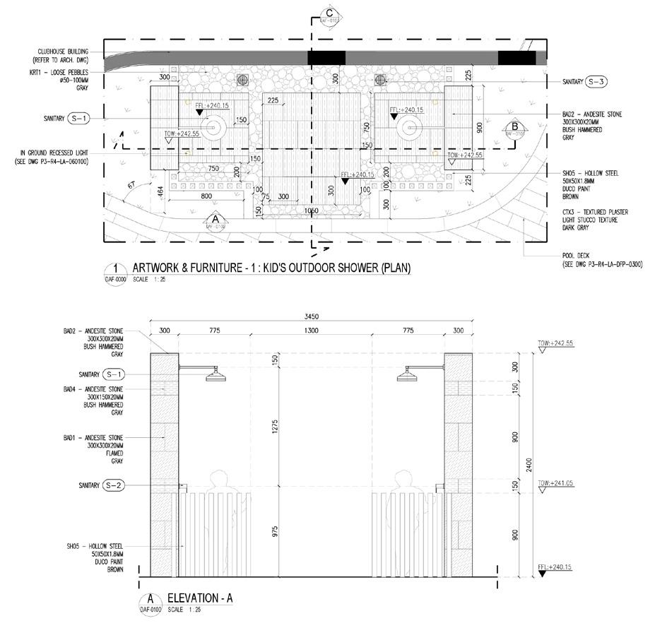
• Contribute in DED drawing especially on floor finishing and furniture details

• Involved in construction montioring especialy on floor finishing and furniture details

Projects

• Housing Cluster at Sentul (3D Modelling, Render & DED)

• Housing Cluster at Depok (3D Modelling & Render)

• Housing Cluster at Tangerang (3D Modelling & Render)

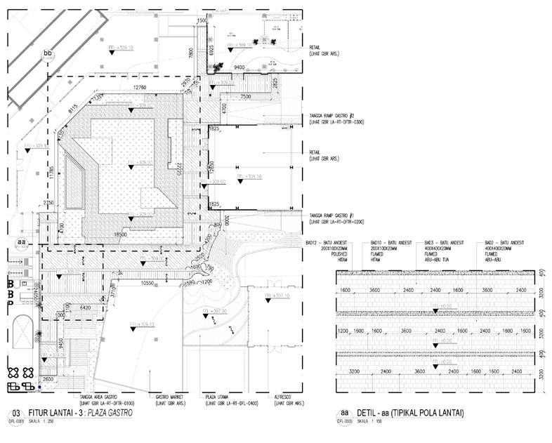
• Retail at Sentul (Design assisting, 3D Modelling, Render, 2D Visualisation, DED)

• Retail at Makassar (3D Modelling & Render)

• Retail at Tangerang (3D Modelling & Render)

• Hotel at India (Assisting Programming Study)

• Office at Jaypur, India (Assisting Material Study)

• Park at South Jakarta (3D Modelling & Render)

• Park at South Tangerang (Design assisting, 3D Modelling & DED)

• Buffer floor in Tower at Tangerang (3D Modelling & Render)

• Masterplan at Bali (Design assisting)

• Pedestrian Area at South Jakarta (Design assisting, 3D Modelling & Render)

• Villa Cluster at Batam (3D Modelling & Render)

• Resort Area at Batam (Design assisting, 3D Modelling & Render)

• Resort Area at Kediri (Design assisting, 3D Modelling & 2D Visualisation)

The OZ - PT. Podo Joyo Masyhur

Housing Cluster

Architect/Supervisor

November 2021 - March 2022

Responsibilities

• Supervise house units construction and reparation (4 Construction & 30+ Reparation)

• Manage Building repairman (8 people/4 teams) work including placement, tools, materials, weekly payment and coordination with higher ups

• Make Interior design and Rendered Visualisation using SketchUP and Enscape

• Assisting in technical drawings

• Contacting vendor for materials and products, and then manage the purchasement

Aness Labs

Research and Freelance Architecture Team

Architect

November 2021 - Present

Responsibilities

• Being part of the research team, prepare discussion topics and references

• Making Design, 3D Modelling and Rendered Visualisation using SketchUP and Enscape

• Assisting in technical drawings

• Contacting vendor for materials and products offering

Menara Asing

Mixed-use Public Space

Academic 2019

Surabaya, Indonesia

Public space project in 2019, the design direction was to design public spaces that support the surrounding heritage. The Design suppose to bringing an alien to the old town of Jalan Rajawali to attract visitors. Some of the activities in it aim to support the existence of the old town, with the function as a gathering point and observation area.

Function

Chiken Cage Facade Steel and Glass Library Observatory also Canopy
More Heritage Observatory Bridge
Tower Heritage Building
height Visual Access to Post Office

Un-Eq House

Multipurpose House

Academic 2017

Surabaya, Indonesia

Dwelling project in 2017, the direction was to design a 150 m2 residence in Surabaya, with a multipurpose dwelling concept. The design planned for residences of a couple who are a painter (husband) and a chef (wife) with one child. The residence is made multipurpose for painting galleries and cooking shows.

Painting Room

Area

Main Bedroom

Child Bedroom

Bathroom

Area

Area

Living Room Semi-public Area

Area

Toilet

Drying Area
Gallery
Kitchen
Barbeque

Alterdrome

Multipurpose Public Space

Academic 2020

Surabaya, Indonesia

In the Surabaya 2045 scenario, it located in Medokan Keputih which is planned to be a pedestrianonly area. The design direction is to design public spaces that support the community of Medokan Keputih in 2045. The writer realises that would be quite dangerous to unite pedestrians with cyclists, skateboards and others, then bring a riding arena (non-engined) such as a velodrome. The spectator area within the arena can be used for other activities.

Function

Hanging

System

Tampak Barat Skala 1:200
Steel Truss
Concrete
Tension Cable
Floor Plate
Tension Cable
Floor Plate
Concrete Pillar

Have a nice day

Turn static files into dynamic content formats.

Create a flipbook
Issuu converts static files into: digital portfolios, online yearbooks, online catalogs, digital photo albums and more. Sign up and create your flipbook.