Waterfront Living at Upton Lake

Page 1

DISCOVER A NEW CONCEPT FOR LIVING

02 | WATERFRONT LIVING

WELCOME TO UPTON LAKE, A NEW CONCEPT FOR LIVING

Combining cutting-edge technology, beautifully designed homes and a setting boasting wide-open skies and stunning lake views that are framed by the rolling Malvern Hills, this brand-new development has both creativity and relaxation at its heart.

Nestled alongside the mighty River Severn and just a stone’s throw away from the enchanting market town of Upton-upon-Severn, Waterfront Living is a pioneering project that sets the standard for floating homes.

Taking full advantage of blue and green space on offer, each of Waterfront Living’s floating homes have been individually designed for those with an equal love of the outdoors and luxury creature comforts.

From the sounds of boats chiming in the breeze, water lapping against the decking and birds singing in the trees, this beautiful destination will inspire a new concept for living.

WWW.WATERFRONT-LIVING.COM | 03
JULY 2022 04 | WATERFRONT LIVING

UPTON LAKE PLAN

| 05 | 05
06 | WATERFRONT LIVING

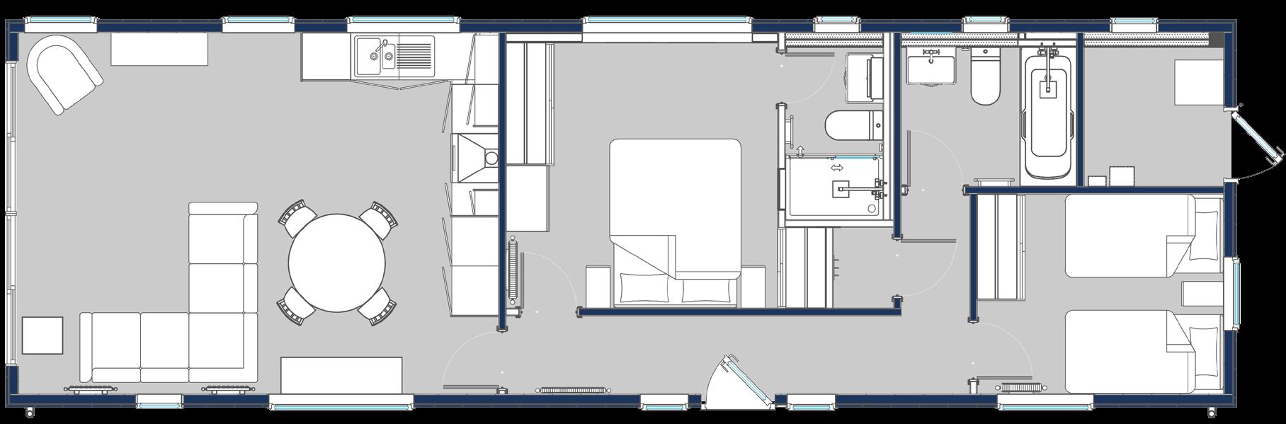
THE GRAYLING

Intelligent design, ground-breaking creativity and beautiful craftsmanship - the perfect trio which make up the foundations of The Grayling.

From the moment you step foot in the smart glazed hallway and glimpse the spacious open plan living space, you’ll know this floating home has been designed with peace and tranquillity in mind. The full height windows throughout allow natural light to stream through the space and

provide beautiful views across the lake and into the surrounding woodland.

Begin each day gazing at the sunrise from your bed and steal some valuable you time with a good book and a cup of coffee. Outside, a fabulous decking area gives you the perfect space for a spot of al fresco dining or a cosy retreat for a magical evening under the stars.

2 BEDROOMS I 2 BATHROOMS
I
775 SQ FT
| 07

THE BEST OF BOTH WORLDS

Perfectly positioned in a truly tranquil setting, but with all the amenities you need to lead a busy modern lifestyle.

Waterfront Living lies just moments away from the beautiful historic town of Upton-upon-Severn. Its picturesque streets and buildings make it the perfect place for a weekend wander. Grab a coffee, succumb to the delicious smells from the local bakery and immerse yourself in the array of independent shops on offer.

The community’s busy calendar of events only enhances Upton’s magical character and its renowned music festivals bring the town alive, attracting jazz, blues, and country lovers alike.

This thriving hub has everything necessary to make life as stress free as possible, but if you care to venture a little further afield there’s even more to explore.

08 | WATERFRONT LIVING

TIME TO EXPLORE

In view of the development and just a short journey away, the Malvern Hills and Commons roll as far as the eye can see. For those with a love of the outdoors and adventure, grab yourself a flask, pop on your walking boots and explore this area of outstanding natural beauty.

If your love of the outdoors lies more on the water, hire boats and fishing trips are available just a stone’s throw away at Upton Marina. Cruising on the Severn offers a variety of itineraries and is perfect for taking the kids out on an adventure, a romantic picnic with a loved one or finding secluded spots to paint the abundance of wildlife.

LOCAL AMENITIES Doctor | Dentist | Vet 4 mins Bus Stop 6 mins Tourist Information Centre and Heritage Centre 8 mins Supermarket 2 mins Hospital 15 mins Train Station 13 mins GETTING AROUND Tewkesbury 12 mins Cheltenham 30 mins M5 10 mins M4 50 mins Birmingham Airport 60 mins Cotswolds 25 mins | 09

TAKE A LOOK AROUND

We’d love to show you around our show home in this idyllic location. Pop down to Upton Lake & Marina and one of our team will walk you around the lake and the showhome. Alternatively, you can call us on 01933 829 940 to make a showhome viewing appointment.

TRY BEFORE YOU BUY

If you love the thought of joining a peaceful community set amidst tranquil blue and green and are thinking of purchasing a floating home on Upton Lake, we’d love you to stay with us and give it a go before you decide. You can book a stay in our 2 bedroom floating home on the marina or on the lake itself, and very simply, should you proceed to purchase a home on Upton Lake, the final purchase price of your floating home will be reduced by the cost of your stay.

BOOKINGS

Our floating home offers modern furnishings and décor, beautiful open plan living space and stunning views over the Marina. The home is available for bookings between Thursdays and Mondays with a minimum 3 night stay requirement.

Head to www.waterfront-living.com/try-before-you-buy for a link through to book on Airbnb or Booking.com.

Terms and conditions apply.

10 | WATERFRONT LIVING

YOUR NEXT STEPS

Achieving your waterside lifestyle at Upton Lake couldn’t be simpler. We will help and support you throughout the buying process and beyond, giving you peace of mind every step of the way.

RESERVE

YOUR BERTH

Select your berth and secure with a £1000 deposit

CUSTOMISE YOUR HOME

Personalise your home with a choice of colours, fittings and furnishings

RELAX

WHILST WE DO ALL THE WORK

Get packing and plan your move

START YOUR NEW LIFESTYLE

Move in and start exploring

Subject to status and availability. Please speak to one of our advisors for more information. FINANCE AND ASSISTED MOVE OPTIONS ARE AVAILABLE | 11
Stainless Steel & Glass Balustrade Galvanized Steel Frame and corner fixings Hardwood Decking
12 | WATERFRONT LIVING
Concrete Coated Polystyrene Floatation Units Bespoke to each home

STAYING AFLOAT

A perfect combination of cutting-edge technology and beautifully designed homes. Waterfront Living has been carefully designed in collaboration with some of the best in the marine and park home industries.

The floating home framework:

The main framework of the floating structure is made from mild steel which has been hot-dip galvanized. This framework, coupled with the floats, sits underneath the home and below the waterline and is what keeps the home afloat and balanced.

The floats:

The floatation units which connect to the framework are formed from EPS70E grade polystyrene blocks which are coated with a concrete skin which is approximately 25mm thick.

Each of these floats is sized independently and is based on the individual home’s weight and layout – not one float is the same!

The decking:

The decking, which can be seen above the waterline, is made from hardwood 145 x 22mm deck boards which are supported on extruded aluminium bearers.

The glass balustrade is then connected and runs around the perimeter of the decking.

| 13

FREQUENTLY ASKED QUESTIONS

How many floating homes will there be on Upton Lake?

There will be 28 floating homes once all phases of the development are complete.

How much does a floating home cost?

Prices start from £299,000 which includes the fixtures and finishings as shown within the showhome at Upton Marina.

How many bedrooms are in a floating home?

Each floating home will have 2 bedrooms.

Can you live in a floating home permanently?

Yes. We have received full planning permission for both residential and holiday use (full 12 month use) for the floating homes.

How long is the lease?

The lease is for a period of 125 years. All leases have a start date of January 2022 and are registered at Land Registry.

Will stamp duty be payable on completion?

On the basis that you do not own the land where your floating home is located, you will not have to pay any stamp duty.

What warranties are provided?

As the manufacturer of the home, Prestige Homeseeker provides a 10 year warranty underwritten by Platinum Seal. Solent Marine, as the manufacturer of the float, provides a 20 year warranty.

Does the floating home come fully furnished?

A floating home comes with a fitted kitchen, bathroom, floor coverings and a standard fixtures and fittings furniture package included in the price.

We have partnered with Prestige Homeseeker, who together with our sales team will work with you in relation to the design and specification of your floating home. A change in specification may attract additional charges.

When will the first floating home be occupied?

We welcomed our first residents in Summer 2022, with more homes to be occupied in 2023.

What services will be provided?

WiFi, water and electricity (individual meters for the electric supply, invoices will be raised by the company) will be supplied to each floating home.

How long will it take for my floating home to be ready from reservation?

We anticipate that a new floating home will be ready within 3 - 6 months from deposit and exchange of contracts, depending on customer requirements and manufacturing lead-times.

Have another question?

If we have not answered your question, please don’t hesitate to contact us at info@waterfront-living.com and one of our team will be in touch.

14 | WATERFRONT LIVING
| 15
The Tingdene Group, 34-36 Bradfield Road Finedon Road Industrial Estate, Wellingborough, Northamptonshire, NN8 4HB I info@tingdene.net I www.tingdene.net DISCLAIMER This brochure, and the description and measurements herein, do not form any part of a contract. Whilst every effort has been made to ensure accuracy, this cannot be guaranteed. Site maps and floor plans contained within this brochure are not to scale and are subject to change. The information and imagery contained in this brochure is for guidance purposes only and does not constitute a contract, part of contract or warranty. Some images and illustrations contained in this brochure are for indicative purposes only. WATERFRONT LIVING East Waterside, Upton upon Severn, Worcester WR8 0PB info@waterfront-living.com I www.waterfront-living.com I 01933 829 940

Turn static files into dynamic content formats.

Create a flipbook
Issuu converts static files into: digital portfolios, online yearbooks, online catalogs, digital photo albums and more. Sign up and create your flipbook.