


![]()



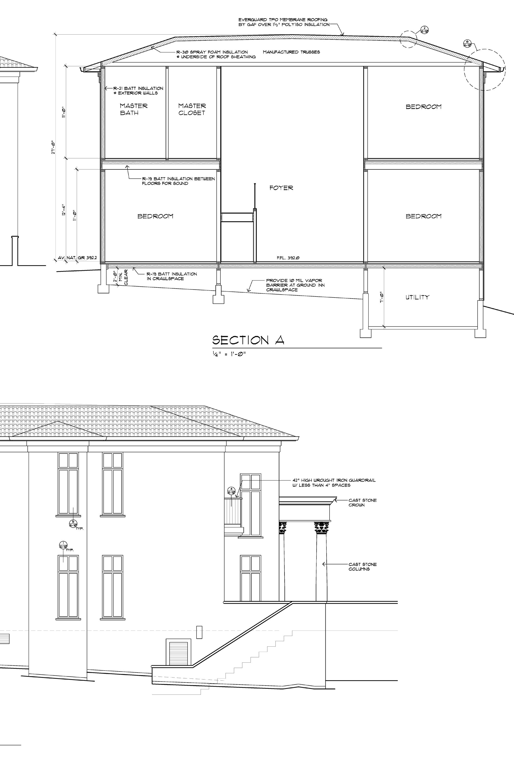
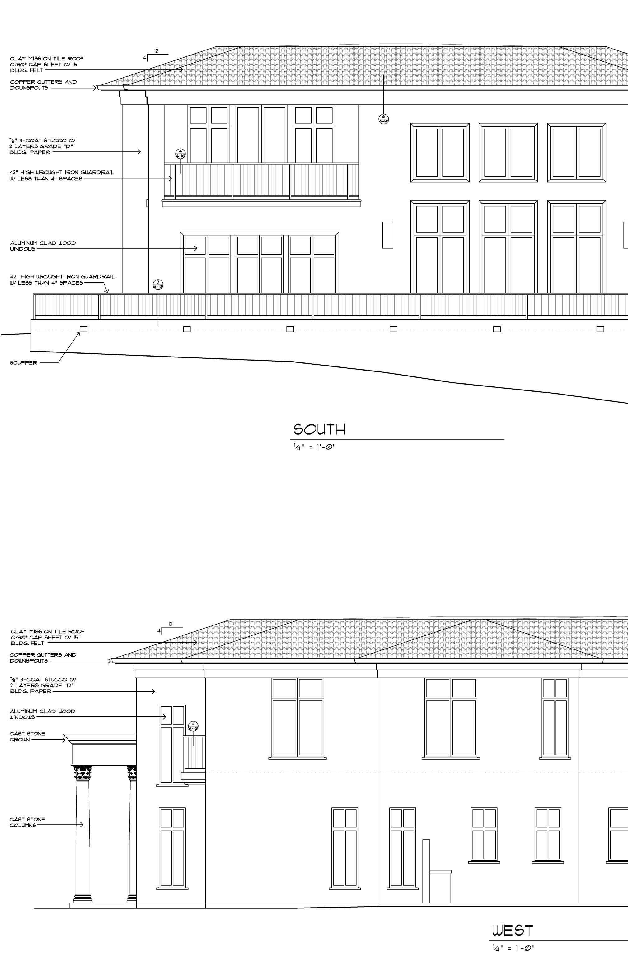
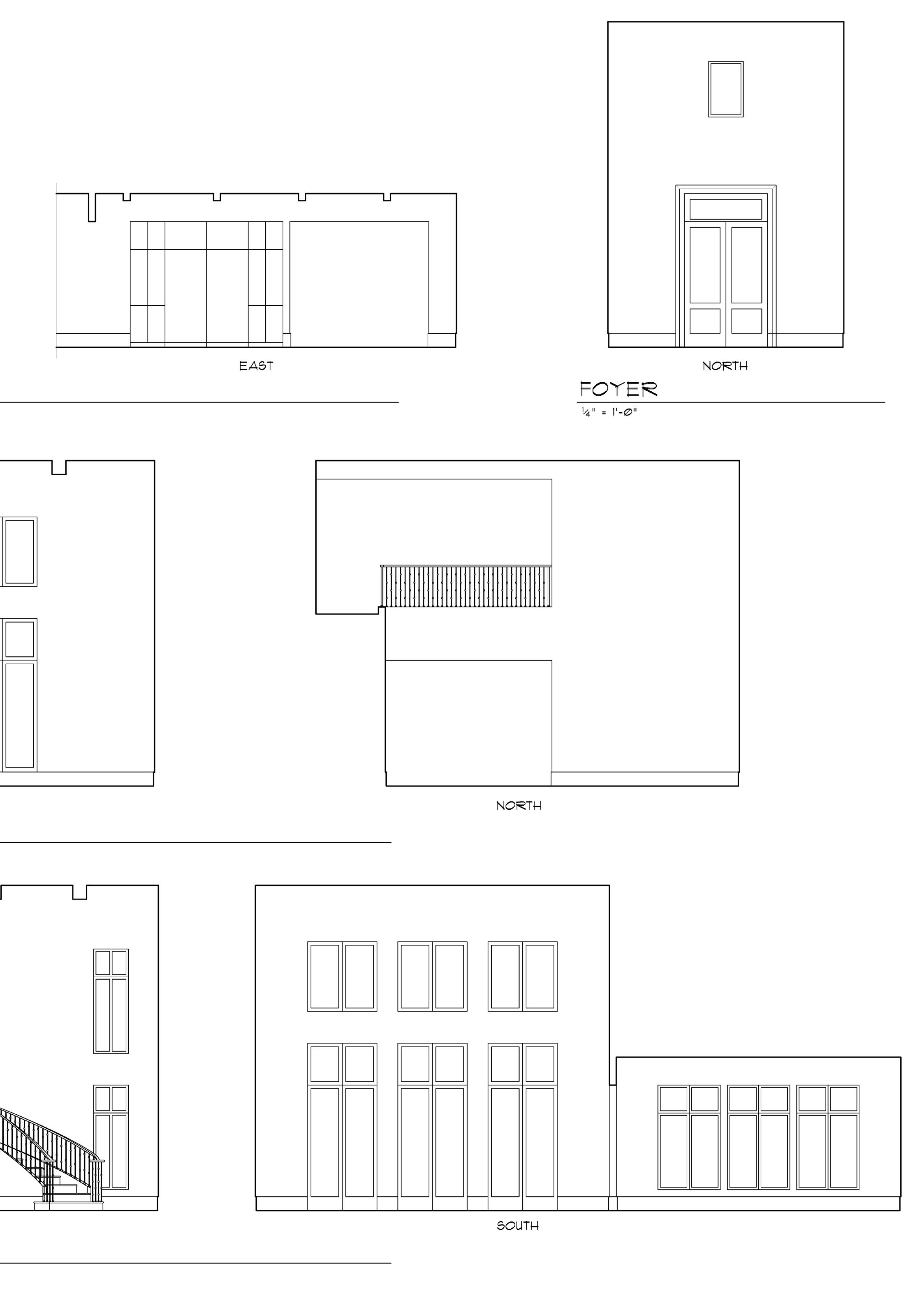
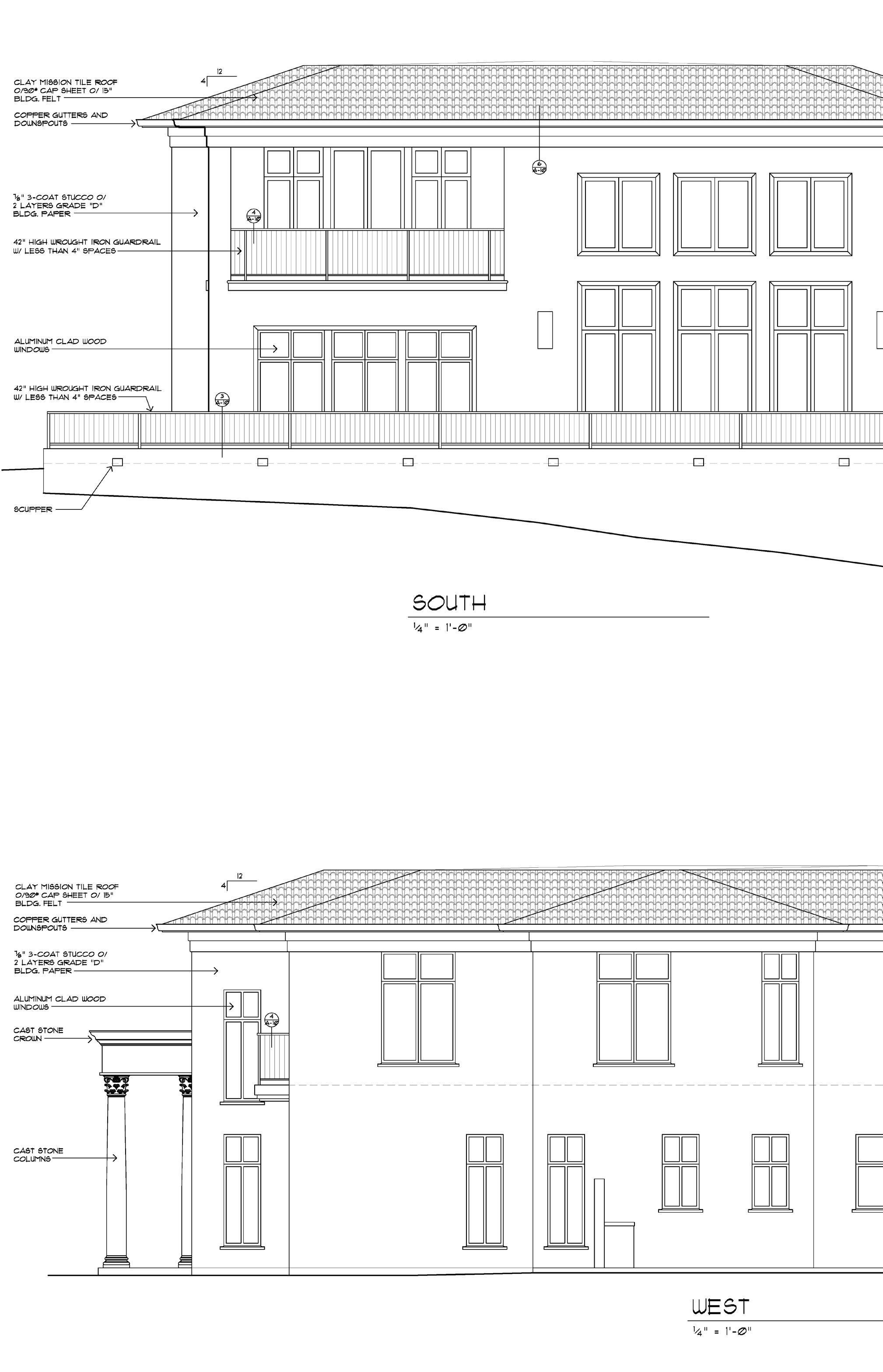
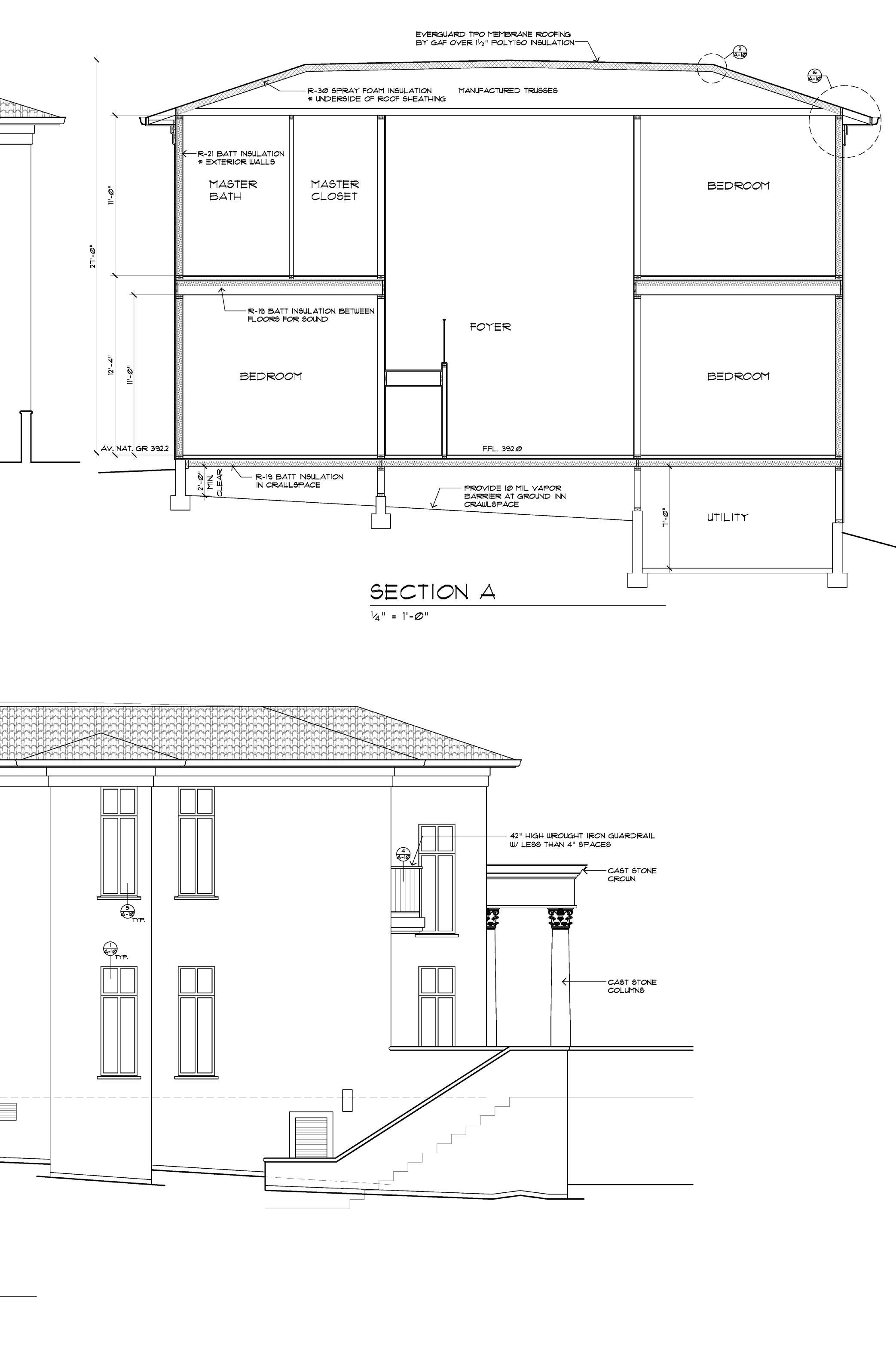
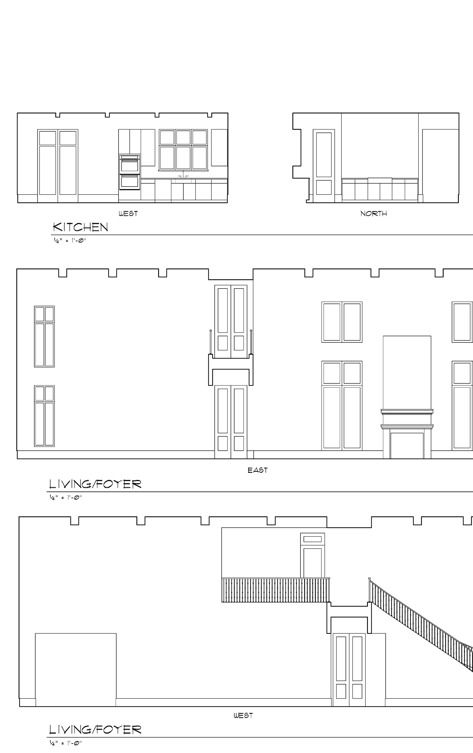
Located just around the corner from the world-famous Pebble Beach Lodge & Resort, this serene 1.58-acre ocean view estate parcel includes approved plans for a stunning house and guest unit with soaring ceilings and large windows to showcase the beautiful views. The property has a building permit issued for the construction of a two story 5,000 plus square foot home with a three car garage and guest house. The large great room has magnificent 23’ high ceilings and both floor levels have an 11’ plate line. Just a short drive from Carmel-by-the-Sea, Big Sur, and all the incredible amenities the Monterey Peninsula offers, this rarely available land in Pebble Beach is ready to build the estate home of your dreams.

PEBBLEBEACHVIEWS.COM
Hold up your phone’s camera to the QR code to visit the property’s website and pricing.
2.5% Buyers Brokerage Compensation | Brokerage Compensation not binding unless confirmed by separate agreement among applicable parties.
Presented by TIM ALLEN , COLDWELL BANKER GLOBAL LUXURY




LOT
• 1.576 Acres
• Lot is graded and cleared
• Water: .5 Acres
PLANS
• Approved plans with final permit
• Two stories with 5,114 SqFt of livable space
• 3-car garage + storage with guest cottage above it
INTERIOR FEATURES
• 5 bedroom suites plus 1 powder room
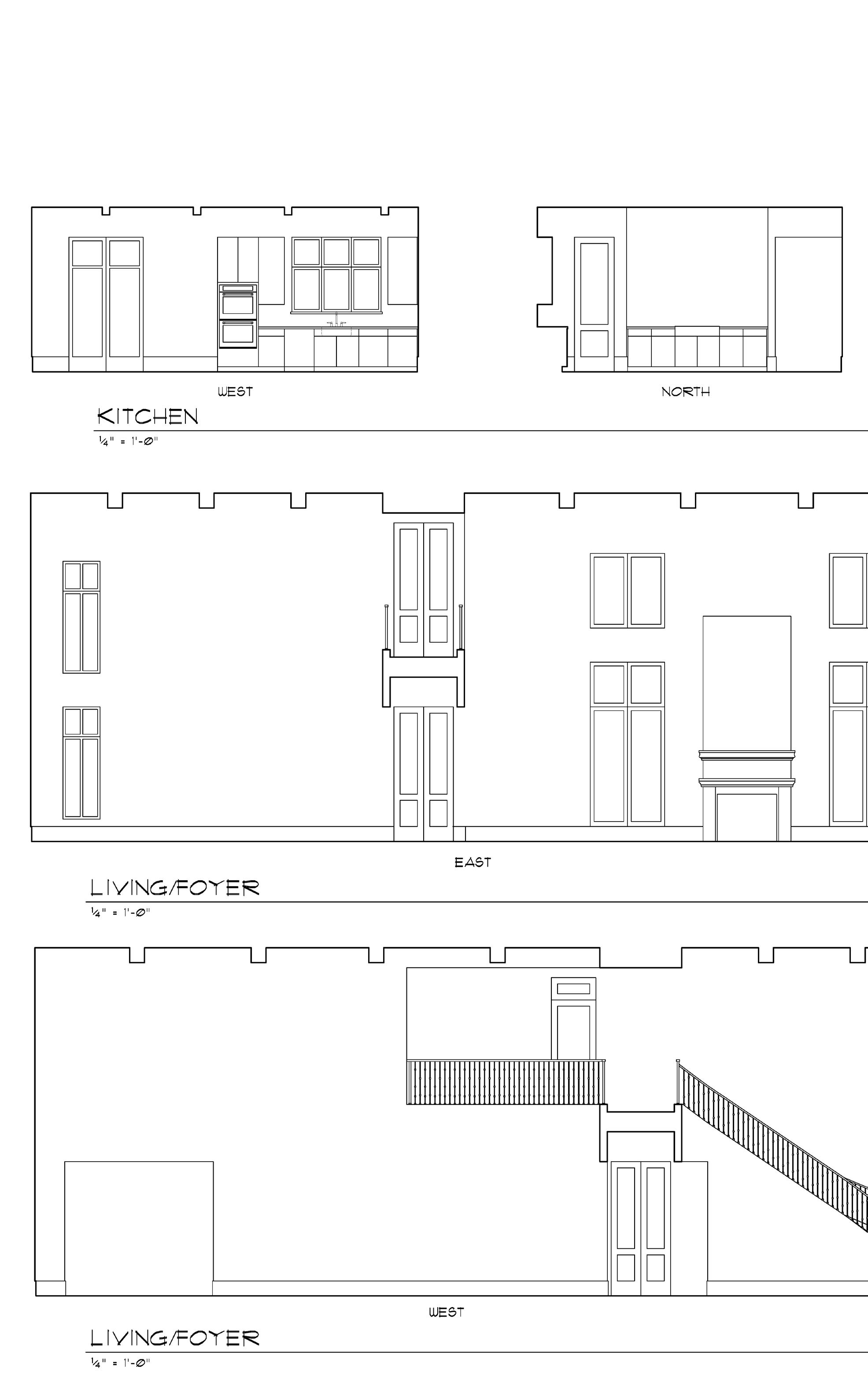
• Two islands in kitchen
• Appliance wall in kitchen with 36” freezer, 36” fridge, covered appliance center for microwave, coffee station, toaster oven and pantry
• Office, laundry room, and in-house vacuum
• First and second floors are 11ft high
• Great room and foyer are 23ft high
• Great room fireplace can be 23ft high
• All exterior and interior doors 9ft high to match window height plate line
• Curved staircase
• Elevator
• Beamed ceilings in foyer, great room, kitchen, primary bedroom, primary bath
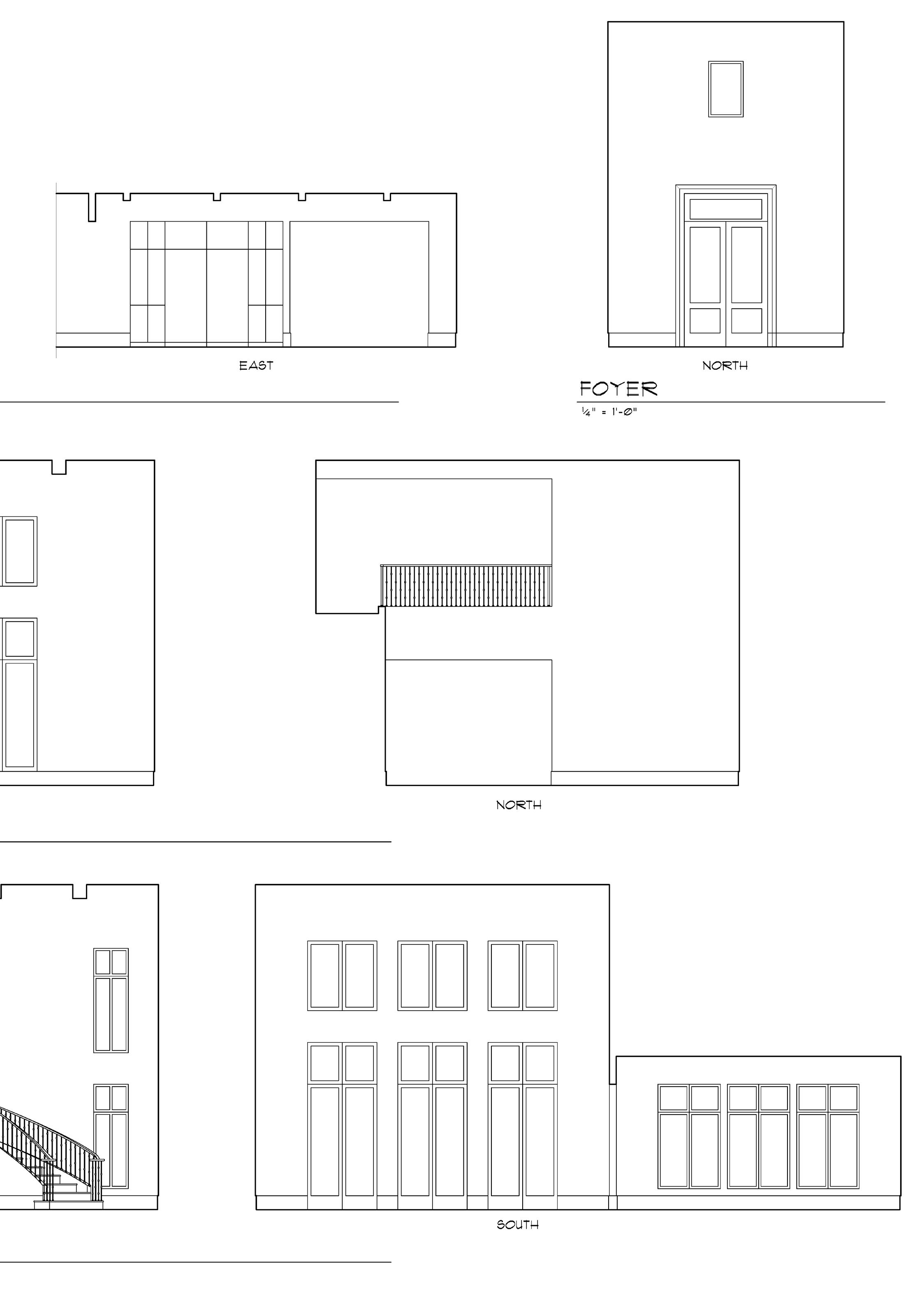
• Tall expansive windows and french doors
• Primary Suite includes 2 walk-in closets
EXTERIOR FEATURES
• Portico
• 4 balconies
• Terrace
• BBQ area
• Wood stake fences
• Generator pad
• Tile roof
VIEWS
• Ocean and forest
















