UCL Design for Manufacture MArch

Page 1


PORTFOLIO Architecture Design

Applying to University College London Design for Manufacture MArch

Table of Contents

Architectural Department Building

University Architecture Department Building Design

Bionics Collective Apartment

High-rise Residential Design Project

Perihelion Pavilion

Xianfengling Observation Tower Renovation Design

Trendy countryside

Urban Village Renovation Design

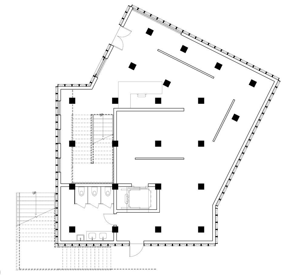
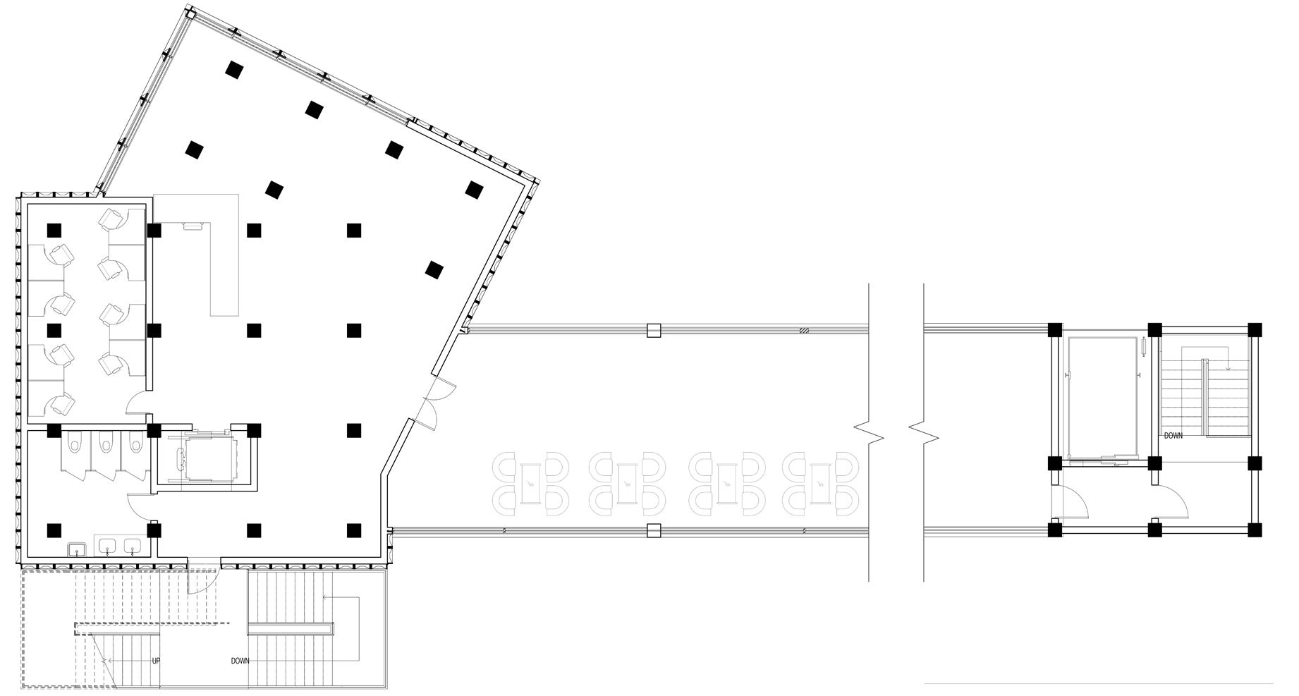
Architectural Department Building

University Architecture Department Building Design

Site : WuHan, China; 2024

Academic, Individual Work

This design is based on wall typology and fully considers the functional and aesthetic requirements of the Wuhan University Architecture Department. Through the rational use of exposed brick walls, cement lime mortar walls and combined walls, an architectural space with both historical and cultural heritage and a modern feel is created. This design aims to provide teachers and students with a high-quality teaching and research environment, while showing the architectural style and academic atmosphere of Wuhan University.

The transportation around Wuhan University is convenient and the living facilities are complete. Wuhan University has made significant contributions to improving regional culture, education and economic levels, and is an important academic and research center in Wuhan and even in China.

POPULATION to FUNCTION ANALYSIS

AXONOMETRIC

RENDERING

SPATIAL AGGREGATION

When designing the facility, the resting function is just as crucial as the studying, teaching, and research functions, especially for students. Therefore, prioritizing rest is an integral part of the design process.

VOLUME GENERATION

UNDERGROUND LAYOUT

DECONSTRUCTED AXONOMETRIC

DETAILED SECTION

FIFTH FLOOR PLAN

FIOURTH FLOOR PLAN

THIRD FLOOR PLAN

SPATIAL SEQUENCE

SECTIONS

SOUTHERN FACADE CORRIDOR CORRIDOR STAIRS GARDEN EXTERIOR

ELEVATIONS

PERIHELION PAVILION

Xianfengling Observation Tower Renovation Design

Site : Mount Wuyi, China

Competition, Individual Work

This project employs an all-timber structural system, uses local fir/pine wood and stone, blending materials with Wuyi Mountain’s terrain. A 100m bridge combines traditional-modern timber techniques, its deck layered with weathered stone and glass inlays framing canyon views. Modular stone façades on the tea exhibition hall and viewing platforms play with light/shadow, embodying the harmony of ecology and cultural heritage.

Pioneer Ridge

CULTURAL ANALYSIS

Wuyi Danxia sculpted in fiery red sandstone and conglomerate, unveils Cretaceous origins through its labyrinthine cliffs and pillar peaks—a geological masterpiece where nature's chisel carved Earth's living chronicle.

Wuyishan embodies China’s philosophical and ritual heritage. As the cradle of Zhu Xi’s Neo-Confucianism, it hosted cliffside academies where scholars harmonized human ethics with cosmic principles. Ancient hanging coffins reflect Min-Yue ancestor worship, while Ming-Qing Taoist temples merge spiritual practice with natural sanctity. The Dahongpao tea tradition elevates cultivation into a meditative art, interwoven with poetry and cosmology. Its pavilions and terraces, designed as extensions of the landscape, symbolize humanity’s dialogue with the sublime.

Nature's Craftsmanship and Human Spirit in Harmony

Wuyi's Nine Bend Stream snakes through crimson cliffs, where bamboo rafts whisper millennia-old secrets. Cliff coffins gaze from pineclad heights, etching nature's dialogue with ancient philosophers in flowing ink.

Zhu Xi's Wuyi teachings blended Confucian, Buddhist, Daoist thought. He mapped cosmic order in Nine Bend's currents, grounded learning in nature's rhythms. His mountainforged philosophy became East Asia's intellectual compass for 800 years.

Wuyi Rock Tea reigns supreme, with Da Hong Pao's mineral essence crafted through centuries-old roasting techniques. Its Zen-infused tea culture, born from cliffside gardens, carries the aroma of Silk Road heritage across continents.

The
Watchtower in Wuyishan National Park, Fujian, strategically anchors the Fujian-Jiangxi corridor. Surrounded by subtropical forests, it integrates ecological monitoring, fire prevention, tourism, and oversight of adjacent reserves and cultural sites, emphasizing its regional significance.

The Yingxian Wooden Pagoda, a 67m-tall octagonal five-story timber structure with six eaves, uses mortise-and-tenon joints (no nails), inner/outer column networks resting on stone bases, and 54 types of brackets for seismic resilience. Its alternating open/hidden layers (5 visible + 4 reinforced) form a box-like framework, embodying ancient Chinese wooden architectural ingenuity through 1,000 years of survival.

MASSING GENERATION

TRADITIONAL CHINESE WOODEN BRIDGE

The wooden bridge in Along the River During the Qingming Festival depicts a Northern Song Dynasty Rainbow Bridge on the Bian River—a column-free arched timber structure built with overlapping beams joined by mortise-and-tenon joints, achieving large spans through interlocking load-bearing frames.

GROUND FLOOR PLAN

FOURTH FLOOR PLAN

SECOND FLOOR PLAN

BUILDING STRUCTURE FACADE DESIGN

The facade design employs a modular division to develop five functional modules tailored to daylighting and fenestration requirements, incorporating Wuyishanspecific stone materials for regional architectural expression.

LANDSCAPE CORRIDOR STRUCTURE

BIONICS COLLECTIVE APARTMENT

High-rise Residential

Site: London, UK; 2024

Academic, Individual Work

The design of this project adds bionic elements on the basis of the apartment. The surface design of the building adopts the principle of bionics. It grows freely like a flower or leaf blooming, and finally attaches to the facade of the building and also affects the layout of part of the interior. The significance of this bionic design adopted in this project is to emphasize that in overurbanized communities, buildings should not only meet people's needs for living and working, but also live in harmony with nature, integrate into nature, and increase residents' thinking about the relationship between the environment and architecture. This project wants to express that although buildings are inorganic substances composed of reinforced concrete, they can also exist in nature like living plants through bionic design.

The application of bionics in architectural design has a long history, from the ancient wooden nests to the modern structural, functional and formal bionics, and then to the urban environment bionics, which constantly provide inspiration for architectural design. It promotes the harmonious coexistence of architecture and the natural environment, and promotes the development of design concepts such as energy conservation, environmental protection and intelligence.

TYPES OF ROOMS

In the design of the apartment, the traffic core, kitchen, bedroom, bathroom and living room were designed according to their functions. Then these different functions were combined into multiple apartment plans according to the requirements of one-bedroom, two-bedroom and threebedroom apartments. Each floor of the apartment randomly combines two different apartment plans with the traffic core as the center to form a whole 20-story apartment building.

FACADE TEST

SELECTED FACADE

The building's skin design adopts the principle of bionics. It grows freely like a flower or leaf, and finally attaches to the building's facade while also affecting part of the interior layout. In order to better meet the needs of living, 6 different building skins were tried during the design process. They were adjusted to fit the building better, and then the edges were cut off to form balconies. After that, the light intensity and duration were studied separately, and finally the best one was selected.

DEEPENED FACADE FINAL RESULT

TYPICAL LAYOUT

RESIDENTIAL FLOOR PLAN PUBLIC FLOOR PLAN

PLASTERBOARD

CONCRETE SLAB

STEEL BEAM

VENTILATION OPENING

PRINTED GLASS PANELS

STEEL GLASS CONNECTOR

PLASTERBOARD

STEEL SUBSTRUCTURE

FLOOR FINISH

TRENDY COUNTRYSIDE

Urban Village Renovation Design

Site : Dongguan, China; 2024

Competition UIA, Group Work

The purpose of the project is to deeply explore and integrate traditional culture and modern trend elements, and through a series of creative transformation designs with trendy play as the theme, give new vitality to the disappearing natural landscapes, folk customs, and quaint villages, and realize the dual regeneration and revival of their cultural and economic values. By building a diversified and open creative design convergence platform, Tangwei Village will not only become a display window for trendy culture, but also a comprehensive landmark integrating cultural heritage, innovative design, and leisure tourism, attracting designers, artists, tourists, and creative people from all walks of life to gather here to exchange ideas and collide with inspiration, thereby effectively driving the overall prosperity and development of the regional economy and culture, and making Tangwei Village glow with unprecedented vitality.

Dongguan's trendy toy industry chain is complete, covering IP design, mold development, raw material procurement, manufacturing, brand operation and sales.

SITE ANALYSIS

CULTURAL DEVELOPMENT

King Kang's patrol

King Kang's patrol is the most grand traditional folk activity in Tangwei Village, with a history of more than 300 years. In addition to King Kang's patrol, villagers will also make offerings and worship at Mei'an Temple and other places dedicated to King Kang.

Tangwei Village is located in the core area of Shipai Town, Dongguan City, in the central and eastern part of Dongguan City.
Tangwei Village and Shipai Town where it is located have nurtured many trendy toy companies and brands.
The trendy toy industry in Dongguan has achieved rapid growth in recent years.
Trendy Toy

RENEWAL STRATEGY

Viewing Platform + Glass Roof
Glass box Lakeside Renovation Design
Enclosed square
in the corners of the square Add room on the platform
Corridor between buildings
Metal frame + enclosed courtyard
Arrange buildings along the street Glass room between buildings

DESIGN FOR EACH REGION

TRENDY TOY COLORING

TRENDY TOY PHOTO OP

TRENDY TOY Q&A
CREATE YOUR OWN TRENDY TOY
TRENDY TOY HIDE & SEEK
TRENDY TOY SHOWCASE

Other Works

Guangzhou Culture & Science Museum

Guangzhou Culture and Science Museum Project is a comprehensive project integrating culture, science and technology with green concepts. The project aims to promote the in-depth integration of science

and

Urban Design - Academic - 2023

Turn static files into dynamic content formats.

Create a flipbook
Issuu converts static files into: digital portfolios, online yearbooks, online catalogs, digital photo albums and more. Sign up and create your flipbook.