Tiago Vieira Maciel
tiagomaciel.arq@gmail.com
@tiagomaciel.arquitetura
![]()
Tiago Vieira Maciel
tiagomaciel.arq@gmail.com
@tiagomaciel.arquitetura
Modelagem de um projeto para o desenvolvimento do executivo
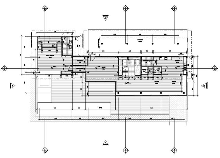
Residência de Grande Porte ( Reforma )
Autor: Flávia de Faria | FA2 Soluções Artísticas
Ano: 2024
Área Terreno: 1.035,450 m²
Área de Projeção: 834 m²
Área Total Edificada: 1.040 m²
Local: Condomínio Jardim Pernambuco, Leblon-RJ
Projeto de detalhamento interrompido pelo cliente do escritório
Link do modelo 3D interativo + desenhos técnicos: https://bimx.graphisoft.com/model/231ae646-4904-4c8d-9283-75aae295cafb
*desenvolvido com o software Archicad










Concepção de uma Residência de médio porte para aprovação
Autor: Camila Moraes | Tropical Arquitetura
Ano: 2024
Área Terreno: 600 m²
Área de projeção: 271 m²
Área total edificada: 502 m²
Local: Condomínio Residencial Limeira , Resende-RJ, Resende - RJ
Link do modelo 3D interativo + desenhos técnicos:
https://bimx.graphisoft.com/model/bafd7f97-d264-471e-9dcb-fb232d641d75
*desenvolvido com o software Archicad





Curso EIXO BIM ARCHICAD - modelagem e projeto executivo
Residência ALL Gui Mattos foi utilizada como base para o estudo da documentação e detalhamento executivo.
Autor: Gui Mattos ; Área: 625 m² ; Ano: 2019
Área Terreno: 6.919 m²
Área Construída: 625,86 m²
Cidade: Praia de São Pedro ; País: Brasil
Link do modelo 3D interativo e desenhos técnicos: https://bimx.graphisoft.com/model/d6f05741-38b3-40c4-a0ab-71eeae1ce38b

Perspectiva 3D Isométrica
Trabalho profissional ( Escritório R2T , Rio de Janeiro - RJ )
Projetista 3D BIM ; documentação para aprovação na prefeitura
Link 3D interativo + desenhos técnicos:
https://autode.sk/3IvQfTJ
*desenvolvido com o software Revit

Perspectiva 3D Isométrica
Trabalho:
Desenho técnico que teve como referência o modelo 3D (SketchUp) desenvolvido pelo arquiteto. (primeiro trabalho de estágio como PROJETISTA BIM_REVIT)
A residência se localiza em Vargem Alta, Espírito Santo. Possue 4 suites, 2 salas de convívio, 1 sala de música, 1 piscina, 1 sauna, 1 drive range, cozinha, área e quarto de serviço.
Área total construída = 906m² obra concluída = 2013




Trabalho profissional ( SUA - Secretaria de Urbanismo e Arquitetura de Resende-RJ )
Arquiteto e urbanista projetista BIM
Estudo de uma Arena Multiuso (futebol society / basquete / voley)
Local:_Parque Embaixador da Cidade de RESENDE-RJ
Link do modelo 3D interativo e desenhos técnicos:
https://autode.sk/3GeKDgO
*desenvolvido com o software Revit




Implantação
Perspectiva 3D Isométrica explodida
Arquiteto e urbanista projetista BIM
Mobilidade Urbana RESENDE-RJ
*desenvolvido com o software Revit
PROPOSTA DE UMA NOVA PRAÇA, BAIRRO COMERCIAL,RESENDE-RJ
PROPOSTA DE UMANOVAPRAÇA, BAIRRO COMERCIAL,RESENDE-RJ
A mudança do sentido da VIA ARTERIAL (Dr. Tacito Viana Rodrigues_ ponte) para MÃO ÚNICA ocasionou em ausência de função de áreas próximas a praça do pinheiro tornando o LOCAL INÓSPITO.
A intensão dessa proposta foi PRIORIZAR O FLUXO DE PEDRESTRES, organizar área de embarque de desembarque de ônibus, organizar área de carga e descarga do mercado e TORNAR VIVA a área em volta do grande pinheiro da PRAÇA SESQUIFENTENÁRIO.

Perspectiva Aérea

Perspectiva rua Sebastião Rodrigues
Perspectiva Av. Pref. Botafogo
profissional ( Escritório Ruy Rezende Arquitetura, Rio de Janeiro -RJ )
Arquiteto e urbanista na RRA
Modelo 3D BIM de um Edifício Misto ( multifamiliar / comercial ) para região do centro da cidade do Rio de Janeiro-RJ.
Link do modelo 3D interativo e desenhos técnicos:
https://autode.sk/3GSdiI1
*desenvolvido com o software Revit

Perspectiva 3D Isométrica


Trabalho profissional ( Escritório do Hotel Santa Teresa - RJ )
Projetista 3D BIM - Concepção
Link modelo 3D interativo: https://autode.sk/33JzGVH
*desenvolvido com o software Revit


Área de projeto = 900m² Área total construída = 1600m²

Trababalho de concepção de um Hostel para aprovação na Prefeitura.
O Hostel em estudo é uma anexo no casarão localizado na Rua Aarão Reis, Santa Teresa - RJ.
Programa arquitetônico do Hostel: Quartos de casal (suites), quartos mistos (alguns com banheiro coletivo), banheiro coletivos, áreas de convivência, restaurante, área de serviço, uma pequena cozinha (uso comum) e área de lavanderia (uso comum).
Os estudos possuem aproximadamente área total construída entre 1600m² a 1900m² e projeção entre 800m² a 1000m².





profissional ( Projeto Autoral )
Projetista BIM Revit - Escultura Urbana " Esqueitável "
Local: Parque das Águas, Resende-RJ ; Área construída : 400m²
Link do vídeo time lapse da obra: https://vimeo.com/143079714?share=copy
*desenvolvido com o software Revit





















Projetista BIM
Estudo de pergolado , deck de piscina e brises para uma residência no Alphaville Resende-RJ
*desenvolvido com o software Revit + Lumion

Perspectiva Isométrica





Trabalho profissional ( Freelancer para Muti Randolph )
Estudos de concepção em 3D - Galeria Melissa London, projeto do Muti Randolph
Link 3D interativo:
https://autode.sk/3nRjybE
*desenvolvido com o software Revit + Lumion

Perspectiva 3D Isométrica

Trabalho acadêmico:
Trabalho da disciplina Trabalho Integrado 01 - Ed. Multifamiliar FAU UFRJ *desenvolvido com o software Revit





Trabalho acadêmico:
Trabalho da disciplina de Projeto - Ed. Comercial UGB-FERP - Volta Redonda-RJ
*desenvolvido com o software Revit



Trabalho acadêmico:
Trabalho de Concepção da Forma Arquitetônica FAU UFRJ
*desenvolvido com o software Revit





