Brochure Résidence Arméria (LOT 42) à Junglinster

Page 1


RÉSIDENCE ARMERIA / 2

Présentation du projet

L'ÉQUILIBRE PARFAIT / 5

Chiffres clés et répartition des biens

ÉCRIN DE SÉRÉNITÉ / 8

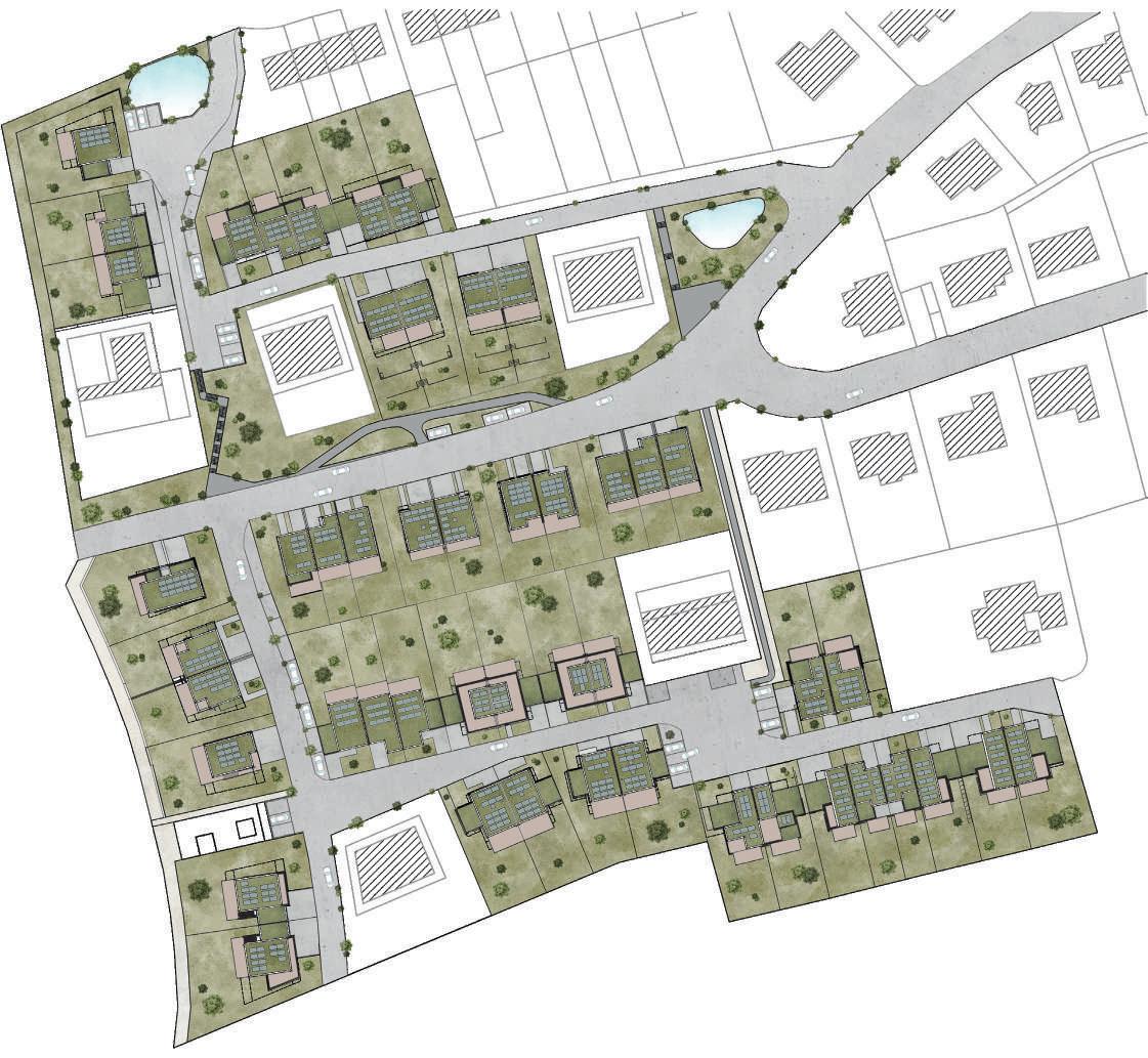
Localisation et points d’intérêts

SUBLIMER SON QUOTIDIEN / 12

Plans et perspectives

LE SOUCI DU DÉTAIL / 24

Finitions et matériaux

MAISON TÉMOIN / 27

Le savoir-faire Thomas & Piron

ARMERIA

La résidence Armeria vient compléter le domaine Blummewee, niché dans le charmant village de Junglinster.

Véritable havre de paix, cet écrin abrite cinq logements de standing. Dans ce cadre naturel, les résidents pourront savourer un confort inégalé tout en profitant de vues panoramiques sur les paysages environnants.

Surfaces

de 35 à 107 m 2

5 appartements

Typologies du studio au 3 chambres

Le confort dont vous avez toujours rêvé pour vous et votre famille. " "

L'ÉQUILIBRE PARFAIT

Ce cocon intimiste, conçu avec soin, offre une gamme de logements adaptés à tous les styles de vie.

Que vous soyez à la recherche d'un studio fonctionnel ou d'un appartement spacieux, vous trouverez ici le bien idéal.

Pour profiter pleinement de la nature et se détendre en plein air, les biens sont tous prolongés d'une agréable terrasse.

UN QUOTIDIEN DES PLUS SEREINS, À L'ÉCART DE L'EFFERVESCENCE URBAINE IMAGINEZ ...

Appartement 0.01 97.38 m2 2 ch. p.18

Studio 0.02 35.89 m2 studio p.19

Appartement 1.03 93.68 m2 3 ch. p.20

Appartement 1.04

Appartement 2.05

3 ch. p.22

ÉCRIN DE SÉRÉNITÉ

Résider à Junglinster vous offre la possibilité de savourer le charme authentique de la campagne tout en bénéficiant d’un accès facile aux commodités essentielles au quotidien.

Éducation

La commune dispose de crèches, d'une école préscolaire, d'une école fondamentale ainsi que d'un lycée.

Infrastructures sportives

Pour les passionnés de sport, plusieurs infrastructures sont à disposition, tels que des complexes sportifs, une piscine ainsi que des terrains de sport.

Aires de jeux

Vos enfants auront accès à douze aires de jeux à proximité.

Sentiers pédestres

Vingt-sept sentiers pédestres sillonnent la localité.

Zone naturelle

Explorez la richesse de la faune et de la flore en parcourant la zone préservée de «Weimericht».

Associations locales

Un large choix d’associations s'offrent à vous, allant des activités sportives au domaine culturel (comme le golf, le chant choral, les échecs, etc).

Pistes cyclables

Vous avez la possibilité de profiter d’une mobilité douce grâce aux pistes cyclables PC2 et PC4.

Mobilité

Un réseau de transports en commun permet de relier aisément Junglinster aux villes environnantes.

À SEULEMENT

3,5 km

Château de Bourglinster

14 km Aéroport Lux. Findel

16 km Luxembourg-ville

DE VOTRE FUTURE ADRESSE

Rue Kremerich, L-6133 Junglinster

École

Commerce

Post

Banque

Réserve naturelle

Château de Bourglinster

Centre Culturel Am Duerf

Terrain de foot

Centre sportif

Administration

Station-service

Maison témoin (voir p.27)

Médecin

Restaurant

Crèches

Supermarché

Arrêts de bus

Parking

Chemin pédestre P B

Sentier de randonnée

ruedeBourglinster

rueduBourglinster

rue Kremerich

rue Gaalgebierg

rueJeanPierreRies

Valde l’Ernz

rueduCimetière ruedeGonderange

ruedesCerises

rte de Luxembourg rte d’Echternach rue des Cerises

rueNicolasT.

ruedelaGare

rted’Echternach ruedelaMontagne

ruedelaMontagne

ARMERIA
Entrée Rue Kremerich
Toiture végétalisée
Panneaux photovoltaiques
Accès Garage
Hall Commun

Appartement 1.03

1.04

Appartement 1.03

Appartement 1.04

Appartement 2.05

LE SOUCI DU DÉTAIL

Chaque matériau et élément de conception a soigneusement été sélectionné par nos équipes pour vous garantir un confort incomparable.

"

Classe énergétique ABA ;

Frais d’architecte ;

Études énergétiques et études de techniques spéciales ;

Essais de sol, et blow-door test ;

Évacuation des terres excédentaires, nivellement du terrain fini et mise en place de zones vertes extérieures (voir plans) ;

Raccordements à l’égout, électricité, eau, TV, téléphone (hors frais d’abonnements privatifs) ;

Aménagements extérieurs : pavés béton pour accès parking/entrée, dalles 60x60 cm pour terrasses/balcons ;

Structure porteuse du bâtiment en béton ;

Façades isolantes minérales de 22 cm ;

Toiture plate végétale ;

À SON PLUS HAUT NIVEAU

Menuiseries extérieures en aluminium haute performance, munies de triple vitrage ;

Portes extérieures en aluminium haute performance ;

Stores électriques en aluminium laqué sur toutes les baies de fenêtre des pièces de vie et volets dans les chambres ;

Carrelages (valeur de 55€/m2) et faïences (valeur de 50€/m2 ) à choisir par les acquéreurs ;

Équipement sanitaire haut de gamme à choisir par les acquéreurs ;

Équipement électrique complet, y compris pose de câblages et prises RJ-45 ;

Portes intérieures haut de gamme ;

Parquets semi-massifs dans les chambres (valeur d'achat : 70€/m2) ;

Chauffage par le sol à tous les étages et radiateurs sèche-serviettes dans les salles de bain ;

Système de chauffage alimenté par une pompe à chaleur air-eau ;

Budget cuisine de 10.000 € HTVA à valoir chez le partenaire Lorraine Cuisines à Hollerich.

MAISON TÉMOIN À JUNGLINSTER

Visitez notre maison témoin située à quelques pas de la résidence Armeria.

Explorez notre réalisation où les détails sont soigneusement pensés afin de marier fonctionnalité, confort et esthétique.

Chaque aspect de ce bien reflète notre savoir-faire et notre expertise.

Rue Marie Curie L-8049 Strassen
Boulevard Marcel Cahen L-1311 Luxembourg Merl

NOTES

Turn static files into dynamic content formats.

Create a flipbook
Issuu converts static files into: digital portfolios, online yearbooks, online catalogs, digital photo albums and more. Sign up and create your flipbook.