ThomasLO Selected Work | 2024

Page 1


THOMAS

22-30 Station rd

Auburn, NSW

SHING ON LO

thomaslo.iarch@gmail.com +61 493715052

Embracing the Invisible

As an interior architecture student, my design philosophy revolves around the profound impact that well-crafted spaces can have on their users. I believe that exceptional design transcends mere aesthetics; it engages, inspires, and enriches the experience of those who inhabit it. At the heart of my approach is the concept of “Embracing the Invisible,” where each layer of design serves a distinct purpose, delivering a message that enhances the overall experience.

2024 - Ongoing

2021 - 2023

2020 - 2021

EDUCATION

University of Technology Sydney

Bachelor of Design in Interior Architecture

Caritas Bianchi College of Careers | Hong Kong

Higher Diploma in Design | Interior Architecture

Caritas Institute of Community Education | Hong Kong

Foundation Diploma | Major in Design

AWARDS

July 2023

July 2022

June 2021

Caritas Bianchi College of Careers | Higher Diploma in Design

Academic Excellence Award in HDD

Caritas Bianchi College of Careers | Higher Diploma in Design

Best Interior Design Award in HDD

Caritas Institute of Community Education | Foundation Diploma

Academic Excellence Award in DYJ

EXPERIENCE

2023

NEPEAN Building & Infrastructure | Sydney

Hot Dip Galvanizer, Factory Labourer, Casual

Great team player with excellent communication skills, able to work efficiently and deliver high-quality results.

2022

1957 & CO. | Hong Kong

Paper Moon, Server, Part-time

Worked in an upscale Italian fine dining restaurant, gaining insight into operations and observing design aesthetics.

2017 - 2022

2014 - 2017

Design

Rendering Enginee

Digital Fabrication Fabrication

Dairy Farm Group | Hong Kong

Shop Assistant, Part-time

Alimentation Couche - Tard | Hong Kong

Shop Assistant, Part-time

SKILLS

Rhinoceros, 3Ds Max, AutoCAD, Sketchup

Vray, Corona, Unreal Engine, Twinmotion, Lumion

Adobe Photoshop, Adobe Illustrator, Adobe Premiere pro, Adobe Indesign, MS office

3D Printing, Hard drafting/modeling, Laser Cutting

SILENT WAVES | Exhibition Design

+ Light and Space

THE SHELL | Performative Installation

+ Public Toilet Design

INTERLOCK | Student Commons Design

+ Mental health and Well-being

KYO MEI | F&B Design

+ Japanese Bento & Dinning

ADIDAS | Office Design

+ Adidas’ Souring Department

SILENT WAVES

To celebrate the context of its surroundings, the site, located in the heart of Sydney, is immersed in the bustling chaos of the city. The idea is to provide a space for a moment of pause, isolated from the external environment, creating a unique journey.

Silent Waves

Year 2024

Project Type | Individual

Location | Art Gallery of NSW, Sydney

“Through water, we are cleansed, not just the body, but in the depths of our souls.”

Entering the void, a reflection of the visitor, stepping into the silence and isolation. With the combination of water and light, creates a moment of pause, a breath of complete peace. Its not a shelter for permanence but a continuing journey just like the endless wave. By descending to the bottom of the tank, walking through the silent waves, and gradually re-emerging to the surface.

The space is designed as a journey through four stages of experience: Immersion, where one is enveloped in the atmosphere; Submerge, a deeper engagement with the surroundings; Serenity, a tranquil and reflective phase; and Return, the gentle reconnection with the external world. Each stage is intended to evoke different emotions and reactions, creating a holistic sensory progression.

The Damp Rain
The Waves
The Rebirth

This study examines the behavior of light in an enclosed underground environment, exploring how light interacts with the space under various conditions. The focus is on understanding how different lighting scenarios can influence human emotions and perceptions.

THE DAMP

Immersior

“The Damp” is a static space that obscures visitors’ vision, enhancing their other senses and encouraging immersion. Lit only by a faint glow through frosted glass, it provides minimal light from the main hall, adding to the mystique. This subdued illumination prompts visitors to rely on touch and sound, enriching the sense of enigma and discovery.

RAIN Submerge

“Rain” captures the essence of submersion in both a physical and a spiritual sense, providing an emotionally charged space where lighting accentuates each droplet, inviting a deep sensory engagement that purifies both body and soul.

THE

WAVES

Serenity

“The Waves” connects every space through its projection of water movement, creating a serene pause in the journey and offering a moment of complete peace. Ground lighting projects the gentle motion of waves. Partitions from other rooms create boundaries within this space, allowing visitors to appreciate its scale while concealing the actual size of the exhibition area. This design enhances the immersive experience by blending the elements of tranquility and spatial awareness.

THE REBIRTH Release

“The Rebirth” marks the return to reality, where strategically placed lights foster movement, with mirrors reflecting and framing the path. Lighting indicates direction and momentum. In this sacred setting, visitors experience a bath of light, enhancing the sense of holiness and symbolizing purity.

DESIGN STRATEGIES

Rhythm

By utilizing rhythm, a sense of spatial coherence is created, allowing visitors to comprehend the design on a deeper level.

Dynamic Scaling: By altering the proportions of spaces, it effectively creates spatial hierarchy.

Reflection is a powerful tool to foster a deeper spiritual connection between the body and space.

A tranquil coastal dwelling inspired by seashell geometries. The design features dynamic panels that respond to wind, creating a shifting interior experience with changing light and wind conditions. The top floor is an open space with large panels rotating with the wind, while the bottom floor offers a more private, controlled experience with smaller panels manipulated manually.

The Shell

Year 2024

Project Type | Group

Location | Clovelly Beach, Sydney, NSW

Situated at the beautiful Clovelly Beach, this project features a structure no larger than 12x12x12 meters. The design emphasizes the relationship between humans and space, incorporating the surrounding environment to add another layer of interaction.

By combining various unique representation techniques, we created this hybrid exploded axonometric.

INTERLOCK

The declining mental health and well-being of Hong Kong students, exacerbated by the COVID-19 pandemic, necessitates urgent attention. With over 50% of university students experiencing negative mental disorders and increased stress levels, the impact of the learning environment on their wellbeing is critical. Stigma surrounding mental health further hinders help-seeking behavior. Inadequate study spaces for both academics and well-being contribute to the challenges students face. Immediate action is needed to address these pressing issues.

Interlock

Year 2023

Project Type | Individual

Location | North Kowloon Magistracy, Hong Kong

“Transforming Spaces to Uplift Minds: Empowering Hong Kong Students with Stability, Support, and Belonging.”

To enhance the mental health and well-being of Hong Kong students, aims to design and create an inclusive and supportive environment that fosters a sense of belonging and provides an alternative space for students.

Lounge Area
Inspiration Hall

Belongingness and Engagement

Socialization

Interaction

The design strategies stem from combining three key elements identified after a detailed analysis of the social issues affecting the well-being of Hong Kong students.

Following a thorough investigation of the core problems, three main elements were established to enhance the mental wellness of students in Hong Kong: Belongingness and Engagement, Socialization, and Interaction. These elements were identified as solutions to improve students’ mental health.

During the design phase, spaces are oriented around these three elements, interlocking them to create distinctive spatial relationships that enhance the overall well-being and sense of community for the students.

Terrace
Event Space
Cafeteria Front
Cafeteria Common Space
Pantry
Cube Lab

During the sketching phase, I focus on opening up the floor plan, allowing shapes to interact and create a dynamic space. This approach divides the area into three zones using an open floor plan concept. When creating the block diagram, I prioritize placing the most important spaces towards direct sunlight to maximize natural light exposure.

COMMUNITY EXCHANGE SPACE

(SOCIALIZATION)

The community exchange space promotes collaboration and meaningful connections among students, fostering socialization and a sense of belonging within the area.

BALCONY

The balcony seamlessly connects indoor and outdoor spaces, shielding noise and inclement weather with its glass box facade. This design enhances the cohesion of the space, providing a seamless transition while maintaining a tranquil environment.

CAFETERIA

(SOCIALIZATION)

Cafe facilitates social activities with versatile seating options, including a communal table for socializing, while offering diverse food and beverages for a welcoming and engaging atmosphere.

LOUNGE

(BELONGINGNESS AND ENGAGEMENT)

The lounge area fosters belonging and engagement, offering a welcoming space for students to connect, socialize, and collaborate. It provides a comfortable setting that promotes interaction and creates a sense of community.

INSPIRATION HALL

The Inspiration Hall is a spacious open area with a double-height ceiling, strategically designed to offer panoramic views of various zones, fostering a sense of connection and inspiration.

COFFEE SHOP

(SOCIALIZATION)

The second coffee shop creates a retail-like environment and serves as a lively transition area, fostering socialization and connection between the cafeteria and surrounding spaces.

EVENT SPACE

(SOCIALIZATION)

Vibrant event space fostering student engagement through interactive activities and enhancing social interaction with surrounding void areas.

ROOF GARDEN

(BELONGINGNESS AND ENGAGEMENT)

Engaging roof garden promotes community and connection, accessible along circulation path, fostering belonging and interaction for students.

PANTRY

(BELONGINGNESS AND ENGAGEMENT)

The Pantry and Knowledge Ava spaces promote expression and connection. Students freely express thoughts on glass walls, fostering collaboration and a sense of belonging.

TERRACE

(SOCIALIZATION)

The Terrace is a versatile social hub with semi-open booths, offering panoramic views and a conducive environment for small group discussions and socializing. It fosters interaction, collaboration, and a sense of belonging among students.

CUBE LAB

(SOCIALIZATION)

Cube Lab is a vibrant and customizable space that promotes creativity, collaboration, and interactive learning through modular cube blocks, empowering students to design their own workstations.

KYO MEI

For this F&B project, I designed a themed restaurant based on real-life practices. I chose LUBUDS F&B Group as my client and conducted research to shape its concept.

KYO MEI | 九枚

Year 2023

Project Type | Individual

Location | Langham Place Shopping Mall, Hong Kong

The restaurant is positioned for upscale dining and takeaway service. Through site analysis and the site’s uniqueness, I targeted office workers as the primary audience.

The logo for “Kyo Mei” draws inspiration from the traditional Japanese bento box, which is divided into nine squares, each with its own meaning, symbolizing a long story of love and appreciation. This “Jiugongge” element is also incorporated into the restaurant’s interior design and the bento boxes.

Based on the case study analysis, I focused on strategies that enhance the restaurant’s aesthetics. From space planning to material selection, I ensured the design addresses the needs of the target audience.

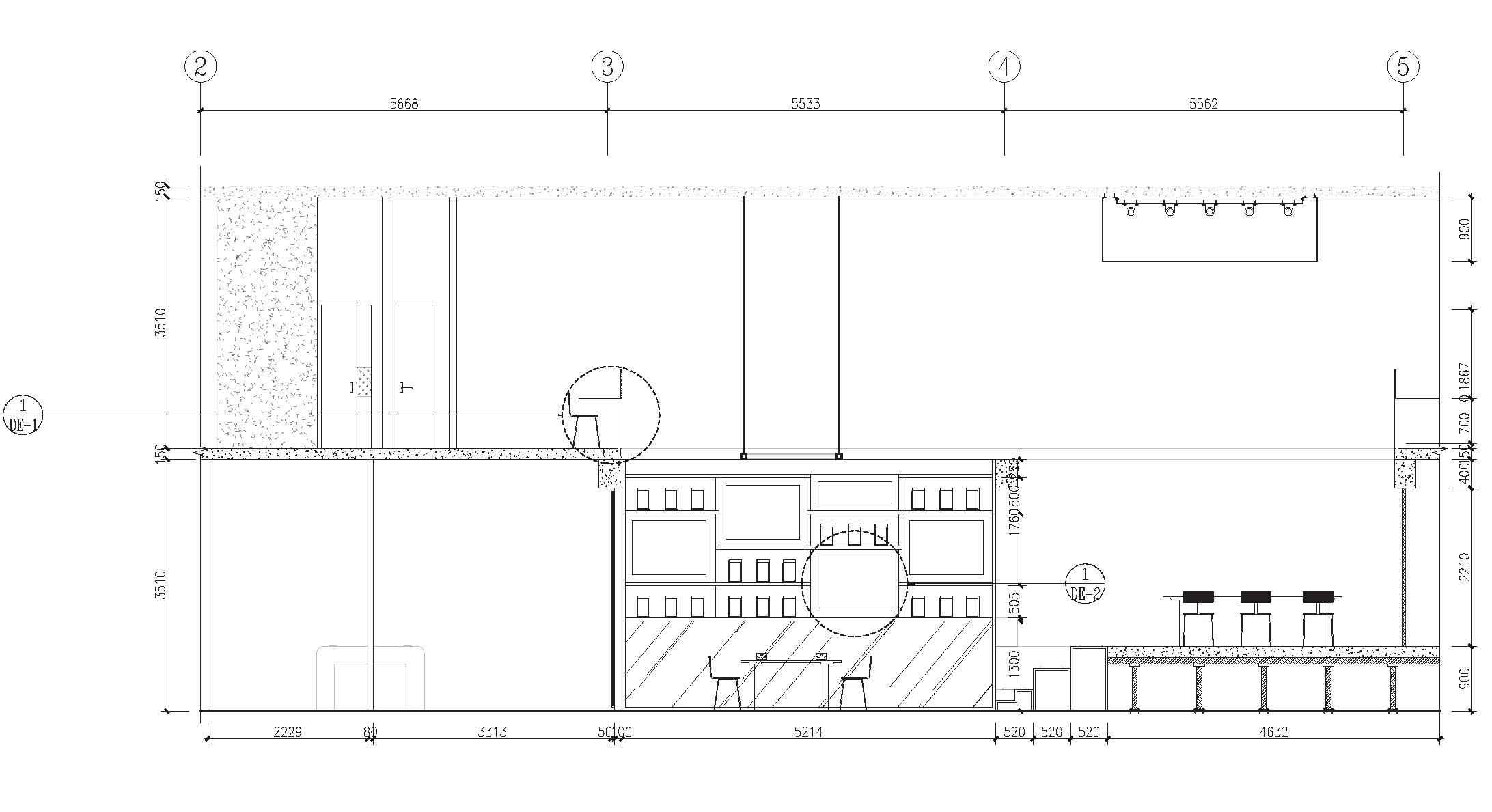
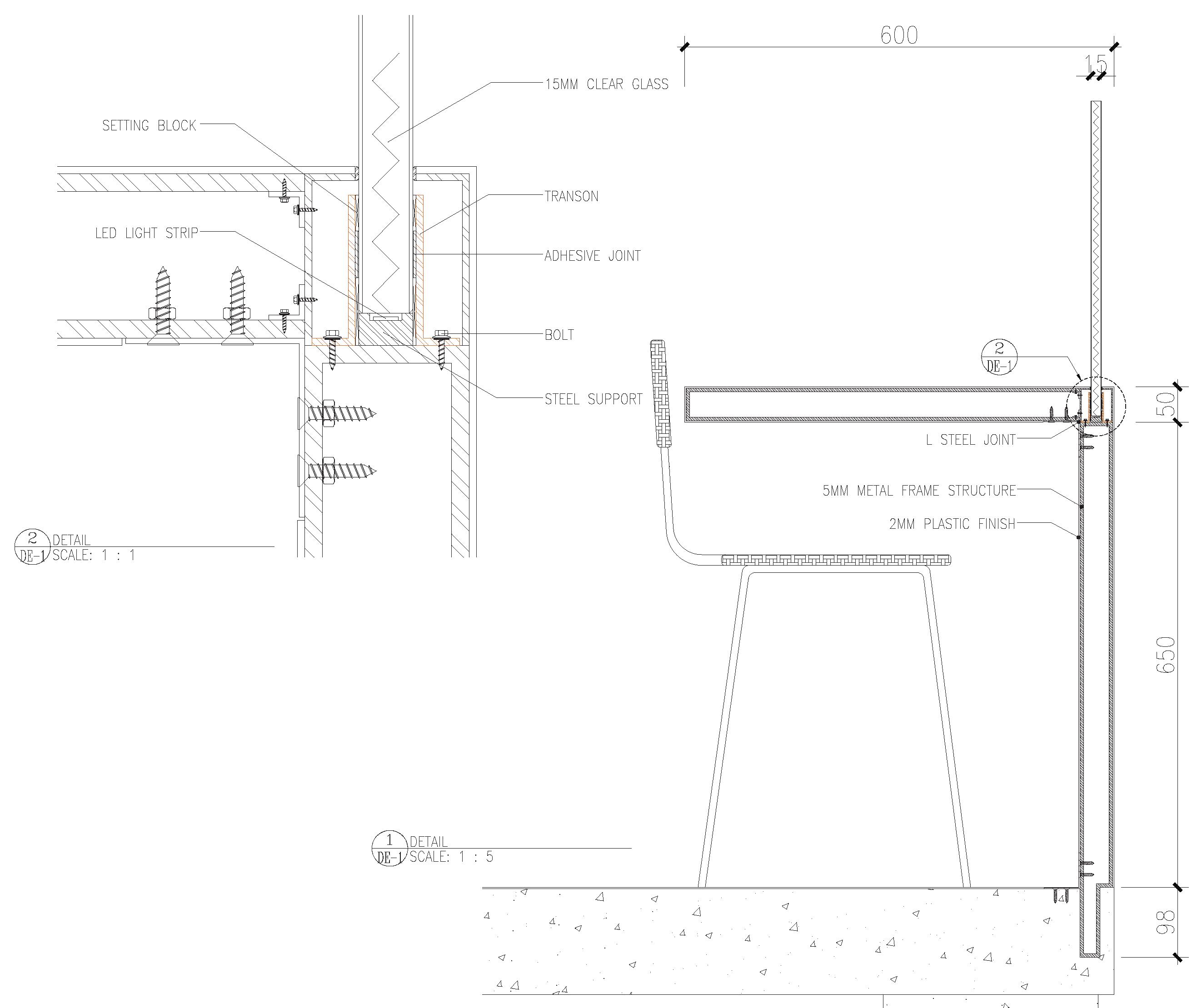
Dinning Area

The package also includes menu design for the client, incorporating visual elements that reflect the restaurant’s theme and brand identity. This cohesive approach ensures a seamless dining experience, from the ambiance and decor to the presentation of the menu, aligning with the overall concept and target audience’s preferences.

ADIDAS SOURING DEPARTMENT

In this office design project, the goal is to create a flexible workplace environment while maintaining the brand identity.

Pantry Area

Project Type | Individual

Location | Kin Tak Fung Industrial Building, Hong Kong

This time, I chose Adidas as my client. While delving into the brand’s rich and successful history, I established “UNBEATABLE” as my design concept. The installation in the center of the office represents DIVERSITY, MOMENTUM, and UNIVERSAL.

The site is a two-floor office located in Kowloon, Hong Kong, offering a clear view of Victoria Harbour. Therefore, harnessing natural light was pivotal for this project.

Induction Hall
9/F Floorplan
10/F Floorplan

THOMAS LO

SELECTED WORK 2022-2024

Turn static files into dynamic content formats.

Create a flipbook
Issuu converts static files into: digital portfolios, online yearbooks, online catalogs, digital photo albums and more. Sign up and create your flipbook.
ThomasLO Selected Work | 2024 by Thomas Lo - Issuu