CÔNG TRÌNH THƯƠNG MẠI - CHỢ GA BALTIC

Page 1

CÔNG TRÌNH THƯƠNG MẠI - DỊCH VỤ

GVHD : THS.KTS. VĂN TẤN HOÀNG SVTH: KHƯU TẤN THIỆN 20510101808

TRƯỜNG ĐẠI HỌC KIẾN TRÚC TP. HỒ CHÍ MINH KHOA KIẾN TRÚC

ĐỀ TÀI (STT 71)

CHUYÊN ĐỀ SỐ 1: LOẠI HÌNH CHƠ TRUNG TÂM/ CHỢ KẾT HỢP CHỨC

NĂNG ĐẶC THÙ: DU LỊCH, CHỢ NỔI, CHỢ BIÊN GIỚI, HỘI CHỢ, ...

BALTIC STATION MARKET - CHỢ GA BALTIC ( CHỢ TRUNG TÂM KẾT HỢP DU LỊCH CỦA THÀNH PHỐ BALTIC, TALLINN )

5.

PHÂN TÍCH CÔNG TRÌNH
Giới thiệu
quát
I.
1.
tổng
công trình
dây chuyền
dụng của công trình
Sơ đồ các luồng giao thông (khách – hàng hóa – thoát hiểm) của công trình 4. Khu vực đậu xe của công trình
2. Sơ đồ phân khu chức năng -
sử
3.
Hệ thống phố chợ xung quanh nhà lồng chợ 6. Các hệ thống kỹ thuật 7. Giải pháp kết cấu mái của kiến trúc nhà lồng chợ của công trình 8. Trình bày giải pháp hình thức kiến trúc 9. Các trang thiết bị, các chi tiết cấu tạo đặc biệt của công trình 10. Tính toán hệ thống giao thông của công trình 11. Sự kết nối cộng đồng và mắc xích trong phát triển du lịch của Chợ Ga Baltic II. KẾT LUẬN 1. Các đặc điểm nổi bật, các ưu và khuyết điểm của công trình 2. Xu hướng mới của đô thị hiện đại và lớn: Chợ kết hợp với siêu thị, Chợ kết hợp với không gian cộng đồng MỤC
LỤC
TÀI
LIỆU THAM KHẢO

1.

thiệu tổng quát công trình

BALTIC STATION MARKET - CHỢ GA BALTIC

VỊ TRÍ: Tallinn, Estonia

NĂM XÂY DỰNG: Năm 2014

NĂM HOÀN THÀNH: Tháng 5 năm 2017

DIỆN TÍCH XÂY DỰNG: 25 000 m2

SỐ TẦNG: 3

THIẾT KẾ KIẾN TRÚC: KOKO Architects

THIẾT KẾ NỘI THẤT : Kärt Loopalu

THIẾT KẾ CẢNH QUAN: Eleriin Tekko

i. PHÂN TÍCH CÔNG TRÌNH
01 Baltic Station Market I Công trình thương mại dịch vụ Chương I: Phân tích công trình
Giới

1. Giới thiệu tổng quát công trình

BALTIC STATION MARKET - CHỢ GA BALTIC

Chợ ga Baltic nằm ở phía bắc Tallinn, giữa ga xe lửa chính của thành phố và khu dân cư nổi tiếng Kalamaja. Khu chợ hoài cổ, nổi

tiếng từ năm 1993 vì mang đến những trải nghiệm kỳ lạ thời hậu Xô Viết - đặc biệt đối với khách du lịch,

hấp dẫn với nhiều mặt hàng đa dạng. Ngoài các cửa hàng tạp hóa có giá hợp lý, du khách có thể tìm thấy bất cứ thứ gì từ quần áo

dùng hàng ngày và đồ chơi cho đến các phụ kiện vệ sinh, dụng cụ và thiết bị ống

dân địa phương cũng như khách du lịch yêu thích.

i. PHÂN TÍCH CÔNG TRÌNH
02 Baltic Station Market I Công trình thương mại dịch vụ Chương I: Phân tích công trình
điển thời
đồ
nước
qua
quầy hàng đồ cũ là mỏ
trương đã thu hút khoảng 230.000 du khách và khu chợ đã trở thành trung tâm thực
của cộng đồng nơi đây - được người
khá
cổ
Liên Xô,
đã
sử dụng. Các
vàng dành cho những người hâm mộ âm nhạc và quần áo cổ điển. Tuần khai
sự
CHỢ GA BALTIC GA TÀU BALTIC 03 Baltic Station Market I Công trình thương mại dịch vụ Chương I: Phân tích công trình KHU DÂN CƯ Mục đích của việc thiết kế lại khu ga tàu cũ thành khu chợ trung tâm là tạo ra một khu chợ hiện đại và đa dạng, đồng thời bảo tồn nét lịch sử của khu chợ với tất cả tính chất hối hả, nhộn nhịp và hỗn loạn của nó. Với bối cảnh lịch sử có sẵn để thu hút đối tượng mục tiêu rộng nhất có thể từ hành khách du lịch đi đường sắt đến cư dân địa phương, thanh niên đến khách du lịch và tất cả những người tình cờ đi qua khu vực. Tạo thành một khu chợ trung tâm đặc sắc thu hút khách du lịch đến với Tallinn. i. PHÂN TÍCH CÔNG TRÌNH 1. Giới thiệu tổng quát công trình BALTIC STATION MARKET - CHỢ GA BALTIC

2.1 DÂY CHUYỀN SỬ DỤNG

i. PHÂN TÍCH CÔNG TRÌNH 2. sơ đồ phân khu chức năng - dây chuyền sử dụng của công trình
CHỢ NGOÀI TRỜI BÃI XE NGOÀI TRỜI BÃI XE TRONG NHÀ NHÀ HÀNG KHU FITNESS BÁN HÀNG TRONG NHÀ KHO HÀNG QUẢN LÝ SẢNH NỘI BỘ KHU KĨ THUẬT XỬ LÝ RÁC BÃI NHẬP BÃI XUẤT QUÃNG TRƯỜNG TRƯỚC QUÃNG TRƯỜNG SAU LỐ VÀOKHÁCH LỐ VÀOKHÁCH LỐ VÀOKHÁCH LỐ VÀOKHÁCH L Ố I V À O K H Á C H L Ố I V À O N H Â N V I Ê N 04 Baltic Station Market I Công trình thương mại dịch vụ Chương I: Phân tích công trình
05 Baltic Station Market I Công trình thương mại dịch vụ Chương I: Phân tích công trình ĐỖ XE FITN ESS KHO KT SIÊU THỊ CHỢ MỞ WC KHU BÁN LẺ 15% 5% 2% 5% 10% 15% 1% 20% 3% 5% 6% CHỢ ĐỒ CỔ NHÀ HÀNG NGOÀI TRỜI MẶT BẰNG TẦNG HẦM TL 1/100 i. PHÂN TÍCH CÔNG TRÌNH 2. sơ đồ phân khu chức năng - dây chuyền sử dụng của công trình 2.2 PHÂN KHU CHỨC NĂNG
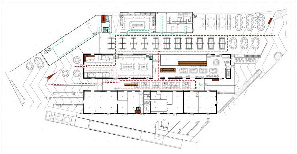
06 Baltic Station Market I Công trình thương mại dịch vụ Chương I: Phân tích công trình ĐỖ XE FITN ESS KHO KT SIÊU THỊ CHỢ MỞ WC KHU BÁN LẺ 15% 5% 2% 5% 10% 15% 1% 20% 3% 5% 6% CHỢ ĐỒ CỔ NHÀ HÀNG NGOÀI TRỜI MẶT BẰNG TẦNG TRỆT TL 1/100 i. PHÂN TÍCH CÔNG TRÌNH 2. sơ đồ phân khu chức năng - dây chuyền sử dụng của công trình 2.2 PHÂN KHU CHỨC NĂNG
ĐỖ XE FITN ESS KHO KT SIÊU THỊ CHỢ MỞ WC KHU BÁN LẺ 15% 5% 2% 5% 10% 15% 1% 20% 3% 5% 6% 07 Baltic Station Market I Công trình thương mại dịch vụ Chương I: Phân tích công trình CHỢ ĐỒ CỔ NHÀ HÀNG NGOÀI TRỜI MẶT BẰNG TẦNG 2 TL 1/100 i. PHÂN TÍCH CÔNG TRÌNH 2. sơ đồ phân khu chức năng - dây chuyền sử dụng của công trình 2.2 PHÂN KHU CHỨC NĂNG

i. PHÂN TÍCH CÔNG TRÌNH

3. khu đậu xe của công trình

TÍNH BÃI

XE THEO QUY CHUẨN ( GIẢ SỬ THEO QUY CHUẨN

B1: Ước lượng số chỗ đậu xe

Cứ 100m2 diện tích sàn sử dụng, phải bố trí tối thiểu 1 chỗ đậu xe:

NAM )

Số xe ô tô = ∑ S sàn / 100m2 = 25000/100 = 250 chỗ đậu xe (theo QCVN 01:2021/BXD)

B2: Tính toán tổng diện tích đậu xe :

∑ S đậu xe = số xe ô tô tính toán x25m2 /ô tô = 250 x 25 = 6250m2

Tiêu chuẩn diện tích số chỗ đậu xe (theo QCVN 01:2021/BXD):

- 25m2 xe ô tô

- 30m2 xe ô tô tải

- 3m2 /xe máy - 0,9m2 /xe đạp

B3 Qui ước tỉ lệ xe ô tô – xe máy : Qui ước tỉ lệ % xe ô tô và xe máy trong TTTM: theo cấp đô thị, chỉ số phát triển kinh tế GDP của mỗi

xây dựng của công trình 40% xe ô tô - 60% xe máy (TP HCM)

B4: Tính toán số chỗ xe ô tô theo qui ước: S đậu xe ô tô theo qui ước = ∑ S đậu xe x 40% = 2500m2 Số chỗ xe ô tô theo qui ước = S đậu xe ô tô theo qui ước/ 25m2 = 2500/25 = 100 chỗ đậu ô tô

B5: Tính toán số chỗ xe máy theo qui ước:

S đậu xe máy theo qui ước = ( ∑ S đậu xe của tòa nhà – S đậu xe ô tô theo qui ước Số chỗ xe máy theo qui ước )/3m2 = 1250m2 đậu xe máy

08 Baltic Station Market I Công trình thương mại dịch vụ Chương I: Phân tích công trình
đô thị, đặc điểm sử dụng, vị trí
ĐẬU
VIỆT

BÃI XE TRONG NHÀ: 135 XE (3500M2)

BÃI XE NGOÀI TRỜI: 20 XE ( 500M2 )

DO THEO QUY CHUẨN CHÂU ÂU GẦN NHƯ PHẦN LỚN LÀ DIỆN TÍCH ĐỖ XE Ô TÔ

B1: Ước lượng số chỗ đậu xe

Cứ 100m2 diện tích sàn sử dụng, phải bố trí tối thiểu 1 chỗ đậu xe:

Số xe ô tô = ∑ S sàn / 100m2 = 25000/100 = 250 chỗ đậu xe

B2: Tính toán tổng diện tích đậu xe :

∑ S đậu xe = số xe ô tô tính toán x25m2 /ô tô = 250 x 25 = 6250m2 > 4000m2 ( Tổng diện tích đậu xe của công trình ) => CÔNG TRÌNH CÓ THỂ THIẾU HỤT CHỖ GỬI XE TRONG

NGÀY CAO ĐIỂM ( ĐIỀU PHỔ BIẾN Ở CÁC CÔNG TRÌNH XÂY DỰNG LÂU ĐỜI Ở CHÂU ÂU )

Khách phải đậu xe ở các bãi xe công cộng chung với các công trình lân cận khác 09 Baltic Station Market I Công trình thương mại dịch vụ Chương I: Phân tích công trình
NHỮNG

- Giao thông ngang trong công trình là hành lang đi bộ, sảnh chính, quanh thông tầng - đường xe nhập hàng, cứu hỏa. - Trong công trình có các nút giao thông được phân tán để chia đều dòng

người tránh bị quá tải cho công trình.

GIAOTHÔNGKHÁCH

GIAOTHÔNGNỘIBỘ

4.2. GIAO THÔNG ĐỨNG

- Giao thông đứng trong công trình là thang thoát hiểm, thang bộ, thang máy, thang cuốn

LỐINHẬPHÀNG L Ố V À O K H Á C H L Ố I V À O K H Á C H L Ố V À O K H Á C H THANG BỘ THANG CUỐN THANG NÂNG HÀNG 10 Baltic Station Market I Công trình thương mại dịch vụ Chương I: Phân tích công trình
PHÂN TÍCH CÔNG TRÌNH 4. sơ đồ các luồng giao công trình
i.
4.1. GIAO THÔNG NGANG

TÀU ĐIỆN DÂN CƯ XUNG QUANH CÔNG TRÌNH

GIAO THÔNG CƠ GIỚI

GIAO THÔNG TÀU ĐIỆN CÔNG VIÊN

11 Baltic Station Market I Công trình thương mại dịch vụ Chương I: Phân tích công trình
PHÂN TÍCH CÔNG TRÌNH 5. hệ thống
i.
phố chợ xung quanh nhà lồng chợ
TRẠM
CHỢ GA BALTIC NẰM TRUNG TÂM GIỮA HỆ THỐNG CÁC NHÀ PHỐ XUNG QUANH NHẰM ĐẢM BẢO BÁN KÍNH PHỤC VỤ CHO DÂN CƯ NƠI ĐÂY. TRẠM GA BALTIC Ở ĐỚI DIỆN KHU CHỢ CŨNG GÓP PHẦN ĐƯA THÊM KHÁCH DU LỊCH ĐẾN VỚI CÔNG TRÌNH NHIỀU HƠN CŨNG NHƯ TIỆN LỢI CHO DÂN CƯ XUNG QUANH DỄ TIẾP CẬN BIẾN KHU CHỢ THÀNH MỘT KHU CHỢ DU LỊCH CỦA THÀNH PHỐ BALTIC

5.

5.1

thống phố chợ xung quanh nhà lồng chợ

phong cách châu Âu cổ kính mang đậm nét kiến trúc b

địa giống với khu Chợ Ga

Các loại hình kinh doanh, dịch vụ: Để tận dụng lượng l

khách du lịch và dân địa phương tập trung tại chợ các n phố xung quanh chợ cũng được thiết kế để trở thành cá công trình thương mại dịch vụ như nhà hàng, quán ăn, b shop quần áo, cửa hàng vật liệu,...

Giải pháp mặt bằng theo hướng mở , với các cửa sổ, khu

cửa lớn và màu sắc rực rỡ để thu hút khách hàng.

i. PHÂN TÍCH CÔNG TRÌNH
hệ
NHÀ
1 2 5 4 12 Baltic Station Market I Công trình thương mại dịch vụ Chương I:
tích công trình
PHỐ XUNG QUANH CHỢ
Phân
i. PHÂN TÍCH CÔNG TRÌNH 5. hệ thống phố
Đối diện với cổng chính của Chợ Ga Baltic là Ga tàu Baltic , một trong những ga tàu lớn nhất của thành phố. Góp phần một lượng khách khá lớn tiếp cận với khu chợ. Khu chợ ga là một trong những điểm dừng chân thăm quan của khách du lịch đến đây để tìm hiểu về kiến trúc và văn hóa của địa phương. 13 Baltic Station Market I Công trình thương mại dịch vụ Chương I: Phân tích công trình
chợ xung quanh nhà lồng chợ
i. P 6 - N + M + M + P Hệ Giả Giả linh
năng
nghị 14 Baltic Station Market I Công trình thương mại dịch vụ Chương I: Phân tích công trình
hoạt): Áp dụng các công trình có không gian MB thay đổi diện tích, chức
sử dụng, cơ cấu phòng ốc linh hoạt: COVP, KS, TM - DV, triễn lãm, hội
i. PHÂN TÍCH CÔNG TRÌNH 6. hệ thống kỹ thuật: Ệ Ố Ấ ƯỚ Thếtbịsửdụngnước Thếtbịsửdụngnước Thiếtbịsửdụngnước Thiếtbịsửdụngnước 15 Baltic Station Market I Công trình thương mại dịch vụ Chương I: Phân tích công trình

- Hệ thống thoát nước + Thoát nước mưa

+ Thoát nước thải sinh hoạt

+ Thoát phân

i. PHÂN TÍCH CÔNG TRÌNH 6. hệ thống kỹ thuật: 6.3
THẢI Thiếtbịsửdụngnước Thiếtbịsửdụngnước
HỆ THỐNG THU VÀ XỬ LÝ NƯỚC
16 Baltic Station Market I Công trình thương mại dịch vụ Chương I: Phân tích công trình
i. PHÂN TÍCH CÔNG TRÌNH 6. hệ thống kỹ thuật: 6.4 HỆ THỐNG ĐIỀU HÒA KHÔNG KHÍ 17 Baltic Station Market I Công trình thương mại dịch vụ Chương I: Phân tích công trình
i. PHÂN TÍCH CÔNG TRÌNH 7. giải pháp kết cấu
Mái Chợ Ga Baltic trước cải tạo (1993) 18 Baltic Station Market I Công trình thương mại dịch vụ Chương I: Phân tích công trình Phần
Baltic được giữ lại từ hiện trạng của Ga tàu cũ và được tu sửa lại thêm một lớp trần lưới gỗ tăng thẩm mỹ cho
trống nâng đỡ, trên mái được khoét các ô lấy ánh sáng tự nhiên cho khu chợ và siêu thị. Mái Chợ Ga Baltic hiện tại
mái CÔNG TRÌNH
mái của Chợ Ga
công trình. Với các cột

giải pháp kết cấu mái CÔNG TRÌNH

Kết cấu kim loại của mái và các

cột thép phân nhánh tạo thành

một tổng thể thống nhất theo dạng lưới. Mái nhà được nâng

dần về phía trung tâm tạo cảm giác mái nhà nhẹ và thoáng

hơn. Mái răng cưa mới được

bao phủ bởi thép sơn màu bền

vững, ít phải bảo trì.

i. PHÂN TÍCH CÔNG TRÌNH
19 Baltic Station Market I Công trình thương mại dịch vụ Chương I: Phân tích công trình
7.
Chi tiếc mối nối cột nâng mái sơ đồ tách lớp mái kết cấu chịu lực

bao gồm một mái dốc thống nhất duy nhất theo hình dạng và kích thước của các tòa nhà ban đầu và

chức năng mới. Giúp công trình bảo tồn được những giá trị văn hóa mang tính lịch sử của Tallinn

Phần mái gấp khúc được thêm vào dựa trên phần mái có sẵn tạo nên những đường nét thú vị độc đáo.

i. PHÂN TÍCH CÔNG TRÌNH 8. giải
20 Baltic Station Market I Công trình thương mại dịch vụ C
mới
cơ bản
một tầng ngầm để chứa các
pháp hình thức kiến trúc 8.1 TỔ CHỨC MẶT ĐỨNG
Mặt tiền kiến trúc chính của chợ được tạo thành từ ba nhà kho đá vôi hai tầng từ những năm 1870. Phần mở rộng
về
CôngtrnhChợGaBaltichiệnnay Côngtrìnhđangđượccảitạo2014

Tầng hầm bao gồm các phòng khu kỹ thuật , bãi xe trong nhà phục vụ hành

khách và một phần của chợ nông sản.

được làm bằng bê tông cốt thép. Bên trong những bức tường đá vôi

lịch sử ở tầng trệt có những cột bê tông để hỗ trợ thêm cho các tấm bê

tông của tầng một. Tầng 1 và khoảng trống giữa các kho cũ được lợp

bằng mái răng cưa lớn.

i. PHÂN TÍCH CÔNG TRÌNH 8. giải pháp hình thức kiến trúc 8.2 TỔ CHỨC KHÔNG GIAN MẶT BẰNG 21 Baltic Station Market I Công trình thương mại dịch vụ Chương I: Phân tích công trình tầng hầm tầng trệt tầng 2 mái ct Tầng trệt chủ yếu dành riêng cho những mặt hàng thiết yếu của khu chợ cũ – đồ cổ, đồ cũ và quần áo – nhưng như một điểm bổ sung mới, còn có đồ thiết
đồ thủ
đồ
Chợ
được
kế,
công và
gia dụng của Estonia.
nội thất
bố trí trên tầng hai trong các tòa nhà được xây dựng lại và giữa chúng. Tất cả các công trình mới dưới lòng đất đều

pháp hình thức kiến trúc 8.3 VẬT LIỆU SỬ DỤNG

Chợ ga Baltic có ba yếu tố xây dựng chính – các bức tường của nhà kho đá vôi lịch sử; kết cấu thép của mái nhà; cột, tấm và tường

bê tông cốt thép. Toàn bộ công trình được đặc trưng bởi việc sử dụng các vật liệu tự nhiên như đá vôi, bê tông, thép, thủy tinh, gỗ và gạch đất sét để lát vỉa hè. Ngoài chất lượng cao và độ bền cao, những vật liệu này còn quen thuộc với mọi người và giúp tạo ra một môi trường ấm cúng.

tường đá voi

cấu thép bê tông bê tông cốt thép

đá
nứa lá đất sét i. PHÂN TÍCH CÔNG TRÌNH 8. giải
tre
22 Baltic Station Market I Công trình thương mại dịch vụ Chương I: Phân tích công trình kết
kính gỗ gạch đất nung gạch đất sét
i. PHÂN TÍCH CÔNG TRÌNH 8. giải pháp hình thức kiến trúc
8.4 THÔNG GIÓ CHIẾU SÁNG CÔNG TRÌNH
thoáng đãng khắp tầng một. Để tận dụng
từ tầng một, một quán ăn và nhà máy bia đã được lắp đặt ở đó, cả hai đều có sân hiên bên ngoài mở
23 Baltic Station Market I Công trình thương mại dịch vụ Chương I: Phân tích công trình Các
được lắp kính của
tự
tiết kiệm điện năng hơn so với ánh sáng nhân tạo
Trần nhà bằng gỗ cao rộng rãi và nhiều ánh sáng tự nhiên tạo ra một môi trường
tầm nhìn tuyệt vời
đón nắng giữa trưa.
khoảng lấy sáng
công trình. Đem đến nguồn sáng
nhiên
i. PHÂN TÍCH CÔNG TRÌNH 8. giải pháp hình thức kiến trúc 8.4 THÔNG GIÓ CHIẾU SÁNG CÔNG TRÌNH

8. giải pháp hình thức kiến trúc

8.5 KHÔNG GIAN BÁN HÀNG MỞ NGOÀI TRỜI, K

Bên cạnh khu chợ ngoài trời ở phía trước là Hommikuv

bên kia của tòa nhà - tên của họ ám chỉ thời gian tốt bằng các đường dốc và sân hiên, có các khu vực ăn u

hàng tạo nên nhiều không gian liên kết cộng đồng cho

trường buổi sáng

i. PHÂN TÍCH CÔNG TRÌNH
Chương I: Phân tích công trình
quảng trường buổi tối
quảng

ÀI TRỜI - MODULE LINH HOẠT THÔNG MINH

hiết kế theo module linh hoạt thông minh có thể sắp xếp theo được các hình dạng khác nhau

bán hàng giúp tiết kiệm diện tích. của thành phố được tổ chức tại chợ các module quầy này cũng dễ tháo dỡ và di chuyển. và cao 1m1.

26 ch vụ
KÍCH THƯỚC MODULE QUẦY CÁC DẠNG SẮP XẾP MODULE

ngày nên cần được thiết kế mở để trưng bày được nhiều sản phẩm nhất có thể

+ Ki-ốt đóng với phần cửa được thiết kế để mở vào, với những vách tường bằng gỗ, kính để có thể cho hệ

động bên trong nhà. Thường sẽ là các cửa hàng quà lưu niệm, hoa tươi hay quần áo may mặc.

i. PHÂN TÍCH CÔNG TRÌNH 9. TRANG THIẾT BỊ CÔNG TRÌNH 9.2 CÁC KI-ỐT BÁN HÀNG CỦA CHỢ GA BALTIC 27 Baltic Station Market I Công trình thương mại dịch vụ Chương I: Phân tích công trình Ki-ốt bán hàng của khu chợ Ga Baltic có 2 loại riêng biệt + Ki-ốt mở với những bức tường đá vô và các ô cửa lớn thường dùng để bán các mặt hàng nông sản, thực phẩm tươi sống hàng
được hoạt
KI-ỐT
KI-ỐT MỞ
thống điều hòa
ĐÓNG
28 Baltic Station Market I Công trình thương mại dịch vụ Chương I: Phân tích công trình i. PHÂN TÍCH CÔNG TRÌNH 9. TRANG THIẾT BỊ CÔNG TRÌNH
Chủ yếu
giống
9.3 KHU BÁN HÀNG SIÊU THỊ:
là dạng siêu thị bán lẻ, kiểm oát bằng cửa từ, giao thông 1 chiều. Nằm trên tầng trệt của chợ , có kho riêng. Cách bố trí
với các siêu thị bán lẻ, bố trí hang hóa trên các kệ và giao thông giữa các kệ từ 600-1200
LỐINHẬPHÀNG L Ố I V À O K H Á C H L Ố I V À O K H Á C H L Ố I V À O K H Á C H NÚT GIAO THÔNG NỘI BỘ 29 Baltic Station Market I Công trình thương mại dịch vụ Chương I: Phân tích công trình i. PHÂN TÍCH CÔNG TRÌNH 10. hệ thống giao thông của công trình - tính toán số lượng thang 10.1 GIẢI
THANG BỘ THANG CUỐN THANG NÂNG HÀNG NÚT GIAO THÔNG NHẬP, XUẤT HÀNG NÚT GIAO THÔNG HÀNH KHÁCH NÚT GIAO THÔNG MẶT BẰNG TẦNG TRỆT
PHÁP BỐ TRÍ CÁC LOẠI THANG:

10.1 GIẢI PHÁP BỐ TRÍ CÁC LOẠI THANG:

Thang cuốn thang trượt: Thang cuốn của chợ kết

hợp siêu thị thường được đặt ở gần vị trí trung tâm

sảnh đón chính.

+ Có 3 kiểu dạng bố tri thang cuốn: 2 hướng lên - 1

hướng lên, vòng tròn

-> tùy thuộc vào chiến lược kinh doanh của TTTM,

kts

đề xuất lựa chọn cách bố trì thang cuốn- thang

trượt

Thang máy nâng hàng: thường bố trí thang máy

bên trong lòi cùng của toàn nhà. Vừa là thang nâng

hàng cho khu vực chợ và siêu thị

+ Thang máy được phân chia, kiểm soát bằng thẻ từ,

bảo vệ để đám báo các luồng giao thông công trình

không trùng lập. + Số cập thang mày sẽ giảm dần vì

tải trọng càng lên trên càng ít.

- Thang thoát hiểm: Bộ trì tại các đầu mút giao thông. đối với công trình chợ bố trí ở trong phần lòi

cứng của công trình. Các thang thoát hiểu phải sử

dụng cửa 2 lớp và bố trí so le nhau nếu 2 thang ngang cách bởi hành lang.

30 Baltic Station Market I Công trình thương mại dịch vụ Chương I: Phân tích công trình i. PHÂN TÍCH CÔNG TRÌNH
10. hệ thống giao thông của công trình - tính toán số lượng thang

LỰA CHỌN THANG CUỐN CÔNG TRÌNH

B1: Lựa chọn công suất tải theo chiều rộng thông thủy (N) thang: N = 600mm, công suất vận chuyên là: 5000-6000 người/giờ N = 800mm, công suất vận chuyển là: 7000 - 8000 người/giờ N = 1000mm, công suất vận chuyển là 8000 – 10.000 người/giờ

B2: Tính toán số người tại khu vực TM – DV: Dựa theo TCVN 9211: 2012): 2,4 doanh/người để tính số người - 2,8m2 DT khu vực

31 Baltic Station Market I Công trình thương mại dịch vụ Chương I: Phân tích công trình i. PHÂN TÍCH CÔNG TRÌNH
10. hệ thống giao thông của công trình - tính toán số lượng thang
kinh D B a vào công suất
thang/giờ (tra bảng chiều r B B G G B đã
tra bảng để c 10.2
của
chọn, căn cứ chiều cao tầng nhà,

thống giao thông

công trình -

thang Thang máy: công thức tính số lượng thang máy theo công thức đối với công trình thương mại dịch vụ cao tầng

B1: Sử dụng công thức tính N ( số lượng thang)

Chú ý: thay đổi kích thước phòng thang nhưng phải đảm bảo 1 trong 2 cạnh thang ≥ 2m =>> N= (25000 x 3 x 0,25)/ (226 x 8) = 3,7 thang =>> Dùng cách 1 để bù thang ta được: công trình có 4 thang máy với 3 thang kích thước 2mx2,5m và 1 thang lớn 2mx3,5m =>> CÔNG TRÌNH CHỢ GA BALTIC

Sau khi tính toán số lượng thang, cần chọn số thang theo nguyên tắc PHÉP BÙ THANG (khác với phép làm tròn thang theo số học) + Cách 1 : thay đổi kích thước 1 trong n số thang đã tính để qui tròn số lượng thang + Cách 2 : thay đổi kích thước tất cả n số thang đã tính để qui tròn số lượng thang

32 Baltic Station Market I Công trình thương mại dịch vụ Chương I: Phân tích công trình i. PHÂN TÍCH CÔNG TRÌNH 10.
hệ
của
tính toán số lượng
10.3 LỰA CHỌN THANG
CÔNG TRÌNH HỆ
TẬP TRUNG NGƯỜI TRONG 5 PHÚT CAO ĐIỂM: 5 - 25%
MÁY
SỐ TỈ LỆ
B2:
ĐƯỢC SỐ LƯỢNG THANG TÍNH TOÁN
THỎA

i.

CÔNG

11. sự kết nối cộng đồng và mắc xích trong phát triển du lịch của chợ ga baltic

Chợ Ga Baltic được lên kế hoạch cải tạo

lại từ 2014 với mục đích biến khu chợ vừa

là một nơi vừa phục vụ nhu cầu mua sắm

của người dân vừa có chức năng như một

điểm đến du lịch hấp dẫn về mặt văn hóa

lịch sử của địa phương. Góp phần kết nói

cách công trình như Phố cổ, Bảo tàng,

Khu nghỉ dưỡng , bến cảng và đặt biệt là

ga tàu điện Baltic như một mắc xích quan

trọng trong kịch bản tham quan của

thành phố Tallinn.

33 Baltic Station Market I Công trình thương mại dịch vụ Chương I: Phân tích công trình
chợ GA BALTIC phố cổ tallinn GA BALTIC cảng tallinn n công viên tt khu nghỉ dưỡng bảo tàng tp
PHÂN TÍCH
TRÌNH

giá công trình chợ ga Baltic

Chợ hòa nhập rất tốt với không gian thành phố xung quanh - một lối vào đối diện với Ga Baltic và lối vào kia mở về phía Kalamaja, và một hệ thống sân hiên ngoài trời có thể đi qua theo nhiều cách khác nhau có thể được tìm thấy ở phía đối diện với Thành phố sáng tạo Telliskivi Bạn hình dung vai trò của khu chợ đối với không gian xung quanh thành phố

Chợ nằm trên tuyến đường sinh hoạt thường ngày của nhiều người. Nó nằm ở một trung tâm

giao thông công cộng và do gần cảng và Phố cổ, thu hút được khách du lịch đến thăm khu chợ này. Thiết kế khu vực giữa đường Reisijate và Kopli

như một lối đi công cộng theo hình dạng một hệ

thống sân thượng được thúc đẩy bởi mong muốn làm cho tòa nhà có thể được quan sát và tiếp cận từ mọi phía

Do chợ được cải tạo lại từ một ga tàu cũ của

Tallinn nên về phần công năng vẫn còn vài nơi vẫn

ƯU ĐIỂM NHƯỢC ĐIỂM NHẬN XÉT II. KẾT LUẬN 1. đánh
hợp lý, bãi giữ xe có thể bị thiếu hụt vào
điểm và hành khách buộc phải đỗ xe tại các bãi xe công cộng khác Nhìn chung công trình Chợ Ga Baltic là một mắc xích quan trọng trong cuộc sống sinh hoạt của người dân không chỉ cung cấp thực phẩm, vật dụng sinh hoạt mà còn là một điểm đến du lịch đặc biệt để mọi người có thể tìm hiểu về lịch sử văn háo Công trình được thiết kế với các không gian công cộng lớn linh hoạt góp phần kết nối được công đồng dân cư nơi đây Việc kế hợp giữa chợ truyền thống và siêu thị đang là xu thế của các nước phát triển góp phần vào phát triển kinh tế đồng thời giữ được văn hóa bản địa của Tallinn.
chưa
những ngày cao

2. xu hướng mới của đô thị hiện đại và lớn: Chợ kết hợp với siêu thị, Chợ kết hợp với không gian cộng đồng

Xu hướng kết hợp chợ và siêu thị với không gian cộng đồng ở các nước phát triển đang ngày càng phổ biến. Điều này không chỉ mang lại lợi ích về mặt kinh tế mà còn cải thiện chất lượng cuộc sống đô thị thông qua việc tạo ra các không gian xanh và tăng cường sự gắn kết cộng đồng. Ngoài ra, việc bảo tồn và phát triển các không gian xanh đô thị cũng được chú trọng như một phần quan trọng trong việc nâng cao chất

lượng sống và hạnh phúc của người dân. Một vài các lợi ích có thể thấy: Tích hợp đa kênh (Omnichannel): Mô hình này kết hợp giữa chợ truyền thống, siêu thị và trung tâm thương mại để tạo ra một trải nghiệm mua sắm toàn diện cho khách hàng. Khách hàng có thể lựa chọn mua sắm trực tiếp tại cửa hàng, trực tuyến qua ứng dụng hoặc website, hoặc kết hợp cả hai.

Đa dạng sản phẩm: Khi kết hợp chợ với siêu thị và trung tâm thương mại, người tiêu dùng có cơ hội tiếp cận nhiều loại hàng hóa khác nhau. Chợ truyền thống thường tập trung vào sản phẩm nông nghiệp và thực phẩm, trong khi siêu thị và trung tâm thương mại cung cấp đa dạng sản phẩm từ thời trang đến điện tử.

Phân phối hiệu quả: Kết hợp chợ với siêu thị và trung tâm thương mại giúp tối ưu hóa việc phân phối hàng hóa. Siêu thị và trung tâm thương

mại có hệ thống lưu trữ và vận chuyển hiện đại, giúp đảm bảo hàng hóa đến tay người tiêu dùng một cách nhanh chóng và an toàn.

Tích hợp dịch vụ: Mô hình này còn kết hợp các dịch vụ khác như nhà hàng, rạp chiếu phim, khu vui chơi giải trí, tạo ra một không gian mua

sắm và giải trí đa năng.

Cạnh tranh và hiệu quả: Kết hợp chợ với siêu thị và trung tâm thương mại tạo ra sự cạnh tranh giữa các hình thức bán lẻ. Điều này thúc đẩy các doanh nghiệp cải thiện dịch vụ, giảm giá cả và tăng hiệu suất kinh doanh

Các chợ kết hợp này không chỉ cung cấp hàng hóa, mà còn tạo ra không gian cho cộng đồng gặp gỡ, thúc đẩy kinh tế và mang lại sinh khí cho cuộc sống xung quanh. Tuy nhiên, việc nâng cấp chợ truyền thống cần cân nhắc giữa hiện đại hóa và

bảo tồn giá trị văn hóa của từng khu vực

II. KẾT LUẬN

tài liệu tham khảo

QC-TCVN:

QCVN 06:2021/BXD - Qui chuẩn kỹ thuật quốc gia về an toàn cháy cho nhà & công trình (tra cứu về yêu cầu thoát người, phòng cháy chữa cháy, kết cấu vật liệu, tính toán số người trong CT)

QCVN 04/2021/BXD: TIÊU CHUẨN BÃI GIỮ XE

SÁCH:

Tài liệu Chuyên đề thương mại THs. KTS Văn Tân Hoàng

https://aasarchitecture.com/2016/08/balti-station-market-koko-architects/

WEB: https://www.inkodu.ee/failid/2017/EAL/KOKO_architects_Baltic_Station_Market_EAL.pdf

https://en.astri.ee/bjt/turust/ajalugu/

https://www.archdaily.com/881525/baltic-station-market-koko-architects?ad medium=gallery

cảm ơn thầy đã xem

Turn static files into dynamic content formats.

Create a flipbook
Issuu converts static files into: digital portfolios, online yearbooks, online catalogs, digital photo albums and more. Sign up and create your flipbook.