PORTFOLIO
THERESA MATHEWS
Interior Architecture & Design
MARYMOUNT UNIVERSITY
![]()
MARYMOUNT UNIVERSITY
+703-789-1440 tmmathews21@gmail.com Annandale VA, 22003 www.linkedin.com/in/theresa-mathews
EDUCATION
ANTICIPATED GRADUATION JUNE 2026
B.A Interior Architecture and Design
Minor - Business Administration
GPA: 3.98
EXPERIENCE
ETD Erin Tripodi Design
Design Intern, Arlington VA | October 2025-March 2026
- Assisted across design phases including material selection, space planning, drawings, and project schedules, and client proposals to communicate design concepts effectively.
SOCIETIES AND AWARDS
Kravet | 2023 Marymount Design of Distinction award
National Society of Leadership and Success
Phi Kappa Phi Honor Society
Phi eta Sigma Honor Society
Dean's List 2022-2024
ACTIVITIES / INVOLVEMENT
- IIDA President Marymount University IIDA MAC Campus Center, 2024-2025
Marymount’s interior design organization - Provides networking opportunities for students within the industry
- ASID & IIDA Student Member
- Women’s Soccer | Marymount University, Division III · Fall 2024 – Fall 2025







NEXT Ad Agency is an independent, global creative advertising agency recognized for its innovative approach at the intersection of advertising, digital, and brand strategy.
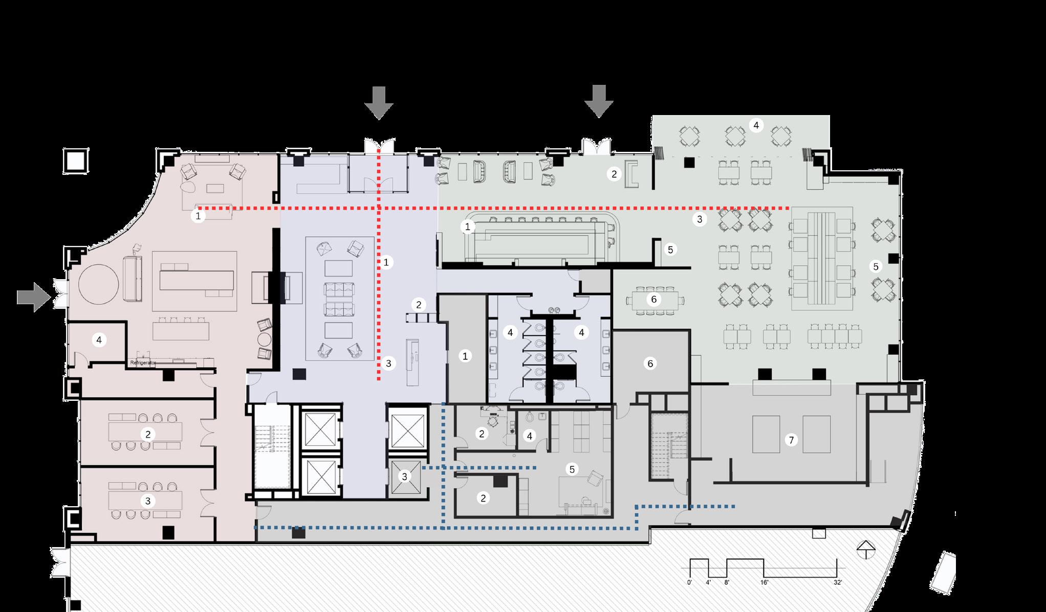
NEXT is expanding its presence with a new office in Chicago, Illinois. This space will accommodate 43 employees, as well as visitors, and feature the flexibility to host events and large client meetings. The design must support seamless virtual integration forremote team members, enabling them to participate in meetings throughout the day.
Located in Chicago the design of this workplace is inspired by the historic and functional layout of the cities urban grid.
The design utilizes the rectilinear shape of the building as an organizing framework to structure and aligns space that is easily readable.
It aims to reflect the city’s easy-tonavigate streets and its connection to a vibrant community created by the grid. In doing so, the design means to increase mental clarity, productivity, and opportunities for social collaboration through its orderly structure within an upbeat, fast-paced, technologydriven environment.



1. Reception
2. Resource Center
3.Media Department
4.Digital Marketing Department
5. Creative Department
Card - Sound Studio
Private Office
Phone Room


Client Presentation The parti directly aligns with the building’s geometric form, maintaining coherence between



The node space serves as a collaborative and rest area, offering team meeting zones, phone rooms, private workspaces, and opportunities to take a break from the desk. Strategically located at a crossroads within the office grid, it functions as both a place for connection and informal interaction, supporting collaboration and movement in the workplace.
Comfort: Wellbeing and Rejuvenation Productivity: Collaboration and Focus Control: Choice Over Work
Belonging: Community and Trust
- Double-height ceilings to create openness and visibility.
- Team meeting spaces near each zone to encourage interaction.
Productivity: Collaboration and Focus
- Team meeting rooms for group work.
- Lounge spaces with modular screens for informal collaboration and brainstorming.
- Formal meeting rooms with professional setups.
- Modular walls to open up or define spaces as needed.
Safety: Physical and Psychological Security
- Natural elements (light, ) to reduce mental fatigue.
- Private spaces with inviting furniture and colors to recharge.
- Ergonomic, modular, and sustainable furniture for comfort, productivity, and health.
Comfort: Wellbeing and Rejuvenation
- Wellness rooms and node spaces for rest and focus.
- Plants to improve air quality and create a calming environment.
Control: Choice Over Work
-Flexible private and public workspaces to support different work styles including remote.



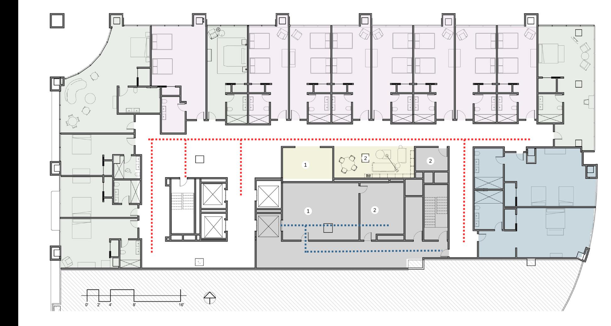
ME + WE Team Home base, focus and collaboration


DIGITAL + PHYSICAL Remote and sideby -side

The double-height space visually and physically connects both levels and their work teams, while bringing more natural light to both flloors.
Different seating types and zones supports connection and spontaneous collaboration, as well as intentional pauses away from the workstation that enhance mental clarity and overall performance.


The color palette is inspired by the site’s connection to Lake Michigan and the colors of the sky found in its stunning sunsets.





Right off of the front reception. It accommodates in-person meetings and inclusive hybrid experiences, strengthening firm culture and professional standards.


The National Gateway building is a largely underused office space that can be revitalized through adaptive reuse. Feedback from local residents and stakeholders indicates a desire for more engaging and interactive spaces within the building and its surrounding. This project proposes transforming the existing structure into a hotel inspired by the Hoxton brand, reinterpreted to suit the particular area. The goal is to introduce a lively destination that activates the site and contributes energy, character, and community connection to the neighborhood.
This design draws from classic English influences, honoring the shared roots between the Arlington and Hoxton name, while introducing a modern sensibility that aligns with Arlington’s fastpaced, contemporary lifestyle. The plan organization aims to emulate the original Hoxton neighborhood in London, where passersby wander past local shops and naturally drift inside, the streetfacing windows reveal active gathering spaces that welcome the community - Exactly what the national gateway community is in need of.




A significant portion of the building remains available for lease. According to the latest leasing information, approximately 247,595 square feet of office space is currently available across multiple floors. This availability indicates that while the building is not entirely vacant, there is substantial unoccupied space, making it a good candidate for adaptive reuse projects.


Generates clean, renewable energy, reducing fossil fuel use and carbon emissions
Rain Water Collection (Non-Potable Use)
Captures and reuses rainwater for non-potable purposes, reducing water waste and demand on municipal







HEALTHY MATERIALS: Low-VOC finishes, formaldehyde-free millwork, and natural durable materials that support wellness.
HEALTHY MATERIALS: Low-VOC finishes, formaldehyde- free mill-work, and natural durable materials.

or shampoo, foam, or water-free solvents as desired. Do not saturate with liquid. Refer to the Cleaning Document PDF

Olive Consult a professional prior to cleaning. For ordinary cleaning, use mild soap and water. For more severe soiling, remove
California Technical Bulletin 117-2013; NFPA 260 Class 1
CAL 117-2013; NFPA 260
Climate Health CARB Compliant|Certified B Corporation|LEED Compliant
Human Health Declare Product Label|Declare Product LabelLBC Red List Free|Health Product Declaration (HPD)|Healthier Hospitals Compliant|LEED Compliant|Low
Climate Health CARB Compliant
Human Health Oeko-Tex Certified
The reception is styled like a traditional English country home, creating a warm, homely atmosphere. for guest and those passing by.
Clean with mild detergent or shampoo, foam, or water-free solvents as desired. Do not saturate with liquid. Refer to the Cleaning Document PDF
https://www.ma terialbank.com/ carnegiepigment856236?activeC
-
https://www.ma terialbank.com/ carnegiepigment856236?activeC
https://www.ma terialbank.com/l ebatex-camila1100000?active Child=673159
Morel WS, 20% Bleach CAL TB 117; ASTM E84
https://www.ma terialbank.com/l ebatex-camila1100000?active Child=673159 Bar,

Woven;

Adhered; UFAC Class 1; MVSS 302
Cleaning code-S CA TB 117-2013, UFAC Class I, IMO FTPC Part 7 (Drapery), AB2998

Cleaning code-S CA TB 117-2013, UFAC Class I, IMO FTPC Part 7 (Drapery), AB2998

6 Clean with mild detergent or shampoo, foam, or water-free solvents as desired. Do not saturate with liquid. Refer to the Cleaning Document PDF for more information
California Technical Bulletin 117-2013; NFPA 260 Class 1
Climate Health CARB Compliant|LEED Compliant
Human Health Formaldehyde Free|LEED Compliant|Low Emitting/Low VOC|PVC free|UL GREENGUARD
Social Health & Equity LEED Compliant
Oeko-Tex Certified, 89% recycled polyester, Eco / Environment Plus, AB2998 Compliant – Chem Free
Oeko-Tex Certified, 89% recycled polyester, Eco / Environment Plus, AB2998 Compliant – Chem Free
Climate Health CARB Compliant|Certified B Corporation|LEED Compliant
Human Health Declare Product Label|Declare Product LabelLBC Red List Free|Health Product Declaration (HPD)|Healthier Hospitals Compliant|LEED Compliant|Low Emitting/Low VOC
https://www.ma terialbank.com/ architex-classic642067?activeC hild=297415&ite
Two staple elements of the Hoxton brand is having the reception desk off to the side to avoid feeling intimidating, and the “Hox Shop” which sells Hoxton merchandise alongside local community creations.
https://www.ma terialbank.com/ architex-classic642067?activeC hild=297415&ite
https://www.ma terialbank.com/f abricut-contractinfinity-velvet2830098?active
https://www.ma terialbank.com/f abricut-contractinfinity-velvet2830098?active
https://www.ma terialbank.com/ carnegiepigment-856236

Anthracite , Grey natural clay products



Dense, nonporous, and heatresistant Made from natural, abundant materials (clay, minerals) Extremely durable and long-lasting, reducing replacements Low-maintenance and VOC-free
https://www.old eenglishtiles.co. uk/tile-designs/
https://brickcityt ile.com/classicparquet-chiaro36x36/

FSC® Certified (Forest
https://www.old eenglishtiles.co. uk/
https://www.ma terialbank.com/f abricut-contractinfinity-velvet2830098?active
https://www.ma terialbank.com/f abricut-contractinfinity-velvet2830098?active
https://www.ma terialbank.com/ carnegiepigment-856236

The restaurant occupies the street-facing window wall, and unitlizes modular, fully opening doors to blur the boundary between indoors and outdoors. This is meant to encourage those passong by to enter and activate the hotel’s connection to the neighborhood.


The Apartment is a meeting & events space that’s part of many Hoxton hotels worldwide.
It is centered around a communal pantry / kitchen area stocked with free-to-grab teas, coffee, snacks and fruit by day, which in the evening can transform into a private bar.
The space is designed for flexibility, accommodating meetings, private dinners, social gatherings, celebrations.
Individual rooms may be rented separately, or the full apartment can be hired for larger events.

The bar is located directly off the lobby and connects to the restaurant. The bar features white marble counter tops, a custom and a built-in foot rail. Other details include a ceiling with English tile motifs and exposed wood beams to bring alive the

custom liquor display, a dedicated staff back bar, the character of Hoxton Gemens..





The 10th & Page neighborhood in Charlottesville, Virginia, is a historically significant African American community that has experienced significant socioeconomicchanges,including gentrification, displacement, and health disparities. These challenges have created a need for equitable spaces that promote health, cultural preservation, and intergenerational connection. The goal for this project was therefore to create a geriatric care and community center.
As a child, the cul-de-sac was the place where all the neighborhood kids met without planning, where games started, and friendships formed. From that shared space, we’d wander back to each other’s houses sometimes through the front door, sometimes slipping quietly in through a backyard gate. There was a sense of childlike trust, comfort, and easy belonging.
This project is built on that memory. There is a central gathering space acting as the cul-de-sac and surrounding it are neighborhood homes”: activity rooms and program spaces where people of all ages can join together.


UVA’s expansion and growing economic footprint have played a large role in shaping the development of 10th and Page, with the neighborhood’s location between UVA and downtown.
SITE LOCATION
• 946 Grady Ave, Charlottesville, VA 22903
TOPOGRAPHY
• Flat with minor elevation changes. Some green spaces, but limited large parks within the neighborhood.
• Nearby McIntire Park and Booker T Washington Park provide access to nature.
Downtown Mall is one of the longest pedestrian malls in the country, featuring over 150 bars, restaurants, shops, and vintage stores, along with attractions like the Virginia Discovery Museum, live music at the Jefferson Theater, and the Ting Pavilion.
The 10th and Page neighborhood in Charlottesville has a strong historical and cultural identity rooted in Black homeownership and community resilience. However, gentrification has introduced tension between long-time residents and new developments, creating challenges for preserving the area's legacy. The close-knit community, supported by active neighborhood associations, works to advocate for preservation amid these changes. The psychological impact of redevelopment is also notable, as the transformation of historical spaces raises concerns among residents about losing their cultural landmarks and a sense of belonging.
The gallery space honors the 10th & Page community by showcasing elements within its history, key milestones, and resident achievements, while also celebrating the building’s own legacy. It serves as a visual archive that fosters pride, belonging, and continuity.

Model of Charlottesville and key historical locations in the neighborhood
















This space is available for town hall meetings, plays, dance, workshops, and other gatherings. Its adaptable layout and facilities support a wide range of activities.

Modular doors that can close or be folded completely into the wall for large community events


Stage has back ramp access that leads to backstage, providing easy and accessible performance entry

The radial ceiling, with a central skylight, represents sunbeams shining down, while the life below - people and greenery reflects growth and vitality of the neighborhood

Structural elements turned into opportunities for intimate seating, encouraging quiet reading, exploration, and a sense of retreat within the larger, active environment Reading Spot
This central activity space serves as the heart of the facility, featuring a learning lab, community kitchen, and a versatile studio for exercise, dance, and other programs.
Way-finding in the flooring, leading visitors from reception through the corridor to each exam room where the doors are numbered and highlighted for patients to easily remember and find
Kids corner
Comfortable space for children to play or read while families are in the clinic. With toys, books, and soft seating

The clinic is organized using an onstage/off-stage planning strategy, which clearly separates patient-facing areas - such as reception, waiting, and exam rooms - from staff and support spaces. This approach allows patients to move through a calm, intuitive, and welcoming environment, while backof-house functions remain discreetly out of view. By minimizing visual and physical overlap between public and operational zones, the layout is meant to enhance privacy, reduce stress, and create an easier experience for visitors.
At the same time, it supports staff efficiency by supporting workflows, improving circulation, and allowing clinical and administrative tasks to occur without interruption, ultimately strengthening the overall functionality of the clinic.


East corridor elevationWay-finding



