Theresa Kraft Architecture Portfolio

Page 1

THERESA KRAFT PORTFOLIO 2022

02 TABLE OF CONTENTS 01 PROJECTED SPACE LIGHT VESSEL COURTYARD/PAVILION 03

01

PROJECTED SPACE

The project focused on exploring themes from the original painting and playing with new possibilities. Using the selected work and improvising to create a new image. Then finding new forms or volumes in some places and planes. Through the process of buidling on or modifying one aspect for a certain effect, while allowing other aspects to remain mostly unchanged. The final model should contain elements that are in the foreground, background, or overlapping.

CARLOS MÉRIDA EN TONYO MAYOR

REPRODUCTIONS

01

FINAL MODEL

01

02

LIGHT VESSEL

The goal of this project was to play with light and shadows to animate a particular space. By exploring, controlling, and containing different light qualites. I decided to experiment with the physical aspects and materials to see how that effects the space. The final design allowed a different take on how light creates the space.

LIGHT STUDY

02

PLAN/SECTION CUTS

02

03

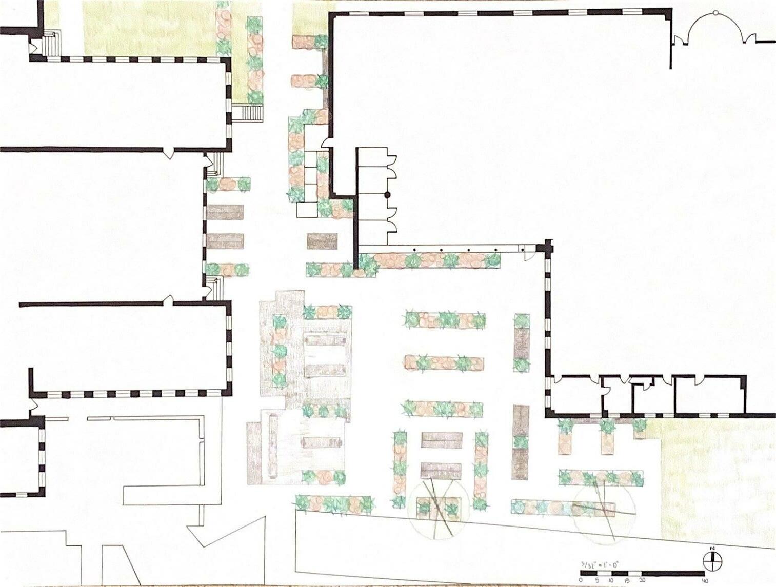
COURTYARD/PAVILION

This space is designed for a specific spot between the architecture building and library at the University of Detroit Mercy. Taking into account the requests of a variety of people around campus, this design is fit for all.

03 STUDY MODELS

03 STUDY MODELS

03
SITE PLAN
03 SECTION
CUTS

Turn static files into dynamic content formats.

Create a flipbook
Issuu converts static files into: digital portfolios, online yearbooks, online catalogs, digital photo albums and more. Sign up and create your flipbook.