Theodore Wong Portfolio 2024

Page 1


portfolio 2024 theo wong

About Me

I have been working as an Intern architect for five years and completed my Master of Architecture as part of the charter class of the new Laurentian Architecture school in Sudbury, Ontario. The curriculum at the school combines elements of critical design thinking, and design-build, while working with real communities and projects in Northern Ontario.

As a result, I have developed a passion for unique architectural design, focused upon program and space. The experience of the architecture becomes precedent within the boundaries of structure and cost.

My experience as the President of Laurentian Architecture Student Association has allowed me to engage with the growing student body and develop a supporting foundation for the school and students of Laurentian Architecture.

In the rare opportunity of having spare time during school, I enjoy cooking, wood working, and digital art. Currently, I have an interest in programs influencing architectural visualization (Rendering, Virtual Reality, Artificial Intelligence, etc,). This has led to a unique style of architectural design and presentation using a broad range of digital skills and visual programs.

Presently I am looking for a full-time Intern Architect position.

www.theodorewong.com

experience

Intern Architect | Asquith Architecture | July 2023 - May 2024

• Create drawings, 3D-models,and renderings for client projects during the schematic design phase

• Develop and review architectural drawing sets for RZ, SPA, tender, and construction

• Monitor construction administration and site reviews during construction phase

• work closely with clients and consultants to identify project design, goals and milestones

Intern Architect | RAW Design Inc. | July 2019 - May 2023

• Lead multi-residential projects through Rezoning, SPA and Permit Drawing phases as Project Manager

• work closely with clients and consultants to identify project design, goals and milestones

• Create drawings, models, diagrams and renderings for competitions and client projects.

• Develop efficency strategies to streamline design procedures, including, shadow studies and site stats

• Manage co-op students task and responsibilities

Architectural Intern | Practice for Architecture and Urbanism (PAU) | May 2018 - August 2018

• working with project team on design development projects, and competitions, Domino Sugar Refinery, JFK Towers at Schuylkill Yards, New York Penn

• Creating drawings, models and diagrams

• Generating final renderings and perspectives

• Producing presentation and meetings documents

Architectural Assistant | KPMB Architects | January 2018 - April 2018

• working with project team on design development projects, Dar tmouth College, Hudson Yards

• Generating diagrams and renderings of facade options

• Producing presentation and meetings documents

Summer Intern | Asquith Architecture | Summer 2016 / 2017

• Schematic design of residential buildings

• Generating floor plans, elevations, and sections

• 3-D Modelling and rendering of design concept

• Producing construction drawings and details

Exhibit Project Designer | Dynamic Ear th / Science Nor th | May 2015 - August 2015 / February 2016 - 2017

• Design elements of Dynamic Ear th’s outdoor expansion

• Design exhibit pieces for outdoor park

• Coordinate materials and cost for exhibit elements

• Redesign of interior layout and office space

• Create architectural drawings and renderings

5795 Yonge Street | Toronto, ON. | M2M 4J3

theodorewong1995@gmail.com | 647 657 3969

President of Laurentian Architecture Student

Association | Laurentian University | 2014 – 2015

• Represent the Laurentian Architecture student body

• Structure and lead association for future growth

• Plan events, fundraisers and tutorials for students

• Communicate with University representatives

education

OAA Intern Architect | 2019 - Present

• Currently registered as an intern architect with the OAA

Master of Architecture | Laurentian University | 2019

• Graduated at Laurentian University in 2019

Bachelors of Architectural Studies |

Laurentian University | 2017

• Graduated at Laurentian University with Honours

software proficiency

• Adobe Photoshop

• Adobe Illustrator

• Adobe InDesign

• Google Sketchup

• AutoCad

• Rhino 3D Modeling

• Revit

• V-Ray/Enscape/ Rendering

• Microsoft Office/Excel

awards & cer tifications

• ACSA 2019 Housing Competition

HERE+NOW: A House for the 21st Century - 2nd Place

• Academic Excellence Scholarship

interest

• Intricate architectural details

• Ar t Installations

• AI influence in architecture

• Digital Ar t references

• References available upon request

The “Millennial” has become a prominent term in today’s society and culture. “Millennials” refers to a generation of young adults born between early 1980s and 2000. Made up of over 92 million people this generation is larger than the Baby Boomers, and have a huge influence on the world’s economy, social policies, culture, and urban fabric. However, Millennials have inherited a different circumstance from the previous generation, dramatically changing the social, cultural, and economic needs of the generation. Challenges such as climate change, the housing bubble, and an inflated economy, influence the possibilities of future home ownership for this generation. Additionally, the element of technology is intertwined with the day-to-day of Millennials. How might technology manifest itself within architecture of the future? And how will architecture adapt to suit the needs and desires of the upcoming generation?

a millennial housing typology

Laurentian University

Thesis Submission | April 2019

Situated in the laneways of Toronto, the contemporary dwelling for millennials will begin to manifest. By defining the current dwelling spaces within existing domestic realms, we can understand their use and necessity to contemporary living. The cost per square foot within the city and the environmental impact of larger homes have led to a design that minimizes the overall floor area of the domestic realm. The living spaces must be prioritized to keep the essential elements of dwelling, based on the needs and requirements of the new generation. By using a modular floor plan similar programs can be combined to use the same floor area, while acting as two separate dwellings, as represented in intelligent spaces. Finally, to place the structure in the laneway typology, the surrounding site and landscape should be accounted for to develop a cohesive architecture.

1. current housing typology
2. defining dwelling spaces
3. prioritizing usages
4. maximizing efficiency of space
5. combining similar programs
6. reinterpreted typology
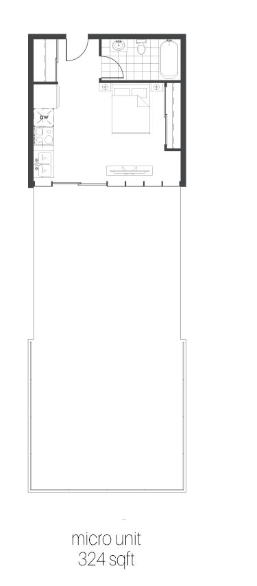
micro unit single unit

family unit multi-generational unit

dress

dress

To develop the concept of a technological architecture, a prototype was created using our own collected data from arduino modules, and was used to generate dynamic floor plans that responded to the specific needs of the user. This research serves to form the framework for adaptable, intelligent spaces integrating technology and space planning in the future of architecture.

TIMBER IN THE CITY: Urban Habitat Competition

Design | Group: Hamza Adenali, Matwij Ferczak, Suvik Patel, Tony Mai | May 2016

Timber Canyon is a unique urban landscape cascading within the dense streets of New York City. This open habitat strives to celebrate, and innovate, through the use of heavy timber technologies. Situated in Manhattan’s lower east side, Timber Canyon aims to restore a previous residence of Delaney Street to affordable living units. These units break down the modern social atmosphere and create a sense of suburbia within the city. Residents are able to escape the noise of the city, as well embrace the community within. The development of recreational, commercial, and cultural spaces become a catalyst for healthy community living. Capturing the cascading view of Timber Canyon, the design serves to revitalize the site as a central hub for the surrounding community.

The project incorporates four different elements into one building including the Underground Lowline Park, Essex Farmers Market, Residential Units, and Andy Warhol Museum. Combining these separate environments into one space, the project aims to revolutionize the way in which we work with timber as well revitalize an urban artifact in the form of community ecology and cultural heritage of lower east side. Introducing the use of CLT to the urban fabric of New York City. The Timber Canyon uses innovative wood construction of large CLT panels for efficiency of construction and maximum structural strength. These large CLT panels as walls create a shear wall condition on the sides of the residence.

above: axonometric section of unit

right: unit layout

below: site diagram

exterior view of museum facade

below: section across museum and park area

interior perspective of museum

recreational space gym and recreation rooms for residence

andy warhol museum central atrium space for large sculptures spanning multiple floors

roof top garden a safe accessible outdoor space for residence

central units

the central building consist of residential units built from four modular designs ranging from single to family rooms

museum exhibits adjacent rooms displaying varying art pieces within the musuem

“cascading” units

residential units cascading down towards the central park area. units are provided with shared green spaces adjacent to or in front of units

perspective of park looking towards residence

exterior view of park area

essex farmers market

the essex market invites visitors along the street to its large open layout, while providing convenience for residentst and the neighboring community

mirror wall

a mechanical glass mirror wall covers the facade as a reflection of the cascading units across . imbedded with transparent solar cells, the wall becomes a source of sustainable energy for the complex

community park

a small community park at the bottom of the complex provides a safe and intimate space for outdoor exploration within the busy city

east wing units

a single wing of units face the east for increased privacy

Residential design | Construction admin | Construction drawings May - August 2016/2017 | June 2023 - Present professional work - asquith architecture

I have had the pleasure of working with the Asquith Architecture team through out many year, and have always had an interest in small scale residential design. During my time at the firm I was responsible for developing and reviewing architectural drawing sets for all stages of the design process. Additional responsibilites included monitoring construction administration and site reviews during the construction phase, while work closely with clients and consultants to identify project design, goals and milestones. I have included two recent projects for reference.

east toronto renovation and addition

I had the opportunity to work on the renovation and addition of an old toronto home near forest hill. The client had a vision for a minimalist and japanese inspired interior, which we were able to achieve through the use of cool tones with warm wood accents. I had the pleasure of working on this project from its initial design phase into construction admin. Below are a few samples from the project.

top: interior rendering of living room bottom: interior perspective of kitchen

bayview point cottage

Bayview Point cottage is a 2 storey new construction project being constructed at the Bay of Lake Huron. This project has a beautiful site facing the lake. The design of the space aims to maximize views to the lake while utilizing a simple palette of colours and materials to create an inviting and warm vacation home. Due to the uniqueness of the natural site, helical piers were used on the site to structure the building. We worked closely with the contractor to develop specific diagrams and construction details to ensure the building was built beautifully.

top: interior rendering of living room bottom: interior perspective of kitchen

RFP/Competition Submission | Schematic Design | Construction admin | Construction drawings professional work - large scale

A collection of work completed at various firms. Duties included, schematic design, drafting, detailing, 3-D modelling, production of final drawings, and rendering. All the work presented in this sample are produced by myself.

JFK Towers schuylkill yards

top-left: isometric of design massing left: facade study

bottom-left: perspective of massing right: schematic floor plans

The initial design proposal for mixed-use towers along JFK Boulevard in Philadelphia. The design intent aims to bridge Philadelphia’s rich history with its burgeoning knowledge-based future. The expression of the buildings celebrate the diverse architectural heritage of Philadelphia, through the materiality of terra cotta.

Office A - Wider Spacing, Modeled Facade

289 christie residential mid-rise

top-left: rendering of street elevation bottom-left: isometric of design massing top-right: schematic floorplan right: elevation drawing bottom-right: section of building

289 Christie is a mult-residential mid-rise development located in Toronto. The development aims to densify the community while respecting the materiality of the surrounding site. My role in the project was the project manager, starting from the conceptual and massing stage and moving the project through 2 stages of site plan approval.

snippets from of Station No. 3

Whitby IFC set including: fire separation diagrams, window schedule, floor plans, building section, stair sections, plan details.

station no. 3 whitby residential mid-rise

Station No 3. is a 6-storey midrise located in Whitby. My role in the project started in schematic design till IFC. Tasks on the project included site stats, door/window schedules, fire diagrams, detailing floorplans and elevations, rendering, stair details, and plan details.

The Burlington Interior Project was a full-scope interior design project of a newly constructed 2 bedroom, townhome. Although many of the finishes of the new unit were brand new, our client wanted a create a design that stood out and reflected their aesthetic taste.

The project consisted of an initial consultation to establish the scope of the project, measurements of the existing site and interior dimensions, materiality and design meetings, and construction budget. Throughout the design process, we provided detailed floor plans, construction drawings, 3D models, renderings, and cost estimates in our presentations to

personal projects

Personal Project Interior Design Project | 2021 - 2022

1450 sqft | Cooke Townhomes | Burlington, ON Interior Design, Construction admin/drawings/pricing Project Budget - $25 000

the client. As the design was finalized, we hired a contractor to help with adding new fixtures, painting, and assembling furniture to complete the home for move-in for the client.

The lattice wood panels became a key element in the design and were constructed ourselves for this project due to product shortage during covid. Through this project, we learned the significant steps and processes of a small-scale renovation project, working with clients and contractors, and managing a design business financially.

Wood Working: Additionally i enjoy designing and building custom furniture pieces in my spare time. Below are a few of my design build pieces I’ve created recently.

top-left: custom desk, monitor shelf and keyboard wrist rest bottom-left: 16’ wood floating tv console

top-right: simple and elegant side table bottom-right: unique plywood dining table

Upon reaching the end of this portfolio, I would like to thank you for your time reviewing my projects and works. I hope this portfolio will inspire innovative ideas in design and architecture.

This portfolio only contains selected works catering to architecture firms and practices. Visit theodorewong.com for a more detailed look at the many projects and designs I have done.

Feel free to contact me at theodorewong1995@gmail.com. I am currently looking for a full-time position as an architectural intern as of 2024.

Once again thank you for your time and consideration,

Turn static files into dynamic content formats.

Create a flipbook
Issuu converts static files into: digital portfolios, online yearbooks, online catalogs, digital photo albums and more. Sign up and create your flipbook.