Escuela de agua

Page 1

PROYECTO ESCUELA DEL AGUA

SANTA ROSA JAUREGUI

[PROYECTO FIN DE CARRERA]

"Escuela del Agua"

Santiago de Querétaro, Querétaro

Semestre Febrero - Junio

2023

PROFESORES

MSc. Urb MaR Diana García Cedujo

Mtro. Arq. Psj. Rodrigo Pantoja Calderón

Mariana Alba

Chacón

Sophia Elise Cano Millikan

ESCUELA DEL AGUA

Instituto Tecnológico y de Estudios Superiores de Monterrey

Escue a de Arquitectura Arte y Diseño

AGRADECIMIENTOS

Arq. Daniela Montoya

Ada Mirtala Mendoza Guerra

Arq. Javier Carmona Campillo

Ing. Antonio Valdés Verduzco

Ing. Eduardo García

ABSTRACT:

"Nunca la sabiduría dice una cosa y la naturaleza otra." - Juvenal El proyecto tiene el objetivo de generar un cambio en el bienestar de los habitantes de Santa Rosa Jáuregui. El enfoque será biofílico y por medio de ingenierías híbridas, ayudando a poner en balance los procesos naturales y la integración humana dentro de estos. La prioridad es la salud fisica y mental de la comunidad y para esto se buscará mitigar los diferentes factores ambientales y sociales que perjudican la calidad de vida Fomentar la cultura del cuidado del agua y el medio ambiente es crucial para el desarroyo del proyecto ya que irá de la mano con el acercamiento y estrategias que se implementarán.

Santa Rosa Jauregui es una comunidad que se ve afligida por fenómenos naturales como inunudaciones y sequias, también, problemáticas sociales y ambientales que incluyen segregación, violencia, inseguridad, contaminación, servicios deficientes, mala gestión de aguas, apoyo gobernamental deficiente, entre otros problemas que afectan a esta delegación haciendo de esta zona un espacio de alta vulnerabilidad.

ÍNDICE: 1 CAPÍTULO 1(contexto) 2 Querétaro en México 3 Santa Rosa Jáuregui en Querétaro 4 CAPÍTULO 2 (localidad) 5...................................................................................... Mancha urbana de localidad 6......................................................................................... Topografía de la localidad 7........................................................................................ Hidrografía de la localidad 8............................................................................................Percepción de Insegurida 10-13................................................................................... Problemáticas ambientales 14-15.............................................................................................. Aspecto social SRJ 16 Escuelas y parques 17-19 Conclusiones 20 CAPÍTULO 3 (sitio de estudio 21-22 Territorialización (vacíos urbanos a considerar) 23 Predio Elegido 24..................................................................................................... Análisis del sitio 25-30.................................................................................... Problemáticas específicas 31.......................................................................................... Condicionantes del sitio 32................................................................. CAPÍTULO 4 (estrategias y proyecto) 33.................................................................................................... Hoy y el mañana 34............................................................................................................. Estrategias 35 Beneficios ecosistémicos 36 Emplazamiento y elementos hídricos 37 Emplazamiento y caminos 38 Emplazamiento edificios 39 Emplazamiento conjunto 40 Justificación de la forma 41 Estrategias en planta/Programa 42-43 Renders 44............................................................................................. Programa primer nivel 45............................................................................................. Programa (afterschool) 46.................................................................................................................. Render 47..................................................................................................Afterschool (cortes) 48-49............................................................................................................ Renders 50.......................................................................................................... Materialidad 51 Detalle Constructivo 52 Relación de programa 53 Fases 54 Stake holders 55 CAPÍTULO 5 (gestión del agua) 56 - 58............................................................................................. Gestión del agua 59................................................................................................... Biofilia y la salud 60 - 62.............................................................................. Revitalización y ecosistema 63 - 72............................................................................................ Manual botánico 63 - 65............................................................................................ Árboles y arbustos 66 - 67.......................................................................................... Plantas sensoriales 68 - 70 Plantas desérticas y semidesérticas 71 - 72 Plantas afines al agua 73 - 74 Referencias
C A P Í T U L O 1 " I N T R O D U C C I Ó N "

QUERÉTARO EN MÉXICO:

De las estadísticas de los países del mundo con mayor estrés hídrico, México se encuentra en el lugar número 24 (veinticuatro) a nivel mundial (N A , 2019) Hemos llegado a este punto a causa de la sobreexplotación , escasez, desaprovechamiento, falta de cultura de su cuidado y contaminación en cuanto el cuidado del agua Esto genera afectaciones severas en la calidad de vida de todos los mexicanos

Al centro del país se encuentra Querétaro, uno de los 32 estados que conforman la república mexicana Conocido por sus bellos paisajes que oscilan de vistas semidesérticas a panoramas boscosos y colinda con la imponente Sierra Gorda, destaca el color y la diversidad que en conjunto empapan de vida la cultura de la región. Santiago de Querétaro, la capital del estado y mancha urbana con mayor desarrollo dentro del territorio se encuentra al suroeste de Querétaro. Actualmente el 87% de su superficie total se encuentra en algun grado de sequía moderada a severa, mientras que 7 de sus presas principales se encuentran en promedio al 20 4% de su capacidad total, de los indicadores más bajos incluso a nivel nacional

(Weller et a ., 2013)

2
Estrés bajo 10% Estrés extremo 80%

SANTA ROSA JÁUREGUI EN QUERÉTARO

De igual manera, Santa Rosa se encuentra en próxima cercanía con las localidades de San Miguelito, Casa Blanca, Cerro Colorado, Estancia de la Rochera y pie de gallo al oeste, al norte Santa Catarina y al este Montenegro, San José Buenavista y La Solana Es importante su cercanía con otras localidades ya que es el punto de unión con el resto de la mancha urbana, asmismo es el punto de la mancha urbana más próximo a la colindancia con Guanajuato, por lo que se considera un gran punto estratégico.

3
4 C A P Í T U L O 2 " L o c a l i d a d "

La localidad de Santa Rosa Jáuregui está situada en el Municipio de Querétaro en el estado de Querétaro Arteaga Hay 22,168 habitantes En la lista de los pueblos más poblados de todo el municipio Al sur se encuentra en colindancia con una de las zonas de más alto desarrollo de la mancha urbana de Querétaro, Juriquilla, lo cual es importante por el contraste que representa para localidad de Santa Rosa Jáuregui, en cuanto a infraestructura, seguridad y calidad de vida.

5
Mancha urbana 1970 Mancha urbana 2000 Mancha urbana 2019

TOPOGRAFÍA DE LA LOCALIDAD

Presas

Líneas topográficas

Escurrimientos

Santa Rosa Jáuregui se encuentra en un punto bajo topógrafico de 1950m sobre el nivel del mar, localizada en la parte baja de la microcuenca de Santa Catarina la cual presenta un relieve relativamente plano con una pendiente del 7% en comparación con el resto de la mancha urbana, por lo cual la zonaes propensa enfrentar inundaciones sobretodo en temporadas de lluvia, principalmente por desbordamiento del dren que atraviesa la localidad. Cabe mencionar que esta localidad se encuentra en una zona natural de captación de agua pluvial por lo que es un punto de recarga importante para los acuíferos

6
Topograf a de Santa Rosa Jáuregui Dren Santa Rosa Jáuregui

HIDROGRAFÍA DE LA LOCALIDAD

El dren Santa Rosa Jáuregui el cual es el cauce principal de la microcuenca Santa Catarina, ubicada al norte de la mancha urbana, nace de esta y se extiende hasta colindar con Santa Rosa Jáuregui atravesándola completamente hasta desembocar en la presa del parque Bicentenario Actualmente gran parte del dren se encuentra canalizado pero aun asi los niveles de agua en temporada de inundación rebasan el límite de su capacidad Como se mencionó anteriormente, el dren representa un alto riezgo de inundación ya que se encuentra en cercanía con áreas de vivienda y zonas de uso cotidiano. A los costados del dren se localizan 3320 habitantes y 729 viviendas, mismas que padecen de mayor o menor magnitud las afectaciones por el desbordamiento de dicho dren.

El Agua de la localidad se obtiene del pozo número 1, el cual se ubica dentro del territorio de Santa Rosa. Debido a la falta de infraestructura y la alta demanda energética la cual se ve en competencia por su cercanía con Juriquilla. Los habitantes expresan que se viven cortes de luz y estos pueden durar días o hasta varias semanas, por lo que a su vez el pozo que funciona por medio de electricidad, deja de abastecerles agua potable, por lo que tienen que pedir pipas de agua, pero expresan que estas no llegan a algunas comuidades dentro de la localidad

Dren San a Rosa Jáuregui
7
Zonas de recarga Áreas inundab es y zonas de recarga de Santa Rosa Jáuregui Dren de Santa Rosa Jáuregui Zonas inundables Escurrimien os

PERCEPCIÓN DE INSEGURIDAD

En la comunidad de Santa Rosa Jauregui, la percepción de inseguridad se ha convertido en un tema preocupante para sus habitantes Esta comunidad ha crecido alrededor de un nodo principal, un lugar socialmente importante que ha concentrado la mayoría de los recursos y servicios Sin embargo, a medida que nos alejamos de este centro, nos encontramos con áreas que sufren de una mayor sensación de inseguridad

Estos lugares más lejanos del nodo principal carecen de la misma atención y desarrollo que se ha centrado en el corazón de la comunidad. La falta de inversión en infraestructuras, iluminación adecuada ha dejado a estas áreas más alejadas propensas a la delincuencia y a la sensación de vulnerabilidad entre sus residentes.

Este problema es especialmente significativo debido a la presencia de colonias en estas áreas más inseguras. Muchas familias se ven afectadas por la falta de seguridad, lo que genera un entorno poco propicio para el desarrollo y el bienestar de sus habitantes.

Dren Santa Rosa Jáuregui
8
Zonas donde se percibe inseguridad Áreas inundab es y zonas de recarga de Santa Rosa Jáuregui Dren de Santa Rosa Jáuregui Áreas de agricul ura Escurrimien os

PROBLEMÁTICAS AMBIENTALES

Las Principales Problemáticas a las que se enfrenta Santa Rosa Jáuregui son ocasionadas por la falta de infraestructura y las inundaciones. Debido al rápido crecimiento urbano que se ha visto en los últimos años, el drenaje pluvial y sanitario ha resultado insuficiente. La construcción de nuevas colonias que carecen de esta infraestructura elevan el numero de descargas y utilizan el único tubo que colocó el comité de colonos de la prolongación independencia hace 40 años, cuando solamente dependian de éste 20 casas.

En algunas zonas éste se encuentra podrido a cielo abierto, lo que ocasiona que en temporadas de lluvia, se junte el agua pluvial con la sanitaria, se llene el tubo de agua y se regrese a las viviendas esta agua contaminada. De igual manera los habitantes expresan que carecen de un sistema de alcantarillado funcional lo que propicia que se desborde del dren en temporadas de lluvia.

10
"Inundación"
Au or anónimo 2021 imagen ex raída de Quadri ín com mx

La población de Santa Rosa Jáuregui se encuentra entre el nivel socieoeconómico de medio a bajo. Esto se ve reflejado en la respuesta interna de acciones provisionales que se toman para enfrentar las inundaciones, tales como barreras de costales o llantas, rellenos con grava entre otros materiales, principalmente residuos de materiales utilizados en la obra. La respuesta externa de acciones tomadas por el municipio conciste en mantenimiento anual del dren entre otras obras de canalización aguas arriba, pero lamentablemente la respuesta en la parte baja del dren es mínima por lo que sus habitantes han tenido que lidear con este problema con sus propios medios y recursos.

En el 2014 se realizó una encuesta por el servicio meteorológico nacional a 120 viviendas en 48 manzanas aledañas al dren en periodos anteriores, durante y después de las temporadas de inundaciones, señalan que las medidas que toman los habitantes para combatir las inundaciones no se realizan antes o después de las temporadas de lluvias, sino que se realizan durante el periodo de inundación.

11
PROBLEMÁTICAS AMBIENTALES
"Acciones provisionales"
Au or anónimo 2017 imagen ex raída de Eluniversal querétaro com mx

En Santa Rosa también encontramos problemas de salubridad, principalmente esto se debe a los metodos de acción contra las inundaciones, ya que en su mayoria al ser desechos de construcción al estancarse el agua es el ambiente perfecto para el desarrollo de especies nocivas para la salud, cono lo son los mosquitos, moscas, ratas entre otros, los cuales pueden portar enfermedades transmisibles a los humanos. Otra afectación que ocurre por la falta de infraestructura, es la contaminacion de aguas negras en el dren, esto genera enfermedades ya que al subir el nivel del agua, sus habitantes están en constante contacto con esta agua contaminada, por lo que hay brotes de cólera, entre otras enfermedades causadas por la contaminacion de esta agua.

De igual manera, el dren al ser visto como un problema, y no haber la sufuiciente infraestructura para la colección de basura, no hay un aprecio y cuidado ni del dren ni del recurso del agua. En ocasiones los habitantes visualizan el dren como un punto de descarga de desechos, un ejemplo es el mercado de la localidad, en el cual no solamente dispone de su basura en el dren sino que también algunos puestos de carne y derivados tiran vísceras, sangre y otros desechos biológicos en el dren creando un foco de enfermedades que principalmente afectan a los niños de la localidad.

12
PROBLEMÁTICAS AMBIENTALES
"Insalubridad"

La falta de cultura del cuidado del medio ambiente es muy poco visible en esta comunidad. Aparte de la disposición de desechos en el dren y otros vacíos urbanos, esta localidad cuenta con muy pocos espacios considerados areas verdes. a pesar de ocntar con 22,168 habitantes de los cuales 26% son niños, sólo cuentan con 3 áreas verdes de uso recreativo.

El cambio de uso de area verde o agícola a area urbana, ha generado que existan nuevas vivendas fuera de los márgenes inicialmente pensados para la localidad, esto se puede observar en algunas viviendas colindantes al dren, ahora este crea una barrera entre el nodo principal donde se llevan acabo la mayorías de las actividades económicas y sociales y las nuevas manzanas construidas las cuales son poco accesibles y cuentan con muy pocos puntos de conexión con el resto de la localidad.

13
PROBLEMÁTICAS AMBIENTALES
"Falta de áreas verdes"
32 14

PROBLEMATICAS SOCIALES SANTA ROSA JÁUREGUI

La población de Santa Rosa conformada por 22,168 habitantes y 5465 viviendas en el 2020, 11,323 de sus habitantes son mujeres y 10,845 son hombres en la localidad el 26% de los habitantes son niñxs de 0 a 14 años de edad, el 28 1% son jóvenes de 14 a 29 años , el 36% son adultos de 30 a 59 años de edad y el 9 3% son personas de 60 años en adelante De estas cifras, tan solo el 31% de la población ha concluido la educación secundaria y la población laboralmente activa mayor de 12 años es de 48 03% según datos extraídos del INEGI Con esto se puede deducir que casi la mitad de la población al llegar a secundaria ya cuenta con empleo, por lo que prefieren dedicarse al trabajo para ayudar a sus familias en lugar de concluir sus estudios posteriores al bachillerato.

Población ocupada laboralmente mayor de 12 años 48 03%

15
31% de las personas han terminado la educación secundaria

ESCUELAS Y PARQUES

La mayoría de las escuelas están ubicadas a lo largo del eje principal de la localidad, aunque algunas se encuentran con menos accesibilidad ya que son separadas del resto por el dren Aunque el número de escuelas sea prominente, los espacios considerados áreas verdes son pocos. Uno de los parques más conocidos en la localidad, El Parque Bicentenario, cuenta con grandes espacios verdes y equipamento de uso recreativo, sin embargo este arque suele ser poco frecuentado por los habitantes de la localidad ya que muchas de sus atracciones se encuentran fuera de servicio, están permanentemente cerradas, aparte de que, aunque la entrada sea gratutita, muchas de las atracciones que si se encuentran en funcionamiento tienen costo, por lo que es atracción turística a visitantes de otras partes de la ciudad que cuentan con los recursos económicos.

Parques

Escuelas
16
Pun os de nterés
Jardín De egaciona San a Rosa Jáuregui Deportiva de Santa Rosa Jáuregui Parque Bicentenario Au or anónimo. 2021 . imagen ex raída de Quadr tín .com.mx Au or anónimo 2021 imagen ex raída de Quadr tín com mx Au or anónimo 2021 imagen ex raída de Quadr tín com mx

¿ C ó m o c a m b i a m o s c o m o l a g e n t e p i e n s a d e l a g u a ?

17

El cambio está en la educación ambiental de las nuevas generaciones, para impulsar el interés en el desarrollo académico, la apreciación y la conservación de la biodiversidad en Santa Rosa. Una de las razones principales que impide que los niños y jóvenes acaben la escuela, es la actitud hacia la escuela Sin embargo, se ha observado que el simple hecho de estudiar en un espacio exterior resulta en actitudes positivas Si se realizan talleres de estudio sobre la biodiversidad, que complementan las clases de ciencias que ya llevan en la escuela, hace relevante la importancia y se ha visto un incremento en interés y desempeño académico al relacionar con situaciones reales de la vida

18
CONCLUSIONES

DESARROLLO SOCIAL

PROBLEMÁTICAS

INSALUBRIDAD

FALTA DE ACCESSO A AREAS VERDES

SOLUCIONES QUE RESPONDEN A LA ESCUEA DE EL AGUA SEGÚN PREMISAS CIUDAD ESPONJA

Programas de limpieza entre comunidad

Areas de ocio y estudio en espacios exteriores

GESTIÓn DEL AGUA

AMBIENTES BIOFÍLICOS

FALTA DE INFRAESTRUCTURA PLUVIAL

INUNDACIONES

TÉCNICAS DE ADAPTACIÓN

Estrategias de infraestructura verde para cambiar el dren

Captación agua pluvial y revitalización de dren

Espacios de apreciación de la biodiversidad

RELACIÓN URBANA

INSEGURIDAD BAJA ESCOLARIDAD

CONCLUSIONES

Al arreglar el sistema hídrico roto con puntos estratégicos de la mano con un sistema académico fortalecido, el cual genera genera nodos de conexión social y ambiental.

Caminos y espacios con permeabilidad visual

Espacios dignos para estudiar

19
C A P Í T U L O 3 " S i t i o d e e s t u d i o " 20

ANÁLISIS DEL SITIO (TERRITORIALIZACIÓN)

Al iniciar la investigación en Santa Rosa se buscaron vacíos urbanos con potencial de intervención que estuvieran en estrecho contacto con alguna problemáticas descritas anteriormente. Los predios elegidos se valoraron en cuanto a la facilidad de intervención, el potencial de impacto positivo en la localidad, el alcance de oportunidades presentadas en los distintos predios según sus problemáticas, potencial de punto de unión pen la comunidad, mayor urgenica y superficie aprovechable Así mismo de los predios considerados, este es el que cuenta con una pendiente más pronunciada y es el punto más bajo de la topografía de la zona

Vacíos urbanos a considerar

1
1. 2. 3.
21 45
4.

VACÍOS URBANOS A CONSIDERAR

22 47
1. 2. 3. 4.

ANÁLISIS DEL SITIO (PREDIO ELEGIDO)

Al avanzar en las etapas de la investigación y amplio análisis de cada zona, se decidió que el mejor punto para ubicar el proyecto según las consideraciones anteriormente mencionadas, sería el predio número 2. En el análisis también se tomó en cuenta la accesibilidad del predio, los puntos de acceso, las conexiones a otros puntos de la localiddad, los caminos que naturalmente tomaban las personas dentro del predio, la dirección del viento, asoleamiento, sensaciones sensoriales como visibilidad, olores y sensación de seguridad, junto con otros factores propios del terreno, como la pendiente, puntos naturales de inundación, vegetación y calidad del agua que llevaba el dren en ese punto especifico de su recorrido.

23 49
Predio elegido

ANÁLISIS DEL SITIO

2. 3. Accesibilidad Dirección del viento Dren Área inundable Caminos pedestres Accesos Malos olores

ANÁLISIS DEL SITIO (PROBLEMÁTICAS)

Dentro de las problemáticas identificadas con base en nuestro análisis general y ahora más específico, destaca la inundación del dren en temporadas de lluvia ya que en el punto específico por donde recorre el dren, en el predio elegido, se encuentra muy próximo a zonas residenciales, escuelas y puntos de actividades sociales como el mercado y el tianguis que se ubica los fines de semana. Asimismo,de los predios considerados, este es el que cuenta con una pendiente más pronunciada y es el punto mas bajo de la topografía de la zona. Santa Rosa Jáuregui, en los meses altos de temporada de lluvia (junio, julio, agosto y septiembre) recibe alrededor de 110 mm cúbicos de agua, en esta zona es específicamente problemático ya que además de su cercanía con viviendas, muchos niños al ir a la escuela deben de rodear las zonas afectadas o deben atravesarlas, exponiendo su salud e incluso sus vidas.

25 53

SECCIONES DEL TERRENO

26 55
Dren Dren Dren
27

ANÁLISIS DEL SITIO (PROBLEMÁTICAS)

A parte de las inundaciones, este punto es el más urgente ya que es donde la red sanitaria converge con el dren, por lo que la calidad del agua es nociva para la salud y la calidad de vida se ve amenazada ya que los olores que se generan en esta zona son casi insoportables. La realidad a la que los habitantes se encuentran familiarizados, los malos olores y las amenazas contra la salud no detienen el ritmo de vida en esta zona

Las personas se reunen los fines de semana en el tianguis que se encuentra a las orillas del dren y salen a dar paseos en las vías sin pavimentar poco accesibles y sin comodidades, los niños juegan en los montículos de escombros y la vida social no se resume. Otro problema que se identificó es la falta de equipamento de descarga de desechos, por lo cual el dren es visto como basurero aparte de las medidas que se toman para combatir las inundaciones

28
29

PROBLEMÁTICAS

Contaminación de área natural / malos olores

Descarga de red hídrosanitaria en dren/ insalubridad

Falta de accesibilidad y espacios caminables

Proximidad con puntos de interés Espacios de reunión carentes

13.
30

CONDICIONANTES DEL SITIO

Topografía

Malos

31 Casa hogar para niñas Deportiva de Santa rosa Jáuregui COBAQ Plantel 9 Colonias Centro de Rehabilitación Tianguis Mercado ICATEQ Plantel Santa Rosa Jáuregui 2. 3. 4. 600m 500m 400m 300m 200m 100m
olores Estancamiento El dren
C A P Í T U L O 4 " E s t r a t e g i a s y p r o y e c t o " 32

HOY Y EL MAÑANA

Espacio seguro para los niños y juventud

Educación y respeto por el medio ambiente

Dignificar espacios

Aplicar las premisas de la ciudad esponja

Crear un punto de conexión para la comunidad

ILa población de Santa Rosa se enfrenta a adversidades que aunque difícil de sobrellevar día a día, se puede solucionar. El porcentaje de población más vulnerable, la cual incluye a niños y jóvenes En el futuro Santa Rosa Jáuregui puede ser usado como modelo, no de ciudad esponja sino también como método de unión dentro de comunidades marginalizadas, afectadas por problemáticas sociales y ambientales

33
9
34
ESTRATEGIAS

A P R O V I S I O N A M I E N T O

Sentidod e pertenenciaApreciacióneinspiraciónhacialanaturaleza

Medicinas naturales Alimento Agua Tratada

Materialesde construcción

Conexiónconlanaturaleza E s icap so d e ivnoc icnev a d i song

Bienes tar fís ico y menta l Fomento delap rendizaje y la cultura delcuidado del medio ambiente

Regeneracióndelosuelos

BENEFICIOS ECOSISTEMICOS

CULTURAL S O P O R T E

Regeneración de lo suelos Espacio para albergar vida silveste

oC n rt o l ed re so i nó Tratamiento del agua Polinización

C o nt r ol d e e r o si ó n

PulmónbiológicoLimpiezadelaire Estrategias para el manejo d e inund aciones

REGULADOR

35

EMPLAZAMIENTO ELEMENTOS HÍDRICOS

36
37 77
EMPLAZAMIENTO CAMINOS

EMPLAZAMIENTO EDIFICIO

38
39 EMPLAZAMIENTO CONJUNTO

JUSTIFICACIÓN DE LA FORMA

40 83
ESTRATEGIAS EN PLANTA/ PROGRAMA 41 Sistema Termograbber Estanque de sedimentación Meadros Humedal Corredor biologico Ciclovia Ruta peatonal Area de recepcion Monticulos botanicos Juegos Juego de caugcho Area de picnic y asadores Jardines contemprativos Jardin botanico Afterschool Programa
1 2
3. 4. 5. 6.
10 11 12. 13. 14. 15. 1 2 3 4 6 7 8 5 10 13 13 13 9 9 11 12 15
7. 8. 9.
42
43

PROGRAMA PRIMER NIVEL

44

ESTRATEGIAS EN PLANTA/ PROGRAMA " AFTERSCHOOL"

45
46

AFTERSCHOOL " CORTES

47 "
48
49

MATERIALIDAD

Triplay de madera de pino aisalnte losa

Estructura vanos de Alumino Losa de lámina de acero Estructura para losa de acero

Muros de gavión 50cmx50x50

Louvers de aluminio 10x20

Madera de pino

Módulos hormigón permeable gris oscuro

Módulos hormigón permeable gris oscuro

Concreto pulido

86 85
50

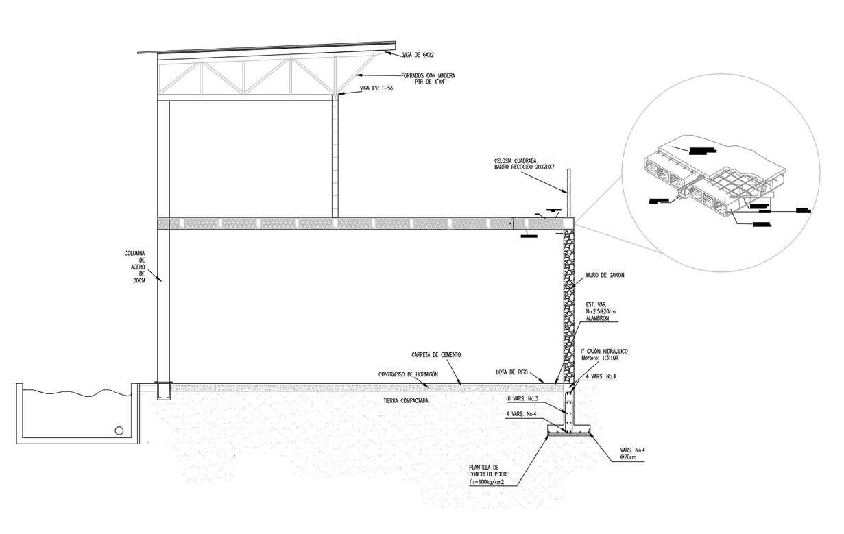
DETALLE CONSTRUCTIVO

51

RELACIÓN DE PROGRAMA

52
BOTÁNICO
DE CAUCHO ÁREA DE PICNIC Y ASADORES ÁREA DE RECEPCIÓN, INFORMACIÓN Y BAÑOS JUEGOS JARDINES CONTEMPLATIVOS HUMEDAL ESTANQUE DE RETENCIÓN MEANDROS CORREDOR BIOLÓGICO
MONTÍCULOS BOTÁNICOS J A R D I N B O T A N I C O J U E G O S D E C A U C H O Á R E A D E P I C K N I C K Y A S A D O R E S Á R E A D E R E C E P C I Ó N , I N F O R M A C I Ó N Y B A Ñ O S J U E G O S J A R D I N E S C O N T E M P L A T I V O S H U M E D A L E S T A N Q U E D E R E T E N C I Ó N M E A N D R O S C O R R E D O R B I O L Ó G I C O C I C L O V I A Y C A M I N O P E A T O N A L M O N T I C U L O S B I O T Á N I C O S * A F T E R S C H O O L * MUCHO NORMAL POCO
JARDÍN
JUEGOS
*AFTERSCHOOL*

FASE 1

Basura

Regeneración del suelo

Separar agua de red hidrosanitaria del dren

Instalación de fosas sépticas

Implementación de estrategias biofílicas/ Ciudad esponja

FASE 2

Facilitar la movilidad por medio de implementación de caminos seguros

Equipamento

Peatonalización

Barreras verdes

FASE 3

Establecer los puntos de convivencia

Adecuar el tianguis

Afterschool

Áreas verdes recreativas

FASE 4

Afterschool

Jardín botánico

P r o g r a m a Proyección en el tiempo 53 FASES 0 1 2 3 4 5 6+

STAKE HOLDERS

itrapmI ic ó n de tallerespropuestos por comunidad

samargorP ercer ta i v o s para la comunidad

ASISTENTES PEDAGÓGICOS

CIUDADANOS

LOCALES

NIÑOS/ JÓVENES

PERSONAL / ASI

ASOCIA CIÓN CIVIL

MANTEN IMIENTO

COMUNIDAD

FAMILIAS / VECINOS

JARDI NEROS

LIMPI EZA

ESCUELAS / COMERCIOS

SEGURIDAD

Juntas mensualesconel comité d e v ce soni Puestos directivos a mi e m b r so ed al dadinumoc nocnóicarobaloC serellat/saleucse amargorp ed odairatnulov

54
T E N T ES
S
VOLUNTARIOS
55 C A P Í T U L O 5 " G e s t i ó n d e l a g u a "

in a l i da d

Aguas de uso municipal

Para uso de riego y abastecimiento público

AGUA DEL DREN

56
Aguas de uso doméstico Aguas de uso municipal Agua de transporte de abastecimiento público 5 DBO < -3 5DBO < -6 3< 5DBO < -6 < 30 5DBO < -30 < 120 5 DBO < 120 (Excelente) (Buena) (Aceptable) (Contaminada) (Fuertemente contaminada) O B J E T I V O
Bioquímica de Oxígeno (Parámetro calidad del agua)
Demanda
F

PLANTA GESTIÓN DEL AGUA CORTES

57

PLANTA GESTIÓN DEL AGUA CORTES

Tu e

Placa de acero noxidable de 6

Perforac ón de 30cm de diametro

Ma la de plástico trenzada de 2m de largo

Pasturas

Compresor Desborde Colas de cabal o Aireador de estanque Capa de cal y arc lla

Agua permeab e

Esp gas de agua Capa super cia sue o

Geotexti mpermeab zante

Geo exti mpermeab l zante

58
Cornuda de agua Bas a Len e l a de Agua Espadaña Berro Falso

La conexión visual y no visual con la naturaleza, las variaciones térmicas y corrientes de aire, la presencia del agua y el panorama natural son los elementos de la naturaleza que más contribuyen a la reducción de estrés, el desempeño cognitivo y el bienestar emocional.

59 BIOFILIA Y LA SALUD

E s p a d a ñ a

S a l v i a

A ñ i l T i m b e

O c o t i l l o

G r a f e n o

P a l o F i e r r o

C a r d ó n P i t a y o

O p u n t i a t o m e n t o s a

H u i z a c h e C r i o l l o

P a t a d e v a c a

E n c i n o

A c e b u c h e

P a l o B l a n c o

de

H u i z a c h e Y ó n d i r o

T e p a m e

a l o B o b o

G u a m u h c i l

P a t ó l M e s q u i t e

P a l o F i e r r o

P a l o B l a n c o

P o c h o t e

Agua Matorrales Cactáceas y Biznagas

Árboles Sensoriales

60
panza Abeja l Lagartija espinoza de duges
Medicinal Ambiental Ornamental Preservación Sombra Sensorial
Aguililla Cola Roja Zorra gris
61

ZONIFICACION DE PALETA VEGETAL

Árboles

Sensoriales

Pastizales

Matorrales

Cactáceas y Biznagas

62
Agua

MANUAL BOTÁNICO

ARBOLES Y ARBUSTOS

ACEBUCHE (forestiera phillyreoides)

Servicios ambientales: Captación de agua pluvial, retención y mejoramiento de suelo. Usos: produce frutos comestibles.

AÑIL: (Cassia didymobotria)

Uso: Usos medicinales, antidoto natural contra picaduras de alacrán, gran antiséptico, cicatriza úlceras cutaneas.

GRAFENO: (Celtis palida)

Usos: sus hojas y ramas pueden servir como alimento para ganado, sus frutos son alimento de diversas especies de aves, reptiles y mamíferos

GRAFENO ROJO: (condalia mexicana)

Servicios ambientales: Alto potencial de cultivo silvícola.

Uso: Propiedades medicinales y frutos comestibles.

HUIZACHE CHINO (Vachellia schaffneri)

Servicios ambientales: Retención del suelo erosionado, filtración de agua y fijación de Co2.

Uso: Leña, propiedades medicinales y forraje.

HUIZACHE YÓNDIRO: ( Acacia Farnesiana)

Servicios ambientales: Conservación de suelo controlando la erosión, ayuda la fijación de nitrógeno en el suelo, recuperación de suelos químicamente degradados

Uso: Uso artesanal, colorante, leña y aromatizante.

ENCINO: (Quercus Virginia)

usos: Usos constructivos, producen bellotas comestibles

GUAMUCHIL: (Pithecellobium dulce)

MESQUITE: ( Prosopsis laevigata)

Uso: La madera se utiliza para elaborar sillas de montar, leña, se utiliza como ingrediente culinario, material de construcción, alimento de ganado, propiedades medicinales antiinflamatorias, contra sarpullidos y alivia cólicos estomacales.

Sol directo Sol indirecto Sombra Riego semanal Altura

63
6m
1m
20m
1- 6m
10 m
15- 20m
10m
5- 7 m
6m

MANUAL BOTÁNICO

ARBOLES Y ARBUSTOS

OCOTILLO: ( Dodonea Viscosa)

Servicios ambientales: control de la erosión y la conservación de suelos.

Usos:Se utiliza por sus propiedades medicinales, pesticida, reforestación de terrenos deteriorados.

Servicios ambientales: Control de erosión, infiltración de agua y fijan el nitrógeno en la tierra.

Usos: Madera de uso constructivo, leña, su follaje tiene propiedades medicinales, es diurético natural por lo que ayuda con problemas renales, de la vesícula, infecciones, heridas y problemas en la piel

Servicios ambientales: Benefician los suelos por sus aportaciones orgánicas ricas en nitrógeno, permiten retener el suelo, mejorando y controlando la erosión, estabilizadora de cursos de agua y de suelos degradados.

Servicios ambientales: Controlan la erosión, Infiltran agua de lluvia, mejoran los suelos por medio de su hojarasca, cortinas rompe vientos.

Uso: Su madera se utiliza para la fabricación de postes o arados en implementos agrícolas y alimento para ganado

Servicios ambientales: Provee sombra, tienen usos ornamentales por su belleza, controlan la erosión.

usos: Leña, Sus flores son importante alimento para colibríes y otras especies

PALO

Uso: Propiedades medicinales, util para combatir la diabetes, hipertensión y reducir el colesterol en la sangre. También tiene propiedades cicatrizantes y antisépticas.

Sol directo Sol indirecto Sombra Riego semanal Altura

Uso: Barrera para el trasfondo de escenarios de perspectiva larga o en zonas de transición, la corteza tiene propiedades medicinales, sirve para el tratamiento de heridas, ampollas, llagas y quemaduras. ayuda en el tratamiento de males gastrointestinales como diarrea y amibiasis.

POCHOTE

Servicios ambientales: Controlan la erosión, infiltran el agua de lluvia, mejoran los suelos, fijan el nitrógeno a los suelos y son alimento para fauna silvestre. Uso: Su savia se utiliza contra las picaduras de víboras, piquetes de alacrán, tienen usos culinarios, y medicinales, funcionan como remedio contra el insomnio.

Servicios ambientales: Infiltran agua de lluvia, controlan la erosión, regeneran suelos , reducen la contaminación ambiental, alimento para fauna silvestre. Uso: Utilizada para la elaboración de artesanías, tiene propiedades medicinales, ayuda a combatir la diabetes, derrame billar y disentería

64
3m
6m
PALO BLANCO: (Albizia plurijuga):
2 - 8m
PALO BOBO:(Ipomea murucoides)
3m
PALO DULCE: (Eysenhardtia polystachya)
4 5 m
PALO FIERRO: (Senna polyantha)
5m
PALO PRIETO: ( Lysiloma divarcada)
8m
DE VACA: ( bahuinia dipetala)
5m
PATÓL COLORÍN: (Erithrina coralloides)
20m
/CEIBA: ( Ceiba aesculifolia)

MANUAL BOTÁNICO

ÁRBOLES Y ARBUSTOS

TEPAME: ( Acacia Penatula)

Servicios ambientales: Reforestación de tierras degradadas, retención de suelo, control de erosión. Usos:Uso culinario, cercas para animales, uso en construcción, usos medicinales para combatir la indigestión.

TIMBE: ( Acacia angustissima)

Servicios ambientales: Benefician los suelos por sus aportaciones orgánicas ricas en nitrógeno, permiten retener el suelo, mejorando y controlando la erosión, estabilizadora de cursos de agua y de suelos degradados.

SAUCE CRIOLLO: (humboldtiana wild)

Usos: genera sombra, uso ornamental, leña, cuenta con propiedades medicinales.

Sol directo Sol indirecto Sombra Riego semanal Altura

65
2 - 8m 6m 12m

MANUAL BOTÁNICO

PLANTAS SENSORIALES

SALVIA: ( Salvia SP)

Servicios ambientales: Mejora los suelos, ayuda en el control de la erosión e infiltración de agua pluvial. Se considera una especie indicadora de calidad de aire por ser sensible al ozono y el dióxido de azufre.

Usos: Uso culinario, y favorece a la apicultura ya que atrae abejas.

PASIONARIA: (passiflora sexocellata Schltdl)

Uso: Tiene propiedades medicinales, propiedades relajantes y somíferas

*Trepadora

LANTANA: (Lantana Hirla)

Uso: Es conocida por su aromática, sirve como alimento para insectos.

GRAMA:( Muhlenbergia rigida kunth)

Uso: Ayuda a la retencion, fertilidad y formacion de suelos, facilita la infiltracion del agua, sus tallos se utilizan para hacer utensilios para el uso domestico, como escobas

MUICLE: (Spicigera)

Uso: Cuenta con propiedades medicinales y sensoriales

MÜHLENBERGIA:

ALEGRIAS: (Impatiens Walleriana)

Uso: Valor forrajero

Servicios ambientales: Conservación de suelo controlando la erosión, ayuda la fijación de nitrógeno en el suelo, recuperación de suelos químicamente degradados.

Uso: Uso artesanal, colorante, leña y aromatizante.

ZACATE RHODES: (Chloris Gayana kunth)

La Penta: ( P. Lanceolata)

Uso: Ornamental

Sol directo Sol indirecto Sombra Riego semanal Altura

66
30-90 cm
0 5-5m
10m
1 5m
1- 3m
0 7 - 1 20m
30cm
20cm
1m
(Muhelenbergia Lindheimeri)

MANUAL BOTÁNICO

PLANTAS SENSORIALES

SIEMPRE VIVA SILVESTRE: (Gomphrena serrata)

DALIA ROJA: (Dahlia coccínea)

Usos: Ornamental

OLOTILLO: (Tetramerium nervosum)

Uso: Se utiliza como forrajero y por sus propiedades medicinales.

Uso: Propiedades medicinales

Uso: El té de la raíz se emplea contra la tos y los fuegos; tópicamente, la savia o las hojas curan los fuegos labiales; los bulbos se hierven y la infusión se toma como diurético, diaforético y para aliviar los cólicos Se utiliza como comestible, ornamental y medicinal.

FLOR DE SAN JUAN: (Milla biflora)

Uso: Sus flores se utilizan en infusión para aliviar la tos, también se utiliza como ornamental.

ROMERILLO: (Asclepias linaria)

Uso: Propiedades medicinales

GIRASOL: (Helianthus laciniatus)

Uso: Ornamental,atrae abejas.

ACAHUAL BLANCO: (Bidens odorata)

Uso: Como forraje para el ganado bovino, lanar, porcino, sola o mezclada con otras arvenses; Tiene una importancia económica considerable por esto. Las hojas se consumen como quelite. También se utiliza en la medicina popular. Es melífera importante y se puede utilizar como abono verde

MAL DE OJO: (Zinnia peruviana)

Uso: Medicinal, ornamental y forrajero.

Sol directo Sol indirecto Sombra Riego semanal Altura

67
1 - 2 m
3m
70cm
20 - 80 cm
10 - 80cm
70cm
0 4 - 3m
1 2m
90cm

MANUAL BOTÁNICO

PLANTAS DESÉRTICAS

ÓRGANOS O CACTOS COLUMNARES: (Tribu Pachycereae)

Uso: Ornamental.

GARAMBULLO: (Myrtillocactus geometrizans)

Uso: Tienen frutos comestibles los cuales se usan a menudo en la prevención y control de la diabetes y la gastritis. Son ricos en antioxidantes.

CHILAYO: (Lophocereus marginatus)

Uso: Tiene propiedades medicinales, inhibe el crecimiento de células antitumorales y su extracto puede ser utilizado como alternativa para el tratamiento del cáncer.

CACTO VIEJITO: (Cephalocereus senilis)

Uso: Ornamental.

CARDÓN PITAYO: (Stenocereus queretaroensis)

Uso: Cuenta con frutos comestibles los cuales son alimento habitual en el norte y centro del país, fué utilizada por las culturas Mesoamericanas por sus propiedades medicinales.

GIGANTE: (Nyctocereus serpentinus)

Uso: Ornamental

ALICOCHE COCUÁ: (Echinocereus cinerascens)

Uso: Ornamental.

BIZNAGA PEZÓN DE ESPIANS BLANCAS: (Thelocactus leucacanthus)

Uso: Ornamental.

LIENDRILLA: (Astrophytum ornatum)

Uso: Ornamental.

Sol directo Sol indirecto Sombra Riego semanal Altura

68
25cm 5 m
15m
4m
15m 5 - 15m
25cm
20cm
40cm

MANUAL BOTÁNICO

PLANTAS DESÉRTICAS

BIZNAGA ONDULADA HASTADA: (Stenocactus lamellosus)

Uso: Ornamental.

BIZNAGA TROMPO: (Género Strombocactus)

Uso: Ornamental.

BIZNAGA DE BARRIL: (Género Ferocactus)

Uso: Ornamental.

BIZNAGA PARTIDA PARADA: (Coryphantha erecta)

Uso: Ornamental.

NOPAL CHAMACUELO: (Opuntia tomentosa)

NOPAL CARDÓN: (Opuntia streptacantha)

Servicios ambientales: Contribuye a enriquecer el suelo por tener micorizas y bacterias nitrificantes además de absorber rocío y exudar el suelo en la noche.

Uso: Sus pencas y frutos son comestibles

NOPAL XOCONOSTLE: (Opuntia elizondoana)

NOPAL DE CERRO: (Opuntia lasiacantha)

Uso: Produce frutos comestibles y ricos en fibra y vitaminas, especialmente vitamina A, C y K, también en riboflavina y vitamina B6. Contienen minerales como calcio, magnesio, potasio, hierro y cobre. Uso: Produce frutos comestibles, ricos en vitaminas y minerales

Uso: Producen frutos comestibles.

NOPAL CUIJO: (Opuntia engelmannii)

Uso: Producen frutos comestibles

Sol directo Sol indirecto Sombra Riego semanal Altura

69
5m 5 m
15cm
15cm
70cm 60cm
4m
70cm
3 5m

MANUAL BOTÁNICO

PLANTAS DESÉRTICAS

CARDENCHE: (Cylindropuntia imbricata)

Uso: Ornamental.

YUCA O PALMA: (Yucca filifera)

Uso: Ornamental, sus flores son comestibles e incorporadas en alimentos como en sopas y guisados.

MAGUEY PULQUERO: (Agave salmiana)

Uso: Elaboración de fibras textiles, elaboración de bebidas alcohólicas, planta ornamental y como inspiración artística.

AGAVE, CABUYO: (Agave filifer)

Servicios ambientales: Es utilizado en la protección de suelos con pendientes pronunciadas, es gran captador de agua.

Uso: Ornamental.

SÁBILA: (Aloe vera)

OCOTILLO: (Fouquieria splendens)

Uso: El aloe se cultiva por sus propiedades medicinales y como planta decorativa, incluso es utilizada para la alimentación.

Uso: Son utilizados para formar vallados en zonas rurales, la elaboración de artesanías y sus flores son alimento de diferentes tipos de polinizadores.

Sol directo Sol indirecto Sombra Riego semanal Altura

70
50cm
3m
5m 6 - 8m 10m
1 5 - 3 5m

PLANTA CON ESTRATEGIAS PAISAJISTAS

TULE: ( Cypherus hermaphtoditus)

Uso: Medicinal, forajero.

JUNCO ESPIGA: (Asclepsias cursasávica schltdl)

Uso: Planta semi-acuática, contiene propiedades medicinales, relajantes y somníferas

ESPADAÑA: (typha lalifolia)

Uso: Planta semi-acuática, captura de agua, contribuye a la estabilización y formación de nutrientes para sistemas acuáticos.

CARRIZO: (Phragmites australis):

Uso: Planta semi-acuática, se aprovecha para techar casas o crear cercas Las aves acuáticas llegan y las utilizan para crear sus nidos.

BERRO FALSO: (nustrulium- acuaticum L, hayek)

Servicios ambientales: Se utiliza para el tratamiento de aguas residuales.

Uso: Es comestible, rico en vitaminas y minerales por lo que es gran suplemento alimenticio, cuenta con propiedades medicinales aptas para problemas en la piel, enfermedades de vias respiratorias y regular el azucar en la sangre

FLOR DE PATO: (Azolla filiculoides)

Uso: Planta acuática, se usa como abono verde para campos de cultivo.

SAGITTARIA DEMERSA: (Alismataceae)

Uso: Planta semi-acuática, de uso ornamental Puede estar sumergida hasta 1.20m bajo el agua o parcialmente en contacto con el agua

COLAS DE CABALLO: (Myriophyllum hippuroides)

Uso: Planta acuática, muchos animales, como los peces, comen sus frutos y hojas, los roedores se comen la planta entera.

Sol directo Sol indirecto Sombra Cercanía a cuerpos de agua Altura

ALGODONCILLOS DE LOS PANTANOS: (Isoëtes mexicana) 2 - 20cm

Uso: Son acuáticas o semi-acuáticas

71
10 - 40cm 4 m
PLANTAS AFINES AL AGUA
70cm
30 - 100cm
100cm 1 - 3m
2m
5
10cm
2
-

PLANTA CON ESTRATEGIAS PAISAJISTAS

TULE: ( Cypherus hermaphtoditus)

Uso: Medicinal, forajero.

JUNCO ESPIGA: (Asclepsias cursasávica schltdl)

Uso: Planta semi-acuática, contiene propiedades medicinales, relajantes y somníferas

ESPADAÑA: (typha lalifolia)

Uso: Planta semi-acuática, captura de agua, contribuye a la estabilización y formación de nutrientes para sistemas acuáticos.

CARRIZO: (Phragmites australis):

Uso: Planta semi-acuática, se aprovecha para techar casas o crear cercas Las aves acuáticas llegan y las utilizan para crear sus nidos.

BERRO FALSO: (nustrulium- acuaticum L, hayek)

Servicios ambientales: Se utiliza para el tratamiento de aguas residuales.

Uso: Es comestible, rico en vitaminas y minerales por lo que es gran suplemento alimenticio, cuenta con propiedades medicinales aptas para problemas en la piel, enfermedades de vias respiratorias y regular el azucar en la sangre

FLOR DE PATO: (Azolla filiculoides)

Uso: Planta acuática, se usa como abono verde para campos de cultivo.

SAGITTARIA DEMERSA: (Alismataceae)

Uso: Planta semi-acuática, de uso ornamental Puede estar sumergida hasta 1.20m bajo el agua o parcialmente en contacto con el agua

COLAS DE CABALLO: (Myriophyllum hippuroides)

Uso: Planta acuática, muchos animales, como los peces, comen sus frutos y hojas, los roedores se comen la planta entera.

Sol directo Sol indirecto Sombra Cercanía a cuerpos de agua Altura

ALGODONCILLOS DE LOS PANTANOS: (Isoëtes mexicana) 2 - 20cm

Uso: Son acuáticas o semi-acuáticas

72
10 - 40cm 4 m
PLANTAS AFINES AL AGUA
70cm
30 - 100cm
100cm 1 - 3m
2m
5
10cm
2
-

REFERENCIAS:

Lot, Antonio; Ramos, Francisco; Ramírez García, Pedro Sagittaria demersa (Alismataceae) en la Sierra Tarahumara, México Anales del Instituto de Biología Serie Botánica, vol. 73, núm. 1, enero - junio, 2002, pp. 95-97 Universidad Nacional Autónoma de México Distrito Federal, México

Adicciones, un problema que rebasó ya a santa rosa jáuregui: Manuel Pozo. Quadratin Querétaro (2018, April 5)

https://queretaro quadratin com mx/adicciones-un-problema-que-rebaso-ya-a-santarosa-jauregui-manuel-pozo/

Admin. (2019, June 2). Propiedades medicinales del berro. Plantas Medicinales. https://hierbasyplantasmedicinales.com/propiedades-medicinales-del-berro/

Alvarez, D. (2022, August 16). Santa Rosa en el “abandono.” Diario de Querétaro | Noticias Locales, Policiacas, de México, Querétaro y el Mundo

https://www diariodequeretaro com mx/local/santa-rosa-en-el-abandono8749590.html

Baseline Water Stress. Aqueduct Country Ranking. (n.d.).

https://www.wri.org/applications/aqueduct/country-rankings/

Cactus querétaro. NaturaLista Mexico. (n.d.).

https://www naturalista mx/lists/193952-Cactus-Quer-taro?page=3

El marqués gobierno Municipal (2018) Catálogo fotográfico de biodiveridad del municipio de el marqués Querétaro 2016. Santiago de Querétaro. estrella, viviana. (2022, November 11). Querétaro, único estado con 100% de Superficie Afectada Con Algún Grado ... El economista. https://www.eleconomista.com.mx/estados/Queretaro-unico-estado-con-100-desuperficie-afectada-20221110-0153 html

García, M , & Hernández, J (2015) LA CAPACIDAD DE RESPUESTA DE LOS HABITANTES DE SANTA ROSA JÁUREGUI AL RIESGO ASOCIADO A INUNDACIONES EN LA CIUDAD DE QUERÉTARO, MÉXICO. Querétaro; UAQ.

Godwin, D. (2010). Rain Gardens - Brookings. https://www.brookings.or.us/DocumentCenter/View/662/Planning---Rain-Gardens-

PDF?bidId= https://www brookings or us/DocumentCenter/View/662/Planning---RainGardens-PDF

Gómez, R., Quintanilla, R., Tamez, P., & Samaniego, M. (2020, September 2). Uso del Extracto de Pachycereus marginatus (cactus órganico, Chilayo o Malinche) como agente antitumoral: Ciett UANL. CIETT UANL |. http://ciett.uanl.mx/index.php/portafolio/uso-del-extracto-de-pachycereus-marginatuscactus-organico-chilayo-o-malinche-como-agente-antitumoral/

Hernández, J. A. (2021). Valoración del paisaje urbano-ambiental de Juriquilla y Santa Rosa Jáuregui, Querétaro, México Scielo https://www scielo org mx/scielo php? script=sci arttext&pid=S140584212020000300633#:~:text=En%20Santa%20Rosa%20Jáuregui%20se,paisaje%20pasa% 20a%20segundo%20plano

Hernández, M. (2022, July 18). El Tejido social está roto en santa rosa... CódigoQro. https://www.codigoqro.mx/gurues/2022/07/18/el-tejido-social-esta-roto-en-santa-rosa/ Instituto Nacional de Estadística y Geografía (INEGI). (2020). Espacio y Datos de México. Instituto Nacional de EstadÃstica y GeografÃa (INEGI). https://www.inegi.org.mx/app/mapa/espacioydatos/default.aspx?ag=220140108 LDH (2021, January 25) Falta de Servicios de Agua y luz afecta a cuatro comunidades en santa rosa jáuregui " La de hoy querétaro La de Hoy Querétaro https://ladehoy com mx/falta-de-servicios-de-agua-y-luz-afecta-a-cuatro-comunidades-ensanta-rosa-jauregui/

Lot, Antonio; Ramos, Francisco; Ramírez García, Pedro Sagittaria demersa (Alismataceae) en la Sierra Tarahumara, México Anales del Instituto de Biología. Serie Botánica, vol. 73, núm. 1, enero - junio, 2002, pp. 95-97 Universidad Nacional Autónoma de México Distrito Federal, México

Losa de Vigueta y bovedilla: Ventajas y deventajas Panel y Acanalados Monterrey (2023, May 9) https://panelyacanalados com/blog/losa-de-vigueta-y-bovedilla-ventajas-ydesventajas/

Martínez, M. M., & García, A. (2001, January). Flora y Vegetación Acuáticas de localidades selectas del estado de ... Flora y vegetación acuáticas de localidades selectas del estado de Querétaro.

https://www.researchgate.net/publication/28296231 Flora y vegetacion acuaticas de lo calidades selectas del estado de Queretaro

Noe Dominguez. (2020). Carrizo (phragmites australis). NaturaLista Mexico. https://www naturalista mx/taxa/64237-Phragmites-australis

Opuntia tomentosa - JB-CACC-30 Jardín Botánico (2015, June 29) https://jardinbotanico.uma.es/jb-cacc-30/

Ospital, P. (2021, April 18). Piden a Abigail Abatir Drogadicción en santa Rosa Jáuregui. Diario de Querétaro | Noticias Locales, Policiacas, de México, Querétaro y el Mundo. https://www.diariodequeretaro.com.mx/local/piden-a-abigail-abatir-drogadiccion-en-santarosa-jauregui-adicciones-gubernatura-campana.-pri-6610254.html

73

REFERENCIAS:

LPond depth World of Water Aquatic Centres (n d ) https://worldofwater com/how-to-ponds/planning-your-water-garden/ponddepth/#:~:text=A%20depth%20of%2046cms%20

publisher, fiqma. (2014, August 15). Catalogo de Plantas Nativas del estado de queretaro fiqma. Issuu. https://issuu.com/fiqma/docs/catalogo de plantas nativas del est

Querétaro municipio (2018) Santa Rosa Jáuregui Querétaro Redacción (2019, August 12) Drenaje insuficiente y descargas a Cielo Abierto santa Rosa Jáuregui. Plaza de Armas | Querétaro. https://plazadearmas.com.mx/drenaje-insuficiente-y-descargas-a-cielo-abierto-santarosa-jauregui/

Rzedowski, J., & Bedolla, B. (n.d.). Las plantas vasculares de Querétaro . Las Plantas vasculares de querétaro https://inecol mx/inecol/index php/es/2013-06-05-10-3410/17-ciencia-hoy/1485-las-plantas-vasculares-de-queretaro

Santa Rosa Jáuregui (Querétaro Arteaga) querétaro. mexico.PueblosAmerica.com. (n.d.). https://mexico.pueblosamerica.com/i/santa-rosa-jauregui/

Segui, pau. (2021, March 28). El Diseño biofílico. el poder de la arquitectura y la naturaleza. OVACEN. https://ovacen.com/el-diseno-biofilico-el-poder-de-laarquitectura-y-la-naturaleza/

Segura, P (2022, July 22) Santa Rosa Jáuregui, Zona Peligrosa de la Capital Queretana; no Se Prevé Reforzar a la policía. Vía Tres. https://www.viatres.com.mx/queretaro/2022/7/22/santa-rosa-jauregui-zonapeligrosa-de-la-capital-queretana-no-se-preve-reforzar-la-policia-10824.html

SEMARNAT. (2019). Indicadores de calidad del aire. Semarnat. http://dgeiawf semarnat gob mx:8080/ibi apps/WFServlet?

IBIF ex=D3 R AGUA05 01&IBIC user=dgeia mce&IBIC pass=dgeia mce Webmaster. (n.d.). Implan Querétaro. Delegación Santa Rosa Jáuregui: Localización. http://implanqueretaro.gob.mx/v2/index.php?

option=com content&view=article&id=460%3Adel-srjlocalizacion&catid=64%3Asanta-rosa-jauregui&Itemid=438

Weller, R , Hoch, C , & Huang, C (2013) ACCESS TO WATER Retrieved 2023, from https://atlas-for-the-end-of-theworld.com/world maps/world maps access to water.html.

Zepeda, V., Golubov, jordan, & Mandujano, M. (2017, April). Distribución espacial, estructura de tamaños y reproducción de Astrophytum ornatum (Cactaceae). Acta botánica mexicana.

74

Turn static files into dynamic content formats.

Create a flipbook
Issuu converts static files into: digital portfolios, online yearbooks, online catalogs, digital photo albums and more. Sign up and create your flipbook.