



![]()




FRONT COVER Dawn stag by Elzbieta Sosnowski
We know, it’s a HUGE magazine, and not everyone wants to read every section. So we make it easy – just click the number below to jump straight to the section you want. Or you can just go make yourself a mug of tea and start from the beginning...
NEWS The Budget, West Wincanton, Mampitts and Buffy
OPINION Read the new Dorset Insider and The Grumbler
COMMUNITY NEWS 22 pages of news, reviews, letters, puzzles and politics
LOCAL HISTORY Godmanstone 100 years ago, and 60s Blandford

A COUNTRY LIVING
Rob Gray, once a precious painting courier and now Wimborne’s museum curator cataloguing 40,000 pieces of Dorset’s past
Contact The BV Team: 01258 472572
Mon-Fri 9 to 5.30
Editor: Laura Hitchcock
16 26 48 52 54 65 68 84
editor@BVmagazine.co.uk
Advertising: Courtenay Hitchcock
advertising@BVmagazine.co.uk
Sub-editors:
Gay Pirrie-Weir
Fanny Charles


POLO
Sally Cooper looks beyond 1980s Jilly Cooper to polo’s fast-paced, bruising but surprisingly inclusive world, with rare gender equality
Jess Rimmer’s horses are off on their holidays, and there’s some exciting training clinics in Dorset’s equestrian diary
RURAL MATTERS Dorset benefits from its dark skies, says CPRE
WHAT’S ON Eleven pages of what’s coming up this month
OUT OF DOORS Garden jobs, and Barry Cuff’s allotment round up
FARMING Harvest’s finally over - and here comes Bluetongue
WILDLIFE
14 stunning shots from October

88 90
TAKE A HIKE Enjoy the most glorious route from Worth Matravers
READERS’ PHOTOGRAPHY
14 stunning shots from September
Christmas prep, cheese awards, lifetime achievements and The Dorset Game Larder

I’m not sorry to see October go – usually it’s one of my favourite months, but the mental load has been quite something. As I’ve put this issue together, it’s become clear it’s not just me feeling this way: strong opinions abound. I got a late-night message from farming journalist Andrew Livingston, insisting the Budget had to be addressed. You’ll find his fiery response on page 68. We’re also launching two new opinion columns. The first is by a Dorset parish councillor who has decided it is time to speak up. They’ll be known as The Dorset Insider, and no, we won’t be revealing their identity.
The Grumbler is another anonymous column –this time, open to you. It began as an excellent reader’s letter, with the nervous writer wanting to stay unnamed. I wondered if offering an anonymous platform might reveal some intriguing opinions, so The Grumbler is yours to fill. I hope you’ll find both columns as interesting and thought-provoking as I did.
98 101 113 117
It’s the final nail in the coffin of every family farm – a shocked Andrew Livingston responds to the Budget’s inheritance tax reforms
ART Dutch artist Peter Ursem celebrates 25 years of printmaking
HEALTH The natural alternative to weight loss drugs
BUSINESS NEWS A plea from Dorset Chamber, new grants and support
ANNOUNCEMENTS & JOBS
For the last few weeks I’ve been lurching from look/don’t look paralysing fear over the national and international news. The Middle East, the catastrophic weather, the Budget, what happens next in America ... When the problems are so vast, and I am so powerless, I always have a very mature urge to simply throw a duvet over my head.
But when the weight of the news feels relentless, sometimes the wisest choice IS to step back. Take a breath, tune out the noise, and find the small things that keep you steady.
So, if you need to retreat, know you’re not alone. A good book, a hot drink and a quiet hour are all we need to keep going.
In other news, I lost my glasses last week (it really was a bad month!). They literally live on my face, on my desk or on the top of my head.
I hadn’t left the house. But we turned the only three rooms I’d been in upside down and they were NOWHERE I tell you.
Eventually I had to panic-buy a new pair on 24 hour delivery ... naturally six hours after they arrived, C found my old ones.
In the shoe box.

by Fanny Charles

Looking across North Dorset from the top of Hambledon Hill – Thomas Hardy’s Vale of Little Dairies, the Blackmore Vale, is known for its dense network of small family farms: all now feeling threatened by the Chancellor’s Budget
Chancellor’s inheritance tax change ’sounds death knell’ of thousands of small family farms, warns North Dorset MP
The Chancellor’s budget is urban-centred, will hit small businesses hard, potentially threatens the future of small family farms across the region, has nothing for the south west and fails to address many long-standing concerns, says North Dorset MP Simon Hoare. Where long-term change was wanted, the Chancellor has offered ‘timidity and sticking plaster,’ he told the BV Magazine. He welcomed additional funding for local government and education, particularly for the

hard-pressed SEND (special educational needs and disabilities) sector, as well as the freeze on fuel duty and a penny off a pint. But overall he believed Wednesday’s budget would result in a delay to the hopedfor fall in interest rates and inflation.
An Orwellian edge
‘A malicious and reckless smash and grab raid on the small business sector and entrepreneurs’
Mr Hoare accused Chancellor Rachel Reeves of making ’a malicious and reckless smash and grab raid on the small business sector and entrepreneurs.’ Examples of the damage being done to small business included the increase in National Insurance contributions and the minimum wage, while rising bus fares would hit students, people going to work or patients with hospital appointments. ‘It is a budget that is entirely ignorant of the needs of businesses, and of rural businesses in particular,’ he says. The impact on independent schools of not only the imposition of VAT but removing business rate relief amounted to a tax on learning, a retrograde step that would threaten particularly small rural prep schools.
Overall, Mr Hoare’s verdict was that there was an ‘Orwellian’ edge to the budget: ‘It seems to be saying public sector good, private sector bad. But you can only have good schools and hospitals and strong defences when you have a flourishing private sector as well.’
There was no indication of the root and branch changes that were needed to local government and council tax, but he welcomed new money for social care. ‘I will press the case that the Treasury needs to take on the additional costs of delivering the service in rural areas. They were always sympathetic to this in opposition,’ he added.
The changes to inheritance tax have rung alarm bells across the region. Simon Hoare said it would ‘sound the death knell of the small family farms that play such an important role here in North Dorset, and across West Dorset and Somerset. The budget is rurally ignorant.’
Social media was immediately full of concerns from the rural community about the change in inheritance tax, and the impact of a 20 per cent tax on property worth more than £1 million.
The average Net Farm Income for a farm grazing livestock is £23,000 (and a quarter of farms in Great Britain failed to make a profit last year*), on a farm worth perhaps £3 million. The inheritance tax bill on that farm will now be £400,000. Among the strongest comments was an immediate response from the NFU social media accounts: ‘In 2023 Keir Starmer looked farmers in the eye and said he knew what losing a farm meant. Farmers believed him.
After today’s budget they don’t believe him any more.’
In response to the Budget, NFU President Tom Bradshaw released a statement on what it means for British farmers:
‘This budget not only threatens family farms but also makes producing food more expensive, which means more cost for farmers who simply cannot absorb it – it will have to be passed up the supply chain or risk the resilience of our food production.
Just because a farm is a valuable asset it doesn’t mean those who work it are wealthy

generation’s ability to carry on producing British food, plan for the future and shepherd the environment.
‘It’s clear the government does not understand, or perhaps doesn’t care, that family farms are not only small farms, and that just because a farm is a valuable asset it doesn’t mean those who work it are wealthy. This is one of a number of measures in the budget which make it harder for farmers to stay in business and significantly increase the cost of producing food.
‘Before the election, Keir Starmer promised to establish a new relationship with farming and the countryside.
‘Well, he’s certainly done that.’
Ian Girling, chief executive of Dorset Chamber, said many businesses in Dorset would have concerns about the Budget: ‘There is some comfort for small businesses with employment allowance increases for National Insurance, but rises in employer National Insurance contributions and the minimum wage mean that employment costs are significantly increasing.
‘This comes at a time when wages have already been pushed up by significant recruitment challenges for businesses. It is highly likely this will impact on recruitment, which will have a knock-on effect in terms of future business growth.’
‘It’s been a disastrous budget for family farmers, and especially tenant farmers. The shameless breaking of clear promises on Agricultural Property Relief will snatch away the next
Mr Girling said it was encouraging to see a focus on affordable housing, ‘as this is a barrier to growth for businesses, but I am not sure that it is enough. Economic growth projections over the next three years are very low: hardly inspiring confidence among businesses and consumers.’
*Gov.UK Farming Income
by Fanny Charles
Is a 650-home development west of Wincanton an unsustainable misuse of good farmland, or “an opportunity to deliver more than housing”
A major plan for 650 houses on farmland to the west of Wincanton has provoked considerable opposition, with angry residents at a public meeting shouting at the scheme’s designers and one person ejected for disruptive behaviour from the subsequent Wincanton Town Council meeting.
The objectors, including many residents and organisations such as the countryside campaign group CPRE, are concerned that the development, which is called West Wincanton, could move the fulcrum west from the historic town centre.
When completed, it is suggested that around 1,500 people would live in the new homes, increasing the population of Wincanton (6,740 in the 2021 census) by more than 20 per cent.
Other concerns and objections include the loss of productive farmland at the site, known as Hook Valley Farm, at a time when food sovereignty and resilience are important, as well as the potential impact of flooding and serious surface water run-off from the 66 hectare (163 acre) hilly site between Lawrence Hill and West Hill, where many springs rise in the fields.

The red line is around the West Wincanton application site, and a yellow line around a site already approved for 80 houses
new residents and additional pressures on existing and inadequate infrastructure.
Empty promises?
There is also justifiable frustration in the community that brownfield sites in the town are left empty (or derelict) and that there are many empty houses and unoccupied flats above shops. Many people called for the development of these sites and making use of these potential homes before taking farmland outside the town.
within the town are left empty (or derelict) and there are many empty properties
Local people point to recent unprecedented floods in the Lawrence Hill area and are also worried about loss of wildlife habitat, increased traffic, lack of employment for so many
Many were also concerned that, despite the attractive illustrative plan and promise of community and social benefits via Section 106 conditions on the planning permission, all could be lost if the site is sold in phases for development. Subsequent developers could thus find ways round an expensive conditions that have been imposed.
There is usually a but, and always a need to look past the immediate emotion.
In this case, there are a number of factors that cannot be ignored, starting with the new government’s clearly stated intention to build more houses to meet demonstrable need. There is also the undeniable fact that local authorities like Somerset Council, under pressure to find sites for homes, have little or no spare cash to fight developers at public inquiries.
And in the case of the West Wincanton plans, there are clearly aspects that most people would support – a new primary school, a nursery, a care home, a local centre, allotments, an orchard, a park, public open space (55 per cent of the total area is to be open space or “green infrastructure”) and 35 per cent of the 650 homes will be classed as affordable – 227 homes offered on the basis of shared ownership or social rent. Jonathan Orton, managing
director of Origin3, the Bristolbased agents for planning, design and development responsible for overseeing the masterplan for this major development, told a public meeting in Wincanton’s Moor Lane sports centre: ‘A larger site like this provides an opportunity to deliver more than just housing.’
The applicants are LVA (Land Value Alliances), with offices in Sherborne and London –specialists in investment and planning project management in UK land and property. On their website they say: ‘We focus on forming responsible alliances with landowners and all other stakeholders’.
LVA was founded by Robert Tizzard, who is executive chairman. James Tizzard, a partner in the business, was at the public meeting.
The application for Hook Valley Farm as submitted by LVA: Outline application (with all matters reserved except for access) for the demolition of agricultural buildings and the development of up to 650 dwellings; up to 3.1 ha of mixed use comprising employment use class B2/ B8/E(g), local centre use class E/class F, and care home; provision of primary school; pre-school/nursery; accesses from West Hill and Lawrence Hill; mobility infrastructure; new pedestrian/cycle route to the south of Lawrence Hill;
open space and all associated infrastructure. Among the objectors are a group of residents who say they are ‘concerned about the continual unsustainable development in Wincanton. We feel that we have reached a tipping point with a planning application [that would mean] the destruction of a working farm and the loss of our natural environment. We are not against development but feel that “brownfield” sites such as The Tythings are more suitable than destroying good agricultural land that is unconnected to the built environment of the town and outside any approved area of the Adopted Local Plan and the Wincanton Neighbourhood Plan.’
At its meeting on Monday 16th September, Wincanton Town Council agreed to object to the application and asked that Somerset Council should ensure that it takes the local objectors’ views into account when determining the application. The town council stressed the importance of the Section 106 agreement ‘and seeks confirmation and reassurance from Somerset Council that any matters proposed within this legal agreement are properly delivered and ... rigorously administered.’
The BV raised some of the residents’ concerns – particularly regarding the delivery of the community benefits under the
Section 106 agreement – with Jonathan Orton, and received a full reply, extracts from which appear below (for the full response, please click here):
• The planning conditions will ensure that the land use mix, proposed layout, the location of the green areas and the built areas ... are implemented as set out on the parameter plans and in accordance with the mitigation proposed. ... Subsequent applications for reserved matters consent will need to be consistent with the approved outline plans and conditions. Any material changes to the proposals will require a new planning application.
• ... the developers will have a legal obligation to deliver the affordable housing, primary school, pre-school, the on-site public open space and green corridors (and its management and maintenance) and financial contributions towards enhancements at Wincanton Sports Ground and sustainable transport improvements.
• The Section 106 legally binds the land, rather than the individual or developer.
LVA’s illustrative plan of part of the proposed West Wincanton development

• ... 35% of the 650 homes proposed are to be affordable. Hence, the Wincanton development will provide affordable shared ownership and social rent housing for 227 households and families.
• ... LVA will not work with a developer that is not able to deliver the approved development as it will affect the future phases of the scheme that [LVA and the landowners] will still be involved in.
There is currently no date set for Somerset Council planners to discuss this planning application.

FRIDAY 8 NOV
by Rachael Rowe

It’s been a long road for Shaftesbury, and though £880k in council funding has been awarded, some residents aren’t celebrating yet
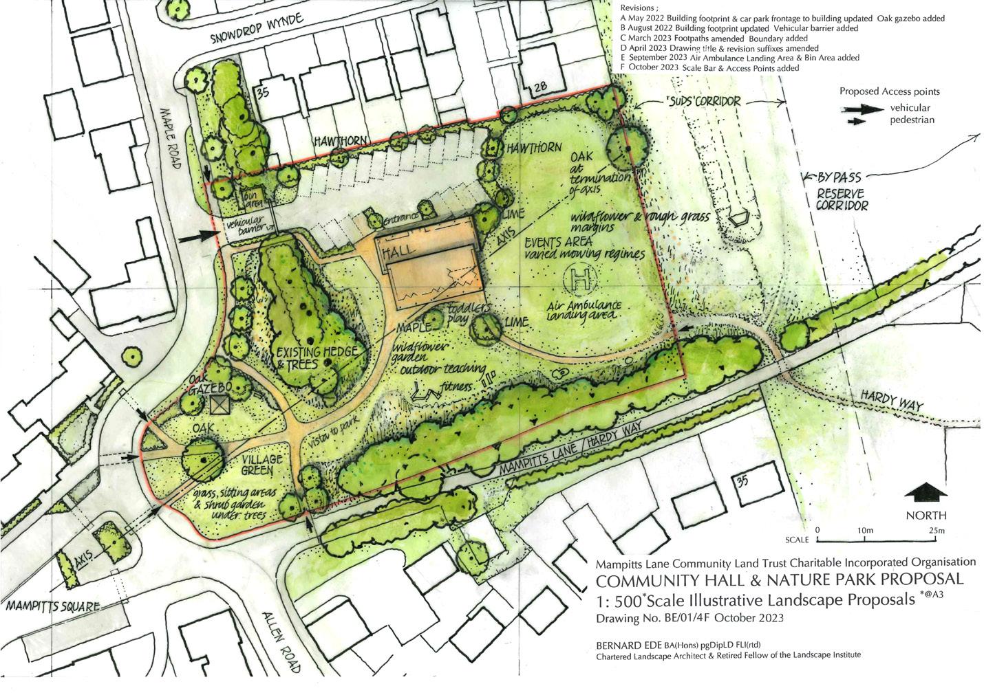
When the chance to create a new community centre arose in Shaftesbury, few could have predicted the lengthy negotiations that would follow before the project could finally get under way. Finally, in October, Dorset Council voted in favour of the Shaftesbury Town Council proposal for new community facilities at Mampitts Green. While it looks as though a solution has now been reached, the issues around Mampitts Green have certainly not disappeared.
In a nutshell Section 106 funding is allocated to communities from building developers to provide infrastructure for new developments – it is often a once-in-a-lifetime opportunity to make a significant change for small communities.
When the previous Shaftesbury Town Council found itself with a significant sum of money to allocate to a community centre, a councillor was designated to led the project. However, there were strong differences

in opinion and the people of Shaftesbury ended up in the unexpected position of having two proposals for what the town should do with the land on Mampitts Lane. One was submitted by the Mampitts Lane Community Interest Organisation (MLCIO), led by local councillor Peter Yeo. The other was from Shaftesbury Town Council, led by Councillor Piers Brown.
In March, Dorset Council approved the planning permission application (P/ FUL/2023/05314) for the MLCIO’s proposal.
However, during its cabinet meeting on Tuesday 15th October, Dorset Council resolved to award Section 106 (S106) funding to Shaftesbury Town Council (STC) for its proposed development of the Mampitts Community HUB.
At the meeting, Dorset Council leader Nick Ireland introduced it as “possibly the most controversial item on the agenda this evening.” A unanimous vote saw £880,000 of S106 monies awarded to Shaftesbury Town Council.
One of the critical aspects of the town council’s proposal was the community leadership and cooperative design.
Piers Brown explains: ‘The town council recruited six volunteer community champions. They sat on advisory committees and we developed the proposal together. What they said was crucial. For example, they didn’t like their part of town referred to as “other”. They also wanted to see the community facilities used by the whole of Shaftesbury, not just The Maltings estate.
‘The entire town was consulted. Every household received a questionnaire, and we had 450 returned, which was fantastic. We also did some pop-up consultation events in Mampitts Green. And there were some key messages from the public. They wanted a social space, and they wanted an area where they could get back to nature. They also wanted us to get on with the project!
Interestingly, what they weren’t so keen on was a play park, preferring an imaginary play area. So we listened to the feedback on the needs of people who actually live there – they differed from the perceived requirements when The Maltings development was first planned.’
Peter Yeo’s MLCIO project also involved the community, and
Shaftesbury town council’s approved plan for the new Mampitts community

included a petition with 720 signatories from the town.
‘I live at Mampitt’s Lane. We had a brilliant plan which included an area for the air ambulance to land. Dorset Council made us present our case to the town council in 2021, and tried to get us to work together. It didn’t work. Instead, the town council launched a rival bid! They turned up at Mampitts Lane with a gazebo ... it was farcical.’
Peter says he is not alone, and is adamant that local residents don’t support the council’s plans for a community centre: ‘It’s an absolute farce,’ he says. ‘We got planning permission for our design, and Dorset Council gave them extra time to catch up. We also had detailed costings.
‘Now our village green is

being built over and we’ll have uncontrollable parking.’
The Mampitts Green experience is a serious and lasting challenge for Shaftesbury. Peter is considering the options, which include complaining to the Planning Ombudsman and a possible judicial review. ‘The town’s next steps are to do a public tender and then to get on with the work,’ says Piers Brown. ‘We’ll be working with Pavilion in the Park from Poundbury, part of the Talk About Trust which works with young people. They also have further connections with other services that would benefit the town.
‘It’s always easier to take people with you and disappointing when people don’t want to work together. Compromise is key. No one has got 100 per cent of what they want from this project – but I hope everyone will be happy with what we do. Our starting point was what people want.
‘I hope that in five to ten years time these challenges will be a distant memory, and people will see it as a fantastic facility for Shaftesbury. When it opens –hopefully in the spring of 2026 – it will bring benefits for the entire town.’

Blandford practice nurse Buffy Wareham talks about the changes she’s seen in 50 years of nursing, personal loss, and her enduring need to help
For some people, she is the practice nurse who has repeatedly jabbed them over the last few decades. To others she has been a constant presence since their teenage years. Buffy Wareham has just celebrated 50 years working as a nurse –something few clinicians achieve today.
She is one of the most familiar faces at the Blandford Group of Practices where she has worked for the past 27 years.
From Brixton to Blandford
Buffy trained as a general nurse at the Middlesex Hospital in London in 1974. ’Sadly, that is no more, it became part of UCL. Then I worked on a medical ward before going to the John Radcliffe Hospital in Oxford to train as a midwife. I returned to London and got a job in A&E at St Thomas’s Hospital. I became a sister when I was 24.
‘I worked on the short stay unit attached to A&E – I was on duty for the Brixton riots and also for the first London Marathon.’
At the end of her job in A&E there was an increase of violence-related cases such as gunshot wounds and stabbings. Buffy left to spend a year as a school nurse.
‘During my time in casualty I trained in family planning at Kings College Hospital. This was useful for working in sexual health clinics in SE London and Paddington area health authorities, as well as working as a school nurse in the community.’ Contraception and sexual health have been an important thread throughout her career especially growing her own family. ‘When I was training in family planning they were doing a lot of research into chlamydia and its links to infertility. Then when I joined this practice, some of the work I did involved improving detection rates in chlamydia. ‘Now, of course, swabs are done before fitting contraceptive devices.’
‘I have had four boys,’ says Buffy. ‘My family is my life.’ But her eldest son, Edward, became very ill with a severe form of epilepsy which sadly disabled him. ‘We took him to specialists in London and Paris, but he remained a medical mystery. He unexpectedly died on our family holiday in August 1993 – he was almost nine.’
She had been considering retraining as a midwife, but Edward’s death made it impossible for her.
Buffy Wareham, who has just celebrated 50 years of nursing

‘It was all too much.’
The family moved to Wimborne in 1997 and the boys settled into local schools. ’Then I saw a job advertised for a practice nurse in Blandford. It was quite tough initially – my husband was working in London and I was also studying for a practice nurse qualification. I specialised in women’s health.
‘In general practice, your own life experiences make a huge difference. I’m sure Edward dying, although it was a huge upheaval in my life, helped me to help other people. If someone is distressed about a child dying or is grieving, I might say something and they’ll often say – how did you know to say that? And he’s helped me do that.
Edward taught us an awful lot, he probably made me who I am today.
‘I have also been privileged to look after my parents and aunt at the end of their lives. My mother died earlier this year, aged 100.’
Naturally, with a career spanning 50 years, Buffy has seen a lot of change.
’Nurse training has changed. One of my sons has become an advanced clinical practitioner recently








Christmas Shopping Evening
Thursday 28th November
Christmas folk songs, carols and stories
Thursday 12th December
The Famous Great Pudding Stir
Saturday 14th December
Visit Santa in our magical museum
Saturday 30th November
Saturday 7th December
SEN Santa Experience
Thursday 5th December
PLUS ...Christmas Family Trail

Daily from 1st December FREE with museum entry.

Museum of East Dorset
23-29 High Street, Wimborne Minster, Dorset, BH21 1HR
Telephone: 01202 882533 Website: museumofeastdorset.co.uk
so I’ve seen it from the modern side. One of the biggest differences is that my training gave me a great sense of duty and commitment – sadly I don’t think that is always apparent today. The way that I work is to take a holistic approach to the patient, I don’t just look at the specific task. Genuine patient care for me is always very important.
‘I have loved my nursing career. I love helping people and making a difference.
‘We have seen a lot of recent change here in Blandford, with the merge of two practices and of course the pandemic in 2020. Unfortunately, I caught COVID the first time around, before we had vaccines. I was left with long COVID and had to reduce my hours.
‘Uniforms have also changed. I look at Call The Midwife and think: “Good Lord! That’s the uniform I trained in!” We all wore cuffs and hats and everything had to be pristine and starched.
In October I had a 50th anniversary reunion with 30 of my set I trained with in London, which was lovely. I continue to wear my Middlesex Hospital badge on my uniform with pride.
‘I enjoy the nature of general practice. Each day is different. Helping and making a difference to someone gives me complete job satisfaction.’
So much change
Buffy has many interests outside work. ‘My family are everything to me. I have four grandchildren and love being a hands-on granny. I love tennis, always have done, and I play regularly. I love cooking and


Buffy was a sister in A&E at St Thomas’s Hospital in the early 1980s: she was on duty for the Brixton riots and also for the first
entertaining, and also photography and travelling. I’ve always had a great love of the arts, visiting galleries and going to the theatre.’
After 50 years, what keeps Buffy coming into work each day? ‘It’s probably a need to care for people. I love seeing familiar faces. The continuity and getting to know families is lovely. If someone wants to go into this job they will inevitably learn a huge amount. I think people believe general practice to be easy, but it’s not just about taking out a few sutures. You can develop your own interests and skills within practice nursing. I feel I have consolidated my training and previous experience over the years to enhance my role specialising in Women’s Health. It is important to keep your knowledge and skills updated in such a clinical role
.
‘Being a good team player helps, but you have to be confident and capable to work autonomously when running your own clinics.
‘I have seen so much change. These days there is a huge wodge of administration in the NHS, with constant new initiatives that don’t make a difference and are usually a waste of time.
‘I wish they would just look after the workers, the doctors and nurses who do a lot of the valuable work. If they’re not nurtured and looked after, they will leave.
And the name Buffy? – ‘Well, I’ve been called that since the year dot. My real name is Mary Rose – like the wreck!’

Introducing The Dorset Insider, a new column dedicated to shedding light on local matters with unfiltered honesty and a critical eye. The author – a local parish councillor – will remain anonymous for the sake of candid discourse, but readers can rest assured that their identity is known and trusted by the editorial team. This anonymity allows the columnist to speak openly, challenging the status quo and addressing issues that matter most to our community.
After a morning of trawling through my inbox, rammed with emails complaining either about roads transformed into the Somme by maize harvesters or ninja dog owners stealthily leaving unwanted poop on footpaths, the draft Dorset Plan suddenly appeared.
Dorset Council held a Big Conversation with the community this summer, and on the back of it has just produced a draft plan, which it has shared with parish and town councils. (anyone can view the draft plan here - Ed). Am I impressed?
Dorset Council has prioritised Weymouth, noting ‘There are 11 areas in Dorset within the top 20% most deprived nationally for multiple deprivation, up from 10 in 2015. 10 of these are in Weymouth and Portland’.
As a local councillor I would have welcomed a discussion about what the plans are to address rural poverty across Dorset. You only need to compare petrol station prices in Blandford and Yeovil to see the premium local residents pay to live here. Weymouth is undoubtedly a deprived part
of Dorset, but rural poverty presents unique challenges that are vastly different from those faced in larger urban areas, where access to services, transport and employment opportunities are more readily available.
And when it comes to tourism, there is a world beyond the Jurassic Coast! The rest of Dorset could benefit from more visitors to boost the local economy and support community growth.
I think you missed a bit
There is a world beyond the Jurassic Coast!
However, what is fundamentally missing from the Dorset Plan – and is an entire Big Conversation in itself – is just how one of the council’s statutory responsibilities will be addressed: no one seems to have any robust plans for adult social care, which swamps the Dorset budgets each year to the tune of £148.3 million, according to the plan.
I’ll admit it seems it’s also being dodged by the new government, but I would have expected the local council plan to have something to say. Dorset has one of the highest proportions of over 65s in the country – I’d like to see some
innovative solutions to support older people and for unpaid carers to get the care and support they need. Instead it seems as though everyone is trying to dodge this particular bullet. As adult social care is usually the excuse given for other budgets receiving less funding, we really need to see radical change or these ambitious new plans of the council’s to save nature will never materialise. And we will also never stop complaining about potholes and gritting ... the local highways budget is only £5.7m.
The planning chestnut
I was heartened to see the need for more affordable homes in Dorset outlined in the plan – but what exactly does that mean for local residents? I am particularly aware of the new annual government target of 3,230 homes in the county. There’s been repeated mention of a new town over the last year or two (and far longer) –but where that will end up is anyone’s guess. In reality, what tends to happen is that homes that people actually want – bungalows for downsizing and houses affordable on a Dorset, rather than a London, wage – mysteriously disappear from some development plans once outline planning is agreed. Instead, communities either end up with expensive luxury homes that the average Dorset family cannot afford, or really ugly box-like structures with impossible parking arrangements.

There are several of these large luxury home developments standing unloved and unsold across rural Dorset right now, and many more large developments remain unfinished until the vacant properties can be sold – it leaves me wondering who exactly the developers are building homes for? It doesn’t look as though they were intended for local people (or whatever the latest Starmer definition of a working person is).
Large luxury
... who exactly are the developers building homes for?
I’d like to see the planners have more power to enforce better quality social and affordable houses that genuinely meet the needs of the people of Dorset. And they need to engage more with local parishes. In particular, we need to ensure the infrastructure to support more people is in place before sites are concreted over and the roads are either flooded or clogged up with cars.
I’d also like to see stronger consideration given to parish Neighbourhood Plans in both planning strategy and decision-making.
I’m keen for the Dorset economy to grow, raising the profile of the county. Sadly, job opportunities have disappeared from my rural area, to be replaced with yet more housing developments – the luxury variety, obviously, because the developers talked the talk.
Why can’t we instead develop more workspaces for small businesses integrated with every new housing development, so people can walk to work instead of relying on non-existent rural public transport or cars?
I’d also like to see a strong focus on our local food security – we have some excellent, innovative businesses in Dorset but so much more needs to be done to protect both food provenance and our farmers, before cows get cancelled due to their perceived methane effect.
Finally, I was intrigued to see recent social media posts from Dorset Council suggesting they would like to merge with Somerset and Wiltshire councils, becoming a devolved ‘super council’. Apart from the obvious implications of one of those local authorities being profoundly in debt, why wasn’t this bombshell in the plan? It’s a massive development, but not mentioned. I wait in anticipation for The Super Plan ...
Welcome to The Grumbler, the new open opinion column in The BV. It’s a space for anyone to share their thoughts freely. While the editor will need to know the identity of contributors, all pieces will be published anonymously. With just a few basic guidelines to ensure legality, safety and respect, this is an open forum for honest and unfiltered views. Got something you need to get off your chest? Send it to editor@bvmagazine.co.uk. The Grumbler column is here for you – go on, say it. We dare you.
A recent article on the BBC website highlights an ironic and rage-inducing issue: England is in the midst of a housing crisis, yet nearly 700,000 homes sit empty, with more than 261,000 of them classed as “long-term empty.” But policymakers continue to push for new builds on green belt land and in rural communities. This is not just short-sighted, it’s destructive to both the countryside and the communities forced to bear the brunt of these poor planning decisions. We need to rethink how and where we build, or risk losing our green spaces AND our local communities forever.
Stop building where there’s no infrastructure
The push to build new homes on green belt land and in rural areas is often justified by the perceived need to meet housing demand. However, building in these areas often results in poor planning decisions. Large housing estates constructed on rural land not only erode valuable countryside but also disrupt local communities that aren’t equipped to handle a sudden influx of new residents. The new estates we have all seen appearing across our county in recent years frequently lack basic services like healthcare facilities, adequate public transport and educational resources, which leads to overburdened infrastructure and a diminished quality of life.
Villages and small towns were not designed to accommodate massive housing projects. They often rely on minimal healthcare services, limited school places and small-scale community resources that work well for the existing population but would buckle under the weight of a large, new influx of residents. The essence of rural life – close-knit communities, open spaces and agricultural land –is undermined by these large-scale developments.
Small-scale community resources may work well for the existing population but buckle under the weight of a large, new influx of residents

This leads not only to environmental degradation but also to a loss of local character, transforming these once-vibrant communities into a soulless housing sprawl.
Take the recent debacle between Dorset Council and Bournemouth, Christchurch, and Poole (BCP) Council. BCP is struggling to meet its own housing targets, and rather than looking inward to redevelop available brownfield sites or increase housing density, it tried to offload its obligations onto Dorset.
Understandably, Dorset councillors and local MP Simon Hoare were outraged, calling it a “land grab” that threatens to turn Dorset into a dumping ground for poor urban planning. Why should rural areas with limited resources bear the brunt of problems caused by urban councils failing to think creatively or sustainably?
Build where people can live and work We’re building new homes in areas with little or no economic opportunity, and it just doesn’t make
sense. Executive homes are being plonked down in the middle of nowhere while cities – where jobs and infrastructure already exist – are neglected. This needs to change. Rather than building luxury estates in areas that lack the means to sustain them, we should be prioritising affordable and social housing in urban centres. There, people can actually live near their jobs, have access to healthcare, and send their children to properly funded schools.
housing, if genuinely necessary in rural areas, should be constructed in a manner that respects the local character and meets the actual needs of the community. A village might need a few homes a year, not a massive estate that doubles its population in one go.
Rethinking development for a better future
If we’re serious about addressing the housing crisis, then we need to be more thoughtful in our approach. Here are a few things I believe will make a real difference:
• Reform probate and empty homes policies: Central government needs to reform probate law to prevent homes from remaining empty indefinitely. A stronger national strategy, combined with increased funding for local councils, can bring thousands of empty homes back into use.
A village might need a few homes a year, not a massive estate that doubles its population in one go.
The most frustrating aspect of all this is the sheer number of empty homes across the country. If local councils were better equipped and funded to bring these homes back into use, it would be a game-changer. Why aren’t we prioritising this? Local authorities like Rushcliffe, near Nottingham, have made progress using tools such as the Empty Homes Premium and enforcement orders, but few councils have the money to pursue this strategy. Central government support, similar to a scheme used in Wales, could significantly bolster local efforts. By providing funds for enforcement, repair and re-purposing of longterm empty properties, the government could both relieve pressure on green belt and provide more affordable housing options.
Preserve farmland and the countryside Building on agricultural land is particularly problematic. The UK’s agricultural sector is essential not only for food security but also for the preservation of rural traditions and the environment. Converting farmland into housing estates reduces the country’s capacity to produce food locally, making it more dependent on imports and less resilient in times of crisis. It’s an unsustainable approach and one that threatens both the countryside’s aesthetic and its economic base.
Farmland should be prioritised for farming. New
• Prioritise affordable housing in urban areas: Focus new housing projects in cities and larger towns where infrastructure already exists. Prioritise the construction of social and affordable housing to help those struggling with rising rents and unaffordable homes.
• Protect green belt and farmland: Government policy should actively discourage large developments on green belt and agricultural land. Instead, limited and sympathetic developments should be allowed in rural areas based on real community needs, not on developer interests.
• Empower local councils: Local councils must be given more control over planning, with a mandate to consult residents thoroughly. New developments should integrate with existing communities rather than overwhelm them.
We know we face a housing crisis, but blindly pursuing new builds on green belt land or in inappropriate rural areas isn’t the solution. The focus should shift toward revitalising empty homes, prioritising social and affordable housing and respecting the character of rural communities. If we get this right, we can address the housing crisis, while still preserving the countryside and revitalising our communities.

Meet Garrett Dorset, the local family business that realised there was a need for a personal, hassle-free approach to car selling
Today there are so many places to sell your car: from Facebook Marketplace or Autotrader to an array of giant online car companies. Navigating those platforms, however, is timeconsuming and sometimes extremely stressful, resulting in an inbox flooded with messages, not to mention time-wasters and aggressive hagglers.
A Poole-based, family-run business is proving that the human touch – combined with more than 30 years of experience in the motor industry – is the best road to success when selling a car, van campervan or motorhome.
Garrett Dorset in Poole will of course help anyone sell a car: but they have built an outstanding reputation helping those in the most sensitive situations. Perhaps those of us who may have lost a loved one and need to dispose of their vehicle, or those who can no longer drive through illness.
Founder Andy Garrett explains: ‘The idea grew organically after a friend asked me to value a car for someone recently bereaved. The widower was so grateful for the personal and hassle-free service we provided, and we realised there were probably many other people in a similarly sensitive situation who we could help.’
The bespoke service takes all the stress out of selling a vehicle. Andy, or a female

Founder Andy Garrett or a member of his team will always come to you if you wish
member of his team if preferred, will visit you at your home or workplace. Over a chat, a complete appraisal of your vehicle will be carried out followed by a free, noobligation valuation.
Andy explains: ‘At this point you might choose to go ahead with the sale, which we can conclude there and then.
‘Alternatively, you might like to spend some time considering our offer. Either way, there’s absolutely no obligation or pressure to sell.
‘If you choose to sell your vehicle to us, we promise a fair and accurate valuation, a quick and easy sale, fast immediate payment ... and above all a friendly and efficient service.’
The service includes all handling of DVLA paperwork
as well as any administration needed to settle outstanding car finance on the vehicle. ‘In times of bereavement or illhealth, taking the burden of all this paperwork away is a huge relief,’ explains Andy Garrett. ‘It can all be done by us from the comfort and security of your own home. And there are no fees or administration costs when you sell to us, unlike some of our competitors. We will pay the full valuation for your car with no deductions. The money is instantly transferred at the time of sale, too, so there’s no added anxiety of waiting for the funds to go through.’
• Find out more at garrettdorset.co.uk
• Read the reviews at garrettdorset.co.uk/whatour-clients-say


Once the house and collections manager at Kingston Lacy, Rob Gray is now collections and experience manager at the award-winning Museum of East Dorset All images: Courtenay Hitchcock

Rob Gray: history-loving boy, former precious painting courier and now Wimborne’s museum curator cataloguing 40,000 pieces of Dorset’s past
Rob Gray is squirrelled away in what he affectionately calls his ‘shed’. This is the engine room of one of Dorset’s smallest and most idyllic museums –Wimborne’s Museum of East Dorset (MED).
Shelving runs down the length of the room, neatly stacked with boxes containing a fascinating journey through time. A stunning Victorian dolls’ house sits alongside a magnificent magic lantern, the 19th century’s image projector. Rows of Roman pottery stand to attention. A firefighter’s battered leather helmet, dating back to Wimborne Fire Station circa 1880, is carefully wrapped.
You can’t help but wonder about the head that wore it ...
Rob’s been the collections and experience manager at this award-winning museum for just over a year. One of his many jobs is painstakingly cataloguing every single archived item –that’s around 40,000 pieces. He describes it as a labour of love – and possible only with the help of an army of dedicated volunteers. Rob is also responsible for the 11 museum galleries housed
‘I call in favours from other museums. I can be a charmer when I’m asking to borrow!’
in the beautiful 16th century building. When we speak, he just launching a new exhibition. The current, hugely popular, Rebellion and Revolt, which has been vividly detailing the impact of the English Civil War on East Dorset civilians, will be replaced by ‘I Grew Up 90s’. This marked contrast is an homage to the era of the Spice Girls, Lara Croft, Nokia phones and Tamagotchis. Yes ... the 1990s is now consigned
to museum-worthy history!
‘I curate two special exhibitions a year and am always working a year ahead, pitching ideas to the museum director and trustees,’ says Rob. ‘We’re a charity and a community museum, and budgets are tight, so I call in favours from other museums. I can be a charmer when I’m asking to borrow!
‘My exhibitions are known for being historically accurate, fun ... and maybe a bit quirky.’
All research, writing, interpretation panels, even painting the walls and changing the lightbulbs, is down to Rob. His passion for history is infectious, and you definitely want him on your pub quiz team.
‘As a kid I adored reading. I devoured books from my local library, which had a brilliant
historical section. I remember winning a writing project at primary school. I chose the English Civil War. I’d never won anything before – I was really chuffed.’
A
German Jew, he grew up on the same street as Hitler in Munich.
During school holidays, Rob and his dad – hugely influential in his life – would explore castles and historic houses together in the north of England and Scotland. ‘Other kids wanted to go to games arcades. I wanted museums and castles.’
history alive
Edgar really could bring
– he’d actually lived it.’
This history obsession led to studying medieval and modern history at Southampton University. ‘The syllabus covered
the Crusades to Hitler. I had a truly inspirational lecturer, Professor Edgar Feuchtwanger OBE. As a German Jew who grew up on the same street as Hitler in Munich, Edgar really could bring history alive – he’d actually lived it.’ Come 1997, the boy who wandered around stately homes got the chance to live in one! Rob was appointed house steward at Dorset’s famous Kingston Lacy. Responsible for organising the cleaning, maintenance, mothballing and repairs of this acclaimed historic home, he was also a live-in security guard: ‘I

One of Rob’s many jobs is painstakingly cataloguing and digitalising every single item in the museum’s archive – that’s around 40,000 pieces. Here, he’s examining slides for the 19th century magic lantern on the table


Rob Gray, deep in his ‘shed’, the museum’s engine room of an archive with shelving neatly stacked with boxes containing an eclectic, fascinating journey through time

Rob says the current exhibition in the Voices Gallery is the most underappreciated exhibit in the museum. It is showcasing local artist Nic Rawling and The Paper Cinema
lived above the shop – but what a shop! When the public left, you had the house and grounds to yourself. That was special.’
Promoted to house and collections manager, Rob had the dream opportunity of combining his love of history with his passion for travel.
‘Artwork is loaned to galleries and museums around the world. Kingston Lacy’s incredible collection of works by Rubens, Van Dyck, Titian and Tintoretto –to name but a few – were in high demand. Acting as a courier, I would accompany these hugely valuable pieces. As you can imagine, all the conditions must be right for travel. It was my responsibility to get the artwork there in one piece and then oversee its installation.
‘That’s a tad stressful. Picture the scene: Italian crane driver, smoking a fag while dangling a multi-million-pound painting from a winch high above a gallery in Rome’s Palazzo di Venezia. I had to cover my eyes!
‘Most people never use their history degree, but I’ve been lucky enough to make a living with mine. Here I am, doing what I love, in this gorgeous museum and aiming to get others hooked too. History never stands still.’
• museumofeastdorset.co.uk
• I Grew Up 90s opens on 16th November and runs until 29th March 2025

‘My exhibitions are known for being historically accurate, fun ... and maybe a bit quirky.’
Rob’s special quick fire questions:
Among the thousands of Museum of East Dorset exhibits, what’s your ...
• Oldest?
Some of the prehistoric tools on display in the Landscape Gallery are thousands of years old.
• Weirdest?
The mummified cat found in the building that is now the Santander Bank in Wimborne High Street. It was used to ward off evil spirits.
• Coolest?
German Luftwaffe chocolate. It was ‘rescued’ (pinched!) from a German bomber that crashed at Sturminster Marshall during the second world war.
• Rarest?
The Iron Age skeleton of a man (400 – 200 BC) in the Life and Death Gallery. His spine reveals that he died of TB, one of the earliest prehistoric cases of TB recorded in Britain.
• Most under-appreciated?
The current exhibition in the Voices Gallery, showcasing the talent of local artist Nic Rawling and The Paper Cinema (on loan).
• Favourite?
Vinegar Valentine cards in the Stationers Gallery. A selection of satirical Victorian Valentine cards – some are downright rude! – they were used to firmly rebuff unwanted amorous attention.







MAD DOG MCREA
SAT 21ST DEC
Mad Dog Mcrea return with their unique mixture of folk rock, pop, gypsy jazz, bluegrass and ‘shake your ass’ music. Support from Ian Prowse (£22 50)
THOUGHT CONTROL - PINK FLOYD
FROM GOLD TO RIO
FRI 15TH NOVEMBER
Returning with 2 hours of non-stop Spandau Ballet and Duran Duran classics including Gold, Rio, True, The Reflex, Through the Barricades and more (£21)

SAT 16TH NOVEMBER
The lighting, projection and laser effects create the perfect backdrop for 2 hours of all-time Pink Floyd classics - Another Brick In The Wall, Money, Comfortably Numb, Wish You Were Here and more.... £22)
HENRY BLOFELD
SAT 23RD NOVEMBER
With his signature wit and insight, Henry compares the cricketing landscape of today with the cherished memories of yesteryear with his new talk ‘Sharing The Love of Cricket’ (£20)

WEDS 4TH DEC

Labour’s lack of preparation and tax-heavy approach risk undermining small businesses and rural economies, warns Simon Hoare MP
After the General Election, I said that, in the interests of North Dorset and the wider country, I wished the incoming government well. I meant it. I am working collaboratively with ministers on certain issues and working ‘across the aisle’ on others. I am, however, becoming increasingly worried that the Government, despite its mammoth majority, appears to be so hesitant on some issues and plain illinformed on others. My worries only grew when speaking to a Labour veteran, who told me how anxious many were on the government benches at just how underprepared they were for government. Labour’s victory was not a surprise one. We have to ask what they have been doing, for all those long years in opposition?
Preparing detailed, radical, dial-turning policy has not been done.
Opinion Polls seem to suggest a growing disquiet with the Government. Local government byelections – where Labour is losing ground – is turning theoretical polls into actual votes.
possible on business, and that those businesses will simply hang around and pay them: threats to end the 25 per cent tax free on personal pensions has already seen massive numbers of pensions being drawn down early.
Labour clearly still does not get small business.
Micro and small businesses are the life blood of the North Dorset economy
Labour’s honeymoon lasted about as long as a Las Vegas shotgun marriage.
Dorset’s life blood
I write this on the cusp of the Budget, and it is worrying that the PM cannot define what a working person is – or indeed how the tax system should operate for them.
My anxiety is that Labour feel they can hike as many taxes as
Micro and small businesses are the life blood of the North Dorset economy and the Chancellor has them firmly in her sights. She appears to be unaware of how job-destroying her policies will be to this vital sector. She may have buttered up the CBI, but she has ignored the Federation of Small Business. Labour’s rural ignorance will become apparent if the Government changes the decades-standing approach to farm taxes. Too many small family farms will disappear under the weight of tax bills. This will change, for ever, and not for the better, the environment of rural North Dorset. Business confidence is falling just when it needs a shot in the arm. People did not like paying increased tax under the last government but they understood it was because of the public spending undertaken during Covid. No one is buying this £22bn black hole fantasy that Labour has dreamt up. Still less are they buying that the economy was broken. Falling interest rates? Falling inflation? Rising business confidence and investment? No house repossessions or at scale business failures ... If that is

broken then it is a strange definition of the word.
Rub their noses in it
We all want a reliable public sector but Labour’s lack of understanding that you can only fund it sustainably through the endeavours of the private sector, through entrepreneurs, investors and risk takers who create the profits and jobs that generate the tax that pays for public services. Exempting public sector bosses, while crippling private sector ones, merely rubs the private sector’s nose in it. What my inbox is telling me, and those of most MPs irrespective of party, is that people are furious at having been lied to at the General Election by Labour: “We will be pure and whiter than white until the offers of Taylor Swift tickets, suits, glasses and God knows what come along ...” One thing the British people hate is hypocrisy. They would know there would be rising taxes within three months of forming a government, so why lie about it during the election campaign? The self-styled Iron Chancellor is already looking somewhat rusty. I am not certain she will pass her MOT.
As I write this, we await two highly significant events – the Labour government’s first budget and the election of the next US President. While the result of the US election is sure to have world-wide ramifications, the Labour budget will undoubtedly have major consequences closer to home. The US presidential election is worryingly too close to call, and the possible consequences of Trump winning do not bear thinking about. At a time when the world urgently needs to come together to address the environment, climate and conflict, Trump’s deliberately inflammatory and divisive brand of politics and his climate denialism would add hugely to the challenges we face. His well-documented routine

of repeatedly saying things that are clearly and demonstrably untrue is both astonishing and alarming. Astonishing that he says them in the first place, and alarming that if anything they seem to increase his popularity with a large part of the American electorate. That said, we don’t have to look too far to find politicians of our own who have a somewhat distant relationship with the truth.
In advance of the Labour government’s first budget much has been made of the so called ‘black hole’ in public finances inherited from the previous government. Chancellor Rachel Reeves has vowed there will be no return to austerity, but it’s hard to reconcile that promise with her recent demand that ministers draw up billions of pounds in cuts to infrastructure
projects. This could affect projects such as hospital improvements – which are urgently needed, as anyone who has anything to do with the NHS – especially the staff – knows only too well.
Having been badly let down by the last government, including its phony pledge to build 40 new hospitals, the NHS urgently needs investment if the health of our nation is to be rescued from the depths to which it has plunged, with 2.8 million people too ill to work and rising rates of cancer, obesity, type 2 diabetes, cardiovascular disease and mental health issues.
The NHS is just one example of how vital it is for the bean counters to focus on the longterm benefits of investment, rather than the short-term costs. The same goes for the environment & climate. As always, prevention is better (and much cheaper) than the cure.
Ken Huggins, Greens
We have not yet had time to unpick the detail of the new government’s first budget. As I write I do not know to what extent Labour is committed to fixing the problems left by the last administration, or if it is simply continuing on with business as usual.
Instead, I thought I would address one of the major pieces of legislation due to come before Parliament very soon: The Terminally Ill Adults (End of Life) Bill – commonly referred to as the Assisted Dying Bill. First, I think it is important to deal with the facts of what this
legislation proposes: there is a lot of misinformation both in the press and online.
As of today, the full text of the bill has not been published. Once it has, there will be time set aside to debate the legislation in Parliament and propose amendments, before any vote takes place.

The merits – or otherwise – of what the bill actually says, and
not the hyperbole that surrounds it, is what matters. What the MP proposing the bill has made very clear is that the change of law will only apply to adults who have a terminal prognosis, and have less than 12 months to live. They must also be cognitively healthy and therefore able to make an informed decision themselves.
It will not apply, blanket-like, to people living with a disability, mental health condition or long term/chronic pain, the elderly or anyone else – ONLY those with a terminal diagnosis, who have less than 12 months left to live, and are cognitively competent.
Importantly, it will require the agreement of two doctors and a judge before the patient’s decision can be agreed to.
The safeguarding mechanisms that the bill puts in place will, without doubt, influence how MPs vote.
No one will support a change in the law that risks anyone being forced or coerced into make a decision against their will. While I will keep an open mind until the full details of bill are published, if it does achieve the high level of safeguards I wish to see, then I am currently
minded to support a change in the law.
That said, I strongly believe we should be focused on dramatically improving assisted living (or palliative care) so that people do not have to endure pain and suffering, and can properly enjoy their final days with those they love and who love them.
Edward Morello MP West Dorset
I am all too aware that the news this week – and probably for the next few – is likely to be all about Labour’s first budget, but something else caught my eye.
BBC Dorset reported that Dorset Council failed to ensure a child received suitable full-time education and was told to pay £7,200 in compensation. The Local Government Ombudsman (LGO) found the council failed to top-up the child’s education when they were put on a parttime timetable after their school place broke down. The news item was a bit worthy, a bit difficult to understand ... but something made me pause and think. The case highlights something wrong with the UK’s educational framework, and simultaneously shows how much central government has ruined local government.
The specific case shows the misalignment of accountability for educational outcomes sitting with local government, while the authority to influence education has increasingly been removed from local council control. The more general problem is that, as much as central government attempts to control everything from
the centre, it lacks both the local understanding and the organisational horsepower to do the job properly. Thus, by attempting to do so much, central government ends up achieving so little.
Dorset Council, like all local authorities, retains oversight and control of children’s education provision, even if it arranges for schools or other bodies to carry out the functions on its behalf. However, the shift towards central control through academisation and the increased role of private trusts in managing schools have diluted councils’ influence.

and people are confused. The consequences for the family referred to in the BBC report were distress and inconvenience, but the erosion of local government capability carries on regardless. Conservative governments have led the way in relentlessly relegating local councils to emptying bins and trying to deliver social care without bankrupting the council. This tide must change.
This misalignment means that while Dorset Council is held accountable for educational outcomes, it lacks the authority to implement and enforce changes within schools. This misalignment is the same in so many areas of local government. Roles and responsibilities are complicated,
Liberal Democrats want central government to be braver –to accept that it needs local government’s help to deliver economic growth and better public services. Labour promises further devolution, which is good news, but it needs to come with meaningful powers and long-promised funding reform. Contrary to central government’s belief, giving up some power will improve everyone’s ability to deliver their promises.
Gary Jackson, LibDems
Want to reply? Read something you feel needs commenting on? Our postbag is open! Please send emails to letters@BVmagazine.co.uk.
When writing, please include your full name and address; we will not print this, but do require it.

On George Hosford
I wanted to express my admiration for George Hosford’s compassionate approach to the unexpected barn owl chicks found in his combine’s auger tube, in last month’s article. (Help! There’s owls in the combine!,
The BV, Oct 24 issue)
It was heartening to see George take such care to safely relocate the chicks rather than pushing forward with his harvest.
I have become a big fan of George’s though his columns in the BV – and these actions reflect his genuine commitment to wildlife and sustainable farming practices. It’s refreshing to have someone like him in our community, someone who not only writes thoughtfully about these issues but also practices what he preaches on the farm.
Thanks, George, for showing how it’s done!
Annie Potter, Verwood
I am not a farmer. I have absolutely no interest in seed. Nor, frankly, do I understand any kind of engineering machinery.
Why then did I just sit and read the entirety of George Hosford’s farming column this month? I was swiftly and deeply invested in the wildflower seed mix. I was utterly fascinated and spent far to long poring over the diagram of the seed sorter contraption. I now know more than I ever knew I needed about seed mixes and cover crops, and I am very satisfied by this.
Thank you George. And thank you BV for such an interesting peek into farming – I’ve lived in Dorset all my life, but I have only ever seen it from ‘the
other side of the hedge’ – your farming columns are an absolute eye opener, and should be required reading.
Nicky S, Wimborne
This year marks the 110th anniversary of the outbreak of World War One. To mark the occasion The Okeford Fitzpaine Local History Group have installed a memorial at the approach to the village on Castle Lane adjacent to the recreation ground. During WW1 the graves of the fallen were initially marked with white wooden crosses – later on, the Commonwealth War Graves Commission consolidated the cemeteries and erected Portland stone headstones.
The display on Castle Lane (seen above) emulates those first crosses, with a cross to each man from the village who lost his life in the two world wars. A display on the village war dead is also shown in the Village Museum and St Andrew’s church has a stunning cascade of poppies falling from its tower. As chairman of the local history group, I researched the lives and deaths of each man in 2014, creating a book titled The Butterboys in Battle. The principal employer in the village at the time of the Great War was Hill View Dairies* and new employees would start their career as “Butterboys”. The name was taken up by Okeford United Football Club – they are still known by it today. What better place for a memorial to the fallen Butterboys than alongside the field where today’s Butterboys still play football? Each cross bears the name of the fallen
serviceman together with a photograph to put a face to the name. Although there are photographs of most of the 19 men, I am hunting for pictures of Samuel Fox, Maurice Miller, Howard Ridout, John Warr, William Kendal Clarke and Charles Ricketts. If any BV reader has a photo of any of these men please get in touch at ajvickers@outlook.com.
Andrew Vickers, Okeford Fitzpaine
* Hill View Dairies was featured as a Then and Now article by the late Roger Guttridge in The BV, June 2021
I have recently seen Dorset Council once again advertising its LitterLotto campaign, this time encouraging children out Trick or Treating to pick up rubbish in return for prize draw entries on the app. It raises serious concerns. Clearly, promoting litter awareness, civic responsibility and clean streets is commendable – but relying on young people to do this work feels risky and unfair. Firstly, there’s the issue of safety. Litter often includes dangerous items like broken glass or needles. What if a child is injured? Will the council take responsibility? Beyond physical risks, there’s also concern for children’s security if unsupervised. Volunteer litter picks are always equipped with HiViz gear for a reason!
Moreover, the ethics are troubling. The council already employs workers to keep streets clean, so why shift the task onto children for the chance of a prize? This approach smacks of unpaid labour from our youth.
Encouraging community spirit is one thing, but I’m sorry, this initiative crosses a line. The council should invest in its staff to handle these responsibilities without exploiting young people, and concentrate instead on simply teaching EVERYONE how to use a bin.
Janet Green, Sherborne
On Cluckonomics Revisited:
After reading last month’s Cluckonomics Revisited (The BV, Oct 24) by Andrew Livingston, I felt compelled to challenge the narrative slightly. I’ve recently cut down my meat consumption to just twice a week, driven by alarming insights into the environmental cost of livestock farming. It’s great to see some sustainable practices in poultry farming highlighted, but let’s not skirt around the fact that reducing meat consumption is a quicker, more impactful way to decrease our carbon footprint. I hope more readers realize the power of their dietary choices and push for broader adoption of sustainable farming methods.
Anita V, by email

Have confidence in the decisions you make.

When it comes to giving advice, we take the time to get to know your business and what you want to achieve, whilst making sure that we explain your options in everyday language.
By working with us, you can be confident that whatever decisions you make, they’ll be based on sound legal advice that’s in your best interest.



We switched things up for a cryptic puzzle this month! As always, just click to complete on your tablet, computer or phone - or there’s a download ‘PDF’ option if you prefer pen and paper.

Jigsaw A typically flooded November sunset in Dorset – just click to complete!



Beavers became extinct in the UK in the 16th century when they were hunted for their fur and meat. They were extinct in Dorset for about 400 years. In 2019 two beavers from Scotland were relocated to the Mapperton Estate in Dorset as part of a conservation project. In June 2024, evidence of beavers was found in the wild close to the River Stour near Gillingham in Dorset. How they got there is unknown, although there are beavers living in neighbouring rivers to the north in Somerset. The beavers could have made their way to Dorset from there. But it is very exciting that they are making a comeback!
Beavers are really good swimmers and divers. But the best thing about beavers is that
Employ My Ability offers vocational training for students with learning disabilities and special educational needs. One of their students, Maddie Walters, spent her work experience with us, and now writes a regular column - Ed

they are known as “ecosystem engineers” – they change their habitat by dam-building, which can reduce flooding, and they can even help improve the water quality.
Ben Padwick, the ranger at the Mapperton Estate says: “We are looking forward to seeing their positive impact on the landscape.”
Beavers live about 10 to 12 years
and work very hard shaping their environment. Did you ever wonder why we use the term “beaver away?” Now you know! If you’re excited about beavers being back in Dorset, and want to support them, the Dorset Wildlife Trust is a great website to visit. It has a page for the Dorset Beaver Project and you can discover the wetland world in West Dorset at the website too.
Voluntary and community groups across Dorset are invited to apply for the latest round of the Community and Culture Project Fund. Managed by Dorset Council, this fund supports projects and events focused on community, arts, accredited

museums, heritage, sport, youth, play and physical activity. Grants of up to £5,000 are available for projects that aim to bring communities together. Over the past year, the fund has distributed more than £100,000 to a wide range of initiatives across the region. Recently, 14 organisations received a total of £54,625 for projects including skateboarding programmes for low-income families and theatre experiences for individuals with profound learning difficulties. An additional 12 grants, totalling £39,879, supported projects like food banks, cookery classes and climate initiatives. The Dorset Community Foundation also awarded £6,300 to three applicants through the Dorset Performing Arts Fund.
Cllr Ryan Hope, Dorset Council Cabinet Member for Customer, Culture and Community Engagement, said: ‘The work of community groups and voluntary organisations help make Dorset a vibrant and supportive county. The grants have been a real success, and we have seen many exciting projects launched for the benefit of local communities.”
The fund provides grants between £1,000 and £5,000, covering up to 80 per cent of total project costs. Applicants must provide 20 per cent match funding from their own organisation.
• Applications close at midnight on Monday 18th November.
For more details, visit dorsetcouncil.gov.uk/w/ capital-leverage-fund.
Employ My Ability launches Supported Internships, empowering young people with EHCPs to gain workplace skills, confidence and independence
As we look to increase what we offer at Employ My Ability for our young people, we’re pleased to be bringing EMA Supported Internships to both our campuses in Gillingham, and Moreton.
What is a Supported Internship?
A study program specifically catered for young people aged 16 to 24 who have an Education, Health and Care Plan (EHCP) and are looking to start a job but could use a bit of extra support as they find their way. These internships typically last for a year and offer the chance to experience up to three different placements.
Supported Internships provide a brilliant practical opportunity for young people to take their first steps into the working world, develop valuable workplace skills, earn qualifications and potentially land a paid job in their desired industry. With our proven record at EMA in helping students succeed, the internships will compliment an already diverse range of choices for them.
A range of benefits
Our Internships will offer a mix of education and job coaching in a variety of different roles, including Catering and Hospitality, Horticulture, Retail and Customer Service.
Interns will benefit from a planned programme of learning that supports them to develop the skills they need for working life these in include:


• Support to develop the skills, knowledge and behaviours needed for work, allowing them to build confidence before they start external work placement
• Employability skills including English and Maths
• Support to develop important personal and social skills
• Support from both our Next Steps co-ordinator and job coaches to find work placements that are within the intern’s community, and supporting interns with travel training to become independent
Employ My Ability has a proven track record with a successful history of helping students achieve and unlock their potential, while developing their personal confidence, communication and life skills. Previous graduates have moved into paid work within their communities, and we are continuing to adapt the opportunities we offer to ensure many more can find their future.
• Supported Internship at EMA have a rolling intake – courses are three days a week, and applications are open now.
• Course Requirements: Entry 3-Level 2 and above.
• Would you like to know more? Contact us today: referrals@employmyability.org.uk

In a quiet corner of Dorset, Eric Jager, 68, embarked on his most challenging run ever – a selforganised 72-kilometre journey, passing 25 churches in what he calls the “Steeples Chase.” On 19 October 2024, before dawn, Jager began his one-day ultramarathon, aiming to complete the challenge within 12 hours and raise funds for Christian Aid. The run, which began with a prayer at his front door, was set to finish at St Paul’s Church in Sherborne, by sunset.
‘The most important thing is not that I finished the 72 kilometres,’ Eric shared post-run, ‘but that so many wonderful people joined and supported the journey.’
Supporters included members of his running club, Sherborne’s SPFit, and his long-term friends, the Trailtrotters. Eric divided the run into six segments, each featuring a rotating cast of friends and family to see him through the most gruelling parts, running or cycling alongside, offering encouragement.
‘The number of people who came out with me were more than I’d


expected,’ he says. ‘And many of them stayed with me longer than they’d planned. I feel very humbled by all 35 of them.’
Eric’s journey was far from straightforward: ‘We managed a very steep, slippery and muddy hill,’ he says. ‘All the fields were sodden, and a totally flooded area with a river current meant we had to wade knee-deep. ‘We finally finished 30 minutes behind schedule, but comfortably within the 12 hours cut-off time.’
Eric had scheduled five-minute whistle stops at five of the churches, but proved not nearly enough for a change of support crews, to re-fuel and also to care for his neuropathy-affected feet with five changes of socks and two changes of shoes. The constant support helped him not only with logistics but with morale. ‘As much by the fact that I could hear that they at least were having a good time when I was in front!’ he said.
At his final stop and home church of St Paul’s, Eric’s friends and family cheered and clapped his final steps, a fitting end to his long-distance running career. Eric particularly thanked his wife for her unending support,
promising, ‘I want to learn the new skill of going out together for short and meandering walks, in those beautiful places in Dorset. You’ve been rather deprived of those.’
For all the difficulties en route Eric never considered quitting: ‘I would not have wanted to stop just because the going is a little tough. That’s not an option to the people Christian Aid support, whose lives are a constant and relentless battle to survive.’
Eric’s Steeples Chase has so far raised £4,640.75 - more than twice his initial target, and his donation page is open until the end of November here.
• The churches visited on the 72km route were: Sherborne Abbey, Sherborne Cheap Street, Sherborne Castleton, Oborne, Poyntington, Corton Denham, Sandford Orcas, Trent, Nether Compton, Overcompton, Bradford Abbas, Thornford, Lillington, Beer Hackett, Yetminster, Ryme Intrinseca, Chetnole, Leigh, Hermitage, Glanvilles Wootton, Holwell, Bishops Caundle, Longburton, Folke and finally his home church of Sherborne St Paul’s.


At times I’ve had a difficult relationship with Dawes. The Californian alternative / Americana brothers started imperiously with a six-year run of albums which dished up a string of instant classics. Tracks such as When My Time Comes (North Hills, 2009), So Well (Nothing Is Wrong, 2011), Most People (Stories Don’t End, 2013) and Things Happen (All Your Favourite Bands, 2015) cemented the duo’s position as rightful heirs to Jason Isbell’s Americana throne. But in a push to develop their sound, Dawes lost their way. The raw production and simple arrangements – which had provided necessary balance to the sometimes saccharine and always ‘pop’ nature of their compositions –were replaced with misplaced synth lines and gated snares. After a cursory listen to 2018’s Passwords, I gave up.
But I’m happy to report that with Oh Brother (their ninth Studio LP), Dawes have well and truly won me back. From first glance of the album sleeve, which features a portrait of brothers Taylor (guitar/vocals) and Griffin Goldsmith (drums/vocals), the signs are there that this is a welcome return to their Laurel Canyon-inspired roots.
Every single song here begins with a simple guitar and drums intro. Opening track Mister Los



Angeles is a perky but pointed diatribe against LA. excesses. House Parties is a love letter to its subject. Celebrating local bands, spilled drinks and singalongs, it skips along nicely, propelled by a slide guitar part reminiscent of the Eagles lighter moments. But the highlight of the album is The Game, reinforcing how special Dawes can be when they keep it simple, and featuring an instantly memorable chorus (“the losers only think about the winners, the winners only think about the game”). Dawes are back, and oh brother, how I’ve missed them.
• Matthew Ambrose presents Under The Radar on Tuesday evening at 7pm on Abbey104. Broadcasting on 104.7FM and online at abbey104.com.


DocBike’s annual motorcycle ride out on Saturday 21st September was a huge success, raising more than £8,000 for the life-saving charity. DocBike Regional Leads guided convoys from various starting points in Dorset, Devon, Hampshire and Somerset, all converging on the Dorset Bike Festival in Bere Regis.
More than 600 attendees turned out at the festival to enjoy an array of motorcycle displays, stalls from local dealerships, delicious food and live music. The day’s highlights included the grand raffle, with prizes donated by local businesses in Dorset. The event also offered DocBike volunteers the chance to talk to motorcyclists, raising awareness of the charity’s work and the importance of upskilling riders. They promoted the free BikerDown course, which teaches bikers how to keep

injured motorcyclists alive until emergency services arrive.
Brett Callaghan, Regional Lead for Somerset and Avon, and Deputy National Director of DocBike, said: ‘This was the first time that we held the end point of our ride out at the Dorset Bike Festival and it was such a success. The DocBike charity receives no funding from the government and relies on the
generosity of the public to continue our life-saving work, so we are thrilled to have raised such a fantastic amount.
‘Leading the Devon, Somerset, and Avon ride into the Dorset Bike Festival was an amazing feeling. The atmosphere was incredible.’
DocBike expressed their gratitude to everyone who supported the event.
North Dorset Railway in Shillingstone has reached a major milestone, with the first new track being laid north of Haywards Lane since 1967.
Volunteers have prepared the trackbed with stone, ballast, sleepers and track, which will eventually connect back to the station’s existing track. Contractors have also started work on a new car park, set to relieve parking pressure on the industrial estate and enable larger events at the station. Shillingstone Station was featured in the first programme of Channel 4’s recent Abandoned Railways from Above series, showcasing its scenic views and historical appeal. Visitors are always welcome to explore the station, enjoy exhibits, visit the museum and signal box, and
relax in the Mark 1 carriage cafe when the weather is not so good.
Christmas is coming Santa’s annual visit will take place on Sunday, 15th December, from 11am to 3pm. Children can meet Santa and receive a gift for £4.50 per child,
with proceeds supporting the railway’s restoration. Bookings are essential by phone or in person at the station.
• northdorsetrailway.co.uk
• Shillingstone Station is open on Wednesdays, Saturdays, Sundays and select Bank Holidays from 10am to 4pm.


Could the weather have been any more perfect for this year’s Stickler race? Now in it’s 29th year, regular runners have come to expect flood-like conditions and some were apparently disappointed by the lack of wading required! But nobody was disappointed by the beautiful sunshine and the opportunity to run in a vest at the end of October. The Dorset Three Peaks involves more than 1,500ft of gruelling climb, beginning with the infamous Stickle Path. Runners ascend three locally-renowned peaks along the beautiful Stour Valley – Okeford Beacon, Hod Hill and Hambledon Hill. This year more than 570 runners registered, and there were 510 finishers. Local runner Dave Hewes from North Dorset Triathlon Club was under very strict instructions to get around safely as it was his stag do – he was getting married the next day! Luckily he achieved both, and we wish huge congratulations to him and his new wife. The Doddlers’ own Jane Feather ran it as a birthday present to herself (it takes all sorts - Ed), and what better way to spend the day?
The 2024 winner was Charles Ford, who completed it in a time of 1:06:02. First female over the line was Anna Philps from Purbeck Runners in 1:19:20. Second and third males were Christopher Peck from Egdon Heath Harriers (1:06:44) and Matthew Harris from Oxford University AC (1:08:32). The second and third females were Emma Hines from Swindon Harriers (1:20:02) and Ali Young (1:21:16). The winning female team was from Chippenham Harriers, consisting of Liliano Soto, Juliette Hatt and Julia Maddocks. Winning men’s

The Stickler – officially The Dorset Three Peaks – involves 1,500 ft of gruelling climb as runners ascend Okeford Beacon, Hod Hill and Hambledon Hill.
team was the Dorset Doddlers team of Christopher Wright, Rich White and Tom Mitchell. Well done all! The race organisers would like to say an enormous thank you to everyone who made the 29th Stickler such a success. The race is only ever as good as its volunteers (the Stickler has more than 80), and the consensus is that these are the best.
The organisers send special thanks to the Dorset Doddlers running club, local community volunteers, Ann Powell and all at the Shillingstone Church Centre, Shillingstone Station, the residents of the local villages who are always so patient and supportive, and the amazing sponsors Hall and Woodhouse, Honeybuns and Up and Running Bournemouth.
Keep Sunday 26th October 2025 free for next year’s event when Adam Frampton will be stepping up for his first Stickler as Race Director.
Cricket Dorset Ltd and Bryanston School have announced a three-year partnership to provide a training centre for Dorset Cricket’s Emerging Players Programme (EPP). The agreement secures

the use of Bryanston’s top-class facilities, including state-of-the-art sports halls, a training room, and classroom spaces to support the development of young cricket talent.
Ben Skipworth, Managing Director of Cricket Dorset Ltd, said, ‘We’re delighted to have cemented our partnership with Bryanston. Their facilities offer our players an excellent environment to develop their skills and follow in the footsteps of Scott Currie and Joseph Eckland.’
The Dorset Cricket Talent Pathway continues to thrive, with four graduates currently on Hampshire CCC staff, and others in Hampshire and Southern Vipers programmes. Rory McCann, Director of Sport at Bryanston, added, ‘We share Dorset Cricket’s commitment to nurturing talent and are proud to support players from across the county in our cutting-edge facilities.’
Gillingham Sixth Form is an inclusive learning environment which promotes academic resilience and personal development. Our students are ambitious and socially responsible, and they leave us as well-rounded individuals who are prepared to actively contribute to society.
Gillingham Sixth Form provides more than 30 A Level and BTEC/ AAQ courses – this exciting range of studies includes traditional A Levels and BTEC courses, including more specialist subjects such as Psychology, Economics, Law, Media Studies and Politics. From September 2025 we will also be introducing Sociology.
Our students are guided through the academic rigour of Sixth Form by experienced and committed staff who are enthusiastic about their subjects, and are dedicated to supporting every student to reach their academic aspirations and personal goals.
A broad education
Alongside our academic curriculum, our students are provided with supportive careers, work experience, and Future Routes programmes. These all prepare our students for life beyond Gillingham by introducing them to a host of employers, further education establishments and apprenticeships. This includes personalised support for our Oxbridge, medical, and veterinary candidates. We are proud to see our students’ progress on to university, apprenticeships and into employment. We have a thriving alumni group and we stay in touch with our members through regular newsletters and our annual alumni afternoon in the summer term.
Our Sixth Form students are ambitious in their learning and take pride in our school. Alongside their academic studies our students take part in a comprehensive personal development programme which provides them with vital life skills in leadership and social responsibility. Our students are active members of both our school and our local community, and our sixth formers are role models who work closely with younger years, demonstrating our school values of kindness and dignity. Students also volunteer in the wider Gillingham community, regularly visiting a local Care Home and serving at local fundraising events.


We take a holistic approach to education and provide a comprehensive enrichment curriculum. This provides our students with opportunities to broaden their knowledge of social issues, and develop their emotional intelligence, through our PSHE programme, community outreach opportunities, leadership roles and outside speaker events. As part of our enrichment programme, our students also have the opportunity to develop personal areas of interest through activities including sports and leisure options, debating and public speaking, media and STEM. Last year our school debating team were invited to speak in the House of Lords.
We believe that Sixth Form is a time to embrace new experiences and make the most of opportunities. This is demonstrated through our wide range of extra-curricular trips. In addition to subject-specific trips within departments, our students also have the opportunity to take part in a variety of cultural trips. These include volunteering at a school in Zanzibar through African Adventures, learning to surf on our biennial Sixth Form Surf Trip to Spain, or soaking up the culture of the East Coast of America during the New York and Boston trip. We are a dynamic and forward-thinking Sixth Form who are dedicated to providing the best possible opportunities for your child.
To learn more about what we have to offer, we welcome you to our Sixth Form Open Evening on Thursday 21st November.




A local expert from Citizen’s Advice provides timely tips on consumer issues. In the postbag this month:
Q:‘I keep reading about people losing money in scams and I am worried that it might happen to me. What can I do to minimise the risk?’
A:It’s not easy to spot financial scams so it’s important you know what to look out for. Here is a quick guide to six financial scams:
1. Investment scams: scammers often use fake celebrity endorsements to promote false investments on social media. Scammers can also make fake investment firms seem legitimate by setting up clone websites of real companies. Check for a padlock icon next to the URL in the address bar, and instead of relying on a clickable link in an email or text, search on Google for the company – official websites are positioned higher in the search results since they have existed longer and have more links from other websites.
2. Friend-in-need scam: be wary if a friend or relative messages you urgently asking for money as it could be a scammer pretending to be your loved one to exploit your willingness to help. Before responding to unexpected messages requesting financial help, call your family member or friend directly to confirm the request. Many families choose a simple, memorable password to protect more vulnerable members from scammers posing as loved ones, posting urgent messages.
3. Romance scams: be wary if someone you met on a dating platform avoids video calls and meeting you in person, but starts asking for urgent money due to emergencies.
4. Pension scams: the two main types of pension scam are pension review scams and early pension release scams. Remember that professional advice on pensions is not free – any unexpected calls for reviews or offers are more than likely a scam. Hang up and find a reputable professional locally.


5. Debt help on social media: some financial influencers use social media to promote debt solutions in a misleading way. The solutions may give inaccurate advice which can put your finances at risk.
6. Parking QR codes: QR phishing is where fake QR codes are placed in areas such as car parks where you might scan and pay for your parking at ticket machines. If you find a QR code for payments at car parks, watch out for any tampering signs, and pay attention to the website you’re led to – be sure the QR code takes you to a legitimate site. When in doubt use one of the parking apps, and only pay through those.
If you’ve been scammed:
• Don’t feel embarrassed — scams can happen to anyone
• Report the scam as soon as possible
• Check if you can get your money back by contacting your bank immediately
• For more information, check our website https://www.citizensadvice.org.uk/consumer/ scams/

This month Barry Cuff has chosen two postcards with scenes no doubt familiar to older locals –Blandford Forum a little more than 60 years ago

Sent in December 1961 to Mr & Mrs Daniel (who appear to be Eve’s parents) in Barton on Sea, this lovely shot of the busy Blandford Market Place is not only instantly recognisable to locals in 2024, but no doubt is the Blandford of plenty of local childhoods. Eve is clearly a teacher in Blandford – if any readers remember having a Miss Daniel as a teacher in the 1960s, do let us know! ‘Many thanks for Mum’s letter and for ‘Which?’ I’m nearing the end of reports & am again almost on top of marking, often fighting – & winning! – Some battles. Yet another gale blowing – amazingly variable weather during last week, including snow. Blisses(?) have moved to another house in Chichester. Much love, Eve’


The Salisbury Street area remains familiar, with Durden’s still occupying Durden’s Corner. Henry Durden, born in 1807, established Blandford’s first museum. A Durden is recorded as a grocer in a 1791 trade directory, indicating the family’s early presence in the town. Henry’s museum, located within his shop, gained a strong reputation, showcasing ancient urns, more than 2,000 years old, all unearthed within an eight-mile radius of Blandford. The collection also included prehistoric artefacts from Hod Hill and nearby barrows, as well as flint arrowheads, bracelets and coins. The British Library preserves the ‘Catalogue of the Museum of Local Antiquities collected by Mr Durden of Blandford’ (compiled by George Payne in 1892). Durden frequently acquired items found by locals, often during ploughing or while walking on the local hill forts and barrows. Postcard sent on 22 October, 1954 to a Mrs Simpson in Surrey:
‘My dear Cis. Just a PC to hope you are all well. I am getting on alright but leg not quite healed yet & have not been allowed to get out of bed yet. Shall be glad when I do, 4 months is a long time to be in bed. Best love to you all. Yours Mary xx Hope to see you soon’

Step back in time with our ‘Then and Now’ feature, where vintage postcards from the Barry Cuff Collection meet modern-day reality. Explore the past and present on the same page, and see the evolution of familiar local places. ‘Now’ images by Courtenay Hitchcock


The Street is remarkably unchanged on the left, though the wall on the right has been replaced by garden hedges.

Today’s large village green is not there in the old postcard. At that time, the river extended into a large pond

The Smith’s Arms in Godmanstone dates back to 1420 and originally served as a smithy. According to local legend, the pub’s licence was granted by Charles II, who requested some refreshment when his horse had thrown a shoe and he stopped at the smithy. When the smith explained he had no licence to serve ale or porter, the King instantly granted one by Royal Charter, starting a 350-year career for ’the smallest pub in England.’
The tiny public house measured just 11ft 9ins by 15ft, the ceiling barely clearing the head of patrons over six foot tall and it had just six tables. In the 1960s, the pub was sold to John and Linda Foster. John had been a top jockey who rode in three Grand Nationals, but had to retire from racing after a serious riding accident. The couple ran The Smiths Arms very successfully until the mid-2000s when John’s deteriorating health forced the couple to retire.


Light pollution impeding the view of Orion and Taurus rising over Piddletrenthide (courtesy Kevin Quinn)
Seeking sanctuary under the stars: CPRE’s Dr Richard Miles looks at the push for a dark sky reserve to safeguard our natural nightscapes
One of the attractive features of Dorset is the way it has avoided many of the pressures of modern development that affect so many English counties. And, along with just Norfolk and Cornwall, Dorset does not have a motorway running through any part of the county.
Dark
Driving back to Dorset from London at night, I sometimes follow the A303. The route winds westwards through Wiltshire, passing the brightly illuminated services above West Knoyle before crossing Charnage Down where it reaches a height of more than 700 feet before bending leftwards and dropping down towards Mere. Here,
the Blackmore Vale comes into view for the very first time as an expanse of darkness, telling me I am nearly home.
skies provide sanctuary
– an escape from the spotlight of the modern world
Darkness is our heritage – and it is in danger of being lost.
Being frightened by the dark as a child may be a relic of our ancient past, when there was no artificial light. We survived because of our innate instinct to seek sanctuary at night, not knowing what creature may have lain in wait for us, hidden from view.
Here in the UK we no longer need fear the night. Indeed, the opposite is true: darkness can be an escape from the interminable
lights in our towns and cities, an opportunity to seek rest, recreation and sleep.
Dark skies have become something under which we and fellow creatures can seek sanctuary – an escape from the spotlight of the modern world, a chance to return to nature and to see the world as our ancestors saw it, wild and wonderful.
Having light in the right place, at the right time and in the right amount, saves money and energy, helping to mitigate the effects of climate change. It also supports biodiversity, allowing for thriving habitats for mammals like bats, owls, and hedgehogs, along with insects such as moths and glow-worms.
Loss of biodiversity is a serious problem the world over. Depriving people of the emotional connection with a night sky full of stars is one concern, but light pollution also has direct effects on human health.
Darkness is essential for the natural release of melatonin, a hormone that promotes sleep, regulates our sleep cycles and acts as a powerful antioxidant, protecting against neurodegenerative diseases like Alzheimer’s and Parkinson’s.
Our Blackmore Vale inheritance has historically been a dark one – and it’s one we are welladvised to preserve. Dark skies attract visitors, as demonstrated by the many dark sky parks in Scotland and elsewhere. Nearer home there is the example of Stourton Caundle, where visitors can go Starlight Glamping, free from light pollution and staying in luxury bell tents with immediate access at night to starry skies.
The website Go Stargazing helps people find the best places to stargaze in the UK – some of our local viewpoints, including Fontmell Down near Compton Abbas and the Cerne Giant viewing area on the edge of Cerne Abbas, are featured. Stargazing events, including popular Star Parties, bring together enthusiasts who arrive, equipped with telescopes and binoculars, in their camper-vans, set up tents or stay in local accommodations. The inaugural Cerne Abbas Star Party took place this September at the local brewery and, despite challenging weather, was deemed a success – it will return next year. The event featured speakers like Steve Tonkin, Dark Sky Adviser for Cranborne Chase National Landscape, an officially recognised International Dark Sky Reserve since 2019. Steve assisted in the bid to win this status by serving as a volunteer, taking sky quality readings and supporting stargazing evenings through giving talks and

showing people the night sky.
Naturally, the idea that Dorset might also benefit by having an area set aside as a dark sky reserve was discussed. Would ‘reserve status’ help to conserve our county’s dark skies?
The Dorset Area of Outstanding Natural Beauty, renamed Dorset National Landscape in 2023, comprises some 436 square miles. Some of the skies in this protected area suffer from excessive illumination, as shown by the accompanying light pollution map, but there still remain areas that are properly dark, shown edged in red. Part of this area extends north into the Blackmore Vale. Unlike other forms of lasting pollution in the natural environment, the effect of lighting can be removed at the flick of a switch.
Tom Munro, manager of Dorset National Landscape, recently stressed that ‘Dark night skies are one of the Dorset National Landscape’s special qualities, one of the important elements that add up to this area’s nationally-important stock of natural beauty which is protected for future generations. We fully support the CPRE’s campaign to preserve the few dark skies we have left, particularly in southern England, and work guided by our partnership to that end.’
In the meantime, in the words of Hodges: ‘Put that light out!’

Saturday 9th November is a key date in any West Country sports fan’s diary. Badger Beers Chase Day at Wincanton Racecourse sees the Jump racing fraternity descend on Somerset for a quality day of racing on day two of the West Country Weekend, alongside Exeter’s Haldon Gold Cup Day on Friday 8th.
The Badger Beers Chase is a landmark in the racing season, and it has a host of historic winners from Cheltenham Festival winner Frodon to a region favourite Coome Hill. Recent winner Blackjack Magic (above) is trained just down the road by Anthony Honeyball.
Part of the social calendar
General Manager Blaithin Murphy explains of the excitement ahead of the West Country Weekend: ‘Joining together our fixture with the Haldon Gold Cup at Exeter Racecourse has been a great success for both courses. We’re heading into our third West Country Weekend now, and we’re delighted with how it is developing. Badger Beers Chase
Day is one of my favourite days of the year! We are able to showcase our fantastic racecourse on ITV, and we have been able to build on the day and make racing part of the county’s social calendar.
‘The raceday will have quality action on and off the track –it’s a day packed with fun and entertainment for everyone. Racegoers will be able to try out their jockey skills with the Rodeo Bull challenge and enter the competition to see if they can last longer than a jockey! Or perhaps a trip to the Fun Fair stalls, or the chance to dress to impress and be in with the chance of winning on-the-spot prizes in the Style Awards!’
Racegoers can enjoy live music from the Fat Cats Brass Band as they roam the racecourse, and end the day with an energetic performance by The Show Ponies after learning all about the life of a jockey in the GBR Jockey Hub.
Local stars
Wincanton is considered to be based in the ‘sweet spot’ of British racing. With 14-times
Champion Jump trainer, Paul Nicholls based just down the road in Ditcheat and popular former jockey-turned-trainer Joe Tizzard in Sherborne, Wincanton regularly hosts star names at the track and both are likely to have plenty of runners on the card. Joe Tizzard said: ‘We are West Country trainers and we love the two tracks. It is a big day with the Badger Beer Chase as part of West Country Weekend and it would be a bad job if we couldn’t support it with our best horses.
‘They are in really cracking form at the moment and we are really looking forward to it.’
In the lead up to the big day, Wincanton Racecourse will be welcoming almost 100 children from local primary schools to learn and experience all the racing industry has to offer. From jockey fitness to meeting a retired racehorse, the day will be filled with memorable experiences for the children.
• To find out more about Badger Chase Day, and Wincanton’s other fixtures please visit: thejockeyclub. co.uk/wincanton.
Now’s the time to book your panto tickets, says Dorset’s panto expert Gay Pirrie-Weir – they often sell out, and some start this month
Theatres around the country are getting ready for their biggest event of the year, the pantomime. It’s a peculiarly English tradition and it has an important dual purpose – of introducing young people to the excitement of live theatre and of selling enough tickets over the intensive period around the Christmas and New Year holidays to finance other less popular shows during the rest of the year.
Often families leave the show one year so delighted and richly entertained that they book almost immediately for the panto 12 months on – no matter what the story. There are a handful of familiar tales and time-honoured set piece routines. There is audience participation –something some people used to dread, but seem to embrace with noisy enthusiasm in all sorts of shows these days.
There are always lots of matinees, some in the mornings as well as afternoons, catering for all the family. Look out for men in frocks, villains to hiss, songs to sing, heroes to cheer, and lots of silly fun.
This year’s shows in Dorset (and immediately over the borders into Somerset and Wiltshire,


start with Salisbury Playhouse’s Sleeping Beauty, from 30th November to 12th January. Jack and the Beanstalk is the show at Bournemouth Pavilion, from 7th December to 5th January, and the cast includes Calum Lill, David Ribi, Rachel Grundy and Oliver Brooks. There is a second Sleeping Beauty at Poole Lighthouse, from 12th December to 5th January, starring local favourite Chris Jarvis with Eastenders’ and Spamalot’s Todd Carty.
Doubling up again, Yeovil will be staging Jack and the Beanstalk at Westlands, with a new company including Mark Lamb, Lizzie Bea, Alana Robinson, Daniel Page, Kevin James, Georgie Macaskil and dancer/choreographer James Bamford. Jack will be climbing from 13th December to 5th January. The third telling of the story of Jack and his magic beans comes at Southampton Mayflower where Ashley Banjo and Diversity join in the fun from 14th December to 5th January.
On the same dates at Wimborne’s Tivoli, you can see Snow White and the Seven Dwarfs, and Weymouth Pavilion has Peter Pan for the shortest run from 20th December to 5th January. The “big star” shows this year are well to the west – head to Plymouth for Lesley Joseph and Rob Rinder in another Snow White at Theatre Royal. The hotel-visiting former judge is the Voice of the Mirror from 13th December to 11th January. Meanwhile, Brian Conley and his daughter Lucy are joining David Robbins in Goldilocks and the Three Bears at Bristol Hippodrome from 7th December to 5th January.

COME AND SEE DEMONSTRATIONS IN THE STUDIO, HAVE A GO AT THROWING A POT, FIND A UNIQUE GIFT FROM OUR TRIALS AND DISCONTINUED SALE AND BROWSE THE ANTIQUE GLASS SHOP. REFRESHMENTS BY JESS AT THE POTTERY KITCHEN | HIGHER RD, SHEPTON BEAUCHAMP, TA19 0JT | INFO@DENNISCHINAWORKS.COM
Richard
Nye directing the Gillingham Singers as the choir supported Tenors Unlimited in their recent concert

A garden mowing session on a warm summer’s day was interrupted by the ping of an email on my phone. Delighted for any interruption, I opened the message from Carole, the secretary for the Gillingham Singers: she was sharing a request from The Exchange in Sturminster Newton for a choir to support a professional duo that was coming to perform in October.
Would we like to put ourselves forward?
I slipped the phone back into my pocket, grateful to have some thoughts to keep me company as I finished mowing the lawn.
A bit later I contacted the rest of the committee to gauge thoughts. The choir hadn’t done anything like this before, and it would need a different approach to rehearsals to get it right. Everyone thought it was too good an opportunity to miss, so I was tasked with making contact and expressing our desire to be considered.
A little while later my phone pinged again: “Please could I supply my number, one of the performers wanted to chat.”
Within a few hours I found myself talking with Jem, one half of Tenors Unlimited, a duo that have toured the world, supported Sting and recently performed at the Royal Albert Hall. No pressure then.
In fact there really wasn’t! Jem was a delight to chat to and he offered the Gillingham Singers the gig. Over the following days we were given access to all the musical scores and rehearsal material we needed, and by the start of September we were set to go. The only pressure was time ... just six weeks to get our part in the show ready.
Usually, when rehearsing a concert piece, the path you follow is clearly laid out. But with the role the choir needed to play in this particular concert, things were a bit more complex, and timings needed to be exact. The whole choir got on board, even members who were not able to make the concert joined in, and a great deal of work went into getting things right.
On the day of the concert the choir finally gathered for their sound check and a rehearsal with Jem and Paul. Under atmospheric lighting the choir burst into life during a run-through of You Raise Me Up. Oh my word, what a sound!
The microphones helped the choir provide just the right amount of backing, and with confidence high, we continued with Barcelona, Nessun Dorma and ELO’s Mr Blue Sky. The choir also presented their own contribution, The Lamb by Sir John Tavener, who spent the last part of his life living and composing in Child Okeford.
The choir were buzzing after the rehearsal ... but nothing prepared us for the wonderful concert itself, nor the positive reception to our part in proceedings later on.
It was an experience the The Gillingham Singers will remember for a very long time, and we are very grateful to Tenors Unlimited for the opportunity to perform with them. Also a big ‘thank you’ to Georgina and all the wonderful staff at The Exchange for looking after us so well.
The choir are now in full swing preparing for our concert on 14th December, 6:30pm at St Simon and St Jude’s church, Milton on Stour.
Richard Nye, musical director gillinghamsingers.org
• THE POLAR EXPRESS™ Train Ride in Swanage
Running from 23rd Nov to Christmas Eve: it’s an hour-long train journey with a fully-themed, production of songs and moments from the movie on the platform, and then hot chocolate and a cookie delivered to you in your carriage by THE POLAR EXPRESS™ chefs.
£46.95 per person
swanagethepolarexpresstrainride.co.uk
• Harts of Stur Late Night Opening
After many years absence, the popular event is returning for 2024! On Thursday 5th December, Harts will stay open until 7:30pm, with festive fun for the whole family, including face painting for the kids and a special visit from Santa. Grown-ups can keep cosy with mulled wine and mince pies in the Coffee Loft.
• Christmas Magic at The Blue Pool
From 30th November to 23rd December, children can visit Santa in his grotto (£15 per child, booking required). Take a peaceful winter stroll through the Nature Reserve, enjoy hot, seasonal drinks on the terrace by the fire pits, surrounded by twinkling lights and get crafty and
Thursday 7th November, 7.00pm
Sherborne School Chapel

create fun decorations while enjoying a cup of delicious hot chocolate (£5 per person) bluepooltearooms.co.uk/events
• Carols in the Gardens
FREE carol concert on Thursday 19th December, 6.30pm to 7.30pm in Dorchester’s Borough Gardens, accompanied by Durnovaria Silver Band and Encore Singers. Carol books will be provided, so everyone can take part. Mulled wine and snacks will be available to purchase
• Wimborne Save the Children Parade
On Saturday 14th December, the parade of will start at 2pm from Eaton’s (formerly Cobham’s) car park. Father Christmas will stop at the Museum of East Dorset where he will remain with his sack of presents – children will be welcome to visit him there and receive a (free) small gift.
• Carols in the Corn Market
Wimborne’s magical Annual Event is on Friday 20th December at 6pm. Music provided by Broadstone Community Concert Band and singing accompanied by choristers from Wimborne Minster.

Wimborne’s Museum of East Dorset is showcasing the creative genius of pioneering paper puppeteer Nicholas Rawling. As the artistic director of Dorsetbased The Paper Cinema, Rawling has captivated global audiences with his unique blend of live animation, puppetry, and music since founding the company in 2004. Known for transforming hand-drawn illustrations into cinematic experiences, The Paper Cinema uses live video projection to bring intricate paper puppets to life, creating enchanting, imaginative worlds. Their work has been lauded at major festivals like the Edinburgh Fringe and London International Mime Festival, and has performed all over the world including USA, South America, China, New Zealand, Georgia and all over the UK.
The exhibition, running until the

31st January, features artwork from The Paper Cinema’s acclaimed productions of Macbeth and Ghost Stories, among others. Rob Gray, Collections Manager at the museum said: ‘This exciting exhibition shines a light on a







truly unique theatrical company that we’re lucky enough to have based in Dorset.’
• Museum admission includes access to the exhibition and 12 months of unlimited visits. Children 5 to 16 years £5.50 and adults £12.

Book lovers, collectors and bargain hunters alike can look forward to thousands of high-quality books on sale at unbeatable prices, just in time for Christmas: Dorset Museum & Art Gallery is thrilled to welcome back its popular second-hand book fair on Saturday, 23rd November from 10am to 4pm in the museum’s Victorian Hall. In addition to the museum’s own bookstands, the fair will feature stalls from the Hardy Society and Nangle Books, offering a rich selection of titles across various genres, including Dorset history, travel, music, art and gardening. With both fiction and non-fiction available, there’s something for everyone – whether you’re a history buff, an art enthusiast or simply looking for a great read. Entry to the fair is free, and visitors are encouraged to bring their own bags as part of the museum’s commitment to sustainability. All proceeds from the museum’s bookstands will support the upkeep of Dorset Museum & Art Gallery and its collections, preserving Dorset’s heritage for future generations. In preparation for the fair, the museum is accepting donations of quality second-hand books until Monday, 18th November 2024. Every donation is appreciated and contributes to the success of this popular annual event.

The Berkeley Ensemble was formed by friends in a spirit of adventure: ‘An instinctive collective’ (The Strad), its members have come together from diverse corners of musical life to make music in new ways, reach new audiences and, most importantly, explore new repertoire, be it newly written or inadvertently forgotten. Its acclaimed performances and recordings celebrate contemporary chamber music, especially by British composers.

The ensemble’s nine albums include 18 premiere recordings, among a diverse catalogue ranging from Knussen to Beethoven, and have attracted considerable praise.
The Berkeley Ensemble regularly appears at venues and festivals throughout the UK including Southbank Centre’s Purcell Room, St David’s Hall Cardiff, Wiltshire Music Centre and the Cheltenham, Spitalfields, and Lake District Summer Music Festivals.
Away from the concert platform, the Berkeley Ensemble works tirelessly to foster the creation, appreciation and performance of chamber music at every age, level and ability.
They will be appearing at three local venues across two dates this month:
On Friday 15th November 2024 they will be performing at Bridport Arts Centre at 11.30am, and the same day they’ll be at Ilminster Arts Centre at 7.30pm. On Saturday 16 November 2024 they will be at The Dance House in Crewkerne, 7.30pm
• Tickets at concertsinthewest.org
Evening concerts: £18, Bridport: £14 (optional donation at all the concerts)


The Olivier and Evening Standard Theatre Awardwinning sensation Pride and Prejudice* (*sort of) will play a week-long run at Lighthouse Poole from Monday 18th to Saturday 23rd November. Written and directed by Isobel McArthur, this retelling of Jane Austen’s classic love story blends humour, romance and a modern twist. In this irreverent but affectionate adaptation, love, money and microphones are fiercely contested. Set in the 1800s, with a lively atmosphere reminiscent of a party, the stakes couldn’t be higher when it comes to romance.



The “smart, laugh-out-loud funny” (Daily Telegraph) show features a string of pop classics including Young Hearts Run Free, Will You Love Me Tomorrow and You’re So Vain.
“Faithful to the book, it’s also a raucously irreverent romp” (Daily Mail). The cast includes Susie Barrett, Emma Rose Creaner, Rhianna McGreevy, Naomi Preston Low and Christine Steel, with additional company members Isobel Donkin, Georgia May Firth, and Harriet Sanderson. Each actor takes on multiple roles in this inventive production, bringing Jane Austen’s beloved characters to life with a fresh twist.
It’s the 1800s.
It’s party time.
Let the ruthless matchmaking begin.
• 18th to 23rd November
• 7.45pm (Thurs and Sat matinees 2.30pm)
• lighthousepoole.co.uk
SHERBORNE SCHOOLS’ CHORAL SOCIETY
Britten SaintNicolas
Britten Te Deum in C Vierne MesseSolennelle
Tom Hobbs Tenor
Alexander Eadon Conductor
SHERBORNE ABBEY
Wednesday 12th February 2025 at 7.30pm






Eryngiums are particularly attractive in the garden – and can be sown now. They can take a while to germinate, but they are worth it, and as a bonus are attractive to bees. If you have them, do leave the seed heads on to provide valuable food for birds through the winter months.

Winter prep: Pete Harcom has your November garden tasks including planting trees, caring for tender plants, composting and providing food for birds
Even in the colder days of November there can still be colour in the garden – mahonia, winter honeysuckle and Viburnum bodnantense are just a few plants that will provide colour and fragrance for winter days.
Jobs for November:
• At the beginning of the month there is still time to plant trees and shrubs while the soil still has some warmth. This is also the last chance to get your bulbs,including tulips, in.
• Protect tender plants such as hardy fuchsias, pelargoniums, phormiums, cordylines and tree ferns with horticultural fleece.
• Clear away faded and dying climbers such as sweet peas from their supports.
• Fallen leaves can be cleared up – if bagged up into plastic bags and left for a year, they will rot down to a very good mulch.
• Turn the compost heap and cover it to retain the heat and help the creation of compost.
• Try to leave many of the seed heads of plants such as rudbeckia, sea holly (Eryngium), teasels, love-in-a-mist, ornamental grasses etc as these can all provide valuable food for birds through the winter months. Cut the old seed
heads in spring, when the new growth appears.
• Any alpines planted in the garden can have a gravel mulch – if they are in containers they will benefit from bringing into the greenhouse for the winter.
• Acers are a particularly good show at this time of year with their autumn colours, and now’s a good time to add one to your garden. They can be planted in the ground or pots during November, and will enjoy a sheltered, semishady spot.
• Sow seeds such as sweet peas, Ajuga reptans, cornflowers, Astrantias, Corydalis solida and Allium sphaerocephalon – just a few that can be sown now in a cold greenhouse. Eryngiums are particularly attractive in the garden – and can be sown now. They can take a while to germinate, but they are worth it, and as a bonus are attractive to bees.
• Don’t forget to feed the birds – and ensure the feeders are cleaned regularly. Make sure food is taken or removed so that it does not build up and go stale or mouldy in the feeders.
• After all that is done, have a cup of tea and browse through your seed and garden catalogues and plan for next year!
All Barry Cuff’s squashes were harvested and stored by 25th October: seven crown prince and seven butterfly butternut


Barry Cuff takes a look back at his diary of what happened on his Sturminster Newton plot last month
October was a very wet month, with around five inches of rain, though we did have some warm sunny days with temperatures in the mid to high teens and many nights not falling below 10ºC. These warm wet conditions meant the weeds flourished and our grass paths kept growing. The growing season was lengthened too, and French beans and gherkins were producing right up to the end of the end of the month. The sunshine brought out the butterflies, which were attracted to the flowers on our wildlife patch.
Beetroot – Two varieties, Moulin Rouge and Cylindra, which we’re harvesting as required for salads and pickling.
Broccoli – Both early and late purple sprouting plants are looking well, and have been staked.
Brussels Sprouts – The buttons are nicely swelling, ready for picking from December onwards – the plants have been staked.
Calabrese – The good weather is keeping both varieties (Ironman and Atlantis) growing and producing nice side shoots.
Cabbage – We’re still cutting Red Drumhead for coleslaw and stir-fries. One head keeps for a month in the kitchen and the plants stand well on the plot with no bolting.
Cauliflower – We’re waiting for Cendis to produce curds in November and December.
Carrot – (Early Nantes) We have a lot of carrots sown over a four-month period – it’s always good to dig fresh carrots when required.

‘We’re now cutting excellent Chinese cabbage plants for stir-fries.’ All images: Barry Cuff

Celeriac – We lifted our first plant early in the


month. Smaller than usual, perhaps due to a leaf disease (probably Septoria or Cercospora). We have not seen this before.
Celery – (Golden Self Blanching) This has loved the rain, although we have had a little damage from slugs and woodlice. Plants are lifted as required for salads and soup.
Chicory – (Witloof) This will be lifted next month for forcing.
Chinese Cabbage – We’re now cutting excellent plants for stir-fries.
Courgette – We finally had our last pickings in the middle of the month.
Dwarf French bean – Still producing a few small beans at the end of October.
Wildlife patch – At time of writing we have flowering moth mullein, tithonia, gaura, Michaelmas daisy and echium. These are attracting bees, hover flies and the odd wasp. We’ve seen a whole range of butterflies too –small copper, large white, peacock, red admiral and just one comma. We also had a visit from a southern hawker dragonfly on a lovely sunny day mid month.
Leek – Looking well, perhaps a little weedy.
Lifting as required for soups.
Manure – We have ordered our usual 30 wheelbarrow loads. Hopefully November will not be too wet so we can spread it when it arrives!
Parsnip – (Palace) Digging a root when required, but they do need a frost to improve flavour.
Squash – All were harvested and stored by 25th. In total we had seven Crown Prince and seven Butterfly butternut.
Sweet pepper and tomatoes (in the greenhouse) – A few pepper plants are still producing small fruits. The tomato plants were removed from the greenhouse and green fruits stored to ripen.
Winter salad – All leaves and roots are growing well, and we’re cutting as needed.

• If you are interested in an allotment in Sturminster Newton, get in touch on sturminsternewtonallotments@gmail.com
• Our new seed order has gone in to Kings Seeds via our Allotment Association (members get 40 per cent discount)


It’s the final nail in the coffin of every family farm – a shocked Andrew Livingston responds to the Budget’s tax reforms
Is this the end? Is this when we finally say goodbye to the family-run farm? Does the new Labour government even really care?
I certainly don’t think they get it. We’d been waiting on tenterhooks for it. The government that was essentially voted in purely because they weren’t the other bunch of buffoons appears to have ended farming as we know it. In August’s edition of the BV, I spoke of my worry and fear that the Government was going to cut subsidy funding for farmers. I was scared that withdrawing the cash was going to kill the smaller family-run farms. And, to Labour’s credit, in Rachel Reeves’ budget yesterday was an announcement that there was to be no decrease in the subsidy funding, and instead there would be a rise to cover the shortfall in spending that the last lot of Westminster busybodies failed to dish out. So far so good.
What came next for the farming sector was shocking … genuinely shocking. The removal of the Agricultural Property Relief (APR).
The APR is essentially a protection to ensure that when farm owners die they can pass the land on to their children without having to pay extortionate inheritance tax fees that would cripple the farm. The Labour government, in its wisdom, has announced that estates will now be protected only up to a value of £1m. I’m sorry… what? Have they looked at the market? An old farmhouse on its own is worth a million, and that’s without adding a garden, let alone enough land to work on! Of course, this wouldn’t be an issue if there was some money to be made in farming. Government ministers must just look to farmers and think, “They live in the countryside. They must be minted … let’s take a bit of their money!”
The wealth misconception
According to DEFRA, the average farm income dropped from £20,000 to £17,800 in 2023. Farm incomes are consistently lower than the average for UK households, and this gap has been growing over the past decade. Farming incomes are now roughly half of what the typical UK household earns.
A very quick search found a 225 acre farm outside Bridport, on the market right now for just shy of £4m. It has land and some agricultural buildings, but that price won’t include any farm machinery or equipment. Thanks to the Chancellor, if that farm was passed down to the next generation to keep it in the family there would be a £300,000 inheritance tax bill.
Last year, a crop of wheat made £75 an acre. How is that going to cover a £1,333 an acre tax bill?
Which works out at £1,333 per acre: last year, a crop of wheat made £75 an acre. How is that going to cover a £1,333 an acre tax bill? Well, it won’t. Obviously. In fact, it would take nearly 20 years to pay off – and by then you are dead from the stress of not being able to provide for your children ... and the vicious cycle continues.
Up and up and up
I haven’t even touched on the raising of the minimum wage. Of course it’s a great idea for the Government to give people more money. But the rise is three times more than inflation: I’m not an economist, but even I understand that all this is going to do is drive inflation!
How are businesses going to cover the cost of those wages rising? Well, of course they’ll make everything more expensive. Everything in the shops is going to start to go up more in price … best start hoarding tins and start stockpiling for the apocalypse. You know what really made me scream into my clenched fist? The rich elites all laughing and cheering when Rachel Reeves announced she was going to reduce the draught beer tax by 1.7 per cent on pints in our pubs. To which Reeves happily said: “Which means a penny off a pint in the pub!” Which is just great. Farmers can’t afford to keep their farms after their parents have died … but hey, at least I can get a pint a penny cheaper. Well done. Well done.
Someone stick a pitchfork in me.
I’m DONE.
This month’s pictures from Rawston Farm both capture the same autumnal task of sowing wheat, which 60 years ago was a far simpler method: in 2024, it involves direct drilling into stubble, guided precisely by GPS technology. The cost of the 1960s machinery was probably less than £1,000 – approximately £21,000 today. The 2024 version opposite is worth nearly £200,000!

The final part of this year’s rather protracted harvest is finally complete, with the forage maize crop now clamped ready to be used for our cattle feed for the winter months. We have probably harvested a couple of weeks late, but the weather conditions have not been in our favour. Luckily our soils were not punished too much by the farm machinery taking the crop out of the fields, and we’re fortunate that it also involved very limited public road use. I know that in some parts of the county it has been very challenging to get the maize out of the fields without bringing a large amount of mud onto the roads. In such cases contractors always do their best in brushing the roads to keep them clean and safe for other traffic. We have progressed reasonably well in getting next year’s crop into the ground too: grass seeds, oilseeds and winter barley sowing have all been completed. Hopefully we’ll see some late autumn dry weather so that the winter wheat drilling can be completed.
A lot of this year’s malting barley has left the farm, headed to either Burton on Trent
for Molson Coors, or to Southampton for temporary storage before being loaded onto a boat heading for Europe.
So far we’ve not seen too many financial claims for quality issues – the specifications to meet the quality requirements for barley intended for beer-making are very strict.
On the cattle side of the farm we had yet another TB test, resulting in two reactors, much to every one’s frustration. Once again the post mortems on the two animals didn’t show any visible lesions within the carcases. We now face a difficult decision – do we carry out a more sensitive test to determine whether there are any cattle in the herd carrying the disease and are not being picked up by the existing skin test?
The more sensitive test involves collecting a blood sample from every animal, which will be quite an undertaking. We have been told that we may lose up to ten per cent of our cattle, and the Government‘s animal and plant health

agency may insist that we carry out this test anyway. Personally, I feel the best solution would be to go down the vaccination route – but we have been told for years now that it is just “five to ten
years away”, with no signs of it coming any closer.
It is very frustrating to cattle keepers – we are close to eradicating this disease, having made such good progress in the last few years.
On a happier note for the Cossins family – we celebrated the birth of a granddaughter to Barbara and I in October. What an interesting world she has been born into!
Farming is ruled by the seasons... but this year seems to have gone from spring into winter, missing out on summer and autumn altogether. As I write, it feels like it has been raining for 12 months straight!
The inclement weather doesn’t only cause havoc in the practical day to day farming: it also adds extra costs, along with increased stress and anxiety. We all know there is nothing we can do about the weather, but if you are struggling, remember that FCN are here to listen and help.
The Walk and Talk events have been a huge success this summer. We will start running them again next spring, so do keep an eye out for the dates in the new year.
We must extend a huge thank you to two events that have happened recently, both raising money for FCN. Tom Hunt and Alex Williams held a fantastic evening at the Udder Farm Shop to raise money for FCN, RABI and Yellow Wellies. All three are amazing farming charities supporting our agricultural communities. The final amount raised is to be announced soon.

The other person to thank is the amazing Jess Chick, who ran the New Forest Marathon and raised £1,300 for FCN!
Thank you to all who help raise money for our charity – it goes a long way to helping people who need our support.
FCN is here for you
If you need us for any reason, you can email either myself or Barrie. I’m on bec.fcn@gmail.com and you can get Barrie on Barrie.fcn@gmail.com
The confidential, national helpline is open every day of the year, from 7am to 11pm. Volunteers provide free, confidential support to anyone who seeks help: call 03000 111 999
Coughs, colds and costly outbreaks ... Andrew Livingston asks if government delays and IT blunders are leaving farmers vulnerable
It’s that time of year, and the coughs and colds have begun, accompanied by the inevitable sore throats and runny noses. The weather is milder than usual, and the germs are having a free-for-all. For animals, it’s the same. Seasons bring viruses and illness, leading to the use of antibiotics and, in some cases, resulting in death.
In August, Bluetongue – a disease that affects ruminants like cows and sheep, but not humans, and doesn’t pose a risk to public health or food safety – was detected in Norfolk, after infected midges blew over from mainland Europe. Cases have spread across the country, leading to the shut-down of annual countryside shows and restrictions on animal movements from infected areas. Cattle and sheep breeders have been hit hard, forced to keep animals beyond their sale age. Breeders are now incurring costs to feed and protect animals that should have been sold and moved on to their new pastures. What’s frustrating for the agricultural community is the fact that government vets from the Animal and Plant Health Association expected this to be the case … but failed to take action. The Bluetongue vaccine is only being distributed after an outbreak, which doesn’t stop animals from getting sick – it merely helps prevent death.
A swift vaccine rollout across the east coast and south west could have saved animal lives and maintained the continuity of animal movements.
Computer says no
The arrival of colder weather also means migrating birds, and with that, the now annual risk of returning Avian Influenza (AI). Last year was a quiet year for the disease after the recordbreaking decimation of flocks during the winter of 2022/23.
If you even take your pet budgie for a walk outside, they need to know about it – or there’s a £2,500 fine
Preparing for the worst, DEFRA has called on every single bird owner in the country to register as keepers in their national database. If you even take your pet budgie for a walk outside at any point now, they need to know about it. Failure to do so can lead to a £2,500 fine. In true governmental fashion, however, small

backyard flocks were threatened with fines from the 1st of October for non-compliance but, hilariously, no one has been able to sign up, due to IT issues with the registration process.
Let’s not mention the eggs
As a final addendum in another bleak month of column writing, I ought to inform The BV’s readers of issues that may lay ahead. Shocker, I know, that the future picture isn’t rosy: certainly not for egg producers, at least.
I’ve been hearing murmurs about Ireland struggling with egg production from an unknown virus. Most reports say birds haven’t been dying, but what’s scary is that the vets are completely unable to say what it is, or what’s causing it.
I don’t believe in scaremongering – this is no bats-being-eaten-in-the-Wuhan-market story! Nevertheless, whatever it is, it’s spreading. A lot of farms around Wales are now reporting a drop in their egg production, resembling closely the tales from across the Irish Sea.
Nationally, we can cope with mini dips in production. What we can’t have is a repeat of the AI season of two years ago, where large proportions of the nation’s bird population were wiped out in months. Thankfully, birds aren’t dying at the moment ... but I can’t stress enough how smart, sophisticated and adaptable pathogens are. They’ve survived a lot longer than we have on this planet. Thinking about it, we can’t even create an online form that works … we haven’t got a hope in hell, have we?
Sofie (left) competing – she’d been a keen teenage showjumper, but after a bad fall took a break. She tried dressage on her return, then found her competitive element in polo.
All images © Michael Berkeley Photography

Sally Cooper looks beyond 1980s Jilly Cooper to polo’s fast-paced, bruising but surprisingly inclusive world, with rare gender equality
The recent wave of publicity for Jilly Cooper’s Rivals TV series has put polo back on our radar –the sequel to Rivals, the third Rutshire Chronicles book, Polo, made her forever synonymous with the glamorous sport. Instantly, images of powerful horses, high fashion, wealth and scandalous affairs come to mind. But how true is this of polo today? What exactly is polo and who plays it now?
My quest for the truth was made simpler by a conversation with Sofie Hopkins. She’s a keen member of Druids Lodge Polo Club, near Stonehenge, where she keeps several polo ponies. Polo has recently seen a resurgence in popularity, Sofie says: ‘It is busy. There’s a general impression that it’s very elitist but it really isn’t like that. You get all types of people playing. A lot of people now play at school and university. Yes, it’s an expensive sport – but you don’t have to have a helicopter and own an estate in Rutshire to play polo. In reality, ALL equestrian sport is expensive these days! We
all give them the best kit and the best care and we invest in better safety gear for both the human and the animal.’
It’s a fast-paced game with fit horses and players, and it’s simple to follow (who scores the most goals wins)
The name polo likely comes from the Himalayan Balti word pulu, referring to the willow root used for the original balls. Often called the “Sport of Kings,” polo has a rich history that dates back more than 2,000 years to Persia (now Iran), where warrior teams used it to hone cavalry skills. It evolved from military training into today’s exciting international sport. The Victorians adopted polo in India and brought it home with them, and it soon spread to the USA, Argentina and Australia. The Polo Association was formed in 1890, and now 77 countries play the sport. Argentina, known for its skilled riders and exceptional horses, has become the dominant force in modern polo.
It’s not hard to see why it gained such popularity.
It’s a fast-paced game with fit horses and players, and it’s simple to follow (whoever scores the most goals wins). Polo is also a rare sport in that it is genuinely unisex, offering equality on the field. Skill and strategy are key, with a handicap system ensuring a “level playing field”. Sofie says: ’That’s one of the things I really like about it. ‘You might see a team with three women and one man but they’re beating a team of four young blokes because they have better tactics. The handicap creates absolute parity.’
A polo match is divided into periods called chukkas, each lasting seven minutes. The length of a chukka is determined by how long horses can sustain intense physical exertion, given the high speed and agility required. In the UK, most games consist of four chukkas, but higher-level matches can extend to as many as eight. The standard of play ranges from lower-level, more casual games to high-level competitions, often referred to as low goal and high goal. There are four riders per team, plus two mounted referees (and a third to referee if the two mounted refs disagree!). Players have fixed positions – number one is at the top attacking, and four is at the back in defence.
Sofie discussing tactics with husband James © Michael Berkeley Photography
Polo horses are always called ponies, no matter their size – it has stuck since the war years when there was a shortage of full-sized horses and ponies were used. The game is fast and furious, and the higher the level being played, the more changes of ponies a player requires – referred to as a string of ponies. Most are specifically-bred thoroughbreds, and typically mares are the mount of choice (they are considered gutsier and reliably loyal – no comment).
Much of the polo kit is similar to that of other equestrian disciplines, but with added features for safety and stability. The ponies wear bandages and front boots for protection, and only rear studs are allowed. A double-girthed saddle is used for security, while bits are often gags or pelhams, with double and running reins, along with a martingale and breastplate for added stability. The tail is tied up, and manes are hogged (except for young horses, which are left intact to mark them as inexperienced – the polo pony version of L plates).
‘The polo saddle is very flat,’ says Sofie. ‘You have to be able to move constantly, so it’s perfectly flatsided with no knee rolls. I use equaliser girths and


over girths to keep the saddle stable. Our stirrups have four-bar irons and the tread plate is much bigger so that you have more to stand on. The leathers are usually made from buffalo because it’s thicker and safer.’
Riders wear knee pads, padded boots, gloves, a helmet and a gum shield, with many opting for eye protection as well.
‘My boots are double-leathered to prevent impact,’ Sofie adds. ‘There’s so much impact –you get bruises everywhere. I wear two pairs of ski socks underneath, and I’m still covered in bruises year-round! We wear white jodhpurs for weekends or games, but for midweek chukkas, jeans are fine. I use a gum shield in the summer now, after a close call early in the season this year. Goggles are generally ballisticrated to withstand ball impact – the ball is about the same size as an eye socket, and I have seen a couple of people get a ball in their eye. Lots of blood and ambulances. It’s very unpleasant.’ Like other equestrian sports, polo has strict helmet regulations.
‘Helmets usually have a wide brim, and some players have a metal face shield for extra protection. It’s all about being more solid and secure than other equestrian sports might be used to,’ Sofie explains.
The final essential item of kit is the mallet – also referred to as a stick. In polo the ball is hit with the side of the mallet, rather than the ends as in croquet, and riders are only permitted to play right-handed (rumour has it that this is why Prince Harry plays better than Prince William, as William is naturally left-handed … ssshhhhhhh….)
Riders can become very attached to one stick – they are mainly constructed of a bamboo shaft with a hardwood head, says Sofie. ‘Especially when we hook. Sometimes you’re lucky and you can splice-repair it. But generally, you just end up buying
James in full gear – the leathers are usually made from buffalo because it’s thicker and safer. Riders wear knee pads, padded boots, gloves, a helmet and a gum shield, with many opting for eye protection
© Michael Berkeley Photography


more of them. I buy them from a super guy near Windsor. It’s like Ollivanders wand shop from Harry Potter! You enter his garden shed where he makes them and there’s hundreds of these sticks … each rider has personal quirks and types, and his are fantastic. It makes a huge difference!’
Learning the sport
Sofie was brought up on a small island outside Gothenburg. Her uncle had a farm with Shetland ponies which she visited every weekend: ‘My riding started with being carted around by the vicious Shetland ponies, with them kicking me, bucking me off, biting me … I loved it!
‘As a teen I did a lot of show jumping, but after a bad accident I had to take a break from riding. When I came back I tried dressage, but it was not for me! Then thank goodness I found polo through friends.’
Sofie is keen to stress that you don’t have to be a strong rider to play polo: ‘Honestly, anyone can do it. James could hardly ride when we started! The horses are so good. They know if they’ve got a non-rider or a cautious rider and they’ll adapt to you. Our

first lesson was with a high goal pro Argentine – James spent 30 minutes basically trying not to fall off, and came back grinning. He just said “right, we’re buying polo ponies!” It’s an adrenaline rush –polo addiction commenced!’ Even an experienced rider may
James and Sofie treading in at halftime

still need lessons in switching from a general riding seat to a polo position. ‘It is very different,’ says Sofie. ‘The seat is deeper, and balance and stability are crucial. I’m very much still learning the polo way of riding. I am still having lessons with one of the pros, because I must change my whole body and learn it all from a new perspective. Using one hand is fairly easy, but with the seat you must sit deeper, especially when you start going faster, and learn to lean further out.’
Sofie suggests that a starter polo lesson is a great Christmas present: ‘Try a starter or a trial day at a club, and definitely come and watch. Druids has winter evening games and weekend games by the fire. Then in the summer there are lots of sociable big games, they’re fabulous to come and experience something totally different. Speak to the people who work there. Look at the ponies. It’s very welcoming!’ • druidspolo.co.uk



The season ended with a bang for Team Rimmer, and now the horses are off on their holidays while Jess hits the chores list
Wow – it’s the end of the season… how did that happen? October is a bit of a transition month for eventing folk, as we see out the final events of 2024. Our personal final runs were at Swalcliffe and Bicton, which brought some fab results – Max was 2nd at Swalcliffe, Elsa 6th and Jimmy 8th. Then at Bicton, Elsa jumped the fastest double clear of her class to finish an exciting 3rd in the 3*S – my best result at this level to date!
These guys will now enjoy a well-deserved break ... which brings me nicely into this month’s topic, horses and holidays!
At the end of the season we have to decide what to do next with the horses. With no events now until March 2025, there are two options: they can either be turned away (which literally consists of some R&R in the field), or they can continue training through the winter – and there’s no right or wrong answers here, it all depends on what will benefit each individual horse.
The Rimmer holiday season
So what does that look like in terms of the Team Rimmer horses? Max and Jimmy, being on the younger side, have changed a huge amount this season, both mentally and physically. So they will

Jess Rimmer on the gallops with Henry (Sir Henry Hall), who will not be getting a holiday: he likes to be kept thinking, so he’ll stay in work through November
Just a gratuitous we-love-Henry shot for your pleasure ...





spend November together in a big, grassy field, allowing everything they’ve learned to sink in, and giving their bodies time to strengthen up.
Mattie and Elsa are older, more established horses who know their jobs: for them, their holiday is less about absorbing information and more about giving them a physical rest.
On the other end of the spectrum is Henry ... like any ten-year-old boy, his brain doesn’t particularly enjoy a quiet break – he’ll start bouncing off the walls! He likes to be kept thinking, so he’ll stay in work throughout November, and we’ll continue practicing dressage, show jumping and some arena cross-country to prepare for 2025. We talk a lot about the importance of routine for the horses – obviously turning the horses out in a big field for a month is a big change for them, so it is something we do gradually over a week or so. Since their final events, we have slowly reduced their workload and changed their diet from the more energising competition feed onto a Spillers balancer, to ensure they get all the vitamins and
minerals they need, without the extra competition oomph! They have all had a final physio session to ensure they feel tip-top, and the farrier will take off their shoes before they are turned out. Not only does this decrease the risk of injury, but also gives their feet time to grow out and strengthen.
So how will I be spending my November, if most of the horses are on holiday? Although it is quieter, I will absolutely not be bored – life is so hectic through the season, it’s difficult to find time to regroup. So I have some exciting plans: we have lots of rugs to wash, tack to sort, lorries to clean and all sorts of repairs to do! My favourite saddle has finally been sent off to Devoucoux to be restitched, too – I refuse to part with it while I’m in the midst of the competition season as I hate riding in anything else, so now is the perfect time. And don’t worry, there are lots of horses continuing with their training over the winter here at Fox-Pitt Eventing, so I’m still going to get my riding fix!
Jo Rimmer combines competing with producing young horses and training riders of all ages. She’s a 5* event rider, UKCCL3 BE coach PMP and Howden Way Academy Coach, has produced a number of horses up to CCI5*-L level and competed at Pau CCI4* in 2018. Her sought after winter clinics are now open for booking– and be quick, they always fill fast! She’s working from two venues, Kingston Maurward Equestrian Centre and Dorset Showground, and will be covering a variety of disciplines across the clinics: Showjumping, arena eventing, technical cross country lines, poles and showjumping exercises and showjumping course riding.
• All events are bookable via Equoevents – just search for ‘Rimmer’ as the organiser and you can see them all

Kingston Maurward Equestrian Centre will be hosting a lecture demo evening with one of Britain’s leading event riders, Harry Meade, on Wednesday 20th November. Harry will be bringing some of his own horses,
as well as coaching a group of local riders on their own horses.
The Kingston Maurward team say ‘This is a one-off event, and not to be missed!’
Harry is widely respected for his quiet and sympathetic riding

style and ability to produce young horses to he very top level. He has completed 24 5*events, with multiple top placings.
Born into an equestrian family (his father Richard was a tripleOlympic gold medallist), Harry spent most of his childhood in the saddle, developing a natural feel and instinct that would become key in his later successes. He has built enduring partnerships with a number of sensitive but talented horses that have gone on to thrive at top level. Harry is driven by the challenges and the excitement of competing at top level and representing his country.
• ‘Early bird’ tickets (£25) are available until 13 Nov. After this, tickets will cost £29.
• Booking via Equoevents or call 01305 215016


An early dawn drive captures the magic of mist, light and a sudden, spectacular dance of jackdaws for wildlife writer Jane Adams
I’m driving to Bath. The sun is just peeking above the horizon, highlighting the Dorset landscape one autumn-touched tree, one hedge, one field at a time. The road is empty. It’s as if I’m the only person alive, and mist, snug like an eiderdown, fills every valley contour. I keep snatching a look.
Ahead of me, a track – black, and a few metres wide – crosses the road at tree height. I can’t work it out at first, but as I draw closer, what at first seemed solid reveals itself as four distinct wires, each one connected to poles on either side of the road. Perched on the wires are black birds: jackdaws. They have their backs to me, and though they are motionless, they look poised, as if waiting.
To their right is a tree, a large yew. I expect it’s where they spent the previous night, it’s by far the largest tree around. Squat and wide rather than tall and poised like an oak or beech, its multitude of thickset branches provide safety from predators. Maybe my car startles them, or perhaps it was always their intention to leave at that precise second, but as I drive under the wires, every bird overhead takes flight.
At first, they envelop the car and my world gets momentarily darker.
Then they explode into a firework of cinders, scattering left and right, diving and soaring, each bird on its own fixed flight path, utterly haphazard yet perfectly choreographed in their chaos. I gasp. Laugh.
In autumn and winter, jackdaws roost together in trees – sometimes a roost will contain several thousand birds – as protection against predators and also to conserve heat.
It may be roosts which provide these intelligent birds with a place to learn, too. Noticing a neighbour that is well-fed, and sharing knowledge of good foraging grounds, may be an added benefit of roosts.
A recent University of Exeter study found that roosting jackdaws wait for the roost’s squawks to reach peak volume before taking off together – they synchronise their flight by calling to one another, using safety in numbers as they take off.
Then I am suddenly overwhelmed at the raw, simple beauty, and I wipe away a tear. I want to stop, but there’s nowhere to pull in. I search for the birds in my rear-view mirror, but they have vanished.
Did I imagine them? I could believe that I had, but for my racing heart.


Yellow brain fungus (Tremella mesenterica) looking like orange jelly on the tree

Dorset Wildlife Trust’s conservation officer Mariko Whyte takes a closer look at just a few of the fungi you can find on a walk in Dorset
When we think about nature, we often think of the plants, animals, birds and even insects and other invertebrates – but how about fungi? Fungi comprise some of the most diverse and fascinating organisms in the world, and they can survive and thrive in all habitats and under the most extreme conditions, even at the bottom of deep oceans. They are vital to many ecosystems, playing a key role in nutrient cycling and breaking down organic matter, forming a key component of healthy soils and helping some plants access nutrients and water. They also provide a food resource for animals and people. Some are even able to break

down plastics and hydrocarbons, and research is underway into their potential for cleaning up our messes including oil spills[1] and plastic pollution[2]. Fruiting of fungi is usually triggered by changing environmental conditions such as temperature, light and moisture. In the UK, we see many fungi starting to fruit in the autumn, as the hotter, drier summer weather gives way to our usual milder, wetter conditions.
Although many fungi might seem instantly recognisable, there are often very subtle differences between similar species and identification is difficult. Often, microscopic examination of spores is needed and even experts are frequently baffled, with new species being discovered every year in Britain.
Below are just a few examples of interesting fungi you can find in Dorset.
Parasol mushroom
A classic ‘mushroom’ which has a tall stalk and a cap with gills beneath. They are commonly found on permanent grassland, heathland and woodland glades throughout Dorset, including Greenhill Down near Blandford, usually appearing towards the end of the summer. The cap opens to a large, flat parasol up to 30cm across.
Yellow Brain fungus
This is a type of jelly fungus – it is parasitic, feeding on other fungi that feed on dead wood. It is common on gorse on heathlands but can also be found on other dead wood and in woodland such as Bracketts Coppice nature reserve near Yeovil. It
can vary in colour from bright pale yellow to a rusty orange when dry.
Waxcaps are a group of colourful grassland mushrooms which are great indicators of high quality, unimproved grassland. Often seen at our Kingcombe Meadows nature reserve near Maiden Newton, they are found where there is a long history of traditional grazing management and the soils have been undisturbed by ploughing or the use of fertilisers. They begin to appear in autumn, peaking in November, and they come in a range of colours from pink to bright red, orange, yellow, white and even green.
This is a common bracket-type fungus which grows in tiered clusters on dead wood – it can be seen all year round. The fruiting bodies have pores beneath instead of gills. The common name comes from the concentric coloured patterning on their top surface. Turkey tail can be found at Ashley Wood nature reserve near Blandford and Girdlers Coppice nature reserve near Sturminster Newton.
These appear in winter through to early spring, and form bright red cups which are smooth inside and pale and downy on the outside. Recorded at Kilwood nature reserve near Wareham and Lorton Meadows in Weymouth, they are attached by a short stem to twigs and deadwood on the damp woodland floor, or near rivers and ditches. A puff of white spores is released from the upper surface in response to external triggers such as a change in temperature. Try blowing on the mature fruits in late winter to see this in action!
Devil’s fingers
This is a strange-looking fungus which grows in grasslands and is recorded at Loscombe nature reserve near Bridport. The fungus emerges from a gelatinous ‘egg’ and its tentacle-like arms are covered in a dark olive-coloured, smelly slime which contains the spores. This attracts insects such as flies which help disperse the spores.
Earth balls
These are a group of similar-looking round fungi which grow on the woodland floor: find them at Holway Woods near Sherborne. They are shaped like a leathery potato, and are solid with a brownblack interior beneath the off-white outer skin. When mature, the inner flesh develops into powdery spores which are released through splits in the outer skin.
or near rivers and ditches
Devil’s fingers emerge from a gelatinous ‘egg’ – its tentaclelike arms are covered in a dark olivecoloured, smelly slime
Earth balls are shaped like a leathery potato, solid with a brown/black interior

• See all previously-published Dorset Walks on the website here. You can also find every route we’ve walked, including many which are unpublished in The BV, on OutdoorActive here (just zoom in/out on the map) – all include a downloadable gpx file.

For the first time ever, we’ve had to dip into the archives for our hike this month: C is awaiting knee surgery any day now, and he has finally had to admit defeat. Even the short three mile saunters we had reduced to have become too painful.
So instead I’ve taken a look back at a route we love but haven’t done in a long time. The Dorset coastal path is always super-busy in the summer, but there’s nowhere more glorious on a sharp and sunny winter’s day.
Starting from the small car park in Worth Matravers (honesty box) you walk past one of the smallest pubs I know, the Square & Compass (which has been in the same family for 100 years), and then follow the path through a gorgeous gully straight down to the
cliff top (the relatively steep downhill is mildly treacherous in wet weather).
In the central section, if you’ve never visited, it’s worth leaving the route to clamber down to Dancing Ledge for an explore.
Wear good footwear in the winter – the coastal path is narrow and busy no matter the season, and therefore gets incredibly muddy. Also do please keep dogs on leads, the cliff edge is surprisingly close in sections.
The route back along the Priest’s Way runs parallel to the coastal path. It’s an ancient track taken by a local priest as he travelled back and forth between the churches at Swanage and Worth Matravers.
• CLICK HERE for interactive map












We welcome photography submissions from readers – the only rule is that they must have been taken locally in the last month. Our cover shot is always selected from our submissions pile. If you’d like to join in, please share it in The BV community Facebook Group or simply email it to us on photos@bvmagazine.co.uk
Hatchet Pond
Hang Ross
Ian Nelson





Early morning, along the river, 2023.
by Fanny Charles

A Dutch artist who came to North Dorset in the 1990s celebrates a quarter of a century of creativity in Dorset and Cornwall
At the end of the 1990s, Dutch artist Peter Ursem came to North Dorset with his musician wife Helen Porter. She had been appointed as music animateur for Confluence*, a three-year cultural and environmental project to celebrate the Stour, from where it rises at Stourhead in Wiltshire, down to the sea at Christchurch Harbour. While Helen began a long and exciting programme, bringing people together to sing, write songs and music and perform, Peter also became involved in Confluence, his skills as a printmaker contributing striking and original art works throughout the project. His contributions ranged from simple but stylish prints of fish for England’s first Water Market, a national gathering for


producers involved with water, at Blandford in 2000, to a series of prints supported by an Arts Council award.
Some of his work from the Confluence period, such as the lino-cut of Colber Bridge, will be on show in his 25th anniversary exhibition at Shaftesbury Arts Centre, from 30th October to 12th November. The exhibition will also include a broad selection of new works: prints, designs and paintings.
After graduating in literature from the University of Utrecht and in painting and printmaking from the Royal Academy of Fine Arts in The Hague, Peter arrived in Dorset in 1998 and fell in love with the lines and shapes of the English landscape. He started exploring ways to capture what he saw in relief printmaking (woodcuts, lino prints and wood engravings) and was soon

completely hooked.
He recalls the thrill of his early efforts: ‘I was gripped by this simple but strikingly powerful technique. I was so excited when I produced my first print of a street view in Mere.’
His print-making was given a big boost in 2000, with an Arts Council award for a series called Reflections, Woodcuts of the River Stour – the 30 woodcuts were exhibited at the Slade Centre in Gillingham and published in a book. He became a member of the highly respected Poole Printmakers. When the presses that belonged to the group’s founder, printmaker and artist John Liddell, were being sold, with help from two committee members and an agreement to spread payments over two years, Peter was able to buy one, a Victorian Hopkinson & Cope press (above).
The purchase enabled him to start specialising in reduction lino-prints, a technique where consecutive colour layers are printed from just one block. As his skill, range of subject matter and use of colour all developed, Peter’s work acquired a strong local following. One of his most highprofile commissions (in a literal sense) was to provide a new mast-head for the front cover of the original Blackmore Vale Magazine. Familiar features of the Blackmore Vale, from Stourhead to dairy cattle, were depicted in the much-loved
design. Peter’s commission also included similarly characteristic designs for the Fosse Way Magazine (covering a lot of Somerset) and the Stour and Avon Magazine. He also showed great skill as a curator, working for Salisbury Hospital at Odstock, where he ran the successful Arts In Hospital project, filling the corridors with exciting and often challenging work – abstract, figurative, landscape, portrait –creating a gallery that was not only interesting for visitors but a stimulating environment for staff and patients.
Overwhelmed by the beauty
In 2011, some years after the end of Confluence, Peter and Helen moved to Cornwall, settling near Calstock, at Gresham House Studios, a former mine captain’s house. Peter’s spacious art studio has spectacular views towards Morwelham Quay, with Dartmoor in the background and ever-changing skies above. Peter says: ‘Initially, I felt so overwhelmed by the beauty, purity and magic of the landscape that not much more than soaking it all up seemed
possible.’ But as he became more used to the unique atmosphere of their new home, he found that immersion in his surroundings led to a flurry of new and more intricate linoprints, as well as atmospheric charcoal drawing and oil paintings.
Peter’s subject matter is usually landscape, exploring deeper than simple realism. A series focusing on Dartmoor captures both the surface aesthetic attraction of the landscape and the often disturbing, almost primeval, majesty of the moor. The moor is, he says, a continuous source of inspiration.
The history of Gresham House played a part in Peter’s own writing career. In 2016, he fulfilled his long-held ambition to write fiction, when he published The Fortune of the Seventh Stone, a young adult novel written under his Dutch name, Petrus Ursem. The setting is a mine captain’s house, with nearby atmospheric ruins of tin mines and a cast of colourful characters. The book is a genuine page-turner, with a real

sense of place. It was followed by The Truth Teller (2018) and Black As Ink (2020), together making up the Steven Honest Trilogy.
In 2022, Peter branched out into a different style of storytelling, publishing The Bigger Picture, a collection of witty and thoughtful fables for adult readers. He is currently working on a new book of fables, Stellar Celebrations.
Over the years, Peter has established a tradition of reading stories during his exhibitions, and he will be doing this at the Shaftesbury exhibition: every morning at 11am, he will read one of his fables and be available to chat about his work and his approaches to art and writing. Stellar Celebrations is not quite finished, but he will be reading from The Bigger Picture. If you’re not able to come to the exhibition you can order his books online from the gallery shop on his website.
• 25 Years of Printmaking exhibition at Shaftesbury Art Centre, 10am to 4pm daily. Free admission.
• For more information about Peter Ursem’s work as artist and writer or to order a book, visit peterursem.co.uk
*CONFLUENCE - was created by the groundbreaking Shaftesbury-based environmental arts charity, Common Ground, to encourage new music for the Stour. There followed an extraordinary range of participatory music events and programmes, workshops, courses and concerts. Composer and musician Karen Wimhurst, who lives in Shaftesbury, was the composer in residence.
At this year’s Love Local Trust Local Awards, a new honour was introduced to allow us to recognise not only those currently creating the best food in the county, but also those who have dedicated a lifetime to supporting its producers and growers. The winners – Charlie Goodland, Andrew Robinson and Roger Penny –each have a legacy of service to Dorset – Barbara Cossins
Charlie Goodland

Charlie owns and runs C & S Meats, an abattoir near Sherborne, where he is known for his love of the work and deep respect for animals. Born into a farming family he learnt to shoot as soon as he could handle a gun safely, as well as how to skin the animals he shot and deal with the carcasses. He started work on the family farm, but as soon as a job came up in a Yetminster butchers, he jumped at the opportunity: “I was mentored by a fabulous old guy called Maurice ‘Mitch’ Mitchell, who taught me everything he knew about humane slaughter practices, and to really care for the animals.” Charlie eventually left Yetminster to work in a large slaughterhouse, and in 1996 set up his own business.
Charlie has always been interested in animal welfare, and he holds an extraordinary number of different slaughter licenses. His personal favourite animal is a wild boar: “I like how clever and slick they are. You need to be on your A-game when they’re around,” he says.
Charlie is a huge contributor to the food and farming community in Dorset, and he’s known for his unflappable calmness. Whether it’s a drop in meat prices, negotiating for full use of the animal, the impact of covid or protecting his staff and business, he meets them all head on with a smile, and he has done for more than 30 years.
Andrew Robinson

Many people see a Symonds & Sampson board on the side of the road and think they simply buy & sell property – but it’s much more than that. Over a career of more than 40 years, Andrew has championed a whole host of causes within the agricultural community, including ensuring livestock is cared for properly during the sales process, access and compensation for both water and electricity during rural sales, expert advice in complex farm property sales, detailed succession planning as well as architectural help for farm sales and tenancies on both sides of the partnership. To say he is a good mentor and great mediator is a huge understatement. There have only been three senior partners at Symonds & Sampson in more than 40 years –Andrew being one. It is testament to his reputation and wise brain that he is still quoted today by many of the current and younger staff when making decisions: “What would Andrew do?” is a solid Symonds & Sampson benchmark.
Roger Penny


Andrew is firmly committed to protecting Dorset’s land, animals and infrastructure so that farming, business and residents can live in harmony. Symonds & Sampson have been in business almost 170 years, and for much of that time they have been one of the leading auctioneers and surveyors in the region.
Roger began his career at Wessex Grain (now Cefetra Grain) in Henstridge in 1985, aged just 16 years old. He quickly established himself as an essential member of the team, working on the intake, storage and out-loading of grain across both the flat stores and the silos. Roger swiftly became the principal operator of the three Svegma grain dryers, mastering the intricate and often temperamental routes of conveyors and elevators that feed 21 silos and three flat stores. His dedication and expertise were unmatched, and over time, he became a familiar and respected figure to all the lorry drivers and local farmers delivering to or collecting from the store. Sadly, after 39 harvests of committed service, Roger was forced to leave Cefetra this summer due to health issues. His absence has left a notable gap in the company, where he was not only a vital operator but also a cherished colleague and friend to many in the local agricultural community.

Heather Brown is preparing: she has easy tips for baking the cake, making mincemeat, and sourcing local Dorset produce for a festive feast
Now that it’s November and Mariah Carey has declared that it really is the Christmas season, I thought it would be good to help you look at some ways that you can get ahead with your seasonal food and drink this Christmas.
Christmas Cake
Fruit cake is one of my favourite types of cake – my recipe for my Christmas version was in The BV back in November 2020 (you can find it here). At the time I said:
‘It’s traditional to make your Christmas cake in November so it has plenty of time for the flavours to develop. But we all know life gets in the way some years. The magic of my Christmas cake recipe is that whether it’s early November or you’re whisking it up in a
panic on Christmas Eve, it will always provide that delicious, deep, Christmassy flavour.’
Whether it’s early November or you’re mixing in a panic on Christmas Eve – this cake will always provide that delicious, deep, Christmassy flavour
It is a wonderful, flexible recipe and by cooking the fruits, butter and sugar all together first in a pan, it really allows all those flavours to meld together before being baked. While this recipe tastes just as good if you do end up making it in December, it is definitely a job that can be done ahead of time: just wrap the cooked, cooled cake well in parchment paper, and store it in a box with a good lid until you want to ice it in the days before Christmas.
Mincemeat
I love a mince pie ... and nothing can beat a mince pie made with homemade mincemeat!
Nowhere near as complicated as many people believe, it’s simple to make and keeps for months. I don’t even bother to store mine in jars now, because I know it will all be gone by Christmas! I just put it in a large Tupperware tub with an airtight lid. You can find my mincemeat recipe from the BV magazine in 2020 here. ‘The difference between homemade mincemeat and supermarket mincemeat is so significant that I would encourage everyone to have a go this Christmas (or to buy mincemeat from a small producer who will have handmade it in small batches at home for you).
The recipe is not complicated, but it does take a little time –fortunately most of that time is spent waiting for things to soak or cook slowly so you can get on and leave it to it!’
For a super-quick version of mince pies in a hurry, you can find my recipe for mincemeat swirls on the same link!
Order your turkey
There are some lovely local farms and butchers in Dorset where turkeys are available for Christmas. Ordering from your local turkey farm means you can be confident that the turkey has been reared ethically, you can speak to the farmers themselves – and you’ll know that the meat will be delicious as well as free from extras like excess water. Dorset turkey farms include Brunsell Turkey Farm near Stalbridge - brunsellfarm.co.uk and Chilcott Turkeys near Dorchester chilcott-turkeys.co.uk
Good local butchers will also source their turkeys from local farms in and around Dorset –but do order yours now to make sure you secure one of Dorset’s finest.
Buy your local produce Christmas is the time when we

all try and ‘buy up’ - it’s often the one time of year that we’ll get the organic veg, the nicer cream, the fancy cheese ... There are oodles of amazing Christmas markets throughout Dorset, kicking off with the Athelhampton House Christmas Market organised by Dorset Food & Drink on Saturday 9th November.
Aside from being a lovely day out, Christmas markets are a fantastic way to sample local produce for your Christmas table – and you can buy direct
from the makers. Farm shops are another good source of local produce, as are local independent high street delicatessens and Dikes in Stalbridge. Producers will already be taking Christmas orders via their websites, and offering easy delivery so you don’t even need to leave the house! Start now, and this year try buying locally for your cheese, chutneys and jams, sauces and syrups, oils and vinegars, fresh veg … let’s all make it a Dorset festive table.
Keen’s Extra Mature Cheddar wins the first People’s Cheese Championship, organised by new campaign group The Real Cheese Project
One of Somerset’s most historic, traditional, unpasteurised, farmhouse Cheddars, Keen’s Extra Mature, has won the first People’s Cheese Champion title, after three rounds of public voting in a new award organised by campaign group The Real Cheese Project.
Keen’s Extra Mature Cheddar, produced by the Keen family at Moorhayes Farm near Wincanton, was one of four finalists in the live online final, which was broadcast on Friday 11th October. Cheese lovers across the UK tuned in with their cheese boxes to taste, deliberate and cast their votes for Blue Stilton by Cropwell Bishop Creamery in Nottinghamshire, Keen’s Extra Mature Cheddar, Mrs Bourne’s Cheshire Cheese by Bourne’s Cheshire Cheese in Cheshire, or Thelma’s Original Caerffili by Caws Cenarth in Carmarthenshire.
The marketgoers favourites People’s Cheese 2024 has been created to get more people eating and talking about Britain’s artisan cheeses, with this year’s Heritage Edition focusing on territorial styles. All named after their original locations, this group of traditional cheeses includes Cheddar, Stilton, Red Leicester, Caerphilly, Cheshire, Double Gloucester, Lancashire and Wensleydale, and Dunlop from Ayrshire.
Chiswick Cheese Market, beginning with more than 40 entrants into the nine categories. Hundreds of marketgoers took part and voted for their favourites during these early rounds, ultimately selecting the four finalists.
The final was broadcast from Mrs Kirkham’s Cheese in Lancashire, and presented by comedian and champion of British cheese, Marcus Brigstocke, alongside The Real Cheese Project co-founder, James Grant. The pair were joined by experts including Jane Quicke from Quicke’s, Lucy Cufflin from Chiswick Cheese Market, Jonathan Pearcey from The Crafty Cheese Man and Graham Kirkham from Mrs Kirkham’s Cheese.
This latest accolade for the Keen family reflects the enduring popularity of traditional artisan Cheddar. Production began at Moorhayes Farm in 1899 and five generations later, under the stewardship of George Keen, with his son James now principal cheesemaker, the family is still making cheese with raw milk from their 250-strong herd of Friesian cows. The Extra Mature Cheddar is matured for 18 months to achieve a moist texture and full-bodied flavour, with onion notes and plenty of tang.

The Real Cheese Project was founded this year by a group of cheese lovers to celebrate artisan cheesemakers, support independent cheesemongers and get more people buying the good stuff.
Championing real cheese, from the soil up, the organisation is on a mission to showcase and protect real British cheese and the people behind it, through storytelling, research, campaigns, events, collaboration and media exposure.
In September, The Real Cheese Project launched a monthly subscription box, created to promote Britain’s artisan cheese makers. Each Cheese Crowd box will come with a new cheese to try, a monthly cheese magazine, a hand-picked pairing, a pin badge for new subscribers and access to an online tasting to meet the cheesemaker. Five per cent of all profits will go into a Real Cheese support fund, which will be donated to initiatives that protect, develop and progress real cheese in the UK.
Cheese subscription box here therealcheeseproject.co.uk
by Fanny Charles
The pheasant season runs from 1st October until 1st February for fresh birds. All Dorset Game Larder birds are dry plucked and dressed by hand, then packed individually and shrink wrapped. All birds are sourced from local shoots in Dorset.

With British Game Week in November, now is the time to try some of the area’s best wild food from The Dorset Game Larder

It’s time to up your game! Great British Game Week runs from 4th to 10th November, so what better time to try some wild food from the local countryside? With cold winter nights drawing in, we all look forward to hearty casseroles, stews or pies, and Chris Tory of The Dorset Game Larder has a mouth-watering range, from partridge to venison, pigeon to squirrel, to encourage you to put some new dishes on the table for family and friends. Fans of foraging and wild food programmes on television will be familiar with the arguments for finding food that is local, natural and ticks the sustainability and health boxes – and high protein, low fat game really does. Wild game also has a lower carbon footprint than most massproduced meat, and the industry plays an important role in countryside management. Now established as one of the most reliable game suppliers in the area, The Dorset Game Larder began in 2009 as a natural development from the small commercial shoots run by Chris and his brother on their farms near Blandford. They started preparing birds for the table and gradually other
As the business grew, they were not only approached by more local shoots, but also asked to supply a large number of birds to the Hampshire-based Blackmore Game.
At one point, Chris recalls, they were taking birds from 28 local shoots.
The Game Larder was set up in the old stables at the family farm, and that same year, the family sold their dairy cows.
As the business grew, Chris joined the new Direct from Dorset organisation, which later became Dorset Food & Drink. He is a member of the successor organisation, but still displays the Direct from Dorset logo, which remains an important part of the identity of Dorset Game Larder products.
In 2012, Chris successfully applied to Chalk and Cheese, an EU-funded grant programme supporting the local food, drink and crafts sectors in rural areas. He received a grant of £5,000 for a chiller, which is still very much in use, functioning as a walk-in
The Blackmore Game partnership split up in 2015, with a considerable impact on Dorset Game Larder. ‘We downsized, and we had to come up with other products,’ says Chris. ‘We had already started making sausages and burgers. And we went back to working with just three or four shoots.’
Dealing in venison was an obvious next step. These large mammals have no natural predators in the UK and in some areas they are now in such numbers that they have an adverse effect on the environment, farming and forestry, making management of the wild animals a necessity. Sika deer are a particular problem in the Purbecks. Dorset Game Larder’s venison is also sourced from Bloxworth and Wareham forest. Sika are larger than native fallow and roe deer, but there is more meat-to-bone in the fallow breed.


Covid, followed by avian flu, both had a big impact on shoots and on the Game Larder. But while a lot of shoots have folded, others survived and a new large wild game business has opened at Oakland Park in Berkshire. Chris has observed a growing interest in game, and sales of venison in particular have increased. The Dorset Game Larder sells venison in many forms – mince, burgers, sausages, diced ready to casserole, steaks, fillets and joints of shoulder or haunch, a Christmas favourite with a lengthy historic tradition. Feathered game – pheasant, partridge, grouse, pigeon and wild duck – comes dressed, or you can just buy the breasts, a simple, quick dish for those not experienced in game cookery.
The wide selection of sausages and burgers includes venison, wild game, pheasant and rosemary, or pheasant and cranberry. Rabbit is always available, dressed or diced, and for those looking for something more adventurous (and helping with environmental protection), there is dressed squirrel. Legally classed as vermin – and infamous for the way they have driven the charming and much smaller native red squirrel out of much of mainland England – grey squirrels do a lot of damage to young trees and are a threat to nests and young birds. They taste a bit like rabbit, but stronger, says Chris.
You can visit the Dorset Game Larder farm shop near Shapwick. Local retailers who carry Chris’s wild game include Dike’s at Stalbridge, Richardson’s Budgens in Swanage, Stuart Pearce’s butcher’s shop in Blandford, Pamphill Butchers, Enford farm shop near Shillingstone and Vines Close farm shop near Wimborne.
How do you cook it?
Chris’s go-to book for venison inspiration is Jose Souto’s Venison: The Game Larder. The former House of Commons chef and lecturer at the Westminster Kingsway College is one of this country’s leading game experts. With photographs by Steve Lee, the book is a comprehensive guide to venison, covering everything from provenance and management to recipes by Jose and other top chefs including Tom Kerridge, Phil Vickery and Peter Gordon. Jose says: ‘In the UK we no longer have any predator species to prey on venison

Dike & Son in Stalbridge have fully-stocked game shelves during the season, thanks to The Dorset Game Larder
because we got rid of all the bears and wolves and lynxes. We have a moral obligation to manage them. It is also a very ethical way of harvesting. The deer have not been put in trucks and transported, or put on a stainless steel gangway to be shot. The deer spend all their life living outside in the countryside doing what they are supposed to do. And there’s no suffering or stress when they are killed.
‘I don’t understand their argument. They eat chickens – and look at how so much of our chicken is produced’
‘Some people challenge that, but I don’t understand their argument. They eat chickens – and look at how so much of our chicken is produced.’
Jose has also written a companion volume, Feathers: The Game Larder and a third focusing on small furred game is planned. If you can find a copy, Julia Drysdale’s 1975 Game Cookery Book (follow the
link to find them on Abebooks – Ed), which she compiled for the Game Conservancy Council, is a great practical guide, with reliable recipes. Clarissa Dickson-Wright’s Game Cookbook is, as you would expect, knowledgeable and full of her extravert personality, and Glorious Game, published in 2019, features recipes from 101 chefs, including Angela Hartnett, Margot Henderson, Tom Kerridge, Jeremy Lee, Tom Aikens, Paul Ainsworth, Sat Bains and Ollie Dabbous. All proceeds directly benefit The Moorland Communities Trust and The Game and Wildlife Conservation Trust.
• thedorsetgamelarder. co.uk
• Meet the Dorset Game Larder team at the Dorset Food and Drink Winter Fair at Athelhampton House, Saturday 9th and Sunday 10th November, from 10am to 3pm.

We asked local chef Philippa Davis, the food writer for The Field, for the best place to start when cooking game. Philippa also researched and wrote the recipes for the Deepest Books series (Deepest Dorset, Deepest Wiltshire and Deepest Somerset):
If you are new to trying venison meat, firstly I must say you are in for a treat! You are about to try some of the most delicious, sustainable and nutritious meat we have here in the UK. Although less fatty, it is very similar to cooking and eating beef, and the various venison cuts can be swapped in for most recipes: use it in your next bolognese, cottage pie, curry, pie or ‘steak’ and chips. This hearty venison chilli recipe makes the most of the rich, flavourful meat. It can be made a couple of days ahead and it also freezes well, so is great for batch cooking. As well as the venison, I’ve put in italics ingredients you can source from local producers. Philippa
• 2 tbsp rapeseed or olive oil
• 500g wild British venison mince (Dorset Game Larder)
• 1 red onion, peeled and finely diced
• 3 medium cloves of garlic, peeled and finely chopped
• 30g fresh coriander, stalks finely chopped, leaves roughly chopped
• 1 tsp ground cumin
• 1 tsp dried oregano
• 1 tsp ground cinnamon
• 2 tsp chipotle paste
• ½ – 1 tsp of chilli powder depending how much spice you like
• 1 x 400g chopped tin tomatoes
• 1 tsp Dorsetshire sauce (From Dorset With Love) or Worcestershire sauce
• 1 x 400g tin of kidney beans, strained and lightly rinsed
• 30g 70% Chocolate (Chococo)
To serve
• 4 – 6 tbsp of plain yogurt (The Dorset Dairy Company)
• 4 tbsp grated cheese (try Hardy’s from The Book and Bucket Company or Coastal Cheddar)
1. In a heavy-based pan on a medium heat, add the oil and venison mince. Season with salt and pepper and – stirring often with a wooden spoon to help break up the meat – fry until the moisture has evaporated and the meat starts to brown (this will take about 15 minutes).
2. Once the meat has browned, add the onions, garlic and coriander stalks. Still stirring often, fry for another ten minutes until the onions start to soften.
3. Stir in the cumin, oregano, cinnamon, chipotle paste and chilli powder and cook for a couple of minutes before pouring in the tinned tomatoes. Fill the can with cold water, swill it around then tip into the pan.
4. Add the Dorsetshire sauce and bring to a simmer, then turn the heat down to low. Cook for one hour, stirring occasionally.
5. After an hour, stir in the kidney beans and chocolate. Continue to cook on a low heat for a further 30 minutes, stirring occasionally.
6. Finally take off the heat, stir in the coriander leaves and check the seasoning. This is now ready to serve.
I love to eat mine with basmati rice, tortilla chips, spoonfuls of yogurt, a sprinkling of cheese and a green leaf salad.
• Philippa Davis is a Dorset-based chef and food writer who loves to champion local produce. You can follow her foodie adventures on Instagram @philippadavis_food
by Karen Geary, Nutritional

Karen Geary looks at how we could all replicate the effects of the trendy weight loss drugs, but without medication or its potential side effects
‘I wish it were easier ...’
Someone said this to me the other day – she is a lifelong dieter and struggling: a common reaction to dieting. For some, it can be really hard. In my opinion, 80 per cent of weight loss is about mental effort. If it were easy, people wouldn’t need people like me!
A good friend of mine has just lost five stone (70 lbs/32kg) on Mounjaro (Tirzepatide). He told me it was the first time in his life he had an “off switch” in his brain when it came to eating, which intrigued me.
For him, it was either Mounjaro or resigning himself to diabetes, heart disease and possibly cancer. In this case, taking medication was probably the best thing he could do for his health, as he couldn’t stick to a normal diet. But we’re starting to hear that the new weight loss ‘wonder drugs’ have unwanted side effects for some – and perhaps you’re wondering whether it’s possible to mimic the effects of these drugs through food and supplements. It turns out that you can ... but first, it’s important to understand exactly how these medications work.
The science bit Peptide-1 (GLP-1) and glucose-dependent insulinotropic polypeptide (GIP) are hormones
naturally released by the gut that impact our insulin (another hormone). Ozempic and Wegovy are GLP-1 agonists, while Mounjaro is both a GLP-1 and GIP agonist.
These drugs mimic the effects of the hormones: they started out as treatments for Type 2 diabetes (T2D) by stimulating insulin release and inhibiting glucagon. They have since evolved into powerful weight loss tools. These medications slow gastric emptying, making you feel fuller for longer and reduce appetite by acting on the brain’s hunger signals. While the exact mechanism isn’t fully understood, this combination makes them effective for both blood sugar control and weight loss.
How to mimic GLP-1 naturally
There are key strategies to naturally stimulate GLP-1, primarily through increasing protein and fibre intake, both of which promote satiety and reduce overall calorie consumption:
• Protein plays a crucial role in maintaining muscle mass and keeping you full longer. It is also recognised as a natural stimulator of GLP-1. Incorporating a palm-sized portion of protein at every meal, whether animal- or plant-based, should be a staple of any diet. High-protein diets also help regulate appetite
by influencing hunger hormones like ghrelin. Lean protein sources such as chicken, fish, tofu and legumes can help preserve muscle during weight loss and stabilise blood sugar levels.
• Fibre is nature’s appetite suppressant! It is a powerful tool for managing hunger and improving digestion. A diet rich in high-fibre foods like vegetables, fruits, whole grains and legumes helps control blood sugar, lower cholesterol and prevent overeating by stabilising energy levels.
Additionally, certain foods like avocado, cinnamon, curcumin, eggs, green tea and rosemary are natural GLP-1 boosters.
• Your gut microbiome plays a significant role in regulating GLP-1 production. Specific gut bacteria ferment dietary fibre into shortchain fatty acids (SCFAs), which stimulate the secretion of GLP-1 from intestinal cells. This process helps regulate blood sugar and appetite, promoting insulin release and reducing hunger.
Basically, a healthy, diverse gut microbiome can optimise GLP-1 activity, improving metabolic health and supporting weight loss.
• Fats, especially omega-3 fatty acids, are commonly found in oily fish like salmon and mackerel. Omega-3s support GLP-1 secretion

by reducing inflammation and improving insulin sensitivity, which can enhance appetite regulation and glucose metabolism.
• Fermented foods such as plain kefir and yogurt may enhance GLP-1 secretion due to their positive effects on the gut microbiome.
Several supplements can mimic the effects of GLP-1 agonists, but I typically recommend them on a case-by-case basis as some may interact with medications. However, soluble fibres like glucomannan (konjac) or psyllium are generally safe. These fibres absorb water, swell in the stomach, slow digestion and prolong feelings of fullness. Always follow instructions carefully, particularly regarding water intake, and take them at least two hours away from medications to avoid interference.
Muscle loss is a common issue during rapid weight loss, so it’s essential to get plenty of protein – at least 1 to 1.5 grams per kilo of body weight during active weight loss. As your physician tapers the medication, appetite often returns, but remember it’s possible to continue mimicking GLP-1 agonists through food:
• High-fibre foods: Aim for at least 30g of vegetables a day to delay gastric emptying.
• Fermented foods: Continue incorporating plain kefir and yogurt to enhance GLP-1 secretion.
• Omega-3s: Ensure you eat oily fish regularly.
• Protein: Focus on a protein-rich breakfast, as it’s often the hardest meal to get right.
GLP-1 agonist medications are becoming a key solution for both diabetes and obesity, with ongoing research exploring additional benefits beyond weight loss. However, concerns about potential side effects are also being studied. As the science develops, these medications may play an even larger role in managing metabolic health and aren’t going away anytime soon. In the meantime, whether you choose weight loss medication or natural alternatives, the long-term advice remains the same: focus on a balanced diet which is rich in protein, fibre and healthy fats.
Whatever path you choose, sustainable habits will ultimately determine your success.

Curating playlists that evoke emotions and wellbeing, Dorset Mind’s Usifo Cyril Omozokpea finds music to be a powerful mental health tool
With music as a constant presence at home and on family road trips, I grew up with a deep love for music of all types from different parts of the world. Little did I know then that music would become a cornerstone of both my life and my healing journey.
As an adult, I am never without my headphones, because listening to music has always helped me create a mental safe space. After going through a period of grief, I worked at a radio station, and I started to discover that different kinds of songs had different emotional effects on me. Some were so calming and grounding that I began to feel they were written and performed just for me – even if I didn’t know who made that music.
My playlists
With the invention of music streaming apps, humans have more access to music than we have ever done before, and the ability to sort this large spectrum of music into personalised playlists is just pure joy. I set aside time each week to listen to new songs, sorting the ones I like into different playlists depending on what kind of emotion they trigger. These playlists have become my emotional companions. Each song and each playlist creates a safe space for my mental and emotional wellbeing and has a big therapeutic effect on me.
Music has the power to capture memories like a time capsule. I always look out for memories I can treasure and associate them to music, so that on days when I feel down, I can recall a good memory just by listening to the right music. Actively and intentionally listening

to music can transport you: it can transform uncomfortable feelings, and it can help make an environment feel like a safe space as it helps to block out the distractions and creates a calming space for you to be yourself within the words of the song or the sound of the instrumentation playing in your ears. A music background gives the feeling of being in a secure place, where positive change is possible.
Movement is great for our mental wellbeing and music is a great driver of movement! When you listen to music sitting down, you unconsciously begin to move your head or your feet or simply tap your fingers on the nearest surface – music inspires motion. Some people dance to music, others run, and some of us just walk. I love to walk with headphones on, listening to one of my playlists – the result is always clarity and well being, while unconsciously clocking up 5,000 steps or more! Every time I walk
with music, the places I go feel new, like I am there for the first time. It’s a new day and new and exciting things are possible – I discard fear and worry. Music is special to human beings, whether you listen to it or make it, it has a big influence on our emotional and mental wellbeing. So go and create your own playlists, dance in your kitchen, play an instrument, join a choir, try music therapy – they are all things you can do that use music to benefit your wellbeing.
Support for you:
• First steps towards support should be to speak to someone - a trusted friend, family member, professional or your GP
• Visit Dorset Mind for local mental health support and helpful advice
• The Samaritans are there to listen 24/7, call them free on 116 123
• Call Dorset’s mental health helpline Connection for support on 0800 652 0190

It’s the time of year when a new cohort of young people begin to think about their careers and what they may want to do. Work experience can provide a vital first glimpse into the professional world, but for many – especially those from a disadvantaged background –these opportunities remain out of reach if they cannot secure their own placements.
Dorset Chamber is working with the Dorset Careers Hub to make sure this doesn’t happen – all young people in Dorset must have access to a work experience placement opportunity.
Work experience is hugely important for many reasons. It offers young people a first insight in to the world of work, including the skills required, and it helps inform young people regarding future decisions.
It’s also vital in helping to develop those core skills that are so important: confidence and social skills, teamwork, communication and timekeeping. It’s also important in beginning to educate young people on the difference between education and school, and helping make that transition.

For employers it’s an opportunity to give something back and provide a really valuable and important opportunity for a young person. Many employers also look at work experience placements as a way to recruit new and talented young people in to their business.
Traditionally we think of work experience as five days of fairly mundane activities. But we are encouraging and helping employers provide meaningful and fulfilling work experience opportunities – and they don’t need to be five days long. We can help create varied work experience programmes that can include taster days, visits to businesses and undertaking
work experience at more than one business for a shorter period. Work experience can now literally be anything from two hours to two weeks.
If you are able to provide a valuable work experience opportunity, please do get in touch with Laura Bush on laura. bush@dorsetchamber.co.uk
Laura can provide you with help on providing a great experience for a young person that’s flexible in terms of format. You can also see more information on our website dorsetchamber.co.uk
You’d be making a huge difference and providing a young person with a great development opportunity that should be there for everyone.

Businesses across Dorset are being encouraged to join STRIDE Dorset, a new intensive project aimed at supporting innovation among SMEs and start-ups. Delivered in collaboration with Dorset Council and business groups, STRIDE follows a successful programme run in Cornwall by the University of Plymouth. A launch event will be held on November 5th at the BattleLab within the Dorset Innovation Centre in Wool. Funded through the UK Shared Prosperity Fund, STRIDE – Success Through Research, Innovation and Development Excellence – will run until February 2025, offering masterclasses, specialist support, and assistance in areas like intellectual property, finance, product development, and R&D tax credits.
Jo Hancock, Programme Manager at the University of Plymouth,

said: ‘STRIDE is deliberately intensive so businesses can benefit swiftly from all it has to offer. Up to three businesses will also qualify for special intensive support to help them exploit new ideas and launch new products or services.’
An Innovation for Business Conference in February will showcase programme support and offer interactive demonstrations.
Cllr Richard Biggs, Dorset Council’s Deputy Leader, said:
‘By providing targeted support, STRIDE Dorset will equip SMEs and start-ups with the essential tools and knowledge they need to succeed. We are committed to empowering our local businesses, helping them to realise their full potential, and in turn, contributing to the prosperity of Dorset.’
For more info and to register for the launch event, which is from 9.30am to 2.30pm, see it on Eventbrite here
Dorset Council has announced the launch of Round 3 for SME business grants under the UK Rural England Prosperity Fund (REPF). This final round, open until 17th November 2024, aims to support rural businesses through capital grants focused on innovation, automation, development, and improved productivity.
The REPF is committed to aiding the expansion of businesses, boosting job opportunities, and enhancing community cohesion. Grants are available for projects that support local economic growth, business diversification, and green initiatives.
Who Can Apply:
Medium, small and microbusinesses located within the Dorset Council area and the Defra
UKREPF locality. Businesses must have fewer than 50 employees and an annual turnover under £8.5m. Applicants should not have received more than £315,000 in subsidies over the last three years.
Grant Details:
Capital grants between £2,000 and £20,000 with 100% match funding required. Grants can be used for projects such as local economic development, business diversification outside agriculture, plant and machinery upgrades, building conversions and packaging equipment.
Cllr Richard Biggs, Dorset Council’s cabinet member for property & assets and economic growth, says, ‘We hope to inspire Dorset business owners to use this funding for their operations.’
Application and Evaluation: Projects will be evaluated based on their economic, environmental and social benefits, including contributions to the local economy, Net Zero goals, and nature recovery objectives.
Exclusions:
Projects that have received funding from other Defra schemes, such as the Farming in Protected Landscapes Programme, the Farming Investment Fund, and the Platinum Jubilee Village Hall Improvement Grant Fund, are not eligible for this round.
• For more information on Round 3 and previous grant awards, visit the Dorset Council website.



Commercial & Private Law
Join a vibrant team at Porter Dodson as a Private Client Solicitor
Porter Dodson is an award-winning Top 200 UK Law Firm, providing commercial and private legal services to individuals and businesses across Somerset, Devon and Dorset.
We have a unique opportunity for a Solicitor or Legal Executive to provide support across our Yeovil and Sherborne offices to assist with the current busy workload. Offering interesting and varied work, this position will play a key role in supporting and expanding the Firm’s client base in this area of the practice whilst adopting efficient working practices to ensure commercial objectives are met or surpassed.
In addition to your private client enthusiasm and expertise, we are looking for a team player who values every member of the team and wider firm and their contribution to the success of Porter Dodson. We have a unique offering at PD where we have the benefit of being a larger firm but pride ourselves on having maintained the flexibility, collaborative nature and welcoming environment of a smaller firm.
This role would best suit someone who can demonstrate sound knowledge and a commercial application of the law and practice in this area. Experienced in dealing with Estate Administration, Wills, and LPAs, you must be able to conduct effective case and transaction management. Ideally 1-3 years PQE the successful candidate must be able to manage their own caseload with supervision from a Partner.
You will be ambitious, pro-active, and enthusiastic, with excellent interpersonal skills. The right candidate will have a growth mindset with the ability to see the bigger picture.
Porter Dodson offers genuine development opportunities for those who are motivated and flourish in an environment where contribution and commitment is opportunity for career development and progression within a transparent and structured framework.
Scan the QR code for more information and to submit an application

porterdodson.co.uk


. . . W h e n s h r i e k ' d t h e b l e a k
N o v e m b e r w i n d s ,
A n d s m o t e t h e w o o d s ,
A n d t h e b r o w n f i e l d s w e r e
H e r b l e s s , a n d t h e s h a d e s ,
T h a t m e t a b o v e t h e m e r r y r i v u l e t ,
W e r e s p o i l ' d , I s o u g h t , I l o v e d
t h e m s t i l l t h e y s e e m ' d
L i k e o l d c o m p a n i o n s i n a d v e r s i t y .
– A Winter Piece
William Cullen Bryant
D o y o u t h i n k a l o c a l ( o r y o u r
o w n ) b u s i n e s s w o u l d m a k e a
g o o d p r o f i l e f e a t u r e ?
K n o w s o m e o n e d o i n g g o o d
t h i n g s t h a t w e s h o u l d t a l k a b o u t ?
S e n d a q u i c k e m a i l t o L a u r a :
e d i t o r @ B V m a g a z i n e . c o . u k
G e t i n t o u c h w i t h C o u r t e n a y t o c h a t
a b o u t w h a t y o u ' r e l o o k i n g f o r - w e ’ r e
a l w a y s k e e n t o t a l k t o l o c a l b u s i n e s s e s
l o o k i n g f o r n e w w a y s t o b u i l d t h e i r
p r o f i l e a n d r e a c h :
a d v e r t i s i n g @ B V m a g a z i n e . c o . u k
0 1 2 5 8 4 7 2 5 7 2
N e x t P u b l i c a t i o n D a t e :
6 t h D e c e m b e r
( d e a d l i n e 2 9 t h N o v e m b e r )
T h e B V p u b l i s h e s o n t h e f i r s t F r i d a y
o f t h e m o n t h , a n d t h e a d v e r t i s i n g
b o o k i n g d e a d l i n e i s a l w a y s t h e
F r i d a y p r i o r t o p u b l i s h i n g
